The Project Gutenberg EBook of The Palace and Park, by 
F. K. J. Shenton and Samuel Phillips and Edward Forbes and Richard Owen and George Scharf

This eBook is for the use of anyone anywhere in the United States and
most other parts of the world at no cost and with almost no restrictions
whatsoever.  You may copy it, give it away or re-use it under the terms
of the Project Gutenberg License included with this eBook or online at
www.gutenberg.org.  If you are not located in the United States, you'll
have to check the laws of the country where you are located before using
this ebook.



Title: The Palace and Park
       Its Natural History, and its Portrait Gallery, together
              with a Description of the Pompeian Court

Author: F. K. J. Shenton
        Samuel Phillips
        Edward Forbes
        Richard Owen
        George Scharf

Release Date: June 30, 2019 [EBook #59843]

Language: English

Character set encoding: ISO-8859-1

*** START OF THIS PROJECT GUTENBERG EBOOK THE PALACE AND PARK ***




Produced by Chris Curnow, Harry Lamé and the Online
Distributed Proofreading Team at http://www.pgdp.net (This
file was produced from images generously made available
by The Internet Archive)






Please see the Transcriber’s Notes at the end of this text.

The cover image has been created for this e-text and is in the public domain.


Cover image

VIEW OF BUILDING FROM THE NORTH.


THE
PALACE AND PARK:
ITS
NATURAL HISTORY,
AND ITS
PORTRAIT GALLERY,
TOGETHER WITH
A DESCRIPTION OF THE POMPEIAN COURT.

IN THE UNDERMENTIONED GUIDES:

1. PALACE AND PARK;

2. PORTRAIT GALLERY;

4. EXTINCT ANIMALS;

5. POMPEIAN COURT; 

3. ETHNOLOGY & NATURAL HISTORY.

Seal

CRYSTAL PALACE LIBRARY,
CRYSTAL PALACE, SYDENHAM.
1859.


GUIDE
TO THE
CRYSTAL PALACE
AND ITS
Park and Gardens.

By SAMUEL PHILLIPS.

Line

A NEWLY ARRANGED AND ENTIRELY REVISED EDITION,

By F. K. J. SHENTON.

WITH NEW PLANS AND ILLUSTRATIONS, AND AN INDEX OF
PRINCIPAL OBJECTS.

Seal

CRYSTAL PALACE LIBRARY;
CRYSTAL PALACE, SYDENHAM.
1859.


LONDON:
ROBERT K. BURT, PRINTER,
HOLBORN HILL.


PART I.
Line
PRELIMINARY AND INTRODUCTION.


[I-iii]

Note.—This Division of the Guide-Book contains the Index to Principal Objects; and the Company’s Official Announcements; with the Refreshment Tariff; an Introduction to the General Guide-book; and an Account of the Building.


[I-iv]

ADVERTISEMENT.

Line

The arrangement of the present edition has been made with the view of simplifying, as much as possible, the reference to particular objects; as well as of enabling the visitor to regularly explore with advantage every portion of the Crystal Palace. The splendid Botanical Collection, now thoroughly acclimatised, and very complete, is described as fully as the nature of the book will permit.

[I-v]

PREFACE TO ORIGINAL EDITION.

Line

The following pages are presented to the public as a brief but connected and carefully prepared account of the exterior and interior of the Crystal Palace. It is believed that no important or interesting object in connexion with the Exhibition is without its record in this little volume; although, in so vast a collection of works of architecture, sculpture, and industrial manufacture, it is clearly impossible to compress within the limits of a General Hand-book all the information which is necessary to satisfy the visitor desirous of precise and accurate knowledge of the numberless objects offered to his contemplation.

A general and comprehensive view of the Crystal Palace will unquestionably be obtained by the perusal of the present manual. The Hand-books of the respective departments will supply all the detailed information necessary to fill in the broad and rapidly drawn outlines. In them, Literature will faithfully serve as the handmaiden to Art, and complete the great auxiliary work of education which it is the first aim of the Crystal Palace to effect.

These Hand-books are published at prices varying from three-pence to eighteen-pence, according to the size of the volume. The lowest possible price has been affixed to one and all. It may be fearlessly asserted that books containing the same amount of entertainment, information, and instruction, it would be difficult to purchase at a more reasonable rate elsewhere.


[I-vi]

Map

PRINTED BY R. K. BURT, HOLBORN HILL, CITY.

Large map.


[I-vii]

CONVEYANCE BY ROAD AND RAIL.

Line

The trains start punctually from the London Bridge and Pimlico Stations at the times advertised in the official bills to be found in various parts of the building; but special trains are put on always as occasion may require.

The shortest route from London, by carriage, will be found marked on the accompanying map. The ordinary entrances from the road are at the South and Central Transepts. Entrances are also provided opposite Sydenham Church, and at the bottom of the Park, below the Grand Lake and Extinct Animals.

Omnibuses leave Gracechurch Street for the Crystal Palace at intervals from 10 in the morning. An omnibus also leaves the Paddington Station at a quarter to 11 A.M. Also one from the Kings and Key, Fleet Street, at 12 o’clock, and one from the Green Man, Oxford Street, at the same time. Omnibuses leave the City for Camberwell every 10 minutes. Conveyance can also be procured from Peckham and Clapham. On fête days omnibuses run at frequent intervals, at times according to the season.

Crystal Palace and Lower Norwood to Oxford Street, viâ Norwood, Brixton Road, Elephant and Castle, Westminster Road, Whitehall, Waterloo Place, and Regent Street—(c) green; (m) Norwood. From Crystal Palace, week days only, 8.30, 10.25, A.M., 2.20, 5.15, 6.30, 7.10, 8.45, P.M. From King’s Head, Norwood, week days, 8.55, 9.55, 10.50, A.M., 12.55, 1.50, 2.50, 4.5, 5.35, 7.35, 9.15, P.M. Sundays, 9.40, 10.50, A.M., 1.0, 1.40, 2.10, 4.20, 5.50, 7.20, 8.10, 9.35, P.M. From New Church, Tulse Hill, week days, 9.5, 10.5, 11.0, A.M., 1.5, 2.0, 3.0, 4.15, 5.45, 7.15, 9.25, P.M.; Sundays, 9.50, 11.0 A.M., 1.10, 1.50, 2.20, 4.30, 6.0, 7.30, 8.20, 9.45, P.M. From Oxford Street, Regent Circus, week days, 10.0, 11.20, A.M., 12.10, 2.20, 3.10, 4.10, 5.30, 7.0, 8.30, 10.45, P.M.; Sundays, 10.20, 10.50, A.M., 12.0, 2.10, 3.0, 3.30, 5.30, 7.0, 9.30, 10.50, P.M. From Charing Cross, week days, 10.15, 11.35, A.M., 12.25, 2.35, 3.25, 4.25, 5.45, 7.15, 8.45, 11.0, P.M.; Sundays, 10.35, 11.5, A.M., 12.15, 2.25, 3.15, 3.45, 5.45, 7.15, 9.45, 11.5, P.M. Fares, Upper Norwood to Kennington Gate, Charing Cross, or Oxford Street, 1s.; Cemetery, Lower Norwood, and Oxford Street, 1s.; ditto, ditto, Charing Cross, 9d.; ditto, ditto, Kennington Gate, 6d.

A complete system of omnibus conveyance has been established by the London General Omnibus Company between the following districts and the Crystal Palace Railway Station at London Bridge:—Hammersmith, Putney, Brompton, Paddington, Bayswater, St. John’s Wood, Holloway, Hornsey Road, Islington, Kingsland, Hoxton, Newington Causeway, and Kent Road.


[I-viii]

Crystal Palace Company.
OFFICIAL ANNOUNCEMENTS.

Line
SEASON TICKETS.
FIRST CLASS.

Two Guineas each for Adults, One Guinea for Children under twelve. To admit the holder on all occasions whatever, excepting the three performances of the Handel Festival.

SECOND CLASS.

One Guinea each for Adults, Half a Guinea each for Children under twelve. To admit the holder on all occasions whatever, excepting the three performances of the Handel Festival, and when the price of admission is Five Shillings, or upwards, on payment of Half a Crown.

The Tickets may be obtained at—

The Crystal Palace;

The Offices of the London and Brighton Railway Company, London Bridge, and Regent Circus, Piccadilly; and at the Stations on the Palace Railways, and various Lines in connection therewith.

The Central Ticket Office, 2, Exeter Hall;

And of the following Agents to the Company:—

Addison & Hollier, Regent-street; W. Austen, Hall-keeper, St. James’s Hall; Cramer, Beale, & Co., 201, Regent-street; Dando, Todhunter, & Smith, 22, Gresham-street, Bank; Duff & Hodgson, Oxford-street; Gray & Warren, Croydon; M. Hammond & Nephew, 27, Lombard-street; Keith, Prowse, & Co., 48, Cheapside; Letts, Son, & Co., 8, Royal Exchange; Mead & Powell, Railway Arcade, London Bridge; J. Mitchell, 33, Old Bond-street; W. R. Sams, 1, St. James’s-street; W. R. Stephens, 36, Throgmorton-street; Charles Westerton, 20, St. George’s-place, Knightsbridge.

Remittances for Season Tickets to be by Post-office Orders on the General Post-office, payable to George Grove.

RATES OF ADMISSION, RAILWAY ARRANGEMENTS, ETC.

Ordinary Rates of Admission.—These remain as before, viz.:—

On Mondays, Tuesdays, Wednesdays, Thursdays, and Fridays (unless on special occasions) One Shilling.

On Saturdays, Half-a-Crown, unless on special occasions, and excepting those in August, September, and October, when the Price of Admission may be reduced to One Shilling.

Children under 12 Years of Age, Half-Price.

[I-ix]

Books, containing 25 admissions for ordinary Shilling days, till the 30th of April, 1860, are issued at the following rates:—

Shilling Days, 25 for £1 2 6
Half-crown Days, 25 for 2 10 0
GRAND MILITARY MUSICAL FÊTE.

To commemorate the suppression of the Indian Rebellion. This Fête, which will bring together a larger number of wind instruments than has been before heard together in this country, will take place in the new Orchestra of the Great Handel Festival, on May 2nd.

FLOWER SHOWS.

There will be Flower Shows at the following dates:—

  s. d.
Wednesday, May 18th Admission 7 6
June 8th 7 6
Sept. 7th 2 6
Thursday, Sept. 8th 1 0
Wednesday, &c., Nov. 9th and 10th 1 0

Tickets for the first two Shows will be issued prior to the day of the Show, at the reduced rate of Five Shillings, on the written order of a Season Ticket-holder.

OPERA CONCERTS.

The Directors have made arrangements with Mr. Gye for a series of Six Grand Concerts, to be supported by the artistes of the Royal Italian Opera, Covent Garden. These Concerts are fixed to take place on—

Wednesday, May 11th. Wednesday, July 6th.
May 25th. 13th.
June 15th. 20th.
SATURDAY PROMENADES AND SECOND SERIES OF CONCERTS.

During the period embraced by the Concerts of the Royal Italian Opera Company the Saturday Promenades will be continued as during last Season, admission Half-a-crown.

After the conclusion of that series, it is proposed to combine the Concert and Promenade on the Saturdays, commencing with the 23rd July, for a Second Series.

For these Concerts the Directors are happy to announce that they have entered into arrangements for the services of some of the most celebrated Artistes, Continental and English, amongst whom will be found several who are highly popular with the public, and who have not yet appeared at the Crystal Palace. The admission to these Concerts will be to Non-Season Ticket-holders Five Shillings.

OTHER MUSICAL ENTERTAINMENTS.

Other Concerts will take place during the Season; and of these due notice will be given. In the meantime the Directors may state that they will be favoured with the co-operation of Mr. Henry Leslie’s Choir: Also that[I-x] some Grand Performances of Classical Music, on an extensive scale, by the Vocal Association, under the able baton of Mr. Benedict, embracing several novelties, may be looked forward to. It is further announced with pleasure that the Metropolitan Schools Choral Society, numbering among its ranks many thousands of the Children of the National Schools, whose singing last year, conducted by Mr. G. W. Martin, elicited such warm approval, will hold another celebration on Saturday, 11th June; as also will the members of the Tonic Sol-Fa Association, under the same able conduct as before. Another great meeting of the Metropolitan Charity Children is anticipated.

THE SATURDAY WINTER CONCERT

Will be resumed in November, as during the last Season. Every opportunity will be taken to widen the range and increase the attractions of these Concerts, and to add to the convenience of the visitors who attend them. With the latter intention, in obedience to a desire very generally expressed, it has been determined that a limited number of Reserved Seats will be provided at each Concert.

OPEN AIR MUSIC.

Performances of Music by a Band of Wind Instruments in the open air having, during former seasons, afforded much gratification to the Public, it is proposed to resume these performances during the coming Summer months, at frequent intervals, and at such times of the afternoon as will be most convenient for the largest number of Visitors.

LECTURES.

The Lectures delivered by Mr. Pepper during the past Autumn and Winter will be resumed at the end of the Summer Season, and no exertions will be spared to make them efficient and interesting.

THE GREAT HANDEL FESTIVAL.

The dates of each performance will be as follows:—

Monday June 20 Messiah.
Wednesday, June 22 Dettingen Te Deum:” Selections from “Saul,” “Samson,” “Belshazzar,” “Judas Maccabeus,” and other Works.
Friday June 24 Israel in Egypt.

The Great Orchestra is 216 feet wide, with a central depth of 100 feet; and will contain on the occasion nearly 4,000 performers.

PARK, GROUNDS, AND OUT-DOOR AMUSEMENTS.

These will continue to receive the attention of the Directors. The Cricket Ground is rising into public favour, and is becoming the resort of several clubs of importance; a Rifle Ground, a Bowling Green, and a Gymnasium of approved construction, are now added to it.

CRYSTAL PALACE ART-UNION.

The detailed plan and arrangements of this Institution are set forth in the official statement issued by the Council, which may be obtained on application at the Company’s proper offices.

[I-xi]

EXCURSIONS.

Benevolent Societies, Schools, and other large bodies may visit the Palace at the following reduced rates:—applying only to Shilling Days and Third-class Carriages.

  s. d.     s. d.
For a number of Excursionists over 250 and under 500 1 3 pr. head instead of 1 6
Exceeding 500 and under 750 1 2 1 6
Exceeding 750 and under 1000 1 1 1 6
Exceeding 1000 1 0 1 6
Children, half-price.

Parties wishing to arrange for Refreshments, must apply at the Palace, to Mr. F. Strange, who is prepared to make a reduction in favour of large parties, according to the kind of Refreshment desired.

⁂ When the Excursion consists mainly, or in part, of Children, it is requested that the persons in charge of them will prevent their touching any works of Fine Art in the Courts, or gathering leaves or flowers in or out of the building. Considerable damage has frequently been thus done by children, and serious noise and annoyance is caused by their running along the galleries, or playing boisterously—a practice which it is desirable to stop.


BATH CHAIRS.

Wheel-chairs for invalids and others, may be hired in the building on the following terms:—

Within the Palace, with Assistants 1s. 6d. per hour.
In the Grounds 2s. 6d.
Without Assistants, 6d. less.  
Perambulators 0s. 6d.
Double Perambulators 1s. 0d.
Lifting Chairs for carrying Invalids up the stairs from the
Railway Station, or to the Galleries, 1s.

The principal stand is near the entrance to the building, from the railways. Visitors can also be conveyed by these chairs to any hotel or residence in Sydenham or Norwood.

Crystal Palace, May, 1859.


[I-xii]

THE REFRESHMENT DEPARTMENT.

Line

The various Saloons and Dining Rooms allotted for the Refreshment Department are all situated at the South End of the Palace, but branch stations for light refreshments will be found in various convenient positions throughout the building, and on special occasions requiring it, in the grounds. Mr. Frederick Strange is the lessee of the whole department.

THE SALOON

is entered at the right-hand corner of the extreme South End of the Palace, and is richly carpeted and decorated, and fitted with every elegant convenience. The very highest class of entertainment is served here to due notice and order.

Hot Dinners—Soups, Fish, Entrées, &c., &c.—to order at a few minutes’ notice. Price as per detailed Carte.

The authorised charge for attendance is 3d. each person.

 

THE DINING ROOM

is on the left of the Saloon.

  s. d.
Dinner from the Hot Joint 2 0
Sweets, &c., according to daily Bill of Fare.  
The authorised charge for attendance is 2d. each person.

 

SOUTH WING DINING ROOM.

The South Wing Dining Room is entered at the left-hand corner of the extreme South End of the Palace, as the Saloon is at the right-hand. It is the most spacious dining hall of the kind in England, and is constructed entirely of glass and iron. The end and the long façade next the gardens are fitted for the whole extent with magnificent plate glass (which can be opened at convenience), commanding, from the dinner tables, a perfect view of the Terraces, Fountains, the Gardens, and the great prospect of rich landscape beyond. The dishes are served direct from the kitchen by a special covered tramway.

THE TERRACE DINING ROOM

is entered from the garden end of the South Transept, near to the entrance from the Railways. The front, toward the garden, is glass, giving a view of the terraces and grounds. Cold dinners only are served in this room.

  s. d.
Cold Meat or Veal Pie, with Cheese and Bread 1 6
Chicken, with Ham and Tongue, and ditto 2 6
Lobster Salad, per dish 2 6
Jelly or Pudding 0 6
Ice (Nesselrode) Pudding 1 0
The authorised charge for attendance is 1d. each person.

 

[I-xiii]

THE THIRD CLASS ROOMS

are situated near the Railway Colonnade, in the lower story of the South Wing, and near the staircase at the end of the Machinery Department.

  s. d.
Plate of Meat 0 6
Bread 0 1
Bread and Cheese 0 3
Porter (per Quart) 0 4
Ale 0 6
Ale 0 8
Coffee or Tea (per cup) 0 3
Roll and Butter 0 2
Biscuit 0 1
Bun 0 1
Bath Bun 0 2
Soda Water, &c. 0 3
GENERAL TARIFF.
  s. d.
Ices, Cream or Water 0 6
Coffee, or Tea (per Cup) 0 4
French Chocolate 0 6
Sandwich 0 6
Pork Pie 1 0
Pale Ale or Double Stout (Tankard) 0 6
Pale Ale or Double Stout (Glass) 0 3
Soda Water, Lemonade, &c. 0 4
Confectionery at the usual prices.
No charge for attendance is authorised
on light refreshments.
Note.—The Full Wine List will be found
on all the tables, and at all the Stations.

⁂ In case of any complaint against Waiters, Visitors are requested to report the circumstance, together with the number of the Waiter, at the Office of Mr. Strange. Waiters are not allowed to receive any gratuity.


[I-xiv]

INDEX
TO THE PRINCIPAL OBJECTS OF INTEREST IN THE
CRYSTAL PALACE, ITS GARDENS AND PARK, AT SYDENHAM,
As described or named in the General Guide-Book.

Line
A.
PAGE
Aboo Simbel, Tomb from, 28
Agricultural Implements, The, 142
Alhambra Court, The, 38
Amazonian Natives, 94
Anoplotheria, The, 165
Aquaria, Fresh Water, 96
Aquaria, Sea Water, 96-100
Araucaria Cookii, 131
Arcades for Waterfalls, 160
Archery Ground, The, 158
Arctic Illustrations, The, 95
Arundel Society Exhibition, 82
Assyrian Court, The, 43
Atrium of Greek Court, The, 33
Augsburg Cathedral, Bronze Doors from, 54
Australian Natives of Cape York, 92
Aviaries, The, 116
Aegina Marbles, The, 118
B.
Bavaria, Colossal Head of, 109
Beni Hassan, Tomb from, 27
Bernini, Virgin and Christ, 78
Birkin Church, Norman Doorway from, 56
Birmingham Court, the, 84
Boilers and Furnaces, The, 13
Bosjesmen, The, 97
Botany of the Palace, The, 120
Botocudos, The, 93
Bramante, Doors from the Cancellaria at Rome, 79
Byzantine Court, The, 47
Byzantine Mosaic Ornament, 52
Byzantine Portraits of Justinian, Theodora, Charles the Bald, and Nicephorus Botoniates, 52
C.
Campanile, Venice, Bronze Castings from the, 78
Canadian Court, 108
Cantilupe Shrine, The, 81
Caribs, The, 91
Cellini, Benvenuto, the Nymph of Fontainebleau, 72
Cellini, Benvenuto, Perseus, 119
Ceramic Court, The, 102
Certosa at Pavia, Sculptures and Architectural specimens from the, 71, 72, 73, 80
Chameleons, The, 117
Charles I., Statue of, 105
Chatham, Earl of, Statue of, 106
Chinese Chamber of Curiosities, 141
Choragic Monument of Lysicrates, 112
Cimabue, Paintings from Convent of Assisi in Italy, 55
Cloisters, Romanesque, 53
Cloisters, from Guisborough Abbey, 61
Coliseum at Rome, Large Model of, 37
Colleone, Equestrian Statue of, 82
Cologne Cathedral, Architectural Details from, 57
Concert Room, The, 121
Cotton Spinning Machine, 144
Cricket Ground, The, 160
Crosses, Irish and Manx, 55, 81
Crystal Palace, Account of the Building, 10
Crystal Palace, Measurements of the, 14
D.
Danakils, The, 97
Dicynodons, The, 163
Donatello, Bas-Reliefs and Sculptures by, 72, 73, 81
Doria Palace, Doorways from the, 72, 73
Duquesne, Admiral, Colossal Statue, 111
E.
Eardsley Church, Font from, 55
Effigy of Richard Cœur de Lion, 53
Egyptian Court, The, 24
Egyptian Frieze, 26
Egyptian Pictures, 26
Egyptian Figures, The Great[I-xv], 118
Elgin Marbles, The, 34
Elizabethan Court, The, 74
Elks, The Irish, 165
Ely Cathedral, Door of Bishop West’s Chapel, 61
Ely Cathedral, The Prior’s Door, 53
Engineering and Architectural models, 139
Entrance, The, 21
Extinct Animals, The, 163
F.
Fancy Manufactures, 103
Farnese Hercules, 111
Farnese Flora, 111
Fine Arts Court, Introduction to, 23
Fontevrault Abbey, Effigies from, 54
Forum at Rome, The, 37
Fortification, Mr. Fergusson’s System of, 139
Fountains, the System of, 172
Fountains, The Bronze, 114
Fountains, The Crystal, 21
Fountains, From Heisterbach, 53
Fountains, of Renaissance period, 70
Fountains, The Tartarughe, 77
Francis I., Equestrian Statue, 107
Franconia, Colossal Statue, 109
Frescos, Indian, 140
G.
Galleries, The, 133
Gardens, The, 150
Gardens, The Italian Flower, 150
Gardens, The English Landscape, 157
Gattemelata, Bronze Equestrian Statue by Donatello, 82
Geerts, Charles, Ecclesiastical Sculpture by, 56
Geological Illustrations, 160
Ghiberti, Lorenzo, Bronze Gates from the Baptistery at Florence, 72
Glass Manufactures, Foreign, 101
Gold Fish, The, 114
Gothic Sepulchral Monuments, 64
Goujon, Jean, Carved doors from St. Maclou, 71, 72, 73
Goujon, Jean, Caryatides, from the Louvre, 72
Greek Court, The, 31
Greenlander, The, 95
Gutenberg Monument, The, 107
H.
Hawton Church, The Easter Sepulchre from, 63
Hildesheim Cathedral, Doors from, 54
Hildesheim Cathedral, Bronze Column from, 81
Hot-Water Apparatus, 16
Hotel Bourgtheroulde, Restorations from, 70
Hylæosaurus, The, 164
I.
Ichthyosaurus, The, 164
Iguanodons, The, 164
Indian Court, The, 140
Indians, American, 93
Inventions, Court of, 84
Italian Court, The, 76
Italian Court, Vestibule, 79
K.
Kaffres, Zulu, 97
Karnak, Temple of, 28
Kilpeck Door (Norman), 54
Krafft, Adam, Ecclesiastical Sculpture by, 57, 58
L.
Labyrinthodons, The, 163
Landscape view from the Terraces, 148
Laocoon, The, 32
Lessing, Portrait Statue of, 107
Lepidosiren, The, 115
Library and Reading Room, The, 109
Lichfield Cathedral, Door from, 64
Lincoln Cathedral, John O’Gaunt’s Window, 64
Lincoln Cathedral, Architectural Details from, 62
Lizards, The, 117
Lombardo, Pietro, Bronze Altar of La Madona della Scarpa, 80
M.
Machinery in motion, 144
Mammoth Tree, 119
Marine Aquaria, 96-100
Mayence Cathedral, Monument from, 57
Medal Press, The, 83
Mediæval Court, The English, 53
Mediæval Court, The German, 56
Mediæval Court, The French and Italian, 67
Megalosaurus, The, 164
Megatherium, The, 165
Mexicans, 94, 99
Michael Angelo, Statues by, 77, 78
Michael Angelo, The Medici Tombs, 78
Monuments of art, Court of, 81
Monuments in front of Mediæval Courts, 117, 118
Mosasaurus, The, 164
Museum, Industrial and Technological Collection, 135
N.
Natural History Illustrations, 90
Naval Museum, The, 139
Nave, The, 103
Niobe Sculptures, The, 34
Notre Dame of Paris, Arches and Iron Doors from, 67
Nuremberg Doorway, The, 56
O.
Orchestra, Great Festival, 111
Orchestra, Concert, 112
P.[I-xvi]
Palæotherium, The, 164
Pantheon at Rome, The, 37
Papuans, The, 92
Park and Gardens, The, 147
Parthenon, Large Model of, 33
Parthenon, Frieze, 33
Perugino, Painted Ceiling from Perugia, 73
Philoe Portico, The, 27
Photographs in Galleries, Architectural, 138, 142
Picture Gallery, The, 134
Pilon, Germain, The Graces and other Statues, 73
Pisano, Giovanni, and Nino, Statues by, 67
Pipes in Gardens, System of, 155
Plesiosaurus, The, 164
Pocklington Cross, The, 81
Pompeian Court, The, 85
Portrait Gallery, Commencement of, 33
Portrait Gallery, The, 138
Pterodactyles, Great, 165
Ptolemaic Architecture, 26
Q.
Quail, Californian, 115
Quercia, Jacopo della, Monument from Lucca Cathedral, 73
R.
Raffaelle, Frescos from the Loggie of the Vatican, 77, 78
Raffaelle, Jonah and the Whale, 78
Raffaelle, Painted Ceiling from the “Camera Della Segnatura” of the Vatican, 78
Rameses the Great, Figures of, 27
Rathain Church, Old Window from, 55
Renaissance Court, The, 68
Robbia, Lucca della, Bas-Reliefs by, 72
Robbia Family, The, Frieze from Pistoia, 70
Rochester Cathedral, Doorway from, 62
Roman Court, The, 35
Romanesque (Byzantine) Court, The, 47
Rosary, The, 156
Rosetta Stone, The[I-xvii], 28
Rubens, Colossal Statue of, 111
S.
Samoiedes, The, 95
Sansovino, Bronze Statues from the Campanile Loggia at Venice, 76
Sansovino, Bronze Door from St. Mark’s, Venice, 78
Screen of the Kings and Queens, 103-4
Sheffield Court, The, 85
Shobdon Side-Door and Chancel Arch, 54
Site of the Crystal Palace, The, 147
Somnauth Gates, The, 141
Stationery Court, The, 82
St. John Lateran, Arcade from, 54
T.
Teleosaurus, The, 166
Terraces, The, 154
Testament, The King of Prussia’s, 110
Tibetans, The, 99
Toro Farnese, The, 112
Torrigiano, Monument of the Countess of Richmond from Westminster, 75
Towers, The Great Water-Towers, 168
Transepts, The, 105, 111, 114
Tropical Department, The, 114
Tuam Cathedral, Details and Examples from, 55
V.
Vecchietta of Sienna, Bronze Effigy by, 73
Venus of Milo, The, 32
Veit Stoss, Ecclesiastical Sculpture by, 56, 58
Vestibule to English Mediæval Court, 66
W.
Water Colour Copies of Great Masters, 79
Well and Water Supply, The, 170
Wells Cathedral, Sculpture and Details from, 62, 63, 64
Winchester Cathedral, Portion of the Altar Screen, 64
Winchester Cathedral, Black Norman Font from, 55
Worcester Cathedral, Prince Arthur’s Door from, 61

[I-1]

Ornament

INTRODUCTION.

Line

The map of the routes to the Crystal Palace will enable the visitor to ascertain the shortest and least troublesome way of reaching the Palace from the various parts of the great metropolis and its environs. The railway communication is by the London and Brighton, and the West End Railways, which serve as the great main lines for the conveyance of visitors by rail from London to the Palace doors.

We will presume that the visitor has taken his railway ticket, which, for his convenience, includes admission within the Palace, and that his twenty minutes’ journey has commenced. Before he alights, and whilst his mind is still unoccupied by the wonders that are to meet his eye, we take the opportunity to relate, as briefly as we can, the History of the Crystal Palace, from the day upon which the Royal Commissioners assembled within its transparent walls to declare their great and successful mission ended, until the 10th of June, 1854, when reconstructed, and renewed and beautified in all its proportions, it again opened its wide doors to continue and confirm the good it had already effected in the nation and beyond it.

It will be remembered that the destination of the Great Exhibition building occupied much public attention towards the close of 1851, and that a universal regret prevailed at the threatened loss of a structure which had accomplished so much for the improvement of the national taste, and which was evidently capable, under intelligent direction, of effecting so very much more. A special commission even had been appointed for the purpose of reporting on the different useful purposes to which the building could be applied, and upon the cost necessary to carry them out. Further discussion on the subject, however, was rendered unnecessary by[I-2] the declaration of the Home Secretary, on the 25th of March, 1852, that Government had determined not to interfere in any way with the building, which accordingly remained, according to previous agreement, in the hands of Messrs. Fox and Henderson, the builders and contractors. Notwithstanding the announcement of the Home Secretary, a last public effort towards rescuing the Crystal Palace for its original site in Hyde Park, was made by Mr. Heywood in the House of Commons, on the 29th of April. But Government again declined the responsibility of purchasing the structure, and Mr. Heywood’s motion was, by a large majority, lost.

It was at this juncture that Mr. Leech,[1] a private gentleman, conceived the idea of rescuing the edifice from destruction, and of rebuilding it on some appropriate spot, by the organisation of a private company. On communicating this view to his partner, Mr. Farquhar, he received from him a ready and cordial approval. They then submitted their project to Mr. Francis Fuller, who entering into their views, undertook and arranged, on their joint behalf, a conditional purchase from Messrs. Fox and Henderson, of the Palace as it stood. In the belief that a building, so destined, would, if erected on a metropolitan line of railway, greatly conduce to the interests of the line, and that communication by railway was essential for the conveyance thither of great masses from London, Mr. Farquhar next suggested to Mr. Leo Schuster, a Director of the Brighton Railway, that a site for the new Palace should be selected on the Brighton line. Mr. Schuster, highly approving of the conception, obtained the hearty concurrence of Mr. Laing, the Chairman of the Brighton Board, and of his brother Directors, for aiding as far as possible in the prosecution of the work. And, accordingly, these five gentlemen, and their immediate friends determined forthwith to complete the purchase of the building. On the 24th of May, 1852, the purchase-money was paid, and a few English gentlemen became the owners of the Crystal Palace of 1851. Their names follow:—

Original Purchasers of the Building.

Mr. T. N. Farquhar, Mr. Joseph Leech,
Mr. Francis Fuller, Mr. J. C. Morice,
Mr. Robert Gill, Mr. Scott Russell,
Mr. Harman Grisewood, Mr. Leo Schuster,
Mr. Samuel Laing.

[1] Of the firm of Johnston, Farquhar, and Leech, Solicitors.

[I-3]

It will hardly be supposed that these gentlemen had proceeded thus far without having distinctly considered the final destination of their purchase. They decided that the building—the first wonderful example of a new style of architecture—should rise again greatly enhanced in grandeur and beauty; that it should form a Palace for the multitude, where, at all times, protected from the inclement varieties of our climate, healthful exercise and wholesome recreation should be easily attainable. To raise the enjoyments and amusements of the English people, and especially to afford to the inhabitants of London, in wholesome country air, amidst the beauties of nature, the elevating treasures of art, and the instructive marvels of science, an accessible and inexpensive substitute for the injurious and debasing amusements of a crowded metropolis;—to blend for them instruction with pleasure, to educate them by the eye, to quicken and purify their taste by the habit of recognising the beautiful;—to place them amidst the trees, flowers, and plants of all countries and of all climates, and to attract them to the study of the natural sciences, by displaying their most interesting examples;—and making known all the achievements of modern industry, and the marvels of mechanical manufactures;—such were some of the original intentions of the first promoters of this national undertaking.

Having decided upon their general design, and upon the scale on which it should be executed, the Directors next proceeded to select the officers to whom the carrying out of the work should be entrusted. Sir Joseph Paxton, the inventive architect of the great building in Hyde Park,was requested to accept the office of Director of the Winter Garden, Park, and Conservatory, an office of which the duties became subsequently much more onerous and extensive than the title implies. Mr. Owen Jones and Mr. Digby Wyatt, who had distinguished themselves by their labours in the old Crystal Palace, accepted the duties of Directors of the Fine Art Department, and of the decorations of the new structure. Mr. Charles Wild, the engineer of the old building, filled the same office in the new one. Mr. Grove, the secretary of the Society of Arts, the parent institution of the Exhibition of 1851, was appointed Secretary. Mr. Samuel Phillips was made Director of the Literary Department. Mr. Francis Fuller, a member of the Hyde Park Executive Committee, accepted the duties of Managing Director, Mr. Samuel Laing, M.P., the chairman of the Brighton Railway Company, became Chairman also of the New Crystal Palace, and Messrs. Fox and Henderson undertook the re-erection of the building.

[I-4]

With these arrangements, a Company was formed, under the name of the Crystal Palace Company, and a prospectus issued, announcing the proposed capital of £500,000, in one hundred thousand shares of £5 each. The following gentlemen constituted the Board of Directors:—

Samuel Laing, Esq., M.P., Chairman.
Arthur Anderson, Esq. Charles Geach, Esq., M.P.
E. S. P. Calvert, Esq. Charles Lushington, Esq.
T. N. Farquhar, Esq. J. Scott Russell, Esq., F.R.S.
Francis Fuller, Esq., Managing Director.

The present Board is constituted as follows:—

T. N. Farquhar, Esq., Chairman.
Arthur Anderson, Esq. James Low, Esq.
Samuel Beale, Esq., M.P. David Ogilvy, Esq.
Henry Sanford Bicknell, Esq. David Price, Esq.
George England, Esq. Henry Danby Seymour, Esq., M.P.
Charles Horsley, Esq. Captain Edward Walter.
A. C. Ionides, Esq.  
Mr. P. K. Bowley is the present General Manager.

It will ever be mentioned to the credit of the English people, that within a fortnight after the issue of the Company’s prospectus the shares were taken up to an extent that gave the Directors ample encouragement to proceed vigorously with their novel and gigantic undertaking.

In the prospectus it was proposed to transfer the building to Sydenham, in Kent, and the site chosen was an irregular parallelogram of three hundred acres,[2] extending from the Brighton Railway to the road which forms the boundary of the Dulwich Wood at the top of the hill, the fall from which to the railway is two hundred feet. It was at once felt that the summit of this hill was the only position, in all the ground, for the great glass building: a position which, on the one side, commands a beautiful view of the fine counties of Surrey and Kent, and on the other a prospect of the great metropolis. This site was chosen, and we doubt whether a finer is to be found so close to London, and so easy of access by means of railway. To facilitate the conveyance of passengers, the Brighton Railway Company—under special and mutually advantageous arrangements—undertook to lay down a new line of rails between London and Sydenham, to construct a branch[I-5] from the Sydenham station to the Crystal Palace garden, and to build a number of engines sufficiently powerful to draw heavy trains up the steep incline to the Palace.

[2] A portion of this land, not required for the purposes of the Palace, has been disposed of.

And now the plans were put into practical and working shape. The building was to gain in strength and artistic effect, whilst the contents of the mighty structure were to be most varied. Art was to be worthily represented by Architecture and Sculpture. Architectural restorations were to be made, and Architectural specimens from the most remarkable edifices throughout the world, to be collected, in order to present a grand architectural sequence from the earliest dawn of the art down to the latest times. Casts of the most celebrated works of Sculpture were to be procured: so that within the glass walls might be seen a vast historical gallery of this branch of art, from the time of the ancient Egyptians to our own era. Nature, also, was to put forth her beauty throughout the Palace and Grounds. A magnificent collection of plants of every land was to adorn the glass structure within, whilst in the gardens the fountains of Versailles were to be outrivalled, and Englishmen at length enabled to witness the water displays which for years had proved a source of pleasure and recreation to foreigners in their own countries. Nor was this all. All those sciences, an acquaintance with which is attainable through the medium of the eye, were allotted their specific place, and Geology, Ethnology, and Zoology were taken as best susceptible of illustration; Professor Edward Forbes, Dr. Latham, Professor Ansted, Mr. Waterhouse, Mr. Gould, and other gentlemen well known in the scientific world, undertaking to secure the material basis upon which the intellectual service was to be grounded. To prevent the monotony that attaches to a mere museum arrangement, in which glass cases are ordinarily the most prominent features, the whole of the collected objects, whether of science, art, or nature, were to be arranged in picturesque groupings, and harmony was to reign throughout. To give weight to their proceedings, and to secure lasting advantage to the public, a charter was granted by Lord Derby’s Government on the 28th of January, 1853, binding the Directors and their successors to preserve the high moral and social tone which, from the outset, they had assumed for their National Institution.

The building paid for, the officers retained, the plans put on paper—Messrs. Fox and Henderson received instructions to convey the Palace to its destined home at Sydenham, and the work of removal now commenced. The first column of the new structure[I-6] was raised by Mr. Laing, M.P., the Chairman of the Company, on the 5th August, 1852; the works were at once proceeded with, and the most active and strenuous efforts thenceforth made towards the completion of the undertaking. Shortly after the erection of the first column, Messrs. Owen Jones and Digby Wyatt were charged with a mission to the Continent, in order to procure examples of the principal works of art in Europe. They were fortified by Lord Malmesbury, then Secretary of State, with letters to the several ambassadors on their route, expressing the sympathy of the Government in the object of their travels, and backed by the liberal purse of the Company, who required, for themselves, only that the collection should prove worthy of the nation for which they were caterers.

The travellers first of all visited Paris, and received the most cordial co-operation of the Government, and of the authorities at the Museum of the Louvre, and the Ecole des Beaux Arts. The permission to obtain casts of any objects which could with safety be taken was at once accorded them. From Paris they proceeded to Italy, and thence to Germany, in both which countries they experienced, generally, a ready and generous compliance with their wishes. At Munich they received especial attention, and were most kindly assisted by the British Ambassador, and the architect Baron von Klenze, through whose instrumentality and influence King Louis permitted casts of the most choice objects in the Glyptothek for the first time to be taken.

The chief exceptions to the general courtesy were at Rome, Padua, and Vienna. At the first-named city every arrangement had been made for procuring casts of the great Obelisk of the Lateran, the celebrated antique equestrian statue of Marcus Aurelius on the Capitol, the beautiful monuments by Andrea Sansovino in the Church of S. M. del Popolo, the interesting bas-reliefs from the Arch of Titus, and other works, when an order from the Papal Government forbade the copies to be taken: and, accordingly, for the present, our collection, as regards these valuable subjects, is incomplete.

At Padua contracts had been made for procuring that masterpiece of Renaissance art, the candelabrum of Riccio, the entire series of bronzes by Donatello, and several other important works in the Church of St. Anthony; but, in spite of numerous appeals, aided by the influence of Cardinal Wiseman, the capitular authorities refused their consent.

At Vienna agreements had been entered into for procuring a[I-7] most important series of monuments from the Church of St Stephen, in that city; including the celebrated stone pulpit, and the monument of Frederic III. A contract had also been made for obtaining a cast of the grand bronze statue of Victory, at Brescia; but although the influence of Lord Malmesbury and Lord Westmoreland (our ambassador at Vienna) was most actively exerted, permission was absolutely refused by the Austrian authorities in Lombardy, as well as in Vienna itself. Thus much it is necessary to state in order to justify the Directors of the Crystal Palace in the eyes of the world for omissions in their collection which hitherto they have not had power to make good. They are not without hope, however, that the mere announcement of these deficiencies will be sufficient to induce the several Governments to take a kindly view of the requests that have been made to them, and to participate in the satisfaction that follows every endeavour to advance human enjoyment.

In England, wherever application has been made, permission—with one exception—has been immediately granted by the authorities, whether ecclesiastical or civil, to take casts of any monuments required. The one interesting exception deserves a special record. The churchwardens of Beverley Minster, Yorkshire, enjoy the privilege of being able to refuse a cast of the celebrated Percy Shrine, the most complete example of purely English art in our country; and in spite of the protestations of the Archbishop of York, the Duke of Northumberland, Archdeacon Wilberforce, Sir Charles Barry and others, half the churchwardens in question insist, to this hour, upon their right to have their enjoyment without molestation. The visitors to the Crystal Palace cannot therefore, as yet, see the Percy Shrine.

Whilst Messrs. Jones and Wyatt were busy abroad, the authorities were no less occupied at home. Sir Joseph Paxton commenced operations by securing for the Company the extensive and celebrated collection of palms and other plants, brought together with the labour of a century, by Messrs. Loddiges, of Hackney. The valuable assistance of Mr. Fergusson and Mr. Layard, M.P., was obtained for the erection of a Court to illustrate the architecture of the long-buried buildings of Assyria; and a large space in the Gardens was devoted to illustrating the Geology of the antediluvian period, and exhibiting specimens of the gigantic animals living before the flood.

As soon as the glass structure was sufficiently advanced, the valuable productions of art which Messrs. Jones and Wyatt had[I-8] acquired abroad rapidly arrived, and being received into the building, the erection of the Fine Art Courts commenced. To carry out these works, artisans of almost every continental nation, together with workmen of our own country, were employed; and it is worthy of note, that although, but a few years before, many of the nations to which these men belonged were engaged in deadly warfare against each other, and some of them opposed to our own country, yet, in the Crystal Palace, these workmen laboured for months, side by side, with the utmost good feeling, and without the least display of national jealousy.

To the whole of these workmen, foreigners and English, engaged in the Crystal Palace, the Directors are anxious to express their obligations and sincere acknowledgments. They recognise the value of their labours, and are fully aware that, if to the minds of a Few the public are indebted for the conception of the grand Idea now happily realised, to the Many we owe its practical existence. Throughout the long and arduous toil, they exhibited—allowance being made for some slight and perhaps unavoidable differences—an amount of zeal, steadiness, and intelligence which does honour to them, and to the several nations which they represent. To all—their due! If the creations of the mind stand paramount in our estimation, let appropriate honour be rendered to the skill of hand and eye, which alone can give vitality and form to our noblest conceptions. Of the advantages attendant on the erection of the Crystal Palace, even before the public were admitted to view its contents, none was more striking than the education it afforded to those who took part in its production. For the first time in England, hundreds of men received practical instruction—in a national Fine Art School—from which society must derive a lasting benefit. It is not too much to hope that each man will act as a missionary of art and ornamental industry, in whatever quarter his improved faculties may hereafter be required.

At one time during the progress of the works as many as 6,400 men were engaged in carrying out the designs of the Directors. Besides the labours already mentioned, Mr. B. Waterhouse Hawkins, in due time, took possession of a building in the grounds, and was soon busily employed, under the eye of Professor Owen, in the reproduction of those animal creations of a past age, our acquaintance with which has hitherto been confined to fossil remains. Dr. Latham was engaged in designing and giving instructions for the modelling of figures to illustrate the Ethnological department,[I-9] whilst Mr. Waterhouse and Mr. Gould, aided by Mr. Thomson, as superintendent, and Mr. Bartlett, as taxidermist, were collecting and grouping valuable specimens of birds and animals to represent the science of Zoology. Towards the exhibition of the articles of industry, six architects were commissioned to erect special courts for the reception of the principal manufactures, and agents were employed in various parts of England to receive the applications of intending exhibitors.

Such are a few of the operations that for the first few months went forward in, and in respect of, the Crystal Palace; and, excepting by those whose business it was to watch the progress of the works, no adequate idea can be formed of the busy activity that prevailed within the building and without, or of the marvellous manner in which the various parts of the structure seemed to grow under the hands of the workmen, until it assumed the exquisite proportions which it now possesses. It remains to state that, whereas the parent edifice in Hyde Park rose under the eye and direction of Sir Charles Fox, the present building was constructed under the superintendence of Sir Charles’s partner, the late Mr. Henderson, aided throughout his long and arduous labours by Mr. Cochrane, his intelligent and indefatigable assistant. Mr. William Earee has been the Company’s Clerk of the Works from the raising of the first column, and still occupies that position.

Her Majesty and his Royal Highness the Prince Consort have been, from the first, graciously pleased to express their warmest sympathy with the undertaking, and visited the Palace several times during the progress of the works. In honouring the inauguration of the Palace with her royal presence, her Majesty gave the best proof of the interest she takes in an institution which—like the great structure originated by her Royal Consort—has for its chief object the advancement of civilisation and the welfare of her subjects.[3]

[I-10]

[3] The Queen’s apartments in the Crystal Palace, destined for the reception of her Majesty and his Royal Highness the Prince Consort, when they honour the Exhibition with their presence, have been erected by Messrs. J. G. Crace and Co., in the Italian style. This beautiful suite of apartments, which are placed at the north end of the building, consists of a large entrance vestibule with architectural ornaments, and painted arabesque decorations. A long corridor leads from the vestibule to the several apartments, and is formed into an arched passage by means of circular-headed doorways, before which hang portières, or curtains. To the right of the entrance are two rooms, one appropriated to the ladies-in-waiting, and the other to the equerries; the walls of both being divided into panels, and decorated in the Italian style. On the left are the apartments for the use of her Majesty and the Prince Consort, consisting of a drawing-room and two retiring rooms. The walls of the drawing-room are divided by pilasters, the panels covered with green silk. The cove of the ceiling is decorated with arabesque ornaments.

ACCOUNT OF THE BUILDING.

In taking the structure of the Great Exhibition of 1851—that type of a class of architecture which may fairly be called “Modern English”[4]—as the model for the new building at Sydenham, the projectors found it necessary to make such modifications and improvements as were suggested by the difference between a temporary receiving-house for the world’s industrial wealth, and a permanent Palace of Art and Education, intended for the use of mankind long after its original founders should have passed away. Not only, however, have increased strength and durability been considered, but beauty and artistic effect have come in for a due share of attention. The difference of general aspect between the present Palace and its predecessor is visible at a glance. In the parent edifice, the external appearance, although grand, was monotonous; the long flat roof was broken by only one transept, and the want of an elevation proportionate to the great length of the building was certainly displeasing. In the Sydenham Palace, an arched roof covers the nave—raising it forty-four feet higher than the nave in Hyde Park—and three transepts are introduced into the structure instead of one, the central transept towering into the air, and forming a hall to the Palace of surpassing brilliancy and lightness. A further improvement is the formation of recesses, twenty-four feet deep, in the garden fronts of all the transepts. These throw fine shadows, and take away from the continuous surface of plain glass walls: whilst the whole general arrangement of the exterior—the roofs of the side aisles rising step-like to the circular roof of the nave,—the interposition of low square towers at the junction of the nave and transepts,—the open galleries towards the garden front, the long wings stretching forth on either side—produce a play of light and shade, and break the building into parts, which, without in any way detracting from the grandeur and simplicity of the whole construction, or causing the parts themselves to appear mean or small, present a variety of surface that charms and fully satisfies the eye.

[4] We do not know any name more suitable to express the character of this iron and glass building than that which we have chosen. In Gothic architecture we have named one style “Early English,” and we think we may with equal propriety confer the title of “Modern English” upon the new order, which is essentially the creation of the nineteenth century, and which served to house one of the greatest national displays that England ever attempted—The Great Exhibition of 1851. The erection of the building both of 1851 and of 1854, it may be well to remark, is mainly due to the rapid advances made in this country in the manufactures of glass and iron, substances which with only moderate attention will defy the effects of time. The present structure is capable of enduring longer than the oldest marble or stone architectural monuments of antiquity. The iron, which forms its skeleton or framework, becomes, when painted, the most indestructible of materials, and the entire covering of glass may be renewed again and again without in any way interfering with the construction which it covers.

[I-11]

OPEN GALLERY TOWARDS THE GARDEN FRONT.

[I-12]

Unity in architecture is one of the most requisite and agreeable of its qualities: and certainly no building possesses it in a greater degree than the Crystal Palace. Its design is most simple: one portion corresponds with another; there is no introduction of needless ornament: a simplicity of treatment reigns throughout. Nor is this unity confined to the building. It characterises the contents of the glass structure, and prevails in the grounds. All the component parts of the Exhibition blend, yet all are distinct: and the effect of the admirable and harmonious arrangement is, that all confusion in the vast establishment, within and without, is avoided. “The mighty maze” has not only its plan, but a plan of the most lucid and instructive kind, and the visitor is enabled to examine every court, whether artistic or industrial; every object, whether of nature or of art, in regular order; so that, as in a well-arranged book, he may proceed from subject to subject at his discretion, and derive useful information without the trouble and vexation of working his way through a labyrinth.

All the materials employed in the Exhibition of 1851, with the exception of the glass on the whole roof, and the framing of the transept-roof, have been used in the construction of the Crystal Palace. The general principle of construction, therefore, is identical in the two buildings. The modifications that have taken place, and the reasons that have led to them, have already been stated. Two difficulties, however, which were unknown in Hyde Park, had to be provided against at Sydenham: viz., the loose nature of the soil, and the sloping character of the ground. Means were taken to overcome these difficulties at the very outset of the work. The disadvantage of soil was repaired by the introduction of masses of concrete and brickwork under each column, in order to secure breadth of base and stability of structure. The slanting ground was seized by Sir Joseph Paxton with his usual sagacity, in order to be converted from an obstacle into a positive advantage. The ground ran rapidly down towards the garden, and Sir Joseph accordingly constructed a lower or basement story towards the[I-13] garden front, by means of which not only increased space was gained, but a higher elevation secured to the whole building, and the noblest possible view. The lower story is sufficiently large to serve as a department for the exhibition of Machinery in Motion, and a very interesting exhibition of Agricultural Implements, which important branches of science and human industry will thus be contemplated apart from other objects. Behind this space, towards the interior of the building, is a capacious horizontal brick shaft, twenty-four feet wide, extending the whole length of the building, and denominated “Sir Joseph Paxton’s Tunnel” (A). Leading out of this tunnel are the furnaces and boilers connected with the heating apparatus, together with brick recesses for the stowage of coke. The tunnel itself is connected with the railway, and is used as a roadway for bringing into, and taking from, the Palace all objects of art and of industry; an arrangement that leaves the main floor of the building independent of all such operations. Behind the tunnel, and towards the west, the declivity of the ground is met by means of brick piers of the heights necessary to raise the foundation pieces of the columns to the level at which they rest on the summit of the hill.

Structure

The building consists, above the basement floor, of a grand central nave, two side aisles, two main galleries, three transepts, and two wings. It will be remembered, that in Hyde Park an imposing effect was secured by the mere repetition of a column and a girder, which, although striking and simple, was certainly monotonous; and, moreover, in consequence of the great length of the building, the columns and girders succeeded one another so rapidly that the eye had no means of measuring the actual length. At Sydenham, pairs of columns and girders are advanced eight feet into the nave[I-14] at every seventy-two feet, thus breaking the uniform straight line, and enabling the eye to measure and appreciate the distance.

The building above the level of the floor is entirely of iron and glass, with the exception of a portion at the west front, which is panelled with wood. The whole length of the main building is 1,608 feet, and the wings 574 feet each, making a length of 2,756 feet, which with the 720 feet in the colonnade, leading from the railway station to the wings, gives a total length of 3,476 feet; or nearly three-quarters of a mile of ground covered with a transparent roof of glass.

Visitors are fond of reverting to the old building in Hyde Park, and of comparing it with the present structure; in order to help the comparison, we furnish, side by side, the exact measurements of the two buildings; from which it will be seen that either building exceeds the other, in some of its proportions.

CRYSTAL PALACE AT SYDENHAM. EXHIBITION BUILDING IN HYDE PARK.
  ft. in.   ft. in.
Length 1,608 0 Length 1,848 0
Greatest width 384 0 Greatest width 456 0
General width 312 0 General width 408 0
Area, including wings 603,072 0 Area 798,912 0
Height of nave from ground-floor 110 3 Height of nave from ground-floor 64 0
Height of transept from ground-floor 174 3 Height of central transept from ground-floor 102 2
Height of central transept from basement 197 10  
Area of galleries 261,568 0 Area of galleries 233,856 0

Though not exactly in the direction of the cardinal points, the two ends of the building are generally called north and south, and the two fronts east and west.

The floor consists of boarding one inch and a half thick, laid as in the old building, with half-inch openings between them, and resting on joists, placed two feet apart, seven inches by two and a half inches thick. These joists are carried on sleepers and props eight feet apart. The girders which support the galleries and the roof-work, and carry the brick arches over the basement-floor, are of cast-iron, and are 24 feet in length. The connections between the girders and columns are applied in the same manner as in the building of 1851. The principle of connection was originally condemned by some men of standing in the scientific world; but experience has proved it to be sound and admirable in every respect. The mode of connection is not merely that of resting the girders on the columns in order to support the roofs and galleries, but the top and bottom of each girder are firmly secured to each of the columns, so that the[I-15] girder preserves the perpendicularity of the column, and secures lateral stiffness to the entire edifice. Throughout the building the visitor will notice, at certain intervals, diagonally placed, rods connected at the crossing, and uniting column with column. These are the diagonal bracings, or the rods provided to resist the action of the wind: they are strong enough to resist any strain that can be brought to bear against them, and are fitted with screwed connections and couplings, so that they can be adjusted with the greatest accuracy. The roof, from end to end, is on the Paxton ridge-and-furrow system, and the glass employed in the roof is 113 of an inch in thickness (21 oz. per foot). The discharge of the rain-water is effected by gutters, from which the water is conveyed down the inside of the columns, at the base of which are the necessary outlets leading to the main drains of the building. The first gallery is gained from the ground-floor by means of flights of stairs about 23 feet high; eight such flights being distributed over the building. This gallery is 24 feet wide, and devoted to the exhibition of articles of industry. The upper gallery is 8 feet wide, extending, like the other, round the building; it is gained from the lower gallery, by spiral staircases, of which there are eight. The greater number of these staircases are divided into two flights, each flight being 20 feet high; but in the centre transept the two staircases contain four flights of the same altitude. Round this upper gallery, at the very summit of the nave and transepts, as well as round the ground-floor of the building, are placed louvres, or ventilators, made of galvanised iron. By the opening or closing of these louvres—a service readily performed—the temperature of the Crystal Palace is so regulated that on the hottest day of summer, the dry parching heat mounts to the roof to be dismissed, whilst a pure and invigorating supply is introduced at the floor in its place, giving new life to the thirsty plant and fresh vigour to man. The coolness thus obtained within the Palace will be sought in vain on such a summer’s day outside the edifice.

The total length of columns employed in the construction of the main buildings and wings would extend, if laid in a straight line, to a distance of sixteen miles and a quarter. The total weight of iron used in the main building and wings amounts to 9,641 tons, 17 cwt., 1 quarter. The superficial quantity of glass used is 25 acres; and weighs 500 tons; if the panes were laid side by side, they would extend to a distance of 48 miles; if end to end, to the almost incredible length of 242 miles. To complete our statistics, we have further to add that the quantity of bolts and rivets distributed over the[I-16] main structure and wings weighs 175 tons, 1 cwt., 1 quarter; that the nails hammered into the Palace increase its weight by 103 tons, 6 cwt., and that the amount of brick-work in the main building and wings is 15,391 cubic yards.

From the end of the south wing to the Crystal Palace Railway station, as above indicated, is a colonnade 720 feet long, 17 feet wide, and 18 feet high. It possesses a superficial area of 15,500 feet, and the quantity of iron employed in this covered passage is 60 tons; of glass 30,000 superficial feet.

But vast as are the proportions of the Crystal Palace, novel and scientific as is the principle of construction, we are in some degree prepared for this magnificent result of intellect and industry by the Great Exhibition of 1851. One arrangement, however, in the present structure admits of no comparison; for, in point of extent, it leaves all former efforts in the same direction far behind, and stands by itself unrivalled. We refer to the process of warming the atmosphere in the enormous Glass Palace to the mild and genial heat of Madeira, throughout our cold and damp English winter.

The employment of hot water as a medium for heating apartments seems to have been first hinted at in the year 1594, by Sir Hugh Platt, who, in a work entitled “The Jewel House of Art and Nature,” published in that year, suggests the use of hot water as a safe means of drying gunpowder, and likewise recommends it for heating a plant-house. In 1716, Sir Martin Triewald, of Newcastle-on-Tyne, proposed a scheme for heating a green-house by hot water; and a Frenchman, M. Bonnemain, a short time afterwards invented an apparatus for hatching chickens by the same means. In the early part of this century Sir Martin Triewald’s plan of heating was applied to conservatories, at St. Petersburgh; and a few years later, Bonnemain’s arrangement was introduced into England, where it has undergone several improvements, and occupied the attention of scientific men. The application of hot water to the heating of churches, public libraries, and other buildings, has been attended with considerable success, and it is now looked upon as the safest, as well as one of the most effectual artificial methods of heating.

The simple plan of heating by hot water is that which Sir Joseph Paxton has adopted for the Crystal Palace. But simple as the method undoubtedly is, its adaptation to the purposes of the Palace has cost infinite labour and anxious consideration: for hitherto it has remained an unsolved problem how far, and in what quantity, water could be made to travel through pipes—flowing and returning[I-17] by means of the propulsion of heat from the boilers. At Chatsworth, the seat of the Duke of Devonshire, the principle has been carried out on a large scale, and the experiment there tried has yielded data and proof: but in the present building, a greater extent of piping has been attached to the boilers than was ever before known, or even contemplated. In order to give the visitor some idea of the magnitude of the operation in question, it will be sufficient to state that the pipes for the conveyance of the hot water, laid under the floor of the main building, and around the wings, would, if placed in a straight line, and taken at an average circumference of 12 inches, stretch to a distance of more than 50 miles, and that the water in flowing from and returning to the boilers, travels one mile and three-quarters. But even with these extraordinary results obtained, the question as to the distance to which water can be propelled by means of heat is far from being definitely settled. Indeed, Sir Joseph Paxton and Mr. Henderson invented an ingenious contrivance, by means of which, should it ever be required, a much larger heating surface may be called forth at any time in any particular portion of the building.

The general arrangement of the Heating Apparatus may be described as follows:—Nearly twenty-four feet below the surface of the flooring of the main building, and leading out of “Sir Joseph Paxton’s Tunnel” (the name given to the roadway in the basement story, extending the whole length of the building on the side nearest the Gardens), are placed, at certain intervals, boiler-houses, each containing two boilers capable of holding 11,000 gallons of water. The boilers are twenty-two in number, and are set in pairs. In addition to these, a boiler is placed at the north end of the building, on account of the increased heat there required for the tropical plants. There are also two boilers set in the lower stories of each wing, and two small boilers are appropriated to the water in the fountain basins at each end of the building, which contain Victoria Regias and other aquatic plants of tropical climes. Four pipes are immediately connected with each boiler; two of such pipes convey the water from the boiler, and the other two bring it back; they are called the main pipes, and are nine inches in diameter.

Of the two pipes that convey the water from the boiler, one crosses the building transversely—from the garden-front to the opposite side. Connected with this pipe, at certain distances, and in allotted numbers, are smaller pipes, five inches in diameter, laid horizontally, and immediately beneath the flooring of the building.[I-18] These convey the water from the main pipe to certain required distances, and then bring it back to the return main pipe, through which it flows into the boiler. The second main pipe conveys the water for heating the front of the building next to the Garden; and connected with this, as with the other main pipe, are smaller pipes through which the water ramifies, and then, in like manner, is returned to the boiler. Thus, then, by the mere propulsion of heat, a vast quantity of water is kept in constant motion throughout the Palace, continually flowing and returning, and giving out warmth that makes its way upwards, and disseminates a genial atmosphere in every part.

To ensure pure circulation throughout the winter, ventilators have been introduced direct from the main building into each furnace, where the air, so brought, being consumed by the fire, the atmosphere in the Palace is continually renewed.

[I-19]

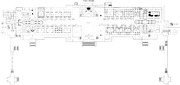
GROUND PLAN OF THE CRYSTAL PALACE.

Large ground plan.

REFERENCES

N.B. The numbers indicate those of the Flower Borders


PART II.
Line
THE INTERIOR.


[I-20]

Note.—The following Guide conducts the visitor up the Colonnade from the Railway Station, through the South Wing into the building. Passing through the nearest section of the Natural History Illustrations, he proceeds direct to the front of the Screen of the Kings and Queens of England, from whence he walks up the Nave to the Great Central Transept, and then commences the series of Fine Arts Courts with the Egyptian Court, continuing it with the Greek Court, the Roman Court, and, through the division for the Tropical End, the Alhambra Court, and the Assyrian Court. Then crossing this end of the building, he continues the series of Courts on the other side with the Byzantine Court, the German Mediæval Court, the English Mediæval Court, the French and Italian Mediæval Court, the Renaissance Court, the Elizabethan Court, the Italian Court, and the Italian Vestibule. The Court of Monuments of Art is next, from which the visitor crosses the Central Transept to the west, and explores the Stationery Court and the adjacent departments, then the Birmingham Court, the Sheffield Court, and the Pompeian House, from which he crosses the South Transept, and enters the Natural History Department, having inspected which, he returns up the building on the other side, through the Foreign Glass Manufactures Court, the British Porcelain Manufactures Court, the Ceramic Court, and the Court of Fancy Manufactures. Returning then to the Screen of the Kings and Queens of England, the visitor examines the collections of the Nave, the South Transept, the Great Central Transept, the North Transept, and the Tropical End of the Building. The Botany of the Palace is then described. The Main and Upper Galleries, in which will be found the Picture Gallery, the Naval Museum, the Engineering Models, the Indian Court, the Industrial Museum and Technological Collection, and the Industrial Exhibition (described in the Exhibitors’ Descriptive Catalogue, page 175), should be next visited; and, after them, the Agricultural Machinery, and the Machinery in Motion, which are exhibited in the basement story next the Gardens: the basement is reached by descending the stairs from either of the Transepts.


[I-21]

THE CRYSTAL PALACE.

Line

THE ENTRANCE.

The Crystal Palace Railway from London Bridge, and the West End Railway from Pimlico, unite at the Station, in the grounds of the Crystal Palace. The Station is connected with the South Wing of the building by a glass-covered colonnade, along which is planted a brilliant array of flowering plants, whilst luxuriant creeping plants adorn the wall. The Fine Art Courts commence with the Egyptian Court, at the Central Transept, from whence the sequence is continued round the northern portion of the Nave. The Central Transept then will be the proper starting-point. When the weather is fine, the visitor may cross the gardens from the Railway Station direct to the central entrance on the upper terrace. We assume that he proceeds by the more usual way of the Colonnade, through the South Wing, until he attains the floor of the main building. He then passes through the Natural History illustrations which are nearest, and which he will examine hereafter; and, keeping to this, the south end of the Palace, proceeds towards the centre of the Nave, taking his stand opposite the Screen of the Kings and Queens of England, which bounds the long Nave at this end. From this point an unrivalled general view is obtained of the interior of the building. In the foreground is the Crystal Fountain, which adorned the Palace in Hyde Park, but here elevated in its proportions and improved. It is surrounded by a sheet of water, at each end of which float the gigantic leaves of the Victoria Regia, the intermediate space being occupied by various aquatic plants,—the Nymphæa Devoniensis, the Nymphæa cærulea, the Nymphæa dentata, and the Nelumbium speciosum, or sacred bean of the Pythagoreans, being conspicuous, with many others, beautiful, rare, or curious. The basin is also encircled with rich flowers. On either side of the Nave the plants of almost every clime wave their foliage, forming a mass of cool, pleasant colour, admirably harmonising with the surrounding tints, and also acting as a most effective background to relieve the white statues, which are picturesquely grouped along the Nave; at the back of these are the façades of the various Industrial and Fine Art Courts, whose bright colouring gives additional brilliancy to the interior, whilst the aërial blue tint of the arched roof above considerably increases the effect of the whole composition, having the effect of an opal vault. Towards evening the interior of the Palace appears like a vocal grove, the visitor hearing with delight the beautiful note of the nightingale, together with that of blackbirds, thrushes, wrens, and robin-redbreasts, which build and make a perpetual home of this magnificent covered garden.

[I-22]

VIEW OF PALACE FROM SECOND TERRACE.

[I-23]

Let the visitor now proceed up the building until he arrives at the Central Transept, at which point he will be enabled to judge of the vastness of the hall in the midst of which he stands, and of the whole structure of which the transept forms so noble and conspicuous a part.

INTRODUCTION TO THE FINE ARTS COURTS.

In order the better to appreciate the arrangement of those restorations through which we now propose to conduct the visitor, a few words explanatory of the object which they are intended to serve may prove of use.

One of the most important objects of the Crystal Palace is to teach a great practical lesson in Art. Specimens of the various phases through which the arts of Architecture and Sculpture have passed, are here collected, commencing from the earliest known period down to modern times, or from the remote ages of Egyptian civilisation to the sixteenth century after Christ—a period of more than three thousand years.

Perhaps no subject, with the exception of the literature of departed nations, affords more interest to the mind of man, than these visible proofs of the different states of society throughout the world’s history; and nothing better aids us in realising the people and customs of the past, than the wonderful monuments happily preserved from the destructive hand of Time, and now restored to something of their original splendour by the patient and laborious researches of modern times; and, we may add (not without some pride), by the enterprising liberality of Englishmen.

Nor is it the least extraordinary fact, in this view of progress, that the building itself, which contains these valuable monuments of past ages, is essentially different from every preceding style,[I-24] uniting perfect strength with aërial lightness, and as easy of erection as it is capable of endurance. Thus then, beneath one roof, may the visitor trace the course of art from centuries long anterior to Christianity, down to the very moment in which he lives, and obtain by this means an idea of the successive states of civilisation which from time to time have arisen in the world, flourishing for a greater or less period, until overturned by the aggressions of barbarians, or the no less destructive agency of a sensual and degraded luxury. Sculpture, the sister art of architecture, has also been worthily illustrated. Vainly, in any part of the world, will be sought a similar collection, by means of which the progress of that beautiful art can be regularly traced.

The statues will generally be found as much as possible in or near the Architectural Courts of the periods and countries to which they belong, so that the eye may track the intellectual stream as it flows on, now rising to the highest point of beauty, and now sinking to the lowest depths of degradation. The visitor is invited to proceed with us on this world-wide tour of inspection, but he must bear in mind that our present task is to show him how to examine the Building itself, with its contents, and not to describe them, except by briefly pointing out the most remarkable objects that encounter him on his way. For detailed and valuable information the visitor is referred to the excellent Handbooks of the respective Courts, all of which describe with minuteness not only their contents, but every needful circumstance in connection with their history. The point from which we start is the Central Transept. Proceeding northwards, up the Nave, the visitor turns immediately to the left and finds himself in front of

THE EGYPTIAN COURT.[5]

The remains of Egyptian Architecture are the most ancient yet discovered. They possess an absorbing interest, not only on account of the connection of Egypt with Biblical history, but also of the perfect state of the remains, which enables us to judge of the high state of civilisation to which Egypt attained, and which have permitted the decipherers of the hieroglyphics, led by Dr. Young,[I-25] Champollion, and Sir Gardner Wilkinson, in our own time, to give us clear insight into the manner of life—public and private—of this early and interesting nation. Egyptian architecture is characterised by simplicity of construction, gigantic proportions, and massive solidity. The buildings were almost entirely of stone, and many of them excavations and shapings of rocks. The examples of this architecture now before us are not taken from any one ruin, but are illustrations of various styles, commencing with the earliest, and terminating with the latest, so that we are enabled to follow[I-26] the gradual development of the art. Little change, however, was effected during its progress. The original solidity so admirably suited to the requirements of the Egyptians continued to the end; and religion forbade a change in the conventional representations of those gods and kings which so extensively cover the temples and tombs. So that we find the same peculiar character continued in a great measure to the very last.

[5] See the “Handbook to the Egyptian Court,” by Owen Jones and Samuel Sharpe; also, “The Egyptians in the Time of the Pharaohs, being a Companion to the Crystal Palace Collection,” by Sir Gardner Wilkinson, to which is added, “An Introduction to the Study of Egyptian Hieroglyphs,” by Samuel Birch. Crown 8vo., with Illustrations.

Plan of the Egyptian Court.

Advancing up the avenue of lions, cast from a pair brought from Egypt by Lord Prudhoe (the present Duke of Northumberland), we have before us the outer walls and columns of a temple, not taken from any one particular structure, but composed from various sources, to illustrate Egyptian columns and capitals during the Ptolemaic period, somewhere about 300 years B.C. On the walls are coloured sunk-reliefs showing a king making offerings or receiving gifts from the gods. The capitals or heads of the columns are palm and lotus-leaved; some showing the papyrus in its various stages of development, from the simple bud to the full-blown flower. The representation of the palm and the papyrus occurs frequently in Egyptian architecture; the leaves of the latter, it will be remembered, were made into a kind of paper, and its flowers were specially used as offerings in the temples. We shall afterwards inspect some growing specimens of this curious plant in the fountain basin at the north end of the Nave, as well as of the lotus, when these restorations may be remembered with interest. On the frieze above the columns is a hieroglyphic inscription stating that “in the seventeenth year of the reign of Victoria, the ruler of the waves, this Palace was erected and furnished with a thousand statues, a thousand plants, &c., like as a book for the use of the men of all countries.” This inscription is repeated, with some slight additions, on the frieze of the interior of the Court. On the cornice of both the inside and outside of the Court, are the names of her Majesty and the Prince Consort, engraved in hieroglyphic characters, and also winged globes, the symbolic protecting deity of doorways. Entering by the central doorway, on the lintels and sides of which are inserted the different titles of King Ptolemy, in hieroglyphics, we find ourselves in the exterior court of a temple in which the multitude assembled; the decorations of the walls are similar to those we saw outside, and it must be borne in mind that the colouring is taken from actual remains in Egypt. On the wall to the left is a large picture copied from the great Temple of Rameses III. or Rameses Mai Amun, at Medinet Haboo, near Thebes, showing the counting of the hands of[I-27] the slain—three thousand as we are informed by the hieroglyphics engraved over the heads of the scribes—before the king who is in his chariot; on the right-hand side of the Court is a representation of a battle-scene, with the Egyptians storming a fortress. Turning to the left, after examining the eight gigantic figures of Rameses the Great, forming the façade of another temple, we enter the Court of Amunothph, a colonnade of an early period, its date being about 1300 B.C. The columns represent eight stems and buds of the papyrus bound together, and are cast from a black granite column bearing the name of Amunothph, now in the British Museum.

First order of Egyptian Column.

Passing on we find ourselves in a dark tomb copied from one at Beni Hassan. It is the earliest piece of architecture in the Crystal Palace, its date being about 1660 B.C. The original tomb is cut in the solid chain of rocks that forms a boundary on the east of the Nile, separating the sandy desert from the fertile valley of the river. Although architectural remains exist in Egypt of a much earlier date than this tomb, it still possesses great value to us, for it may be considered as exhibiting the first order of Egyptian columns, which was employed in constructing buildings at as remote a period as two thousand years before Christ; this fluted column in another respect claims our attention, for there can be but little doubt that it supplied the Greeks with the model of their early Doric. The original tomb has but one instead of four entrances as here represented, and is accordingly more gloomy and impressive. What is lost in sombre effect, however, is made up to the visitor in convenience.

Passing out, we behold, in front of us, a beautiful colonnade, or portico, from the Island of Philöe, and of the same period as the Egyptian wall which we first saw fronting the Nave. Within this we cannot fail to remark the scattered statues, especially the Egyptian Antinous, executed during the Roman rule, the life-like development of whose limbs, representing, as it no doubt does, the Egyptian type, is sufficient to convince us that when Egyptian art was not tied down by the hierarchical yoke, it was capable of producing works of truth and merit. Another work of art, executed[I-28] when the country was under the Greek yoke, is the remarkable bas-relief portrait of Alexander the Great, inscribed in hieroglyphics and Greek characters. The Greek name is spelt wrongly—a sufficient proof that the work of art is from the hand of an Egyptian artist. Amidst the statues will be found two circular-headed stones—copies of the celebrated Rosetta stone (so called from having been found at the little town of Rosetta, near Alexandria) from which Dr. Young and Champollion obtained a key to the deciphering of hieroglyphics. The stone is engraved in three characters: Hieroglyphic, Enchorial—the writing of the country—and Greek; the inscription is an address from the priests to the Greek King of Egypt, Ptolemy V., in which the sovereign’s praises are set forth, and orders are given to set up a statue of the king, together with the address, in every temple. The date of this interesting remnant of Egyptian manners and customs is about 200 years before the Christian era.

Further on to the right, as we face the west—in a recess—is the model of the Temple of Aboo Simbel, cut in the side of a rock, in Nubia. The sitting figures which, in the original, are of the size of the gigantic figures which we shall afterwards see in the Northern Transept, represent Rameses the Great, and the smaller ones around, his mother, wife, and daughter. The original tomb is ten times as large as the present model. It should be remembered that nearly all the models here introduced are very much below the size of the architectural remains which they represent. For example: the majority of the columns in the Temple of Karnak are 47 feet high, and some are 62 feet. Turning from this recess, and after looking at the beautiful lotus columns to the left, surmounted by the cow-eared Goddess of Love of the Egyptians, and having examined the two large pictures on the walls of the temple—one of which represents a king slaying his enemies with the aid of the god Ammon Ra, and the other a feat of arms of the same king—we direct our attention to the columns before us, which are reduced models of a portion of the celebrated Temple of Karnak at Thebes. This temple was, perhaps, one of the largest and most interesting in Egypt; the principal portions are said to have been erected by Rameses II. about 1170 B.C. It seems to have been a fashion with the Theban kings to make additions to this temple during their respective reigns; and, as each monarch was anxious to outvie his predecessor, the size of the fabric threatened to become unbounded. Temples and tombs were the grand extravagances of the Egyptian kings. The sums that modern rulers devote to palaces which add[I-29] to their splendour whilst living, were given by the remote princes of whom we speak, and who regarded life as only a fleet passage towards eternity, for the construction of enduring homes when life should have passed away. Inasmuch as, if the career of an Egyptian king proved irreligious or oppressive, the priests and people could deny him sepulture in his own tomb, it is not unlikely that many Egyptian kings lavished large sums upon temples, in order to conciliate the priestly favour, and to secure for their embalmed bodies the much-prized sanctuary. It is to be observed, however, with respect to the names and inscriptions found on Egyptian monuments, that they are by no means always to be taken as an authentic account of the remains within. Some of the Egyptian kings have been proved guilty of erasing from tombs the names of their predecessors, and of substituting their own; an unwarrantable and startling deception that has proved very awkward and embarrassing to Egyptian antiquaries.

Column from Karnak.

The portion of Karnak here modelled is taken from the Hall of Columns, commenced by Osirei the First, and completed by his son, Rameses the Great, a most illustrious monarch, whose deeds are frequently recorded, and whose statue is found in many parts of Egypt, and who flourished during the twelfth century before Christ. Before entering the temple, we stay to notice the representations of animals and birds on the frieze above the columns, which is the dedication of the temple to the gods. Entering between the columns, on the lower part of which is the name of Rameses the Great, and, in the middle, a representation of the three principal divinities of Thebes receiving offerings from King Osirei; and, after thoroughly examining this interesting restoration, we return again into the outer court. The visitor who wishes to realise to himself the actual condition of the principal Egyptian temples and wall-sculptures of Karnak and Kalabshee, can do so by inspecting the splendid collection of French photographs of these ancient works of art in the Gallery immediately over this court, or by consulting the works of Champollion and Sir Gardner Wilkinson in the Reading Room of the Library. Regaining the Nave, a few steps, directed to the left, bring us to

[I-30]

TOMB OF BENI HASSAN.

[I-31]

THE GREEK COURT.[6]

Architecture and sculpture have here made a stride. We have noted even in Egypt the advance from early rude effort to a consistent gigantic system of art, which grew under the shadow of a stern hierarchical religion. We step at once from the gloom into the sunshine of Greek art. The overwhelming grandeur of Egypt, with its austere conventionalities, is exchanged for true simplicity, great beauty, and ideality. Just proportions, truth, grace of form, and appropriate ornament, characterised Greek architecture. The fundamental principles of construction, as will readily be seen, were the same in Greece as in Egypt, but improved, added to, and perfected. The architecture of both countries was columnar; but, compare the Greek columns before us with those which we just now saw in Egypt, taken from the tomb of Beni Hassan: the latter are simple, rude, ill-proportioned, and with slight pretension to beauty, whilst, in the former, the simplicity still prevailing, the rudeness and heaviness have departed, the pillars taper gracefully, and are finely proportioned and elegant, though of great strength. The specimen of Greek architecture before us is from the later period of the first order, namely, the Doric; and the court is taken, in part, from the Temple of Jupiter at Nemea, which was built about 400 years B.C., still within the verge of the highest period of Greek Art. Passing along the front, we notice on the frieze above the columns the names of the principal Greek cities and colonies.

[6] See “Handbook to the Greek Court,” by George Scharf, jun.; also, “An Apology for the Colouring of the Greek Court,” by Owen Jones.

Plan of the Greek Court.

We enter the court through the central opening. This portion represents part of a Greek agora, or forum, which was used as a market, and also for public festivals, for political and other assemblies. Around the frieze in this central division are the names of the poets, artists, and philosophers of Greece, and of their most celebrated patrons, the list commencing immediately above the place of entrance with old blind Homer, and finishing with Anthemius, the architect of Saint Sophia at Constantinople. The names, it will be remarked, are inserted in the Greek characters of the period at which the various persons lived. The monograms within the chaplets on the frieze are formed of the initial letters of the[I-32] Muses, the Graces, the Good and the Wise. The colouring of this court, with its blue, red, and yellow surfaces, blazoned with gold, produces an excellent effect. It is the object of the decorators to give to the whole of the architectural specimens in the Crystal Palace those colours which there is reason to know, or to believe they originally possessed; to restore them, in fact, as far as possible, to their pristine state, in order that the imagination of the spectator may be safely conducted back in contemplation to the artistic characteristics of distant and distinctive ages. In this court are arranged sculptures and models of temples. Amongst the former will be recognised many of the finest statues and groups of the Greek school, the Laocoon (16); the Farnese Juno (6); the Dione (3); the Genius of Death (24); the well-known Discobolus (4) from the Vatican; the Ariadne, also from the Vatican (27); the Sleeping or Barberini Faun (19); and, in the centre, the unrivalled Venus of Milo, which affords perhaps the most perfect combination of grandeur and beauty in the female form (1). We make our way round this court, beginning at the right hand.[I-33] After examining the collection, we pass between the columns into the small side court (next to Egypt), answering to a stoa of the Agora. Around the frieze are found the names of the great men of the Greek colonies, arranged in chronological order. The visitor has here an opportunity of contrasting the architecture and sculpture of the Egyptians with those of the Greeks. On one side of him is an Egyptian wall inclining inwards, with its angular pictorial decorations, and the passive colossal figures guarding the entrances. On the other side are the beautiful columns and bold cornice of the Greek Doric, surrounded by statues characterised by beauty of form and refined idealised expression. In this division will also be found the busts of the Greek Poets, arranged in chronological order, commencing on the right-hand side from the Nave: these form a portion and the commencement of the Portrait Gallery of the Crystal Palace.

Making our way through the opening in the back, opposite the Nave, we enter a covered atrium, commonly attached to the portion of the agora here reproduced. The massive antæ, or square pillars, and the panelled ceiling—the form of the latter adapted from the Temple of Apollo at Bassæ in Arcadia—give the visitor another specimen of Greek architecture. We proceed, to the right, down this atrium, occasionally stepping out to examine the sculpture arranged in the gallery, and the restored and coloured frieze of the Parthenon of Athens, which extends its length along the wall. The coloured portion has been executed under the direction of Mr. Owen Jones, the golden hair being founded on authentic examples which still exist on analogous remains of ancient Greek art.[7] The tints on the different figures are put forth rather as suggestions than restorations. We really know nothing certain of the manner in which these celebrated relievos were coloured. Acknowledging this fact, Mr. Jones, in thus boldly supplying pigment, has proceeded upon the known principle of the Greeks—using the tints so as to enhance the effect of the sculpture. This frieze represents the Panathenaic procession to the temple of Athene Polias, which formed part of the display at this greatest of the Athenian festivals, and took place every fourth year. Dividing the frieze, is one of the most interesting objects in the Crystal Palace, a model of the western front of the Parthenon itself, about one-fourth the size of the original structure. This is the largest[I-34] model that has ever been constructed of this beautiful temple, and possesses the great charm of a veritable copy. The scale is sufficiently large to give a complete idea of the original. This admirable model is due to the intelligent and successful researches prosecuted in Athens by Mr. Penrose, whose labours have thrown so much new light upon the refinements practised by the Greeks in architecture. Mr. Penrose has himself directed the construction of the model. In this gallery are ranged statues and groups, including the celebrated Niobe group, from Florence (187 to 187 L, inclusive). This subject of the punishment of Niobe’s family by the gods was frequently treated by Greek artists; and certainly the group before us is one of the most beautiful examples of Greek sculptural art. It is supposed that the portion of the group at Florence occupied the pediment of the temple of Apollo Sosianus at Rome. The Niobe group belongs to one of the brightest periods. Casts from those most beautiful and wonderful remains of ancient art, the colossal figures from the pediment of the Parthenon at Athens, are also here (185 to 186 B). The originals, brought over to England by Lord Elgin in 1801-2, are in the British Museum, and the nation is indebted for the acquisition to the painter Haydon, who was the first British artist to recognise the value, and appreciate the beauty, of these mutilated but inimitable monuments of art at the highest period of its glory. They belong to the Phidian school, and are characterised by simple grandeur, great repose in the attitudes, and a deep study of nature in their forms. The Theseus more particularly displays a marvellous study and appreciation of nature, and the figures of the Fates (185 B), headless though they be, are the most awfully grand impersonations the world has ever seen. In connection with the Parthenon will also be seen a cast from a part of one of the actual columns, also in the British Museum (150). Here also is the wonderful Belvedere Torso, from the Vatican (67); the far-famed Venus de’ Medici (198), from Florence, and the exquisite Psyche (199), from the Museum at Naples. The visitor will not fail to be astonished, no less by the number than by the charming effect of these works which have come down to our time, and which will descend to the latest posterity as models of excellence. Proceeding until we arrive at the junction of the Greek and Roman Courts, we turn into the right-hand division of the outer court; round the frieze of which are the names of the statesmen and warriors of Athens, the Peloponnesus, and Attica. The busts ranged on either side[I-35] are portraits of the Greek philosophers, orators, generals, and statesmen, arranged in chronological order, commencing at the entrance from the Nave.

Arch

[7] The remainder of the frieze is erected in the gallery above the Courts.

We walk through this court until we reach the Nave; then turning to the left, find ourselves facing

THE ROMAN COURT[8]

On approaching this Court, the visitor will at once notice a new architectural element—as useful as it is beautiful—namely, the Arch, a feature that has been found susceptible of the greatest variety of treatment. Until within the last few years the credit of the first use of the arch as an architectural principle has been given to the Greek architect under Roman rule, but discoveries in Egypt, and more recently in Assyria by Mr. Layard and M. Botta, have shown that constructed and ornamented arches were frequently employed in architecture many hundred years before the Christian era. It is to be observed that architecture and sculpture had no original growth at Rome, and were not indigenous to the soil. Roman structures were modifications from the Greek, adapted to suit the requirements and tastes of the people; and thus it happened that the simple severity, purity, and ideality of early Greek art degenerated, under the Roman empire, into the wanton luxuriousness that characterised its latest period. In comparing the Greek and Roman statues, we remark a grandeur of conception, a delicacy of sentiment, a poetical refinement of thought in the former, indicative of the highest artistic development with which we are acquainted. When Greece became merely a Roman province, that high excellence was already on the decline, and the dispersion of her artists, on the final subjugation of the country by Mummius, the Roman general, B.C. 146, hastened the descent. A large number of[I-36] Grecian artists settled at Rome, where the sentiment of servitude, and the love of their masters for display, produced works which by degrees fell further and further from their glorious models, until richness of material, manual cunning, and a more than feminine weakness characterised their principal productions; and the sculptor’s art became degraded into a trade, in which all feeling for the ancient Greek excellence was for ever lost. Thus, in the transplanted art of Greece, serving its Roman masters, a material and sensual feeling more or less prevails, appealing to the passions rather than to the intellects and high imaginations of men. The cumbrous dresses and armour which mark the properly Roman style, hide the graceful and powerful forms of nature under[I-37] the symbols of station and office, creating a species of political sculpture. It is very curious and instructive to notice at a glance the high intellectual expression of the great men of Greece whose busts adorn the Greek Court, and to contrast their noble countenances with the material and sensual aspect of their conquerors, the Romans, who range peacefully close by: much of the past can be gleaned from such a comparison.

[8] See “Handbook to the Roman Court,” by George Scharf, jun.

Plan of the Roman Court.

In the wall now before us we have a model of a portion of the outer wall of the Coliseum at Rome, pierced with arches and ornamented with Tuscan columns. The Coliseum is one of the most wonderful structures in the world, and the Pyramids of Egypt alone can be compared with it in point of size. It is elliptical in form, and consisted outwardly of four stories. In the centre of the interior was the arena or scene of action, around which the seats for spectators rose, tier above tier. The enormous range was capable of seating 87,000 persons. Vespasian and Titus erected this amphitheatre, and the work commenced about A.D. 79. In this vast and splendidly decorated building, the ancient Romans assembled to witness chariot-races, naval engagements, combats of wild animals, and other exciting sports. A very beautiful and highly finished model of the Coliseum restored will be found in the Court, which it will be interesting to compare with the present state of the ruin as seen in the model of the Roman Forum close by. A model also of the Pantheon will be found here. These were all executed at Rome under the superintendence of the late Dr. Emil Braun.

Entering the Roman Court through the central archway, we come into an apartment whose walls are coloured in imitation of the porphyry, malachite, and rare marbles with which the Roman people loved to adorn their houses. This style of decoration appears to have been introduced a little before the Christian era; and so lavish were the Romans in supplying ornament for their homes, that the Emperor Augustus, dreading the result of the extravagance, endeavoured by his personal moderation to put a stop to the reckless expenditure: although it is recorded that the lofty exemplar was set up for imitation in vain.

Following the same plan as in the Greek Court, we proceed round from the right to the left, examining the sculptures and models. Amongst the former will be noticed the statue of Drusus from Naples (222); the beautiful Venus Aphrodite from the Capitol, Rome (226); the Venus Genitrix from the Louvre (228); the fine statue of a musician, or female performer on the lyre,[I-38] from the Louvre (230); the Genius Suppliant (232); the Marine Venus (233); the Venus Aphrodite from Florence (236); the Venus of Arles (237); the Venus Callipygos from Naples (238); and the Bacchus from the Louvre (241). Around the Court are placed the portrait-busts of the most celebrated kings and emperors of Rome, arranged chronologically, commencing, on the right-hand side of the entrance, with Numa Pompilius (34), and terminating with Constantius Chlorus (73). Having completed our survey, we enter the arched vestibule at the back adjoining the Greek Court. This vestibule, and the three others adjacent, are founded, in respect of their decorations and paintings, on examples still extant in the ancient baths of Rome. The bath, as is well known, was indispensable to the Romans, and in the days of their “decadence,” when they had sunk from glorious conquerors and mighty generals into the mere indolent slaves of luxury, the warm bath was used to excess. It is said that it was resorted to as often as seven or eight times a day, and even used immediately after a meal, to assist the digestive organs, and to enable the bather to enjoy, with as little delay as possible, another luxurious repast.

We proceed through these vestibules, as in the Greek Court, studying the objects of art, and occasionally stepping out to notice the continuation of the Parthenon frieze on the wall at the back, and the sculptures ranged around. In the centre of the first vestibule is the Venus Victorious (243); and in the third, the Diana with the deer (261),—two chefs-d’œuvre of sculpture, that give an idea of the highest state of art under Roman rule. We soon arrive at the sides of the Alhambra, when, turning to the right, we find ourselves in a Roman side court, which is surrounded by the busts of the most renowned Roman Generals, of Empresses and other women.

Passing through this compartment, we once more make our way to the Nave, and bring ourselves face to face with the gorgeous magnificence of

THE ALHAMBRA COURT.[9]

The architectural sequence is now interrupted. We have arrived at one of those offshoots from a parent stem which flourished for a time, and then entirely disappeared: leaving examples of their art[I-39] which either compel our wonder by the extraordinary novelty of the details, as in the case of Nineveh, or, as in the court now before us, excite our admiration to the highest pitch, by the splendour and richness of the decorations. The Saracenic or Moresque architecture sprang from the Byzantine, the common parent of all subsequent styles, and the legitimate successor to the Roman system. We shall immediately have occasion to speak more particularly of[I-40] the parent root when we cross the Nave and enter the Byzantine Court. Of the Moorish architecture which branched out from it, it will be sufficient to say here, that the solid external structure was of plain, simple masonry; whilst the inside was literally covered, from end to end, with rich arabesque work in coloured stucco, and adorned with mosaic pavements, marble fountains, and sweet-smelling flowers.

[9] See “Handbook to the Alhambra Court,” by Owen Jones.

Entrance to Alhambra Court.

Ground Plan of the Alhambra Court.

[I-41]

The vast fortress-palace of the Alhambra,[10] of a portion of which this court is a reproduction, was built about the middle of the thirteenth century. It rises on a hill above the city of Granada (in the south of Spain), the capital of the Moorish kingdom of that name, which, for two hundred and fifty years, withstood the repeated attacks of the Christians, and was not finally reduced until 1492, by Ferdinand and Isabella. The Alhambra, under Moorish rule, was the scene of the luxurious pleasures of the monarch, and the stage upon which many fearful crimes were enacted. Within its brilliant courts, the king fell by the hand of the aspiring chief, who, in his turn, was cut down by an equally ambitious rival. Few spots can boast a more intimate association with the romantic than the Alhambra, until the Christians ejected the Moors from their splendid home, and the palace of the unbeliever became a Christian fortress.

[10] “The Red,” probably so called either from the colour of the soil, or from the deep red brick of which it is built.

The part here reproduced is the far-famed Court of Lions, the Tribunal of Justice, and the Hall of the Abencerrages and the Divan. The outside of these courts is covered with diaper work, consisting of inscriptions in Arabic character, of conventional representation of flowers and of flowing decoration, over which the eye wanders, delighted with the harmony of the colouring and the variety of the ornament. Entering through the central archway, we see before us the fountain, supported by the lions that give name to the court; and, through the archway opposite, the splendid fringe of the stalactite roof of the Hall of the Abencerrages, composed in the original of five thousand separate pieces, which key into and support each other. The Court of Lions here is 75 feet long, just two-thirds the length of the original; the columns are the same height and size as the columns of which they are restorations, and the arches that spring from them are also of the actual size of the original arches. Over the columns is inscribed in Cufic characters, “And there is no Conqueror but God.” Round the basin of the fountain is an Arabic poem, from which we take two specimens:—

“Oh thou who beholdest these Lions crouching—fear not!
Life is wanting to enable them to show their fury!”

Less, we must think, a needless caution to the intruder, than the poet’s allowed flattery to his brother artist. In the verse of Greece and modern Italy, we find the same heightened expression of admiration[I-42] for the almost animating art of sculpture. The following passage is oriental in every letter:—

“Seest thou not how the water flows on the surface,
notwithstanding the current strives to oppose its progress.
Like a lover whose eyelids are pregnant with tears, and
who suppresses them for fear of a tale-bearer.”

Through this brilliant court, the visitor will proceed or linger as his spirit directs. There are no statues to examine, for the religion of the Moors forbade the representation of living objects; in truth, the exquisitely wrought tracery on every side, upon which the Moorish mind was thus forced to concentrate all its artistic power and skill, is in itself sufficient exclusively to arrest and to enchain the attention. A curious infringement, however, of the Mahommedan law just now mentioned, which proscribes the representation of natural objects, is observable in the lions supporting the fountain, and in three paintings, which occupy a portion of the original ceilings in the Tribunal of Justice and the two alcoves adjoining. It is also to be remarked that, although the followers of Mahommed scrupulously avoid stepping upon a piece of paper, lest the name of God should be written thereon, yet that name is found repeatedly upon the floor of the same tribunal. However, during the State visit of the Princes of Oude to the Crystal Palace in 1858, while they were inspecting this Court it was noticed that they, and many of their attendants, avoided as much as possible stepping upon the inscribed pavement. From these circumstances it would seem that the Mahommedans of the West were more lax in their observances than their brethren of the East, having in all probability imbibed some of the ideas and feelings of the Spanish Christians with whom they came in contact.

Passing through the archway opposite to that at which we entered, we find ourselves in a vestibule which in the Alhambra itself leads from the Court of Lions to the Tribunal of Justice. This is, however, only a portion of the original passage. The arches opening from the central to the right and left divisions of the vestibule are of the size of the originals, the patterns on the Avails and ceilings being taken from other portions of the Alhambra. It should also be remembered that the different apartments here brought together do not stand in the same relation to each other as in the Moorish Palace, the object of the architect in the Crystal Palace being to give the best examples of this style of architecture in the smallest possible space.

[I-43]

The visitor may now proceed through the left-hand arch into the division next the Roman Court. On the right of this division he will find a small room devoted to models, and specimens of the original casts of ornaments of the Alhambra, brought by Mr. Owen Jones from Spain, from which this Court has been constructed. Returning to the central division, he sees on his left the Hall of the Abencerrages, with its beautiful stalactite roof, already spoken of. All the Courts on this side of the building, up to this point, were erected under the superintendence of Mr. Owen Jones. Proceeding onward, we quit the Alhambra, and emerge into the north transept.

The visitor passing into the Tropical division now crosses the Transept, immediately in front of the colossal sitting figures, which he will be able to examine with more effect when he commences a tour through the nave, which we propose that he shall shortly make. Passing these figures then for a moment, he directs his attention to

Pillar from the arcade of the Court.

THE ASSYRIAN COURT,[11]

which faces him. This Court is larger than any other appropriated to the illustration of one phase of art. It is 120 feet long, 50 feet wide, and has an elevation of 40 feet from the floor line. Its chief interest, however, consists in the fact of its illustrating a style of art of which no specimen has hitherto been presented in Europe, and which, indeed, until the last few years, lay unknown even in the country where its remains have been unexpectedly brought to light. It is little more than ten years ago that M. Botta, the French Consul at Mossul, first discovered the existence of sculptural remains of the old Assyrian empire at Khorsabad: and since that time the palace, now known to have been erected about the year 720 B.C. by Sargon, the successor of Shalmaneser, has been mainly explored, as well as the palace of his son Sennacherib at Koyunjik, and that of Esarhaddon and Sardanapalus, at Nimroud, besides other older palaces in the last-named locality. In addition to the explorations that have been made on these sites, extensive excavations and examinations also within the last few years have been made into the ruins of the palaces of Nebuchadnezzar at Babylon, and of Darius and Xerxes at Susa.

[11] See “Handbook to the Nineveh Court,” by Austen Henry Layard.

It is from the immense mass of new materials, so suddenly[I-44] revealed, that Mr. James Fergusson, assisted by Mr. Layard, has erected the court before which the visitor now stands—an architectural illustration which, without pretending to be a literal copy of any one building, most certainly represents generally the architecture of the extinct but once mighty kingdoms of Mesopotamia, during the two centuries that elapsed between the reign of Sennacherib and that of Xerxes, viz., from about B.C. 700 to B.C. 500.

The oldest form of architecture in these Eastern parts was probably that which existed in Babylon: but the absence of stone in that country reduced the inhabitants to the necessity of using bricks only, and for the most part bricks burnt by the sun, though sometimes fire-burnt brickwork is also found. The face of the walls so constructed was ornamented with paintings, either on plaster or enamelled on the bricks, whilst the constructive portions and roofs were of wood. All this perishable material has of course disappeared, and nothing now remains even of the Babylon built by Nebuchadnezzar but formless mounds of brickwork. In the more northern kingdom of Assyria, the existence of stone and marble secured a wainscoting of sculptured slabs for the palace walls, whilst great winged bulls and giant figures, also in stone, adorned the portals and façades. The pillars, however, which supported the roofs, and the roofs themselves, were all of wood, generally of cedar, and these having been destroyed by fire or by the lapse of ages, nothing remains to tell of their actual size and form. Yet we are not left entirely to conjecture in respect of them. Susa and Persepolis in Persia—the followers and imitators of Nineveh—arose in districts where stone was abundant, and we find that the structures in these cities had not only stone pillars to support the roof, but also stone jambs in the doorways, thus affording an unmistakeable clue to the nature of such portions of building as are wanting to complete our knowledge of the architecture of the Assyrian people.

As now laid bare to us, the Assyrian style of architecture differs essentially from any other with which we have hitherto been[I-45] made acquainted. Its main characteristics are enormously thick mud-brick walls, covered with painted bas-reliefs, and roofs supported internally by slight but elegant wooden columns, ornamented with volutes (spiral mouldings), and the elegant honeysuckle ornament which was afterwards introduced through Ionia into Greece—this Assyrian style being, according to some, the parent of the Ionic order, as the Egyptian was of the Doric order, of Greece. The very greatest interest attaches to these architectural remains, and to the records cut in enduring stone, which they have handed down to us, inasmuch as they corroborate, in a most remarkable manner, certain statements in the Bible connected with Jewish History. There can be little doubt that the Assyrians and Jews sprang from the same stock; and no one can fail to remark that the physiognomy of the Assyrians, as pourtrayed in these sculptures, bears a strong resemblance to the Israelitish visage. As far as we can judge from descriptions, the architecture of ancient Jerusalem was almost identical with that of Assyria.

Entrance to the Nineveh Court.

The whole of the lower portion of the exterior front and sides of this Court is taken from the palace at Khorsabad, the great winged[I-46] bulls, the giants strangling the lions (supposed to represent the Assyrian Hercules), and the other features, being casts from the objects sent from the site of the palace, to the Louvre, and arranged, as far as circumstances admit, in the relative position of the original objects as they were discovered. The dwarf columns on the walls, with the double bull capitals, are modelled from details found at Persepolis and Susa, whilst the cornice and battlements above have been copied from representations found in one of the bas-reliefs at Khorsabad. The painting of the cornice is in strict accordance with the recent discoveries of that place.

Plan of the Assyrian Court.

Entering through the opening in the side, guarded by colossal bulls, the visitor finds himself in a large hall, in the centre of which stand four great columns copied literally from columns found at Susa and Persepolis. The walls of the hall are covered with sculpture, cast from originals brought to this country by Mr. Layard from his excavations at Nimroud, and deposited in the British Museum. Upon the sculptures are engraved the arrow-headed inscriptions which have been so recently, and in so remarkable a manner, deciphered by Colonel Rawlinson and Dr. Hincks. Above these is a painting of animals and trees, copied from one found at Khorsabad. The roof crowning the hall represents the form of ceiling usual in that part of Asia, but is rather a vehicle for the display of the various coloured patterns of Assyrian art than a direct copy of anything found in the Assyrian palaces. In the centre of the great hall the visitor will notice a decorated archway at the back of the Court. The very recent discovery of this highly[I-47] ornamented arch at Khorsabad, and also of a pointed example, proves—somewhat unexpectedly—that the Assyrian people were far from ignorant of the value of these beautiful features of architecture. A complete detailed account of this interesting department will be found in Mr. Layard’s valuable Handbook to the Nineveh Court.

Having completed his survey of the interior of this Court, the visitor may at once quit the Court by the central entrance, and turning to the left cross the north end of the Nave, stopping for one moment on his passage to look from end to end of the magnificent structure within which he stands, and to glance at the exterior of the Court he has just quitted, the bright colouring of which, the bold ornaments, the gigantic bulls, and colossal features, present as novel and striking an architectural and decorative display as the mind can imagine.

Having crossed the building, past the avenue of Sphinxes, without stopping at the colossal Egyptian figures to be noticed hereafter, the visitor will continue the architectural illustrations with

THE BYZANTINE AND ROMANESQUE COURT.[12]

Before the visitor is conducted through the architectural Courts on this side of the Nave, which have all been erected by Mr. Digby Wyatt, it is necessary he should understand that they differ considerably in arrangement and treatment from those on the opposite side, which have already been described. In the Egyptian, Greek, and other Courts through which he has passed, the forms or characteristics of some one distinctive structure have, to a greater or less extent, been given; but the Courts into which we are now about to penetrate are not architectural restorations, but rather so many collections of ornamental details stamped with unmistakeable individuality, and enabling us at a glance to recognise and distinguish the several styles that have existed and succeeded each other, from the beginning of the 6th down to the 16th century. In each Court will be found important details, ornament, and even entire portions, taken from the most remarkable or beautiful edifices of the periods they illustrate. Thus the palaces and Christian temples of Italy, the castles and churches of Germany, the hôtels-de-ville and châteaux of Belgium and France, and the cathedrals and mansions in our own country, have all been laid under contribution, so that here, for the first[I-48] time in the history of architecture, we have the opportunity of acquiring a perceptive and practical knowledge of the beautiful art during the period of its later progress.

[12] See “Handbook to the Byzantine Court,” by M. Digby Wyatt and J. B. Waring.

Byzantine Court (entrance from North Transept).

The regular architectural sequence on the other side of the Nave finds its termination in the Roman Court, and we now resume the order of history with the “Byzantine” Court. Art, as we have already indicated, declined during the Roman Empire; but the general adoption of Christianity gave the blow that finally overthrew it; for the introduction of this faith was, unfortunately, accompanied with bitter and violent enmity against all Pagan forms of beauty. An edict of Theodosius, in the early part of the 5th century, ordered that pagan art should be utterly annihilated, and the primitive Christians demolished with frantic zeal the temples, bronzes, paintings, and statues that adorned the Romish capital.

To complete the work of destruction, it is related that Gregory[I-49] (A.D. 590), one of the celebrated “Fathers” of the Roman Church, gave orders that every vestige of Pagan Rome should be consigned to the Tiber; and thus was ancient Art smitten and overthrown, and the attempt made to efface its very foot-prints from the earth; so that, indeed, men had now to proceed as best they might, by painful and laborious efforts, towards the formation of a new and essentially Christian style of architecture, which, however feeble and badly imitated from ancient models at its commencement, was finally productive of the most original and beautiful results.

Constantine the Great, in the early part of the 4th century, embraced Christianity. The new religion required structures capable of holding large assemblages of people at certain periods; and notwithstanding the magnificence of some of the Roman structures, none could be found appropriate to the required use, save the Basilicas, or Halls of Justice, at Rome. The form of these structures was oblong, and the interior consisted of a central avenue and two side aisles, divided from the centre by a double row of columns, the central avenue terminating in a semicircular recess with the roof rounded off. It will be at once apparent that such buildings were admirably adapted to the purposes and observances of the new religion; and, accordingly, in A.D. 323, when Constantine removed the seat of empire from the West to the East, from Rome to Byzantium (Constantinople), the Roman Basilica probably served as a model for the Christian churches which he rapidly raised in his new city.

But on this point we have little authentic information; time, the convulsions of nature, and the destructive hand of man, have long since lost to us the original churches built on Constantine’s settlement at Byzantium, and the oldest monument with which we are acquainted, that of Santa Sophia, built in the early part of the 6th century by Justinian, bears no relation in its plan to the long basilica of the Western Empire.

Greek Cross.

Latin Cross.

Greek Cross.

Latin Cross.

The great characteristic of Byzantine church architecture was a plan formed on the Greek cross, and surmounted at its points of intersection by a central dome. The direct imitation of the antique capitals was eschewed, and a foliated capital was introduced in its place, varying considerably in pattern even in the same building: the arch was in general semicircular, and the use of mosaic ornament universal, but it was some time before the Byzantine style received its full development; for the earlier Christians generally maintained a profound antipathy to all Art, as[I-50] ostentatious, and savouring overmuch of worldly delights. It is not, however, in the nature of man to exist for any length of time in this world, wondrously adorned as it is by its Divine Creator, without imbibing a love for the adornment so profusely displayed around him. This natural feeling, which St. Augustine and the stricter Christians vainly sought to decry and repress, was strengthened and aided by the more forcible notion of holding out some attraction to the pagans, who, accustomed to the ceremonies and charms of their old rites, might be repelled by the apparent gloominess of the new creed. As the number of converts increased, a demand for church ornament made itself felt, and Art once more awoke, not in the excelling beauty of its former life, but rude, unpolished, and crippled by religious necessity, which placed, as in Egypt of old, a restriction upon the forms of nature, lest by copying them the people should relapse into the idolatrous worship of graven images. In the Eastern or Greek Church, even the rude and grotesque sculpture first allowed was speedily forbidden and banished for ever. The mosaic painting, however, was continued by Greek artists, and this peculiar style of ornamentation is one of the most distinctive features of Byzantine architecture. Not only were the walls and ceilings covered with extraordinarily rich examples of glass mosaic work, formed into pictures illustrative of Scripture subjects and saintly legends, or arranged in elaborate patterns of geometrical and other ornament, but columns, pulpits, &c., were rendered brilliant with its glowing colours. Mosaic work also is at times found on the façades of the Byzantine buildings; whilst the pavement, if less gorgeous, was at least as richly ornamented with coloured inlay of marble mosaic. As we have, however, just observed, the fear of idolatry led to the comparative neglect of sculpture, and the edict forbidding the sculpture of images for religious purposes became one cause of the separation of the Latin Church in Rome from the Greek Church[I-51] in Constantinople, and thenceforth the two churches remain distinct. In the former, sculpture continued to exist, not as an independent art, but as a mere architectural accessory.

Byzantine Court—Arches from the Nave.

Byzantine architecture flourished from A.D. 328 to 1453; but the Byzantine proper can be said to extend only from the 6th to the 11th centuries. Romanesque architecture in its various developments was more or less impressed with the Byzantine character, and in its general features resembles the source from which it was in a great measure derived; although the dome is generally absent in the churches of northern Europe, which retained the plan of the old Roman basilica in preference to that of the Greek cross, for a long time peculiar to the Eastern Church.

It would not be hazarding too much to assert that Byzantine architecture was generally adopted throughout most European countries from the 6th to the 11th century, with such modifications as the necessities of climate, the differences of creed, and the means of building necessitated.

[I-52]

Ground Plan of Byzantine Court.

Before entering this court the visitor will do well to examine its external decoration, affording, as it does, not only an excellent notion of the splendid mosaic ornament, we have already alluded to as peculiarly Byzantine, but for its paintings of illustrious characters of the Byzantine period, taken from valuable illuminations and mosaics still in existence; such as the fine portraits of Justinian and his consort Theodora, from Ravenna (by the entrance from the Nave), and those of Charles the Bald of France, and the Emperor Nicephorus Botoniates of Constantinople, copied from valuable existing authorities; whilst an allegorical representation of Night, on the return side, is a proof that the poetry of Art was not altogether dead in the 10th century, to which date it belongs.

In front of all the courts facing the Nave, are placed many very[I-53] interesting examples of Mediæval and Renaissance Art, a brief notice of which will be found later in this volume.

The entrance to the gallery at the back of the Byzantine Court is formed by the Chancel Arch of Tuam Cathedral in Ireland, built about the beginning or middle of the 13th century, a most interesting relic of art in the Sister Isle.

Arch and Column from Cloister.

Entering through the arches from the North Transept, we turn to the right into a cool cloister of the Romanesque school, a restored copy of a cloister at the church of Santa Maria in Capitolo, at Cologne, an ancient edifice said to have been commenced about the year 700. The cloister is, however, of the close of the 10th century. The restoration gives us an excellent notion of the arches, columns, and capitals of this period, and shows the difference that exists between Byzantine and ancient Greek or Roman art. Proceeding through the cloister, the roof of which is beautifully decorated with Byzantine ornament, in imitation of the glass mosaic work, we remark various pieces of sculpture, chiefly from Venice: at the extreme end, to the left, having our back to the Nave, is a recumbent effigy of Richard Cœur de Lion, from Rouen; at the farthest end, to the right, is placed the Prior’s doorway from Ely, in a late Norman style; and next to this, to the right, a representation of the Baptism of Christ, from St. Mark’s, at Venice. We enter the court itself. The marble fountain in the centre is an exact copy of one at Heisterbach on the Rhine. We may now obtain some notion of the different features which mark the Byzantine, the German Romanesque, and Norman styles; all agreeing in general character, but all varying in treatment. The cloister we have just quitted, with the cubical capitals of its external columns and its profuse mosaics, presents a strongly marked impress of the Byzantine style, the same influence being also remarked in the external mosaic work of the small but beautiful portion of the cloisters of St. John Lateran at Rome; on each side of which are fine examples of German Romanesque, which is frequently also called the Lombard style, as indicative of its origin; and[I-54] beyond these again, in the extreme angles, are interesting specimens of the Norman style as practised in England during the 12th century. These examples will enable the visitor to judge in some measure of the differences that characterise the three. To the left is a very curious Norman doorway, from Kilpeck Church, in Herefordshire; the zigzag moulding around it is peculiar to the Norman; and in the sculptured reliefs which surround the doorway a symbolism is hidden, for the meaning of which we must refer our readers to the Handbook of this Court. Next to this is a doorway from Mayence Cathedral, the bronze doors within it, which are from Augsburg Cathedral, in Germany, being interesting examples of the art of bronze-casting in the latter half of the 11th century. The rudely-executed subjects in the panels are mostly taken from the Old Testament, but no attempt at chronological arrangement has been made. Above the St. John Lateran cloister is an arcade from Gelnhausen in Germany, a good specimen of grotesque and symbolic sculpture quite in the style of the early Lombard work in Northern Italy. The doorway on the opposite side of the St. John Lateran cloister is a composition showing the general characteristics of the Romanesque style; the doors are from Hildesheim Cathedral, and were executed in 1015, by order of Bishop Bernwardus. They contain sixteen panels, arranged in proper order, eight representing scenes in the Old Testament, commencing with the creation of man, and eight representing subjects from the New Testament, beginning with the Annunciation. Next to this, and corresponding to the Kilpeck doorway, is a second side door from Shobdon Church, Herefordshire. The circles ornamented with foliage over the Shobdon Chancel Arch, are from Moissac. On the side wall next to the Arch, is the monument, from Salisbury Cathedral, of Bishop Roger, who died A.D. 1139; it is transitional in style, from the Norman to the Early English.

On either side of the fountain in this court are placed the celebrated effigies of Fontevrault Abbey (the burying-place of the Plantagenets), consisting of Henry II. and his Queen Eleonora; Richard I.; and Isabella, wife of King John. These date from the 13th century, and they are not only interesting as works of art, but valuable as portraits, and as evidences of costumes of that period. The effigy of Henry II. is the earliest-known statue of any English king. An effigy of King John from Worcester, and another of Berengaria, wife of Richard I., from the Abbey of L’Espan, near Mans, in France, are also to be found here.

[I-55]

The inlaid marble pavement of the Court is copied from churches in Florence, and is of the beginning of the 13th century.

Having thoroughly examined the various contents of this Court, we pass through the opening in the arcade of St. John Lateran, before mentioned, and enter a vestibule, the vaulting of which is from the convent of the Franciscans, at Assisi, in Central Italy, with the paintings in the four compartments of the vault, from their originals by Cimabue.

Door from Birkin Church.

In the centre of this compartment is a large black marble Norman font from Winchester Cathedral: the date of which has given rise to much controversy; those assigned, ranging from 630 to 1150. Next to this font is another from Eardsley Church, Herefordshire, of the 12th century.

Passing now to the left, we see on the back wall, looking towards the Garden, three openings, the central one of which is a doorway from the church of Freshford, in Kilkenny, of about the latter end of the 11th or beginning of the 12th century, and on either side of it are windows from the church of Tuam, in Ireland. Above the Freshford doorway is a large circular window from Rathain Church, remarkable for its great antiquity, and said to have been erected as early as the middle of the 8th century. In this compartment are also placed Irish crosses, affording examples of the sculptural antiquities of the Sister Isle; and some interesting crosses from the Isle of Man. On the shaft of the Kilcrispeen Cross, which stands in the centre of the gallery, amongst other ornamental pieces of enlacement, will be seen four human figures platted together. The influence of Byzantine Art in these Irish antiquities is clearly marked. Having examined this compartment, we proceed for a short distance southwards, down the corridor or gallery, and pass, on the back wall of the Byzantine Court, first, a doorway composed principally from an existing example at Romsey Abbey, the bas-relief in the door-head being from Shobdon: and on the other side of the St. John Lateran arcade,[I-56] a beautiful Norman doorway from Birkin Church, Yorkshire: after which we reach the smaller division of the Mediæval Court, dedicated to works of German Mediæval Art, the entrance to which is beneath the Pointed arcade on our right. Before passing from this Court, the visitor should step into the large chamber on the left of the vestibule which contains the Irish antiquities of Byzantine art, where he will find an unique collection of modern ecclesiastical sculpture, consisting of the original models from the study of the late Charles Geerts, the famous sculptor of Louvain, the originals of which are mostly existing in the churches of Belgium, but some are in England. These beautiful and masterly productions will repay the careful student of art, as well as all lovers of the beautiful, for a special inspection.

THE GERMAN MEDIÆVAL COURT.[13]

This small Court is devoted exclusively to examples of Gothic art and architecture in Germany, and, taken with the English and French Mediæval Courts,—which we shall presently reach,—gives an excellent idea of the style and character of architecture in these three countries during the Middle Ages. Such remarks as are required to explain the transition from the Romanesque and Byzantine to the Pointed style of architecture, we shall defer until we find ourselves in the Mediæval Court of our own country. We, therefore, without preface, conduct the visitor from the gallery of the Byzantine Court, through the side arches, directly into the German Mediæval Court. The large doorway in the centre at once attracts attention. This is cast from a celebrated church doorway at Nuremberg, and is especially worthy of notice. On the wall to the right is a doorway leading into the Byzantine Court. This is not copied from any one particular example, but is a composition displaying the elements of the German style. The equestrian statue of St. George is from the Cathedral square at Prague, a work of the 14th century. The seven round bas-reliefs at the top of the doorway, representing scenes from the life of Christ, are fac-simile copies of the originals by Veit Stoss, at the[I-57] Church of St. Lawrence, in Nuremberg. On either side of this doorway are two monuments, of Bishops Siegfrid von Epstein and Peter Von Aspelt, opposite to which are the fine monuments of Albert of Saxony, and of Bishop Von Gemmingen; all of these are cast from the originals, in Mayence Cathedral. Above the arches, and all round the Court, is a small arcade, the capitals, brackets, and other monuments of which are taken from various German churches, but more especially from the Cathedral of Cologne. Immediately over the arches through which we have entered, and between the columns of the arcade, are four bosses with the symbols of the Evangelists, also from Cologne Cathedral.

[13] See “Handbook to the Mediæval Court,” by M. Digby Wyatt and J. B. Waring.

Plan of the German Mediæval Vestibule.

Passing through the Nuremberg doorway, in the centre, we see immediately before us, and over the arches leading to the nave, eight dancing mummers, from the Town-hall at Munich; they are represented as exhibiting before an audience, probably at some civic festival, and are full of grotesque drollery. Beneath the mummers are placed consoles or brackets, from the hall of Gurzenich, at Cologne, remarkable for the humour displayed in their conception. On the wall to the right are three large reliefs, from the church of St. Sebald, at Nuremberg. They are the work of Adam Krafft, and represent:—1. The Betrayal of our Saviour; 2. The Mount of Olives; 3. The Last Supper;—and in their execution show great power and much less stiffness than is generally found in Mediæval works. Adam Krafft was an excellent sculptor, who flourished at the close of the 15th century. His works, which are chiefly to be found at Nuremberg, possess great merit both in their search after truth[I-58] and the unusual manual ability they display. Immediately beneath these reliefs is another by the same artist, taken from the Frauen-Kirche, or Church of our Lady, at Nuremberg. It represents an Adoration of the Virgin, and shows even more vigorous handling than the other three. On the other side of the adjoining doorway, from the Monastery of Denkendorf, in Wurtemburgh, is another piece, representing the “Coronation of the Virgin,” also by Krafft. The monument beneath is from Munich, and is of the 16th century. On the left-hand wall, next to the Nuremberg door, is a bas-relief of “Justice with the Rich and Poor,” by Veit Stoss, from the Town-hall at Nuremberg. Above and below this are others by Krafft. The upper, the “Meeting of Christ and St. Veronica,” from the Via Crucis, Nuremberg; the lower, another “Coronation of the Virgin,” from the Frauen-Kirche, Nuremberg. Under this last are two ascribed to Albert Durer—a “Circumcision,” and “Christ teaching in the Temple;” and on the other side of the doorway, leading into the English Mediæval Court, is the celebrated garland representing the triumph of the Church, by Veit Stoss, from the church of St. Lawrence, at Nuremberg, which deserves especial examination as one of the master-pieces of that sculptor, and on account of its very peculiar arrangement. Other subjects in this Court present excellent examples of German Mediæval Art down to the time of Peter Vischer, whose works evince an evident influence derived from the Renaissance School of Italy, at the close of the 15th and at the commencement of the 16th centuries.

We now emerge into the Nave, and turning to the left, find ourselves in front of

THE ENGLISH MEDIÆVAL COURT.[14]

It will have been remarked in the German Mediæval Court, that architecture has undergone another change. No sooner had the Lombard or Romanesque style become systematised, than features arose which contained the germs of yet more important changes.

[14] See “Handbook to the Mediæval Court,” by M. Digby Wyatt and J. B. Waring.

The Horizontal line principle of antique Art was gradually given up, and a marked inclination towards the Vertical line principle[I-59] took its place. The full change was not yet by any means complete, and it remained for the introduction of the Pointed arch, under Norman influence in England and France, in the 12th century, to effect a gradual revolution in the whole system of construction and ornamentation, until nearly every trace of the preceding style was lost, and another essentially distinct in all its characteristics arose in its stead.

Entrance to English Mediæval Court.

As we are now standing before the ecclesiastical architecture of our own country, it may be interesting to notice briefly, and in chronological order, the progress of Pointed architecture in England, and to specify a few of those leading features which serve to distinguish the style of one period from that of another.

Prior to our doing this, it will be well briefly to notice the Norman style which preceded the Pointed, and which was extensively practised by the Normans and English in this country, after the successful invasion by William in 1066. Its leading features are extreme solidity, absence of ornament (at its earliest period), semicircular or horse-shoe arches, and the peculiar zigzag mouldings before noted. The buttresses or supports placed against walls to give them strength are broad, but project very little. The pillars[I-60] are short, massive, and frequently circular, whilst the capitals are usually cubical and channeled in a peculiar manner, sometimes being quite plain, and at others carved with grotesque and symbolic figures and foliage.

Side niche of Tintern door.

The Norman lasted until the 13th century, when it made way for the first pointed style, which is known as Early English. The arches in this style are lancet-shaped; the pillars consist frequently of small shafts clustering round a circular pier, and are much slighter and taller than the Norman: the capitals are frequently without ornament, being simply plain mouldings. When the capital is carved with foliage, the work is boldly executed. Spires, too, although originating in the later Norman, rose in the Early English high into the air, like landmarks to the people, to point out where they might congregate to worship their Divine Creator. The buttresses are bold, generally rising in diminishing stages, and either terminating in a triangular head or sloping off into the wall. Windows, two or three in number, were often grouped together under a moulded arch, between the point of which and the tops of the windows an intervening space was formed. This space, pierced with one or more openings, gave rise to that most distinctive and beautiful element of the Gothic style—Tracery.

The Decorated style, which succeeded to the Early English, flourished during the 14th century, and the Court we are now about to enter possesses numerous examples of this, the best and brightest period of English Gothic; for in the Early English the style had not yet reached its highest point of beauty, and in the later Perpendicular it already suffered decline. Tracery, as we have stated, was the chief characteristic of the Decorated style; and it consists either of geometrical forms or of flowing lines. As an example of the former, the visitor may examine the arches of the cloister, containing the two figures now before us, on the side niche of the Tintern door. The foliated details and carvings, which also give character to this style, may, in like manner, be[I-61] studied with advantage in this Court. The pillars are either clustered or single, and generally of octangular or circular form; the capitals are sometimes carved with foliage, at other times they are plain. The buttress is in stages and terminated occasionally with Decorated pinnacles. The execution of the details of this style was admirable, and the variety and beauty of the ornaments, founded chiefly on natural subjects, gives to the Decorated style an effect which has seldom, if ever, been surpassed.

From the latter part of the 14th to the beginning of the 16th century the Perpendicular style was in vogue. It derives its name from the tracery, which, instead of taking flowing forms, consists chiefly of vertical lines. The arches became depressed in form, the Tudor arch being distinctive of its later phase, whilst the ornaments were crowded, and departed more from natural models. The more important buildings were covered throughout with shallow panelled work and profuse ornament, over which the eye wanders in vain for much-needed repose, and the effect of breadth and grandeur of parts is lost and frittered away.

These few observations, imperfect as they are, may perhaps assist the visitor’s appreciation of the Court we are about to examine. Without further preface, then, we proceed through the archway, as usual, from the Nave.

Arcade from Guisborough.

We are in a cloister of the Decorated period, founded in its arches and columns on the Abbey of Guisborough, Yorkshire. Looking through the cloister to the left, we see before us a doorway from the Chapel of Prince Arthur, son of Henry VII., in Worcester Cathedral, which will enable us to test in a measure the truth of our summary of the Perpendicular style. On the extreme right we see the door of Bishop West’s Chapel, from Ely, a capital example of the Later Perpendicular style as it began to feel the influence of the coming Renaissance period. Crossing the cloister we enter the Mediæval Court, which contains architectural specimens taken from our ancient churches and magnificent cathedrals.

The upper portion of the Court is formed of arches, containing, in the spandrels, figures of angels illustrative of the gradual[I-62] unfolding of Divine revelation, taken from the “Angels’ Choir,” in Lincoln Cathedral. The sculptures in the tympanum are mostly from Tewkesbury, and the figures under the canopies are from Wells Cathedral.

Ground Plan of English Mediæval Court.

Entering the Court from the Nave, we find, immediately facing us, the magnificent doorway from Rochester Cathedral, coloured so as to give an idea of its appearance when first erected. The different faces, “making mouths,” introduced amongst the tracery of this door, afford a good example of the grotesque spirit which forms so strong an element of Gothic architecture. We may remark here that the practice of colouring and gilding was carried to an almost extravagant extent in the Gothic style, although the effacing hand of Time has left comparatively few examples in a perfect state.

[I-63]

Doorway from Rochester Cathedral.

On the left of the door is a portion of the arcading from the Chapter House of Wells Cathedral, and next is the richly-decorated Easter sepulchre, from Hawton Church, Nottinghamshire, representing the Resurrection and Ascension of Christ,—a very remarkable monument of the 14th century. At the foot are the soldiers on guard at the Sepulchre, sleeping, and in the centre (the altar-table) the Resurrection of our Lord, bearing his cross; the three Marys in adoration at his feet. Above is the Ascension, the Apostles standing around. This last subject is treated in an original and ingenious manner, to come within the lines of the architecture. This monument was used as an altar; various rites[I-64] being performed before it, between Good-Friday and Easter-day. A seated figure, from the front of Lincoln Cathedral, is the next subject; and further on, in the angle, is a Virgin and Child, in a niche,—a beautiful piece of early 14th century work from York Minster; and next is a portion of Bishop Alcock’s chantry chapel, from Ely Cathedral; on the other side of the adjoining doorway, which is a composition chiefly from the triforium of Lincoln Cathedral, we remark the very beautiful oriel window of John o’Gaunt, at Lincoln, and next to it a portion of the elaborate altar-screen of Winchester Cathedral.

On the right of the Rochester door is the finely designed monument of Humphrey de Bohun, from Hereford Cathedral, with the effigy of the knight in complete armour. Next to this, in the angle, we see the recumbent figure of the “Boy Bishop” from Salisbury Cathedral. It used to be the custom in the Catholic Church, annually to elect a bishop from the children of the choir, who, throughout the year, kept all the state of a regular bishop; and, in the event of his dying within the period of his office, had his effigy erected as here we see. For further particulars of this singular custom, see the “Handbook of the Mediæval Court.” The door beyond corresponds to the one opposite; and further on, near the cloister, is one of the doors of Lichfield Cathedral, with its beautiful ironwork, the painting of which, to represent oak, is remarkably clever; and a portion of Bishop Bubwith’s monument from Wells. The exquisite niches and canopies round the walls of the court are from Southwell Minster, Ely Cathedral, Beverley Minster, &c. The statues on a line with, and corresponding to those on the monument of Bishop Bubwith, are excellent examples of late Gothic work, from Armagh Cathedral. The upper tier, consisting principally of sculpture, presents valuable examples of that art. The large statues beneath the canopies are from the façade of Wells; they are all of the highest interest with reference to the history of sculpture in England. The floor presents a remarkable and interesting series of the best sepulchral monuments of the Gothic period which England possesses, viz., those of Queen Eleanor, from Westminster; Edward II., from Gloucester; the celebrated monument of William of Wykeham, from Winchester; and that of Edward the Black Prince, in gilt armour and emblazoned surcoat, from Canterbury Cathedral. The individuality observable in most of the faces indicates that they are portraits. The very lovely face of the good Queen Eleanor should not escape the notice of the visitor.

[I-65]

Elevation of English Mediæval Court towards the cloister.

[I-66]

Indeed all the subjects in this Court are full of value and interest, and the numerous examples of Gothic art here collected, which we have not space to describe in detail, form a museum in which the visitor may obtain no inadequate idea of the rich treasures in this wise of our country. Passing beneath the Rochester doorway, we enter a vaulted and groined vestibule, the window of which is a beautiful example of the Decorated style, from Holbeach, in Lincolnshire, filled in with rich stained glass. Beneath the window is the painted monument of John of Eltham, son of Edward II., from Westminster Abbey, on either side statues from Wells Cathedral. In the centre is the very richly-decorated font, from Walsingham, in Norfolk, an excellent example of the Perpendicular style. The walls of the gallery are lined with statues and monuments; those on the Garden side are all English, principally from the façade of Wells Cathedral; those on the side of the Court are chiefly from Germany and France. Amongst the latter, we draw particular attention to the bas-reliefs on the walls, from Notre-Dame, Paris, as excellent examples of early French Gothic. Amongst the central monuments should be particularly remarked, behind the German Mediæval Court, the Arderne tomb, from Elford church, Staffordshire; the monument of Henry IV., and Joan of Navarre (his queen), from Canterbury Cathedral; the tombs of Sir Giles Daubeny, Richard II., and Anne of Bohemia (his queen), from Westminster Abbey, of about the year 1507; and behind the French and Italian Mediæval Court, the splendid monument of Richard Beauchamp, Earl of Warwick, from Warwick, one of the finest Gothic sepulchral monuments remaining in England. Passing beneath the arcade, near the Beauchamp monument, we enter the next architectural illustration of the series.

[I-67]

THE FRENCH AND ITALIAN MEDIÆVAL COURT,[15]

On the walls of which, on the ground row, are ranged a series of arches from the choir of Notre-Dame, at Paris, the greater number of the canopies which surmount them being taken from the Cathedral of Chartres, both fine examples of early French Gothic art. The very excellent statues, bosses, &c., are from various French churches. The statue on the floor is by the great Italian sculptor, Giovanni Pisano (13th century), and serves as a lectern, or reading-stand. The subject towards the nave is composed of portions of the celebrated altar-piece of Or San Michele, at Florence, by Andrea Orgagna (14th century). One of the two statues nearest the gallery is by Nino Pisano, son of Giovanni. The very elaborate example of iron-work near the nave entrance is from one of the great west doors of the Cathedral of Notre-Dame, Paris, and evinces such consummate skill in workmanship as to have obtained for its artist, when first made public, the unenviable credit of being in close league with the Evil One. The exact date of this iron-work is not ascertained, but it is of the best period of the French Pointed style.

[15] See “Handbook to the Mediæval Court,” by M. Digby Wyatt and J. B. Waring.

Plan of the French and Italian Mediæval Vestibule.

Once more regaining the Nave, we proceed on our journey southward, until a few steps bring us to

[I-68]

THE RENAISSANCE COURT.[16]

Man had wrought for centuries patiently and laboriously at Gothic architecture, and had advanced, by regular stages, to the perfection of that style, which, after reaching its zenith in the 14th century, as regularly and decidedly declined in excellence, until the indispensable principles of true art—simplicity and good taste—were, towards the close of the 15th century, overwhelmed by excess of ornament. Whilst this downward road was followed by most European artists, various causes led to the revival of the Antique in Italy, and at the commencement of the 15th century, the celebrated Brunelleschi produced a work founded on the Antique Roman style, of the highest merit, viz., the Dome of Florence Cathedral. In the year 1420, Ghiberti executed his wonderful bronze doors; and from thenceforward the new style of the revived art, or the Renaissance, as it is now usually called, advanced rapidly, first throughout Italy, and, in the succeeding century, throughout Europe. Amongst the causes which led to this revival may be included the decline of the feudal system, the growing freedom of thought, the recent discoveries of the New World, and of the art of Printing. With the rise of the spirit of personal independence was created a thirst for ancient literature and art; and a search for the hidden fountains of antiquity was enthusiastically persevered in, until in the end it proved eminently successful.

[16] See “Handbook to the Renaissance Court,” by M. Digby Wyatt and J. B. Waring.

Monastic libraries, in obedience to the demands of the public voice, yielded up their treasures of ancient literature, whilst the soil of Italy was made to disgorge its mutilated fragments of antique art. The effects of these sudden, unexpected, and precious acquisitions may readily be imagined; they created a complete revolution in literature and art throughout Italy, which spread thence into other countries. The two beautiful arts of Painting and Sculpture saw with emulative shame their present inferiority in the ranks of Art; and in their noble aspirations towards the perfection newly placed before them, they assumed their position as distinct and legitimate creations. But if the Gothic system was now dying out, it had left at least one valuable legacy to the future, in its appreciation and adoption of natural models. The Italian artists of the 15th century received the gift joyfully,[I-69] and, combining it with what treasures antiquity afforded them, produced a style which, in sculpture especially, has all the freshness of nature and the refinement of the antique, as both were capable of being united by the gifted men whose names have come down in glory to our own day, and will command the admiration of the latest posterity.

Entrance to Renaissance Court.

On no branch of art did the revival of the antique more strongly act than on the art of architecture; the Gothic style, which had never taken deep root in the soil of classic Italy, speedily fell[I-70] altogether in that country before the recent discovery and imitation of the Roman antiquities. No powerful body of Freemasons was there, as in England, France, and Germany, to oppose the progress of the new style; and the individual energy of such men as Brunelleschi, Bramante, and the great architects of the northern states, soon established it on an indestructible basis. And, however much a partisan spirit may decry this or that particular style, the productions influenced by the revival of the antique, throughout the 15th century, especially in architecture and sculpture, will never fail to excite our astonishment and emulation.

Arcade of Hôtel Bourgtheroulde at Rouen.

The façade before us is a restored copy of a portion of the Hôtel Bourgtheroulde, at Rouen. It was built at the end of the 15th and the beginning of the 16th centuries. The bas-relief before us represents the Field of the Cloth of Gold, and the memorable meeting (in 1520) of Francis I. of France and our own Henry VIII. The frieze above, by members of the “della Robbia” family, is from the Hospital of the Poor, at Pistoia, in Tuscany, and shows monks or priests relieving the poor; the original is in coloured porcelain. Entering the court, we find in the lunettes under the ceiling of the small loggia, or gallery, portraits of twelve of the most celebrated patrons of art in the Renaissance period of Italy, Spain, France, and Germany, containing in the central compartment Francis I. of France and Catherine de’ Medici, in the compartment to the right, Lorenzo de’ Medici and Lucrezia Borgia, and in that to the left, Mary of Burgundy and Maximilian of Germany. In the centre of the court we find a fountain of the Renaissance period, from the Château de Gaillon, in France; and on either side of the fountain are two bronze wells, from the Ducal Palace at Venice, the one to the right surmounted by a statue from the goose-market, Nuremberg, that to the left by the figure of a Cupid, with a dolphin, from Florence. Both these wells have[I-71] been arranged as fountain basins. Directing our steps to the right, we may first examine the decorations on the lower part of the interior of the façade, the bas-relief of which is taken from the high altar at Granada Cathedral, in Spain. The statue in the centre is that of the wife of Louis de Poncher, the original of which is now in the Louvre; its date may be assigned to the early portion of the 16th century. The altar on which the statue is placed is from the Certosa, near Pavia, in Northern Italy. The first object on the side wall is a door, by Jean Goujon (a French sculptor who executed many works at the Louvre), from the Church of Saint Maclou, at Rouen; then a doorway from the[I-72] Doria Palace at Genoa, a fine specimen of the cinque-cento; above this are five bas-reliefs from the museum at Florence, representing Faith, Prayer, Wisdom, Justice, and Charity; and beyond it, one of the most beautiful objects in the Palace, a copy of the far-famed gates from the Baptistery at Florence, executed by Lorenzo Ghiberti, who was occupied upon his work for the space of twenty-one years. One glance is sufficient to assure the spectator that sculpture had indeed advanced to an extraordinary degree of excellence at the period which we have now reached. The visitor having sufficiently admired these “Gates of Paradise,” as Michael Angelo termed them, will proceed on his way, passing another doorway, which, like that on the other side, already seen, is from Genoa. Close to it is a door by Goujon, corresponding to the door in the opposite corner.

Plan of the Renaissance Court.

On the back wall we first notice a composition made up from various examples of cinque-cento work from the Certosa at Pavia. Adjoining it is a portion of an altar also from the same Certosa—a beautiful specimen of sculptural art of the time. Next to this is another piece of cinque-cento composition, from specimens obtained from this prolific source, Milan, &c. The sculptured figures of angels, and other figures in high and low relief in this composition, are worthy of a careful study. In the centre, two colossal figures (Caryatides), from the Louvre, by Jean Goujon, support a large cast of the Nymph of Fontainebleau, executed for Francis I., by the celebrated Benvenuto Cellini. Next to the Caryatides we see an exquisite specimen of a portion of the interior of the principal entrance to the Certosa most elaborately carved, and the panels filled in with bas-reliefs; the doorway by its side is from the Hôtel de Ville, of Oudenarde, in Belgium. Above is a composition of French Renaissance art. It stands out from the wall, and looks very like an antique cabinet or screen. Another architectural example from the Certosa follows, being a sort of military monument erected to the memory of Gian Galeazzo Visconti, Duke of Milan; the date of its execution is the end of the 15th century. Within it are bas-reliefs by Luca della Robbia and Donatello. On the side next the French Mediæval Court is first another oak door from Saint Maclou, by Jean Goujon, and then a doorway from Genoa; and, above it, the frieze of “The Singers,” by Luca della Robbia, the original of which is at Florence, a most charming work, fall of life and animation. In the centre of this—the northern—side of the court, is a cast from one of the windows of the façade of the[I-73] Certosa, a remarkably fine example of cinque-cento; next to it, another doorway, from the Doria Palace at Genoa; and in the corner a fourth door from Saint Maclou, by Goujon, the central bas-relief of which represents the Baptism of Christ. The lower part of the interior of the façade is devoted to examples of Italian sculpture of the 15th century, including a head of St. John by Donatello.

Ground Plan of Elizabethan Court.

The monument placed against the wall is that of Ilaria di Caretto, from Lucca Cathedral, executed by Jacopo della Quercia, of Sienna, early in the 15th century: it is a very fine example of the cinque-cento style.

Two statues by Donatello cannot fail to be noticed—his Saint John in marble, and David in bronze, both of which display great power and study of nature.

We now pass out through the doorway under the Nymph of Fontainebleau, and enter a vestibule in the Renaissance style. Here, on the ceiling, is a copy of a painting from the Sala del Cambio (Exchange) at Perugia, in Italy, by Perugino, the master of Raffaelle, who assisted Perugino in the work. The painting represents the Seven Planets, with Apollo in the centre, as the personification of the Sun. The wall of the Renaissance Court to the left of the entrance is decorated with arches, and a frieze from the terra-cotta originals in the Certosa; the singing boys in the frieze are of great merit. The bronze monument in the centre of this wall is that of Lewis of Bavaria, a very interesting example of late German Gothic, remarkable for the finish of its details. In the centre of the gallery are placed Germain Pilon’s “Graces,” a charming example of the French school of sculpture. The four angles under the Perugia ceiling are occupied by four statues, also by Pilon; these statues are all now in the Louvre, and the very remarkable bronze monumental effigy in the centre, against the garden, is from the Museum at Florence; it is ascribed to Vecchietta of Sienna. On either side of the doorway are parts of Goujon’s doors from St. Maclou, at Rouen.

On the back wall, to the right of the doorway, are richly ornamented arches, from the large cloisters in terra-cotta of the Certosa, and also bas-reliefs and specimens of the Renaissance style from various parts of Italy. The central monument of Bernard von Gablenz is an exceedingly fine example of the style as practised in Germany, at the close of the 16th century. After examining these objects, we turn into the narrow court adjoining the Renaissance Court, and find ourselves in

[I-74]

THE ELIZABETHAN COURT.

The architectural details in this Court are taken from Holland House, at Kensington, a fine old mansion made interesting to us by many associations. Elizabethan architecture, which was in its flower during the latter half of the 16th century—more than a hundred years after the revival of classical architecture in Italy—shows the first symptoms of the adoption of the new style in England. The Elizabethan style—the name reaches back over the century—is characterised by much-pierced stonework, rectangular ornamentation, and a rough imitation of antique detail applied to masses of building, in which many Gothic features were still retained as regards general form, but altered as to ornament. The style being in its very nature transitory, it gradually gave way, although characterised by a certain palatial grandeur and striking picturesqueness, before the increasing knowledge which England obtained of Italian architecture, until we find it entirely displaced in the first half of the 17th century by the excellent style of building introduced by Inigo Jones. We must add, that, although it has no pretensions to the character of a regular or complete system, yet few who have visited the great Elizabethan mansions scattered over England can have failed to admire their picturesque and solid appearance, their stately halls, corridors, staircases, and chimney-pieces, and the beautiful garden terraces, which form so important a feature in their general design.

Façade from Elizabethan Court.

The kneeling effigies in the gallery at the back of this court are from the Hertford monument in Salisbury Cathedral, and[I-75] represent the sons of the Countess of Norfolk, who lay on either side of her. The Court contains several tombs of the period. The first is that of Sir John Cheney, from Salisbury Cathedral: a soldier who distinguished himself in the wars of the Roses, and was attached to the party of Henry VII. The original effigy is in alabaster, a material much used during the early part of the 16th century. The next monument is that of Mary Queen of Scots from Westminster Abbey, executed in the beginning of the 17th century, and displaying in its treatment all the characteristics of the Elizabethan style. Under the arch in the centre is the bust of Shakspeare, from his monument in Stratford-on-Avon Church. The succeeding monument is that of Queen Elizabeth, also from Westminster, constructed at about the same period as that of Queen Mary; the original effigy is of white marble. The last monument is that of Margaret, Countess of Richmond and Derby (the mother of Henry VII.), at Westminster. It is the work of the Florentine sculptor Torrigiano; the original is in copper, and its date the early part of the 16th century; it is of unusual merit. Advancing a few paces, the visitor again reaches the Nave, and turning still southward, finds himself before

[I-76]

THE ITALIAN COURT,[17]

Which, as will be at once remarked, closely resembles the style of antique Roman art, on which, indeed, the modern is professedly founded. Although Brunelleschi, as we have before observed, revived the practice of antique architecture as early as the year 1420, yet various causes combined to delay a thorough investigation of the antique remains until the close of the century; and it even is not until the commencement of the 16th century that we find the Italian style, or modernised Roman, regularly systematised and generally received throughout Italy; from whence it gradually extended, first to Spain and to France, and at a somewhat later period into England and Germany. The power and excellence of the style are nobly exhibited in a large number of buildings, amongst which may be noted the ancient Library at Venice; St. Peter’s, at Rome; the Pitti Palace, Florence; the Basilica of Vicenza, the great Colonnade of the Louvre, Paris; St. Paul’s Cathedral, London; and the Escurial Palace, near Madrid.

[17] See “Handbook to the Italian Court,” by M. Digby Wyatt and J. B. Waring.

In this style, architecture rests chiefly on its own intrinsic excellence, or on proportion, symmetry, and good taste. The arts of sculpture and painting, in a great measure, become independent of architecture; and their absence in buildings of a later period (the 17th and 18th centuries, for instance) led to a coldness of character, which happily promises at the present day to find its remedy.

The Court before which we stand is founded on a portion of the finest palatial edifice in Rome,—the Farnese Palace, commenced by the architect Antonio Sangallo, for Cardinal Farnese, and finished under the direction of Michael Angelo. A curious fact in connexion with the original building is, that the stones which compose it were taken from the ancient Coliseum, within whose mighty walls the early Christians suffered martyrdom; so that, in truth, the same stones which bore witness to the faith and courage of the early devotees, served afterwards to build for the faith triumphant a palace in which luxury, worldliness, and pride found a genial home.

Ground Plan of Italian Court.

Prior to entering the Court, we may remark, in the niches, the bronze statues by Sansovino, from the Campanile Loggia at Venice, amongst which Apollo is conceived quite in the old Roman spirit.[I-77] Passing beneath, the columns in the centre of the court, we see the fountain of the Tartarughe, or “of the Tortoises,” at Rome, designed by Giacomo della Porta: the copies of the bronze statues by Taddeo Landini belonging to it are, for the present, placed in front of the Vestibule of the Italian Court. Turning to the right, the first object that attracts our attention is a statue of the Virgin and Child, by Michael Angelo, the original of which is in the Church of Lorenzo, Florence. Advancing to the south side, we enter a loggia or arcade, the interior of which is richly ornamented with copies of Raffaelle’s celebrated frescoes in the Loggie of the Vatican palace at Rome. They consist of a most fanciful, yet tasteful, combination of landscape figures, architecture and foliage, founded on antique models, and bearing a close resemblance to the ornamental work discovered in various Roman ruins, having been imitated by Raffaelle from the baths of Titus, discovered about[I-78] this time. The towns of Pompeii and Herculaneum, which have so much enlarged our knowledge of ancient arabesque ornament, were at that time unknown. In the centre of the arcade, towards the Court, is the monument of Giuliano de’ Medici, from San Lorenzo, Florence. On each side of his statue are the reclining figures Night and Day (part of the same monument). The face of the right-hand figure is left rough-hewn by the poet-sculptor to indicate the indistinct aspect of Night. The face of Twilight, on the opposite monument, though still in the rough, is more clearly expressed, as it should be. This is one of Michael Angelo’s masterpieces, and is remarkably characteristic of the sculptor’s style. At the back of it, in the Loggia, is a fine specimen of bronze casting, from the gates of the enclosure at the foot of the Campanile, Venice. On each side of the entrance to the gallery are two groups of a Virgin with the dead Christ, that to the right being by Bernini, the other to the left by Michael Angelo, both especially interesting as serving to indicate the state of art in the 16th and 17th centuries respectively. The remaining statues, viz.,—the Slave, now in the Louvre, the Christ in the Church of S. Maria Minerva, Rome, and the Pietà in St. Peter’s, Rome, are by Michael Angelo. The visitor may now enter the loggia, which, like its companion on the other side of the Court, is ornamented with copies of Raffaelle’s frescoes from the Vatican; in the centre of this side of the Court is placed Michael Angelo’s celebrated monument of Lorenzo de’ Medici, from the church of San Lorenzo at Florence; the reclining figures on each side of the statue of Lorenzo represent Dawn and Twilight. At the back of this monument within the arcade is the fine bronze door by Sansovino from St. Mark’s, Venice, on which he is said to have laboured from twenty to thirty years. The projecting heads are supposed to be portraits; amongst them are those of Titian, Aretino, and of the sculptor himself. Proceeding onwards, the beautiful composition of Jonah and the Whale, by Raffaelle, is from the Chigi Chapel at Rome. Passing into the gallery on the Garden side, we remark in the four angles portions of the pedestals of the Venetian standards, from the Piazza of St. Mark, Venice. The painted ceilings of this gallery deserve special attention. The first on entering the gallery is from an existing example at the “Old Library,” Venice; the last is from the “Camera della Segnatura,” by Raffaelle, at the Vatican; beneath which is the wonderful statue of Moses, by Michael Angelo,—a production the grandeur of which amounts to sublimity, expressing[I-79] in every line, with, the noblest conception, the inspired lawgiver and appointed leader of a nation.

VESTIBULE TO THE ITALIAN COURT.[18]

The decoration of the vestibule is founded on the very elegant Casa Taverna at Milan, by Bernardino Luini, a pupil of Leonardo da Vinci, and affords an excellent idea of the peculiar painted mural ornament prevailing in Italy at the commencement of the 16th century. The doors are from the Palace of the Cancellaria at Rome, by Bramante, the famous designer of St. Peter’s in that city, and the immediate predecessor of the great architects of the 16th century. The vestibule itself is rich in very beautiful water-colour drawings after the old masters, by Mr. West. These drawings are well worthy of study, since they afford admirable specimens of the manner of many old masters, who are but poorly represented in the National Gallery.

[18] See “Handbook to the Italian Court,” by M. Digby Wyatt and J. B. Waring.

Monument of
Lancino Curzio.

Madonna
della Scarpa.

Sacrarium of the
Maddelena from
Certosa.

 

Monument of
Lancino Curzio.

Madonna
della Scarpa.

Sacrarium of the
Maddelena from
Certosa.

Ground Plan of Italian Vestibule.

We now pass out of the gallery into the Vestibule, by turning through the pillars to the right. The monuments on the external wall of the vestibule afford excellent examples of the later Renaissance style. Amongst them may be particularly noted the monument of Lancino Curzio (nearest the gallery), from Milan,[I-80] by Agostino Busti, evincing that delicate execution for which the sculptor was famous; underneath is the tomb of St. Pelagius Martyr, from Genoa; and, in the centre of the wall, the central altar of La Madonna della Scarpa, from the Leno Chapel in the Cathedral of St. Mark, Venice—an elaborate specimen of bronze casting, completed early in the 16th century by Pietro Lombardo and others. The upper part of the monument nearest the Nave is an excellent example of the Renaissance style, being the Sacrarium of the Chapel of the Maddelena at the Certosa, Pavia; the bas-relief in the centre is by Donatello, and the remaining portions of the composition are from Sansovino.

Façade of Italian Vestibule.

We have now completed our survey of one of the most interesting features of the Crystal Palace. We have performed our promise to guide the visitor through the various Fine Art Courts, bringing before his notice some of the principal objects that have adorned his road, and endeavouring, by our brief remarks, to heighten the pleasure he must necessarily have experienced from the sight of so noble an assemblage of architectural and sculptural[I-81] examples. Much however requires patient examination and study—examination that will yield fresh beauty, and study that will be rewarded by permanent and useful knowledge. For guidance and help we refer the visitor to the handbooks of the several Courts. The mission of this little work, as far as the Fine Art Courts are concerned, is accomplished: and “The Guide Book” now only waits until the visitor has sufficiently recovered from his fatigue, in order to resume, in other parts of the building, the part of cicerone.

COURT OF MONUMENTS OF ART.

We enter this Court (which is formed in one angle of the Great Transept with the Nave), as with the other Courts, from the Nave. The first objects that attract our notice are some beautiful statues of the Italian school, amongst which will be found many of Canova’s, several beautiful works by Richard Wyatt, and some from the chisel of Gibson. The statues at the garden end of the Court are mostly French. Some of the most conspicuous objects however in the Court are the very interesting crosses of the early Irish Church, and the richly sculptured bronze column from Hildesheim Cathedral in Germany, a fine example of the Byzantine period. Also a very interesting cross, from Pocklington, in Yorkshire,—a fine example of the monumental art of the latter part of the 15th century. This specimen has been liberally presented by Samuel Leigh Sotheby, Esq.

Beyond these are monuments of the Gothic period, amongst which are conspicuous the Cantilupe shrine from Hereford Cathedral, and the effigy of Edward III., from Westminster; the central tombs, of Bishop Wakeman, from Tewkesbury, and of Bishop Bridport, from Salisbury (the last-named being that to the left).

The tomb of Henry VII., an interesting example of the Italian Renaissance style in England, at an early period of its introduction, and the fine bronze monument of Cardinal Zeno from Venice, occupy the further end; and the equestrian statue of Gattamelata, by Donatello, forms a conspicuous feature in this portion of the Court, where also is a fine bust of Cosmo de’ Medici, by Benvenuto Cellini. Under the gallery at the further end are two fine equestrian groups in bronze of Castor and Pollux, by San Giorgio of Milan. The originals stand in that beautiful city. Here also, in a[I-82] corresponding position to the statue of Gattamelata, but nearer towards the nave, is the superb statue of Colleone. In the glass cases on the side next the Transept may be seen a most interesting collection of casts from ivory carvings, from the 2nd to the 15th century. These have been published by the Arundel Society.[19]

[19] The Arundel Society has been formed by a number of gentlemen, lovers of the Fine Arts, for the laudable purpose of publishing such works as, however valuable in themselves, are not likely by an extensive sale to repay a publisher; its means for this purpose being provided by such annual subscriptions as it may secure.

For minute and interesting information respecting the monuments, and all the statues on this side of the Palace, the visitor is referred to the Handbooks of the Mediæval and Italian Courts (by Messrs. M. D. Wyatt and J. B. Waring), where they are fully described.

Crossing the great transept to the west, we proceed towards the south end of the building, and, keeping to the right-hand, commence our pilgrimage through the Industrial Courts. The first that we arrive at is

THE STATIONERY COURT.[20]

In the formation of this and of the other Industrial Courts, the several architects have been solicitous to express, both in the construction and the decoration, as far as possible, the specific destination; with the view of maintaining some harmony between the objects exhibited and the building in which they are contained. The Stationery Court was designed and erected by Mr. J. G. Crace. The style of this Court is composite, and may be regarded as the application of cinque-cento ornamental decoration to a wooden structure. Externally the aim has been to furnish certain coloured surfaces, which shall harmonise with the plants around and with the general aspect of the Palace. In the interior of the Court, the colour on the lower level will be seen to serve as an admirable background to the objects exhibited; whilst the panels covered with cinque-cento decoration, combined with the elegant imitation of marquetrie work, produce an effect which deserves the highest praise. Over the opening through which we enter this Court, and between the stained glass windows let into the wall, have been introduced allegorical figures of the arts and sciences applied in the manufacture of the articles exhibited in the Court, and over the opening[I-83] at the back the artist has depicted the Genii of Manufacture, Commerce, &c. In the centre of the panels throughout the Court representations are painted of the processes which the objects exhibited undergo during their manufacture.

[20] See “Exhibitors’ Descriptive Catalogue,” Part IV. of this book.

As the visitor passes round this Court, let him step out at one of the entrances on the north side, close to which he will find erected “The Crystal Palace Medal Press.” This machine, which is official, and worked on behalf of the Company by Messrs. T. R. Pinches & Co., is employed from time to time in striking commemorative medals, designed by Mr. Pinches or other artists connected with the Palace. The machine is worked by four men, one of whom adjusts the metal to be stamped between the sunk dies: as soon as the metal is fixed, the other workmen swing the lever rapidly round, and the great pressure produces impressions of the dies on the metal, which is turned out sharp and distinct, and then put into a lathe and completed. In the glass cases placed near, the visitor will have an opportunity of inspecting numerous specimens of the medals produced by the machine, amongst which those in frosted silver deserve especial notice for the beauty of their appearance.

The visitor, proceeding round the Stationery Court, from right to left, will find amongst the works of industry exhibited, specimens of Bank-note Engraving and Medallion Line-engraving, book-binding, and printing, including the new art of Nature-printing, paper manufacture, and Artists’ colours, also stereoscopic views and other articles of the kind. Outside this Court, between it and the Birmingham Court, are some beautiful and interesting specimens of artistic printing in colours. At the back of this and of the Birmingham Court, or towards the west front of the building, is situated “The Hardware Court,” in which are placed household utensils, iron and zinc bronzes, gas-fittings, refrigerators, and numerous articles in metals.

Immediately behind the Hardware and Stationery Courts, is a Court dedicated to New Inventions. This very interesting department is filled with ingenious contrivances of all kinds, and is well worthy of a visit.

Beyond this Court again, and flanking the Hardware Court, is a large space extending in a southerly direction to the Pompeian Court (at which the visitor will presently arrive), divided into several large chambers which are devoted to the exhibition of furniture. Here will be found not only useful articles of household furniture, but specimens of tapestry work, wood[I-84] carving, picture frames, and other ornamental articles which give grace to our rooms, and which, by means of our great mechanical excellence, are daily becoming more and more within the reach of the great body of the people. The visitor will do well, in examining these Courts, to view them in sections, so as not to miss those Industrial Courts which face the Nave.

Next in order of the Industrial establishments, comes

THE BIRMINGHAM COURT.[21]

This Court has been designed by Mr. Tite, and the architect has considered that the purpose to which the Court is applied might best be expressed by showing some of the principal ornamental uses of iron in architecture. With this intention, he has designed for the façade of the court a restoration, in modern work, of the English ornamental iron enclosures of the 17th century, which differed but slightly from those prevailing at the same time in France in the style of Louis XIV. The English, however, are generally richer in foliage, while the latter are more fanciful in scroll-work. At the period referred to, the whole of those enclosures were of wrought and hammered iron, cast-iron being at that time little known; but in the enclosure before us, although it has been executed on much the same principle as the old work, the ornaments are cast, in order to secure greater durability, cast-iron not being so easily destroyed as wrought iron, by the oxidation which proceeds with such enormous rapidity in this country. The castings have been most admirably executed, and so sharp and distinct were the outlines of the patterns, that they required but little after-finishing. The pilasters are of enamelled slate, excellent for their imitation of marble, surmounted by iron capitals. Entering through the gates in the centre, the visitor finds the interior of the court panelled in the style of the same period, and decorated by Mr. Sang with emblematical paintings and other appropriate ornamentation in encaustic.

[21] See “Exhibitors’ Descriptive Catalogue,” Part IV. of this book.

In this Court will be found specimens of plate, articles in nickel silver, seal-presses, gilt toys, curious locks, and similar manufactured goods of universal use, from the multifarious productions of the busy town which gives its name to the Court. On leaving the court, we notice some splendid specimens of bronze casting, and[I-85] other works of artistic metal manufacture, belonging to Messrs. Elkington & Co. Quitting this department, we approach next in succession,

THE SHEFFIELD COURT.[22]

The architect of this Court is Mr. G. H. Stokes, whose structure compels attention by the novelty of its design, and by its generally striking effect. Although there is a considerable admixture of styles in the Court, the parts have been so well selected, and their blending is so excellently contrived, that they yield a harmonious result in every way pleasing to the eye. The materials used in the construction are plate-glass and iron, an appropriate and happy selection for a court intended to receive the productions of Sheffield. The panels on the outer walls are of plate-glass, inclosed within gilt-mouldings; the pilasters and the frieze over the large panels are likewise of plate-glass. The iron columns above, forming an arcade, are in a composite Moresque-Gothic style, and elaborately ornamental in design. Entering the Court from the Nave, we find the interior decorations identical with those of the exterior—with two differences, viz., the large lower panels, instead of being of plate-glass, are of red cloth, which serves as a background to throw up and display the articles exhibited. The frieze or space above the columns is covered with painted decorations. The articles exhibited in this Court present an excellent representation of the important manufactures for which Sheffield is so celebrated, and which are sought by all the world. It is impossible not to extol the beauty and curiosity, as well as the completeness, of these manufactures.

[22] See “Exhibitors’ Descriptive Catalogue,” Part IV. of this book.

Having made our way to the Nave, a step brings us at once before the exquisite restoration of

THE POMPEIAN COURT.[23]

Seventeen hundred and seventy-five years ago, the cities of Herculaneum and Pompeii, beautifully situated on the shores of the Bay of Naples, were buried beneath the lava and ashes vomited[I-86] forth by Vesuvius. The horrors of this calamity are recorded in the writings of Pliny, and of other Roman historians of the period. So sudden was the outbreak and general convulsion that, as we learn, many of the inhabitants of those cities were caught in their terrible doom before the thought of escape occurred to them. The dread event completed, nature resumed her former aspect. The mountain flames ceased, the intense blue sky again looked down upon the dancing waters, and there was nothing to tell of the general havoc, but a vast desolate tract covered with white ashes, under which man and his works lay entombed.

[23] See “Handbook to the Pompeian Court,” by George Scharf, jun.

For upwards of sixteen hundred years these cities remained buried. But about the middle of the last century, curiosity with respect to them was stirred, inquiry commenced, and excavations were attempted. As in the more recent case of Nineveh, but with still more satisfactory results, success at once crowned investigation. The material that had destroyed Herculaneum and Pompeii had also preserved them. That which had robbed them of life had also perpetuated their story in death. The cities were redelivered to man so far undecayed, that he obtained actual visible knowledge of the manner of life of one of the most remarkable people that ever governed the world. To the insight thus obtained, the visitor is indebted for the reproduction of the Pompeian house before which he now stands—a habitation of the time, complete in every respect. It is not asserted that the visitor beholds the actual ground-plan of any one specific house, but he sees the type of a Pompeian villa, made up of many fragments that have been found. The paintings and decorations are copies of originals found in the destroyed cities.

The doorway of this house stands fronting the Nave. Entering it, we pass through the narrow prothyrum or passage, on either side of which is a room devoted to the door-keeper and slaves, and on its pavement the representation in mosaic of a savage dog, and the words “cave canem”—beware of the dog—meet the eye. It is the usual notice found on the threshold of these Roman houses. Emerging from the passage, we are at once in the “atrium,” or outer court of the edifice. The eye is not attracted here, as in other restorations of the palace, by the architectural design alone; the attention is also secured and charmed by the decorations. The bright coloured walls, the light fanciful character of the ornaments, the variety of patterns, and the excellent method of colouring,—which at the lower part is dark, and graduates upwards, until it becomes white on the ceiling,—constitute[I-87] some of the beautiful features that give individuality to Pompeian houses, and cause them to differ most essentially from every other style.

Ground Plan of Pompeian Court.

This entire court, or “atrium,” was the part of the building common to all visitors. The opening above is the “compluvium,” and the marble basin beneath, the “impluvium,” which received the rain that fell from the roof. In the actual houses at Pompeii, the size of the “impluvium” corresponds, of course, with the dimensions of the opening above. Here the “compluvium” has been widened in order to admit more light into the court. The flooring consists of tesselated pavement, and near the two other doorways leading into the “atrium” is inscribed the well-known[I-88] word “Salve”—“welcome”—announcing the profuse hospitality of the owner. Two out of the three entrances mentioned are formed here for convenience of egress and ingress, and are not copied from actual buildings, in which there are sometimes to be found, however, a porta postica, or back door.

As soon as we have entered the Court, we turn to the right, and proceed round it, stepping into the “cubicula,” or bed-chambers, to admire the figures that seem to be suspended in the intensely fine atmosphere, and—with our English experiences—to wonder how, whether by day or by night, comfort could be attained in such close dormitories. We reach the side entrance, next to which is an open recess corresponding with a second recess on the other side of the “atrium.” These recesses were called “alæ” or wings, and were used for the transaction of business with visitors. On the central panel of the first recess is painted a scene from the story of “Perseus and Andromeda,” and on the side panel are again exquisite figures, painted not in the centre of the panel, producing a stiff formality, but nearer to the top than to the bottom, so that the forms still seem to float before us. Continuing our way, we turn into the large apartment opposite the door at which we entered. This is the “tablinum,” and was used for the reception of the family archives, pictures, and objects of art. Across the “tablinum” a curtain was sometimes drawn, to separate the private dwelling-house from the more public “atrium,” although it is a remarkable fact that no remains of hooks or rings, or of anything else, has been discovered to convey an idea of the means by which such a curtain could be attached. In order to enter within the “tablinum” a special invitation was required.

[I-89]

THE POMPEIAN COURT.

[I-90]

From this point, the “Peristyle” is also visible, with its columns coloured red some way up, a Xystus or flower-garden, and a back wall, upon which are curious specimens of perspective decoration, in which the Romans seem to have delighted. This court was always open to the sky in the middle. Passing through the “tablinum,” and turning to the right, we come to a small doorway which admits us into the “triclinium,” or winter dining-room. The Roman dining-room generally contained three couches, each large enough to hold three persons. In feeding, the Roman was accustomed to lie on his left side and to stretch out his hand towards the table in order to serve himself. Re-entering the “Peristyle,” we proceed on our way, still to the right, and pass a summer triclinium used in warm weather, on the walls of which fruits are painted, some hanging in golden clusters on a wreath of foliage, supported by Cupids. Next to this is the “porta postica,” or back door, and adjoining it a small recess, which served as kitchen. Crossing the “Peristyle,” near one end of which is the domestic altar, we turn to the left, and after passing a small chamber, the “vestiarium,” or dressing-room, reach the “balneum,” or bath-room—that chamber so essential to the luxurious Roman. Close to this is the æcus, or saloon, and beyond this again, and corresponding with the “triclinium,” is the “thalamus” or bed-chamber of the master of the house. Quitting this, we once more gain the “atrium” by means of narrow fauces, or passages, and return to the Nave, through the door of the house at which we originally entered. The visitor has seen the extremes of decorative art, when, after sating his eyes with the profuse and dazzling embellishment of the Alhambra, he has also dwelt upon the delicate work of colours gracing the walls of Pompeii. From the gallery above the visitor may see the form of the ancient tiled roof made of the peculiar tiles still occasionally used in Italy. This court was erected by Mr. Digby Wyatt. The paintings were executed under the superintendence of Sig. Giuseppe Abbate, of the Museum, at Naples. The mosaic floor was manufactured by Minton from drawings after antique Mosaic by Mr. Wyatt; and the bronze groups in the tablinum, and the Venus in the lararium, were electrotyped and presented by Messrs. Elkington and Co.

NATURAL HISTORY DEPARTMENT.

Upon quitting the Pompeian Court the visitor, still walking southwards, crosses the south transept and enters that division of the building which is devoted to geographical groupings of men, animals, and plants. The illustrations of the animal and vegetable kingdoms in the Crystal Palace have been arranged upon a specific principle and plan. Although the British Museum contains nearly all the examples of animals and birds known in the world, and Kew Gardens exhibit specimens of the majority of trees and plants known to botanists, still neither of these collections affords the visitor any accurate idea of the manner in which these numerous objects are scattered over the earth. Nor do they assist his conjectures as to the nature or the general aspect of their native countries. Here an attempt has been made to remove the confusion; and it is believed that the associations of those two branches of Natural Science, in groupings arranged in such a[I-91] manner as the nature of the building will permit, coupled with illustrations of the human variety belonging to the same soil (a collection which has never before been attempted in any country), will prove both instructive and amusing, and afford a clearer conception than can be obtained elsewhere of the manner in which the varieties of man, animals, and plants, are distributed over the globe.

Zoology (from Zoön, an animal) is, strictly speaking, that science which investigates the whole animal kingdom, comprehending man as well as the inferior animals. Zoology, therefore, in a wide sense, includes Ethnology, or so much of that science as considers the different varieties or races of men in a physical point of view, instituting comparisons between them, and carefully pointing out the differences or affinities which characterise the physical structure of various branches of the great human family. In more confined use, the term zoology relates only to the consideration and study of the mammalia, or suckling animals; the requirements of scientific research having occasioned a new nomenclature in order to distinguish the different branches of the same study. Hence the natural history of birds is particularised as Ornithology, and that of fish as Ichthyology, whilst the investigation of those characters in man which serve to distinguish one race from another is, as previously remarked, called Ethnology (from the Greek Ethnos, “nation”). This last-named science is subdivided again into different branches, but, in a limited and inferior sense, and as illustrated by the various groups in the Palace, it may be described as that science which distinguishes the differences in skin, hair, bone, and stature that exist between the various races of men. This zoological branch of Ethnology relates to the physical history of man as opposed to his mental history, and, following up the course of his wanderings, endeavours by the above-mentioned physical peculiarities to ascend to the source from which the several migrating races have proceeded.

Within the Palace itself, we have been enabled to remark the works of man, and the gradual development of his ideas, especially in Art, leading to a variety of so-called “styles,” which answer in a measure to the varied species of Divinely created life. We have now an opportunity of attentively considering the more marvellous and infinite creations of the Deity in the organisation and development of that greatest of all mysteries—life itself; and of obtaining a vivid idea of those peculiar varieties of mankind, that have hitherto not fallen under our personal observation. If the visitor[I-92] should feel astonishment in the presence of some of the phases of human existence here presented to him, he may do well to bear in mind, that they are representations of human beings endowed with immortal souls; to whose capabilities we may not place a limit, and that it is not yet two thousand years since the forefathers of the present European family tattooed their skins, and lived in so savage a state, that late archæological researches induce us to suspect they were not wholly free from one of the worst charges that is laid to savage existence; viz. the practice of cannibalism.[24]

[24] Archæol. Journ., p. 207. Sept. 1853.

Entering upon the path immediately before him, the visitor will commence the examination of the groups arranged on the western side of the nave. Turning up the right-hand path, we find on the right a general illustration of Australia. The men here represented are copied from living natives of Cape York, North Australia, and strike us at once, by their half-starved, lanky, and ill-proportioned bodies, curiously tattooed; they may be looked upon as savages, hunters, and inhabitants of the forest; they possess that excessive projection of the jaw, which ethnologists make one of the distinguishing traits in the most degraded forms of man. These figures were modelled from some living natives who were brought to England in 1853, and who were kept for some weeks by the Company on purpose that these portraits should be accurately rendered.

Amongst the animals will be noticed that most characteristic form, the Kangaroo, of which there are several species, and the Opossum, or Fox Phalangister, with a young one in its pouch. There are likewise specimens of the Duck-billed Platypus, Cook’s Phalangister, a Flying Opossum, an Emu, and a large rat called Hydromys. Some fine cases of Australian birds stand in the Transept close by. Here the visitor will find numerous plants, with which he is acquainted in conservatories; the Banksia, the Acacias, and the different kinds of Epacris and Eriostemon, are amongst the most conspicuous. He will see also specimens of three other kinds of Araucaria, the most elegant of which is the Norfolk Island Pine.

Nearer to the staircase, and adjoining the Australians, is a group of Papuans from the Louisiade Archipelago, remarkable by their curious frizzled hair; they are neither Malays nor Negroes, but a mixed race between these two, retaining the characteristics of the tribes from which they have sprung; hence they may be called[I-93] Malay-Negroes. Behind them is a fine Cassowary, a curious bird, indigenous to the Indian Archipelago.

On the left-hand of the visitor, as he stands opposite the Australian figures, is arranged a group of Botocudos, inhabitants of that district in South America watered by the rivers Doce and Pardo. They have been regarded as the fiercest of American savages; they are yellow in colour, their hair is long and lank, their eyes are small, their cheek-bones prominent, the expression of their countenance excessively savage; and they give themselves a still wilder appearance by the insertion of pieces of hard wood in the under lip and in the ears, distending the flesh in a peculiar and strange manner. From this barbarous practice they derived their appellation of Botocudos, from the Portuguese. The operation of thus distending the lip is not, of course, carried out at once, but from infancy by the gradual increase in size of the piece of wood inserted. This may be noticed in the model of the child as compared with the adult natives. Missionary efforts, it is consolatory to think, have done something towards civilising these savages, who have been induced to become industrious, and to turn their attention to the cultivation of the soil. On the summit of the rockwork, over where three of the natives appear to be in council, are two fine specimens of the Black Jaguar and the Ocelot.

We now pass a case of birds belonging to North America, and at this point the illustrations of that country commence. In the centre of this case will be remarked a fine specimen of the Wild Turkey, from which our domestic breed is derived. On the left of this path is a group of North American Red Indians engaged in a war-dance, and surrounded by trees and shrubs indigenous to North America. The Indians of the valley of the Mississippi, and of the drainage of the Great Lakes, supply us with our current ideas of the so-called Red Man, or the Indian of the New World. In stature they are above the middle height, and exhibit great muscular force, their powers of endurance being very great; in temper they are harsh, stoical, and unsociable, whilst in warfare they are savage and cruel. The general physiognomy of the Red Indians is the same from the Rocky Mountains to the Atlantic. Between the Alleghanies and the Atlantic, the first-known country of these tribes, the variety is now nearly extinct. The most conspicuous plants are the American Rhododendrons, the Kalmias, the Andromedas, and the American Arbor Vitæ. Amongst the foliage we see the Black Bear, the Otter, the Beaver, the Grey Squirrel, and other animals indigenous to the country.

[I-94]

Passing now round the right-hand path, we find on our right the men, plants, and animals of Central America; amongst the latter, on the top of the rock-work, a fine male Puma grey with age. The Puma may be regarded as the American representative of the Lion of the old world, the distribution of both these animals throughout their respective hemispheres having originally been very general. Like most of the cat tribe, the Puma is a good climber, and usually chooses trees, rocks, and other elevated positions from which it can dart upon its prey. Before reaching this, the visitor will note a large specimen of Agave Americana, one of the most striking plants of Central America; he will also note that this is the land of the justly-admired Verbenas and Fuchsias, amongst which he will find a specimen of the large prehensile-tailed Porcupine. The men are representatives of the Indians of Mexico generally, rather than of any particular tribes.

On the left of the visitor are two groups of men; the two reclining figures are characteristic of Guiana, and beyond them is the Amazonian group. At the back, to the left of these two groups, is a large group of Caribs, some using blowpipes, others shooting fish with bows and arrows. These three are intended to serve as types of the northern varieties of South American Indians. And if we institute a comparison between the various races of North and South America, it will be found that the latter possess more delicate features, rounder forms, and are of smaller stature. Their habits and pursuits also differ. The Red Indian of North America gives himself up entirely to hunting, whilst the South American devotes his life to fishing, guiding his light canoe down the rapid-rolling rivers of his country, in search of the means of subsistence. In front of the Carib group are two Agoutis, and one unfortunate Marmoset Monkey in the clutches of a Skunk, while another is making his escape; also a small Fox, and a Tayra; and beyond the Amazon group is a little prehensile-tailed Porcupine.

The two cases of Birds which we now pass are especially brilliant, as they contain the Humming Birds and others of the splendid species of Tropical America. The specimens are not only remarkable for their magnificent plumage, but in many instances (as with the Toucan) for their peculiar conformation as fitted to their habits of subsistence. The long and slender bills of the Humming Birds, who probe the flowers in search of food, contrast with the apparent unwieldiness of the Toucan’s bill, adapted to tear from the branches the fruit upon which it feeds. Passing[I-95] round, we notice a Jaguar about to devour a Brocket Deer. As the Leopard is found only in the Old World, so is the Jaguar peculiar to the New World, and each may be regarded as a representative of the other, on opposite sides of the Atlantic ocean; the Jaguar having greatly the advantage in size and muscular strength.

We now come to the Arctic illustrations, commencing with a case of Birds, many of which were collected by Captain Inglefield during one of the recent Arctic expeditions, and presented by him to the Crystal Palace. The specimens are arranged to represent some of the changes of plumage which, at various seasons of the year, are incident to the birds in these remote and extreme climates. The Snowy Owls, the Eider Duck, the Gannet, and various birds frequenting the sea-coast, are beautiful and prominent specimens in the collection.

It has been attempted in this illustration to present the visitor with some idea of the peculiar features of this region. It was necessary here, in the absence of all botanical specimens so attractive in the other departments, to attempt the representation of icebergs, and the snowy aspect of the country. The Ethnological group in the further recess is formed of two Samoiedes, or natives of Arctic Russia in their winter dresses of fur. The male native holds in his hand a pair of the very peculiar snow-shoes which are used by these people. The group nearest to the spectator consists of two males, a female, and child of the Lapland race, in their curious national dress. The scarlet costume of one of the male figures is, however, the summer dress, but is placed here for contrast with the other example, which is the kind of clothing adopted in the rigorous winter. On the right appears a Greenlander in his skin canoe, and armed with the implements of chase, by which he captures Whales, Seals, Birds, and other animals. The largest Polar or White Bear was killed by Captain Inglefield with a single pistol shot, when he was closely and dangerously attacked by the monster. The other animals consist chiefly of the Reindeer, Arctic Foxes, Esquimaux Dogs, Seals, &c. This illustration has been arranged and designed by Mr. A. D. Bartlett, under whose superintendence the Natural History Department is now placed.

Before leaving this side of the Palace to proceed in the examination of the Natural History Department on the other side of the Nave, we must not omit to particularly notice the interesting illustrations of aquatic natural history, which will be found in the various positions which are indicated. Most of these differ from[I-96] the other objects in the department, inasmuch as they are living specimens; but they will all tend to give us some idea of how vast and how wonderful are the works of Nature, how various and how marvellously fitted each to its own function in the great universe. On the right-hand side of the path by which we entered the department from the Transept, is a case filled with West Indian sponges, arranged to represent, as far as may be, the aspect of the bottom of the sea in that region, and the form of growth of these curious marine productions. This rare collection of sponges is the property of J. S. Bowerbank, Esq., who has kindly lent them to the Crystal Palace Company, and arranged them himself.

We should now return to the staircase, near where the Botocudos and Australian illustrations are. Here two large tanks are fitted up as marine aquaria. The specimens are arranged in real sea-water. In the tank under the staircase, and nearest to the Botocudos, are placed specimens of the swimming fish most generally found on the coasts of Great Britain. It is not necessary here to particularise any of the various kinds, as a system has been adopted of affixing the specific names to the tank itself, for the readier and more effective identification of these interesting objects.

In the other tank, on the left-hand, those species of Crustaceæ which may be most properly designated active Crustaceæ are exhibited. A similar plan for the identification of the specimens is adopted as with the other tanks. Amongst these interesting specimens, the curious movements of the Soldier Crab, or, as called by some, the Hermit Crab, are very noticeable. This peculiar animal is not himself gifted with a shell upon his body, although his legs and claws are covered with the usual protection. To remedy this want, his habit is to attack some univalve, most generally the common Whelk, and having devoured the inmate, to adopt the shell as his own, moving about with it from place to place with great apparent convenience. He is not, however, always left in undisturbed possession of his stolen tenement, for the Actinea parasitica frequently attaches himself, with apparent purpose, to the shell, and thus, as it were, enslaves the inmate. The crab can, however, easily adapt himself to a new habitation, and may be frequently induced to the operation, if tempted by the introduction of a better shell. The tanks containing the Madrepores, Actineæ, and those species of Molluscous animals, which from their habits may be termed inactive, will be described in the proper positions on the other side of the Nave.

[I-97]

Crossing the Nave in front of the screen of Kings and Queens, we continue our examination of the various Natural History illustrations on the garden side of the Palace. Keeping then to the extreme right of this division, the first group we come to illustrates generally the Bushmen of South Africa. These have been variously designated by travellers as Bosjesmen and Earthmen, but are of one race. The group represents an entire family. This singular race of beings are persecuted and despised not only by Europeans but by the other tribes. They are migratory, and fix their abodes on unappropriated tracts of land, which frequently separate hostile tribes. The race is fast disappearing. The animals of this division (South Africa) are the Hippopotamus, the Bubaline Antelope, a large Crocodile, and on the rocks opposite to the Hippopotamus is the Cape Hyrax, or Rock Rabbit, a curious animal, much more nearly related to the Rhinoceros than to the Rabbit.

Further on we come to Eastern Africa, which is here represented by a group of Danakils, who inhabit the country between Abyssinia and the sea, leading a camel to water. The Danakils are a nomade or wandering tribe; they are of a chocolate-coloured complexion, and have long, coarse, wavy hair, which they often dress in a fantastic manner; they are of slender make, tall, and differ widely in appearance from the Negro. The Danakils are transitional between the Negro and the Arab, possess a Jewish physiognomy, and have acquired the Negro element from their intercourse with the neighbouring members of that race. The Negro form and physiognomy are much more strongly developed in the man on the right of the Dromedary, who belongs to the Msegurra tribe. In this district will also be found a fine natural historical group, representing a Leopard attacking a Duyker-bok.

On the right hand of the path in which we now are is a group of Zulu Kaffres. This fine people are far advanced before the rest of the South African races; they are in a measure civilised; some of them build houses and towns, and pay considerable attention to arts and manufactures. Thousands of them have lately entered the service of Europeans as farm-servants and labourers; in these capacities they are most honest and trustworthy. In general they are tall, strong, and well-proportioned; their skin is usually of a brown colour, but this varies in intensity; their hair is woolly; their foreheads high, and cheek-bones prominent. They are an active and warlike race, and of a predatory disposition. Having inspected this group, we should return and proceed down the path, then to our left. We shall pass, on our left, amongst other animals,[I-98] three specimens of the Chimpanzee, the animal whose form most nearly resembles that of man (excepting the Gorilla). These are found on the western coast of Africa, though they may probably also exist in the far interior where no European as yet has penetrated. Though somewhat similar to the Ourang Outang of Sumatra in general form, the Chimpanzee is a smaller animal. It lives in woods, builds huts, or rather a protection from the sun and rain; uses clubs for attack as well as for defence; and in many ways exhibits an intelligence that presses with rather uncomfortable nearness upon the pride of the sole rational animal.

The Chimpanzees.

[I-99]

Turning then to the left, the first group we come to is one which illustrates an episode in the wild life of the savage. Two native Mexicans appear to have come suddenly upon a Jaguar, who has struck down a small deer for his prey, and to have attacked him with the bow and arrow; the wounded and infuriated animal is about to spring from the rock upon his adversary, whose footing has slipped, when the other native advances boldly with a spear to receive the attack and to rescue his companion.

Beyond this is represented a battle between two Leopards, forcibly reminding us of a quarrel between two cats, which, in fact, it is. Any one who has seen one cat advancing towards another, must have observed that there is always a desire to receive the assault lying on the back, with the four legs upwards. The motive is to be in a position to have free use of the claws of all the legs; and in the group before us, though the smaller animal appears to have the advantage both by position and by the grip he has taken on the throat of the other, yet the laceration he is receiving underneath from the hind legs of the larger animal will soon oblige him to release his hold. Close by are two Gazelles, as well as some Mediterranean animals, such as the Barbary Ape, the Corsican Goat, and two specimens of the Mouflon Sheep. The vegetation includes Orange and Lemon trees, the Date Palm, the Oleander, the Sweet Bay tree, and the Laurustinus. If the visitor here turns round to his right, a little further on, he will find a beautiful case, containing some superb specimens of the Game birds which are found in the Himalayan districts.

In this path he will pass, on his left, some illustrations of the most eastern part of temperate Asia. Two Tibetans represent the general physiognomy of the inhabitants. The animals are all rare: amongst them is the Chiru, a curious sheep-like Antelope; the Siberian Marmot; the Yaks, or grunting oxen, which are used by the Tartars for riding or driving, as well as for food or clothing; the tail being very much in request in India for brushing away flies, no less than as an emblem of authority; of these Yaks there are two specimens here, the largest being the animal in its wild state, the smaller one as it is domesticated by the Tartars; and the Ounce, a species of Leopard peculiar to the Himalayan Mountains, an animal which three hundred years ago was comparatively well known, but whose skin has since become so rare that the very existence of the animal has been questioned. European travellers have lately visited its haunts in Central Asia, and satisfactorily proved that it still lives. In the glass case further on, are two specimens[I-100] of the great horned sheep of Chinese Tartary. The Botany here is from various sources: China, Siberia, Japan, and Nepaul have each contributed a few plants, amongst the most conspicuous of which are the Camellias and the Oriental Arbor Vitæ, which is the Asiatic representative of the similar plant in the new world. Amongst this botanical group will be found also specimens of the black and green Tea-plants.

The Yak.

Facing the visitor at this point under the staircase, and in corresponding positions to those described on the other side of the[I-101] building, are two more large sea-water tanks. Those classes of Molluscous animals, which, we have termed, for the sake of distinction, inactive, are located here. Several of these are beautiful Actineæ, more commonly called Sea Anemones, from their similitude both in form and colour to flowers. There are numerous species of these animals, and an endless variety of beautiful colouring may be noticed on them. They are found in every sea, but those in warm latitudes usually surpass in beauty the denizens of more temperate or colder waters. Here also are some Madrepores, which, however, must be spoken of more as an assemblage of multitudes of minute animals than as one. The curious little long-shaped shell, from which the inmate emerges like a scarlet blossom, and into which he darts when disturbed, must also be noticed.[25]

[25] A very large fresh-water aquarium, on a comprehensive plan, is in course of preparation, and will shortly be added to this department.

Near the carriages is a Case containing a Sun Fish, presented by Edmund Calvert, Esq., and the rest of the specimens (which are all British) are, like those in the two Australian Cases which stand outside the glass doors leading to the staircase, the property of J. S. Bowerbank, Esq., by whom they have been personally arranged to represent the appearance of the sea-bottom. The Birds in the two Cases at the foot of the stairs belong to Africa.

With these we complete our rapid survey of the Natural History department of the Crystal Palace. It remains to mention that the Ethnological section was formed under the direction of Dr. Latham; that the Zoological Collection was formed by Mr. G. R. Waterhouse; that Mr. Gould formed the Ornithological Collection, and that Sir Joseph Paxton supplied the plants to illustrate the Botany. The whole of the natural history arrangements were effected under the general direction of Professor Edward Forbes, and the personal superintendence of Mr. Wm. Thomson.

Turning now to the left, a few paces bring us to the first Industrial Court on this side.

FOREIGN GLASS MANUFACTURES.

This Court has been allotted for the exhibition and sale of Bohemian and Bavarian glass manufactures. The magnificent specimens which are ranged around worthily exemplify the rich taste and fancy which have long been considered a characteristic[I-102] of these productions, and form a most interesting comparison with the contents of the two succeeding Courts in this series, where are displayed the similar productions of the English manufactories, and, in the Ceramic Court, the richest specimens of all ages.

BRITISH PORCELAIN MANUFACTURES.

The contents of this Court somewhat differ in character from the works we have just quitted, inasmuch as the English Ceramic Art-manufactures of the highest class, and Porcelain from the best English potteries, will be found, as well as glass. The Parian statuettes, a branch of Art-manufacture of comparatively recent introduction, and in which the English excel, form a very beautiful and interesting feature.

CERAMIC COURT.

The next Court is appropriated to a most valuable collection of Ceramic productions, illustrating the art of Pottery, from the earliest to the latest time. This art has always been esteemed as curious and instructive, as it is an enduring record of a nation. From the earliest times, specimens have come down to us, and they doubtless speak with singular accuracy of the phase of civilisation in which they were fashioned, and of the manners which required them. Thus a survey of the Ceramic Court will, it is thought, bear with it more than the mere inspection of curious, beautiful, or splendid objects affords. The specimens are mostly arranged in the glass cases round the walls. In these will be found some curious Mexican examples, early Greek and Etruscan, and early stone pottery, as well as articles in terra cotta. Many very fine pieces of Lustrous and Italian-painted Majolica ware are arranged in the cases on the garden side of the Court. Of Sèvres china there are several splendid pieces of the renowned jewelled ware, as well as modern productions. The Dresden, Berlin, Viennese, Chinese, and Oriental manufactures are worthily illustrated, while amongst the productions of our own country may be pointed out the specimens of early Worcester and Chelsea ware, as well as the splendid works of the most modern manufacturers. Several of the magnificent pieces of continental manufacture have been graciously lent for exhibition by Her Majesty the Queen.

[I-103]

FANCY MANUFACTURES.

This is the last Industrial Court of the series on this side. It will be found to contain a most varied and rich collection of all those essentials of use and ornament for which both the Continent and this country are famous, comprising articles of bijouterie, vertù, papier maché, and an endless variety of things for presents or mementos; all the articles being for sale on the spot.

Quitting this Court, and turning to the right towards the garden, we reach the Photographic Department, entrusted to Messrs. Negretti and Zambra, the photographers to the Crystal Palace Company. Photographic portraits are also taken here in a room fitted for the purpose.

At the back of the series of Courts on this side, and along the whole of this part of the garden front, is arranged an exhibition of Carriages by most of the best makers, as well as harness, and many new inventions in connection with these things.

The visitor, having explored all the Fine Art Courts as well as the several Courts of Manufacture, may now give his exclusive attention to the chefs-d’œuvre and valuable examples of ancient and modern sculpture, which he has not found in the Fine Art Courts; but which will arrest his eye from point to point, as he accompanies us in a walk through

THE NAVE AND TRANSEPTS.

Our starting-point shall be the screen of the kings and queens of England, at the south end of the building, containing casts of the regal statues at the new Houses of Parliament, Westminster, executed by Mr. John Thomas.

[I-104]

SCREEN OF THE KINGS AND QUEENS OF ENGLAND.

[I-105]

The screen itself is from the design of Mr. M. D. Wyatt, and is characterised by much originality and appropriateness of treatment. The series of monarchs is placed in chronological order, commencing, on the return side to the left (as we face the screen), with the kings of the Saxon heptarchy; and beneath them the Saxon kings, the first on the left being Egbert, by whom the greater number of the petty kingdoms were first consolidated. The Norman series commences, on the principal front, with William I. and his queen, above whom are the statues of St. George and St. Andrew. Amongst the various rulers of the state may be noticed as of great excellence, in that style of sculpture which has been termed the “Romantic,” Henry II., Berengaria, Henry V., Henry VI., Richard III., Edward VI., Charles I., Queen Henrietta, and Cromwell; this last was rejected by the Committee of the Houses of Parliament, but is clearly necessary for completing the historical series, which is concluded on the return side, to the right, with the royal personages of the reigning Guelph family, and a lower row of Saxon kings. An equestrian statue of her Majesty, by Baron Marochetti, stands here in the centre.

Quitting the screen, we are first attracted on our road by the Crystal Fountain, which occupied so conspicuous a place in the Great Exhibition in Hyde Park. We will now, however, proceed on our tour, entering first the western end of

THE SOUTH TRANSEPT.

It is preferable, in order not to overlook any of the important objects which are stored in the several Transepts, to examine each Transept completely, as we enter it on our interesting tour, and after passing round both ends to resume our walk in the Nave, advancing up toward the north end of the Palace on the left-hand side, and returning down the right-hand or garden side. Turning then to the left, we proceed round this Transept, from left to right, noticing on our course the statues and other objects which are placed in the open space at each end. The first conspicuous one of these which we find is, a cast of the well-known equestrian statue of Charles I., from the original at Charing Cross. It was designed and executed, in 1633, by Hubert Le Sueur, a French sculptor, pupil of the celebrated John of Bologna, but was not at the time raised on its intended site. During the civil wars, the Parliament, wanting men more than statues, sold it to John Rivet, a brazier, living in Holborn; by whom it was kept concealed until the restoration of Charles II., when it returned again into the hands of the government, and was finally erected at Charing Cross in 1674. The pedestal is a work of the celebrated sculptor, Grinling Gibbons.

Beyond the statue of Charles I. in the central line, is placed that[I-106] of James II. by Grinling Gibbons, cast from the original now in the court at the back of Whitehall. It is an excellent example of a portrait-statue treated in the classical style; and affords us a proof of the higher reach of Gibbons’s genius; whose well-earned reputation in the seventeenth century, we may remark, rested more especially on his works in ornamental carving, of which the exquisitely cut fruits, flowers, wreaths, and other ornaments on the façade of St. Paul’s, London, are examples.

Between these two Royal Statues is a Mosaic picture of the Ruins of Pæstum, executed in modern Roman Mosaic, every shade and tint being composed of separate pieces of vitreous material; and in front of the statue of James, a model of a Chinese Junk carved in ivory, which is lent to the Crystal Palace Company by Her Majesty.

A selection from the best productions of various English sculptors surrounds this portion of the Transept. At the angle is a colossal statue of Peel by Marochetti, and between this and the Screen of Kings and Queens in the nave is the statue of the great Earl of Chatham (449), forming a portion of his monument in Westminster Abbey. It was executed by J. Bacon, R.A., a contemporary sculptor, who was celebrated for the truth and vigour of his portraits. Bacon should also be mentioned with honour, as one of the first native artists who founded the English school of sculpture in the last half of the 18th century. Amongst the statues in the Transept itself, we would notice Macdonald’s excellent compositions of Ulysses recognised by his Dog (48), and Andromeda (47); the very gracefully designed figure of a Bather (36), by Lawlor; and a group of Boys Contending for a Prize, with some other statues by the same artist.

The statues on the north side of this end of the Transept are by Spence and Theed; amongst them will be remarked the Highland Mary (58), and the statue of Flora (59), both by Spence; Narcissus at the Fountain (60), and Psyche (61), by Theed.

At the junction of the Transept and the Nave is placed the colossal statue of Dr. Johnson, from his monument at St. Paul’s, the first that was erected in that Cathedral. This portrait-statue, as well as that of Chatham, is by Bacon; but composed, as will be remarked, on a diametrically opposite principle; the great writer being half clad in a classic toga, whilst the great statesman is brought more vividly to our minds by being represented in the costume of his period and his order.

[I-107]

We now cross over to that junction of the Transept and Nave, which is marked by a colossal statue of Lessing, the great German writer; a noble and dignified portrait-statue by Rietschel of Dresden.

In this portion of the Transept are several works of the English School of Sculpture, amongst which may be particularly remarked a statue of Shakspeare (407), by John Bell; the Maid of Saragossa (6b), a very picturesque and vigorous ideal figure of a heroine who has also inspired the pencil of Wilkie; the Dorothea (5a), so well known to the public by small copies in Parian marble; a graceful statue of Andromeda (7), and Jane Shore (6a). All these specimens of Bell’s talents are on the north side of this part of the Transept. Opposite to them, or close by, will be found the Mercury (55), a Dancing Girl (50), by Calder Marshall, R.A.; the First Whisper of Love (49), Zephyr and Aurora (52), and an excellent portrait-statue of Geoffrey Chaucer (53), the father of the school of English Poetry, also by Marshall. Nearer the Nave is an ideal statue of Shakspeare by Roubilliac, cast from the original, still preserved in the vestibule of the British Museum. The colossal statue at the angle is that of William Huskisson (462), the first statesman to pioneer the way to free trade. It is a noble work in the classic style, by Gibson. Along the centre of the Transept are placed the Eagle Slayer (6), by Bell, a work remarkable for its vigorous treatment; the well-known and graceful composition, also by Bell, of Una and the Lion; and the fine monument erected by the good citizens of Frankfort to the memory of the first printers, Gutenberg, Faust, and Schœffer. The central statue represents Gutenberg, who rests with an arm on the shoulder of each of his fellow-workmen. The original is by Baron Launitz of Frankfort, and is a creditable instance of the public spirit, which does not, after the lapse of centuries, forget the originators of The Press—that mighty power, which performs at this day so grand a part in the governance and for the benefit of the civilised world, and by means of which the reader studies this record. On the right of the Gutenberg monument is a stately equestrian statue of Francis I. by Clesinger of Paris. The countenance is strikingly like the authentic portraits of the king, and well exemplifies the character of the man. In a corresponding position on the other side is Marochetti’s statue of Richard Cœur de Lion, calling to mind a curious contrast in the chivalry of the two kings.

Having now regained the Nave, we proceed along in front of the Pompeian Court, where will be found various works mostly[I-108] illustrative of modern German sculpture; amongst which we notice a group of Minerva protecting a Warrior (162), by Blaeser, of Berlin; also a charming little composition, by Brugger, of a Centaur instructing the young Achilles (164). The original model of a Nymph, with an Urn (167), by Dannecker, executed as a fountain at Stuttgard. An allegorical figure of Medicine (171), by Hahnel of Dresden. A Violin Player, by Steinhauser (201*). Two seated statues, in the Greek style, of Thucydides and Homer (176), by Mayer. A statue of a Magdalen (261), by Wagner. A very spirited group of a Hunter defending his family against a Panther (264), by Widnmann of Munich. A statue of Hector (166), by Dannecker. Next to this is a pretty statue of Diana (270), by G. G. Wolff, and near it Telephus suckled by a Hind (266), with several other beautiful examples. The statue of a Hunter (263) is a chef-d’œuvre by Wittich. Opposite the Stationery Court are excellent life-size statues of stags (193*), by Professor Rauch, of Berlin, excellent examples of that difficult branch of the sculptor’s art—the study of animal nature; and near these, Debay’s exquisite group of the First Cradle (96), and a magnificent vase by Drake (169), with Thorwaldsen’s beautiful Venus (217) and Aurora (18), by John Gibson, R.A. The fine statues of Victory (184 to 188), by Professor Rauch, are characteristic examples of that great sculptor’s style, and of the successful variety of treatment in five designs for one and the same subject. And the statue of a Nymph holding a Basket of Fruits and Flowers (160), by Professor Drake, is a picturesque example of the “Romantic” school of sculpture. We now approach the Great Transept, before entering which we will turn to the left and explore the open Court which is formed at this point by the angle of the Transept with the Nave.

THE CANADIAN COURT.

This position has been appropriated for the display of a most interesting collection of the staple and manufacturing products of Canada. The colonial government have undertaken to form and maintain such a collection as shall completely represent the commercial resources of that important colony, and have voted a sum of money for its permanent maintenance. Such an exhibition presents invaluable information to the intending emigrant, and to all an interesting sign of the progress, polish, and prosperity of our brethren in the Atlantic colony.

[I-109]

A prominent object at the further end of this Court is the noble colossal head of Bavaria, by Ludwig Schwanthaler, of Munich, who enjoyed an European celebrity. The original bronze statue to which it belongs, erected outside the city of Munich, is fifty feet in height, the pedestal on which it stands being thirty feet high. For ten years did the great artist, weak and broken in health, still devote himself with a true artist’s love to the progress of his task: but he was not destined to witness its perfect completion; and when the statue of the Genius of Bavaria was cast in bronze, its author had passed from amongst us. The statue was first publicly exhibited in 1850.

Corresponding in position on the side next the Nave, is another example of those embodiments of towns and nations, which are so frequently to be found on the Continent. The present colossal statue allegorises Franconia, a province of Germany; it is characterised by much nobility of conception, and worthily sustains the reputation of the modern German sculptors. The original, by Professor Halbig, is erected at Kilheim, in Bavaria.

The south wall of the Court, and the passage from it through which we pass to the front of the Reading Room, will be found to be decorated by some beautiful bas-reliefs, amongst which may be particularised, Westmacott’s Paolo and Francesca (72); Lough’s Apotheosis of Shakspeare; some very interesting bas-reliefs by Rauch, from the tomb of Marshal Bulow; they will be found on the base of the colossal head of Bavaria; and the Triumph of Alexander (226), executed by Thorwaldsen to decorate the Pope’s palace for the reception of Napoleon I. in 1812,—one of the most celebrated works of the great sculptor. Chantrey’s beautiful group of Sleeping Children stands in the passage, and claims special attention.

THE LIBRARY READING ROOM.

Within the quadrangular area between the Canadian Court and the Central Transept, is to be found the Reading Room of the Library, which contains works of reference for those studies and Fine Arts which are exemplified in the Crystal Palace, as well as works of high class and general literature. The books are obtained for use in the Reading Room, by means of a small slip to be filled up from the catalogue. Round the room fit space is allotted to publishers, on which are exhibited the title-pages and announcements[I-110] of new books, the new volumes themselves being exhibited during the season for immediate reference in an open book-case in the room. The publishers’ catalogues lie upon the table. The operation of the plan also extends to Continental literature, and the announcements of new books by Foreign publishers, as well as their catalogues, with the books themselves, will be noticed as an interesting feature not to be found elsewhere. A valuable Library has been already formed by the purchases of the Company, the free gifts of individuals, and by the addition of the new works which, having been exhibited by the publishers in the Room during the season, are then added to the catalogue. Amongst several very splendid works, the magnificent gifts of both Continental and British publishers, which enrich the Library, one deserves special notice on account of its very great rarity and value, as well as of its beauty. This is a copy of “Das Neue Testament” which was printed in 1851 for His Majesty the King of Prussia. As a specimen of Gothic typography the work is perhaps without a peer, while as a work of art, and a record of what can be achieved by the printing press in these days, it is to be highly valued. Five exquisite designs from the rich and original pencil of Kaulbach illustrate the volume; they represent the Deity, and the four Evangelists, severally, being single allegorical figures. There is also one illustration to the Revelations, by Peter Cornelius. These are printed from wood blocks. Twenty-five copies only of the book were printed when the type was broken up. Of these, five exist in England. One in the possession of Her Majesty the Queen, to whom the work is dedicated, one in the Bodleian Library at Oxford, one in the Syndicate Library at Cambridge, one presented to the Bishop of London, by Prince Frederick William, on the occasion of the recent Royal Marriage, and the present copy. This magnificent volume is the production of Herr Rudolf Decker of Berlin, Printer to the King of Prussia, by whom it was presented to the Company’s Library. In that portion of the room devoted to news, more than 100 newspapers can be found, upwards of fifty of which are London papers; the British country press is very completely represented, constituting a feature of the Room, and several leading Foreign Journals are supplied; there are 18 Magazines, and 7 Reviews (as well Foreign as English), besides Periodicals and Pamphlets, Directories, Gazetteers, Maps, &c. &c. The very latest news, by special telegraph, is exhibited immediately on its receipt, and a regular Daily Telegram is received from Paris, with the state of the French Funds, and Money Market. A Register for Appointments[I-111] and Messages is kept, and a glass case in which unclaimed letters, and letters for visitors, are exhibited. There is a postage-box upon the reading-table, and one outside, from which letters are collected several times in the course of the day; and paper, envelopes, and postage-stamps can always be obtained from the attendants at a moderate charge.

THE GREAT CENTRAL TRANSEPT.

Passing along in front of the Reading Room, we return to the Nave, and enter the Transept, the arch of which rises nearly 175 feet high in a light and graceful span. From the first terrace, however, to the summit of the Transept is 197 feet 10 inches. There are five galleries here, one above the other, the topmost of which runs entirely round the Transept, and the third of which extends round the whole length of the building on each side. In the second of these galleries, on the garden side, is the Industrial Museum and Technological Collection, of which we shall treat presently.

Not far from the angle of the Transept and Nave, towards the Stationery Court, stands a cast from the colossal statue of Rubens, by Geefs, of Brussels, erected in the cathedral square at Antwerp, of which city Rubens was a native: the original is in bronze, and a fine example of the modern Romantic school of sculpture. Opposite the statue of Rubens, on the other side of the Nave, is placed a cast of the fine bronze statue, by Dantan, which has been erected at Dieppe, in honour of the great French Admiral Duquesne. It is remarkable for its noble expression, and the spirited romance of its treatment. The celebrated Farnese Hercules and the Farnese Flora, both colossal antique statues from the Museum at Naples, occupy the corresponding positions across the Transept. The Hercules is a fine and artistic example, characterised by a massive and somewhat exaggerated muscular development, not, however, altogether inappropriate to the hero of physical force. The whole of this the western end of the Great Transept is occupied by the great orchestra, capable of accommodating 4,000 performers, which has been erected for the Great Handel Festival. In the centre of the orchestra is the great organ which has been built by Messrs. Gray and Davison expressly for the position.[26] The eastern end of the[I-112] Transept is occupied by a handsome orchestra for musical and choral performances. On the northern side of this end of the Great Transept are ranged some choice statues of the modern schools; the graceful Amalthæa by Julien (113); Psyche (103*); Veritas (150), a veiled figure by Monti; and Endymion (129), the Graces (125), and Paris (129), by the late famous sculptor Canova.

[26] The organ contains 66 stops, viz., 20 on the great organ, 12 on the choir, 5 on the solo, 17 on the swell, and 12 on the pedals. It has four separate rows of keys, with couplers, combination pedals, and complete pedal board. The instrument contains 4568 sounding-pipes.

We must now cross over the Nave and enter the open court, which is close to the colossal Farnese Hercules, and which corresponds in position to the Canadian Court, which we examined before entering the Transept. This Court is filled with specimens of antique sculpture of the Greek and Roman schools. Among these we would draw attention to the colossal Velletri Pallas (351), so called from having been discovered at Velletri, near Rome, and now preserved in the Louvre, at Paris; the Dying Gladiator (309); a Boy with a Dolphin; a colossal head of Pallas (328). A Boy extracting a Thorn from his Foot, from the Capitoline Museum at Rome; and the fine head of Antoninus Pius (381).

A collection of Greek ideal and portrait-busts will also be noticed in this Court; amongst which the colossal heads of Vespasian (332), Trajan (354), Pertinax (379), Lucius Verus (361), and Titus (333), are particularly deserving of notice. The visitor should not quit this compartment without noticing the collection of antique vases which it contains, amongst which the Medicean Vase (343) is a peculiarly elegant example of antique art. The elegant tripod (211), and the antique fountain (357), are also worthy of attention. Here also we find the celebrated group known as the Toro Farnese, or Farnese Bull. The original of this beautiful group, which is now preserved in the Museum at Naples, was discovered in the Baths of Caracalla at Rome, and derives its name from having been placed in the Farnese Palace in that city. The subject is the revenge of Queen Antiope and her two sons, Zethus and Amphion, on Dirce, for seducing the affections of her husband, Syeres, King of Thebes. The sons, enraged at the insult offered to their mother, are represented as about to revenge themselves by tying the unfortunate Dirce to the horns of a bull, when their mother, moved with womanly pity, intercedes for her rival, and induces them to forego the intended punishment. According to Pliny, the Toro Farnese was the work of the Rhodian artists, Apollonius and Tauriseus.

Conspicuous also in this compartment, from its high position and great beauty, is the Choragic Monument of Lysicrates. This beautiful example of ancient Greek architecture is usually styled[I-113] the Lantern of Demosthenes, on account of a tradition which ascribes its erection to that celebrated orator. No weight, however, can be attached to this supposition, although it may be, and in all probability is, due to the time of Demosthenes.

An inscription on the architrave informs us that this monument was erected by Lysicrates of Kikyna, at his own expense, in order to commemorate a musical triumph obtained by various members of his tribe or clan, the Akamantis. The ancient Greeks were in the habit of holding a species of musical tournament, in which the most celebrated masters of the art vied with each other; in this particular case, the palm was awarded to Theon, the flute-player, and the chorus of boys led by Lysiades; the magistrate for the year being Evanectus. It was to celebrate this triumph that the monument was erected. On the monument was sculptured the story of Bacchus transforming the Tyrrhenian pirates into dolphins, which was the subject of the music. A tripod was the usual prize granted in these contests, and the victor either placed it in one of the temples, or, as in the present instance, consecrated a monument specially for its reception. It was placed on the summit.

Retracing our steps, we once more regain the Nave, and as we advance, still keeping on the left side, past the front of the Egyptian Court, we remark several antique statues, including the Antinous as Mercury, from the Capitol at Rome (316), the Antinous as a Good Genius (314), and the Adonis, from Capua (213).

From this point, extending throughout the façade of the Greek Court, are ranged excellent examples of Greek sculpture, which the visitor may compare with the subsequent works of the Roman sculptors, or of Greeks settled at Rome, placed before the walls of the Roman Court. Amongst the Greek statues we select the group of Silenus and a youthful Bacchus (306), excellently treated and full of life; seated statues of Demosthenes the Philosopher (308), and of Posidonius (307), on each side of the first entrance to the Court; the Borghese Silenus (306); a Bacchus and Faun (305); the fine group of the Wrestlers, from Florence (304), the well-known Drunken Faun (295), from the Museum at Naples; and the Apollo Sauroctonos (298), from the Vatican. Nor must we omit the excellent seated statues (290, 291). On either side of the principal entrance to the Greek Court will be found the beautiful Ceres (130), a Vestal (142), the Amazon (302), and Polymnia (297).

In front of the Roman Court will be first noticed Meleager and his Dog (289); the celebrated Antinous (288); the fine Mercury, from the Vatican (287), and the same subject (288), from Naples.[I-114] Before the first entrance to the Court are placed the seated statues of Trajan (286), and Agrippina (281).

The Mercury disguised as a Shepherd (285), and the Adonis (282), are characteristic specimens of the ordinary Roman style.

Passing the façade of the Alhambra Court, we arrive at the Fountains, which at this end of the Nave correspond to those of the south end in position, and generally with respect to the aquatic plants which live in the water of the long basin. The two fountains here are designed and executed by Monti the sculptor. The figures of Syrens, supporting the large shells, typify by their colour four races of men: the Caucasian, white; the Nubian, black; the North American Indian, red; and the Australian, olive. The smaller figures above these bear fruit indigenous to various soils. The design of the Fountains is most appropriate, and the entire composition very artistic. The bronze colour of these statues, and of many others in the building, is produced by means of the electrotype process, with signal success. In the water which surrounds this fountain many interesting plants will be found, in addition to the lilies and other varieties which adorn the basin of the Crystal Fountain at the south end of the Nave. The Papyrus plant will be recognised by its tall green stems topped with fibrous leaves. The manuscripts of the Egyptians and many ancient nations were inscribed upon sheets made from the stalks of this plant. Many of the Egyptian architectural ornaments are derived from the form of the Papyrus, which grows in large quantities along the banks of the Nile. Rice, sugar-canes, and other interesting plants, grow along the margin of the water; the most curious of which, as indeed it is one of the rarest in the whole collection, is the Lattice Plant. This specimen was but lately brought from Madagascar by the Rev. Mr. Ellis. The remarkable form of the plant, from which it is named, will ensure its easy recognition. The gold fish, of which there are many thousands in the fountain basins of the Nave, have all been bred there from a few fish which have now grown to a great size, and may often be noticed steadily sailing amongst their multitudinous progeny. The temperature of the water, which is heated by water pipes beneath the surface, is peculiarly favourable to the growth of these fish.

THE NORTH TRANSEPT, AND TROPICAL END OF THE BUILDING.

It has been found that the valuable collection of Palms and other specimens of Eastern vegetation, which have been collected[I-115] in this Transept and beyond, could only be kept healthy by isolating the department devoted to them, and raising its temperature to a degree which would not be pleasant in all parts of the building, or favourable to the equable growth and seasonable cultivation of the other various botanical specimens. During the greater part of the season, a curtain divides this portion of the Palace from the more temperate regions. The temperature suits so well the plants that some, which on their arrival appeared not to grow well, have become quite acclimated, wearing a rich and luxuriant growth of verdure.

Having entered the North Transept, we find the whole of the western end occupied by the colossal Egyptian Figures from Aboo Simbel. We shall view these to the best advantage from the further end of the Transept, in front of the Mammoth Tree; we will, therefore, first make the circuit of the fountain, examining the surrounding objects, and inspect them from that point, and thence commence our return journey down the Nave.

The two semicircular extensions at this the upper end of the fountain basin have been separated from the main body of the water by a perforated partition, and contain some curious and interesting animals. In that to the right, or immediately in front of the Assyrian Court, sports one of the most remarkable of the animal creation—the Lepidosiren. It is remarkable as being an animal organised with both lungs and gills, which are generally assumed to be distinctive organizations in the reptile and the fish; but this, it will be seen, like most of such wonders in natural history, is a conformation of the animal to its habits of subsistence, place of residence, and the exigencies of its life. It is found in the river Gambia, in Western Africa. During a great portion of the year this river is dried up, and the mud in its bed is baked under an ardent tropical sun till it is of immense hardness, and shines when cut with a knife. When the river subsides, and parches up, the Lepidosiren burrows into the mud, where it remains during the dry period, till when the rains come, and the river swells, it issues from the softened mud and sports in the water again. It is considered by the most able naturalists to belong to the reptilia rather than the fish. The exact nature of its food is not accurately known, but it is a voracious feeder on animal substances; this specimen regales himself upon raw beef, frogs, and snails, with the occasional delicacy of a gold fish. He is himself eaten as a delicacy by people in Africa.

[I-116]

In the corresponding compartment on the other side of the basin are two species of fresh-water tortoises, Emys Caspia and Emys Gambiensis, one an European and one an African species, which may be identified by its larger size and lighter colour. The Emys Caspia is found commonly in the rivers of most of the warmer countries in Europe. When, after the Crimean war, the troops garrisoning the Ionian Islands returned to England, one of the officers brought with him two eggs of this variety; for safety he put them into his pistol-case. On his arrival in England the eggs were found to be hatched, and the two small animals were presented to the Crystal Palace Company, and placed in this basin. One has since died, after living some months; the other is still here.

The Visitor should not omit to inspect the Aviaries, of which there are several, in this end of the building. These contain Weaver Birds, Grenadiers, Grosbeaks, Mocking Birds, and Paroquets, most of them inhabitants of warm climates. There are also some Nightingales, whose rich song is frequently heard, even when the people crowd round them. The Weaver Birds, in the spring, may be seen constructing their curiously woven nests of grass, which hang from the branches like so many stockings; others of the feathered tribe build their habitations fearlessly in the presence of the visitor, with all the art of the basket-maker; here, indeed, bird-architecture of the most unique kind may be studied by the naturalist with delight and advantage. The Australian Paroquets have this spring again reared their young in these Aviaries with great success. It has been generally supposed that it was not possible to induce these birds to rear their young in this climate; but in 1856, the experiment was most successfully carried out in this Aviary. It has been repeated here since, each year; and in the present spring (1859), there are two healthy young birds which have been hatched in one nest, and there is promise of others. These observations more especially apply to the large species of Ground-paroquet (Platycercus hermalonotus), the smaller Shell-paroquet (Melopsittacus undulatus) having repeatedly bred in this country.

Besides the birds mentioned, there are several of the British varieties, as well as some others of greater rarity or interest which may be specially mentioned. There are several Canaries which should be noticed, as they have been trapped in the Islands and forwarded direct, in their wild state. These must not, however, be confounded with those of the tame varieties in the same Aviary;[I-117] they may be distinguished readily not only by the general carriage of the bird, but by their green plumage. The collection of Sparrows is also interesting: there are the common house and tree Sparrows of England (this last, however, is not to be confounded with the Hedge-sparrow), the Rice-sparrow of Java, and the Diamond-sparrow of Australia. The Diamond and Java Sparrows have successfully constructed nests; which is an additional evidence of how suitable the Tropical end of the Crystal Palace is for the Tropical birds. Here also are two or three specimens of the Californian Quail (Ortyx Californicus). These birds were brought from the Zoological Gardens at Antwerp. They breed freely, and are well adapted to thrive in a wild state in this climate, rearing from fifteen to twenty young ones in a brood; they are a great table delicacy, and it is probable at no distant period may enrich the list of British Game birds.

In a glass case, on the right hand as we approach the Aviaries, are some beautiful and interesting Lizards (Lacerta agilis). These perfectly harmless little reptiles are found in all the warm parts of Europe, frequenting dry, stony places, and old ruined buildings. Their food is flies, beetles, moths, and other like insects. The present specimens are from Guernsey, in which island they greatly abound.

Near to these, in the centre of the Transept, are some of the most curious of the reptiles, and which are perhaps better known by repute than even the most common species daily under our feet. These are the Chameleons. The changes of colour in this animal, so often spoken of, are not generally so rapid as is supposed, nor do they possess so great distinctions as are popularly ascribed to them. In all their habits they are so slow as to be generally almost immovable, save in respect of their restless eyes, and the tongue, which is very long and adapted peculiarly to its purpose, which is to secure their food; they can dart it with almost invisible rapidity upon a passing fly or insect, which is immediately thus drawn into the mouth. They appear most generally to assimilate their colour to the objects on which they rest, or which surround them. This may be a means of protection to them, but it is most probably only a method of concealment for the more effectual capture of their prey. It, however, answers the double purpose.

If we now proceed by the extreme end of the building toward the eastern end of the North Transept, we shall find both on our right and left hand a complete set of casts from the Ægina Marbles.

[I-118]

These most interesting monuments of ancient Greek art are now in the Glyptothek at Munich.

They were discovered in the Island of Ægina, and are supposed to have ornamented the tympana of the east and west fronts of the temple of Minerva in that island. The group, representing the Contest over the Body of Patroclus, belonged to the western, and the five figures descriptive of the Battle of Hercules and Telamon against the Trojan king Laomedon, were in the eastern tympanum. They are most remarkable examples of Greek sculpture during its second period, or from the close of the 6th to the middle of the 5th century B.C.

The conception, the anatomy, and beauty of form found in these statues denote a highly cultivated artistic taste and power, to which the peculiar faces, the invariable smile on the mouth, and a certain stiff angularity of treatment, form a marked contrast. We observe in them that turning-point in the history of Greek sculpture, when the conventionalities of an earlier system were receding before that love of nature and extraordinary perception of the Beautiful, which subsequently rendered the Greeks so pre-eminent in art.

The originals, which had, as may be supposed, suffered considerably from the effects of time, were restored by Thorwaldsen, the Dane, whose conscientious spirit and thorough appreciation of the antique give assurance of the correctness of the interesting examples now before us.

THE LECTURE ROOM.

Through the doorway which is in the corner to the right of the first set of Ægina marbles, is fitted up a spacious Lecture Room, with every accommodation for Dissolving Views and other illustrations. It comprises the whole of the “Queen’s Corridor,” so called from the private apartments of Her Majesty, which are to the left.

Continuing onwards, we obtain a fine view of the North Transept, with its noble avenue of sphinxes and palm-trees, terminating with

THE COLOSSAL EGYPTIAN FIGURES,

which are from the temple of Rameses the Great at Aboo Simbel, in Nubia. These immense seated statues towering to the roof of the Transept afford us some adequate idea of the stupendous magnitude[I-119] and passive grandeur which characterise the monuments of ancient Egyptian art. Their height is sixty-five feet.

It may be remembered that in the Egyptian Court we directed the attention of the visitor to a model of the temple at Aboo Simbel; on the façade of which were four statues of Rameses the Great. Two of these statues are here reproduced on the scale of the originals, the smaller figures around them representing the mother, wife, and daughter of the king.

The temple of Aboo Simbel, in Nubia, is excavated from the rock, and was first discovered by Burckhardt, the traveller; the accumulated sand of centuries, which then covered it, was removed by order of Belzoni, the first, with Captains Irby and Mangles, to pass its long-closed entrance. The interior was covered with paintings and hieroglyphics relating to Rameses the Great, and the date of the temple has been consequently placed at about 1560 B.C.

The sphinxes which formed the avenue are cast from one preserved in the Louvre, the writing engraved on which presents us with a curious but not uncommon instance of a custom that prevailed amongst the Egyptian monarchs, and to which we referred when describing the Egyptian Court. On one side of the shoulder the name “Pthalomen Miotph” is written in hieroglyphics, and on the other shoulder is the name of Shishak I. The last-named lived about 1000 B.C., and the first nearly two hundred years before him. Other instances occur where the name of the original founder has been erased altogether, in order to make way for the name of some comparatively modern king.

We are now standing at the foot of what represents one of the largest-known trees in the world. This tree grew, one of a group of such monsters, on the Sierra Nevada in California. When flourishing, it rose to the astounding height of nearly 400 feet. Several in the same district which are now standing are 300 feet in height. The bark of this tree has been arranged and fitted up as it grew, to give us some idea of its gigantic proportions by the view of a part. The wood is a particularly light cedar; and has been considered as of the same kind as that cedar of Lebanon employed by Solomon in the building of the Jewish temple. Dr. Lindley has named it the Wellingtonia gigantea, and has fixed its age at 4000 years. This then must have been a great tree before the ancient rock tombs of Aboo Simbel were hewn for the great Rameses.

Leaving the fountain on our right, we arrive almost immediately in front of the Byzantine Court, where, resting beneath the foliage,[I-120] are eight effigies of knights from the Temple Church, London. They are clad, with one exception, in ring-mail, and afford us perfect representations of military costume in the early part of the 13th century. They are usually called the Knights Templar; but without evidence: the cross-legged statues are probably crusaders. The entire series has been carefully restored by Mr. Richardson. The first two statues in front of the German Mediæval Court, as we face the entrance, are fine examples of German Gothic sculpture, from Cologne and Nuremberg: the three subjects beyond them are from Langen Church, Germany. The two first statues on our right are from the façade of Wells Cathedral, and next to them are various examples of German sculpture. Facing the English Mediæval Court, will be noticed, on each side of the entrance, the effigies of Bishop Kilkenny from Ely Cathedral, Henry III. from Westminster, and of Longespée from Salisbury Cathedral: the two last being especially interesting monuments of the 13th century.

On the right of the entrance, and nearest to the Nave, are two statues from Wells Cathedral, noticeable as fine examples of Early English sculpture, and the effigy of Bishop Northwold from Ely. Nearer the façade is placed the remarkable effigy of Queen Philippa, the wife of Edward III., from Westminster Abbey, belonging to the last half of the 14th century. Beyond this again, will be noticed the effigy from Salisbury Cathedral, of Bishop Poer, who died in 1228, one of the earliest monumental statues in England. In front of the façade of the French Mediæval Court, will be found several pieces of Gothic sculpture of the early period of the Pointed style, from Chartres Cathedral; on the right of the entrance from the Nave are placed the busts of Henry II. and Diana of Poictiers, Henry III., Bayard and Louis XII., and nearer to the Nave will be seen the Virgin “de Trumeau,” from Notre Dame, at Paris; and a fine picturesque bronze statue of a knight from the monument of Maximilian, of Innspruck, in the Austrian Tyrol, a remarkable work of art, executed by native artists in the early part of the 16th century. Close to this is placed the fine bronze statue of Albert of Bavaria, from the tomb of Lewis of Bavaria, at Munich, remarkable as serving to illustrate the very rich and characteristic costume of the close of the 16th century. Opposite to it is the very fine St. George, by Donatello, from Florence, one of the master-pieces of that celebrated sculptor, whilst another Innspruck statue occupies a position nearer the Nave. Advancing onwards, still in front of the Renaissance Court,[I-121] we recognise amongst the busts, those of Francis I., Sully, and Henry IV. of France, Shakspeare, Machiavelli, Ben Jonson, Cosmo de’ Medici, and Lord Bacon. The bronze statues on each side of the path are from the Tartarughe fountain, at Rome, the extreme figure being the celebrated Bacchus, by Michael Angelo. Amongst the works of Italian art placed in front of the Italian Court, we remark the Bacchus by Sansovino, from Florence, the Triton from the gardens of the Doria palace, Genoa, the Tartarughe statues from Rome, and at the angle, in front of the Italian vestibule, the beautiful statue of Mercury, by John of Bologna, a chef-d’œuvre of the 16th century school. Among the busts will be remarked those of Raffaelle and Michael Angelo, Inigo Jones, Mazarin, Richelieu, Charles I., and other celebrities of the Renaissance period.

A little further on in front of the Court of Monuments of Art, we remark two statues of Perseus; one by Cellini, and the other by Canova. That by Cellini is characterised by a grandeur of conception and power of execution, which place his name among those of the greatest sculptors of his day. Cellini’s description of the casting of this statue is, in the highest degree, interesting. Not having sufficient metal to complete it, he threw into the furnace his metal dishes and porringers, amounting to upwards of two hundred; after offering up a prayer to heaven in company with his workmen, he uncovered his statue and found it thoroughly cast, with the exception of one foot. The plaster cast in the Crystal Palace is, we believe, the only one in the world, and was obtained through the liberality of the Duke of Sutherland, the owner of the only bronze cast of the original, which stands in the grand square at Florence.

We now cross the Central Transept, still keeping to the left hand or garden side of the Nave. At the angle of the Transept will be found the Concert Room, for the special performance of vocal, chamber, and classical music. The room is quadrangular, but open towards the Nave, and on three sides is surrounded by galleries. The space appropriated to visitors on the ground floor, and which is fitted with seats, is 96 feet square, and with the galleries is capable of accommodating about 3000 people. The Orchestra, built on the garden side of the room, will easily accommodate 60 performers.

Around the outside of the Concert Room will be found many most interesting busts belonging to the Portrait Gallery, mostly of the illustrious men and women of France. Amongst them we remark Jean Goujon (196), Félibien (203), Rachel (216), Corneille (218),[I-122] Lafontaine (220 a), Molière (221), Racine (225), Voltaire (233), Le Sage (230), Buffon (245), Cuvier (256), Bayard (257), Gaston (258), Coligny (260), Turenne (266), Massena (279), Ney (283); busts of nearly all the generals and statesmen of the Consulate and Empire, and of the leading men of the Republic of 1848; three busts of Napoleon Buonaparte, which may be advantageously compared together, and the present Emperor Louis Napoleon (312). Close to this compartment is one of Mr. Rimmel’s fountains, executed from a design by Mr. John Thomas. The crystal basin, Parian marble figures, ebony pedestal, and natural flowers, harmonise excellently. Similar scent fountains, designed with great taste by the same artist, and supplied by Mr. Rimmel, will be found in the North and South Transepts.

Quitting the Concert Room, we continue our examination of the statues, which extend along this side of the Nave. The most notable of the succeeding subjects are the Prodigal Son (145), by San Giorgio; David (147), by Magni, an artist whose studies of every-day life are remarkable for their truth to nature; Cain (99), by Etex; Geefs’s Malibran (108); a colossal group of the Murder of the Innocents (142); an Italian Mower; the Horse and Dead Knight (46), by Lough; Sampson, by Legrew; and also the charming statues of Eve, and Eve Listening, by Bailey. On our way towards the Queen’s screen we pass several works of statuary art, amongst which may be noticed, A Faun with Cymbals (66), by R. Westmacott, R.A., and a David (67*), by the same sculptor; an Ancient Briton as a Scout, and the Massacre of the Innocents, by J. E. Adams, and a fine statue of Erato (174), by Launitz.


THE BOTANY OF THE PALACE.

However beautiful and perfect may be the works of art by which we are surrounded, there is a Hand whose meanest work outvies them all, yet whose silent and beneficent wonders are going on around us. To the unobservant man nature is silent. He knows not the rich treasure he neglects, and the eloquent teachings, the more loved the more they are known, which he never listens to. Of all nature’s developments, perhaps not one is so universal or so important as that of which we are now going to treat. The character, the habits, the civilisation, almost the very[I-123] existence of men is determined by the vegetation of the countries they inhabit, and where no vegetation is, the land is desert indeed. Our kindliest memories of foreign lands, and of our own country’s beautiful spots, are inseparably linked with the foliage and verdure which adorns the rugged earth, and is, as it were, the handwriting of the Almighty’s blessing and distinction. It is not the burning sun alone that makes the tropical island appear so different to our own: there seems a wider difference still, between the rank and tangled luxuriance of the tropical forest, and the stately glades of England—or between the prodigal wealth of almost wild fertility, and the field surrounded by hedgerows, whose riches are the reward of patient and necessary cultivation. There is indeed beautiful instruction in all nature’s phases and mysteries, but none more beautiful than that conveyed by plants and flowers. The greatest minds have turned their strength to the culture of the field or garden, and the gentlest and best hearts seem to be the most fitting home for the love of beauty so pure and true.

It is impossible in the pages of this book to do more than point out some of the most interesting and beautiful of the specimens which constitute the rich botanical collection of the Crystal Palace. Amongst such a multitude of examples many of the greatest interest necessarily find no mention here, but they are not the less to be observed. The smallest and most unobtrusive plant may be the most worthy of notice, and in its relations with human life the most deadly, the most medicinal, or the most grateful. The history and attributes of almost every one will lead us on a course fraught with knowledge, and a pleasure which study unveils more and more.

The Borders, which range along each side of the Nave fronting the façades of the various Courts, are all numbered, as will be seen by a reference to the plan. The South and North Transepts are filled with trees and flowers. The divisions of the Natural History Illustrations are also filled with examples to represent, as much as possible, the flora of the various countries. We propose to accompany the visitor from Border No. 1, close to the Screen of Kings and Queens, and following the arrangement of the Borders up this, the South-Western side of the Palace, to return on the opposite or garden side.

In Border No. 1, we first notice an example of one of the finest and largest timber trees of New Zealand, the native name of which is the Kakaterre (Dacrydium taxifolium). This is a tree of giant growth. Just beyond the statue of Chatham are two[I-124] specimens of the Melaleuca, some of the species of which furnish the Australian aborigines with a kind of tea; this beautiful species of tree is almost exclusively peculiar to Australia, and contributes much to form the character of Australian vegetation. Against the Column, and adjacent in this Border, are also several fine plants, some of which are 30 feet high, of the Australian Acacia (Acacia foliosa). The early foliage of this tree, it is interesting to observe, is characterised by a larger development than it assumes with more advanced growth; these differences can easily be distinguished in the plants before us, which may be identified by their light-coloured and elegant leaves. Another large Acacia (Melanoxylon) is near the angle of the South Transept, and on the left of it perhaps one of the finest specimens of the Rhododendron arboreum from Nepaul. This magnificent tree was one of the first of this species sent out after its introduction into this country, and when only five inches high was purchased for five guineas. It bears rich scarlet flowers.

Turning now into the South Transept, one of the first specimens we notice, in Border No. 3, is a noble tree of the Camellia reticulata, perhaps the finest kind ever introduced of this magnificent flower; it is indigenous to China and Japan. Beyond this, as we pass from left to right down the Transept, is a tree of the New Zealand Spruce (Dacrydium cupressimum), whose delicate form and drooping foliage claim admiration; and almost behind this is a most interesting specimen of the Paraguay Tea Tree (Ilex Paraguayensis). The Maté, a curious Brazilian tea, is obtained from the prepared leaves of this plant. Immediately succeeding this in our course is the Camphor-tree (Cinnamomum camphora), from which the valuable drug of commerce is procured. This specimen is from China, but it also grows in Japan. Passing on a few steps, we find the Ceratonia Siliqua. This plant is eminently curious, as being that which bears the “locusts” on which it is presumed St. John fed, as mentioned in the Gospel; it has thus obtained the name of “St. John’s Bread.” The last great tree in this border is a magnificent Norfolk Island Pine (Araucaria excelsa), 40 feet high. This stately and beautiful tree grows in its own country to the height of 200 feet. On the other side of the Transept, in Border No. 5, which we now proceed to inspect, will be found a corresponding specimen, and many of the same kinds of plants as those we have just examined; but we may notice here, almost in the centre, a noble specimen of a beautiful new Fuchsia, called Dominiana; behind which may be seen the[I-125] largest tree in this country of that species of Camellia known as “Lady Hume’s Blush.” In the centre of the Transept is placed a gigantic specimen of the American Aloe, which, for its magnificence of growth, is perhaps unequalled in this country. This specimen was brought in 1828, a small plant, from the ruins of the palace of the Cæsars at Rome, where it grew wild.

We now resume our tour up the Nave with Border No. 7. At this corner stands a most elegant and beautiful tree, the Acacia dealbata, a native of New Holand. This tree is perhaps the finest of its kind to be found in the kingdom. In the centre of this border rises a rare specimen of the Yucca stricta; its beautifully variegated and lance-shaped leaves constitute it a prominent object easy of recognition. Close to the column, a little further on, is the Aralia trifoliata, from New Zealand; a plant which possesses the peculiarity of shortening its curiously-formed leaf as its age advances.

Surrounding the Pompeian Court at the back of these borders, are specimens of the Azalea. On either side of the entrance to this Court are luxuriant Orange-trees, and near to them some Citron-trees.

In Border 7 a, at which we have now arrived, is a beautiful tree, called the Araucaria Bidwillii, the rigid foliage of which much resembles the imbricated Pine of Chili. The aborigines of Australia make a favourite article of food of the seeds from the large cones of this tree, which attain the size of a child’s head. But one of the most prominent of the trees in this compartment stands a little nearer the column. This is the Bottle-Brush plant of Australia, and when in bloom with its red bosses of flowers, from which it has been named, it bears a very curious appearance. The Japan Cedar (Cryptomeria japonica) is also here. This tree was brought from China by Mr. Fortune. The Borders opposite the Sheffield Court are filled with many rare and beautiful specimens; but those Borders which are close to the glass façade contain some plants of the highest curiosity and beauty. In the centre of the left-hand Border will be found the Socotrine Aloe, from which is procured the medicine which bears its name. On either side of the entrance to the Court are two magnificent specimens of the Tree Ferns of Tasmania and Australia, whose luxuriant crowns make them objects of the highest beauty. These plants are without doubt the finest specimens of this luxuriant Fern in this country. At either extremity of the Borders are most interesting specimens of Bromeliaceous[I-126] plants, with which, till lately, the pine-apple was classed. The Fuchsias here are upwards of 40 feet high.

Returning now to the Nave, we find in Border No. 9 a, a beautiful silver-leaved Acacia, grouped with other plants of the greatest interest, amongst which may be pointed out a New Zealand Palm (Areca sapida), and an Agnostis sinuatis, recognisable by its peculiar leaf. At the end of this Border will also be found the Botany Bay Fig-tree, and the Olea Europea, from which the olive-oil of Commerce is procured. The succeeding Borders Nos. 11 and 11 a, opposite the Birmingham Court, contain selections of most valuable and interesting plants, similar in many respects to those we have described; amongst them may be noticed the Freycinetia Baueriani from Norfolk Island. Close to the entrance of the Birmingham Court, in Border 11 b, is the new and beautiful Mitraria Coccinea from South America.

We now arrive at Border No. 13, opposite the Stationery Court, the largest and most prominent tree in which is the Eucalyptus globulosus, or Blue Gum-tree of Australia. This plant has already attained the height of 80 feet, and is but five years’ growth. In its natural state this is a Mammoth tree. Mr. Backhouse, the traveller, has described one of this kind, which was nearly as high as the great Water Towers at the Crystal Palace, being 250 feet, with a circumference at the base of 70 feet. But this was most probably an exceptional specimen. They are most frequently not more than half that size. The common Myrtle is the type of the class to which this tree belongs; but it is the largest of the myrtaceous plants. The Eucalypti constitute four-fifths of the forests of New Holland. Gum is procured from this tree in large quantities.

Round the column, in the corner of Border No. 13 a, is a fine plant of the Cape Gooseberry, which bears a beautifully acid fruit, much esteemed by some. The fruit is curiously inclosed in an inflated capsule. Although called the Cape Gooseberry, this plant is originally from Australia. In this Border are various specimens of New Zealand and Australian plants. The remaining Border, before we enter the Central Transept, is filled mostly with a collection of large Acacia. Having crossed the Central Transept, as we proceed toward Border No. 19, which is in front of the Egyptian Court, we pass Border No. 17, which is filled with Eucalypti, as that in a corresponding position on the other side of the Transept is with Acaciæ.

[I-127]

In Borders Nos. 19 and 19 a, will be found large specimens of the Sparmannia Africana, an old conservatory favourite, indigenous to the Cape. It was named in honour of Dr. Sparman, the Swedish physician and botanist, who accompanied Captain Cook in his second voyage round the world. These fine trees were presented by Her Majesty the Queen. Close to the Sparmannia is a large India-Rubber-tree, the sap of which constitutes the article now so extensively known and used. It will easily be recognised by its broad, handsome, and glossy leaves. This tree belongs to the Fig tribe, all kinds of which bear sap with more or less the same properties. A plant close to this is the Loquat, or Japan Medlar, which is curious from its peculiarity of shedding its bark. A little nearer to the Court will be found a most elegant plant of the Grass tribe, the Himalayan Bamboo, a small and delicate cane, which is found high up the Himalayas, and consequently flourishes in a lower degree of temperature than the common tropical Bamboo. The remaining examples to be noticed in these Borders are amongst the most curious in the collection. The first is the Rhipidodendron plicatile, so named from the fan-like growth of the leaves. The common lily is the type of the order to which this plant belongs. The next are the curious African plants, like rough blocks of wood, which are called “Elephant’s Foot.” These remarkable plants are calculated as being 3000 years old: they were imported from the Cape of Good Hope. The Casuarina stricta, of Australia, is also here, with its curiously jointed foliage. The wood of this plant, from its peculiar conformation and colour, has gained for the tree the name of Beef-wood. In its native state it attains a great size. Several kinds of the temperate Palms, Ferns, and Aloes are also arranged in this position.

The most noticeable tree in Border No. 21, is a luxuriant specimen of the Moreton Bay Pine (Araucaria Cunninghamii). In the succeeding Border, No. 21 a, is another of the Eucalypti, the leaves of which, it is curious to remark, change from round to lance-shaped as the tree advances in growth; and in the further corner is the Geitonoplesium, a trailing plant of the same order as the common Asparagus. In Border No. 23 a, just opposite the column, is the Peppermint tree, of Australia (Epyclautus piperata).

We now pass through the division into the Tropical end of the building, where necessarily many of the most interesting and beautiful of trees and plants are congregated. Most of the examples we have hitherto examined have borne, more or less,[I-128] some resemblance, if not in detail yet in character, to the vegetation which we everywhere see around us in England. But here we notice a new form, reputed to surpass them all, and at least very rich in those glories which have won its repute,—we mean the Palms. This form of vegetation gives more distinctive character to tropical and eastern scenery, than any other natural feature. The stem often rising to the altitude of 100 feet, in a stately column, crowned with a capital of beautiful leaves, radiating from its summit, or gracefully drooping; sometimes of a feathery form, sometimes fan-shaped of broader growth; some of dark, shining verdure, and others of a delicate silvery aspect: they constitute one of the most beautiful families of the vegetable kingdom. The leaves of some kinds are gigantic; those of the Manicaria saccifera, of Brazil, are 20 feet in length, and six feet in breadth. Humboldt has described the Wax Palm of the Cordilleras growing to the majestic height of 180 feet. Nearly all varieties are most prolific in fruit, and with most, scarcely a portion but what is applied to some use by the natives of the countries they inhabit. Their great importance, then, to many of the human family entitles them to particular study and attention, beyond the brief mention we can give them here; and the pleasant task will be well repaid.

The Borders in the Tropical Division are numbered distinctively from the other part of the building, commencing with Border No. 1, in which is a plant of the India-Rubber-tree, which is probably the largest of its kind in the building, and nearer to the corner is a specimen of the Wine Palm (Caryota Urens). On the side opposite the Court will be found the silk Cotton-tree of India (Bombax Ceiba), and, further round, the Sandbox-tree of India (Hernandia Sonora). In Border No. 3, which corresponds in position on the other side of the Alhambra Court, is an Egyptian Date Palm, and also a Wax Palm from South America. In Border No. 5 we notice a group of Musæ, amongst which beautiful class of plants are the Banana and Plantain, perhaps the commonest and most nutritious of tropical fruits. Hemp and flax are obtained from the fibrous leaves, which are also used for thatching and basket-making. A sort of wine is made from the juice of the trunk. The fruit is eaten both raw and cooked, while the young shoots are consumed as vegetables. In the centre of this Border, which runs along parallel with the Alhambra Court, is one of the species of Sago (Saguerus sacchifera); another kind (Cycas revoluta) is near the column. The Indians as well as Chinese procure[I-129] Sago from this tree. The Sago is prepared from the pith of the trunk, selected however at a proper season; it is made into bread by the natives who prepare it, and from this it has received its name, which in the language of the Papuas means bread. It is more prolific in nutritious matter than perhaps any agricultural plant, a single trunk sometimes yielding as much as 600lbs. of Sago. Round these Sago Palms is arranged a collection of various specimens of the Fig tribe (Ficus) from South America. Between the centre columns is a plant of the Jatropha Manihot, whose root is one of the most important articles of food in the tropics; it is made into bread called Cazavi or Cassava, which is very nutritious; and Tapioca is also obtained from it. A very poisonous juice has first to be extracted by pressure, or eliminated by heat, before the root can be prepared for food. In the corner of the Border we are now inspecting is another tree, from which also bread is made; this is the Caffre Bread-tree (Encephalortus.) The natives remove the bark and make flour from the trunk.

We may now turn into the Avenue of Sphinxes, between which is arranged a rich collection of beautiful Palms—Cocos, Date-Palms, Wine-Palms, Cabbage-Palms, and many other varieties. At the corner as we turn again into the Nave stands the Cocos plumosa, a peculiarly beautiful specimen, which may be remembered as having adorned the Great Exhibition in 1851.

We now arrive at Borders No. 7 and 9, opposite the Assyrian Court. In this position is arranged a selection of tropical fruit plants, and of those bearing articles of food. It will not be necessary to do much more than enumerate most of these, as their produce is so well known, and forms the daily or occasional food of most. At this end of the Border will be found the Tamarind-tree, the Pepper-plant, the Sea-side Grape, from the West Indies, the Coffee-tree, the Chili-Capsicum, the fruit of which makes a delicious pickle, the Jujube, the Assam Tea-plant, so extensively cultivated by the East India Company, the Cow-tree of the Caraccas, and, advancing up the front of the Border, two kinds of Ginger, the common and a spurious kind, the Rose-apple of the East Indies, the Avocado Pear, and the Peruvian Custard-apple, at the back of which is the Castor-oil plant, the Jack-tree, and the Malabar Nut. We continue the collection with the Star-apple of the West Indies, the Madagascar Nutmeg, the Allspice, and the Cassia Bark. We here meet a fine group of fruiting Bananas, beyond which we shall notice with interest the Indian Mimusops, and the plant from which our common Black Pepper is derived (Piper nigrum). The[I-130] Dimocarpus Longan, and the Chinese Litchi-Fruit tree, are near, as well as a most interesting plant called the Ordeal-tree, from Madagascar. The fruit is a sort of bean, and deadly poisonous. When the priests in Madagascar wish to rid themselves of a state enemy, or to remove a rich man for the sake of his goods, recourse is had to some pretence, and an ordeal is instituted which consists in eating the fruit of this tree, harmless of course to the innocent, but to the guilty, poisonous. The crafty priests carry out their views by substituting an innocuous berry similar in appearance, excepting where they wish the pretended guilt to manifest itself with death.

The arrangement of the corresponding Border, No. 9, is very similar to that which we now quit, but we shall find here in addition, the Cinnamon-tree, the Peruvian Bark, the Bohea Tea-tree, the leaves of which we daily consume as plain black tea, another kind of Allspice (Myrtus pimenta longifolia), the Guava of West India, a most delicious and well-known fruit, the Sapodilla Plum, and the Chinese Paper Plant. In the small Border near the aviary, which terminates the series on this side, is an interesting specimen called the Looking Glass Plant, from the silvery appearance of the underside of the leaf. Here also is a magnificent example of the Black Bamboo, the canes of which are used for a great variety of useful purposes, and for ornament as well. The rapid growth of this plant is astounding, the shoots of the present specimen having often increased in height at the rate of more than 12 inches daily.

In the centre of this, the northern extremity of the Nave, rises one of the finest specimens to be met with in this country of the noble Sabal Palmetto. This tree represents the extensive group of Palms, having palmate or fan-shaped leaves. A curious fibre hangs in graceful ringlets from the foliage. On the right hand of this splendid tree, we commence our return down the garden side of the Nave with Border No. 10. In the corner stands a large group of Bamboos. This species attains a much greater size than its cogener on the other side: in its native wilds the stems often exceed the height of 100 feet, the growth of a single season. The stems seldom grow higher after the first year, but become densely clothed with delicate leafy branches. This may almost be called the domestic Bamboo, as it furnishes material for an almost infinite variety of domestic articles. In this Border are two other large varieties of Palm. The first Corypha sylvestris, from New Holland, is, like the Sabal Palmetto, a Fan-Palm. The Coryphæ are so[I-131] called from Koryphe, the summit, as the leaves branch only from the top of the trunk, making a very stately and beautiful form. This tree surmounts a group of root-work, upon which are planted rare Orchids, Ferns, and a variety of other beautiful exotics. The large Borders on this side of the Tropical Department are mostly made in this picturesque manner. If we now pass on we find close to the column a large Coffee-tree, from Yemen, which in the autumn bears its interesting berries. Close to this is a lofty Screw Pine (Pandanus odoratissimus) from the East Indies. The flowers of this tree are so deliciously fragrant that in Egypt and Arabia it is often cultivated for their sake; the fruit somewhat resembles the pine-apple, but is not so good. In the South Sea Islands, where this species grows in great plenty, the natives convert its leaves and products into a variety of uses and ornaments. It has received its name from the screw-like arrangement of its foliage, and not from the appearance of the trunk. It will be noticed that the roots are partially above ground, and constitute a kind of support which strengthens according to the peculiarities of position in which the tree grows. The roots from some of the Pandani descend thus, like tightly strained cords, from a height of 12 or 15 feet. The great Palm-tree in the centre of this bed is upwards of 40 feet high. It is from the Isle of Bourbon (Latania Borbonica), and once formed part of the renowned collection at Fontainebleau of the Empress Josephine. We are now standing under the luxuriant branches of the Ficus Roxburgii, a curious Fig-tree which bears its fine fruit on the stem close to the ground. Further back, on the left of the great Palm, is a Mahogany-tree from Honduras, and a fine fruit-bearing specimen, 14 feet high, of the delicious Guava. But it is impossible here to particularise the rich contents of these Borders; as in our progress through the whole collection we are forced almost casually to choose from so many objects of interest; but it is hoped that the mention only of these may awake an interest which investigation will increase.

At the back of the Border just mentioned, is arranged a large collection of exotic plants in pots, amongst which will be found the Gamboge tree, and the Bread Fruit tree, from the South Sea Islands. Also the Strychnine plant (Strychnos Nux vomica), the nuts of which contain the deadly poison of that name.

At the corner of the succeeding Border, No. 8, next the garden, is one of the most valuable and rare specimens in the kingdom, of the beautiful Araucaria Cookii from New Caledonia. The soft and luxuriant foliage of this tree, and the surpassing beauty of its[I-132] form, every branch, with its rich pendulous load falling most symmetrically in a regular gradation of graceful positions, constitute it one of the most beautiful of its kind in the whole vegetable kingdom. Numerous specimens of Palms and of the beautiful flowering plants and shrubs of the Tropics adorn this division. A splendid example of the Gum Dragon tree of Teneriffe (Dracæna Draco), the same kind as the famous tree of Oratova; also a New Holland Palm (Seaforthia robusta), are found here. Here also is the Traveller’s tree from Madagascar, the grateful shade it affords having gained it its name. The Palm bearing the highest position in this bed is the Sabal Blackburnianum, the leaves of which are amongst the largest of their kind. Against the column at the south-west corner of the bed, in the Nave, hangs the curious Elk’s Horn Fern (Platycerum grande), from Australia. This parasite abounds on the rocks and the bark of the large trees in the forests of Moreton Bay.

Before quitting the Tropical Department we will now continue our inspection of the Borders on the east side of the Nave. It is unnecessary to particularise the plants in these Borders, as they have been purposely arranged in as much uniformity as possible with the corresponding collection on the other side. Opposite the Byzantine Court may however be noticed four funereal Cypresses from the Vale of Tombs, in North China, and in Border No. 4 a graceful plant of the Fig tribe (Ficus Pumila) from China, and the handsome New Zealand Laurel (Carynocarpus lævigatus). On the northern side of the South Transept, in Border No. 6, is the Nepaul Berbery (Berberis Nepaulensis). This specimen is remarkable for its height and beauty of foliage. It is a newly introduced species. At the back of this tree will also be found a fine example of the New Zealand Flax (Phormium tenax). In Border No. 6, at the end of the Transept, is the Brazilian Pine (Araucaria Braziliensis). A remarkable specimen of the Australian Fig tree (Ficus macrophylla), is in Border No. 2.

In the Natural History Department the most noticeable plants have been selected to represent as far as it was possible the flora of the respective countries. Thus, in the Australian division the Araucaria, Tree Ferns, and Eucalypti, or Gum Trees, are most conspicuous. The other divisions contain many most interesting plants, such as the Tea trees, which are all arranged geographically in their respective positions, and can be readily identified. In the division on the western side of the Nave, many of the beautiful plants are very well known, though indigenous to South, Central,[I-133] or North America. The Fuchsias, Cacti, Yuccas, Aloes, and some Araucariæ, are amongst these.

It remains now to speak of the splendid collection of Orange and Pomegranate trees which form the noble vista of the Nave, and are principal features amongst the beauties of the Crystal Palace. Some of these are four hundred years old. They once belonged to the Orleans family, and in the latter times of the late dynasty in France were collected by Louis Philippe to decorate his favourite château at Neuilly. Shortly after the accession of the Emperor Napoleon, the property of the Orleans family was sold by public auction, and these matchless natural productions were then purchased by Sir Joseph Paxton for the Crystal Palace Company; there are 110 of these trees in all.

The hanging baskets, which form so delightful an array high up on either side of the Nave, and around each Transept, cannot fail to attract the notice of the visitor. The creeping plants, which cover the columns and cross-ties on each side of the walks, are of great luxuriance and beauty, while at the corner of the South Transept will be noticed a gigantic specimen of the lovely Westeria which is rapidly covering the wide span of the Nave at this part. This was one of the first trees of the kind which was introduced into this country, and it thrives here exceedingly well.

It must have been apparent to the reader how very cursory has been the notice given to the most interesting plants and trees in these pages, and how few of the many specimens have been referred to. Such was a necessity. Yet it is hoped that as the Crystal Palace calls all the aids of Art to the teachings which it conveys, so Nature (a greater teacher still) may side by side yield her lesson too. To the lover of the beautiful it needs small prompting to explore her mysteries, and the rich expression she bears of that he seeks.

Mr. George Eyles is the chief superintendent of the whole Interior Garden.


THE GALLERIES.
THEIR FINE ART, AND OTHER COLLECTIONS.

The main Galleries around the Central Transept, and to the south with the exception of that on the western side toward the road, are devoted to the exhibition and sale of articles of industry. The[I-134] Picture Gallery is in the gallery which runs over the Stationery Court and the series on that side. The galleries on the eastern side next the garden, with the South Gallery at the end of the building, are devoted to the exhibition of those articles which are for sale on the spot. Amongst these will be found precious metals and jewellery, miscellaneous ornaments, perfumery, toys, and other articles both of use and luxury. The gallery presents a pleasing and animated appearance, the stalls are fitted up on an elegant and uniform plan, and the traffic at them is very considerable. At the western end of the Great Transept the gallery is allotted for the exhibition of manufactured articles, which are not for sale on the spot. The collection is of a miscellaneous, though most interesting character. On the first gallery above this will be found a most interesting collection of drawings and models for the fountains in the Crystal Palace, which have been furnished by Mr. M. D. Wyatt, Mr. Owen Jones (the figures on whose designs were modelled by Signor Monti), Mr. John Thomas, Mr. John Bell, Baron Marochetti, Baron Launitz, and Mr. Hector Horreau. The models display much artistic treatment and inventive fancy.

If we now descend the spiral staircase to the main gallery, and proceed through the industrial exhibition to the right-hand we shall enter the main gallery, on this side, running toward the south end. Here is formed

THE PICTURE GALLERY.

The first portion which we enter, before reaching that part of the gallery immediately over the Stationery Court, is appropriated to the exhibition of photographic pictures both British and foreign, several important water-colour pictures by the most eminent members of the two Societies, and a selection of remarkable pastel pictures.

The long gallery which stretches from this point to the south end of the building has been properly fitted for the exhibition of pictures. The glass wall toward the road has been covered, and a partition wall erected on the opposite side over the courts, excepting over the passage ways between the courts. The light comes from the roof with duly modified intensity, and the effect on the pictures is singularly beneficial and clear. Thus a magnificent gallery of pictures is formed, sweeping in one uninterrupted line, from the centre to the end of the building, or for a distance of 700 feet. The effect is very grand and at the same time beautiful,[I-135] while the convenience and ample space will be noticed as a contrast to many picture galleries. There are upwards of 900 pictures of the British, French, Dutch, Belgian, and German Schools, being all by living artists, and for sale; the titles, prices, and Painters’ names are affixed to each picture.

As we near the south end we shall notice some very fine examples of the ancient masters, several of them being from the galleries of Marshal Soult, and the Lucca, Orleans and other celebrated collections. The specimens of the Gothic art of Flanders and Germany are very remarkable, and many of the early Italian pictures most worthy of particular notice. The early Gothic collection is one of the finest ever seen in England, and is only surpassed by the Boisserée and Ertborn galleries of Munich and Antwerp. These curious works keep the full lustre of their original colouring, and in this respect form a great distinction to many modern works. Mr. C. W. Wass is intrusted with the management of this department.

We may now proceed through the South Gallery and the Industrial Bazaar on the other side to the garden end of the Great Transept, where, in the gallery above, which we may reach by the spiral staircase, we shall find one of the most interesting departments in the Palace, as it is one of the most instructive—

THE INDUSTRIAL MUSEUM AND TECHNOLOGICAL COLLECTION.

The object of this collection is to convey by means of actual illustration that instruction in the modes and various stages of industrial manufactures, and of the arts, which cannot be so accurately gained from books or descriptions; as well as, by the same plan, to trace the original plants, ores, or annuals, from which the material manufactured is derived, and to illustrate by products the several stages of its manufacture. This plan of arrangement therefore escapes the monotony which is usual in ordinary museum collections, and will be found equally interesting as instructive. It is not possible in this book to particularise by any long description any of the series comprised in so extensive a collection; it is not therefore attempted, but the leading features and positions of the gallery are indicated to direct the investigation of the visitor himself, who will find very accurate, and in many cases detailed notices appended for his instruction, to the objects themselves.

[I-136]

We enter the gallery by the spiral staircase in the Central Transept Gallery on the garden side of the building, and shall find that division devoted to the minerals, which we will explore first, at the left-hand extremity of the gallery. The vegetable division is naturally the largest, and occupies all the central cases and some portion of the right hand or northern extremity, where the third and last—the animal division—is situated. A plan detailing plainly this arrangement will be found suspended against the first case on the left as we enter. The first cases of the mineral division, which are those in front of the gallery on the left-hand, are devoted to what are commonly termed the non-metallic elements and their most important compounds, that is to say, those compounds in which the non-metallic element is the one technically important, arranged in the order in which they are generally treated in works on Chemistry. It may be necessary here to observe, that in order to avoid needless repetition in the classification of the chemical compounds, this plan has been adopted throughout. Thus, for instance, Bleaching Powder, which might be arranged under the heads of both its constituents, Chlorine and Lime, as it is used only on account of the Chlorine, is classified under that element. In these cases we find varieties of Carbon, Products of the Distillation of Coal, Peat, &c. (Naphtha, Ammoniacal Salts, Paraffin, Dyes, &c.), and a beautiful series illustrating the manufacture of Sulphur. Succeeding these are shown the varieties of Silica, under which head a rich case of English Agates from the Sussex coasts must be particularly noticed. The Silicates embrace the different manufactures of glass, amongst which are some beautiful artificial gems. Etching upon glass is also illustrated here. We now come to the Alkaline Metals,—Potassium, Sodium, and their salts. The next are the minerals of the Alkaline earths, Barium, Strontium, Calcium (Lime), and Magnesium, and their sundry preparations. The cements come under this division. The next cases are devoted to Aluminous products, and in this class will be found complete illustrations of one of the most important and interesting of British manufactures—the Ceramic. The series commences with a collection of the clays from different formations, and the process by which the Devon, Dorset, and Cornish clays, which are those used in earthenware and porcelain manufactures, are fashioned, decorated, and finished, is shown together with the materials used for glazes. The preparations of Alum by different processes, Emery, &c. are also in this division.

[I-137]

We now come to one of the most important series in the collection, and one in which the greatness and importance of this country is most emphatically illustrated. These are the Metals, properly so called. The arrangement adopted with these is first to show the ores from each district, next the mode of smelting those ores, the metal procured, and generally the manufacture of the metal. The Iron, of course, assumes the first importance. The Pig Iron is the first state in which the metal is obtained; it is then submitted to the refining and “puddling” processes; then rolled into bars, nails, and plates, or drawn into wire; we then see it converted into steel, by various processes including Bessemer’s, and this leads us to the manufactures of Sheffield. The series, of course, includes Copper, Zinc, Tin, Antimony, Gold, Silver, &c.

The central stands at this end of the gallery are occupied with a collection of the coals and building stones of England and Scotland, with a set of maps indicating the geological formation from which each is obtained.

The cases down the centre of the gallery are devoted to the Vegetable Kingdom. These are arranged as follows:—Products used as food, in the arts, and in manufactures, and in medicine. In the first class is a collection of British agricultural produce, made by Messrs. Peter Lawson & Son, of Edinburgh. The Cereals and Grasses will be found arranged in the upright cases, facing the garden and on the octagonal tables. In the cases beneath are the Roots and Fruits modelled in wax. The various growths and manufactures of Tobacco, of Hops, Spices, and aromatic Seeds, as well as Cocoa, Teas, Coffee, and their substitutes, and the articles used as food, should be specially noticed, being most completely illustrated. It will be noticed here, and also with most of the vegetable specimens in this collection, that reference is made upon the explanatory cards, which are in all cases affixed to specimens, to the fact that growing trees and plants of the various kinds may be found in the beds downstairs; and this will be found specially alluded to where the Botanical collection is described; it should be carefully borne in mind, and will, on being followed by inspection, yield an ample repayment of interest. We should now return down the side of the cases and commence our inspection of the other side, proceeding from the south end. We shall find the first set of cases illustrating the materia medica. The upper parts contain the plants, while in the lower divisions the drugs, seeds, and applied parts are shown. Next come the cork and other manufactures, including paper and paper-staining, those[I-138] of Fats and Oils, India Rubber and Gutta Percha, with their various applications, Resins, Dyes and Dye-woods, these being further illustrated as with the materia medica by the plants from which they are procured. The illustrations of the Cotton, Flax, Hemp, the Pine Apple, China Grass and other fibres which are manufactured, will, with some other interesting articles in the cases opposite, conclude our rapid survey of the vegetable division, although we must not omit to notice a rich collection of the various woods, British, foreign, and Colonial, especially the large polished sections from Tasmania, collected and presented by the Royal Society of the Colony, arranged on stands at the North End.

The northern extremity of the gallery is occupied with the last division of the Museum—the Animal. Here will be found Furs of all kinds. Wools of British and imported varieties, Woollen and Worsted manufactures, Silk, illustrations of the preparation of different kinds of Leather, Feathers, Horn, Bone, and Tortoiseshell manufactures, &c., &c. Specimens of most of the animals from which these articles are derived are arranged in the middle of the division.

The whole Museum has been arranged by Dr. David S. Price, who has care of this department. The collection is constantly increasing, and may be expected before long to assume one of the most important positions amongst the settled features of the Crystal Palace.

In the Main Gallery on the North Eastern side of the Mediæval Court are placed four hundred French and Italian photographs, illustrative of the architectural and sculptural arts of the periods represented by the several Fine Art Courts on this side of the Nave; the photographs being arranged in the order of the courts beneath, and as nearly as possible over those which they serve to illustrate. Here also will be found the main portion of the busts constituting the

PORTRAIT GALLERY,

One of the most ennobling and instructive as well as interesting of the collections in the Crystal Palace. These busts give us the speechless, yet how eloquent, countenances of the great ones who have moved the current of the world’s life, from early times till the present moment. Each one of these busts is inscribed with the name and dates of whomever it represents; but for a notice[I-139] of the lives and general information as to the claims to renown of the several notabilities, we refer the visitor to the Handbook of the Portrait Gallery. A fine collection of small works of art, consisting of statuettes, mediæval pottery and wood-work, church vessels, old English seals, medals, and architectural ornaments, exemplifying the various styles from the Byzantine down to the Italian, is also arranged here.

In the North-east Galleries, on the garden side of the North Transept, is a Naval Museum, which is intended to illustrate the naval architecture of all countries. Here will be seen models of boats and ships, from the first rude canoe to the patent collapsing boats; and from the huge high-pooped ship of war of the time of Henry the Eighth, and Philip of Spain, to the long screw steamer of the present day; or the gigantic paddle and screw “Leviathan,” lately launched at Millwall, together with various inventions for marine purposes. In the first gallery, at the extreme north end of the Nave, a collection is exhibited of engineering and architectural models, including those of bridges, docks, viaducts, churches, and other structures.

Entering the gallery by the stairs from the garden end of the North Transept, one of the first models we meet is in illustration of Mr. Fergusson’s System of Fortification. The great principle of this system is the power of placing in position on a fortified place a greater number of guns than the enemy can bring to bear upon any point of it. For this purpose, Mr. Fergusson proposes to erect simple mounds of earth, bearing two or three tiers of guns, where the place is large and the curve flat, and four or even five tiers, where the space is confined. The model represents a small confined space surrounded by five tiers; ensuring in his opinion, a superiority of fire over anything that can be brought against it. Mr. Fergusson proposes to employ wet ditches wherever water is available; but on dry or uneven ground, a ditch of fifty or sixty feet, with a loop-holed wall at the bottom, not less than thirty feet high, thoroughly flanked in every part by musketry and artillery from the small bastions placed at intervals along its fronts. The model represents upon its different faces, suggestions for various methods of arming the ramparts and of flanking defences.

Amongst the various ingenious and beautiful objects in this part of the gallery will be remarked models of the Kieff Suspension Bridge, the original of which is nearly half-a-mile long, over the river Dneiper; the Britannia Tubular Bridge; the Wrought Iron[I-140] Bridge over the Wye, at Chepstow; and one of a similar construction over the river Tamar, at Saltash. Most of these, as also the fine Viaducts, of which many are represented, are due to the giant enterprise which steam traffic raised in our country. There are two crystal models here of the Great Exhibition Palace in Hyde Park; one, the largest, by Mr. Dighton, of London, on the scale of half an inch to the foot, is especially beautiful and complete.

THE INDIAN COURT.

Passing on in this gallery, at the back of the Assyrian Court, we enter a department appropriated as an Indian Court. The first object which we notice is a stand covered on both sides with a fine collection of Indian arms and armour arranged with other objects of interest. On the wall near is ranged a collection of most interesting paintings, lent to the Crystal Palace by the Hon. East India Company. They are copies of some frescoes found on the walls of a series of caverns at Adjunta, in Western India, and were made at the instance of the Indian Government by Captain Gill, of the Madras army. The subjects are scenes in the life of Buddha and of Buddhist saints, and various historical events connected with the rise and progress of the Buddhist religion in India. The date of their execution extends from about the Christian era to the tenth or twelfth century; and in style they closely resemble the contemporary works of painters in Europe, possessing nearly the same amount of artistic merit, and displaying the like absence of chiar’-oscuro, and the same attempt to copy with literal exactness the object represented, excepting where certain conventionalities are apparent. The collection is valuable as affording the means of comparing the state of art in the East with that in the West during the same period.

On the next stand are several Burmese idols and other curious objects, mostly belonging to the religious ceremonial of this people; among these will be noticed some very curious wood-carving; and we must not omit to notice in connection with these things, a very peculiar pagoda, or idol shrine, which stands close by. Placed along the floor are some very curious musical instruments, drums or tom-toms of various sizes, some instruments formed of pieces of hard wood, which on being struck sound the notes, and some having metal vessels, which produce a peculiar tone. Further on is a case filled with magnificently embroidered[I-141] garments, saddle-cloths, &c., which display that craving after splendour which appears to be part of Oriental nature. In this case are also some other choice articles of very great beauty and value, amongst which may be pointed out a small Japanese cabinet; a hookah, a dagger and sheath wrought with silver, a pair of slippers embroidered with pearls, and other rare objects from Persia. Here also are some specimens of Chinese work. On the right of this case is a chamber devoted to Chinese curiosities. The walls are hung with paintings, representing the manufacturing and other industrial occupations of this truly curious people. In the centre is the figure of a Mandarin in his richly embroidered dress. Quitting this chamber the visitor will remark on either side of him some fine models of Indian Mosques, carved in wood, which will amply repay a careful inspection. They belong to the close of the 15th century. After examining the curious model of the encampment of an Indian prince, which now faces him, the visitor will notice a case containing a splendid collection of Javanese arms, some highly wrought with great beauty in gold and silver. This case also contains some wonderful carvings in ivory and pith, as well as other objects of great interest.

Immediately beyond the case which we have just examined will be found a model of the celebrated so-called gates of Somnauth. History and tradition have invested these gates with much interest. Nine centuries since, the temple of Somnauth was perhaps the richest shrine of rich India, and the splendid stronghold of its idolatry. There are many records of its unequalled riches—the revenues of 2000 villages are said to have been allotted for the maintenance of its establishment. In 1025, the sultan Mahmoud crossed the Indus from Ghuznee, and after many battles advanced to the temple and sacked it. In the adulations of the conqueror Hindoo paganism was said to have then irrecoverably bowed before the sword and faith of Mahomet. The avarice, however, of Mahmoud probably received greater gratification than his religious fervour. He is traditionally said to have carried the carved sandal-wood gates of the temple with him to Ghuznee, and to have made them the doors of the splendid mausoleum which he built for himself. When Ghuznee was taken by the British under the presidency of Lord Ellenborough, the doors (of which the present models are copies) were taken from the tomb, and invested with high interest on account of their traditional origin, but the style of art and inscriptions upon the gates themselves prove that in all probability they formed part of the tomb[I-142] from which they were taken and were built with it. Near to this model will also be found some very finely carved furniture, and a case filled with a magnificent collection of Indian works, amongst which may be specially pointed out the beautiful and rich specimens of jewellery from Delhi and other provinces, some elaborate carvings in pearl, ivory, and tortoiseshell, and the gold-worked muslins for which, through many ages, India has been renowned.

The gallery over the Egyptian, Greek, and Roman Courts contains an interesting collection of Photographs, &c., illustrative of Oriental Architecture, and the various styles exemplified below, amongst which the Egyptian remains are particularly to be remarked. The full-sized casts from the original wall sculptures, which, are copied in the Egyptian Court below, will be found along this Gallery, as also various architectural and sculptural remains of classic times.

We should now descend the staircase to the left, and, crossing over to the eastern end of the Great Transept, we can reach the basement story of the building, which is on a level with the first Terrace. The Basement has been divided into two departments: that to the north is allotted to the exhibition of Agricultural Implements, &c.; in that to the south is arranged the important exhibition of Machinery in Motion.

THE AGRICULTURAL IMPLEMENT DEPARTMENT.

The application of science to farming, and the great necessity that there is at the present day of availing ourselves of every mechanical improvement for the sake of economy, and for the better carrying out of the various agricultural operations, render the use of improved machinery an absolute necessity. And when we compare the flail of a few years ago with our present threshing-machines, and note how mechanical power has, in a very few years, almost entirely taken the place of hand-labour in this, as in every other art, we shall see that the improvement in agricultural machinery has been making most rapid strides, and that the manufacture of agricultural implements has grown to a most important industry.

The collection of these implements at the Crystal Palace supplies a desideratum that has been felt and acknowledged both by the public and by the manufacturers themselves—an emporium where the various machines of every maker may be brought together, so as to be seen at one glance and their respective merits examined;[I-143] thus facilitating the selection by purchasers, and in some measure preventing the possibility of inferior implements being sent out. This has been partially effected by the exhibitions of the Smithfield Club, and by the periodical gathering of the Royal Agricultural Society; but it is only with the present attempt that the same thing on a permanent footing has been offered to the public. In the Crystal Palace are now exhibited and sold the principal machines made by nearly all the first manufacturers; indeed, each firm has sent those machines for which it is chiefly noted, so that everything exhibited in this department must be of the very best; such, in short, as the manufacturers are most proud of. All the machines, &c., are sold by the Superintendent on the spot, at the same prices as at the makers.

These machines comprise a large collection of prize, portable, and fixed steam-engines; a large assortment of drill machines, both for drilling seed and manure; several reaping machines are also exhibited.

The threshing-machines are numerous, and are of very excellent construction. The improvements that have been made in them are very striking. It is really a curious sight to see the sheaves of wheat placed in at one end, and the winnowed grain passing out ready sorted into bags at the other; while the straw is carried by a mechanical contrivance to carts to be taken away. Here also we see digging machines, to perform wholesale the ancient duty of the plough, which was at all times an imperfect implement. The ploughs, however, that are shown are of the very best description, with many useful improvements. Portable houses for emigrants and others, and an immense assortment of entrance gates, and of poultry, sheep, and cattle fencing are also here to be found.

Haymaking machines for scattering the hay, and horse-rakes, are important substitutions for hand-labour. Draining-ploughs, for preparing a pathway for the pipes, and for laying the tiles, and draining levels are also exhibited. A large collection of chaff-cutters, bruising and grinding mills, oilcake breakers, steaming apparatus and pulping machines (the pulping machines are for preparing food, such as turnips or carrots, for cattle), grass-mowing machines, both for hand and horse-power, carts of every description, liquid manure carts, field rollers, and several descriptions of clodcrushers, brick and the machines, mortising and boring machines very well suited for making gates and hurdles, makes up the sum of this interesting exhibition.

[I-144]

THE MACHINERY IN MOTION.

Machinery is the most important feature in the modern history of our country. How it has enriched and extended our commerce, and built up the greatness of the nation, is an interesting and instructive reflection. It thus justly claims the important position which it here occupies. The long array of busy engines, which stretches almost as far as the eye can reach, forcibly reminds the visitor of this department in the old Crystal Palace of Hyde Park. Indeed, the most interesting set of machinery, that employed in cotton spinning, which instructed so many thousands in Hyde Park as to the manner in which the huge bale of cotton was transformed into the perfect woven fabric, is now to be seen here in full work. The set includes Beating Frames, Carding Engines, Drawing, Slubbing, and Roving Frames, Throstle Spinning Frames and self-acting Mules. Near at hand to this most perfect and beautiful collection of machinery, which was manufactured by Walker and Hacking, and Harrison & Co., are placed the rude wooden engines invented and used by Arkwright for the same purpose; thus we are enabled to measure at a glance the immense progress we have made in the course of less than a century. Proceeding lower down the gallery, the visitor is struck with astonishment at the massive machinery by which iron is hammered, drilled, punched, and planed as easily as so much deal. Messrs. Whitworth, Muir, and Harrison & Co., are the principal exhibitors of these ponderous engines. Advancing still further, the visitor witnesses a sugar-cane crusher in motion. Centrifugal pumps, Drying Machines, together with Steam Engines of all descriptions in full work form the next most important features, whilst innumerable other inventions and machines of a smaller character make this part of the palace one of the most interesting. The visitor can, if he choose, reach the South Wing through this department, and pass from thence down the Colonnade to the Railway Station; but he will most probably pass from the door under the Central Transept on to the first Terrace, and proceed to the inspection of the Gardens and Park, of which we treat in the next division.


PART III.
Line
THE EXTERIOR.


[I-145]

Note.—The arrangement of the following Division assumes the visitor to enter the Garden from the Central Transept, whence he proceeds to inspect the Terraces and the Italian Garden. Passing down the central steps from the second Terrace, and round the Great Circular Fountain, he proceeds to the left, and continuing the path, explores the English Landscape Garden, and the Archery Ground, beyond which is the Park, the Cricketing Ground, from which, proceeding half round the basin of one of the Great Fountains, he reaches the Grand Plateau, and examines the Geological Restorations and the Extinct Animals on the Islands in the Lake. Leaving the Plateau, he skirts the basin of the second Great Fountain, and proceeding by the Rosary, completes the circuit of the grounds. An account of the Great Water Towers, in connection with the system of Fountains, and of the Artesian Well and the Water Supply is then added.

[I-146]

PRINTED BY R.K. BURT, HOLBORN HILL, CITY.

Large plan.

PLAN of the GARDENS and PARK

A. GREAT CIRCULAR FOUNTAIN

B. B. WATER TEMPLES and CASCADES

C. the ENGLISH LANDSCAPE GARDEN

[I-147]

The Park and Gardens.

THE SITE.

The Crystal Palace stands in the county of Surrey, immediately on the confines of Kent, bordered on one side by Sydenham, and on the other by Norwood and Anerley, whilst Penge lies at the foot of the hill, and Dulwich Wood at the top. No particular topographical or historical facts are associated with these places. Sydenham, however, is invested with some literary interest as having been the residence of the poet Campbell, the author of the “Pleasures of Hope,” who passed, as he says in one of his letters, the happiest years of his life in this suburban village, and who wrote here the whole of “Gertrude of Wyoming.”

THE PARK AND GARDENS.

The Crystal Palace and its grounds occupy two hundred acres, and it is of importance to note that, in the formation of the[I-148] gardens, the same uniformity of parts is adhered to as in the building itself; that is to say, the width of the walks, the width and length of the basins of the fountains, the length of the terraces, the breadth of the steps, are all multiples and sub-multiples of the one primary number of eight. By this symmetrical arrangement perfect harmony prevails, unconsciously to the looker-on, in the structure and in the grounds.

As the visitor quits the building from the Central Transept, let him pause at the top of the broad flight of steps leading to the first terrace, and notice the prospect before him. At his feet are the upper and lower terraces, bordered by stone balustrades, the long lines of which are broken by steps and projecting bastions. Along these balustrades, at intervals, the eye is attracted by the statues that surmount them. Straight before him runs the broad central walk, and, on either side of it, on the second terrace, the ground is covered with green turf, now relieved by beds filled with gay-coloured flowers, and further heightened in effect by fountains which throw water high up into the air. As a side boundary to the foreground of this picture, the wings of the building stretch out in their blue colouring, their cheerful, light aspect, harmonising with the rest of the scene. Looking straight forward, below the level of the second terrace, we see the large circular fountain, surrounded by white marble statues, which stand out sharp and clear against the dark landscape beyond. On either side, on a yet lower level, a glimpse is caught of the glistening waters in the two largest fountains, backed by embankments of turf; and beyond these again, if we could only lift our vision over the plateau, we should see the waters of the large lake, whose islands are peopled by monsters that inhabited the earth when the world was young. To the right, and to the left, in the grounds, are pleasant sloping lawns, dotted here and there with trees, and thickly planted shrubs; and then, beyond the Palace precincts, stretching away into the far distance, is visible the great garden of Nature herself, a picture of rural loveliness, almost unmatched by any scene so close as this to the great London city. Undulating scenery prevails: here it is rich with bright verdure, there dark with thick wood: here, the grass field; there, the grey soil, which, in the spring time, is covered with the delicate green of young wheat; and, in the autumn, waves thick with golden corn. Across the fields run long lines of hedgerows, telling plainly of the country in which they are found; and in the very heart of all, the village church spire shoots through the trees, surrounded by clusters of cottages, whose modest forms are almost hidden by the dark foliage in which they are nestled. The exquisite scene is completed by a long line of blue hills that ranges at the back of all.

[I-149]

VIEW OF GREAT TRANSEPT.

[I-150]

Gardening, as an art, has flourished in all countries; and has possessed in each such distinctive features as the climate, the nature of the soil, and its physical formation, as well as the character of the people, have created. In the Gardens before us two styles are seen, The Italian and The English Landscape. A few words may be sufficient to describe the leading characteristics of both.

In Italy, during the middle ages, internal warfare confined men to their fortresses, and no gardens existed save those “pleasaunces” cultivated within the castle’s quadrangle. When times grew more peaceful, men became more trustful, ventured forth, enjoyed the pleasures of a country life, and gardening prospered. In monasteries especially, the art received attention; but it was not until the beginning of the 16th century that a decided advance was manifest, and then we have to note a return to the style of gardening that flourished in ancient Rome itself. Lorenzo de’ Medici possessed a garden laid out in the revived classical manner, and this style, which is recognised as the Italian, has existed in Italy with certain modifications ever since. Its chief features are the profuse use of architectural ornaments—the grounds being subdivided into terraces, and adorned with temples, statuary, urns, and vases, beds cut with mathematical precision, formal alleys of trees, straight walks, hedges cut into fantastic devices, jets of water, elaborate rock-work, and fish-ponds dug into squares or other geometrical forms. Everything in these gardens is artificial in the extreme, and in set opposition to the wild luxuriance of nature; and although the trees and shrubs are planted with a great regard to precision, they are too frequently devoid of all artistic effect. During the last century, the Italian style became blended with English landscape-gardening, but without much success; for the formality of the original style clings to all Italian gardening at the present day.

View from the Terrace.

English gardening does not seem to have been regularly cultivated until the reign of Henry VIII.; although previously to his time, parks and gardens had been laid out. Bluff King Hal formed the gardens of Nonsuch Palace in Surrey on a most magnificent scale, decking them out with many wonderful and curious contrivances, including a pyramid of marble with concealed holes, which spirted water upon all who came within reach,—a practical[I-151] joke which our forefathers seem to have relished highly, for the ingenious engine was imitated in other gardens after that period. In this reign also were first laid out by Cardinal Wolsey the Hampton Court Gardens, containing the labyrinth, at that period an indispensable device of a large garden. The artificial style in James I.’s time called forth the indignation of the great Lord Bacon, who, although content to retain well-trimmed hedges and trees, pleaded strongly in the interest of nature. He insisted that beyond the highly dressed and embellished parts of the garden, should ever lie a portion sacred from the hand of man—a fragment of wild nature! He calls it “the heath, or desert.” During Charles II.’s reign, landscape-gardening received an impulse. It was in his time that Chatsworth was laid out, and that buildings were introduced into gardens. During his reign, too, lived Evelyn—a spirit devoted to the service of the rural genius. In his Diary, Evelyn makes mention of several noblemen’s and gentlemen’s gardens which he visited, and some of which indeed he himself devised. His remarks convey an idea of the state of gardening[I-152] during the reign of the merry monarch. “Hampton Park, Middlesex,” he says, “was formerly a flat, naked piece of ground, now planted with sweet rows of lime trees, and the canal for water now near perfected; also the hare park. In the garden is a rich and noble fountain, with syrens, statues, &c., cast in copper by Fanelli, but no plenty of water. There is a parterre which they call Paradise, in which is a pretty banqueting-house set over a cave or cellar.” It was under Charles too that St. James’s Park was formed, a labour upon which the king employed Le Nôtre, the celebrated gardener of Versailles,—an artist of singular good taste, and with an admirable eye for the picturesque.

During the reign of William and Mary, Hampton Court was considerably improved. Some Dutch features were introduced into gardening, and vegetable sculpture, and parterres in lace, came into vogue.

To the Dutch must be conceded the earliest manifestation of a love for gardening, in Northern Europe—a feeling possessed by them even before the thirteenth century. The taste owed its origin, no doubt, partly to the general monotony of their country, partly to the wealth of their merchants, and partly to an extended commerce, which enabled the Dutch to import from the East those bulbous roots which have long been cultivated in Holland, and were once valued at fabulous prices. Dutch gardening soon acquired a peculiar character of its own. The gardens of Loo, laid out in the time of William III., were excellent examples of the symmetrical Dutch style; a canal divided the upper from the lower garden; the beds were cut in squares, and filled at various seasons of the year with tulips, hyacinths, poppies, sun-flowers, &c.; straight walks intersected the grounds, which were adorned with numerous statues, grotto-work, and fountains, some exceedingly whimsical and curious; the trees and shrubs were cut into devices, principally in pyramidal forms, whilst hedges separated the different parts of the garden, and were not allowed to grow above a certain height. Straight rows and double rows of trees constitute another characteristic of the Dutch style, and elaborate lace-like patterns for parterres were much in vogue during the latter part of the seventeenth century. The influence of this style upon English gardens may still be perceived in the clipped hedgerows and trees, green terraces, and now only prim, now magnificent avenues, so frequent in our country.

It would appear that from William down to George II., gardening in England suffered sad deterioration as an art. Formality prevailed[I-153] to the most deadening and oppressive extent. The shapes of men and animals were cut in trees, and the land was threatened with a vast and hideous collection of verdant sculpture. Pope and Addison came to the rescue of nature, and ridiculed the monstrous fashion. Pope, in one of his papers in “The Guardian,” details an imaginary set of plants for sale, including a “St. George, in box, his arm scarce long enough, but will be in condition to stick the dragon next April;” and a “quickset hog shot up into a porcupine by being forgot a week in rainy weather.” Addison, in “The Spectator,” says, “Our British gardeners, instead of humouring nature, love to deviate from it as much as possible. Our trees rise in cones, globes, and pyramids. We see the marks of the scissors upon every plant and bush.” Pope himself laid out his grounds in his villa at Twickenham; and his gardens there, which still bear the impress of his taste, attest to his practical skill as a gardener.

The satire of these great writers contributed not a little to a revolution in English gardening. Bridgeman seems to have been the first to commence the wholesome work of destruction, and to introduce landscape gardening; and it is said that he was instigated to his labour by the very paper of Pope’s, in “The Guardian,” to which we have alluded. But Kent, at a later period, banished the old grotesque and ridiculous style, and established the new picturesque treatment. He laid out Kensington Gardens, and probably Claremont. Wright and Brown were also early artists in the new style, and deserve honourable mention for their exertions in the right direction. The former displayed his skill at Fonthill Abbey, the seat of Mr. Beckford; Brown was consulted at Blenheim, where he constructed the earliest artificial lake in the kingdom,—the work of a week. Nor must Shenstone, the poet, be forgotten. His attempt, towards 1750, to establish the rights of nature in his own ornamental farm at the Leasowes, places him fairly in the front rank of our rural reformers. Mathematical precision and the yoke of excessive art were thus cast off, and nature was allowed a larger extent of liberty and life. She was no longer tasked to imitate forms that detracted from her own beauty without giving grace to the imitation; but she was questioned as to the garb which it chiefly delighted her to wear, and answer being given, active steps were taken to comply with her will. Then came Knight and Price to carry out the goodly work of recovery and restoration. To them followed Mr. Humphrey Repton, the accomplished scholar under whose eye the gardens of Cobham Hall were planned, and under[I-154] whose influence all the celebrated landscape-gardens of his time were fashioned. And as the result of the united labours of one and all, we have the irregularly-bounded pieces of water which delight the English eye, the shrubberies, the noble groups of trees, the winding walks, the gentle undulations, and pleasant slopes,—all which combined give a peculiar charm to our island landscapes, that is looked for in vain in fairer climates and on a more extended soil.

In the Crystal Palace Gardens, the Italian style has not been servilely copied, but rather adapted and appropriated. It has been taken, in fact, as the basis of a portion of our garden, and modified so as to suit English climate and English taste. Thus, we have the terraces and the architectural display, the long walks, the carefully cut beds, and the ornamental fountains: but the undulations of greensward, that bespeak the English soil, give a character to the borrowed elements which they do not find elsewhere. The violent juxtaposition of the two styles of gardening—the Italian and the English—it may readily be conceived, would produce a harsh and disagreeable effect. To avoid the collision, Sir Joseph Paxton has introduced, in the immediate vicinity of the terraces and the broad central walk, a mixed or transitional style, combining the formality of the one school with the freedom and natural grace of the other; and the former character is gradually diminished until, at the north side of the ground, it entirely disappears, and English landscape-gardening is looked upon in all its beauty.

THE TERRACES.

Descending the steps we reach the first terrace, on the parapet of which are placed twenty-six allegorical statues of the most important commercial and manufacturing countries in the world, and of the chief industrial cities of England and France. The length of the upper terrace is 1576 feet, and its width 48 feet; the terrace wall is of Bath-stone. The granite pedestals on each side of the steps, leading from the Great Transept, are 16 feet by 24 feet. The width of the central flight of steps is 96 feet; and this is also the width of the grand central walk. The lower terrace, along which are ranged the first six fountains of the upper series, is 1664 feet long between the wings of the building, or nearly one-third of a mile, and 512 feet wide, the basins for the fountains on this terrace being, in their measurements, as before[I-155] stated, all multiples of eight. The total length of the garden front of the wall of this terrace, which is formed into alcoves, is 1896 feet. The length of the broad central gravel walk from the building to the end of the garden in a direct line is 2660 feet. Such are a few of the principal measurements connected with the Palace Gardens, as these are seen on the surface. But although the work that is above ground may be recognised and calculated with little trouble by the visitor, there is beneath the surface an amount of labour and capital expended, of which he can with difficulty form an accurate idea. Drain pipes spread under his feet like a net-work, and amount in length to several miles; he treads on thousands of bundles of faggots which have formed his path; he walks over ten miles of iron piping which supply the fountains for his amusement.

On each side of the great central staircase are statues representing Mulhouse, Glasgow, and Liverpool (to the right as we face the gardens), the two first by Calder Marshall, the third by Spence. On the left side are personifications of Paris, Lyons, and an allegorical statue of French art, the first by Etex.

The next bastion, on the Sydenham side, is surmounted by statues of Spain and Italy, admirably executed by Monti; the succeeding bastion forms a pedestal for the very characteristic figures of California and Australia, by Bell. The staircase at this end of the terrace is ornamented at the first angle with representations of South America, by Monti, and of Turkey and Greece by Baron Marochetti; the second group consists of India and Egypt, also by Marochetti, and of China, by Monti.

The first bastion, on the Norwood side of the central staircase, supports allegorical statues of Manchester, by Theed, and Belfast, by Legrew. On the succeeding one are placed those of Sheffield and Birmingham, by Bell.

On each side of the staircase, at this point, are very excellent representations of the Zollverein and Holland, by Monti, and of Belgium, by Geefs.

The last group consists of a fine allegorical statue of the United States, by Powers, and of Canada and Russia, by Launitz.

All these figurative subjects are more or less composed in the style of the modern Romantic school of sculpture, and afford excellent illustrations of the character, nature, and chief occupations of the countries and cities they represent.

The Arcade and Rosary.

Proceeding in a northerly direction, we pass on until we reach a flight of steps, by which we gain the lower terrace, or Italian[I-156] flower-garden. At the bottom of these steps are stone recesses, built under the terrace above, in which streams of water fall from dolphins’ mouths into bronze basins. Crossing the terrace by the path facing the steps, the visitor turns to the right, examining the flowers and the fountains, until he arrives at the central steps leading to the circular basin, from which point a most admirable view of the whole crystal structure is obtained. The deep recesses in the transepts, the open galleries, the circular roof to the nave, the height of the Central Transept, the great length of the building, and the general aërial appearance of the whole crystal fabric, produce an effect which, for novelty and lightness, surpasses every other architectural elevation in the world. Turning his back upon the building, the visitor beholds on either side of him green undulating lawns, beds planted with rhododendrons and other flowers, and winding gravel walks. He now surveys the mixed garden, before mentioned, which extends throughout the south side. To the right is a mound, surrounded by an arcade of arabesque iron-work, around which innumerable roses are twined; and, to the left, two spreading cedar trees—of a kind familiar to this neighbourhood—attract attention by their thick, spreading, sombre foliage. Descending the steps, and walking down the broad gravel path, the visitor reaches the large Circular Fountain.[I-157] Round the basin of the fountain are white marble statues, copies from the antique, and of works by Thorwaldsen and Canova. Amongst them will be found the celebrated Farnese Hercules, the free and graceful Mercury by Thorwaldsen, the Venus of Milo, and the Paris by Canova. On either hand, and a little below the Central Fountain, will be remarked two temples of beautiful iron-work, called the Temples of the Cascades, which, with the fountains, will be more fully described hereafter. Having made one half of the circle, the visitor, instead of proceeding down the central avenue, turns to the left, round the other side of the Central Fountain, and passing the first outlet, finds his way through the second, and descends the steps into a gently rising walk, which leads him to a smaller fountain.

The Cedar Trees.

Keeping to the left-hand side, we make half the circle of this smaller fountain, and then enter upon a pleasant path, on the right side of which stands one of the noble cedar-trees before mentioned. We are now quitting the mixed Italian and English gardens for the pure English landscape. Trees wave their long branches over our heads, the paths wind, and art recedes before nature. Travelling for a short distance, we come to a junction of two roads. Selecting the left, we journey on through a path, still gently rising, bordered on one side by trees, and on the other by a lawn, until we approach a valley at the bottom of which is a[I-158] small piece of water, lying close to a thicket forming a pleasant summer shade. Leading out of this small piece of water is seen a large lake, which forms the second or intermediate reservoir for the supply of the fountains. Under the hand of Sir Joseph Paxton the lake is made to serve for ornament as well as use.

View in Grounds.

THE ARCHERY GROUND.

On the slope, which is here picturesquely bordered with trees, is the Archery Ground. The targets are fixed at various distances on the lawn, and in a marquee, pitched in a proper position, are kept bows and arrows and all needful appliances of the noble pastime of archery—once the military stay and boast of the English nation, now, in these days of gunpowder, the pleasing and vigorous recreation of ladies and civilians.

Pursuing our way along the path, and which is now open on both sides, we descend towards the east, and on either side of us are beds filled with American rhododendrons. Our road takes us along the edge of the lake. Bearing to the right, we presently reach the junction of two paths. If the visitor turns to the left, he enters the Park, which occupies this side of the ground, and forms not one of the least agreeable features of the place.

[I-159]

THE STONE ARCADE.

[I-160]

THE CRICKET GROUND.

In the Park, a little to the right of the Sydenham entrance, and between that and the Great Central Walk, is a spacious level of green turf, which is specially laid out as a cricketing ground, and which is one of the best and largest in England. Every necessary arrangement is made, during the season, for the interesting matches and practice of this essentially English game. Close by is a ground for Rifle practice.

Quitting the Cricket Ground, the visitor returns on the same path by which he has approached, to the Great Fountain Basin, proceeding round the left-hand margin of which he will arrive where the broad Central Walk divides the two basins, from which point he obtains an excellent view of the stone Arcades, over which the water from the Temples and Cascades rushes in a glittering span of many feet, and forms splendid falls into the basins below. The pathway passes under the stone Arcades, and, when the water is pouring over, a curious and beautiful effect is noticeable from the open balustrade, in front of which the water passes. Having inspected the Arcades, the visitor continues his walk, partly round the next fountain basin, till he reaches a flight of steps on the left hand, passing up which he gains the Grand Plateau, which is 47 feet above the level of the Lake, which lies below.

THE GEOLOGICAL ILLUSTRATIONS AND THE EXTINCT ANIMALS.[27]

From our stand on the Grand Plateau, which is fifty feet in width, we obtain a general view of a tract of several acres of ground occupied by Geological illustrations, and including a number of islands partly covered by strange figures, the restored forms of various animals which for many ages have ceased to exist as living tribes.

[27] See “Handbook to the Extinct Animals and Geological Illustrations described,” by Professor Owen.

The wonders of geology are not confined to grand mountain chains piercing the clouds, burning mountains vomiting steam and hot ashes, and vast accumulations of animal and vegetable remains found imbedded everywhere around us. They extend[I-161] to facts connected with the structure of the earth’s crust, the existence of stores of mineral wealth, and strange results derived from the comparison of existing races with the fragments of other races formerly occupying the surface. The form of the surface depends on the internal structure; the scenery is due to the circumstances of the prevailing rock and soil; and the sea-cliff and naked mountain side are the places where nature teaches her first great lesson of the natural history of the Mineral Kingdom. To illustrate geology, it was necessary to perform the same kind of task as that which has been so successfully performed in the Architectural Courts, and the result is now before the visitor, as he looks down from this plateau and prepares to enter on the new course of investigation open to him. The ground forming the cliffs, shores, banks, and islands in this part of the Park are so constructed as to give, in a series of views, a number of practical lessons in geology, tending to make the essential facts of the science easily understood, while, at the same time, they add to the picturesque beauty of the scenery. The plan may be recognised in the fine expanse of cliff now at our feet; to do justice to which we must descend and place ourselves on the tongue of land below, or on the rustic bridge a little to the left. From hence may be seen the full length of the present cliff, and a few words of explanation will be sufficient to indicate the succession of rocks and the geological phenomena.

On this cliff, the part immediately facing the bridge represents a section nearly vertical of part of a coal-field, all the beds dipping (or inclining) at a moderate angle to the right-hand, so that those to the left are lower in geological position, though they gradually become higher in point of actual elevation, and at a little distance further to the left overtop the coal itself. Besides this illustration, we also see in the same equal part of the cliff instances of faults or troubles, throwing a part of the coal-measures into a different position from the rest, and lifting up portions of a series of deposits. In the case before us, the older rocks are also thrown up on the left side of the fault.

The coal-cliff consists of two beds or seams of coal, two of ironstone, and some sandstone. The part not consisting of projecting stone is supposed to represent softer rocks, clays, or shales. There are placed here about twenty-five tons of coal, twenty tons of grit or sandstone, and five tons of ironstone, all from the neighbourhood of Clay Cross.

In order to produce a marked contrast, the carboniferous limestone[I-162] is placed next in order, and as if brought up to its position by a considerable fault. The millstone grit, appearing on the top of the plateau above the limestone, would have occupied naturally and without disturbance, a position below the lowest part of the coal measures. The fault is therefore called, technically, an upthrow or upcast to the south. The millstone grit consists of about 30 tons of rock from Crick, near Matlock, and from Bramley Fall quarries, in Yorkshire. The carboniferous limestone (of which there is 100 tons) is from the neighbourhood of Matlock, and is placed nearly in its natural position.

In this cliff of carboniferous limestone the bedding may be very distinctly traced, and systems of fissures, or joints, may also be observed. One of these fissures, wider than the rest and communicating with several smaller ones, is partly filled with spar, and has an opening into a cavern constructed behind the cliff. The main fissure represents a mineral vein or lode, and the smaller ones are strings or feeders. Within the cavern the spectator sees some of the peculiar and interesting appearances of natural limestone grottoes.

Coming out below the limestone, hard beds of the old red sandstone are seen. These have the same dip as the limestones, and are seen at intervals further to the left towards the railway. It is intended to continue the series of older and altered rocks in this direction. The old red sandstone on the ground consists of about twenty tons from near Bristol.

Overlying this whole series of old (or palæozoic) rocks, which are inclined to the north, is a horizontal, and therefore unconformable capping of new red sandstone. This also is from near Bristol, and the quantity provided was fifty tons.

The new red sandstone, thus capping the old rock on the high ground of the plateau, re-appears at the extremity of the nearest of the adjacent islands at a much lower level, and having a different mechanical position.

It is right to mention that these geological sketches are the result of careful consideration, and have not been effected without much constructive ingenuity. The original plan of the whole was suggested by Professor Ansted, and arranged with Sir Joseph Paxton at an early period of the laying out of the grounds; and as soon as the state of affairs permitted and the actual earthworks of the Plateau were in progress, a model of the intended structure was completed and coloured geologically by Professor Ansted. The works have been ably constructed from this model by Mr.[I-163] James Campbell, who also procured the stone and other minerals from different parts of the country.

The Labyrinthodons.

Let us now return to the Plateau, from whence we can obtain the best view of the islands and their singular tenants. Before describing them, however, we will remind the visitor that the lowest or oldest rocks, which we have shown him, were the old red sandstone; next above them were the carboniferous limestone, the millstone grit, the coal-measures, and then the new red sandstone. It is with this last formation that the restorations of the extinct animals commence. Before that period fossil remains indicate that fish inhabited the waters of the earth, but there are no traces of the existence of any reptiles or higher animals. Reptiles first appear in the new red sandstone, and as the extreme right of the islands is arranged to represent this formation, it is there that we shall find the Labyrinthodon and the Dicynodon, of each of which there are two species. The strata which overlie the new red sandstone will be now mentioned in the order of their super-position, each successive formation bringing us nearer to the forms of animal life which are at present living upon the earth.

Next above the new red sandstone comes the lias, the general[I-164] direction of the inclination of the beds being the same as in the coal-cliff, and the newer beds covering up the old ones as we advance in the direction of the larger islands. The lias animals are here represented by three very dissimilar forms; there are three species of Ichthyosaurus, or Fish Lizard; three species of Plesiosaurus, or Serpent Lizard, and a crocodilian beast called Teleosaurus, which much resembles the fish-eating Gavial of the river Ganges. This crocodile and the fish lizards formerly inhabited the neighbourhood of Whitby in Yorkshire, where their remains are found in good condition. Dr. Buckland describes the Plesiosaurus as the most singular and monstrous of the relics of the former world, having the head of a lizard, the teeth of a crocodile, a neck like the body of a serpent, the trunk and tail of an ordinary quadruped, the ribs of a chameleon, and the paddles of a whale.

The next formation in ascending order is the oolite. To this stratum, as well as to the succeeding one, belongs the Megalosaurus, or Gigantic Lizard, which measures 39 feet from snout to top of tail, and 22 feet 6 inches round the body, and the smaller Pterodactyles.

Still proceeding to the left, we pass next to the Wealden formation so well known in Kent, Surrey, and Sussex. Here we see the gigantic Iguanodons, and the Hylæosaurus, or Great Spiny Lizard of the Wealden. It is with these creatures that the name of the late distinguished palæontologist, Dr. Mantell, will ever be connected, since to his labours in Tilgate Forest and other parts we are indebted for our knowledge of these animals.

Above the Wealden formation come those of the lower greensand and the chalk. Both of these also contain fragments of singular reptiles of large size, the Mosasaurus and great Pterodactyles (most probably the fabled dragon of old) restored from Mr. Bowerbank’s specimens.

With these we quit the Secondary Island, and may next turn our attention to the island beyond, which contains the principal forms characterising the strata belonging to the tertiary period. Hitherto we have shown the visitor nothing but reptiles—now, upon the Tertiary Island, he will find a higher order of animal life, and meet with forms more nearly resembling our living animals. Next in procession are the animals restored by Baron Cuvier from fragments found in the Gypsum beds of the Paris basin: the Palæotherium, or Ancient Beast, might be justly called the first triumph of comparative anatomy, as from a few[I-165] detached pieces of bone Cuvier was enabled to construct the entire animal, which, by his drawings, appears to have resembled the Tapir of the present day. After these come the more elegant pachydermatous animal called the Anoplotherium commune and the Anoplotherium gracilis, and not far off we see the Megatherium, or Gigantic Sloth, in the act of pulling down a tree to obtain the leaves, upon which it was accustomed to feed, as its smaller analogies do at the present day. These, with the Irish Elks, first found in the Isle of Man, are grouped upon this island, and present a scene equally remarkable and instructive to all those who are interested in the natural history of the earlier periods of the earth.

Great Pterodactyles.

No one can look upon all these singular and bulky productions, so unlike the comparatively familiar forms of even the rarer living animals, and yet with so much appearance of reality, without at once becoming sensible that a series of illustrations is before him, of a nature altogether different from any he has been accustomed to.

[I-166]

The footmarks, the bones, the very skin in some cases, of animals long since extinct, have been preserved by being buried in mud which has afterwards been converted into solid rock. From these obscure guides, the comparative anatomist has ventured to describe the general form, the habits, and the peculiarities of the race. From such descriptions, penned chiefly by Cuvier, Mantell, and Owen, has Mr. Waterhouse Hawkins restored and by degrees built up the animals. Possessing a great knowledge of the peculiarities of many living species; and being strong in his own feeling of what was probable and natural in the numerous details that required consideration, he has skilfully and cautiously constructed these restorations, and his embodiments of the opinions of the greatest palæontologists are indeed equally bold and conscientious. Professor Owen, the most eminent living authority upon these subjects, has kindly rendered Mr. Hawkins every assistance in his undertaking.

Re-descending from the Plateau once more to the large fountain, the visitor turns to the left, and proceeds round its margin until he arrives at the further end of the basin, where he will notice an ornamental cataract is contrived. On the left-hand of the path which winds from this point, is a high bank constructed of roots of the trees which grew in the woods once covering a great part of the Crystal Palace gardens. The effect is very striking and picturesque, being greatly aided by the wild flowers which grow so luxuriantly on all parts. It will have been noticed that round the confines of the lake we have just quitted, where the geological restorations are, the flowers are purposely nearly all wild ones, and they give a singularly natural and fit appearance to this interesting district. It must be mentioned that the whole of the Crystal Palace Exterior Gardens are under the personal superintendence of Mr. Edward Milner, and it will be confessed their beautiful condition answers to his assiduous care. A few steps further, and the visitor arrives at the junction of two roads. Selecting that to the left, he will speedily gain the foot of the Rosary, and the mound, at the top of which is an ornamental arabesque arcade designed by Mr. Owen Jones. He will here find roses of every variety, besides other plants which climb the sides and around the roof of the arcade.

[I-167]

The Secondary Island.

Large illustration.

 1. Mosasaurus.
 2. & 3. Pterodactyles.
 4. & 5. Iguanodons.
 6. The Hylæosaurus.
 7. The Megalosaurus.
 8. & 9. The Teleosauri.
10. The Ichthyosaurus Communis.
11. The Ichthyosaurus Platyodon.
12. Plesiosaurus Macrocephalus.
13. The Labyrinthodon Salamandroides.
14. & 15. Dycynodons.
16. Labyrinthodon Pachygnathus.

[I-168]

Proceeding round the Rosary to the right, we quit the mound at the second outlet, and journey along a path, on either side of which are flower-beds and groups of Rhododendrons and Azaleas. Bearing to the right we reach the basin of a fountain. Choosing the left-hand side of this basin, we turn into the broad walk which leads us by means of a flight of steps to the second terrace, crossing which we make our way by the steps to the upper terrace.

At this point the visitor can either re-enter the Palace under the Central Transept, or by proceeding to the left-hand down the terrace, enter the south wing and pass down the colonnade to the Railway Station.

THE CRYSTAL TOWERS.

The high towers, of which there are two, one at each end of the building, have been erected for the purpose of raising the tanks from which the high jets of the great fountains in the lower basins are played, and are, with the exception of the tank and stays, constructed of cast iron.

The foundation upon which this enormous mass of material rests, is necessarily very strong, and consists, in the first place, of a ring of concrete, sixty feet in external diameter, and three feet deep; upon this is built a circular wall of brick-work, laid in cement, fifty-six feet in diameter, and eighteen feet deep. This forms the bed on which rests the base pieces of the columns.

The columns, 1 foot in diameter, and 24 in number, are placed in pairs, 4 feet apart, and are connected together by solid vertical girders or filling-in frames, each pair thus forming one continuous broad column, extending from the base to the bottom of the tank by which the tower is surmounted; the whole rising to a height of 202 feet. The space between each pair of columns (8 feet) is filled in with glazed sashes and face-work, corresponding with those in the building, and completing the shell of the tower. Behind these sashes, and spanning these spaces, extending from floor to floor, are series of round wrought-iron diagonal bracing, continued from the bottom to the top of the tower; and, under each of the ten landing-floors, is a strong horizontal bracing-plate, termed a diaphragm, forming, with the diagonal bracing above referred to, a system of vertical and horizontal trussing.

Up the centre of each tower is carried a perpendicular brick shaft (the internal diameter of which is 7 ft. 9 in.), resting upon a separate foundation, and serving the double purpose of carrying off the smoke from the heating apparatus, from the boilers connected with the Machinery Department, the upper engine-house, and kitchen, and forming the core or spiral staircase by which the various floors, and gallery at the top of the tower, are reached.[I-169] These floors arise at intervals of twenty feet from the level of the floor of the main building. The tank noticed above is of boiler-plate, and is formed of an inner and outer wall, the former of which encircles the chimney-shaft; the bottom, which is dome-shaped, is carried upon wrought-iron girders radiating from the chimney, and is secured to the tops of the external columns. This description will be more readily understood when the depths of the tank at its outer and inner walls are given. The former, or that resting upon the external columns, being 38 feet, while the latter, next the chimney-shaft, is about 26 feet. These tanks are calculated to hold, when filled, a body of water of the enormous weight of 1,576 tons, or a bulk of 57,228 cubic feet, equal to 357,675 gallons.

The supply is forced from the upper reservoir by the same engines that raise the water to the lower water-tanks and the building; and the same pipes form also the means of conveying the water to the fountains. They are arranged within the outer columns, forming an interior circle, apparently of columns, but rendering in reality no assistance towards the stability of the structure.

On a level with the base of the tank, projecting from the exterior of the tower, and carried on strong and elegant cast-iron brackets, is the gallery six feet in width, from the outer edge of which, on light iron columns, is carried the many-gabled conical Paxton roof which covers the tower. The total height of these stupendous edifices, from the ground line to the top ornaments on the roof, is 284 feet. From the same ground line to the floor of the projecting gallery is 214 feet, involving to the persevering visitor an ascent of no fewer than 400 steps, with only ten landings or rests on the floors previously mentioned. The reward in the prospect afforded will, however, amply repay the toil incurred, embracing as it does an horizon including part of six counties—viz., Middlesex, Kent, Essex, Bedfordshire, and Bucks—and including a panorama possessing, amongst other objects of interest, the Towers of London and Windsor, the woodlands of Essex, and the Downs of Epsom. The vision of the visitor from this height is also lifted over the grand plateau, or ridge, which separates the great lake with its antediluvian animals from the rest of the garden.

These magnificent towers, each of which contains 800 tons of iron, were designed by Mr. Brunel.

From the above simple statement it will be seen, that the[I-170] arrangements for supplying the fountains with water are at once simple, complete, and based upon the most economical principles. The engine power employed is that of three hundred and twenty horses; the water itself is conveyed to and from the reservoirs in pipes varying from three feet to one inch in diameter; and the total weight of piping may be set down at 4000 tons, its length, roughly estimated, at ten miles.

THE ARTESIAN WELL, AND THE WATER SUPPLY.

In July, 1852, the supply of water for the fountains and other great works in connexion with the Crystal Palace, first seriously engaged the attention of the Directors. Various proposals were made, and suggestions offered: some were at once rejected; others, although not free from difficulties, were taken into consideration. The most feasible of these was that which involved the extension to Sydenham of the pipes of one of the nearest London water-work companies,—a measure that would at once secure a sufficient supply of tolerably good water. Against the proposition for sinking a well on the grounds, it was urged that the neighbourhood is almost destitute of water; that wells already excavated to the depth of two hundred feet had yielded but a small supply; and that even if a sufficient supply could be secured by digging, the water obtained could never be raised to the top of the hill.

Acting, however, upon sound advice, and after due consideration, the company commenced the sinking of an artesian well at the foot of the hill on which the Palace stands, and after proceeding to a depth of 250 feet, their efforts were rewarded.

In the present case, the water which appears in the well comes from a reservoir lying between the London clay and the greensand as its upper and lower envelopes. This reservoir is supplied by rain-water, which, percolating the London clay, sand, and chalk, and finding an impediment to its downward progress on reaching the greensand, flows into the space between the hard clay and greensand, as into a cistern. The process by which the reservoir is supplied is continuous, the water finding its way down to it as if by a series of small tubes, and pressing against the lower surface of the clay with a force which, if unresisted, would raise it to the level from which it descended. When the clay is pierced by the augur it is evident that this force is free to act, the resistance of the clay at the point where it is pierced being removed, and accordingly the water rises in the bore to the level from which it is[I-171] supplied, and will continue to do so as long as the percolation lasts. The chief difficulty to be overcome was the great thickness of the substratum of chalk, which extends, probably, to a depth of about 1000 feet. The well, now completed, is a brick shaft 812 feet in diameter, 247 feet deep, from whence an Artesian bore descends 328 feet, making the entire depth 575 feet. It is situated at the bottom of the Garden, near the Cricket Ground.

An abundant supply of water having been brought to the foot of the hill from the well, and the supplies of a neighbouring water-company, it was necessary not only to raise it to the top, on a level with the building, but also to elevate it to a sufficient height for obtaining the requisite pressure for fountains to throw up water to heights varying from 5 to 280 feet. The following is a brief outline of the arrangements by which these objects are effected:—

Three reservoirs have been formed at different levels in the grounds, the lowest one being on the same level as the largest basins placed nearly at the base of the hill; the second or intermediate reservoir is higher up, and in a line with the basin in the central walk; whilst the third or upper reservoir stands on the top of the hill immediately adjoining the north end of the building. Next to the Artesian Well, an engine is placed which raises the water required to be permanently maintained in the reservoirs and in the basins of the fountains, and which supply or keep up the water that is lost by waste and evaporation.

The reservoir on the summit of the hill contains the water required for the use of the building, and for the fountains throughout the grounds. Close to this reservoir is an engine-house, containing the steam-engines that raise part of the water into two large tanks erected on columns at the north end of the building close to the junction of the Sydenham and Dulwich roads. The columns, twenty-four in number, are of hollowed cast-iron, one foot in diameter. The central column, which is two feet in diameter, supporting a portion of the superincumbent weight, and making up the number, twenty-five, is the water-pipe, by which the tank is fed, and which forms also the conduit to the fountains in the building, and on the terraces. These two distinct actions of filling the tank and working the fountains proceed simultaneously through the same pipe. On the top of these columns are massive girders which support the plates, forming the bottom of the tank. The height from the stone curb of the reservoir to the bottom of the tank is 65 feet; the tanks are each 47 feet square by 15 feet[I-172] deep, and capable of containing 207,000 gallons or about 900 tons of water. They supply also the water required in the building for the plants and kitchens, and charge the pipes provided against casualties from fire. The vast residue of the water in the great upper reservoir, in consequence of the sloping character of the ground, does not need any help from the engines, but flows direct to fountains on a lower level, and plays smaller jets. Through the same convenience, the waste water from the upper fountains is used a second time in the lower fountains.

The central or intermediate reservoir collects the waste water from the displays which take place on ordinary days, and which include all the fountains, save the two largest, and the cascades. Attached to this reservoir are also engines which pump the water back to the upper reservoir. The lowest reservoir collects similarly the waste water from the displays which take place in the two largest fountains on the days of great exhibition, and its engines return the water at once to the top level.

THE FOUNTAINS.

The great system of fountains in the grounds of the Crystal Palace, though the most stupendous that the world has ever seen, is designed with an unity which greatly enhances, or rather fully displays, its unrivalled magnificence. The whole system is divided into two series, the upper and the lower. The upper series, which consists of the six basins adorning the long extent of the second terrace, with the great circular fountain in the centre, and the smaller ones on either side of it, in all, nine fountains, constitutes the display on ordinary occasions. Beyond these, as we advance down the central path, are the iron Water Temples, from which the water rushes down a series of twelve cascades, extending for a distance of 600 feet, till it falls over the stone arcade in the great fountain basins, forming a glittering cataract 120 feet broad, with a fall of thirty feet. The Water Temples with their cascades and falls, and the two great fountains into the basins of which they discharge, constitute the lower series, which is played only on grand occasions; but all are part of one design, and each one ministers to its completeness.

Unlike most similar works, sculpture has not been used to enhance or obtain the effect desired. Under any circumstances, water, when thrown high into the air, assumes a graceful and beautiful appearance; no ungentle curves or distortions of form[I-173] mar its expression of a natural beauty, which, though it may be the roaring grandeur of a mighty stream, or the gentle grace of the smallest jet, bears with it an unspeakable charm. In the Crystal Palace Fountains the designs are carried out by the water alone, and the sculptural ornamentation is confined to the margins of the basins, and, down the sides of the cascades, to some small ornamental bronze fountains of secondary importance.

The first six fountains of the upper series which ornament the Italian Garden on the second terrace throw their highest jets to the height of 90 feet, the lower jets form graceful designs round the bases of these columns of water, and in other parts of the basins. It is so arranged that the waste water from these basins is again used for the lowest jets of the fountains which lie between these and the Water Temples, a rapid descent in the ground giving sufficient pressure for this purpose; the same is the case with the water flowing from these again, as it is once more used for the lower water designs in the great basins.

The great circular fountain, which occupies the central position below the terraces, is the principal one of the upper series. Its highest columns, which rise in an imposing mass from a gigantic cradle formed by the water, attain the altitude of 150 feet. Rising from the surface around this, are single upright streams which beautifully fill in the design, throwing their spray to almost an equal height. The whole is surrounded by a delicate trellis of water, in which the jets appear to interlace with one another. On the right and left of this, but in lower positions, are two smaller circular fountains of great beauty, which, with those already described, complete the upper series. The largest circular basin is 196 feet in diameter.

We now approach the two Water Temples which head the cascades on either side of the broad central walk. These Temples are octagonal in shape, with dome-shaped roofs, and are constructed of ornamental ironwork, gaily coloured and gilded. On the apex of each is a bronze figure, from beneath which the water, which is forced up the hollow columns, bursts in a glittering film till it falls over the roof and down the sides. The Temples are about 60 feet in height. The head or basin which surrounds each one, and from which the water flows down the cascades, is a parallelogram of 72 feet, with semicircular extensions in the two sides of 18 feet radius. Bronze fountains ornament each side of the cascades.

The great fountains are the crowning effect of the whole system, and are the largest in the world. The basins, which are designed[I-174] with a graceful and diversified outline, are 784 feet each in length, having a diameter in the semicircular centre portion of 468 feet. A great central column rises in each, streaming upward to the height of 280 feet when undisturbed by wind. These columns are each composed of 50 two-inch jets, which burst forth under a pressure on the mouth of the pipes of 262 lb. to the square inch. The design is carried out by an infinite variety of water display. The effect is gained by the water alone, which assumes many forms, from the giant and stately column, to the most delicate crystal tracery. When the whole system of fountains is displayed, no less than 11,788 jets are in operation, throwing 120,000 gallons per minute. A grand display usually consumes 6,000,000 gallons of water.

These stupendous and magnificent works were designed by Sir Joseph Paxton, the engineering operations being executed by Mr. W. Shields, the resident engineer of the Company.


[I-175]

PART IV.
Line
EXHIBITORS’ DESCRIPTIVE CATALOGUE.


[I-176]

PLAN OF SPACE FOR EXHIBITION.

Large plan.

A   - Non-Selling Division.
B
C

⁂ The Selling Division comprehending the South Gallery and the Galleries on the South-Eastern side are devoted to Miscellaneous Articles.

[I-177]

Large plan.


[I-178]

INDEX TO ADVERTISEMENTS.

Line
GROUND FLOOR:South-West Side: Page
Stationery Court.—Court of Inventions 179
Hardware Court 180
Birmingham Court 181
Sheffield Court.—Mineral Manufactures Court.—Heath’s Bath Wheel Chair Department 182
GROUND FLOOR:South-East Side:  
Foreign Glass Manufactures Court 182
FRENCH COURT:Carriage Department 183
EAST GALLERY:Central Transept 184
SOUTH-EAST GALLERY 185
SOUTH GALLERY:Picture Gallery 186
WEST GALLERY:Central Transept 187
NORTH TRANSEPT:Tropical Department 189
BASEMENT:  
Machinery 189
Agricultural Implements 190

[I-179]


EXHIBITORS’ DESCRIPTIVE CATALOGUE


Stationery Court.

SPECIMENS of ORNAMENTAL DESIGN for BOOK-BINDING, &c. Exhibited by JOHN LEIGHTON, F.S.A.


GEORGE ROWNEY & Co., 51, Rathbone Place, London.—Specimens of Drawing and Painting Materials. Specimens of Chromo-Lithography.



NATURE PRINTING.—The specimens exhibited of this new process for obtaining life-like or physiotypic impressions of plants are mostly of Ferns and Mosses, but the process is still further peculiarly applicable to the representation of the Grasses, the Lichens, and the Sea-weeds. These results are obtained by placing the specimen to be copied upon a plate of soft lead, with a highly-polished surface, and passing it, at a high pressure, between hard steel rollers. The specimen leaves its impression upon the lead, and gives not only its outline, but also the most delicate elevations and depressions of its surface with that sharpness and fidelity as to present a perfect fac-simile of the original specimen in its natural size. The lead plate thus impressed—not being practically available for printing purposes—is copied by the electrotype process, by which a copper plate (the image on which is perfectly identical with the original impressed lead plate) is obtained, which can be printed from at an ordinary copper-plate press.

Nature Printing was introduced into England by Mr. Henry Bradbury, in 1853; the first application of the process has been most successfully exemplified by him in the magnificent folio Edition of “THE FERNS OF GREAT BRITAIN AND IRELAND,” Nature Printed. Descriptions by Thomas Moore, F.L.S.; Edited by Dr. Lindley. Imperial folio, with 51 Nature-Printed plates. Price £6 6s.



Piano

J. JONES & CO.,
21, SOHO SQUARE, LONDON.
First Class Pianofortes from Twenty-four
Guineas.

EXHIBITORS IN LONDON AND PARIS EXHIBITIONS.


JARRETT’S IMPROVED EMBOSSING, COPYING, and PATENT ENDORSING PRESSES.

Chief Depôt, 37, Poultry, City.


WATERLOW & SONS, London Wall, Birchin Lane, and Parliament Street, London, Stationers, Account Book and Envelope Manufacturers.




Court of Inventions.

BRYAN CORCORAN & CO.,
36, MARK LANE,

OBTAINED Prize Medal at the London Universal Exhibition, 1851, for finest Specimen of METALLIC CLOTH; and in Paris Industrial Exhibition of 1855, MODEL of IMPROVED DRYING KILN for Malt and all other Grain, on a scale of one inch to the foot. The improvements are economy of fuel, regularity of heat, and prevention of condensation of steam.

Specimens of Paper Machine Wires of all widths to 108 inches. Woven Brass Wire, No. 150 X 160, 24,000 holes to the square inch, half yard wide. Twilled Copper and Brass, 1,120 shoots in one inch, the finish woven. Iron Woven Wire, 1,000 holes in one inch. Copper Wire or Thread, 3,000 yards to one ounce. Brass Wire or Thread, 1,300 yards to one ounce. Iron Wire or Thread, 542 yards to one ounce. Improved Wire Work for Screens, Sieves, &c. Strong Woven Wire for Malt Kilns, Smut Machines, &c. Swiss Silk for dressing flour. French Millstone for grinding wheat.


[I-180]

AWARDED A PRIZE MEDAL UNDER CLASS XIX.

TO THE CARPET TRADE.—ROYAL VICTORIA FELT CARPETING.

The Patent Woollen Cloth. Company beg to inform the trade that their NEW PATTERNS in CARPETS and TABLE COVERS for the present season are now out, and will be found far superior to any they have hitherto produced, both in style and variety. The public can be supplied at all respectable Carpet Houses in London and the country.

The Company deem it necessary to caution the public against parties who are selling an inferior description of goods as Felted Carpets, which will not bear comparison with their manufacture, either in style or durability; and that the genuineness of the goods can always be tested by purchasers, as the Company’s carpets are all stamped at both ends of the piece, “Royal Victoria Carpeting, London,” with the Royal arms in the centre.

The Company’s Manufactories are at Elmwood Mills, Leeds, and Borough Road, London. Wholesale Warehouses at

8, LOVE LANE, WOOD STREET, CHEAPSIDE.




Hardware Court.

Mincer

A FIRST-CLASS SILVER MEDAL has been awarded to NYE and Co., at the Paris Universal Exhibition, 1855, for their Improved

Patent Sausage-making and General Mincing Machine,

For private families, hotel-keepers, &c. Price £1 10s., £2 2s., and £3 3s. Also a small Mincer for the dinner table, to assist digestion, loss of teeth, &c., price from 30s. A Patent Coffee Mill, price 10s.

Testimonials sent free.

79, WARDOUR STREET, SOHO.


FLAVEL’S PRIZE KITCHENER.—The only Kitchen Range which obtained a Prize Medal and Special Approbation at the Great Exhibition. Sole Agents, BENHAM & SONS, 19, WIGMORE STREET, LONDON.


BENHAM & SONS, Manufacturers of Drawing Room and other Stoves, Fenders, Fire Irons, Gas and Hot Water Apparatus, Baths, Kitchen Ranges, and Dinner Lifts. 19, WIGMORE STREET, CAVENDISH SQUARE, LONDON.


THE PAXTON FLOWER BASKETS.—W. COGGER, Manufacturer, and Ornamental Wire Worker to the Crystal Palace Company. Garden Arches, Aviaries, Rose Temples, Flower Stands, Trainers, &c. Address, Westow Hill, Upper Norwood, Surrey, S.


JAMES RUSSELL & SONS, Crown Tube Works, Wednesbury, and 81, Upper Ground Street, Blackfriars, S. Patent Lap-Welded Tubes for Gas, Steam, and other purposes.


GEORGE JENNINGS, Engineering, Building, and Sanitary Appliances, 5, HOLLAND STREET, BLACKFRIARS ROAD, LONDON.


PATENT COOKERY STOVES, which obtained a Prize Medal from England and France. DALEY & SONS, NORTHAMPTON.


BY HER MAJESTY’S ROYAL LETTERS PATENT.

THE LOVERS’ LAMPS, price Five Shillings each. No dressing or trimming required.

EDMUND SPILLER, 98, HOLBORN HILL, LONDON.


BACHELORS’ KETTLES, from 3s. each. Self-acting Cooking Apparatus to Fit the above, 1s. 6d. each.

EDMUND SPILLER, 98, HOLBORN HILL, LONDON.


[I-181]

PIERCE’S IMPROVEMENTS IN FIRE-LUMP GRATES.

Stove
Curly line

PIERCE’S CELEBRATED
FRESH AIR WARMING AND VENTILATING
FIRE LUMP GRATES,

FOR the production of Healthful Warmth and Continuous Ventilation—for which the Prize Medal of the Great Exhibition of 1851 was awarded to PIERCE, the INVENTOR and SOLE MANUFACTURER—at prices from 50s. to 150s. upwards.

PIERCE’S PYRO-PNEUMATIC
Warming and Ventilating STOVE GRATES,

WHICH received the SOCIETY of ARTS’ Large Bronze Medal in 1859, is now in universal use, warming Churches, Public Buildings, Halls, Banking-Houses, Schools, Warehouses, Shops, &c., &c., &c. Prices, £7 10s. to £25.

Also his IMPROVED COTTAGER’S GRATE, for warming two rooms with only one fire. Price 30s. and 35s. And his ECONOMICAL RADIATING FIRE LUMP DRAWING-ROOM GRATES, made in a Variety of Elegant Designs. Prospectuses and Testimonials will be forwarded on application to PIERCE, at his Manufactory and Warehouse,

5, JERMYN STREET, REGENT STREET.


TWO Prize Medals were Awarded, at the Paris Exhibition, for LYON’S SAUSAGE CUTTING and MAKING MACHINE, Manufactured in Four Sizes, price £1 10s. to £6 6s. Also his Small Machines for the Dinner Table, used to assist digestion, Loss of Teeth, &c. These are made to keep the cooked food hot while being cut up.

An Improved Chopping Knife, for chopping suet, parsley, &c., fitted to a strong board. Also an Improved Cucumber or Potato Slicer.

Prepared Skins for Sausages, warranted to keep in any climate. A much-approved Seasoning Mixture for Sausages, &c.

A. LYON, Patentee and Manufacturer, 32, WINDMILL STREET, FINSBURY, LONDON.

Circular, with Plates, Price, and Testimonials, sent post free.




Birmingham Court.

JOSIAH WOOLDRIDGE, Manufacturer of Cabinet Brass Foundry, Brass Fittings, Brass Toy Cannons, Mortars, Anchors, Bells, and a variety of other Brass Toys. 38, St. Paul’s Square, Birmingham.


G. B. LLOYD & Co., Manufacturers of Lapwelded Iron Tubes for Steam Boilers, Gas and Steam Tubing, &c., Berkeley Tube Works, Gas Street, Birmingham.


JOHN C. ONIONS, Manufacturer of Smiths’ Bellows for Anchor Smiths, Machinists, and others, Patent Circular, House, Library, and every description of Fancy Bellows, Patent Water and other Tue Irons, Anvils, Vices, and Hammers, Improved Blowing Machines, &c., Bradford Street, Birmingham.


CHARLES ALLDRIDGE & SON, Cabinet and Stationery Case Manufacturers, Regent Parade, Caroline Street, Birmingham.


THE PATENT CRYSTAL WINDOW BARS, adapted for Domestic Windows, Shop Fronts, Conservatories, Skylights, Verandahs, Exhibition and Counter Cases, Aquariums, Fern Cases, &c., &c., combining perfect transmission of light, durability against rust or decay, and economy in the facility with which they are kept clean.

Aquariums with Slate or Marble Bottoms of various sizes, with or without Fountains, also of glass.

Manufactured by LLOYD & SUMMERFIELD, Park Glass-Works, Birmingham.

All kinds of Flint Glass, cut and plain, Coloured Window Sheet, Optical Sheet, Coloured Lenses, &c., &c.


[I-182]

GEORGE HAINES PARKES, General Coach, and Harness Furniture Manufacturer, for Home and Exportation, 10 and 11, St. Mary’s Row, Birmingham.


MESSRS. ELKINGTON, MASON, & Co., Exhibit Specimens of their Electro-Plate and Fine Art Manufactures, between the Sheffield and Birmingham Courts, in the Nave.




Sheffield Court.

ÆOLIAN PITCH-PIPES, TUNING FORKS, CHROMATIC FORKS, PORTABLE METRONOMES, TUNING HAMMERS, REED METAL. EDWARD GREAVES, 76, Milton Street, Sheffield.




Mineral Manufactures Court.

TO GOLD, SILVER, ANTIMONY, STEEL, AND BRASS MELTERS AND REFINERS.


THE PATENT PLUMBAGO CRUCIBLE COMPANY,
BATTERSEA WORKS, LONDON, S.W.,

MANUFACTURERS to the Royal Mints of England, France, Russia, Prussia, Holland, Belgium, America, California, Australia, &c., and every Gold and Silver Refiner in London, direct attention to the great superiority of their Patent Plumbago and other Melting Pots and Crucibles.

PRICE LISTS AND TESTIMONIALS ON APPLICATION.




Heath’s Bath Wheel Chair Department.

J. HEATH, 4, Broad Street, Bath, Maker to the Sovereigns of England, France, Spain, &c. &c., Manufacturer of the Chair presented by Her Majesty to the Empress of the French.




Foreign Glass Manufactures Court.

FRANCIS STEIGERWALD, Bohemian and Bavarian Coloured Glass Manufacturer, Munich.—Large Assortment constantly exhibited at the Crystal Palace, Sydenham.


[I-183]



French Court.

JEWELLERY.Bracelets, Brooches, Chains, Lockets, Charms, Keys, Seals, Ear-rings, Studs, Sleeve Links, Gem and Signet Rings, &c., in Gold, Silver, Pebble, Tortoiseshell, Ivory, Jet. Also in Electro-plating and Gilding.

FANS.Bone, Ivory, Pearl, Enamelled, and Sandal Wood (with Spangles or Painting), in Paper, Linen, Battiste, Kid, Silk, &c. Pocket Opera Glass, Shade, Bouquet, and other novelties.

LEATHER GOODS.Reticules, Etwees, Housewifes, Bags (fitted or unfitted), Dressing Cases, Desks, Blotters, Papeteries, Envelope, Stationery, and Etui Cases, Pocket Books, Porte Monnaies, City Purses, Season Ticket and Sermon Cases, Music Rolls, Needle Books, Cigar and Card Cases, &c. Papier Mache of every variety, in Plain, Inlaid, and Mediæval Work.

CABINET WARE of all descriptions, in Mahogany, Walnut, Ebony, Oak, Rosewood, Amboyna, Cedar, Coromandel, and other Woods.

SUNDRIES.—Pearl, Ivory, Scotchwood, and other works, in variety too numerous to particularise.


CUTLERY, PERFUMERY, BONBONS, PRINTS, &c., &c., CLOCKS, BRONZES, MODERATEUR LAMPS, &c., &c.
RUMSEY’S IMPROVED PLATE POWDER.


MANUFACTORIES—LONDON, BIRMINGHAM, SHEFFIELD, WHITBY, PARIS, FRANKFORT, DIEPPE, AND BERLIN.

ROBERT HOLT,
Proprietor.




Carriage Department.

CARRIAGES BY THE AID OF MACHINERY.

KINDER & McNAUGHT,
MANUFACTURERS,
WORCESTER,

BEG respectfully to invite the attention of all purchasers to the many Improvements recently introduced by them into modern Carriages. The style and excellence of their work is rarely equalled by the most expensive builders in London, and has the advantage of being produced at a moderate price,—a result mainly arrived at by an extensive adaptation of machinery, such as no other house in the trade possesses.

A communication by letter, or the favour of a call at their Works,—where, in addition to employing upwards of 100 hands, they have erected engines of 25-horse power, which, with the above, and several newly patented adjustments, may be seen in full operation,—is respectfully solicited.


SWAINE AND ADENEY, Whip Manufacturers to the Queen and Royal Family, Prize Medal awarded at the Exhibition of 1851.—No. 185, Piccadilly, London.


ROCK AND SON, Patentees of the Dioropha and other improved Carriages. Manufactory at Hastings. Export orders carefully packed.


[I-184]

Horses

BLACKWELL’S
PATENT SADDLERY AND HARNESS MANUFACTORY, &c.,

359, OXFORD STREET, NEAR THE MARBLE ARCH, LONDON.

AWARDED THE PRIZE MEDAL,
LONDON.
and THE ONLY 1st CLASS SILVER MEDAL FOR
SADDLERY, PARIS.

“GUTTA PERCHA JOCKEYS,” for Breaking Horses Temperate and Easy-mouthed, with vulcanized Rubber Spring Reins of varied strengths, 54s. to 60s. Above a thousand in use; Hire, 2s. per week.

SAFETY SPRINGS FOR RIDING AND DRIVING REINS TO BOTH BITS, one Rein in hand 4s. to 6s.

STRAPS TO PREVENT CRIB-BITING, LINED WITH CLOTH, 18s. Three sorts of crib-muzzles, 18s.

VULCANIZED INDIA-RUBBER SPRINGS FOR SADDLE STRAPS, GIRTHS, ROLLERS, BELTS, ETC., 2s.

BRASS, IRON, AND GERMAN SILVER (VULCANISED RUBBER SPRING) HOOKS FOR BRIDLES, REINS, WHIPS, CHAINS, ETC., Waterproof Kersey Knee Wrappers, Driving Aprons, Loin Cloths, and Horse Clothing. Web Fetlock, Speedy, Splint, Leg, Strengthening, and Knee Boots, with Rubber Knee Caps, 8s. to 12s.

To be seen, and the utility explained, in the Carriage Department, Crystal Palace.




East Gallery—Central Transept.

GOODYEAR’S “VULCANITE” COURT,
CENTRAL TRANSEPT GALLERY, GARDEN SIDE.

VISITORS to the Crystal Palace should inspect the above beautiful Court, which is built and furnished throughout with “Vulcanite,” or hard India Rubber, and where may be purchased

Combs, Opera Glasses, Pencils, Drinking Cups,
Canes, Penholders, Rings, Paper Knives,
Brooches, Book-marks, Brushes, Surgical Instruments,
Boxes, Cigar Cases, Flasks, &c. &c.

The Patent Woollen-Surfaced Waterproof Coats and Capes, equal to finest cloth—Overshoes—the Percussion Pencil—The Musical Toys—and innumerable other things made of the same material.

This new manufacture of India Rubber excels Ivory and hard wood in beauty of polish, durability, and elasticity. The Council Medal, Great Exhibition, 1851, and Grande Medaille d’Honneur, Exposition Universelle, 1855, were awarded, and are on view as above.

Wholesale Warehouse, 47, Leicester Square, London, W.C.


[I-185]



South-East Gallery.

Shop

THE BEST AND CHEAPEST TEAS IN ENGLAND
ARE AT ALL TIMES TO BE OBTAINED OF
PHILLIPS AND COMPANY,
TEA MERCHANTS,
8, KING WILLIAM STREET, CITY, LONDON.

For the convenience of Visitors to the Crystal Palace, Sample Packets of Phillips & Co.’s Rare Teas, Coffees, and Chocolates may be obtained at their Stand, in the South-East Gallery.

FRENCH CHOCOLATE,

As supplied to HER MAJESTY and the ROYAL FAMILY, may be obtained of Phillips & Company, in the South-East Gallery, and at 8, King William Street, City.

TEAS, COFFEES, AND SPICES SENT CARRIAGE FREE

To any Railway Station or Market Town in England, if to the value of 40s. or upwards.


PHILLIPS & COMPANY,
TEA AND COLONIAL MERCHANTS, 8, KING WILLIAM STREET, CITY, LONDON.
SUGARS ARE SUPPLIED AT MARKET PRICES.

A Price Current is published every month, containing all the advantages of the
London Markets, and is sent free by post on application.


[I-186]



South Gallery.

PERAMBULATORS, ROCKING HORSES, NURSERY YACHTS, BABY JUMPERS, &c.—MEAD and POWELL, Manufacturers and Patentees of the above articles, invite the attention of Parents and Guardians to the above useful inventions for Children. They have always on hand an extensive stock to select from; with every description of FOREIGN and ENGLISH TOYS. Also, a large assortment of BAGATELLE BOARDS, FANCY GOODS, &c., &c.

Agents for the Sale of Crystal Palace Season Tickets.

SOUTH EASTERN BAZAAR, 6, 7, 9, RAILWAY ARCADE, LONDON BRIDGE.


Glass domes

GLASS SHADES.

CLAUDET AND HOUGHTON,
89, HIGH HOLBORN.
PAINTED, STAINED, AND ORNAMENTAL WINDOW GLASS.
CLAUDET AND HOUGHTON, 89, HIGH HOLBORN.




Picture Gallery.

Having passed through the Picture Gallery, we arrive at the

West Gallery—Central Transept.

JOSEPH MORGAN,

PLATTED CANDLE WICK MANUFACTURER for all descriptions of Hard Material Candles. PATENTEE of SELF-CONSUMING WICK for Tallow, Mould, and Dip Candles. Patent Moulding Machines for making Spermaceti, Stearine, Composite, or Tallow Candles. Pewterer and Manufacturer of all descriptions of Candle Machinery.

DUCIE WORKS, MANCHESTER.


[I-187]

PHILLIPS AND COMPANY’S

CELEBRATED TEAS AND COFFEES,
AS EXHIBITED HERE, MAY BE PURCHASED AT THEIR STAND, IN THE SOUTH-EAST GALLERY, OPPOSITE. SEE CATALOGUE OE S.E. GALLERY.

Shop

SAMPLES OF RARE AND CURIOUS TEAS,
EXHIBITED BY
PHILLIPS AND COMPANY,
TEA MERCHANTS,
8, KING WILLIAM STREET, CITY, LONDON.


JONAS BROOK AND BROS.,
MELTHAM MILLS, NEAR HUDDERSFIELD.

THE ONLY PRIZE MEDAL FOR SEWING COTTON, &c., AT THE LONDON EXHIBITION, 1851.

The only First-Class Prize Medal for Sewing Cotton, &c., at the Paris Exhibition, 1855.

WHITE, BLACK, AND COLOURS.

Patent Glacé—6 and 9 Cords—Patent Cord—Sewing Machine Cottons. The Name and Goat’s Head Crest is on every reel.

Embroidering and Crochet Cottons—Upholsterer’s Colours—All lengths are guaranteed.

May be obtained retail of all respectable Haberdashers in London and the Provinces.

Wholesale: 20, CANNON STREET WEST, LONDON.

See their Case as it appeared in Paris in this Gallery. Specimens of their Manufacture are on sale by E. SUMNER, South Gallery, Crystal Palace.


PERFUMERY, COMBS, BRUSHES, TURKEY SPONGE, and every requisite for the Toilet, of the very best description, and in great variety, at J. & E. ATKINSON’S, 24, Old Bond Street, London.

J. & E. ATKINSON beg leave to recommend their New Perfumes, the CRYSTAL PALACE and TURKISH BOUQUETS, samples of which, with several others, are always open for inspection.

EAU DE COLOGNE, from J. M. Farina, opposite Julliers Place, Cologne.


[I-188]

THE POCKET SIPHONIA,
Or WATERPROOF OVERCOAT, weight 10 oz.
NOTICE.—Name and Address stamped inside. None other are genuine.
EDMISTON & SON, WATERPROOFERS, 69, STRAND.


RUPTURES—BY ROYAL LETTERS PATENT.

WHITE’S MOC-MAIN LEVER TRUSS is allowed by upwards of 200 Medical Gentlemen to be the most effective invention in the curative treatment of Hernia.

ELASTIC STOCKINGS, KNEE CAPS, &c.
JOHN WHITE, Manufactory, 228, Piccadilly, London.


RICHARD GUNTER, Motcombe and Lowndes Street, Albert Gate. Bride Cakes.—Wedding Breakfasts furnished complete with Wines and Attendance.



WALTER EVANS & CO., Boar’s Head Cotton Manufactory,
DERBY, exhibit:—

SPOOLS IN CROCHET, GLACE THREAD, 3, 6, and 9 Cord SEWING COTTONS.

BALL COTTONS (various sizes).

SEWINGS, TAMBOURS, CORDS, AND BONNET COTTONS, in Skeins.

KNITTINGS, MENDINGS, FRENCH AND ENGLISH EMBROIDERING COTTONS.

COTTONS IN PROCESS.


STAYS SUPERSEDED.—RUMBLE’S IMPROVED ELASTIC BODICE, recommended by eminent Physicians.—This superior and much-improved Elastic Bodice can with confidence be offered to Ladies as surpassing any yet made; it fastens easily in front, retains its firmness and elasticity, and by a peculiar system adopted by Mrs. Rumble, a perfect fit is ensured. Prices of Bodices, 12s. 6d., 14s., 16s., 21s. to 42s., and upwards. To be obtained only of the Manufacturer, M. RUMBLE, 2, Welbeck-street, Cavendish-square (opposite the Savings Bank), London.


CORK SOLES.

SAMPLES of various descriptions, chiefly remarkable for thinness and durability, PATENT CORK LININGS, for the upper parts of boots and shoes, for promoting warmth without interrupting perspiration. The Sheet Cork is rendered strong by a preparation, its extreme thinness prevents any perceptible increase in bulk or weight.

W. F. COLES, 61, Paul Street, Finsbury, E.C.


JAMES CARLILE, SONS, AND CO.,
Bank End Mill, Paisley,

MANUFACTURERS of COTTON and LINEN SEWING THREADS, viz.—6, 3, and 2 Cord, Crochet, Patent Glazed, and Wire or Bonnet Threads. Embroidery Flowering. Moravian and Darning Cottons, and Linen Slop or Beat Thread.


COMFORT TO THE FEET.

 EASE IN WALKING 

THE PANNUS CORIUM BOOTS and SHOES are extremely soft and easy, yielding to the action of the feet, without the least pressure or painful effect in walking. A valuable relief to all who suffer from Corns, Bunions, Gout, Chilblains, or any tenderness. The Pannus Corium sold by the yard or piece.

HALL & CO., Patentees, 2, WELLINGTON STREET, STRAND, leading to Waterloo Bridge.


LIGHT, CHEAP, AND DURABLE ROOFING.

CROGGON’S PATENT ASPHALTE ROOFING FELT effects a saving of half the timber usually required; has been extensively used, and pronounced efficient, and particularly applicable for warm climates.

Price, One Penny per Square Foot.

Samples, Testimonials, and full instructions, on application to Croggon & Co., 2, Dowgate Hill, London.


[I-189]

LADIES, LET YOUR SERVANTS USE
RUMSEY’S IMPROVED PLATE POWDER,

Without Quicksilver—the Largest Quantity for One Shilling, and you will never desire another preparation. Also RUMSEY’S CHEMICAL POLISHING PASTE, in large 6d. and 1s. Pots, for brass, steel, and other white metals; as well as his superior URN POWDER, in 6d. and 1s. Boxes. Sold almost everywhere, and by R. HOLT, FRENCH COURT, AND SOUTH-EASTERN GALLERY, CRYSTAL PALACE, SYDENHAM. Manufactory, No. 20, Clapham Road Place, Kennington, London, S., from whence the trade is supplied on exceedingly liberal terms.


WILLIAM TONKS & SONS, Cheapside, Birmingham, General Brass-Founders and Manufacturers of every Description of Brass work.


J. SOLOMON,
WHOLESALE OPTICAL & PHOTOGRAPHIC WAREHOUSE,
22, RED LION SQUARE, LONDON.

CATALOGUES GRATIS.




North Transept—Tropical Department.

Sundial

A SUNDIAL, like this, is placed on the Terrace of the Crystal Palace; it shows the time at eight different parts of the world at one sight, and also at the spot where it is placed.

Made by H. WEST, Optician and Sundial maker to the Queen, 41, Strand, opposite the Lowther Arcade.




Basement—Machinery.

ALFRED WRIGHT & CO.,

MANUFACTURERS of Smiths’ Bellows, Improved Blowing Machines, Portable Iron Forges, with bellows attached, of all descriptions, to Her Majesty’s Honourable Board of Ordnance, the Honourable East India Company, Retail and for Exportation. Also House and Fancy Bellows.

16, LITTLE ALIE STREET, WHITECHAPEL. LONDON.


REEDS OR SLAYS.

AMONG the various samples of REEDS or SLAYS, the only ones that received Honourable Mention by the Commissioners of the PARIS UNIVERSAL EXHIBITION were

A. BROWN’S, of BARNSLEY, YORKSHIRE.


RICHARD JOHNSON & BROTHER, Iron Manufacturers, Wire-Drawers and Galvanizers, 27, Dale-street, Manchester.


I. P. CLARKE, Manufacturer of Sewing Cottons, King-street Mills, Leicester. The interesting process of winding by steam power may be seen in the Machinery department.


C. A. PRELLER, 4, Lant-street, S.E., London, Specimens of Leather Lashing Laces, Twice-Stretched Machine Driving Bands, specially prepared for hot climates; Leather Ropes for grooved pullies, &c.


[I-190]

THORNTON & SONS, Birmingham, and 16, Fish-street Hill, London, Contractors, Merchants, and Manufacturers of all kinds of Railway Stores and General Ironmongery, exhibit Screw and Hydraulic Lifting Jacks, Railway Signals, Lamps, &c.




Agricultural Implements.

RANSOMES AND SIMS,
IPSWICH,

ENGINEERS, IRONFOUNDERS, AND MANUFACTURERS OF
AGRICULTURAL IMPLEMENTS.

MANUFACTURERS of Patent and other Iron Prize Ploughs, for Pony, One, Two, and Four Horse Power; Double Furrow Ploughs, Moulding, Subsoil, and Trenching Ploughs; Horse Hoes; Scarifiers, of two, three, and four horse power; Iron Harrows; Field Rollers; Crosskill’s and Cambridge Clod Crushers; Horse and Hand Drag Rakes; Portable and Fixed Prize Steam Engines; Prize Steam Thrashing Machines; Portable and Fixed, one, two, three, and four horse power Thrashing Machines; Barley Awners; Dressing-Machines; Chaff Cutters, for hand, horse, and steam power; Turnip Cutters and Graters; Bruising and other Mills for linseed, oats, and beans; Flour Mills; Oil Cake Breakers; Malt Mills; Saw Benches; Scotch and other Carts; Horse Gears; Cattle and other Feeding Troughs; Sack Barrows; Carriage Lifting Jacks; Grass Cutters, Hay Makers; Patent Stable Fittings; Copying Presses, &c., &c.

ILLUSTRATED CATALOGUES
MAY BE HAD ON APPLICATION TO THE WORKS, IPSWICH,
SHEPPARD RANSOME,
LONDON AGENT,
31, ESSEX STREET, STRAND, LONDON, W. C.
OR OF
C. GARROOD,
AGRICULTURAL SUPERINTENDENT, CRYSTAL PALACE, SYDENHAM.


Stand 43.—Corn and Seed Crushing Mills, Chaff Cutters, &c.

E., R., and F. TURNER have received the Royal Agricultural Society’s First Prizes for the above Mills at the Annual Exhibitions of 1853, 1854, and 1855 (the last occasion when a prize was offered). Also the 1st Prize and Gold Medal at the Paris Imperial Universal Exhibition of Agriculture, 1856; Large Silver Medal at the Grand Austrian Imperial Exhibition, Vienna, 1857. Illustrated Catalogues sent free on application to

ST. PETER’S IRON WORKS, IPSWICH.


RICHARD GARRETT & SONS, Leiston Works, Saxmundham, Suffolk; Patentees and Manufacturers of Agricultural Machinery of all kinds, and of the most approved construction.

Route to the Works: Per Eastern Counties Railway from Bishopgate-street, London, booking direct to Leiston.


MARRIOTT’S Improved Humane Bee-hives, for taking pure Honey without destroying the Bees, to be obtained of E. RIGBY and Co., 80, Gracechurch-street.


EDWARD HAMMOND BENTALL, Ironfounder, Patentee and Manufacturer of Agricultural Implements.

Works: Heybridge, near Maldon, Essex.

Warehouses: Swan Lane, Upper Thames Street, London, E.C., and 48, Rue des Marais, St. Martin, Paris.



THE
PORTRAIT GALLERY
OF THE
CRYSTAL PALACE.

BY
SAMUEL PHILLIPS.

Seal

CRYSTAL PALACE LIBRARY;
AND
BRADBURY AND EVANS, 11, BOUVERIE STREET, LONDON.
1854.


BRADBURY AND EVANS,
PRINTERS TO THE CRYSTAL PALACE COMPANY,
WHITEFRIARS.


[II-iii]

PREFACE.

Line

The object of the following pages is to extract from the valuable collection of Statues and Busts, that will be found adorning the vast area of the Crystal Palace, some of the interest and instruction which such works, if properly addressed, are certain to yield. Man looks at his own image with a more feeling curiosity than he regards the architectural remains of a city, however ancient, or of any structure, however beautiful. The broad brow of the poet whose works we have read, or the martial air of the soldier whose deeds we have heard, excite an instant desire for more intimate acquaintance with the men; and such acquaintance can never be formed without lasting advantage to all who are susceptible of instruction.

The limits of the present small volume have prevented my doing more than record, as briefly as I might, the salient points in the characters of the various personages whose statues and busts constitute the Portrait Gallery of the Crystal Palace; but I trust sufficient has been done to throw a little light upon the various features which the visitor will contemplate on his pleasant journey, and to indicate, however indistinctly, the universal path which, in life itself, leads to all true greatness. A portrait gallery exhibits the men who have worked their way to eminence. Biography teaches how they travelled the difficult and thorny road.

[II-iv]

The collection of Statues and Busts in the Crystal Palace is necessarily imperfect; but it begins with a goodly array. It is the intention of the Directors to extend and, as far as the nature of the subject allows, complete it; and there can be no doubt that we have already the elements of one of the finest portrait galleries in Europe.

I desire in this place to express my thanks to my friend M. Regnier, the eminent French comedian, to whose kindness I am indebted for much information in connexion with the French busts. I am also anxious to acknowledge the services of my assistant, Mr. Shenton, who, under severe pressure, has rendered me great help in the collecting and verifying of our interesting materials.

SAMUEL PHILLIPS.

Crystal Palace,
June, 1854.


[II-v]

CONTENTS.

Line
ANTIQUE PORTRAITS.
GREEK COURT.
SOUTH SIDE COURT—
PAGE
  GREEK POETS AND DRAMATISTS 13
NORTH SIDE COURT—
  GREEK PHILOSOPHERS, STATESMEN, AND GENERALS 19
ROMAN COURT.
  ROMAN EMPERORS 29
AVENUE IN FRONT OF ROMAN COURT 41
COURT OF THE ROMAN LADIES 43
COURT OF ROMAN GENERALS AND POETS 46

THE ITALIAN PORTRAITS—
  INTRODUCTION 54
  ARTISTS AND MUSICIANS 56
  POETS AND DRAMATISTS 69
  SOLDIERS AND STATESMEN 76
  PRELATES AND THEOLOGIANS 78
  KINGS AND QUEENS 79
THE FRENCH PORTRAITS—
  INTRODUCTION 80
  ARTISTS AND MUSICIANS 83
  POETS AND DRAMATISTS[II-vi] 91
  SCIENTIFIC MEN AND WRITERS 98
  SOLDIERS AND STATESMEN 109
  PRELATES AND THEOLOGIANS 121
  KINGS AND QUEENS 124
THE GERMAN PORTRAITS—
  INTRODUCTION 134
  ARTISTS AND MUSICIANS 136
  POETS AND DRAMATISTS 145
  SCIENTIFIC MEN AND WRITERS 149
  SOLDIERS AND STATESMEN 157
  PRELATES AND THEOLOGIANS 162
  KINGS AND QUEENS 163
THE ENGLISH PORTRAITS—
  INTRODUCTION 168
  ARTISTS AND MUSICIANS 169
  POETS AND DRAMATISTS 179
  SCIENTIFIC MEN AND WRITERS 188
  SOLDIERS AND STATESMEN 202
  PRELATES AND THEOLOGIANS 218
  KINGS AND QUEENS 220

[II-vii]

INTRODUCTION.

Line

Portraiture is associated with the earliest attempts at representing living objects, both in sculpture and in painting. Even amongst savages we find resemblances, carved or painted, or both, of the human form, generally grotesque, but always presenting an idea of Art. With the advance of civilization, the demand for portraits increased, as the knowledge of the means available for painting and sculpture improved. Men in authority, or possessed of great wealth, or renowned by deeds of arms and feats of strength, became the first subjects for the art.

That the Egyptians early practised portrait-painting, is evident from the discovery of mural sculpture, at a date anterior to the time of Rameses, representing painters delineating men and animals, and sculptors carving out of granite the very figures reproduced in another material, in the Egyptian Court of the Crystal Palace. Herodotus records the fact that Amasis sent his portrait painted on wood to Cyrene as a present; and some portraits of this kind were found in the tombs at Thebes. On comparing the heads of Rameses and Amenoph, several of which are to be seen in the Egyptian court, the individuality of each is at once perceived. Rameses has an aquiline nose and thin lips, while Amenoph has the turned-up nose and thick lips of the African.

In Clarac’s “Musée de Sculpture,” are collected many accurate engravings of the portraits of the Egyptians contained in the Louvre, which, according to this authority, are all verified, as many as eighty-six of them having their names attached. In the Imperial Library, at Paris, there is a collection of a hundred Chinese portraits of great antiquity. They were brought from[II-viii] China by the well-known Jesuit missionary, Père Ameot. Pauthier, author of a History of China, refers to these portraits, and considers them to be those of celebrated men and women living at a period long anterior to Confucius.

Croesus, King of Lydia, had the image of his baking woman set up in gold: and Herodotus has preserved the names of two Argive youths, Biton and Cleobis, who for their piety in drawing their mother, the priestess of Juno, to the temple, when the oxen for her car in a great solemnity did not arrive, had their statues placed by their countrymen at Delphi.

To the Greeks, indeed, we owe the finest examples of portraits in Sculpture. Their temples, forums, and other public places, as well as their private dwellings, were ornamented with the busts and statues of heroes, kings, poets, orators, and others distinguished by their achievements. Many of these examples have fortunately been rescued from destruction, and preserved to the present time.

The Romans, although not themselves, either by the gift of Heaven, or by their own tastes, artists, were great patrons of art. Many a rich Roman citizen had the court of his house converted into a kind of forum, which he adorned with his favourite portrait statues. From the precious ruins of Ancient Rome—from her temples, palaces, villas—countless statues and busts have been dug out. Her tombs also were furnished with portraits, busts, and statues, recumbent, or in other postures.

In all times, and in all countries, we note a desire to perpetuate the memory of the dead; and the pious as well as humane intention was carried out in various ways. The Egyptians enclosed their mummies in wooden and stone cases, carved and painted in order to resemble, more or less, the inhabitant within. The tombs of Etruria are usually surmounted by a half recumbent statue, which although but rudely representing the features and attitude of life, clearly reveal the intention to produce a portrait of the deceased person, but never—which became the custom in after ages—as though he were dead.

From the employment of sculptured portraits upon the monuments of the dead, and from the use of other images in the funeral rites, such representations came to be called “busts[II-ix],” from the Latin word Bustum, signifying a tomb, or rather place where the burning of the body took place. Since the majority of persons could not afford a statue, the less expensive memorial, consisting of the head and shoulders, was the more generally adopted; and hence the name now current amongst us.

Portraits played a still more important part in the economy of the ancient Romans. Images, or rather masks, made in wax and representing their ancestors, were kept by the Romans in the vestibules of their houses, placed in cases formed like temples, and there constantly exposed to the notice of the family and of visitors. When a member of the family died, these masks were worn by the friends who assisted at the funeral, as were the dresses and robes of office belonging to the ancestors whom they personated. After the ceremony, the images were faithfully restored to their sanctuaries in the vestibule.

Another use of portraiture was originally peculiar to the Greeks, but it became subsequently adopted by other nations. We refer to the practice of painting upon a metal shield the portraits of a family—often with the father in the centre—and of hanging it up as sacred to the gods. There are similar portraits extant, in terracotta, of Demosthenes in exile at Calauria, and of Thales. The ancients also painted portraits on wood in encaustic, and some portraits formed in mosaic still exist.

In proportion to the growth of luxury, and to the development of the arts, do we find the increased employment of portraiture. Every kind of work was decorated with a portrait. This was especially the usage of the Greeks under the successors of Alexander, at Alexandria, Antioch, and Pergamus; and with the Romans, towards the close of the Republic, and under the Emperors.

Engraved stones of seals and rings are exceedingly valuable in enabling us to identify antique busts and statues; their hardness having preserved them from injury. Very frequently they give the impression of being most accurate portraits. In the Greek Court is a large collection of casts of these extremely interesting works, which merit careful examination. Many of the heads are wonderfully beautiful—far surpassing in execution any similar work of the present time.

[II-x]

In like manner the portraits upon coins, being connected with writing, have been most useful in contributing to the knowledge and naming of antique busts and statues. Of these illustrations also, the visitor is enabled to study a very complete series from very early times.

The universal taste for portraiture exhibited by the ancients, and the encouragement to art which the vast wealth of many enabled them to afford, soon led to the formation of a gallery of portraits in every house of importance. Such a gallery contained portraits, both sculptured and painted, of great men in art, science, letters, and arms, and was called “The Pinacotheca.” The desire to render such a collection as complete as possible, led to the production of an infinite number of copies from those originally taken from the life: just as with us, houses are adorned with plaster-casts of the busts of Wellington, Shakspeare, and Milton.

It will now be understood how it has happened that so large a number of portrait-busts have remained to us from antiquity. Unless they had been multiplied in the manner described, the acts of ignorance and the accidents of time would have effaced all record of the features and aspect of the good and great in ancient story. Most of the works, executed in metal, were melted down and converted into money. One valuable mine, however, was happily discovered in the ruins of Herculaneum, completely preserved, and was removed to the Museum at Naples, where it still exists. Of several, so recovered, we possess fine copies in the Crystal Palace.

During the reign of Hadrian in Rome (A.D. 120), art enjoyed a revival—a Medicean period. A multitude of works of every kind were produced, and portraiture was carried to its height through the very zealous loyalty to which sculptors gave way, in their desire to flatter their imperial and magnificent patron, by representing the members of his family as so many gods and goddesses. The like encouragement was afforded under the dominion of Antoninus Pius (A.D. 140), and his adopted son, Marcus Aurelius; followed, unfortunately, by the destructive propensities of the odious Commodus, who would have limited portraiture to the representation of his own face.

We see the first efforts of portraiture in Christian art, in the representations—sculptured and painted—of saints in the early[II-xi] ages of the faith. Some examples of these will be found in the Byzantine and Mediæval Courts. A certain conventional form was adhered to in all these works, in which we remark especially a general elongation of the face and features, as if the aim had been to impress upon them the natural effects of emaciation from penance and fasting, the body and limbs being also subjected to the same treatment. The eyes are always almond-shaped, half closed, and sloping upwards from the nose. The portraits of Justinian, Theodora, Nicephorus, and Charles the Bald, on the façade of the Byzantine Court, bear evidence of their authenticity.

In forming our idea of an individual portrait painted in the early Christian period, we must never forget to allow for the formalities by which an artist of that time was inexorably directed. Statues and pictures were then produced (as indeed they are to this day by the monks of Mount Athos,) in accordance with rule and system—a sort of holy heraldry. At the time of which we now speak, we trace no general and popular use of portraits, such as we observed amongst the ancients, although they were still to be found in the hands of the most wealthy and cultivated. These were of an expensive kind, in mosaic and in miniature painting, the latter style being frequently employed when a valuable manuscript or missal was copied for presentation, and a portrait of the author or donor was usually painted upon it.

Mediæval portraiture shows a considerable advance upon the Byzantine, but is still inferior to the antique and to the portraiture of our own time. It was confined, almost exclusively, to monumental effigies, in which the artist was constrained to present the lifeless form, in the stiffness of very death—whether sleeping the sleep of eternal peace, or kneeling in the attitude of prayer. Some of the finest examples are to be seen in the Mediæval Court: of these more than one are doubtless portrait-statues of the time. The same may be said of some of the effigies of the Knights Templar, which exhibit great individuality, having been executed in a very hard kind of marble, that has well retained the features originally carved out of it. Busts of this period are exceedingly rare; inasmuch as portraiture of the kind was not in accordance with the religious feeling of the age. We must be content to take the effigies of mediæval art as portraits of the time; treated, of[II-xii] course, after certain conventionalities, but nevertheless truthful and most interesting.

The art of portraiture revived under the creative genius of Giotto and Orcagna, and of the great men of the Renaissance—Domenico Ghirlandaio and Giovanni Bellini—until it reached the highest dignity and beauty in the superb works of the mightiest of the mighty Italians—Michael Angelo, Raffaelle, and Titian. The most remarkable portraits of this period are paintings, and are therefore not to be found in large numbers in the Crystal Palace. In the beautiful gallery, however, of copies from the old masters, will be found several fine examples. In the Renaissance and Mediæval Courts, will be seen some of the statues from the tombs of Maximilian and Albert of Saxony—the finest portrait-statues of their kind. In the Italian Court, too, there are the immortal monumental statues of the Medici, and a superb bust of Cosmo de’ Medici by the inimitable Cellini.

The antique statues and busts described in the following pages are from

The Vatican, at Rome,
The Capitoline Museum,
The Naples Museum,
The Florence Gallery,
The Louvre,
The Berlin Museum,
The British Museum.


[II-13]

ΗΡΟΔΟΤΟΣ.

THE PORTRAIT GALLERY.



ANTIQUE PORTRAITS.

Line
GREEK COURT.—South Side-Court.
POETS AND DRAMATISTS.

[28]1. Homer. Great Epic Poet of Greece.

[Born, probably B.C. 850. Place of birth unknown.]

A majestic antique Bust. The kingly and venerated Patriarch of all Poets, for the western civilization—or, the sound of a Name! The two wonderful poems which bear down this name—whatever signifying—through the lapse and revolutions of time, preserve, as it were, the image of an extinct world: although of a world, perhaps less than half real, and more than half ideal:—for the manners were: the persons and events may, or may not have been: and the gods and goddesses of the “Iliad” and the “Odyssey” were, we know, only a believed-in, waking dream. But, by the potency of the song, the picture lives! The war, imaginary or no, raging between the Hellespont and the[II-14] foot of Mount Ida, remains, to the educated memory of the nations, like the beginning—if not of the world’s, yet of its western half’s—history. And those heroes and heroines, with their high actions and their deep passions—the unrolling, embroidered web of their fortunes and fates:—the king of men, Agamemnon,—the swift-footed son of the sea-goddess, Achilles,—-the sage, long-lived Nestor,—the shrewd, enduring Ulysses,—Ajax, a tower in the fight,—Diomed, favoured of Minerva present beside him in the storm of spears;—and that grey-headed, imperial sire of Troy, with all his falling sons, Priam,—the gallant and good Hector,—the loving and faithful Andromache,—the aged, too fruitful mother, Hecuba;—even the fatal and criminal, but divinely beautiful Helen—Is it not a strange magic that dwells in the creative thought of the poet, and in his modulated words, and that thus, in a language, and with manners, a faith, an age—all so long since dead and gone—can, as if reviving all, render those Shadows, to us—now, here—the earliest objects of a wondering and aspiring enthusiasm:—the first enkindlers in our bosoms of that glowing, intense, comprehensive, and intelligent sympathy, which transports us out of the central self, and beyond the close-drawn horizon of our own particular life, to feel the conditions and to understand the spirits of all our fellow men? Let the theory be true, which denies to these incomparable works an individual author—which supposes them woven together of many songs, first sung in many places, by many singers; let the benignly august, fillet-bound head before us, be—that which only at last it can be—a conjecture of the Grecian chisel;—we see at least here how the consummated art of sculpture has chosen to express, in corporeal form, the one soul of power which animates those immortal twins of poesy. We see in what shape of a human head, crowned with its own irradiations, the fountains of all song might have sprang. We see what the living and wandering minstrel of Greece, beloved and honoured wheresoever, in hall or on green, he and his harp came,—what the individual Homer, for whose birth seven cities contended, and whom in the after-day the land numbered amongst her half-divine and worshipped heroes—WOULD HAVE BEEN:—or, WAS!

[Although modern antiquaries agree with Pliny that busts of Homer are apocryphal, yet there can be no doubt this is the true Greek conventional portrait of that poet. A headless marble was dug up inscribed with his name and shortly afterwards the head itself was found in the same hole, and it fitted precisely to the marble previously discovered. The bust, so found, is now in the Naples Museum. The same head is constantly found in other representations of the ancient poet. The head is bound with the “strophium,” an ornament given by the Greek artists to their gods and heroes. The attitude of the head would seem to express the blindness with which Homer, according to tradition, was afflicted. This bust is from the marble in the Stanza dei Filosofi of the Capitoline Museum, Rome.]

[28] The objects forming the Portrait Gallery in the Crystal Palace, are numbered in red figures throughout.

2. Archilochus. Greek Poet.

[Born at Paros, about B.C. 700. Killed in battle, about B.C. 635]

A satirical poet of great renown, whose acrid pen spared neither friend nor foe. A writer also of licentious verse. Fragments only of his compositions have come down to us. To him is attributed the invention of the Iambic measure, and he shares with Thaletas and Terpander the honour of establishing lyric poetry in Greece. The victors in the Olympic games were accustomed to sing one of his hymns in their triumphal procession. The countenance of his statue denotes impudent boldness.

[II-15]

[The two early poets united: a mode of portraiture adopted by the Greek artists when two celebrated men were of the same country, and of kindred pursuits, as Herodotus and Thucydides, parallel historians; Metrodorus and Epicurus, philosophers of the same sect (see No. 20). This double terminal or Janus was found at Rome on the Celian Hill: it is now in the Vatican. The ends of the noses are modern, as are some other parts in the Homer. That portraits of Archilochus existed so long after his death is proved by the existence of an inscription in the Analecta of Thucydides written for his portrait.]

2A. Homer. Great Epic Poet of Greece.

[For life see No. 1.]

3. Æsop. Writer of Fables.

[Born in Phrygia, about B.C. 620. Died about B.C. 560.]

The reputed author of the fables to which his name has been for centuries attached. According to the general account, he was originally a slave, and gained much notice for his wit, and especially for his talent of communicating useful maxims in the form of apologues. His talent procured him favour at the court of Crœsus. He is said to have been thrown from the top of a rock and killed, by the priests of Delphi. His fables, at first preserved by tradition, were at a later period converted into Greek and Latin verse by Babrias and Phædrus. We have them in Greek prose, told naturally and in the utmost simplicity. In stature Æsop is described as small and hump-backed, with a prominent stomach and pointed head, yet the intellectual expression of his countenance is not that usually given to dwarfs.

[From the very remarkable half-figure in marble in the Villa Albani, at Rome; the whole of which is of great antiquity. It has been maintained that Æsop was not deformed, inasmuch as the circumstance is not mentioned by writers, before the time of the Greek monk, Planudes Maximus. There are, however, traditions affirming his deformity, and Plutarch, in his Feast of the Sages, makes him sit upon a low stool at the feet of Solon. The countenance has a thoughtful and elevated expression. Lysippus sculptured the portrait of Æsop to be placed amongst the sages of Greece at Athens. Phædrus refers to this work, and the celebrity of the man is fixed by the fact that the court sculptor of Alexander employed himself upon his statue.]

4. Homer. Great Epic Poet of Greece.

[From the marble. Once in the Capitoline Museum; now in the Louvre.]

5. Epimenidies. Poet and Prophet of Crete.

[Flourished about B.C. 596]

St. Paul in his Epistle to Titus (i. 12) is supposed to allude to Epimenides. But little more than his name and existence are known, apart from tradition. About B.C. 596, he was invited to Athens, in order to stay the plague brought upon the city by an impious outrage committed by Cylon, one of the Athenian rulers, on the altars of the Acropolis. Succeeding in arresting the pestilence, he augmented his already great fame—but he refused any other reward beyond the goodwill of the Athenians in favour of the inhabitants of Gnossus, where he dwelt. He was a native of Crete.

[From the marble in the Vatican. One of the conventional portraits of the ancient Greek poets. The closed eyes are to represent the sleep which tradition says he fell into for fifty-seven years.]

6. Æschylus. Tragic Poet.

[Born at Eleusis, in Greece, B.C. 525. Died at Gela, in Sicily, B.C. 456. Aged 69.]

The founder of Greek tragedy as it existed in its greatness. He introduced[II-16] a second actor upon the scene, and gave dramatic interest to his act, by rendering dialogue the most important element in the play. He improved the masks and dresses of the actors, and raised the character of the choral dances. The scenes painted under his direction were, it is said, the first in which the idea of perspective was maintained. Sublimity and magnificence characterize the style of his tragedies, in which the action and plot, with an unparalleled simplicity of structure, move on, in commanding and stern strength, to their catastrophe; supported by grand imagery, with diction wrested to the height of energy and solemn passion. The characters drawn by Æschylus are as lofty as the language which they speak. We almost yearn for the simple voice of Nature as we listen to the sustained thunder-tone of this great master. His mind seems ever attuned for discourse with the Gods; yet in the “Prometheus,” though dealing with a demigod, he describes with awful power, human suffering and human passion in its saddest and most thrilling aspect. The family of Æschylus were remarkable for their valour, and he himself fought bravely at Marathon and Salamis. He was an actor in his own plays.

[From the marble in Stanza dei Filosofi, of the Capitoline Museum, at Rome.]

7. Sophocles. Tragic Poet.

[Born at Colonus, in Attica, about B.C. 495. Died probably at Athens, B.C. 405. Aged 90.]

In Sophocles, Æschylus found a rival and a conqueror. When Cimon (B.C. 468) returned from the Isle of Scyros, with the ashes of Theseus, the first play of Sophocles (“Triptolemus”) was preferred to the composition of Æschylus, who in chagrin retired to Sicily. From this time Sophocles stood alone, until he, in his turn, met a successful rival in Euripides. In 440, he produced “Antigone,” for its calm beauty, and the pure picture of heroic, feminine self-devotion, one of the finest antique tragedies extant, and the occasion of his promotion through the favour of Pericles. In the person of Sophocles was represented the ideal of Greek perfection. He was very beautiful; he excelled in gymnastics, music, and dancing; in temperament he was calm and contented; in disposition kind and cheerful; he had a ready wit, a serene piety, and intellectual grandeur. His tragedies have an advantage over those of Æschylus, in being essentially human; they appeal to the feelings of an auditory, and are written in a less magniloquent style than that of the sublime father of Greek tragedy,—to whom, however, Sophocles lay under the obligations of a pupil to his instructor. Both are profound masters of their art.

[This bust is from the Capitoline Museum, and is identified by another in the Vatican—found in 1778—on which all the letters of the name remained, except the SO. It was for a long time called Pindar,* because of the inscription; Bottari has proved it to be Sophocles, whom it completely resembles. Compare the Lateran statue, No. 325, standing in the great Transept, near the monument of Lysicrates.]

*. Pindar. Greek Poet.

[Born probably at Thebes, about B.C. 522. Died there, about B.C. 442. Aged about 80 years.]

The most famous lyric poet of Greece. Sent at an early age to Athens, he became the pupil of Lasus. He sung the victors in the Olympic, Nemæan, Pythian, and Isthmian games,—the great festivals of assembled Greece. Forty-five of these odes of triumph are all that have descended to[II-17] us; they are characterized by great boldness of style, spirit, and trumpet-toned enthusiasm, but the brilliant diction does not escape obscurity; and the modern student often follows with difficulty the excursive wing of “The Theban Eagle,” through the wide regions of Hellenic mythology. Pindar’s earliest extant work was written in his twentieth year. He is described as a man of strong religious feelings, and a devout worshipper of the gods.

8. Æschines. Greek Orator.

[Born in Attica, about B.C. 389. Died in the Isle of Samos, B.C. 314. Aged about 75.]

One of the greatest Greek orators. Was at the battle of Mantineia (B.C. 362), and distinguished himself at the battle of Tamynæ in Eubœa (B.C. 358). Afterwards entered into political life, and became a partizan of Philip of Macedonia. Accompanied Demosthenes on two embassies to Philip, and was accused by Demosthenes of betraying the interests of the state to that monarch. The speech of his accuser and his own admirable defence are extant. His last great public act was the prosecution of Gtesiphon for illegally proposing to present Demosthenes with a golden crown for his services to the state. Demosthenes defended the accused, and the speeches of the two orators delivered on this occasion are also preserved. The prosecution failing, Æschines at once went into exile (B.C. 330). As a popular leader and orator worthy to be called the rival of Demosthenes. He lacked the vehement passion and powerful invective of that consummate master, but his lucid arrangement, his facility and perspicuity, have never been surpassed.

[For an account of this statue, so long called Aristides,* see Handbook to Roman Court and Nave, No. 326.]

*. Aristides. Athenian Patriot.

[Born (uncertain). Died about B.C. 468.]

His unbending integrity procured him the title of “The Just.” Was at the battle of Marathon (B.C. 480), where he fought bravely. Opposed to the extreme democratical party in Athens, headed by Themistocles, by whose influence he was banished (about B.C. 483). He was still in exile at the time of the sea-fight of Salamis (B.C. 482), but he raised a band, and fought for his country in this battle. Recalled by the Athenians from banishment, and commanded their army at the battle of Platæa (B.C. 479). His sense of justice spotless: his self-denial unimpeachable. At his death he was very poor, although he had borne the highest offices of the State. The Athenians became more virtuous from the contemplation of this bright example. It is related that in the representation of one of the tragedies of Æschylus, a sentence was uttered in favour of moral goodness. The eyes of the audience turned involuntarily and at once from the actor to Aristides.

9. Euripides. Greek Poet.

[Born at Salamis, B.C. 480. Died in Macedonia, B.C. 406. Aged 74.]

The father of Euripides, putting his own interpretation upon the oracle which promised that his son should be crowned with “sacred garlands,” had him carefully trained in gymnastic exercises, and whilst yet a boy Euripides won the prize at the Eleusinian and Thesean games. But the lad was soon allured from physical sports, by the fascinations of philosophy and literature. He became the ardent pupil and friend of the philosopher Anaxagoras, and the instruction thus derived is visible in many of his productions. At the[II-18] age of 18, Euripides wrote his first tragedy. He gained the first prize B.C. 441, and continued to exhibit his plays until within two years of his death. He died in Macedonia, and is said to have been torn in pieces by the dogs of the Macedonian king. Twenty of his plays are extant. Like Anaxagoras, Euripides was of a serious temper, and averse to mirth. He was intimate with Socrates, and the contemporary of Herodotus, Xenophon, Thucydides, Pindar, Aristophanes, Æschylus, and Sophocles. To assign him his poetical rank we must look back. In the three great Attic tragedians we trace a natural progress of their theatre. In Æschylus, the stage appears attracted with predominant force to the high mythological ideas which it arose to embody: the muse stalks sublimely above the heads of men. In Sophocles, the art tempers and adjusts, with admirable equipoise, the superhuman and the human element; the spirits and hearts of men are more closely approached by the poet, still overshadowed by the heroic and the divine. In Euripides, although the story which he represents is still drawn from the same source of divine and heroic fable, the sympathy with passions, events, interests, and sufferings, incident to humanity, prevails in excess. With him, amidst strewings of beautiful poetry, and whilst penetrated with strokes of singular pathos, we too much feel that we step on our own daily and common earth. We miss the elevation of an art which should, in reflecting ourselves, lift us above ourselves: as we have experience in our own Shakspeare. Sophocles said that “he himself represented men as they ought to be, but Euripides as they are.”

[This bust is verified by another in the Louvre, and one in the Naples Museum, which has the name of Euripides engraved on the breast. There is also a cameo of exceeding beauty in the Louvre, on which we find the same head. Portraits of Euripides were common at Athens, and even as late as the 5th century his statues were to be seen at Constantinople. A small seated statue of Euripides will be found in the Bas-relief Gallery, No. 215. It is inscribed with his name, and has a list of his plays, upon the slab which supports the statue. See Handbook to Greek Court, No. 215.]

10. Aratus. Astronomer.

[Flourished about B.C. 270.]

A fellow-countryman of St. Paul, who quotes one of his works in his address to the Athenians. Called to the Court of Antigonus Gonatas, King of Macedonia. He there pursued physics, grammar, and philosophy. He also versified two astronomical treatises by Eudoxus. There are many errors with much want of precision in the descriptive portions of these works, proving the poet to have been neither a mathematician nor an acute observer. As a poet, Aratus was hardly more eminent. He is wanting in originality and poetic feeling; yet his verses obtained popularity both in Greece and Rome.

[The well known head, representing, as it is supposed, the Poet of the Stars, in the attitude of viewing the heavens. The same head is found on medals, of which the best is preserved in the Hunterian Museum of the College of Surgeons, London.]

[II-19]



GREEK COURT.—North Side-Court.
Line
GREEK PHILOSOPHERS, STATESMEN, AND GENERALS.

11. Bias. Greek Philosopher.

[Born at Priene, in Ionia. Flourished, it is believed, about the middle of the Sixth Century B.C.]

One of the Seven Sages; and of the four to whom alone the title was universally conceded: the remaining three being Thales, Pittacus, and Solon. His profession was that of an advocate; his philosophy was practical—the fruit of experience. Many of his sayings and doings have been recorded. He died at a very advanced age.

[From the marble in the Vatican, which bears his name and the motto:—

ΟΙ ΠΛΕΙΣΤΟΙ
ΑΝΘΡΩΠΟΙ
ΚΑΚΟΙ.
“The majority of men are bad.”

A curious mistake of the engraver is observable in the word ΠΡΗΝΕΥΣ, in which the I is omitted; it should have been ΠΡΙΗΝΕΥΣ, the name of his birth-place. This bust was found at Tivoli, with that of Periander, No. 29.]

12. Thucydides. Greek Historian.

[Born at Athens, B.C. 471. Died (place uncertain) B.C. 395. Aged 76.]

This great historian, holding military command in Thrace, suffered Amphipolis to be surprised and taken by the Spartan general, Brasidas; and for this misfortune was banished by his countrymen during the space of twenty years. It would have been a greater misfortune for the world had Thucydides proved a warier soldier; for it was during his exile, that he collected with infinite care the materials of his immortal history. That history chronicles, in eight books, the events of twenty out of the twenty-seven years of the Peloponnesian War:—a record of most interesting facts. Where political and moral observations occur, they reveal great knowledge of human character and motives. The style is pregnant, precise, and severely simple. Demosthenes is said to have copied the entire history many times with his own hand as a lesson of composition. The principal actors in the war were the historian’s books of reference. As an historical monument the work is matchless. It has been always believed that Thucydides came to a violent end, but it is not known whether he died at Athens, or in Thrace.

13. Socrates. Philosopher.

[Born near Athens, B.C. 468. Died at Athens, B.C. 399. Aged 69.]

One of the greatest names in ethics, philosophy, and religion before the Christian era. It was the belief of Socrates that he was specially charged by the Deity to awaken moral consciousness in men. He had no school, neither did he, like the sophists of his time, deliver public lectures. But he stood in the market-places, or entered the work-shops, or visited the schools, in order to teach the people his ideas respecting the scope and value of human speculation and action. Aristophanes, the comic poet, ridiculed and misrepresented the philosopher, who proceeded, nevertheless,[II-20] with undaunted perseverance. After the banishment from Athens of the “Thirty Tyrants,” Socrates was impeached for corrupting the youth, and despising the tutelary deities of the state. He was condemned, and, preferring death to acknowledging, by a supplication for pardon, that he deserved punishment, he swallowed poison. Whilst the cruel draught was performing its work, he developed the grounds of his immovable conviction of the immortality of the soul, and with his very last breath pointed to a future state, as the true recovery from impurity and disease. He left no writings behind him. We derive our knowledge of his doctrines and character, mainly from his illustrious disciples, Xenophon and Plato. He effected a grand revolution in philosophy, for he first connected with Supreme intelligence, the attributes of goodness, justice and wisdom, and the idea of direct interposition in human affairs, and recalled Reason from vain disquisitions, to the questions which come home to the business and bosoms of men. In person, Socrates was said to resemble the god Silenus. His looks were as repulsive as his life was irreproachable and perfect. His peculiar method of teaching, since called the Socratic, was, by a series of artfully contrived questions, to draw out from the mind of his colloquist the truths which lay unconsciously embosomed there, or to entangle proud and false reasoning in self-confutation.

[A countenance so little expressive of wisdom and goodness, that it might be mistaken for that of a Silenus, whom he also equalled in the almost deformed rotundity of his figure. But this bust, which is from that in the Louvre, and an exceedingly fine work, has been proved to be a portrait of him by its close resemblance to the other busts of the same subject, and to that in particular in the Farnese Collection which bears his name, and the motto which Plato gives him (Criton). Busts and cameos of Socrates are numerous. No. 13A is from the Stanza dei Filosofi of the Capitoline Museum; it is inferior to the first described.]

13A. Socrates. Philosopher.

14. Hippocrates. Physician.

[Born at Cos, in the Ægean Sea, about B.C. 460. Died about 357. Aged 104.]

The great fame acquired by Hippocrates, would seem to have been won by a steadfast adherence to the sagacity of common sense. He had no chemical knowledge, and his acquaintance with anatomy appears to have been scanty and uncertain; yet, knowing how to turn a rare experience to account, and confining his operations mainly to the watching and assisting of Nature, he succeeded in obtaining credit for superhuman skill. His nephew, who is reputed to have possessed almost equal merit with his uncle, was murdered in a fit of jealousy, by Hippocrates, who shortly afterwards fell a sacrifice to the torments of remorse. A great number of works are extant under his name, but most of them were written by his disciples.

[From the marble in the Louvre, which has been verified by a medal bearing the name of Hippocrates, and showing a perfect resemblance to the head. There are several busts of Hippocrates in existence—one in the Capitoline Museum, another at Florence, and two in the Louvre.]

15. Isocrates. Rhetorician.

[Born at Athens, B.C. 436. Died B.C. 338. Aged 98.]

It is said that Isocrates was the first man to describe the true value and objects of oratory. His language is the purest Attic; his style, which he elaborated with great pains, elegant and polished. As teacher of rhetoric, he became the instructor of the chief youths of his time. He composed[II-21] several discourses on great political occasions, and amassed considerable wealth. He had throughout life a constitutional timidity, and a weakness of voice that prevented him from speaking in the assemblies of the people. Socrates had been one of his masters. His character appears to have been spotless.

[From the bust in the Villa Albani at Rome, bearing the name of Isocrates. A statue of him was sculptured by Leochares for the temple of Eleusis, and another is described by Pausanias as in the temple of Jupiter Olympius, which statue is spoken of by Christodorus, as being at Constantinople in his time.]

16. Plato. Greek Philosopher.

[Born at Athens, B.C. 430. Died B.C. 347. Aged 83.]

The most illustrious amongst the disciples of Socrates. The doctrines of the great teacher have descended to us chiefly through the writings of this eloquent hearer. Whence, a singular and inextricable conflict. The sturdy, keen, practical plain sense of the master, and the soaring, brilliant imagination, and subtly-dividing wit of the pupil, have come down to us mingled ever in the same composition. In these extraordinary dialogues, which display the spoken Greek of Athens in its utmost purity, beauty, and melody, how much is Plato’s?—how much is of Socrates? The two busts may go as far as any other authorities, in affording the almost discretionary reply. The lip on which, whilst in the cradle, tradition says that the bee settled—signifying the sweetness of the speech which should flow from it—is before us, in part of the answer. Plato was, in his earlier life, a poet, but gave his poetical compositions, amongst which are mentioned an epic poem and a tragedy, to the flames. He excelled in bodily exercises, being distinguished as a wrestler. He travelled much in the quest of knowledge. Like his illustrious preceptor, he taught that wisdom, under which we must comprise goodness, is the attribute of the Godhead,—that philosophy is an intellectual necessity, and, as the fountain of virtue, which it thus includes, the most estimable of all the goods within the reach of man. Abstruse and sublime, seeking to rest science and morals on an immutable basis, Plato trains the intellect more than he teaches. In reading his writings, we enter the Socratic school as hearers, as disputants. The Socrates, who constantly leads the discussion, is rather the presiding Spirit, than the Man. We come out, whatsoever else, worshipping students of the True, of the Fair, of the Good.

[From the very beautiful little bust in the Florence Gallery. He wears the “strophium” as a mark of his great honours. This bust possesses a great claim to authenticity, on account of the name being deeply cut upon it in Greek letters of the antique form. There is a similar bust in the Naples Museum, of the same size, and inscribed with the name of Plato.]

17. Antisthenes. Philosopher.

[Date and place of birth unknown. Died at Athens. Aged 70.]

He is the founder of the Cynic philosophy and flourished about B.C. 375. He taught the love of poverty and labour, the renunciation of all the pleasures and conveniences of life, and contempt for everything but virtue, in which only he allowed true happiness to consist. It is said that Antisthenes left more books than scholars. But Socrates was his friend and Diogenes his pupil. His countenance did credit to his creed: it was severe, and looked the more terrible from his dishevelled hair and hanging beard. He taught[II-22] in the Gymnasium at Athens, called Cynosarges; and hence the name of his school—the Cynic.

[From the marble in the Vatican. It was found in the ruins of Hadrian’s Villa, and is of great beauty. It resembles another bust in the Vatican, which was found in the villa of Cassius at Tivoli, but which is of less merit, except that it bears his name. The portrait agrees precisely with the descriptions given of Antisthenes by the ancients.]

18. Diogenes. Philosopher.

[Born at Sinope, in Asia Minor, about B.C. 412. Died at Corinth, B.C. 323 or 324. Aged 90.]

Having been detected with his father, a banker, in some dishonest transaction, Diogenes went to Athens, where he became the pupil of Antisthenes, and adopted the Cynic philosophy. He carried his contempt for riches and the usages of society to an extravagant excess. He subsisted on charity, and slept where he could. Some doubt is thrown upon the story of his living in a tub. He said that all the vicissitudes of fortune which constitute tragedy, had been realized in him, but that patience had raised him above them all. When advanced in years he was taken by pirates to Crete, and there sold as a slave. Regaining his freedom, he revisited Athens and Corinth, and in the last-named city had his memorable interview with Alexander the Great. He inculcated morality, but despised intellectual pursuits. His disposition was kind and humorous, though his statue has an acute and caustic countenance.

[From the marble in the Sala delle Muse of the Vatican. It is verified by its close resemblance to the head of a little statue in the Villa Albani at Rome, representing the Cynic perfectly nude, and accompanied by his dog. It is said that he sometimes appeared in the streets in this state, after having anointed his body, a piece of eccentricity that gave rise to the joke of Juvenal, that the Stoics differed from the Cynics only in the shirt, “tunicâ tantum.” There is in the Villa Albani an antique bas-relief representing Alexander the Great standing before the Cynic in his tub.]

19. Demosthenes. Greek Orator.

[Born at Athens, B.C. 381. Died in the isle of Calauria, opposite Argolis, B.C. 322. Aged 59.]

A chief, if not the chief of—

“Those ancients, whose resistless eloquence
Wielded at will that fierce Democracie,
Shook th’ Arsenal, and fulmin’d over Greece,
To Macedon and Artaxerxes’ throne.”[29]

This eloquence in Demosthenes—to the modern mind, the one unrivalled exemplar of the ancient Greek oratory—-was like a trained athlete, living nerve and bone. When Athens lay daunted under the successes of Philip of Macedon, Demosthenes, by the sole power of speech, roused the people to energetic warfare. His style was fit for sustaining argument on the destinies of great nations. It was simple, severe, lofty, vehement, and of irresistible power. He acquired this consummate mastery, having, by an invincible perseverance, vanquished seemingly invincible natural obstacles. At one period of his life Demosthenes was accused of receiving a bribe from Harpalus, a Macedonian General, who fled to Athens, to escape the vengeance of Alexander. He quitted Athens. Upon the death of Alexander he returned to the city; but the Athenian arms proving unsuccessful against Antipater, the ruler of Macedonia, the life of the orator was demanded by the conqueror.[II-23] Demosthenes fled again—this time to the isle of Calauria—where he took poison to save himself from the swords of the soldiery. Looking upon the deep, contemplative, sad brow, figured in stone, we might well fancy that we see, gleaming there, a too real consciousness of the requital awaiting even the greatest Athenian, for services which no reward could measure.

[From the marble in the Louvre. Several busts in various collections had been called Terence, Pythagoras, Plato, and other names, when there were dug up in Herculaneum two bronze heads, on one of which was the name of Demosthenes; it was at once perceived that the busts above referred to had been wrongly named; for they one and all represented the great orator. A very beautiful carved medallion in amethyst exists also at Rome, which is an undoubted likeness of him. For an account of the statues of Demosthenes see Nos. 308 and 321 in the Handbook to the Roman Court and Nave.]

[29] Paradise Regained.

20. Epicurus. Philosopher.

[Born probably at Samos, in Greece, B.C. 342. Died at Athens, B.C. 270. Aged 72.]

The system of Epicurus has been much misrepresented. He did not teach mere refined animal enjoyment. He considered indeed human happiness as the end of philosophy, and he defined happiness as pleasure,—pleasure itself being defined as perfect independence, self-reliance, and contentment. The great aim of his ethics was to point out the way to the attainment of such happiness. The habits of Epicurus were temperate and frugal. During the later years of his life, he was afflicted with much physical suffering, and he bore it with fortitude and patience. He held his celebrated school, which founded the sect bearing his name, in a garden purchased by him at Athens.

20A. Metrodorus. Greek Philosopher.

[Born either at Lampsacus or Athens, B.C. 329. Died B.C. 277. Aged 52.]

A devoted follower of Epicurus, between whom and his disciple the closest friendship subsisted. Upon the death of Metrodorus, Epicurus provided for his children. But Metrodorus failed to do justice to the philosophy of his master; and was the first to attach to the Epicurean idea the sensual notions that have ever since, more or less, been identified with it.

[The master and his intimate friend and disciple united. Busts of Epicurus are common. Such was the enthusiasm of his followers, that his portrait was multiplied in every way, and even the furniture of rooms engraved with his name. This double terminal is from the Capitoline Museum, at Rome, and bears the names of the two philosophers. It was dug up at Rome in 1742, when the foundations were making for Sta. Maria Maggiore. Epicurus is identified also by a beautiful and perfect little bronze found at Herculaneum amongst the remains of a library of a disciple of Epicurus; which bronze is now in the Naples Museum.]

21. Zeno. Founder of the Stoic Philosophy.

[Born at Citium, in the Isle of Cyprus, about B.C. 362. Year of death uncertain.]

The son of a merchant, and himself a trader. Whilst pursuing his vocation, he obtained some works on the Socratic philosophy; read them with eagerness, and resolved to abandon trade for philosophy. Became a disciple of the Cynics; then a pupil of Stilpo of Megara; then lent an ear to the expositors of Plato. After twenty years’ study and inquiry, he turned aside from all existing schools, and created one for himself. The place chosen by him for his instructions was a portico, adorned on the wall with paintings by Polygnotus, hence called “The Variegated Porch” (Stoa Poicilē).[II-24] Thus he and his pupils were called Stoics. They placed happiness in virtue. Virtue is—to live, by the rule of right reason, a life consistent with itself and with universal nature: and lifts above all consideration of pleasures and pains. The absolute moral rectitude of volition and action is the steering star. But that secured—the humanities, courtesies, and customs of life are not, after the fashion of the Cynics, to be slighted and trampled upon. Zeno commands our respect by the purity of his life. He lived to a great age, though of weakly constitution, by dint of regularity and moderation. He had a serious and thoughtful countenance, corresponding to the severity of the doctrines he taught. In his 98th year, quitting his school, he fell to the ground and broke his finger. “Why am I thus importuned?” he exclaimed. “Earth, I obey thy summons.” He went home, and strangled himself.

[From the marble in the Sala delle Muse of the Vatican. It was identified by the stooping attitude of the neck, a slight deformity which is referred to by the contemporaries of Zeno. For an account of the statue of this philosopher, see No. 327, Handbook to Roman Court and Nave.]

22. Alexander the Third, surnamed the Great. King of Macedonia, B.C. 336-323.

[Born at Pella, in Macedonia, B.C. 356. Died at Babylon, B.C. 323. Aged 32.]

The pupil of Aristotle, and the conqueror of the world. He ascended the throne of Macedon in the twentieth year of his age. Shortly afterwards he reduced the chief cities of Greece, and rased Thebes sparing only the house of the poet Pindar. In his twenty-second year, he crossed the Hellespont, and turned his arms against the Persian king, Darius, whom he defeated. He conquered Phœnicia, Damascus, and Tyre. Taking Gaza, he passed into Egypt, subdued it, and founded the city of Alexandria. Here, in the madness of his ambition, he claimed divine honours. In 331, B.C., he again attacked Darius, and destroyed the Persian monarchy. Babylon, Susa, and Persepolis, next paid homage to his arms. A change now came over the victor, hitherto temperate and forgiving. He gave rein to his passions, and committed acts of cruelty and excess. But his activity was still incessant. He advanced victoriously to the Indus, and marched back in triumphal procession to Babylon, where, still full of mighty plans of conquest, he fell a victim to intemperance, took fever and died in the thirteenth year of his reign. There was no mediocrity in the character of Alexander. His vices were great, and his virtues magnificent. His heart and mind led him to the extremes of good and evil. His lust of dominion amounted to insane passion. In accordance with his wish, his body, enclosed in a golden coffin, was conveyed to Alexandria, and there deposited in a richly adorned sarcophagus,—now supposed to be in the British Museum. The military skill of Alexander was of a high order. His movements were rapid, decided, and well-directed:—he made great use of his cavalry. His conquests rendered eastern Asia accessible to European enterprise. He retained his affection for his early instructor, Aristotle, to the last, sending, from the scenes of his Eastern conquest, strange animals for the study of the great naturalist. In Asia, to this hour, the exploits of “Iskander,” are told by the people to their children.

[From the marble in the Louvre, inscribed with his name. It was dug up near Tivoli in 1779, and afterwards presented to Napoleon by the discoverer, the Chevalier d’Azara. It was by this bust, aided by the evidence of the coins, that all the portraits of Alexander were verified. Notwithstanding the[II-25] numerous statues, busts, and pictures of this renowned conqueror which are mentioned by ancient writers, only few now remain. One of the characteristics of the head is the curling up of the hair at the back, as though a circlet had given the hair that form, and it is said he was the first to wear a diadem. The peculiar rising up of the hair in front is also a characteristic of Alexander. A very beautiful little equestrian bronze was found at Herculaneum in 1751, conjectured at the time to be a copy of the statue of Alexander, by Lysippus. No. 22A, the inscription on which is evidently modern, is from the Berlin Museum.]

22A. Alexander the Third, surnamed the Great.

23. Phocion. Athenian Statesman and General.

[Born in Attica, B.C. 402. Died at Athens, B.C. 317. Aged 85.]

He rose from the ranks of the people, and soon obtained military distinction; exhibiting, whenever tried, great bravery and foresight. He was forty-five times named general. He was opposed to the Macedonians, over whom, by his moderation, valour, and prudence, he obtained signal advantages. When, in his age, Athens—placed through the rejection of his sagacious counsels at the mercy of the Macedonians—was occupied by a foreign garrison, Phocion, whose integrity was invulnerable, was suspected by his countrymen of treachery, and forced to swallow hemlock. His body was denied burial, and cast beyond the confines of Attica; yet, according to the spirit of those singular times, in which the wildest barbarity co-existed with the purest heroism, and towering ingratitude seemed to be enacted only to make way for splendid remorse, his ashes were subsequently brought back to Athens, his accusers put to death, and a statue was raised to his honour. Phocion was surnamed “the Good.” Alexander, surnamed “the Great,” endeavouring to win him from his loyalty, offered him riches and the choice of four cities in Asia. The answer of Phocion bespoke the spotless character of the man. “If Alexander really esteems me,” he said, “let him leave me my honesty.”

[From the statue, No. 324, for account of which see Handbook of Roman Court and Nave.]

24. Alcibiades. Athenian General.

[Born at Athens, B.C. 450. Died in Phrygia, B.C. 404. Aged 45.]

The nephew of Pericles, in whose house he was brought up. He was beautiful in his youth, and he maintained his beauty throughout life,—a personal advantage of which he was not a little conscious. He was the pupil of Socrates, towards whom he entertained a sincere regard and friendship to the last. He entered early into the service of the Republic, and soon distinguished himself by his eloquence and feats of arms. Accused of irreligion, he quitted Athens and took refuge in Sparta, where he betrayed the designs of his country, and also abused the hospitality of the Spartan king. Returning to Athens he gained several victories at the head of her armies, and recovered his position, but only to lose it again in consequence of his ill-success in an expedition against Andros. By order of the “Thirty Tyrants,” established by Lysander in Athens, he was at length assassinated. Alcibiades was remarkable for activity, eloquence, and address. He was very plausible, very versatile, very unscrupulous, and a great dissembler. His unabashed audacity was matchless, but it was relieved, as well as heightened, by good nature, and good humour. He was also selfish, and ambitious, and inordinately[II-26] vain. He had a slight defect in his speech, and could not pronounce the letter R.

[From the marble in the Sala delle Muse of the Vatican. It has upon it the first four letters of Alcibiades’ name. By an inferior artist, and probably of a late date. It conveys no idea of the beauty of this fiery-hearted soldier. No. 24A is a much finer head, but is not entitled to the same confidence as a portrait. Alcibiades is said to have been the model for Cupids and Mercuries in his youth. He received all the honours of portraiture from the Athenians, who made several statues of him in bronze, and the Romans placed his statue in the Forum by the side of one of Pythagoras.]

24A. Alcibiades. Athenian General.

25. Miltiades. Athenian General.

[Date and place of birth unknown. Died B.C. 489.]

An Athenian. Succeeded his father Cimon as “Tyrant” of the Thracian Chersonesus. He accompanied Darius on his expedition into Scythia. He was subsequently driven out of the Chersonesus by the Persians, and fled to Athens, where he resumed his rights as an Athenian citizen. He was one of the ten generals chosen by the Athenians to resist the Persian invasion, but by the consent of his colleagues he was invested with sole command. He defeated the Persians under Datis and Artaphernes, at Marathon (B. C. 490), and saved Greece. The victory, as well for the import of its consequences as for the disproportion between the numbers engaged, is one of the most memorable recorded in history. Afterwards intrusted with the command of a fleet, with which he attacked the Island of Paros, to gratify a private enmity. This expedition proving unsuccessful, Miltiades was impeached, condemned to a fine, and thrown into prison, where he died of his wounds.

[The hero of Marathon received all portrait honours from the Athenians. Pliny relates that Panænus, the brother of Phidias, painted a picture of the battle with portraits of the generals; and the great sculptor himself made a statue of the conqueror, the cost of which was appropriately paid out of the spoils of the Persians. It was placed in the Temple of Apollo at Delphi. The bust, No. 25A, is in the Louvre; it was found on the Celian Hill at Rome. The back part of the helmet has sculptured upon it the furious bull of Marathon which Theseus killed, and which Miltiades wears as a trophy of valour. This portrait has been identified by a bust engraved with the name, described by Fulvius Ursinus, but which is unfortunately lost.]

25A. Miltiades. Athenian General.

26. Aspasia.

[Born at Miletus, in Asia Minor. Date of birth and death unknown; but in the fifth century B.C.]

A woman of great beauty and intellectual power, and the contemporary of Pericles, who was her lover, and over whom she gained unbounded sway. Her house was the resort of the greatest and most learned men in Athens, and Socrates, Plato, and Alcibiades were her frequent guests. She is the first of her sex whose portrait has been handed down from hoary antiquity unto the present time. It is related that Pericles learnt political wisdom from her instruction, and took eloquence from her lips. Pericles rewarded his instructress by saving her life through his eloquence and tears, when, like Socrates, Aspasia was arraigned on the charge of impiety. After the death of Pericles, Aspasia attached herself to an obscure man of the name of Lysicles, whom she advanced by her instructions to high office in the Athenian republic.

[II-27]

[From the marble in the Vatican, which is inscribed with her name. This form of bust is rare for women; but it is thought to have been chosen purposely, to show the superiority of one who gave counsel to Pericles and taught, they say, Socrates eloquence. Her great celebrity is guaranteed by this monument, which is the earliest antique Greek portrait of a lady.]

27. Pericles. Athenian Statesman.

[Born at Athens, B.C. 494. Died B.C. 429. Aged 65.]

For forty years at the head of the administration in Athens; twenty-five years in conjunction with others, and fifteen years alone. He was the pupil of Anaxagoras, from whom he derived philosophic equanimity and lofty principle. The eloquence of Pericles was a grand characteristic of the man, but not the grandest. When dying, he affirmed that his greatest honour had been, “that no Athenian, through his means, had ever put on mourning.” He promised the Athenians immortality; he secured it by means of the memorials of beauty which he left on the Athenian soil, now upwards of two thousand years ago. His oratory was rapid, penetrating, condensed, energetic, persuasive, graceful, and fertile in resources. His boundless influence was never degraded to unworthy purposes. Architecture, sculpture, and literature, reached their highest point under his protecting hand. Phidias was his director of public works; Sophocles and Euripides were his favoured friends. He governed with moderation and justice, and eschewing all aggression for the mere sake of conquest, endeavoured by every means to consolidate the dominion and to confirm the maritime power of Athens. His eloquence was the golden sceptre of his rule. He died in the great plague of Athens.

[Pliny mentions a painted portrait of him by Aristolaus, and Christodorus states that his statue in bronze existed at Constantinople. Phidias, it is said, sculptured the portrait of his illustrious patron on the shield of the great Minerva, and the busts of him are taken from this figure. This bust is from the British Museum. There is also a bust of Pericles in the Vatican, which has the name on the breast. He wears the Corinthian helmet.]

28. Pisistratus. “Tyrant” of Athens.[30]

[Born about B.C. 612. Died at Athens, B.C. 527.]

A prince who made his way to power by questionable means, but who made of power a noble and an exemplary use. When Solon established his constitution, and quitted Athens, Pisistratus headed one of the rival factions that instantly rose up. He seized the citadel of Athens (B.C. 560), but was subsequently driven from the city by the united efforts of his foes. After six years’ absence he regained Athens by a stratagem, but, again expelled, suffered another exile for the space of ten years. He returned for a second time, and vanquished those who opposed him, assumed power, and maintained his position until his death. His rule was moderate, just, and productive of great benefit to the Athenian people. He encouraged literature and the drama, protected religion, and regarded the interests of the poor. To him we owe the first written text of the whole of the poems of Homer. He is also said to have been the first in Greece to collect a library for public use. He gave Athens repose, during which she nourished the elements of her future strength and power.

[From the marble, which has hitherto been called a Pericles, in the Rospigliosi Palace at Rome.]

[30] The title “Tyrant” in the old republics, meant only “absolute monarch.”

[II-28]

29. Periander. “Tyrant” of Corinth.

[Born at Corinth, about B.C. 670. Died about B.C. 585.]

One of the “Seven Wise Men of Greece,” and the son of Cypselus, “Tyrant” of Corinth, whom he succeeded B.C. 625. The first years of his government were distinguished by moderation and wisdom, but afterwards he exercised great cruelty towards his family and people. He reigned many years.

[From the marble in the Vatican, which is remarkably well preserved. It bears his name in Greek letters. It was found in 1780, near Tivoli, in the house of Cassius, with the heads of Bias, Solon, Thales, Pittacus, and Cleobulus, and probably formed part of the Gallery of Cassius, the letters being of the Roman time. In the British Museum there is another original marble of this philosopher, which formerly was in the Palace of Sixtus V. at Rome.]

30. Lycurgus. Lawgiver.

[Date and place of birth and death unknown.]

Lycurgus holds an ambiguous place between tradition and history. Nothing authentic is known of him, and a touch of the fabulous pervades his story. He is said to have been of the line of Spartan kings, and, after having travelled in nearly all countries of the world, to have brought back his laws to Sparta, whose constitution he remodelled. Quitting Sparta, he exacted a promise from the Spartans that they would not alter his laws until his return. He never returned. He was honoured with a temple and a yearly sacrifice. He inculcated, according to the tradition, rigid discipline, unquestioning obedience, and military ardour.

[From the head of the statue in the Sala delle Muse of the Vatican, Rome. It is another example of conventional or traditional portraiture, but possesses one very remarkable confirmation of an accident related in his life. In one of the disturbances of the populace, he was struck in the eye; and it will be observed that one eye of the bust has the peculiar appearance of being useless. Visconti, who noticed this peculiarity, first named the statue Lycurgus. There is a head in the Naples Museum which corresponds with this, and both are confirmed by the medals which bear his name. The drill holes about the beard are interesting, as they prove that the ancient sculptors worked on the same plan as the moderns.]

31. Posidippus. Comic Poet.

[Born at Cassandreia, in Macedonia. Date of birth and death unknown.]

Nothing is known of his life or death. He was an Athenian comic poet, of “The New Comedy,” and his first dramas appeared B.C. 289. He was the last, in order of time, of the six who are mentioned by the anonymous writer on comedy, as the most celebrated poets of the New Comedy. He is said to have written forty plays, of which little more than the titles of eighteen are preserved. No accurate judgment can be formed of his style; some of his subjects, judging from the titles, must have been licentious.

[For account of this statue, see Handbook to Roman Court and Nave, No. 291.]

32. Menander. Comic Poet.

[Born at Cephissia, near Athens, B.C. 342. Died probably at Athens, B.C. 290. Aged 52.]

The model writer of “The New Comedy,” which substituted for the personalities of the “Ancient Comedy,” a more faithful portraiture of the vices and follies of men. A few fragments only remain of his numerous works. His plays are said to have presented a most true and lively reflexion of the manners and morals of his age. He had many imitators amongst the Greeks and Romans, and Plautus and Terence profited by his writings. Only eight[II-29] of his plays were crowned. He was probably in advance of his time and audience.

[For account of this statue, see Handbook to Greek Court, No. 290.]

33. Posidonius. Greek Philosopher.

[Born at Apameia in Syria, about 135 years B.C. Died, probably at Rome, about 51 B.C.]

A writer on History, Astronomy, Astrology, Cosmography, and Grammar, but none of his works remain; a great scholar and traveller. A Stoic in philosophy, yet desirous of bringing all systems of philosophy into harmony. He suffered much from illness. Pompey visited him during a sharp attack of gout, but during his agony he sustained an argument with the orator Hermagoras to prove that pain is no evil. “Torment me if you will, oh Pain!” he exclaimed, “I shall not admit pain to be an evil, a bit the more for that.”

[For account of this statue, see Handbook to Roman Court and Nave, No. 307.]



ROMAN COURT.
ENTERING BY THE CENTRE ARCH FROM THE NAVE.
Line

(Numbers commencing on the right.)

ROMAN EMPERORS.

34. Numa Pompilius. Second King of Rome.

[Born at Cures, in the country of the Sabines.]

The life of Numa Pompilius belongs to the realm of fable. “His name,” says Dr. Smith, “represents the rule of law and order, and to him are ascribed all those ecclesiastical institutions which formed the basis of the ceremonial religion of the Romans.” The legend attached to Numa describes him as the mildest, wisest, and most virtuous of men. After his election to the throne, vacated by Romulus, his first care was to ameliorate the condition of his people, and to legislate on behalf of religion. He reigned thirty-nine years in uninterrupted peace. It is suggested that as Numa was reputed chosen from amongst the Sabines, the Romans, in all probability, drew their religious institutions from that nation, rather than from the Etruscans.

[From the bust in the Vatican at Rome.]

35. Augustus. Roman Emperor, B.C. 30-A.D. 14.

[Born at Rome, B.C. 63. Died at Nola, in Campania, A.D. 14. Aged 76.]

The first Roman Emperor. Trained for his public career by his great-uncle, Julius Cæsar. After the death of Cæsar (B.C. 44), he formed with Antony and Lepidus the league known as the triumvirate. But subsequently quarrelling with Antony, and overcoming him, he annexed Egypt to Rome, and became sole master of the State. His reign was tranquil, and he[II-30] conciliated the people. His disposition appears to have been cold; he lived simply, and despised pomp and pageantry.

[Suetonius mentions the handsome features of Augustus as well preserved in his old age. He is described with eyebrows meeting and thick, the ears small and well formed, the nose finely chiselled. There are several busts of him taken at different periods. This Bust is from the Statue Gallery of the Vatican. It represents him in old age wearing a fillet and a medal bearing the effigy of his wife Livia. No. 35A is a portrait at a younger period: it is from the Museo Chiaramonti of the Vatican. There is a noble statue of him in the “toga” in the Bas-relief gallery, see No. 80, Handbook of Greek Court.]

35A. Augustus. Roman Emperor.

36. Nero—Claudius Cæsar Drusus. Roman Emperor, A.D. 54-68.

[Born at Antium, in Latium, A.D. 37. Died near Rome, 68. Aged 31.]

When we desire to express in a word the height of sanguinary cruelty and atrocious tyranny, the name of Nero at once occurs to us. He was the son of Domitius Ahenobarbus, and of the infamous Agrippina, through whose intrigues he was adopted by Claudius, to the exclusion of his own son, as successor to the throne. Nero’s government, at first moderate and prudent, soon degenerated into fearful licentiousness. He poisoned Britannicus, the son of Claudius; he assassinated his mother; he divorced and murdered his wife Octavia, the daughter of Claudius, in order to marry the beautiful and depraved Poppæa; he set fire to Rome, and put many Christians to death, on the pretence that they had caused the conflagration; he killed Poppæa by a brutal kick, and he ordered executions and perpetrated wrongs of all kinds, and without number. The Roman world was at length tired of this monster; an insurrection broke out in Gaul; and Galba, the governor of Spain, was proclaimed Emperor. Rome followed the example of the provinces, and rose in insurrection. Nero took to flight, and gave himself a mortal wound, when he heard the trampling of the horses on which his pursuers were mounted. It is said that in his youth he was instructed in many branches of knowledge—that he wrote poetry, and had some skill in music. His criminal career may possibly have been the result of furious insanity—we think, at least of a lunatic, when we read that Nero appeared on the Roman stage as an actor, and played the fiddle whilst the city was burning.

[From the marble in the Louvre. The circlet round his head was worn by him to imitate the rays of the sun; the holes for the rays are observable. No. 36A, the bust crowned with laurel, is from the Statue Gallery of the Vatican.]

36A. Nero—Claudius Cæsar Drusus. Roman Emperor.

37 (outside). Tiberius—Claudius Nero Cæsar. Roman Emperor, A.D. 14-37.

[Born, B.C. 42. Died at Misenum, A.D. 37. Aged 79.]

Son of Titus Claudius Nero, and of Livia, whose second husband was Augustus. The successor of his stepfather and the husband of Julia the daughter of Augustus. During his earlier years of rule he governed with moderation and justice; but, growing suspicious of those around him, he patronized a detestable class of men who acquired infamy in the state under the title of “Delatores,” or “Informers,” and by establishing in its utmost extent the law of læsa majestas (high treason) obtained opportunity to the[II-31] shedding of some base, and of much honourable blood. He also became a religious persecutor, unfilial, hateful of the rising glory of other men, and sensual. He quitted Rome, A.D. 26, and never returned to the city. He took up his residence in the delicious island of Capreæ, lying off the Campanian coast. Mean, timid, irresolute, insincere: yet wise in his generation, with some penetration and political skill. He wrote a brief commentary of his life. His youthful name has been immortalized by Horace. In the reign of Tiberius and in the year 33, Jesus Christ suffered crucifixion in Judea, under the condemnation of Pontius Pilate.

38 (outside). Claudius I.—Tiberius Claudius Drusus Nero Germanicus. Roman Emperor, A.D. 41-54.

[Born at Lyons, in Gaul, B.C. 10. Died A.D. 54. Aged 64.]

Fourth in the series of Roman Emperors. Called to the throne in his fiftieth year, upon the murder of his nephew Caligula. Branded as a tyrant, but ought rather to be pitied for his weakness, timidity, vacillation, and utter helplessness. He was the sport of the wicked, and the victim of his own wretched feebleness. Unfortunate in every relation of life. His third wife was the notorious Valeria Messalina; his fourth, his own niece, the shameless Agrippina, who prevailed upon the half-witted Emperor to disinherit his offspring in favour of her son Nero, and who afterwards caused the unhappy Claudius to be poisoned. The rule of this Emperor, when left to himself, is described as mild and popular; but he had seldom the advantage of independent action, and in the hands of others he was robbed of moral will. Fond of building, Claudius raised the Claudian aqueduct. He wrote Greek as well as Latin, and composed some works on history, besides memoirs of his own life.

39. Galba—Servius Sulpicius. Roman Emperor, A.D. 68-69.

[Born at Terracina, in Italy, B.C. 3. Died at Rome, A.D. 69. Aged 73.]

The successor of Nero; and governor of Spain when he was raised to the supreme dignity. A strict military disciplinarian, and remarkable for care and prudence. But when Emperor, his prudence became avarice, and he practised sordid measures, under the plea of imitating the frugality of the ancients. His niggardliness gave offence to the military and to the citizens, who had been used to festivals under Nero; and in his old age, Galba was cut down in the streets of Rome. He reigned 7 months.

[From the marble in the Capitoline Museum at Rome.]

39*. Vespasian—Titus Flavius Sabinus Vespasianus. Roman Emperor, A.D. 69-70.

[Born at Nursia, in the country of the Sabines, A.D. 9. Died at Cutiliæ, in the country of the Sabines, A.D. 79. Aged 69.]

Of low origin. Went to Britain and subdued the Isle of Wight. Afterwards sent to the East by Nero against the Jews, and was proclaimed Emperor by his troops at Alexandria. On the death of Vitellius proceeded to Rome, where, as Emperor, he restored order, reformed abuses, and improved the condition of the empire. He commenced the Coliseum. A great Emperor, popular with his army, upright, conscientious, simple in his living, and affable in his manners.

[For account of the colossal Bust of Vespasian, see Handbook to Roman Court and Nave, No. 338.]

[II-32]

40. Caligula. Roman Emperor, A.D. 37-41.

[Born at Antium, in Latium, A.D. 12. Died at Rome, A.D. 41. Aged 29.]

Son of Germanicus and Agrippina. His real name was Caius Cæsar, but called Caligula by the soldiers, from his wearing in his boyhood small caligæ or soldier’s boots. Passed his boyhood in his father’s camp in Germany. On the death of Tiberius he became Emperor, and for a time ruled wisely. On recovering, however, from a severe illness, he perpetrated acts of horror characteristic of a madman. He murdered the innocent for his amusement, and married and dissolved his marriages in the most shameless manner. His favourite horse he raised to the Consulship, and he deified himself. After passing three years in raving crime and folly, he was struck down by the conspirator’s sword.

[From the marble in the Gallery of the Emperors, of the Capitoline Museum. Busts of Caligula are very rare, because, like those of Commodus, they were as far as possible destroyed, on account of his atrocities. He is said to have had a complexion of repulsive paleness. Suetonius alludes to his thin lips and expression of confirmed dissimulation.]

41. Vitellius—Aulus. Roman Emperor, A.D. 69.

[Born on the Island of Capreæ, A.D. 15. Died at Rome, A.D. 69. Aged 54.]

A royal glutton. He commanded in Lower Germany, where his popularity with the troops led to his being proclaimed Emperor by the soldiers at Cologne. Vitellius succeeded Otho, and reigned eight months after the death of the latter, when he was murdered. Avaricious of money for the sake of what it would purchase for the stomach. The life of Vitellius is told when we state that it was devoted to eating, drinking, and acts of cruelty. It was his boast that the infamous Nero was his chosen model.

[From the Louvre. Full of the character of the man—bloated and debased. He is said to have spent nine millions of sesterces in suppers.]

42. Nerva—Marcus Cocceius. Roman Emperor, A.D. 96-98.

[Born at Narnia, in Umbria, A.D. 32. Died at Rome, A.D. 98. Aged 64.]

Pliny says that the commencement of the reign of Nerva was the era of returning freedom; and Tacitus praises the same Emperor, for reconciling supreme authority with the liberty of the citizen. He succeeded the Emperor Domitian, who was murdered, and his first care was to restore tranquillity, and to repair the effects of his predecessor’s tyranny. He put an end to the persecution of the Christians, attended to the wants of the poor, and exercised a rigid economy. Gentleness and goodness were marked features in his character.

[From the gallery of the Emperors in the Capitoline Museum at Rome.]

43. Titus—Flavius Sabinus Vespasianus. Roman Emperor, A.D. 79-81.

[Born at Rome, A.D. 40. Died at Cutiliæ, in the country of the Sabines, A.D. 81. Aged 41.]

Elder son of the Emperor Vespasian, and one of the best of the Roman emperors. It was he who besieged and destroyed Jerusalem (A.D. 70); he also completed the Coliseum at Rome, and during his reign Pompeii and Herculaneum were buried by the eruption of Mount Vesuvius (A.D. 79). As a soldier and general, his conduct marked by great humanity and bravery. As Emperor, administered the laws justly and improved the condition of his people by whom he was beloved. “The being beloved,” to use the words[II-33] of Voltaire, constituted his greatest glory. Possessed great intellectual refinement and delicacy of feeling. It is said that he was poisoned by his brother Domitian, who was impatient to succeed to the empire.

[From the marble in the Capitoline Museum at Rome. Busts of Titus are not common: yet his statues were in every house, on account of his popularity. For an engraving of one, see Handbook of Roman Court and Nave.]

44. Domitian—Titus Flavius Sabinus. Roman Emperor, A.D. 81-96.

[Born at Rome, A.D. 51. Died there, A.D. 96. Aged 45.]

Son of the Emperor Vespasian, and brother of Titus. He was bloody and cowardly throughout his career. Suetonius says his very virtues were turned into vices. Before the death of his brother Titus he made many attempts upon his life, and, during his own reign, he frequently compelled individuals to undergo the terrors of death, sparing their lives, in order to enjoy the sight of their sufferings. His government was disastrous for Rome, though he boasted annually of great victories, and assumed the title of God. Pliny used to say that the triumphs of Domitian were certain “proofs that the enemy had gained an advantage.” Neither talent nor virtue was safe from his persecutions, yet, although the last three years of his life form one of the most frightful epochs in history, Domitian had talent and a cultivated mind. He promoted architecture and beautified Rome; he rebuilt the libraries which had been burnt in the preceding reign, and sent literary men to the famous Alexandrine library to make copies of books there. He was the victim of a conspiracy, and the last of the twelve Cæsars.

[From the marble in the Capitoline Museum at Rome.]

45. Trajan—M. Ulpius Trajanus. Roman Emperor, A.D. 98-117.

[Born at Italica, in Spain, A.D. 52. Died at Selinus, in Cilicia, 117. Aged 65.]

Trajan endeavoured to emulate the glory of Alexander by extending the Roman Empire in the East, but with imperfect success. He improved the social and physical condition of his subjects, was easy of access, possessed good sense, a profound judgment and knowledge of the world. Not a man of letters himself, he was the friend of Pliny the younger, Tacitus, Plutarch, and Epictetus. He was tall, majestic, robust, and his hair perfectly white.

[From the marble in the Capitoline Museum. Busts of Trajan are not uncommon. The seated statue of Trajan is described under No. 343, in Handbook to Roman Court and Nave.]

46. Hadrian—Publius Ælius Hadrianus. Roman Emperor, A.D. 117-138.

[Born at Rome, A.D. 76. Died there, A.D. 138. Aged 63.]

In his youth wedded to literature, especially that of Greece. He was the adopted son of Trajan, whom he succeeded as Emperor, in A.D. 117. Travelling was with him a passion. In A.D. 119, he set forth on a journey which lasted for the space of 17 years. He visited Gaul, Britain (where he erected the famous wall between the Solway and the Tyne), Spain, Africa, and part of Asia. On a second visit to the East he lost his favourite page Antinous, and his grief for this youth has since resounded through the world. Shortly after his return to Rome in 132, the Jewish war broke out. It ended in the subjugation and slavery of the chosen people. He was a wise Emperor, a[II-34] cultivator of the arts, and a lover of peace, though stained with vices of his age.

[Busts of Hadrian are common. This is from the Rotunda of the Vatican. No. 123 is from a very perfect one in the Naples Museum. For engraving of the fine statue in the British Museum, see Handbook of Roman Court and Nave, p. 13.]

47. Antoninus Pius. Roman Emperor, A.D. 138-161.

[Born near Lanuvium, A.D. 86. Died at Lorium, A.D. 161. Aged 74.]

The successor of Hadrian, and one of the most distinguished of the Roman Emperors. Improved the condition of his people, and consolidated the power of the empire by enlightened and conciliatory measures. He was respected and beloved. Of commanding aspect and dignified demeanour. A deep-toned melodious voice heightened his native eloquence. One of the most virtuous princes that ever sat upon a throne.

[From the marble in the Berlin Museum. There is in the Louvre a bust of Antoninus Pius, having the head covered with a fold of the toga, and crowned with ears of wheat, a copy of which is described under No. 381, Handbook of Roman Court and Nave.]

48. Marcus Aurelius Antoninus. Roman Emperor, A.D. 161-180.

[Born at Rome, A.D. 121. Died at Sirmium, in Pannonia, A.D. 180. Aged 59.]

Surnamed “The Philosopher.” One of the best and greatest princes of antiquity. He succeeded his adoptive father Antoninus Pius in A.D. 161, and from that time until his death, his public and private acts conduced to the welfare of his people and to the true glory of the empire. His sole misfortune was to be father of the brutal Commodus, who succeeded him on the Imperial throne. He was clement, charitable, generous, and forgiving. His bodily health, always weakly, gave way beneath excessive labour of mind and body, and his death created universal sorrow. After the lapse of a hundred years his memory was still held in veneration by the people. He was of a thoughtful nature. At an early period he admired the precepts and adopted the costume of the Stoic philosophers. Later in life he was wont to repeat with great satisfaction the saying of Plato—“How happy would the people be, if philosophers were kings, and kings philosophers.” His “Meditations”—a work in the Greek language—is one of the noblest productions of Pagan philosophy.

[From the marble in the Berlin Museum. No. 48A is called the young M. Aurelius. The colossal head from the Louvre is described under No. 344, Handbook to Roman Court and Nave. The Senate decreed that a bust of M. Aurelius should be in every house.]

48A. Marcus Aurelius Antoninus. Roman Emperor.

49. Pertinax—Publius Helvius. Roman Emperor, A.D. 193.

[Born at Villa Martis, in Liguria, A.D. 126. Assassinated at Rome, A.D. 193. Aged 67.]

The son of a charcoal-burner. First a schoolmaster in Liguria, then a soldier. Rising to important command, he served in Great Britain and Africa. Upon the murder of Commodus, the Prætorians prevailed upon him to assume the purple. He accepted the honour in difficult times, when virtue met with as little mercy as vice. He stipulated that the dignity should not extend beyond himself, to his wife or son; he proclaimed that no man should be prosecuted for treason; he at once set about useful reforms in the state;[II-35] but in less than three months after his accession, he was murdered by the same Prætorians, simply because he was too upright and too good a man. He had a venerable aspect, and was mild and winning in his address.

[From the marble in the Rotunda of the Vatican.]

50. Verus—-Lucius Aurelius. Roman Emperor, A.D. 161-169.

[Born at Rome, A.D. 130. Died at Altinum, in the country of the Veneti, A.D. 169. Aged 39.]

Licentious and dissolute; the colleague of Marcus Aurelius in the empire, and the husband of Lucilla, daughter of the latter. During a four years’ war against the Parthians, Lucius held command of the Roman army: but, a drunkard and a gamester, his sole part in the war was to reap the glory of the victories won by his generals. In his youth, he is described as well made in person; frank, simple, and gentle of disposition.

[A colossal Bust of him will be found described under Nos. 331 and 333, in the Handbook to the Roman Court and Nave. It was found in the same place as the colossal Marcus Aurelius.]

51. Ælius Verus. Adopted Emperor.

[Born (uncertain). Died at Rome, A.D. 138.]

Of a noble Etrurian family. His beauty and literary accomplishments drew the favour of the Emperor Hadrian, who changing his name, adopted him for his successor. Twice Consul. Governor, for a short time, of Pannonia. Died suddenly. Of a luxurious character.

[From the marble in the gallery of the Emperors of the Capitoline Museum at Rome.]

52. Annius Verus. Roman Prince.

[Born A.D. 162. Died at Præneste A.D. 170. Aged 7.]

The son of Marcus Aurelius and Faustina, and the brother of Commodus, with whom he was raised to the rank of Cæsar, A.D. 166.

[From the marble in the Louvre. Taken when young. A graceful little Bust, remarkable for having the pupil of the eye so firmly indicated.]

53. Marcus Galerius Antoninus. Roman Prince.

[Date and place of birth unknown. Flourished A.D. 140.]

Son of Antoninus Pius and Annia Galeria Faustina. Nothing is known of his life or death. His effigy is extant with that of his mother upon a rare Greek coin; but he is not styled Cæsar in the inscription. Marcus Galerius, no doubt, died before his father became Emperor.

[From the marble in the Gallery of the Emperors of the Capitoline Museum.]

54. Severus—Lucius Septimius. Roman Emperor, A.D. 193-211.

[Born at Leptis, in Africa, A.D. 146. Died at Eboracum (York), A.D. 211. Aged 65.]

His family was of equestrian rank, and originally came from Gaul. In A.D. 185, he was commander-in-chief of the army in Pannonia and Illyricum; and on the murder of Pertinax was elected Emperor. He disbanded and banished the Prætorian guards, re-constituted the army, whose fidelity he secured, and marched against his two rivals, Pescennius Niger and Clodius Albinus, the first of whom had been declared Emperor in the East, and the last, in Gaul. Defeating them both, he passed three years in the East, warring against the Parthians, whom he subdued. In A.D. 208, he went to Britain, in order to punish the Caledonians. But before his design could be carried out, he fell himself a victim—it is said to grief, to the dissensions[II-36] of his sons—in the city of York. He had many kingly qualities, but was without clemency. A rigid disciplinarian, simple and sober in his tastes.

[From the marble in the Capitoline Museum at Rome.]

55. Gordianus—Marcus Antonius, surnamed Africanus. Roman Emperor, A.D. 238.

[Born at Rome, A.D. 157. Died at Carthage, in Africa, A.D. 238. Aged 80.]

Born of an honourable family, claiming high descent, and possessing great wealth. When Ædile, his public spectacles were pre-eminently magnificent. At one of them 1000 gladiators fought at once. When appointed Pro-Consul in Africa, he was called “The New Scipio,” on account of his popular manners. When eighty years of age he was forced to become Emperor by the people of Carthage, who would not submit to the ferocious Maximinus. After a few months’ reign, however, he was attacked by Capellianus, the Procurator of Numidia, and hearing of the fall of his son, strangled himself with his own belt. A man of extraordinary self-command and sobriety, and very studious. In his youth he composed a poem in thirty books; and, to his latest hour, he passed some portion of the day in the study of Plato, Aristotle, Cicero, and Virgil. In temper gentle and affectionate.

[From the marble in the Capitoline Museum at Rome.]

56. Commodus—Lucius Aurelius. Roman Emperor, A.D. 180-192.

[Born at Lanuvium, in Italy, A.D. 161. Died at Rome, A.D. 192. Aged 31.]

Son of Marcus Aurelius and Faustina Junior. It is said that he was handsome in form and feature. If history can be believed, he was a monster in human form. He was cruel in hot and cold blood, vain, cowardly, impious. He appeared many times in the Circus as gladiator, and condescended to become a buffoon for the amusement of the lowest of his people; but he is chiefly famous for his human butcheries. He was poisoned at last by his mistress, Marcia, who was only just in time to save her own life, which had been already doomed by her sanguinary paramour. His death gave occasion to almost frantic joy in Rome.

[From the marble in the Capitoline Museum at Rome.]

57. Macrinus—Marcus Opilius. Roman Emperor, A.D. 217-218.

[Born at Cæsarea, in Numidia, A.D. 164. Died near Archelaïs, in Cappadocia, A.D. 218. Aged 54.]

An Emperor of obscure birth. He is said to have been, in his youth, a gladiator. When Præfect of the Prætorian guards, he contrived the murder of Caracalla, then at Antioch, in order to fulfil the prophecy of a soothsayer, who had predicted his accession to the throne. Elected Emperor by the soldiers, he was himself dethroned and assassinated in Cappadocia, after a brief reign of fourteen months. He is represented as haughty, bloodthirsty, cruel, and cowardly.

[From the marble in the Capitoline Museum at Rome.]

58. Pupienus—Marcus Claudius Pupienus Maximus. Roman Emperor, A.D. 238.

[Born A.D. 164. Died at Rome, A.D. 238. Aged 74.]

Called “the Sad” from the melancholy expression of his countenance. He was of an obscure family, but a distinguished soldier. After the death[II-37] of the two Gordiani, he was elected with Balbinus, by the senate, to the empire, in order to oppose Maximinus; but that tyrant was soon after murdered by his own soldiers. The Prætorians, however, regretting Maximinus, assassinated the two Emperors when they were preparing to depart on separate expeditions.

[From the marble in the Capitoline Museum at Rome.]

59. Maximinus—Caius Julius Verus. Roman Emperor, A.D. 235-238.

[Born on the confines of Thrace, A.D. 173. Died before Aquileia, A.D. 238. Aged 65.]

An Emperor of Gothic origin, who was originally a shepherd, and owed his elevation entirely to his physical power and stature. He stood eight feet high, and was muscular in proportion. Serving with Alexander Severus on the Rhine, he excited a mutiny in the troops, in which Alexander and his mother were assassinated, and he himself declared Emperor by the soldiers. His reign was marked by mad severity, cruelty, and rapacity, and was fiercely closed by a band of Prætorians, who broke into his tent and slew him, having first put an end to his son before his eyes. He was a rare monster. It is related that his thumb was of the girth of a woman’s wrist; he could wear his wife’s bracelet as a ring: his eyes were inordinately large; with a kick, he could break the leg of a horse; and his appetite corresponded with his muscular development.

[From the marble in the Capitoline Museum at Rome.]

60. Caracalla. Roman Emperor, A.D. 211-217.

[Born at Lyons in France, A.D. 188. Died in Mesopotamia, A.D. 217. Aged 29.]

In early life remarkable for gentle and pleasing address; but on the death of his father, Septimius Severus, he assassinated his brother Geta, who was left, with himself, joint heir to the throne. Other crimes were added, and, conscience-stricken, he soon gave rein to the passions of a madman. He oppressed his citizens by extortionate taxation, and plundered the world for the means of paying for his soldiers and his amusements. He, however, erected some great monuments in Rome. He was assassinated in Mesopotamia by order of Macrinus, his chief officer.

[All busts of him show the peculiar deformed turn of the neck with which he was afflicted.]

61. Geta—Publius Septimius. Roman Emperor, A.D. 211-212.

[Born at Milan, A.D. 189. Died A.D. 212. Aged 23.]

The second son of Septimius Severus. During his second Consulship proceeded to Britain (208) and obtained the surname of Britannicus. Upon the death of his father, he and his brother Caracalla were declared joint successors to the Imperial crown; but Geta, at the instigation of Caracalla, was assassinated in the very arms of his mother, to whom he had fled for refuge. Caracalla caused his brother’s statues to be destroyed, and his inscriptions to be obliterated. Geta was depraved in his habits, and unpolished, but not without some good qualities.

[From the marble in the Capitoline Museum at Rome.]

62. Gordianus II.—Marcus Antonius. Roman Emperor, A.D. 238.

[Born, A.D. 192. Died at Carthage, in Africa, A.D. 238. Aged 46.]

Eldest son of Gordianus Africanus, with whom he was proclaimed Emperor,[II-38] in Africa, in opposition to Maximinus. He was defeated and slain by Capellianus, the Procurator of Numidia, who remained faithful to Maximinus. His instructor, Serenus Sammonicus, left him heir to a large library. Gordianus II. had a good knowledge of law, and cultivated literature.

[From the marble in the Capitoline Museum at Rome.]

63. Decius—Caius Messius Quintus Trajanus. Roman Emperor, A.D. 249-251.

[Born at Bubalia, in Lower Pannonia, A.D. 201. Died near Abricium, A.D. 251. Aged 50.]

The first of a long line of monarchs who traced an Illyrian ancestry. In A.D. 245, he was entrusted with an important command on the Danube. Shortly afterwards he was ordered by the Emperor Philippus to calm the rebellious soldiery of Mœsia; but, on attempting to pacify them, he was offered, with a sword to his breast, the alternative of instant death or the purple. Choosing the purple, he was opposed in the field by Philippus, who fell. After reigning thirty months, he met his death in battle against the Goths. During his short rule, the Christians were bitterly persecuted. It is difficult to form a just estimate of this Emperor’s character. He has been described as “most amiable, highly accomplished, mild, affable, and brave.” He has also been stigmatized as a monster of iniquity.

[From the gallery of the Emperors in the Capitoline Museum at Rome.]

64. Alexander Severus—Marcus Aurelius. Roman Emperor, A.D. 222-235.

[Born at Arce, in Phœnicia, A.D. 205-208. Died in Gaul, A.D. 235.]

Elected Emperor on the death of Elagabalus, in A.D. 222. His reign was marked by a gradual improvement in religion, morality, and politics. In A.D. 232, he drove the Persians under Artaxerxes, in defeat across the Tigris. He was about to advance against the Germans, then ravaging Gaul, when he was murdered, together with his mother Julia Mamæa, by a band of mutinous soldiers, instigated by the ferocious Maximinus, who seized the crown. His life was simple and pure; his government considerate and just. His death caused general regret.

[From the marble in the Capitoline Museum at Rome.]

65. Heliogabalus or Elagabalus—Varius Avitus Bassianus. Roman Emperor, A.D. 218-222.

[Born at Antioch, A.D. 204. Assassinated A.D. 222. Aged 18.]

From his earliest years a priest of the Sun in the Temple of Emesa, in Syria: but by the intrigues of his grandmother, Julia Mæsa, declared Emperor of Rome, in place of Macrinus, whom he defeated in battle, and put to death. Elagabalus—so called from his sun-worship—the priest taking the name of the God—introduced into Rome the superstitions in which he had been nurtured. By way of strengthening his power, his grandmother induced him to associate with himself, in the government, his cousin Alexander Severus. Repenting of this act, he was about to undo it, when a revolt of the Prætorians decided the question of rule by assassinating him and throwing his body into the Tiber. A more worthless carcase had never floated down the polluted river. His vices were as gross as his superstitions. He left behind him a smirched and hated name.

[All Busts of him were ordered to be destroyed by the Senate: they are consequently rare. This is from the Capitoline Museum at Rome.]

[II-39]

66. Gallienus—Publius Licinius Valerianus. Roman Emperor, A.D. 253-268.

[Born A.D. 218. Died before Milan, A.D. 268. Aged 50.]

Son of Valerian. When associated with his father in the empire, he commanded with success against the barbarians on the Rhine and Danube. In 260, Valerian was made captive by the Persians, and during the eight years of his imprisonment, his son made no effort to release him. Rome, whilst Gallienus reigned, was a prey to pestilence, internal rebellion, and the ravages of foreign nations. In A.D. 268, he laid siege to Milan, whither Aureolus, an invader of his empire, had fled for refuge. During the siege Gallienus fell—it is said by the hands of his own soldiers. His character was very bad. He was cruel, treacherous, and indolent, apathetic to public disaster, self-indulgent, frivolous, and a glutton.

[From the marble in the Capitoline Museum at Rome.]

67. Gordianus III. or Pius—Marcus Antonius. Roman Emperor, A.D. 238-244.

[Born A.D. 224. Died near Castrum Circesium, in Mesopotamia, A.D. 244. Aged 20.]

An emperor, endowed with many good qualities. He was son of the Consul Junius Balbus and Metia Faustina, daughter of Gordianus Africanus. When sixteen years old he married the beautiful and virtuous daughter of Misitheus, a wise and eloquent man, whom he appointed Prefect of the Prætorians, and by whose prudent advice he was successfully guided. Upon the death of this able minister, Philip the Arabian contrived to associate himself in the government with Gordianus, who shortly afterwards fell a victim, it is supposed, to the conspiracies of his colleague.

[From the marble in the Capitoline Museum at Rome.]

68. Caius Julius Verus Maximus. Roman Prince.

[Date and place of birth unknown. Died at Aquileia, A.D. 238. Aged 18 or 21.]

Son of the Emperor Maximinus, who, on his accession to the purple in 235, raised him to the rank of Cæsar. Well educated, vain of his personal beauty, and haughty of demeanour, but not evil disposed. He was massacred with his father at Aquileia by the rebel Prætorians.

[From the marble in the Capitoline Museum at Rome.]

69. Philip the Younger.—Marcus Julius Philippus II. Roman Prince.

[Born (place unknown), A.D. 237. Died A.D. 249. Aged 12.]

Son of Philip I., Emperor of Rome. When seven years old dignified with the title of Cæsar. When ten years old chosen Consul, and shared the empire under the title of Augustus. A child of singularly serious temperament. He could never be induced to laugh, and would turn away his head when his father indulged in merriment.

[From the Statue Gallery of the Vatican.]

70. Carinus—Marcus Aurelius. Roman Emperor, A.D. 283-285.

[Born probably at Rome, A.D. 249. Died in Moesia, A.D. 285. Aged 36.]

Eldest son of the Emperor Carus. Was appointed to the command of the Western Provinces, A.D. 282. In A.D. 283, on the death of his father, was associated in the government with his brother Numerianus, who was assassinated[II-40] when Diocletian was proclaimed Emperor by the army in Asia. Carinus marched against Diocletian, but in the moment of triumph he was slain by one of his own officers, whose domestic happiness he had destroyed. Carinus was a brave and skilful general, but a profligate and vicious man. He was sensual and ferocious.

[From the marble in the Capitoline Museum at Rome.]

71. Julian the Apostate—Flavius Claudius Julianus. Roman Emperor, A.D. 361-363.

[Born at Constantinople, A.D. 331. Died in Persia, A.D. 363. Aged 32.]

Unquestionably a ruler of extraordinary capacity and power. He was the nephew of Constantine the Great, and was brought up in strict seclusion by the Christians, in order to save him from Constantius II., who, upon his accession, had murdered the male members of Julian’s family. He withdrew for a time to Athens; was thence recalled by the relenting Constantius, and invested with command in Gaul. He resided chiefly in Paris, and it is worthy of note that at a time of scarcity in that city, Julian drew his supplies of corn from England. During his stay in Gaul, the soldiers proclaimed him Emperor. He marched against Constantinople, but before he reached the city Constantius had died. Julian, created Emperor, renounced Christianity for the Paganism of Greece; hence the name which he has carried as a brand ever since. The Heathens extol this prince, the Christians blame him. His life at least was pure, and his rule sagacious; and, although he naturally hated his former co-religionists, he was no religious persecutor. After his accession to the throne he carried war into Persia, where he was slain in battle. He was a prince of profound knowledge, of great eloquence, and remarkable for philosophic calm. He professed Stoicism. He was also a writer, and many of his works, displaying reflexion and inquiring thought, have come down to us.

[From the marble in the Capitoline Museum at Rome. A very interesting statue of Julian will be found described under No. 92, Handbook of Greek Court.]

72. Diocletian—Caius Valerius Aurelius. Roman Emperor, A.D. 284-305.

[Born in Dalmatia, A.D. 245. Died A.D. 313. Aged 68.]

At first a simple soldier, he rose by his own merit to the rank of Captain of the Palace Guard, an office which he held until the death of Numerianus, when he was declared his successor. He associated Maximianus with him in the empire, and appointed Constantius Chlorus and Galerius, Cæsars. At the instigation of Galerius he barbarously persecuted the Christians. In A.D. 305, he resigned the empire in consequence of growing infirmities, and withdrew to Salona, where he cultivated his own garden and lived in philosophical retirement. Whilst he held power, he thought less of the freedom and dignity of Rome, than of maintaining the power of the sovereign, and of securing a regular succession. His cruelty to the Christians has caused his reign to be described as “The Age of Martyrs.”

[From the marble in the Capitoline Museum.]

73. Constantius Chlorus—Flavius Valerius. Roman Emperor, A.D. 305-306.

[Born A.D. 250. Died at York, in England, A.D. 306. Aged 55.]

The father of Constantine, surnamed “the Great,” who was founder of Constantinople.[II-41] Constantius governed, as colleague of Diocletian, beyond the Alps, and his dominion extended over Gaul, Britain, and Spain. He died in England whilst preparing for an expedition against the Scots. He was the best of the later Roman Emperors, having a regard to the welfare of his people, and exhibiting no rapacity in his administration. In religious matters he was mild and tolerant, showing great humanity towards the Christians. He had excellent talents, and was surnamed “Chlorus,” or “the pale,” from the pallor of his countenance.

[From the marble in the Capitoline Museum at Rome.]

74. Hostilianus. Roman Emperor, A.D. 251 or 252.

[Date and place of birth unknown. Died A.D. 251 or 252.]

Generally regarded as the second son of the Emperor Decius, whom he survived. Declared Cæsar in A.D. 249, and was afterwards adopted by Trebonianus Gallus as his colleague in the empire. Died either of poison or the plague.

[From the marble in the Capitoline Museum at Rome.]

75. Volusianus—Caius Vibius. Roman Emperor, A.D. 252-254.

[Date and place of birth unknown. Died at Interamna, in Italy, A.D. 253 or 254.]

Son of the Emperor Gallus, with whom he reigned, being elected Augustus in A.D. 252. Little is known of his life or character. When Æmilianus was chosen Emperor, he went with Gallus to oppose him; but, before a battle could be fought, father and son were slain by their own troops.

[From the marble in the Capitoline Museum at Rome.]

76*. Magnus Decentius. Roman Prince.

[Date and place of birth unknown. Died at Sens, in Gaul, A.D. 353.]

A brother or cousin of the Emperor Flavius Magnentius. Nominated Cæsar, A.D. 351, he went into Gaul, and suffered defeat in defending that country against the Germans. He strangled himself upon hearing of the defeat and deposition of his brother by Constantius, who succeeded to the throne of Magnentius.

[For an account of a curious head of this Prince, placed in the Bas-relief gallery, see Handbook to Greek Court, No. 217.]



AVENUE IN FRONT OF ROMAN COURT.
Line

(Numbers continuing at the end next to the Greek Court.)

77. Trajan. Roman Emperor.

For life, see No. 45.

78. Trajan. Roman Emperor.

79. Antinous. Bithynian youth.

[Died in Egypt, A.D. 132.]

Celebrated for his beauty. He was the page and companion of the Roman Emperor Hadrian, whom he accompanied to Egypt. He was drowned in[II-42] the Nile, and the Emperor was inconsolable for his loss. On the spot where he died, the city of Antinœa was raised; temples and statues in Egypt and Greece were erected to his memory; and in Greece, coins were struck in his honour. The numerous representations of his beauty gave a fresh impulse to the Fine Arts, and may be compared with the works of the best periods of Grecian Sculpture.

[From the marble in the Louvre; the head bound with a fillet of vine. For account of the many beautiful statues of Antinous see Handbook to Roman Court and Nave.]

81.   - Four duplicate busts removed.
82.
83.
84.

85. Antoninus Pius. Roman Emperor.

For life, see No. 47.

[From the marble in the Naples Museum.]

86. Augustus. Roman Emperor.

For life, see No. 35.

[This very beautiful Bust is from the Florence Gallery.]

87. Tiberius. Roman Emperor.

For life, see No. 37.

[This Bust is from the Berlin Museum.]

88. Claudius. Roman Emperor.

For life, see No. 38.

89. Herennius. Roman Emperor, A.D. 251.

[Date and place of birth unknown. Died near Abricium, in Thrace, A.D. 251.]

Little interest is connected with the history of this emperor. In 249, he was declared Cæsar, and in 251, Augustus, as the colleague of his father Decius. In a battle fought near Abricium, between the Emperor Decius and the Goths, both he and his father were slain.

[From the Capitoline Museum.]

90. Scipio Africanus. Roman General.

For life, see No. 109.

91. Julia Mæsa. Roman Empress.

[Born at Emesa, in Syria, (date unknown). Died, probably at Rome, A.D. 223.]

Daughter to a Priest of the Sun. When her sister, Julia Domna, as wife of Septimius Severus, became Empress, Julia Mæsa resided at the Imperial Court. Her bold political intrigues placed her grandson Elagabalus on the throne. Against law, she was made a member of the Senate. She bore the title of Augusta to her death, and was afterwards deified. A woman of powerful mind, unscrupulously ambitious, but using power well.

[From the marble in the Gallery of the Emperors, in the Capitol, at Rome.]

[II-43]

92. Sabina.

[Died probably A.D. 137.]

Wife of the Emperor Hadrian, and grandniece of Trajan. Ill treated by her husband, by whom, it is said, she was poisoned. Others assert that in despair she put an end to her life. She was deified after her decease.

[From the original in alabaster in the Capitoline Museum, at Rome.]



COURT OF THE ROMAN LADIES.
Line

(Numbers commencing on the right.)

93. Livia Drusilla. Roman Empress.

[Born B.C. 56-54. Died A.D. 29.]

Married to Tiberius Claudius Nero, a Roman general; but her beauty captivating the Triumvir Octavian, afterwards Augustus, her divorce was effected, and she became the Triumvir’s wife. A consummate actress, full of craft and dissimulation, possessing great knowledge of the world, and, by an affected purity of life, maintaining to the last her influence over the mind of Augustus. She successfully intrigued for the succession in favour of Tiberius, her son by her first marriage, and, it is said, removed by poison the grandsons of Augustus, who stood in the way of her own offspring. Tiberius became Emperor, and repaid the service by base ingratitude. He removed his mother from all share in the government, declined all intercourse with her, refused to see her when she was dying, and rejoiced, in open show, at her death.

94*. Domna—Julia (Pia Felix Augusta). Roman Empress.

[Born at Emesa, in Syria, about A.D. 170. Died A.D. 217.]

A woman of humble origin, but beautiful, ambitious and crafty. She became the wife of Septimius Severus, then of the rank of general, and acquired boundless influence over his mind, persuading him that a prophecy had destined her to become the wife of an Emperor, and inciting him to labour to that end. After the death of her husband, her son Geta was murdered in her arms by his brother Caracalla; and after the successful revolt of Macrinus, being suspected of treason, she, possibly to avoid punishment, starved herself to death.

[From the marble in the Rotunda of the Vatican. This colossal head will be found No. 334, Roman Court.]

95*. Julia, daughter of Augustus.

[Born at Rome, B.C. 39. Died at Rhegium, A.D. 14. Aged 53.]

The daughter of the Roman Emperor by his third wife Scribonia. Strictly brought up, she was married at fourteen to Marcellus. Left a widow at sixteen, she was forced by her father to marry the veteran Agrippa, by whom she had three sons and two daughters. Her conduct dissolute and unrestrained. Agrippa dying, she married again Tiberius Nero (afterwards emperor) who left her in disgust. She was banished by her father until the accession of Tiberius, when she suffered still harsher exile. Consumption[II-44] killed her. In spite of her vices, the people of Rome loved her for her frank and lively manner, and frequently solicited Augustus to recall her.

[For further account of this graceful Statue of Julia, see No. 229, of Handbook to Roman Court, and Nave.]

96. Agrippina—the Elder.

[Born B.C. 15. Died A.D. 33. Aged 48.]

Daughter of Vipsanius Agrippa, and wife of Cæsar Germanicus, to whom she bore nine children. Accompanied her husband in all his campaigns, and aided him by her cool foresight and energetic will: once, on the Rhine, in his absence, by her heroic resistance to the timid counsels of those about her, saving the relics of an army. On his death in Asia, she returned to Rome, whence she was banished by Tiberius, jealous of her popularity. After three years’ persecution and suffering, she died—possibly by her own hand. She had all the lofty qualities of a Roman matron—nobility of soul, purity, and a devoted love for her husband and children. Tacitus says of her, that “the cares which belong to men supplanted, in her mind, the vices common to her sex.”

[From the seated Statue, for account of which, see No. 281, of Hand-book to Roman Court, and Nave.]

97. Agrippina the Younger. Roman Empress.

[Born at Oppidum Ubiorum (Cologne), A.D. 14-17. Died at Rome, A.D. 60.]

The ruthless and dissolute daughter of noble parents—of Germanicus and Agrippina the elder. The unenviable mother of the madman, Nero. Upon the death of her second husband, whom she was accused of poisoning, she married her uncle Claudius, whom she induced to nominate Nero for his successor, excluding his own son. She poisoned her uncle-husband, and received her reward from her son, the matricide,—dying by hands commissioned by him to the murder. Tacitus speaks of some interesting memoirs of her time, written by Agrippina, to which he had access in writing his history. She was beautiful, but ambitious, and as wicked as she proved unfortunate.

[From the marble in the Capitoline Museum, at Rome.]

98. Valeria Messalina. Roman Empress.

[Born, uncertain. Died at Rome, A.D. 48.]

The third wife of the Emperor Claudius I. Her name has become a bye-word for profligacy. A murderess. Herself pierced through the breast by the sword of a tribune entrusted with the execution of one of her victims. The slave of lust, avarice, and ambition. Difficult to find in history a woman more blackened by crime than Valeria Messalina.

[From the marble in the Capitoline Museum, at Rome.]

99. Plotina—Pompeia. Roman Empress.

[Date, and place of birth and death unknown.]

The wife of the Emperor Trajan. A woman of clear, strong mind, and an exemplary purity of life and consistency of character. Childless herself, she prevailed upon her husband to adopt Hadrian, in whose reign she died. Hadrian built a temple in her honour, and composed hymns in her praise.

[From the marble in the Rotunda of the Vatican.]

[II-45]

100. Matidia.

[Date and place of birth unknown.]

The niece of Trajan. Declared Augusta, A.D. 113, and after death, deified.

[From the marble in the Capitoline Museum, at Rome.]

101. Crispina.

[Date and place of birth unknown. Died at Capreæ, A.D. 183.]

Was married to the Roman Emperor Commodus, A.D. 177, but divorced for infidelity, banished, and put to death in her exile. She was very beautiful and ambitious.

[From the marble in the Capitoline Museum, at Rome.]

102. Mamæa—Julia. Roman Empress.

[Born at Emesa, in Syria (date unknown). Died in Gaul, A.D. 235.]

The mother of Alexander Severus, for whom she governed wisely during his minority. With many virtues, she possessed what, in the eyes of the Roman soldiers, was invariably considered as a great vice—she was an economist in her expenditure; and, disgusting the army by recommending retrenchments, she gave occasion to a mutiny, to which she and her son Alexander both fell victims. It is said that, whilst at Antioch, she received instruction from Origen in the Christian faith.

[From the very beautiful Bust in the Florence Gallery.]

102A. Mamæa—Julia. Roman Empress.

[The same as preceding, in advanced age.]

103. Salonina—Cornelia. Roman Empress.

[Date and place of birth unknown. Died before Milan, A.D. 268.]

Supposed to have been of Greek origin. Was the wife of the Emperor Gallienus, and dignified with the title of Augusta upon his ascending the throne. She cultivated literature and philosophy, and was the protector of Plotinus the philosopher. She is described as a woman of great good sense, and exceeding benevolence. She roused him to repel the barbarians, and accompanied his army that she might attend to the wants of the soldiers. She was massacred with her husband and youngest son before Milan.

[From the marble in the Capitol at Rome.]

104. Mariniana.

[Date and place of birth and death unknown.]

Little is known respecting this Princess, who was either wife, sister, or daughter of the Emperor Valerian, and died at least four years before his Persian expedition. Some coins, having on the obverse her name and a veiled head, were struck, A.D. 254.

105. Faustina Junior—Annia Faustina.

[Date and place of birth unknown. Died A.D. 175.]

The daughter of Antoninus Pius, and wife of Marcus Aurelius, whom she accompanied into Asia, and there died suddenly. One of the most abandoned and dissolute of the Roman Empresses, yet her virtuous husband preserved[II-46] his first affection for her to the last; and, on the spot where she died, erected to her honour the city of Faustinopolis.

[From the Capitoline Museum, at Rome. The original is in the marble called “Paonazzetto” (peacock-stone).]

105A. Faustina.

[This bust, which is from the Florence Collection, bears the name of “Faustina, Junior.” It is a beautiful bust, well preserved, but bears little resemblance to the preceding portrait. If it really represent the same person, the work has been executed by a more flattering hand.]

106. Sabina—Poppæa. Roman Empress.

[Date and place of birth unknown. Died A.D. 65.]

“She possessed,” says Tacitus, “everything but a virtuous mind.” She became the wife of the Emperor Nero, after having been his mistress; at her instigation Nero’s mother was killed by him, and his former wife, Octavia, divorced and put to death. She was herself destroyed by a brutal blow from Nero, who pronounced her eulogium at the tomb. “As he could not,” says Tacitus, “speak of her virtues, he enlarged upon her beauty.” She was deified, and honoured with a temple. Her luxurious tastes were extravagant. It is related that her mules were shod with gold; and that when she travelled, she was followed by five hundred asses, whose milk furnished a bath to preserve her complexion.

[From the marble in the Capitoline Museum, at Rome.]



COURT OF ROMAN GENERALS AND POETS.
ADJOINING THE COURT OF ROMAN LADIES.
Line

(Numbers commencing on the right.)

107. Lucius Junius Brutus. Roman Consul.

[Date and place of birth unknown.]

The first Consul, and one of the Founders, of the Roman Republic. Before he was elected to the Consulate in B.C. 509, he had been the main cause of the expulsion of royalty from Rome in the persons of Tarquin and his sons. He fell in battle whilst defending, as Consul, the infant Republic against the royal exiles fighting for their restoration. These are admitted facts in the life of Lucius Junius Brutus. His assumption of idiotcy during the reign of the Tarquins, in order to carry on with greater safety his patriotic designs, and his connexion with the affecting history of the devoted Lucretia, are events which in recent years have passed from the grave volume of history to the more fascinating pages of poetry. Philosophical historians permit us to sing, but no longer to believe in, the once cherished narratives of earliest Rome. The act, whether historical or merely traditionary, which the most memorably distinguishes his name, is that of ordering the execution of his two sons, convicted of conspiring for the restoration of the Tarquins.

[From the bronze in the Palazzo dei Conservatori of the Capitol at Rome.]

[II-47]

108. Marcellus—M. Claudius. Roman General.

[Born about B.C. 268. Died in Apulia, B.C. 208. Aged about 60.]

A Roman of high fame. At his hands Hannibal received the first check that he experienced in Italy. He subsequently besieged Syracuse, but was forced to convert the siege into a blockade in consequence of the genius displayed in the defence of the city by the great Archimedes, who rendered of no avail every engine brought against Syracuse, and inspired dread by his own instruments of war. At length Marcellus triumphed, the city was given over to pillage, and its defender perished, whilst pondering over a geometrical problem, by the hand of a common soldier. He again turned his victorious arms against Hannibal, winning fresh laurels and new honours from the state. It was whilst fighting against the Carthaginian hero that he fell, slain by a spear of the enemy. Hannibal sympathized with his fall, and paid honour to his remains. A plain, stern, unlettered soldier, brave to recklessness, rude and unpolished in manners, unyielding in temper.

[This Bust bears the name of Marcellus in the Capitoline Museum. It may be the nephew of Augustus when a child.]

109. Scipio—Publius Cornelius Africanus Major. Roman General.

[Born probably at Rome, B.C. 234. Died at Liternum, in Campania, B.C. 183. Aged 51.]

Son of Publius Cornelius Scipio, whose life he saved in the battle of the Ticinus. One of the few Roman generals who survived the fatal battle of Cannæ, and chosen with Appius Claudius to command the remains of the army. Went as Prætor or Pro-Consul to Spain at the age of 24, where he took Carthagena, gained the battle of Bœcula, and recovered the whole country. Forcing Hannibal, the victorious Carthaginian general, to carry the theatre of war to Africa, he gained the celebrated victory of Zama, which decided the long conflict between Rome and Carthage for dominion. Received the surname of Africanus in consequence, but, vexed with the ingratitude of his countrymen he withdrew to Liternum, where he died. Like Mahomet and Cromwell, he believed himself the special instrument of Heaven. He was undoubtedly the greatest man of his age, and one of the first of the Roman worthies. The affectionate friend of the poet Ennius, and the patron of literature. The Spaniards, for his virtues, would have made him king.

[From the Capitol at Rome. Many busts of this great general are in existence. They all represent him with the head and face close shaved, according to the fashion of his day, when men shaved closely after the age of forty. The authentic busts have the scar on the left side of the head, and some have a scar on each side, and some on the wrong side. No. 127 is from the bust in basalt belonging to the Rospigliosi Palace. No. 125 is from the bronze found in the Villa of the Papyri at Herculaneum, and now in the Naples Museum.]

110. Cato—Marcus Porcius. Roman Patriot and General.

[Born B.C. 95. Died at Utica, in Africa, B.C. 46. Aged 49.]

One of the classical undying forms reared in antiquity to symbolize high moral purity, unquenchable love of liberty, and the sternest virtue. Cato answers to the idea of Roman patriotism, as Julius Cæsar to that of Roman conquest. Before this one we stand, wondering at human power; before that, subdued by the might of the highest moral excellence. Cato as a child was grave, pains-taking, resolute, tenacious; as he grew, he became strong in the love of virtue, and in his hatred of oppression. Attached to the philosophy of the Stoics, he aimed at happiness through its teaching.[II-48] He had served with honour many offices in Rome when Pompey, Cæsar, and Crassus found it necessary to remove him to Cyprus, in order that his patriotism might offer no obstacle to their ambitious schemes. Returning to Rome, he was made Prætor, the highest office he ever held. At the breaking out of the civil war he was entrusted by the senate with the defence of Sicily: he afterwards joined Pompey. Subsequently to the battle of Pharsalia, at which he was not present, he sailed to Africa in search of Pompey. Suffering defeat at Thapsus, he committed self-destruction. Before the fatal act he read Plato’s Phædon several times through. His death caused great grief. It was mourned by great Cæsar himself, who grudged Cato his death, since Cato grudged him the glory of sparing his life.

[Double bust representing Cato and his daughter Porcia; it is from the Capitoline Museum, but possesses no especial authenticity.]

111. Julius Cæsar. Roman Dictator.

[Born at Rome, B.C. 100. Died there, B.C. 44. Aged 56.]

The mightiest amongst the mighty of men. At the outset of his career he served in Asia, where he won a civic wreath. Subsequently made Consul in Rome (B.C. 59); and, at the close of his term of office, appointed to the government of Gaul—which country in nine years he wholly subjugated to Roman rule. His invasion of Britain is amongst the earliest recollections of the English schoolboy. The renowned Commentaries of Julius Cæsar graphically narrate these deeds. Rousing the jealousy of Pompey, in Rome, by his splendid achievements, he marched into Italy—afterwards into Spain, in order to crush the adherents of Pompey, and then returned to Rome in triumph, to be created Dictator. As Dictator he overcame his rival in the battle of Pharsalia, in Thessaly. He performed fresh service to the state in Egypt, and going back to Rome in order to advance the social and material prosperity of his country, he fell a victim to a conspiracy, of which Brutus and Cassius were at the head. Twice had the crown been offered to him, and twice had he refused it. No Roman before his time had ever won such honour as was heaped upon his head. He suffered from epilepsy, and was very abstemious. He was tall, fair and slight—very careful of his person, concealing his baldness by a laurel crown. His was indeed a head inwreathed with palms. He was a great captain, a great statesman, a great orator—a great writer. He had innate personal intrepidity, instantaneous decision, answering celerity of action, resources to meet every emergency, consummate military skill, an unshaken presence of mind, a trust—whether in his fortune, as he said, or in himself—which still augured and still conquered success. He had also the most implicit confidence in his troops, whom he treated ever as companions and brothers in arms. Intellectual action in him was without labour. It was subtle, comprehensive, rapid, luminous, self-possessed. He dictated to five secretaries at once, on different subjects: his strokes of eloquence in the Senate, as his strokes of action in the field, were quick and irresistible. In the terrible civil war of the dissolving Republic—a war wasteful of Roman blood in the field,—thirstier for the flow of the same drear beverage by the axe and the dagger,—there, where the sole sad policy of the victor hitherto was revenge, Cæsar tried the novel art of forgiveness: although in his Gaulish conquests—when the barbarian stands before him—he looks to us, by his own reporting, sanguinary and merciless. By toil and spare diet, he hardened a feeble health for any work. A civilian, with but a[II-49] taste, in youth, of war, he, at forty, stepped into command, at once a supreme commander. Recklessly licentious, yet no intellect could be keener, healthier, and more vigorous. His writings, with the simplicity of a soldier, have the clearness and precision of a grammarian. And why not, since we know that in the versatility of his genius, he wrote two books on grammar. In the history of the world, Julius Cæsar was a power. In the records of psychology a wonder.

[From the bronze in the Florence Gallery. He wore the front of his head shaven. It resembles the bronze medals of Cæsar, but is suspected to be modern. He is said to have been sensitive on account of his baldness, and this bust shows the hair combed forward to hide it. No. 111B possesses much individuality; it is from the head in basalt in the Berlin Museum, and stood constantly on the study table of Frederic the Great. No. 111A is the bust from the Poniatowsky Collection, and remarkable for having the diadem round the head. No. 125 is from the marble in the Gallery of the Emperors, in the Capitol at Rome.]

111A.   - Julius Cæsar. Roman Dictator.
111B.

112. Marcus Junius Brutus. Roman General.

[Born B.C. 85. Died B.C. 42. Aged 43.]

The friend of Cicero—the fellow conspirator of Cassius—one of those who shared in the deed memorable to all time—questionable in its own—of killing Julius Cæsar. From his earliest youth, and through life, absorbed in study and self-contemplation, to the detriment of his powers as a man of action. He was much attached to Cato, whom he accompanied to Cyprus, when it was found necessary to remove the republican leaders from Rome. We are accustomed to think of Brutus—Shakspeare being greatly answerable for the thought—as standing aloof from the vulgar ambition and desires of his fellow-men; yet we find him in Cilicia (B.C. 53), growing rich by letting out money at usurious interest. In the civil war of Pompey and Cæsar he took part with Pompey; Cæsar, however, gave orders that at the battle of Pharsalia his person should be sacred. Grateful for the consideration, Brutus, upon the defeat of Pompey, asked pardon from Cæsar, which was generously accorded. In B.C. 48, appointed by Cæsar governor of Cisalpine Gaul: the inhabitants of which, delighted with his mild treatment of them, and his justice, honoured him with public monuments. Four years later he joined the conspiracy against his patron, and burdened his hand with the death of that great soldier. Then took up arms against Antony; but suffering defeat at Philippi, fell by his own sword. His reading and varied knowledge were immense: he was speculative, superstitious, and highly imaginative. His aspirations pure and noble, but his practical ability small, and his judgment imperfect and too easily led. He wrote much, his chief productions being his orations.

[From the Capitol at Rome, where it stands in the same gallery as the Dying Gladiator (No. 309) in the Nave.]

113. M. Vipsanius Agrippa. Roman General.

[Born B.C. 63. Died in Campania, B.C. 12. Aged 51.]

His victories mainly contributed to make the Emperor Augustus, whose daughter he married, master of the Roman Empire: and he was the chief support of the rising monarchical institution in Rome. He spent much money on public works, erected several public buildings, including the[II-50] Pantheon and the Julian aqueduct; was a patron of the fine Arts, and dying, bequeathed his goods and his gardens to the people of Rome.

[From a Bust in the Louvre.]

114. Nero Claudius Drusus. Roman General.

[Born at Rome, B.C. 38. Died B.C. 9. Aged 29.]

A son of Livia who married the Emperor Augustus, and brother of Tiberius. Victorious in Gaul and Germany. Unflinchingly firm and severe towards all who resisted him, but generous to those who trusted and submitted to him. He married Antonia, the daughter of Marc Antony. His known desire to see the commonwealth restored endeared him to the Roman people. Died in Germany, from an injury sustained in a fall from his horse.

[From the marble in the Capitoline Museum, at Rome. See also a statue of him, No. 222, Roman Court.]

115. Germanicus Cæsar. Roman General.

[Born B.C. 15. Died at Antioch, in Syria, A.D. 19. Aged 34.]

Son of Nero Claudius Drusus, and his wife Antonia; was adopted by Tiberius, at the request of Augustus. Occupied for a time in an exterminating war against the eastern Germans. Afterwards appointed by Tiberius supreme ruler of the eastern provinces. Died at Antioch, where, it is supposed, he was poisoned by the governor of the place. A man of sensitive feeling, temperate, and virtuous. Remarkable for the dignity of his person, for captivating eloquence, munificence, and unaffected courtesy; but credulous, nervous, and a believer in magic. Idolized by his soldiers, and popular with the multitude.

[From the marble in the Capitol, at Rome. The statue generally called by his name is described under No. 312 in the Hand-book to Roman Court and Nave.]

116. Corbulo—Cneius Domitius. Roman General.

[Date and place of birth unknown. Died at Cenchreæ, in Greece, A.D. 67.]

One of the most celebrated generals of his age, and brother-in-law of Caligula. He composed some military memoirs after the manner of Cæsar’s Commentaries, but they have not been preserved. He was a good disciplinarian, and cautious as well as brave. He commanded against the Parthians, and was victorious in every engagement. After Nero’s accession, he continued faithful to his new master, who summoned him to Greece, and for his fidelity greeted him with an order for execution on his landing at Cenchreæ. He stabbed himself with his own sword. His daughter Domitia Longina, celebrated for her beauty and vices, was the wife of the Emperor Domitian.

[From the marble in the Gallery of Philosophers, of the Capitoline Museum, at Rome.]

117. Decimus Clodius Ceionius Septimius Albinus. Roman General.

[Born at Adrumetum, in Africa. Date not known. Died at Lugdunum (Lyons), in Gaul, A.D. 197.]

Entered the army at an early age, and served with distinction under Marcus Aurelius. Held a command in Gaul, and afterwards in Britain, under Commodus. After the murder of Pertinax, the successor of Commodus, Clodius was proclaimed Emperor in Britain by the British legions, and shared the purple with Septimius Severus. Subsequently discarded by[II-51] Severus, he put himself at the head of his legions, and met his colleague in battle at Lugdunum, in Gaul, where he fell. He was of great beauty and strength, and was called by his father “Albinus,” on account of the great whiteness of his skin. A skilful general, but severe: styled by some, the “Catiline” of his time.

[From the gallery of the Emperors, in the Capitoline Museum, at Rome.]

118. Terence—Publius Terentius. Latin Comic Poet.

[Born at Carthage, B.C. 195. Died (place uncertain), B.C. 159. Aged 36.]

The second and last of the Latin comic poets—Plautus being the first—whose plays have descended to our time. He was the slave of a Roman senator, who, having regard to his talents and handsome person, gave him his liberty: on which occasion the freedman assumed his patron’s name—Terentius. In person, he was thin and of the middle height, with an olive complexion. Terence is the one Latin writer in whom the stateliness and the lofty strength, seemingly inherent in the language of Rome, at once ceases: and the tongue which we had deemed fit only to be spoken by the Kings of the world,—-by the Fathers convened in the temple of Capitoline Jove,—gently condescends to the hearts and the hearths of men. In the six preserved comedies of his—both by the delineation of the characters, and by the strain of their speaking—we feel ourselves in the familiar presence of known humanity. Not but that the manner implies delicate choice and thoughtful art; but its easy, natural air deceives the belief in the actual study. The words rise up from the heart, to drop from the lip. In the dialogue of Terence, the barrier that hitherto has stood inflexibly between the modern and the antique world has fallen. We are at home in the Roman theatre. To great purity, grace, tenderness, the style adds, even in description, or narrative, or continuous argument, that utter simplicity and obviousness of the sense, which is found in the most trivial uses of speech.

[From the marble in the Stanza dei Filosofi of the Capitol, at Rome. On the right shoulder is sculptured the histrionic mask, a curious fancy of the artist, which may have been suggested by the custom in Egyptian portraiture, of carving the name in a small “cartouche” on the shoulder, a practice alluded to in the scriptures.]

119. Quintus Hortensius. Roman Orator.

[Born B.C. 113. Died B.C. 49. Aged 64.]

He employed his great oratorical powers in the defence of Sylla, and of the aristocratic party to which he had attached himself. Cicero styled him “rex judiciorum.” He defended Verres against Cicero: and the triumph of Cicero on that occasion threw Hortensius ever after into the second rank. He acquired great wealth, and lived luxuriously. His oratory was of the florid kind, and greatly aided by gesticulation; he had a retentive memory, and a sweetly sonorous voice.

[From the marble in the Villa Albani, Rome. The Bust is inscribed with his name. It was found together with the bust of Isocrates (No. 15).]

120. Cicero—Marcus Tullius. Roman Orator.

[Born at Arpinum, B.C. 106. Died at Formiae, B.C. 43. Aged 63.]

The acknowledged greatest name in Roman eloquence. A man diligent in accomplishing himself by various study, and wonderfully gifted with the power of clothing thought in copious and musical words. He is less[II-52] distinguished as an original thinker. He frequented the schools of the philosophers, but seemed in heart more dedicated to the worldly ambition of power and fame than to the studious zeal of truth. He courted popularity, and lived in anticipated immortality. He was an ambiguous partisan, waiting to be directed by victory to the side which he should embrace. He loved to throw an air of philosophical reflexion over questions of human affairs; and his expression of these reflexions is felt even to this day as singularly felicitous. We quote his words, because we can find no apter expression yet for the permanent thoughts. His writings show him undisguisedly vain. After the assassination of the great Julius (B.C. 44), he became the leader of the republican party, and in his celebrated “Philippics” denounced Antony as the foe of his country. This was his ruin. On the formation of the Triumvirate of Antony, Octavius, and Lepidus, he was included in the proscriptions; his head was cut off, and fixed upon the Rostra which had so frequently resounded with his eloquence. His greatest political achievement was the detection and sudden overthrow of the revolutionary conspiracy headed by Catiline (B.C. 63), his brilliant denunciations of whom we listen to in our boyhood. Kind and pure in his life, but without true greatness of character, and with many moral weaknesses.

[From the marble in the Vatican. Considered to be the most faithful portrait of this renowned orator. No. 120A is from the Gallery of Philosophers of the Capitoline Museum, at Rome.]

120A. Cicero—Marcus Tullius. Roman Orator.

121. Virgil—Publius Virgilius Maro. Latin Poet.

[Born at Andes, near Mantua, in Cisalpine Gaul, B.C. 70. Died at Brundusium, in Italy, B.C. 19. Aged 51.]

The district in which Virgil was born not being then included in Italy, he did not enjoy the native rights of a Roman citizen; and when Augustus divided the lands in Cisalpine Gaul amongst his victorious veteran soldiers, Virgil was ejected from his small patrimonial farm. Upon his petitioning the emperor, however, the farm was restored to him. He was the friend of Horace, whom he introduced to Mæcenas. Besides poetry, he cultivated medicine and agriculture. He was tall, dark, rustic in appearance, and feeble in body. He was drawn by the power of genius from the obscure shade of a peasant’s life, to be the favoured poet and friend of an emperor. In his verse the native majesty of the language appears more perfectly tempered, than in any other, with grace and sweetness. Virgil is the most pathetic of the Roman poets: the heart speaks in his verse. He has the soul of the beautiful, like an earlier Raffaelle in song. His poem on Husbandry—the most finished work of his muse—is written with a cleaving of soul to the native theme. The purport of the poem was to recall the luxurious Romans to the simple and vigorous way of life of their ancestors, who lived cultivating the earth. If the rural earth and free nature could have been endeared to the voluptuous masters of the world by the charm of musical words, the Georgics might have done this. We ourselves feel the pouring of a purer atmosphere into the corrupted city. The epic poem of Virgil, “The Æneid,” relating the transplantation of a Trojan colony from the flames of falling Troy, to found (in Italy) future Rome, derives a high poetical cast from the prophetic spirit that overshadows it. Both “The Georgics” and the “Æneid” express love in the soul of the poet—love for the scenes and[II-53] vocation, in which he was born—love of Rome, which he will purify or will glorify.

[From the marble in the Stanza dei Filosofi of the Capitol, at Rome. The portraits of Virgil have been verified by Bellori. The tomb of Virgil is a well-known object of interest near Naples. It is now an ivy-grown, but venerated ruin, although so late as 1326 it was nearly perfect.]

122. Seneca—Lucius Annæus. Philosopher.

[Born at Corduba (Cordova), in Spain, about A.D. 2. Died at Rome, A.D. 68. Aged 66.]

The tutor of young Domitius, afterwards the Emperor Nero, by whom he was condemned and sentenced to self-destruction—-probably that Nero might secure his great possessions. Seneca underwent his punishment with great firmness and philosophic calm. He was a writer of many works, and Quintilian says that he corrupted the taste of his age by an affected though elegant style. Many of his epistles and moral and physical treatises are extant. His philosophy was Stoical, with modifications; his manner of writing is antithetical, and apparently laboured. He rejected the superstitions of his country, and was a monotheist.

[From the marble in the Berlin Museum. In the Florence collection there are three Busts of him. The portrait of Seneca was identified as early as the sixteenth century by a medallion engraved with his name, possessed by Cardinal Mattei. A Bust in bronze was found at Herculaneum.]

122*. Livy—Titus Livius. Roman Historian.

[Born at Petavium (Padua), B.C. 59. Died A.D. 17. Aged 76.]

Little is known of the life of this famous historian, save that he enjoyed the patronage and friendship of Augustus, and established a wide and instantaneous fame in his own time. The great and only extant work of Livy is his History of Rome. It originally consisted of 142 books: 35 only have come down to us—of the remainder we have merely short summaries. Livy is an admirable weaver together, without sifting criticism, of received records and traditions. His reader glides on the stream of his flowing narration. His style is lucid, animated, picturesque. But in the annals of the warlike republic—that setter up and putter down of kings—that mistress of the nations—we look for and desire, more stern and majestic strength;—a profounder disclosure of the heroic political wisdom, which steadily advanced in building up the most memorable empire in the world.

[Bust yet to come.]

(Leaving the Court of Roman Generals, we proceed to the Nave. The numbers of the Portrait Gallery continue into the Nave from left to right.)

123. Hadrian. Roman Emperor.

For life, see No. 46.

124. Livia Drusilla. Roman Empress.

For life, see No. 93.

[A fine statue of Livia will be seen in the vestibule adjoining the Court of the Generals, No. 237.]

125. Julius Cæsar. Roman Dictator.

For life, see No. 111.

[II-54]

126. Scipio Africanus. Roman General.

For life, see No. 109.

127. Scipio Africanus. Roman General.

For life, see No. 109.

128. Decimus Cœlius Balbinus. Roman Statesman and Emperor, A.D. 238.

[Date, and place of birth unknown.]

A man of Consular dignity, who had governed in nearly all the peaceful provinces of the Empire, and was esteemed and beloved by all ranks; when, upon the death of the Gordiani in Africa, he was selected as one of the Emperors to oppose the ferocious Maximinus—Pupienus being the other. Soon after the death of Maximinus, both Balbinus and Pupienus were murdered by the Prætorians, who remembered to their disadvantage the prodigal liberality of their lately-slain tyrant. They reigned only four months. Balbinus was celebrated for his oratory and poetry.

[From the marble in the Capitoline Museum, at Rome.]



THE ITALIAN PORTRAITS.

Line
INTRODUCTION.

Our Italian collection is formed, chiefly, from the busts of the Capitoline Museum, at Rome, where Pius VII., in 1820, founded a portrait gallery of celebrated Italians, to which he gave the name of the Protomoteca. This gallery contains about 70 busts, and though dedicated especially to the honour of Italians, still finds room for some of the distinguished foreigners who derived much of their eminence from studying at Rome. These are Nicolas Poussin of France, Raffaelle Mengs the Bohemian, Winckelmann the German antiquary, Angelica Kauffman, the most accomplished painter of her sex, and Giuseppe Suée, a French painter. The busts of living men are not admitted, and the honour of joining the famous company is awarded by the Academy of Rome, assisted by men learned or skilled in any special science or art.

The series is a very complete one, and begins as early as the XIIIth century. It is to be regretted that so few of these busts have been done from the life; although it must be understood that none is the work of mere imagination, some authenticated portrait having in every case furnished a model. Most of these busts are the work of sculptors of the time of Canova, and many of them[II-55] were executed at his expense, and presented to the collection. In general, it will be remarked that a certain grandeur prevails in the treatment of the heads, an element that seems to belong, naturally, to the works of the best Italian artists, whether in painting or sculpture. Even where existing casts from the face prove to us that in these busts there has been a certain departure from the real features, we see it has been done only to afford a more exalted idea of the person, and to give the stamp of that nobleness and dignity which characterize the finest efforts of portraiture. A comparison of the busts of Galileo, Nos. 185 and 185A, and of Michael Angelo, Nos. 143 and 143A, will illustrate this point.

There is also in the Capitoline Museum, a large collection of antique portrait busts, embracing many of the ancient philosophers, poets, and Roman Emperors, a selection from which, as we have already stated, is found in the Greek and Roman Courts.

In the Vatican (the palace of the Pope, at Rome), a splendid edifice, which has, from time to time, been constructed and enlarged by various eminent architects, and decorated by the greatest painters of the world, are preserved many chefs d’œuvre of art that are to be seen in no other place. The collection of the Vatican includes many portraits of every kind; but one portion of the vast structure is exclusively devoted to portrait-statues and busts. This is a spacious and magnificent apartment called the Rotonda, paved with antique mosaics, and surrounded with antique statues and busts on pedestals of the rarest marbles. Adjoining this saloon is another noble gallery, built by Pius VII. which contains many statues of the Greek sages, and of other illustrious men.

In the Florence gallery there is a most interesting series of portraits of painters by their own hands—a unique and unrivalled collection, begun by the Cardinal Leopold, the brother of Ferdinand II., and increased by the addition of the portraits from the collection of the Abbé Pazzi, purchased by the Grand Duke Leopold in 1765. Besides these paintings, there is a collection of more than 4,000 engraved gems and cameos, amongst which are many antique portraits. There are also about 100 antique portrait busts, of which the rarest and best preserved are Cicero, Marc Antony, Julius Cæsar, Augustus, Caligula, Galba, and Otho. As the visitor will observe, several of these are in our portrait gallery.

The Naples collection, besides many fine works of antiquity of every kind, has contributed in the most important manner to the subject of antique portraiture. It contains the invaluable relics found at[II-56] Herculaneum and Pompeii: and amongst these have, from time to time, appeared portrait busts, statues, and even pictures with names upon them, by which busts elsewhere have been recognised. There are in this Museum, about 200 portraits in marble and bronze, from which our collection has been enriched.


(The portraits of Italians begin immediately behind the Statue of Rubens, in the great Transept, on the east side of the Nave.)

ARTISTS AND MUSICIANS.

129. Niccola Pisano. Sculptor and Architect.

[Born at Pisa, in Italy, 1205-7. Died at Sienna, in Italy, about 1290.]

The early reviver of Sculpture in Italy; memorable for being the first Italian artist who quitted the dry, stiff, traditional forms which had long prevailed, and founded a school based upon Truth and Nature. His finest productions preceded those of Cimabue; and it was said of him that “he was the first to see the light and to follow it.” His great work is the marble pulpit, with bas-reliefs from Scripture, in the Baptistery at Pisa.

[By Alessandro d’Este. Vasari mentions a Bust of him by his son Giovanni, from which this may have been taken.]

130. Andrea di Cione, better known by his surname Orcagna or Orgagna. Painter, Sculptor, Architect.

[14th century.]

Precise time of his birth unknown; it appears that he died about 1370. Executed several works in his three vocations. The dignified grandeur and admirable grouping of the figures in his paintings were at a later period copied or adopted, even by Michael Angelo and Raffaelle. Orcagna was a good as well as a great man. His chief works still exist, though in a half-ruined state, in the Campo Santo at Pisa, and in the Strozzi Chapel, and the Or-San-Michele at Florence.

[This Bust is by the Cav. Massimiliano Laboureur. There is, however, a mezzo-relievo, by his own hand, behind the altar in Or-San-Michele, at Florence, which contains his portrait. He is there represented as an Apostle, shaven, and wearing a hood.]

131. Filippo Brunelleschi. Sculptor and Architect.

[Born at Florence, 1377. Died there, 1446. Aged 69.]

The self-taught constructor of the Cupola of Santa Maria del Fiore, at Florence, which, though smaller than that of St. Peter’s at Rome, surpasses it in elegance and lightness. A builder of churches, palaces, and fortifications. Michael Angelo declared that it was difficult to imitate and impossible to excel him. Small and insignificant in person, but of commanding genius. With many competitors, his goodness and prudence preserved him from enmity.

[His tomb is next to that of Giotto, in the Cathedral at Florence, and bears an epitaph by Aretino. This bust was done by Alessandro d’Este. It is no doubt taken from that in the Church of Sta. Maria del Fiore, at Florence, which was done from the life, in marble, by his pupil, Il Buggiano. In 1830, statues of him and Arnolfo, his fellow architect, were placed in the new chapter-house: they are by Luigi Pompaloni, a Florentine.]

[II-57]

132. Lorenzo Ghiberti, or Lorenzo di Cione. Sculptor.

[Born at Florence, 1378. Died, 1455. Aged 77.]

One of the most memorable of the great Italian artists of the fifteenth century. At the age of 23, he competed with Brunelleschi and Donatello for the execution of the side doors of San Giovanni at Florence. His two rivals confessed themselves vanquished and retired in his favour. These gates were twenty-one years in course of completion, and are divided into 20 panels, each containing a bas-relief cast in bronze, from a subject in the New Testament. Another twenty years were spent in producing the central doors of the same Baptistery, representing in ten compartments the principal events of the Old Testament. Of these, Michael Angelo said they were beautiful enough to stand at the entrance of Paradise. A reproduction of these gates occupies the centre of the south end of the Renaissance Court. Ghiberti modelled and cast statues, worked in gold, painted on glass, and wrote a MS. history of Ancient and Modern Artists.

[Buried in Sta. Croce, Florence; his tomb is now lost. This Bust is by Carlo Finelli. There is an interesting portrait of him by his own hand, amongst the heads on his celebrated gates in the Renaissance Court. The two heads in the centre, between the upper corners of the second panels from the ground, are portraits of Ghiberti and Bartoluccio, the caster; the right-hand one, with the bald head, being Ghiberti. In the original gates his name is inscribed near the head, with the words,—

“Laurentii Cionis de Ghibertis mirâ arte fabricatum.”]

133. Donato di Niccolo di Betto Bardi; called by his contemporaries Donatello. Sculptor.

[Born at Florence, 1386. Died there, 1468. Aged 83.]

He was the generous competitor and friend of Lorenzo Ghiberti. Employed and patronized by Cosmo de’ Medici. Was one of the first Italian sculptors who gave to their figures freedom of movement and force of expression. A very fine work of this artist is the equestrian statue of Gattamelata, in the city of Padua. A cast from it will be found in the Gothic and Renaissance Sculpture Court. The character of Donatello was remarkable for simplicity and generosity; he took no thought for himself, and was devoted wholly to his art.

[This Bust is by Giovanni Ceccarini.]

134. Fra Angelico da Fiesole; called also Fra Giovanni da Fiesole, and Il Beato. Painter.

[Born at Vicchio, in Tuscany, 1387. Died at Rome, 1455. Aged 67.]

This charming painter of the early Florentine school became, when a youth, a friar of the Dominican order. Began by illuminating missals; afterwards enlarged his style, and executed frescos. The finest of these are in the church of San. Marco, and in the chapel of Nicholas V. at Rome. His works are distinguished by simple grace, tenderness of colour, and the most profound religious feeling. He excelled particularly in painting angels.

[This Bust is by Leandro Biglioschi; but there is a life-size bust of him upon his tomb, in Minerva di Roma.]

135. Tommaso Guidi, also called Massaccio. Painter.

[Born at San-Giovanni, in the Val d’ Arno, 1402. Died at Florence, 1443. Aged 41.]

Massaccio-Tomasaccio (big or heavy Tom) was a nickname given to him when a boy. A devoted student of the works of Brunelleschi and[II-58] Donatello. He lived for the most part in Rome and Florence, and died in the last-named city. Time has destroyed the greater number of his works. His frescos, which still remain in the Brancacci chapel of the Carmelite church in Florence, representing the history of St. Peter, are remarkable for their freedom, and for the absence of the conventionalities of the early mediæval painters. Some of his noble figures became models for the later Florentines, and were imitated by Raffaelle himself. He excelled his contemporaries in the nude form, and gave to his draperies a style unknown before, adapting them naturally and gracefully to the human shape.

[By Carlo Finelli.]

136. Andrea Mantegna. Painter and Engraver.

[Born at Padua, in Italy, 1430. Died at Mantua, in Italy, 1506. Aged 76.]

This painter is celebrated among the early artists of Italy, and belongs to the Paduan school of art. His chef-d’œuvre, the Madonna della Vittoria, in the Louvre, is grandly treated, and remarkable for its admirable finish. His cartoons of the triumphs of Cæsar are at Hampton Court; the composition is grand and spirited, and knowledge of the antique is blended with a feeling for nature. To Mantegna is attributed the art of engraving with the burin, and also the invention of the art of foreshortening figures, especially on ceilings. Distinguished for his good and amiable qualities.

[He was buried in the Church of S. Agnese, in Mantua. His tomb is in one of the chapels, and bears his statue, in bronze. This bust is by Rainaldo Rinaldi.]

137. Luca Signorelli. Painter.

[Born at Cortona, in Tuscany, 1440. Died 1521. Aged 81.]

An ancestor of Vasari, the author of “Lives of the Painters,” and a distinguished painter of the early Tuscan school. Assisted in the works of the Sistine Chapel at Rome; and his pictures there, according to Vasari, are superior to those of his contemporaries. His great frescos in the Cathedral of Orvieto, representing the Day of Judgment and the History of Antichrist, are his principal works. His productions show too great anxiety to mark the form with anatomical correctness. In this he was the precursor of Michael Angelo; and Fuseli has frequently imitated him. As a man he was upright, sincere, and kind-hearted. He lived and decorated himself with great splendour.

[By Pietro Pierantoni.]

138. Francesco Lazzari Bramante. Architect, Painter, Poet.

[Born at Castel Durante, in Italy, 1444. Died at Rome, 1514. Aged 70.]

Memorable as the architect employed by Julius II. and Leo X. to rebuild the church of St. Peter’s, at Rome, and to construct the famous Loggie of the Vatican, afterwards completed and adorned by Raffaelle. Bramante was a bold and original genius, but vain, impetuous, and impatient. As a consequence of his recklessness, most of his works have speedily decayed.

[By Alessandro d’Este. Bramante was buried in the crypt of S. Peter’s, at Rome, called the “Grotte Vaticane.”]

139. Pietro Perugino, or Pietro Vanucci della Pieve. Painter.

[Born at Pieve, in Italy, 1446. Died there or at Perugia, 1524. Aged 78.]

Immortal as the instructor of Raffaelle, and himself a celebrated painter of the Umbrian school. He was opposed to the more modern style of which[II-59] Michael Angelo, Leonardo da Vinci, and his own great pupil Raffaelle, are the renowned masters. His pictures are religious, earnest, and graceful, but wanting in variety of character. In his best pictures, his colouring is excellent, and the expression of his heads very beautiful, but his numerous works are of very unequal value and merit. Vasari has branded this painter as avaricious, eccentric, sordid, and irreligious. Modern writers have attempted to rescue him from the harsh verdict pronounced by his early biographer.

[By Raimondo Trentanove.]

140. Domenico Ghirlandaio. Painter.

[Born at Florence, 1449—51. Died sometime between 1490 and 1498.]

The son of a goldsmith who adopted the name Ghirlandaio (the garland-maker) on account of his skill in making the gold and silver ornaments worn by Florentine girls. The first work of Domenico was a portrait of Amerigo Vespucci who had the honour of giving his name to America. Devoted to his art, preferring honour and glory to riches. Painted in fresco, in tempera, and in mosaic, but excelled in the first. In his sacred historical pictures, he introduced portraits of remarkable persons as spectators, which gives them a peculiar value. He was the early instructor of Michael Angelo, and his finest works are in the churches of Florence.

[By Massimiliano Laboureur. His portrait, by his own hand, is in one of the pictures of the Choir of S. Maria Novella, at Florence.]

141. Leonardo da Vinci. Painter.

[Born at Vinci, in Tuscany, 1452. Died at Amboise, in France, 1519. Aged 67.]

One of the greatest names of the fifteenth century. His genius was all but universal, and his faculty of acquiring knowledge of all kinds, prodigious. He is most generally known and appreciated as a painter; but he was also a distinguished writer, a man of general science, an architect, an engineer, an accomplished musician, and a discoverer in Natural Philosophy. As painter he was the pupil of Andrea Verrochio, and the founder of the Milan school. It was at Milan that he painted his great and universally known picture, of the “Last Supper.” From 1504 to 1515, he travelled through Italy as architect and engineer to Cæsar Borgia, Duke of Valentino. He is the undoubted head of the highest development of art, in which the most elevated subjects were represented in the noblest Form. Every branch and attribute of Fine Art was intimately known to him. In the expression of the passions, his eye and mind were quick and eager; and he investigated every phase of life to its minutest modifications. He was familiar with the spirit of the humblest ranks, and could stamp divine subjects with a beauty and sentiment which only the very highest genius is competent to attain. There was great rivalry between Leonardo and Michael Angelo.—A Titanic emulation! The faculties of both were mighty and analogous; their grasp similarly broad and powerful. Leonardo passed his last years in France, protected by Francis I., who showered favours upon this gifted man. A story is current that the painter died in the arms of the monarch, but there appears no good foundation for the statement.

[From the marble, by Filippo Albaccini. The bust resembles the painted portraits, of which there are several of undoubted accuracy and truth, painted by himself, at Florence, Venice, Paris, and Milan. The works of Leonardo on Anatomy and Painting are still invaluable to students in art. His treatise on Painting was first printed at Paris in 1651. The MS. was in a curious hand-writing, and written backwards with the left hand.]

[II-60]

142. Fra Bartolomeo, or Baccio della Porta. Painter.

[Born at Savignano, in Italy, 1469. Died 1517. Aged 49.]

At an early age he carefully studied the works of Leonardo da Vinci, and the effect of the study is visible in his own productions. Whilst his fame was growing, he became deeply influenced by the preaching of Savonarola, at whose instigation he publicly burnt some of his finest studies of the undraped figure. In 1500, Bartolomeo assumed the habit of a Dominican friar, and forsook painting. But after the lapse of four years he resumed his art, made the acquaintance of Raffaelle at Florence, and the influence of these two eminent painters on each other was mutually advantageous. Among the finest works of Fra Bartolomeo are, the large picture of St. Mark, esteemed in painting equal to the “Moses” of Michael Angelo in sculpture, and the “Madonna della Misericordia.” He was the inventor of the lay figure, which he was the first to employ. His style is characterized by calm seriousness, unaffected dignity, and grace. The religious expression of his holy figures reveals conscious elevation, not mere sentimentality; and in his Madonnas holiness is always exquisitely blended with beauty. But Bartolomeo lacked inward power. Sometimes he is cold and formal; at others, impetuous and wanting in repose. The colouring of flesh is peculiarly soft in his pictures, and his draperies are excellent.

[By Domenico Manera. In the last work of Bartolomeo, which is now in the Uffizzi, at Florence, representing the patron saints of Florence, and others, he has introduced his own portrait.]

143. Michael Angelo Buonarotti. Sculptor, Painter, Architect.

[Born at Caprese, in Tuscany, 1474. Died at Rome, 1563. Aged 89.]

A demigod in art. All learning and all knowledge came to Michael Angelo, perhaps even more than to Leonardo da Vinci, his mighty contemporary, as a rightful inheritance, to be magnificently accepted and sumptuously enjoyed. Poet, musician, sculptor, architect, engineer, painter, anatomist, man of science—his titles to renown are inexhaustible. His genius was universal, his grasp boundless. All his works, of whatever kind, bear the broad, deep stamp of his haughty, masculine spirit, and constitute the immortal expression of strength, energy, and sublimest passion. The feeling of Michael Angelo was strong, intense, grand, penetrating; his thought as clear as it was profound. His life is a series of conquests in the world of intellect. Domenico Ghirlandaio has the honour of claiming Buonarotti for his pupil. By Ghirlandaio the stripling was introduced to Lorenzo de’ Medici, who, as well as his successor, became the steady friend of the great artist. Upon the expulsion of the Medici, he went to Bologna, thence to Florence, and thence again, upon the invitation of the Pope, to Rome. In 1503, commissioned to paint one end of the great Hall of Council, Leonardo da Vinci being intrusted with the other. Never before had two such spirits met to contend for glory. His statue of Moses, and the ceiling of the Sistine Chapel, were produced under Pope Julius II. Under Leo X., and Adrian, works of equal power issued from his inspired brain. In 1546, he was commanded by the Pope to undertake the direction of the works at St. Peter’s. He consented only upon condition that he received no salary, and laboured “for the love of God alone.” For seventeen years he prosecuted the pious service, and raised the sacred edifice as far as the base of the cupola. The undying memorials of his chisel and pencil speak the intellectual supremacy of the man beyond all words of praise. They will command[II-61] wonder, delight, admiration, respect, and awe, whilst the world lasts. There is nothing factitious, no studied allurement, no imposture in his work. It is all true, simple, sublime. Michael Angelo, in 1530, directed in person the defence of Florence, and erected its fortifications—which yet exist—when that city was besieged, and, after a year of heroic defence, taken by the army of Charles V. The fall of Florence, at this time, witnessed the last breath of Italian independence. Look on his face! You see many furrowed lines there, and a potent brow. The features and expression betray irascibility of temper, jealous self-consciousness, towering sense of power. Michael Angelo had all these. He was a lion aware of his strength. What if he used it as a lion, at times vehemently, and regardless of the pain inflicted upon others! He was also a staunch friend, disinterested, liberal, temperate, upright, conscientious. The ancients had their Titans. Michael Angelo too is the son of Heaven and Earth.

[This Bust is from the marble by Alessandro d’Este, and one of those contributed to the Capitoline Museum, at the expense of Canova, when he was President of the Academy of Saint Luke, at Rome. It conveys an idea of coarseness which would hardly seem to belong to Michael Angelo’s natural expression, marked as it is with power and energy. It will be remembered how his nose was broken by a blow from his fellow-student, Torrigiano. He was buried in Sta. Croce, at Florence, his noble monument there being designed and executed under the superintendence of Vasari, the historian of the painters. It consists of a sarcophagus, supported by three figures, representing Painting, Sculpture, and Architecture, and surmounted by his bust (of which No. 143A is a cast) and three crowns, with the motto “tergeminis tollit honoribus.” This tomb and the bust were executed by three sculptors, Domenico Lorenzi, a pupil of Bandinelli, Valerio Cioli, and Giovanni dell’ Opera. There is, in the Capitoline Museum a bust of Michael Angelo, said to be by his own hand; the head is of bronze, and the rest of marble; and in the same place a painted portrait of him, by Andrea del Sarto. Vasari mentions an alto-relievo of him in bronze, by Danielo Ricciarelli, and a medal (“a very close resemblance”) by Cav. Lioni, which was abundantly copied and distributed in his honour.]

143A. Michael Angelo Buonarotti. Sculptor, Painter, Architect.

144. Titian, or, Tiziano Vecellio. Painter.

[Born at Pieve di Cadore, in Lombardy, 1477. Died at Venice, 1576. Aged 99.]

In the works of Titian, Venetian art reached its culminating point. He was the pupil of Bellini; but the disciple soon surpassed his master. Titian first instituted the custom of painting full-length portraits, and his pictures of this kind, of which he painted many, have never been surpassed. In the representation of undraped female forms he also displayed the hand of a master. In softness, transparency, and delicacy of colouring, he stands alone. All his figures seem to express a high consciousness and enjoyment of existence. He was followed, throughout his career, with great honours. Charles V., whose portrait he painted, made him Count Palatine, and he received invitations from other crowned heads. He died of the plague in Venice, and was buried with great ceremony, at a time when raging pestilence had suspended the ordinary rites of burial. Towards the close of his life his subjects were chiefly religious.

[He was buried at the Chiesa delle Frazi, at Venice. This Bust is by Alessandro d’Este. There is in the Church of St. John and St. Paul, at Venice, a fine bust of Titian, which stands by the side of that of Palma Vecchio; it was placed there forty-five years after his death, by Palma il Giovine. There is little doubt that this and its companion of Palma were the work of Jacops Albarelli, the intimate friend of Palma Giovine, whose bust he also executed.[II-62] Ridolfi mentions a Bust of the great painter, by his friend Jacopo Sansovino. There is, in the Vienna Gallery, a superb portrait of him, by his own hand.]

145. Benvenuto Tisio, commonly called Garofalo. Painter.

[Born at Garofalo, 1481. Died at Ferrara, in Italy, 1559. Aged 78.]

A distinguished painter of the Ferrarese school. The sight of Raffaelle’s works, in the Sistine Chapel, determined him to follow art, and he became a friend of the great artist himself, though in style most unlike him—brilliant but mannered. On festival days it was his custom to work without payment at a convent in Ferrara, “for the love of God.” Blind for the last few years of his life—cheerful in disposition, and resigned under affliction.

[By Massimiliano Laboureur. In the Louvre are two portraits said to be of Garofalo, but they are of doubtful authenticity. This bust is probably done from a picture.]

146. Raffaelle Sanzio, commonly called Raffaelle. Painter.

[Born at Urbino, in Italy, 1483. Died at Rome, 1520. Aged 37.]

The founder of the Roman school of painting. He was the son of a painter, and the pupil of Perugino, whom his first style resembles, and whom he quickly surpassed. He was already eminent in his art at the age of seventeen. In 1506, he first saw Michael Angelo’s great and celebrated “Cartoon of Pisa,” and a closer study of anatomy and form is manifest in his works after this time. In 1508, in the pontificate of Julius II., he was invited to Rome, where he continued until his death, painting his exquisite frescos in the Vatican. Whilst executing these works, Michael Angelo was completing the Sistine chapel, and a rivalry arose between these two consummate artists, which was never extinguished. Raffaelle was a sculptor and architect as well as painter. In 1514, he directed the works at St. Peter’s, and was subsequently very zealous in superintending the exhumation of the remains of antique art, and in designing a restoration of ancient Rome. In the midst of his fine labours, he contracted a fever and died. In his works, beauty of Form is the expression of the utmost elevation of mind and perfect purity of soul. Some of Raffaelle’s cartoons on scriptural subjects are at Hampton Court Palace. Several of his pictures are in France, obtained by Francis I., who tried in vain to allure Raffaelle to his capital. His “Transfiguration,” in the Vatican, left unfinished at his death, and carried in his own funeral procession, is considered by some the finest picture in the world. It was finished by his pupil, Giulio Romano. Little or nothing is known of his private life, save that his nature was sweet and gracious, and that all men loved him. He was of a slender frame, and five feet seven inches high. His skull was beautifully formed.

[Raffaelle was buried in the Pantheon at Rome, now called Sta. Maria Ritonda. His tomb was ordered by himself, and executed by Lorenzo Lotti, who, it is said, restored one of the ancient tabernacles there at Raffaelle’s request, and added an altar, with a figure of the Virgin. Upon this monument there is a bust of him by Paolo Naldini, a sculptor who lived in the early part of the 17th century. The tomb was opened in 1833, and the remains were found entire, so that the skull long exhibited in the Academy of S. Luke as that of Raffaelle was proved to be a fabulous relic. Portraits of Raffaelle are to be found in several celebrated pictures; in the Duomo and Sacristy of Siena, in the Borghese Gallery at Rome, and one by his own hand in the picture of St. Luke; but the most authentic one, and that which alone possesses the beautiful expression of his remarkable countenance, is the picture by himself in the Gallery of Portraits of Painters by their own hands at Florence. This bust is from one probably by Carlo Maratta, a great[II-63] admirer and copier of Raffaelle’s works, and who presented it to the Capitoline Museum. There was in 1791, in the Spada Palace at Rome, a portrait of Raffaelle when 12 years old, by himself. (See “Martyn’s Tour in Italy,” p. 242.)]

147. Michele Sanmicheli. Architect.

[Born at Verona, in Italy, 1484. Died there, 1559. Aged 75.]

His works were chiefly fortifications. At the age of seventeen, he went to Rome to study the remains of its ancient architecture, and there gained the friendship of Buonarotti, Bramante, Sansovino, and Sangallo. For Pope Clement VII. he fortified, with Sangallo, the cities of Parma and Placentia. In 1527, entered the service of the Venetians, and for them, at Verona, first employed angular bastions, which he invented. The principle being generally adopted, Sanmicheli was employed to fortify many of the Italian cities, as well as the islands of Candia and Corfu. He then strengthened his native city with fortifications, and adorned it with palaces and other works. One of these, the Capella di Guareschi, is a masterpiece of architecture.

[Bust by Domenico Manera.]

148. Fra Sebastiano del Piombo, sometimes called Sebastiano Veneziano. Painter.

[Born at Venice, 1485. Died at Rome, 1547. Aged 62.]

The pupil of Bellini and Giorgione. At Rome he competed with Raffaelle, and gained the friendship and approval of Michael Angelo, some of whose designs he executed,—amongst others that of the “Raising of Lazarus”—a picture now in our National Gallery. Besides painting in oils and fresco, he invented a method of painting on stone, which was much admired. His portraits are celebrated, and he excelled in beauty of colouring. It is said that he was slow of execution, and not a lover of his art, which he deserted for other pleasures when he attained competency. His principal works are in Venice and Rome. He was called Fra del Piombo (Monk of the Signet), from the office of sealer of briefs, which he held in the Pope’s Chancery.

[By Massimiliano Laboureur.]

149. Giovanni da Udine, or Giovanni di Nani. Painter.

[Born at Udine, in Italy, 1487. Died at Rome, 1564. Aged 77.]

A pupil of Raffaelle, whose style he so thoroughly imitated that it is difficult to distinguish his work from that of his master, whenever he acted as his assistant. In this capacity he was the chief painter of the Loggie of the Vatican. Some ancient grottos having been discovered near Rome, he detected the composition of their stucco ornaments; and so successfully imitated the material, that he may be called the inventor of modern stucco work. Excelled in painting birds, fruits, and animals.

[By Massimiliano Laboureur.]

150. Andrea del Sarto, or Andrea Vannuchi. Painter.

[Born at Florence, 1488. Died there, 1530. Aged 42.]

Called Del Sarto, from the trade of his father, who was a tailor. Long trouble followed his early and unfortunate marriage. Visited France, where he painted pictures for Francis I., who loaded him with gifts, and commissioned him to buy works of art in Florence. Spent the money entrusted to him, and bought neither pictures nor statues for his illustrious patron.[II-64] Disgraced, neglected, and poor, he died deserted by his wife. This painter—whose works are admirable in design and colour, and remarkable for the elegance and majesty of the figures, is deficient in elevation and refinement of expression. His own character was morally weak and degraded.

[By Antonio D’Este. A monument was erected to him by Raffaelle da Monti Lupo at the expense of Domenico Conti, the heir of Andrea, in the Church of the Servites. It was removed by the authorities, but in 1606 a Prior had another tomb erected in the cloister, between the Madonna del Sacco and another of his frescos. A life-size bust in marble, by Giovanni Caccini, surmounts this tomb.]

151. Marcantonio Raimondi. Engraver.

[Born at Bologna, in Italy, about 1489. Died there, about 1537.]

The most celebrated of all the early engravers. The first impression from any engraved metal plate is dated 1454. Within sixty years, Marcantonio had carried the art to perfection. At Rome he was patronized for some years by Raffaelle, who employed him to engrave some of his most exquisite designs. The finest works of Marcantonio now bear a very high value for their beauty and rarity. Unhappily he was a bad man. He began his career as an artist by using his skill to pirate some of the works of Albert Durer. After Raffaelle’s death, he was banished from Rome by Clement VII. for gross immorality, fled to Bologna, fell into poverty, and is supposed to have died assassinated.

[By Massimiliano Laboureur. The best specimens of Marcantonio’s engraving are in the Imperial collection at Vienna.]

152. Correggio, or Antonio Allegri. Painter.

[Born at Correggio, in Italy, 1493 or 1494. Died there, 1534. Aged 40 or 41.]

Of his private life and character little is known, but his works are justly admired throughout the civilized world, while his frescos in the cupola of the Cathedral at Parma have earned for him undying fame. He painted in oil and fresco. In our National Gallery we have several of his admirable productions. As an artist, remarkable for exquisite sensibility. “In his compositions,” says Kugler, “all is life and motion. All his pictures express the overflowing consciousness of life; the impulse of love and pleasure.” Delicate in perception, with great quickness, subtlety, and depth of feeling. His forms not always beautiful, but his treatment of light and shade masterly, and almost unique.

[There is no bust of Correggio from the life; this is by Philippo Albacini, and no doubt from some authentic painted portrait.]

153. Polidoro Caldare da Caravaggio. Painter.

[Born at Caravaggio, in Lombardy, 1495. Died at Messina, 1543. Aged 48.]

Was employed by Raffaelle to assist him in the Vatican, having been originally a mason. Afterwards became distinguished as an ornamental painter. He was assassinated by his servant for the sake of his money.

[He was buried in the Cathedral at Messina. The Bust is by Massimiliano Laboureur.]

154. Giulio Romano, or Giulio Pippi de’ Giannuzzi. Architect and Painter.

[Born at Rome, 1499. Died at Mantua, 1546. Aged 47.]

A pupil of Raffaelle, by whom he was employed on works at the Vatican. Invited by the Marquis of Mantua to the city of that name, where he was[II-65] raised to the rank of nobility, provided with a house, a salary of 500 gold ducats, board for himself and his pupils, a horse, and some yards of silk velvet and cloth for clothing. Built many palaces in Mantua, and painted much in fresco. His later works are wanting in grace and purity, and display wildness and even coarseness. Yet he has a memorable name as one of the Roman school of art.

[This bust is by Alessandro d’Este.]

155. Andrea Palladio. Architect.

[Born at Vicenza, in Italy, 1518. Died there, 1580. Aged 62.]

He largely and accurately studied and described the Roman style of architecture, and adapted it to modern purposes with admirable success. Inigo Jones may be called his disciple; and the Banquetting House at Whitehall is a good example of the style called Palladian. He was small in stature, and agreeable in countenance. His most celebrated buildings are at Venice, Verona, and Vicenza.

[This bust is by Leandro Biglioschi.]

156. Paolo Cagliari, called Veronese. Painter.

[Born at Verona, 1528. Died at Venice, 1588. Aged 60.]

One of the great masters of the Venetian school of painting, whose principle was the study and imitation of nature, but whose peculiar excellence was colour, which the leaders of the school carried to the highest point of perfection. The works of Veronese are remarkable for splendour of colour, for the clear and transparent treatment of shadows, and for comprehensive keeping and harmony. He represented festivals and banquets suggested by Sacred History. The “Marriage at Cana,” now in the Louvre at Paris, is a magnificent example of his style. He was a man of courteous manners and generous disposition, and left a family of sons and brothers, who pursued the same calling.

[By Domenico Manera.]

157. Giovanni Pierluigi, surnamed Di Palestrina. Musical Composer.

[Born 1524. Died 1594. Aged 70.]

Palestrina is justly described in his epitaph as “Musicæ Princeps.” He was the greatest musician of his time, and the creator of Church music. Before his day the music of profane, and even immoral songs, had been allied with church masses. He reformed the custom by the production of a sacred composition that ravished every hearer. In 1555, he was Musical Director to the Church of St. John Lateran. Ten years afterwards, he was named Composer to the Pontifical Chapel. But he was in straitened circumstances throughout his career. His music continues a model at this hour. He had a singular capacity for apprehending the poetic character of his subject.

158. Annibale Carracci. Painter.

[Born at Bologna, 1560. Died at Rome, 1609. Aged 49.]

One of the three Carracci who founded a new school of painting (the Bolognese school), the fundamental principles of which were the study of nature, and a close imitation of the great masters. At Rome, painted the gallery of the Farnese palace with mythological frescos, which display masterly drawing, excellent arrangement of draperies, and an agreeable, clear colouring. Produced landscapes as well as historical works. His facility in drawing marvellous.[II-66] Amongst the pupils of the Carracci school were Domenichino, Guercino, and Guido Reni.

[The author of this bust is not known. It was executed at the expense of Carlo Maratta.]

159. Domenichino, also called Domenico Zampieri. Painter.

[Born at Bologna, 1581. Died at Naples, 1641. Aged 60.]

A famous painter of the Bolognese school. A pupil of the Carracci. At Rome, painted some frescos, and other pictures, but was poorly paid. His life one series of misfortunes. His fame and skill excited the jealousy of the Roman and Neapolitan artists, who destroyed his paintings, mixed deleterious compounds with his colours, and—it is believed—at last poisoned him. His works occasionally reveal artlessness, and a clear conception of nature, but he never escapes from the trammels of the imitative school of the Carracci. His great work, the “Communion of St. Jerome,” pronounced by Poussin only inferior to the Transfiguration of Raffaelle. Yet for this picture, Domenichino received fifty scudi—about ten guineas. In person, stout and short—hence his name, Domenichino (little Dominic). Passionately fond of music, and devoted to study and tranquillity. Whilst he painted, he would have his house as quiet and as noiseless as a monastery.

[By Alessandro d’Este. There is another bust of him in the Louvre by Mlle. Charpentier.]

160. Pietro di Cortona, or Pietro Berettini. Painter.

[Born at Cortona, 1596 or 1609. Died at Rome, probably about 1669.]

A painter of the modern and degenerate school of art, who lived and worked at Florence and Rome. So stupid in his youth, that he was called “Ass’s Head.” Was employed to paint a ceiling in the Barberini palace—perhaps the largest picture ever undertaken by a single artist. At Florence he executed the ceilings of the Pitti palace.

[This bust is by Pietro Pierantoni.]

161. Arcangelo Corelli. Violinist and Composer.

[Born at Fusignano, near Bologna, 1653. Died at Rome, 1713. Aged 60.]

Corelli’s playing was distinguished by the most perfect sweetness and smoothness. Of execution, as now understood, he had none. But he possessed grace, finish, and an exquisite power of expression. His works still keep their ground as an indispensable study for all who would acquire a broad and artist-like style of playing. He was a modest and unaffected man, and enjoyed an equable temper, which not even the rough outbursts of Handel could disconcert. He had also humour. He would lay down his violin if folks talked whilst he was playing, and apologize for interrupting the conversation.

[Corelli was buried in the Pantheon at Rome. The author of this bust is not mentioned; it was executed at the cost of Cardinal Ottoboni, Corelli’s constant friend and patron.]

162. Ludovico Antonio Muratori. Antiquary.

[Born at Vignola, in Italy, 1672. Died at Modena, in Italy, 1750. Aged 78.]

Contributed much valuable material towards the History of Italy in the Middle Ages. Librarian to the Duke of Modena for the space of fifty years.

[By Adamo Tadolino.]

[II-67]

163. Benedetto Marcello. Writer and Musician.

[Born at Venice, 1686. Died at Brescia, in Italy, 1739. Aged 53.]

A lawyer and public officer; he was also a distinguished poet, and a musical composer of a high order. His most celebrated work is a Paraphrase of the first fifty Psalms, arranged for one, two, three, or four voices; it is remarkable for great tenderness, united with the religious feeling, and vehemence of style, which have obtained for the author from his fond countrymen the appellation of the Pindar and Michael Angelo of musicians. He also composed sonnets, madrigals, and dramatic pieces.

[By Domenico Manera.]

164. Giambatista Piranesi. Engraver.

[Born at Rome, 1707. Died there, 1778. Aged 71.]

An excellent and laborious artist. Has produced a great work in sixteen volumes upon the antiquities and curiosities of Rome. Has never been surpassed for his skill in representing architectural ruins and restorations. He also displays singular powers of invention, and his fancy subjects show consummate execution. He acquired great and widely extended fame during his life.

[By Antonio d’Este.]

165. Giovanni Paisiello. Musical Composer.

[Born at Tarento, in Italy, 1741. Died at Naples, 1816. Aged 75.]

A dramatic composer of extraordinary fertility. His works remarkable for their number, rather than for their eminence. He was the son of a veterinary surgeon. In 1777, he came to St. Petersburgh, upon the invitation of Queen Catharine, and remained there, in great honour, during eight years. In 1802, he answered Napoleon’s summons to Paris, and composed the mass and other music for the coronation, in 1804. Shortly after this event, he retired to Naples, where, in consequence of his many political tergiversations, he fell into disgrace, and closed a brilliant career in neglect and chagrin. His character as a man is not pleasing. He was jealous, unscrupulous, mean, and cringing.

[By Pietro Pierantoni.]

166. Niccolo Zingarelli. Musician.

[Born at Naples, 1752. Died 1837. Aged 85.]

The author of several operas no longer performed. One, his most celebrated work, “Romeo and Juliet,” still represented in France and Germany, and rendered popular in England by Pasta’s personation of Romeo. The last of the Italian composers for the church. His oratorio of “The Destruction of Jerusalem,” a noble composition, written in the classical style of the old ecclesiastical school. During his later years he led the life of a recluse.

167. Domenico Cimarosa. Musical Composer.

[Born at Aversa, near Naples, 1755. Died at Venice, 1801. Aged 47.]

A cobbler’s son and a baker’s apprentice. It was the duty of the lad to fetch daily a batch of dough from the house of Aprili, the great singing master of his time: and the musical sounds always ringing through the house touched his spirit and elicited his genius. Aprili caught him listening[II-68] at the keyholes, and considerately sent him to a free musical school in Naples. At the age of 19, Cimarosa quitted the Conservatorio, and immediately afterwards wrote his first work—the music to a farce called “Baroness Stramba.” From this time forward his compositions for the theatre were incessant, and invariably successful. In 1787, Catharine of Russia invited him to St. Petersburgh, whither he went; but his health failing, he betook him, in 1792, to Vienna, and there entered the service of the Emperor Leopold. In his 38th year, after he had written 70 operas and dramatic works, he composed his masterpiece, “Il Matrimonio Segreto.” The Emperor of Austria was so delighted with the performance, that after supping the composer and the singers, he took the whole of them back to the theatre, and made them sing the opera through again. The operas of Mozart, then dying a few miles off, had fallen at the same theatre upon cold and unfeeling ears. Few compositions of Cimarosa are known at the present day, though his innumerable productions were highly popular whilst he lived. His music exhibits some originality and a prodigal flow and variety of ideas. His scoring is peculiarly brilliant, and his comic powers were great.

[By Canova.]

168. Antonio Canova. Sculptor.

[Born at Passagno, in Upper Italy, 1757. Died at Venice, 1822. Aged 65.]

One of the most celebrated of modern sculptors. When five years old, evinced a taste for his art, and at fourteen was a pupil of Tonetto, a sculptor at Venice. From Venice went to Rome, where he executed many works. A favourite of Buonaparte, whose portrait, for the colossal statue of the Emperor (in the possession of the Duke of Wellington) he modelled at Paris, and from which was taken the bust No.      . He had no pupils; for he used to say that “the master’s compositions were the best instructors.” His works are very numerous; casts from some of the most celebrated are to be found in the court of modern Italian Sculpture. His imaginative pieces more successful than his portraits, although many of these are master-pieces of art. In execution he was unrivalled; but his taste is not always pure. In person Canova was below the middle height, his eyes full of expression, and the general character of his face indicative of good-nature. He was much beloved at Rome as the generous friend of his brother artists.

[From the colossal marble bust by his own hand, in the Protomoteca of the Capitol at Rome.]

169. Gasparo Spontini. Musician.

[Born at Majolatti, in the Roman States, 1778. Died there, 1851. Aged 73.]

Educated at Naples, and at the early age of seventeen commenced his musical career as the composer of an opera, which was rapidly followed by sixteen more. In 1803, he went to Paris, and continued composing operas. In 1807, appointed musical Director to the Empress Josephine; and in 1808, produced with great success his best work, “La Vestale.” From 1810 to 1820, Director of the Italian Opera in Paris. Then invited to Berlin, where he wrote some more operas, and remained until the death of the late king in 1840. The greater part of the music composed by Spontini is forgotten. He was eclipsed by the genius of Rossini, but he had remarkable ability as a dramatic composer. His instrumentation was original, and his music abounds in melody.

[By Rauch, 1827. From the marble on the Monument to Spontini, at Tesi, in Italy.]

[II-69]

170. Niccolo Paganini. Violinist.

[Born at Genoa, 1784. Died at Nice, 1840. Aged 56.]

The greatest of modern fiddlers, who performed in the principal cities of Europe, and acquired more fame and money by playing on one string, than any of the brotherhood ever gained on all four. He looked like a magician, and his playing justified his looks.

[By Dantan, 1837.]

171. Maria Felicitas Malibran. Actress.

[Born in Paris, 1808. Died at Manchester, 1836. Aged 28.]

A wonderfully gifted dramatic genius, too soon cut off by death. In France, England, Germany and Italy, she created enthusiastic admiration, as much by her histrionic powers, as by her efforts as a songstress. She was a child of nature, and as benevolent as she was richly endowed with intellectual gifts. She made the noblest uses of the earnings of her industry, and was beloved by her fellow artists for the unaffected goodness of her heart. No actress of her time equalled her for truth and passion. Whatever art was in her, lay concealed. It never came to view. Her acting assailed the feelings of men, and took them prisoner. Escape was its own punishment.

[By Flosi.]

171A. Maria Felicitas Malibran. Actress.

[For account of this statue, see Handbook to Modern Sculpture, No. 108.]

172. Giulia Grisi. Italian Singer.

[Born in 1816. Still living.]

Made her first appearance in London during the season of 1834, being then 18 years old. From that time until her retirement from the English stage in 1854, not absent for a single season. Her voice a soprano of great power and of exquisite purity. Her histrionic talents, of the highest order, displayed equally in the artless peasant girl, and in the passionate and revengeful Semiramis. During twenty years she reigned supreme as queen of the lyric drama, finding many rivals, but no equal.

[By Flosi.]


POETS AND DRAMATISTS.

173. Dante Alighieri. Poet.

[Born at Florence, 1265. Died at Ravenna, 1321. Aged 56.]

The eldest and greatest poet of modern Italy. He was of a noble Florentine family. He came into stormy times, and his life was tempestuous. His native city was then split between the fierce hostile factions of the Guelphs and Ghibellines, the two great parties that distracted Germany and Italy in the middle ages. An urban faction in Florence was that of the Blacks and Whites. Dante was a Ghibelline, and a White: a keen partisan, and a distinguished citizen, he shared the passions and the vicissitudes of his party. Two battles are mentioned in which he gained honour as a soldier. At thirty-five, he was in the supreme magistrature of the city. When Charles of Anjou, in passing through Florence, took the part of the Blacks, Dante was amongst the sufferers. He was condemned to exile, and confiscation of his property: but, on a revision of the sentence, to be burned alive. He[II-70] wandered long, in France and in Italy, and rested at last, under the shelter of Guido Novelli, at Ravenna. He died there. He was once married, but not happily. A boyish love for Beatrice Portinari lives, as a sort of ethereal idea, throughout his poetry and life. He wandered and sang. His marvellous poem, “The Divine Comedy,” was composed during his long exile. It at once raised the modern Italian to the rank of a classical tongue, and the poetry of modern Italy to a height to which it has never again soared. The poet relates his journey, as a living man, through the three invisible worlds, which receive, as his church teaches, the souls of other men when released from the body: Hell, Purgatory, Heaven. Through Hell and Purgatory he is led by the shade of the poet Virgil—indeed his beloved leader in their common art. Through Paradise, his Beatrice herself, in whom he impersonates Theology, guides him. The ghosts he sees, those under punishment especially, are chiefly his deceased contemporaries, and Italians: so that the other shadowy world is with him almost a reflexion of his own world here. From the first step of his pilgrimage to the last, he sees sights of his own imagining, transcending all experience, almost all conception, yet delineated with such vivid precision, in language so simply real, that a feeling only short of belief accompanies the reader, and remains with him. Italian peasants meeting the poet, pointed out, as they looked with awe on “his pale and visionary brow,” the man who had been down to Hell. Prominent characteristics of his poetry are strength, daring, intensity, grace, absolute self-reliance, and boundless invention: above all, the continual self-presence of the poet as the centre to his own thoughts, and to the worlds which he traverses and describes. He began to write his poem in Latin verse; but Dante was too essentially a poet to write out of his mother-tongue;—a poet expresses himself in his verse, and only the mother-tongue is near enough to him for that.

[This Bust is by Alessandro d’Este, and was placed in the Protomoteca at the expense of Canova. It corresponds in the chief characteristics of the face with the portraits taken from the life, of which there are several. In Florence Cathedral, near the tomb of Giotto, is an authentic portrait. The one lately discovered on a wall in the palace of the Podestà at Florence, is extremely interesting, as being a youthful likeness by the hand of his friend Giotto. The monument to Dante in S. Croce is the work of Stefano Ricci. It was erected in 1829, at the public expense.]

174. Francesco Petrarca. Poet.

[Born in Tuscany, 1304. Died at Argua, near Padua, 1374. Aged 70.]

The crown around the brow of Petrarch has many gems. He is poet, diplomatist, scholar, and restorer of ancient letters. To the world, he is the great Italian sonnetteer. This extremely artificial metrical scheme, which seems, however, singularly congenial to his native speech, afforded him the temptation, in the means, to write incessant effusions on one love, really or ideally entertained. He was an ecclesiastic under a law of celibacy. Thus separated from the object of his presumed affections, he allied his soul to hers in verse. His love-strains are studies, without number, of the passion, in its endlessly varying moods and moments—half of them wreaths laid at the feet of the living Laura—half, strewings on her untimely tomb. The flowers, disclosed by the rapidly advancing Spring of the language, breathe the freshness, sweetness, and innocent grace of the season. Ever since, every son of song in Italy strikes this lute of a few chords, but Petrarch remains its Apollo.

[By Carlo Finelli.]

[II-71]

175. Giacomo Sanazzaro. Poet.

[Born at Naples, 1458. Died there, 1530. Aged 72.]

A devoted adherent of the House of Arragon, whom he followed in their disastrous campaign in defence of the Church. During his travels he published his poem of “Arcadia,” which gave a new phase to Italian poetry. A great admirer of Virgil and Propertius.

[From his tomb in Santa Maria del Parto at Naples, by Girolamo Santa Croce, a Neapolitan sculptor of the 15th century. His tomb is one of the most beautiful monuments of the time; designed by Santa Croce, and sculptured by Montorsoli. Two weeping angels lean over the bust which bears the name Actius Sincerus, under which he published many of his works. At the sides of the tomb are statues of Apollo and Minerva, said to be antique, but now called David and Judith.]

176. Luigi Ariosto. Poet.

[Born at Reggio, in Italy, 1474. Died at Ferrara, 1533. Aged 59.]

A poet from the cradle: constrained by his father to bestow five years on the study of the law: then released to literature. He was Gentleman of the Court to two princes: from both he received scanty pay: from the one 75 crowns (or about £15 a year), from the other 84 crowns. He lived and died poor, having enjoyed great independence of spirit, and the barren respect of Italian princes. His talents for business were remarkable. His great poem the “Orlando Furioso” is of a species which then deluged Italian literature. It is a web of adventures of knight errantry. These turn round the person of Charlemagne, and the invasion of France by the Moors—poetically misdated to his reign. The copious flow and untiring spirit of the narrative is without comparison. The skill with which Ariosto carries on a labyrinth of separate adventures, and brings them to meet, is peculiar to himself. The variety in the invention of the characters, and the flexibility of the pure and musical style to the humorous or the pathetic, the warlike or the tender, the natural and the marvellous, are singularly characteristic of the power of this poet; who grasps his subject meanwhile like a man of business and of the world, and whose tone is, on the whole, rather that of intellectual superiority to his subject than of passionate absorption by it. A vein even of irony breaks through; and the enthusiastic lover of romance suffers a pang of scepticism from the suggested incredulity of his priest. They tell, how, when governor of a wild Appenine province, he fell, on a solitary walk, into the hands of banditti. The captain, on recognising the poet of the Orlando Furioso, apologized for the rudeness of his men, and set his captive at liberty.

[By Carlo Finelli. There is a life-size bust upon his monument in the Benedictine Monastery at Ferrara, where he is buried.]

177. Torquato Tasso. Poet.

[Born at Sorrento, near Naples, 1544. Died at Rome, 1595. Aged 51.]

One of the small cluster of spirits whose uttered thoughts have fastened upon the world’s ear for all time. One of the still smaller group whose personal history, growing out of the poetical temperament, weighs in interest against their consummate work. We discover too little of the life of Shakspeare. We know too much of the story of Torquato Tasso. The Swan of Avon sings, and not a milk-white feather is ruffled in the song. Personal anguish quivers through the high heroic strain of him who, in Italian, with unequalled art, told the inspiriting story of the recovered Holy City. How shall Torquato’s touching and saddening tale be concentrated in a sentence? He was[II-72] already a scholar when a child—delicately organized in the flesh—wondrously endowed in soul. At eighteen he had given forth a poem—worthy sign of his coming strength. He was at the Court of Alphonso II., Duke of Ferrara, when he commenced his great epic, and dared—he was a poet’s son—to fix his strong affection upon the Princess Leonora, sister of the Duke. In 1575, the “Jerusalem Delivered” was completed. Its beauty was too evident, for it raised a pitiless storm of envy, enmity, and persecution. His passion for the princess was detected, and he was imprisoned as a madman. Breaking loose, he wandered footsore from place to place, but found his way too speedily back to Ferrara. Caught again, he was again confined, suffering new imprisonment for seven long years. He came forth at last, a melancholy man. It availed him little that at Rome, in 1595, he was solemnly crowned with laurel by the pope, and every honour showered upon his illustrious head. He died, worn out with troubles of heart and mind, only a few days after his sublime coronation. The “Jerusalem Delivered” is built upon the essential basis of epic poetry—the profound and associated sympathy of innumerable hearers. In the poem, as out of it, the universal heart of Christendom is arrayed against the misbelieving world. Tasso wrote in an age when the religious passion, which was the soul of the Crusades, survived sufficiently for a hope in the poet that his strain would reanimate the Red-cross warfare. As man, and as poet, enthusiasm was predominant in him. The salient characters of the poem are well-defined, each complete in itself, and all standing well apart from, and relieving one another, although hardly, perhaps, flung forth in desirable plenitude of dramatic life and effect. The subject, as we all know, was the successful first Crusade—which took Jerusalem—under the pious, magnanimous, and truly heroic Godfrey of Bouillon. The structure of the plot is well balanced: the art of the writing exquisite: possibly too much so. It is generally self-conscious and elaborate, rather than inspired and impetuous.

[By Alessandro d’Este, and presented to the Capitoline Museum by Canova. Tasso’s tomb in St. Onuphrius was not erected until some time after his death. There is a portrait in mosaic over it.]

178. Pietro Bonaventura Metastasio. Poet.

[Born at Rome, 1698. Died at Vienna, 1782. Aged 84.]

Born of poor parents. When ten years old, improvised in the streets of Rome; then adopted and educated by Gravina, a rich juris-consult, who left the poet all his fortune. Forty editions of Metastasio’s works were published before his death. He wrote many tragic operas, besides numerous smaller compositions. Invited by Charles VI. of Austria, he settled in Vienna, and received the title of Imperial Poet. His style is singularly chaste, harmonious, and elegant. Attracted to, and attracting by, the delineation of characters, morally pure and elevated. Pathetic, but his passion lacks individuality. When we have read a few of his works, we have read all. In person tall and commanding.

[By Ceracchi. There is a fine bust of him by Vinnazar of Vienna. Metastasio was buried in St. Michael’s Church, at Vienna, but the place is not known.]

179. Carlo Goldoni. Poet.

[Born at Venice, 1707. Died at Paris, 1793. Aged 86.]

The most celebrated Italian comic poet of the eighteenth century, and the renovator of the comic stage in his country. When eight years old,[II-73] sketched out a play. After some reverses of fortune, settled in Paris, where he wrote his last work, “Materials for a History of his Life and Theatre.” He wrote 150 pieces for the stage, introducing all classes of men, whom he described with surprising truth. He reformed the Italian drama by extinguishing the fashion of playing in masks, and by doing away with certain conventional characters before introduced into every play. His works are not without the defects of an over-abundant and extraordinarily rapid composition; but he has the great merit of faithfully portraying men in their affections, their habits, follies, and vices.

[By Leandro Biglioschi.]

180. Vittorio Alfieri. Poet.

[Born at Asti, in Piedmont, 1749. Died at Florence, 1803. Aged 54.]

He was of noble origin, and acceded, at the age of 14, to large hereditary estates. His passions were strong, ardent, and irregular: his education was neglected. He travelled much,—rapidly and impatiently, like a man fleeing from himself, or seeking, without finding, objects to satisfy the capacity of a mind, large but unstored. He was first drawn with passion to literature by Plutarch’s Lives; and his first tragedy, “Cleopatra,” was acted at Turin in 1775, when he was 26 years old. Thenceforward he was devoted to the study of his art. The subjects of his tragedies, which follow the simplicity of the Greek model, are chiefly from ancient mythology, or history. They are distinguished by intense absorption of the poet in his dramatic action and persons, by the austere exclusion from the plot of everything accidental or inoperative to the main purpose and catastrophe, and by the rejection of all accessory ornament from his sedulously laboured style. In his hands the flowing and languishing Italian speech becomes abrupt, concentrated, darted, fiery; harsh, often, until it is dilated into harmony by the swelling and emphatic intonations of the actual theatre. He raised at once the prostrate Italian tragedy to the rank of an art, and to a competition with the nations. He was a passionate lover of horses, licentious in his attachments, and an ardent partisan of liberty.

[Alfieri was buried in Santa Croce. Canova, commissioned by the Countess of Albany, sculptured his tomb and the medallion of him which is upon it. This bust is by Domenica Manera, and no doubt is a good likeness, having been executed under Canova’s eye.]

181. Alessandro Gavazzi. Monk and Orator.

[Born at Bologna, in Italy, 1809. Still living.]

At the age of 16, entered the religious order of St. Barnabas. Subsequently appointed Professor of Rhetoric at Naples. Upon the accession of Pope Pius IX. to the pontifical chair, Gavazzi warmly upheld the liberal policy then announced by the head of the Catholic Church. He was the “Peter the Hermit” of the crusade in Lombardy against Austria in 1848: and shared the dangers of the troops, whom he animated by his eloquence. Upon the entry of the French under Oudinot into Rome, Gavazzi quitted Italy with the patriots. He has since lived in London, where his extraordinary political discourses have created a marked impression upon his listeners. His oratory is adapted to large masses, his memoir is extraordinary, and his manner exceedingly picturesque and striking. He is not a scholar, and his patriotism is not of the kind that suffers by defeat. Gavazzi makes a good income as a popular preacher. Mazzini lives upon a crust.

[This bust is by Piericcini.]

[II-74]


SCIENTIFIC MEN AND WRITERS.

182. Christopher Columbus. The Discoverer of the New World.

[Born at Genoa, 1436. Died at Valladolid, in Spain, 1506. Aged 70.]

Lord Bacon says, that he, who unites the faculties of speculation and of action, is like one born, according to the faith of the astrologers, under Saturn and Jupiter in conjunction, and may command the world. Columbus—profound in thought, intense in action—did even more. To one world he gave another. He was essentially an intellectual hero; for he dared to believe, on grounds sufficing to reason, that which the world disbelieves, and scoffs, and scorns. He was essentially a practical hero: witness his persevering urgency of kings and states to undertake the first visiting of a world which his instructed spirit already discerned in the far off seas. Witness also his conduct of his fleet, wearied with vain expectation on the silent main, and rising to mutiny on the apparently confirmed disappointment of its hopes. His services to man no human gratitude could repay, yet he died overwhelmed with affliction, great vexation and bodily infirmity. In 1492, he discovered San Salvador, Cuba, and St. Domingo. In 1493, his eager foot first trod the Antilles. In 1498, America opened to his importunate gaze. His fourth voyage of discovery was delayed by an event that merits record in every history of the world’s progress. He was thrown into prison. Obtaining liberty, his eager and mysteriously informed spirit was brooding again on the wide ocean. He reached the Gulf of Darien. We witness to-day, in the prosperity, might, and civilization of the American people, the latest glorious results of the restless intrepidity and bright intelligence of Christopher Columbus. Before the dazzling spectacle we may yet learn humility, if we will only remember the sorrow of those upon whom the unveiling of America instantly let in the sword and the fire. Columbus was the first observer of the variation and the dip of the needle.

[By Raimondo Trentanove.]

183. Niccolo Machiavelli. Political Writer and Historian.

[Born at Florence, 1469. Died there, 1527. Aged 58.]

For fourteen years, Machiavelli, born of a noble family, acted as Secretary of the Florentine Republic, and was charged with several important missions. Upon the return of the Medici to Florence in 1512, he was implicated in a conspiracy formed against them, was imprisoned and put to the torture. Subsequently released by Pope Leo X., he was reinstated in his office. It was after his liberation that he wrote his Discourses upon Livy, his books on the Art of War, and his celebrated essay, called “The Prince.” Machiavelli, to our imagination, embodies in his individual person the Idea of Italian political subtlety. His chief work, already mentioned, “The Prince,” expounds the art of Reigning: i. e. of acquiring and preserving Power;—of which art perfidy and murder are, in this exposition, two accepted instruments. The prevalent assumption has been that Machiavelli recommends the practice of the art, such as he expounds it. Later vindicators have said that he describes, without approving, the Art of Reigning as exercised by the Italian princes of his day, and that his book is to be regarded as containing a satire, and not a doctrine.[II-75] The bust before the visitor may furnish materials for the study of this curious question.

[From the bust in the Florence Gallery. A most interesting work of the time, bearing the date 1495. An undoubted likeness of this celebrated man. Full of character, with every indication of having been done from the life, although the author is now unknown. Machiavelli’s tomb is in Sta. Croce at Florence. Two centuries after his death, Lord Cowper, in 1787, placed over it a bas-relief portrait which was paid for by public subscription set on foot by Lord Cowper, and was executed by Innocenzo Spinazzi.]

184. Annibale Caro. Writer.

[Born at Città-Nuova, in Illyria, 1507. Died, 1566. Aged 59.]

His chief work was a free translation of the Æneid in blank verse: the style is pure, and the sense faithful. Also wrote humorous pieces in the purest Tuscan.

[The work of Antonio d’Este, at the expense of Elizabeth, Duchess of Devonshire, the second wife of the late Duke, a lady to whom we are indebted for originating the excavations in the Forum at Rome.]

185. Galileo Galilei. Philosopher.

[Born at Pisa, 1564. Died 1642. Aged 78.]

One of the self-dedicated inquiring spirits, to whom to behold Truth is—to live:—a hierophant of Nature! Whilst Bacon in England was laying down, in form, and theoretically, the laws of experimental philosophy, Galileo in Italy, led by instinct or intuition, was putting them in force. If Bacon stands out as the legislator of our great modern students in physical science, Galileo is assuredly their most illustrious and animating exemplar. We think of the stern and strenuous observer as we do of the prophets, who stand up in the might of invincible truth, solitary against a world. In the very first sentence of the “Novum Organum” it is written that, “Man, the servant and interpreter of Nature, knoweth, and can, so much as, in the fact or in thought, he may have observed, of the order of Nature.” Of all men Galileo was essentially the one who allowed Nature to speak for herself,—and waited patiently, piously, and thoughtfully for her utterances, never imposing upon her his own wilful and imperfect conceptions. His spirit was self-sustaining. Hundreds, or thousands, have in the later time risen, who from the cradle to the grave have watched Nature. But they are the officers of an organized army. He walked like Hercules, with his club and lion’s skin cloak, alone. Because his worship was pure, his punishment was great. Suffering for truth’s sake, he was imprisoned for years; yet his only crime had been, that he had faithfully recorded the revelations that came down to him directly from the skies. To Galileo we owe, amongst other obligations, the discovery of the laws of gravity, the invention of the pendulum, of the hydrostatic balance, of the thermometer. He constructed a telescope, and with it discovered the satellites and rings of Jupiter, the phases of Venus, and the spots on the sun. Noting down what he saw, he changed the whole system of astronomy, and led men on the right track of observation for all ages to come. Italy, with her many titles to our admiration, gratitude and respect, has no prouder claim than this:—She gave us Galileo. The face before us does not belie the soul. Upon it are stamped the rigid signs of robust and intrepid intellect.

[From the marble, by Domenico Manera, which was placed in the Capitoline Museum at the cost of Canova. About a century after Galileo’s death, in the year 1737, leave was at last granted to erect a monument to his memory in[II-76] Santa Croce, at Florence; it was placed opposite to that of Michelangelo, and the bones of the great philosopher were removed into it. In the Museum of the Florence Gallery is preserved the small telescope which he used. The bust, No. 185A, is a cast from that on his tomb.]

185A. Galileo Galilei. Philosopher.


SOLDIERS AND STATESMEN.

187. Cosmo de’ Medici. Merchant and Statesman.

[Born 1389. Died, 1464. Aged 75.]

The grandfather of Lorenzo de’ Medici, surnamed the Magnificent: himself illustrious for the services which he rendered to the Florentine Republic, of which he was a member, and for his munificent encouragement of art, science, and literature. Upon his death, the grateful Florentine people inscribed on his tomb the title of “Father of his Country.” A member of the Signory, which legislated for the Florentine Republic, he strove to curb the oligarchy in the State. Accordingly, many of the chief families combined against him, and it was only by the most admirable judgment and consummate prudence that he was enabled to elude their toils, and to advance the popular cause. Possessed of immense wealth, he parted freely with his riches for the glory of his country, and for the promotion of all those arts that add dignity to human nature and beautify the world.

[From the bust in the Florence Gallery, a most characteristic head.]

188. Bartolomeo Coleoni. Soldier of Fortune.

[Born at Bergamo, in Italy, 1400. Died at Venice, 1475. Aged 75.]

Remarkable for his unstable loyalty. Served at first under Sforza and De Montone in the army of Queen Joan of Naples. Then passed into the service of Venice. Fighting against and nearly destroying the army of the ambitious Duke of Milan, he went over to the enemy with 500 soldiers. He now fought against the Venetians; but in 1446, was thrown into prison on a charge of treason. Released by the Milanese, he deserted to the Venetians, whom he again led on against his latest employers. Instead of fighting Sforza, the Milanese general, he deserted to his side, and assisted him to gain the sovereignty of Milan. Immediately afterwards he returned to the Venetians, and, strange to say, continued their generalissimo for twenty-one years. The Senate, upon his death, employed the celebrated Andrea Verrocchio to raise an equestrian statue in bronze to his memory, of which the one before the visitor is a cast. Shortly before his death, Coleoni, not without reason, warned the Venetian Senate not to trust another man with such power as they had confided to him.

[For account of this fine equestrian statue, see Handbook to the Renaissance Court.]

189. Stefano Gattamelata. Warrior.

[Born at Narni, in Italy. Died at Venice, 1443.]

First served in the army of the Church: but in 1434 passed over to the Venetians, and was made Captain-General of their army. A zealous servant of the State. He was raised to the rank of Venetian noble in 1438; rich pensions were conferred upon him, and a palace was given him in the city.[II-77] The equestrian statue of which the one in the Crystal Palace is a cast, is by Donatello, and is at Padua.

[For account of this equestrian statue, see Handbook to the Renaissance Court.]

190. Giovanni Medici, surnamed Bandineri. Italian Soldier.

[Born 1498. Died near Borgo-Forte, in Italy, 1526. Aged 28.]

A descendant of Cosmo, “the father of his country,” and the son of the celebrated Catharine Sforza. Passionately fond of arms, he was employed, in 1521, by the Florentines against the Duke of Urbino. In 1524, he entered the service of France, and a year or two afterwards died of a wound. He was ferocious, and mercilessly cruel. After his death his soldiers, who had profited by his instruction and example, styled themselves “The Black Bands”—“Bandineri.” The chief of the butchers is distinguished in history by the unenviable title.

[A very finely-formed head, from the figure in the Piazza San Lorenzo, Florence.]

191. Francesco Pico della Mirandola.

[Died, 1321.]

A gentleman of Modena, at the head of the Ghibelline faction, in fighting whose battles with the Guelphs he passed his life. In 1312, he filled the office of Podestà of Modena, but was expelled from the city the very same year by the Guelph party. Returning, he sold his authority for 50,000 florins to Bonacossi, Lord of Mantua, and retired to his estates at Mirandola, whither Bonacossi followed him, assassinated him and his two sons, and made off with the purchase money.

[From a terracotta in the Berlin Museum. A youthful portrait.]

192. François Eugène of Savoy, called Prince Eugène. Military Commander.

[Born in Paris, 1663. Died at Vienna, 1736. Aged 73.]

One of the world’s great and successful generals. The great-grandson of Emanuel, Duke of Savoy, his mother being niece of Cardinal Mazarin. Refused a regiment by Louis XIV., he offered his services to the flag of Austria, and fought as a volunteer for the Emperor against the Turks. The deeds of the young soldier caused Louis XIV. to repent of his former refusal, but the most tempting offers came in vain to Eugene. He took part with Marlborough in all his great victories in the Low Countries, expelled the French from Italy, and overthrew the Turks, from whom he took the city of Belgrade. His renown at the peace of 1718, when he retired from active service, stood as high as any soldier’s of the age. In retirement Prince Eugene cultivated literature and the arts. His services had extended through the reigns of three Emperors, and he fought with almost unvarying success. He was ambitious of glory, and of nothing else. He was never married. He invented no system of military tactics, and he followed none. He had the faculty of discerning the right thing to do at the right time, and of arranging his plans quickly and ably in conformity with the circumstances by which he was surrounded. His mind once made up, his intrepidity was boundless. He was rigid in disposition; his figure was well made, though not tall; his eye was black and piercing, and his complexion dark.

[A fine portrait statue by Canigia, a Piedmontese sculptor lately dead.]

[II-78]


PRELATES AND THEOLOGIANS.

193. Francisco Ximenez de Cisneros. Cardinal and Regent of Spain.

[Born in Castile, 1437. Died, 1517. Aged 80.]

A learned priest who had withdrawn to a convent, and was in his fifty-sixth year, when Queen Isabella of Spain brought him from his retirement, and appointed him Archbishop of Toledo, and her own Confessor. His power over the queen was used, according to the ideas of his time, in the interests of his country, for the benefit of the Spanish people, and for the advancement of learning and religion. After the death of Isabella, in 1504, he was made Governor of Spain, in the absence of the King, and he managed to steer his political course with consummate skill and prudence. In 1516, he became Governor of Castille for the young Emperor, Charles V. He possessed in an eminent degree the genius of government, and his rule paved the way for the greatness of Charles V.’s reign. He was unbending in authority, and organized with a rigid sense of justice, that amounted to cruelty. As Inquisitor-General, he had suffered, during eleven years of office, 50,000 condemnations to be passed, and 2500 human beings to be consigned to the flames. Shortly before his own death he fell into disgrace, and he closed his eyes in grief. He was a fanatic without passion. Pious with sword in hand; austere in his way of life, sagacious, imperious, and a profound politician.

194. Carlo Rezzonico, afterwards Pope Clement XIII. Pope.

[Born at Venice, 1693. Died at Rome, 1769. Aged 76.]

Commenced his pontifical reign by an endeavour to improve the morals of his clergy and his people; but, later, he created displeasure in Europe by protecting the Jesuits, who had been expelled from France and Portugal. He consented at last to the suppression of the Order, and expired almost as soon as the consent was given. It is rather surprising that he did not die shortly before. A man of sincere piety, pure intentions, and great charity.

[From the celebrated monument by Canova. Although the bust is of colossal proportions, the features preserve their natural, harmonious expression.]

194*. Padre Ventura. Italian Priest.

[Still living.]

Born at Palermo, towards the close of the last century. At an early age, entered the order of the Teatini: subsequently appointed Professor of the University of Rome. When, in 1821, Naples, Piedmont, and Spain rose for the recovery of freedom, and the hopes of the liberal party were raised to the highest pitch in Italy, Ventura sympathized with the popular voice. He was instantly dismissed from his office, and his writings were denounced. When, in 1831, the Italian liberals were crushed by Austria, the Padre took counsel of his judgment, craved to be reconciled with the clerical party, and was made supreme head of his Order. Deceived by the early policy and promises of Pius IX., Ventura, in 1846, again gave rein to his liberal ideas, and returned to his original sympathies. His oration on the death of O’Connell, delivered at Rome, was bold and pathetic, and so far won for him the[II-79] regard of his ancient allies, that on the success of the Sicilians, who threw off the Neapolitan yoke, he was named their representative at the court of Rome. Another change came over the spirit of Ventura’s life. The Pope—his friend—was chased from Rome; and he himself prudently awaited, in Cività Vecchia, the result of the French invasion undertaken on the Pope’s behalf. Upon the fall of Rome he repaired to France, and there speedily wrote a formal recantation of all his “errors.” At this hour he preaches in Paris in favour of Ultra-montane doctrines, and is surrounded by admirers. He is learned, polished, courtier-like, and very eloquent: not a popular preacher like Gavazzi, but with a style and manner adapted to a cultivated audience.

[By Rinaldo Rinaldi, of Rome.]


KINGS AND QUEENS.

195. Charles Albert. King of Sardinia.

[Born 1798. Died at Oporto, 1849. Aged 51.]

A man of unstable principles. Inclined to liberal views, but unequal to the effort of steadily maintaining them. At the time of his birth, seven male heirs stood between him and the Sardinian throne, but in his thirty-third year he found himself king. Received his education in Paris. In 1821, headed a conspiracy in order to force more liberal measures upon his sovereign; but betrayed the design before it was ripe for execution. In 1823, entered the French service under the Duc d’Angoulême, and attached himself to the cause of despotism in France. From the date of his ascending the throne, 1831, until his death, he continually vacillated between the extremes of absolutism, and downright radicalism. In 1848—the year of revolution—he gave his subjects a constitution, and the eyes of Italy were turned anxiously towards him as to a deliverer and friend. Discontent rose against Austria, and he became the champion of Italy against the foreign intruder. Success at first crowned his arms; but weakness and indecision again visited him at the crisis of his career, and he suffered defeat at Novara, at the hands of the Austrian general, Radetzky. Abdicating in favour of his eldest son, Charles Albert quitted Italy, crossed Spain, and reached Oporto, where he soon died, a disappointed, vexed, and broken-hearted man.

[By Canigia, a Piedmontese sculptor of the time.]

[II-80]



THE FRENCH PORTRAITS.

Line
INTRODUCTION.

France surpasses all modern nations in awarding monumental honours to her illustrious sons. The feeling which prompts the grateful act is more akin to noble patriotism than to the littleness of personal display. The magnificent illustration of the national disposition at Versailles commands our respect by the important historical interest which it creates, and by the instruction and benefit which it confers upon the world.

The buildings of all the great institutions of France are adorned with portrait statues and busts of the men who have earned distinction in connexion with them. “The Institute,” which corresponds to our Royal Society, has its statues of philosophers and scientific men. The Mazarin Library possesses a collection of those most distinguished in literature, generally. The Théâtre Français has an exceedingly interesting gallery of dramatists and theatrical celebrities, which is only feebly reflected in the collection—valuable in some respects—of theatrical portraits at the Garrick Club in London, which we owe chiefly to the late Mr. Charles Mathews, the comedian.

The collection of the Théâtre Français is composed of statues and busts representing the greatest dramatic writers and the most celebrated comedians of the French stage, of pictures of actors or of paintings having reference to the dramatic art. The library is rich in autograph manuscripts, and in the letters of nearly all the authors who have illustrated the French stage. It contains also the registers and account books of the several theatrical administrations, without a single interruption, from the 24th of October, 1658—the date of Molière’s first representation in Paris—down to the present time.

The collection of statues and busts dates from only the last century, when the sculptor Caffieri laid its foundation. He proposed to the actors, in 1773, to present to their green-room the bust of his friend Alexis Piron, the poet (see No. 231 in our collection)—who had died a few months before—on the condition that he should be allowed free entrance to the theatre for the rest of his life. It appears, from the letter of Caffieri, preserved in the library of the theatre, that the usual price of his marble busts was £120, and that the right of entrance to the[II-81] theatre for life was fixed by the comedians at the same sum. The proposition was accepted, and Caffieri continued for some time to present busts to the theatre upon the same terms—that is to say, for every bust the right of an entreé for one of his relatives or friends. Other sculptors followed the example of Caffieri. The practice still continues, and the collection is yearly augmented, not only by this means, but also by the frequent gifts of the Minister of the Interior, and by the still larger donations of private individuals.

The collection of paintings dates as far back as the death of the tragedian Lekain. His comrades, to honour his memory, decided that his likeness should be hung in their green-room. Later came the portrait of Baron, and afterwards that of Mademoiselle Duclos by Largillière, a celebrated portrait painter of the time of Louis XIV. This portrait of Mdlle. Duclos is a masterpiece. At the present moment, in consequence of the frequent additions to this triple collection, there is not space enough in the interior of the theatre properly to display it; and it is proposed to transport it to a more commodious receptacle, and to give to the réunion of all these treasures of the drama the name of the Molière Museum. The busts, which we are enabled to exhibit in the Crystal Palace, form only a small selection from the gallery of the Théâtre Français.

The Louvre, which in Paris corresponds to our British Museum, National Gallery, and Hampton Court combined, has long been one of the world’s great treasuries of history and art. Resting upon ancient walls, founded certainly as far back as the 9th century—when it was a strong fortress in the midst of a forest—the Louvre has been gradually changing its form and appearance since the time of Philippe Auguste. In 1527, Francis I., with the aid of the architect Pierre Lescot, entirely remodelled it, and gave to it the character of splendour and vastness which has ever since attached to this great national structure. All succeeding kings—Charles, Henri, Louis, whatever the name—have done something to uphold its magnificence. In addition to the other numberless works of art contained in the Louvre there are some 300 antique portrait busts and statues, and an immense collection of rare cameos and medals, amongst which are many valuable portraits of antiquity, and about 200 statues and busts of great men of modern time, half of these being representations of military men, with some admirals, and about 50 portraits of sculptors and painters.

The Palace of Versailles is entirely devoted to the illustration of[II-82] the glory of France. Here, in addition to many pictures, representing the great military achievements of the French, there are saloons filled with statues and busts of the kings, princes, marshals, and admirals, and portraits of nearly every great man of the country from the time of Clovis the First and Clotilde, a king and queen of the 5th century, down to Louis Philippe of our own time. There are more than 600 statues, busts and medallions, many of them fine works of art, and all possessing the very highest interest. A considerable portion being duplicates of works at the Louvre or Tuileries. In such an extensive series there are, as may be supposed, many arbitrary portraits executed to complete a series, but though not taken from the life, they have for the most part been derived from trustworthy authority. There are also upwards of 600 memorial tablets in bronze, placed in the Gallery of Battles, inscribed with the names of all officers killed or wounded in the service of the country, beginning with Prince Robert le Fort, Comte d’Outre-Maine, killed at the combat of Brissarthe, in 866, and ending with the heroes of Waterloo.

The Historical Gallery at Versailles contains portrait busts and statues by 146 different sculptors of France, commencing with Germain Pilon and Jean Goujon, who flourished in the middle of the 16th century.

From all these great collections our Portrait Gallery has been enriched, as the Catalogue will show.

As works of art the French portraits cannot be placed in the highest rank. The style, as in French works of ideal sculpture, is rather picturesque, than antique and severe; and few of the portraits are free from a certain affectation of attitude or assumed expression of countenance, for which it may readily be conceived, the artist, rather than the subject, is to blame. It is rare to find a French bust treated with the seriousness and intensity of the antique, or with the unaffected naturalness of the best busts of the English school: too many indeed verge upon the common and fatal error of portraiture—caricature.

We must, however, take these portraits as the characteristic works of the country to which they belong; all of them bear the stamp of truthfulness, if some should be found tainted with exaggeration. Many are models in the art of marble portraiture. Those of Madame Dubarry (No. 235), and Marie Antoinette (No. 310), are especially beautiful; that of Gaston de Foix (No. 258) is also a very noble portrait; and the bust of Thomas Corneille (No. 222), is one of the finest productions of the school. The heads are[II-83] generally rather larger than life: and the visitor cannot fail to remark the exceeding care bestowed upon the wigs and elaborate embroidery of the time.


(The French Portraits commence immediately behind the Statue of Admiral Duquesne, in the Great Transept.)

ARTISTS AND MUSICIANS.

196. Jean Goujon. Sculptor.

[Born in Paris. Died there, 1572.]

Many of his works were destroyed in the French Revolution, but the Tribune of the “Salle des Cent Suisses,” in the Louvre, the “Diana of Poictiers,” and the “Fountain of the Innocents,” in Paris, are left to attest the artist’s superiority. At Malmaison, in France, is another statue by him of Diana, remarkable for the beauty of the pose, the suppleness of the limbs, and the extraordinary lightness of the drapery. The two caryatides in the Renaissance Court are examples of his style. Killed by a shot from an arquebuse during the massacre of Saint Bartholomew, and whilst he was at work on the decoration of the Louvre.

[This is considered to be a bust of the time, and perhaps by his own hand.]

197. Simon Vouet. Painter.

[Born in Paris, 1582. Died there, 1641. Aged 59.]

Is generally regarded as the founder of the French school of painting. He received his first instruction from his father, who was also an artist. When a mere youth, he acquired great fame as a portrait painter. He visited Constantinople, where he painted Achmet I. At Rome he worked for Pope Urban VIII. at St. Peter’s. Recalled to France by Louis XIII. in 1637, he was appointed chief painter to the king. His colouring is fine, and he possesses great boldness of touch; but his drawing is marked by mannerism, and he is not happy in perspective, or in his effects of light and shade. He accomplished, however, for French painting, what Corneille effected for the drama. He created and raised the national taste.

[From a marble in the Louvre.]

198. Nicolas Poussin. Painter.

[Born at Andelys, in France, 1594. Died in Rome, 1665. Aged 71.]

The greatest master of the French school of painting. His taste for art was revealed at a very early period. As a child, he drew upon his lesson books and the walls of the school-room. At eighteen, he went to Paris, where he frequented schools from which he learned but little. Genius and self-tuition did more for him. At thirty he painted the “Death of the Virgin” for a chapel at Nôtre-Dame, and so well, that the poet Marino took the painter to Rome, and recommended him to Cardinal Barberini with the energetic words, “You will see a youth who has the spirit of one possessed.”[31] The Italian syllables are yet stronger. In Rome he fell into poverty, and sold his pictures for a mere trifle. He worked against the spirit and taste of the age in both France and Italy: throwing himself, with his faithful comrade in art, the sculptor Fiamingo, entirely into the study of[II-84] the ancient Greek sculpture. He was recalled to his own country by Richelieu, in 1640, and was created Court Painter. In 1643, he returned to Rome, whence no solicitations could again draw him. He lived twenty-five years in great calm and happiness, married to the sister of Caspar Poussin, without children, without a pupil, without a man-servant—esteeming quiet in the house above everything. He was devoted to his art, a great student in it, and of all science bearing upon it. His genius was altogether antique. He transported himself into an elder world, and lived there. Thus in religious subjects he seems to lean towards the Old Testament; and he revels in the wealth of Greek mythology. His classical spirit ennobled landscape both in its own forms and by the poetical significance and treatment of the figures. His art, like poetry, seemed to open to him an escape from the world about him. A style of severe simplicity, truth, high beauty, harmony.

[31] Vederete un giovane che ha la furia del diavolo.

[From the marble in the Louvre, by Blaise.]

199. Pierre Mignard. Painter.

[Born at Troyes, in France, 1610. Died in Paris, 1695. Aged 85.]

Called “The Roman Mignard,” in contradistinction to his brother Nicolas, also a painter, and styled “Mignard of Avignon.” The works of Pierre are not remarkable for originality of invention or peculiar facility of execution; but they exhibit correct design, beauty of form, and excellence of colouring. The French regard him as the best colourist of the age of Louis XIV. The “Grand Monarque” sat ten times to this painter, who also painted the portraits of the Popes Urban VIII. and Alexander VII. Mignard was first intended for the profession of medicine, but his taste for drawing led him to the arts. He passed twenty-two years in Italy, where he acquired fame. He was recalled to France by his own sovereign, and by him also appointed chief painter to the court.

[From a marble in the Louvre, by Antoine Coysevox.]

200. André le Nôtre. Architect and Gardener.

[Born in Paris, 1613. Died there, 1700. Aged 87.]

The designer of the magnificent gardens at Versailles; the projector of its grand fountains, grottos, porticos, and bowers. He also laid out the gardens of St. Cloud, the Tuileries, Meudon, and several others. Louis XIV. heaped favours upon this great gardener, but Le Nôtre could not be spoiled by royal indulgence. He travelled into Italy and was received by Pope Innocent XI. “I care not how soon I die now,” said Le Nôtre to the Pope, “since I have seen the two greatest potentates in the world—your Holiness and the King, my master.” Le Nôtre was simple, honest, and disinterested: possessed a fertile genius and lively imagination; in many respects the prototype of our own Paxton.

[From the marble in the Louvre, by Gourdel, which was taken from the one in the Church of St. Roch.]

201. Eustache le Sueur. Painter.

[Born in Paris, 1617. Died 1655. Aged 38.]

One of the greatest French painters. First taught by his father, a sculptor; then a pupil in the studio of Vouet. His fame established by the pictures, twenty-two in number, which he painted for the Chartreuse in[II-85] Paris, and which represent the chief events in the life of St. Bruno, the founder of the Order. He took delight in sacred subjects, and in simple religious affection he left Lebrun and Poussin far behind him. He scarcely ever quitted Paris, never France; and his sole studies were the few exemplars from the antique which he could find in his native city. Raffaelle he could worship only through the engravings of Marcantonio. But the love of his art was boundless, his study intense, his industry inexhaustible. He excelled in purity of form, and his pictures reveal a tenderness of feeling and a spiritual grace, wholly wanting in the productions of the majority of his contemporaries. He was himself a man of mild and blameless nature. He died very early, worn out by his labours and by the active jealousy of his brother artists.

[The costume is that of the time of Louis XIII. From a marble by P. L. Laurent, done in 1806. Laurent was a pupil of Pajou, and died in 1816.]

202. Charles Lebrun. Painter.

[Born in Paris, 1619. Died 1690. Aged 71.]

One of the most celebrated painters of the French school. The Chancellor, Séguier, struck by his talent when a boy, placed him in the studio of Vouet, and subsequently sent him to Rome, where he maintained him during six years. In 1648, Lebrun was recalled to France, and admitted into the Academy. Mazarin, charmed by his works, presented him to the king, by whom he was favourably received and largely patronized. It is said that Louis XIV. would spend two hours at a time in Lebrun’s studio, whilst the artist was painting his “Battles of Alexander,” Alexander being Louis by allusion. For fourteen years, engaged in painting the great gallery of Versailles. Received many distinguished appointments in connexion with the Fine Arts, and at his instigation Louis XIV. instituted the French Academy at Rome. For many years Lebrun was as absolute in the republic of Art, as his master in the kingdom over which he ruled. He was styled “Dictator,” and his influence is perceptible in the works of his time. He was one of the vainest of men, and the most pompous, artificial, and theatrical of painters; his works, though they might swell the pride of a Court, would hardly flatter the pride of a country. His best picture is “The Stoning of Stephen,” in the Louvre.

[From the marble in the Louvre, by A. Coysevox. Extremely interesting, both on account of its being taken from the life, and having once surmounted the tomb of the great painter which was erected by order of his widow in the Church of St. Nicholas, in Paris, the tomb being also the work of Coysevox. The monument was removed at the time of the Revolution. The bust at Versailles, by Bosio (1837), takes its authority from this.]

203. André Félibien, Sieur des Avaux et de Javercy. Writer on Art.

[Born at Chartres, in France, 1619. Died in Paris, 1695. Aged 76.]

Held various appointments in connexion with art. Amongst others, those of Historiographer to the King, and Secretary to the Academy of Architecture. His best known work is “Lives of Ancient and Modern Painters,” which is translated into English. Grave and serious in character, but, right-minded and good-hearted, he preferred virtue to the favours of fortune.

204. Jean Mabillon. Antiquary.

[Born at Pierre-Mont, in France, 1632. Died in Paris, 1707. Aged 75.]

A Benedictine monk, who employed his life in collecting materials and[II-86] writing on monastic history and antiquities. Entitled to high rank for his extensive learning and great virtues; his style clear, masculine, and methodical; his mind free from bigotry.

205. Jean Baptiste de Lully. Violinist and Musical Composer.

[Born near Florence, 1633. Died 1687. Aged 54.]

A musical genius; who began life as a scullery-boy, and, in soul, continued a scullery-boy to the last. It was whilst playing the fiddle in the kitchen of Mademoiselle de Montpensier that his musical faculty was detected and rescued. Subsequently playing some airs of his own composition to Louis XIV. he was made, at the age of 19, “Inspecteur Général des Violons.” In 1672, letters-patent were granted him to establish a Royal Academy of Music: that academy was the Opera. He performed marvels at his theatre. He was at once composer, director, ballet-master, leader of the band, and even machinist. Nothing came amiss to him; and his activity, his popularity, his success were enormous. In less than fifteen years he had composed nineteen operas, which continued in high favour until put out of fashion by Gluck a century afterwards. To appreciate the merits of Lully as a composer, we must look at him from the point of view of his own time. So regarded, he is an artist of great spirit and dramatic power. He found France without any dramatic music whatever. He left works which formed the style of later masters, and became the foundation of a national opera. He had wit, energy, versatility, and was a great favourite with the Court. His moral character was detestable. To the great he was grovelling; to his earliest benefactress he was ungrateful; towards his dependants he was overbearing, insolent and brutal.

[From the bust in the Church of Petits Pères.]

206. Antoine Coysevox. Sculptor.

[Born at Lyons, in France, 1640. Died in Paris, 1720. Aged 80.]

Of Spanish origin. Employed for four years on the decoration of Cardinal de Furstenburg’s palace, at Saverne, in Alsace. Executed also for Paris, a statue of Louis XIV., and the bronze winged horse placed in the Tuileries gardens. The Revolution destroyed most of his works; but amongst those left is one of the finest—the monument of Colbert. A persevering and painstaking artist.

[From a marble in the Louvre, by himself. The original bears the following inscription:—“Ch: Ant: Coysevox Sculpteur du Roi, Chancelier de l’Académie; par lui-même. Donné à l’Académie par Ch. Pierre Couston architecte du Roi, son petit neveu.”]

207. Jules Hardouin Mansart. Architect.

[Born in Paris, 1645. Died at Marly, in France, 1708. Aged 63.]

The builder of the Palace of Versailles, and of the Hôtel des Invalides in Paris: indebted for his celebrity more to the good-will of his sovereign, Louis XIV., than to his own genius. His works noble and striking, but his style not chaste, and apt to fall into extravagance. A vain man, proud of the favours of the king and jealous of retaining them.

[From a marble in the Louvre, by T. L. Lemoyne, a pupil of Coysevox, who died in 1755; and doubtless from the life. He wears a damask dress with the cordon of St. Michel.]

[II-87]

207*. Claude Joseph Vernet. Painter.

[Born at Avignon in France, 1714. Died 1789. Aged 75.]

He received his first instruction from his father, who was an historical painter. He set out for Italy in his eighteenth year, and continued there for many years, studying and painting for small remuneration. He returned to France in 1753, on the invitation of Louis XV., was elected a member of the French Academy, and commissioned by the government to paint the principal ports of France. He excelled in marine subjects. It is related of him that during a terrible storm at sea, when all on board his ship were trembling for their lives, he caused himself to be lashed to the mast of the vessel, that he might watch the boiling ocean. The Louvre contains several of his pictures, which display a consummate management of light and shade. He had no rival in France whilst he lived, and he died pencil in hand. He was a modest man, and never so happy as when at work.

[Bust to come.]

208. Jacques Germain Soufflot. Architect.

[Born at Irancy, in France, 1714. Died in Paris, 1781. Aged 67.]

When the Carthusians rebuilt their church at Lyons, Soufflot’s design for the dome was accepted, and he achieved celebrity in consequence. Then settling in Lyons, built several edifices there, including the theatre (one of the finest in France), and the Hôtel-Dieu (the hospital). Invited to Paris, he became architect to the king. His designs for the Church of Sainte Généviève were adopted; but the cupola exciting much adverse criticism, the architect fell into despondency, languished and died. Blunt in his manners, but of a generous and noble mind. He was called the “benevolent cross-patch.”

[From the marble in the Louvre, by Prévot.]

208*. Marie-Anne-Botol Dangeville. French Comic Actress.

[Born 1714. Died 1796. Aged 82.]

Actress at the Théâtre Français, and perhaps one of the most perfect mistresses of her division of the art that have trodden the French stage. The original of this bust, in the Théâtre Français, has not the name of the sculptor, but is a work of singular delicacy of expression, and evidently from the hand of a master.

[Bust to come.]

208**. Mademoiselle Clairon. French Tragic Actress.

[Born 1723. Died 1803. Aged 80.]

The most accomplished French tragic actress of her time. Born of poor and illiterate parents. Made her first appearance on the stage in her thirteenth year. At first unsuccessful, she proved eventually a sublime tragedian, and during twenty-two years held possession of the public. Disraeli the elder has a curious story from her life. He relates that as a child she was cruelly treated by a violent mother, and driven all day to manual labour. One day when locked in a room for punishment, she climbed upon a chair to look about her. In the house opposite she saw a celebrated actress amidst her family; one daughter performing her dancing lesson. Clairon noticed with excitement every motion: not one was lost[II-88] upon her. The lesson over, the rest of the children applauded, and the mother embraced her clever dancer. The scene melted the heart of Clairon, reflecting on her own bitter lot, and she burst into tears. She ascended the chair again, but the vision had vanished. Henceforth she was a new child, and never so happy as when locked in that room: from her chair she watched again and again the happy dancer—imitated her gestures—reflected her grace. She worshipped a divinity. She had never been to a theatre; yet, without knowing what an actress meant, she had herself become an actress. Her ardent studies were soon manifest. Her first victory was over her barbarous mother, whom she softened. Her later conquest was the subjection of all Paris, and in Paris, of all polite France and Europe. The anecdote lives, how Voltaire, when his tragedy of “Oreste” was to be brought out, insisted that his Electra, compelled in the palace of her fathers to the discharge of menial offices, should appear habited as a slave. Mademoiselle Clairon, to whom the character fell, resisted. She shrank from flying in the face of the artificial French taste, and of the traditional stage decorum—both expecting a princess arrayed in proper theatrical splendour. The poet persisted. The piece over, she came to him and said, “Ah! M. de Voltaire, you have ruined me. All my gorgeous wardrobe is no longer worth a sou.” She had been released for once to act up to the truth, nature, and simple reality of her part; and had astonished audience, actors, herself—all save the poet—by her self-excelling success.

[This bust, which is to come, is from a marble by Lemoyne, dated 1761.]

209. Jacques Louis David. Painter.

[Born in Paris, 1748. Died at Brussels, 1825. Aged 77.]

The founder of the modern or classical school of French painters. Pupil of Vien, with whom he passed several years in Italy. Returning to France in 1780, opened a school, which attracted many pupils. In 1784, paid a second visit to Italy, and on his return was hailed with the title of Regenerator of Art. Was now admitted into the Academy and lodged in the Louvre, with the appointment of “Painter to the King.” His pictures proved eminently successful. His drawing was perfect, and the correctness of his design revealed the pure antique fount from which he had quaffed his inspiration. For a time David forsook the easel, to take part in the fury of Revolutionary politics. He forgot his apartments in the Louvre, joined hands with Robespierre, to whom he was personally attached, and became one of the loudest clamourers for the blood of Louis XVI. The painter was present at the mock trial of the monarch, whom he grossly insulted as the wretched king passed in front of him. After the fall of Robespierre, David owed the preservation of his own neck solely to his great reputation as an artist. He ceased to be a politician to become a dictator in art. During the Consulate his influence was supreme. He not only immortalized some of its heroic passages, but he designed its official costumes. Buonaparte heaped favours upon his artistic panegyrist, and the painter added grace and dignity to the deeds of the First Consul. The last work of David in Paris was “Leonidas,” painted in 1814. In that year, it is written that Wellington, accompanied by some English officers, visited the artist’s studio, and expressed a wish to be painted. The story adds, that David replied coldly that “he did not paint Englishmen,” and turned his back upon his visitor. Upon the return of Napoleon from Elba, David was made Commander[II-89] of the Legion of Honour. The next year he was banished as a regicide, and took up his residence in Brussels. “Napoleon crossing St. Bernard” and “The Coronation of Napoleon” are amongst his offerings to the triumphs of the Emperor. Classical and correct in design, David fails in colour, and in picturesque expression. His figures, too, have a hard and marble-like appearance. A large swelling at the side of his face was caused by a blow he received, when young. It has been justly said that opinions of David will vary, accordingly as they are expressed by Frenchmen or by foreigners.

[From the marble in the Louvre, by Rude, 1831.]

210. Charles Percier. Architect.

[Born in Paris, 1764. Died, 1838. Aged 74.]

Known by his works in conjunction with Fontaine. The influence of the labours of both is matter of history in art. To them is due the completion of the Louvre and the erection of the arch in the Place du Carrousel at Paris. Percier wrote several works on art. In his youth sent to Rome to study, where he gained the friendship of Flaxman and Canova. Modest and retiring; and in the pursuit of his art most persevering.

[From a marble in the Louvre, by Pradier.]

211. Girodet-Trioson. Painter.

[Born at Montargis, in France, 1767. Died in Paris, 1824. Aged 57.]

The real name of this artist was Anne-Louis Girodet de Coussy; but he took the name of Trioson from his adopted father and benefactor, a physician, to whom he was indebted for his education. He was the son of the Duke of Orleans’ steward, and intended for the army, but evincing a great taste for painting, was placed in the studio of David. Afterwards proceeding to Rome, he received the first prize for a work of art in that city. At the end of five years returned to Paris, where an apartment was assigned him in the Louvre. In 1806, he gained a prize by his picture of “The Deluge,” competing with his old master, David. Girodet did not produce many works, habitual ill-health disabling his pencil; but he left enough behind him to maintain his reputation. His chief pictures are “Endymion,” “Hippocrates,” “The Revolt in Cairo,” and “Napoleon Receiving the Keys of Vienna.” The colouring of Girodet is cold and earthy; and his figures, whilst revealing the classic form and correct drawing that characterize the labours of all David’s pupils, lose the expression of inward life. In spite of obvious deficiencies in truthful representation, his paintings produce a deep, and occasionally a powerful impression.

[From a marble in the Louvre—the author unknown. One by M. Roman was in the French Exhibition of 1827.]

212. François Gérard. Painter.

[Born at Rome, 1770. Died in Paris, 1837. Aged 67.]

Studied under Pajou the sculptor, then with Brenet, and finally with David, whom he assisted in several works, until 1794, when he exhibited his own picture of “The Tenth of August” (the day of the storming of the Tuileries in 1792). Under the influence of David, Gérard became one of the jury of the Revolutionary Tribunal—an office from which he subsequently shrunk. He received great honour and distinction at the hands of Napoleon; and the Emperor Alexander, and the Duke of Wellington, became[II-90] his friends. A man of extensive knowledge, and, as a painter, to be recommended for taste and refinement, rather than for invention or sublimity. His colouring, though harmonious, is not always true. His subjects were chiefly historical, and in these the arrangement of the figures and the selection of costume are always pleasing. He was also successful as a portrait painter.

[From a marble in the Louvre, by Pradier, 1838.]

213. Antoine Jean Gros. Painter.

[Born in Paris, 1771. Died there, 1835. Aged 64.]

One of the most distinguished of David’s pupils. Appalled by the horrors of the first Revolution, he quitted France, and withdrew to Geneva; thence to Milan, where he became known to Buonaparte, by whom he was countenanced and employed. He followed the army for six years, and returned to France in 1801. Then painted several pictures commemorative of Napoleon’s military achievements. He enjoyed ample patronage under both the Emperor, and the Restoration; but in his later years he fell into melancholy; and one morning his body was found in the Seine. His compositions are remarkable for boldness and facility of invention; but his colouring is frequently exaggerated. His subjects, too, though invariably treated with power, degenerate occasionally into vulgarity and theatrical display. His best picture is “The Plague at Jaffa.” He was a man of cultivated mind, and passionately fond of music.

[From the marble in the Louvre, by Debay Sen., 1827.]

214. Pierre Narcisse Guérin. Painter.

[Born in Paris, 1774. Died at Rome, 1833. Aged 59.]

The son of an humble shopkeeper, and in early years self-instructed. As a painter he was the pupil of Regnault, under whom he soon became distinguished for facility of execution and refined composition. He subsequently studied several years in Rome. In 1822, appointed Director of the French Academy. He was not distinguished either for design or colour; but his figures are full of expression. His subjects chiefly mythological and classical.

[From the marble in the Louvre, by Auguste Dumont, 1831, author of the statue of Louis Philippe, at Versailles, and lately deceased.]

215. Comte D’Orsay.

[Born in Paris, 1798. Died there, 1852. Aged 54.]

A man of fashion, endowed with exquisite taste and with great talent for the cultivation of art. He resided many years in England, where he influenced the taste of a portion of society, and practised sculpture and painting as an amateur. Towards the close of his life he withdrew to Paris, and there received an appointment in connexion with the fine arts, from his former friend the Emperor of France. He had engaging manners, a kind heart, and an open hand. Possessed of great personal beauty, he was not wanting in manly attributes, being athletic, and skilled in arms and horsemanship.

[This excellent work and admirable likeness is by W. Behnes.]

[II-91]

216. Mademoiselle Felix Rachel. Tragic Actress.

[Born at Munf, in Switzerland, 1821. Still living.]

The daughter of poor Hebrew parents. In 1831, this famous actress made her debût at the Theâtre Molière, in Paris, as Hermione in “Andromaque;” but without giving indication of the genius she has subsequently displayed. In 1841, she first appeared in England, and from that time has won unbounded admiration, and maintained an undivided supremacy both here and in France. French dramatic poetry, which ordinarily finds no welcome in English ears, is reconciled to our taste as it falls from her lips. Her excellence consists in the emphatic expression of deep feeling and passion, in the thrilling effects which she is able to produce, even by a whisper, and in her independent superiority over the traditions and conventionalities of the stage. She is the least unnatural of French tragedians; yet is not so natural as to be able altogether to conceal her art. The spectator never forgets that an actress is before him; is never carried away by an irresistible impulse. Rachel, great as she is, is always the same, even to the motion of a garment, and the raising of her hand. Hence, the impression made by a first representation is far more potent than any that may follow. She lacks ideality and refinement. Her temperament stands between her and her ability to inspire the spectator with a perfect belief in her earnestness, and in her love of the beautiful and good.

[Bust by Ludwig Wichmann. Plaster. 1844. The original in possession of the artist.]

217. Diane de Poitiers.

[Born 1499. Died at Arret, in France, 1566. Aged 67.]

At 13, married Louis de Brézé, Grand Sénéchal of Normandy, who died in 1531. At the age of 48 she became the favourite mistress of Henry II. of France. Her influence was used, except where she was herself biassed by religious prejudices, invariably for good and commendable objects. Her talents were commanding, and her beauty continued unimpaired by age. She was created Duchess of Valentinois, and her power was well appreciated abroad. One of her daughters by De Brézé married the son of the Duc de Guise, afterwards Duc d’Aumâle.

[A portrait of the time.]


POETS AND DRAMATISTS.

218. Pierre Corneille. Dramatist.

[Born at Rouen, in France, 1606. Died in Paris, 1684. Aged 79.]

The father of French tragedy. Educated by the Jesuits. During the early part of his career, monastic exhibitions were the only dramatic performances in vogue in France. When the French began to draw their dramatic inspirations from Spain, Corneille was the first to take real advantage of the movement. He dramatized the first youthful achievement of the Cid with extraordinary success. It soon became the custom to say of anything deserving applause, that “it was as good as the Cid.” Then followed his drama of “Les Horaces,” considered a masterpiece of French tragedy, a species of composition which is[II-92] not to be criticized by the rules that we apply to the great productions of our own stage. “Cinna” and “Polyeucte” followed, both efforts of undoubted genius. In 1642, elected member of the French Academy. The claims of Corneille upon our regard not to be over estimated. The French drama was yet in the block when he took up his artist tools. Grandeur of thought, elevation of sentiment, and heroism of character are wrought out in all his productions, which have exercised a momentous influence upon succeeding times in France. Corneille was simple and almost rustic in his manners and appearance. Very proud, but very shy. Ambitious of glory, yet disdaining the society of the great, even up to the greatest. He had a commanding person, and expressive features. When he died he was poor, almost to want. Napoleon had a lofty idea of Corneille’s knowledge of government. “Had he lived in my time,” said the Emperor, “I should have taken him into my council.”

[This is from the original marble, by Caffieri, in the Comédie Française. There is a statue of him at Versailles done in 1836, by M. Laitie. Both are taken from painted portraits.]

219. Jean de Rotrou. Dramatist.

[Born at Dreux, in France, 1609. Died there, 1650, Aged 41.]

One of the creators of French tragedy. To him Corneille is indebted for the idea of founding a tragedy upon the subject of the Cid—for it was at his instigation that the great master first looked to the Spanish stage for inspiration and guidance. Rotrou gloried in the success of Corneille, and generously maintained his superiority over all dramatic writers in France—including himself. He left thirty-seven dramatic pieces, and many of them exhibit power and great felicity of language. He enjoyed a civil office in his native town, where he was much respected. He was cut off by an epidemic.

[The original is in marble, by Caffieri. The costume is of the time of Louis XIII.; but the bust must have been done from some painted portrait, as it bears the date of 1783, and Caffieri was not born until 1723.]

220. Jean de la Fontaine. Poet.

[Born at Château Thierry, in France, 1621. Died in Paris, 1695. Aged 74.]

A great French poet! His fables in verse, published when he was forty years of age, placed him at once amongst the first writers in verse that France had produced, and created an epoch in French literature. As a writer of fables he is probably not surpassed by any writer of any country. His life was full of vicissitudes. He succeeded his father, as Keeper of the Royal Domains at Château Thierry, but deserting both his wife and his occupation, he went to Paris, where he formed a lasting friendship with Molière, Racine, and Boileau. A pension saved him from starvation; and losing this with the fall of the Minister, Fouquet, who gave it, he was again rescued by the charity of Henrietta of England, daughter of Charles I., and wife to the Duke of Orleans. Upon the death of this princess, he was again fortunately provided for by Madame de Sablière, in whose house the poet lived for twenty years. In society, La Fontaine was dull, silent, and subject to absence of mind. In his youth he was remarkable for his aversion to poetry. He lies buried by the side of Molière, who ever regarded him with affection, and who discovered his genius years before it was[II-93] acknowledged by the world. His style is easy, sprightly, graceful, witty, pointed, and inimitably naïve.

[This is from the bust in terra cotta in the Théâtre Français, by Caffieri. It has served as the authority for that by Dessine, at Versailles, and the statue in the Vestibule of the Admirals, by M. Seurre, done in 1837. Unfortunately, none of these could have been modelled from the life.]

220A. Jean de la Fontaine. Poet.

[By Auguste Dumont.]

221. Molière. Dramatist.

[Born in Paris, 1622. Died there, 1673. Aged 51.]

The real name of Molière was Jean Baptiste Poquelin. That which is associated with his renown was assumed when he became an actor, and “disgraced” his family, who cut Jean Baptiste away from the genealogical tree,—the father of Molière being valet de chambre to Louis XIII. Like our own Shakspeare, Molière was an actor as well as a writer of plays. He forsook the study of the law for the stage, and at the age of 24 was making his way in the provinces, where he produced comedies, in which he himself acted. In 1658, he returned to Paris, and by the favour of Louis XIV. opened the theatre of the Palais Royal. His new comedies produced there attracted crowds. His latest work was “The Imaginary Invalid,” brought out in 1673. He played the principal part himself, and during the fourth representation, was carried a dying man from the stage. The rites of Christian sepulture, denied, as a matter of course, to the player, were not conceded to the author who had satirized hypocrisy in his well-known comedy of “The Hypocrite.” Molière was beloved by his contemporaries: he was generous and warm-hearted—the friend of Condé, Boileau, and Racine. He is by far the first writer of Comedy in modern times. His place is close to the side of Shakspeare, for, like the English writer, he successfully addresses all countries and all ages, appealing to no limited, local, and accidental condition of the human mind, but striking home to the universal and unchangeable heart of man, as it everywhere throbs. Beyond the humorous faculty, he possessed earnestness of feeling, and a deep tone of passion. He was a man of tender heart; and of all French writers, he is the least French.

[From the marble in the Louvre.]

222. Thomas Corneille. Dramatist.

[Born at Rouen, 1625. Died at Andelys, 1709. Aged 84.]

Younger brother of the great Corneille, with whom he lived until his death in brotherly affection. Inspired by his brother’s success, he early devoted himself to dramatic composition, and, like his illustrious brother borrowed from Spain the materials for his earliest attempts. The labours of Thomas Corneille found even more approbation with contemporary audiences than those of Pierre; but the majority of the younger brother’s many comedies are now forgotten. The services rendered by Thomas to philology are perhaps more useful and lasting than his contributions to the drama. He published a supplementary Dictionary to that of the French Academy, and wrote other works. In his old age he lost his sight. He died honoured and beloved.

[II-94]

[By J. J. Caffieri, 1785. There is a copy of it at Versailles, in marble, by M. Chenillion, dated 1836. The original was taken from an authentic picture by Jouvenet, which belonged to the Countess of Bouville, daughter of Corneille, a copy of which picture was given to the Comédie Française by Caffieri.]

223. Philippe Quinault. Poet.

[Born at Felletin, in France, 1635. Died in Paris, 1688. Aged 53.]

A lyrical poet of great reputation, and the most famous writer of French operas. His earliest works were tragedies and comedies, but in 1670, after his election to the Royal Academy, he allied his verse to music, and did not sever the union until he altogether eschewed dramatic composition. He furnished to Lully, the musician, the words for his first opera, and continued to aid that composer until Lully’s death. Towards the close of his days, Quinault, influenced by religious scruples, ceased to write for the stage. His lyrical productions have great tenderness, and melodious sweetness, and are happily and eminently adapted to their alliance with the sister art.

[From a bust in terra cotta, by Caffieri, which was the model for that in marble placed in the public room of the Opera, at Paris, and for another in the Bibliothèque Généviève, at Paris.]

224. Nicolas Boileau. Poet and Satirist.

[Born at Crosne, in France, 1636. Died at Paris, 1711. Aged 75.]

One of the illustrious writers of his time. His labours went far to fix the character and purity of the French language, and his sharp criticisms have exercised ever since his day a salutary influence upon the literature of his country. He ridiculed with singular acuteness the false taste of his generation, and endeavoured to point out the true principles of composition. His “Art Poétique” is considered by many, as rivalling the “Ars Poëtica” of Horace. His humorous and heroic poem of “Le Lutrin,” written to illustrate his theory that an epic ought to have a slender groundwork, abounds in fanciful and sportive wit. He was the friend of Molière, Racine, and Lafontaine, and the great Condé was his patron. A generous and charitable man, an upholder of religion, but a sworn hater of hypocrisy. Constant in his friendships, and always ready to forgive injuries.

[From a marble, by François Girardon, in the Louvre, a sculptor born at Troyes, in Champagne, 1630, and died 1715.]

225. Jean Racine. Dramatist.

[Born at La Ferté Milon, in France, 1639. Died there, 1699. Aged 60.]

Racine was the Euripides of France, as Corneille was her Æschylus. The first excelled in impassioned tenderness, the last in power and sublimity. Corneille borrowed from the Spanish stage; Racine took his inspiration from the ancients, whom he studied with ardour and effect. He published “Phèdre,” one of his best tragedies, when he was thirty-eight years old, but, disgusted with the envy which he raised, he resolved to renounce the theatre ever afterwards. He did not keep his word; for some years later, at the request of Madame de Maintenon, he wrote his beautiful drama of “Athalie,” which, it would seem, was not appreciated at the time. His versification is sweet, expressive, and harmonious; and his plays are remarkable for grace and feeling. He was himself beloved for his simplicity, modesty, and genuine character. He was too sensitive to adverse criticism.

[II-95]

226. Jean François Regnard. Dramatist.

[Born in Paris, 1655. Died at Dourdan, in France, 1709. Aged 54.]

A celebrated comic writer of France, and a man of many adventures. Returning from an Italian journey, he was taken by pirates, and sold to slavery in Algiers. Whilst there he was sentenced to become a Mussulman, or to be burnt alive. Ransomed by the French Consul in 1681, he resumed his travels northwards. In 1683, he took up his abode in Paris, and wrote comedies, which became very popular,—the most successful being “The Gamester,” produced in 1696. Regnard had an inexhaustible fund of humour. Voltaire has said that “he who is not pleased with Regnard, is not entitled to admire Molière.”

[In marble, by J. J. Foucon, signed and dated 1779. There is a copy of this bust at Versailles.]

227. Charles Rivière Dufresny. Dramatist.

[Born in Paris, 1648. Died 1724. Aged 76.]

A versatile genius! A musician, a poet, a draughtsman, a gardener, and an architect. And most improvident withal! Was in the service of Louis XIV. first as valet-de-chambre, then as Inspector of the Royal Gardens. In the latter capacity, he was the first to introduce the English style of gardening into France. He enjoyed a pension; but for an inconsiderable sum he sold both place and pension, and soon became penniless. Then took to writing for the theatre as a last resource for bread. Few of his plays met with, or deserved, success; but one or two have recognised merit. He received fresh favours from the King, and the Duke of Orleans conferred upon him a handsome gift of money. But nothing could save Dufresny from himself. He fell in his age into deep poverty, and so died.

[From the marble by Augustin Pajou, signed and dated 1781. A sculptor and professor in the Academy of Paris, and one of the best of his time. He died in 1809.]

228. Prosper Jolyot de Crébillon. Dramatic Author.

[Born at Dijon, in France, 1674. Died in Paris, 1762. Aged 88.]

Styled the Æschylus of France. Educated by the Jesuits, and intended for the law, he produced, in 1705, his first play, “Idomeneus.” A subsequent effort, the tragedy of “Rhadamistus,” placed him at once in advance of all the tragic poets who lingered on the stage after Corneille and Racine had quitted it. Disgusted, at a later period, with Court neglect, and the decline of popularity, he withdrew from the world, and passed a life of abstinence amidst a large number of cats and dogs, whose attachment, he said, consoled him for man’s ingratitude. In 1731, elected a member of the French Academy. Towards the close of his days the sun once more smiled upon his fortunes. He received a pension through Madame Pompadour of 2,400 French livres; and the King of France caused his works to be printed at the Louvre press. As a tragic author he takes high rank. Too fond of dealing in horrors, but all his works have warmth, energy, and varied action. He was proud, independent, and alive to his own defects.

[The marble bust from which this was taken was executed after a model from the life, by the celebrated sculptor, J. B. Lemoyne, in 1760. The marble was carved by J. B. Huez, in 1778, as the inscription tells us. The only notice of Huez, who has often been considered the author of the bust, is in “Les Salons” of Diderot, where he is mentioned amongst the contributors to the exhibitions of the day, and not in complimentary terms. Lemoyne was a Parisian, and died in 1778. He did many busts.]

[II-96]

229. Philippe Néricault Destouches. Dramatist.

[Born at Tours, in France, 1680. Died 1754. Aged 74.]

In his youth served as a volunteer in the French army. Then adjoined to the embassy in Switzerland, where his leisure enabled him to follow the bent of his fancy, and to write for the stage. His plays were as popular as his diplomatic skill proved useful. He found favour with the Duke of Orleans, who attached him to the mission of Dubois, when that minister, in 1717, went to London. His diplomacy still pleased the Regent, who, unfortunately, died too soon for Destouches. But the dramatist had been prudent; and upon the death of his patron, he retired with a sufficient fortune to his estate, and sought consolation in the pursuits of agriculture and philosophy. His plays won applause rather by the interesting situations of which they were full, than by subtle development of character.

[From the only bust of him, by P. F. Berruer, done in 1781 and signed. Berruer was a member of the Paris Academy, and died in 1797.]

230. Alain Réné Le Sage. Novelist.

[Born at Sarzeau, in France, 1683. Died at Boulogne-sur-Mer, 1741. Aged 58.]

The author of “Gil Blas” and the “Devil on Two Sticks.” A poor man, notwithstanding the success of his novels. Becoming deaf, he used a speaking-trumpet in the presence of intelligent visitors; when other visitors came to him he gravely put the instrument into his pocket. An inimitable painter of human nature, ranking with the few immortals whose creations appeal to all times. Proud and independent, though amiable of disposition. Devoted to the pursuits and joys of a literary life.

231. Alexis Piron. Poet.

[Born at Dijon, 1689. Died 1773. Aged 84.]

A wild and dissolute spirit. The author of one admirable comedy, “La Métromanie,” which may take rank with the dramatic productions of the best period in France, and of seven volumes of compositions which have long ceased to float on the broad river of fame. Piron was the son of an apothecary at Dijon, and after almost breaking his father’s heart by his follies, he was obliged to flee his native town in consequence of the publication of an indecorous effusion written amidst the fumes of an orgie. He went to Paris, and there for nine years lived in great indigence, supporting himself as a copyist. Then he took to writing for the minor theatres, with more or less success, until 1738, when he produced his masterpiece, already mentioned. It secured him a place at once amongst the best dramatists of his country. In 1753, he applied for a vacant seat in the Academy, and was refused. He revenged himself by composing a satire and the following epitaph:—

“Ci-git Piron, qui ne fut rien,
Pas même Académicien.”
“Here lies Piron—a nullity—
Not even an Academician.”

[This is an admirable bust, by Caffieri, dated 1775. Copied at Versailles by M. Pigalle.]

232. Pierre Claude Nivelle de la Chaussée. Dramatist.

[Born in Paris, 1692. Died there, 1754. Aged 62.]

He is regarded as the inventor of sentimental comedy in France (Comédie[II-97] larmoyante.) Hugh Kelly’s “False Delicacy” made the invention known in England, and Foote’s “Piety in Pattens” ridiculed it. Pierre de la Chaussée was a French Academician. His writings gained for him considerable fame during his life, and La Harpe ranks him amongst the authors who have conferred honour upon the French theatre.

[In marble, by Caffieri. 1785.]

233. François Marie Arouet de Voltaire. Historian, Poet, and Wit.

[Born at Chatenay, in France, 1694. Died in Paris, 1778. Aged 84.]

This extraordinary Intellect was not, as is generally supposed, an atheist. Voltaire was not destitute of the sense of moral responsibility; and he hardly believed in the immortality of the soul; but it was from his pen that fell the startling confession that, “if God did not exist, it would be necessary to invent his being.” Voltaire was richly endowed. He wrote the best epic poem in the French language; his tragedies, full of strength and passion, take high rank; his satire is cutting and inimitable, and his historical writings are full of life and movement. Wrapt up, however, in the philosophical spirit of the eighteenth century, he was ever incapable of judging justly of the greatness of minds who had received the prejudices of less enlightened times. For forty years, he led a life of incessant literary action: part of that time he was forced, in consequence of his satirical writings, to live in England, where he became the intimate of Bolingbroke, Toland, and other deists. In 1749, he visited Berlin, on the invitation of Frederic the Great. Always a persevering and acrimonious enemy of Christianity, he laughed at Revelation; and, a sneerer at hereditary orders, he helped largely to the overthrow of the monarchy in France. He did not live to witness the Revolution; but it is said that he lived long enough to be horrified at his infidelity. It must be noted to his honour, that whilst he ridiculed all things in which he had no faith, he was sincere in his maintenance of the rights of humanity, and in his denunciations of injustice. He was the idol of all who read and talked in France in his time.

[From the marble, by Houdon, done in 1778, and signed by him in the Théâtre Français. There is a fine seated statue of Voltaire in the Théâtre Français by Houdon considered to be his chef-d’œuvre as a portrait statue, and remarkable for the noble style in which the subject is treated. Copies of the same bust and statue exist at Versailles.]

233A. François Marie Arouet de Voltaire. Historian, Poet, and Wit.

[By Pajou.]

234. Michel Jean Sedaine. Dramatist.

[Born in Paris, 1719. Died there, 1797. Aged 78.]

The son of an architect. At the age of 13 relinquished, through poverty, the study of architecture and became a journeyman mason. Later in life he set up as master mason, but he forsook his calling for literature and the drama. His plays are well written for stage effect, but are not remarkable for their poetic character, or correctness of style. The success of his play, “Richard Cœur de Lion,” procured him admission into the French Academy.

[From a marble, by Jaques Edouard Gatteaux, signed and dated 1843. M. Gatteaux is an engraver of medals as well as sculptor, and member of the Institute. Born 1788.]

[II-98]

234*. Charles Palissot de Montenoy. Dramatist.

[Born at Nancy, in France, 1730. Died, 1814. Aged 84.]

Celebrated chiefly for his comedy of the “Cercle,” in which, by his ridicule of Rousseau, he gave offence to the philosophical literati of France, with whom he waged continual literary war. In 1760, he produced his comedy of “Les Philosophes;” in 1764, the “Dunciade.” His works are not distinguished by richness of invention or copiousness of ideas; but his style is natural, easy and correct.

[Bust to come.]

235. Marie Jeanne Vaubernier, Comtesse du Barry.

[Born at Vaucouleurs, in France, 1746. Guillotined, 1793. Aged 47.]

Of humble parentage. Quitting a convent in Paris into which she had entered at an early age, she worked as a milliner when fifteen years old. Shortly afterwards she became the mistress of the Count du Barry, a dissolute man of fashion, and by him was introduced to Louis XV., who captivated by her beauty and unrestrained manners, induced the brother of the Count to make Mademoiselle Vaubernier his lawful wife. La Comtesse du Barry, received at Versailles, soon acquired an ascendancy over the licentious monarch and his court. She exercised supreme sway, and held in her hands the power of life and death—promotion and disgrace. Her extravagance was boundless. At the death of Louis in 1774, she was shut up in a convent, where she became religious. Released from her imprisonment by Louis XVI., she conducted herself with decorum, but too late for any earthly happiness she might derive from repentance. In 1793, the revolutionists took her life because she had devoted it to the service of the Royal family, for whom, it would appear, she had sold her diamonds. She was much pitied at the scaffold, where she betrayed great want of courage.

[From the marble in the Louvre, by Pajou. A very beautiful work delicately chiselled, and full of life and softness. It is signed and dated 1772. The bust at Versailles is a repetition, dated 1773.]


SCIENTIFIC MEN AND WRITERS.

236. Michel de Montaigne. Essayist.

[Born at the Castle of Montaigne, in Perigord, France, 1533. Died at Perigord, 1592. Aged 59.]

An original and most engaging writer. His essays consist chiefly either of personal narrative, or of disquisitions upon his individual nature. His reasoning acute and philosophical, his manner, if one may so call it, grotesque, and naïve. His descriptions of persons, events, and places full of life and exquisite drawing. A favourite author with all lovers of sterling thought, lucid style, and quaint reflection. He lived during a time of religious conflict, but walked quietly and unscathed through the fire, blessed with philosophic calm. He travelled in 1580, visited Switzerland and Venice “which he had a hunger to see,” and settled for a time in Rome. He said “he could not go out of his way, for he had no way to go.” On his return, elected Mayor of Bordeaux, though he told the electors he had “neither party-spirit, memory, diligence, nor experience.” Elected for a second time to the office, nevertheless. A man of great moral courage, and warm in his friendships.

[II-99]

237. Jacques Auguste de Thou. Minister of State and Historian.

[Born in Paris 1553. Died 1617. Aged 64.]

Under Henry III. of France, De Thou discharged the duties of several offices with eminent ability and credit; and in 1581, was appointed one of the commissioners, sent to quiet the disturbances in Guyenne. In 1588, he was nominated Councillor of State, and in the following years proceeded to Germany and Italy on a diplomatic mission. On the death of Henry III. he received the confidence of Henry IV., and was employed, with others, to digest the articles set forth in the celebrated Edict of Nantes in 1598. In 1591, he commenced his great history of his own times; and, in 1604, published the first eighteen books. After the death of Henry IV., he served for a time as one of the Directors of Finance in Sully’s place, but soon retired, disappointed and vexed; and closed his days in the completion of his magnificent historical labours, and in the practice of piety. De Thou was deeply read in men, and learned in human dealings; grave and severely simple. His mighty work was written in 138 books, in the purest Latin, and is one of the world’s monuments of industry, intelligence, and knowledge. He also wrote Latin verses.

[From the marble in the Louvre, by Barthélemi Prieur. The head is in white marble, and the body in porphyry to imitate his robe.]

238. Réné Descartes. Mathematician and Metaphysician.

[Born at Touraine, in France, 1596. Died at Stockholm, in Sweden, 1650. Aged 54.]

Shares with Bacon the title of Father of Modern Philosophy. All the metaphysical writers follow him, as the men of the physical sciences follow Bacon. He was only three and twenty when, whilst with his regiment on the Danube, he determined to reform philosophy. To do so, he resolved to efface from his mind all that he had learnt, and to admit nothing that could not be demonstrated by reason and experience. With him, consciousness was the sole basis, mathematics the sole method, of certainty. He substituted the philosophy of reason for that of authority. His genius for the great sciences, and his superiority over the majority of his contemporaries in scientific acquirements, were remarkable. He first applied algebra to geometry; he likewise made observations on the decline of the magnetic needle, put forward the true theory of the rainbow, and brought the science of optics within the domain of mathematics. His influence over his age was great, though his writings involved him in controversies. But he was timid as a man. He wrote a book on astronomy, but destroyed it on learning the fate of Galileo. He was the first great master of French prose. It is said of him, that he began by doubting everything, and ended by believing that he had left nothing unexplained.

239. Antoine Arnauld. Theologian and Controversialist.

[Born in Paris, 1612. Died at Brussels, 1694. Aged 82.]

A learned and fierce polemic, whose consistency was as perfect as his spirit was bitter, and whose defiance of conflict and danger was as insolent as his private life was blameless. His happiness consisted in spiritual warfare. He established himself spokesman of the Jansenists. When he was ten years old he was heard to say to Cardinal Perron, “With this pen I, like you, will write against the Huguenots.” He commenced the labours of his life by an attack upon the Jesuits. Taking active part in all the angry discussion[II-100] respecting grace, he published two “Apologies” in favour of Jansenius, which drew upon him the censure of the Sorbonne, and compelled him to retire to Port Royal, where he remained for the space of twelve years. Returning to Paris in 1668, he plunged immediately into the seething waters of controversy, and was again forced into exile. Fifteen years afterwards, we find him, as furious as ever, attacking the doctrine of Malebranche respecting the grace and vision of God. At his own request, his much-agitated heart, after it had ceased to beat, was sent to be deposited in the Port Royal. Forty-eight volumes remain to attest the intensity of his religious prejudices, the depth and extent of his learning, his violent love of wrangling, and his restless and unwearied industry. We sigh over the waste of power and the misuse of fine material.

240. Sébastien le Prestre de Vauban. Engineer.

[Born at St.-Léger de Foucheret, in Burgundy, 1633. Died 1707. Aged 74.]

Of poor parents, but well descended. At the age of seventeen, entered the army of Condé, in Spain, then fighting against France. Taken prisoner in 1653, he went over to the French army, and received his commission as lieutenant of engineers. His rise was as rapid as his services were great. At the age of twenty-five, he conducted the sieges of Gravelines, Ypres, and Oudenarde. He gave the most valuable help in all the campaigns of Holland and Flanders, from 1667 to 1703; and in 1703 was created Marshal of France. His contributions to the science of fortification have celebrated his name. He was not only a great builder, but a shrewd observer, and knew better than any of his contemporaries how to avail himself, whether in defence, or in attack, of the circumstances by which he was surrounded, and of the opportunities and conditions of his time. To him we owe the system of parallel lines, which he introduced before the city of Maestricht. At the siege of Philisbourg, he invented the “tir à ricochet,” in which the ball, making a series of bounds, strikes several times along works against which it is directed. He also invented the musket, in which the match served in lieu of the cover to the pan. He afterwards armed the musket with the bayonet. He vastly improved the system of inundations, that most useful element of self-defence. His engineering appliances during his long and indefatigable service were inexhaustible. It is affirmed on authority, that he repaired three hundred old fortresses, constructed thirty-three new works, conducted fifty-three sieges, and was present at a hundred and forty severe engagements. He also left behind him twelve folio volumes on Strategetics, entitled “Idle Hours.” Vauban was beloved by the soldiery, for whose safety he was always careful. His humanity is otherwise known by his endeavour to procure from the king, his master, the restoration of the Edict of Nantes. To that king he was deeply attached; although to him, as well as to every other man, he was blunt in the expression of what he believed to be truth,—straightforward and manly. He has been called the prince of engineers, and the best of subjects.

241. Joseph Pitton de Tournefort. Botanist.

[Born at Aix, in Provence, 1656. Died 1708. Aged 52.]

Educated by the Jesuits, and intended originally for the Church; but upon the death of his father he made several botanical excursions, and finally devoted his days to the prosecution of his darling pursuit. He visited England, Spain, and Holland. Tournefort did much towards the[II-101] foundation of a scientific botany. His special service was in distinguishing plants from one another, and in preparing them by classification for the handling of the more philosophic student. Like the other botanists of his time, he had his own system of classification. He was one of the first thinkers upon the geographical distribution of plants. In 1700, he pursued his inquiries in the Levant, whence he brought home, after protracted and perilous wandering, no fewer than 1356 new plants. He published his “Travels in the Levant” upon his return to France.

242. Charles Rollin. Historian.

[Born in Paris, 1661. Died 1741. Aged 80.]

The son of a cutler, and himself intended for that trade; but rescued to learning and literature by a Benedictine monk who placed him at the College of Plessis. His studies were eminently successful. After holding many high scholastic appointments in France, he was obliged to resign, in 1720, the Rectorship of the College of Plessis, where he had been brought up, in consequence of the religious troubles of the time, he being suspected of favouring the Jansenists. From 1720 until his death, occupied in literary labours. His “Ancient History” appeared at intervals, from 1730 to 1738. Its simple style and moral tendency are more to be admired than the exactness of its narrative and the discernment of its author. The other writings of Rollin improved the taste of his age, and certainly strengthened its moral tone. As Rector of the University he revived the study of Greek, and gave prominence to the cultivation of French. He corresponded with Frederic the Great, Rousseau, and Voltaire, without deriving injury from their acquaintance: for all his contemporaries describe him as singularly virtuous and pious.

243. Jean Baptiste Rousseau. Lyric Poet.

[Born in Paris, 1669. Died at Brussels, 1741. Aged 72.]

A lyric poet of great celebrity in France, but many of his compositions defaced by scurrility and indecency. He was the son of a shoemaker, but he received a good education, and at an early age, gave sign of his poetic genius. In his nineteenth year, appointed page to the French ambassador at the court of Denmark; and subsequently attached as Secretary to the Embassy in England. In 1712, he fell into disfavour, and was banished from France for writing libellous verses, which, to the last moment of his life, he declared were the production of some enemy, who had designed his ruin. Retiring to Vienna, he found favour with Prince Eugene. The odes of Jean Baptiste Rousseau are not surpassed, if they are equalled, in the French language; his lyrics are elegant and harmonious, and his epigrammatic skill is perfect. His later productions, however, exhibit a lamentable falling off from the early excellence by which he won his fame.

[In marble, by Caffieri. No date.]

244. Réné Antoine Ferchault de Réaumur. Chemist and Naturalist.

[Born at Rochelle, in France, 1683. Died at Maine, in France, 1757. Aged 74.]

The discoverer, in his own country, of the art of making steel, till then imported into France. The thermometer which he adjusted, and which is named after him, is chiefly used on the continent. His life spent in the[II-102] service of science, and in the close pursuit of truth. Entomology was, however, his favourite study; and he contributed a most interesting memoir towards the history of insects. He died from the effects of a fall from his horse.

245. Georges Louis Le Clerc, Comte de Buffon. Naturalist.

[Born at Montbard, in France, 1707. Died in Paris, 1788. Aged 81.]

This great naturalist commenced his scientific career at the age of 25, and his study at Montbard was called by Prince Henry of Prussia “the cradle of Natural History.” Shortly afterwards appointed Intendant to the Jardin des Plantes at Paris, where he projected his theory of the classification of animals, and assisted by Daubenton and Lacépède, wrote the great work which has immortalized his name. He was more or less dissimilar to Linnæus in the spirit and in the detail of his undertaking. Buffon’s object is to write a natural history of each animal; that of Linnæus to express its peculiar and distinctive character in the fewest possible words. Linnæus gives classical names to the objects he describes. Buffon names his animals in French. Buffon’s style is luminous and elevated, and at times approaches the character of blank verse. He is one of the founders of ethnological science, and as a writer on ethnology gave great prominence to the history of man as an Animal. He was sensual, vain, and in religious matters hypocritical.

[The original bust, which is in the Louvre, is inscribed—“By Pajou, sculpteur du Roy, professeur de son Académie de peinture et de sculpture, 1773.” Pajou died in 1809.]

245A. Georges Louis Le Clerc, Comte de Buffon. Naturalist.

[By J. Debay.]

246. Charles Linné, known by his Latin name Linnæus. Botanist.

[Born at Rœshult, in Sweden, 1707. Died at Upsal, in Sweden, 1778. Aged 71.]

A botanist, even at school, where he neglected his books in order to collect plants in the fields. His father, in despair, apprenticed him to a shoemaker. With eight pounds in his pocket, he went to Upsal, to study for the medical profession. Here he was appointed botanical lecturer in the University. Thence he was despatched to Lapland on a botanical expedition, and it is said he travelled 3,500 miles with no more than ten pounds. Finally became Professor of Medicine at Upsal, and Superintendent of the Botanical Gardens. Published, besides his great Systema Naturæ, many works on natural history, and a book on Materia Medica and nosology. He invented a new system of classification, founded upon the sexes of plants, which reigned in the science till superseded by the natural system of Jussieu. In person below the middle height, strong, and muscular. His head large; his look ardent and piercing; his features agreeable and animated. Vanity his greatest foible; yet few men have shown greater boldness, zeal, and activity, in the pursuit of science. His love of nature seemed a religious devotion of the heart. His library and herbarium were purchased for 1000l. by Sir James Edward Smith, and are now in the possession of the Linnæan Society of London.

247. Jean Jacques Rousseau. Philosopher and Writer.

[Born at Geneva, 1712. Died at Ermenonville, in France, 1778. Aged 66.]

This singular and morally-distempered man, was endowed by nature with[II-103] a warm imagination, a teeming fancy, and ardent feeling; but his whole nature was unhinged, by the absence of conscientiousness and directing principle. He was not only self-loving and vain, but self-engrossed. His early life was passed in reading romances, and in the loose indulgence of his weaknesses and passions. Yet his pen was a potent one, and, even more than that of Voltaire, helped to bring about the Revolution in France, and all its social blasphemies. Whilst Voltaire, with his bright and sharpened wit, cut away the cable that held religion to its moorings, Rousseau penetrated to the households of men, invaded their firesides, and poisoned their hearts. His writings were new, fascinating, and eloquent; abounding in highly-wrought descriptions of nature, and in what seemed genuine bursts of passion. His philosophy attributed all vices to civilization, to the existence of property, and to the tyranny of governments. His career was as disgraceful to himself, as his works proved detrimental to the happiness of others. He committed frequent thefts in his youth, and behaved with infamous ingratitude towards his benefactress, Madame de Warens, who saved him from threatened starvation; yet was left by him to starve in later days, when the condition in life of both had changed. With all his profound sentiment, Rousseau was a cold-blooded and cruel man. He was a subtle, independent, and original inquirer.

[From the bronze in the Louvre which bears the name of Houdon, 1778. The treatment is in the antique manner. The drapery is a mantle, and the head is bound with a fillet. This bust has an especial interest, from its having been executed from a cast taken after death by Houdon, who was sent for to Ermenonville immediately after the decease of Rousseau, by M. de Girardin, with whom he lived. The original cast still exists, and shows its genuineness by the scar on the forehead, caused by Rousseau’s falling from his chair; an accident which gave rise to the report that he had shot himself.]

247*. Jean Darcet. Chemist and Physician.

[Born at Douazit, in France, 1725. Died in Paris, 1801. Aged 76.]

Disinherited by his father for preferring the study of natural philosophy to that of jurisprudence; but befriended by Montesquieu, who appointed him tutor to his sons. His great discovery was the composition of porcelain. He artificially formed from minerals, found in France, the earth of which porcelain is made, and which exists in a natural state in Saxony, where the law forbade its exportation. The first to extract gelatine from bones, and soda from the sea water. Director of the Gobelins and of the Sèvres manufactories.

[Bust to come.]

248. Jean Pierre Duhamel. Man of Science.

[Born at Nicorps, in France, 1730. Died 1816. Aged 86.]

In 1752, Duhamel visited the mines of the Pyrenees, and of various parts of Germany, in order to collect information, his object being to establish a School of Mines in his own country. But he had to wait twenty years for the realization of his idea. As soon as it was carried out, he received the appointment of Professor of Agriculture and Metallurgy. He was a true practical philosopher, and his inventions and discoveries were all of the highest use in the branch of science to the development of which his life-long exertions had been directed.

[II-104]

249. Joseph Louis Lagrange. Astronomer.

[Born at Turin, in Italy, 1736. Died in Paris, 1813. Aged 77.]

At the age of 19, was Professor of Mathematics at the College of Turin. Appointed successor to Euler when the latter was removed from Berlin. Subsequently settled in Paris, where he became one of the Directors of the Mint, and Professor in the Polytechnic school. In 1793, when all foreigners were ordered to leave France, he was permitted to remain. His important labours contributed largely to the advancement of mathematics and astronomy, agitating most of the problems which Laplace subsequently treated with such success. Delicate in health, he led a temperate life; and in society he was reserved and contemplative. Neither great fame nor high honour impaired his modesty. One of the Encyclopedists.

250. Jean François Galaup de la Pérouse. Navigator.

[Born at Albi, in France, 1741. Died about 1788.]

At an early age entered the naval service of his country, and in 1782 commanded the successful attempt to destroy the English settlement at Hudson’s Bay: an attack in which he displayed great humanity towards the foe. In 1785, he quitted France with two small frigates on a voyage of discovery. He visited the coasts of Tartary, Japan, and New Holland; in 1787, he sent home one of his officers with an account of his expedition; and in 1788, he quitted Botany Bay. No further intelligence was ever received of him or of any of his crew. He probably perished on one of the Vanikors islands.

250*. Marie-Jean-Antoine Nicolas Carétat, Marquis de Condorcet. Mathematician and Philosopher.

[Born in Picardy, France, 1743. Died at Clamart, in France, 1794. Aged 51.]

One of the original thinkers of the eighteenth century, and the biographer of Voltaire. Cold and reserved in his manner, but his feelings warm and enthusiastic. D’Alembert called him “a volcano covered with snow.” Another writer has said that goodness was so sweetly expressed in his eyes, that had he proved dishonest, he would have been more to blame than any other man. He earned and still retains the name of the “virtuous Condorcet.” His scientific attainments caused him to be elected Secretary to the Academy of Sciences at an early age. His works, which are in 21 vols., were collected by Cabanis and Garat. The work on which his fame will rest is the Esquisse d’un tableau Historique des progrès de l’esprit Humain, where, for the first time, the idea of Progress as a law of Humanity was scientifically expounded. Condorcet believed in the indefinite perfectibility of man as the result of this law of progress. In 1791, inflamed with the zeal which he had helped to kindle for liberty, and the overthrow of inveterate abuses, he became a member of the National Assembly, but not proving violent enough for his colleagues, was forced to secrete himself in the house of a friend. Death being pronounced against all who should harbour proscribed persons, Condorcet voluntarily quitted his sanctuary in disguise; but was detected in the village of Clermont, and thrown into prison. He swallowed poison, and was found dead on the following morning. In action, Condorcet wanted moral courage.

[Bust to come.]

[II-105]

251. Jacques Étienne Montgolfier. Aëronaut, and Inventor of Balloons.

[Born at Vidalon-lès-Annonai, in France, 1745. Died at Serrières, in France, 1799. Aged 54.]

The son of a paper-maker. Was led by reading the philosophical writings of Priestley to conceive the idea of employing gas, lighter than the atmosphere, as a means of ascending through the air. His first experiment was made at Annonai in 1783, and with such success that he repeated it the same year in Paris, and again at Versailles before the Court. Montgolfier was rewarded for his invention by admission to the Academy of Sciences, the cordon of St. Michel, and a pension of 2000 livres.

251*. Gaspar Monge. Geometrician.

[Born at Beaunée, in France, 1746. Died in Paris, 1818. Aged 72.]

Inventor of descriptive geometry, and one of the founders of the Polytechnic School at Paris. During the Revolution elected Minister of Marine but soon resigning, took a personally active part in the equipment of the army for war. Under Napoleon, visited Egypt, where his investigations of architectural remains were incessant. His whole life devoted to science; and his work on the history of Mathematics testifies to his deep spirit of research. An impartial writer, but a praiser of few.

[Bust to come.]

252. Dominique Denon. Egyptian Traveller.

[Born at Chalons-sur-Saone, in France, 1747. Died in Paris, 1825. Aged 78.]

Brought up to the law, he neglected his profession for the fine arts. Found favour with Louis XV. and his successor. Fulfilled several diplomatic appointments with great success. In 1787, became a member of the Academy of Painters. Employed by Robespierre to design the new republican official costumes. Accompanied the French expedition to Egypt; of which one result was his interesting and magnificent work, published at the public expense, “Travels in Upper and Lower Egypt, during the campaigns of General Buonaparte.” This work first brought the wonderful remains of ancient Egyptian art distinctly before our eyes. Subsequently appointed, by Napoleon, Director-General of Museums, and mainly organized in Paris the admirable collection which for a time constituted the richest treasury of art ever known in Europe. At the Restoration, Denon lost his office, and devoted his leisure to the arrangement of his own museum. He was an ardent lover of the fine arts, possessed an elegant taste and liberal mind.

[From the marble in the Louvre, by M. Marin. 1827.]

252*. Claude Louis Berthollet. Chemist.

[Born at Talloire, in Savoy, 1748. Died at Arcueil, in France, 1822. Aged 74.]

After studying at Turin, went to Paris. There elected a member of the Academy of Sciences, and Professor of Chemistry to the Normal and Polytechnic Schools. During the first wars of the Revolution employed in making gunpowder, and converting iron into steel. With Monge, the geometrician, accompanied the French army to Italy and Egypt in order to direct the removal of the plundered works of art. The friendship of these two philosophers, their calmness in pursuing science amidst danger, their courage and kindness to the soldiers, won for them the admiration[II-106] of the whole army. Berthollet discovered the bleaching properties of chlorine, and the art of fixing the colour of dyes. Also assisted in the establishment of a new chemical nomenclature. Generous, disinterested, heroic; and his modesty equal to his merit.

[Bust to come.]

253. Antoine Laurent de Jussieu. Botanist.

[Born at Lyons, 1748. Died in Paris, 1836. Aged 88.]

One of a celebrated family of botanists; his uncle Bernard, who died in 1777, having been one of the foremost botanists of his age. His most famous work, founded upon his uncle’s great labours, was “The Varieties of Plants, arranged according to their Natural Order.” His whole scientific life was spent in an endeavour to ascertain the natural relations of plants, and, by the aid of fresh discoveries, to justify and complete the system he upheld.

253*. Pierre Simon Laplace. Astronomer.

[Born at Beaumont, in France, 1749. Died in Paris, 1827. Aged 78.]

A great geometrician and physical astronomer. To him we owe the Theory of Probabilities, and the Nebular Hypothesis. He also prepared the way for the Theory of Tides. He discovered the existence of an invariable plane in the solar system. Invented a thermometer. His great work, Mécanique céleste, introduced to the English by Mrs. Somerville in her “Mechanism of the Heavens,” is so complete that no alterations of importance have been made by subsequent discovery.

[Bust to come.]

254. Jean Antoine Chaptal. Chemist.

[Born at Nogaret, in France, 1756. Died in Paris, 1832. Aged 76.]

As a chemist eminent for making the science subservient to the uses of manufacture. In 1800, elected Minister of State. In 1802, presented to the State a scheme for education which embodied Napoleon’s educational measures. Curious to say, the scheme betrayed a distrust of general education altogether, and an anxiety to train up youth in the interest of the government. An able statesman, but in science a practical philosopher, rather than a brilliant discoverer.

255. Bernard Germain Étienne Lacépède, Comte de la Ville sur Illon. Naturalist.

[Born at Agen, in France, 1756. Died at Epinay, in France, 1825. Aged 69.]

When young, in the army; but quitted it for the study of Natural History. The favorite pupil of Buffon, who obtained for him the appointment of Curator to the king, and selected him to continue his Natural History. His works display profound research, and are elegantly written. A courteous and kind-hearted man.

255*. Antoine Isaac Silvestre, Baron de Sacy. Orientalist.

[Born in Paris, 1758. Died there, 1838. Aged 80.]

One of the greatest of modern linguists, he made himself master, not only of all the classical and modern languages of Europe, but of many of the languages of the East. His industry was remarkable. In 1806, he was appointed Professor of Persian. In 1810, he published an Arabic grammar.[II-107] In 1832, he was raised to the peerage, and made keeper of the Oriental MSS. in the king’s library. De Sacy was the chief founder and first President of the Asiatic Society in Paris, and besides extending in his country the knowledge of every branch of Oriental literature, he caused professorships of Chinese, Sanskrit, and Hindostani to be established in Paris. He left behind him a magnificent library.

[Bust to come.]

256. Georges Léopold Chrêtien Frédéric Dagobert Cuvier. Naturalist.

[Born at Montbeliard, in France, 1769. Died in Paris, 1832. Aged 63.]

At an early age displayed a taste for drawing and natural history, and an extraordinarily retentive memory. After the Reign of Terror, invited to Paris, where he prepared his “Tabular Arrangement of the Natural History of Animals,” which has served as the basis for all subsequent works on zoological classification. Shortly afterwards commenced the formation of his celebrated collection for the study of comparative anatomy. His greatest work, “The Animal Kingdom distributed according to its Organization,” has been the foundation of all zoological studies since his time. Possessed of great administrative capacity. Famous for his discoveries among fossil animals, and by these rendered invaluable services to geology. Was made Councillor of State, by Napoleon. In 1881, raised to the peerage. His writings very attractive. His mind active and enterprising, yet sound and methodical. Unlike Buffon, he considered system indispensable in the investigations of physiology. Solicitous for the diffusion of knowledge. A good as well as great man. Unimpeachable in all the relations of social life.

256*. Jean Le Rond D’alembert. Mathematician and Philosopher.

[Born in Paris, 1717. Died there, 1783. Aged 66.]

When an infant exposed in the church of Le Rond, from which he is named. Nursed in obscurity by the wife of a glazier; educated at the College of Mazarin. Evinced astounding precocity and a decided inclination for mathematical studies. At the age of twenty-four gave proof of his great mathematical knowledge, and gained admission into the Academy of Sciences. Memorable for his connexion with the great French work “L’Encyclopédie,” to which he contributed many articles, and its excellent preliminary discourse. In 1772, appointed Secretary to the French Academy. The author of many celebrated works on his favourite science, in which he was an undoubted discoverer. He was the friend of the Empress Catharine of Russia, and of Frederic the Great of Prussia. In the war which in his time was carried on against the church, he took his place by the side of his friends Diderot, Voltaire, Grimm, and D’Holbach.

[Bust to come.]

256**. Alexandre Louis Joseph, Marquis de Laborde. Soldier, Traveller, and Educator.

[Born in Paris, 1774. Died there, 1842. Aged 68.]

At the breaking out of the French Revolution, entered the Austrian service, in which he remained nine years. After the treaty of Campo Formio, revisited his native city, prosecuted the study of literature and the arts, and attached himself to Napoleon and the Imperial family. Then travelled[II-108] through. England, Holland, and Spain; accompanied Napoleon to the last-named country, and went with the Emperor also to Austria in 1810. He held many important offices during Buonaparte’s life, and formed one of the Embassy appointed to demand the hand of Maria Louisa. After the Restoration the influence of Laborde ceased; his usefulness, however, continued, for he took great pains to introduce into France the Lancasterian system of education for poor children. In 1822, he was elected Deputy for Paris; and in 1830, signed, with 220 other Deputies, the protest against the ordinances of Charles X. He was again deputy under Louis Philippe. Laborde was a traveller in the East as well as in the West: an accomplished man, and an eloquent speaker. He wrote many works having reference to his travels and to his educational objects.

[Bust to come.]

256***. Gay Lussac. French Chemist.

[Born 1778. Died 1850. Aged 72.]

A leading discoverer in Chemistry whilst the science was advancing with the most rapid steps and surprising disclosures. Of a spirit exact and large to reason out abstruse principles, subtly curious to hunt on the track of new marvels, and patient and inventive to repeat, vary, and heap experiments, his long life of labour might well leave a name memorable to his own science, and to the arts which it enlightens and aids. In 1816, he was appointed Professor of Chemistry in the Polytechnic School. He was one of those who do not shrink from personal peril in enlarging the domain of science. In. 1804, at the desire of the French government, he ascended in a balloon in order to ascertain by experiment, whether the magnetic force suffers perceptible diminution at great elevations, and found no appreciable diminution up to the elevation of 13,124 feet. Simple, modest, gentle, firm, open and upright, an unchangeable friend, and a sound patriot:—he carried into all the relations of life the ardour of truth which animated his scientific researches.

256****. Charles Nodier. Writer.

[Born at Besançon, in France, 1780. Died, 1844. Aged 64.]

One of the contributors to the “Biographie Universelle,” and an able writer on many subjects. He published a dictionary of words which naturally represent by their sound the action signified: and this work became at once, by order of the government, a class-book in all the public schools. He also wrote instructive works on flowers and insects. In 1800, there appeared from his pen a poem called “Napoleone,” for which he suffered imprisonment. A writer for the Journal des Débats newspaper; subsequently conducted the Quotidienne. In 1834, a member of the French Academy. He had great rapidity in composition, and published many writings; amongst them several novels. As a writer his style is pure; he was hostile to innovations in language. He has been accused of political tergiversation: and of being, little scrupulous in the way of pushing his interests, and forcing a reputation.

[Bust to come.]

[II-109]


SOLDIERS AND STATESMEN.

257. Pierre de Terrail, Seigneur de Bayard. Warrior.

[Born near Grenoble, in France, 1476. Died, 1524. Aged 48.]

The “Chevalier sans peur et sans reproche.” A true knight and gentleman. His earliest renown won at the tourney. At the age of eighteen, entered active service, which he did not quit until his death in Italy, where he fell, as he desired, by the weapon of the foe on the field of battle. Spotless in character, intrepid, generous, self-denying, and the very soul of honour. He enjoyed the respect and admiration of his country’s enemies, and by his own countrymen he was idolized. After the battle of Marignan, his King, Francis I., one of the bravest men of his age, desired to receive the order of knighthood from the hands of Bayard. The ceremony over, Bayard addressed his sword, vowing to regard it thenceforward as a sacred relic, never to be drawn except against Turks, Saracens, and Moors. The body of Bayard was embalmed by the foe and restored to the French for honourable burial, at Grenoble.

258. Gaston de Foix. Warrior.

[Born 1489. Died at Ravenna, in Italy, 1512. Aged 23.]

The nephew of Louis XII. of France. Succeeded the Duke of Longueville in the command of the army in Italy, where his prodigies of valour and daring exploits gained him the name of the “Thunderbolt of Italy.” He raised the siege of Ravenna, and in his hot pursuit of the foe, was cut down;—slaughtered in the hour of victory.

[This is one of the finest French busts. There is also a portrait of him in the Gallery of Vienna, by Palma Vecchio.]

259. Michel de l’Hôpital. Chancellor of France.

[Born at Aigueperse, in France, 1505. Died at Vignay, in France, 1573. Aged 68.]

One of the greatest magistrates of France. Educated by his father, a surgeon, for the profession of law, at Toulouse and Padua. Entering Parliament, he became distinguished for his judgment, learning, modesty, and legal attainments. On the death of Francis I. nominated Ambassador to the Council of Trent. Upon his return to France, appointed by Marguerite de Valois, Duchesse de Berri, Private Chancellor of her Household; and after the accession of Henry II., raised to the dignity of Chancellor of France. Religious dissensions were now rife and bitter, and L’Hôpital took the side of moderation and justice. It was his hand that in 1562 drew up the edict called the “edict of January,” which gave freedom of worship to Protestants in France. Hopeless, however, of seeing an end to the fierce quarrels of Roman Catholics and Calvinists, he resigned the seals of office in 1567, and retired into privacy. He was still in obscurity when the butchery of St. Bartholomew took place. During the massacre, Catherine de Medicis sent a body-guard to protect the Ex-Chancellor. Being told that he was pardoned, L’Hôpital calmly replied “that he was not aware that he had done anything demanding either death or pardon.” The grief and horror which he experienced at this dreadful event broke the heart of the mild and conscientious man. His character looks all the[II-110] brighter from the darkness by which he is surrounded. His industry was equal to his great learning, and his high sense of honour and justice corresponded to his humanity. When, in 1554, he was made Superintendent of the Royal Finances, he restored an exhausted treasury by his stern and resolute honesty.

[From the marble in the Louvre, by Gois, Sen.]

260. Gaspard de Coligny. Marshal and Admiral.

[Born at Chatillon-sur-Loin, in France, 1517. Died in Paris, 1572. Aged 55.]

Greatly distinguished for his valour. The head of the Protestant party in France, and the first victim of the horrible massacre of St. Bartholomew.

261. Pierre Laurent Buirette de Belloy. Dramatist.[32]

[Born at St. Flour, in Auvergne, 1727. Died 1775. Aged 48.]

A writer who acquired immense popularity in his own day, but whose death, it is said, was hastened by grief at the total failure of his last dramatic work. His best production is “The Siege of Calais,” which, as the third great success achieved by his pen, secured for him the gold medal accorded by the king to authors who should have been thrice successful on the stage. The style of Belloy is somewhat laboured and sententious, and he indulges largely in hyperbole; but he had a happy knowledge of stage effect. He possessed an astonishing memory; and was the first introducer of national subjects, for representation upon the French stage. At an early period of his life he had himself been an actor in Russia.

[From the marble by Caffieri. On the pedestal of the bust is inscribed—“The work of his friend, Caffieri. 1771.”]

[32] This biographical notice belongs properly to “French Poets and Dramatists,” and has been unavoidably misplaced.

262. François de Bonne, Duc de Lesdiguières. Constable of France.

[Born 1543. Died 1626. Aged 83.]

When nineteen years of age, a simple archer; but, by dint of great bravery, activity, and success, he shortly became chief of the Protestant party in France. In 1575, appointed commander of the Protestant army in the place of Montbrun; performed great feats of arms in Dauphiny and Provence, and helped, more than any other soldier of his time, to place Henry IV. upon the throne. After the death of Henry, the religious convictions of Lesdiguières underwent a remarkable change. He was converted to Romanism,—some say, by the persuasive powers of a missionary; others, by the dazzling office of Lord High Constable of France, offered on condition that he abjured his faith. It is certain that he had a lust of power and wealth, and was unscrupulous in the means of getting them. Yet he had great qualities. He was generous and forgiving. He was conqueror in every battle he fought. Our own Elizabeth was heard to say that “had there been two Lesdiguières in France, she would have begged one from the king.” He was indeed a man after her own great heart; for he was brave, handsome, active, full of resources, and always successful.

263. Maximilien de Béthune, Duc de Sully. Minister of State.

[Born at Rosny, in France, 1560. Died at Villebon, in France, 1641. Aged 82.]

The early friend and Minister of Henry IV. of France. Educated, like his royal master, in the reformed faith, he ran in his youth great risk of[II-111] falling a victim to the terrible massacre of St. Bartholomew. Escaping from that danger, he joined the standard of the young King of Navarre, shared his dangers, and distinguished himself by the most daring courage. His abilities, however, as diplomatist and financier outweighed his bravery and impetuosity on the field. When Henry IV. ascended the throne of France, Sully became Minister of Finance, and by dint of skilful management and great labour he so far repaired the monetary credit of the nation as to be able to pay off, in the course of ten years, a heavy debt, and to leave a considerable surplus in the treasury. Upon the accession of James II. of England, he came to this country as ambassador, and concluded a treaty advantageous to the interests of both nations. After the assassination of Henry IV., Sully quietly retired to his estates, where he was frequently consulted by Louis XIII., and where he composed his interesting “Memoirs.” He was amazingly rich, and laden with honours. He held many appointments—amongst others, those of Governor of Poitou, and Grand Surveyor of France. Sully was parsimonious, although he had ever been liberal in supplying the necessities of his royal master, when the King of Navarre stood in need of help. He had many fine qualities: not the least of these was his plain, blunt sincerity in all his dealings with the king. He was a most diligent worker, rising invariably at four o’clock in the morning to commence his daily work. He is described as violent in temper, avaricious, and greedy of honour as well as money. He had largely earned both by his life-long fidelity to his sovereign, and by the lasting services rendered in the time of peace to the bankrupt exchequer of his country. He died as he had lived—a Protestant.

[From the statue in the Institute of France, by Mouchy.]

264. Claude Fabri de Peiresc. Patron of Science.

[Born at Beaugensier, in France, 1580. Died 1637. Aged 57.]

A benefactor of his kind, being one of the most notable promoters and patrons of science and literature. For a long time resident on his native soil, then in Italy, England, and Holland, in all which countries he collected with the greatest avidity, and at infinite pains, rare memorials of antiquity. He encouraged and assisted men of genius wherever he met them, and corresponded with the learned of his time in Europe. We are indebted to him for the preservation of several ancient manuscripts, and for our acquaintance with fragments of learning, until his time unrecovered. He was himself an antiquary, a philologist, and an astronomer.

[From a marble in the Louvre, copied by Claude Francin from a bust by Caffieri. Francin died in 1773. An original work of his from the life, is the bust of D’Alembert, at Versailles. The original of our bust, some years ago, had the nose broken off. It has not been very skilfully restored.]

265. Abraham Duquesne. Vice Admiral of France.

[Born at Dieppe, in France, 1610. Died in Paris, 1688. Aged 78.]

One of the most famous sea-captains of France. At the age of seventeen, he already gained great distinction by his deeds against the Spaniard. During the minority of Louis XIV. entered the navy of Sweden, and destroyed the fleet of Christian IV. of Denmark. Returning to France, performed illustrious service against Spain and Holland combined; opposed Ruyter and Van Tromp, and gained important victories over both. Ruyter he completely defeated near Messina, winning that city for the French. In 1683,[II-112] bombarded Algiers, and in 1684, humbled Genoa. Duquesne, being a Protestant, did not receive from his royal master the highest rank in the French navy, but he was created a Marquis, and upon the revocation of the Edict of Nantes, his was the sole name not included in the general proscription. Louis XIV. expressed to this great sailor his regret that he could not recompense his services as they merited, because of his religious faith. When Duquesne repeated this to his wife, she said, “You ought to have replied:—‘Sire, if I am a Protestant, my services are Catholic.’” Like Nelson, Duquesne was in private life admired for his gentleness and sterling worth.

[For an account of this statue, see Handbook of Modern Sculpture, No. 92.]

266. Henri de la Tour d’Auvergne, Vicomte de Turenne. Marshal of France.

[Born at Sedan, in France, 1611. Died at Baden, 1675. Aged 64.]

The most skilful commander in Europe, at a time when the art of war was studied with greater assiduity than at any previous period. The public and private acts of Turenne proclaim the inherent grandeur of his mind. He was born a Protestant, and becoming a Roman Catholic in after life, he exhibited moderation and comprehensive liberality, not always characteristic of the convert. He was sagacious, truthful, and virtuous. In war energetic, brave, and full of resources; in private life pure, kind, and disinterested. He entered upon military duty in Holland in his 13th year. After the death of Louis XIII., Mazarin and the Queen Mother enlisted the successful soldier in their service, and conferred upon him the Marshal’s baton. They had no cause to repent the act. He performed great deeds in Germany, took part in the wars of the Fronde, and covered himself with glory in every campaign. He fell whilst leading his men into action, and his marshalled troops, paralysed by the blow, retired without hazarding a battle. Montecucculi, the opposed commander, on seeing the movement, exclaimed, “Turenne is dead.” Turenne was unprepossessing in appearance: he had a fierce expression, was of the middle height, with very broad shoulders and thick eyebrows. He was mourned, by order of the King, as a prince of the blood royal, and buried with kings in the Church of St. Denis. Napoleon said, at St. Helena, that he had studied the life of Turenne, deeming his renown exaggerated, but that he had risen from the study confirmed in his opinion of the commander’s greatness. “The boldness of Turenne,” he added, “increased with his experience; for he was more daring at the close than at the outset of his career. It was the reverse with Condé, who made so great display at starting.”

267. Edouard Colbert. Minister of State.

[Died, 1693.]

Brother of the great Jean Baptiste Colbert, who was Finance Minister of Louis XIV. Edouard was a lieutenant-general in the army, and a member of the government.

[From a marble in the Louvre, by Desjardins, a Dutch sculptor, born at Breda, 1640, who died at Paris, in 1694. Desjardins attained to eminence and became principal of the Académie in Paris. The original is inscribed—“E. C. Marquis de Colbert, Surintendant des batimens du Roy, agé de LXIIII. ans.”]

[II-113]

267*. Jean Baptiste Colbert. Statesman and Financier.

[Born at Reims, in France, 1619. Died in Paris, 1683. Aged 64.]

It has been said that Louis XIV. would never have been so great a King had not Colbert been so great a financier. And there is warrant for the remark. His soul was absorbed in the work of glorifying France, and he carried out his patriotic object by re-establishing order in the finances of the country, from which he contended all material prosperity flows—by a reconstruction of the whole commercial system—by adorning the capital with great public works, and by a general encouragement of art and literature. Some authors assert that Colbert was the son of a draper. His mind was that of the most enlightened statesman. In early life, Mazarin had been his patron, and when the Cardinal died, he bequeathed his friend to the King as the best legacy he could leave him, and he appointed him his own executor. France prospered under his hand, which suffered no fatigue from inordinate exertion, and which ruled,—-if occasionally with a rod of iron,—with a success that has left some of its effects visible even at the present day. He died spent with service, having lived through intrigues and rivalries.

[This bust, which is to come, is from a marble in the Louvre, by Michel Anguier, who died in 1686. He was the artist who executed the sculptures of the Triumphal Arch at Paris, called the Porte St. Denis. The costume is the court dress, with a mantle over, which is the Order of the Holy Spirit, and the Cordon. At Versailles there is a bust also from the life, by Coysevox, who did the kneeling statue on his tomb in the church of St. Eustace, a copy of which is there also.]

268. Louis II. de Bourbon, Prince de Condé, surnamed The Great Condé. Warrior.

[Born in Paris, 1621. Died at Fontainbleau, in France, 1686. Aged 65.]

A great soldier, daring, impetuous, valiant, brilliant in his achievements, and, in the pursuit of victory, utterly regardless of human life, whether in respect of himself or of others. When he first entered the army, he served under the great Turenne, but in 1643, five days after the accession of Louis XIV., being invested with the chief command of the armies of Flanders and Picardy, he won the famous battle of Rocroi, in which, with a most inadequate force, he annihilated the veteran Spanish troops. From 1643 to 1649, he accumulated glory and honour upon his brow. In 1650, Mazarin, alarmed by the position assumed by the laurelled warrior during the troubles of the “Fronde,” arrested him, and imprisoned him in the Bastille. Released after thirteen months’ confinement, Condé in revenge threw himself into the arms of Spain, and marched against Paris; where, however, his bravery and hot indignation could make little way against Turenne. Peace having been concluded in 1659, Condé returned to France, resumed his old allegiance, and took part in the triumphant victories of the time. When Turenne was killed at Salzbach, in 1675, Condé assumed the place of the deceased commander, but only to make his last campaign; for ill-health soon compelled him to lay down his arms for ever. He retired to his estate at Chantilly, and passed the remainder of his days in the society and patronage of the chief literary men of the time. He was the friend of Racine and Molière, and an enthusiastic admirer of Corneille. Condé was a hero on the field of battle, but there only:—as a man, proud, fierce, eager, passionate,[II-114] and ambitious. He had an eagle glance, and a spirit easily roused. After the wont of the great world in France in those days, he became religious in his decline.

269. Henri François d’Aguesseau. Chancellor of France.

[Born at Limoges, in France, 1668. Died at Fresnes, in France, 1751. Aged 83.]

A distinguished orator and judge, a fine scholar, a loyal citizen, and a worthy, if in some respects, a weak man. He improved the administration of justice in France, defended the monarchy against papal aggression, and the people from the aggressions of the monarch. He became Chancellor in 1717, but resolutely opposing the dangerous system of finance known as “Law’s system,” he was deprived of the seals and banished. In 1720, he was recalled, to counteract the disastrous effects of Law’s schemes; but in 1722, making another stand against corruption, he was again dismissed, by the influence of Court intrigue. Once more invited back to office, he served his country until 1750, when he finally resigned the Chancellorship. He was distinguished for gentleness of manner and sweetness of disposition, as much as for love of honesty and truth. It was said of him, that his thoughts were those of a philosopher; his speech, that of an orator. He was conversant with many ancient and modern languages, and he wrote Latin and other verses. His works, chiefly legal, formed thirteen quarto volumes.

[From the marble in the Louvre.]

270. Maurice, Comte de Saxe. Marshal of France.

[Born at Dresden, in Saxony, 1696. Died at Chambord, in France, 1750. Aged 54.]

One of the most illustrious warriors of the eighteenth century. The natural son of Frederic Augustus II., King of Poland, and Aurora, the celebrated Countess of Königsmarck. In 1711, he followed the King of Poland to Stralsund; he also served in Hungary against the Turks, and was at the siege of Belgrade. In 1720, he entered the service of France, in which, after famous deeds of heroism, and many brilliant triumphs, he rose to the highest rank. In 1745, he gained the battle of Fontenoy, and by the capture of Mäestricht in 1747, he secured the peace of Aix-la-Chapelle. Marshal Saxe was large in size, and of extraordinary strength. He was a Lutheran.

[From the marble in the Louvre, by J. B. Pigalle, a celebrated French sculptor of the last century, who died at Paris in 1785. The mausoleum to the memory of Saxe, in the church of St. Thomas, at Strasbourg, was built by him. The Marshal wears his armour, which is sculptured with the arms of his family. The statue at Versailles is the work of M. Rude, in 1836. Another bust, by Cartellier, treated in the Antique style, is in the Tuileries.]

271. François Christophe Kellermann. Marshal of France.

[Born at Strasbourg, in France, 1735. Died in Paris, 1820. Aged 85.]

One of Napoleon’s generals. Commanded at the battle of Valmy, 1792, against the Duke of Brunswick, and his victory probably determined the fate of Europe until 1815. Years afterwards it was his good fortune to decide the issue of one of Napoleon’s greatest battles by the brilliancy of his charge. Napoleon said “the charge was opportune.” “Opportune!” replied Kellermann, “it has put the crown upon your head.” The Emperor never forgave the remark. Kellermann excelled in statesman-like tact and finesse.

[II-115]

272. Charles François Dumouriez. French General.

[Born at Cambrai, in France, 1739. Died, 1823. Aged 84.]

Played a conspicuous part in the first French Revolution, changing from one party to another. His antipathy to the extreme Republicans induced him at last to treat with Austria for the invasion of France, but, deserted by his army, he retired to Hamburgh and thence to England. A friend of Lord Castlereagh and the late Duke of Kent. Enterprising, ambitious, and capable, but inconsiderate and hasty. He wrote several works.

273. Théophile Malo de la Tour d’Auvergne-Corret. Warrior.

[Born at Cartraix, in Lower Britanny, 1743. Died at Neuburg, in Bavaria, 1800. Aged 57.]

Styled by Napoleon “the first grenadier of France.” Entered the Spanish army as a volunteer, and conducted himself with great bravery and humanity at the siege of Mahon. Throughout his military life exhibited unflinching valour and singular judgment. After the close of his service, re-entered the army as the substitute for the son of a friend, who had been drawn as conscript. Killed at the battle of Neuburg, he was buried on the field, but his heart was embalmed and confided to the care of his regiment. A hero in war, and in private life. An excellent scholar, well versed in history, eminent as a linguist, and known as the author of a Franco-Celtic Dictionary. As a signal distinction, the name of La Tour D’Auvergne, after his death, was still called, in its turn, in the muster-roll of his regiment.

[From the marble in the Tuileries. The author not known, but supposed to be Chas. Louis Corbet.]

274. Pierre Alexandre Berthier. Marshal of France.

[Born at Versailles, in France, 1753. Died at Hamburg, in Germany, 1815. Aged 62.]

The bosom friend of Napoleon, and his constant companion in his campaigns. He received in person the Emperor’s instructions, and forwarded them to the different generals. Performed his duties with docility, readiness, and perfect silence, and never betrayed his master’s secrets. As a subordinate unsurpassed, but had none of the qualities of a commander. He proved ungrateful. On the fall of Napoleon, he went over to the Bourbons; on Napoleon’s return from Elba he changed again, but to be repulsed by his former chief. After Waterloo the Bourbons refused to countenance him, whereupon he fell into melancholy and died by his own hand.

[From the marble in the Tuileries.]

275. Jean Baptiste Kleber. French General.

[Born at Strasbourg, in France, 1754. Assassinated at Cairo, in Egypt, 1800. Aged 46.]

At first in the Bavarian army. At the breaking out of the French Revolution, served France in the ranks. His lofty stature, martial air, and fearless demeanour soon insured his promotion. With Napoleon in the Egyptian expedition. Left in command of the army in Egypt, he captured Cairo, but was himself assassinated in that city by a native of Aleppo. In him cool judgment and romantic bravery were combined; and his humanity and integrity equalled his courage and coolness. Napoleon pronounced him one of the greatest of his generals,

[From the marble in the Tuileries, by Masson. It figured in the Exhibition of the 9th year of the Consulate, with the statement that it was done for the Gallery of the Consuls.]

[II-116]

276. François Joseph Lefebvre, Duc de Dantzic. Marshal of France.

[Born in Alsace, 1755. Died in Paris, 1820. Aged 65.]

One of the many who at the breaking out of the French Revolution found themselves on the lowest step of the social ladder, and in time, by force of ability and valour, mounted to the very highest. Lefebvre was the son of a miller, and being an orphan, was brought up in charity by a relative. He enlisted in the Guard, and, at the time of the Revolution, had become a sergeant. Before forty, he was General of brigade. In 1804, Marshal of the Empire. In 1807, besieged and took Dantzic, and for the exploit received his title. In the expedition to Russia (1812) he had the command of the Imperial Guard. Upon the restoration of Louis XVIII, made peer of France, but deprived of his dignity at the second restoration, in consequence of his equivocal conduct during the hundred days. He died in 1820, having followed twelve sons to the grave. He was not a brilliant soldier, nor had he striking qualities of mind; but he was intelligent, well-informed, modest, and discreet—qualities not without their value in an officer of Napoleon’s army.

[From the marble in the Tuileries.]

277. Marie Paul Gilbert Motier, Marquis de Lafayette. French General.

[Born at Chavagnac, in France, 1757. Died in Paris, 1834. Aged 77.]

Of noble family, but a republican and an enthusiast from his earliest youth. He was only twenty-three years of age when he embarked secretly for America, in order to take part in the War of Independence. Raising and equipping a body of men at his own expense, he fought at the battles of Brandywine and Monmouth. He was again in France in 1779, for the purpose of concluding a treaty between that country and America; returned ta America after accomplishing his object, and commanded Washington’s vanguard when Lord Cornwallis surrendered in 1782. His zeal, on behalf of America and the republican cause, knew no bounds, and his restlessness was excessive. Many of his proposed schemes were wild and impossible. During the French Revolution, this arch-republican was himself obliged to fly from France, in order to save his head, and being taken by the Austrians, was imprisoned for five years at Olmütz. Buonaparte stipulated for his deliverance, in the treaty of Campo Formio (1796), and obtained it, but Lafayette took no part in politics under Napoleon, and at the Restoration publicly evinced his dislike for the Bourbons. In 1824, he revisited America, where he was received with an affectionate welcome, and acknowledged as one of the joint founders, with Washington and Franklin, of American Freedom. The Revolution of 1830 saw Lafayette, for a day, Dictator of France, but he resigned that supremacy to hand over the vacant throne to Louis Philippe. Lafayette, with purity of intention, and elevation of principle, was the victim of vanity, puerile simplicity, and an overweening-love of popularity. His heart was stronger than his head: his capacity for public business not equal to the virtues which adorned his heart. Brave and chivalrous to a fault, he was without solid judgment. One error ran through his life: he believed that the constitution of America might be transplanted to his own soil; and that a throne, surrounded by republican institutions, would be the very perfection of human government, even in France.

[II-117]

278. Pierre François Charles Augereau. Marshal of France.

[Born in Paris, 1757. Died at La Houssaye, in France, 1816. Aged 59.]

One of Napoleon’s generals, and remarkable for his recklessness and courage. At the age of 35, in the ranks, he rose to become a General of Division. On the fall of Napoleon, he took his army over to the Bourbons. When Napoleon returned from Elba he shouted “Vive l’Empereur!” After Waterloo, he again joined the legitimate monarch. His avarice was unbounded: he robbed churches and private houses, and his coarse manners contrasted strongly with the pomp of his dress and daily life.

[From the marble in the Tuileries, by Masson.]

279. André Massena. Marshal of France.

[Born at Nice, in Italy, 1758. Died in Paris, 1817. Aged 59.]

The French General whom Napoleon styled “The Child of Victory.” Entered the French army as a private soldier, and in 1793 was General of Division. Sharing in the brilliant campaigns of Napoleon, he was distinguished by his irresistible impetuosity, clear penetration, and military skill. In comprehensiveness of view, and in the formation of those combinations on which the fate of battles depends, he was superior to all his brother Marshals. He opposed Wellington in Portugal, and conducted the admirable retreat of the French army. Personally, he was avaricious, rapacious, cruel, and mean.

[From the marble in the Tuileries.]

279*. Pierre Claude François Dannon. Statesman and Writer.

[Born at Boulogne-sur-Mer, 1761. Died in Paris, 1840. Aged 79.]

Took an active part in the first French Revolution; but not proving violent enough for the Jacobins, was sentenced to death. Regaining his liberty, was appointed one of the Commissioners for drawing up the new Constitution. Afterwards sent with others to Italy, to organize the Roman Republic. On his return opposed the ascendancy of Napoleon, but was subsequently made Archivist of the Empire. In 1830, restored to offices, which he lost on the downfall of Buonaparte, and afterwards created peer of France. Wrote much in the “Biographie Universelle,” and in the “Histoire Littéraire.” Simple in manners, of unaffected modesty, disinterested and benevolent.

[Bust to come.]

279**. Pierre Paul Roger Collard. Statesman and Philosopher.

[Born at Sourmepuis, in France, 1763. Died in Paris, 1845. Aged 82.]

At twenty called to the bar. Embraced the revolutionary principles, but disgusted with the anarchy to which they led, withdrew to the more peaceful pursuits of literature. Devoted himself to philosophy, and sought to counteract the infidel tendencies of his age by a religious spiritualism. Appointed by Napoleon Professor to the Normal School. At the Restoration, re-entered the field of politics and made President of the Chamber of Deputies. Retired again in 1830. Introduced into France a system of philosophy analogous to that of Reid, the Scotch philosopher, of whose works he recommended the study. As a politician, one of the founders of the popular school known by the name of Doctrinaires, which recognised certain principles as essential to all society, and desired to render the actions of men[II-118] conformable to them. A man of perfect integrity. His interests never interfered with his duty, and he left an honoured and unspotted name.

[Bust to come.]

280. Lazare Hoche. French General.

[Born at Montreuil, in France, 1768. Died at Witzlar, in Prussia, 1797. Aged 29.]

Son of an ostler in the Royal stables at Versailles. First a stable boy, then a private soldier, he commanded, at the age of 25, the army of the Moselle! Set sail to invade Ireland with 25,000 men, but a storm dispersed his vessels. Afterwards commanded the armies of the Sambre and Meuse, and forced a passage across the Rhine. His brilliant career cut short by death. In his early youth fiery and vehement; but he soon obtained a mastery over his temper, and became grave, silent, and thoughtful beyond his years.

[From the marble in the Tuileries by Delaistre.]

281. Bessières, Jean Baptiste. Duke of Istria. Marshal of France.

[Born in Guienne, France, 1768. Died 1813. Aged 45.]

One of the bravest, worthiest, and most faithful of Napoleon’s lieutenants. Served in the first campaign of Italy, in the expedition to Egypt, in the second campaign of Italy, and was created Marshal in 1804. In the subsequent wars in Germany he displayed the highest valour, skill, and judgment. According to the Emperor, “he was full of fire, but never otherwise than prudent and circumspect.” In 1808, achieved victory in Spain; afterwards greatly contributed to the success of the battle fought at Essling; and having visited Spain a second time in 1811, he proceeded in 1812 to Russia, at the head of the Imperial cavalry guard. On the morning of the battle of Lützen, in 1813, he betook himself to a narrow pass at Rippach, in order to drive out the enemy there vigorously defending himself. He was on foot and at the head of his men. The foe had already given way, when a shot struck him in the breast and he fell dead. Napoleon received the news with grief, but it was kept a secret from the army for the rest of the day. The Emperor had lost a friend, the soldiers a companion in arms, whose character had never belied his military deeds. He died very poor, leaving to his family nothing but his good name. At St. Helena, Napoleon left 100,000 francs to his son. He had not forgotten the fidelity of the father.

282. Barthélémi Catharine Joubert. French General.

[Born at Pont-de-Vaux, in France, 1769. Killed at Novi, in Italy, 1799. Aged 30.]

A brave soldier who, had he lived, would undoubtedly have proved not the least eminent of the famous Marshals of the Empire. He was intended for the bar: but at the breaking out of the Revolution, moved by his Republican sympathies, he entered the National Guard. Subsequently enlisted in the regular army as a common soldier, and rapidly distinguished himself. For his admirable conduct under Kellerman, at the Battle of Loano (1795), he was made General of Brigade upon the field. Two years afterwards he was General of Division. In 1798, he succeeded General Brune in the command of the army in Italy. He fell at Novi, whilst impetuously leading on his men. He was prompt, energetic, and fearless to a fault; he enjoyed the unbounded confidence of the soldiers, and his private life was[II-119] stainless. His countenance had a melancholy cast—his manner was grave and silent. When he spoke it was with blunt and soldier-like brevity. An ardent Republican. One great aim of his life was said to be the dethronement of all the petty sovereigns of Italy, and the substitution of one great Italian Republic.

[From the marble in the Tuileries by Boizot.]

283. Louis Charles Antoine Desaix. French General.

[Born at St. Hilaire D’Argat, in France, 1768. Killed at Marengo, in Piedmont, 1800. Aged 32.]

A celebrated General of the French Republic. Brave, discreet, prompt, intelligent, and energetic. Mainly contributed to Napoleon’s triumphs in Egypt; and at Marengo, where he fell, his charge against the Austrians contributed largely to the fate of the day. Napoleon considered Desaix only second to himself, and said of him that “he thought only of glory; and luxury, and even comfort he despised.” Mild yet decided in character; and so just in his conduct as to have gained in Egypt the name of “the Just Sultan.”

[From the marble in the Tuileries by Dejoux.]

284. Jean Lannes, Duc de Montebello. Marshal of France.

[Born in Guienne, 1769. Killed at Essling, in Austria, 1809. Aged 40.]

In the first rank of Napoleon’s renowned Marshals. Of poor and humble parents, was in early life apprenticed to a dyer. In 1792, entered the army as a volunteer. By signal intelligence, activity, and matchless courage, soon fought his way upward, and secured the notice of Napoleon. Distinguished himself greatly in the first Italian campaign; accompanied Buonaparte to Egypt; followed him again into Italy in 1800, and covered himself with glory at Montebello in 1804, when he was created Duke. At Austerlitz, Jena, Eylau, and Friedland; and at one and all justified the fame his skill and intrepidity had gained. At the battle of Essling, 1809, he had the command of the centre. On the 22nd, on passing through the lines to cheer on his men, he was struck by a cannon shot, which took off both legs. He was borne to the Emperor, who was deeply affected at the sight of his brave and mutilated soldier. When speaking of Lannes, at a later period, Napoleon said that “at first his courage carried away his mind; but by degrees his mind came more and more abreast of his courage, and he was great when he perished. I took him,” he added, “a pigmy: I lost him a giant.”

285. Michel Ney. Marshal of France.

[Born at St. Louis, in France, 1769. Was judicially shot, in Paris, 1815. Aged 46.]

Known as “The Bravest of the Brave.” The son of poor parents. Enlisted at the age of thirteen, and speedily fought his way up to the command of a division. His name intimately connected with Buonaparte’s military career. He secured the retreat of the small remnant of the grand army after the disastrous Russian invasion, and at Waterloo he had five horses shot under him. After the final overthrow of Napoleon in 1815, Ney was tried and shot for his treachery to the Bourbons in joining the Emperor on his return from Elba. A monument recently erected on the spot where he fell has translated the act of treachery into a triumph of patriotism. Ney was sincere, honest, blunt, and almost austere in his manners, yet merciful to the vanquished. It is recorded to his honour that he lived and died poor.

[II-120]

286. François Sévérin Desgraviers Marceau. French General.

[Born at Chartres, in France, 1769. Killed at Hochsteinbach, in Germany, 1796. Aged 27.]

Brave, generous, and heroic, gifted for great military achievements. Twice narrowly escaped the guillotine; once for gallantly protecting a beautiful woman from the brutality of the soldiers. He fell mortally wounded in the forest of Hochsteinbach; and the armies of France and Austria both showed honour to his memory by firing volleys of artillery over his grave.

[From the marble in the Tuileries by Ed. Dumont.]

287. Pierre Jacques Cambronne. French General.

[Born at St. Sebastian, near Nantes, 1770. Died 1842. Aged 72.]

A brave, humane, and faithful soldier, who rose in virtue of his own good deeds from the ranks, and made for himself an honoured name in the French army. He entered that army in his twentieth year, and knew no repose until the peace of 1815. He made one in Hoche’s unsuccessful expedition against Ireland, fought in Italy, Switzerland, Spain, and was present at the battles of Lützen, Bautzen, Dresden, and Leipzig. Devoted to the Emperor, he accompanied him to Elba; returned with him in 1815; and at Waterloo was found ready as ever at his post, commanding a division of the Old Guard. At Waterloo, as befitted this brave and simple-minded soldier, he performed his best service. His men were slaughtered around him, and, threatened with death himself, he was called upon to surrender. His answer has been treasured up in the annals of the French army: “The Guard dies, but does not surrender.” He was taken prisoner, covered with wounds. In 1816, he was tried by a council of war; but he had broken no oath to the Bourbons, and was acquitted. Other generals of Napoleon have a wider fame; none can show a better title to their renown.

[By Debay, 1816.]

288. Louis Nicolas Davoust, Prince D’Eckmuhl. Marshal of France.

[Born at Annoux, in Burgundy, 1770. Died in Paris, 1823. Aged 53.]

One of the bravest and ablest of Buonaparte’s lieutenants. Cool and collected in danger, energetic and methodic in his plans. His troops were always in better order than those of any other general. Served at Ulm, Austerlitz, Jena, and Auerstadt, and successfully defended Hamburgh against the allies. Cruel, rapacious and coarse. His extortions, oppressions, and murders gained for him the title of the Hamburgh Robespierre. Upon the fall of Napoleon, he retired from active life.

289. Maximilien Sebastien Foy. French General.

[Born at Ham, in Picardy, 1775. Died in Paris, 1825. Aged 50.]

Began his military career at 15. Served in the Peninsular war, and at Waterloo received his fifteenth wound. Entered the Chamber of Deputies after the peace, became an orator, an opponent of the reactionary government, and one of the most popular men of his time. He died poor, and a subscription of 40,000l. was raised for the relief of his destitute family. Skilful and courageous in the field. Left an unfinished history of the Peninsular war, which is honest, candid and eloquent.

[II-121]

290. Antoine Charles Louis Collinet de Lasalle. General of Cavalry.

[Born at Metz, in France, 1775. Killed at Wagram, in Austria, 1809. Aged 34.]

A famous officer in the wars of Napoleon. Served with the revolutionary army in 1793, on the Rhone and Moselle. Accompanied Kellermann as Aide-de-Camp into Italy, and there was made prisoner. When taken before the veteran and war-tried field-marshal Wurmser, and asked the age of Buonaparte, he replied, “Of the age of Scipio when he conquered Hannibal.” At a later period with Napoleon in Egypt. In 1801, in Italy, where at the battle of Caldiero he had three horses killed under him. His later services were unremitting, and always brilliant. He fell mortally wounded at the battle of Wagram, July 6, 1809. On the eve of the battle he had a singular presentiment of his coming death. He rose in the night for the express purpose of inditing a letter to the Emperor, praying his consideration on behalf of his wife and children. The letter was placed the next morning in the hands of the Emperor at the very moment when news also came of the hero’s death. A dauntless soldier, and of spotless fidelity to his chief.

[From the marble in the Tuileries by Delaistre.]

291. Casimir Périer. Statesman.

[Born at Grenoble, in France, 1777. Died in Paris, 1832. Aged 55.]

First served in the army. Then entered into business, established a banking-house, and embarked in commercial speculations, which proved successful. Elected a member of the Chamber of Deputies. Until 1830, the fierce opponent of government, and the chief advocate of the popular cause. In 1831, until his death, Prime Minister of Louis Philippe; his policy the preservation of peace, the repression of the military spirit, and the encouragement of commerce. His public career courageous and free from corruption.

[Medallion by Houdon.]


PRELATES AND THEOLOGIANS.

291*. Georges d’Amboise. Cardinal and Minister of State.

[Born at Chaumont sur Loire, in France, 1460. Died at Lyons, 1510. Aged 50.]

As Prime Minister of Louis XII. of France, acquired popularity by reforming abuses and relieving the burdens of the subject. Acquired the title of “Father of the People.” Also Archbishop of Rouen. When created Cardinal, effected great reforms in some of the religious Orders. Benevolent and charitable. Never in possession of more than one benefice, two-thirds of which he gave to the church and to the poor.

[From the statue in the Cathedral at Rouen.]

292. Cardinal Richelieu. Minister of France.

[Born in Paris, 1585. Died there, 1642. Aged 57.]

The great Minister of Louis XIII., and the actual ruler of France during that monarch’s reign. He was the third son of François du Plessis, Seigneur de Richelieu, and at first destined for the army, but renounced this career[II-122] for the Church, when his elder brother gave up his ecclesiastical dignities for a monastic life. His political career commenced when he was appointed Secretary of State for the War and Foreign Departments; and it was sustained on the highest eminence, by the force of superior intelligence, unequalled craftiness, and an utter contempt for conscientious scruples. He was now the grateful protégé of the King, now his exacting master; now he was insidiously sowing the seeds of distrust and dissension amongst all the members of the Royal Family, now openly and magnanimously effecting their reconciliation. But, subtle and unscrupulous as were the means he employed, his views were vast, his political ideas profound, and he laboured strenuously to give stability to the French monarchy. He was a heartless man, but a faithful minister; jealous of interference with his control, but using his boundless influence for the welfare of the nation. He was a right hypocrite, affecting piety, which he never felt; he was perfidious, and even cruel; but we look back upon his career with an enforced respect for his skill, his strong will, and his undoubted successes. He persecuted Protestants in France, and abated the power of the French nobility.

[From the marble in the Louvre, by Coysevox. He wears the Cardinal’s robe, with the Order of the Holy Spirit. Modelled from some of the painted portraits of the time. There are two statues of him at Versailles, one by Ramey, dated 1819, the other by Duret, 1836.]

292A. Cardinal Richelieu. Minister of France.

[A mask.]

293. Cardinal Mazarin. Minister of France.

[Born at Rome, 1602. Died at Vincennes, in France, 1661. Aged 59.]

The pupil, protégé, and successor of Cardinal Richelieu, by whom he was recommended to Louis XIII. on his death-bed, and whom he surpassed in cunning, finesse, intrigue, and in the skill with which he turned all his public acts to his own private advantage. His avarice was excessive, and his coffers groaned with the wealth of the country which he ruled and impoverished. France was indebted to him for the treaties of Westphalia and of the Pyrenees, and these constitute his best claim to the consideration and gratitude of the French people. Another service must not be forgotten. He beggared the French nation, but he endeavoured to make amends by bequeathing to Louis XIV. the sagacious Colbert, under whose strong hand the finances of France rapidly recovered. The character of Mazarin has been variously described. By some he is regarded as a great Minister of State, equal to Richelieu; by others as a man of indifferent abilities, with an inordinate share of craftiness and diplomatic trickery. It is certain that he was deeply versed in the knowledge of man. Louis XIV. was in leading-strings whilst Mazarin lived, but sole and absolute monarch from the day of his Minister’s death until the hour of his own. Mazarin founded the first public library established in France, but he kept the young monarch who was entrusted to his hands, in shameful ignorance of all that it concerned the youthful prince to know.

[From the marble in the Louvre by Coysevox.]

294. Blaise Pascal. Theologian and Philosopher.

[Born at Clermont-Ferrand, in France, 1623. Died in Paris, 1662. Aged 39.]

Of a genius so rare as to seem supernatural. In tender years the boy,[II-123] debarred from mathematical books, with charcoal, on the wall of a garret, worked out for himself problems answering to nearly the first book of Euclid—without definitions or terms,—calling a circle a round, and a right line a score. Whilst still young, he was a discoverer in physics. The rise of water in pumps, and of quicksilver in the barometer, had, till his time, been ascribed by the philosophers to the “horror of Nature for a vacuum.” He guessed that the cause was the pressure of the atmosphere, and verified his conjecture by carrying the barometer up a mountain. He saw, agreeably to his expectation, that as by the ascent the pressure gradually diminished, the quicksilver as gradually fell. He had a subtle and profound metaphysical intellect, with great power to express abstruse thoughts clearly and precisely. His temperament was melancholy. A singular hallucination hung by him—without otherwise disturbing the sound use of his faculties—that at his side a visible gulph was ever yawning. The melancholy took a deeper hue as he advanced towards the close of his brief life. He became religiously austere, and subjected himself to personal mortification and trials, under which elasticity and health gave way. Yet the pious philosopher was not without the lighter qualities of the mind. His celebrated “Provincial Letters,” written in defence of the doctrines of the Abbey of Port Royal, against the Jesuits, are bright with the keenest satire. Pascal was a great mathematician, a true philosopher, and one of the purest of men.

295. Jacques Benigne Bossuet. Prelate of France.

[Born at Dijon, 1627. Died in Paris, 1704. Aged 77.]

According to Voltaire, the eloquence of Bossuet stands unrivalled. His Universal History, published for his pupil, the son of Louis XIV., written to point out the influence of God animating all the changes of historic events—an idea expressed in the noble aphorism “l’homme s’agite: Dieu le mène;” (man struggles and strives: but it is God who leads him). His sermons, funeral orations, and controversial publications, place him in the very highest rank as a writer. According to Eustace, who wrote the “Classical Tour,” it is the especial glory of Bossuet to have compelled the French language “to become the vehicle of sublimity.” In the second part of the Universal History, the truths of Christianity are vindicated with a lofty eloquence that is without equal in France. One of Bossuet’s controversial works against Protestantism, converted Gibbon, in his younger years, to the Roman faith. On one occasion, he was the opponent in argument of the mild Fénélon. Nothing can be more striking than the contrast between the styles of the fiery Bossuet and the gentler, but equally pious and learned author of “Telemachus.” The illustrious Bossuet was buried in the Cathedral of Meaux, of which city, his friend, Louis XIV., had appointed him Bishop. Hence he is still popularly styled “The Eagle of Meaux.”

[From a marble in the Louvre, by A. Coysevox.]

296. François de Salignac de Lamotte Fénélon. Archbishop and Writer.

[Born at Perigord, 1651. Died 1715. Aged 64.]

The author of “Telemachus.” A meek, pious, wise, and gentle-hearted man who passed through life loving all, and doing good to all. The tutor of the Duke of Burgundy, the King’s grandson, in whose self-willed and ungovernable temper, his influence and skilful management effected a moral[II-124] conversion. Having engaged in a religious controversy with the celebrated Bossuet, who procured his writings to be condemned at Rome, and subsequently incurring the displeasure of Louis XIV., was banished by that monarch. The resignation of the archbishop caused the king to repent of his injustice, and Fénélon was recalled. Though possessed of high station, great talents, and sound learning, a perfect example of humility. The style of Fénélon is melodious, translucent.

[From a marble in the Louvre, by Coysevox, and taken from the life. The costume is that of a bishop of the time, with the Order of the Holy Spirit round the neck; this Order was broken at the first Revolution: the form of the cross is still apparent. The statue at Versailles is by Felix Lecomte.]


KINGS AND QUEENS.

296*. Charlemagne or Charles the Great. King of the Franks and Emperor of the West.

[Born at Saltzburg, in Bavaria, A.D. 742. Died A.D. 814. Aged 72.]

The son of Pepin, who was the first King of France of the Carlovingian dynasty. On the death of his father, in A.D. 768, crowned with his brother Carloman, joint King of France. On the death of Carloman in A.D. 771, became sole ruler. In 772, commenced the subjugation of the Saxons, whom he finally overthrew. Marched into Lombardy to the aid of the Pope, overran the country, and caused himself to be crowned King of Lombardy in A.D. 774. Then passed into Spain to assail the Saracen power established there, but suffered defeat at the battle of Roncesval. In A.D. 800, crowned at Rome “Emperor of the West,” by Pope Leo III. Engaged in ceaseless warfare throughout his reign; yet a great promoter of learning, and the founder of several universities. Collecting enlightened and learned men about him, he completed many national works, advanced agriculture and the arts, and rendered himself immortal by the wisdom of his laws, and by the influence which his magnificent labours produced upon the destinies of mankind. He was said to be the tallest and strongest man of his time. His habits were of the simplest, and his frugality a pattern to the world. A steadfast friend and a devoted father. He was buried with great pomp at Aix-la-Chapelle, and was sincerely mourned by his subjects, who had loved him in life. Few kings have so legitimately and nobly earned the title of “Great,” as Charles I., King of the Franks.

[A head from the Rotonda of the Vatican. In the Louvre is a very remarkable portrait of him in stucco; a similar one is in the Vatican library. There is also in the Vatican a large picture of the coronation of Charlemagne, which contains a vast number of portraits.]

296**. Philip III. King of France.

[Born 1245. Died 1285. Aged 40.]

This king was surnamed “The Bold” for a reason which historians have never been able to discover. He was a mere tool in the hands of his Chamberlain, whom he raised to the dignity of Prime Minister, but who eventually suffered as a common culprit on a gibbet. The king was wholly[II-125] given up to superstitious practices, and his rule was disastrous for France. During this reign a plain gentleman, Rodolph, count of Hapsburg, was elected Emperor of Germany, and became the founder of a line of kings in Austria. We are reminded also that one of the most remarkable events of this period was the momentary reunion of the Greek and Latin Churches, in 1274, effected by Gregory X. at the second œcumenic council of Lyons.

297. Louis XI. King of France.

[Born at Bourges, in France, 1423. Died at Duplessis les Tours, 1483. Aged 60.]

The son of Charles VII. and Mary of Anjou. The mother was one of the most virtuous women of her age; the son proved a bad child, a bad father, a bad husband, a bad brother, a bad friend, a bad subject, and in all qualities of the heart, a bad king. He was a tyrant, a cheat, a bigot; cruel, implacable in his hatred, unscrupulous in revenge, a miser, until he had an end to accomplish, when he could prove a prodigal; crafty, sanguinary, suspicious, and despicably mean. He availed himself of the humbler orders to crush the power of the nobility, and loved to surround himself at all times with the lowest instruments for the accomplishment of his designs. Four thousand persons are said to have fallen victims to his cruelty, and history records that his father died of privations, self-imposed, through fear of being poisoned by his son. Yet this concentration of vice was personally brave, and a great promoter of letters. He introduced printing into France, and he wrote a book of counsels for his son, which he called “The Rose Tree of Wars.” He moreover left the royal authority established, and France powerful. His last few years were passed in seclusion, in suspicious alarm, and constant terror of death.

[A characteristic bust; evidently a true portrait, pourtraying the well-known bigotry and cruelty of the man.]

298. Louis XII. King of France.

[Born at Blois,in France, 1462. Died in Paris, 1515. Aged 53.]

The son of Charles, Duke of Orleans, and heir presumptive to the throne, during the minority of Charles VIII. Disputing the Regency with the mother of Charles VIII, he was defeated, and suffered severe imprisonment for the space of three years. Liberated by King Charles in person, he conceived a warm friendship for the young monarch, which was never broken. In 1498, when Charles died without issue, Louis succeeded to the French throne. His reign was fruitful of good to his country. He forgave his enemies, re-established discipline and order in his army, economized the resources of the state, and made the army of France victorious abroad. He appointed the judges of the land for life, in order to secure their integrity, encouraged literature and science, and liberally rewarded men of talent. He was three times married, his last wife being Mary, sister of Henry VIII. of England. During his reign, Gaston de Foix fell at Ravenna, and the authority of the Pope was suspended in France. Louis was of a frank and generous nature, and was called “the Father of his People.”

[From the bronze half-figure in the Louvre.]

299. Francis I. King of France.

[Born at Cognac, in France, 1494. Died at Rambouillet, 1547. Aged 53.]

The son of Charles of Angoulême, and cousin-german of Louis XII. of France, whose daughter he married, and whom he succeeded on the French[II-126] throne. A libidinous king, with many knightly qualities, and with all the bigotry and self-absorption that characterized too many of the despotic rulers of his time. He was a great encourager and patronizer of letters and the fine arts: but he had no mercy towards the heretic, and, in 1535, he forbade printing in France under pain of death. Not a successful warrior; he was taken prisoner at Pavia, during a war with Spain, and detained at Madrid for the space of a twelvemonth. His meeting with our own Henry VIII. on the Field of the Cloth of Gold, in 1520, is known to every reader of history. A lustre is shed upon the reign of this monarch in consequence of his magnificent patronage of art, but his life otherwise presents as little for admiration as the satyr-looking bust which no doubt faithfully records the lineaments of the man. His passions were violent and gross: and though he received the dignity of knighthood from the hands of a subject, yet even the sword of a Bayard could not endow him with virtue enough to protect him from wilful prodigality, selfish follies, and open debaucheries.

[From the bronze in the Louvre by Jean Cousin, representing the king in complete armour, interesting as a work of the time, but far less real as a portrait than the head 299A, which is from the celebrated monument at St. Denis, by P. Bontemps, where the king is sculptured lying dead, and perfectly naked.]

299A. Francis I. King of France.

300. Charles V. Emperor of Germany and King of Spain.

[Born at Ghent, in Belgium, 1500. Died in Estremadura, in Spain, 1558. Aged 58.]

The reign of this undoubtedly great monarch is chiefly remarkable for the rivalry which, during twenty-eight years, subsisted between him and Francis I., of France, leading to European war, and to battles of varied fortune, Charles inherited Germany from his father, Spain from his mother; but the Empire was boldly disputed by Francis I., and thus war commenced. After alternate success and defeat, Charles overcame his rival at Pavia, in 1525, and took him prisoner. Gaining his freedom the following year, Francis allied himself with Henry VIII. of England, but Charles V. still contrived to obtain good terms by the treaty of Cambrai, in 1529. The wily Emperor now caused himself to be crowned Emperor of Rome, and then engaged in a crusade against the Turks. War again broke out with France; but this time fortune turned against Charles, and never pronounced in his favour again. Suffering reverse upon reverse, his army beaten by disease as much as by the enemy—he himself forced to flee, almost alone, for safety—he was thrown into a depth of calamity as profound, as his previous condition had been brilliant and lofty. Resigning his crown in favour of his son Philip, he retired to a monastery in Spain, where he closed his career. Charles was sagacious, cool, crafty, and obstinate, with great grasp of intellect; cruel and hypocritical, yet not without some knightly qualities. He affected great piety, especially in his later years, but there was more of policy than of spiritual conviction in his religious movements. One of his first acts as king, was to convene the Diet of Worms, to which he gave Luther a safe conduct. He treated the Protestants with cruel harshness. No two characters could have been more opposite than those of the Royal and Imperial rivals. Their points of difference are admirably described by Robertson.

[From a medallion in bronze in the Louvre. Compare with Titian’s portrait, often engraved.]

[II-127]

301. Charlotte, or Carlota d’Avesne, Duchess of Valentino.

[Died, 1514.]

A princess less illustrious for her great beauty and mental endowments, than for her virtue and piety. First married to Charles, Prince de Chimey; afterwards forced by Louis XII., to marry the infamous Cæsar Borgia, whose misfortunes she shared without participating in his vices.

302. Henry II. King of France.

[Born at St. Germain-en-Laye, in France, 1518. Died in Paris, 1559. Aged 41.]

The son of Francis I. He pursued the policy of his sire, carried war into Italy, and strenuously opposed the House of Austria under Charles V. and Philip II. He also took arms against England, and was bitter in his persecution of Protestants. In his reign France recovered from England the towns of Boulogne and Calais, the latter of which England had held for the space of 210 years. Henry II. was an average king of the time. He was the slave of his mistress, the celebrated Diana of Poitiers, upon whom, and upon his favourites, he lavished his wealth; he cultivated libertinism at Court, he robbed the people, he overstepped his legitimate rights, and he left his country largely in debt. Historians thank Providence that it was no worse. This monarch died of an accidental wound, in a tournament, from the hand of Montgomery, the chief of his Scotch guards.

[From a marble in the Louvre, by Jean Goujon. A very interesting relic, formerly part of a beautiful chimney-piece brought from the Château de Villeroy, and now in the Louvre, the work of Germain Pilon. No 302A is from the marble by Germain Pilon, the celebrated sculptor of the French Renaissance. The marble is very much decayed, but the general character of the head is preserved, as well as the costume. The head is crowned with laurel. The mantle is ornamented with the fleur-de-lys, and the Order is that of St. Michel. The magnificent tomb of this king in St. Denis is by Pilon.]

302A. Henry II. King of France.

303. Charles IX. King of France.

[Born at St. Germain, 1550. Died there, 1574. Aged 24.]

The son of Henry II. and Catherine de Medici. He was brought up under the tutelage of his mother; and at an early age, gave promise of a good career, exhibiting a taste for literature, princely courage, and a love of glory. But under the influence of his pernicious mother, he became profligate and cruel. His unenviable reign is notorious for the horrible Massacre of St. Bartholomew, when thousands of Protestants were deliberately murdered. Remorse for this tremendous crime followed Charles IX. to his grave, into which he was prematurely cast by diseases, the result of his debaucheries.

[From a marble in the Louvre, attributed to Germain Pilon. It represents the king in his youth. The pedestal is inscribed, Carolus IX. 1568.]

304. Henry III. King of France.

[Born at Fontainebleau, 1552. Died at St. Cloud, 1589. Aged 37.]

The son of Henry II. and Catherine de Medici. He acquired military fame as Duke of Anjou, by the victories of Jarnac and Moncontoni, gained over the Huguenots. In 1573, he was elected King of Poland; but on the death of his brother, Charles IX. of France, he relinquished the sovereignty of Poland for that of France. As King, his early energy and manly courage,[II-128] gave place to shameless vice and debauchery. He was surrounded by the most unworthy favourites, who caused his reign to be designated as “The reign of the minions.” He had had a hand in the Massacre of St. Bartholomew; but at a later period, driven out of his own capital by a faction, he formed an alliance with Henry of Navarre, the chief of the Protestants, and with that prince he laid siege to Paris. He was thus employed at the camp of St. Cloud, when he was assassinated by a monk, named Jacques Clement. Henry III. has been described, by some historians, as a pupil of Machiavelli, concealing a profoundly devised plan beneath his gross immoralities, obscenities, and blasphemies. His acts were frequently those of a madman, yet he was not without good qualities. He was the last king of the house of Valois. It had reigned 261 years, and given 13 monarchs to France.

[From the marble in the Louvre, by Germain Pilon. Like its fellow, No. 302A, very much eaten away, as though at some time exposed to the weather.]

305. Henry IV. King of France.

[Born at Pau, in France, 1553. Assassinated in Paris, 1610. Aged 57.]

Educated in the reformed religion by his mother, Jeanne d’Albret, he became head of the Huguenot party: as such he took part in the civil wars, which arose in the reign of Henry III., and was in consequence excommunicated by Pope Sixtus V. Acknowledged King of France by a portion of the French army after the death of Henry III., he took arms against the League, vanquished its followers in several engagements, and finally entered Paris, after professing his adherence to the Roman Catholic faith. In the reign of Henry IV. the humane Edict of Nantes, which gave toleration to Protestantism, was promulgated, and the sagacious reforms of the Minister Sully, a Protestant, helped largely to the restoration of order, and to the development of the public resources. The arsenals were replenished, roads and canals were made, taxation was reduced, and the industry of the people fostered. Whilst this salutary work was going on, and Henry IV. and his. Minister were negociating the most important treaties with the various powers of Europe, in order to establish a general confederacy and a lasting peace, the monarch fell by the knife of Ravaillac, a fanatic. Henry IV. was an unfaithful husband, and unstable in his religion. He had many mistresses, and he twice abjured his faith: but he was the author of the edict of Nantes.

305A. HENRY IV. King of France.

[A very elegant statuette of the time. The head beautifully sculptured, and evidently a good portrait.]

306. Marie de’ Medici. Queen of France.

[Born at Florence, 1573. Died at Cologne, 1642. Aged 69.]

Daughter of Francis II., Grand Duke of Tuscany; wife of Henry IV. of France; and mother of Henrietta-Maria, the queen of Charles I. of England. She wedded Henry IV. after he had divorced his first wife, Margaret of Valois, and the alliance was not a happy one. Crowned the day before the assassination of her husband, at which some of her contemporaries more than suspected that she herself connived. But no proof of her guilt has been forthcoming. Regent during the minority of her son Louis XIII., she threw France into confusion by her misgovernment, prodigality, intrigues and wilfulness. The confusion ended in civil war.[II-129] Resigning the regency when Louis XIII. attained his majority, she took up arms against her son; but reconciliation being made through the intervention of Richelieu, then Superintendent of her household, she introduced that great and wily man into the counsels of the king. Richelieu, appointed Prime-Minister, arrested his former mistress at Compeigne, and threw her friends into the Bastile. The sun of Mary had finally set; she became an outcast and a wanderer in Europe. Our own Charles I. found his mother-in-law an asylum; but he himself was soon in need of human charity, and the abased queen must needs creep to Cologne, where she lived in obscurity and died—as travellers are still shown—in a garret. A weak woman, with strong passions. Ambitious, jealous, irascible. In her character, as with all men and women—even the worst—-there is one brighter spot for contemplation. She introduced into France an enlightened and a pure taste for art. There still exist some specimens of engraving by her hand. To her, Paris owes the Palace of the Luxembourg, and, for her, Rubens painted a gallery still possessed by France.

[The companion statuette to 305A.]

307. Louis XIII. King of France.

[Born at Fontainebleau, 1601. Died at St. Germain, 1643. Aged 42.]

He succeeded his father Henry IV. when nine years old. In 1614, his majority was declared: in the following year he married Anne of Austria. His reign is chiefly remarkable for the ascendancy acquired over the King and his government, by Cardinal Richelieu, whose policy, although directed by personal ambition, elevated the power of France and prepared it for the glory of the succeeding reign. Louis XIII. was surnamed “The Just:” but the good, which he desired, he had neither firmness nor enlightenment enough to secure. He was timid and diffident, though scrupulous, sincere, and pious. He had a melancholy nature. Grandeur had no seductions for him, and it could not be said that he enjoyed the sweets of private life. His mother Richelieu caused to be banished, and Louis suffered her to die in misery at Cologne; an unfilial act to be attributed rather to weakness of character, and the influence of the Cardinal, than to deliberate unkindness. He was the father of Louis XIV.

[From a fine portrait statue in bronze, by Simon Guillain of Paris, who died in 1658. The original is in the Louvre, and a copy of it is at Versailles: it has lost a spur and the fleur-de-lys which was at the top of the sceptre. The King wears the royal fleur-de-lys mantle over his armour, and the grand collar of the Order of the St. Esprit. He holds the sceptre in one hand, and stretches out the other, as if giving a command. There is an interesting bust at Versailles of the same King when a boy, and no doubt from the life.]

307A. Louis XIII. King of France.

[From the marble statue in the Louvre, by Guillaume Couston, a pupil of Coysevox, who died at Paris in 1746. The King wears the royal fleur-de-lys mantle, and on his knees offers his crown and sceptre to the Virgin. The 15th of August, 1638, the day on which Louis XIV. was born, was ordered to be celebrated by a solemn procession in Nôtre-Dame; and throughout France, to this day it is kept in the Cathedral, and called the ceremony of the Vow of Louis XIII. The attitude chosen by the sculptor is thus explained. There are several other examples of the same kind at Versailles; the statue of Louis XIV. (No. 308) is one. At Versailles there is a similar statue by Coysevox, and a bust by Warin.]

[II-130]

307.* Anne of Austria. Queen of France.

[Born in Spain, 1602. Died in France, 1666. Aged 64.]

The daughter of Philip II. of Spain, and wife of Louis XIII. of France. She was neglected by the King, her husband, and had no influence in France during his lifetime. But upon his decease, the parliament annulled his will, which had restricted the Queen’s power, and gave her the unlimited Regency of the kingdom, and sole guardianship of her son, Louis XIV. She appointed Cardinal Mazarin her Prime Minister, and the alliance thus formed between a Spanish princess and an Italian priest, gave rise in France to the civil wars of “La Fronde.” In spite of the opposition which she encountered, she made over the sovereignty of France unimpaired to her son when he reached his majority. Of a mild and docile temper, religious and charitable. As a mother she was devoted to her children, and sought to imbue them with high moral and religious principles.

[Mask from the statue referred to in note No. 308.]

308. Louis XIV. King of France.

[Born at St. Germain, 1638. Died 1715. Aged 77.]

The son of Louis XIII. and Anne of Austria. He ascended the throne at five years old—his mother being Regent during his minority—and reigned 72 years, longer than any other King of France. Until the death of Mazarin in 1661, Louis XIV. suffered the adroit Cardinal to rule. From that hour until his own death, no man governed but himself. This renowned monarch survived nearly the whole of his family, and when he died, the crown, as in his own case, came to the charge of a child—his great grandson—then in his fifth year. The reign of Louis Quatorze was singularly eventful within and without the realm. It embraced wars, marked now with splendid successes, and now with formidable reverses. He aimed at universal monarchy, and endangered his own. He sustained, in the War of the Succession, the defence of Spain and France against united Europe—a war in which the allies hoped to dismember France, that did not lose a province. Under this king, the soil of France was stained with the blood of her children in religious civil conflict; the most industrious and the best, slaughtered for their faith, or exiled. A magnificent Court surrounded his person—the centre to the politeness of Europe, its stately decorum veiling great moral corruption. Jealous of his prerogatives and of his supremacy amongst kings, Louis XIV. was still more jealous to be thought the best bred gentleman of his time. In this reign, the marine, the commerce, and the manufactures of France made a vast stride. Arts, letters, and science were royally encouraged. It is looked back upon as the Augustan age of French literature, when the writings of Corneille, Racine, Molière, and Boileau—of Masillon, Bossuet, Fénélon, seemed to have fixed the language. The age of Louis XIV. was the age of glory to the French monarchy; and splendidly dissolute, and, in many respects, hollow, as it may have been, we still revert to its records with a fascination that never palls, and an interest that becomes more acute the more it is gratified.

[This statue, representing Louis as a child, is from a bronze by Guillain, which formed, with a statue of Anne of Austria, and one of Louis XIII., a group of three, as a monument to commemorate the building of the Pont-au-Change, begun by Louis XIII. in 1639, and finished under Louis XIV., 1647, while Anne was Regent. The monument was destroyed in 1787; but the statues are in the Louvre, as well as the great bas-relief. The bust of Anne of Austria (No. 307*) is taken from the statue.]

[II-131]

308A. Louis XIV. King of France.

[From the marble, by Ch. Ant. Coysevox, in the Louvre and at Versailles. The King, kneeling on a cushion where his crown is placed, is dressed in the Royal mantle, with the Orders of the Holy Spirit and St. Michel. There are numbered no fewer than twenty-two busts, statues, and medallions of this favourite King at Versailles. Four are equestrian statues in bronze; one by Martin Bogaert, called Desjardins, and two by Louis Petitot, done in 1834. The statue in bronze by Desjardins, which once stood in the Place des Victoires, was destroyed in 1793. The four slaves which stood chained at the angles of this statue were alone preserved, and are now at the Hotel des Invalides, at Paris.]

309. Louis XV. King of France.

[Born at Versailles, 1710. Died there, 1774. Aged 64.]

He succeeded his great grandfather, Louis XIV., in the fifth year of his age. He was styled “the well beloved.” In his 34th year, on the field of Fontenoy, he gave proof of courage. Up to the prime of manhood, he gave equally satisfactory evidence of many good qualities of heart and head. But indolence and vicious habits, subsequently contracted, rendered the latter half of Louis’s reign one of the most disgraceful and profligate that France had witnessed. The shameless proceedings which had stained the career of his guardian, the Regent Orleans, were re-enacted in his own vicious Court. The disasters of France abroad during this degraded time, the destruction of her navy, the financial crisis that followed that catastrophe, the corruptions that were eating into the very heart of the State, and the immorality that characterized the higher classes, were the natural forerunners of the frightful storm that burst over France in the following reign. Louis XV., once “the well beloved,” died execrated by his subjects, who insulted his wretched remains, as they were passing to their last home.

309A. Louis XV. King of France.

[From the marble, in the Louvre, by Guillaume Couston the son, who died at Paris, 1777. The costume, in accordance with the fancy of the day, is that of a Roman general, as we see in the statue of King James II., of England, (No. 491). The King holds in his right hand a sceptre reversed, and with his left presents a baton of a Marshal of France. At Versailles, are several authentic busts of the time of this monarch, besides a copy of this statue, and an equestrian statue in bronze, by Bouchardon. The date of this work is about 1728.]

310. Marie Antoinette Joséphine Jeanne. Queen of France.

[Born at Vienna, 1755. Guillotined 1793. Aged 38.]

The unfortunate daughter of Francis I., Emperor of Germany, and the illustrious Maria Theresa of Austria. In 1770, before she was sixteen, married to Louis the Dauphin, who in 1774 became King of France, under the title of Louis XVI. At the breaking out of the French Revolution, every public disaster was laid to her charge by the maddened people, and after the execution of her husband, she was herself condemned to death. On her way to the scaffold, she was for two hours reviled by a ferocious mob; but resignation and sweetness of demeanour only could be traced on her countenance. Her hair had been turned silvery white by her many troubles, and a settled melancholy was stamped on her beautiful features. After her execution, her body was immediately consumed with quick lime. The murder of this unhappy lady was the most crimson spot in all the bloody time of the French Revolution. She was of a playful, happy, cheerful disposition, devoted to her family, benevolent to all. Her purity is beyond question, her[II-132] heroism perfect. In mixing in public concerns, which she did not understand, she betrayed imprudence. In despising etiquette she laid herself open to the worst criticisms of her ungenerous foes; but her character shines unsullied after cruel persecution, horrible imprisonment, and ignominious death.

[From the marble in the Louvre by Lecomte.]

311. Napoleon Buonaparte. Emperor of France.

[Born at Ajaccio, in Corsica, 1768. Died at St. Helena, 1821. Aged 53.]

A soldier of fortune at the outset of his career. Lieutenant of Artillery, 1785. First Consul of France, 1799. Emperor of France in 1804, when he was but 36 years of age. Discrowned exile, and prisoner, 1815. The military prodigy of his age. His story reads like a romance of eastern enchantment; for he made and unmade kings at his will, and confounding all the established conceptions and expectations of men, asserted and won his right to fix for a time the destinies of nations. His extreme hour of greatness was in 1813, after the fearful retreat from Russia, when in a few months he summoned a new army to his side from the fields of exhausted France, and alone defied, and almost overcame, the united strength of the rest of civilized Europe. The most ignoble period of his life is found on the barren rock of St. Helena, when, treacherous to his former grandeur, he was afflicted and absorbed by the worthless and passing annoyances of the moment. His career was that of a dazzling meteor, astonishing all men in its fiery passage, but creating little else than amazement, and admiration mingled with fear. Not naturally cruel, he enacted cruelties. Brave in the field, he lacked the true heroic element. He used all men for his own advancement, and counted human life valueless, when its sacrifice might add to his imagined glory. Superstitious, but not religious. Framed for intensest exertion, indefatigable, impatient, irritable, untruthful, theatrical, petty. Yet a grand lawgiver; cognisant of the wants of men, and capable of meeting them, had his lust of ambition suffered him to provide for the interests of his people as sedulously as for his own. His character, a singular conflict of great virtues with small vices, and of great vices with small virtues. The most splendid soldier since the days of Julius Cæsar, and the idol of his army. The uncle of Napoleon III., the present Emperor of France.

[From the marble in the Louvre by Houdon.]

311A. Napoleon Buonaparte. Emperor of France.

[The colossal bust by Canova.]

311B. Napoleon Buonaparte. Emperor of France.

[An ideal bust by Thorwaldsen, supported on the French eagle with palm branches.]

311C. Napoleon Buonaparte. Emperor of France.

312. Louis Philippe. King of the French.

[Born in Paris, 1773. Died at Claremont, in England, 1850. Aged 77.]

A monarch who ascended the throne of France on the neck of one Revolution, and was hurled from it by the heel of another. A king who had borne adversity bravely in his youth, yet was unequal to sustain prosperity in his age. The most remarkable example of the proverb that “a Bourbon learns nothing, and forgets nothing.” If any Bourbon could prove an exception to the rule, Louis Philippe must have been the man. He had great sagacity;[II-133] he had mixed for many years with all ranks and conditions of men. He had acutely felt the want of the means of living. He had been forced to earn his own bread by humble day labour. He had travelled in America, resided in England, had read much, observed more. Yet in 1848, after a reign of 18 years, he conducted himself towards the French nation with a blind obstinacy and wilful disregard of consequences, worthy of a sovereign who had been suckled in the lap of despotism, and fed for ever afterwards upon obsequious flattery, and all the other dainty diet of a Court. Louis Philippe had many good qualities of heart. He was beloved by his wife and children, and was a true hero at the domestic hearth. He had also a shrewd, active, well-informed mind. Nor did he act without a principle in his dealing with his subjects. But unfortunately his love for his family led him into foolish schemes for their advancement, his shrewdness overreached itself, and his principle of action was based upon a fallacy. He imagined that he could satisfy his people with the very husk and rind of constitutional government, and flatter them with the conviction that they were chewing and enjoying the kernel. Corruption was hardly greater in the days of the Regency, than towards the untimely close of the reign of Louis Philippe, but the rottenness under the later Orleans was veiled beneath forms demanded by the spirit of the age, and conceded by the King in a spirit of mock complaisance and quiet irony. Few men have had greater opportunity than the King of the Barricades. None have so desperately disappointed hope and baffled expectation. The history of the House of Orleans is full of instruction for all who bear the name: but no chapter is so fraught with momentous interest to the living chief of the House as that which tells the extraordinary and calamitous history of Louis Philippe.

[From the Marble, by J. E. Jones, 1845.]

312*. Louis Napoleon. Emperor of France.

[Born 1808. Still living.]

The third Emperor of the name, and not the least remarkable of his extraordinary race. The opinions formed of the present Emperor of France from his earlier history, have all been belied by his subsequent career. He has been an exile, a prisoner, a wanderer, an outcast. When he has ceased to be an object of suspicion, it was only to become a subject for ridicule. Of all pretenders to thrones in Europe, he has been held the least likely to obtain, by any change of circumstances or overthrow of dynasties, supreme dominion. When kings, in their fear, have reckoned over the names of those from whom danger might be expected, and have exhausted the entire list by including all possible representatives of peril, Louis Napoleon has not been in the number. He lived for years in London, and on the 10th of April, 1848, when special constables were enrolled for the preservation of menaced order, he sallied forth with his neighbours, and performed street duty with the humblest. He was so poor in England, that his goods were sold to pay his debts. Yet at this hour the diadem binds his brow, and his foot is firmly planted upon the summit of power in tranquillized France, and we all pray Heaven in the interests of humanity, civilization, and peace, to maintain it there. Since the accession of Napoleon III., all his exertions have been directed to the development of the material resources of his country, and to the upholding of that good understanding amongst nations which is essential to the continuance of social[II-134] prosperity. Europe lies under great obligations to his sagacity, and England has cause to rejoice in his friendship. When he married, he called himself a “parvenu.” His wisdom, moderation, and good faith have attached him to the heart of public opinion more closely than though, upon an insincere brow, he had brought to his imperial throne the stamp of a hundred kings.

[From the marble by Barre, 1853.]

312A. Louis Napoleon. Emperor of France.

[From the marble by J. E. Jones.]

312**. Eugénie Marie Guzman. Empress of France.

[Born 1826. Still living.]

The wife of Napoleon III., before her marriage with whom she was Countess Montijo of Teba.



THE GERMAN PORTRAITS.

Line
INTRODUCTION.

Ludwig, King of Bavaria, first conceived the idea of raising a monument to the national glory of Germany. In the year 1807, he planned the Walhalla, a grand hall for the reception of the statues and portrait-busts of celebrated Germans, borrowing the title of the structure from the old Norse language, the name being that of the palace into which Odin, the Scandinavian Jupiter, received the souls of the slain heroes. The idea, however, remained undeveloped until the important part played by the soldiers of Germany in the final overthrow of Napoleon gave a new impulse to the great scheme of the king. In 1821, he entrusted his architect, Leo von Klenze, with the execution of his plan. But it was not until 1830 that the design was sufficiently matured for building; and, after the laying of the first stone, twelve years were occupied in consummating the work. The Walhalla was inaugurated October 18th, 1842.

The Walhalla stands in a commanding position on the banks of the Danube, close to the little town of Donaustauf, and not far from Regensburg. It is a noble building of the Doric order, resembling the Parthenon of ancient Greece, 230 feet long, 108 feet broad, and 64 feet high, having a colonnade on every side. It is based upon a massive structure of Cyclopean stone work formed into three terraces, and is approached by a grand flight of steps.

The pediments at each end are filled with marble statues by[II-135] Ludwig Schwanthaler. The south, pediment, looking over the river, contains an allegorical subject designed by Rauch, and sculptured by Schwanthaler. Germany is here as a female figure surrounded by young warriors, who represent the different States of Germany, presenting to her the chief fortresses under the form of young women. The north pediment is entirely by Schwanthaler. It represents the battle between Hermann and Varus.

The interior forms a noble highly-decorated hall in the Ionic style, with polished marble walls and painted mouldings, the floor being also richly inlaid with marbles. The hall is 168 feet long, 48 feet broad, and 53 feet high. The entablature is supported by 14 Caryatides, treated as Walkyren, the Chusers of Slaughter in the old Germanic mythology, each being 10 feet 9 inches high. They are modelled by Schwanthaler, and executed in marble by his pupils; the figures being painted in the manner supposed to have been practised by the Greeks: the hair is brown, the flesh ivory colour, the tunics are of violet colour, the upper drapery white with red and gilt edges, and the bearskins gilt. A frieze runs round the hall, on which is sculptured the history of the Germans, from their origin in the mountains of the Caucasus to their baptism by Bonifazio. This frieze is the work of Martin Wagner, a Bavarian sculptor, living at Rome, assisted by Schopf and Pettrich. It is in marble, and measures 3 feet 4 inches in height, by 292 feet long.

Six statues of Victory, larger than life, and sculptured by Rauch, are arrayed round the hall. Between these are placed the busts of the great men of Germany, in six groups, numbering, in all, 96. They begin, chronologically, with Arminius, who repelled the Romans, and King Harry I. (A.D. 876-936), and come down to Blucher and Schwarzenberg. The Poets are represented from the medieval Minne and Meister-singers, down to Goethe and Schiller. All these busts are however modern works of art, the earliest dating from 1794.

The “Ruhmeshalle” (or “Hall of Fame”), at Munich, contains another collection of portrait-busts of celebrated Germans. This, like the Walhalla, was established by Ludwig, King of Bavaria, and built by the architect Klenze. It was commenced in 1843, and completed in 1853. It is well situated upon a hill which rises from a flat of some extent near Munich, called after the Queen of Louis, “die Theresen-Wiese.” It is in the Doric style of Greek architecture, 230 feet long, by 150 feet broad, and 60 feet high, and is surrounded by 48 columns, 24 feet in height. Within the 92 metopes are 44 figures of Victory, and 48 representations of the[II-136] principal events in the progress of Bavaria, designed and executed by Schwanthaler. The pediments also are ornamented with statues in marble by the same artist, personifying the provinces of the present kingdom of Bavaria. The statue of Bavaria, a cast from the head of which is in the Crystal Palace (See No. 205 of the Handbook of Modern Sculpture), stands in front of the building.

Some of the German portraits enumerated in the following pages are copies from portraits in both collections above referred to. There are also some portrait-busts of which the originals exist in the “Royal Museum,” and in the “Lager-Haus” at Berlin.


(The German Portraits begin immediately behind the Statue of Sir Robert Peel at the south-west angle of the Great Transept and Nave.)

ARTISTS AND MUSICIANS.

313. Peter Paul Rubens. Painter.

[Born at Cologne, in Germany, 1577. Died at Antwerp, in Flanders, 1640. Aged 63.]

One of the most prolific and famous painters; not of the Flemish school only, but of the world. His life as untroubled as his genius was grand. Crowned heads courted him, wealth followed him, and until immediately before his death he knew not the sorrow of sickness. He passed happily through life, multiplying with astonishing rapidity those marvellous pictures which have associated his name for ever with the idea of glorious colour. He left paintings in France and in Spain, and both countries vied with each other in loading the great artist with well merited honours. He came to England in the reign of Charles I. as Envoy from the Spanish court, and in England fresh dignities awaited him. As a painter, he is memorable for the harmony, beauty, and mellow richness of his colouring, which flings a surpassing charm over every one of his productions. His men are always powerfully drawn and characterized with wonderful variety; but for the graceful and ideal representation of the more delicate sex, we have only the coarse type of his countrywomen. His portraits are fresh, vigorous, and carefully executed. His most celebrated work, The Descent from the Cross, at Antwerp, is a wonderful creation, both for expression and feeling. In landscapes, Rubens was also most happy. In all his works there is a luxuriance of life and vigour and passionate expression. In person he was tall, majestic, and extremely handsome; in temperament energetic and enthusiastic; in his manner of living plain and moderate; in his dealings with his brother artists, gentle and munificent as a prince. Amongst his pupils he reckoned Vandyke, Teniers the younger, Jordaens, and Sneyders.

[For a description of this noble statue, see No. 107, Handbook of Modern Sculpture.]

314. Georg Friedrich Handel. Musical Composer.

[Born at Halle, in Saxony, 1684. Died 1759. Aged 75.]

This magnificent musician, the dominant characteristics of whose genius[II-137] are grandeur, spirituality, and solemnity, was the son of a surgeon. Having in his youth displayed a passionate love for music, and having travelled much with the view of gaining instruction in Germany and Italy, he went to London, at the age of twenty-six, and there composed, by order of Queen Anne, the “Te Deum” and “Jubilate,” which, in 1714, were performed at St. Paul’s. Subsequently became Director of the Opera, in the Haymarket, for the production of his own works: a large subscription, headed by George I., enabling him to open the theatre. The scheme falling to the ground, in consequence of the quarrels of the singers, Handel abandoned the stage, and devoted his powers to the production of those sublime oratorios that have immortalized his name. In 1740, he composed “Saul;” in 1741, “The Messiah;” the last a three weeks’ work. Other great oratorios followed. In 1750, he lost his sight, and from that time until his death he gradually declined. He was buried with great pomp in Westminster Abbey. This mighty musician was infirm of temper, and imperfectly educated. When roused, he was violent and ungovernable. A singer once refused to sing one of his airs. Handel, seizing the man in his arms, and pale with rage, threatened to throw him out of the window if he persisted in the refusal. His countenance wore a rough expression, though he was good-natured when not agitated. He stands at the head of the greatest masters of music; and, as a performer on the organ, he was without a rival.

[In the Musical Collection of the Royal Library at Berlin. The artist is not known, but it bears many evidences of being a truthful portrait, and is altogether a more characteristic head than the conventional portrait by Roubiliac No. 314A.]

314A. Georg Friedrich Handel. Musical Composer.

[From the marble by Roubiliac.]

315. Johan Joachim Winckelmann. Antiquary.

[Born at Steindal, in Germany, 1717. Died at Trieste, in Austria, 1768. Aged 51.]

The son of a shoemaker, and self-educated. At thirty became a Roman Catholic, and journeyed to Rome, where he studied the antique, and published his celebrated. “History of Art.” At Trieste he was murdered by a felon, for the sake of the medals conferred upon him by the Courts of Austria and Bavaria. His investigations into the true principles and significance of high art, more especially of antique sculpture, led the way to the enlightened criticism of Lessing and Goethe.

[By Doel. It was placed in the Capitoline Museum at Rome, by Geo. F. Reiffenstein.]

315*. Anthony Raphael Mengs. Painter.

[Born at Aussig, in Bohemia, 1728. Died at Rome, 1771. Aged 43.]

Surnamed, but without much reason, the Rafaelle of Germany. He studied assiduously at the Vatican. Upon his return to Germany he was appointed at Dresden painter to the King. Revisiting Rome he fell in love with a beautiful peasant girl, and became a Roman Catholic in order to marry her. In 1757, he commenced painting in fresco, and his works of this kind will bear comparison with some of the best of the Italian masters. In 1761, he was invited by Charles III. to Spain, where he painted for the palace at Madrid, the “Apotheosis of Trajan.” This is his chef d’œuvre. He died leaving scarcely sufficient to pay his funeral expenses, and the King of Spain provided for his seven[II-138] children. The works of Mengs display correctness of drawing, vigour of colouring, finished execution, and studied grace: but the loftier qualities of mind, demanded by historical painting, are wanting. He was a writer on art as well as an artist: and a generous, warm-hearted man.

[Bust to come.]

316. Franz Joseph Haydn. Musical Composer.

[Born in Rohrau, on the frontiers of Austria and Hungary, 1732. Died at Vienna, 1809. Aged 77.]

The son of very poor and humble parents, who cheered their poverty and supported their labour by home music. The family concerts constituted Haydn’s initiation into Art. He was a passionate neophyte. At the age of thirteen, he had composed a mass, which he was unable to write correctly. Taken into the service of the great master Porpora, he submitted to menial drudgery in order to have the advantage of his instruction. In 1760, he entered the better service of Prince Esterhazy, with whom, as Court Musician, he continued for the space of twenty-five years. During that period, some of his finest symphonies were produced. In 1791, he went, on invitation, to London, and continued there for thirteen years, sending forth his inimitable works, and receiving honour on every side. In 1794, he returned to Germany, established himself in the suburbs of Vienna, and composed the oratorio of “The Creation.” He died in 1809, from agitation, it is said, induced by the advance upon Vienna of the French army. Haydn is one of the greatest of modern musicians. He set free the spirit of instrumental music, and purified his art by the purity, simplicity, and beauty of his works. He is remarkable for lucid melody and for his power of effective painting. His labours were enormous and his compositions countless. He could himself reckon up to 800 works, large and small, and there he stopped.

317. Johann Wolfgang Mozart. Musical Composer.

[Born at Salzburg in Austria, 1756. Died at Vienna, 1791. Aged 35.]

The most renowned of German musical composers. His father was a musician, and he himself the greatest musical prodigy that ever lived. It is alleged upon authority that at four years old, he could already play and even compose. It is certain, that before he was eight a harvest was in reaping by his family, who travelled over Germany to exhibit his astounding performances. In 1764, he was in England playing before the King and Court. In 1769, he produced an opera, being then 13 years of age. At 15, he was in Italy, creating wonder by works which rivalled those of the great Italian masters. Medals were struck in honour of young Orpheus in the land of art and song. He was not 17 years old when he could count as his productions four operas, an oratorio, two masses, and many other compositions. Mozart grew in years, and did not suffer the ordinary penalty of precocity. In him “the child was father to the man.” The blossom became ripe fruit. In 1781, he produced his opera of “Idomeneo.” Then followed the “Marriage of Figaro,” and in 1787, his masterpiece “Don Giovanni”—a work composed in an incredibly short space of time. Now came sickness—and the threatening of a complaint allied too frequently to unnatural intellectual development. Symptoms of consumption gave rise to melancholy—melancholy to inordinate labour—inordinate labour to speedy death. Mozart had the grave already in sight when he composed his exquisite[II-139] “Requiem.” This illustrious man was the founder of the school in which Beethoven was a faithful disciple. His fertility of creation, the rich luxurious beauty of his music, his purity and melody, can hardly be excelled. In all the relations of life Mozart was blameless. He had a generous soul, and we are pained to think so rare and so richly endowed a genius should at any period of his career have suffered anguish from poverty and distress.

318. Karl Friedrich Zelter. Musician.

[Born at Berlin, 1758. Died 1832. Aged 74.]

The son of a master mason, whose trade he followed. Forsaking masonry for music, he became the pupil of Fasch, at whose death he was appointed Director of the Royal Institute of Music, and Professor of music in the Academy of Fine Arts at Berlin. Zelter’s works are chiefly songs and compositions for men’s voices, without accompaniment. He also wrote on the theory of music. He will be chiefly remembered as the friend and correspondent of Goethe, and the early instructor of Mendelssohn.

[By Rauch, March, 1825. Modelled as a present from the sculptor to Goethe, the friend of Zelter. The Academy of Music had it executed in marble for their institution, Rauch again charging nothing for his services.]

319. Johann Gottfried Schadow. Sculptor.

[Born at Berlin, 1764. Died there, 1850. Aged 86.]

The son of a poor tailor. He evinced, at an early age, a great love for the fine arts, but he was one of many children, and there was small hope of gratifying fine-art tastes in the needy household. Fortune brought the youngster in contact with a sculptor, who taught him drawing, and from that moment his destiny was fixed. Whilst receiving instruction, he ran off with a girl to whom he was attached, married her at Vienna, and with the consent and at the expense of his stepfather, proceeded to Rome. There for two years he laboured hard as a sculptor, in the Vatican and in the Capitol. In 1788, he had already advanced far enough to be appointed Court Sculptor at Berlin. In 1822, he was made Director of the Academy of Fine Arts in the same city. His works, numerous and of a high order, are found in Berlin and elsewhere in Germany. He was one of the first who opposed to the insipid and conventional idealism of the eighteenth century, a vigorous and truthful representation of nature, heightened by noble intellectuality. This is especially visible in his portrait statues. He was a worthy precursor of Rauch, who is one of his most famous followers. To his eldest son, Rudolph Schadow, also a distinguished sculptor, belong the specimens of modern sculpture which appear under the name of Schadow in this collection. The second son, Wilhelm Schadow, is one of the most celebrated painters in Germany, and President of the Academy at Düsseldorf. Both have a greater name as artists than the father.

[By Rauch, 1811. Plaster. The original is in the studio of Rauch.]

320. Albert Bartholomäus Thorwaldsen. Sculptor.

[Born 1770. Died 1844. Aged 74.]

He was born, as he said, at Copenhagen: some say in Iceland: some at sea, between. His father, an Icelander, was employed in carving heads for ships in the Royal Dockyard, on which the great sculptor practised his young hand: his mother was a priest’s daughter. He was educated, as all the children[II-140] of workmen, in the Holm, or dockyard, at the King’s expense. At 11, Thorwaldsen was a student at the Academy of Fine Arts in Copenhagen. At 17, he first secured attention, and gained the small silver medal; at 19, the large. At 21, he won the small, at 23, the large gold medal. His birthday he did not know, but he called it March 8th, the day of his arriving at Rome in 1796. In the Eternal City he addicted himself to the antique. He brought introductions to Zoega the Dane, then living at Rome, a learned and antiquarian connoisseur. Zoega dealt kindly and hardly with the young sculptor, severely criticizing his labours; and Thorwaldsen, under his critic’s censure, and from his own dissatisfaction, destroyed numerous attempts. His first “Jason with the Golden Fleece,” of the natural size, made no impression, and he broke it in pieces. He made it again, 812 feet high. It secured general admiration, and this time he did not destroy his work. He had, however, made up his mind to go home; his small preparation was completed; Jason was to be sent after him; but a mistake in a passport created a day’s delay. During the short interval, Thomas Hope, a well-known name in England, entered the artist’s studio, and saw the “Jason.” The price was asked. “Six hundred zecchini.” “I will give eight hundred,” answered Thomas Hope. Thorwaldsen stopped in Rome, and now began and went on, his mightier career. His chief works are classical subjects—some Christian, to which he drew late in life. The most popular of all his productions is the bas-relief of “Priam and Achilles.” In 1819, he returned to Copenhagen, but not permanently until 1838. In Rome he was the friend of Canova, who acknowledged his merit. His health was often very weak, and he died suddenly at a theatre. He was simple in his manners, and beloved. In fire and grandeur he resembled Michael Angelo. The old Scandinavian energetic blood rolled in his veins. The family tradition made him descended from one of those early warrior-kings: a more glorious, innocent conqueror.

[By Rauch. Plaster. 1816. Done at Rome. A fine artist-like head. The original is in the studio of Rauch.]

321. Ludwig van Beethoven. Musical Composer.

[Born at Bonn, in Rhenish Prussia, 1770. Died at Vienna, 1827. Aged 57.]

This great composer was taught music from his childhood; but it was not until his twelfth year that he at all developed his genius. Sent to Vienna, he was placed there under the care of the Chapel-Master, Albrechtsberger, in spite of whose cold and conventional instruction he advanced in knowledge and strength, and excited general attention by his extraordinary gift of improvisation, and marvellous execution. In 1805, he composed “Fidelio;” then followed his oratorio of “Christ on the Mount of Olives,” the “Heroic” and “Pastoral” symphonies, and his pianoforte Concertos. At this time Beethoven had scarcely the means of subsistence, and to save him from want, a pension of four thousand florins was settled upon him by the Austrian government. He fixed his abode at the village of Baden, near Vienna, and his life became one of retirement and self-nurture. He composed his music in his solitary rambles. The wildest scenery to him was the choicest, for he shrank from intercourse with men. His habits were known and respected. He died unmarried. From his twenty-sixth year he had been deaf; but he was otherwise robust. He was passionately fond of Scott’s romances, and these works, with the “Odyssey” of Homer, were his consolations during the illness of which he died. His fertility and variety[II-141] of production are marvellous. The passionate soul of melody possessed him. His works are rich in harmony, tinctured it may be with the delicate mysticism that ruled his genius in its silent haunts.

[By Ernst Hähnel, of Dresden. Plaster. 1847. In the possession of the artist, who executed the large statue of Beethoven in bronze, which stands in the Place at Bonn. This was the study from the life, for the head of the statue.]

321*. Ferdinando Paer. Musical Composer.

[Born at Parma, in Italy, 1771. Died 1839. Aged 68.]

At sixteen, Paer began to write for the stage. Before he was twenty-six he had already produced twenty-two operas, all in the conventional style of the old Italian operas, and after the manner of Cimarosa and Paisiello. After 1797, a laudable change is remarked in his style—more force in the harmonies, more variety in the modulations, with richer and more effective instrumentation. In 1801, appointed by the Elector of Saxony Chapel-Master in Dresden, and, favoured by the repose afforded here, Paer still improved his style. In 1806, Dresden was taken by the French. The musician transferred his services to Napoleon, and accompanied his new master to Paris. In 1810, revisited his native city, and there composed his master-piece, the opera of Agnèse. His subsequent career is remarkable for little more than for petty intrigues against rival composers, and—after his appointment as Director of the Italian Opera in Paris in 1812—for miserable squabbles with actors and musicians. He ceased to be an artist, and condescended to become a mere courtier and “homme de salon.” His death was accelerated by long-continued habits of intemperance. Paer was gifted with great fluency, and his works have brilliancy and spirit; but he is without originality, force, and dramatic power.

[Bust to come.]

322. Christian Friedrich Tieck. Sculptor.

[Born 1776. Died at Berlin, 1850. Aged 74.]

Of the school of Schadow. Brother to the celebrated poet and critic, and the friend of Rauch, with whom he was engaged in illustrating in sculpture the glories of the late war. His productions are in various parts of Germany, and are held in high estimation. He is the sculptor of the statue of Frederic William at Ruppen, and of the front gate of the cathedral at Berlin.

[By Rauch. Marble. 1825. Given by Rauch to his friend Tieck, and now in the possession of his widow.]

323. Christian Rauch. Sculptor.

[Born 1777. Still living.]

The leading German sculptor of his day—endowed with great imaginative powers, and excelling in portraits, which, under his treatment, exhibit truth and nature, intimately associated with poetic elevation. In 1804, he took his way from Berlin to Rome, and presently secured the friendship of Thorwaldsen, whose love for the antique greatly influenced and directed his taste. Whilst at Rome he executed “Mars and Venus wounded by Diomedes,” a colossal bust of the King of Prussia, and other celebrated works. In 1811, invited by the King of Prussia to Berlin, he produced many colossal statues and countless busts. His colossal “Victories,” for the[II-142] Walhalla, and the equestrian monument of Frederic the Great, are well known efforts of his genius. A great artist—competent to express vigorously, truthfully, and naturally, historical rather than ideal conception.

[By F. Tieck. Plaster. 1825. Modelled, to be given to his friend Rauch, but the marble bust not finished. From Lager-Haus.]

324. Karl Friedrich Schinkel. Architect and Painter.

[Born at Neuruppin, in Germany, 1781. Died at Berlin, 1841. Aged 60.]

Styled by his countrymen the Luther of architecture. Employed by the King of Prussia to erect those structures in his capital which have stamped a new character on Berlin, and endowed it with high architectural claims. He gave a new impulse to his art, both by his influence and his example, and was besides a generous and amiable man.

[By F. Tieck, 1819. The marble bust is in the Berlin Museum. A copy in bronze is on the staircase of the Royal Theatre, Berlin.]

325. Leo von Klenze. Architect.

[Born at Hildesheim, in Hanover, 1784. Still living.]

The architect, in Munich, of “The Glyptothek,” and the constructor of many works, Royal and otherwise, in the same city. Also the designer of the plans for the “Walhalla.” Author of some literary productions bearing upon his art. In 1844, accompanied Ludwig I. to Greece to examine the plans already made for the improvement of Athens, and to suggest original designs. Klenze possesses great decorative skill, and a comprehensive knowledge of the history of architecture; but the true genius and high faculty of composition appears on few of his productions. He does not take what is universal in the various styles with which his mind is familiar, in order to form a style expressive of his own spirit, and suitable to the country and climate in which it is his business to exhibit it, but he borrows his structures from Greece and Italy, and deposits them in Munich, loading the city with specimens of foreign styles of architecture. His effects are undoubtedly picturesque, and the decorations of his buildings always beautiful, but fault is found with the internal arrangements of his edifices, with the lowness of the apartments, and with the bases of his façades, which are occasionally mean and even vulgar.

[By J. Halbig. Plaster. 1846. Executed for King Ludwig.]

326. Peter Cornelius. Painter.

[Born at Düsseldorf, in Prussia, 1787. Still living.]

A renowned painter of the later German school. He studied under Langer, a disciple of the old school, who made enormous efforts to suppress the romantic tendencies of his pupil, to check his imagination, and to restrain his boldness. By a visit to Italy, however, Cornelius confirmed the bent of his genius, and rendered the good intentions of Herr Langer of no avail. His indomitable perseverance, hard study, and rare gifts, soon enabled him to outstrip all rivalry. Whilst still young he was invited to direct at Düsseldorf the School of Painting, which has proved itself one of the most careful and successful nursing-mothers of Art in Germany. In 1819, engaged by the King of Bavaria to decorate the Museum of Sculpture then constructing at Munich. The subjects painted by Cornelius in fresco for this Museum from the heroic myths of Homer and Hesiod, are conceived with a rich imagination, and executed with superior power. His cartoons illustrating the old “Nibelungen-Lied[II-143],” and the “Faust” of Goethe, are equally remarkable. In 1825, appointed Director of the Academy of Painting at Munich. In 1841, summoned to Berlin by the King of Prussia, for whom Cornelius designed the “Shield of Faith,” presented by his Majesty to his godson, the Prince of Wales. Cornelius paints with the passionate sensibility and delicate perception of a true poet. His copious imagination is never at fault, and his ability to produce is as striking as his faculty of conception. Yet he never oversteps the modesty of nature, or the confines of true art. He is the worthy leader of a daily increasing school in Germany, which attempts, and not unsuccessfully, to unite in art earnestness of thought, activity, boldness, and freedom.

[By E. Hähnel. Plaster. 1852. In the possession of the artist. This was the study for the head of the large statue of Cornelius which Hähnel was commissioned to execute for the new museum at Dresden, and which stands on the outside, amongst the artists of Germany.]

327. Christoph Gluck. Musician.

[Born in the early part of the 18th century. Died at Vienna, 1787.]

The great merit of Gluck is that he emancipated music from the trammels of conventionalism and false taste, and made it the exponent and minister of poetry and the drama. Gluck, invited to London in 1745 to celebrate in music the butcheries of the Duke of Cumberland, found that the operas represented there were mere concerts, for which the drama was a pretext. Sound was everything, meaning nothing. His own music was set to words with which it had no connexion, and, torn from its original context, lost all its effect. This fact led him to the discovery of the great principle which is the key to the rest of his life: viz., that music is not merely a pleasant arrangement of sounds intended to gratify the ear, but a subsidiary language, able to exalt and strengthen the emotions, raised by the measure and force of the spoken language to which it is allied. In 1761, he composed his opera of “Alceste,” as an illustration of his idea. It was followed in 1762 and 1763 by “Paris and Helena” and “Orpheus.” In 1779, he composed the “Iphigenia in Tauride,” the greatest of his works. Wieland has happily expressed Gluck’s claim upon our respect in a sentence. “He preferred,” he says, “the Muses to the Syrens.” His works are not so much operas, in the ordinary sense of the term, as poems, in which music is employed for producing and sustaining emotion. Off the stage Gluck was nothing, but upon it the musician was himself a poet. The manners of Gluck, like those of Beethoven and Handel, were rough and blunt. He was large in person; and his habits were indolent and somewhat sensual. The bust discloses the man.

[From the Terracotta, by Houdon. In the musical collection of the Royal Library at Berlin. The only bust taken from the life.]

327A. Christoph Gluck. Musician.

[From the Terracotta by Houdon, in the Louvre.]

327B. Christoph Gluck. Musician.

[From the bust by Francin (Fils) in the Louvre.]

327C. Christoph Gluck. Musician.

[From a bust by R. Wagner of Berlin.]

[II-144]

328. Friedrich Gärtner. Architect.

[Born 1792. Died 1847. Aged 55.]

The chief architect in Munich since the withdrawal of Klenze. His most important work is the new Library in that city, which is remarkable for the simple magnificence of its façade. He designed the Palace of King Otho at Athens, and he re-opened the quarries of Pentelicus, which had not been employed since the days of Hadrian. Upon the departure of Cornelius from Munich, Gärtner received the appointment of Director of the Royal Academy of Fine Arts.

[By Johann Halbig.]

329. Julius Schnorr. Painter.

[Born at Leipzig, in Saxony, 1794. Still living.]

First studied under his father, who was Director of the Academy at Leipzig. In 1811, went to Vienna to get instruction there; but found little to gratify his taste, or to encourage his genius. In 1817, travelled into Italy, and there made the acquaintance of Ludwig, then Crown Prince of Bavaria. At Rome worked at the Villa Massimi, where Cornelius was also employed, and where he produced in the space of five years his eleven frescos from the Orlando Furioso of Ariosto. Called to Munich in 1827, he received there the appointment of Professor of Historical Painting in the Academy, and painted for the King of Bavaria his admirable frescos illustrating “The Nibelungen-Lied.” In 1846, accepted an invitation to Dresden. Schnorr is chiefly known to us by his beautiful illustrations of the Bible. Amongst all the fresco painters of Munich he stands unrivalled for combining individual life with ideal composition.

[From the plaster model by Ernst Rietschel, dated 1848. In the possession of the sculptor.]

330. Ludovic Schwanthaler. Sculptor.

[Born at Munich, in Bavaria, 1802. Died there, 1848. Aged 46.]

Most of his numerous and admirable works adorn his native city. His masterpiece is the colossal statue of Bavaria, cast in bronze, 54 feet high. The noble head of this figure forms a remarkable object in our Court of German and English Sculpture. Before its inauguration the artist had died, having been an invalid for the last fifteen years of his life. Many casts from the works of Schwanthaler may be found in the Court of Modern German Sculpture. He had the advantage of being an excellent classical scholar, and was besides a warm-hearted, unassuming man, simple in his manners, full of wit and humour, and a true friend. As an artist he had a fine classic feeling, great spirit and fire, a strong imagination, a vigorous and creative genius.

[By Xavier Schwanthaler. Marble, 1849. The original is in the “Ruhmeshalle” (Hall of Fame), at Munich. It was modelled from the life in 1837.]

331. Felix Mendelssohn-Bartholdy. Musician.

[Born at Berlin 1809. Died at Leipzig 1847. Aged 38.]

The grandson of the Jewish philosopher, Moses Mendelssohn, and the son of an eminent banker. Like Mozart he exhibited an astonishing precocity. In his twentieth year he was already a musical composer of great originality. Then setting out on his travels, he visited London, Paris, and various parts of Italy. In 1834, appointed Chapel-Master at[II-145] Düsseldorf. In that city he produced, when 27 years old, his oratorio of “St. Paul.” It won the success it merited. In 1839, he composed his “Lobgesang,” or “Hymn of Praise,” by many regarded as his masterpiece. In 1846, his marvellous oratorio of “Elijah” was produced at Birmingham. From this period his mental activity was prodigious, and his production ceaseless. He died, literally consumed by the fire within him. He was a great man. His faculties, of the highest order, were engaged in the advancement of the purest art. His manner was unaffected, his heart warm and affectionate. He loved England. His earliest works indicate his genius; his latest compositions are tinged with a deeper, and more solemn hue—but all he did was beautiful—like his mind.

[By E. Rietschel. Marble. 1848. In the possession of Alexander Mendelssohn, the banker, of Berlin, for whom it was executed.]

332. Johann Halbig. Sculptor.

[Still living.]

An excellent German sculptor, who studied under Schwanthaler, at Munich. The grand colossal figure of Franken (Franconia), in the German Court of Modern Sculpture (No. 173), is by this artist.

[Modelled by himself. 1850. A commission from King Ludwig.]

333. Moritz von Schwind. Painter.

[Born at Vienna, 1804. Still living.]

Studied under Ludwig Schnorr; then under Cornelius. Since the year 1828, has been employed in decorating with frescos the Palace of the King of Bavaria, at Munich, and the Palace of the Grand Duke of Baden, at Carlsruhe. His compositions from the classical mythology, and from the modern poets, particularly from Tieck and Goethe, are amongst the finest things which have been produced in modern times.

[From a medallion by Ernst Rietschel.]

333*. Edward Devrient. Player.

[Born 1801. Still living.]

One of a family remarkable, like that of the Kembles in England, for dramatic genius. His uncle was a famous actor of his time; his elder brother is a player of repute in Hanover, and his younger brother, Emile (born in 1803) is known in England, as one of the best representatives of Hamlet at the present day. Edward is rather a studious and careful artist, than a man of genius. He is also an author of ability, his dramatic works having obtained considerable favour.

[From a medallion by Ernst Rietschel, dated 1852. In the possession of the sculptor.]


POETS AND DRAMATISTS.

334. Friedrich Gottlieb Klopstock. Epic and Lyric Poet.

[Born at Quedlinburg, in Prussian Saxony, 1724. Died at Hamburgh, 1803. Aged 79.]

Goethe said well of Klopstock, that to him German literature owed a debt of gratitude, for he was in advance of his time, although he lived long enough for his time to be in advance of him. He is the classical epic poet[II-146] of Germany, as Milton of England, but with a difference. Milton was nurtured on the overflowing bosom of English poesy. Klopstock had imbibed no such strength at a native fount. The sublime utterance of the one still reverberates through a world that is still the wiser and the better for the heavenly strain. The sonorous rhapsodies of the other already weary the ear of the land on which they originally fell with weight and power. Few were the admirers of England’s blind poet when he sang “of Man’s first disobedience.” To-day they are countless. When Klopstock published the first part of “The Messiah,” Germany was enthusiastic. The learned were at his feet, kings craved his companionship, and the people worshipped a prophet. To-day, a young German critic has the hardihood to say—without being stoned for his heresy—that Klopstock’s poems are like nothing so much as translations from some unknown author, by an erudite but somewhat unpoetical philologist. With the early admiration for the poet, was mingled awe for the sanctity with which his subject had enveloped his person. He became in a nation, what Pollock, the author of “The Course of Time,” has been amongst a class. If he is now taken down from his undue eminence, his just claims to respect must not be disregarded. If Luther constituted an epoch in the moral and intellectual emancipation of his country, Klopstock marked an era in the progress of her poesy. Both names are landmarks, in the history of the language, as cultivated in the service of letters. The latter was, also, a pioneer and a reformer. His odes are striking and lofty; his learning extensive; his piety fervent; and his poetic sensibility profound. The thirst of communing with the soul of his native Germany—since, a widely-possessing enthusiasm—announced itself as a literary virtue, first in Klopstock’s writings. It spoke in the selection of some of his themes: but was chiefly operative in his profound and enamoured study of the language which begins, in his verse, to discover and lavish exuberant wealth.

[By Dannecker.]

335. Gotthold Ephraim Lessing. Man of Letters.

[Born at Camentz, in Saxony, 1729. Died at Brunswick, 1781. Aged 52.]

A philosopher and a poet, but more of an investigator than of a creator. Nevertheless, a strong renovator. He is named by Germany of to-day with gratitude, amongst those who loosened the old chains of imitation from her literature, and summoned her to think and to write, self-conscious, from her own deep and powerful spirit. Powerlessly enough, her drama, till his time, was borrowed from that of a people, geographically divided from her by a river—intellectually, her antipodes. Lessing showed her, in place of Corneille and Racine, a foreigner, in whose kindred veins her own blood ran; and called her to Nature and to herself, in calling her to Shakspeare. Lessing was a critic in plastic art; witness his “Laocoon.” He was a fabulist of great invention, fancy, and humour: witness his “Fables,” which may take rank with those of Æsop. He was a dramatist of skill, power, and pathos: witness his “Nathan the Wise,” and his “Emilia Galotti.” Above all, he was an independent thinker; and a style clear, precise, and masterly, runs through all his writings. He is one of those now elder classics through whom the language of the country has risen into literary rank and service.

[By Ernst Rietschel. Bronze. 1849. Erected by subscription at Brunswick. For further account of this statue, see Handbook to Modern Sculpture. No. 200.]

[II-147]

336. Christoph Wieland. Poet.

[Born in Suabia, 1733. Died 1813. Aged 80.]

An exquisite artist in words, herein resembling though more enchanting than, Lessing, whose contemporary he was. He might seem to be a transitionist; softening the passage from the imitative French school in Germany, to the pure German. Or you may suspect that the foreign element is not French, but Italian, if modern,—or Attic, if ancient. For he was a student of classic antiquity, and a lightness of grace, and a mobile sensibility to the beautiful, which are not German, reign over his numerous writings in prose and verse. Some of his works are direct imitations from the Greek—as his Dialogues after Lucian. His elaborate philosophical romance, “Agathon,” lays the scene in old Greece. But his gift is an unrivalled ease in the flow of his narrative verse—lively or serious—made alluring by perpetual representation to the eye; and roving with predilection amidst romantic scenes and adventures. His poem of “Oberon” is a masterpiece in this kind. He seems to have prepared for it in studying Ariosto, but engrafting upon the Italian style the more picturesque of his own northern and later poetry. The qualities missed in this rich, enticing, and luxurious word-painter, are profound passion, intellectual might, and the more solemn contemplation of the universe, natural and spiritual. Wieland was a scholar: you feel the influence of his reading at every step; but the springs in his own bosom well freely.

[The original marble, by Schadow, is the property of Henry Crabbe Robinson, Esq. of London. Flaxman declared it “a perfect work, never surpassed by any artist, living or dead.” When Mr. Robinson visited Goethe at Weimar, and informed him that he possessed this bust, Goethe related the circumstances under which it had been lost to Germany, and added: “You have made me as happy as though I had recovered a lost child.” Mr. Robinson promised Goethe to bequeath the bust to the Public Library at Weimar, where Wieland had lived for many years. One cast has been allowed to be taken for the Crystal Palace; and the mould has been destroyed.]

337. Johann Wolfgang von Goethe. Poet.

[Born at Frankfort-on-the-Main, in Germany, 1749. Died at Weimar, in Germany, 1832. Aged 83.]

For comprehensiveness and grasp of thought, for profound knowledge of human life and dealings, for intellectual prowess, for intimate acquaintance with various and opposing arts and sciences, Goethe stands alone in Europe throughout the period which he elevated by his presence and swayed by his achievements. He was a great poet, an excellent dramatist, a fine novelist, a skilled naturalist; with chemistry, botany, and anatomy he was familiar. In truth, it is not easy to limit the immense domain through which his giant mind ranged at its will, conquering and acquiring wherever it touched. His productions are voluminous, corresponding to the wealth of his overflowing brain. His “Faust” predominates far above his other works in popular impression. It is the one in which he seems the most resolutely to have committed himself to his subject. Wild, audacious, lying as this does desperately out of the Real and the Possible, he throws himself into his enterprise, doing it justice, with all his gathered might. We have a feeling persuasion of this having been his own favorite work, to which he most confided, with love, the intimacies of his genius. The recognition of Faust, as a high work of art, must, however, be restrained to the first part. In the second the poet seems as though self-bewitched. Certainly, Germany never has possessed so[II-148] consummate a master, in art, of her words. His lyrics are gems of music. They have the felt charm of grace, rather than demonstrable worth. In the verse of Schiller it is the other way. Ask of his Germany what constitutes the all-extolled merit of Goethe, and you will hear for answer:—“He is the great world-sage.” But some of the elements of true wisdom he unquestionably lacked. Admit all his strength, his knowledge, his skill, his intuition, and you still miss the heart lodged by Mother Nature in the bosoms of Homer, of Shakspeare, of the compatriot and contemporary Schiller; which, warm and large, embraced with loving and devout sympathy all that is great and high in the souls of men. You desire, in many of his personages, the beating pulses of simple, natural, human affection; the exuberance of genial and generous passion;—in himself, the possessing and tyrannizing enthusiasm, proper to the vowed follower of the Muse. His judgments of the world show distinguished capacity, but his pictures are not generic representations of Man, either as reality gives him in experience to every one of us, or as poesy would select him. Goethe promulgated speculations on plants and colours that have been received into science. He made other speculations during his mighty and protracted career, which passed into the spirit of more than one generation, to influence, guide, advance, fashion, and direct it.

[By Alexander Frippel, 1789. Modelled from the life when Goethe was in his prime. It was done at Rome, by order of the Prince Waldeck, in whose castle at Aroldsen the original exists. Goethe at that time allowed his hair to grow in all its natural luxuriance. “I remember him well,” says a distinguished friend and countryman of his; “he was then as handsome as Apollo.”]

337A. Johann Wolfgang von Goethe. Poet.

[This bust is by Rauch, from the marble, dated 1820. It was a commission from the Grand Duke of Saxe Weimar, and occupies its place in his palace.]

337B. Johann Wolfgang von Goethe. Poet.

[This bust is from the colossal statue, the work of Steinhauser, executed by order of the Grand Duchess of Saxe Weimar.]

338. Friedrich Christoph von Schiller. Poet.

[Born at Marbach, in Germany, 1759. Died at Weimar, 1805. Aged 46.]

According to the Germans, Schiller stands second in the list of their great poets, Goethe being the first; but in the esteem of the rest of the world, Schiller is pre-eminently the greatest of German poets. In universality, breadth and power, his genius yields to that of his illustrious rival; but in delicacy of perception, refinement of feeling, intense sympathy with the passions he represents, exquisite purity of thought and diction, and in the treatment of ideal beauty, he is without a competitor in his own country. His manifest delight in the delineation of pure and generous characters is not the least grateful of his excellences. His poetry is the bright intellectual reflexion of his own chastened spirit, as the writings of Goethe constitute the masculine and mighty expression of his essentially sensual nature. The German stage was formed by Schiller, whose later tragedies gave to the drama of his country a rank that it had never held before. At the outset of his career Schiller studied law, then medicine; and whilst his own tastes would have led him to the pastoral office, he found himself, at the age of 30, appointed to the Chair of History at Jena. His acknowledged greatest work is the tragedy of “Wallenstein.” He died of consumption, and was buried with public honours. He conferred dignity upon the literature of his[II-149] country, and helped, more than any other man of his time, to bring it abreast of the poetry of other nations; but the originality, beauty, and force of his productions are not more worthy of contemplation, than the aspiring grandeur and nobility of his moral character. He was the friend and pupil of Goethe. The teacher was the more consummate artist, the disciple was the purer man. Schiller exalts our idea of humanity, Goethe lowers it.

[By Dannecker. Marble. 1805. The original was bequeathed by the artist to King William of Würtemberg, who presented it to the Museum at Stuttgart.]

338A. Friedrich Christoph von Schiller. Poet.

[This colossal bust was executed by order of King Louis of Bavaria for the Walhalla.]

339. Ludwig Tieck. Author.

[Born at Berlin, 1773. Recently deceased.]

A writer in literature and art, who has exercised a sensible influence upon the minds of contemporary authors. His narratives reveal a powerful imagination and a profound sense of the beautiful. In his “Zerbino” he exhibited his ideas on general æsthetics. A visit to England in 1818 inspired him with the idea of translating the plays of Shakspeare, and he undertook this labour in conjunction with W. Schlegel. The translation is perhaps the best that has ever been made in any language of our great poet. At the early period of his literary career, Tieck delighted in the marvellous and fantastic. In 1820, his genius took a new direction, and built upon an historical foundation, and upon observation of actual life. The present King of Prussia charged Tieck with the direction of the theatre at Berlin, and conferred upon him a pension. Many of his works have been translated into English—two by Bishop Thirlwall.

[By F. Tieck. Plaster. 1836. In the Lager-Haus. The original model was done at Dresden.]

340. Berthold Auerbach. Poet and Novelist.

[Born 1812. Still living.]

Of Jewish parents, and originally intended for theological pursuits. Completing his education in 1832, he abandoned Rabbinical lore for the study of history, philosophy, and general literature. In 1841, he published a life of Spinosa, to whose doctrines he was deeply attached, and a translation of that philosopher’s complete writings. In 1843, he produced a much more popular and generally interesting work, “Village Histories of the Black Forest,” which has been translated into English, Dutch, and Swedish. Since 1845, Auerbach has resided either at Weimar or Leipzig. He is zealous in the cause of popular education, and, during the commotions of 1848, took part with the moderate democrats.

[By Ernst Rietschel. Medallion. 1847. In the possession of the sculptor.]


SCIENTIFIC MEN AND WRITERS.

341. Johann Gutenberg. Inventor of Printing.

[Born at Mayence, in Germany, between 1395 and 1400. Died there, 1468.]

Nothing is known of the early history of Gutenberg, save that he was[II-150] born of a patrician family. In 1427, he resided at Strasburgh. When and where his first attempt at printing was made, it is impossible to say, for he never affixed his name, nor the date of printing to any of his productions. About 1438 he first employed moveable types made of wood. In 1443, he quitted Strasburgh, and returned to his native place. There he met with one John Faust, a rich goldsmith, and engaged with him to establish a printing-press, Faust finding the money for the undertaking. The press was established, and then, for the first time, the Bible was printed in Latin. Business went on prosperously for a time. But, four hundred years ago, it fared with great discoverers and great speculations as at the present hour. Faust had made large advances, and Gutenberg could not meet the claim. The pair went to law; and, as it falls out in these cases, the goldsmith got the verdict. He retained the business. Gutenberg was thrown upon the world. There he found a friend, was set upon his feet, and established another press. In 1837, a splendid monument, by Thorwaldsen, was erected to the memory of Gutenberg in his native town, where the members of the Gutenberg Society—to which many of the writers of the Rhenish provinces belong—meet to celebrate his mighty discovery, and to do honour to his name. Who shall fix the merit or assess the claims, or tell the influence exercised in the world by the portentous labours, of “The Inventor of Printing?”

[By E. Von Launitz. Plaster. 1840. Modelled gratuitously by the artist, for the celebration of the invention of printing in 1840. For an account of the very line monument erected to Gutenberg at Frankfort by E. Von Launitz, see No. 175 of Handbook to Modern Sculpture.]

342. Immanuel Kant. Metaphysician.

[Born at Königsberg, in Prussia, 1724. Died there, 1804. Aged 80.]

The founder of a new philosophy in Germany. After twelve years’ meditation, he produced, in the space of five months, his celebrated “Criticism of Pure Reason.” His main theory is, that there is only one source of knowledge, viz., the union of subject and object; that is to say, our knowledge is partly mental, partly physical,—one half of it coming from the mind, or subject, the other half from the object. The mind has its own forms which it gives to objects. Time and space are forms of the mind, not things existing out of it. By thus restoring to mind its independent activity he was able to oppose Locke, proving that we have ideas independently of experience, and to oppose Hume, by proving that these ideas have a character of universality, necessity, and irresistibility. Hume insisted that the understanding is treacherous. Kant declared it is only limited. For a time, Kant’s philosophy superseded every other system in the Protestant Universities of Germany. A man of high intellectual endowment; his life rigorously philosophical. He lived and died a type of the German Professor. The cathedral clock of Königsberg, which town he never once quitted during his long life, was not more punctual, it was said, than Immanuel Kant.

[By Fried. Hagemann. The original in marble is in the University of Königsberg. F. Hagemann was a pupil of G. Schadow; he was born in 1773, and died at Berlin in 1806. He executed this bust at Königsberg.]

343. Heinrich Pestalozzi. Educator.

[Born in Switzerland, 1745. Died there, 1827. Aged 82.]

In a year of great dearth and distress to a Swiss Canton, he found himself in charge of half a hundred ragged and wretched children—in an empty[II-151] barn for a school—with hardly bread for them and him, and wholly without books, or any other usual implements of that industry; but with a heart yearning and overflowing in love towards his little helpless ones, and with an intellect singularly given to resolve the complex forms of knowledge into the primitive elements fitted, by their evidence and their simplicity, for the tender and opening mind to receive. So driven and so gifted “he made every child its own book.” These emphatic words of the narrative tell the secret of that genius with which he afterwards renovated instruction for the schools of Europe. To draw forth power—to invite the native energies into spontaneous action—to lead on the pupil, step after step, in creating thought, in investigating and constructing, how slowly soever, knowledge for himself—to foster intelligence under the kindliest influences, like a plant that wins growth in dews and sunshine, in soft airs and showers—was the new and living scholastic art which Pestalozzi opposed to the old tyranny of inflexible rote, rule, and routine. But intellectual training alone, he held for vain and pernicious. The roots must strike and feed in the soil of the religious, rightly-governed will.

[Marble. 1809. A commission from King Louis of Bavaria. The original is in the Walhalla.]

343.* Johann Peter Frank. Physician.

[Born at Rotalben, in Germany, 1745. Died at Vienna, 1821. Aged 76.]

One of the greatest practical physicians that Germany has produced. In 1779, he published the first volume of his most famous work, the “System of Medical Police,” which he states to have cost him ten years intense study. Was Professor of medicine at Göttingen. In 1795, invited to Vienna by the Emperor with commission to reform the medical department of the army. In 1804, charged by the Emperor Alexander with the formation of a chemical school at Wilna; and subsequently received many tempting offers from Napoleon to establish himself in France. Has written many interesting works in connexion with his profession; but his fame as a writer rests upon the publication already mentioned.

[The bust, which is to come, is by Rauch, in bronze. 1841. The original belongs to the monument raised to Frank by subscription, in the House of the Orphans at Halle on the Saale.]

344. Friedeich Heinrich Jacobi. Philosopher and Poet.

[Born at Düsseldorf, 1743. Died at Munich, 1819. Aged 76.]

The son of a merchant whose business he followed in spite of his great fondness for literature, until an official appointment in his native city enabled him to devote his whole time to study. In 1777, he published “Friendship and Love,” a philosophical poem, and in the same year was invited to Munich, where he was made Privy Councillor. In 1781, he had a sharp controversy with Mendelssohn, respecting the doctrines of Spinosa. In 1804, he assisted in the formation of the Academy of Sciences at Munich, of which institution he became President in 1807. His work published in 1811, upon “Divine Things and Revelation,” involved him in bitter discussion with Schelling. Jacobi was a philosophical critic, rather than the founder of a distinct philosophical system, and his polemical works did good service to philosophy by weeding false theories from systems already in existence. He was an honest, diligent, and penetrating inquirer after truth, and carried a reverent mind and a sincerity[II-152] of purpose into all his investigations. He affirmed that all our knowledge of the divine world comes by spiritual intuition, and that all demonstrative systems tend to fatalism.

[By Tieck, 1809. In plaster. Modelled at Munich, and now in the Royal Museum, Berlin.]

345. Albrecht Thaer. Physician and Agriculturist.

[Born at Celle, in Hanover, 1752. Died at Mœglin, near Frankfort, 1828. Aged 76.]

Educated for the medical profession at Göttingen, where in 1774, he took his doctor’s degree. From his youth upwards of a serious and reflective turn, engaged in philosophical studies, and in brooding over plans for the amelioration of his kind. He passed some time in England, at the University of Oxford, and there attracted the notice of George III., to whom he was appointed Physician in Ordinary. After making a pedestrian tour through England, he visited Scotland, and closely investigated the system of agriculture there pursued. Henceforth he belonged to agricultural science. In 1794, he published his introduction to English agriculture. Retiring to Celle upon the death of his father, he founded in his native place an institution for the education of young agriculturists. Implements instantly improved, and a rational system of cultivation spread throughout the Communes bordering on that of Celle. Invited to Berlin, he quitted Hanover in 1804. Obtaining a property at Mœglin on the Oder, through the generosity of the King of Prussia, he began a course of oral instruction in agriculture to classes of youth collected from all parts of Germany. His Institution rapidly rose to the rank of an Academy, and all its Professors were paid by the Prussian government. As an agricultural writer, the name of Thaer is worthy of being placed beside that of our own Arthur Young, and of the meritorious Frenchman, Olivier de Serres. He is the reformer of husbandry in his own country, and an enlightened expounder of the great principles upon which agricultural prosperity in modern times rests.

[By Carl Wichmann. Marble. In the possession of Thaer’s family at Mœglin.]

346. Samuel Hahnemann. Physician and Founder of Homœopathy.

[Born at Meissen, in Saxony, 1755. Died in Paris, 1843. Aged 88.]

He began life under good auspices. His father, a porcelain painter, an upright and instructed man, in straitened circumstances, is said to have been assiduous in inculcating upon him his own principles of integrity. When, unable to support further the expenses of his education, he was about putting him to a trade, the Meissen professors, struck by the lad’s talents, resolved to continue his education gratuitously, and afterwards obtained for him the same favour at Leipzig. He embarked in his profession, and gained such distinction, that for a whole twelvemonth, during the illness of the celebrated Wagner, all the hospitals of Dresden were placed under his direction. His eminence offered the fairest prospects, when he was visited by a growing distrust of the science which he practised. He found in it no settled and commanding principles. He saw the ablest men, groping their way between experience and conjecture. One law, as he thought, dawned on him; that the cure of the disease is to be effected by the same agent which, in the healthy body, would have produced it. On this basis he re-constructed medicine, giving to his new system the name of “Homœopathy,” or “The Science of Like Affections.” His disciples devoted themselves to the creation[II-153] of a suitable Materia Medica, by experimenting upon their own healthy bodies; and it is a second discovery of Hahnemann, if a discovery, that infinitesimal doses may be effectual in the cure of disease. The system of Hahnemann waged war to the knife, and it met with war to the knife. As an historical point it is worthy of remark, that Homœopathy has spread, and is spreading, its conquests. The honesty of the founder may stand on the single plain fact, that by denouncing and renouncing established doctrines, he stepped down from the safe height of his profession, into hazard of the poverty which he had tasted, and from which he had laboriously risen.

[By Rauch. The original bust is in marble, in the Library at Bremen.]

346A. Samuel Hahnemann. Physician and Founder of Homœopathy.

[This is a colossal bust representing the homœopathist at a more advanced age.]

347. Heinrich Wilhelm Mathias Olbers. Astronomer.

[Born at Abergen, in Germany, 1758. Died at Bremen, in Germany, 1840. Aged 82.]

In 1779, whilst studying medicine at Göttingen, he became known as an astronomer by his observations on the comet of that year. He then discovered a new method of calculating the orbits of comets. In 1802, he discovered the planet Pallas; and in 1807, after an arduous search of three years, the planet Vesta. Olbers was by profession a physician, and he divided his time between the practice of medicine, and the pursuit of his darling study. His observatory was the most complete known in Germany at his time. He wrote but little, and his works are on abstruse subjects. His valuable library was purchased at his death by the Emperor of Russia, and deposited in the University of Pultowa.

[For description of this statue, see Handbook to Modern Sculpture.]

348. Friedrich Augustus Wolf. Philologist.

[Born at Hainrode, in Germany, 1759. Died at Marseilles, 1824. Aged 65.]

Son of the organist of Hainrode. In 1777, he entered the University of Göttingen, where he gave private lessons to his fellow-students in English and Greek, and published an edition of Shakspeare’s Macbeth. In 1807, he went to Berlin, and took an active part in the foundation of the University shortly afterwards created there. Is honourably known to literature, for his erudite and admirable editions of the classical authors, and for his bold elucidation of many obscure points in ancient learning. His most celebrated work, the “Prolegomena ad Homerum,” published in 1795, was directed to overthrowing the opinion, previously universal, which saw in the “Iliad,” the entire creation of a single mind. He argues that it is the contexture of distinct traditionary songs, the productions, probably, of many distinct singers: thus dissolving at once the unity of the poem and of the poet, and making out of one many Homers. An earlier suspicion had already separated the authorship of the “Iliad” and the “Odyssey.” Both questions are still in full debate amongst the learned. He may be regarded as the founder of the modern philological school of Germany; and his “Prolegomena” undoubtedly exercised a greater influence upon modern scholarship than any work that has yet appeared.

[By F. Tieck. Marble. 1822. In the Royal University, Berlin.]

[II-154]

349. Johann Gottlieb Fichte. Philosopher and Metaphysician.

[Born at Rammenau, in Germany, 1762. Died at Berlin, 1814. Aged 52.]

He was an humble private teacher in Leipzig when he first made acquaintance with the writings of Kant, whose views he eagerly adopted and cherished. He subsequently (1792) introduced himself to Kant by a work which he wrote in eight days, “A Critique upon every possible Revelation.” This publication procured for its author the Chair of Philosophy at Jena, in 1793, which he was obliged to resign in consequence of his heterodox religious principles. Finding an asylum in Prussia, he was appointed to the Philosophical Chair first at Erlangen, then at Berlin. In 1813, he joined a corps of volunteers, and took part in the memorable campaign of that year, his wife accompanying him, and performing many heroic and womanly services to the wounded. Husband and wife both took fever in the discharge of their duties, and died. It has been said of Fichte that he erected the temple which Kant declined to build. His great aim was to construct a science out of Consciousness, and to found upon it a system of morals. He endeavoured to establish the identity of Being and Thought, and is therefore the great advocate of Idealism, which, however, he understood in a different sense from that taught by Berkeley. According to his theory, the realization of the world is the complete development of ourselves—which should tend to the beautiful, the useful, and the good. His life and death were both honourable to his nature. Before he died, he was doomed to see his system in a great measure superseded by that of Schelling.

[Bust by Ludwig Wichmann. Marble. The original is in the hall of the University of Berlin. Executed for the University.]

350. Christoph Wilhelm Hufeland. Physician.

[Born at Langensalze, in Saxony, 1762. Died, 1836. Aged 74.]

Professor of medicine at Jena in 1793, and physician to the King of Prussia. The author of several works, the most celebrated being “The Art of prolonging Human Life,” a book translated into many languages. His fame in his own country was very great, and he is styled the Nestor of German practitioners.

[By Rauch. Marble. 1833. A commission from the University of Berlin, where the original exists.]

351. Alexander von Humboldt. Naturalist and Traveller.

[Born at Berlin, 1769. Still living.]

The mighty traveller of our own day. Filled with literature and science, as if he had spent one life in the library, the laboratory, and the observatory, he performed the work of another in treading visited and unvisited plain, valley and mountain of the eastern and western hemisphere; uniting an ardour of spirit and a vigour of intellect rarely mated, and not often, singly matched. An author of books that have advanced existing science, and the creator of new sciences. His writings, conveying an account of his world-wide journeys and scientific exploits, and treating profoundly and originally of general physics, zoology, comparative anatomy, astronomy, mineralogy, magnetism, and botany, are without parallel for richness of materials, and in respect of their value as manuals for all enlightened explorers of the marvels of nature. After a life of almost superhuman labour, and inconceivable[II-155] results, the grey-headed sage sums up the diligence of his lengthened years, in a survey which registers, along every line of human inquiry, the point of progress attained in the contemplation of the Universe,—the first half of the teeming nineteenth century having elapsed. Who else could have achieved—who but he could have attempted—the Atlantean service? Who but the philosopher, to whom the whole cycle of the physical sciences is familiar—who walks hand in hand, a friend and fellow-labourer, with their most distinguished inquirers? Who but the scholar, before whose eyes the lore of old time lies unrolled? Who but the workman whose strength toil cannot quell, and whose fire age does not quench?—Spread his “Kosmos” before a young and ardent intelligence, which has just then accomplished its regular liberal nurture, and say “Read and comprehend.” The comprehension exacted will, when acquitted, have added an education.

[By Rauch. Executed in marble at Rome, 1823.]

351A. Alexander von Humboldt. Naturalist and Traveller.

[This medallion, by F. Tieck, was modelled gratuitously for a medal struck at the expense of those who had attended a course of lectures delivered by Humboldt, and by them presented to him.]

352. Gottfried Hermann. Philologist and Critic.

[Born at Leipzig, 1772. Still living.]

This distinguished scholar evinced, at a very early age, a taste for classical literature, but was compelled by his father to study law at Jena. Returning to his native city, he resolved to abandon the career of jurisprudence for that of literature. In 1798, he became Professor of philosophy. The foundation of his reputation was his fine work on Greek metres, well known to English students. He translated “The Clouds” of Aristophanes, and some tragedies of Euripides and Sophocles. His academic dissertations are numerous, and his Latin poems are admirable specimens of antique composition. Hermann has rendered invaluable service to the cause of letters. Goethe said of him, that he was “a true Sçavant, for he knew how to renew the old and to revive the dead.” Dr. Parr placed him at the head of the great contemporary critics.

[By Ernst Rietschel. Marble. 1846. Executed for the University of Leipzig, and placed in the hall there.]

353. Friedrich Wilhelm Joseph von Schelling. Metaphysician.

[Born at Leonberg, in Germany, 1775. Still living.]

At Leipzig, where he studied medicine and philosophy, became the pupil of Fichte. Afterwards filled Fichte’s vacant Chair at Jena, where he lectured with great success. Continued in Bavaria until 1842, when he was invited by the King of Prussia to Berlin. Is still there, occupying as lecturer the philosophical Chair once held by Hegel. Is often styled the German Plato. It has been suggested that he should rather be called the German Plotinus. Schelling proclaims the incapacity of reason to solve the problems of philosophy, and calls in the aid of a higher faculty—“intellectual intuition.” He is the founder of a new school of scientific thinkers, called the Nature Philosophers, of whom Oken is the most illustrious example. He treats Newton’s speculations upon light with disdain, although they have led to many practical discoveries. Schelling’s views on light and philosophy, generally, will probably lead to little more than endless disputation. His works, nevertheless, indicate a vivid imagination[II-156] conjoined with, subtle dialectics. Coleridge, in his philosophical writings, has often adopted and adapted the ideas of Schelling. In many respects, Schelling’s head and face resemble those of Socrates.

[By J. Halbig. Marble. 1852. The original is in the Royal Palace at Munich. It was executed by order of King Maximilian II.]

354. Jan Jacob Berzelius. Chemist.

[Born at Ostgothland, in Sweden, 1779. Died at Stockholm, 1848. Aged 69.]

The son of a village schoolmaster, and educated for the medical profession. Cultivated with ardour the science of chemistry, which then scarcely drew the attention of the medical student. Appointed Professor of Chemical Pharmacy in the University of Stockholm, and retained the Chair for the space of forty-two years. At home and abroad he attained to great honour and distinction. In Sweden he was made a noble, and he could boast of connexion with eighty-eight scientific societies of Europe and America. His patient investigations helped largely to lay the foundations of organic chemistry; and to him pre-eminently belongs the honour of applying the great principles of inorganic chemistry. He invented the use of symbols for chemical formulæ, an invaluable method of representing chemical changes; and was as distinguished for his researches in analytical chemistry, as for his philosophical views of the science. His personal appearance was that of a strong, healthy man, and gave no indication of his intellectual power. An early riser, devoting all his mornings to his scientific labours, and his evenings to social relaxation. He was beloved in Stockholm.

[By Rauch. Marble. 1822.]

355. Sulpitz von Boisserée. Architect and Archæologist.

[Born at Cologne, 1775. Still living.]

A man to whom, as to his brother, Germany is indebted for one of its most interesting and valued picture galleries. The two brothers, and a friend named Bertram, in 1803, formed a resolution to collect the artistic antiquities of Germany, and for years all three pursued their object with the utmost vigour, intelligence, and zeal. In 1814 “The Boisserée Collection” already reckoned 200 works of art, and was arranged at Cologne. It was ultimately transferred to Stuttgart, on the invitation of the King of Wurtemburg. Many valuable masterpieces of old masters were thus brought to light. In 1827, the collection was ceded to Louis, King of Bavaria, for 120,000 dollars, and in 1836 conveyed to Munich, in which city Sulpitz and his brother established themselves. A writer upon the “Architectural Monuments of the Lower Rhine,” and an indefatigable, as well as a successful, day labourer in the field of his early and later discoveries.

[Bust. Plaster. By L. Schwanthaler. 1840. The original is in the Palace at Munich.]

356. Peter Kaspar Wilhelm Beuth. Member of the Council of State in Prussia.

[Born 1782. Died 1853. Aged 71.]

Director in Berlin of the Government department of trade, commerce, and buildings, and head of the Great Industrial Society of Prussia. In his public service he endeavoured to advance the principles of Free-trade, and always acted upon the idea that the regulative intervention of[II-157] government in matters of commerce should be restricted to cases of general danger. He established many useful institutions in connexion with his department, and caused the issue of several works of instruction for industrial schools and for artisans. He also introduced into Prussia valuable improvements in manufactures, brought home by himself from the United States, England, and France, into which countries he had travelled. An active promoter of enlightened industry.

[By F. Tieck. 1847. Modelled for a large gold medal struck by the Great Society for the Encouragement of Industry in Berlin, and presented to Mr. Beuth.]

357. Karl Gustav Carus. Physician and Anatomist.

[Born at Leipzig, 1790. Still living.]

The son of a painter. Intended for a dyer,—he devoted himself to the study of chemistry; but, widening his sphere, applied himself to medicine, and, subsequently, to anatomy. In 1811, appointed to the Chair of Comparative Anatomy in Leipzig; and, in 1815, to the Directorship of Clinical Midwifery, at the Medico-Surgical Academy of Dresden. Has acquired great reputation by his lectures on Psychology. Also a painter of considerable talent, and the author of numerous works on Medicine, and upon Art. His Letters on Landscape-painting are valuable to artists; their merit was recognised by Goethe. No less important is his book on the “Proportions of the Human Body,”—just published. In him severe science and beautiful art—a rare union—are happily combined.

[By Ernst Rietschel. Plaster. 1846. In the possession of the sculptor.]

358. Karl Gutzkow. Journalist and Dramatist.

[Born at Berlin, 1811. Still living.]

A German author, who, after the breaking out of the Revolution of 1830, exerted himself to advance the interests of his countrymen by publishing one work against Revelation, for which he received three months’ imprisonment, and another against Marriage, which was scarcely issued before he himself entered the marriage state. The dramas of Gutzkow have fared better than his polemical writings, some of his plays being very popular. He is a prolific author, and has cleverness and wit, which he brings to the illustration of every topic of the day; but his vanity and conceit surpass his abilities, and perpetually mislead him.

[By Ernst Rietschel. Plaster. 1850. In the possession of the sculptor.]


SOLDIERS AND STATESMEN.

359. Hans Joachim von Ziethen. Prussian General.

[Born at Ruppin, in Germany, 1699. Died at Berlin, 1786. Aged 87.]

One of the bravest and best of the great Frederic’s generals. Served with great honour in the campaign of Silesia, 1742; secured the victory of Hennesdorf by the eminent skill displayed in the retreat from Bohemia. As lieutenant-general, made the campaign in Saxony, 1756, and won further distinction in 1760 at Torgau. When 80 years old still eager for action, and[II-158] kept out of battle only by the kind interdict of the king. He died honoured by his sovereign, beloved by his inferiors, and worshipped with enthusiastic admiration by the great mass of the people. Frederic the Great was fond of proposing military problems to his officers, asking them, in such or such an imaginary situation,—“What would you do?” to which the other officers replied, as they best might. All that he could ever get from old Ziethen was: “Sire, only let me see the enemy coming, and I shall know well enough what to do with him.”—So he did.

360. Gebhardt Lebrecht von Blucher, Prince of Wahlstadt. Prussian Field Marshal.

[Born at Rostock, in Germany, 1742. Died in Silesia, 1819. Aged 77.]

First entered the Swedish army. Taken prisoner by the Prussians, whom he joined, but expelled from this service for duelling and dissipation. Retired to the country, married, and, after fourteen years’ quiet, returned to the army as Major of the very regiment which he had quitted as Captain. Then commenced a glorious military career, proudly terminating with his opportune appearance on the field of Waterloo. In 1814, visited England with the allied sovereigns, and was enthusiastically received. A rough and fearless soldier, brave, honest, free, beloved by his comrades, devoted to his country, and a bitter hater of his country’s foes. As a general, daring, reckless, and impetuous, to the detriment of otherwise high military qualifications. In temper he was vehement and irascible, and an ardent lover of pleasure. His soldiers gave him the nickname of “Marshal Forwards.”

[Bust, by Rauch. 1816. Marble. This is the bust presented by King Frederic William III. to the Duke of Wellington, and is in the gallery at Apsley House. The large intaglio (No. 360A) is from the monument at Kriblowitz, a small village near the city of Kant, in Silesia, and about ten English miles from Breslau. It was erected about six years ago by order of King Frederic William IV. of Prussia, and is designed after the ancient Roman sepulchre of Cæcilia Metella, but on a smaller scale, being thirty feet high. It is constructed entirely of granite, and the ceiling is formed of one large block. A marble sarcophagus within contains the remains of Blucher. The monument at Löwenberg, on the river Bober in Silesia, was erected by King Frederic William IV. to commemorate the battle of Katsbach, won by Blucher over the French in 1813. It consists of a colossal bust in marble upon a pedestal of grey marble, bearing an inscription. The bust, No. 360B, was sculptured by Berger, a pupil of Rauch’s, after the head of the colossal statue in bronze by Rauch, which stands in the Place at Breslau.]

360A. Gebhardt Lebrecht von Blucher, Prince of Wahlstadt. Prussian Field Marshal.

360B. Gebhardt Lebrecht von Blucher, Prince of Wahlstadt. Prussian Field Marshal.

361. Friedrich Wilhelm Bulow. Prussian General.

[Born in Mecklenburgh, 1755. Died at Königsberg, 1816. Aged 61.]

A brave man and a distinguished general. He fought under Blucher in the battles of Eylau, Friedland, and Tilsit. In 1813, he three times saved Berlin from the advancing French army. He was in the great battle of Leipzig; and in 1815, he repulsed Vandamme and Grouchy on the heights of Wavre. The marvellous rapidity with which he brought up his division to the field of Waterloo won high commendation from the Duke of Wellington.[II-159] He had great taste in the Fine Arts, and a cultivated mind. He composed some pieces of sacred music, which have been much admired.

[By Rauch. Bronze. 1824. In the Pleasure Garden near the Palace at Potsdam.]

362. Karl Baron Von Stein. Prussian Minister of State.

[Born at Nassau, 1756. Died 1831. Aged 75.]

A great Minister of modern times. Though rough and uncouth in his manners, his honour was unimpeachable, his integrity without a flaw, and his devotion to the interests of Prussia patriotic and enlightened. He was Prussian Minister of Finance in 1804: but resigning in consequence of some differences with the King, he retired to his patrimony in Nassau. Thence recalled after the peace of Tilsit, he resumed his functions, and commenced a series of great social, economical, and material reforms, which led directly to the resuscitation of the Prussian monarchy, and to her present eminence. Napoleon, jealous of the useful activity of this Minister, demanded and obtained his exile. In 1813, the banished man proceeded to St. Petersburg, where his counsels directed the Emperor Alexander through the crisis of that dreadful year. Nor did Prussian interests suffer, in consequence of the sagacious advice that came from time to time to Berlin from the exile’s retreat in Courland.

363. Gebhardt David Scharnhorst. General.

[Born in Hanover, 1756. Died at Prague, 1813. Aged 57.]

A very distinguished general of his day. He served first in the Hanoverian service, then in the army of the King of England, and finally in that of Prussia. In the war with France, in 1806, he contributed greatly to the brilliant retreat on Lübeck, effected by Blucher. After the peace of Tilsit, he was named President of the Commission for the re-organization of the Prussian army, and his energy and wisdom enabled Prussia to bring a finely appointed army of 200,000 men into the field, after Napoleon’s Russian reverses. He was wounded at Lutzen, and died at Prague shortly afterwards. In 1804, he had been appointed by the King of Prussia, conjointly with Baron Knesebeck, instructor to the Prince Royal: and at one time of his life he wrote several works on military subjects, which gained him great repute.

[By Rauch. Modelled in 1819, and executed in bronze by order of King Frederic William III. It stands in the Pleasure Garden near the Royal Palace at Potsdam. A colossal bust, taken from the same model, was done by Rauch, by order of King Louis of Bavaria, for the Walhalla.]

364. Yorck, Count von Wartenburg. Prussian Field Marshal.

[Born at Königsberg, 1759. Died 1830. Aged 71.]

One of the ablest Prussian generals in the wars with Napoleon. He fought under the British flag in the American revolution. When commanding subsequently in the Prussian service, he concluded in 1812, on his own responsibility, the celebrated Convention which separated the Prussian troops from the French, and proved one of the main causes of Napoleon’s overthrow. He gained many victories at various times, and was honoured with the title of Wartenburg for the battle fought at that place. In 1821, he was created Field-Marshal. A brave man, endowed with great military[II-160] talent; a shrewd observer of men, ambitions, violent, yet devoted to his country.

[By Rauch. Bronze. 1818. In the Pleasure Garden near the Palace at Potsdam.]

365. Friedrich Heinrich von Nollendorf. Prussian Field-Marshal.

[Born at Berlin, 1763. Died there, 1823. Aged 60.]

A distinguished Prussian officer. Commanded a brigade in the Prussian contingent to Napoleon’s disastrous expedition to Russia, and bore an honourable part in the wars subsequently undertaken against Napoleon. Accompanied Frederic William of Prussia on his visit to England. He died on the same day as Buonaparte. All the sovereigns of the coalition had conferred honours upon him, and Napoleon himself decorated him with the cross of the Legion of Honour.

[By Rauch. Bronze. 1819. In the Pleasure Garden near the Palace at Potsdam.]

366. Augustus, Count Herdart de Gneisenau. Field-Marshal.

[Born at Schilda, in Upper Saxony, 1760. Died at Posen, in Prussia, 1832. Aged 72.]

An eminent soldier, who served first under the Margrave of Anspach-Bayreuth; then in the English, then in the Prussian service. On the return of Napoleon from Elba, he was placed at the head of Blucher’s staff, and was mainly instrumental in bringing up the Prussian troops at Waterloo, where he ably conducted the pursuit. In 1831, took the command of the Prussian army on the breaking out of the Polish insurrection, and died of cholera the same year. A great master of strategy.

[By F. Tieck. Bronze. 1821. In the Pleasure Garden near the Palace at Potsdam.]

367. Karl Wilhelm Baron von Humboldt. Statesman and Philologist.

[Born at Potsdam, in Prussia, 1767. Died near Berlin, 1835. Aged 68.]

In William Von Humboldt the highest qualities of a scholar were united to the talents of a statesman and man of the world. He discharged the functions of Ambassador at Vienna and in London, and served his country on more than one grave and diplomatic mission. He was extensively learned in languages dead and living; but that is common in Germany. His originality, as a philologist, lies in a delicacy of abstruse thought—a philosophical vein, as fine as profound, which he brings to bear on all questions of the literary field, from the rigid investigation of grammatical forms and laws, to the most feeling and comprehensive criticisms of taste. A rare power of sifting analysis, a strong impulse to tread, alone and self-guided, unfrequented grounds, and an eye to seek out new truth on ground the most trodden, may be read in his various masterly writings. He was a poet also.

[Modelled by Thorwaldsen, at Rome, in 1807. It has since been executed in marble by order of King Frederic William III., and placed in the Museum at Berlin.]

368. Hermann Von Boyen. Prussian Minister of War.

[Born at Kreutzburg, in Prussia, 1771.]

Commenced his military career as corporal in an infantry regiment, 1784, and gradually rose until, in 1799, appointed Staff-Captain. In his youth a[II-161] great student of the works of Frederic the Great; and from 1794 to 1796, during the war with Poland, the adjutant and friend of the celebrated General Von Günther, whose military disciple he became, and whose memoirs he subsequently composed. In his twenty-eighth year he wrote a treatise upon military law, which eminently conduced to the more humane treatment and greater comfort of the common soldier. Served in all the later wars against Napoleon. Major-general at the Peace of Paris, when he became Minister of War. In that capacity, established in connexion with the service a number of organic laws, which display great practical wisdom, and a manly consideration for the well-being of the army. Retired from office in 1819, and occupied himself in literary pursuits. Reinstated by the present King of Prussia in 1841, he at once pursued his former energetic course of improvement on behalf of his country and of its loyal defenders, to the great joy of the soldiers, and with the honour, good-will, and affection of the people.

[By Hopfgarten. The original bronze is in the Palace at Potsdam.]

369. Otto-Feodor Freiherr von Manteuffel. Prussian Minister.

[Born, 1805. Still living.]

Educated at the University of Halle. In 1827, went to Berlin, where he was employed in the Administration. In 1841, appointed Chief Counsellor of State and Director of the Home Department in the government of Königsberg. When, in 1847, the first united Prussian Chamber met, Manteuffel powerfully defended the existing system against the liberal attempts of the day; and in April, 1848, protested and voted against universal suffrage. In November, 1848, appointed chief Administrator for Brandenburg, since which time his ministerial activity has become matter of Prussian history. Manteuffel took an active part in framing the constitution of December 5, 1848. After the death of Count Brandenburg, he was entrusted provisionally with the direction of foreign affairs; and in 1850 was elected President of State. He is in high favour with the king, but not so popular with the liberal party.

[By Vollgold. Bronze. 1850. In the Pleasure Garden near the Palace at Potsdam. First executed by the artist for his own gratification. Has since been cast in bronze by order of King Frederic William IV.]

370. Count Joseph Radetzky. Austrian General.

[Born in Bohemia, 1766. Still living.]

Has been a soldier, and in active service, for upwards of seventy years. He took part in the great struggle against Napoleon. In 1809, distinguished himself at Agram, and in the battles of 1813, 1814, and 1815, won fresh laurels. In 1822, appointed Commander-General of the Lombardo-Venetian kingdom. His last great service for Austria was after the Revolution of 1848, when he opposed and defeated the vacillating attempts made by Charles Albert of Sardinia, on behalf of Italian liberty. When it is said that Radetzky is a brave soldier, an able general, a loyal subject, and, as many aver, a courteous gentleman, his claims to respect are enumerated. He is rigid and severe, if not cruel, as he is certainly regardless of all human considerations that presume to interpose between him and the duty which he owes as a soldier to his king.

[By Rauch. Considered to be a very exact likeness.]

[II-162]


PRELATES AND THEOLOGIANS.

371. Martin Luther. The Great Reformer.

[Born at Eisleben, in Saxony, 1483. Died there, 1546. Aged 63.]

The Lion of the Reformation. One of the men who, by coming to their time, have made an epoch in the world’s history. Assuredly the abuses of Rome,—in her second supremacy, as the spiritual mistress of the world,—must have aroused their effectual remedy; for partial resistances, before Luther rose, showed how deeply the mind of mankind resented and resisted the oppression and the spiritual malversation, and how fast the time was ripening for general revolt. Europe, since the overthrow of the Roman Empire, had been gradually rising with the inward vigour of her renewed life. The restored study of classical letters came as a powerful external impulse. Rome had but slowly established her domination, and only then securely given herself up to licence. Thus the strengthening of the evil on the one hand, and of the resisting life on the other, met: and then Luther came. He was fit for his Herculean labour. He had stepped from the very heart of the people, and his strong nature bespoke his hardy origin. He was fearless as one who could not feel fear in the midst of the most terrible danger; he was zealous as one who labours under the sense of Divine appointment, who knows that to die may be to live, to live may be to suffer worse than death: and who rejoices equally at every turn of fortune. He was threatened with the stake: he persisted in his crusade all the more for the menace. The Pope excommunicated him in the face of all the world. He denounced the Pope before as large an audience. The Pope publicly burned all his writings: he publicly burned the Bull of excommunication, the Canon Law, and the Pope’s Decretals. Before Luther died,—and he fell asleep tranquilly, worn out with labour, not with age,—his doctrines had already taken deep root in the wide world. We are all the debtors of his work; and we may remember with gratitude the generous protection of the Elector of Saxony, who again and again refused to give the Lion up, when the hunters loudly demanded his blood at the gate.

[By G. Schadow. Marble. The original placed in the Walhalla by order of King Louis. Luther was excluded from the Walhalla till 1848, when he was admitted, and inscribed as Dr. Martin Luther. In the Berlin Museum there is a portrait of him from the life, by L. Cranach, as the Junker Georg, with moustaches, painted when he was concealed in the Castle of Wartburg.]

372. Philip Melancthon. German Divine and Reformer.

[Born at Bretten, in the Palatinate of the Rhine, 1497. Died at Wurms, in Germany, 1560. Aged 63.]

The wise and gentle sharer with Martin Luther in the glory of the Reformation. Melancthon was Professor of Greek in the University of Wittemberg in 1518, when Luther was there teaching Theology. They united their great gifts and powers to do the perilous labour of their lives, and each proceeded to his mission in the spirit created within him for the accomplishment of a seemingly superhuman task. Luther raged furiously against the error he encountered on his path. Melancthon strove to entice it into the right road by gentle words and mild remonstrance. The one exhibited the resolute bearing of a soldier fighting for the church militant;[II-163] upon the face of the other beamed the quiet heroism of the Christian saint. Luther upbraided his companion-in-arms for his lukewarmness. Melancthon met the rebuke by continuing his steadfast course of conciliation, caution, and thoughtful zeal. Luther found no friend in the camp of the enemy. The most intolerant of his foes respected the mild virtues of Melancthon. Both were fit instruments for the hour in which they were summoned to action, and for the sacred cause they arose to defend: and, as was fitting, both were buried side by side in death, as they had laboured side by side, and hand to hand, in life. Melancthon compiled the celebrated Augsburg Confession. He was a great scholar, attached to the study of mathematics, and to scientific studies generally. He had no desire for worldly honours and distinctions. He was a true hero.

[From the marble by G. Schadow. Placed in the Walhalla by order of King Louis.]

373. Friedrich Ernest Daniel Schleiermacher. Theologian.

[Born at Breslau, in Prussia, 1768. Died at Berlin, 1834. Aged 66.]

His parents were of the Moravian brotherhood, which he quitted at the age of 18, and began to study philology and divinity at the University of Halle. In 1802, he taught the same subjects in the same University of Halle. In 1833, he visited England, and opened the German chapel of the Savoy. The author of several works distinguished for profound thought, conveyed perspicuously to those he is addressing. He was an excellent theologian, a distinguished philologist, a profound critic, and an admirable translator. His translation of Plato, unfortunately not completed, is the best extant. He had a pure and pious mind.

[By Rauch. Marble. 1822. A commission from the University of Berlin. The same bust was placed over his tomb by the friends of Schleiermacher.]


KINGS AND QUEENS.

374. Frederic William. Elector of Brandenburg.

[Born at Cologne, 1620. Died 1688. Aged 68.]

Surnamed the Great Elector, and father of the first King of Prussia. He succeeded to the government in 1640, and found his dominions exhausted by war and mismanagement. He restored the public finances, and corrected abuses. In 1655, he joined the Swedes in the invasion of Poland. In 1678, he completed the conquest of Pomerania. He then fought against the Swedes, and involved himself in war with France, because, after the revocation of the Edict of Nantes, he had befriended 20,000 French Protestants who sought protection at his door. In 1686, he helped the Emperor against the Turks, and two years afterwards assisted William of Orange in his invasion of England. He left his territory as rich, fruitful, and well-governed, as he had found it poor and distracted. He has been censured for his frequent change of party, but he deserves his name of “Great,” no less for the victories he won abroad, than for the good services performed at home. He is described as a generous, kind-hearted man.

[By Ludwig Wichmann. Bronze. At Treptow.]

[II-164]

375. Frederic William I. King of Prussia.

[Born at Berlin, 1688. Died there, 1740. Aged 52.]

The son of Frederic I. and the father of Frederic the Great. The best that can be said of him is, that he left behind him a full treasury and an efficient army of 66,000 men. He was rough and rude in his manners, a hater of luxury, and parsimonious in all things but his expenditure for the increase of his military resources. He had a childish desire to fill all his regiments with very tall men, and was unscrupulous in his methods of gratifying the whim. An amusing story is told in connexion with this passion. Meeting with a fine, tall, and strong young peasant woman, who was on errand to the quarters of a regiment, he gave her a letter to deliver to the commanding officer, ordering him to marry the bearer to his tallest grenadier. The girl, hindered on her way, and not knowing the purport of her mission, entrusted it to a little old woman, and the marriage was effected accordingly. His contempt for science and literature was supreme, and he made no secret of his want of all respect for their professors. He was feared, not loved, in his country, and his death caused no regret.

[By Hopfgarten. Bronze. At Treptow. Done within the last ten years.]

376. Frederic II., Surnamed the Great. King of Prussia.

[Born at Berlin, 1712. Died 1786. Aged 74.]

The greatest soldier of his time, and the most famous king that Prussia has given to her throne. At the commencement of his reign, in 1740, his dominions contained two and a quarter millions of inhabitants. At the end of its 46 years, Prussia counted six millions of subjects. He held the field singly against Russia, Saxony, Sweden, France, and Austria; and came with honour and rich booty out of the conflict. A great worker, whether in the field or in the cabinet. His custom was to rise at five in the morning to read “papers.” These he dispatched with a word or two, written on the margin: the rest of the day was marked out with exact precision, a part of it being invariably devoted to literary pursuits, and to the cultivation of music, of which he was fond. No man ever gave less of his time to frivolity or inaction. His dress was plain, and never other than military; his toilet, when he rose, occupied him only a few minutes; he always wore high jack boots, and he never changed his dress during the day. An able administrator, a liberal encourager of art, science, and industry, and the personal friend of D’Alembert, Condorcet, and Voltaire, with all of whom he personally corresponded. His conversation was lively and brilliant, not unfrequently sarcastic: but, in action, he was not cruel. A free thinker, rejoicing in his intellectual independence. Besides his other acquisitions, he was one of the guilty sharers in the dismemberment of Poland. Nevertheless, dying, he left an illustrious name to his country, and a throne to his successor worthy the acceptance of a European monarch.

[For an account of the admirable and unique monument, by Rauch, of which this is the life-size model, see No. 195 in Handbook to Modern Sculpture.]

377. Frederic Louis Henry. Prince of Prussia.

[Born at Berlin, 1726. Died at Rheinsberg, in Prussia, 1802. Aged 76.]

The son of Frederic William I., of Prussia, and brother of Frederic the Great. A student in his youth, and a distinguished soldier in his manhood. He held important command during the Seven Years’ War. In later life, when he withdrew into retirement, he erected in his garden a monument on a huge mound of earth. It was raised in memory of his companions in[II-165] arms, and underneath, it, in a vault, he directed that his own remains should be interred.

[By Emil Wolff. Marble. 1847. It was modelled at Rome. The original is in the Palace at Berlin.]

378. Maximilian Joseph I. King of Bavaria.

[Born 1756. Died 1825. Aged 69.]

From 1799, Elector, and from 1806, King of Bavaria. The year that he saw his Duchy raised to the dignity of a kingdom, Maximilian, who for some years was the faithful ally of Napoleon, gave his daughter in marriage to Eugène Beauharnois. In 1813, the Bavarian king, acting in the true interests of his country and of humanity, joined the allies against France, and helped with them to rescue Germany from the fangs of the French invader. In public as well as private life, Maximilian was courteous, benevolent, simple-minded, and true-hearted.

[By Stiglmayer. In marble. It is in the Palace at Munich. Stiglmayer was for a long time at the head of the Royal Foundry for bronze casting.]

379. Frederic William III. King of Prussia.

[Born 1770. Died 1840, aged 70.]

The grand nephew of Frederic the Great. He succeeded to the throne in 1797, and, in 1806, was involved in a war with France, which, before its close, almost extinguished his kingdom. The peace of Tilsit, in 1807, left him little more than a nominal sovereignty. In 1810, he founded the University of Berlin; in 1812, took part with France against Russia; and in 1813, again declared war against France. His army shared in the triumphal entry into Paris in 1814; and in 1815, his soldiers under Blucher partook of the glory of Waterloo at the crisis of the battle. A man of domestic virtues, but of small capacity. Napoleon’s judgment of this King was somewhat harsh. “He is,” said Buonaparte, “the greatest idiot on the face of the earth—without intelligence, and incapable of sustaining a conversation for the space of five minutes—a true Don Quixote.” The present King of Prussia is the son of Frederic William III.

[By Rauch. Marble. 1826. In the Royal Palace at Berlin.]

380. Louis Ferdinand. Prince of Prussia.

[Born 1772. Died at Saalfeld, in Germany, 1806. Aged 34.]

A soldier of great distinction, and beloved by the Prussian army. In the war of 1806, he commanded the advanced guard of Prince Hohenlohe, and was killed in that year, whilst covering the evacuation of Saalfeld, in Central Germany. He died bravely. He was of a generous and vehement nature, a great advocate of the war, and frequently a violent opponent of the government. He was impatient of the fact, that the accident of his birth prevented the full exercise of energy and activity, which meaner men were permitted.

[By L. Wichmann. Bronze. 1822. At Potsdam.]

381. Louisa Augusta Wilhelmina Amelia. Queen of Prussia.

[Born at Hanover, 1776. Died at Hohenzieritz, 1810. Aged 34.]

The honoured wife of Frederic William III. of Prussia. Napoleon admired her for her wit, tact, and singular address, and Europe applauded her for her heroic character, and true nobility of soul. On the breaking out of the war with France, in 1806, she was inspired with enthusiasm, and was[II-166] frequently seen in the streets of Berlin at the head of her Hussars, whose uniform she wore. On the defeat of her husband at Auerstadt, she shared his perilous retreat, and evinced great firmness and resignation. She was also with her husband at the Conference of Tilsit, and was earnest in her entreaties to Napoleon for easier conditions on behalf of her unfortunate country. She was beautiful in person, calm and constant in reverses, with great dignity and grace of manner. She was beloved by her people.

[By Rauch. Marble. 1824.]

382. Ludwig I. Ex-King of Bavaria.

[Born 1786. Still living.]

The eldest son and successor of King Maximilian Joseph. As Crown Prince he took little interest in public affairs, but confined himself to the zealous patronage of the fine arts. Frugal in his personal expenditure, he was extravagant in his purchases of works of art, and in the construction of his celebrated Glyptothek, a building devoted to the reception of the finest works of sculpture. Ascending the throne in 1825, he commenced many economical reforms, but still drew around him, by his munificent patronage, the most celebrated artists of Germany, for the adornment and elevation of his capital. More than one stately edifice and exquisite collection in Munich bear testimony to his love for art and zeal in its promotion. He would have done still more for his city had he been permitted. He lodged the munificent sum of £30,000 in the hands of an English banker to purchase the Elgin marbles, in the event of their rejection by the English government. The sum actually paid for the marbles by England was £35,000. A grandeur is reflected upon this—the finest side of Ludwig’s character. On the other hand, he has lived to become a bigot, to forget his early political reforms, to deal with a rough hand in matters of religion and state, and to shock public opinion by illicit alliances, at the very moment he is expressing a pious anxiety for the restoration of monasteries. In 1848, Ludwig I. abdicated in favour of his son Maximilian, the reigning king. The ex-king is a ruler fit for the middle ages, when the love of art was intense and passionate, when manners were rude and unformed, and the people in fetters, spiritual and bodily.

[By Halbig, 1848.]

382A. Ludwig I. Ex-King of Bavaria.

[Colossal bust, by Ludwig Schwanthaler. Marble. 1840. The original is in the Royal Palace at Munich.]

383. Leopold I. King of the Belgians.

[Born 1790. Still living.]

Head of the House of Coburg. He was educated in Germany, and in 1816, married Charlotte, the daughter of George IV. of England. She died the following year. In 1832, he married a daughter of Louis Philippe of France; and in 1850, she also died. He was called to the sovereignty of Belgium in 1832. Although a foreign prince, and a Protestant ruling over a Catholic country, he has succeeded in winning the respect of all political parties, and the sympathies of all religious sects. He is the type of a constitutional king on the continent of Europe, and his personal influence, in European politics, is considered to be weightier than in proportion to the size of his dominions. He is the uncle of Queen Victoria.

[From the marble by G. Geefs, in Windsor Castle.]

[II-167]

383.* Louise Marie. Queen of the Belgians.

[Died 1850.]

She was the daughter of Louis Philippe, King of the French, and second wife of King Leopold I. of Belgium.

[From the marble by G. Geefs, in Windsor Castle.]

384. Frederic William IV. Reigning King of Prussia.

[Born 1795. Still living.]

A king whose good intentions and fair-sounding promises seem invariably to overbalance his powers of performance. Anxious for popularity, yet always vacillating on the path that leads to it. Manifestly ambitious, but kept aloof from the great prizes of ambition by want of moral courage, of earnestness, and vigorous action. He commenced his reign with many advantages, and might have rendered himself the most powerful sovereign of Germany, and the most popular of its rulers. He has missed the power, and parted with the popularity. He promised his people a constitution: they have never received it. In the Revolution of 1848 he sided with the extreme liberals, but only to bound back again—further than ever—into the arms of absolutism. In his conduct towards Russia and England in the momentous dispute of 1854, Frederic William IV. is faithful to his character and his antecedents.

[By Rauch. Marble. 1845. In the Royal Palace at Berlin.]

385. Nicholas Paulovitch. Reigning Emperor of all the Russias.

[Born 1896. Still living.]

The third son of Paul I. and of Maria Feodorowna, and the eighth sovereign of the Holstein-Gottorp dynasty, which is of German origin. Succeeded to the throne in 1825, upon the death of Alexander—his elder brother Constantine renouncing the throne in his favour. In 1826, declared war against Persia; in 1828, the war closed in his favour. In the same year found occasion for a quarrel with the Turks, crossed the Balkan mountains, which Russian troops had never before passed, and imposed hard conditions upon the Sultan—amongst others, the so-called Protectorate of the Danubian Principalities. The insurrection in Poland, after the French Revolution of 1830, the commencement of the war in the Caucasus, are familiar events. Still more recent is the interference of Nicholas in the war between Hungary and Austria—an interference that restored Hungary to Austrian rule—and, later still, the invasion of the Danubian principalities, on the plea of securing the rights of the Greek Church in the Turkish dominions. A fanatic in his adherence to Russian customs, language, and religion, and glorying in his title of Spiritual Chief of the Orthodox Church. The incarnation of despotism, and the stern hater of all liberal ideas. His rule military and absolute. Like Frederic the Great, he never shows himself but in military costume. Is of great height, and said to be very proud of his size. His life one of feverish activity. He gets through more work in a day than other monarchs can manage in a month. He rides, walks, holds a review, superintends a sham fight, goes on the water, exercises the navy, gives a fête, takes his meals, and enjoys his rest, all within the twenty-four hours. He is a wondrous traveller—travelling faster and getting over more ground than everybody else—and has an absolute passion for military evolutions. Since the days of the Empress Catharine, Constantinople—called in Russia[II-168] Czarapol (city of the Czars)—has been regarded as the future capital of the Russian empire. Nicholas, after much diplomacy, cozening, double-dealing, menace, and display of anger, has put forth his massive hand to seize it. The world waits to see whether that greedy hand shall grasp its prize, or recoil smitten and maimed for its unauthorized rapacity.

[By C. Rauch. Marble. 1820. In the Palaces at St. Petersburg and Berlin.]

386. Alexandra. Empress of Russia.

[Born 1798. Still living.]

The wife of Nicholas, the reigning Emperor of Russia, and the sister of Frederic William IV., King of Prussia.

[By Rauch. From the marble. 1816. A commission from the Emperor. It is in the Palace at St. Petersburg, and another copy is in the Royal Palace at Berlin.]

387. Francis Joseph. Reigning Emperor of Austria, and King of Hungary.

[Born 1830. Still living.]

Succeeded to the throne on the abdication of his uncle Ferdinand, in 1848, (the epoch of revolutions), his father, Francis Charles, having refused the Crown. At the time of his accession, Vienna had just been recovered from the insurgents, but Hungary was in arms against Austria. In 1849, a new constitution, of a more liberal character, was promulgated by the Emperor, and, in the same year, Hungary was reduced to submission by the assistance of Russia. In 1850, the young Emperor returned to the old system of absolute government. In 1852, his life was attempted by a Hungarian whilst walking on the ramparts of Vienna. Francis Joseph is personally popular. He is bold and soldier-like, possessed of strong will and independent judgment. His experience is beyond his years.

[By Halbig. Marble. 1850. The original is in the Imperial Palace at Vienna.]



ENGLISH PORTRAITS.

INTRODUCTION.

We have no great collection of Portrait Busts in England. The British Museum contains 20 antique portrait busts; those of Homer, Pericles, Diogenes, and Julius Cæsar have a good claim to authenticity. There are, also, in the Museum, some valuable antique Portrait Statues. The English portraits, in Sculpture, in the Crystal Palace have been collected, as time permitted, from old busts and statues, and from the studios of living and deceased sculptors. Attached to the lives of our English worthies given in the following pages, will be found, wherever practicable, the names of the respective artists.

[II-169]

With the English Contingent, the muster of our illustrious army for the present closes. Five hundred busts and statues constitute the vigorous germ of a collection which it is hoped eventually to render by its extent worthy of the magnificent structure in which it is housed, and of the subject which it is intended to vivify, viz.:—The history of the great men of all nations who have, by thought and deed, advanced human civilization, and stamped their impress, whether for good or evil, upon the world through which they have passed.


(The English Portraits commence immediately behind the Farnese Hercules at the north-west angle of the Great Transept and Nave.)

ARTISTS AND MUSICIANS.

388. Inigo Jones. Architect.

[Born in London, 1572. Died 1651. Aged 79.]

Inigo Jones served his apprenticeship to a joiner: but his talent for landscape-drawing obtained for him the favour of the Earl of Pembroke, in whose company he visited France, Flanders, Germany, and Italy. At Venice he was inspired with a taste for architecture, and following the art with ardour and success obtained the office of first architect to the King of Denmark. The king took Jones to England in 1606, and introduced him to James I. His employment at the English Court as scenic decorator is well known. The attachment of Inigo Jones, who was a Roman Catholic, to the cause of Charles I., caused him great loss and suffering during the civil wars, and he died, shortly after the sacrifice of his master, worn out with grief and trouble. The style of architecture introduced into England by this famous master, was founded on the Venetian school, and more particularly on that branch of it exercised by Andrea Palladio. It is distinguished by excellent proportions, and by a masculine and noble character, which, whilst it does not condescend to borrow too much from ornament, yet makes just use of its charm. The Banquetting House at Whitehall, the only completed portion of the magnificent palace designed by Jones, is his chef-d’œuvre, and bears comparison with any work of the Italian style in Europe. He practised the best and purest style of Italian architecture ever known in England.

389. Sir Christopher Wren. Architect and Mathematician.

[Born in Wiltshire, 1632. Died at Hampton Court, 1723. Aged 91.]

We think of Wren as the first of British architects; but he was something more. As a mathematician, he was in his day second only to Newton; and in general scientific knowledge, he had no superior. Educated at Westminster. At thirteen, had already invented a new astronomical instrument. At fourteen, entered Wadham College, Oxford;—and, young as he was, formed one of the original members of a club established for philosophical[II-170] discussions and experiments; a club out of which sprang the Royal Society. When twenty-five, Professor of Astronomy at Gresham College, London. At the Restoration, Savilian Professor of Astronomy at Oxford; his skill as an architect having been meanwhile shown in the Sheldon Theatre at Oxford. The popular fame of Wren rests on St. Paul’s Cathedral, which he began to rebuild nine years after the great fire, taking thirty-five years to complete his magnificent labour. Before, and during this lengthened period, he built other edifices, and applied his vigorous and subtle mind to the most abstruse branches of science. His mechanical discoveries are numerous. He invented an instrument for ascertaining the amount of rain falling in each year; he rendered the taking of astronomical observations more easy and exact; he was the originator of the attempt to introduce fluids into the veins of animals; and there is every reason to believe that to him, and not to Prince Rupert, we owe the art of mezzotint engraving. Amongst his architectural buildings are Trinity College Library, Cambridge, the new part of Hampton Court Palace, Chelsea Hospital, a wing of Greenwich Hospital, and the palace at Winchester. St. Paul’s, probably suggested by St. Peter’s at Rome, although not of equal dimensions with its supposed prototype, is a far nobler work of art, excelling it in plan, in composition externally, in variety of effect internally, and in scientific construction. Bow Church, Cheapside, St. Stephen’s, Walbrook, and most of the other churches, in the City of London—where he chiefly worked—with their exquisite and varied steeples, are the work of Wren, whose ecclesiastical edifices greatly surpass in beauty all his other buildings. In his time the Greek style had not been made known, and though with the Roman acquainted only through books, and the Renaissance buildings of Paris, his work in it is critically correct. His native genius is stamped upon his buildings, and he is ever to be admired, if not always imitated. Supplanted by Court intrigue in 1718, he spent his old age as quietly as intrigue would let him at Hampton Court, absorbed, and finding compensation, in his scientific studies, and visiting London occasionally to see how the repairs at Westminster Abbey were going on.

390. David Garrick. Player and Dramatist.

[Born at Hereford, 1716. Died at Hampton, 1779. Aged 63.]

The pupil of Dr. Johnson, with whom he went to London from Lichfield, in search of a profession. He adopted the stage, and after playing for some time at Ipswich under the assumed name of Lyddel, made his first appearance in London, in 1741, in the theatre of Goodman’s-fields. He was twenty-five years old—the part was Richard III.—the success triumphant. According to tradition, the sole imperfect reporter to posterity of the triumphs achieved on the scenic boards, Garrick was a rare master of his art; equally impressive in tragedy and comedy. Sir Joshua Reynolds painted him smiling at Comedy, looking sadly at Tragedy,—and claimed by both. He raised immeasurably the character of the actor’s profession in this country, and purified the stage. His acting was founded upon a delicate and thorough perception of Truth and Nature. To him is due the great merit of restoring Shakspeare to the boards, and of annihilating the false taste created by the dramatists of a later period. His last appearance on the stage was in 1776. He was small in stature, but well built; his eyes were dark, and full of fire. He had marvellous power of transfusing the workings of the soul into the face, and all the passions were at his bidding. He was very vain, and not[II-171] without other weaknesses; but else a generous and worthy man. His private life reflected additional lustre on his genius, and as citizen and artist he earned the honourable grave which he found in Westminster Abbey. Garrick was also a writer for the stage. His comedies and farces are lively and agreeable, and some of his epigrams have wit and fancy. Johnson and he maintained their friendship to the last. The great lexicographer affected contempt for the profession of his pupil; but he hugged “Davy,” nevertheless, in the folds of his capacious heart, and was justly proud of his achievements and renown.

391. Henry Fuseli or Fuessli. Painter.

[Born 1745. Died 1825. Aged 80.]

An artist of undoubted genius and originality, but very eccentric both as painter and as man. Born at Zurich, where he cultivated learning with great ardour, especially the literature of England; at the same time took delight in copying the works of Michael Angelo and Raffaelle. Came to England in 1763, and showed his paintings to Sir Joshua Reynolds, who praised the work and recommended to the young aspirant the usual pilgrimage to Rome. Obeying the command he remained for eight years in the city of Art, and then came back to England where he worked his way to honour. In 1790, he was Royal Academician; in 1799, Professor of Painting; in 1804, Keeper of the Royal Academy. Fuseli was a good scholar, endowed with a potent and wild imagination, and an excellent anatomist; but he suffered his imagination to lead him into extravagance, and his anatomy protruded itself in his pictures. He painted, in 1798, a series of forty-seven pictures illustrative of Milton. They reveal grand conception and daring power, but tremble occasionally on the verge of the grotesque. No later artist has ventured to follow him in his flights, but his profound interpretations of the true spirit of poetry may be contemplated by all men with advantage.

[From the marble, by E. H. Baily, R.A. Executed for Sir Thomas Lawrence, 1824.]

392. James Northcote. Painter.

[Born at Plymouth, 1746. Died 1831. Aged 85.]

The son of a watchmaker, and intended for his father’s business; but, at an early age, he transferred his affections from the parental shop to the more genial region of art. In 1771, he attracted the notice of Reynolds, under whose eye he studied for a time, and in 1777, set out for Italy. In 1783, first exhibited at the Royal Academy. In 1787, elected Royal Academician. The subjects of Northcote are chiefly historical, but he is not remarkable for power, or originality of conception. Although he displayed considerable skill in composition and colouring, as well as some vigour of expression, his ability in art was by no means equal to his enthusiasm and his application. Northcote was also a writer on art, and the author of a Life of Reynolds. At the age of eighty-four he published a Life of Titian. He was penurious and eccentric, and not a favourite with his brother Academicians.

[By E. H. Baily, R.A., 1821.]

392A. James Northcote. Painter.

[Modelled from the life, and executed in marble, by Joseph Bonomi. Presented by J. S. Scoles, Esq.]

[II-172]

393. John Raphael Smith. Engraver.

[Born about 1750. Died in 1811.]

A distinguished draughtsman in crayons, and a mezzotint engraver. The friend of Chantrey the sculptor, when that admired artist was serving his time at Sheffield, in the shop of Mr. Ramsay, carver and gilder. It is related that the sight of Mr. Smith’s drawings, together with his conversation, first rendered Chantrey impatient of his servitude in the carver’s workshop, and induced him to purchase his release, which he obtained two years before his indentures had expired, for the sum of fifty pounds. This bust of John Raphael Smith, by Chantrey, was the first that brought the young sculptor into note. It was exhibited in the Royal Academy when Chantrey was 24 years old, and, during the disposition of the works for exhibition, attracted the attention of Nollekens, who exclaimed, “This is a splendid work. Let the man be known. Remove one of my busts and put this in its place.”

[The subject of this bust was afflicted with deafness, and the expression of the infirmity is cleverly given in the face.]

394. John Flaxman. Sculptor.

[Born at York, 1755. Died 1826. Aged 71.]

Beyond all compare the greatest artist England has produced, and in all respects one of her worthiest sons. His life constitutes one of the landmarks set up in a nation for the guidance of the ambitious, and the encouragement of the desponding. His father was a moulder of plaster casts: in whose humble shop the boy received his earliest inspiration. Feeble, and crippled, and thrown upon himself, he read such books as he could obtain, and made drawings from the classic models that surrounded him. This was his education, for there was no money at home to purchase a better. At ten, the self-taught boy could read Latin, and had picked up much varied information. A shop filled with plaster casts will be visited occasionally by men of taste and feeling. One such man saw, and was struck by the genius of John Flaxman. His name was Mathew, and by him the child, who could read Latin, was made acquainted with the beauties of the Iliad and Odyssey. At fifteen, admitted a student of the Royal Academy, and competed successfully for the silver medal. What was to be done next?—the father without means, and the youth old enough to earn his own bread! The young sculptor entered the service of the Messrs. Wedgwood, and devoted some dozen years of his life to the improvement of their porcelain manufacture. His genius stamped upon the products of the potteries a character of beauty and classic elegance rivalling the productions of any country. The forms were admired in his own day; they are now more highly esteemed than ever. At the age of twenty-seven Flaxman married Anne Denman. His marriage, his friends declared, would ruin him as an artist. Friends are apt to look upon the shadowy side of one’s happiness. In this case they were mistaken. Anne Denman had the finest qualities of heart; she possessed also exquisite taste, and a cultivated mind. She appreciated the genius of her husband, and was an enthusiast for his works. She accompanied him to Italy, where he nourished his talents by the study of the masterpieces of antiquity. At Rome he executed his illustrations of Homer, Hesiod, Æschylus, and Dante. For the first-named he received fifteen shillings for each drawing, and was satisfied. He was elected member of the Academies of Florence[II-173] and Carrara, and after seven years’ absence came back to England. His reputation bad preceded him, and he soon justified his fame by his noble monument of Lord Mansfield, in Westminster Abbey. The works of Flaxman, whether of the pencil or the chisel, may take rank with the productions of any age or country. They are distinguished by simplicity, dignity, sublimity, grace, and true poetic feeling. If any modern sculptor may take rank with the ancients, Flaxman’s place will be second to none. His productions are scattered over the globe; we meet them in India, the two Americas, and in Italy, as well as nearer home. He is better appreciated everywhere than in England. But we are beginning to know his value. His worth as a man was equal to his greatness as an artist. All who knew him speak of his modesty, his gentleness, his single-heartedness. After the death of his wife in 1820, whom he tenderly loved, he lived in comparative retirement.

[By E. H. Baily, R.A. From the marble executed for Sir Thomas Lawrence, 1824.]

395. Thomas Stothard. Painter.

[Born 1755. Died 1834. Aged 79.]

Apprenticed at an early age to a pattern draughtsman. Subsequently, and for many years, he furnished the illustrations to “The Novelist’s Magazine.” Became the reigning prince of illustrators, and for fifty years continued to adorn the pages, not only of contemporary literature, but of our poets from Chaucer all down to Rogers. His most famous productions are the illustrations to “The Pilgrim’s Progress,” to “Robinson Crusoe,” to “Rogers’s Italy,” the Procession of the Flitch of Bacon, the Pilgrimage to Canterbury, and the Wellington Shield. He made many designs for sculptors; amongst others, that for Chantrey’s “Sleeping Children,” in Lichfield cathedral. At one time or another he attempted every branch of the limner’s art. He had great powers of imagination, moulded and directed by unflagging industry and the severest application. His genius is peculiarly English. He studied deeply the works of Raffaelle and Durer, but was no slavish imitator of these, or of any other men. The grace that clings to his works is essentially the expression of his own mind. Let us see his productions how, or when, or where we may, his spirit is detected at once, and we say, “This is Stothard.” His female figures, not always strictly correct in drawing, are exquisitely graceful. His life passed evenly in the performance of labour in which he delighted. He was a good man, and his works are his annals.

[From the marble executed by E. H. Baily, R.A., in. 1825, for Sir Thomas Lawrence.]

396. Sir Thomas Lawrence. Painter.

[Born at Bristol, 1769. Died 1830. Aged 61.]

Of humble origin; the father of Sir Thomas being the landlord of the “Black Bear,” at Devizes, in Wiltshire. At an early age evinced great delight in drawing, and a talent for the recitation of poetry. Received his first instruction at Bath from Mr. Hoare, the painter in crayons; and when thirteen years old, gained from the Society of Arts the great silver palette and five guineas, for a copy, in crayons, of the “Transfiguration.” When eighteen, he exhibited seven female portraits at Somerset House. In 1791, chosen Associate of the Royal Academy. In 1815, knighted; and in 1820, upon the death of West, elected President of the Royal Academy. The first portrait[II-174] painter of his time, and in other respects an accomplished man. His numerous works are representations of the most notable and wealthiest people of his day, by whom he was courted, honoured, and richly rewarded. His colouring was clear and brilliant, and his design most graceful; but vigour and truthfulness of character are not always remarked in his productions. Lawrence had little or no education,—he was removed from school when only eight years old,—but he must have picked up much on his road. One of our great actors has acknowledged his large debt of gratitude to Lawrence for instruction, advice, and intellectual training.

[By E. H. Baily, R.A. Taken the year after Sir Thomas Lawrence’s death.]

397. Charles Kemble. Player.

[Born at Brecknock, 1775. Still living.]

The living chief of a family remarkable for dramatic genius. Since the time of Garrick, until very recently, the English stage has not been without its Kemble, as one of its brightest ornaments. Mrs. Siddons and John Kemble, were the sister and brother of Charles. As the representative of Falconbridge, Mercutio, Benedick, Cassio, and similar characters, Charles Kemble has been without an equal in our time. He first appeared at Sheffield, as Orlando, in “As You Like it,” in 1792. His first appearance in London was at Drury Lane Theatre (1794), in the character of Malcolm, in “Macbeth.” He retired from the stage in 1836, but subsequently returned to the boards for a short time, in 1840, in order to play a few of his best parts before her present Majesty. He played for the last time, April 10, 1840, in the character of Hamlet.

[By Dantan, 1842.]

398. Francis Chantrey. Sculptor.

[Born at Norton, near Sheffield, 1781. Died in London, 1841. Aged 60.]

The first portrait sculptor of his day, but not equally famous for works of imagination, the very few compositions of this kind that proceeded from his chisel having been suggested to him by other more poetic minds. Chantrey did not command astonishment, but compelled admiration by the simplicity, beauty, and truth, that were stamped on all his productions. His portraits are faithful, characteristic, and most artistic representations; idealizing the individual; and in this branch of his art he undoubtedly outstripped all rivals. His success was very great. He began life as a carver’s apprentice, and was a journeyman carver in London, where he helped with his own hand to furnish the dining-room of Mr. Rogers, the poet—a room in which many times, in after life, he sat, one of the most welcome and sociable of the guests there assembled. Wealth and honour came to him earned by labour and perseverance; and the fruits of his industry, amounting to £90,000, he bequeathed to the Royal Academy, for the purchase of “works of fine art of the highest merit in painting and sculpture,” such works “being executed within the shores of Great Britain.” The bequest was worthy of a man whose mind, whose works, whose habits, all bore the strong impress of the nation in which he was born, and of the people from whose heart he had sprung.

[By his pupil, F. W. Smith.]

398A. Francis Chantrey. Sculptor.

[Medallion by Heffernan.]

[II-175]

399. William Mulready. Painter.

[Born at Ennis, in Ireland, 1786. Still living.]

An honoured name in British art, and undoubtedly the head of the charming and peculiar style which he adopted, after having employed his genius on larger and more striking subjects. He has risen from obscurity by the force of genius, and given to the world works which will not readily perish. When fourteen years old admitted a student at the Royal Academy. Elected Royal Academician in 1816. His works reveal great delicacy and purity of mind. He is a consummate draughtsman and colourist; and in the refined beauty and finish of his pictures, is not surpassed by any of his contemporaries. Amongst his best works may be reckoned those in the Vernon Gallery and in the collection of Mr. Sheepshanks.

[By Christopher Moore. 1830.]

400. John Gibson. Sculptor.

[Born at Conway, N. Wales, 1790. Still living.]

Like Chantrey, apprenticed to a wood-carver, and, like him also, a cabinet-maker at this starting-point of his career. At the age of eighteen, he exhibited a wax model of “Time,” which procured him employment with a sculptor in Liverpool. Making the acquaintance of Lord Castlereagh, he was furnished by that nobleman with an introduction to Canova, and he accordingly set out for Rome in 1820. In Rome he still resides. He has wrought with his chisel for the noble and wealthy of his own country, and for the patrons of art in the land which he has chosen for his residence. Ludwig of Bavaria—the eager and munificent patron of art—has been amongst the serviceable friends of the gifted Welshman. For grace, beauty, and finished execution, John Gibson has never been surpassed in this country. Flaxman is the first of British artists; but as a sculptor, chisel in hand, Gibson is hardly second even to him.

[From the marble by Theed.]

400A. John Gibson. Sculptor.

[This bust is by Macdonald of Rome.]

401. William Charles Macready. Player.

[Born 1793. Still living.]

The son of William Macready, who was author, actor, and manager. Educated at Rugby. Made his first appearance on the stage as Romeo, at Birmingham, and his debût in London, in 1816, as Orestes, in the “Distressed Mother.” He continued in London a leading tragic actor, until he finally retired from the stage in 1851. Mr. Macready’s style of acting was of the romantic, rather than of the classic order; his “Virginius” a more masterly performance than “Hamlet,” his “Rob Roy” far more picturesque and striking than “Richard III.” In the representation of Shakspeare’s characters this popular actor was not, generally speaking, equal to the most celebrated of his contemporaries. His conceptions were not the conceptions formed by the intellectual portion of his auditory in the tranquillity of the study. It was, however, impossible to witness a more admirable execution of a wrong conception, than that which Mr. Macready was able to render. In private life he has[II-176] done honour to his profession; and he has left no actor behind him. superior to himself.

[By W. Behnes.]

402. George Cruikshank. Caricaturist.

[Born in London, 1794. Still living.]

Like Tom Hood, George Cruikshank is something more than a humourist: or, to speak more correctly, like all great humourists, both he and Hood possess and reveal a deep perception and appreciation of the serious and the pathetic in Nature and Art. The labours of Cruikshank, which commenced at a very early period of his life, have been incessant and remarkable. His admirable illustrations have adorned books of all kinds, from the political “House that Jack built,” to the moral “Bottle.” At no period has he drawn a line which—however cutting may have been the satire employed—has not had for its object the benefit, as well as the amusement of his fellow-men. His latest works—attacking the most degrading of our national vices,—command our gratitude and respect. George is popular amongst his associates. His face is an index to his mind. There is nothing anomalous about him and his doings. His appearance, his illustrations, his speeches are all alike,—all picturesque, artistic, full of fun, feeling, geniality, and quaintness. His seriousness is grotesque, and his drollery is profound. He is the prince of living caricaturists, and one of the best of men.

[By W. Behnes.]

403. Robert Vernon. Patron of Art.

[Born 1774. Died in London, 1849. Aged 75.]

A benefactor to his country, who amassed a fortune in business, and expended his wealth in the formation of a gallery of pictures by British artists. Whilst living, he proved himself the benefactor of struggling genius. Dying, he bequeathed his works of art to the nation. His pictures are now collected at Marlborough House, where they form “The Vernon Gallery.”

[By W. Behnes.]

404. Fanny Butler. Actress.

[Still living.]

The daughter of Charles Kemble: and a popular actress of her day. She made her first appearance at Covent Garden Theatre, October 5, 1829, in the character of Juliet; and the sensation she then created rescued the theatre from the difficulties into which it had fallen. She married Mr. Butler, an American, and is the authoress of one or two well-written tragedies and other works.

[By Dantan, of Paris.]

405. Adelaide Sartoris. Vocalist.

[Still living.]

Second daughter of Charles Kemble: highly distinguished as a vocalist of the Italian school; she made her first appearance at Covent Garden Theatre, in Norma, Nov. 2, 1841, and sang and acted with great success at the same theatre in 1841 and 1842; but at the end of 1842 she retired from her profession into private life.

[By Dantan, of Paris.]

[II-177]

405*. Grace Darling. Lighthouse-keeper’s Daughter.

[Born at Bamborough, Northumberland, 1815. Died 1842. Aged 27.]

One whose very name bespeaks
Favour divine, exalting human love;
Whom, since her birth on bleak Northumbria’s coast,
Known unto few, but prized as far as known,
A single act endears to high and low,
Through the whole land.”—Wordsworth.

Grace was the seventh child of a humble man who had charge of a lighthouse on one of the Farne Islands, off the coast of Northumberland. In the month of September, 1888, the “Forfarshire” steamer, of 300 tons, having on board sixty-three souls, during a terrible storm and dense fog, struck on a rock within a mile of the light-house. It was deep night. The ship snapped in half. Nearly all the creatures on board were swallowed by the chafing sea; and when morning broke, all that remained of the “Forfarshire” and its people, were nine of the passengers clinging to the windlass in the forepart of the vessel. It was a fearful morning, the fog still prevailing—the sea hardly less boisterous. Through the mist, however, the sad spectacle could be witnessed from the mainland, and a reward was offered to any boat’s crew that would venture to the rescue. It was offered in vain. But the despairing castaways were visible also from the lighthouse, where none was rich enough to offer reward of any kind, for the sole inhabitants were husband, wife, and daughter. It was the last watch before extinguishing the light at sunrise, and Grace was keeping it. She intreated her father to go to sea, and he consenting, the girl shared his boat, and the pair in dread and awe put off. Why speak of danger? Why detail the miracle? The risk was incalculable. The chances of recovery, nay, of self-preservation, were infinitesimal. But God strengthened the woman’s arm, as he had visited her heart, and, after painful labour, the rescue was effected. The delivered nine were taken to the lighthouse, and there kindly treated by the heroic girl and her aged parents. The spirit of the nation was stirred by the act. Money enough to provide for her as long as she should live, and gifts innumerable, were brought to her sea-girt rock; but she would not leave the light-house. Why should she? What place so fitting to hold this queen? She held her modest Court there until her early death. One who visited her speaks of her genuine simplicity, her quiet manner, her perfect goodness. In 1841, symptoms of consumption—the poisonous seed sown, it may be, on that drear morning—revealed themselves. In a few months she died, quietly, happily, religiously. Shortly before her death, she received a farewell visit from one of her own sex, who came in humble attire, to bid her God speed on her last illimitable journey. The good sister was the Duchess of Northumberland, and her coronet will shine the brighter for all time, because of that affectionate and womanly leave-taking. Joan of Arc has her monument. Let Grace of Northumbria have none. Her deed is registered—

“in the rolls of Heaven, where it will live
A theme for angels when they celebrate
The high-souled virtues which forgetful earth
Has witnessed.”

[Medallion by David Dunbar. Modelled from the marble bust in the possession of the Bishop of Durham. The original model was taken. from the life at the Longstone lighthouse, soon after the incident above recorded, and three years before the death of Grace.]

[II-178]

405.** William Darling. Lighthouse-Keeper.

[Born 1783. Still living.]

The father of Grace Darling. He succeeded his own father as keeper of the Coal-light on the Brownsman, the outermost of the Farne islands, on the coast of Northumberland. In 1826, he was transferred to the lighthouse on the Longstone, another of the same group of islands. Solitary, cut off for weeks from communication with the mainland, this humble man has passed his days in self-improvement. He is intelligent, quiet, and well-conducted. His children have received a good education for their position in life, the father being the sole instructor—and one daughter at least has not thrown discredit upon her bringing up.

[By David Dunbar.]


POETS AND DRAMATISTS.

406. Geoffrey Chaucer. The Father of English Poetry.

[Born in London, 1328. Died there, 1400. Aged 72.]

Notwithstanding the gulf of years, the poetical sire of Shakspeare. He to whom, in an age which we call dark, the full sun of poetry shone. He whose lineaments and gesture, transmitted by a contemporary pencil, are here before us. He whose eye, though downcast, reads the world around him, as it sounds the interior of Man: whose grave look of thought hides the soul of mirth. What phase of our various life seems strange to him? To this he is at home in experience; to that in imagination. With what Homeric power has he not described the tournament where kings fight in the lists at Athens! What mediæval romance in the loves of Palamon and Arcite! What an oriental colour and grace in the Squier’s half-told tale of the Tartar Cambuscan! You read tale after tale, and wonder which of the diversified strains was indeed the most native to the heart of the poet. One critic will tell you—the broad coarse mirth—Never believe it! See with what lingering and tender fondness he brings out the sorrowful story of the pure, innocent, and falsely accused Custance, abandoned to the wild, drifting sea. How patiently he tells the trials of the patient Griseldis—how sternly the self-doom of those two impious challengers of death. To Chaucer was given an insight of which nothing eludes the scrutiny, a sympathy of which nothing lies beyond the embrace. And in what spring-like vigour and bloom of life that vanished world rises again before us! What truth! and what spirit! Under his quill the speech of England first rose into the full form and force of a language. Look up at him! He seems to be scanning thought and word, both. Mine host of the Tabard singling him out amongst the pilgrims, for the teller of the next tale, says of him: “He seemeth elvish by his countenance.”—Does he?

[For an account of this statue by Marshall, see No. 53, Handbook of Modern Sculpture. There is an interesting contemporary portrait of Chaucer in the British Museum, bearing date 1400, from which the idea of this statue is borrowed.]

407. William Shakspeare. Poet.

[Born at Stratford-on-Avon, 1564. Died there, 1616. Aged 52.]

William Shakspeare stands at the head of those whose intellectual domain[II-179] is the spirit of man. This is the master character of his mind, to which poetry is in him an accidental direction. His insight into man is his title to universal interest. He is the chief painter of humanity that the world has seen, combining, at once, perfect intimate knowledge of human nature, and perfect creative power of representation. The drama had suddenly awakened in his country, and he obeyed the instinct of his time, the poetic bent of which was created for him, as he for it. There were with him, before him, and immediately after him, great poets, with whom the dramatic elements existed in high native strength and beauty; but in him alone are those elements mastered, so as to produce entire works of art, complete in power, and in consistent, though not regular, form. Sharing the intuition of Aristotle, which makes the action in the play the root out of which the characters and all else grow, he directs the stream of events as connectedly as it flows in the human world; and, as in the world, so in his inspired writing—agents appear born for their work, as the work to do seems to offer itself to the agents. All beauties of language, all flights of poetry, all particular scenes and speeches, powerful and impressive as they may be, are merely subordinate. No character, how exquisitely or elaborately soever conceived and finished, is drawn for itself; but one and all are relative to the scope of the play and to one another. He seems to have undertaken a great task, and to be seriously and solely intent upon advancing to its fulfilment. No form of human life is foreign to him; the most heroic and the humblest, the most illustrious and the most obscure, of all times, in all places, are in presence before him. He seizes the spirit of time, place, and theme. Natural, preternatural, light, weighty, laughter, tears, terror, are all alike to him—-all under his mastery, and flung forth with free power. Grace and gigantic strength, are spirits equally at his bidding. The learned and the unlearned are both attracted by his spell. The ignorant feel the fascination, the erudite have never exhausted the study. His country, with her innumerable titles to renown, ranks amongst the highest his great name. With school instruction of the most ordinary kind, by universal and unerring observation, by profound and intense meditation of men, with the creative power of the highest imagination, he gave out, spontaneously, works of that kind whose study makes men learned: and they are so viewed and studied by all civilized nations, every day more and more, at home and abroad. In him England competes for the crown of poetical glory with all other nations of old or modern fame. She has had other great poets, but they all, besides their own natural offerings, have brought poetry from other lands and languages, into their own. In him alone she feels, that what she displays SHE has produced. Little is known of the life of William Shakspeare.

[From the well-known monumental bust in the church at Stratford-on-Avon, where Shakspeare lies buried. It was executed by an artist named Gerard Johnson, very soon after the death of Shakspeare, and erected between 1616 and 1620. The original is in common limestone, and was painted to resemble life. The eyes were a light hazel, the hair and beard auburn: the doublet was scarlet, and the loose gown black. It was repainted precisely in the same manner in 1749. But in 1793, Malone officiously had it whitewashed, as it now exists. There is a great resemblance between this face from the Stratford monument and the portrait published in the first folio of Shakspeare’s works, by the actors, in 1623. No. 407A is from a very remarkable terracotta bust, in the possession of Professor Owen, of the College of Surgeons. It was discovered in pulling down the old Duke’s Theatre in Lincoln’s Inn Fields, where it was placed over one of the stage-doors, the bust of Ben Jonson (accidentally destroyed by the workmen)[II-180] occupying a corresponding place over the other door. Shakspeare having been rescued by the timely interposition of Mr. Clift, Professor Owen’s father-in-law, the bust became that gentleman’s property, and by him it was given to its present owner. There are two types of the Shakspeare portrait: the “round-faced,” as seen in the monument of Stratford-on-Avon, and the “oval-faced” of Cornelius Jansen. Roubilliac’s bust, and that in the possession of Professor Owen, are after Jansen. No. 407B is the bust by Roubilliac. The statues by Roubilliac and John Bell (see Handbook of Modern Sculpture, Nos. 56 and 9) are conventional, and represent the two types.]

407A.   - William Shakspeare. Poet.
407B.

408. John Milton. Poet.

[Born in London, 1608. Died there, 1674. Aged 66.]

The son of a scrivener. In his earliest years he became enamoured of the Muses, wrote exquisite poetry, travelled in Italy, returned hastily on the outbreak of the Civil war, and identified himself with the Republican party. Later in life, and as blindness was deepening upon him, he was appointed by Cromwell Latin Secretary to the Council of State. Retiring from politics on the death of the Protector, he would, under the Restoration, have suffered as a regicide, had not Sir William Davenant, to his great honour, interposed his own favour with the Court. So rescued, Milton withdrew into obscurity and poverty, unnoticed and forgotten. In his solitude and blindness he composed “Paradise Lost,” which he dictated chiefly to his eldest daughter. The poem was sold to a bookseller for ten pounds, and was not very popular during the lifetime of the poet. At one time he took pupils. He was three times married, was devoutly religious, austere in his morals, and simple in his ways of life. He is the great epic poet of England, distinguished by the strength and sublimity of his genius, and hardly less for sensibility to the graceful and beautiful. Laboriously learned, with an admiration as intelligent as devoted, of the great writings preserved from Greek and Roman antiquity, he, more than any other of our poets, has modelled his works on the type of his illustrious predecessors. He has, of all English poets, carried art in his writings to the highest pitch, but neither art nor imitation has tamed the wing of his muse, or impaired his praise of originality. He knew the greatness of his powers, viewing them as a gift to be used to the honour of the Giver; and his one paramount work, the “Paradise Lost,” having for its “great argument,” as he himself says, “to justify the ways of God to men,” must be regarded as his oblation, brought and laid on the Altar. He founded and formed English heroic blank verse,—a measure which, under his hand, rivals in richness and variety the music of his classical masters; and which alone could, by its majestic flow and inexhaustible powers of expression, have sustained the weight and amplitude of his subject. He loved and honoured Shakspeare.

409. Alexander Pope. Poet.

[Born in London, 1688. Died at Twickenham, 1744. Aged 56.]

Alexander Pope, the son of a linendraper, and a Roman Catholic, was his own instructor. He was sent home from school in his twelfth year for lampooning his tutor, and from that time he gave his teachers no further trouble. Already, as a boy, a happy versifier—twice happy, for an indulgent[II-181] father smiled on his dawning skill—he was, in his maturer day, and for the remainder of his own century, the leading star in the sky of our English poetry. He received at the hands of his master, Dryden, the rhymed ten-syllable couplet. This couplet was not first by Dryden used harmoniously, forcibly, eloquently—for Hall in his Satires had done this—but by Dryden it was first raised into the reigning measure of English song. He sustained in it a free flow and bold sweep, suitable to his genius. Pope rather chained the movement, stamping even on his verse the peculiarity of his fine intellectual powers. When we search for Pope’s characteristic amongst poets, we find that he had reasoning—which is the earnest,—and wit—which is the sporting—of the logical faculty, both intimately blending themselves with the poetic vein. It was, accordingly, to a bright and sharp intellectual action that he fitted the couplet, apt by its nature for the service. Uniting to a lively, quick and keen intellect, so much of poetic passion as, in fact, secured the dedication of a life, he produced works which, by their mastery, must command admiration whilst the language is read, although in them, the deliberate skill predominates over the passionate expression. Viewed from the highest point, he was imitative, not original. His spirit active and perceptive in the study of his greater and less predecessors, not self-infused into the contemplation of Man and Nature. What is most felt as a fire in his verse is the ardency of writing, the zeal of an artist enamoured of his task: or he accepts and translates the passion of others, which, not having its home in its own bosom, does not receive justice there. Our grandfathers and our grandmothers knew by heart the “Essay on Man,” the “Essay on Criticism,” the “Moral Essays,” the “Characters of Women” (sparkling with wit and malice, but adding nothing to the observation and true ideal delineation of woman), and the “Rape of the Lock,” in which the playfulness, lying in the verse, exquisitely comes out, and a graceful half-ironical fancy amuses and captivates, but no steeping imagination subdues or transforms to its likeness. He introduces us again to Ariel, whom we have known before, but how different his Ariel and Shakspeare’s. Pope brought intellective precision into poetry, which should feed on the indefinite and the vague, and should flower out into the softened and the flowing. Hence, often when he is the most admirable, he is the most artificial.

410. Oliver Goldsmith. Poet and Man of Letters.

[Born in Ireland, 1728. Died in London, 1774. Aged 45.]

Poor dear Oliver! What shall we say of him, with his kindly benevolence, his manly independence, his honest feeling, his childish vanity, his naughty extravagance, his irregularities, his blunders, his idleness, his industry, his zeal for the improvement and advancement of the whole world, and his improvident neglect of himself. Goldsmith had fits of genius:—moments of an inspiration, or a possession, that appeared to produce in him powers, not ordinarily there. In the conduct of life he seemed born to be the world’s victim: he lay under the world. His gifted pen in his hand, he rose above it. The tender sensibility that indites his verse agrees too well to his story. The playful humour, and the sharp, never rough, never malignant, satire, take by surprise. He then had the laughers on his side—too often, unfortunately, against him. His poems of “The Traveller” and “The Deserted Village” are a species by themselves, or each a species. The vein of reflexion, of personal feeling, and of poetical viewing, with[II-182] native simplicity of expression and musical sweetness, is common to the two. The dirge of the deserted hamlet sowed the seed of “The Pleasures of Memory;” and the wandering poet, feeding his verse from his travels, was repeated in “Childe Harold.” Goldsmith’s “Retaliation,” written upon his friends of the St. James’s Coffee House, in requital of the epitaphs they had provided for himself, is the most brilliant and masterly summing up of characters in pointed words and streaming verse that the language possesses. The “Vicar of Wakefield” is the smiled-at, honoured, and loved inmate of every English home.

[By W. Behnes.]

410*. Robert Burns. Poet.

[Born in Alloway, Ayrshire, 1759. Died at Dumfries, 1796. Aged 37.]

The ploughman-poet of Scotland; in whom the labour of the limbs appeared to invigorate the intelligence, and the bleak air of poverty to cherish the blossoms of genius. Shakspeare rose from the bosom of the people to delineate kings and queens. Burns, born some steps lower, dwelt, even in his verse, to the last, amongst his own order. That is his dignity and his glory. The life of the Scottish peasant as it remains represented by his pencil, and in his person, seizes the imagination and the sympathies of the educated world. He has drawn the heart of the high towards the low. He has raised the low to their just esteem in the opinion of the high. But besides this moral aspect, he has gained, as a poet, immeasurably, by rooting his foot to the fields which he furrowed. The conflict, so maintained in our thoughts between his social position and his endowments and aspirations, sheds a continual illumination of wonder upon his writings. But more! His happiest subjects and strains draw life and meaning from the soil of which they are the self-sown flowers. Not merely that solitary agricultural Idyl, with its homely-pathetic and homely-picturesque—“The Cotter’s Saturday Night,”—but the fanciful tenderness of his lament over the Daisy and the Mouse;—but the wild and reckless daring of imagination in that cordial rencounter with the dread foe Death—that blending of the humorous, the supernaturally grotesque and the terrific in Tam O’Shanter—of the rustic, the gracious, the solemn, even the sublime—in the Vision of Coila—these most characteristic feats of poetical skill and genius—which stand apart, defying competition and claiming rank for the name of Burns, amongst the illustrious on Parnassus—all are made possible by originating from and by reflecting his native condition. His songs are tender, passionate, musical; chaunting his own or imaginary rustic loves. The torrent of his spirit, that, pouring along the channels of thought and song, became an elate and exalting enthusiasm, hurried him on the paths of common life into excesses, dilapidating the humble home and the proud householder. He first published his poems—now in every peasant’s cottage throughout Scotland—in his 27th year, and his fame was instantaneous. Later in life, the favour and patronage of the Scottish nobility and gentry were able to confer upon him a place in the Excise, of no less than £70 a-year: in the discharge of which distinguished public function, and in the enjoyment of which splendid public remuneration—then his only certain support—the one-laurelled modern singer of the time-honoured Scottish tongue sank, from his darkening noon, into the grave.

[This Bust is by David Dunbar.]

[II-183]

411. Samuel Rogers. Poet.

[Born at Newington Green, near London, 1762. Still living.]

A classic inheritance from the entombed past. The living poet who carried his first production with a trembling hand to Dr. Johnson’s house in Bolt Court, Fleet Street, and could not find heart to wait for an answer to his summons when he had knocked at the door; who listened with delight and instruction to the lectures of Sir Joshua Reynolds; and who still remembers and relates how, when his father took him to see Garrick act, he himself punished his boyish impatience by closing his eyes for a moment, as the great actor was coming on to the stage. It is nearly seventy years since Samuel Rogers published his first poem, and he was then a man. He is the Addison of verse. Grace, elegance, delicacy, softness, are the characteristics of his poetry. He does not astonish by power, nor thrill by burning passion; but he soothes, gratifies, and charms all who are susceptible of consolation and pleasure from polished and complete works of art. His taste is refined and classical, and all his works have the finish which such taste will require of the artist possessing it. The rhythm of his poetry partakes of the character of the sentiment: all is chaste, smooth, refined, and clear. The descriptions in “Italy” of Italian life and scenery are very beautiful, and his reflections are at all times pure and elevating. For so long a life, Mr. Rogers has written very little; but his works are gems, and have been heightened and improved by labour until scrupulous thought can do for them nothing more. All poets since the century began have acknowledged Rogers for a master; and his conscientiousness, purity, and refinement, fit him for a teacher. He has outlived not only his illustrious contemporaries, but the great poets who were unborn when he had reached his prime. The patriarch, in his long protracted nightfall, still gladdens his memory with the visions of the past, looking with placid hope towards his all but present future.

[By W. Behnes.]

412. William Wordsworth. Poet.

[Born at Cockermouth, 1770. Died at Rydal Mount, 1850. Aged 80.]

The most original of the poetical thinkers whom his day gave to his country. Her verse, notwithstanding one or two better voices uplifted, had too long and too patiently worn the character of an imitative literature. He undertook the championship of a conflict, which was to reseat legitimate powers on the throne. Born and bred in the northern, mountain region of England, his first study of men was amongst the simple-minded, vigorous, independent, and intelligent peasantry of the dales. The earth, which his young feet explored, lay embosoming its lakes, rearing crag and steep, as though yet freshly robed in loveliness, or charged with power, by the Creator’s hand. His instinct already drew him, even unconsciously, to gather, in that contemplation of Man and of Nature, and not in books, the materials of his appointed Art. Solitary, self-communing, self-sufficing, he soon stood in presence with an educated world, the prophet of a new poetical revelation. He found, at the first encounter, a prophet’s reward—belief in the few: from the multitude, mockery and persecution. He lived long enough to be understood; to see health and strength of his infusing reanimate the too languid veins of our English poesy. An extreme trust in the worth inhering in every phase of humanity may have sometimes descended too low, in the choice of the theme; an excessive zeal of simplicity[II-184] may occasionally have stripped the style a little too bare. But his writings remain distinguished, amongst the lays of his own just elapsed age, as the most soothing and instructive to the heart of the reader; and for the generations of poets, rising and to rise, the most warning and oracular. His strains have been remarkably various in length and weight, in manner and style. As a portrayer of human nature, he ranks amongst those who have the most deeply and critically explored the workings of our mysterious heart and intellectual being. His especial vocation amongst poets was, in his own view, the disclosure of the affinities which attract, by feeling, the human soul to the natural world: It supplying intellectual forms, and We, passion—an intercourse, blending, if it may be so said, two lives into one. He entered upon his work of reforming our poetical spirit, in two volumes of Lyrical Ballads and Other Poems, in the years 1798 and 1807. His life was one long day of brooding calm—his sunset, lucid and serene.

[Presented to the Crystal Palace by the sculptor, F. Thrupp, and modelled by him from a cast after death by Chantrey.]

413. Sir Walter Scott. Poet and Novelist.

[Born in Edinburgh, 1771. Died at Abbotsford, 1832. Aged 61.]

The great magician of the north, under whose fascinating spell millions in all lands have been entranced and strengthened. His boyish eye fed on the wild scenes of his native land, and on the mouldering wrecks—here and there sadly gracing those scenes—of her former sterner, yet greater day. His boyish heart was cradled in the music of her old wild songs, then living, and in the rough and bold traditions of her strange and romantic Past. The joy and the passion which were life to the boy, became power to the man. With a wondrous dominion suddenly begun, yet prolonged whilst he lived, he swayed and swept back the spirits of his generation on a torrent of delight and desire, into forgotten times, alien to our manner of thinking and of being. But the poet finds one heart of Man under all the shapes of human existence: one universal spirit of human life. Transported by the poet, we find ourselves everywhere with our kind. Reanimated by him, the worn-out and the antiquated rise new-born and of our time. And Scott, in verse or in prose, was a poet. The electric telegraph of the press carried his writings, as they left his desk, over the globe. The excellent French historian, Augustin Thierry, says that the romances of Scott, by their vivid and vital representations of the past, have reformed the style and study of history on the continent, urging and guiding the historian, instead of chronicling dry facts, to throw himself with a thirsty inspiration into the bosom of the mighty departed time. A Scottish traveller in Spanish California told, that a Spanish monk had there shown him his copy of “Ivanhoe,” and said “Next after my Bible.” We remember with pain that Scott, to whom the world stands so largely indebted for some of its purest delights, fell into trouble and difficulty, and snapped his brain in his noble and manly struggle for escape. The spot of Scotland which the toil of his genius had won him, for rooting his family on, when torn from both him and them by a blast of ill-fortune, was redeemed to them by the reverent affection of his country—-made theirs by a public act which tied even every “book of his curious learning” to its place on his shelves, in perpetuity. There his favourite daughter’s daughter and her children now prolong, if not his illustrious name, his honoured line.

[By F. Chantrey.]

[II-185]

414. Robert Southey. Poet Laureate.

[Born at Bristol, 1774. Died at Keswick, in Cumberland, 1843. Aged 69.]

An author who has earned imperishable renown in his own country, for the dignity with which he upheld the literary character, for his virtuous mind, for his patient, honest industry, and for his masculine prose writings. His poetical compositions—with the exception of the minor poems—are too laboured and too long, are too deliberately planned, and not sufficiently impassioned to be immortal; but they contain, nevertheless, many fine descriptive passages, abounding in strength and beauty: the subjects are chosen, and treated, with bold and free imagination. Southey read too much, and reflected too little; he was an insatiable devourer of books, and almost a prisoner to his study; hence he imbibed prejudices, and narrowed his intellectual sympathies: but his heart was of the soundest, and his feelings of the freshest. In the distribution of his hours he was most methodical. He had a surprising memory, a yearning towards the romantic in his literary pursuits, and an insuppressible vein of humour. He lived and died, comparatively poor, and he was always a day labourer. Yet he had ever a ready ear for the tale of distress, and an open hand for all who needed its grasp in the difficult journey of life. He never murmured at his own inevitable yoke, and he had self-command enough to refuse a baronetcy, when, towards the close of his career, he was offered the honour by the Minister of the day. It is sad to think that the mind of Southey gave way in the decline of life. When he could read no longer, he walked to his bookshelves with a vacant soul, and opened the volumes only to look at them, without being able to derive the least consolation from their pages. He died honoured, and literary men in England are proud to acknowledge, in him, one of the worthiest of their order.

[This is a posthumous Bust, by E. H. Baily, R.A., from the marble which forms a portion of the monument erected to the poet’s memory in Bristol. It was carved in 1847.]

415. Thomas Campbell. Poet.

[Born at Glasgow, 1777. Died at Boulogne, 1844. Aged 67.]

The poetical career of Thomas Campbell began when he was twenty years old, and was completed before he was thirty-three. He wrote nothing subsequently to this age worthy of his fame. His earliest work, the “Pleasures of Hope,” composed in youth, at once established his claim to be ranked amongst the foremost poets of his time. It brimmed with promise; and not the least singular circumstance in connexion with Thomas Campbell’s life is, that the excessive expectation raised by his first appeal was never satisfactorily fulfilled. The poetic faculty burned in the “Pleasures of Hope,” which was full of melody, pathos, animated description, and impassioned sentiment. All needful ardour was there. There were also to be noted the faults of a youthful pen—redundancy of diction and incorrectness. Ten years after the “Pleasures of Hope” he published “Gertrude of Wyoming.” The impulsive quality was already subdued by elaborate art; and although extreme beauty and tenderness were here and there in the poem, correctness was still wanting. Your spirit was entranced with verses, than which, in the English language, you could find none better, simpler, and sweeter. Yet for one such verse that was borne away from “Gertrude of Wyoming” a hundred were forgotten which were not its peers. Campbell had momentary, true, intense conceptions, and fineness of fancy; he exhibited felicities of[II-186] thought and expression that fastened instantly on every memory; his, too, was an ear of poetical sensibility to the music of language; but woe to the verse if his poetic utterance came not of an inspiration—by a seizing theme. “Ye Mariners of England,” “The Soldier’s Dream,” “The Battle of Hohenlinden,” constituted such themes, and these small poems of Campbell are consequently abiding treasures in the literature of the nation.

[By E. H. Baily, R.A. Executed in 1827.]

416. Thomas Moore. Poet.

[Born at Dublin, 1780. Died in Wiltshire, 1852. Aged 72.]

A poet of exuberant fancy, revelling in lavish ornament and gorgeous painting, and giving utterance to the most ingenious creations, in language of ineffable, and, occasionally, overpowering sweetness. A writer of inimitable Irish ballads, which are now plaintive, now joyous, now pathetic, now fervid, now tender, now fierce, now melting, now heroic; but always matchless by the graceful flow of the verse, and the prompt springing of the happiest illustration. Also the author of satires, brilliant and cutting, but rather the outpourings of a generous fancy, delighting in its own exquisite self-conscious faculty of mischief, than the malicious and bitter expression of a vexed and disappointed mind. Melody and joyance are careering in almost every syllable that he wrote. He was a passionate lover of music, and when he sang his own ballads, the effect upon his listeners was electrical. His most celebrated poetical composition is “Lalla Rookh,” an Eastern romance, which he wrote “amidst the snows of two or three Derbyshire winters.” His best prose work, “The Epicurean,” is a masterly performance, redolent of the perfume which breathes through his verse, and elevated by a high moral aim. When Thomas Moore died, the impression left of the man upon the public mind was stamped there by his jocund muse—a feeling of tenderness and love was associated with the pleasant memory of “Little Tommy Moore.” Since his death his memoirs and his diary have been published, and the impression has grown dimmer and dimmer in consequence. As a man, Thomas Moore, the poet, appears to have been hardly more heroic than the most prosaic of his kind.

[By Christopher Moore. Executed in 1838, for the late Edward Moore, of Mayfair.]

417. John Wilson. Poet and Professor.

[Born at Paisley, 1785. Died in Edinburgh, 1854. Aged 69.]

The son of a Paisley manufacturer. Educated at Glasgow and Oxford. Like the youth of ancient Greece, he delighted equally in the spoils of the arena, and in the wisdom of the porch. At Oxford, the first wrestler of his time, and the gainer of the Newdegate prize for the best poem. His genius as passionate as his frame was overflowing with the sap of animal life. Endowed with a lofty and glowing imagination, and with great critical powers, improved by knowledge. A lover of learning for the joy it brings, and a hearty sympathizer with the glorious labours of the great makers of prose and verse, whether in ancient or modern time. He himself excelled as a worker in more than one of the paths of literature. His poetry is remarkable for the beauty of its imagery, for its rich fancy, and for the flow of the verse; his criticisms exhibit a profound knowledge of the true principles of taste, are eloquent, and full of generous sentiment; his prose tales of fiction have deep pathos, and reveal intimate acquaintance with the[II-187] human heart. As an orator, John Wilson might have vied with the most eloquent of his contemporaries had he chosen to compete with them in their own peculiar field; as a writer upon the manly sports which he so ardently loved, he is unequalled. His very corporeal substance seems heaving with joy and physical happiness, as we follow his vigorous, picturesque, and elated pen, amongst the lochs of Scotland, or the lakes of Cumberland. Wilson wrote with the zeal of a strong partizan in politics. He would be one, and could not. His large and universal heart never entertained what are called political antipathies. His Toryism was his strong and hearty nature bubbling up and venting itself in loyalty, chivalry, and affectionate duty. To say that he was opposed to Liberty and Right, is to assert a monstrous paradox. He was the very incarnation of liberty, and his giant soul shrunk from wrong, by natural action. In 1818, Wilson was appointed Professor of Moral Philosophy in the University of Edinburgh. The bust bespeaks the man. It looks like Jupiter. We cannot gaze upon a more magnificent head.

[This striking and characteristic work is by the late James Fillous of Glasgow, a fellow townsman of Professor Wilson. It was executed in marble for the Public Reading Room at Paisley.]

418. George Noel Gordon, Lord Byron. Poet.

[Born in London, 1788. Died at Missolonghi, in Greece, 1824. Aged 36.]

Assuredly, the most popular, if not the greatest poet of our times. But, the popularity by no means proof of the greatness. He was an object of interest on account of his birth, his youth, his misfortunes, his constant practice of associating with poetry his personal and daily history, his strongly imagined injuries, his feverish complaints. A vigorous painter of portraits—that is to say, of two, for he took delight only in the hero of gloomy passion, and in the heroine of soft voluptuous beauty—all his pictures more or less reflecting his own nature, and the nature of woman as it appeared to his refined sensuality. Byron has described with ineffable grandeur natural scenery, and has kindled the spirits of men with enthusiasm for the ancient glory; but we find no solace in his companionship, although he takes us to streams and mountains visited by the gods. His own distempered image is too visibly stamped on every scene. Byron affected to be a misanthrope; yet he cherished the good opinion of men, and shrunk from their adverse criticism. He pretended that he was isolated from the world; yet his name and fame were upon every lip. What will last in the poetry of Byron are the verses uttered in moments of self-oblivion. Keats complained that Byron made solemn things gay, and gay things solemn. This was a great wrong, and is hardly repaired by the tenderness, pathos, sentiment, and passion, that start from his poetry to go straight to the heart. It was the misfortune of Byron to be sent into the world without discipline or training of any kind. Had he been fairly dealt with in his childhood and youth, his life might have been happier—its course more equable. As it was, his genius was enslaved and wronged, his career was violent and erratic, his whole nature warped, and his poetry, instead of being a well-trimmed garden of beauty, had its choicest flowers entangled and half hidden in unwholesome, gaudy weeds.

[By Thorwaldsen, but not from the life.]

418A. George Noel Gordon, Lord Byron. Poet.

[By E. H. Baily, R.A. Modelled from authentic portraits.]

[II-188]

419. Douglas Jerrold. Writer.

[Born in London, 1803. Still living.]

Before he was eleven years old, he went as midshipman to sea. Returned to London after two years’ service, and in his boyhood took to writing dramas for minor theatres. In later life he has produced dramatic works of a higher kind—his comedies being remarkable for epigrammatic wit, and sparkling dialogue. His prose writings, generally, are characterized by trenchant sarcasm, by a vigorous Saxon style, by earnestness of will, and by an unflinching advocacy of liberal principles. Douglas Jerrold has been charged with bitterness of spirit, and a malicious desire to set the poor against the rich. The charge rests upon no good foundation. He revolts from injustice and oppression; he feels acutely their effects upon all who come within their operation; and his views are invariably expressed with all the intensity of his genuine convictions. His pen has been always at the service of humanity; and his heart is as sound as his language is plain, direct, and unequivocal.

[Executed in marble, 1852, by E. H. Baily, R.A.]

419*. Henry Taylor. Poet.

[Still living.]

Known to literature as the author of “Philip Van Artevelde,” a drama for the study, not for the stage. This dramatic poem is admirably finished, and contains many beautiful images, and passages of undoubted vigour. But the polish is too evident, the labour expended too much on the surface. There is nothing in the work to offend; nothing to take by surprise; nothing that stirs the human heart to its depths. The author shall defy you to point out the blemishes of genius on his pages. You may equally challenge him to produce evidence of the power of genius. In “Philip Van Artevelde” we are ever within sight of the domain in which the great dramatists reign supreme, but never in the domain itself. It is all but a great work. It seems as if only fire were wanting at the poet’s heart to convey us at once from the region of great talent to the higher sphere of undoubted inspiration. But the needed warmth comes not.

[By Macdonald, of Rome.]


SCIENTIFIC MEN AND WRITERS.

420. Francis Bacon. Chancellor of England, and Founder of the Inductive Philosophy.

[Born in London, 1561. Died 1626. Aged 65.]

The son of Sir Nicholas Bacon, Lord Keeper of the Great Seal under Queen Elizabeth. Francis was yet a boy when he evinced so keen and lively an intellect, that Elizabeth was wont to call him her young Lord Keeper. He rose to the highest distinction in the state, becoming Lord Chancellor of England. He was removed from his eminence, because he had sullied it by accepting bribes. He lived ostentatiously, and died leaving many debts. His name is one of the greatest this country boasts. He is the father of the modern Philosophy. Standing between two intellectual eras, he[II-189] surveyed the past, and predicted the future, of human inquiry. Reverting his eye, he saw that the most acute and powerful intellects had, age after age, wasted their strength in investigating physical phenomena, without fruit either of great ascertained truths, or of service won from their speculations to human uses. Neither zeal nor ability had been wanting. He inferred that the method of those elder philosophers was in fault. Impatient and arrogant, they presumed, upon the first strong impressions caught from the contemplation of Nature, oracularly to divine her universal laws. From these laws, affirmed not established, they proceeded to solve, as best they could, all further phenomena: for, within these false and hasty conclusions once recognised, Reason lay thenceforward imprisoned. Lord Bacon said: “Have patience. Wait upon Nature. Observe indefatigably. Accumulate, without ceasing, records of the appearances. Verify experiment by experiment. Set instance beside instance, without sparing, but not without choosing. Ultimately the law will stand revealed.” What has happened? Immense and ever-advancing discovery—science created upon science—observers, without number, conspiring in the most disjoined parts of the civilized world to solve the same philosophical problems—Nature every day more and more yielding to man the service of her powers—and the wisdom of her Author every day more and more discerned in His works—these are the results which honour the school of Bacon.

[From the monument at St. Albans.]

421. Humphrey Chetham.Dealer in Manchester Commodities.

[Born 1580. Died 1653. Aged 73.]

An early and generous benefactor to the city of Manchester. One of Fuller’s “Worthies of England.” He made a large fortune by sending Manchester commodities up to London; and during his life-time he invested his gains in the education of twenty-two poor boys. At his death he left money enough to provide for the suitable education of forty boys; and he also bequeathed £1000 for the purchase of books for a general library, as well as £100 for the erection of a building to receive them. At the present hour 100 boys are educated, maintained, and clothed, by the munificence of Humphrey Chetham, and more than 23,000 volumes are open to all who desire to improve themselves by reading. The statue of which the one in the Crystal Palace is a cast, has been recently raised to the memory of this pious and benevolent man, by one who, in early life, partook of Humphrey Chetham’s bounty. The name of the grateful recipient is unknown; but he need not blush to make it public. The statue may be seen in Manchester Cathedral—a monument of affectionate reverence and gratitude, as well as of Christian well-doing.

[For an account of this statue, see Handbook to Modern Sculpture, No. 62.]

422. John Locke. Philosopher.

[Born in Somersetshire, 1632. Died at Oates, in Essex, 1704. Aged 72.]

A stern intellect with a pious and gentle heart. Of a good family. He studied for medicine; but his delicate health prevented his engaging in the profession. The study was apparently turned to higher account in settling his contemplation on the real and the useful. He ranks amongst English philosophers as the one who first, by his writings, impressed the fact that the Mind of Man lies before us, if we can attend, as much a subject for[II-190] observation and for the investigation of laws, as the outwardly sensible world. The impulse given by his teaching to the educated mind of the country was strong and lasting. His successors have introduced, as might be expected, more method and precision into this region of speculation. They have confirmed, enriched, and extended the science, although yet far from having attained that luminous certainty, and that wealth of profitable results, which wonderfully reward the inquirers into the physical order of Nature. Besides his “Essay on the Human Understanding”—for which Locke is called the founder, in England, of modern metaphysical inquiry—he stood up in other works also, as the champion of intellectual liberty, vindicating the rights of Reason in politics and in religion. In the study of the Mind, “he broke the fetters of the schools,” as Bacon had done for physical science. Locke was the friend of Newton.

[By Riesback.]

423. Sir Isaac Newton. Astronomer and Philosopher.

[Born at Woolsthorpe, Lincolnshire, 1642. Died in London, 1727. Aged 85.]

This illustrious man was educated at Grantham, and entered Trinity College, Cambridge, in the year 1660. Before he had reached his twenty-third year, he had already made various important discoveries in pure mathematics; amongst others, the celebrated “Binomial Theorem,” familiar to every tyro, and that most refined and powerful instrument of scientific investigation, the “Method of Fluxions,” which, a few years later, was independently discovered by the famous Leibnitz, and given to the world in the form now universally known as the “Differential Calculus.” Newton was still young when the fall of an apple gave birth in his mind to the first germ of “the Law of Gravitation,” which, some years later, he so beautifully and wonderfully developed. In 1666—his age twenty-four—he began those experiments with the prism which quickly led him to “The Decomposition of Light,” and to other optical discoveries, unfolded in the lectures delivered by him at Cambridge, as the successor of Barrow, from the year 1669. In his thirtieth year, he was elected a fellow of the Royal Society; in 1703, its President; and he was re-elected to this distinguished post year after year, for twenty-five years. His great work, “Philosophiæ Naturalis Principia Mathematica,” appeared complete in 1687. It has excited the astonishment and profound admiration of the greatest philosophers in all nations, from that time to the present; and no wonder, since, in some respects, this grand production might almost seem to have resulted from actual inspiration, and not from the mere day labour of an unassisted human intellect. The mighty teacher was the originator of views and theories, upon which the ablest philosophical minds of the last century and of the present have built their most renowned achievements, yet we are most admonished by his humility, his religion, and his calm. Newton was member of Parliament for Cambridge. He was also master of the Mint. Honour was shown to him living and dead. George I. ordered that his body should, after lying in state, be buried in Westminster Abbey. What luminary is without its dark spot? Leibnitz and Newton were the two greatest men of their age, yet a bitter and lasting quarrel between them is recorded, for our solemn instruction. It remains to state that the year in which Galileo died, Newton was born. No interval was suffered between the extinction of the one essential light and the kindling of the other.

[By Roubilliac.]

[II-191]

424. Benjamin Franklin. Statesman and Philosopher.

[Born at Boston, in America, 1706. Died at Philadelphia, in America, 1790. Aged 84.]

“Franklin” is another word for usefulness, self-denial, frugality, perseverance, and independence. A poor printer’s boy, who, by his own unaided powers raised himself from the lowest place of society to the highest, and contributed alike to the advancement of science, and to the independence of one of the finest countries of the earth. His discovery of the identity of lightning and electricity, and the invention of the lightning-rod; the explanation of the aurora borealis and thunder-gusts upon electrical principles, are triumphs of the philosopher. His ardent support of the new Republic, his activity, judgment, and resources, speak for the statesman and the lover of liberty. His language unadorned, but ever pure and expressive; his reasoning manly and cogent, and so concise that he never exceeded a quarter of an hour in any public address. His correspondence a model of clearness and compendious brevity. Scrupulously punctual in all his dealings. An exemplar of economy, and regularity. His life, one of the most instructive and encouraging studies for youth, since it exhibits the sufferings, the trials, the power, and the victory of self-command, temperance and industry, and the reward of genius overcoming all the difficulties of fortune.

[By Houdon.]

424A. Benjamin Franklin. Statesman and Philosopher.

[By Hiram Powers.]

425. Samuel Johnson. Writer and Moralist.

[Born at Lichfield, 1709. Died in London, 1784. Aged 75.]

The son of a bookseller in Lichfield. Educated at Oxford, but compelled to leave the University without a degree, in consequence of the misfortunes of his father. Then an usher,—and then, marrying,—the proprietor of a private academy in his native city. He had only three pupils, but one of them was David Garrick. Master and pupil went up together to London in search of fortune. Both found what they sought—the pupil suddenly and brilliantly; the master, after trial, privation, and suffering. In 1738, Johnson published his first poem, “London.” Twelve years later, he came forth as an essayist in the “Rambler.” In 1755, appeared his “Dictionary of the English Language,” a seven years’ labour; and in 1781, “The Lives of the Poets.” In 1762, a pension of £300 a-year was settled upon him by King George III. The tradition of Johnson in society is of a literary and moral dictator—a character which, as far as he was concerned, implied much rather the depth of conviction with which he championed great interests, than the pride of self-conscious intellect, the taste for conflict, or the thirst of rule; and which the listeners conceded yet more in reverence for the personal worth of the man, than in submission to his intellectual superiority. He is one of the manliest and most robust minds in our letters. From moral sense and religion, from deep natural concern, his giant will was devoted to the great interests of mankind. He felt in himself a vocation to sustain these interests, and he was the sturdiest of combatants in the prosecution of his moral crusade. His style is stately, nervous, Latin, original, singularly suited to his mind, which gave a direction to contemporary minds, and largely fashioned the literature of his time. The prime characteristic of his writings is unquestionably strong, solid sense, mixed it may be with onesidedness, but bright with acute[II-192] reflection. Johnson’s exterior was unwieldy, his manners were not polished, but a tenderer heart never beat than his own. He could utter a withering epigram. He never committed a deliberately unkind act. His house was a hospital for the sick and distressed; he could not walk the streets without emptying his pockets into the hands of beggars, and his great heart melted under a tale of sorrow and injustice. He had strong prejudices, and although sincerely pious, was superstitious. He loved to speak in aphorisms, and we still quote his sayings, as attributing to him something of the dignity and weight of an oracle. His life influenced his age. After his death he still exercises his influence, for he has given occasion to the most perfect and amusing biography in the language.

425A. Samuel Johnson. Writer and Moralist.

[This statue, by J. Bacon, R.A., is at the South End of the Nave, on the East Side; for account of which, see Handbook to Modern Sculpture.]

426. Adam Smith. Philosopher and Political Economist.

[Born at Kirkaldy, in Scotland, 1723. Died, in Edinburgh, 1790. Aged 67.]

This great master in the science of political economy was the son of an Officer of Customs, and studied first in Glasgow, afterwards at Oxford. He had feeble health, and was of studious habits. In 1748, a lecturer, in Edinburgh, upon Rhetoric and the Belles-Lettres; and in 1751, appointed Professor, first of Logic, and then of Moral Philosophy, in the University of Glasgow. At this period of his life he published his “Theory of the Moral Sentiments,” a work in which he regards Sympathy as the foundation of all morals. In 1763, resigning his Professorship, he became tutor to the young Duke of Buccleuch, with whom he travelled on the continent for several years. He subsequently retired to his native village, where he passed ten years of his life in close obscurity, study, and fruitful meditation. In 1776, he issued from his cell to pour light for ever into the busy world. In that year was published his memorable “Inquiry into the Nature and Causes of the Wealth of Nations.” This monument of industry, observation, sagacity, learning, and acuteness, continues the one great hand-book of political economists. The leading points which Adam Smith laboured to urge in his “Inquiry” are—That labour is the only source of the wealth of nations; that wealth does not consist in the abundance of gold and silver, but in the abundance of the necessities, conveniences, and enjoyments of life; that it is sound policy to leave individuals to pursue their own interest in their own way, and that every regulation intended to force industry into particular channels, is impolitic and pernicious. The justice of these axioms has, after years of argument, denial, and resistance, received general acknowledgment in England; and Adam Smith is the author of one revolution in the world’s progress, and a benefactor of his kind. His reasoning is not always sound; but the base of his fabric is unassailable, and the illustration which constitutes its ornament, is amongst the happiest ever employed to give life and light to a solid structure. Adam Smith is the great practical philosopher of an age and a people, craving for his philosophy more than for any other, yet wanting, most of all, the philosophy which shows the soul of a man as the most precious of all his estates, and teaches him the husbandry of it. He died, having won a competence, and fulfilling a government appointment.

[This plaster cast was formerly in the collection of Sir Thomas Lawrence.]

[II-193]

427. John Hunter. Surgeon and Comparative Anatomist.

[Born in Scotland, 1728. Died in London, 1793. Aged 65.]

When John Hunter was twenty years old, he could scarcely read or write; but he could make chairs and tables. At the time of his death, forty-five years afterwards, he was the first anatomist in the country; and he left behind him a museum—the work of his own rare intelligence and industry—which the government purchased for the sum of £15,000, and conferred upon the Royal College of Surgeons. Hunter came to London, from his carpenter’s shop in Scotland, in order to serve as anatomical assistant to his brother William, who had already established a reputation as an anatomist, and was doing well. In a few months John had made sufficient advance to be able to give instruction in the dissecting-room. He then studied on his own account, went to Oxford, and became a surgeon. Intense application, profound observation, ceaseless experiments, and masterly skill and judgment, enabled him in time considerably to enlarge the knowledge of surgery, and to make valuable discoveries in connexion with his favourite science of comparative anatomy. He was, for England, the first great leader in the Science of animal life. He was a bold and clever operator; he wrote several professional treatises; and, besides being Surgeon Extraordinary to the King, he held the offices of Inspector-General of Hospitals, and Surgeon-General. His name is honoured in the profession to which he belongs, and he is justly regarded as the great and worthy guide and pioneer of all the seekers and successful discoverers, who since his time have explored the same paths.

[By Flaxman.]

428. James Watt. Improver of the Steam-Engine.

[Born at Greenock, 1736. Died 1819. Aged 83.]

It has been said that the genius of Watt, as displayed in his mechanical inventions, has contributed more to show the practical utility of the sciences, to extend the power of man over the material world, to multiply and expand the conveniences of life, than the works of any other individual in modern times. His was a rare mechanical genius. It had been nurtured from his infancy at home; where he lived, as a boy, in solitary retirement, cultivating observation and reflexion, and kept apart from other boys by weak bodily health. It may be affirmed that his whole life was one long day’s labour, for his enlightened industry never ceased. When a mere child, he would take to pieces and reconstruct every toy that came in his way. At nineteen he went to London, and placed himself with a maker of mathematical instruments there, making delicate instruments for his employer with his own hands. “With those same hands,” says M. Arago, a little fancifully, since the head now took the place of the hands, “he afterwards constructed those colossal machines which in Cornwall, and on the ocean, perform the service of millions of horses.” But the improvement of the steam-engine, until it attained its highest point of perfection, is not Watt’s sole claim to the title of a discoverer. Without knowing a note of music, he constructed an organ, and in a great measure solved the problem of temperament. He invented the press for copying letters; he introduced the process of bleaching by the aid of chlorine; he explained the composition of water, and the art of warming by steam. The extent, variety, and accuracy of Watt’s knowledge were amazing. No subject seemed foreign to him, and upon every subject he spoke as if that alone had all his life[II-194] engaged his attention. Sir Humphrey Davy declared that Watt stood upon a higher elevation than Archimedes. Great as were his powers, he was a man of child-like candour, and of the greatest simplicity.

[By Flaxman.]

429. Sir James Mackintosh. Historian and Metaphysician.

[Born in Scotland, 1765. Died, 1832. Aged 67.]

A strong and shrewd intellect: determined by native impulse and aptness to the metaphysical speculations, which, in the country where he was born, make regularly an important part of a liberal education. He sought and maintained the character of a dispassionate inquirer, reading extensively and carefully weighing conflicting opinions. More a student than a man of action; yet, even in study, his energies clogged by a natural indolence. Mackintosh, though descended from Jacobites, was a Whig. In 1791, he wrote a defence of the French Revolution, in answer to Burke; but, in less than four years, confessed that bitter experience had overthrown his generous argument. Adopting the law as a profession, he received promotion in India at the hands of his political allies. After seven years’ service, entered Parliament. He wrote an admirable “Dissertation on the Progress of Ethical Philosophy” for the “Encyclopædia Britannica,” and he was engaged on a “History of the Revolution of 1688,” when he died. A man of great learning, philosophical clearness, and fine perception. Yet his works lack method and elegance, and fail, from the absence of these qualities, to do justice to the intellect that fashioned them.

[By Christopher Moore. Executed in 1829 for Lord Nugent.]

430. Francis Jeffrey. Critic and Essayist.

[Born at Edinburgh, 1773. Died, 1850. Aged 77.]

One of the founders, and for many years the editor, of the “Edinburgh Review,”—a publication which he enriched by his essays on poetry and general literature. He had an acute, ingenious, and spirited intellect, a sensibility of taste, and a constant flow and vivacity of style; but his apprehensions in literature and the arts, were rather trained and authorized than free and original. He had a leaning, scarcely a special gift, to speculate on the questions of the Mind—questions early and familiarly brought before him, as rife in the Scottish school in which he was educated. The influence of Jeffrey upon literature and public opinion, during his life-time, was very great—partly from the character of the Review which he governed, partly from the independence, brilliancy, and ability with which he maintained his principles of taste. Many of his criticisms contain the soundest views, and are eloquently written: others have been signally refuted by time and the public verdict; and their style is defaced by wanton and unjustifiable flippancy of language. Jeffrey studied for the law, and, being always a liberal in politics, was promoted by his Whig friends to the Scottish bench. With the reputation of a brilliant and ingeniously argumentative speaker, he disappointed, in the House of Commons, the general expectation. He was esteemed a very kind and friendly feeling man.

[By Christopher Moore. Executed in 1846.]

431. Francis Baily. Astronomer.

[Born at Newbury, 1774. Died 1844. Aged 70.]

Originally a stockbroker. One of the founders of the Astronomical[II-195] Society, and for many years its President. Also Fellow and Vice-President of the Royal Society. Author of many astronomical works; amongst others, of a volume detailing the repetition of the Cavendish experiment for the determination of the earth’s density.

[Executed in marble, by E. H. Daily, R.A. Posthumous. 1848.]

432. William Yarrell. Naturalist.

[Born in London, 1784. Still living.]

The author of “A History of British Birds,” and of various papers on subjects connected with natural history. Is treasurer to the Linnæan Society of London.

[By Henry Weigall.]

433. George Stephenson. Engineer.

[Born 1781. Died 1848. Aged 67.]

A sturdy plant of English growth. A working mind born ripe for its time. An uncultivated power endowed with immeasurable capability. The story of George Stephenson reads well for his country, well for himself, well for the high faculties which Providence has given to man, irrespectively of birth, station, education, or any accidental condition. His parentage was of the poorest. He could not have begun his race at a more distant point from the goal of fortune. He did not even start with his fellows in open day, under the bright sun, on the earth’s surface. He was a pit-engine boy, and his pay was twopence a day. It was a great rise for him when he was made stoker, and he was on the high road to prosperity when he found himself breaksman. Promoted to the office of engineman, he declared that he was “now a man for life.” He first made known his mechanical genius in the service of Lord Ravensworth, when he repaired and improved, as an amateur, a condensing pump-engine, which had baffled the skill of some professional engineers. Having been, for a time, occupied in laying down some unimportant lines of rail, he went to Liverpool to plan a line of railway between that city and Manchester. He held out great inducements to enterprize, and made unheard-of prophecies of success. He even undertook that a locomotive should accomplish ten miles of distance in every hour. We must not be surprised that the people called him “mad” for proffering the assurance. Similar madmen had preceded him,—Columbus, Galileo,—the inventor of gas, the discoverer of vaccination and others. The line, as we know, was made,—the experiment tried. Stephenson was right, a locomotive can travel at the rate of ten miles an hour. The rise of Stephenson was now rapid as the strides of his own locomotives. He took the lead at once in railway engineering; became a great locomotive manufacturer, an extensive railway contractor, a large owner of collieries and iron-works, and a man of mark in the nation. Our railway system is the result of the multiform operations of his strong practical mind. Stephenson disputed with Sir Humphry Davy the invention of the safety lamp. Other claimants are in the field. We shall never know the discoverer, any more than we shall learn the birth-place of Homer; and George Stephenson may spare the extra laurel from his iron crown.

[By Christopher Moore, 1831. Executed for Robert Stephenson, Esq.]

[II-196]

434. William Fairbairn. Millwright and Engineer.

[Born at Kelso, on the Tweed, 1789. Still living.]

This eminent engineer settled as a millwright in Manchester, in 1815, and distinguished himself at once by his practical improvements in the construction of mills and workshops. To his early efforts, in the science of mill architecture, may be traced much of the improved taste now displayed by mill-owners in the manufacturing districts. His latest achievement in this direction is the magnificent structure at Saltaire, near Bradford, Yorkshire. He was an early builder of iron ships in Manchester, Hull, and London. His experiments, designs, and superintendence, were available in the construction of the Conway and Britannia Tubular Bridges. Mr. Fairbairn, besides his title to respect as a mechanical engineer, and a great improver in the specific sciences to which he has devoted his life, is a contributor of much valuable knowledge through the medium of the press. He is the architect of his own fortunes, and is remarkable, in an age of remarkable engineers, for his great energy, skill, taste, and discrimination.

[By J. E. Jones.]

435. Sir John Herschell. Astronomer.

[Born 1790. Still living.]

The worthy son of a celebrated sire. Educated at Cambridge, where he easily distanced all who competed with him for the honours of that seat of learning. Like his father, Sir John has devoted himself mainly to astronomical pursuits; but he has penetrated with ardour into every field of science, and illuminated by his genius all the ground he has trodden. He is a consummate mathematician, an accomplished chemist, a profound philosopher, a master of his native language, and of style. In 1834, he proceeded to the Cape of Good Hope, for the purpose of making observations in the southern celestial hemisphere, and continued there for the space of four years. His “Preliminary Discourse on the Study of Natural Philosophy,” is amongst the most beautiful, eloquent, and useful of modern publications. His treatises on Sound and Light show a profound application of the highest order of mathematics to physical subjects of the most subtle, delicate and ethereal character. Herschell, more than any other man of this day, has contributed to uphold and increase England’s scientific renown; his learning and accomplishments are universal, and his constant zeal in the diffusion of knowledge amongst all classes,—amongst the very humblest as well as the very highest,—constitutes a right to our gratitude and respect equal to that established by his philosophic labours and infinite acquirements. Sir John Herschell is Master of the Mint. Sir Isaac Newton held the post before him.

[From the marble by E. H. Baily, R.A. 1848.]

436. Michael Faraday. Natural Philosopher.

[Born 1794. Still living.]

This illustrious scientific man is the son of a poor blacksmith, and was in early life apprenticed to a bookbinder, at which craft he worked until his twenty-second year. His great delight in electrical researches brought him into acquaintance with Sir Humphrey Davy, whose assistant he became in the laboratory of the Royal Institution, where Faraday himself in time rose[II-197] to the dignity of Fullerian Professor. The discoveries of Faraday in several branches of science have placed him in the very highest rank amongst European philosophers. The most difficult and abstruse points in connexion with light, heat, electricity, magnetism, and the laws of matter, have been simplified to an extraordinary degree by the force of his sagacity and singular acuteness. As remarkable as his genius for discovery, and for the detection of the hidden operations of nature, is his admirable faculty of exposition. No living man approaches Faraday in the easy power of communicating the results of the most subtle investigation to a miscellaneous audience. Passing through his lucid understanding, every subject, however abstruse or abstract, becomes simple, clear, and attractive.

[By E. H. Baily, R.A. Executed in 1823.]

436*. Mary Somerville. Mathematician and Astronomer.

[Still living.]

One of the few women who step out from the limits which seem naturally assigned to their intellectual avocations, to compete with men in theirs. One of the fewer who do so, deserting none of their proper tasks, forfeiting nothing of their proper character. A profound mathematician and astronomer; a delicate inquirer into natural phenomena. Her work on “The Connexion of the Physical Sciences” spreads out, in a form designed for the uninitiated reader, but not for the inattentive, a large variety of impressive knowledge, on some of the most interesting laws of the natural world. Her manner of writing is remarkably simple, descriptive, clear and exact.

[By Macdonald. Executed in Rome, 1848.]

437. William Whewell. Philosopher.

[Born at Lancaster, 1795. Still living.]

The Master of Trinity College, Cambridge, and at this moment the greatest ornament of that celebrated university. He has been tutor in the college of which he is the Head, and Professor of Mineralogy. Subsequently appointed to the Chair of Moral Philosophy, which he still occupies. A great promoter of the study of this branch of human learning, both by his writings and his oral lectures. Has contributed valuable essays on the subject of education, with especial reference to the studies of his own university. Has enriched mathematical and physical science with many original investigations; is the author of a great work on the History and Philosophy of the Inductive Sciences, and of many scientific treatises exhibiting the application of the higher mathematics to natural philosophy. The vigour, activity, vivacity, and quickness of his intellect is extraordinary: his memory, in relation to almost every branch of literature and science, is rich to overflowing, and his faculty of conversation brilliant. The mind of William Whewell, by natural, impetuous action, invades all territories of knowledge, and grasps at a dominion forbidden by the term allotted to human life: but that mind, clearly and beyond all doubt, has power to grapple and to deal effectually with all that it has time to apprehend and seize. It is not to be wondered, that the temper of so ardent a spirit should be hasty: that its nature is frank, generous, and noble.

[By E. H. Baily, R.A. 1850.]

[II-198]

438. Sir Henry Thomas de la Beche. Geologist.

[Born in London, 1796. Still living.]

Distinguished himself early by his geological researches in England, France, Italy, and the West Indies. In 1835, the government instituted, at his suggestion, a Geological Survey of Great Britain, in conjunction with, the Ordnance Survey, and subsequently extended it to the United Kingdom, with Sir Henry as Director General. This post he now holds, in conjunction with the direction of the Museum of Practical Geology, and of the Government School of Mines. The author of many highly esteemed works and memoirs on geology; and has rendered good service to the state, by directing his knowledge to practical and educational purposes, and by inducing politicians, seldom ready to advance in a scientific direction, to found institutions of a high intellectual type.

[By E. H. Baily, R.A. 1845. From the bronze deposited in the Museum of Economic Geology, London.]

439. Thomas Carlyle. Writer.

[Born in Dumfriesshire, Scotland, 1796. Still living.]

Critic, Philosopher, Essayist, Censor: the criticism acute, penetrating,, severe; the philosophy idol-worship; the essay-writing picturesque, striking, animated, and strongly coloured; the censorship furious, testy, useless, if not unmeaning. Saturated with German metaphysics, full of German literature, and delighting in the German form of expression. If Thomas Carlyle would throw off his foreign affectations, and forget himself in his labours, he would be one of our most instructive, useful, convincing, and admirable writers; for his heart is large, his intellect strong, and both heart and intellect have long striven to inculcate human love amongst men, and to build, upon mutual affection, high deeds, and benevolent aspirations. But Thomas Carlyle, pen in hand, never did forget himself at any one instant of his life, and never will. To use one of his own Germanisms, he is the very incarnation of “Ich.” An instructed author will hold the balance fairly between his subject and his reader, dealing with each with intelligent reference to the other. Carlyle usually cares nothing either for his reader or his subject, but swallows up both. Whatever he shows us, we chiefly see Thomas Carlyle. “The French Revolution” is the best of his works! His pictures, there are startling, wonderful, and highly painted; his eloquence is inspiriting, and his imagery grand. As a social and moral Reformer, he beats the air, belonging to that humblest order of architects who are clever enough at destroying houses, but have no power to set up others in their place. Yet the influence of Carlyle has been great, both in England and America. He has forced men to think—he has appealed with irresistible power to their better natures—given vigour and direction to their impulses, and torn the veil from quackery as often as the evil thing has crossed his manly and indignant path. Sad thought that so serviceable an arm should be clogged with fetters of its own forging—that an almost boundless capacity for good should be restricted by a tether of its own fashioning.

[By H. Weigall.]

440. Frederick Carpenter Skey. Surgeon.

[Born at Upton-on-Severn, 1798. Still living.]

Professor of Surgery to the Royal College of Surgeons of England: Surgeon to St. Bartholomew’s Hospital and other institutions. The author of a work on “Operative Surgery,” in which a strong and humane plea is put forward[II-199] against the use of the knife until the last extremity; and of the Hunterian Oration for 1850.

441. Richard Owen. Naturalist.

[Born at Lancaster, 1804. Still living.]

Owen, Faraday, and Herschell are England’s living representatives of science, and are so esteemed throughout Europe. Comparative anatomy, founded by Cuvier, has been perfected by Owen, and to him is due the great merit of raising that science in England to a position that commands the gratitude and admiration of the whole scientific world. This illustrious philosopher commenced life as a midshipman, but his career was quickly arrested by the close of the American war in 1813. In order to re-enter the profession, he adopted the medical profession, and became the pupil of Mr. Baxendale, a surgeon in Lancaster. In 1824, he matriculated in Edinburgh. In 1825, he came to London, and passed the Royal College of Surgeons in 1826. Under the advice of his friend, Abernethy, Owen gave up all thoughts of the navy, and accepted an appointment at the College of Surgeons, where for ten years he laboured at completing the catalogue of John Hunter’s magnificent museum. The enormous labour was achieved in 1840. Since that time every form of animal life, from the Sponge to the Man, has been submitted to his sagacious mind, and upon every subject he has thrown illumination. The mere enumeration of his contributions to the literature of natural history would in itself be a task. His “Treatise on the Homologies of the Vertebral Skeleton” has been received with great favour by anatomists and physiologists. His histories of “British Fossil Mammals and Birds,” and of “Fossil Reptiles,” the treatise “On the Nature of Limbs,” on “Parthenogenesis, or the successive production of procreative individuals from a single ovum,” have each brought fresh laurels to his brow. Cuvier asked, “Why should not natural history one day have its Newton?” We answer, “It has found Richard Owen.”

[By E. H. Baily, R.A. 1840.]

442. Benjamin Disraeli. Writer and Politician.

[Born 1805. Still living.]

The author, at an early age, of “Vivian Grey,” a novel. Has since published many interesting works of the same kind, the most popular being “Coningsby,” a book in which the political views of the writer are interwoven in the tale of fiction. Mr. Disraeli has acquired greater fame as a politician than as an author. By his own efforts, and by the force of his great genius, he has risen to one of the highest offices of state, having for a few months served his country as Chancellor of the Exchequer. Mr. Disraeli is unequalled in the House of Commons for sarcasm and invective; but he has other, better, more useful, and more lasting qualities of a statesman. If the moral weight of Mr. Disraeli in the country, is less than his talents would seem to claim, public opinion is not so much to blame as Mr. Disraeli, for the discrepancy between his acknowledged ability, and his place in the world’s estimation.

[By W. Behnes.]

443. Thomas Brassey. Railway Contractor.

[Born at Buerton, near Chester, 1805. Still living.]

One of the chiefs of the aristocracy that has risen in these latest times[II-200] upon the foundations of commercial enterprise. A prince of the new dynasty, whose dominion extends wherever civilization is fostered by the Rail, and whose coronet is of iron. He commenced life as a surveyor at Birkenhead, and his first connexion with a railway was a contract to supply the stone for a viaduct of the “Manchester and Liverpool.” Since that time his labours have been incessant and extraordinary, both in his own country and out of it. Since 1846, he has, upon his own responsibility and credit, constructed upwards of 500 miles of railway, representing an aggregate of £9,250,000 of contract money. In France and Spain, his joint contracts with Mr. Mackenzie were for 189 English miles of road, and for nearly £3,000,000 sterling. His engagements, in Scotland and England, with Mr. Mackenzie and Mr. John Stephenson, from 1844 to 1851, comprised 511 miles of railway, and an aggregate of £7,200,000. His hands are still full, and his men are carrying out his behests in all parts of the world. In more senses than one the career of Thomas Brassey may be described as princely. The “Barentin” viaduct, of 27 arches, on the “Rouen and Havre” line tumbled down when all but completed; and the casualty involved a loss of £30,000. Mr. Brassey the contractor was neither morally nor legally responsible. He had repeatedly protested against the material used in the structure, and the French lawyers maintained that his protest freed him from liability. The contractor was of a different opinion. He had contracted, he said, to make and maintain the road, and no law should prevent him from being as good as his word. The viaduct was rebuilt at Mr. Brassey’s cost. For the construction of this stupendous work (accomplished in seven months) 16,000,000 bricks were required, of which 14,000,000 were new, and made on the spot. Thomas Brassey is beloved by his countless retainers. Riches, power, influence, and dominion, have not touched his sound and feeling heart. We dare to speak truth of this living worthy, for his life is in all respects one of the highest examples we can offer to our generation, absorbed as we are in the production of great industrial undertakings, and, above all things, intent upon the pursuit of wealth.

[By J. E. Jones.]

443*. William Dargan. Railway Contractor.

[Still living.]

Born at the beginning of the present century, of humble parents, in the county of Carlow, Ireland. After leaving school, was placed in a surveyor’s office. Then served with Telford the engineer, on the Holyhead-road; afterwards engaged, on his own account, in forming the Howth Road, and some canal works in other parts of Ireland. Since the introduction of railways he has been the chief maker of the iron paths that traverse the sister kingdom. When all the works shall be completed, which owe their construction to his skill, ingenuity, and industry, nearly a thousand miles of railway will be due to his enterprise. William Dargan is not only a railway contractor, but a railway owner, a steam-packet proprietor, a flax grower, and a farmer. Whilst too many of his fellow-countrymen have been engaged in destroying—as far as in them lay—the elements of industry in Ireland, he has laboured to develop her resources, and to rouse the physical energy and the self-respect of all classes. He is a patriot, not a partizan—not an Orangeman, nor a Ribbandman, nor a Repealer, nor a Protestant-ascendancy-man, but a true-hearted Irishman, a useful citizen, a loyal subject. If[II-201] Sir Robert Peel could have counted a dozen Dargans amongst his coadjutors in Ireland, he would never have had cause to reckon the government of that portion of the United Kingdom, amongst his insuperable “difficulties.” The greatest work of the patriotic Dargan remains to be mentioned. He placed £20,000 at the disposal of the Committee formed in Dublin, for the construction of a Crystal Palace in that city. Before the Palace was ready to receive the contributions of all nations, William Dargan had contributed a much larger sum. He has his reward in the affectionate gratitude of the Irish people—in the approving smiles of his sovereign—in the lasting good wrought by his act in the land of his birth.

[This statue, by J. E. Jones, is at the south end of the nave.]

444. Samuel Warren. Lawyer and Writer.

[Born in Denbighshire, 1807. Still living.]

Is the author of “The Diary of a Physician,” and “Ten Thousand a-Year,” in the department of fiction, and of a work on the Study of the Law. Mr. Warren was originally educated for medicine. He has risen to the rank of Queen’s Counsel in the profession which he subsequently adopted; and his writings have acquired a wide popularity. The genius of Mr. Warren lies especially in the detection and dissection of character, in which he exhibits great skill and power.

[By Henry Weigall.]

445. Edward Shepherd Creasy. Historical Writer.

[Born in Kent, 1812. Still living.]

Educated at Eton, where he obtained the “Newcastle Scholarship.” Subsequently proceeded to King’s College, Cambridge. In 1837, called to the bar. Is Professor of History in University College, London, and the author of some able historical works.

[By E. G. Papworth, jun., by whom it is presented to the Crystal Palace.]

446. Judge Haliburton. Lawyer and Writer.

[Still living.]

Off the bench, better known under his assumed name of “Sam Slick.” He is a judge of Nova Scotia. In 1835, first appeared in a Canada paper as the author of a series of letters, illustrating the Yankee character. In 1842, was Attaché in England to the American Legation; one result of this appointment was the publication of “Sam Slick in England.” Sam’s pen continues from time to time to enliven and amuse the world, and to set it broadly grinning. He has infinite humour, a rollicking, racy, uncontrolled style, an exuberance of animal spirits, great acuteness, much worldly sagacity, and marvellous good sense under all his fun. A genial satirist, and one of those who have the best succeeded in making the low, corrupted, half-provincial, and half-slang language of an inferior social class serve literary use.

[By J. E. Jones.]

447. Edward Forbes. Naturalist.

[Born at Douglas, Isle of Man, 1815. Still living.]

One of the most eminent of our scientific men, remarkable for his originality, sagacity, lucid research, and general scientific attainments. Studied at Edinburgh, and afterwards lectured there on Natural History.[II-202] Joined, in 1841, the Hydrographical Survey of the Ægean, under Captain Graves, R.N., and made important discoveries respecting the laws of bathymetrical distribution of marine animals and plants. In 1842, explored the antiquities, geology, and natural history of Lycia. During this expedition the sites of eighteen ancient cities were brought to light. In 1845, appointed Naturalist to the Geological Survey of the United Kingdom, and in 1851, a Professor of the Government School of Mines. President of the Geological Society, one of the Royal Commissioners of the Great Exhibition, and author of numerous works and memoirs on geological, zoological, and botanical subjects. In 1854, upon the decease of Professor Jameson, raised to the Chair of Natural History in the University of Edinburgh.

[By E. H. Baily, R.A.]


SOLDIERS AND STATESMEN.

448. William Murray, Earl of Mansfield. Lord Chief Justice.

[Born at Perth, in Scotland, 1704. Died in 1793. Aged 88.]

This great lawyer and upright man was the fourth son of David, Lord Stormont. In 1718, being thirteen years old, he travelled to London on the back of a pony, and went to Westminster school. In 1723, he proceeded to Oxford. At both places of learning he was distinguished for his industry and classical attainments. Afterwards entered at Lincoln’s Inn, and in 1730 was called to the bar. He gradually made his way upward. In 1742, Solicitor General; 1744, Chief Justice of the King’s Bench; 1776, advanced to the dignity of an Earl. Other events are worthy of record. During the Gordon Riots of 1780, the Protestant mob, thinking him favourable to the Catholics, burned his house to the ground, and cruelly destroyed a valuable collection of books and manuscripts. He was the principal victim of the merciless assaults of Junius; and he is remembered in the law books, as the chief justice who, in the celebrated case of “Rex v. Almon,” arising out of one of Junius’s Philippics, attempted in vain to withdraw the cognisance of the question of libel from the jury, to vest it in the court. In politics Lord Mansfield was a Tory; as a judge he recognised nothing but his duty to his sovereign and his country; and he must always be regarded as one of the greatest men that have adorned the judgment-seat in England. He possessed an amazing clearness of apprehension, vast learning, and marvellous perspicuity of exposition. His love of justice was the sole passion that absorbed his otherwise calm nature, and his integrity was spotless. In law, as in religion, the mind of Mansfield was essentially liberal. It was a saying of Burke’s that Murray—superior to the technicalities of his profession—still made the liberality of law keep pace with the demands of justice and the actual concerns of the world, conforming our jurisprudence to the growth of our commerce and of our empire. He was thus the founder of the commercial law of England, which before his time had no existence. Brave as a lion on the bench, Mansfield exhibited unaccountable timidity as a statesman. He quailed before Lord Chatham, whose schoolfellow he had been, and who mercilessly opposed him from the school to the grave. The illustrious rivals now lie quietly side by side in Westminster Abbey.

[From the statue in Westminster Abbey. Executed in 1801 by Flaxman.]

[II-203]

449. William Pitt, Earl of Chatham. Statesman.

[Born 1708. Died at Hayes, in Kent, 1778. Aged 70.]

A grand Minister, an idol in the memory of the nation, but failing in some of the elements of true greatness, for he was haughty, overbearing, inconsistent, insolent, obstinate, and petty. The statesman who would never be seen on business, except in a full dress coat and tie wig—who never allowed the highest considerations to interfere with his constant study of effect—who, in opposition, anathematized men for attempting that which he himself, in power, was the very first to carry out—who never suffered his under secretaries to sit in his presence—who never blushed at the most barefaced and vehement self-contradiction, can hardly be ranked with the very highest characters that adorn the pages of History. Yet he was superb withal, and potent in his influence upon the age in which he lived. He had tremendous earnestness; his thoughts blazed in his mind, and were communicated in burning words to his listeners. He had the faculty of uttering great truths, in language that carried not only conviction to every understanding, but enthusiasm to every soul. He had a noble person—an eye like an eagle’s—a voice of thunder. His oratory was splendid, and his speeches maintained some of their power when transferred to paper. He was always terrific. He began his career as a Cornet in the Blues, and entering Parliament as member for Old Sarum, in 1735, he so astonished Sir Robert Walpole by the violence of his assault, that the astute Minister was fain to intreat some one “to muzzle that terrible Cornet of horse.” The great glory of Chatham, as Minister, consists in the war policy which he advocated and upheld to the great advantage and pre-eminence of his country. In spite of all his errors he was adored by the people. He could feel and act with true nobility, and the multitude were touched by the lofty sentiments by which he was himself animated. Almost his whole fortune consisted of private benefactions. The Duchess of Marlborough left him £10,000, and Sir William Pynsent bequeathed him £3000 a year, and £30,000 in ready money. He opposed the war with America, but with his latest breath denied the right of the colony to independence. Whatever he did, he was still the most popular man in England. Proud and domineering as he was in public, his private character, as Lord Chesterfield declared, “was stained by no vices, and sullied by no meannesses.” In his own household, by his children and dependents, he was beloved for his gentle kindness. The statue before the visitor is highly characteristic of the man. “Graven by a cunning hand,” says Macaulay, “it seems still with eager face and outstretched arm, to bid England be of good cheer, and to hurl defiance at her foes.”

[The original model of the statue by J. Bacon, R.A., in Westminster Abbey. It will be found at the South end of the Nave.]

450. Edmund Burke. Orator, Writer, Statesman.

[Born at Dublin, 1730. Died 1797. Aged 67.]

Coleridge, speaking of Edmund Burke, has said that “he referred habitually to principles—he was a scientific statesman.” He is by far the most philosophic politician that ever dealt with public affairs in England. He takes rank with those who have applied their genius to the transactions of their own fleeting day, in order to extract from them truth, wisdom, and instruction for all ages. Gifted with gorgeous eloquence, he spake like a prophet. We read his words, which we are told fell as he uttered them[II-204] upon dull insensate ears, and are astounded to find how nearly, under altered circumstances, they concern ourselves. Our descendants shall peruse the same syllables with the same living interest, desire, and benefit. Châteaubriand has asserted that when Fox spoke in the House of Commons, he and all strangers could not keep back their tears. When Burke rose, the act was a signal for general flight. We can understand the difference. Burke walked sublimely in advance of his contemporaries; Fox was abreast of them, sharing in their prejudices, and, it may be, inflaming their passions. Burke had great knowledge of men and books, an imagination rich to overflowing, and although a philosopher and a theorist, business-like habits. His genius was unmatched in the House of Commons, and his industry did not fall short of that of the most plodding member of that assembly. He was the son of a Dublin attorney, and in early life found favour with Lord Rockingham, who, bringing him into Parliament, allied him to the Whig interest. The connexion was subsequently broken off, when. Burke, in alarm at the frightful results and portents of the French Revolution, strove to preserve Liberty by holding her back from the too ardent embrace of her professed friends. His “Reflections on the French Revolution” was the most memorable treatise of the time; and it was followed by others as remarkable for splendid diction, as for the profoundest philosophical thought. When starting into life, Burke wrote his celebrated essay on “the Sublime and Beautiful,” and set on foot the “Annual Register,” the historical portion of which he wrote for many years. He would have been raised to the peerage but for the premature death of his only son, of whom he was very fond. His character has been variously estimated. There is no reason to doubt that he was as conscientious, as honest, and as sincere, as he was mighty in his high mental endowments.

[By Christopher Moore, 1850.]

451. George Washington. First President of the United States.

[Born in Virginia, United States, 1732. Died, 1799. Aged 67.]

If we were asked to single out from ancient or modern story one bright unsullied example of true greatness, of perfect patriotism, disinterestedness, consistency, and self-devotion, it would be difficult not to select George Washington. England, that suffered by his acts, has reason to be proud of his surpassing glory; for he came from the common stock, and he wrought the liberty of his country by the exercise of virtues dear to all Englishmen, and—let us dare to say—characteristic of their race. He received the most ordinary education, for he lost his father when ten years old; and he had to make his way in life by his own best efforts. At the age of eighteen he was appointed surveyor, in Virginia, to Lord Fairfax. At twenty he was Major in the colonial militia. In 1775, he took the command of the army in America against England. How he acted from that hour until 1783, when the treaty of peace was signed,—what intrepidity he exhibited,—what wisdom, what coolness, what courage, what moderation, what rare self-command under defeat, for, fighting at great disadvantage, he lost more battles than he gained,—is known to all. In 1789, he was elected President of the United States. As chief of the government, he declined all remuneration, save the bare payment of his official service: he had shown the same abstinence when in command of the army. In 1796, worn out by the labours and anxieties of his momentous life, he laid down his power and withdrew into privacy; but not until he had delivered to the American people, as his last[II-205] public work, his solemn advice for their future self-government and conduct. His words of weight may be read to-day with singular advantage by the millions who enjoy the inappreciable blessings of freedom and prosperity, which his good right hand, sound heart, and sagacious judgment, chiefly secured to them. If hero-worship may be pardoned, he shall be forgiven—for his offence shall induce in him only humility—who kneels before the quiet, unpretending shrine of Washington.

[By Canova.]

451*. Warren Hastings. Statesman.

[Born 1732. Died 1818. Aged 86.]

Descended of an ancient and honoured line, seated at Daylesford, in Worcestershire, but ruined by taking the King’s side in the civil war. The boy, motherless, from his birth, and left in the hands of his grandfather, the impoverished incumbent of the parish, was sent early to the village school, and taught his letters with the peasantry. At seven years old, as he basked on the bank of the little stream that ran through the domain of his fathers, the thought of repossessing the lost inheritance broke on his imagination. The vision of the child was the single personal aim of the man’s life. What a life, ere the vision took reality! At 10 he was placed at Westminster school, at 17 he sailed with a writership for Bengal. His courage and intelligence, when the English authorities had fled from Calcutta, with his services in Clive’s army, raised him rapidly to distinction, and in ten years after setting foot on Indian ground, he was member of Council. At 32, he returned, with a moderate fortune, to England: and—that given and spent—at 36, back to India. At 40, Governor of Bengal. At 41, Governor-General. Ere the five years of his appointment had elapsed, he was more! He had overthrown his mortal foes in the Council: and was Lord Paramount of British India. In his 53rd year, his reign ceased. What had it been? With a resolution which no dangers and no difficulties could daunt, with a genius for resource, fertile in proportion to the demand, with a sagacity that disabled opposition and commanded success, with a self-possession calm in every tempest, he had taken in hand a set of provinces imperilled by their disorganization and by terrible enemies: and he left a constructed and fortified empire. What had been his means? Good and ill. He had stood between the rapacious rulers and the feeble ruled, and was alike beloved by both. A civilian, he held the heart and allegiance of the army. But in India he had used Indian powers. He had not amassed money corruptly, but he had corrupted with it. He had extorted treasure, he had broken faith, he had authorized and instigated cruelty, he had violated justice to shed guilty blood, he had held the ordinary moral laws suspended, for the safety and the aggrandizement of the dominion committed to his sway. Called to answer before the highest tribunal in the land, by all the intellect, eloquence, and power of a great party in Parliament, he was acquitted after a process of unheard-of duration, reaching through many years: but ruined by the costs. Partially compensated by the India House he retired to the ancestral home which, according to his early resolve, he had taken care to secure. Here for years he lived a tranquil, happy life in the midst of books, which he loved, and of endeavours to improve English cultivation from his experience in India.

[By J. Bacon, R.A.]

[II-206]

452. Charles James Fox. Statesman.

[Born 1748. Died 1806. Aged 58.]

This great orator and popular statesman, like his rival William Pitt, was trained from his youth for political life. He was the son of Henry, first Lord Holland, and received his education at Westminster, Eton, and Oxford. His acquaintance with ancient and modern literature was extensive, his taste highly cultivated, and his literary ability great. Had he not been a politician, he might have won high distinction as a scholar; or, had he not been constitutionally indolent, have reflected lustre upon his public deeds by labours in more classic fields. There was a difference of ten years in the ages of Pitt and Fox; Pitt being the younger man. Both were second sons: both had been sedulously prepared for the great arena by their ambitious fathers. Pitt began his work as a Reformer, but quickly turned aside into the ranks of the Tories. Fox, starting into life under the wing of his Tory parent, spoke and voted against Wilkes; but quickly repenting of his act, threw himself into the arms of the Whigs. And then the battle between the two rare combatants was well fought out unto the end—Pitt dying in harness in 1806, Fox following him the very same year. Fox was a Liberal, as the name was in his time understood by the great Whig families—an aristocrat with popular ideas, sympathizing with progress, but holding fast to the pillar of the constitution, every stone of which he jealously upheld. On every great subject he stood opposed to Pitt; he inveighed bitterly against the war with France, as he had formerly steadily opposed the rupture with the American Colonies. He was a speaker of extraordinary power; his oratory being bold, argumentative, impassioned, and unpremeditated. His followers were attached to his person, and in private life he was beloved, for he had an affectionate and noble nature, clouded by sad weaknesses. He was a desperate gamester, and a lover of pleasure to excess. At St. Ann’s Hill, withdrawn from the heat of conflict and dissipation, to his quiet and beloved garden—to his friends and his books, he was more faithful to himself, and to the good gifts of Providence within him.

[By I. Nollekens, R.A.]

453. John Philpot Curran. Lawyer.

[Born near Cork, 1750. Died in London, 1817. Aged 67.]

Of very humble parentage. Obtaining a sizarship, he received his education at Trinity College, Dublin, free of expense. He went to London, and entered himself as student at one of the Inns of Court. Called to the bar in 1775. His brilliant qualities soon brought him into notice. He was employed to defend various persons charged with political offences, and his eloquence, his wit, his withering sarcasm, and touching pathos, carried all before them. In 1784, he obtained a silk gown, and took his seat in the Irish House of Commons as member for Doneraile. When the Whigs came into office in 1806, he was made Master of the Rolls in Ireland. This office he held until 1814, when he resigned it and secured a pension of 3000l. a-year. He then visited England, and took up his residence in London, where he died. He was a popular advocate, and a most successful debater. His personal appearance was as deficient in grace as his intellectual powers were splendid. His country, which loved him when living, lamented him when[II-207] dead, and perpetuated her love and her grief by the erection of a public monument to his memory.

[By Christopher Moore. 1841. Executed for his monument in St. Patrick’s Cathedral, Dublin.]

454. Lord Eldon. High Chancellor of England.

[Born 1751. Died 1838. Aged 87.]

A great lawyer. His legal learning, it is said, has never been surpassed, If it has been equalled. For many years of his long life he sat on the judgment seat, and in the councils of his Sovereign. But the fame of Eldon as a politician has not survived him. He was narrow-minded and narrow-hearted. Lord Brougham has summed up his political faith when he says, “he was alike the determined enemy of all who would either invade the institution, or extirpate the abuse.” He worshipped things as they were. Whatever existed—whether a rotten borough, a sanguinary enactment, or an unjust civil disability—to the mind of Lord Eldon it formed part of the “British Constitution,” and that Constitution had in his eye a sanctity, like religion. No argument was admitted against this iron and immovable belief. Hence, though all men respected his sincerity, all enlightened men pitied his bigotry, and felt it as a public relief when he departed in his ripe old age. He was the last great man of the remorselessly obstructive school to which he belonged. As Lord Chancellor, his decisions have obtained great respect, but he was generally so long in arriving at them, and hesitation and doubt formed so marked a characteristic of his judicial character, that the pecuniary losses and human misery for which he became responsible were considerable. Lord Eldon was of humble origin, and his chances of promotion seemed in early life so remote, that he was actually at the minute of quitting London in despair when he received the brief that took him on to fortune.

[By Chantrey.]

455. Horatio Nelson. Lord High Admiral.

[Born at Burnham-Thorpe, in Norfolk, 1758. Died at Trafalgar, 1805. Aged 47.]

The most famous of sea-captains, and the darling of his country. He fought the sea-half of the world’s greatest war. England has a just pride in her Wellington, whose memory she honours. Towards Nelson she looks with a tenderer recollection, and her heart moves when she thinks of his services and renown. As Captain in 1794, he conducted a siege at Calvi, and lost an eye. In 1797, crying to his men “Westminster Abbey or glorious victory,” he captured the San Jose and San Nicolas, at the battle of St. Vincent. In the same year he lost his right arm at Teneriffe, and twelve months afterwards he received a wound in his head at the glorious victory of the Nile. There was in truth very little left of the man—yet all of the hero—when, in 1805, a cruel shot at the battle of Trafalgar, killed him in the very hour of triumph to his fleet, of delivery to his country. His death was felt in England as a personal, as well as national calamity, and was mourned by the whole people as by one man. Gentle as a woman; brave as a lion; devoted to his country; fighting her battles with a passionate ardour that consumed and obliterated all personal considerations; loyal; pious;—these are some of the qualities that combined to form the character of Horatio Nelson. He was always insignificant in person;[II-208] and after his slender frame had been battered about by the enemy, his appearance in the honoured uniform which, his services had won, was most singular and striking; for he looked like a skeleton clothed in cumbrous magnificence. Yet the influence of this reduced, war-beaten figure was electrical. All who came within its atmosphere partook of its own nature. The followers of Nelson could and did achieve miracles, because they had unbounded faith in the power of their chief—in his heroism, resolution, and determination at all times to win. Nelson was beloved by his sailors. He lies buried in St. Paul’s.

456. William Pitt. Statesman.

[Born at Hayes, in Kent, 1759. Died 1806. Aged 47.]

It has been well said that the life of William Pitt, the second and favourite son of the magnificent Earl of Chatham, had neither springtime nor autumn. It knew neither the fresh delights of boyhood, nor the tranquil happiness of age. His father had trained him from his very childhood, like an athlete, for the feverish arena of politics. Before he was twenty-one, he stood a gladiator armed; and from that age until his comparatively early death he knew no rest. He was twenty-four—a period at which our English youth are quitting college, and looking around them for a profession—when he became Prime Minister of England. For seventeen years, in the midst of broil and battle, of discontent at home and warfare abroad, this great man held the place which his eagle ambition had chosen for its eyrie on the rock, defying opposition by his commanding eloquence, by the fertility and grandeur of his resources, by his singular financial ability, and by his unquenchable energy. In 1801, he descended from his lofty seat in order to make way for a Minister of peace; but in 1804, all hope of peace being blasted, he was again summoned to direct the councils of the nation, and again he exercised all his varied powers for the development and consummation of the policy, which, right or wrong, he deemed essential to the safety of England, and to the tranquillity and freedom of the world. Two years after his return to office, he fell a victim to his life-long labours and to an hereditary gout, nourished by intemperate habits. It is somewhat curious that Pitt, the cherished head of the aristocratic and Tory party, had expressed himself in favour of nearly all the principles which the liberals of subsequent times have struggled, not fruitlessly, to uphold. He was friendly to Church Reform, to Financial Reform, to Parliamentary Reform, and to the removal of disabilities on account of religious belief. He died at the same age as Lord Nelson; and as to Lord Nelson, so to him, a public funeral was decreed. The sum of forty thousand pounds also was voted to pay his debts. Whatever had been the faults of Pitt, he was not avaricious. He had made no money by the State, for he had ever been the most unostentatious of men. The character of his eloquence was unlike that of his father. It was logical, dignified, equable: now rising into indignant invective, and now taking the shape of the keenest and most cutting sarcasm; but always self-possessed. It did not burst in torrent from an overflowing fount of wrath and passion like the submerging oratory of Chatham. The form of Pitt was gaunt, his countenance harsh, and his action ungraceful. He was, in many respects, one of the greatest Ministers our country has ever seen. His rapid comprehension was well described by his tutor, who said that he seemed to him to justify the doctrine[II-209] of Plato, that the act of learning is reminiscence only, and not acquisition. He was the favourite of the nation: Fox of a party.

[By J. Nollekens, R.A.]

457. General Jackson. President of the United States.

[Born in South Carolina, U.S., 1767. Died at Nashville, in Tennessee, 1845. Aged 78.]

The son of an Irish emigrant. He was originally destined for the Church: but he quitted school to take part in the War of Independence. The war over, he adopted the law as a profession, and became judge in Tennessee, as well as Major-General of the Forces of the same state. In 1815, as Major-General of the United States, he gained a decisive victory over the English at New Orleans. In 1821, appointed Governor of Florida, and the next year elected member of the Senate for the state of Tennessee. Elected President of the United States in 1828 and again 1832; so that he was at the head of the American government for the space of eight years. An ardent democratic chief throughout life. His presidency was distinguished by the development of democratic tendencies, of the spirit of territorial extension, and by the marked encouragement of the slave-holding interest. He successfully opposed Congress in the matter of the United States Bank, regarding it as a monopoly in the State injurious to the general interests of the people. Jackson was a man of Roman virtues, a true patriot, and of uncompromising integrity, simple, and austere. Straightforward and blunt as a soldier.

[By Hiram Powers.]

458. Henry William Paget, Marquis of Anglesey. English Field Marshal.

[Born 1768. Died 1854. Aged 86.]

A distinguished, brave, and gallant military commander. In 1793, served in Flanders. Later, won honour in Spain, especially by the skill with which he covered General Moore’s retreat. At Waterloo, where he commanded the whole British cavalry, he lost a leg. He was member of the government under Canning, and in 1828—a memorable epoch—Lord-Lieutenant of Ireland. Again held this appointment under Lord Grey, in 1831.

[By Christopher Moore. 1840. Executed for W. H. Curran, Esq.]

459. Arthur, Duke of Wellington. Soldier and Statesman.

[Born in Ireland, 1769. Died at Walmer Castle, 1852. Aged 83.]

The third son of the Earl of Mornington, and of Anna, daughter of Viscount Dungannon. Received his early education at Eton—then studied at the military school of Angers, in France; and in 1787, entered an infantry regiment as Ensign. Later became by purchase Lieutenant-Colonel of the 33rd, and in that regiment took part in Holland in the campaign of 1794. His first great military exploit was at the beginning of the century, in India, where his brother was Governor-General, and where, fighting in the war against the Mahrattas, he annihilated at Assaye an army of 60,000 men, with only 12,000 troops. From this period until his defeat of the French army, and the overthrow of Napoleon on the field of Waterloo (1815), his career was a series of triumphs. Many comparisons have been made between Napoleon and Wellington; all are unnecessary, and from the purpose. There is no resemblance whatever in the two characters. If it is contended that Napoleon was the greatest military hero of his time, it is sufficient for the admirers of Wellington to state, that after the English[II-210] captain had beaten, one upon another, the great Marshals of Napoleon, he conquered Buonaparte himself, and put an end for ever to his splendid authority and terrible misrule. Madame de Staël has said, speaking of Wellington, that “Never was so great a man made out of such small materials.” Another writer has remarked, that in him “common sense amounted to genius.” A third tells us that he accomplished everything by that system of self-subjugation which made every wish, desire, aim, and object of life subordinate to a paramount and an ever-present sense of duty. We may gather a notion of the true character of Wellington from such criticism. There was nothing brilliant and overpowering in his genius; but he commanded respect, and won greatness by the wisdom of his combinations, the steadiness of his will, the simplicity of his aim, and the pertinacity of his course—his mind being once made up as to the direction to be taken. Wellington had boundless influence over his men, because he had irresistible power over himself. He knew better than any other great captain what not to do: and having resolved upon the propriety of inaction, no consideration, no amount of obloquy, blame, or reproach, could incite him into action. When he undertook command in Portugal, it was his conviction that the enemy were to be finally defeated by a passive policy on his part at starting. For months, against general opinion, he persisted in that policy; and after it had succeeded beyond all expectation, once a-foot, he advanced resolutely with his troops, scoured Portugal and Spain, drove the French before him, followed them into France, and never slackened until he had caught Napoleon, and chained him to the rock of St. Helena. Into the field of politics Wellington brought the same policy to play. He knew when to act on the defensive, how long he might defend with safety, when it was prudent to retreat or capitulate upon honourable conditions. The life of Wellington, from his boyhood until his death, is an instructive lesson for his countrymen. His daily habits, as we all know, were of the simplest; and his business-like activity was the most remarkable characteristic of his old age. In manners Wellington was soldierly and rough, but he was fond of children. He had few intimate male friends, but he has left behind him a correspondence that shows the delight he took in opening his mind freely, on the most delicate questions of State policy, to more than one of the gentler sex. A great contemporary poet, a friend and warm admirer of Wellington, has said that this illustrious, and in many respects perfect man, had one infirmity that brought him down to the level of us all—“he could be angry.”

[By Henry Weigall. This was the last bust for which the Duke sat. It was modelled in four sittings, the dates of which were August 6, 9, 11, and November 18, 1851.]

459A. Arthur, Duke of Wellington. Soldier and Statesman.

[Colossal Bust presented by the sculptor, H. Ross.]

460. John Quincy Adams. President of the United States.

[Born at Boston, U.S., 1769, Died 1848. Aged 79.]

Educated in Europe. At a tender age, private secretary to the American Minister at St. Petersburgh. In 1794, appointed by Washington, Ambassador to the Hague. In 1809, Ambassador to the Court of Russia. Subsequently Ambassador in London. In 1825, President of the United States. His administration worthy of his life, which was pure, disinterested, and strictly honest. Upon his death in 1848, he left a reputation for integrity,[II-211] independence, and manly straightforwardness, second only to that of Washington. His habits to the last simple and unostentatious, and his industry remarkable. His exterior was cold, but fire glowed within, for his nature was as earnest as his oratory was fierce. He had a tenacious memory, great knowledge, and the faculty of speaking forcibly, clearly, and to the purpose. One of the worthies of the Great Republic.

[By Hiram Powers.]

461. Lord Monteagle. English Peer.

[Born 1790. Still living.]

Comptroller-general of the receipt and issue of Her Majesty’s Exchequer. Before he was raised to the peerage, Lord Monteagle, as Mr. Spring Rice, sat in the House of Commons, and filled various offices of State—amongst others, that of Chancellor of the Exchequer.

[By Macdonald, of Rome.]

462. William Huskisson. Statesman and Financier.

[Born in Worcestershire, 1770. Accidentally killed, 1830. Aged 60.]

A distinguished statesman, whose commercial views, early in the present century, were considerably in advance of those of the political party to which he was attached, and who strongly advocated the principle of the measures carried at a later period by Sir Robert Peel. He served under Pitt, and afterwards was President of the Board of Trade. He was accidentally killed by a train, at the opening of the Manchester and Liverpool Railway.

[For account of this statue, the original of which is at Liverpool, see Handbook of Modern Sculpture, No. 29.]

463. John Singleton Copley, Baron Lyndhurst. Ex-Chancellor of England.

[Born in Boston, U. S., 1772. Still living.]

The son of a celebrated painter. After having studied at Cambridge, where he took high mathematical honours, he was called to the bar, in 1804. In 1826, Master of the Rolls; in 1827, Lord Chancellor. Has held this last high office at three distinct periods of his life. Lord Lyndhurst is remarked for the extraordinary lucidity and quickness of his understanding. His mind has the utmost facility in grasping the most intricate and involved points of any case submitted to it; and his facility of exposition is as perfect as his perception is acute. Hence, though not the greatest of the lawyers who have dignified the woolsack, he has always been the most agreeable and popular of Lord Chancellors. He is eloquent without labour, and convincing without vehemence—in many respects a master of oratory. In his eighty-third year, his polished intellect has lost none of its lustre. It has all the vigour, in debate, which it possessed half a century ago. Lord Lyndhurst at first took side with the Liberal party in politics, but he soon became a follower of Sir Robert Peel, and with that Minister he remained to the last.

[By W. Behnes.]

464. Lord Ashburton. English Peer.

[Born 1774. Died 1848. Aged 74.]

The head of the great mercantile house of Baring. As Ambassador to[II-212] America during the government of Sir Robert Peel, Lord Ashburton concluded the treaty between England and the United States which settled the much-vexed “Oregon question.” His marriage with an American lady attached an interest to his person in America, and his high character gave him weight and authority at home.

[By Macdonald, of Rome.]

465. Daniel O’Connell. Orator and Lawyer.

[Born at Cahir, in Ireland, 1775. Died at Genoa, 1847. Aged 72.]

The great Irish agitator. A man of extraordinarily powerful talents and influence. His oratory, especially adapted to sway the hearts of an Irish multitude, obtained for him a rule throughout Ireland that has never been equalled. Thousands upon thousands of his fellow-countrymen were content to be governed by his will for good or for evil. The unprecedented opportunity was used by Daniel O’Connell, less for the advantage and happiness of his afflicted country, than for his own selfish ends. When the wrongs of Ireland clamoured loudly for redress, O’Connell was an agitator with a righteous cause sustaining his great eloquence. When those wrongs were in course of remedy—were remedied—he was still an agitator, but unsustained by any cause save that of his own pecuniary necessities. It is lamentable to think how much good might have been effected by the energies of O’Connell, and to what deplorable straits his policy had reduced Ireland before death took him from it. Had it been as much to his personal and pecuniary interest to render his country contented, peaceful, prosperous, as to keep her in a ferment of discontent, discord, and semi-rebellion, O’Connell would have proved one of the greatest benefactors of his kind. As it was, he left behind him a name, which is not uttered with opprobrium—simply because it is already nearly forgotten. The associations connected with his memory have nothing in common with the new epoch of tranquillity, order, and steady industry, upon which Ireland has entered. O’Connell was not so eloquent in the House of Commons as out of it. He was born for the multitude. His power of invective, his faculty of humour, his facility of illustration, his familiar tones, his burly form, his winning voice, were all elements that go to make up the successful demagogue.

[By J. E. Jones.]

466. Joseph Hume. Political Reformer.

[Born at Montrose, 1777. Still living.]

Has sat in the House of Commons for upwards of forty years. Was educated for the medical profession, and is member of the Colleges of Surgeons of Edinburgh and London. Acted in India as Persian interpreter to the army, during the Mahratta war, from 1802 to 1807. Joseph Hume is a consistent Reformer, and by his steadiness, earnestness, and faithful adherence to the principles of his life, has secured the respect and good-will of all political parties. When he entered parliament, his views were considered extreme and theoretical. Many of these views have been gradually adopted by the leading statesmen of the time, and there is every probability that Mr. Hume will outlive all his grievances. He is a rigid economist, and a thoroughly honest politician.

[II-213]

467. Henry, Lord Brougham. Lawyer, Statesman, Educator.

[Born 1779. Still living.]

A name that will be identified for ever with the advances in civilisation made in this country, during the first half of the present century. For the great reforms effected in our criminal law, for the impetus which has been given to education among all classes, we are chiefly indebted to the influence of Lord Brougham, and to the indomitable exertion of his strong, practical, energetic, and versatile mind. He has been Lord High Chancellor of England; but his legal attainments constitute his very smallest title to respect. He is a great orator, a man of science worthy of taking rank with scientific men, a metaphysician, an historian, an essayist. He has addressed himself to every branch of knowledge, and is distinguished in all. Before he was elevated to the peerage he was one of the foremost men in England, honoured for his resolute and fiery opposition to abuses of every kind, and beloved for his eager anxiety to remove the shackles from the negro, and every disability from the limbs of his fellow-creatures nearer home. Social elevation has not added to the popularity of Lord Brougham, for the ermine has in part withdrawn the idol from the people. All his magnificent qualities are depressed and dwarfed beneath his coronet. His eloquence is not so overpowering nor so thrilling, his sympathies for the classes below him are apparently deadened, his respect for his “order” proportionately increased. He has ceased to be “the first man” out of doors, without becoming the first lord within. If he has not survived his reputation he has manifestly damaged it. Yet for his former permanent and vital services to his country, his name shall be held by Englishmen in lasting, grateful, and affectionate remembrance.

[By Deer.]

467A. Henry, Lord Brougham. Lawyer, Statesman, Educator.

[An admirable seated portrait statue, by E. G. Papworth, Sen., which will be found at the South end of the Nave, Presented by the sculptor.]

468. Martin Van Buren. Ex-President of the United States.

[Born 1782. Still living.]

A lawyer, and an active politician in the democratic interest. From 1812 until 1820, a member of the United States Senate, during which time a keen supporter of the war with England, and, for a short period, Attorney-General. In 1828, Governor of the State of New York—then Secretary of State in the cabinet of General Jackson. Vice President in 1832, and during General Jackson’s second term of office. In 1836, elected President by a large majority. The principal measure of his administration was the re-establishment of the independent treasury. In 1840, again nominated for the Presidency, but defeated by General Harrison, the Whig candidate. Since the close of his presidential term in 1841, Mr. Van Buren has lived in retirement. His popularity was not so great at the close as at the beginning of his political life.

[By Hiram Powers.]

469. John Caldwell Calhoun. American Statesman.

[Born at Abbeville, in South Carolina, U.S. 1782. Died at Washington, 1850. Aged 68.]

Of Irish descent. Educated at Yale College, and studied law at Lichfield,[II-214] in Connecticut. In 1807, admitted to the Bar. In 1811, elected to Congress. Secretary of War in 1817; and from 1825 to 1832, Vice-President of the United States. He asserted that the American constitution was a mere federal treaty, from the conditions of which an individual State might at any time withdraw itself, if the inhabitants of the State so desired. This dangerous principle was combated by Webster, and—luckily for the Union—with success. Calhoun had great eloquence, and rapid powers of generalisation. He was inflexible in integrity, firm of purpose, energetic, laborious, and endowed with a high sense of honour; devoted to his country, with an inextinguishable love of liberty. A moderate democrat, nevertheless, and a free-trader. In person he was tall and lank; his face indicated great firmness of character and determination. His manner of speaking and of gesticulation was remarkable. He would walk constantly up and down during his discourse, his right arm moving all the while regularly backwards and forwards, like the pendulum of a clock.

[By Hiram Powers.]

469.* Daniel Webster. American Statesman and Orator.

[Born, in New Hampshire, U.S., 1782. Died 1852. Aged 70.]

Descended from one of those pilgrim-fathers of New England, who emigrated, in 1636. A lawyer. In 1813, took his seat in Congress for New Hampshire, war then raging with England. He advocated the war with fervid eloquence. In politics a “Whig,” a term corresponding to our “Conservative.” An avowed opponent of the Democratic party, but a still stronger friend to the true interests of his country, and, like our own Sir Robert Peel, preferring these to a dogged and an injurious persistance in his own preconceived political views. Hence, though no friend to slavery, Webster carried on no bitter crusade against it; and hence his conciliatory policy which, in dealing with the unhappy institution, maintained, through difficulty and danger, the political Union that contributes so largely to the strength and greatness of the American people. The oratory of Webster was of a high order: the most classical that America has yet displayed. It was powerful, argumentative, and as remarkable for passion, as for logical acumen. He was also a scholar, with a refined taste, and deeply attached to the literature of the old country. In person he was thick-set and burly. The countenance indicated force, without delicacy of taste and perception: but in this respect the countenance of Daniel Webster belied his mind. His death, at the close of a vehement career, was serene and happy.

[By Hiram Powers.]

470. Sir Frederick Pollock. Chief Baron of the Exchequer.

[Born in London, 1783. Still living.]

Educated at Cambridge, where he obtained high mathematical distinction. Has been Attorney General.

[By W. Behnes.]

470.* Sir Henry Pottinger. Diplomatist.

[Still living.]

Went to India as Cadet in 1804, and became Major-General in the East India Company’s service. During his long sojourn in India he fulfilled many appointments. In 1841, selected by the Government to proceed to[II-215] China as Plenipotentiary and Envoy Extraordinary for the adjustment of the differences then existing between the two empires. Amongst his other rewards for his success in this mission, he received from the House of Commons a pension of 1500l. a-year. Afterwards Governor of the Cape of Good Hope: now Governor of Madras.

[By J. E. Jones.]

471. Henry John Temple, Viscount Palmerston. Statesman.

[Born 1784. Still living.]

A Minister under many governments. Secretary-at-War from 1809 until 1828. Foreign Secretary, with a slight interval of repose, from 1830 until 1841. Again Foreign Secretary in 1846. At the present moment, Home Secretary in the administration of Lord Aberdeen. A statesman of vast knowledge and acquirements; of sterling business habits; quick and decided in action. An admirable debater, with a facile, ready, but not lofty eloquence. The upholder of constitutional government wherever his name and position have acquired influence in the world. Friendly to efforts made abroad for the recovery of liberty, he has been held in terror by those who would still keep liberty in chains. Of all living Ministers, Lord Palmerston is the most personally popular. He has served with many parties, and yet is no party man. The Whigs do not love him; the Conservatives cannot claim him; the Radicals own him not. Yet the eye of England glances involuntarily towards him as one with qualities to be exercised on great occasions, in the interests of his country. We cannot enumerate his followers; but his admirers are countless. He has many practical virtues that constitute a bond, uniting him to Englishmen, and make him an object of interest in the national mind. He is bold, outspoken, courageous, patriotic; genial in temper, and unaffected in intercourse. He has infinite “pluck.” When he strikes, he hits straight and effectually. In self-defence his “parry” is inimitable, and always successful.

[Executed in 1846 by Christopher Moore.]

472. Sir Robert Peel. Statesman.

[Born near Bury, in Lancashire, 1788. Died in London, 1850. Aged 62.]

The House of Commons was to Peel—what it had been to Pitt, his illustrious predecessor—his world of thought and action. Pitt was 20 when he took his seat in Parliament by the influence of Sir James Lowther. Sir Robert was 21 when he was returned for Cashel, by the influence of his father. Both lived, and, so to speak, died on that grand stage. If Pitt is to be recognised as the boldest and bravest Minister that ever conducted a country through the perils and disasters of a protracted war, Peel must be regarded as the most courageous statesman that ever dared to guide a busy nation through the peculiar dangers that environ a period of long peace. Pitt set up a principle of action as his guiding star, and steered his course by its light, against the bitterest opposition and the most vehement remonstrance, and died, still proclaiming the safety of his chosen path. Peel, in a later age, and under different circumstances, sacrificed, year after year, his strong convictions, in order to direct within safe channels the popular current which in spite of all his efforts to resist it, flowed on until it threatened to destroy and drown all obstacles—good or evil—that opposed its progress. Had Pitt lived in the days of Peel, his sagacity would have compelled the same[II-216] policy. The proof of Peel’s sound wisdom was emphatically witnessed when he ceased to be Minister in 1846, but continued, until his cruel and untimely end, to exercise the greatest influence of all living men, over the destinies of his country. More potent than even the Prime Minister who had unseated him, was Sir Robert Peel, from 1846 until 1850. Many are the claims of Peel upon our gratitude. He reformed our criminal code; he advanced the cause of religious freedom; he repealed the corn laws. His attainments as a scholar were great, and he was a warm encourager of literature and art. His secret charities to men of genius—revealed since his death—declare the goodness of his heart. It is said that he had few friends in public life. It may be difficult for a politician to enjoy this luxury. In the bosom of his own family he was beloved.

[This fine colossal statue, which will be found at the south-west angle of the great Transept and Nave, is by Baron Marochetti. It is executed in bronze.]

473. Sir Michael O’Lochlen. Lawyer.

[Born 1789. Died 1842. Aged 53.]

A judge in Ireland, of high legal attainments, great practical knowledge, and unwearied industry. The first Roman Catholic created law officer of the Crown, and raised to the bench, since the Revolution of 1688. A member of the Church of Rome, he owed his promotion to the Liberal party. Appointed Attorney-General 1835, Baron of the Exchequer 1836, and Master of the Rolls 1837. He was earnest in his endeavours to promote the ends of justice, courteous in manners, and kind in disposition. All parties esteemed and admired him for his judicial conduct, and, after his decease, Lord Lyndhurst, a political opponent, paid a just and feeling tribute to his memory.

[By Christopher Moore, for the Incorporated Law Society of Dublin.]

474. Lord John Russell. Statesman.

[Born 1792. Still living.]

The third son of the sixth Duke of Bedford. Has served many offices of state, amongst others that of Prime Minister of England. The recognised leader of the Whig party, and the representative of the school of Charles James Fox. The author of a work on the Constitution of England, of a tragedy, and of other books. The editor, also, of the Memoirs of Thomas Moore, the poet. Lord John Russell is considered one of our first constitutional statesmen. His course is not always so distinctly marked as to be obvious and intelligible to every looker-on. Now he is too liberal for Conservatives, now too conservative for Liberals; to-day he offends the lovers of religious toleration by his legislation against spiritual freedom; to-morrow he will distress bigotry by his zeal for religious independence. Yet Lord John is a man of mark and influence: and when he suffers his soul to be kindled into warmth, the sympathies of men rally involuntarily around him. The prominent feature in the character of this distinguished statesman, is the supreme absence of self-mistrust, be the matter in hand what it may.

475. David Salomons. Alderman.

[Born in London, 1797. Still living.]

The first Hebrew gentleman who has held civic appointment, and sat as member of parliament, though but for a day, in the House of Commons. Was elected sheriff of London in 1835, and alderman of Aldgate-ward in[II-217] 1836; but could not take his seat in consequence of the existing state of the law, which practically excluded Jews. In the year 1844, elected alderman of the ward of Portsoken, but the election again annulled. The law having been altered by Sir Robert Peel’s government in 1847, elected without opposition, in that year, alderman of Cordwainers’ ward. In 1851, returned to parliament for the borough of Greenwich. Taking his seat, he maintained his right to remain there; but he was ordered to withdraw, the law of the land forbidding his presence until he could take the necessary oaths. The claims of the Jews to equal rights with their fellow citizens are identified with the name of David Salomons, as they have been maintained chiefly by his untiring exertions.

[From the marble by Edward Davis.]

476. Sir William Follett. Lawyer.

[Born in Devonshire, 1798. Died in London, 1845. Aged 46.]

The most celebrated advocate of his time. Remarkable for the lucidity of his intellect, for his extensive and accurate legal knowledge, for his acute discrimination, his intuitive sagacity, and for his power of rapidly transferring his whole attention to anything that might be brought before it. His reasoning faculties were of the highest order, and his memory was singularly quick and retentive. His manner calm, dignified, and graceful, and his temper serene and unruffled. His labours at the bar were excessive, and prosecuted in the midst of pain and sickness. He died comparatively early, worn out by disease and work. He had served Her Majesty as Solicitor-General, and, had he lived, would inevitably have taken the highest position open to his profession.

[By W. Behnes.]

477. The Earl of Derby. Statesman.

[Born 1799. Still living.]

Has been Chief Secretary for Ireland, Secretary of State for the Colonies, and Prime Minister. Has served with the Whigs under Lord Grey, and with the Conservatives under Sir Robert Peel. Since the death of Sir Robert, has headed the extreme Tory party. Lord Derby is one of the readiest, most eloquent, clever, and fluent speakers in the House of Lords. When in the House of Commons, he was styled by Mr. Disraeli “The Prince Rupert of Debate.” As a lieutenant, he was brilliant, fierce, and irresistible in assault. As a leader, he did not discover the comprehensive grasp, the knowledge, and administrative skill of his illustrious predecessor and chief, Sir Robert Peel.

[By Christopher Moore. 1839. Executed for Lord Skelmersdale.]

478. George William Frederick Villiers, Earl of Clarendon. Statesman.

[Born 1800. Still living.]

A Minister who has honourably and usefully served his country in many capacities. Has been Envoy Extraordinary at Madrid, President of the Board of Trade, and, during a stormy period of incipient rebellion, Lord Lieutenant of Ireland. At present, Her Majesty’s Secretary of State for Foreign Affairs. An excellent man of business, and a consistent Liberal in politics.

[By J. E. Jones.]

[II-218]

479. Sidney Herbert. Statesman.

[Born 1810. Still living.]

Half brother of the Earl of Pembroke. Was educated at Oxford. Entered Parliament in 1832. Has been ever since a follower of the policy identified with the name of Sir Robert Peel. From 1841 to 1845, Secretary to the Admiralty. In 1845, appointed Secretary at War. Retired from office with Sir Robert Peel in 1846, but became again Secretary at War, in Lord Aberdeen’s administration, 1853. Mr. Herbert has acquired a well deserved reputation for his benevolent exertions on behalf of the unemployed industrious classes of both sexes.

[By Macdonald of Rome.]

480. Lord Canning. English Peer.

[Born 1812. Still living.]

The only surviving son of George Canning, Prime Minister of England. Has been Under Secretary of State for Foreign Affairs; and for a short time, in 1846, was Chief Commissioner of Woods and Forests. He was Chairman of the Council of Juries in the Great Exhibition of 1851.

[By Macdonald.]

480.* William Hulme Hooper. Naval Officer.

[Born in London, 1826. Died there 1854. Aged 27.]

One of the intrepid Arctic explorers, whose spirit of enterprise has impelled them to invade the ocean, in his sternest and most terrific domain, through hope to solve the mystery hanging over the fate of Sir John Franklin. Lieutenant Hooper commanded the second cutter in the remarkable voyage of the boats of Her Majesty’s ship “Plover” from Icy Cape to Cape Bathurst. Lost for three days and nights in an Arctic snow storm, quartered two long and lonely winters away from his ship in log-huts with a few of his men, under every privation, he brought home the fastened malady of the lungs which so early cut short his ardent career.

[This bust is by David Dunbar.]


PRELATES AND THEOLOGIANS.

481. Cardinal Wolsey. Minister of State.

[Born at Ipswich, 1471. Died at Leicester, 1530. Aged 59.]

A butcher’s son, with an inordinate appetence for place, power, and money. A magnificent pluralist, whose insatiable desire for wealth was redeemed only by the noble uses to which he applied a portion of his worldly goods. His revenues almost equalled those of the crown, and many of his acts were princely, as became the rival of a king. Wolsey founded several lectures at Oxford, built Christ Church in that University, and erected Hampton Court, which, in his splendid generosity, he presented to Henry VIII. He owed his first advancement to Henry VII., who sent him on an embassy to the Emperor of Germany, and afterwards made him Dean of Lincoln. His rise was, thenceforwards rapid. He became, under[II-219] Henry VIII., Cardinal, Lord Chancellor, and Pope’s Legate. His fall was headlong. Offending the king by refusing to sanction his divorce, he was disgraced in an hour, and compelled to disgorge his enormous acquisitions. He was arrested at York, but, falling sick on his way to London, died at Leicester. Much of Wolsey’s wealth was, no doubt, ill-gotten; his ambition knew no bounds; his insolence was intolerable;—but he had in many respects a grand and royal mind, and the benefits conferred by him upon learning are never to be omitted in a history of his remarkable life.

[Presented by Mr. John Archbutt, London.]

482. Charles James Blomfield. Bishop of London.

[Born 1786. Still living.]

Educated at Trinity College, Cambridge, of which he was Fellow. Bishop of Chester, 1824—of London, 1828. Distinguished for his classical attainments, and before his elevation to the bench, known as the accomplished editor of the tragedies of Æschylus. As a churchman, Charles James Blomfield has endeavoured to take a middle and conciliatory course, notwithstanding his decided bent towards the high church party. It is no reproach to the Bishop of London to say that he has occasionally stumbled, upon a difficult and slippery path.

[By W. Behnes.]

482A. Charles James Blomfield. Bishop of London.

[By Henry Weigall.]

483. Father Theobald Mathew. Temperance Reformer.

[Born at Thomastown, in Ireland, 1790. Still living.]

A modern crusader, who has drawn his spiritual sword against one of the deadliest foes to religion, civilisation, and human happiness. An apostle who carries glad tidings to every hearth, irrespectively of the altar raised there for divine worship. A proselytiser who converts Romanist and Protestant, with equal advantage and safety to both. He was educated at Maynooth; is a Romish priest; and his whole life has been spent in an anxious and a humane endeavour to release mankind from the self-imposed yoke of Drunkenness. He is the founder of the “total abstinence” principle, in virtue of which self-denying ordinance “pledged” men abstain from any use whatever of intoxicating liquors. The success of the good and courageous man has been equal to his deserts: both are inestimable. Under his teaching the most hardened drunkards have become abstemious, and the most reckless and improvident have been won to self-respect and virtuous conduct. No preacher in the olden or the modern time has surpassed his earnestness or his labour. Hundreds of thousands have taken the pledge from his hands in Ireland, in this country, and in the United States. If some of the number have been unfaithful to their plighted word, the weakness of humanity will explain the defection. That thousands are the better, the wiser, the happier, and the purer for his labours, is beyond all doubt. A few patriots like Father Mathew, would have changed the face of nature in Ireland years ago. His work, now, is productive of hourly good. The man who only checks the growth of Drunkenness is a benefactor of his kind. He who extinguishes the vice in a hundred thousand beasts, is one of the mightiest of human conquerors.

[By Christopher Moore, 1845.]

[II-220]

484. Cardinal Wiseman. Chief of the Romish Church in England.

[Born at Seville, in Spain, 1802. Still living.]

Came to England in 1808. Educated at the English college in Rome, where he took his degree of D.D. in 1824. Consecrated Bishop of Melipotamus in 1840, and made Vicar Apostolic of the London district in 1849. Created Cardinal, 1850. Cardinal Wiseman is a man of vast learning and eminent ability. His lectures on the Connexion between Science and Revealed Religion constitute a noble and masterly vindication of the cause which the lectures are intended to maintain, and are full of the happiest illustration. The style of Cardinal Wiseman is forcible, logical, and eloquent; and it is said that he writes with equal ease the language of nearly all the European nations. He is the seventh English Cardinal since the Reformation.

[By Christopher Moore. 1850.]


KINGS AND QUEENS.

485. Edward III. King of England.

[Born 1313. Died 1377. Aged 64.]

An accomplished monarch, brave, and for his time enlightened. In his day, and by his act, the power of the Commons rose, and the pretensions of the Barons were reduced; several constitutional acts found their way to the statute book, and greater security was given by law to property and person. Glorious battles were fought in France; the field of Cressy was won, and Calais surrendered in 1346. Edward, Prince of Wales, surnamed the Black Prince, was the worthy son of this redoubtable sire. Following in the steps of his father, he won, in 1355, the battle of Poitiers, took the French king and his son prisoners, and brought them to London. In this reign, Queen’s College, Oxford, and Clare Hall, Pembroke Hall, Trinity Hall, and Caius, all colleges at Cambridge, were founded. Windsor Castle also was built by Edward III., William of Wykeham, afterwards Bishop of Winchester, and Chancellor of England, and the founder of Winchester College, being “Clerk of the works.” Under Edward III., the first toll was levied for mending the highways; the highway concerned being the road between St. Giles’s and Temple Bar. Upon the whole, a grand time for England.

[From the Effigy.]

486. Eleanora of Castile. Surnamed The Faithful. First Queen of Edward I., of England.

[Born in Castile, 1243. Died at Grantham, 1290. Aged 47.]

A queen who has been described as “a loving mother to our nation, the column and pillar of the whole realm,”—godly, modest, merciful. The united influence of loveliness, virtue, and sweet temper, inspired in the heart of her renowned lord an attachment as deep as it was true. She was the mother of the first Prince of Wales. When, in 1269, her husband took up the Cross, Eleanora resolved to share the dangers of his Syrian campaign.[II-221] Her ladies of the Court endeavouring to dissuade her from the journey, she replied, “Nothing ought to part those whom God has joined; and the way to heaven is as near, if not nearer, from Syria, as from England or my native Spain.” She was a patroness of literature and art, and civilisation advanced under the auspices of her well-regulated Court. Taken ill at Grantham, whilst her husband was in Scotland, she expired there. Edward followed her body thence to Westminster in the bitterest grief, and on the spot marked by the close of every stage, vowed to erect a cross in memory of his chère reine. The crosses of Northampton and Waltham still remain, models of architectural beauty. Charing Cross was the last resting-place before the body was carried into Westminster Abbey.

[From the Effigy.]

487. Henry VII. King of England.

[Born 1456. Died 1509. Aged 53.]

A monarch whose greatest vice was avarice. He was inordinately fond of money. He had 14,000l. a-year allowed him by his first Parliament for his Household expenses, and 2000l. a-year for his wardrobe; yet he left behind him a sum equivalent to 16,000,000l. at the present day. With no worse quality than avarice, he had no quality that can be called great. He was brave, politic, attentive to business, reserved, suspicious. His chief merit consisted in closing the civil wars, and securing peace and order in the country. He died at Richmond, and was buried in the magnificent chapel at Westminster, erected by himself. He also built “The Great Harry,” the first ship in the English Navy, ships before this time having been hired or pressed from merchants. It cost 14,000l. The King seems to have had remorse for his rapacity on his death-bed. He issued a general pardon for all offences, released all debtors, himself paying the debts of many; converted the Palace of the Savoy into an hospital; built several religious houses; and ordered restitution to be made to all men whom he had wronged by his extortions. It is unnecessary to state that his successor being his son, Henry VIII., not the slightest effect followed from the “restitution” clause.

488. Elizabeth. Queen of England.

[Born 1533. Died 1603. Aged 70.]

A mighty sovereign, and the last of our absolute monarchs. Her rule, despotic, but grand, and wholly in the interests of her country. A true Englishwoman, ambitious of England’s glory, and capable of inspiring her servants by her example, with unbounded zeal, patriotism, and heroism. As a woman, the picture less fascinating. Too selfish to be amiable, she was vain, imperious, violent. She had favourites, but none whom she would raise to the throne, for she hugged power with a passionate embrace, which no generous sentiment could unfasten, and no tender consideration induce her to divide. She stood above law, and she knew it. A man sharing her throne might have been less fortunate. Her successor proved so; and the son of that successor, trying the perilous ascent, lost his head in the attempt. Wondrous was the reign of Elizabeth in its effects upon the civilisation of the world. It produced Bacon in philosophy, Shakspeare and Spenser in poetry, Gresham in commerce. Drake and Raleigh also belong to this time. It was the era of the re-establishment of Protestantism, and of the rescue, on the sea, of spiritual liberty from the threatened onslaught of Spain. Undoubtedly Elizabeth was surrounded by great men, but[II-222] her masculine spirit sat at the helm, and directed, for nearly fifty years, the course of the State vessel. Her vigilance was sleepless, her ability unbounded, her sagacity penetrating and quick; yet she had a love of finery that was frivolous, and to the last laboured under the impression that she was beautiful. The spirit of maritime discovery was now alive in England, and commerce flourished. When dying, Elizabeth was asked by Cecil who should succeed her. She answered, “No rascal. My seat has been the seat of kings. Who should succeed me but a king?”

[From the Effigy.]

489. Edward VI. King of England.

[Born 1537. Died 1553. Aged 16.]

The son of Henry VIII. by Jane Seymour, who died two days after the birth of her child. Edward was ten years old at the time of his accession to the throne. Before his character could be permanently formed he died, yet his form stands out in English history illuminated with intelligence, gentleness, and wisdom. He was fond of books, diligent in business, a lover of justice. He kept a diary, which still exists. Therein he noted down the characters of the good men by whom he was surrounded, how they lived, and what example they offered for his pious imitation. Well acquainted with foreign matters, and with the history and geography of his own country; zealous for knowledge, and ambitious of governing well. In this reign the first journal of the proceedings of the House of Commons was kept; the Common Prayer Book was established by Act of Parliament; Sternhold translated the psalms into English metre; and the king gave his palace at Bridewell for the lodging of poor travellers, and for the correction of vagabonds. Christ’s hospital, for the education of youth, and the hospitals of St. Bartholomew and St. Thomas, for the reception of the sick, were also founded by him. His concern, Alfred-like—and so young!—for exalting the character, by the instruction, of his people, was shown in the foundation of numerous free schools throughout the kingdom, which still bear and endear his name. Edward was very handsome. He died of consumption, brought on by an attack of small-pox and measles.

[Presented by Mr. John Archbutt, London.]

490. Mary Stuart. Queen of Scots.

[Born, 1542. Died, 1587. Aged 45.]

A queen whose calamities fill our eyes with tears, so that we can hardly see the frailties of the woman. Her loveliness, her learning, her misfortunes, her wit, and fascinating manners, have attached to her memory an interest and affection which even the deeply-founded suspicion of her crimes cannot efface. Various judgments have been pronounced upon her conduct. But one report has come down to us of her perfect beauty of countenance, her winning manners, and her elegance of form. Grave historians speak with admiration of her jet black hair, her exquisite complexion, her delicate white arm and hand, her stature that rose to a majestic height. Her treatment of Darnley, brutal though he was, and her marriage with Bothwell after Darnley’s assassination, are blots that still cling to her character. But even these offences would seem more than expiated by her eighteen years’ imprisonment, and her unwarranted execution, that foulest stain upon the reign of our own Elizabeth. Mary Stuart was violent in her attachments,[II-223] vivacious, indiscreet, fond of flattery, and conscious of the power of her charms. It is said that her heart was warm and unsuspicious. It may be questioned whether she was always sincere. One of her recent biographers in France has styled her the “eternal enigma of history,” “the most problematical of all historical personages.” Disastrous as was her own story, the fate of her immediate descendants was even worse. A curse was upon the line. Yet her lineage flourishes now. It is found in England, Prussia, Denmark, and Hanover; in Spain, Portugal, Austria, Naples, Sardinia, and Modena.

[From the Effigy.]

490.* Charles the First. King of England.

[Born 1600. Beheaded 30th January, 1649. Aged 49.]

Grandson of Mary Stuart, Queen of Scots, whose misfortunes and drear fate he inherited, if he did not invite. A monarch whose exaggerated notions of prerogative, whose obstinacy, wilfulness, untruthfulness, and double-dealing, justified the resistance of a people awakened to a sense of their rights, and roused to the vindication of their liberties; yet a man whose sorrows, whose dignified bearing in misfortune, whose private virtues, love of literature and art, and gentle demeanour, render him an object of the deepest commiseration, and the most plaintive interest. His death was deliberate murder; and there is too much reason to fear that they who thought least of defending liberty, were the most thirsty of his blood. Yet some palliation for the guilt is found in the circumstance that in the public dealings of Charles with his Parliament his plighted word was not worth the paper upon which it was given. Irresolute and double-minded, he had never kept faith with his people. It was the misfortune of Charles to be born at a period when the conflicting elements of Royalty and Democracy were seething into tumult. Had he lived a little earlier, or a little later he would not have lost his head upon the block. A little earlier, the “divinity that doth hedge a king” would have shielded him in England from the sacrilege. A little later, he would have been hunted from English soil, as his son was. The catastrophe of his unhappy reign can never be re-enacted. His blood purchased that security. Never had the character of Englishmen, in many respects, looked so fair to the world as during the civil wars of Charles the First. The true-hearted loyal gentlemen who, knowing by experience the character of their master, yet clung to his cause and to his person until the last extremity, counting all sacrifice as delightful service, were not surpassed by the professed knights of chivalry. The devoted Republicans, who for the sake of man’s rights and God’s blessing seized arms for the first time in their lives, and became great Generals and Admirals—the glory of their country, and the terror of the world—take rank in the estimation of history, side by side with her most splendid heroes. We receive from them our cherished charters, and the liberty which finds no harm even when Europe is in conflagration. Terrible indeed must have been the state of the atmosphere in 1649, when the thunderbolt fell that struck down Charles, but purified the air for ever afterwards.

[The statue of Charles the First, which is in the South Transept, is from the bronze equestrian statue by Hubert le Sueur, which was erected at Charing Cross in the year 1674. It had been cast in 1633, near the church in Covent Garden, but never placed: and during the wars it was sold by Parliament to a brazier “living at the Dial, near Holborn Conduit,” with strict orders that[II-224] he should break it up. The brazier concealed the statue and horse underground until after the Restoration. Le Sueur was a Frenchman, and pupil of John of Bologna. He arrived in England about 1630, and died here. The pedestal is by Grinling Gibbons, who was born about the middle of the 17th century.]

491. James II. King of England.

[Born in England, 1633. Died in France, 1701. Aged 68.]

The second son of Charles I., whose fate he challenged by his obstinacy, wilfulness, and double dealing. He was a Roman Catholic, and in the blind defence and advocacy of his faith against the Constitution and laws of the country he governed, he perilled his crown which he lost, and his life which he ignominiously saved. He was not without good qualities. He was personally brave—not unmindful of the services of friends, and he exhibited devotion in the maintenance of the religious cause which he believed it his paramount duty to uphold. But he was bigotted, cruel, and wrongheaded. He could not be trusted whenever he was acting in the interests of the Pope. Louis XIV. in vain remonstrated with his royal cousin of England. James II. was too sincere a zealot to listen to reason. Louis Quatorze was too fine a gentleman, and too practised a courtier, to be betrayed into fanaticism. When James went a fugitive and an exile to France, Louis received him with a magnificence worthy of a triumphal progress.

[From the well-known statue by Grinling Gibbons in Privy Gardens, Whitehall. Represented in the costume of a Roman Emperor, according to the taste of the day.]

492. George III. King of England.

[Born 1738. Died 1820. Aged 82.]

The grandfather of her Majesty Queen Victoria. He reigned during sixty years, although during the last ten, he could take no part in public affairs. A king with many good qualities of heart and head, but obstinate, self-willed and not always sincere in his dealings with his Ministers. He is styled “The father of his people;” and his honest desire to secure their well-being and happiness, according to his own ideas of government, entitled him to the enviable distinction. In private life, George III. offered an admirable example for imitation to his subjects. But his wilful persistence in the maintenance of what he conceived his Royal prerogative, plunged England into war with America, and caused the premature loss to the country of that magnificent British colony.

[By John Bacon, R.A., when the King was 30 years old.]

493. George IV. King of England.

[Born 1762. Died 1830. Aged 68.]

In 1811, during the lifetime of his father, this prince was appointed Regent: and in 1820, upon the death of George III., he succeeded to the throne. The reign of this monarch is rendered memorable, by the scandalous proceedings instituted against Queen Caroline, and by the passing of the Act in 1829, which tolerated the Roman Catholic religion in the United Kingdom. George IV. was considered the first gentleman in Europe whilst he lived. Since his departure, history has pronounced him heartless, sensual, self-absorbed, and negligent of the true interests of his subjects, though not without some kingly qualities.

[II-225]

494. William IV. King of England.

[Born 1765. Died 1837. Aged 72.]

The third son of George III., and uncle of Queen Victoria. He succeeded his brother George IV. in 1830. His reign is remarkable as that in which the Reform Bill passed, changing the constitution of England by widening its basis. This King was before his marriage the father of several children, since ennobled, the mother being Mrs. Jordan, one of the most fascinating actresses and kind-hearted women of her time.

494A. William IV. King of England.

[Medallion by Chantrey, modelled for the coinage.]

495. The Duke of Cambridge. Prince of England.

[Born 1774. Died 1850. Aged 76.]

Youngest son of King George III., and one of the most popular princes of his family. He was for many years Viceroy of Hanover, where he endeared himself to the people. An amiable and innocent man.

496. Her Majesty Queen Victoria. Whom God Preserve!

[Born May 24th, 1819.]

497. His Royal Highness Prince Albert. Consort of Queen Victoria.

[Born August 26th, 1819.]

[Modelled from the life, by Emil Wolf.]

497A. His Royal Highness Prince Albert. Consort of Queen Victoria.

To whom the Crystal Palace at Sydenham, a development of the original Palace in Hyde Park, is indebted for its existence.

[By J. E. Jones.]

[II-226]
[II-227]



INDEX TO THE PORTRAIT GALLERY.

Line
No.   Page
460   Adams, John Quincy, President of the United States, 210
113   Agrippa, Marcus Vipsanius, Roman General, 49
96   Agrippina (the Elder), 44
97   Agrippina (the Younger), 44
497   Albert, H.R.H., Prince Consort of Queen Victoria, 225
124   Alcibiades, Athenian General, 25
22   Alexander the Great, King of Macedonia, 24
386   Alexandra, Empress of Russia, 168
180   Alfieri, Vittorio, Poet, 73
152   Allegri, Antonio. (See Corregio.)  
134   Angelico da Fiesole (Fra), Painter, 57
458   Anglesey, Marquis of, English Field Marshal, 209
307 * Anne of Austria, Queen of France, 130
52   Annius Verus, Roman Prince, 35
79   Antinous, Bithynian Youth, 41
17   Antisthenes, Philosopher, 21
47   Antoninus Pius, Roman Emperor, 34
10   Aratus, Astronomer, 18
2   Archilochus, Greek Poet, 14
176   Ariosto, Luigi, Poet, 71
8 ? Aristides, Athenian Patriot, 17
239   Arnauld, Antoine, Theologian and Controversialist, 99
464   Ashburton, Lord, English Peer, 211
26   Aspasia, 26
340   Auerbach, Berthold, Poet and Novelist, 149
278   Augereau, Pierre François Charles, Marshal of France, 117
35   Augustus, Roman Emperor, 29
51   Ælius Verus, Adopted Emperor, 35
8   Æschines, Greek Orator, 17
6   Æschylus, Tragic Poet, 15
3   Æsop, Writer of Fables, 15
420   Bacon, Francis, Chancellor of England, 188
190   Bandineri, Giovanni Medici, Italian Soldier[II-228], 77
431   Baily, Francis, Astronomer, 194
128   Balbinus, Decimus Cœlius, Roman Statesman and Emperor, 54
142   Bartolomeo, Fra, Painter, 60
257   Bayard, Pierre de Terrail, Seigneur de, Warrior, 109
321   Beethoven, Ludwig Van, Musical Composer, 140
261   Belloy, Pierre Laurent Buirette de, Dramatist, 110
160   Berettini, Pietro di Cortona, or Pietro, Painter, 66
274   Berthier, Pierre Alexandre, Marshal of France, 115
252 * Berthollet, Claude Louis, Chemist, 105
354   Berzelius, Jan Jacob, Chemist, 156
281   Bessières, Jean Baptiste, Marshal of France, 118
356   Beuth, Peter Kaspar Wilhelm, Member of the Council of State, in Prussia, 156
11   Bias, Greek Philosopher, 19
482   Blomfield, Charles James, Bishop of London, 219
360   Blucher, Gebhardt Lebrecht Von, Prussian Field Marshal, 158
224   Boileau, Nicolas, Poet and Satirist, 94
355   Boisserée, Sulpitz Von, Architect and Archæologist, 156
295   Bossuet, Jacques Beninge, Prelate of France, 123
368   Boyen, Hermann Von, Prussian Minister at War, 160
138   Bramante, Francesco Lazzari, Architect, Painter, Poet, 58
443   Brassey, Thomas, Railway Contractor, 199
467   Brougham, Henry, Lord, Lawyer, Statesman, Educator, 213
181   Brunelleschi, Sculptor and Architect, 56
107   Brutus, Lucius Junius, Roman Consul, 46
112   Brutus, Marcus Junius, Roman General, 49
245   Buffon, Georges Louis Le Clerc, Comte de, Naturalist, 102
361   Bulow, Friedrich Wilhelm, Prussian General, 158
311   Buonaparte, Napoleon. (See Napoleon)  
143   Buonarotti, Michael Angelo, Sculptor, Painter, Architect, 60
468   Buren, Martin Van, Ex-President of the United States, 213
450   Burke, Edmund, Orator, Writer, Statesman, 203
410 * Burns, Robert, Poet, 182
404   Butler, Fanny, Actress, 176
418   Byron, George Noel Gordon, Lord, Poet, 187
156   Cagliari, Paolo. (See Veronese)  
40   Caligula, Roman Emperor, 32
469   Calhoun, John Caldwell, American Statesman, 213
495   Cambridge, Duke of, Prince of England, 225
287   Cambronne, Pierre Jacques, French General, 120
415   Campbell, Thomas, Poet, 185
480   Canning, Lord, English Peer, 218
168   Canova, Antonio, Sculptor, 68
60   Caracalla, Roman Emperor, 37
158   Caracci, Annibale, Painter, 65
155   Caravaggio, Polidoro Caldare da, Painter, 64
184   Caro, Annibale, Writer, 75
70   Carinus, Marcus Aurelius, Roman Emperor, 39
439   Carlyle, Thomas, Writer, 198
357   Carus, Karl Gustav, Physician and Anatomist[II-229], 157
110   Cato, Marcus Porcius, Roman General, 47
111   Cæsar, Julius, Roman Dictator, 48
398   Chantrey, Francis, Sculptor, 174
254   Chaptal, Jean Antoine, Chemist, 106
296 * Charlemagne, King of the Franks and Emperor of the West, 124
490 * Charles I., King of England, 223
195   Charles Albert, King of Sardinia, 79
300   Charles V., Emperor of Germany and King of Spain, 126
303   Charles IX., King of France, 127
449   Chatham, William Pitt, Earl of, Statesman, 203
406   Chaucer, Geoffrey, Father of English Poetry, 178
232   Chaussée, Pierre Claude Nivelle de la, Dramatist, 96
421   Chetham, Humphrey, “Dealer in Manchester Commodities”, 189
120   Cicero, Marcus Tullius, Roman Orator, 51
167   Cimarosa, Domenico, Musical Composer, 67
208 ** Clairon, Mdlle., French Tragic Actress, 87
478   Clarendon, George William Frederick, Earl of, Statesman, 217
38   Claudius I., Tiberius Claudius Drusus Nero Germanicus, Roman Emperor, 31
194   Clement XIII., Pope. (See Rezzonico.)  
117   Clodius Albinus, Decimus Clodius Ceionius Septimius, Roman General, 50
261   Colbert, Edouard, Minister of State, 112
267 * Colbert, Jean Baptiste, Statesman and Financier, 113
188   Coleoni, Bartolomeo, Soldier of Fortune, 76
260   Coligny, Gaspard de, Marshal and Admiral, 110
279 ** Collard, Pierre Paul Roger, Statesman and Philosopher, 117
182   Columbus, Christopher, the Discoverer of the New World, 74
56   Commodus, Lucius Aurelius, Roman Emperor, 36
268   Condé, Louis II. de Bourbon, Prince de, and Warrior, 113
250 * Condorcet, Marie-Jean-Antoine Nicolas Carétat, Marquis de, Mathematician and Philosopher, 104
73   Constantius Chlorus, Flavius Valerius, Roman Emperor, 40
116   Corbulo, Cneius Domitius, Roman General, 50
161   Corelli, Arcangelo, Violinist and Composer, 66
218   Corneille, Pierre, Dramatist, 91
222   Corneille, Thomas, Dramatist, 93
326   Cornelius, Peter, Painter, 142
152   Correggio, or Antonio Allegri, Painter, 64
160   Cortona, Pietro di, Painter. (See Berettini.)  
206   Coysevox, Antoine, Sculptor, 86
445   Creasy, Edward Shepherd, Historical Writer, 201
228   Crébillon, Prosper Jolyot de, Dramatist, 95
101   Crispina, Roman Empress, 45
402   Cruikshank, George, Caricaturist, 176
453   Curran, John Philpot, Lawyer, 206
256   Cuvier, Georges Léopold Chrêtien Frédéric Dagobert, Naturalist, 107
269   D’Aguesseau, Henri François, Chancellor of France, 114
256 * D’Alembert, Jean Le Rond, Mathematician and Philosopher, 107
291 * D’Amboise, Georges, Cardinal and Minister of State[II-230], 121
208 * Dangeville, Marie-Anne-Botol, French Comic Actress, 87
279 * Dannon, Pierre Claude François, Statesman and Writer, 117
173   Dante Alighieri, Poet, 69
247 * Darcet, Jean, Chemist and Physician, 103
443 * Dargan, William, Railway Contractor, 200
405 * Darling, Grace, Lighthouse-keeper’s Daughter, 177
405 ** Darling, William, Lighthouse-keeper, 178
209   David, Jacques Louis, Painter, 88
288   Davoust, (Prince D’Eckmuhl,) Louis Nicolas, Marshal of France, 120
63   Decius, Caius Messius Quintus Trajanus, Roman Emperor, 38
438   De La Beche, Sir Henry Thomas, Geologist, 198
19   Demosthenes, Greek Orator, 22
252   Denon, Dominique, Egyptian Traveller, 105
477   Derby, Earl of, Statesman, 217
283   Desaix, Louis Charles Antoine, French General, 119
238   Descartes, Réné, Mathematician and Metaphysician, 99
229   Destouches, Philippe Nericault, Dramatist, 96
333 * Devrient, Edward, Player, 145
217   Diane de Poitiers, 91
72   Diocletian, Caius Valerius Aurelius, Roman Emperor, 40
18   Diogenes, Philosopher, 22
442   Disraeli, Benjamin, Writer and Politician, 199
159   Domenichino, Domenico Zampieri, called, Painter, 66
44   Domitian, Titus Flavius Sabinus, Roman Emperor, 33
94 * Domna Julia (Pia Felix Augusta), Roman Empress, 43
133   Donatello, Donato di Niccolo, di Betto Bardi, Sculptor, 57
215   D’Orsay, Comte, 90
114   Drusus, Nero Claudius, Roman General, 50
235   Du Barry, Marie Jeanne Vaubernier, Comtesse, 98
227   Dufresny, Charles Rivière, Dramatist, 95
248   Duhamel, Jean Pierre, Man of Science, 103
272   Dumouriez, Charles François, French General, 115
265   Duquesne, Abraham, Vice-Admiral of France, 111
485   Edward III., King of England, 220
489   Edward VI., King of England, 222
65   Elagabalus. (See Heliogabalus.)  
454   Eldon, Lord, High Chancellor of England, 207
486   Eleanora of Castile, first Queen of Edward I. of England, 220
488   Elizabeth, Queen of England, 221
20   Epicurus, Philosopher, 23
5   Epimenides, Poet and Prophet of Crete, 15
192   Eugene, François Eugene of Savoy, called Prince, Military Commander, 77
312 ** Eugénie Marie Guzman, Empress of the French, 134
9   Euripides, Greek Poet, 17
434   Fairbairn, William, Millwright and Engineer, 196
436   Faraday, Michael, Natural Philosopher, 196
105   Faustina, Junior, Annia Faustina[II-231], 45
203   Félibien, André, Sieur des Avaux et de Javercy, Writer on Art, 85
296   Fénélon, François de Salignac, de Lamotte, Archbishop and Writer, 123
349   Fichte, Johann Gottlieb, Philosopher and Metaphysician, 154
394   Flaxman, John, Sculptor, 172
258   Foix, Gaston de, Warrior, 109
476   Follett, Sir William, Lawyer, 217
447   Forbes, Edward, Naturalist, 201
452   Fox, Charles James, Statesman, 206
286   Foy, Maximilien Sebastien, French General, 120
299   Francis I., King of France, 125
387   Francis Joseph, reigning Emperor of Austria, and King of Hungary, 168
343 * Frank, Johann Peter, Physician, 151
424   Franklin, Benjamin, Statesman and Philosopher, 191
376   Frederic II., surnamed the Great, King of Prussia, 164
377   Frederic Louis Henry, Prince of Prussia, 164
374   Frederic William, Elector of Brandenburg, 163
375   Frederic William I., King of Prussia, 164
379   Frederic William III., King of Prussia, 165
384   Frederic William IV., Reigning King of Prussia, 167
391   Fuseli, or Fuessli, Henry, Painter, 171
39   Galba, Servius Sulpicius, Roman Emperor, 31
185   Galileo Galilei, Philosopher, 75
66   Gallienus, Publius Licinius Valerianus, Roman Emperor, 39
145   Garofalo, Benvenuto Tisio, called, Painter, 62
390   Garrick, David, Player and Dramatist, 170
328   Gärtner, Friedrich, Architect, 144
189   Gattamelata, Stefano, Warrior, 77
181   Gavazzi, Alessandro, Monk and Orator, 73
256 *** Gay-Lussac, French Chemist, 108
492   George III., King of England, 224
493   George IV., King of England, 224
212   Gérard, François, Painter, 89
115   Germanicus Cæsar, Roman General, 50
61   Geta, Publius Septimius, Roman Emperor, 37
132   Ghiberti, Lorenzo, Sculptor, 57
140   Ghirlandaio, Domenico, Painter, 59
400   Gibson, John, Sculptor, 175
211   Girodet-Trioson, Painter, 88
154   Giulio Romano, Giulio Pippi di Giannuzzi, Architect and Painter, 64
327   Gluck, Christoph, Musician, 143
366   Gneisenau, Augustus Count Herdart de, Field Marshal, 160
337   Goethe, Johann Wolfgang von, Poet, 147
179   Goldoni, Carlo, Poet, 72
410   Goldsmith, Oliver, Poet and Man of Letters, 181
55   Gordianus Africanus, Marcus Antonius, Roman Emperor, 36
62   Gordianus II., Marcus Antonius, Roman Emperor, 37
67   Gordianus III., Pius, Marcus Antonius, Roman Emperor[II-232], 39
196   Goujon, Jean, Sculptor, 83
172   Grisi, Giulia, Italian Singer, 69
213   Gros, Antoine Jean, Painter, 89
214   Guérin, Pierre Narcisse, Painter, 89
135   Guidi, Tommaso. (See Masaccio)  
341   Gutenberg, Johann, Inventor of Printing, 149
358   Gutkow Karl, Journalist and Dramatist, 157
46   Hadrian, Publius Ælius Hadrianus, Roman Emperor, 33
346   Hahnemann, Samuel, Physician and Founder of Homœopathy, 152
332   Halbig, Johann, Sculptor, 145
446   Haliburton, Judge, Lawyer, and Writer, 201
314   Handel, George Friedrich, Musical Composer, 136
451 * Hastings, Warren, Statesman, 205
316   Haydn, Franz Joseph, Musical Composer, 138
65   Heliogabalus, Varius Avitus Bassianus, Roman Emperor, 38
302   Henry II., King of France, 127
304   Henry III., King of France, 127
305   Henry IV., King of France, 128
487   Henry VII, King of England, 221
479   Herbert, Sidney, Statesman, 218
89   Herennius, Roman Emperor, 42
352   Hermann, Gottfried, Philologist and Critic, 155
435   Herschell, Sir John, Astronomer, 196
14   Hippocrates, Physician, 20
280   Hoche, Lazare, French General, 118
1   Homer, Great Epic Poet of Greece, 13
480 * Hooper, William Hulme, Naval Officer, 218
119   Hortensius, Quintus, Roman Orator, 51
74   Hostilianus, Roman Emperor, 41
350   Hufeland, Christoph Wilhelm, Physician, 154
351   Humboldt, Alexander Von, Naturalist and Traveller, 154
367   Humboldt, Karl Wilhelm, Baron Von, Statesman and Philologist, 160
466   Hume, Joseph, Political Reformer, 212
427   Hunter, John, Surgeon and Comparative Anatomist, 193
462   Huskisson, William, Statesman and Financier, 211
15   Isocrates, Rhetorician, 20
457   Jackson, General, President of the United States, 209
344   Jacobi, Friedrich Heinrich, Philosopher and Poet, 151
491   James II., King of England, 224
430   Jeffrey, Francis, Critic and Essayist, 194
419   Jerrold, Douglas, Writer, 188
425   Johnson, Samuel, Writer and Moralist, 191
388   Jones, Inigo, Architect, 169
282   Joubert, Barthélémi Catharine, French General, 118
95 * Julia, Daughter of Augustus, 43
71   Julian the Apostate—Flavius Claudius Julianus, Roman Emperor[II-233], 40
253   Jussieu, Antoine Laurent de, Botanist, 106
342   Kant, Immanuel, Metaphysician, 150
271   Kellermann, François Christophe, Marshal of France, 114
397   Kemble, Charles, Player, 174
275   Kleber, Jean Baptiste, French General, 115
325   Klenze, Leo Von, Architect, 142
334   Klopstock, Friedrich Gottlieb, Epic and Lyric Poet, 145
256 ** Laborde, Alexander Louis Joseph, Marquis de, Soldier, Traveller, and Educator, 107
255   Lacépède, Bernard Germain Étienne, Naturalist, 106
277   Lafayette, Marie Paul Gilbert Motier, Marquis de, French General, 116
220   La Fontaine, Jean de, Poet, 92
249   Lagrange, Joseph Louis, Astronomer, 104
284   Lannes, Jean, Marshal of France, 119
253 * Laplace, Pierre Simon, Astronomer, 106
290   La Salle, Antoine Charles Louis Collinet de, General of Cavalry, 121
273   La Tour D’Auvergne-Corret, Theophile Malode, Warrior, 115
396   Lawrence, Sir Thomas, Painter, 173
202   Lebrun, Charles, Painter, 85
276   Lefebvre, François Joseph, Marshal of France, 116
383   Leopold I., King of the Belgians, 166
230   Le Sage, Alain Réné, Novelist, 96
262   Lesdiguières, François de Bonne, Duc de, Constable of France, 110
335   Lessing, Gotthold Ephraim, Man of Letters, 146
259   L’Hôpital, Michel de, Chancellor of France, 109
246   Linné, or Linnæus, Charles, Botanist, 102
93   Livia, Drusilla, Roman Empress, 43
122 * Livy—Titus Livius, Roman Historian, 53
422   Locke, John, Philosopher, 189
482   London, Bishop of. (See Blomfield.)  
381   Louisa Augusta Wilhelmina Amelia, Queen of Prussia, 165
383 * Louise Marie, Queen of the Belgians, 167
297   Louis XI., King of France, 125
298   Louis XII., King of France, 125
307   Louis XIII., King of France, 129
308   Louis XIV., King of France, 130
309   Louis XV., King of France, 131
312 * Louis Napoleon. (See Napoleon.)  
312   Louis Philippe, King of France, 133
380   Louis Ferdinand, Prince of Prussia, 165
382   Ludwig I., ex-King of Bavaria, 166
205   Lully, Jean Baptiste de, Violinist, and Musical Composer, 86
371   Luther, Martin, the Great Reformer, 162
30   Lycurgus, Lawgiver, 28
463   Lyndhurst, John Singleton Copley, Baron, Ex-Chancellor of England, 211
204   Mabillon, Jean, Antiquary, 85
183   Machiavelli, Niccolo, Political Writer and Historian[II-234], 74
429   Mackintosh, Sir James, Historian and Metaphysician, 194
401   Macready, William Charles, Player, 175
57   Macrinus, Marcus Opilius, Roman Emperor, 36
76 * Magnus Decentius, 41
171   Malibran, Maria Felicitas, Actress, 69
102   Mamæa, Julia, Roman Empress, 45
207   Mansart, Jules Hardouin, Architect, 86
448   Mansfield, William Murray, Earl of, Lord Chief Justice, 202
136   Mantegna, Andrea, Painter and Engraver, 58
369   Manteuffel, Otto-Feodor Freiherr von, Prussian Minister, 161
151   Marcantonio Raimondi, Engraver, 64
286   Marceau, François Sévérin Desgraviers, French General, 20
163   Marcello, Benedetto, Writer and Musician, 67
108   Marcellus, Marcus Claudius, Roman General, 47
48   Marcus Aurelius Antoninus, Roman Emperor, 34
53   Marcus Galerius Antoninus, Roman Prince, 35
310   Marie Antoinette, Joséphine Jeanne, Queen of France, 131
104   Mariniana, 45
490   Mary Stuart, Queen of Scots, 222
135   Masaccio, Tommaso Guidi, Painter, 57
279   Massena, André, Marshal of France, 117
100   Matidia, 45
483   Mathew, Father Theobald, Temperance Reformer, 219
59   Maximinus, Caius Julius Verus, Roman Emperor, 37
378   Maximilian Joseph I., King of Bavaria, 165
68   Maximus, Caius Julius Verus, Roman Prince, 39
293   Mazarin, Cardinal, Minister of France, 122
91   Mæsa, Julia, Roman Empress, 42
187   Medici, Cosmo de, Merchant and Statesman, 76
190   Medici, Giovanni. (See Bandineri), 77
306   Medici, Marie de, Queen of France, 128
372   Melancthon, Philip, German Divine and Reformer, 162
32   Menander, Comic Poet, 28
331   Mendelssohn-Bartholdy, Felix, Musician, 144
315 * Mengs, Anthony Raphael, Painter, 137
178   Metastasio, Pietro Bonaventura, Poet, 72
20 A Metrodorus, Greek Philosopher, 23
143   Michael Angelo. (See Buonarotti.)  
199   Mignard, Pierre, Painter, 84
25   Miltiades, Athenian General, 26
408   Milton, John, Poet, 180
191   Mirandola, Francesco Pico della, 77
221   Molière, Dramatist, 93
251 * Monge, Gaspar, Geometrician, 105
236   Montaigne, Michel de, Essayist, 98
461   Monteagle, Lord, English Peer, 211
234 * Montenoy, Charles Palissot de. (See Palissot.)  
251   Montgolfier, Jacques Étienne, Aëronaut and Inventor of Balloons, 105
416   Moore, Thomas, Poet, 186
317   Mozart, Johann Wolfgang, Musical Composer[II-235], 138
399   Mulready, William, Painter, 175
149   Nani, Giovanni di. (See Udine.)  
311   Napoleon Buonaparte, Emperor of France, 132
312   Napoleon, Louis, Emperor of France, 132
455   Nelson, Horatio, Lord High Admiral, 207
36   Nero, Claudius Cæsar Drusus, Roman Emperor, 30
42   Nerva, Marcus Cocceius, Roman Emperor, 32
423   Newton, Sir Isaac, Astronomer and Philosopher, 190
285   Ney, Michel, Marshal of France, 119
385   Nicholas Paulovitch, Reigning Emperor of all the Russias, 167
256 **** Nodier, Charles, Writer, 108
365   Nollendorf, Friedrich Hinrich von, Prussian Field-Marshal, 160
392   Northcote, James, Painter, 171
200   Nôtre, André le, Architect and Gardener, 84
34   Numa Pompilius, Second King of Rome, 29
465   O’Connell, Daniel, Orator and Lawyer, 212
473   O’Lochlen, Sir Michael, Lawyer, 216
347   Olbers, Heinrich Wilhelm Mathias, Astronomer, 153
130   Orcagna, or Orgagna, Andrea di Cione, Painter, Sculptor, Architect, 56
441   Owen, Richard, Naturalist, 199
321 * Paer, Ferdinando, Musical Composer, 141
170   Paganini, Niccolo, Violinist, 69
165   Paisiello, Giovanni, Musical Composer, 67
157   Palestrina, Di. (See Pierluigi.)  
234 * Palissot de Montenoy, Charles, Dramatist, 98
155   Palladio, Andrea, Architect, 65
471   Palmerston, Henry John Temple, Viscount, Statesman, 215
294   Pascal, Blaise, Theologian and Philosopher, 122
472   Peel, Sir Robert, Statesman, 215
264   Peiresc, Claude Fabri de, Patron of Science, 111
210   Percier, Charles, Architect, 88
29   Periander, “Tyrant” of Corinth, 28
27   Pericles, Athenian Statesman, 27
291   Perier, Casimir, Statesmen, 121
250   Pérouse, Jean François Galaup de la, Navigator, 104
49   Pertinax, Publius Helvius, Roman Emperor, 34
139   Perugino, Pietro, or Pietro Vanucci della Pieve, Painter, 58
343   Pestalozzi, Heinrich, Educator, 151
174   Petrarca, Francesco, Poet, 70
69   Philip (the Younger), Marcus Julius Philippus II., Roman Prince, 39
296 * Philip III., King of France, 124
23   Phocion, Athenian Statesman and General, 25
157   Pierluigi, Giovanni, surnamed Palestrina, Musical Composer, 65
7 ? Pindar, Greek Poet, 16
164   Piranesi, Giambatista, Engraver, 67
231   Piron, Alexis, Poet[II-236], 96
129   Pisano, Niccola, Sculptor and Architect, 56
28   Pisistratus, “Tyrant” of Athens, 27
456   Pitt, William, Statesman, 208
16   Plato, Greek Philosopher, 21
99   Plotina, Pompeia, Roman Empress, 44
470   Pollock, Sir Frederick, Chief Baron of the Exchequer, 214
409   Pope, Alexander, Poet, 180
106   Poppæa, Sabina, Roman Empress, 46
31   Posidippus, Comic Poet, 28
33   Posidonius, Greek Philosopher, 29
470 * Pottinger, Sir Henry, Diplomatist, 214
198   Poussin, Nicolas, Painter, 83
58   Pupienus—Marcus Claudius Pupienus Maximus, Roman Emperor, 36
223   Quinault, Philippe, Poet, 94
216   Rachel, Madlle. Felix, Tragic Actress, 91
225   Racine, Jean, Dramatist, 94
370   Radetzky, Count Joseph, Austrian General, 161
146   Raffaelle, Sanzio, Painter, 62
323   Rauch, Christian, Sculptor, 141
244   Réaumur, Réné Antoine Ferchault de, Chemist and Naturalist, 101
226   Regnard, Jean François, Dramatist, 95
194   Rezzonico, Carlo, afterwards Clement XIII., Pope, 78
292   Richelieu, Cardinal, Minister of France, 121
411   Rogers, Samuel, Poet, 183
242   Rollin, Charles, Historian, 101
219   Rotrou, Jean de, Dramatist, 92
243   Rousseau, Jean Baptiste, Lyric Poet, 101
247   Rousseau, Jean Jacques, Philosopher and Writer, 102
313   Rubens, Peter Paul, Painter, 136
474   Russell, Lord John, Statesman, 216
92   Sabina, Roman Empress, 43
255 * Sacy, Antoine Isaac Silvestre, Baron de, Orientalist, 106
475   Salomons, David, Alderman, 216
103   Salonina, Cornelia, Roman Empress, 45
175   Sanazzaro, Giacomo, Poet, 70
147   Sanmicheli, Michele, Architect, 63
150   Sarto, Andrea del, Painter, 63
405   Sartoris, Adelaide, Vocalist, 176
270   Saxe, Maurice Comte de, Marshal of France, 114
109   Scipio, Africanus Major, Publius Cornelius, Roman General, 47
319   Schadow, Johann Gottfried, Sculptor, 139
363   Scharnhorst, Gebhardt David, General, 159
353   Schelling, Friedrich Wilhelm Joseph von, Metaphysician, 155
338   Schiller, Christoph von, Poet, 148
324   Schinkel, Karl Friedrich, Architect and Painter, 142
373   Schleiermacher, Friedrich Ernest Daniel, Theologian, 163
329   Schnorr, Julius, Painter[II-237], 144
330   Schwanthaler, Ludovic, Sculptor, 144
333   Schwind, Moritz von, Painter, 145
413   Scott, Sir Walter, Poet and Novelist, 184
148   Sebastiano del Piombo (Fra), Painter, 63
234   Sedaine, Michel Jean, Dramatist, 97
122   Seneca, Lucius Annæus, Philosopher, 53
64   Severus, Alexander Marcus Aurelius, Roman Emperor, 38
54   Severus, Lucius Septimius, Roman Emperor, 35
407   Shakspeare, William, Poet, 178
137   Signorelli, Luca, Painter, 58
440   Skey, Frederick Carpenter, Surgeon, 198
426   Smith, Adam, Philosopher and Political Economist, 192
393   Smith, John Raphael, 172
13   Socrates, Philosopher, 19
436 * Somerville, Mary, Mathematician and Astronomer, 197
7   Sophocles, Tragic Poet, 16
208   Soufflot, Jacques Germain, Architect, 87
414   Southey, Robert, Poet Laureate, 185
169   Spontini, Gasparo, Musician, 68
362   Stein, Karl, Baron Von, Prussian Minister of State, 159
433   Stevenson, George, Engineer, 195
395   Stothard, Thomas, Painter, 173
201   Sueur, Eustache le, Painter, 84
263   Sully, Maximilien de Béthune, Duc de, Minister of State, 110
177   Tasso, Torquato, Poet, 71
419 * Taylor, Henry, Poet, 188
118   Terence—Publius Terentius, Latin Comic Poet, 51
345   Thaer, Albrecht, Physician and Agriculturist, 152
320   Thorwaldsen, Albrecht Bartholomäus, Sculptor, 139
237   Thou, Jacques Auguste de, Minister of State and Historian, 99
12   Thucydides, Greek Historian, 19
37   Tiberius, Claudius Nero Cæsar, Roman Emperor, 30
322   Tieck, Christian Friedrich, Sculptor, 141
339   Tieck, Ludwig, Author, 149
145   Tisio, Benvenuto. (See Garofalo)  
144   Titian, Tiziano Vecellio, Painter, 61
43   Titus, Flavius Sabinus Vespasianus, Roman Emperor, 32
241   Tournefort, Joseph Pitton de, Botanist, 100
45   Trajan, Marcus Ulpius Trajanus, Roman Emperor, 33
266   Turenne, Henri de la Tour d’Auvergne, Vicomte de, Marshal of France, 112
149   Udine, Giovanni da, Painter, 63
301   Valentino, Carlota d’Avesne, Duchess of, 127
98   Valeria Messalina, Roman Empress, 44
139   Vanucci della Pievo, Pietro. (See Perugino.)  
150   Vannucchi, Andrea. (See Sarto.)  
240   Vauban, Sebastien le Prestre de, Engineer, 100
194 * Ventura, Padre, Italian Priest, 79
207 * Vernet, Claude Joseph, Painter[II-238], 87
403   Vernon, Robert, Patron of Art, 176
156   Veronese, Paolo Cagliari, called, Painter, 65
51   Verus, Ælius. (See Ælius.), 35
52   Verus, Annius. (See Annius.), 35
50   Verus, Lucius Aurelius, Roman Emperor, 35
39 * Vespasian—Titus Flavius Sabinus Vespasianius, Roman Emperor, 31
496   Victoria, Queen of England, 225
141   Vinci, Leonardo da, Painter, 59
121   Virgil—Publius Virgilius Maro, Latin Poet, 52
41   Vitellius, Aulus, Roman Emperor, 32
233   Voltaire, François Marie Arouet de, Historian, Poet, and Wit, 97
75   Volusianus, Caius Vibius, Roman Emperor, 41
197   Vouet, Simon, Painter, 83
444   Warren, Samuel, Lawyer and Writer, 201
364   Wartenburg, Yorck Count von, Prussian Field-Marshal, 159
451   Washington, George, First President of the United States, 204
428   Watt, James, Improver of the Steam Engine, 193
469 * Webster, Daniel, American Statesman and Orator, 214
459   Wellington, Arthur, Duke of, Soldier and Statesman, 209
437   Whewell, William, Philosopher, 197
336   Wieland, Christoph, Poet, 147
494   William IV., King of England, 225
417   Wilson, John, Poet and Professor, 186
315   Winckelmann, Johann Joachim, Antiquary, 137
484   Wiseman, Cardinal, Chief of the Romish Church in England, 220
348   Wolf, Friedrich Augustus, Philologist, 153
481   Wolsey, Cardinal, Minister of State, 218
410   Wordsworth, William, Poet, 183
389   Wren, Sir Christopher, Architect and Mathematician, 169
193   Ximenez de Cisneros, Francisco, Cardinal and Regent of Spain, 78
432   Yarrell, William, Naturalist, 195
159   Zampieri, Domenico. (See Domenichino.)  
318   Zelter, Karl Friedrich, Musician, 139
21   Zeno, Founder of the Stoic Philosophy, 23
359   Ziethen, Hans Joachim von, Prussian General, 157
166   Zingarelli, Niccolo, Musician, 67

BRADBURY AND EVANS, PRINTERS, WHITEFRIARS.


THE
NATURAL HISTORY DEPARTMENT
OF THE
CRYSTAL PALACE DESCRIBED.


ETHNOLOGY.

By Dr. R. G. LATHAM, M.D.

ZOOLOGY AND BOTANY.

By EDWARD FORBES, F.R.S.,
Professor in the University of Edinburgh.

Seal

CRYSTAL PALACE LIBRARY;
AND
BRADBURY & EVANS, 11, BOUVERIE STREET, LONDON.
1854.

BRADBURY AND EVANS,
PRINTERS TO THE CRYSTAL PALACE COMPANY,
WHITEFRIARS, LONDON.


[III-3]

PREFACE.

Line

The Natural History, which forms the subject of this Handbook, is of a somewhat more comprehensive kind than the current meaning of the words would suggest.

It comprises not only Botany and Zoology proper, but also Ethnology, or, the Science of Human Races.

Ethnology, from the greater novelty of the subject and its comparative importance, occupies the first and larger part of this little volume. The second part is, however, absolutely necessary to the full illustration of the first; and in order that each may reflect due light upon the other, the reader will do well, after going through the notice of each Ethnological group, to refer to the corresponding description in the Botanical and Zoological portion.

In the heading of each group is indicated the page for reference.


[III-4]

CONTENTS.

Line
PART I.
Ethnology. PAGE
GROUP I. TIBETANS 7
II. EAST INDIANS 8
III. SUMATRANS AND JAVANESE 11
IV. DYAKS OF BORNEO 19
V. ISLANDERS OF THE LOUISADE ARCHIPELAGO 25
VI. DANAKIL AND NEGRO OF THE EASTERN COAST OF AFRICA 39
VII. NEGROES 41
VIII. SOUTHERN AFRICA.—NEIGHBOURHOOD OF THE CAPE.—PORT NATAL.—ZULUS AND BUSHMEN 51
IX. BOTOCUDOS AND PAMPA GIRL 60
X. INDIANS OF THE AMAZONS 61
XI. INDIANS FROM BRITISH GUIANA 75
XII. NORTH AMERICAN DANCING 75
XIII. GREENLANDERS 77
BIBLIOGRAPHY 79
PART II.
Zoology and Botany.
  EASTERN OR OLD WORLD 81
  CENTRAL ASIA 82
INDIA 82
NORTH AFRICA 83
NORTH-EASTERN AND EASTERN AFRICA 83
WESTERN AFRICA 84
SOUTH AFRICA 86
WESTERN OR NEW WORLD 88
  ANTARCTIC AMERICA 88
SOUTHERNMOST REGIONS 88
TROPICAL SOUTH AMERICA 88
CENTRAL AMERICA 89
TEMPERATE NORTH AMERICA 89
BARREN GROUNDS 90
ARCTIC REGIONS 90
AUSTRALIA AND INDIAN ISLANDS 91

[III-5]

THE
NATURAL HISTORY COURT.



PART I.
ETHNOLOGY.

Ethnology is compounded of two Greek words, the latter of which scarcely requires explanation, because it already forms part of a numerous class of compounds with which the learned reader is well acquainted. The general reader, too, is perhaps equally familiar with them. We have them in such words as Geo-logy. Astro-logy, Physio-logy, and a long list besides. The Greek form of these would be Geo-logia, Astro-logia, &c. The basis of the term is the substantive logos, meaning a word. In its modified form, however, and in its application as the element of a compound word, it means the principles, or science, of the department (whatever it may be) that is denoted by the root which precedes it. In the word before us it means the principles of that department of human knowledge which is denoted by the form Ethno.

Ethnology means the science, not exactly of the different nations of the world, but of the different varieties of the human species.

It is not thought necessary to enlarge upon this further, since, it is hoped, that the groups to which the visitor is directed will sufficiently tell their own tale. The extent to which they differ from each other is manifest. Still more do they differ from such groups of Englishmen, Frenchmen, Germans, and other Europeans as may collect around them.

As a general rule the varieties that are especially illustrated are foreign to Europe; it being supposed that the character of most[III-6] European populations is sufficiently understood. Hence, the Ethnology is that of Asia, Africa, and the New World. Of these, the most remarkable varieties are found under the extremes of heat and cold; under the tropics, and within the arctic circle. The intermediate and more temperate parts of the different continents, though by no means deficient in interesting and important varieties, supply fewer.

Of the populations within the arctic circle, it is only those of America that are illustrated (viz., in the Greenland group). The character, however, of the tribes thus far north, is pretty similar in all three continents—in Asia and Europe for the new, in America for the old, world.

The science of ethnology is, to a great extent, a new one, and this has been our excuse for enlarging upon the meaning, and entering into the origin of the word. Even ethnological museums are rare. The plan, however, of the groups under notice, is different from that of ordinary museums, and, at the same time, one which is, now, for the first time attempted. The trees, plants, animals, and human occupants of the different portions of the earth’s surface are grouped together—so that the allied sciences of botany, zoology, and ethnology illustrate each other. Hence, the arrangement is geographical.

The arrangement is so far geographical that, to a certain extent, the visitor is enabled to place himself in respect to the objects before him in the same relation as he would be to a map of the world. Here, the North lies in front of him, the East to his right, the West to his left. In like manner, the groups on his right belong to Europe, Asia, and Africa; those on his left to America. In other words—the Old World is on one side, the New on the other. The relations of North and South, however, are given with less nicety. As a general rule, however, the Southern parts of the two worlds (the old and new), are the parts nearest the entrance—and the Northern parts lie beyond them.

In the Indian Islands the plan of giving the exact botany of the country under notice has been departed from—owing to the difficulties of detail in the case of an inter-tropical vegetation, of which but few specimens are found in European collections.

[III-7]

GROUP I.
TIBETANS. (FOR ZOOLOGY, &C. See p. 82.)

The figures here are Tibetans. The variety to which both belong is usually called the Mongolian; by which it is meant that the most remarkable examples of it are to be found in the Chinese province of Mongolia—to the west of the Great Wall. Here it is where the cheek-bones attain a greater breadth than is the case with even the figures before us, where the nose is more flattened, and where the distance between the eyes is greater. Here it is where one of the great conquerors of the world arose, Jinjiz-Khan, in the thirteenth century; under whom, and under whose successors, nearly half the world trembled at the terrible name of Mongol. However, at present, their character is a very different one. The Mongolians of the nineteenth century are quiet, peaceable men, subject to China and Russia—chiefly, however, to China.

Thus much has been said concerning the Mongolians, in order to explain the meaning of the term. It has two powers. It is used in a general and in a limited sense. When limited, it means the inhabitant of Mongolia; when general, it denotes any one of the numerous allied populations—allied in respect to their physical organisation.

Of all the Mongol populations, the Chinese are the most civilised; unless we make an exception in favour of the equally Mongolian Japanese.

The Tibetans are subject to the Chinese, similar to a great extent in form, similar to a great extent in creed, but dissimilar in habits.

The Tibetans are a pastoral, the Chinese an eminently agricultural population.

As the southern frontier of the Tibetan family comes in contact with the northern provinces of India—as some portion of the Tibetan area is absolutely under either the British or some other Indian government—we may expect to find the Mongolians on both sides of the Himalayan Mountains—in India, as well as in Chinese Tartary.

This prepares us for—

[III-8]

GROUP II.
EAST INDIANS. (See p. 82.)

The Tibetan (the figure on the left) we have seen before. He differs from those of Group I. only in belonging to the southern side of the Himalayas;—to the parts drained by the Sutlej; to the water-system of the Indus.

In India Proper the languages fall into two divisions: those akin to the Tamul, spoken in the Dekhan, or Southern India, and those akin to the Hindúi, spoken along the northern bank of the Ganges; in Oude, &c.

There are also in India Proper two types of physical form; in one the colour is dark, or even black, the skin coarse, the face flattened, the lips thick; in the other the colour is brunette, the nose aquiline, the eyebrows arched, regular, and delicate, the lips of moderate thickness, the face oval, the features intelligent. Each is represented in the present group, though neither in the extreme form.

As a general, but by no means as an invariable, rule, the darker complexions preponderate over the lighter ones as we go southwards, except in the mountains, where the skin becomes fairer.

It is not considered necessary to enlarge upon what is called the system of caste in India. It means that the son follows the business of the father, so that the descendants of (say) a blacksmith will be blacksmiths, and so on. It also means that between individuals of different castes there are certain prejudices; certain points whereon there is a reluctance to intermix. Hence, individuals of a higher, refuse to intermarry with those of a lower caste. They refuse also to take their meals with them.

Now, as a general, but by no means as an invariable, rule, the higher the caste the greater the predominance of the second type of form, i.e., the finer the features, the clearer the complexion.


India and China, we must remember, are countries that have long been civilised—civilised after their own peculiar fashion. More than this, they are countries from which a civilisation has been diffused over districts more or less barbarous. On the other hand, the Mahometan creed has diffused, and is diffusing itself,[III-9] over India, at the expense of the original (so-called) Braminical and Buddhist religions.

The extent to which Indian civilisation has (after first spreading itself abroad) been modified by a subsequent diffusion of Mahometanism, will be seen when we move from India to the Islands of the Indian Archipelago—Sumatra, Java, Borneo, &c.

Here the division of the human species to which the populations belong is the Malay—-just as that to which the Chinese and Tibetans were referred was the Mongolian.

Just, too, as the word Mongolian had a wider and a narrower signification, so has the term Malay. A true and proper Malay is a Mahometan, from either certain parts of Sumatra, or certain parts of the Malayan Peninsula—from Sincapore, from Malacca, from Penang, from Bencoolen, &c. On the other hand, a member of the Malay family, in the wider sense of the word, may be a Pagan in religion, an Indian in doctrine, or a native of Java or Borneo, in respect to his locality.

The Malays, in the wider sense of the word, whatever may be the minor differences between them, have the same general physiognomy; being short rather than tall, darker than the generality of Mongolians, though lighter than the southern Indians, and broadfaced, though less so than the more extreme Mongolians. When in contact with the sea, they exhibit decided maritime habits. Many other of their customs in detail deserve notice.

Bodily disfigurations under the idea of ornament.—The Malay dress is becoming; but the habit of permanently disfiguring parts of the body under the idea of ornament, is of sufficient prominence to take place amongst the characteristics of the branch.

a. Tattooing.—This is sometimes limited, sometimes general: sometimes over the whole body, sometimes confined to the arms only. In Africa the patterns vary with the tribe. In certain Malay districts, an approach to the distinction may be found; for instance, we hear in Borneo of some tribes that always tattoo, of others that partially tattoo, of others that do not tattoo at all. Nay more; the habit of tattooing seems in some cases to go along with certain other habits—by no means naturally connected with it. Thus certain of the Borneo non-tattooed tribes never use the Sumpitan, or blow-pipe; whilst others are tattooed, and use it.

So at least Sir J. Brooke was informed; although I think the careful peruser of his journal will find that the coincidence is not always complete.

[III-10]

b. Depilation.—Depilation is effected either by quick-lime or tweezers. Generally, I believe, the parts of the body which are meant to be kept smooth are rubbed with quick-lime; and the isolated hairs that afterwards appear, are plucked out carefully by tweezers in detail.

c. Filing the teeth, dyeing the teeth. This is a Malay habit, and there are not less than three varieties of this operation.

1. Sometimes the enamel, and no more, is filed off. This enables the tooth to receive and retain its appropriate dye.

2. Sometimes the teeth are merely pointed.

3. Sometimes they are filed down to the gums.

Dyeing may follow filing, or not, as the case may be.

In Sumatra, where a jetty blackness is aimed at, the empyreumatic oil of the cocoa-nut is used. Even, however, if no dyeing follow, the teeth will become black from the simple filing, if the chewing of the betel-nut be habitual.

d. Distension of the ears.—Many of the tribes that file their teeth, also distend their ears. Both are Malay habits. In some parts of Sumatra, when the child is young, the ear is bored, and rings are put in. In other parts, however, the rings are weighted, so as to pull down the lobe; or ornaments, gradually increased in diameter, are inserted; so that the perforation becomes enlarged.

Simple perforation may extend to a mere multiplication of the holes of the ear. In Borneo, the Sakarran tribes wear more earrings than one, and are distinguished accordingly; “when you meet a man with many rings distrust him” being one of their cautions. Mr. Brooke met a Sakarran with twelve rings in his ear.

e. Growth of the nails.—In parts of Borneo, the right thumbnail is encouraged to grow to a great length. So it is in parts of the Philippines.

Running-a-muck.—A Malay is capable of so far working himself into fury, of so far yielding to some spontaneous impulse, or of so far exciting himself by stimulants, as to become totally regardless of what danger he exposes himself to. Hence, he rushes forth as an infuriated animal, and attacks all who fall in his way, until having expended his morbid fury he falls down exhausted. This is called running-a-muck.

Gambling.—This habit, or rather passion, is shared by the Malays, the Indians, the Chinese, and the Indo-Chinese; quail-fighting and cock-fighting being the forms in which it shows itself.[III-11] A Malay will lose all his property on a favourite bird; and, having lost that, stake his family; and after the loss of wife and children, his own personal liberty: being prepared to serve as a slave in case of losing.

Narcotic stimulants and masticatories.—Chewing the betel-nut is almost universal in some of the Malay countries; the use of opiates and tobacco being also common.

The nut of the Areca catechu, is wrapped in the leaf of the piper betel, the first being astringent, the second pungent. The addition of lime completes the preparation. This stimulates the salivary glands, tinges the saliva red, and discolours the teeth.

Of the chief islands occupied by the Malay family, the first two under notice are

Sumatra—and

Java.—These being taken together, give us

GROUP III. (p. 91.)
A. SUMATRANS. B. JAVANESE (OPIUM SMOKERS).

A. The populations of Sumatra exhibit different degrees of civilisation to an extent found in few areas of equal size: the difference in their religious creeds being proportionately broad. There are the extreme forms of rude paganism; there are traces of the Indian forms of religion; and there is Mahometanism. The least clothed of the figures before us is a Lubu, one of the wildest, rudest, and weakest of all the populations. The position of the Lubus in Sumatra is that of the Bushmen of South Africa, for they are a fragmentary population, driven into the more inaccessible districts by tribes stronger than themselves; without arts, and without settled habitations.

The next are Battas, whose civilisation is some degrees above that of the Lubus. A great part of their present area belonged to this last named population, who are, probably, Battas in the very lowest stage of development. These require further notice. They belong to the northern half of Sumatra, though without reaching the northern extremity of the island.

At the very northern end we have the kingdom of Atshin, Achin, or Acheen, where the religion is Mahometan, and where the alphabet is the Arabic; Atshin being the part of Sumatra where the influence of the Arabian trade, Arabian religion, and Arabian language, have been the greatest.

South of Atshin is the Batta country. Here there is only an[III-12] imperfect Mahometanism, with no use of the Arabic alphabet, and but little tincture of Arab cultivation.

The rivers in the Batta country are inconsiderable, so are the forests; for the country is an elevated platform—dry, exposed, and parched. The luxuriant vegetation of so many regions in this part of the world, finds no place here; and instead of it, we have sand, hardened clay, bare rocks swept by strong currents of wind and exposed to an equatorial sun.

The Battas are cannibals; they are also a lettered population. It is believed that this combination of rudeness and civilisation occurs nowhere else, a combination which, however, is beyond doubt.

In the Batta alphabet we have books, almanacks, &c.

On the Batta cannibalism, hear so competent an authority as Marsden. “They,” the Battas, “do not eat human flesh as the means of satisfying the cravings of nature, for there can be no want of sustenance to the inhabitants of such a country and climate, who reject no animal food of any kind; nor is it sought after as a gluttonous delicacy.

“The Battas eat it as a species of ceremony, as a mode of showing their detestation of certain crimes by an ignominious punishment, and as a savage display of revenge and insult to their unfortunate enemies. The objects of this barbarous repast are prisoners taken in war, especially if badly wounded, the bodies of the slain, and offenders condemned for certain capital crimes, especially for adultery. Prisoners unwounded (but they are not much disposed to give quarter) may be ransomed or sold as slaves, where the quarrel is not too inveterate; and the convicts, there is reason to believe, rarely suffer when their friends are in circumstances to redeem them by the customary equivalent of twenty binchangs, or eighty dollars. These are tried by the people of the tribe where the offence was committed, but cannot be executed until their own particular raja has been made acquainted with the sentence, who, when he acknowledges the justice of the intended punishment, sends a cloth to cover the head of the delinquent, together with a large dish of salt and lemons. The unhappy victim is then delivered into the hands of the injured party (if it be a private wrong, or, in the case of a prisoner to the warriors) by whom he is tied to a stake; lances are thrown at him from a certain distance by this person, his relatives, and friends; and when mortally wounded, they run up to him, as if in a transport of passion, cut pieces from the body with their knives, dip them in the dish of salt, lemon-juice,[III-13] and red pepper, slightly broil them over a fire prepared for the purpose, and swallow the morsels with a degree of savage enthusiasm. Sometimes (I presume according to the degree of their animosity and resentment) the whole is devoured by the bystanders; and instances have been known where, with barbarity still more aggravated, they tear the flesh from the carcase with their teeth. To such a depth of depravity may man be plunged, when neither religion nor philosophy enlighten his steps! All that can be said in extenuation of the horror of this diabolical ceremony is, that no view appears to be entertained of torturing the sufferers, of increasing or lengthening out the pangs of death; the whole fury is directed against the corpse, warm, indeed, with the remains of life, but past the sensation of pain. A difference of opinion has existed with respect to the practice of eating the bodies of their enemies actually slain in war; but subsequent enquiry has satisfied me of its being done, especially in the case of distinguished persons, or those who have been accessories to the quarrel. It should be observed that their campaigns (which may be aptly compared to the predatory excursions of our Borderers) often terminate with the loss of not more than half-a-dozen men on both sides. The skulls of the victims are hung up as trophies in the open buildings in front of their houses, and are occasionally ransomed by their surviving relations for a sum of money.”—Marsden’s Sumatra, pp. 391-2.

The Battas have, probably, been more civilised than they are now—India being the source of their civilisation. This is shown in the following imperfect sketch of their creed—which is Indian, corrupted and degenerate.

“The inhabitants of this country have many fabulous stories, which shall be briefly mentioned. They acknowledge three deities as riders of the world, who are respectively named, Batara-guru, Sori-pada, and Mangallah-bulang. The first, say they, bears rule in heaven, is the father of all mankind, and partly, under the following circumstances, creator of the earth; which from the beginning of time had been supported on the head of Naga-padoha; but growing weary at length, he shook his head, which occasioned the earth to sink, and nothing remained in the world excepting water. They do not pretend to a knowledge of the creation of this original earth and water; but say that at the period when the latter covered every thing, the chief deity, Batara-guru, had a daughter named Puti-orla-bulan, who requested permission to descend to these lower regions, and accordingly came[III-14] down on a white owl, accompanied by a dog; but not being able, by reason of the waters, to continue there, her father let fall from heaven a lofty mountain, named Bakarra, now situated in the Batta country, as a dwelling for his child; and from this mountain all other land gradually proceeded. The earth was once more supported on the three horns of Naga-padoha; and that he might never again suffer it to fall off, Batara-guhu sent his son, named, Layang-layang-mandi (literally ‘the dipping swallow’), to bind him hand and foot. But to his occasionally shaking his head they ascribe the effect of earthquakes. Puti-orla-bulan had afterwards, during her residence on earth, three sons and three daughters, from whom sprang the whole human race.

“The second of their deities has the rule of the air, betwixt earth and heaven; and the third that of the earth; but these two are considered as subordinate to the first. Besides these, they have as many inferior deities as there are sensible objects on earth, or circumstances in human society; of which some preside over the sea, others over rivers, over woods, over war, and the like. They believe, likewise, in four evil spirits, dwelling in four separate mountains; and whatever ill befalls them they attribute to the agency of one of these demons. On such occasions they apply to one of their cunning men, who has recourse to his art; and by cutting a lemon ascertains which of these has been the author of the mischief, and by what means the evil spirit may be propitiated; which always proves to be the sacrificing a buffalo, hog, goat, or whatever animal the wizard happens on that day to be most inclined to eat. When the address is made to any of the superior and beneficent deities for assistance, and the priest directs an offering of a horse, cow, dog, hog, or fowl, care must be taken that the animal to be sacrificed is entirely white.

“They have also a vague and confused idea of the immortality of the human soul, and of a future state of happiness or misery. They say that the soul of a dying person makes its escape through the nostrils, and is borne away by the wind; to heaven, if of a person who has led a good life; but if of an evil-doer, to a great cauldron, where it shall be exposed to fire until such time as Batara-guru shall judge it to have suffered punishment proportioned to its sins; and feeling compassion shall take it to himself in heaven: that finally the time shall come when the chains and bands of Naga-padoha shall be worn away, and he shall once more allow the earth to sink; that the sun will be then no more than a cubit’s distance from it, and that the souls of those who, having[III-15] lived well, shall remain alive at the last day, shall in like manner go to heaven, and those of the wicked be consigned to the before-mentioned cauldron, intensely heated by the near approach of the sun’s rays, to be there tormented by a minister of Batara-guru, named Suraya-guru, until, having expiated their offences, they shall be thought worthy of reception into the heavenly regions.”

The remaining male figures represent two warriors from Pulo Nias, a small island on the Western coast of Sumatra; the cap and coat of one being made of the fibres from the leaf-stalk of the gumuti palm.

“The Nias people are remarkable for their docility and expertness in handy-craft work, and become excellent house-carpenters and joiners; and, as an instance of their skill in the arts, they practise that of letting blood by cupping, in a mode nearly similar to ours. They are industrious and frugal, temperate and regular in their habits, but, at the same time, avaricious, sullen, obstinate, vindictive, and sanguinary. Although much employed as domestic slaves (particularly by the Dutch) they are always esteemed dangerous in that capacity; a defect in their character which philosophers will not hesitate to excuse in an independent people torn by violence from their country and connexions. They frequently kill themselves when disgusted with their situation, or unhappy in their families, and often their wives at the same time, who appeared, from the circumstances under which they were found, to have been consenting to the desperate act. They were both dressed in their bed apparel (the remainder being previously destroyed), and the female, in more than one instance, that came under notice, had struggled so little, as not to discompose her hair, or remove her head from the pillow. It is said that in their own country they expose their children, by suspending them in a bag from a tree, when they despair of being able to bring them up. The mode seems to be adopted with the view of preserving them from animals of prey, and giving them a chance of being saved by persons in more easy circumstances.”—Marsden’s Sumatra, p. 476.

B. The three opium-smokers are Javanese of the lower orders.

Java differs from Sumatra in its higher standard of civilisation, and in the greater extent to which it has been acted upon by Indian influences. At one time, these were generally diffused over the island; not, perhaps, to the utter and absolute extinction of the original Paganism, but, still, largely and generally. At present, however, the prevailing influences are Arab, i.e., Mahometan;[III-16] and Mahometanism has superseded Hindúism in all parts of the island, except one interesting locality—the range of the Tenggher Mountains.

“To the eastward of Surabáya, and on the range of hills connected with Gúnung Dasar, and lying partly in the district of Pasúruan, and partly in that of Probolingo, known by the name of the Teng’ger mountain, we find the remnant of a people still following the Hindu worship, who merit attention, not only on account of their being the sole depositaries of the rites and doctrines of that religion existing at this day on Java, but as exhibiting an interesting singularity and simplicity of character.

“These people occupy about forty villages, scattered along this range of hills, in the neighbourhood of what is termed the Sandy Sea. The site of their villages, as well as the construction of their houses, is peculiar, and differ entirely from what is elsewhere observed on Java. They are not shaded by trees but built on spacious open terraces, rising one above the other, each house occupying a terrace, and being in length from thirty to seventy, and even eighty feet. The door is invariably in one corner, at the end of the building opposite to that in which the fire-place is built. The building appears to be constructed with the ordinary roof, having along the front an enclosed veranda or gallery, about eight feet broad. The fire-place is built of brick, and is so highly venerated that it is considered a sacrilege for any stranger to touch it. Across the upper part of the building rafters are run, so as to form a kind of attic story, in which are deposited the most valuable property and implements of husbandry.

“The head of the village takes the title of Peting’ gi, as in the low-lands, and is generally assisted by a Kabâyan, both elected by the people from their own village. There are four priests who are here termed Dùkuns (a term elsewhere only applied to doctors and midwives), having charge of the state records and the sacred books.

“These Dùkuns, who are in general intelligent men, can give no account of the era when they were first established on these hills; they can produce no traditional history of their origin, whence they came, or who entrusted them with the sacred books, to the faith contained in which they still adhere. These, they concur in stating, were handed down to them by their fathers, to whose hereditary office of preserving them they have succeeded. The sole duty required of them is again to hand them down in safety to their children, and to perform the púja (praisegiving), according to the directions they contain. These records consist of[III-17] three compositions, written on the lontar-leaf, detailing the origin of the world, disclosing the attributes of the Deity, and prescribing the forms of worship to be observed on different occasions. When a woman is delivered of her first child, the Dúkun takes a leaf of the alang grass, and scraping the skin of the hands of the mother and her infant, as well as the ground, pronounces a short benediction.

“When a marriage is agreed upon, the bride and bridegroom being brought before the Dúkun within the house, in the first place bow with respect towards the south, then to the fire-place, then to the earth, and lastly, on looking up, to the upper story of the house where the implements of husbandry are placed. The parties then, submissively bowing to the Dúkun, he repeats a prayer, while the bride washes the feet of the bridegroom. At the conclusion of this ceremony, the friends and family of the parties make presents to each of krises, buffaloes, implements of husbandry, &c.; in return for which the bride and bridegroom respectfully present them with betel-leaf.

“At the marriage-feast which ensues, the Dúkun repeats two púja. The marriage is not, however, consummated till the fifth day after the above ceremony. This interval between the solemnities and consummation of marriage is termed by them úndang mántu; and is in some cases still observed by the Javans in other parts of the island, under the name, únduh mántu.

“At the interment of an inhabitant of Teng’ger, the corpse is lowered into the grave with the head placed towards the south (contrary to the direction observed by the Mahometans), and is guarded from the immediate contact of the earth by a covering of bambus and planks. When the grave is closed, two posts are planted over the body: one erected perpendicularly on the breast, the other on the lower part of the belly; and between them is placed a hollowed bambu in an inverted position, into which, during successive days, they daily pour a vessel of pure water, laying beside the bambu two dishes, also daily replenished with eatables. At the expiration of the seventh day, the feast of the dead is announced, and the relations and friends of the deceased assemble to be present at the ceremony, and to partake of entertainments conducted in the following manner:

“A figure of about half a cubit high, representing the human form, made of leaves and ornamented with variegated flowers, is prepared and placed in a conspicuous situation, supported round the body by the clothes of the deceased. The Dúkun then places[III-18] in front of the garland an incense-pot with burning ashes, together with a vessel containing water, and repeats the two púja to fire and water.

“The clothes of the deceased are then divided among the relatives and friends; the garland is burned; another púja is repeated; while the remains of the sacred water are sprinkled over the feast. The parties now sit down to the enjoyment of it, invoking a blessing from the Almighty on themselves, their houses, and their lands. No more solemnities are observed till the expiration of a thousand days; when, if the memory of the deceased is beloved and cherished, the ceremony and feast are repeated; if otherwise, no further notice is taken of him: and having thus obtained what the Romans call his justa, he is allowed to be forgotten.

“Being questioned regarding the tenets of their religion, they replied that they believed in a Déwa, who was all-powerful; that the name by which the Déwa was designated was Búmi Trúka Sáng’yáng Dewáta Bátur, and that the particulars of their worship were contained in a book called Pángláwu, which they presented to me.

“On being questioned regarding the ádat against adultery, theft, and other crimes, their reply was unanimous and ready—that crimes of this kind were unknown to them, and that consequently no punishment was fixed, either by law or custom; that if a man did wrong, the head of the village chid him for it, the reproach of which was always sufficient punishment for a man of Teng’ger. This account of their moral character is fully confirmed by the Regents of the districts, under whose authority they are placed, and also by the residents. They, in fact, seem to be almost without crime, and are universally peaceable, orderly, honest, industrious, and happy. They are unacquainted with the vice of gambling and the use of opium.

“The aggregate population is about twelve hundred souls; and they occupy, without exception, the most beautifully rich and romantic spots on Java; a region in which the thermometer is frequently as low as forty-two. The summits and slopes of the hills are covered with Alpine firs, and plants common to an European climate flourish in luxuriance.

“Their language does not differ much from the Javan of the present day, though more gutturally pronounced. Upon a comparison of about a hundred words with the Javan vernacular, two only were found to differ. They do not marry or intermix[III-19] with the people of the lowlands, priding themselves on their independence and purity in this respect.”—Raffles’s History of Java.

GROUP IV.
DYAKS OF BORNEO, A. MALES; B. FEMALES.

The native, and aboriginal tribes of Borneo, have no general name by which they designate themselves, neither have they a general name for their island; and this is a fact which occurs pretty generally throughout the Indian Archipelago. A mere islet, a piece of land visibly and palpably surrounded by water—takes the name of pulo (island); but the larger masses like Celebes, Borneo, Sumatra, and (as Mr. Craufurd writes) each and all of the islands with the single exception of Borneo, are treated as continents,—so narrow is the knowledge of the inhabitants and so limited their powers of comprehension and generalisation. Hence, Borneo is an European rather than a native term; taken from the name of a particular portion of the island and extended to the whole. It was first used by Pigafetta, a companion of Magalhan, during his voyage round the world in 1521. This gave it a currency in Europe which it has maintained ever since.

As to the different divisions of the population, they generally take their designation from the name of the stream on which they reside; so that when we hear of such tribes as the Sarebas, the Lundu, the Sakarran, &c., we may safely conclude that rivers so called form their several occupancies.

The natives, then, have no general name by which they designate themselves collectively. But we have. Wei.e., the Europeans—call them Dyaks. Dyak is a Malay word—much such a word as Savage, or Barbarian—so that expressions like Dyak, Sarebas (the savages of the Sarebas), &c., are only partially native—partially native and partially Malay.

The Malay origin of the word indicates the existence of a Malay population in, or in the neighbourhood of, the island; a Malay population as well as a native. And such is the case. Over and above the proper aborigines, we find in Borneo, Chinese from China, Bugis from the Island of Celebes, and (as aforesaid) Malays from the Malayan Peninsula and Sumatra.

It is the aborigines, however, who alone are represented in the group before us—the Dyaks as opposed to the Malays. And the particular Dyak division is not the one with which an Englishman[III-20] is the most familiar. The Sarebas Dyaks, the Lundu Dyaks, the Sakarran Dyaks, &c., are the best known to us, inasmuch as it is those who come in contact with the Rajahship of Sarawak, and the parts under the influence of Sir James Brooke. But the Dyaks before us come from the south and the south-east, rather than from the north-west and west, and from the Dutch parts of the island rather than from the English.

The aborigines of Borneo belong to the great Malay family, so that they are essentially the same as the aborigines of Sumatra and Java, &c. But they have this important characteristic; they have been the least touched by either Indian or Arabic influences. They are the least Hindu, the least Mahometan, the most Pagan. Neither have they any alphabet; at the same time, some vestiges of Indian culture undoubtedly exist.

The Dyak of Borneo is the Malay in his most unmodified and primitive condition, and it is amongst the Dyaks of Borneo that the characteristic customs are to be found. They are divided into, probably, 100 different tribes, with, probably, 100 dialects; so far are they from the organisation of a concentrated political power. As some tribes, however, are more powerful than others, and as such tribes encroach and conquer, the tendency towards consolidation exists.

Of such tribes, the most important are the Kayans, occupants of the central part of the island, cultivators of the soil, domesticators of animals, forgers of iron. They are a dominant and encroaching population; the Kanawit, and the other tribes more immediately allied, being their tributaries. The names which they give to both the other Dyaks and the Malays, are derisive and insulting; and other circumstances besides this show the extent to which they are a proud, self-respecting population. Their dignity of manner and deportment is favourably contrasted with the comparative servility of the Malays. As to their morals, the accounts are conflicting. The utter absence of female chastity, affirmed by Mr. Law, is denied by Mr. Burns, whose opportunities for acquiring knowledge seem to have been the better, but who writes somewhat in the spirit of an advocate and admirer. The same author considers that their taste for head-hunting has been exaggerated; at any rate, the custom of handing down heads from generation to generation, as honourable heirlooms, wants confirmation, and besides this, has certain positive facts against it. When two of their chiefs changed their residence, an accumulation of 400 skulls was thrown away, instead of being[III-21] removed with care and honour. Human sacrifices, on the other hand, are admitted by Mr. Burns to exist; with the reservation that the practice decreases, and that the victim is a member of some other tribe.

It was from the parts about the Kayan river that they began their conquests. Successful in holding their own, they suffer from disease rather than war. At intervals of twelve or fifteen years, the small-pox rages as an epidemic; whilst fever, ague, dysentery, and rheumatism, are endemic. To tattoo the body, to bore and stretch the ears, to wear pendant ear-rings of twenty ounces, so that the ears and breasts meet, are the more characteristic elements of the Kayan cosmesis. In the first of these operations the performer pricks the pattern with a needle, and then engrains the smoke of a dammer torch; so that the process is partially that of the simple tattoo, and partially that of inustion. Mutual friendships or brotherhoods, are ratified by the not unusual ceremony of mixing blood. This Mr. Burns considers as peculiar to the Kayan amongst the populations of Borneo. That of drawing omens from the flight of birds is common to them and the other tribes.

After death, the body is kept in the house from four to eight days. Torches are kept burning beside the coffin which contains it; and if one of them go out, bad luck is augured from its extinction. For four or five days, too, after the removal of the corpse, they are still kept alight. Previous, however, to the removal, a feast is prepared; some of the food being placed beside the coffin, whilst the remainder regales the relatives of the deceased. The mourning of the women is loud, passionate, and full of gesticulation. They hug the decomposing body; they inhale its odours, and finally, they attend it to the place of its ultimate disposal, which is the loft of a small wooden house, built on pillars, about twelve feet high.

The burial ceremonies are more elaborate than those which accompany the birth or naming of children; those of marriage are the simplest. To swim, to wrestle, to blow the sumpitan, to use the sword, and to throw the spear, are the chief elements in the training of the Kayan youth.[33]

[33] Burns, in “Journal of the Indian Archipelago.”

This notice has contained some remarkable suggestions. What means the allusion to the head-hunting? No trophy is more honourable among the Dyaks of Borneo, than a human head; the head of a conquered enemy. These are preserved in the houses as tokens; so that the number of skulls is a measure of the prowess[III-22] of the possessor. In tribes, where this feeling becomes morbid, no young man can marry before he has presented his future bride with a human head, cut off by himself. Hence, for a marriage to take place, an enemy must be either found or made.

It may easily be imagined that this engenders a chronic state of warfare between tribe and tribe; to which, we may add, as another of the scourges of the Dyak population, the piracy that is practised along the whole of the sea-coasts, and on the lower courses of the numerous rivers.

Cannibalism in Sumatra; head-hunting in Borneo—such are the characteristics of two of the more important branches of the Malay family, and they are practices which are manifestly condemnatory to the moral character of the nations in which they occur. We must, however, take the evidence to their existence as we find it. On the other hand, it is a good rule to receive with caution all accounts that violate the common feelings of human nature, and to allow ourselves to believe that causes, as yet imperfectly understood, modify and diminish practices so horrible. That it should be so general as the theory demands is incompatible with the proportions between the male and female populations, which are much the same in Borneo as elsewhere. So it is, also, with the express statement of Sir J. Brooke, who says, that the passion for heads has much diminished amongst certain of the Sarawak tribes. In one case, an offer of some was refused; the reason alleged being that it would revive fresh sorrows. The parties who thus declined, gave a favourable account of some of the customs by which the horrors of a Dyak war were abated:—

“If one tribe claimed a debt of another, it was always demanded, and the claim discussed. If payment was refused, the claimants departed, telling the others to listen to their birds, as they might expect an attack. Even after this, it was often the case, that a tribe friendly to each mediated between them, and endeavoured to make a settlement of their contending claims. If they failed, the tribes were then at war. Recently, however, more places than one have been attacked without due notice, and often by treachery. The old custom likewise was, that no house should be set on fire, no paddy destroyed, and that a naked woman could not be killed, nor a woman with child. These laudable and praiseworthy customs have fallen into disuse, yet they give a pleasing picture of Dyak character, and relieve, by a touch of humanity, the otherwise barbarous nature of their warfare. Then there is what is called the Babukid, bubukkid, or mode of defiance, which is appealed[III-23] to as a final judgment in disputes about property, and usually occurs in families when the right to land and fruit-trees comes to be discussed. Each party then sallies forth in search of a head; if only one succeed, his claim is acknowledged; if both succeed, the property continues common to both. It is on these occasions that the Dyaks are dangerous; and perhaps an European, whose inheritance depended on the issue, would not be very scrupulous as to the means of success. It must be understood, however, that the individuals do not go alone, but a party accompanies each, or they may send a party without being present. The loss of life is not heavy from this cause, and it is chiefly resorted to by the Singé and Sows, and is about as rational as our trials by combat. This babukid must be a check of a permanent sort.

Houses.—“With certain of the Dyak tribes the houses are not huts, nor yet mere dwelling-houses of ordinary dimensions. They hold from one hundred to two hundred persons each; and are raised above the ground on piles.

Religion.—“The notions of the Dyaks respecting the spiritual world are in general much confused, and at variance with each other. They agree, however, in the belief in good and evil spirits. The good spirits are divided into two classes, viz., spirits of the world above, or of the higher regions, who come under the collective denomination of ‘Sengiang;’ and spirits of the lower regions, or more properly, such as have their dominion in the waters, in great rivers, and these are called ‘Jata.’ The collective name of the evil spirits is ‘Talopapa’ which word signifies, in general, all bad things.

“It is to be observed here that the Dyaks describe the aspect of the regions above as similar to the terrestrial world. Mountains, valleys, streams, lakes, &c. &c., are found there, as well as here beneath; and the dominions of various spirits are bounded by the different streams and branches of the rivers.”—From the Rev. T. F. Barker’s “Mythology of the Dyaks,” Journ. Ind. Archip., vol. iii. p. 162.

“In the interior, men are still occasionally sacrificed, principally on the death of chiefs, and other considerable persons. In Sirat, the furthest inhabited point of the Kapus River, where I some years ago made a journey of investigation, they had a short time before our arrival, sacrificed two women. An acquaintance who had been present, gave me the following account of the horrible event:—One morning at Sirat, there gathered a great number of[III-24] people, who streamed in on all sides to celebrate a great feast. There was firing of guns—the open plain before the Kotta (fort) was prepared for the occasion, and adorned with branches, flowers, and cloths; a number of hogs were killed; and when, finally, by midday, everything had been arranged according to use and wont, the real objects of the festival were brought forward—two women, still young, who had been purchased for the purpose from another race. They had to seat themselves on the side of the ready-dug graves, and contemplate for some time the noisy rejoicings of the feasters. A lance of about thirty feet in length was then brought and laid on one of the victims. All now hurried to take a part in the impending detestable deed. A hundred hands seized the long lance, and the instant the customary sign was given, they threw themselves, amidst the loud acclamations of the multitude, on the unfortunate wretch, and pierced her through and through, even transfixing her to the ground. They then cut off the head of the fallen victim, and carried it during the rest of the day, dancing and singing round it. The same fate also befel her unfortunate companion. Those who are thus offered become, in their belief, in the other world, slaves of the deceased friend to whose memory they are offered.”—From “Some Remarks on the Dyaks of Banjarmassing,” in the Journ. of the Ind. Archip., vol. i., p. 30.

The blow-pipe, with which so many of the figures before us are furnished, is called, in the native language, sumpitan. It is made of the wood of the palm, bored with the greatest possible nicety. The arrows, which are from four to six inches long, fit the bore, and are poisoned—at least with some of the tribes. At twenty yards the sumpitan is sure to hit; at one hundred it attains its longest range. Since the ones before us have been in England, more than one amateur has tried them—both with the Dyak arrows, and with little pellets of clay. They have succeeded in bringing down sparrows from the house-tops with the latter. The aim is sure, and a little practice accomplishes it.

The male in the sailor’s dress is a Philippine Islander, who spoke the Iloco language. The female is a half-blood Spanish and Manilla-Indian.

[III-25]

GROUP V.
A.—ISLANDERS OF THE LOUISIADE ARCHIPELAGO—PAPUANS. (p. 91)
A. THE PAPUANS. B. AUSTRALIANS.

When we move eastwards from the more eastern of the Moluccas we reach New Guinea, of which the very name suggests the likelihood of a change in the character of the population. How did it arise? Much in the same way that such a term as West Indies did. There was something in the new country which reminded the discoverers of an old one. Now the large island under notice reminded the early voyagers of the coast of Guinea on the western side of Africa. Why? Because they found there a population of Blacks; a population that reminded them of the negro; a population unlike the Malay tribes of islands westward.

A. New Guinea. This is anything but a native name; indeed, it is a name that no New Guinea men know anything about.

Just what occurred in Borneo, occurs here. There is no general name at all; neither one for the island itself, nor one for the population of it—no native name at least.

There is, however, a Malay one. The word Papua means frizzly-haired. Originally and, more properly, applied to occupants of the north-west coast, it has since been extended—for the purposes of Ethnology at least—to a whole family. Hence, the Papuan stock contains, not only the inhabitants of New Guinea, but those of the islands to the east, and south thereof—the Louisiade Archipelago, New Britain, New Ireland, New Hanover, Solomon’s Isles, New Hebrides, Loyalty Isles, and New Caledonia.

No part of the world is less known than these Papuan islands—the interior of New Guinea being as much a mystery as the interior of Africa. There are certain points, however, on which attention has been concentrated. Thus—

a. The western coast of New Guinea itself has been described, more or less incompletely, by the Dutch.

b. The south-eastern part, along with the islands of Torres Straits, has been surveyed by H.M.S. the Fly.

c. The Louisiade Archipelago, &c., by H.M.S. Rattlesnake.

d. The parts about Tanna, Mallicollo, and New Caledonia, by Captain Erskine.

The figures before us are from drawings made on the spot by Mr. Huxley, naturalist to the Rattlesnake, and as they were from[III-26] the pencil of an anatomist as well as an artist they may be relied on as characteristic. The chief notices are from Mr. M‛Gillivray’s “Voyage of the Rattlesnake.”

The Louisiade houses (or huts) in their simplest form consist of a roof of palm-leaves on four wooden uprights, each of which pierces a round piece of wood. This prevents rats and vermin from finding their way upwards and into the dwelling.

Louisiade house

The larger and more elaborate contain several families—the following being a section of the part occupied. In parts subject to inundation they stand upon high props—upon piles as it were. This mode of building is common in New Guinea, on certain islands of the Indian Archipelago, the more swampy parts of inter-tropical America; like adaptations occurring in like localities.

Larger house
Canoe with platforms

Next to the domestic architecture that of their canoes deserves attention. These, always, or almost always, are built without riggers—sometimes with a sort of stage or platform projecting from[III-27] the sides, the structure of a raft being superadded to that of a boat. The sailing vessels take the following form. Less nautical than the Malays—the Papuan family is more so than the Australian.

Sailing vessel

With some varieties the hair is far more elaborately dressed than with those of the present group; being twisted into long curls, likened to the thrums of a mop, stiffened with oil, and washed in alkaline leys, which give a red tinge. When this kind of ornamentation attains its fullest development, the frizzled mass of strong and stiffened hair makes the owner unable to lie down without disarranging his head-dress. In this case a neck-pillow becomes necessary; just as it does with certain tribes of Africa,[III-28] with whom the care of these head-gear is one of the primary employments of life.

Neck pillow

The chief weapons are the bow and arrow, their political organisation of the lowest and simplest kind; that of small tribes living in a state of chronic hostility with each other. Woven cloth they have none. On the other hand they show some skill in the art of pottery. In New Guinea, at least, they defend their soil with tenacity and resolution, eschewing European intercourse. In the more southern and smaller islands, however, this is less the case than in the more northern and larger ones. They contrast more favourably with the Australians than with the Malays.

But little is known of their languages.

The islands of Torres Strait, even when they lie nearest to the coast of Australia, are not Australian, but Papuan, so that the following extracts from the “Voyage of the Fly” apply to a population allied to one under notice—allied, but not identical.

In Darnley Island the natives “were fine, active, well-made fellows, rather above the middle height, of a dark brown or chocolate colour. They had frequently almost handsome faces, aquiline noses, rather broad about the nostril, well-shaped heads, and many had a singularly Jewish cast of features. The hair was frizzled, and dressed into long pipe-like ringlets, smeared sometimes with ochre, sometimes left of its natural black colour; others had wigs not to be distinguished from the natural hair, till closely examined. The septum narium was bored, but there was seldom anything worn in it. Most of their ears were pierced all round with small holes, in which pieces of grass were stuck, and in many the lobe was torn and hanging down to the shoulder. Their only scars were the faint oval marks on the shoulder. The hair of their bodies and limbs grew in small tufts, giving the skin a slightly woolly appearance. They were entirely naked, but frequently wore ornaments made of mother-of-pearl shells, either circular or crescent-shaped, hanging round their necks. Occasionally, also, we saw a part of a large shell, apparently a cassis, cut into a[III-29] projecting shield-shape, worn in front of the groin. The women wore a petticoat round the waist, reaching nearly to the knees, formed of strips of leaves sewn on to a girdle. These formed a very efficient covering, as one or two were worn over each other. The grown-up woman’s petticoat, or nessoor, was formed, we afterwards found, of the inside part of the large leaves of a bulbous-rooted plant, called by them teggaer, of which, each strip was an inch broad. The girl’s nessoor was made of much narrower strips from the inside of the leaf of the plantain, which they called cabbow.

“The younger women were often gracefully formed, with pleasing expressions of countenance, though not what we should consider handsome features. The girls had their hair rather long, but the women had almost all their hair cut short, with a bushy ridge over the top, to which they, singularly enough, gave the same name as to pieces of tortoise-shells, namely, kaisu. Many of the elder women had their heads shaved quite smoothly, and we never saw a woman wearing a wig, or with the long ringlets of the men. At our first landing, all the younger women and girls kept in the back-ground, or hid themselves in the bush. On strolling to the back of the huts, we found a small native path, along which we went a short distance till we came to a rude fence in front of a plantain-ground, where the men objected to our going further, and we heard the voices of the women among the trees beyond.

“There were four huts at this spot, all bee-hive shaped, sixteen feet in diameter, and as much in height. They stood in small court-yards, partially surrounded by fences formed of poles of bamboo, stuck upright in the ground, close together, and connected by horizontal rails, to which they were tied by withies. Inside the huts were small platforms covered with mats, apparently bed-places; and over head were hung up bows and arrows, clubs, calabashes, rolls of matting, and bundles apparently containing bones, which they did not like our examining. Outside the huts were one or two small open sheds, consisting merely of a raised flat roof, to sit under in the shade, and a grove of very fine cocoa-nut trees surrounded the houses.”

The arms of the natives were the bow and arrow, and in holding the former, especial care was taken that the part of the wood which was uppermost as the tree grew, should be uppermost when used as a weapon. Rough imitations of the human figure were common; but whether they served as idols or not was uncertain.[III-30] The use of tobacco was general. On the part of the females, the reserve and decorum of manner formed a striking contrast with the very different habits of the Polynesians.

B. The Australians.—These are taken from life; two natives of the parts about Cape York having been taken up in an English vessel and brought with it to England. They passed a fortnight under the same roof with Mr. Thomson, and were well observed by both the artists engaged on the figures, and the present writer. The thinness of the legs is by no means exaggerated. It is just what the plates of Dr. Prichard’s “Varieties of Man” make it. On the other hand, the chest was well developed, and the arms comparatively—though only comparatively—strong. They told the story of their being on board the ship that brought them over, in dumb show, but they told it in a way that the most consummate professional actor might admire. But this was about all the talent they showed.

They ran neither faster nor slower than the Englishman they came in contact with; but swam as adepts. By no means insensible to such kindnesses as they received, they evinced quite as much kindness to their English house-mates as they did to one another. So silent, indeed, were they, that until we took a vocabulary of their language, we thought that they belonged to two different tribes who had carried their hostility with them across the Pacific, and nourished it in Sydenham. Smoking, or rather swallowing smoke, was their chief delight.

Tom, the livelier and less saturnine of the two, has a throwing-stick in his hand, which he is about to project.

In the group of two he re-appears. When Dick, the gloomier, had a headache, Tom could scarcely be withheld from scarifying his temples with such pieces of glass or flint as he could pick up.

Dick and Tom are Northern Australians—Northern Australians from the parts about Cape York.

Observe the points of difference and likeness between them and the Louisiade Papuans. As both are dark-skinned, they have been dealt with as branches of one and the same family; for which a name (or rather a pair of names) derived from the Greek has been applied—Melanesian and Kelnonesian. Nesos means island; kelnos, dark; melas (melan-os), black. The latter compound is the better. They are certainly dark coloured; and it is equally certain that both New Guinea and Australia are islands. The exact relationship, however, is less certain. Nevertheless, the name Kelnonesian is adopted.

[III-31]

It has been said that the Papuan contrasts favourably with the Australian; the latter being the better known of the two.

The differences between the different Australian languages have long been known and definitely insisted upon.

Less marked differences in frame and physiognomy between the different Australian tribes, have also been long known and definitely insisted upon.

Differences of customs and manners have been similarly noticed and considered. Notwithstanding all this, however, there is no opinion more generally admitted than the fundamental unity of the Australian population from Swan River to Botany Bay, from the Gulf of Carpentaria to Bass’s Straits. Captain Grey, Schurman, Teichelman, and all who have devoted average attention to the language, have given their evidence to this; and they have supplied facts of various kinds, of their own collection, towards the proof of it. No man is less inclined to disturb this view than the present writer.

As to the physical conformation of the Australians, I believe that it is so uniform throughout the island, that it has never been made the basis of a division;—indeed I am inclined to believe that the similarity of external appearance has been over-rated; nevertheless, it is certain that there are deviations from the general slim and underfed condition of the body; and (which is of more importance), from the usual straight character of the hair. Such is the case, according to Mr. Earl, with the trepang fishers of Arnhem Bay. Then as to the hair—with the Jaako, or Croker Island tribe, it is coarse and bushy (the whiskers being thick, and curly) and so short, crisp, and abundant about the breast and shoulders as to conceal the skin; whereas, on the other hand, the Oitbo, or Bidjenelumbo, have straight silky hair, arched eyebrows, fair complexion, and occasionally the oblique eye.

The lowest form of humanity has been sought for in Australia, whilst the physical condition of the country and the absence of those animals and herbs that supply human food, have made it a likely quarter to exhibit it. Whether, however, so low a rank in the scale of human development be, upon the whole, a fact or exaggeration, it is certain that, upon several points, there has been considerable over-statement. One sample of this sort is the accredited opinion as to the absolute incapacity of the Australian of forming even the rudest elements of a mythology—an opinion which engenders the notion that their intellects are too sluggish for even the evolution of a superstition.

[III-32]

That this was not the case was indicated some years back by Captain Grey, and that there is some exponent of the religious feeling in the shape of a rude form of shamanism, has been shown in the account of the American Exploring Expedition; where the first published details of the Australian mythology, if so it may be called, are to be found:—“It is not true, however, as has been frequently asserted, that the natives have no idea of a Supreme Being, although they do not allow this idea to influence their actions. The Wellington tribes, at least, believe in the existence of a Deity called Baiamai, who lives on an island beyond the great sea to the East. His food is fish, which come up to him from the water when he calls them. Some of the natives consider him the maker of all things, while others attribute the creation of the world to his son Burambin. They say of him, that Baiamai spoke, and Burambin came into existence. When the missionaries first came to Wellington, the natives used to assemble once a year, in the month of February, to dance and sing a song in honour of Baiamai. This song was brought there from a distance by strange natives, who went about teaching it. Those who refused to join in the ceremony were supposed to incur the displeasure of the god. For the last three years the custom has been discontinued. In the tribe on Hunter’s River, there was a native famous for the composition of these songs or hymns; which, according to Mr. Threlkeld, were passed from tribe to tribe, to a great distance, till many of the words became at last unintelligible to those who sang them.

Dararwirgal, a brother of Baiamai, lives in the far west. It was he who lately sent the small-pox among the natives, for no better reason than that he was vexed for want of a tomahawk. But now he is supposed to have obtained one, and the disease will come no more. The Bálumbal are a sort of angels, who are said to be of a white colour, and to live on a mountain at a great distance to the south-east: their food is honey, and their employment is to do good ‘like the Missionaries.’

“It is possible that some of these stories owe their origin to intercourse with the whites, though the great unwillingness which the natives always evince to adopt any customs or opinions from them, militates against such a supposition. But a being who is, beyond question, entirely the creation of Australian imagination, is one who is called in the Wellington dialect, Wandong; though the natives have learned from the whites to apply to him the name of devil. He is an object not of worship, but merely of superstitious[III-33] dread. They describe him as going about under the form of a black man of superhuman stature and strength. He prowls at night through the woods around the encampments of the natives, seeking to entrap some unwary wanderer, whom he will seize upon; and, having dragged him to his fire, will there roast and devour him. They attribute all their afflictions to his malevolence. If they are ill, they say Wandong has bitten them. No one can see this being but the nújargir, or conjurors, who assert that they can kill him, but that he always returns to life. He may, however, be frightened away by throwing fire at him (though this statement seems inconsistent with that respecting his invisibility), and no native will go out at night without a firebrand to protect him from the demon.

“There is some difference in the accounts given of this character. By the tribe of Hunter’s River he is called Koin or Koen. Sometimes, when the Blacks are asleep, he makes his appearance, seizes upon one of them and carries him off. The person seized endeavours in vain to cry out, being almost strangled. At daylight, however, Koin disappears, and the man finds himself conveyed safely to his own fireside. From this it would appear that the demon is here a sort of personification of the nightmare,—a visitation to which the natives, from their habits of gorging themselves to the utmost when they obtain a supply of food, must be very subject.

“At the Muruya River the devil is called Túlugal. He was described to us, by a native, as a black man of great stature, grizzled with age, who has very long legs, so that he soon overtakes a man; but very short arms, which brings the contest nearer an equality. This goblin has a wife who is much like himself; but still more feared, being of a cruel disposition, with a cannibal appetite, especially for young children. It would hardly be worth while to dwell upon these superstitions, but they seem to characterise so distinctly the people, at once timid, ferocious, and stupid, who have invented them.

“Their opinions with regard to the soul vary: some assert that the whole man dies at once, and nothing is left of him; others are of opinion that his spirit still survives, but upon this earth, either as a wandering ghost, or in a state of metempsychosis, animating a bird or other inferior creature. But the most singular belief is one which is found at both Port Stephens and Swan River, places separated by the whole breadth of the Australian continent. This is, that white people are merely blacks who have[III-34] died, passed to a distant country, and having there undergone a transformation, have returned to their original homes. When the natives see a white man who strongly resembles one of their deceased friends, they give him the name of the dead person, and consider him to be actually the same being.”

It is difficult to take an exact measure of the extent to which one superstition is grosser than another;—hence, all that can be said respecting the Pantheon, of which Baiamai and Wandong are portions, is that it is as low in the scale of mythologies as any that has fallen under the notice of the writer.

Incomplete Numeration of the Australians.—The import of an Australian having no more than the three, four, or five first numerals, and being thereby as unable to count the number of the fingers of his hands, as that of the hair of his head, is less equivocal. It speaks, at once, to a minimum amount of intellectual power. Nevertheless, the same inability occurs elsewhere; especially in certain languages of South America. The only vocabulary of Australia where the numerals run beyond five, is that of King George’s Sound, as given in Mitchell’s Australia.

The political constitution (if so it may be called) of the Australians is preeminently simple, exhibiting a society of families rather than of tribes; and of the facts connected with the evidence in favour of the unity of the Australian division of mankind is the remarkable distribution of families bearing the same name. The principal of these are the Ballaroke, the Tdondarup, the Ngotok, the Nagarnook, the Nogonyuk, the Mongalung, and the Narrangar. Now, persons bearing one or other of these names, may be found in parts of the country five hundred miles apart. Nor does this appear to be the effect of migration, since each tribe is limited by the jealousy of its neighbours to its own hunting-ground, beyond which it seldom passes.

Polygamy in Australia is what we find, and expect to find. The practice of circumcision is what we find, perhaps, without expecting it. The habit of the children taking the name of the mother, will occur again in the south of India. The rule that a man cannot marry a woman of his own family-name will also re-appear, and that amongst the Indians of North America.

The Kobong.—“Each family among the Australians adopts some animal or plant, as a kind of badge or armorial emblem, or, as they call it, its kobong. A certain mysterious connection exists between a family and its kobong, so that a member of the family will not kill an animal, or pluck any plant of the species to which[III-35] his kobong belongs, except under particular circumstances. This institution again, which in some respects resembles the Polynesian tabú, though founded on a different principle, has its counterpart in the customs of the native Americans. Captain Gray observes, citing Mr. Gallatin, that among the Hurons, the first tribe is that of the bear; the two others, those of the wolf and turtle. The Iroquois have the same divisions, and the turtle family is divided into the great and little turtle. The Sioux are named on a similar principle. According to Major Long, one part of the superstitions of these savages consists in each man having some totem, or favourite spirit, which he believes to watch over him. The totem assumes the shape of some beast, and therefore they never kill or eat the animal whose form they suppose their totem to bear.”

The ceremony of initiation.—“When the boys arrive at the age of puberty (or about fourteen), the elders of a tribe prepare to initiate them into the duties and privileges of manhood. Suddenly, at night, a dismal cry is heard in the woods, which the boys are told is the Bubu calling for them. Thereupon all the men of the tribe (or rather of the neighbourhood) set off for some secluded spot previously fixed upon, taking with them the youths who are to undergo the ceremony. The exact nature of this is not known, except that it consists of superstitious rites, of dances representing the various pursuits in which men are engaged, of sham fights, and trials designed to prove the self-possession, courage, and endurance of the neophytes. It is certain, however, that there is some variation in the details of the ceremony, in different places; for among the coast tribes, one of these is the knocking out of an upper front tooth, which is not done at Wellington, and farther in the interior. But the nature and object of the institution appear to be everywhere the same. Its design unquestionably is, to imprint upon the mind of the young man the rules by which his future life is to be regulated; and some of these are so striking, and, under the circumstances, so admirable, that one is inclined to ascribe them to some higher state of mental cultivation than now prevails among the natives. Thus, the young men, from the time they are initiated, till they are married, are forbidden to approach or speak to a female. They must encamp at a distance from them at night, and if they see one in the way, must make a long detour to avoid her. Mr. Watson told me that he had often been put to great inconvenience in travelling through the woods, with a young man for his guide, as such a one could never be induced to approach[III-36] an encampment where there were any women. The moral intent of this regulation is evident.

“Another rule requires the young men to pay implicit obedience to their elders. As there is no distinction of rank among them, it is evident that some authority of this kind is required, to preserve the order and harmony of social intercourse.

“A third regulation restricts the youth to certain articles of diet. They are not allowed to eat fish, or eggs, or the emu, or any of the finer kinds of opossum and kangaroo. In short, their fare is required to be of the coarsest and most meagre description. As they grow older, the restrictions are removed, one after another; but it is not till they have passed the period of middle age that they are entirely unrestrained in the choice of food. Whether one purpose of this law be to accustom the young men to a hardy and simple style of living may be doubted; but its prime objects and its result certainly are to prevent the young men from possessing themselves, by their superior strength and agility, of all the more desirable articles of food, and leaving only the refuse to the elders.

“The ceremony of marriage, which, amongst most nations, is considered so important and interesting, is with this people one of the least regarded. The woman is looked upon as an article of property, and is sold or given away by her relatives without the slightest consideration of her own pleasure. In some cases she is betrothed, or rather promised, to her future husband in the childhood of both; and in this case, as soon as they arrive at a proper age, the young man claims and receives her. Some of them have four or five wives, and in such a case, they will give one to a friend who may happen to be destitute. Notwithstanding this apparent laxity, they are very jealous, and resent any freedom taken with their wives. Most of their quarrels relate to women. In some cases, the husband who suspects another native of seducing his wife either kills or severely injures one or both of them. Sometimes the affair is taken up by the tribe, who inflict punishment after their own fashion. The manner of this is another of the singularities of their social system.

“When a native, for any transgression, incurs the displeasure of his tribe, their custom obliges him to ‘stand punishment,’ as it is called; that is, he stands with a shield, at a fair distance, while the whole tribe, either simultaneously or in rapid succession, cast their spears at him. Their expertness generally enables those who are exposed to this trial to escape without serious injury,[III-37] though instances occasionally happen of a fatal result. There is a certain propriety even in this extraordinary punishment, as it is very evident that the accuracy and force with which the weapons are thrown will depend very much upon the opinion entertained of the enormity of the offence.

“When the quarrel is between two persons only, and the tribe declines to interfere, it is sometimes settled by a singular kind of duello. The parties meet in presence of their kindred and friends, who form a circle round them as witnesses and umpires. They stand up opposite one another, armed each with a club about two feet long. The injured person has the right of striking the first blow, to receive which the other is obliged to extend his head forward, with the side turned partially upwards. The blow is inflicted with a force commensurate with the vindictive feeling of the avenger. A white man, with an ordinary cranium, would be killed outright, but, owing to the great thickness of their skulls, this seldom happens with the natives. The challenged party now takes his turn to strike, and the other is obliged to place himself in the same posture of convenience. In this way the combat is continued; with alternate buffets, until one of them is stunned, or the expiation is considered satisfactory.

“What are called wars among them may more properly be considered duels (if this word may be so applied) between two parties of men. One or more natives of a certain part of the country, considering themselves aggrieved by the acts of others in another part, assemble their neighbours to consult with them concerning the proper course to be pursued. The general opinion having been declared for war, a messenger or ambassador is sent to announce their intention to the opposite party. These immediately assemble their friends and neighbours, and all prepare for the approaching contest. In some cases, the day is fixed by the messenger, in others not; but, at all events, the time is well understood.

“The two armies (usually from fifty to two hundred each) meet, and after a great deal of mutual vituperation, the combat commences. From their singular dexterity in avoiding or parrying the missiles of their adversaries, the engagement usually continues a long time without any fatal result. When a man is killed (and sometimes before), a cessation takes place; another scene of recrimination, abuse, and explanation ensues, and the affair commonly terminates. All hostility is at an end, and the two parties mix amicably together, bury the dead, and join in a general dance.

[III-38]

“One cause of hostility among them, both public and private, is the absurd idea which they entertain, that no person dies a natural death. If a man perishes of disease, at a distance from his friends, his death is supposed to have been caused by some sorcerer of another tribe, whose life must be taken for satisfaction. If, on the other hand, he dies among his kindred, the nearest relative is held responsible. A native of the tribe at Hunter’s River, who served me as a guide, had not long before beaten his own mother nearly to death, in revenge for the loss of his brother, who died while under her care. This was not because he had any suspicions of her conduct, but merely in obedience to the requirements of a senseless custom.”

Another fact connected with the decease of an Australian deserves notice. When one of them dies, those words which are identical with his name, or, in the case of compounds, with any part of it, cease to be used; and some synonym is adopted instead; just as if, in England, whenever a Mr. Smith departed this life, the parish to which he belonged should cease to talk of blacksmiths, and say forgemen, forgers, or something equally respectful to the deceased, instead. This custom reappears in Polynesia, and in South America; Dobrizhoffer’s account of the Apibonian custom being as follows:—“The Abiponian language is involved in new difficulties by a ridiculous custom which the savages have of continually abolishing words common to the whole nation, and substituting new ones in their stead. Funeral rites are the origin of this custom. The Abipones do not like that anything should remain to remind them of the dead. Hence appellative words bearing any affinity with the names of the deceased are presently abolished. During the first years that I spent among the Abipones, it was usual to say Hegmalkam kahamátek, when will there be a slaughtering of oxen? On account of the death of some Abipon, the word Kahamátek was interdicted, and, in its stead, they were all commanded by the voice of a crier to say, Hemalkam négerkatà? The word Nihirenak, a tiger, was exchanged for Apanigehak; Peú, a crocodile, for Kaeprhak, and Kaáma, Spaniards, for Rikil, because these words bore some resemblance to the names of Abipones lately deceased. Hence it is that our vocabularies are so full of blots occasioned by our having such frequent occasions to obliterate interdicted words, and insert new ones[III-39].”

GROUP VI.
DANAKIL AND NEGRO OF THE EASTERN COAST OF AFRICA (THE DANAKIL LIGHT-COLOURED); FROM THE PARTS BETWEEN THE ENTRANCE TO THE RED SEA AND THE HIGHLANDS OF SOUTHERN ABYSSINIA.

Attention is directed to the Danakil figures. They are African; but they are not negro. They are Africans from one of the very hottest parts. They are other than negro, nevertheless. Their hair is longer than the negro’s; their lips thinner; their colour lighter; their nose more aquiline. Travellers who have been struck by their appearance have called them Caucasians, by which they mean that they approach the European type. Others have compared them with the Arabs—others with the Jews; and this has led them further. The coasts of Arabia are not far off; so why should there not be Arab blood amongst them? This has more than once been assumed. The assumption, however, is unnecessary—nay, it is incorrect. The negro of the next group—the negro from the Delta of the Niger, the negro in his most extreme form—is not more truly indigenous and aboriginal to the soil of Africa than are these Danakil; who are not only Africans, in the strictest sense of the term, but also members of a large family, falling into divisions and subdivisions. So far are they from being exceptional, or in any respect peculiar.

The other members of this family are (a) the Somauli, on the coast of the Pacific Ocean, about Cape Guardafui and (b) the Gallas, or Ilmorma, a pastoral people spread over a vast area to the south of Abyssinia, and who so encroach upon that country that they are in a fair way of reducing it altogether.

The Gallas, like the Danakil, and the Danakil, like the Somauli and Gallas, are a pastoral people—pastoral, locomotive, wild, and intractable—with manners that remind us of the Arab of Asia, the Kaffre of Southern Africa, or of the Berber of the Desert of Sahara; and it is these whom they resemble, more or less closely, in their forms—more or less closely in their social constitution. Like all such populations, they fall into numerous tribes, each under the influence of their chief; with the spirit of blood, or pedigree, running strong amongst them. Every man belongs to his tribe, or class, and is proud of being attached to it. Of the Danakil alone, more than fifty of these tribual divisions are known by name.

[III-40]

In respect to creed the Danakil are what the neighbourhood of Arabia leads us to expect, Mahometans, more or less incompletely converted; and this is the general rule for the eastern coast of Africa—the coast, but not the interior. In the interior we get amongst pagans. On the other hand, Abyssinia and some of the parts about it are Christian. Dr. Beke considered that he found traces of a corrupt and displaced Christianity among the Gallas.

The fact of the neighbourhood of Arabia having determined a large portion of the eastern coast of Africa to Mahometanism explains the meaning of the words Kaffre, and Caffraria, or Kafferland. Kaffre, in the mouth of an Arab, means Infidel. It means Infidel not only in the mouth of an Arab, but in that of any Mahometan. In different languages it takes different forms, and is applied to different populations. In Persia it expressed the old Fire-worshippers, since Guebre is but another form of it. In Cabul it denotes the occupants of a district to the north of Peshawur, wherein the natives still reject Mahometanism, and, so doing, are Kafirs, their country being Kaferistan. In Turkey it generally means a Christian—since Giaour is neither more nor less than Kafir in the mouth of a Turk.

But to return to Eastern Africa. Where the Arab influence ceases, the land of the Kaffres begins.

Of these Kaffres more may be seen in group VII.

The black figure (modelled from life) is evidently more negro than aught else. The hair is crisp, to say the least of it, and the skin black; the open and patulous character of the nostrils, and their lateral position, claim attention. They are by no means exaggerated.

The youth from whom the figure was taken belonged to the Msegurra tribe; of which I can only state that it is an occupant of some part of the back of the coast of Zanzibar, or Mozambique.

The present group prepares us for a Kaffre; let it also prepare us for a negro one. That all Africans are not negroes may be seen from the figures before us. The negro form is by no means universal—not even in the hottest parts of Africa—not even between the tropics: it is only in the lower levels that the true negro is to be found. Look for him amongst the high pastures of the mountains, look for him even on the hot but arid plateaus of the desert, and you search in vain. Tribes with dark skins you may find, tribes with hair more or less wavy, or frizzly,[III-41] tribes with features heavy, massive, and coarse—but the true and typical negro, with his short woolly hair, and his thick projecting lips you will not find. Wherever he is the occupant, the soil is alluvial, and the heat of the atmosphere is combined with moisture. Wherever the land gets high and dry, the inhabitant is brown rather than black, and long-haired rather than frizzly headed. His features, too, become more prominent.

GROUP VII.
NEGROES,—2. LIGHT-COLOURED. FROM THE LOWER NIGER.

In the Delta of the Niger we find the best opportunity for contrasting the negro with the European, the black man with the white; inasmuch as it is in the Delta of the Niger where the points wherein the African differs from the rest of the world are found in the most marked form. The climate is tropical (well nigh equatorial), the soil swampy and alluvial, the atmosphere surcharged with damp warm vapours. Under these conditions the negro is found in his most extreme form. Let us ask what it is. In the true and typical negro (the negro from whom the current notions of the black man are derived), over and above the colour of the skin, there is a woolly, cottony, or frizzy head of hair, there is a yellow tinge over the white of the eye (the sclerotica), and there are thick lips, with a projecting mouth—a muzzle rather than a mouth, in its more exaggerated form. This is because the teeth are set obliquely, i. e. they slant somewhat forward. Then there is the forehead, which is described as being narrow, and retiring, and receding, or sloping backwards. There is some exaggeration in this, though upon the whole the negro character is well marked; the hair, the skin, and the lips, being the chief points. To the notice of these it should be added that the nose is generally flat and depressed, with the nostrils thrown out, so to say, sideways. Rarely, very rarely indeed, is the bridge sufficiently curved to give what is called the Roman or aquiline nose; whilst it is almost as rare to find a Grecian one, i. e. one where the nasal bones are raised but straight. Then there is the proportion which the different parts of the face bear to each other. A [34]German writer of eminence as a naturalist, has lately been taking measurements from amongst the negroes of Brazil, and states that instead of the parts between[III-42] the chin and nose (the nasal portion of the face), and the forehead forming a third, each, of the whole physiognomy, the forehead forms less than a third, the nasal part more than the forehead, and the chin, &c. more than the nasal; in other words, the lower we go the greater the mass of the several parts of the face, and the nearer we approach the brain, the smaller. I can neither verify nor deny this statement.

[34] Burmeister—The Black Man, a pamphlet.

Other points, more or less characteristic, real or supposed, are to be found in the relations of the limbs to the trunk—the former being longer in proportion to the latter than is usual with Europeans.

It is more important, however, to investigate the amount of difference indicated by the difference of colour, and to do this we must look to the structure of the skin. The structure of the negro’s skin differs from that of the white man in degree only, the one containing much, the other but little colouring matter; this colouring matter being deposited in a particular layer, called the mucous layer, the stratum Malpighii, or the rete mucosum. The character of this mucous layer, or rete mucosum, is well given in the forthcoming plates, which, along with the description, is taken from [35]Kölliker’s Manual. It differs in some degree from the one which occurs in the ordinary works on Ethnology.

[35] Translated by Messrs. Busk and Huxley for the Sydenham Society.

The external integument of all men alike consists of the cutis or true skin, and the epidermis, or scarf-skin, the latter consisting of cells only, the former of cells, vessels and nerves.

As far as the cutis is concerned, the blackest and whitest of mankind are alike; so that it is in the scarf-skin or epidermis that the difference lies. This consists of two layers, an external and an internal.

The internal layer is the rete mucosum. It lies immediately upon the true skin, and consists solely and wholly of cells, being equally destitute of vessels and nerves. Here begin the first discrepancies in the opinion of writers. Some deny that it belongs to the epidermis, looking upon it as a separate substantive tissue, neither skin nor scarf-skin, but intermediate to the two. Others find it only in the coloured families of mankind. It occurs, however, universally; being of a yellowish-white colour in Europeans, and dark brown or black in negroes, Indians, and the so-called dark races. Hence, the real difference is not in the existence of an additional tissue, but in a greater amount of colouring matter.[III-43] Similar in respect to the two layers of their cutis, similar in respect to the two layers of their epidermis, the black man and the white differ in the extent to which the second layer of the scarf-skin is charged with a black deposit.

Skin section
Skin section

The accompanying figure represents a section through the skin and scarf-skin of the ball of the thumb; wherein a is the outer layer of the epidermis; b, the inner, or rete mucosum; c, and d, the cutis; e, glands, ducts, &c.

The next gives us the epidermis only—a, being the outer; b, the inner layer (rete mucosum;) c, the cutis, to the outline of which the rete mucosum adapts itself.

It is in the deepest parts of the inner layer, in the parts more immediately in contact with the true skin, that the most colouring matter is accumulated. Hence, the horny, or outer part of the epidermis is white or yellowish, all the world over. A blister, in popular language, raises the skin; in reality, it only raises the outer layer of the epidermis. Now blisters rise equally white with the African and with the European.

It is not until after birth that the colouring matter of the second layer of the scarf-skin becomes deposited. A negro child is born of somewhat deeper red colour than an European, but he is not born black. The edges of the nails and the nipple of the breast darken first; the body having darkened by the third day, there or thereabouts.

As the hue of the skin attains its deepest tinge with the groupe before us, the structure that exhibits it has been enlarged upon.

What is the moral and social state of these negroes of the Delta of the Niger? what their habits, customs, and creeds?

We cannot follow the account of any observer for these parts, without discovering that, overpowering as is the heat, and swampy as is the ground, unfavourable, in one word, as are the conditions of soil and climate, the whole of the low country represented by the groupe before us teems with human life; neither is there the absence of human industry. We first hear of villages of from twenty to thirty, from thirty to forty, from fifty to seventy huts; to each of which we may give, upon an average, some six occupants. Then there are large towns like Iboh and Iddah, wherein the inhabitants are counted by the thousand; where there are regular[III-44] market-days, and where there is a king with his court, such as it is. It is with these kings that the treaties have to be made against the slave-trade, these kings who, as in the late case at Lagos, have disputes as to the “succession”; these kings who give licenses to trade, and who make the access to the interior part of the country practicable or the contrary. There are kings and viceroys—viceroys with kings over them, so that there is a sort of feudal chain of vassalage and sovereignty. King Emmery, for instance, was, at the time of the Niger Expedition, the chief of a village on the river Nun, himself being a subject to King Boy of Brass Town. Then there is the kingdom of Iddah, with its subordinate kingships, whilst Kakanda and Egga are the dependencies of a really consolidated monarchy at Sakkatu.

At best, however, the African monarch, except in the Mahometan kingdoms, is but a sorry potentate; a drunken, sensual, slave-dealing polygamist. When Drs. McWilliam and Stanger visited this same King Emmery, his dress was a uniform coatee that had belonged to a drummer[36] in some English regiment, a plain black hat, and a blue cotton handkerchief for the lower man—a blue cotton handkerchief for drawers, trowsers and stockings, collectively; the dress of the ordinary natives being limited to a simple shirt, with a cloth round the middle. In this we get one of the measures of the amount of English influence and trade.

[36] A drummer’s uniform is a favourite dress elsewhere. In the Ethnological Museum at Copenhagen, Professor Thompson can show no marriage-garment for a male Esquimaux, although of female wedding-gear, and that a truly native and characteristic kind, he has abundance. But there are no male equivalents. The reason of this lies in the fact of a Danish Drummer’s dress having been left as a sort of general property to the community, to be lent or hired, as the case may be whenever a marriage ceremony takes place, to the utter obliteration of the old costume, and with a great disregard to fit.

The huts are of clay, arranged in squares rather than in rows, and when the soil is low and liable to be flooded, they are raised some feet from the ground on a foundation of wooden pillars, in which case a ladder leads to the principal opening. The King’s palace is an assemblage of such huts; a miniature town; one side of the square which they form being the “women’s quarters.” Here reside the numerous wives, half-wives, and ex-wives of the sovereign, the number of which is always considerable, since the rank of the man regulates it. The following table gives us, in the first column, the names of the different members of the Court[III-45] of King Obi of Iboh in 1840; in the others, their age, and the numbers of their wives and families—

  Age. Wives. Children.
Living. Dead. Living. Dead.
1. Ajeh, king’s brother  40  80  40 un-
cer-
tain.
un-
cer-
tain.
2. Amorara, judge and king’s mouth  40   4   2   2   6
3. Ozama, headman  35   4   2   2   6
4. Omenibo, headman  32   3   2   3   6
5. Amebak, headman  28   4   1   3   6
6. Magog, bugler  34   2   1   6   3
7. Ambili, headman  35   3   2   3  11
8. Ogrou, headman  30   3   1   2   2
9. Obi, king  44 110 uncertain.

Let us see something more of this female quarter, which, in the negro parts of Africa, presents a social scene, in the way of barbarism, which the harems of Asia—bad as they are—far fall short of. Obi’s establishment was seen to advantage; for his wives were amused at the faces and dresses of the Europeans who visited their lord and master, and they flocked in swarms to laugh at them. Their mirth then “brought[37] out about twenty damsels of more mature age, who were superannuated wives, permitted to live within the precincts of the palace.” What will be the ultimate fate of these old and young, active and superannuate? Even this—that when the king dies, they will be sacrificed to his manes.

[37] Dr. McWilliam—Medical History of the Niger Expedition.

This practice is common throughout the districts under notice. At Old Calabar, the south-eastern angle of the Delta, the death of a well-known chief or caboceer,[38] named Ephraim, caused the death of some hundreds of men, women, and children who were immolated at his burial—decapitation, burning alive, and the administration of the poison-nut, being the methods resorted to for terminating their existence.

[38] From the Portuguese Cabocero—Captain.

Again, when King Eyeo, father of the present Chief of Creek[III-46] Town, died, an eyewitness, who had only arrived just after the completion of the funeral rites, informed me that a large pit had been dug, in which several of the deceased’s wives were bound and thrown in, until a certain number had been procured; the earth was then thrown over them, and so great was the agony of these victims, that the ground for several minutes was agitated with their convulsive throes. So fearful, in former times, was the observance of this barbarous custom, that many towns narrowly escaped depopulation.[39]

[39] Dr. Daniell on the Natives of Old Calabar, “Transactions of the Ethnological Society.”

The savage character of the negro warfare is on a level with such practices as these—the slave trade being the chief incentive to them. When these take place, and when the burial-place of a king is known to the enemy, they rifle his grave for his remains; and having obtained his scull, keep it as a trophy. For this reason the tombs of royalty are kept concealed.

But there is another peculiarity. In more than one part of the western coast, the woman serves as a soldier, or even as a captain. In Akkim, on the Gold Coast, the notice of a female colonel, when first made, excited as much incredulity as surprise. The fact, nevertheless, has been confirmed by respectable testimony, by Mr. Duncan, and Captain Forbes, more especially; inasmuch as in the kingdom of Dahomey, there is a whole regiment consisting exclusively of females—a large proportion being the ex-wives of the king. The following song, given on the authority of the last-named author, shows the temper and spirit of the unsexed Amazons:—

1.

“When Yoribah[40] said she could conquer Dahomey;
When we meet we’ll change their night into day;
Let the rain fall:
The season past, the river dries.
Yoribah and Dahomey!
Can two rams drink from one calabash?
The Yoribahs must have been drunk to say
Dahomey feared them,
They could conquer Dahomey.

2.

“There’s a difference between Gezo and a poor man;
There’s a difference between Gezo and a rich man.
If a rich man owned all,
Gezo would still be king.
[III-47] All guns are not alike;
Some are long, some short, some thick, some thin.
The Yoribahs must be a drunken nation,
And thus we will dance before them.

3.

“Gezo is king of kings!
While Gezo lives we have nothing to fear.
Under him we are lions, not men.
Power emanates from the king.

4.

“Let all eyes behold the king!
There are not two but one—
One only, Gezo!
All nations have their customs,
But none so brilliant or enlightened,
As those of Dahomey.
People from far countries are here:
Behold all nations, white and black,
Send their ambassadors.

AMAZONS’ CHORUS.

“With these guns in our hands,
And powder in our cartouch-boxes,
What has the king to fear?
When we go to war, let the king dance,
While we bring him prisoners and heads.

GENERAL CHORUS.

“Let the king grant war speedily!
Do not let our energies be damped.
Fire cannot pass through water.
The king feeds us;
When we go to war.
Remember this!
“We are clothed and fed by Gezo;
In consequence, our hearts are glad.””

[40] A neighbouring kingdom on the East.

War and slavery engender each other; war leading to slavery, and slavery stimulating to war. And slavery takes three forms, all bad—bad, but one worse than the other two. This is the slavery of the traders. An expedition is undertaken against some neighbouring tribe, weak enough, or unprepared enough, to divest the attack of half its danger. Captives are taken, driven to the coast in groups, shut up in barracoons, and then sold for transportation to the new world. It is this form of slavery that engenders the miseries and atrocities of the middle passage.

[III-48]

The second form is that of simple domestic servitude, wherein the slave, although under constant compulsion, forms a part of his master’s family, and is ensured against removal from his native soil.

The third is like that of the Nexi of ancient Rome, and occurs when a negro, in order to raise a particular sum of money, sells himself as a labourer for a certain period—pawns his body, so to say, or borrows money on himself.

The administration of justice is on the same low level as the other institutions; the punishments being cruel, and the rules of evidence barbarous.[41] Two methods, as may be expected, predominate, the ordeal and the torture. The commonest form of the latter is “what is called tying Guinea-fashion. In this the arms are closely drawn together behind the back, by means of a cord tied tightly round them, about midway between the elbows and shoulders. A piece of wood to act as a rack having been previously introduced, is then used so as to tighten the cord, and so intense is the agony, that one application is generally sufficient to occasion the wretch so tortured to confess to anything that is required of him.”

[41] From the United Service Journal, November, 1850.

Another form consists in “tying the head and hands, in such a way that by turning the body backwards, they may be drawn together by the cords employed. Another is securing the wrist or ankle to a block of wood by an iron staple. By means of a hammer any degree of pressure may thus be applied.”

The chief form of ordeal is, what is called on the Gold Coast, the dhoom test, but which appears and reappears all along the intertropical parts of Western Africa. The dhoom is a kind of wood with poisonous and emetic properties. The innocent man drinks and ejects it: the guilty one drinks and dies. In Old Calabar the seeds of an aquatic legume replace the dhoom wood. Unless emetic, they are poisonous.

Partaking of the nature of the ordeal, as a means of investigation in criminal matters, is the application to priest, sorcerer, medicine-man, or Fetish-man; but as the principles of belief that this practice involves one illustrated in the Zulu group, we only make a passing allusion to it. The notice, too, of the festivals as connected with religion, will similarly stand over.

What applies to one of the negro populations of the western coast, applies, more or less, to all. There are, of course, differences, nevertheless the general character of the social and political[III-49] institutions, of their habits and superstitions, is alike; so that the description of one tribe is the description of several others besides; the chief distinctions consist in the creeds. I do not mean by this that the particular form of the native and indigenous superstition is of much importance. They are all low and debasing, and even when an African form of faith aspires to the character of a mythology, it is a mythology of an unpoetical, unimaginative, and poverty-stricken character, never indicating much play of feeling, never any vigour or activity of imagination, never inspiring either art or poetry. Of such things we must not think here.

The difference I allude to, and which is one of practical and of ever increasing importance, is that between the Pagan and the Mahometan population, between those which hold to their original Fetishism, to their snake-worship and the like, and those who, having adopted the creed of Islam, are (whatever else they may be) at least, Monotheists.

The Mahometans of the African states must always be separated from the Pagans.

The negro districts of the western coast begin with the country of the Wolofs or Jolofs, as far north as the southern border of the Desert, and the lower course of the river Senegal. There are no better-shaped negroes than these same Wolofs, for they are tall, well-made, active, and intelligent men; Pagans, however, according to their original creed, rather than Mahometans.

The Sereres of Cape Verde, and the Scrawoolli in the interior, are in the same predicament.

The Mandingoes, like the Wolofs, are negroes but not Pagans. They are amongst the first and foremost of the Mahometan negroes: but this applies only to the Mandingoes in the limited sense of the term—the Mandingoes of the Gambia. In the wider sense of the word, the great Mandingo class comprises more than twenty different populations, some of which are as Pagan as the most grovelling snake-worshippers of Dahomey.

Then come the tribes of the islands between the Gambia and Sierra Leone; as also of the lower part of the rivers Grande, Nuñez, Casamanca, &c. Under the names of Felups, Papels, Nalus, Sapis, &c., and we have some of the rudest, but at the same time, the least known of the western negroes.

Between Sierra Leone and Cape Palmas, along with several populations more or less akin to the Mandingo, lie the Krumen, whom a writer already quoted, calls the Scotchmen of Africa. The Kruman leaves without hesitation or reluctance his own[III-50] country to push his fortune wherever he can find a wider field. He is ready for any employment which may enable him to increase his means, and ensure a return home in a state of improved prosperity. There the Kruman’s ambition is to purchase one or two head of cattle, and one or two head of wives, and to enjoy the luxuries of rum and tobacco. Half the Africans that we see in Liverpool and London are Krumen, who have left their own country when young, and taken employment on board a ship, where they exhibit a natural aptitude for the sea. Without being nice as to the destination of the vessel in which they engage, they return home as soon as they can; and rarely or never contract matrimony before their return. In Cape Coast Town, as well as in Sierra Leone, they form a bachelor community quiet and orderly; and in that respect stand in strong contrast to the other tribes, around them. Besides which, with all their blackness, and all their typical negro character, they are distinguishable from most other western Africans; having the advantage of them in make, features, and industry. Hence, a Kruman is preëminently the free labourer of Africa; quick of perception and amenable to instruction. His language is the Grebo tongue, and it has been reduced to writing by the American missionaries of Cape Palmas.

The Gold Coast gives as the chief populations the Fantis, and the Ashantis, pagan and negro; the latter remarkable for the consolidation of one of the more powerful kingdoms of Africa.

In Dahomey we reach the nadir of Negro rudeness; in Dahomey, where the wars are the cruelest, the slave trade the most rife, and the heathenism, at one and the same time eminently debasing in itself, and eminently unmodified by Mahometanism.

In the neighbouring kingdom of Yoruba, this is not so much the case, where the influence of the Fellatas has made itself felt.

This brings us to the Delta of the Niger, the chief population of which is the Ibo.

South of the Delta come the negroes of the Gaboon, and south of these those of Loango, Angola, and Benguela. Between this last-named country and Walvisch Bay, the type changes to that of the browner-coloured Caffres, and the Hottentots. The language changed long before—in the parts between the Gaboon and the old Calabar rivers.

I do not profess that scientific imperturbability which enables me to write about such abominations as human sacrifice, and such[III-51] follies as snake-worship, without branding them and the nations that adopt them as barbarous. They belong, however, to the darker side of the picture. The brighter gives us something better; warmth of domestic feeling, aptitude for such commercial dealings as their circumstances develop, adaptation to the habits of the European, susceptibility to the ameliorating influences both of Mahometanism and Christianity, are all negro characteristics.

We have noticed the character of the Kruman, we will now notice a negro tribe wherein an alphabet has been evolved. A man of the Vey country, to the back of Liberia, a truly negro locality, named Doala Bakara, having seen both Arabic and English books, conceived the idea of producing an alphabet for his own tongue. This idea, as he tells the story himself, haunted him in a dream, wherein he was shown a series of signs of letters. These he forgot in the morning; but remembered the impression. So he consulted his friends; and they and he, laying their heads together, coined new ones. The king of the country made its introduction a matter of state, and built a large house as a day-school. The effect of this has been, that a book in the Vey tongue has been deciphered by an English scholar, and that several Vey natives, of both sexes can read and write. The alphabet itself is a syllabarium; i.e. there is a separate sign or letter, for the different syllables of which a word consists—not for the different elementary sounds.

The darker individuals of the group before us have furnished a text upon which a general sketch of the negro population of Western Africa has been the commentary. Let us now turn to the men of the lighter complexion, and the less prominent lips. They are Fellatas, Fellatahs, or Falatiya. Sometimes they are called Fellatiya Arabs; but they have nothing to do with the Arab of Arabia except so far as they are Mahometans in creed, and somewhat light-complexioned in respect to their colour.

The metropolis of the Fellatas is Sakkatu, visited by Clapperton, from whom the following remarkable history is taken:—Towards the end of the last century a vast number of wandering pastoral tribes spread over that part of Central Africa, which is called Sudania—underwent a change in respect to the social and political organisation, which Prichard compares with that of the Arabs at the time of Mahomet. Many—but not all—of them embraced Mahometanism, and that with more than ordinary zeal and devotion. They visited the more civilised parts of Barbary, they performed pilgrimages to Mecca, they recognised in one of[III-52] their sheiks, called Danfodio, a prophet with a mission, to preach, to convert, to conquer. Under his inspiration they attacked the pagan population of the countries around—Guber to the north, and Kubbi to the south, Zamfra, Kashna, and parts of the Houssa country to the east. Their war-cry was Allah Akbar; their robes and flags white, emblematic of their purity. Kano was conquered without a blow, so was Yaouri, so was the town of Eyo or Katunga on the Niger, so was part of the Nufi or Tapua country—even the frontier of Bornou was violated.

Danfodio’s death, which took place in 1818, was preceded by fits of religious madness; not, however, before he had consolidated a great Fellatah kingdom, and become the terror to the states around. It was in vain that a portion of his conquests revolted. The present Sultan of Sakkatu, Mohammed Bello, is the most powerful prince of Africa, whether pagan or Mahometan.

Most of these Fellatas are Mahometans, some retaining their original paganism; but whether pagan or Mahometan, they are still the same people. Their features are the same, their pastoral habits the same, their language the same. This is one of the most isolated tongues of Africa; with plenty of miscellaneous, but no very definite or special affinities.

In Borgho, i. e. in the parts about Boussa, and Wawa, visited by Lander, there are two populations, one speaking a language akin to the Yoruba, one akin to the Fellatah; so that there Fellata offsets in Borgho. But here, according to Lander, they have been in the country from time immemorial. Here, too, they hold themselves as a separate people from the Fellatas of Sakkatu, dominant and powerful as that branch is, and respectable as would be the connexion. Such, at least, is Lander’s statement. Their name, too, undergoes a slight modification, and is Filani. They have neither idea nor tradition as to the origin—not at least the Filani of Borgho.

All this looks as if Borgho were the original country of the Fellata stock, the starting-point from which they spread themselves abroad, If so, their movement must have been from south to north.

But we have yet to hear the whole of their history. Under the names of Fula, Fulahs, Foule or Peule, they appear elsewhere. Where?—As far north as the Wolof (or Jolof) country—as far north as the parts between the Senegal and the desert—as far north as 17 N. L. Here between Galam and Kayor is a vast Fula district—the district of the Fulas of the Siratik. There on the south bank[III-53] of the river lie the Fulas of Foutatorro, an elevated tract of land forming the watershed to the Senegal and the Gambia.

Thirdly, far in the interior, on the high ground over which Park passed from the drainage of the Senegal to that of the Niger, is a Fula-du, or country of the Fulas, between Bambuk and Bambarra.

Fourthly, there are the Fulas to the south of Bammakoo, in the parts called Wasselah, on the Niger itself.

Fifthly, in 11 N. L., on the head-water of the Rio Grande, is the large kingdom of the Fouta-jallo Fulahs, of which Timbu is the metropolis, surrounded by dry and rocky deserts, and exposed mountain pastures, prolific with sheep, oxen, goats, and horses. Here, although the use of the plough is unknown, the occupants cultivate the soil, and exercise more than one of the mechanical arts. They forge iron and silver, weave, and tan, and support schools and mosques. To the south lies the Sulimana tribe, more or less akin to the Mandingoes. From these, Laing learnt, that the acquisition of the country about Tembu by the Fulas of Futa-jallo was an event of no great antiquity, having taken place about A.D. 1700.

There are other Fula, Fellata, and Filani localities, but an enumeration of the foregoing has been sufficient. It shows the vast space of ground covered by the population so-called. It shows, too, the difficulty of ascertaining the original mother country. Indeed, upon the whole, this is a point upon which good writers are satisfied to suspend their judgment—no one having committed himself very decidedly to a preference for one district over another.

The main facts lie in the superiority of their organisation over the ordinary negro, and their higher civilisation—this being chiefly due to their Mahometanism. There is no doubt as to either. Although, the particular shade of the particular colour which best suits the Fula is not a matter upon which authors write with unanimity; the testimony of all observers goes to the fact that, whether Filani or Fellata, Fellata or Fula, whether pagan or Mahometan, whether Sudanian or Senegambian, whether mountaineer or desert-born, the Fula is something different from the typical Negro. Sometimes his complexion is intermediate to that of the African and the Moor; sometimes he is described as being tawny, with soft hair, and lips by no means prominent: sometimes the skin is of a reddish-black, the countenances being regular. “The tribe of Fulas,” writes Golberry, “which under[III-54] the name of Foules or Peuls, have peopled the borders of the Senegal between Podhon and Galam, are black with a tinge of red or copper colour; they are in general handsome and well-made; the women are handsome, but proud and indolent.”

To the Fula-jallo Fulas the very definite and suggestive term “Red Peuls” has been applied; to which the name “Black Peuls” stands in opposition, this meaning the Fulas of the north bank of the lower Senegal.

What is our inference from these discrepancies of description—what our inference from the points of agreement? Even this[42]—that the Fula complexion varies with the physical conditions of the Fula locality. In the high and exposed tracts of Fula-jallo it is the least, in the lower levels of the parts about lake Kayor, it is most like that of the negro.

[42] For further details, see Prichard, Researches, &c., vol. ii. pp. 66-73, and 121-125.

GROUP VIII.
SOUTHERN AFRICA.—NEIGHBOURHOOD OF THE CAPE.—PORT NATAL.
A. ZULUS. (THE TALLER AND DARKER.) B. BUSHMEN. (THE SHORTER AND BROWNER.)

A. The Zulu group is taken from life—from the men lately exhibited at St. George’s Hall. The story told is the search for some lost article. When this is the case, a Fetish-man, medium-man, mystery-man, or conjuror (we may choose our name), is called in, and set upon the suspected parties, who sit round in a circle. The conjuror then works himself, like the Pythoness of the old oracles, into a state of rabid excitement, and keeps it up until he fixes upon the culprit.

Nothing is less peculiar than this practice throughout Africa—throughout, indeed, most savage countries; nor is it without its value. Writing about the same practice on the Gold Coast, an author already quoted, after stating the “superstitious rites employed by the Fetish-men for the detection of crime,” adds, “and whether it is that these people really possess such powerful influence over their wretched dupes, as to frighten into confession of his guilt the perpetrator of crime, or whether it is that they manage by their numerous spies to obtain a clue sufficient in most cases to lead to the detection of the person, is more than I can[III-55] venture to assert; but, be the means employed what they may, a Fetish-man will assuredly very often bring a crime home to the right person, even after the most patient investigation in the ordinary way has failed to elicit the slightest clue.”

The Zulus come from the part about Port Natal. They are closely allied, in language, at least, to the Kaffres—the Kaffres of the Amakosa, Amaponda, Amatembu, and other tribes, but too well known to the Cape Colonist and the English tax-payer.

They are similarly allied to the Bechuana tribes of the interior. The Bechuanas, however, are browner in colour, as is expected from their locality, which is high and dry.

The Fingoes are also an allied population.

The differences between the Proper Kaffres, the Bechuanas, the Fingoes, and the Zulus, lie within a small compass, so that the general likeness is pretty clear. But neither the differences nor the likenesses between the populations akin to the Kaffres end here.

The word (the derivation of which has been given elsewhere) has two meanings. It means, in its more limited sense, the Kaffres of Caffraria, chiefly of the Amakosa tribe, the men who have given so much trouble to the colonists. But it also has a wider or more general signification, and in this case it serves as the designation of a large family of allied populations—and a very large family—one of the largest in Africa.

The connecting link between its numerous branches is the language, of which the structure has (amongst others) the following characteristic peculiarities. Suppose that in English, instead of saying

Man’s dog, we said dan dog,
Sun’s beam—bun beam,
Father’s daughter—dather daughter,
Daughter’s father—faughter father;

in such a case we should accommodate the sound of the word in the possessive case to that with which the word in the nominative case began. And if we did this, we should assuredly do something very remarkable in the way of speech. Now the Kaffre tongues all do this. It is done by the Amakosa, the Zulu, the Fingo, the Bechuana. It is done by the languages on the western coast as far as the Cameroons, i.e., to the north of the equator—by the languages of Benguela, Angola, Congo, Loango, and the Gaboon, &c. It is done by the languages on the eastern coast as well; indeed, it was very probably done by the[III-56] language of the Moegurras. It is done, so far as we know, by all the languages of the interior south of the equator—save and except those of the Hottentot class. It is certainly done by the languages of the Great Lake Ngami.

The Kaffre division, then, is a large one; and it is based, chiefly, on similarity of language. In physical form, the range of difference is great. Some of the Kaffres are truly negro, others brown in colour, and with lips of moderate thickness. The Zulus before us certainly approach the negro.

On the other hand, more than one good writer has enlarged upon the points of contrast; and such there certainly are, if we take the more extreme forms—the typical Kaffre and typical Negro. In the latter, for instance, the skin (as aforesaid) may be brown rather than black. Then the cheek-bones may project outwards; and where the cheek-bones so project beyond a certain limit, the chin appears to taper downwards, and the vertex upwards. When this becomes exaggerated, we hear of lozenge-shaped skulls. Be this as it may, the breadth in the malar portion of the face is often a remarkable feature in the Kaffre physiognomy. This he has in common with the Hottentot. Sometimes, too, the eye is oblique; the opening generally narrow.

An opinion often gives a better picture than a description. Kaffres, that have receded in the greatest degree from the negro type, have been so likened to the more southern Arabs, as to have engendered the hypothesis of an infusion of Arab blood.

The manners of the Kaffres of the Cape are those of pastoral tribes under chieftains; tribes which, from their habits and social relations, are naturally active, locomotive, warlike, and jealous of encroachment.

It would be strange indeed if the Kaffre life and Kaffre physiognomy had no peculiarities. However little in the way of physical influence we may attribute to the geography of a country, no man ignores them altogether. Now Kaffreland has very nearly a latitude of its own; inhabited lands similarly related to the southern tropic being found in South America and Australia only. And it has a soil still more exclusively South-African. We connect the idea of the desert with that of sand; whilst steppe is a term which is limited to the vast tracts of central Asia. Now the Kaffre, and still more the Hottentot, area, dry like the desert, and elevated like the steppe, is called a karro. Its soil is often a hard, cracked, and parched clay rather than a waste of sand, and it constitutes an argillaceous table-land.

[III-57]

Their polity and manners, too, are peculiar. The head-man of the village settles disputes, his tribunal being in the open air. From him an appeal lies to a chief of higher power; and from him to some superior, higher still. In this way there is a long chain of feudal or semi-feudal dependency.

The wife is the slave to the husband; and he buys her in order that she should be so. The purchase implies a seller. This is always a member of another tribe. Hence the wish of a Kaffre is to see his wife the mother of many children, girls being more valuable than boys.

Why a man should not sell his offspring to the members of his own tribe is uncertain. It is clear, however, that the practice of doing so makes marriage between even distant relations next to impossible. To guard against the chances of this, a rigid and suspicious system of restraint has been developed in cases of consanguinity; and relations must do all they can to avoid meeting. To sit in the same room, to meet on the same road, is undesirable. To converse is but just allowable, and then all who choose must hear what is said. So thorough, however, has been the isolation in many cases, that persons of different sexes have lived as near neighbours for many years without having conversed with each other; and such communication as there has been, has taken place through the medium of a third person. No gift will induce a Kaffre female to violate this law.

B. The Bushmen, too, are taken from life, the two children being in England at the present time.

Just as the Zulu belongs to the Kaffre, the Bushman belongs to the Hottentot family—the latter family being a large one; not so large, however, as the former. The present Hottentot districts, wholly surrounded by the Kaffre, lie on the western rather than eastern side of South Africa, and extend from the parts about Valvisch Bay to the Cape; the original population of the last-named locality having become well-nigh extinct.

How has this extinction been effected? In two ways. By the European settlers of the colony—-Dutch and English, English and Dutch; by the Kaffres, who have ever spread southwards. Before these encroachments had taken effect, there were Hottentot tribes on the eastern as well as the western coast, on both sides of South Africa. Now there are none, either on the side of the Pacific, or in the parts about the Cape itself—except (of course) so far as they are mixed up with the colonial population.

[III-58]

The names (all or some) of the extinct branches of the Hottentot family are as follows:—

 1. Gunyeman, nearest the Cape.

 2. Kokhaqua, north of the Gunyeman.

 3. Sussaqua, Saldanha Bay.

 4. Odiqua.

 5. Khirigriquas, on Elephants’ River.

 6. Koopmans.

 7. Hessaquas.

 8. Sonquas, east of the Cape.

 9. Dunquas.

10. Damaquas.

11. Guariquas.

12. Honteniquas.

13. Khantouers.

14. Heykoms, as far on the north-east as Natal. Now replaced by Amakosah Kaffres.

The chief divisions still existing are the Gonaquas, the Koranas, the Namaquas (between Valvisch Bay and the Orange River), the Soun Darmup, of the Dammara Country (to the back of Valvisch Bay), and the Saabs, or Bushmen.

The Koranas are the best-shaped and best-looking of the Hottentots; the Bushmen the worst. The latter, indeed, are the starvelings of the family. They belong to the most miserable part of the Karroo, and they have neither flocks nor herds.

The Laplander of Lapland is not more strongly contrasted with his strong and sturdy neighbour of the Duchy of Finland than are the Korana and the Saab. The former are well-grown men, though of the Hottentot family. The Saabs are described as having constitutions “so much enfeebled by the dissolute life they lead, and the constant smoking of dacha, that nearly all, including the young people, look old and wrinkled; nevertheless, they are remarkable for vanity, and decorate their ears, legs, and arms with beads, and iron, copper, or brass rings. The women likewise stain their faces red, or paint them, either wholly or in part. Their clothing consists of a few sheepskins, which hang about their bodies, and thus form the mantle or covering, commonly called a kaross. This is their only clothing by day or night. The men wear old hats, which they obtain from the farmers, or else caps of their own manufacture. The women wear caps of skins, which they stiffen and finish with a high peak, and adorn with beads and metal rings. The dwelling of the Bushman is either a low wretched hut, or a[III-59] circular cavity, on the open plain, into which, at night, he creeps with his wife and children, and which, though it shelters him from the wind, leaves him exposed to the rain. In this neighbourhood, in which rocks abound, they had formerly their habitations in them, as is proved by the many rude figures of oxen, horses, serpents, &c. still existing. It is not a little interesting to see these poor degraded people, who formerly were considered and treated as little better than wild beasts in their rocky retreats. Many of those who have forsaken us live in such cavities not far from our settlement, and we have thus an opportunity of observing them in their natural condition. Several who, when they came to us from the farmers, were decently clothed and possessed a flock of sheep, which they had earned, in a short time returned to their fastnesses in a state of nakedness and indigence, rejoicing that they had got free from the farmers, and could live as they pleased in the indulgence of their sensual appetites. Such fugitives from civilised life, I have never seen otherwise occupied than with their bows and arrows. The bows are small, but made of good elastic wood; the arrows are formed of small reeds, the points furnished with a well-wrought piece of bone, and a double barb, which is steeped in a potent poison of a resiny appearance. This poison is distilled from the leaves of an indigenous tree. Many prefer these arrows to fire-arms, under the idea that they can kill more game by means of a weapon that makes no report. On their return from the chase, they feast till they are tired and drowsy, and hunger alone rouses them to renewed exertion. In seasons of scarcity they devour all kinds of wild roots, ants, ants’ eggs, locusts, snakes, and even roasted skins. Three women of this singular tribe were not long since met with, several days’ journey from this place, who had forsaken their husbands, and lived very contentedly on wild honey and locusts. As enemies, the Bushmen are not to be despised. They are adepts in stealing cattle and sheep; and the wounds they inflict when pursued, are ordinarily fatal if the wounded part is not immediately cut out. The animals they are unable to carry off, they kill or mutilate.

“To our great comfort, even some of these poor outcasts have shown eagerness to become acquainted with the way of salvation. The children of such as are inhabitants of the settlement, attend the school diligently, and of them we have the best hopes.

“The language of the Bushman has not one pleasing feature; it seems to consist of a collection of snapping, hissing, grunting, sounds, all more or less nasal. It is this language that shows that the Saab and Hottentot belong to the same family[III-60].”

We now move to the parts on the left of the entrance, and begin with the parts opposite the Zulus and Bushmen. These give us the southern parts of South America—not, however, the extreme south.

GROUP IX.
BOTOCUDOS AND PAMPA GIRL.

The word Botocudo means plugged; and it belongs to the Portuguese language. It is applied by the Brazilians to the populations of this group, from the fact of their perforating their lips and ears, and inserting pieces of wood in the openings. In their quarrels, these are torn out, and shreds of the lip or ear to which they belong left hanging. One of these quarrels described and sketched in the Travels of Prince Maximilian of Neuwied, is here represented, the faces being taken from casts in the possession of Professor Retzius, and the drawings in the Travels of Spix and Von Martius. The native name—the name by which the Botocudos designate themselves—is Engraecknung.

Their country lies to the north of Rio Janiero—between eighteen and twenty degrees N.L. It never touches the sea-coast now, whatever it may have once done. On the contrary, it lies inland, and is limited to the mountain-range called Tierra dos Aymores; wherein lie the sources of the rivers Doce and Pardo.

On each of these we find Botocudos; those of the latter having been induced to abandon, along with some of their more barbarous habits, their inveterate hostility to the Portuguese. The other still retain their original and notorious barbarism. They have ceased, however, to be formidable; though, in the sixteenth century, they carried on a destructive warfare against the settlers in the Government of Porto Seguro. They have the credit of being cannibals.

The language is peculiar, and different from the other Indians of the same range. Of these the Machacaris, the Patachos, the Camacans, the Malali, are the chief.

The girl in the bullock’s hide is one of the Pampa Indians; the face being taken from a cast of Professor Retzius.

The Pampas are vast plains to the south of the Rio Plata, destitute of trees, free from hills, and without rivers. They are traversed by innumerable herds of oxen and horses, in every stage of domestication or of wildness. The Indians, whose habits are determined by these physical conditions of the soil, are rude,[III-61] ferocious, and independent; hardy even for Indians; and very Centaurs for their skill in horsemanship. They range over the whole district between the frontier of Buenos Ayres and the western foot of the Andes of Chili.

GROUP X.
INDIANS OF THE AMAZONS.

The tribes of so vast a river as the Amazons are numerous, even if we go no further than the main stream—much more so if we look to those on its feeders.

At the same time they are fragmentary, and most imperfectly known. Neither are they free from intermixture—Spanish intermixture on the western, and Portuguese on the eastern.

All the tribes, however, illustrated by the figures before us, belong to Brazil, i.e., to Portuguese America.

Their history is that of aborigines in general; there is their period of independence, their period of oppression, their period of mitigated persecution—of reaction.

Let us look at the history of the parts about the rivers Negro and Madeira—the one joining the Amazons from the north, the others from the south.

In 1671, a company of soldiers was stationed to protect the Portuguese trade, and the foundation of the Villa da Barra de Rio Negro was laid by Antonio de Albuquerque Coelho. This was the area of the Juripixunas, or Juruuna—Indians—the Blackfaces, so called because they tattooed themselves black. These also were numerous, and not intractable; handy with their canoes, and active on the water. As many as 1000 at a time found their way to the slave-market at Pera. Sometimes they were stolen without the disguise of a quarrel—stolen, because the man-stealer was the stronger. But, at times, there was a clever piece of villany put in practice. The slave-hunter would get a cross, the symbol of his religion, lay it somewhere in the track of the Indians, look for it some days afterwards, miss it, and then make a charge of sacrilege against the Indians of the locality. Out of practices like these rose regular slave-hunting settlements, with barracoons, after the fashion of the negro slave-trade. There was the usual practice, with the usual incentives, the usual organisation, the usual wars to follow, violence, unscrupulousness, cruelty, blood. The enemy to the Indian was the trader; his best friend the priest.

[III-62]

Weapons, &c., from the Amazons.

[III-63]

When King John IV., in 1652, wished to enact a favourable code for the aborigines, the governors of Maranham and Para instigated the population of their respective governments to uproarious manifestations.

In A.D. 1661, the Jesuits were expelled; in A.D. 1679 reinstated. The interval was a time of sorrow to the Indians; the restoration a time of joy. The establishment of missions now began.

A settlement or village, Aldea, was founded in some favourable situation, and the Indians of the neighbourhood induced to put themselves under the tutelage of the resident and directorial father. They were then taught to cultivate the soil or to weave—taught as children, and, when the temper was not that of the wilder and more independent tribes, this training answered. They were also instructed in the Christian creed, the medium being the Tupi language. Their own dialects were numerous—too numerous to make the cultivation of them in detail practicable; and in each aldea the variety of such dialects was considerable, each being spoken by but a few individuals. To learn a difficult language for the sake of so few, was an unnecessary expenditure of time for the Jesuits; whilst Portuguese was a difficult language for the Indians. The surer plan, then, of taking the most prevalent Indian tongue and making it into a kind of common medium, a lingua franca, was devised. This prevalent tongue was the Tupi, and the name it took was the Portuguese one of Lingoa Geralgeneral language. Until A.D. 1757, the Lingoa Geral was used in the law-courts of Gram Parà. This state of things lasted till A.D. 1759, when the Jesuits were expelled; from Parà and Maranham as many as 112.

In 1718, the number of aldeas was as follows:—

Jesuits 19
Capuchins 15
Carmelites 5

Officers called Directors took the places of the Jesuits. In many respects their orders were those of their predecessors. They were to teach and convert; but they were also to get some work out of the Indians in the way of public service, e. g., in the arsenals as pilots, as a kind of police in the case of Indian warfare and bush-ranging. And beside these points of difference, the Tupi, or Lingoa Geral, was to be replaced by the Portuguese. In the localities where the intercourse with the whites was important, judges were appointed to settle disputes. Kidnapping however continued, and things went ill with the Indians until the separation[III-64] of Brazil from Portugal; and they have gone ill since. The Indians and the negroes form the lowest part of the not elevated population of Parà, the half-blood between them (the Indians) and the whites being called Cafusos. Both the Cafusos and the full-blooded Indians are free, but they are not flourishing. They drink and live lives of idleness. They live, in short, much as all the coloured races when the whites are in contact with them.

This prepares us for the necessity of seeking the Indian in his unmodified state on the feeders of the Amazons, rather than the main stream. Mr. Wallace has described those of the Uaupés—which falls into the Rio Negro from the west, and lie just under the equator.

He remarks upon the extent to which they are a truly unsophisticated population, and also upon the extent to which they differ from the Indians lower down, i.e., between Barra and Para, the junction of the Rio Negro and Amazons, and the mouth of that latter river. His description (founded on personal observation) is one of the best we have. I quote it freely:—“All the tribes of the Uaupés,” he writes, “construct their dwellings after one plan, which is peculiar to them. Their houses are the abode of numerous families, sometimes of a whole tribe. The plan is a parallelogram, with a semicircle at one end. The dimensions of one at Jauarité were one hundred and fifteen feet in length, by seventy-five broad, and about thirty high. This house would hold about a dozen families, consisting of near a hundred individuals. In times of feasts and dances, three or four hundred are accommodated in them. The roof is supported on fine cylindrical columns, formed of the trunks of trees, and beautifully straight and smooth. In the centre a clear opening is left, twenty feet wide, and on the sides are little partitions of palm-leaf thatch, dividing off rooms for the separate families: here are kept the private household utensils, weapons, and ornaments; while the rest of the space contains, on each side, the large ovens and gigantic pans for making caxirí, and, in the centre, a place for the children to play, and for their dances to take place. These houses are built with much labour and skill; the main supporters, beams, rafters, and other parts, are straight, well proportioned to the strength required, and bound together with split creepers, in a manner that a sailor would admire. The thatch is of the leaf of some one of the numerous palms so well adapted to the purpose, and is laid on with great compactness and regularity. The walls, which are very low, are formed also of palm thatch, but so thick and so well bound together, that neither arrow nor bullet[III-65] will penetrate it. At the gable-end is a large doorway, about six feet wide and eight or ten high: the door is a large palm-mat, hung from the top, supported by a pole during the day, and let down at night. At the semicircular end is a smaller door, which is the private entrance of the Tushaúa, or chief, to whom this part of the house exclusively belongs. The lower part of the gable-end, on each side of the entrance, is covered with the thick bark of a tree unrolled, and standing vertically. Above this is a loose hanging of palm-leaves, between the fissures of which the smoke from the numerous fires within finds an exit. In some cases this gable-end is much ornamented with symmetrical figures painted in colours.

“The furniture consists principally of maqueiras, or hammocks, made of string, twisted from the fibres of the leaves of the Mauritia flexuosa: they are merely an open network of parallel threads, crossed by others at intervals of a foot; the loops at each end have a cord passed through them, by which they are hung up. The Uaupés make great quantities of string of this and other fibres, twisting it on their breasts or thighs, with great rapidity.

“They have always in their houses a large supply of earthen pots, pans, pitchers, and cooking utensils, of various sizes, which they make of clay from the river and brooks, mixed with the ashes of the caripé bark, and baked in a temporary furnace. They have also great quantities of small saucer-shaped baskets, called ‘Balaios,’ which are much esteemed down the river, and are the subject of a considerable trade.

“Two tribes in the lower part of the river, the Tariános and Tucános, make a curious little stool, cut out of a solid block of wood, and neatly painted and varnished; these, which take many days to finish, are sold for about a pennyworth of fish-hooks.

“Their canoes are all made out of a single tree, hollowed and forced open by the cross-benches; they are very thick in the middle, to resist the wear and tear they are exposed to among the rocks and rapids; they are often forty feet long, but smaller ones are generally preferred. The paddles are about three feet long, with an oval blade, and are each cut out of one piece of wood.

Weapons, &c., from the Amazons.

“These people are as free from the encumbrances of dress as it is possible to conceive. The men wear only a small piece of tururf passed between the legs, and twisted on to a string round the loins. Even such a costume as this is dispensed with by the women: they have no dress or covering whatever, but are entirely naked. This is the universal custom among the Uaupés Indians, from which, in a state of nature, they never depart. Paint, with these people,[III-66]
[III-67]
seems to be looked upon as a sufficient clothing; they are never without it on some parts of their bodies, but it is at their festivals that they exhibit all their art in thus decorating their persons: the colours they use are red, yellow, and black, and they dispose them generally in regular patterns, similar to those with which they ornament their stools, their canoes, and other articles of furniture.

“They pour the juice of a tree, which stains a deep blue-black, on their heads, and let it run in streams all down their backs; and the red and yellow are often disposed in large round spots upon the cheeks and forehead.

“The use of ornaments and trinkets of various kinds is almost confined to the men. The women wear a bracelet on the wrists, but none on the neck, and no comb in the hair; they have a garter below the knee, worn tight from infancy, for the purpose of swelling out the calf, which they consider a great beauty. While dancing in their festivals, the women wear a small tanga, or apron, made of beads, prettily arranged: it is only about six inches square, but is never worn at any other time, and immediately the dance is over, it is taken off.

“The men, on the other hand, have the hair carefully parted and combed on each side, and tied in a queue behind. In the young men, it hangs in long locks down their necks, and, with the comb, which is invariably carried stuck in the top of the head, gives to them a most feminine appearance: this is increased by the large necklaces and bracelets of beads, and the careful extirpation of every symptom of beard. Taking these circumstances into consideration, I am strongly of opinion that the story of the Amazons has arisen from these feminine-looking warriors encountered by the early voyager. I am inclined to this opinion, from the effect they first produced on myself, when it was only by close examination I saw that they were men; and, were the front parts of their bodies and their breasts covered with shields, such as they always use, I am convinced any person seeing them for the first time would conclude they were women. We have only therefore to suppose that tribes having similar customs to those now existing on the river Uaupés, inhabited the regions where the Amazons were reported to have been seen, and we have a rational explanation of what has so much puzzled all geographers. The only objection to this explanation is, that traditions are said to exist among the natives, of a nation of ‘women without husbands.’ Of this tradition, however, I was myself unable to obtain any trace, and I can easily imagine it entirely to have arisen from the suggestions[III-68] and inquiries of Europeans themselves. When the story of the Amazons was first made known, it became of course a point with all future travellers to verify it, or if possible get a glimpse of these warlike ladies. The Indians must no doubt have been overwhelmed with questions and suggestions about them, and they, thinking that the white men must know best, would transmit to their descendants and families the idea that such a nation did exist in some distant part of the country. Succeeding travellers, finding traces of this idea among the Indians, would take it as a proof of the existence of the Amazons; instead of being merely the effect of a mistake at the first, which had been unknowingly spread among them by preceding travellers, seeking to obtain some evidence on the subject.

“Tattooing is very little practised by these Indians; they all, however, have a row of circular punctures along the arm, and one tribe, the Tucános, are distinguished from the rest by three vertical blue lines on the chin; and they also pierce the lower lip, through which they hang three little threads of white beads. All the tribes bore their ears, and wear in them little pieces of grass, ornamented with feathers. The Cobeus alone expand the hole to so large a size, that a bottle-cork could be inserted; they ordinarily wear a plug of wood in it, but, on festas, insert a little bunch of arrows.

“The men generally have but one wife, but there is no special limit, and many have two or three, and some of the chiefs more; the elder one is never turned away, but remains the mistress of the house. They have no particular ceremony at their marriages, except that of always carrying away the girl by force, or making a show of doing so, even when she and her parents are quite willing. They do not often marry with relations, or even neighbours,—preferring those from a distance, or even from other tribes. When a young man wishes to have the daughter of another Indian, his father sends a message to say he will come with his son and relations to visit him. The girl’s father guesses what it is for, and, if he is agreeable, makes preparations for a grand festival: it lasts perhaps two or three days, when the bridegroom’s party suddenly seize the bride, and hurry her off to their canoes; no attempt is made to prevent them, and she is then considered as married.

“Some tribes, as the Uacarrás, have a trial of skill at shooting with the bow and arrow, and if the young man does not show himself a good marksman, the girl refuses him, on the ground that he will not be able to shoot fish and game enough for the family.

“The dead are almost always buried in the houses, with their[III-69] bracelets, tobacco-bag, and other trinkets upon them; they are buried the same day they die, the parents and relations keeping up a continual mourning and lamentation over the body, from the death to the time of interment; a few days afterwards, a great quantity of caxirí is made, and all friends and relatives invited to attend, to mourn for the dead, and to dance, sing, and cry to his memory. Some of the large houses have more than a hundred graves in them, but when the houses are small, and very full, the graves are made outside,

“The Tariánas and Tucános, and some other tribes, about a month after the funeral, disinter the corpse, which is then much decomposed, and put it in a great pan, or oven, over the fire, till all the volatile parts are driven off with a most horrible odour, leaving only a black carbonaceous mass, which is pounded into a fine powder, and mixed in several large couchés (vats made of hollowed trees) of caxirí: this is drunk by the assembled company till all is finished; they believe that thus the virtues of the deceased will be transmitted to the drinkers.

“The Cobeus alone, in the Uaupés, are real cannibals: they eat those of other tribes, whom they kill in battle, and even make war for the express purpose of procuring human flesh for food. When they have more than they can consume at once, they smoke-dry the flesh over the fire, and preserve it for food a long time. They burn their dead, and drink the ashes in caxirí, in the same manner as described above.

“Every tribe and every ‘malocca’ (as their houses are called) has its chief, or ‘Tushaúa,’ who has a limited authority over them, principally in war, in making festivals, and in repairing the malocca and keeping the village clean, and in planting the mandiocca-fields; he also treats with the traders, and supplies them with men to pursue their journeys. The succession of these chiefs is strictly hereditary in the male line, or through the female to her husband, who may be a stranger: their regular hereditary chief is never superseded, however stupid, dull, or cowardly he may be. They have very little law of any kind; but what they have is of strict retaliation,—an eye for an eye and a tooth for a tooth; and a murder is punished or revenged in the same manner and by the same weapon with which it was committed.

“They have numerous ‘Pagés,’ a kind of priests, answering to the ‘medicine-men’ of the North American Indians. These are believed to have great power: they cure all diseases by charms, applied by strong blowing and breathing upon the party to be[III-70] cured, and by the singing of certain songs and incantations. They are also believed to have power to kill enemies, to bring or send away rain, to destroy dogs or game, to make the fish leave a river, and to afflict with various diseases. They are much consulted and believed in, and are well paid for their services. An Indian will give almost all his wealth to a pagé, when he is threatened with any real or imaginary danger.

“They scarcely seem to think that death can occur naturally, always imputing it either to direct poisoning or the charms of some enemy, and, on this supposition, will proceed to revenge it. This they generally do by poisons, of which they have many which are most deadly in their effects: they are given at some festival in a bowl of caxirí, which it is good manners always to empty, so that the whole dose is sure to be taken. One of the poisons often used is most terrible in its effects, causing the tongue and throat, as well as the intestines, to putrefy and rot away, so that the sufferer lingers some days in the greatest agony: this is of course again retaliated, on perhaps the wrong party, and thus a long succession of murders may result from a mere groundless suspicion in the first instance.

“I cannot make out that they have any belief that can be called a religion. They appear to have no definite idea of a God; if asked who they think made the rivers, and the forests, and the sky, they will reply that they do not know, or sometimes that they suppose it was ‘Tupánau,’ a word that appears to answer to God, but of which they understand nothing. They have much more definite ideas of a bad spirit, ‘Juruparí,’ or Devil, whom they fear, and endeavour through their pagés to propitiate. When it thunders, they say the ‘Juruparí’ is angry, and their idea of natural death is that the Juruparí kills them. At an eclipse they believe that this bad spirit is killing the moon, and they make all the noise they can to frighten him away.

“One of their most singular superstitions is about the musical instruments they use at their festivals, which they call the Juruparí music. They consist of eight or sometimes twelve pipes or trumpets, made of bamboos or palm-stems hollowed out, some with trumpet-shaped mouths of bark and with mouth-holes of clay and leaf. Each pair of instruments gives a distinct note, and they produce a rather agreeable concert, something resembling clarionets and bassoons. These instruments however are with them such a mystery, that no woman must ever see them on pain of death. They are always kept in some igaripé, at a certain distance from[III-71] the malocca, whence they are brought on particular occasions: when the sound of them is heard approaching, every woman retires into the woods, or into some adjoining shed, which they generally have near, and remains invisible till after the ceremony is over, when the instruments are taken away to their hiding-place, and the women come out of their concealment. Should any female be supposed to have seen them, either by accident or design, she is invariably executed, generally by poison, and a father will not hesitate to sacrifice his daughter, or a husband his wife, on such an occasion.

“They have many other prejudices with regard to women. They believe that if a woman, during her pregnancy, eats of any meat, any other animal partaking of it will suffer: if a domestic animal or tame bird, it will die; if a dog, it will be for the future incapable of hunting; and even a man will be unable to shoot that particular kind of game for the future. An Indian, who was one of my hunters, caught a fine cock of the rock, and gave it to his wife to feed, but the poor woman was obliged to live herself on cassava-bread and fruits, and abstain entirely from all animal food, peppers, and salt, which it was believed would cause the bird to die; notwithstanding all precautions however the bird did die, and the woman got a beating from her husband, because he thought she had not been sufficiently rigid in her abstinence from the prohibited articles.”

Few ethnological phenomena deserve more attention than the re-appearance of similar customs in the distant parts of the world, where, however, the physical conditions are alike.

Borneo and the Uaupés country, both are under the equator; and the same mode of building large houses for joint occupation prevails in both.

Observe, too, the use of the blow-pipe; it appears equally on the Amazons and in Borneo.

The details of the group before us are as follows:—

The tattoed and painted individual with the skull of a slain enemy on a pole, is a Mundrucu, of the River Tapajos, the most formidable, numerous, and independent of the Brazilian Indians.

When a Mundrucu has slain an enemy, he cuts off his head, extracts the brain through the occipital foramen, washes the blood away, fills the skull with cotton, and then converts the whole into a kind of mummy, by drying it before the fire. The eyes he gouges out, and he fills up the orbits with colouring matter. Thus prepared, the head is placed outside his hut. On festive occasions[III-72] it is placed at the top of a spear. Such is the history of the head of an enemy. Those, however, of friends and relations are preserved, and kept—though with certain differences of detail. Thus, on certain days dedicated to the obsequies and memory of the dead, the widow of the deceased takes his skull, seats herself before the cabin, and indulges either in melancholy lamentation, or in fierce encomium—the assembled friends meanwhile dancing round her.

The one behind is a Mura; the Muras being a numerous tribe, and from the vast extent of country over which they are spread, or rather scattered, a tribe whose number seems greater than it is. Settled habitations they have none; but, just as necessity or inclination takes them, they wander from wood to wood, from stream to stream. Taking the different divisions of them altogether, their number may amount to between 6000 and 7000 “bows,” (this “bow” meaning “fighting-man;”) the rest of the population being in proportion. This gives us from 20,000 to 30,000 persons. The lower Madeira was their original area, but the lower Madeira was vexed and harassed by tribes of the powerful and hostile Mundrucus; and the Mundrucus and Muras are ever at war with each other. At present the Mundrucus are the superior population. They are bigger in body, and they are more closely allied to the Portuguese. Indeed the Portuguese used them as a sort of military police against the Muras; who fear them so much that the presence of a single Mundrucu on board Von Martius’ canoe terrified a whole family of Muras.

The incursions, then, of the Mundrucus dispersed the Muras of the lower Madeira over vast districts on the Solimoes, and on the Rio Negro. Here they are formidable as pirates. The Muras, with their associates, the Toras (or Torayes), harass the navigation of the Amazons, where the settlers and traders know them as the Indios de Corso, and attempt their extermination accordingly. When the stream gets narrow, and the current strong, and the canoe has to labour slowly against the stream of a mighty river, the Mura places himself on the banks, and lies in wait, turé in hand. The turé is an instrument, half wood and half reed, made out of the bamboo, the transverse septum of which is pierced in its centre. Here is inserted a second piece of cane, split. The turé is heard at a considerable distance, and the watchman that blows it has a tree for a watch-tower. The turé, too, is the instrument to which they dance, and sing, and drink, at their festivals.

Less formidable than they once were, the Mura is still shy,[III-73] indocile, intractable, and impracticable as a labourer. Nothing but liquor will tempt him; and liquor tempts him but little in the way of work. He hunts skilfully, and he fishes skilfully; but he is rarely provident enough to economise the results of any successful exertions for the future. He gorges himself when he is in luck, and starves when out of it; he thinks of the passing time only.

As a general rule, the Indians of the Amazons neither respect the female sex, nor vex themselves with jealousy on account of them. The Muras are said to be exceptions. The number of wives is two or three, and of these the youngest is the favoured one. The other is little more than a domestic drudge. To win them, the Mura must have fought at fisticuffs; for a battle of this kind always takes place whenever a young lady becomes marriageable. Those who enter into the list for possession, fight, and the winner carries her off.

Their language is harsh and guttural, and their speech is accompanied with gesticulation. It is peculiar, at least it is different from the Lingoa Geral, which but few Muras understand. It has been stated that the Mundrucus are their chief enemies. Besides these there are the Mauhes, and the Catauxis—hostile also.

The use of the paricá is one of the characteristic customs of the Muras. The paricá is a powder. It is made from the dried seeds of a kind of Inga. It is a narcotic stimulating in the first instance, sedative or depressing afterwards. Once a year there is a paricá feast, where the “snuff” is indulged in to excess, and where the additional stimulants of dance, and song, and fermented liquors are superadded.

The other Indians are from the northern bank, on the frontier of Brazil and Bolivia. They cannot be said to represent any particular tribe. If they give an idea of the general character of a South American Indian of the parts in question it is sufficient. All the current descriptions are of this general character. The figures before us approach, however, the Ticunas Indians of Osculati, the nearest. Ticunas, however, is a term of a somewhat lax import; inasmuch as it means any of the Indians who use the Ticunas poison, or come from the country which produces it.

[III-74]

Weapons, &c., from the Amazons.

[III-75]

GROUP XI.
INDIANS FROM BRITISH GUIANA.

These are from casts taken from life during Sir R. Schomburgk’s expedition. All belong to the great Carib stock, and speak dialects of the widely-spread Carib language.

This is a point of importance. In Brazil the predominant language is the one alluded to under the name of Tupi—the basis of the Lingoa Geral (General Language) or Lingua Franca.

In other respects, the leading characteristics are the same, or similar; the details being more or less different. Some tribes, for instance, flatten the head, or tattoo the body; which the others do not. Some burn, others bury the dead. With the Carabisi, for instance, in ordinary cases the hammock in which the death took place, serves as a coffin, the body is buried, and the funeral procession made once or twice round the grave; but the bodies of persons of importance are watched and washed by the nearest female relations, and when nothing but the skeleton remains, the bones are cleaned, painted, packed in a basket and preserved. When, however, there is a change of habitation they are burned; after which the ashes are collected, and kept.

The Macusi, on the other hand, buries his dead in a sitting posture without coffins, and with but few ceremonies.

The Arawak custom is peculiar. When a man of note dies, his relations plant a field of cassava. They lament loudly. But when twelve moons are over, and the cassava is ripe, they reassemble, feast, dance, lash each other cruelly, and severely with whips. The whips are then hung up on the spot where the person died. Six moons later a second meeting takes place; and this time the whips are buried.

GROUP XII.
NORTH AMERICANS DANCING.

This group gives us the general character of the more typical North American Indians, rather than the details of any particular division; the chief sources being the portraits in McKennedy’s Gallery, and some well-executed daguerreotypes taken at St. Louis, and kindly placed at the disposal of the Crystal Palace Company by Mr. Fitzherbert of New York.

The prominence of the features, along with the red or copper[III-76] tinge of the skin, characterises the Americans before us. This contrasts them with the Eskimo. Their size, on the other hand, distinguishes them from the majority of the South American tribes. Nevertheless, the size decreases as we go southward; and the Eskimo configuration (along with the Eskimo habits) is approached as we move westward of the Rocky Mountains.

Nine-tenths, and perhaps a larger proportion of the Indians of the northern half of the United States are referable to one of three great groups—the Algonkin, the Iroquois, the Sioux; each of which falls into divisions and subdivisions.

I. The Algonkin is the greatest; greatest in respect to the number of its divisions and subdivisions, greatest in respect to the ground it covers, and greatest in respect to the range of difference which it embraces.

The whole of the Canadas, with one small exception, the whole of New Brunswick, Nova Scotia, Cape Breton, and Prince Edward’s Isle, was originally Algonkin, as were Labrador and Newfoundland to a great extent.

To the Algonkin stock belonged and belong the extinct and extant Indians of New England, part of New York, part of Pennsylvania, Delaware, Maryland, Virginia, part of the Carolinas, and part of even Kentucky and Tennessee.

The Pequods, the Mohicans, the Narragansetts, the Massachuset, the Montaug, the Delaware, the Menomini, the Sauks, the Ottogamis, the Kikkapùs, the Potawhotamis, the Illinois, the Miami, the Piankeshaws, the Shawnos, &c. belong to this stock—all within the United States.

The Algonkins of British America are as follows:—

1. The Crees; of which the Skofi and Sheshatapúsh of Labrador are branches.

2. The Ojibways; falling into—

a. The Ojibways Proper, of which the Sauteurs are a section.

b. The Ottawas of the River Ottawa.

c. The original Indians of Lake Nipissing; important because it is believed that the form of speech called Algonkin, a term since extended to the whole class, was their particular dialect. They are now either extinct or amalgamated with other tribes.

d. The Messisaugis, to the north of Lake Ontario.

3. The Micmacs of New Brunswick, Gaspé, Nova Scotia, Cape Breton, and part of Newfoundland; closely allied to the—

4. Abnaki of Mayne, and the British frontier; represented at present by the St. John’s Indians.

[III-77]

5. The Bethuck—the aborigines of Newfoundland.

6. The Blackfoots, consisting of the—

a. Satsikaa, or Blackfoots Proper.

b. The Kena, or Blood Indians.

c. The Piegan.

To these must be added numerous extinct tribes.

II. The Iroquois class has been larger than it is now, many of its members being extinct. It still, however, contains the Wiandots, or Hurons, of the parts between Lakes Simcoe, Huron, and Erie; the once famous and formidable Mohawks, the Senekas, the Onondagos, the Cayugas, the Oneidas, and the Tuskaroras.

III. To the Sioux class belong the Assiniboins of the Red River, and the Osages of Arkansas; tribes widely distant. It is the great Sioux to which nine-tenths of the Valley of Missouri originally belonged—Sioux, whose original hunting-grounds included the vast prairie-country from the Rocky Mountains to the Mississippi, and who again appear as an isolated detachment of Lake Michigan; Sioux, known under the names of Winebagoes, Dahcotas, Yanktons, Tetons, Upsarokas, Mandans, Minetaris, Missouris, Osages, Konzas, Ottos, Omahaws, Puncas, Ioways, and Quappas.

None of the Sioux tribes came in contact with the sea. None of them belonged to the great forest districts of America. Most of them hunt over the country of the buffalo. This makes them warlike migratory hunters; with fewer approaches to agricultural or industrial civilisation than any Indians equally favoured by soil and climate.

It is the Iroquois, the Sioux, and certain members of the Algonkin stock, upon which the current and popular notions of the American Indian, the Red Man, as he is called, have been formed.

GROUP XIII.
GREENLANDERS.

Greenland is occupied by the same family that occupies the coast of Labrador. It does more. It extends all along the northern coast of North America; all along the shores of the Arctic Sea, both east and west. It extends to Russian America, and beyond it to the other side of Behring’s Straits, and to the Aleutian Islands. Hence, there are certain members of the family to which the Greenlanders belong in Asia.

[III-78]

The general name for this is Eskimo, a word, which, like Malay and Mongol, is used in a general, as well as a particular sense. It denotes a large family, and it means the special occupants of the coast of Labrador, and the coast of the Arctic Sea.

The Eskimo is the only family common to the Old and the New World.

The large Greenland tent, with its furniture, and a canoe, is from one of the few ethnological museums in existence,—that of Copenhagen; from which it has been liberally and courteously supplied to the Crystal Palace. The details are due to the skill and care of Professor Thomsen of that capital.

[III-79]

BIBLIOGRAPHY.

1. For the Tibetans, &c., Turner’s Embassy; Works on the Himalayas, by Thomson and Hooker; Cunningham’s Ladakh.

2. The Aborigines of India, by B. Hodgson; Papers in Asiatic Researches; Transactions of the Asiatic Society; Transactions of the Asiatic Society of Bengal, &c. &c.

3, 4. Marsden’s Sumatra; Raffles’ History of Java; Craufurd’s Indian Archipelago; Papers in Journal of the Indian Archipelago; Sir James Brooke’s writings.

5. Jukes’ Voyage of Fly; McGillivray’s Voyage of Rattlesnake; The Papuans, by Windsor Earl; Works of Collins, King, Mitchell, &c.; Journal of Indian Archipelago; United States’ Exploring Expedition.

6. Travels in Abyssinia by Johnstone, Harris, Mansfield, Parkyns, &c.

7. The Negroes, &c. Medical History of the Niger Expedition, by Dr. McWilliam; On the Natives of Old Calabar, by Dr. Daniell.

8. Licshtenstein’s Travels; Galton in Journal of Geographical Society; The Caffres and Bushmen.

9, 10, 11, 12. Travels of Prince Maximilian of Neuwied, of Spix, and Von Martius; Sir R. Schomburgk, in Geographical Transactions; Wallace’s Travels on the Amazon; Squier’s Nicaragua.

13. North American Indians.—Archæologia Americana, Vol. ii.; Transactions of American Ethnological Society; Works of Schoolcraft, Squier, &c.; Smithsonean Contributions to Knowledge.

14. Papers by Dr. King on the Industrial and Intellectual character of the Eskimo, in Transactions of Ethnological Society; Accounts of the Arctic Expedition, by Parry, Ross, &c. &c.

For Ethnology in general—Prichard’s Natural History of Man, five volumes; Ditto, one volume.


The large Greenland hut, boat and furniture, kindly supplied by the Curator of the Ethnological Museum at Copenhagen (Professor Thomsen) reached us after the present pages were in print.


[III-80]

PART II.
ZOOLOGY AND BOTANY.

Animals and plants are not scattered indifferently over the earth’s surface, but are grouped together in assemblages of different kinds. The animals and plants of the British Isles, for example, are wholly distinct from those of the West Indies, and these again from the East Indian kinds. Naturalists, after a long study of the distribution of organised beings, have been enabled to divide the earth’s surface into provinces, each characterised by its peculiar set of inhabitants. The assemblage of organised beings in each province exhibits, when viewed en masse, a general aspect, or facies, independent of its being composed, in part, of kinds of creatures different from those found in any other province. This facies depends on combinations of colour, sculpture, texture, and often minute and insignificant characters, when regarded separately, but when presented in coordination, becoming of importance through their constancy and their influence in determining the leading features of a fauna or flora, or both combined. Even when comparatively few of the characteristic animal and vegetable types of a province are brought together, within a limited space, some notion may thus be conveyed to the spectator of the facies, or aspect of life in that region. This has been attempted in the arrangement of the Geographical Garden in the Crystal Palace.

Organised beings are distributed over the earth and in the sea horizontally and vertically. On their horizontal distribution depend their geographical life-provinces; on their vertical distribution, their arrangement in altitudinal and bathymetrical zones or belts. If we ascend any high mountain, we rise through successive belts of vegetation, each frequented by its favourite form of animal life. We are reminded during our ascent of the successive faunas and floras that we should pass amongst, were we proceeding from the mountain’s base to the pole. If the mountain be sufficiently high, we at length reach a region where all life ceases. So likewise in the sea—if we explore the depths of ocean, and commence our examination on the borders of the shore, we shall find that the animal and vegetable population of the waters are not dispersed indifferently through their depths, but occupy successive[III-81] levels, or zones. If we go deep enough, vegetable life first disappears, and animal species become so few, comparatively, that we cannot but conclude that we are approaching a point beyond, or rather below which all is desert.

As yet, no attempt has been made in the Crystal Palace to display the zones of altitude, though it is quite possible to do so, by means of a miniature mountain encircled by belts of alpine vegetation, amid which the characteristic animals of the zones might be placed in relative order of elevated dwelling-places. This may be looked forward to, as a worthy object for carrying out hereafter. A slight and partial indication of the phenomena of distribution of marine animals in depth, is exhibited in cases representing the sea-population of a few regions; especially the British, the West Indian, and Australian seas. In these the spectator will observe that the law of distribution in provinces holds good among marine animals as among terrestrial. And if we regard the peculiar features of the contents of the West Indian case, contrasting it with that filled with British sea-animals, a striking example of the difference of facies, or general aspect, in a temperate province as contrasted with a tropical one, is too evident not to attract our notice. Differences of the same kind are displayed in the contrasts of form and colour presented by the birds of different regions, inclosed in the cases placed at intervals among the plants, and always in connection with the other illustrations of the portions of the globe to which they belong.

EASTERN OR OLD WORLD.

The Boar-hunt, one of the relics of the Great Exhibition of 1851, placed beyond this Court, must be accepted as a type of Europe—a region so familiar to all, that no space has been spared for its fuller illustration. The Old World Court is consequently devoted to African and Asiatic illustrations. The several provinces of Africa are fairly typified, but those of Asia, great and important though they be, have, for the present, an inadequate share of space assigned.

The southernmost portion of this Court is occupied by the south extremity of Africa; to this we pass southwards through the northern African provinces of Egypt and Barbary, brought into unavoidable proximity with the tropical countries of Asia. Central and Eastern Africa follow, the latter having affinities with Asia through Arabia.

[III-82]

The visitor when beside the North African section of the Court must suppose the proximity of Southern Europe, and by doing so, bear in mind the close affinity that exists between the mass of vegetation that he then sees around him, and the floras of Italy and Spain.

CENTRAL ASIA.

The yak and Ovis Ammon stand as representatives of the central regions of Asia. The former is a characteristic animal of Tibet, and does not thrive except at high elevations. Here, too, is placed the Bactrian camel. The vegetation among which these animals are grouped is mainly Himalayan, and may be regarded as representing the flora of the verge of this great province.

Beyond the northern bounds of the Central Asiatic region, we pass rapidly amid European types, mingling, as we proceed eastwards, with Boreal American forms. The vegetation, like the animal life, puts on a mixed aspect, and one of a transatlantic character. In the main, the Siberian fauna and flora are linked with those of eastern Europe.

The arctic portion of Asia presents the characteristic assemblage of polar animals, white bears, seals, walruses, narwhals, dolphins, gulls, and cormorants, whilst along the shores range reindeer, arctic foxes, lemmings, ptarmigans, and snowy owls; more inland, wolves and otters, with fur-bearing animals abound. This is the linking region of the Old and New Worlds.

INDIA.

The group of the Tiger-hunt indicates some of the zoological features of the low country and jungles of India and the warm regions of Asia. The tiger is indeed one of the most characteristic animals of the Tropical Asiatic provinces, as is also the Indian elephant. The one-horned rhinoceros, the Indian hyæna, humped oxen of various kinds, a few peculiar deer, the scaly ant-eater, the bonnet-monkey, the Hoonuman (Semnopithecus entellus), and the wanderoo, are all well-marked and conspicuous Indian mammals. Some of the larger quadrupeds are common to Europe and Africa. The birds of India are numerous, and often very beautiful.

By bamboos and orange-trees, and a few forms of vegetation capable of cultivation under the conditions and within the space of our Garden, a very slight indication indeed is afforded of the general Indian flora. But in the back-ground of the[III-83] Indian group, the rich assemblage of Indian rhododendrons and azaleas, the Juniperus recurva and the Ficus elastica, serve to represent one of the most beautiful floras in the world, that of the mountain ranges of India, whilst on its eastern-side, camellias, tea-plants, Carphon laurels, and magnolias exemplify the change in Asiatic vegetation with the great Chinese province.

NORTH AFRICA.

The portion of this continent, north of Sahara, west of the Libyan desert, and including the chains of the Atlas, is clothed with a very different vegetation, and peopled by a distinct set of land animals from those occupying the greater and more characteristic African regions. In many respects, it has more affinity in its natural history and features with the southern countries of Europe, especially Spain and Sicily, than with Africa. Even its most characteristic mammal, the Barbary ape, has apparently an indigenous stronghold in Gibraltar. The wild boar, genet, porcupine, and fallow deer, the last alone of its tribe in Africa, indicate European affinities, whilst southern relations are marked by a few forms of antelope and by the lion. Some small rodents are peculiar. The traveller passing from temperate Europe to Barbary, sees in the domesticated camel and many plants—the date-palm, the opuntia, and the agave—distinguishing and peculiar features of its landscape; yet none of these is an original native of the region. Even the date-palm belongs properly to the countries south of the Atlas. The truly characteristic plants—such as the carob, fig, and palmetto, are all of Mediterranean types and South European forms. The sea that separates Europe and Africa has an uniform population nearly throughout; and, in the main, is not more than a colony of the Atlantic.

NORTH-EASTERN AND EASTERN AFRICA.

Egypt is a truly African province, and is linked by many of its productions with Nubia, Abyssinia, and the countries that border on the Indian Ocean. The crocodile and the hippopotamus, now confined to the higher portions of the Nile, are essentially African types. The fishes of the Nile have close affinities with those of the rivers of the Senegal streams. Among them the polypterus is remarkable for its approach to the ancient and extinct forms of ganoids. From Sennaar, southwards, we find the elephant and one-horned rhinoceros. Monkeys, species of Cercopithecus, occur in the same region.

[III-84]

In the highlands of Shoa, the undulating surfaces of the table-lands are covered with green bushes of euphorbia; lions and hyænas are common. In the lower country of the Danakils, palms abound, with acacias and aloes; and the wart-hog, small antelopes and guinea-fowls, are among the animals. Crocodiles and hippopotami haunt the streams and marshes. On the plains are the Koodoo antelope and zebra; ostriches are hunted below the Galla country, and leopards and buffaloes abound.

Taking the vegetation from the north southwards, not a few conspicuous plants are distinctive of successive districts; thus, the date-palm, the papyrus, and the bean of Pythygoras may be cited for Egypt Proper; the doom, the coffee, and acacias to the more southern provinces. Some curious affinities with South African vegetation are indicated by Abyssinian species of pelargonium and protea.

There is a close relationship between the natural history of the Eastern African region and that of Arabia; so near, indeed, that in many respects we may regard these provinces as subdivisions of one great region. Many of the most striking plants are common to both, and the same may be said of not a few characteristic animals. The Red Sea, that separates them, proves, when its animal and vegetable inhabitants are explored, to be only a colony of the great Indian Ocean marine province, the most extensive of all the natural-history regions of the ocean, and the most varied in its contents. These are remarkable for brilliancy of colouring and beauty or singularity of shape and sculpture, as well as for the richness of the fauna in the number of generic and specific types.

WESTERN AFRICA.

Western Africa within the tropics constitutes in many respects one vast natural-history province, extending far into the interior and towards the eastern coasts. This wide-spreading region is capable of being subdivided, and the steaming districts along the coast from Senegal to Congo present numerous peculiarities that are not seen in the inland portions. These latter again vary considerably in features of surface, and the animal and vegetable population must change more or less accordingly. But throughout this portion of the African continent there range not a few of the large quadrupeds, and doubtless of the smaller ones and other tribes along with them. The African elephant, the hippopotamus, the two-horned rhinoceros, the phascochœrus, or wart-hog, the lion and the jackal, are examples; although the Great Desert cuts[III-85] off the range northwards of several of them. Among birds, the ostrich and the Vultur kolbii are instances.

The most conspicuous zoological peculiarities of this region are manifested by quadrumanous and edentate quadrupeds. This is a country of monkeys, and of very remarkable ones. The thumbless apes (Colobus) are concentrated here. The various herds of Cercopithecus are chiefly members of this region: the mandrills are all belonging to it, and the baboons abound. The African orang-outang is a native of Guinea; and three species of chimpanzee are found on the same line of coast.

The edentata of this region are confined to the countries in the neighbourhood of the coast, and though few are highly peculiar. There are species of the genus Manis, the scaly ant-eater, or pangolin. In the presence of these extraordinary quadrupeds along the western shores of Africa we seem to have a relation with the New World shadowed out; one that is also indicated by a few analogies among the plants. At the same time, by similar indications, a relationship of analogy with the Indian region may be traced. Thus, there are curious resemblances between the flora of Congo, that of India, and of the islands of the Indian Ocean. These similitudes are the more remarkable since the physical features of the country between the western and eastern coasts are such as scarcely to admit of any continuity of like vegetation or animal population. With the flora of South Africa that of the west has but very slight connection.

A number of antelopes, though as we go northwards the species are less numerous, manifest the distinguishing feature of the group of African ruminants. In our group the harnessed and Isabella antelopes typify this character.

The vegetation of intertropical Africa varies considerably in different districts, on account of the striking difference in the mineral constitution of the soil, and the elemental peculiarities of the seaward and inland districts. Palms of several kinds are abundant along the coast countries, and among them the most prominent is the Elais guiniensis, a palm-oil species. As a group, however, although playing so prominent a part in the West African landscape, the number of kinds of palm is small, when compared with the vast number of individuals. The Pandanus candelabrum, one of the screw-palms, is a conspicuous tree. Mangroves clothe the sides of swamps and the deltas of rivers. Towards the inner country the great Adansonia digitata or Baobab, the largest tree in the world, becomes frequent, and ranges westwards to the boundaries[III-86] of Abyssinia. The great tree-cotton, or Bombax, is also characteristic. Among the herbaceous plants that range along the western coasts of Africa, one of the best known and prettiest is the Gloriosa superba. Cinchoniaceæ and Malvaceæ are among the tribes of plants that attain a considerable development.

SOUTH AFRICA.

There are few tracts of land on the earth’s surface so distinctly marked by zoological and botanical peculiarities, and by a striking aspect of fauna and flora as South Africa. Its mountains—and they attain considerable elevation, as much as 10,000 feet in some instances—its low grounds, sandy plains, and deserts called Karoos, if not everywhere adorned with a luxuriant vegetation, are singularly prolific in remarkable and interesting plants, and are the resorts of numerous quadrupeds, many of them of considerable dimensions. In its mammalia and its flowering plants we recognise the prominent and distinctive natural-history characteristics of the region.

One baboon, Cynocephalus porcarius, and a Cercopithecus, are the only monkeys of the Cape region, and though peculiar as species, are rather to be regarded as links of the fauna of the South African with the general fauna of Africa. In this light, too, must the carnivora be regarded, although numerous and prominent; for the most conspicuous, the lion for example, are common to a vast extent of the African continent. The hyæna genus, however, may be regarded as having its metropolis in this province. Some of the conspicuous pachyderms also appertain to the general African group, such as the elephant, the hippopotamus, the two-horned rhinoceros, the Ethiopic hog, and the zebra. Here is the country of the gnoos and other antelopes, of quaggas, lions following in the track; some of the antelopes may be seen in herds of hundreds.

Here we are out of the region of palms; nor are large trees of any kind very distinctive of the South African flora. There are no vast forests, arborescent plants are scarce, but instead, there are great tracts of bush, composed, in the Caffrarian districts, for the most part of succulent and thorny shrubs; leafless columnar euphorbias, some of them shaped like great candelabra and occasionally towering to thirty or forty feet, and fleshy aloes with threatening weapon-like leaves and tall standards of handsome flowers, give a strange and bizarre aspect to the Bush-country vegetation, and cover with prickly thickets the steep sides of the ravines that furrow and separate the long flat ridges of hills. Here grow the Zamia[III-87] horrida, the crane-like Strelitzia, prickly kinds of acacia, everlasting-flowers in great variety, and ice-plants. One of the latter, the Mesembryanthemum edule, or Hottentot fig, is the only native fruit, and a bad one at best.

The mention of Cape plants at once suggests to the lover of flowers a number of beautiful natives of the South African region: Cape lilies, various sorts of corn-flags, ixias, lobelias, oxalidiæ, peculiar orchids, pelargoniums, diosmeas, polygalas, and heaths, of the last in wondrous variety. The curious little pachydermatous quadruped, Hyrax capensis, is a specific peculiarity; so also is the quagga. It is the group of the hollow-formed ruminants that give the grand distinguishing feature to the South African fauna. The beautiful family of antelopes attains its maximum here, nearly one half of the total number of species being South African. The gnoo, the eland, the harte-beest and spring-bok, are some of those most familiar on account of their dimensions or beauty: the abundance of antelopes compensates for the absence of deer. The Cape buffalo (Bos caffer) is another distinctive ruminant; and the giraffe, though ranging far to the north, is a conspicuous member of the southern fauna. The sand-flats around the Cape are bored by peculiar moles of the genus Bathyergus, and one of the most curious of African animals, the Cape ant-eater, Orycteropus capensis, one of the few members of its order existing in the Old World, is confined to the province from which it derives its specific appellation. The ornithological peculiarities of the Cape are not so striking.

Many of the animals mentioned are now becoming scarce, or to be seen only far in the interior. The elephant, rhinoceros, and hippopotamus are rapidly disappearing through the persecution of the hunter. On the high open table-lands of the interior immense multitudes of quadrupeds congregate especially; and the proteaceæ, equally distinctive of this flora, abound most in the western districts of the colony, and are especially numerous on the sandy plains. One of the most beautiful of orchids, the famous Disa grandiflora, is a plant of Table Mountain. Among remarkable plants may be mentioned, the waxberry, Myrsia cordifolia, a shrub, the berries of which are thickly coated with wax; and the well-known monstrous-looking Testudinaria elephantipes. The much-cultivated and familiar great White Arum, Calla Æthiopica, is common in wet places.

It is worthy of note, that whilst the animals, both quadrupeds and birds, of South Africa have many relations with those of Western Africa within the tropics, the plants belong to completely[III-88] a different series, and are connected with the flora of the rest of Africa only by eastern relations. In some features of the flora there is a curious analogy manifested with the Australian types.

The coasts of the Cape have a marine population as peculiar and striking in their way as the terrestrial, and constitute a well-marked sea-province, the eastern limits of which are to the south of Natal, where the great Indo-Pacific region meets that of the Cape. Among shell-fish, the limpet tribe has its chief congregation of species here.

WESTERN OR NEW WORLD.
ANTARCTIC AMERICA.

We enter the New World by the cold regions of the extreme south—the home of penguins. Here we find forms of animal and vegetable life representative of those that inhabit the Arctic regions and their borders. The most southerly arborescent vegetation is seen in Hermit Island near Cape Horn, where stunted forests of antarctic and evergreen beeches grow. The same phenomenon is exhibited of multiplication of individuals and paucity of species to which attention will be called in the notice of the extreme north. The southernmost of all flowering plants is a grass, the Aira antarctica, a native of the South Shetland islands.

SOUTHERNMOST REGIONS.

By the Chilian auraucarias, the fuchsias, calceolarias, and petunias, some of the peculiar features of the vegetation of the southernmost regions of South America are indicated. Many of our most beautiful and familiar garden plants come from these provinces. In the high regions of the Andes of Chili, as well as further towards the equator, lives the chinchilla, famous for its fur, at an elevation of between 12,000 and 14,000 feet—guinea-pigs are found of peculiar kinds, and the llama, which ranges to a height of 1800 feet.

TROPICAL SOUTH AMERICA.

The rich regions of Brazil and Tropical America are typified by some of their most characteristic vegetable forms, and by not a few of the most striking members of their mammalian fauna, as well as birds of exquisite hues and strange shapes. Among the latter, the toucans and humming birds are singularly striking. This is the great central home of the New World monkeys, contrasting with and representative of those of the Old World, but constituting[III-89] an entirely distinct group. Their nostrils placed far apart and flattened, the number of their teeth, and the prehensile tail,—a fifth hand,—with which so many of them are endowed, give them an aspect very different from their relatives over the Atlantic. In the vast forests of Brazil they revel among the palms, Barringtonias and monkey pots, whilst, on the ground below, the giant ant-eater, and many another creature equally strange, prowls around the shade. The jaguar, puma, and ocelot, which take the place of the great cats of the Old World, the agouti and capabara, the sloth and coati-mundi, all present themselves in this compartment. The American tapir is here, and in the more western portions of the ground, are placed crochet-deer, and the Rhea americana, the ostrich of the west. The llama marks the region of the Andes, and in the New World represents the camel of the Old.

CENTRAL AMERICA.

Birds of beautiful plumage, and vegetation of singular and fantastic forms, mark the separating region of Central America. The cactus tribe of plants, the yuccas, and the great aloe or rather agave give a peculiar and striking aspect to this region. Yet of the larger forms of animal life there is little to display. Before long we may show the strange sea-cow, or manatee, as coming within the bounds of this province, and a glance at the West Indian marine case will serve at once to indicate the richness and beauty of the fauna of seas and shores. The number and curious variety of its sponges, the elegance and rich painting of its shell-fish, the odd shapes of its fishes, and the presence of striking forms of reef-building corals, all, however, different from those of the Indian seas, cannot fail to impress its peculiarities on the thoughtful visitor.

Along the southern verge of this province is the country of that most exquisite of water-lilies, the great Victoria: on secluded lakes, among luxuriant forests, and in the reaches of the mighty rivers that flow tranquilly among them, this beautiful plant flourishes indigenous.

TEMPERATE NORTH AMERICA.

Between the Central and the Arctic Provinces are the wooded regions of North America, where the vegetation of Canada passes into that of the United States, and is bounded on the western side by Oregonian fauna. A wide range has to be illustrated in a small space, and we are obliged to bring together in close proximity[III-90] the countries of the pines and the palmettos. The Canadian porcupine, Wapiti deer, elk, beaver, raccoon, Virginian opossum, and Virginian deer stand here as representatives for the States and neighbouring countries. Shrew moles (Scalops aquaticus), starnoses (Condylura cristata), musk-rats, bony pikes and limuli would be effective additions, and highly characteristic. The fauna and flora of the United States, though in great part peculiar, are in many of their members curiously representative of the vegetable and animal life in the corresponding portion of the Old World; in not a few instances form replaces form. At the same time, the differences are not to be overlooked, and in the presence of the opossum, of some of the fishes and certain invertebrate animals, we seem to have indications of claims to a superior antiquity on the part of the so-called New, over the boasted Old World.

BARREN GROUNDS.

The Barren grounds that skirt the polar regions of North America, and which include the country to the east of the Rocky Mountains, and north of the great lakes, constitute a region of low hills with rounded summits, and more or less precipitous sides, separated by narrow valleys. They are bare of trees, except near the margins of larger rivers; a few stunted willows, dwarf birches and larches, are occasionally met with, but the greater part of the surface is covered with lichens only. The brown bear, the glutton, the ermine, the Canadian otter, the wolf, the zibet, the arctic hare, the reindeer, and the musk-ox, are characteristic quadrupeds. Between this district and the northern shores of Lake Superior is a belt of wooded land, where the elk, squirrel, beaver, &c., occur. On the prairie lands that belong to the next section are the great bison or American buffalo, peculiar deer, and the grisly bear. Towards the west, and along the Rocky Mountains are found the American goat (only on the highest ridges), and the pretty prong-horned antelope. The distribution of most of these large animals is determined by the vegetation, and that in a great measure by the disposition of the water-sheds.

ARCTIC REGIONS.

To realise our conceptions, we ought, before quitting the Geographical Garden from the north, to find ourselves surrounded by masses of ice and snow. Let us picture in our minds long lines of hoary coasts, the dark rock occasionally breaking through its[III-91] frosty covering, the deep green waves tossing masses of ice, and bearing up towering and fantastic icebergs, whose cleft and cavernous sides are beautiful with intense blue shadows. Great whales sport among the waters, their black masses, here and there, breaking the monotony of colours. Myriads of glancing jellyfishes, iridescent beroes, and pearly molluscs, give animation to the transparent waters. Flocks of sea-birds fly in every direction, watching the fishes that supply them with abundant food; seals rest on the icy platform, and nearer the land the great white bear, beautiful as strong, prowls along the verge of the shore. A scene such as this cannot be realised ever at Sydenham, but we can indicate some few of its characteristic elements. The imagination of intelligent visitors must supply the rest.

The Arctic Province is represented only in one geographical Court, that of the Western or New World. The one indication must serve for all the regions that border the icy seas. Indeed there is no forcing in this arrangement, for the entire Arctic fauna is characterised by prevailing monotony. Myriads of individuals of the prevailing species, mostly dull in hue, or at least deficient in brilliant colouring, whether they belong to the earth, the air, or the sea, compensate for the paucity of different kinds. White and grey, in the air; dull browns in the sea, are the prevailing tints. Some bright flowers during the summer season, break the modest rule by their gaiety. Throughout the icy seas, from Greenland round by Spitzbergen to Behring’s Straits, and along the labyrinthine coast of Asiatic America to Greenland again, the same marine animals are diffused. This is the region of the salmon genus, all the species of which radiate, as it were, around the Arctic province.

By the polar bears and a group of Arctic birds an indication of this northernmost of faunas is afforded. The various foxes of the Arctic shores, the dogs of the Esquimaux, the walrus with its human head, whalebone and finner whales, were their bulk admissible, would fill up the group with more completeness. The reindeer serves to indicate the boundary of the province, and stands as a representative of the verge of these realms of ice and snow.

AUSTRALIA AND INDIAN ISLANDS.

The vegetation and much of the animal population of the Indian islands, both on the land and in the sea, constitute a passage between[III-92] the floras and faunas of Asia, and those so exceedingly peculiar, when regarded apart, of Australia. The group of islands connected with New Guinea—mountainous, forest-clothed, hot and moist in their climate—especially exhibit this passage. Spice-trees and numerous forms of palms mark differences; the presence of casuarinæ, gum-trees, and melaleucas, resemblances. A few species of Australian types are highly suggestive of the same relation.

The ourang, the Malay tapir, and bears, and the flying-squirrels, with a rich array of birds, illustrate the zoology of the Indian Archipelago; while that of Australia and Tasmania are indicated by the kangaroos, duck-billed platypus, Tasmanian wolf, and echidnas, with many of the singular and strangely peculiar birds of this most remarkable zoological province, where we seem to have the lowest conditions of the vertebrate type, assembled as if to indicate a rudimentary stage in the world’s history. The vegetation—typified here by Banksias and other proteaceous shrubs, epacridiæ, gum-trees, and many more forms as striking and peculiar—indicates a corner of the earth set apart.

BRADBURY AND EVANS, PRINTERS, WHITEFRIARS.


[III-93]

GEOLOGY AND INHABITANTS OF THE ANCIENT WORLD
THE EXTINCT ANIMALS RESTORED BY B. WATERHOUSE HAWKINS. F.G.S. F.L.S.

PUBLISHED FOR THE CRYSTAL PALACE LIBRARY, BY BRADBURY & EVANS. 11, BOUVERIE ST.

Large plan.

GEOLOGY AND INHABITANTS
OF THE
ANCIENT WORLD.

DESCRIBED BY
RICHARD OWEN, F.R.S.

Line

THE ANIMALS CONSTRUCTED BY B. W. HAWKINS, F.G.S.

Seal

CRYSTAL PALACE LIBRARY,
AND
BRADBURY & EVANS, 11, BOUVERIE STREET, LONDON.
1854.


BRADBURY AND EVANS,
PRINTERS TO THE CRYSTAL PALACE COMPANY,
WHITEFRIARS.


CONTENTS.

Line
PAGE
INTRODUCTION 5
THE SECONDARY ISLAND 7
CHALK FORMATION 9
THE MOSASAURUS 10
THE PTERODACTYLE 11
WEALDEN FORMATION 14
THE IGUANODON 14
THE HYLÆOSAURUS 17
OOLITE FORMATION 19
THE MEGALOSAURUS 19
PTERODACTYLES OF THE OOLITE 22
TELEOSAURUS 22
LIAS FORMATION 25
ENALIOSAURIA 25
THE ICHTHYOSAURUS 25
ICHTHYOSAURUS PLATYODON 29
ICHTHYOSAURUS TENUIROSTRIS 30
ICHTHYOSAURUS COMMUNIS 30
PLESIOSAURUS 31
PLESIOSAURUS MACROCEPHALUS 31
PLESIOSAURUS DOLICHODEIRUS 32
PLESIOSAURUS HAWKINSII 33
NEW RED SANDSTONE 35
BATRACHIA 35
LABYRINTHODON SALAMANDROIDES 36
LABYRINTHODON PACHYGNATHUS 38
DICYNODON 38

[IV-5]

Geological Islands

GEOLOGY AND INHABITANTS OF THE ANCIENT WORLD.

Line

INTRODUCTION.

Before entering upon a description of the restorations of the Extinct Animals, placed on the Geological Islands in the great Lake, a brief account may be premised of the principles and procedures adopted in carrying out this attempt to present a view of part of the annual creation of former periods in the earth’s history.

Those extinct animals were first selected of which the entire, or nearly entire, skeleton had been exhumed in a fossil state. To accurate drawings of these skeletons an outline of the form of the entire animal was added, according to the proportions and relations of the skin and adjacent soft parts to the superficial parts of the skeleton, as yielded by those parts in the nearest allied living[IV-6] animals. From such an outline of the exterior, Mr. Waterhouse Hawkins prepared at once a miniature model form in clay.

This model was rigorously tested in regard to all its proportions with those exhibited by the bones and joints of the skeleton of the fossil animal, and the required alterations and modifications were successively made, after repeated examinations and comparisons, until the result proved satisfactory.

The next step was to make a copy in clay of the proof model, of the natural size of the extinct animal: the largest known fossil bone, or part, of such animal being taken as the standard according to which the proportions of the rest of the body were calculated agreeably with those of the best preserved and most perfect skeleton. The model of the full size of the extinct animal having been thus prepared, and corrected by renewed comparisons with the original fossil remains, a mould of it was prepared, and a cast taken from this mould, in the material of which the restorations, now exposed to view, are composed.

There are some very rare and remarkable extinct animals of which only the fossil skull and a few detached bones of the skeleton have been discovered: in most of these the restoration has been limited to the head, as, for example, in the case of the Mosasaurus; and only in two instances—those, viz., of the Labyrinthodon and Dicynodon—has Mr. Hawkins taken upon himself the responsibility of adding the trunk to the known characters of the head, such addition having been made to illustrate the general affinities and nature of the fossil, and the kind of limbs required to produce the impressions of the footprints, where these have been detected and preserved in the petrified sands of the ancient sea-shores trodden by these strange forms of the Reptilian class.

With regard to the hair, the scales, the scutes, and other modifications of the skin, in some instances the analogy of the nearest allied living forms of animals has been the only guide; in a few instances, as in that of the Ichthyosaurus, portions of the petrified integument have been fortunately preserved, and have guided the artist most satisfactorily in the restoration of the skin and soft parts of the fins; in the case of other reptiles, the bony plates, spines, and scutes have been discovered in a fossil state, and have[IV-7] been, scrupulously copied in the attempt to restore the peculiar tegumentary features of the extinct reptiles, as e.g. in the Hylæosaurus.

In every stage of this difficult, and by some it may be thought, perhaps, too bold, attempt to reproduce and present to human gaze and contemplation the forms of animal life that have successively flourished during former geological phases of time, and have passed away long ages prior to the creation of man, the writer of the following brief notice of the nature and affinities of the animals so restored feels it a duty, as it is a high gratification to him, to testify to the intelligence, zeal, and peculiar artistic skill by which his ideas and suggestions have been realised and carried out by the talented director of the fossil department, Mr. Waterhouse Hawkins. Without the combination of science, art, and manual skill, happily combined in that gentleman, the present department of the Instructive Illustrations at the Crystal Palace could not have been realised.

The Secondary Island.

The most cursory observation of the surface of the earth shows that it is composed of distinct substances, such as clay, chalk, lias, limestone, coal, slate, sandstone, &c.; and a study of such substances, their relative position and contents, has led to the conviction that these external parts of the earth have acquired their present condition gradually, under a variety of circumstances, and at successive periods, during which many races of animated beings, distinct both from those of other periods and from those now living, have successively peopled the land and the waters; the remains of these creatures being found buried in many of the layers or masses of mineral substances, forming the crust of the earth.

The object of the Islands in the Geological Lake is to demonstrate the order of succession, or superposition, of these layers or strata, and to exhibit, restored in form and bulk, as when they lived, the most remarkable and characteristic of the extinct animals and plants of each stratum.

The series of mineral substances and strata represented in the[IV-8] smaller island have been called by geologists “secondary formations,” because they lie between an older series termed “primary,” and a newer series termed “tertiary:” the term “formation” meaning any assemblage of rocks or layers which have some character in common, whether of origin, age, or composition.[43]

[43] Lyell, “Manual of Elementary Geology.”

Following the secondary formations as they descend in the earth, or succeed each other from above downwards, and as they are shown, obliquely tilted up out of their original level position from left to right, in the Secondary Island, they consist: 1st, of the Chalk or Cretaceous group; 2nd, the Wealden; 3rd, the Oolite; 4th, the Lias; and 5th, the New Red Sandstone.

[IV-9]

THE CHALK.

The chalk formations or “cretaceous group of beds” include strata of various mineral substances; but the white chalk which forms the cliffs of Dover and the adjoining coasts, and the downs and chalk quarries of the South of England, is the chief and most characteristic formation. Chalk, immense as are the masses in which it has been deposited, owes its origin to living actions; every particle of it once circulated in the blood or vital juices of certain species of animals, or of a few plants, that lived in the seas of the secondary period of geological time. White chalk consists of carbonate of lime, and is the result of the decomposition chiefly of coral-animals (Madrepores, Millepores, Flustra, Cellepora, &c.), of sea-urchins (Echini), and of shell-fishes (Testacea), and of the mechanical reduction, pounding, and grinding of their shells. Such chalk-forming beings still exist, and continue their operations in various parts of the ocean, especially in the construction of coral reefs and islands.

Every river that traverses a limestone district carries into the sea a certain proportion of caustic lime in solution: the ill effects of the accumulation of this mineral are neutralised by the power allotted to the above-cited sea-animals to absorb the lime, combine it with carbonic-acid, and precipitate or deposit it in the condition of insoluble chalk, or carbonate of lime.

The entire cretaceous series includes from above downwards:

Maestricht beds of yellowish chalk.

Upper white chalk with flints.

Lower white chalk without flints.

Upper green-sand.

Gault.

Lower green-sand and Kentish rag.

The best known and most characteristic large extinct animal of the chalk formations is chiefly found in the uppermost and most recent division, and is called

[IV-10]

No. 1.—The Mosasaurus.
(Mosasaurus Hoffmanni, Hoffmann’s Mosasaur.)

Of this animal almost the entire skull has been discovered, but not sufficient of the rest of the skeleton to guide to a complete restoration of the animal. The head only, therefore, is shown, of the natural size, at the left extremity of the Secondary Island.

The first or generic name of this animal is derived from the locality, Maestricht, on the river Meuse (Lat. Mosa), in Germany, where its remains have been chiefly discovered, and from the Greek, word sauros, a lizard, to which tribe of animals it belongs. Its second name refers to its discoverer, Dr. Hoffmann, of Maestricht, surgeon to the forces quartered in that town in 1780. This gentleman had occupied his leisure by the collection of the fossils from the quarries which were then worked to a great extent at Maestricht for a kind of yellowish stone of a chalky nature, and belonging to the most recent of the secondary class of formations in geology. In one of the great subterraneous quarries or galleries, about five hundred paces from the entrance, and ninety feet below the surface, the quarrymen exposed part of the skull of the Mosasaurus, in a block of stone which they were engaged in detaching. On this discovery they suspended their work, and went to inform Dr. Hoffmann, who, on arriving at the spot, directed the operations of the men, so that they worked out the block without injury to the fossil; and the doctor then, with his own hands, cleared away the matrix and exposed the jaws and teeth, casts of which are shown in the cretaceous rock of the Island.

This fine specimen, which Hoffmann had added with so much pains and care to his collection, soon, however, became a source of chagrin to him. One of the canons of the cathedral at Maestricht, who owned the surface of the soil beneath which was the quarry whence the fossil had been obtained, when the fame of the specimen reached him, pleaded certain feudal rights to it. Hoffmann resisted, and the canon went to law. The Chapter supported the canon, and the decree ultimately went[IV-11] against the poor surgeon, who lost both his specimen and his money—being made to pay the costs of the action. The canon did not, however, long enjoy possession of the unique specimen. When the French army bombarded Maestricht in 1795, directions were given to spare the suburb in which the famous fossil was known to be preserved; and after the capitulation of the town it was seized and borne off in triumph. The specimen has since remained in the museum of the Garden of Plants at Paris.

This skull of the Mosasaurus measures four and a half feet long and two and a half feet wide. The large pointed teeth on the jaws are very conspicuous; but, in addition to these, the gigantic reptile had teeth on a bone of the roof of the mouth (the pterygoid), like some of the modern lizards. The entire length of the animal has been estimated at about thirty feet. It is conjectured to have been able to swim well, and to have frequented the sea in quest of prey: its dentition shows its predatory and carnivorous character, and its remains have hitherto been met with exclusively in the chalk formations. Besides the specimens from St. Peter’s Mount, Maestricht, of which the above-described skull is the most remarkable, fossil bones and teeth of the Mosasaurus have been found in the chalk of Kent, and in the green-sand—a member of the cretaceous series—in New Jersey, United States of America. No animal like the Mosasaurus is now known to exist.

Nos. 2 & 3.—The Pterodactyle.

Nos. 2 and 3 are restorations of a flying reptile or dragon, called Pterodactyle, from the Greek words pteron, a wing, and dactylos, a finger; because the wings are mainly supported by the outer finger, enormously lengthened and of proportionate strength, which, nevertheless, answers to the little finger of the human hand. The wings consisted of folds of skin, like the leather wings of the bat; and the Pterodactyles were covered with scales, not with feathers: the head, though somewhat resembling in shape that of a bird, and supported on a long and slender neck, was provided with long jaws, armed with teeth; and altogether the structure of these extinct members of the reptilian class is such as to rank them amongst the most extraordinary of all the creatures yet discovered in the ruins of the ancient earth.

[IV-12]

Remains of the Pterodactyle were first discovered, in 1784, by Prof. Collini, in the lithographic slate of Aichstadt, in Germany, which slate is a member of the oolitic formations: the species so discovered was at first mistaken for a bird, and afterwards supposed to be a large kind of bat, but had its true reptilian nature demonstrated by Baron Cuvier, by whom it was called the Pterodactylus longirostris, or Long-beaked Pterodactyle: it was about the size of a curlew.

A somewhat larger species—the Pterodactylus macronyx, or Long-clawed Pterodactyle—was subsequently discovered by the Rev. Dr. Buckland, in the lias formation of Lyme Regis: its wings, when expanded, must have been about four feet from tip to tip. The smallest known species—the Pterodactylus brevirostris, or Short-beaked Pterodactyle—was discovered in the lithographic slate at Solenhofen, Germany, and has been described by Professor Soemmering.

Remains of the largest known kinds of Pterodactyle have been discovered more recently in chalk-pits, at Burham, in Kent. The skull of one of these species—the Pterodactylus Cuvieri—was about twenty inches in length, and the animal was upborne on an expanse of wing of probably not less than eighteen feet from tip to tip. The restored specimen of this species is numbered 3.

A second very large kind of Pterodactyle—the Pterodactylus compressirostris, or Thin-beaked Pterodactyle—had a head from fourteen to sixteen inches in length, and an expanse of wing, from tip to tip, of fifteen feet. The remains of this species have also been found in the chalk of Kent. From the same formation and locality a third large kind of Pterodactyle, although inferior in size to the two foregoing, has been discovered, called the Pterodactylus conirostris, and also—until the foregoing larger kinds were discovered—Pterodactylus giganteus. The long, sharp, conical teeth in the jaws of the Pterodactyles indicate them to have preyed upon other living animals; their eyes were large, as if to enable them to fly by night. From their wings projected fingers, terminated by long curved claws, and forming a powerful paw, wherewith the animal was enabled to creep and climb, or suspend itself from trees. It is probable, also, that the Pterodactyles had the power of swimming; some kinds, e.g., the Pterodactylus Gemmingi, had a long[IV-13] and stiff tail. “Thus,” writes Dr. Buckland, “like Milton’s Fiend, all qualified for all services and all elements, the creature was a fit companion for the kindred reptiles that swarmed in the seas, or crawled on the shores of a turbulent planet.

‘The Fiend,
O’er bog, or steep, through strait, rough, dense, or rare,
With head, hands, wings, or feet, pursues his way,
And swims, or sinks, or wades, or creeps, or flies.’

Paradise Lost, Book II.”

[IV-14]

THE WEALDEN.

The Wealden is a mass of petrified clay, sand, and sandstone, deposited from the fresh or brackish water of probably some great estuary, and extending over parts of the counties of Kent, Surrey, and Sussex. This fresh-water formation derives its name from the “Weald” or “Wold” of Kent, where it was first geologically studied, and where it is exposed by the removal of the chalk, which covers or overlies it, in other parts of the South of England.

The Wealden is divided into three groups of strata, which succeed each other in the following descending order:—

1st. Weald Clay, sometimes including thin beds of sand and shelly limestone, forming beds of from 140 to 280 feet in depth or vertical thickness.

2nd. Hastings Sand, in which occur some clays and calcareous grits, forming beds of from 400 to 500 feet in depth.

3rd. Purbeck Beds, so called from being exposed chiefly in the Isle of Purbeck, off the coast of Dorsetshire, where it forms the quarries of the limestone for which Purbeck is famous: the beds of limestones and marls are from 150 to 200 feet in depth.

Nos. 4 & 5.—The Iguanodon.
(Iguanodon Mantelli, Conybeare.)

One afternoon, in the spring of 1822, an accomplished lady, the wife of a medical practitioner, at Lewes, in Sussex, walking along the picturesque paths of Tilgate Forest, discovered some objects in the coarse conglomerate rock of the quarries of that locality, which, from their peculiar form and substance, she thought would be interesting to her husband, whose attention had been directed, during his professional drives, to the geology and fossils of his neighbourhood.

[IV-15]

The lady was Mrs. Mantell: her husband, the subsequently distinguished geologist, Dr. Mantell,[44] perceived that the fossils discovered by his wife were teeth, and teeth of a large and unknown animal.

[44] “The first specimens of the teeth were found by Mrs. Mantell in the coarse conglomerate of the Forest, in the spring of 1822.”—Mantell, “Geology of the South-East of England,” 8vo, 1833, p. 268.

“As these teeth,” writes the doctor, “were distinct from any that had previously come under my notice, I felt anxious to submit them to the examination of persons whose knowledge and means of observation were more extensive than my own. I therefore transmitted specimens to some of the most eminent naturalists in this country and on the continent. But although my communications were acknowledged with that candour and liberality which constantly characterise the intercourse of scientific men, yet no light was thrown upon the subject, except by the illustrious Baron Cuvier, whose opinions will best appear by the following extract from the correspondence with which he honoured me:—

“‘These teeth are certainly unknown to me; they are not from a carnivorous animal, and yet I believe that they belong, from their slight degree of complexity, the notching of their margins, and the thin coat of enamel that covers them, to the order of reptiles.

“‘May we not here have a new animal!—a herbivorous reptile? And, just as at the present time with regard to mammals (land-quadrupeds with warm blood), it is amongst the herbivorous that we find the largest species, so also with the reptiles at the remote period when they were the sole terrestrial animals, might not the largest amongst them have been nourished by vegetables?

“‘Some of the great bones which you possess may belong to this animal, which, up to the present time, is unique in its kind. Time will confirm or confute this idea, since it is impossible but that one day a part of the skeleton, united to portions of jaws with the teeth, will be discovered.’”

“These remarks,” Dr. Mantell proceeds to say, “induced me to pursue my investigations with increased assiduity, but hitherto they have not been attended with the desired success, no connected[IV-16] portion of the skeleton having been discovered. Among the specimens lately connected, some, however, were so perfect, that I resolved to avail myself of the obliging offer of Mr. Clift (to whose kindness and liberality I hold myself particularly indebted), to assist me in comparing the fossil teeth with those of the recent Lacertæ in the Museum of the Royal College of Surgeons. The result of this examination proved highly satisfactory, for in an Iguana which Mr. Stutchbury had prepared to present to the College, we discovered teeth possessing the form and structure of the fossil specimens.” (Phil. Trans., 1825, p. 180.) And he afterwards adds:—“The name Iguanodon, derived from the form of the teeth, (and which I have adopted at the suggestion of the Rev. W. Conybeare,) will not, it is presumed, be deemed objectionable.” (Ib. p. 184.)

The further discovery which Baron Cuvier’s prophetic glance saw buried in the womb of time, and the birth of which verified his conjecture that some of the great bones collected by Dr. Mantell belonged to the same animal as the teeth, was made by Mr. W. H. Bensted, of Maidstone, the proprietor of a stone-quarry of the Shanklin-sand formation, in the close vicinity of that town. This gentleman had his attention one day, in May, 1834, called by his workmen to what they supposed to be petrified wood in some pieces of stone which they had been blasting. He perceived that what they supposed to be wood was fossil bone, and with a zeal and care which have always characterised his endeavours to secure for science any evidence of fossil remains in his quarry, he immediately resorted to the spot. He found that the bore or blast by which these remains were brought to light, had been inserted into the centre of the specimen, so that the mass of stone containing it had been shattered into many pieces, some of which were blown into the adjoining fields. All these pieces he had carefully collected, and proceeding with equal ardour and success to the removal of the matrix from the fossils, he succeeded after a month’s labour in exposing them to view, and in fitting the fragments to their proper places.

This specimen is now in the British Museum.

Many other specimens of detached bones, including vertebræ or parts of the back-bone, especially that part resting on the hind limbs, and called the “pelvis,” bones of the limbs, down to those[IV-17] that supported the claws, together with jaws and teeth, which have since been successively discovered, have enabled anatomists to reconstruct the extinct Iguanodon, and have proved it to have been a herbivorous reptile, of colossal dimensions, analogous to the diminutive Iguana in the form of its teeth, but belonging to a distinct and higher order of reptiles, more akin to the crocodiles. The same rich materials, selecting the largest of the bones as a standard, have served for the present restorations (Nos. 4 and 5) of the animal, as when alive: all the parts being kept in just proportion to the standard bones, and the whole being thus brought to the following dimensions:—

Total length, from the nose or muzzle to the end of the tail 34 feet 9 inches.
Greatest girth of the trunk 20 5
Length of the head 3 6
Length of the tail 15 6

The character of the scales is conjectural, and the horn more than doubtful, though attributed to the Iguanodon by Dr. Mantell and most geologists.

This animal probably lived near estuaries and rivers, and may have derived its food from the Clathrariæ, Zamiæ, Cycades, and other extinct trees, of which the fossil remains abound in the same formations as those yielding the bones and teeth of the Iguanodon.

These formations are the Wealden and the Neocomian or green-sand: the localities in which the remains of the Iguanodon have been principally found, are the Weald of Kent and Sussex: Horsham, in Sussex; Maidstone, in Kent; and the Isle of Wight.

Restorations of the Cycas and Zamia are placed, with the Iguanodon, on the Wealden division of the Secondary Island.

No. 6.—The Hylæosaurus. (Hylæosaurus Owenii.)

The animal, so called by its discoverer, Dr. Mantell, belongs to the same highly organised order of the class of reptiles as the Iguanodon, that, viz., which was characterised by a longer and stronger sacrum and pelvis, and by larger limbs than the reptiles of the present day possess; they were accordingly better fitted for progression on dry land, and probably carried their body higher and more freely above the surface of the ground.

[IV-18]

Visiting, in the summer of 1832, a quarry in Tilgate Forest, Dr. Mantell had his attention attracted to some fragments of a large mass of stone, which had recently been broken up, and which exhibited traces of numerous pieces of bone. The portions of the rock, which admitted of being restored together, were cemented, and then the rock was chiselled from the fossil bones, which consisted of part of the back-bone or vertebral column, some ribs, the shoulder bones called scapula and coracoid, and numerous long angular bones or spines which seemed to have supported a lofty serrated or jagged crest, extended along the middle of the back, as in some of the small existing lizards, e.g., the Iguana: cut No. 6. Many small dermal bones were also found, which indicate the Hylæosaurus to have been covered by hard tuberculate scales, like those of some of the Australian lizards, called Cyclodus.

This character of the skin, and the serrated crest, are accurately given in the restoration, the major part of which, however, is necessarily at present conjectural, and carried out according to the general analogies of the saurian form. The size is indicated with more certainty according to the proportions of the known vertebræ and other bones.

No. 6. Diagram of the Slab containing the Bones of Hylæosaurus.

[IV-19]

THE OOLITE.

The division of the secondary formations, called “Oolite,” takes its name from the most characteristic of its constituents, which is a variety of limestone composed of numerous small grains, resembling the “roe” or eggs of a fish, whence the term, (from the Greek oon, an egg, lithos, a stone). The oolite, however, includes a great series of beds of marine origin, which, with an average breadth of thirty miles, extend across England, from Yorkshire in the north-east to Dorsetshire in the south-west.

The oolite series lies below the Wealden, and where this is wanting, below the chalk, and consists of the following subdivisions, succeeding each other in the descending order:—

Oolite.

Upper. -   Portland stone and sand.
Kimmeridge clay.
 
Middle. -   Coral rag.
Oxford clay.
 
Lower. -   Cornbrash and forest marble.
Great oolite and Stonesfield slate.
Fuller’s earth.
Inferior oolite.

Upon the portion of the island representing the oolite series, the most conspicuous of the restored animals of that period is—

No. 7.—The Megalosaurus.

The Megalosaurus, as its name implies (compounded by its discoverer, Dr. Buckland, from the Greek megas, great, and sauros, lizard), was a lizard-like reptile of great size, “of which,” writes Dr. Buckland, “although no skeleton has yet been found entire, so many perfect bones and teeth have been discovered in the same quarries, that we are nearly as well acquainted with the form and dimensions of the limbs as if they had been found together in a single block of stone[IV-20].”

The restoration of the animal has been accordingly effected, agreeably with the proportions of the known parts of the skeleton, and in harmony with the general characters of the order of reptiles to which the Megalosaurus belonged. This order—the Dinosauria (Gr. deinos, terribly great sauros, a lizard)—is that to which the two foregoing huge reptiles of the Wealden series belong, viz., the Iguanodon and Hylæosaurus, and is characterised by the modifications already mentioned, that fitted them for more efficient progression upon dry land. The Iguanodon represented the herbivorous section of the order, the Hylæosaurus appears, from its teeth, to have been a mixed feeder, but the Megalosaurus was decidedly carnivorous, and, probably, waged a deadly war against its less destructively endowed congeners and contemporaries.

No. 7. Megalosaurus.

Baron Cuvier estimated the Megalosaurus to have been about fifty feet in length; my own calculations, founded on more complete evidence than had been at the Baron’s command, reduce its size to about thirty-five feet:[45] but with the superior proportional height and capacity of trunk, as contrasted with the largest existing crocodiles, even that length gives a most formidable character to this extinct predatory reptile.

[45] “Report of British Fossil Reptiles,” 1841, p. 110.

As the thigh-bone (femur) and leg-bone (tibia) measure each nearly three feet, the entire hind-leg, allowing for the cartilages of the joints, must have attained a length of two yards: a bone of the[IV-21] foot (metatarsal) thirteen inches long, indicates that part, with the toes and claws entire, to have been at least three feet in length. The form of the teeth shows the Megalosaurus to have been strictly carnivorous, and viewed as instruments for providing food for so enormous a reptile, the teeth were fearfully fitted to the destructive office for which they were designed. They have compressed conical sharp-pointed crowns, with cutting and finely serrated anterior and posterior edges; they appear straight, as seen when they had just protruded from the socket, but become bent slightly backwards in the progress of growth, and the fore part of the crown, below the summit, becomes thick and convex.

A minute and interesting description of these teeth will be found in Dr. Buckland’s admirable “Bridgewater Treatise” (vol. i. p. 238), from which he concludes that the teeth of the Megalosaurus present “a combination of contrivances analogous to those which human ingenuity has adopted in the construction of the knife, the sabre, and the saw.” The fossils which brought to light the former existence of this most formidable reptile, were discovered in 1823, in the oolitic slate of Stonesfield, near Oxford, and were described by Dr. Buckland, in the volume of the “Geological Transactions” for the year 1824.

Remains of the Megalosaurus have since been discovered in the “Bath oolite,” which is immediately below the Stonesfield slate, and in the “Cornbrash,” which lies above it. Vertebræ, teeth, and some bones of the extremities have been discovered in the Wealden of Tilgate Forest, Kent, and in the ferruginous sand, of the same age, near Cuckfield, in Sussex. Remains of the Megalosaurus also occur in the Purbeck limestone at Swanage Bay, and in the oolite in the neighbourhood of Malton, in Yorkshire.

Mr. Waterhouse Hawkins’s restoration, according to the proportions calculated from the largest portions of fossil bones of the Megalosaurus hitherto obtained, yields a total length of the animal, from the muzzle to the end of the tail, of thirty-seven feet; the length of the head being five feet, the length of the tail fifteen feet; and the greatest girth of the body twenty-two feet six inches.

[IV-22]

Nos. 8 & 9.—Pterodactyles of the Oolite.

To the right of the Hylæosaurus, on the rock representing the greater oolite formation, are restorations of species of Pterodactyle (Pterodactylus Bucklandi, No. 9), smaller than and distinct from those of the chalk formations. The remains of Buckland’s Pterodactyle are found pretty abundantly in the oolitic slate of Stonesfield, near Oxford.

Nos. 10 & 11.—Teleosaurus.

On the shore beneath the overhanging cliff of oolitic rock are two restorations, Nos. 10 and 11, of a large extinct kind of crocodile, to which the long and slender-jawed crocodile of the Ganges, called “Gaviàl” or “Gharriàl” by the Hindoos, offers the nearest resemblance at the present day. Remains of the ancient extinct British gavials have been found in most of the localities where the oolitic formations occur, and very abundantly in the lias cliffs near Whitby, in Yorkshire. The name Teleosaurus (telos, the end, sauros, a lizard), was compounded from the Greek by Professor Geoffroy St. Hilaire, for a species of these fossil gavials, found by him in the oolite stone at Caen, in Normandy, and has reference to his belief that they formed one—the earliest—extreme of the crocodilian series, as this series has been successively developed, in the course of time on our planet.

The jaws are armed with numerous long, slender, sharp-pointed, slightly curved teeth, indicating that they preyed on fishes, and the young or weaker individuals of co-existing reptiles. The nostril is situated more at the end of the upper jaw than in the modern gavial: the fore-limbs are shorter, and the hind ones longer and stronger than in the gavial, which indicates that the Teleosaur was a better swimmer; the vertebræ or bones of the back are united by slightly concave surfaces, not interlocked by cup and ball joints as in the modern crocodiles, whence it would seem that the Teleosaur lived more habitually in the water, and less seldom moved on dry land; and, as its fossil remains have been hitherto found only in the sedimentary deposits from the sea, it may be inferred that it was more strictly marine than the crocodile of the Ganges.

[IV-23]

The first specimen of a Teleosaur that was brought to light was from the “alum-schale” which forms one layer of the lofty lias cliffs of the Yorkshire coast, near Whitby. A brief description, and figures, of this incomplete fossil skeleton were published by Messrs. Wooller and Chapman, in separate communications, in the 50th volume of the “Philosophical Transactions,” in 1758. Captain Chapman observes, “it seems to have been an alligator;” and Mr. Wooller thought “it resembled in every respect the Gangetic gavial.” Thus, nearly a century ago, the true nature of the fossil was almost rightly understood, and various were the theories then broached to account for the occurrence of a supposed Gangetic reptile in a petrified state in the cliffs of Yorkshire. It has required the subsequent progress of comparative anatomy to determine, as by the characters above defined, the essential distinction of the Teleosaur from all known existing forms of crocodilian reptiles.

Very abundant remains, and several species, of the extinct genus have been subsequently discovered: but always in the oolitic and liassic formations of the secondary series of rocks.

The oolitic group of rocks are very rich in remains of both plants and animals: many reptiles of genera and species distinct from those here restored have been recognised and determined by portions of the skeleton. Extremely numerous are the remains of fishes, chiefly of an almost extinct order (Ganoidei), characterised by hard, shining, enamelled scales. But the most remarkable fossils are those which indisputably prove the existence, during the period of the “Great” or “Lower Oolite,” of insectivorous and marsupial mammalia—i.e., of warm-blood quadrupeds, which, like the shrew or hedgehog, fed on insects, and, like the opossum, had a pouch for the transport of the young. The lower jaw of one of these earliest known examples of the mammalian class, found in the Stonesfield slate, near Oxford, may be seen at the British Museum, to which it was presented by J. W. Broderip, Esq., F.R.S., by whom it was described in the “Zoological Journal,” vol. iii., p. 408.

It is interesting to observe that the marsupial genera, to which the above fossil quadruped, called Phascolotherium, was most nearly allied, are now confined to New South Wales and Van[IV-24] Diemen’s Land; since it is in the Australian seas that is found the Cestracion, a cartilaginous fish which has teeth that are most like those fossil teeth called Acrodus and Psammodus, so common in the oolite. In the same Australian seas, also, near the shore, the beautiful shell-fish called Trigonia is found living, of which genus many fossil species occur in the Stonesfield slate. Moreover, the Araucarian pines are now abundant, together with ferns, in Australia, as they were in Europe in the oolitic period.

[IV-25]

THE LIAS.

“Lias” is an English provincial name adopted in geology, and applied to a formation of limestone, marl, and petrified clay, which forms the base of the oolite, or immediately underlies that division of secondary rocks. The lias has been traced throughout a great part of Europe, forming beds of a thickness varying from 500 to 1000 feet of the above-mentioned substances, which have been gradually deposited from a sea of corresponding extent and direction. The lias abounds with marine shells of extinct species, and with remains of fishes that were clad with large and hard shining scales. Of the higher or air-breathing animals of that period, the most characteristic were the

Enaliosauria.

The creatures called Enaliosauria or Sea-lizards (from the Greek enalios, of the sea, and sauros, lizard), were vertebrate animals, or had back bones, breathed the air like land quadrupeds, but were cold-blooded, or of a low temperature, like crocodiles and other reptiles. The proof that the Enaliosaurs respired atmospheric air immediately, and did not breathe water by means of gills like fishes, is afforded by the absence of the bony framework of the gill apparatus, and by the presence, position, and structure of the air passages leading from the nostrils, and also by the bony mechanism of the capacious chest or thoracic-abdominal cavity: all of which characters have been demonstrated by their fossil skeletons. With these characters the Sea-lizards combined the presence of two pairs of limbs shaped like fins, and adapted for swimming.

The Enaliosauria offer two principal modifications of their anatomical, and especially their bony, structure, of which the two kinds grouped together under the respective names of Ichthyosaurus and Plesiosaurus are the examples.

The Ichthyosaurus.

The genus Ichthyosaurus includes many species: of which three[IV-26] of the best known and most remarkable have been selected for restoration to illustrate this most singular of the extinct forms of animal life.

The name (from the Greek ichthys, a fish, and sauros, a lizard) indicates the closer affinity of the Ichthyosaur, as compared with the Plesiosaur, to the class of fishes. The Ichthyosaurs are remarkable for the shortness of the neck and the equality of the width of the back of the head with the front of the chest, impressing the observer of the fossil skeleton with a conviction that the ancient animal must have resembled the whale tribe and the fishes in the absence of any intervening constriction or “neck.”

This close approximation in the Ichthyosaurs to the form of the most strictly aquatic back-boned (vertebrate) animals of the existing creation is accompanied by an important modification of the surfaces forming the joints of the back-bone, each of which surfaces is hollow, leading to the inference that they were originally connected together by an elastic bag, or “capsule,” filled with fluid—a structure which prevails in the class of fishes, but not in any of the whale or porpoise tribe, nor in any, save a few of the very lowest and most fish-like, of the existing reptiles.

With the above modifications of the head, trunk, and limbs, in relation to swimming, there co-exist corresponding modifications of the tail. The bones of this part are much more numerous than in the Plesiosaurs, and the entire tail is consequently longer; but it does not show any of those modifications that characterise the bony support of the tail in fishes. The numerous “caudal vertebræ” of the Ichthyosaurus gradually decrease in size to the end of the tail, where they assume a compressed form, or are flattened from side to side, and thus the tail instead of being short and broad, as in fishes, is lengthened out as in crocodiles.

The very frequent occurrence of a fracture of the tail, about one fourth of the way from its extremity, in well-preserved and entire fossil skeletons, is owing to that proportion of the end of the tail having supported a tail-fin. The only evidence which the fossil skeleton of a whale would yield of the powerful horizontal tail-fin characteristic of the living animal, is the depressed or horizontally flattened form of the bones supporting such fin. It is inferred, therefore, from the corresponding bones[IV-27] of the Ichthyosaurus being flattened from side to side, that it possessed a tegumentary tail-fin expanded in the vertical direction. The shape of a fin composed of such perishable material is of course conjectural, but from analogies, not necessary here to further enlarge upon, it was probably like, or nearly like, that which the able artist engaged in the restoration of the entire form of the animal has given to it. Thus, in the construction of the principal swimming-organ of the Ichthyosaurus we may trace, as in other parts of its structure, a combination of mammalian (beast-like), saurian (lizard-like), and piscine (fish-like) peculiarities. In its great length and gradual diminution we perceive its saurian character; the tegumentary nature of the fin, unsustained by bony fin-rays, bespeaks its affinity to the same part in the mammalian whales and porpoises; whilst its vertical position makes it closely resemble the tail-fin of the fish.

The horizontality of the tail-fin of the whale tribe is essentially connected with their necessities as warm-blooded animals breathing atmospheric air; without this means of displacing a mass of water in the vertical direction, the head of the whale could not be brought with the required rapidity to the surface to respire; but the Ichthyosaurs, not being warm-blooded, or quick breathers, would not need to bring their head to the surface so frequently, or so rapidly, as the whale; and, moreover, a compensation for the want of horizontality of their tail-fin was provided by the addition of a pair of hind-paddles, which are not present in the whale tribe. The vertical fin was a more efficient organ in the rapid cleaving of the liquid element, when the Ichthyosaurs were in pursuit of their prey, or escaping from an enemy.

That the Ichthyosaurs occasionally sought the shores, crawled on the strand, and basked in the sunshine, may be inferred from the bony structure connected with their fore-fins, which does not exist in any porpoise, dolphin, grampus, or whale; and for want of which, chiefly, those warm-blooded, air-breathing, marine animals are so helpless when left high and dry on the sands: the structure in question in the Ichthyosaur is a strong osseous arch, inverted and spanning across beneath the chest from one shoulder-joint to the other; and what is most remarkable in the structure of this “scapular” arch, as it is called, is, that it closely resembles, in the number,[IV-28] shape, and disposition of its bones, the same part in the singular aquatic mammalian quadruped of Australia, called Ornithorhynchus, Platypus, and Duck-mole. The Ichthyosaurs, when so visiting the shore, either for sleep, or procreation, would lie, or crawl prostrate, or with the belly resting or dragging on the ground.

The most extraordinary feature of the head was the enormous magnitude of the eye; and from the quantity of light admitted by the expanded pupil it must have possessed great powers of vision, especially in the dusk. It is not uncommon to find in front of the orbit (cavity for the eye), in fossil skulls, a circular series of petrified thin bony plates, ranged round a central aperture, where the pupil of the eye was placed. The eyes of many fishes are defended by a bony covering consisting of two pieces; but a compound circle of overlapping plates is now found only in the eyes of turtles, tortoises, lizards, and birds. This curious apparatus of bony plates would aid in protecting the eyeball from the waves of the sea when the Ichthyosaurus rose to the surface, and from the pressure of the dense element when it dived to great depths; and they show, writes Dr. Buckland,[46] “that the enormous eye, of which they formed the front, was an optical instrument of varied and prodigious power, enabling the Ichthyosaurus to descry its prey at great or little distances, in the obscurity of night, and in the depths of the sea.”

[46] Op. cit., p. 174.

Of no extinct reptile are the materials for a complete and exact restoration more abundant and satisfactory than of the Ichthyosaurus they plainly show that its general external figure must have been that of a huge predatory abdominal fish, with a longer tail, and a smaller tail-fin: scale-less, moreover, and covered by a smooth, or finely wrinkled skin analogous to that of the whale tribe.

The mouth was wide, and the jaws long, and armed with numerous pointed teeth, indicative of a predatory and carnivorous nature in all the species; but these differed from one another in regard to the relative strength of the jaws, and the relative size and length of the teeth.

Masses of masticated bones and scales of extinct fishes, that lived in the same seas and at the same period as the Ichthyosaurus,[IV-29] have been found under the ribs of fossil specimens, in the situation where the stomach of the animal was placed; smaller, harder, and more digested masses, containing also fish-bones and scales have been found, bearing the impression of the structure of the internal surface of the intestine of the great predatory sea-lizard. These digested masses are called “coprolites.”

In tracing the evidences of creative power from the earlier to the later formations of the earth’s crust, remains of the Ichthyosaurus are first found in the lower lias, and occur, more or less abundantly, through all the superincumbent secondary strata up to, and inclusive of, the chalk formations. They are most numerous in the lias and oolite, and the largest and most characteristic species have been found in these formations.

No. 12.—Ichthyosaurus platyodon.

This most gigantic species, so called on account of the crown of the tooth being more flattened than in other species, and having sharp edges, as well as a sharp point, was first discovered in the has of Lyme Regis, in Dorsetshire. Fossil remains now in the British Museum, and in the museum of the Geological Society, fully bear out the dimensions exhibited by the restoration of the animal as seen basking on the shore between the two specimens of Long-necked Plesiosaurs. The head of this species is relatively larger in proportion to the trunk, than in the Ichthyosaurus communis or Ichthyosaurus tenuirostris: the lower jaw is remarkably massive and powerful, and projects backwards beyond the joint, as far as it does in the crocodile. In the skull of an individual of this species, preserved in the apartments of the Geological Society of London, the cavity for the eye, or orbit, measures, in its long diameter, fourteen inches. The fore and hind paddles are large and of equal size.

The lias of the valley of Lyme Regis, Dorsetshire, is the chief grave-yard of the Ichthyosaurus platyodon; but its remains are pretty widely distributed. They have been found in the lias of Glastonbury, of Bristol, of Scarborough and Whitby, and of Bitton, in Gloucestershire; some vertebræ, apparently of this species, have likewise been found in the lias at Ohmden, in Germany.

[IV-30]

No. 13.—Ichthyosaurus tenuirostris.

Behind the Ichthyosaurus platyodon, is placed the restoration of the Ichthyosaurus tenuirostris, or Slender-snouted Fish-lizard. The most striking peculiarity of this species is the great length and slenderness of the jaw-bones, which, in combination with the large eye-sockets and flattened cranium, give to the entire skull a form which resembles that of a gigantic snipe or woodcock, with the bill armed with teeth. These weapons, in the present species, are relatively more numerous, smaller, and more sharply pointed than in the foregoing, and indicate that the Ichthyosaurus tenuirostris preyed on a smaller kind of fish. The fore-paddles are larger than the hind ones. In the museum of the Philosophical Institution, at Bristol, there is an almost entire skeleton of the present species which measures thirteen feet in length. It was discovered in the lias of Lyme Regis. Portions of jaws and other parts of the skeletons of larger individuals have been found fossil in the lias near Bristol, at Barrow-on-Soar, in Leicestershire, and at Stratford-on-Avon. The Ichthyosaurus tenuirostris has also left its remains in the lias formation at Boll and Amburg, in Wirtemberg, Germany.

No. 14.—Ichthyosaurus communis.

Of this species, which was the most “common,” when first discovered in 1824, but which has since been surpassed by other species in regard to the known number of individuals, the head is restored, as protruded from the water, to the right of the foregoing species.

The Ichthyosaurus communis is characterised by its relatively large teeth, with expanded, deeply-grooved bases, and round conical furrowed crowns; the upper jaw contains, on each side, from forty to fifty of such teeth. The fore-paddles are three times larger than the hind ones. With respect to the size which it attained, the Ichthyosaurus communis seems only to be second to the Ichthyosaurus platyodon. In the museum of the Earl of Enniskillen, there is a fossil skull of the Ichthyosaurus communis which, measures, in length, two feet nine inches, indicating an animal of at least twenty feet in length.

[IV-31]

Plesiosaurus.

The discovery of this genus forms one of the most important additions that geology has made to comparative anatomy. Baron Cuvier deemed “its structure to have been the most singular, and its characters the most monstrous, that had been yet discovered amid the ruins of a former world.” To the head of a lizard it united the teeth of a crocodile, a neck of enormous length, resembling the body of a serpent, a trunk and tail having the proportions of an ordinary quadruped, the ribs of a chameleon, and the paddles of a whale. “Such,” writes Dr. Buckland, “are the strange combinations of form and structure in the Plesiosaurus, a genus, the remains of which, after interment for thousands of years amidst the wreck of millions of extinct inhabitants of the ancient earth, are at length recalled to light by the researches of the geologist, and submitted to our examination, in nearly as perfect a state as the bones of species that are now existing upon the earth.” (Op. cit., vol. v. p. 203).

The first remains of this animal were discovered in the lias of Lyme Regis, about the year 1823, and formed the subject of the paper by the Rev. Mr. Conybeare (now Dean of Llandaff), and Mr. (now Sir Henry) De la Beche, in which the genus was established and named Plesiosaurus (from the Greek words, plesios and sauros, signifying “near” or “allied to,” and “lizard”), because the authors saw that it was more nearly allied to the lizard than was the Ichthyosaurus from the same formation.

The entire and undisturbed skeletons of several individuals, of different species, have since been discovered, fully confirming the sagacious restorations by the original discoverers of the Plesiosaurus. Of these species three have been selected as the subjects of Mr. Waterhouse Hawkins’s reconstructions and representations of the living form of the strange reptiles.

No. 15.—Plesiosaurus macrocephalus.

The first of these has been called, from the relatively larger size of the head, the Plesiosaurus macrocephalus (No. 15), (Gr. macros, long, cephale, head). The entire length of the animal, as indicated by the largest remains, and as given in the restoration, is eighteen[IV-32] feet, the length of the head being two feet, that of the neck six feet; the greatest girth of the body yields seven feet.

No. 15. Plesiosaurus macrocephalus.

Although Baron Cuvier and Dr. Buckland both rightly allude to the resemblance of the fins or paddles of the Plesiosaur to those of the whale, yet this most remarkable difference must be borne in mind, that, whereas the whale tribe have never more than one pair of fins, the Plesiosaurs have always two pairs, answering to the fore and hind limbs of land quadrupeds; and the fore-pair of fins, corresponding to those in the whale, differed by being more firmly articulated, through the medium of collar-bones (clavicles), and of two other very broad and strong bones (called coracoids), to the trunk (thorax), whereby they were the better enabled to move the animal upon dry land.

Remains of the Plesiosaurus macrocephalus have been discovered in the lias of Lyme Regis, in Dorsetshire, and of Weston, in Somersetshire.

No. 16.—Plesiosaurus dolichodeirus.

Further to the left, on the shore of the Secondary Island, is a restoration of the Plesiosaurus dolichodeirus, or Long-necked Plesiosaurus (No. 16). The head in this remarkable species is smaller, and[IV-33] the neck proportionally longer than in the Plesiosaurus macrocephalus. The remains of the Long-necked Plesiosaur have been found chiefly at Lyme Regis, in Dorsetshire. The well known specimen of an almost entire skeleton, formerly in the possession of His Grace the Duke of Buckingham, is now in the British Museum.

No. 17.—Plesiosaurus Hawkinsii.

The most perfect skeletons of the Plesiosaurus are those that have been wrought out of the lias at Street, near Glastonbury, by Mr. Thomas Hawkins, F.G.S., and which have been purchased by the trustees of the British Museum. A restoration is given by Mr. Waterhouse Hawkins, at No. 17, of a species with characters somewhat intermediate between the Large-headed and Long-necked Plesiosaurs, and which has been called, after its discoverer, Plesiosaurus Hawkinsii.

The Plesiosaurs breathed air like the existing crocodiles and the whale tribe, and appear to have lived in shallow seas and estuaries. That the Long-necked Sea-lizard was aquatic is evident from the form of its paddles; and that it was marine is almost equally so, from the remains with which its fossils are universally associated; that it may have occasionally visited the shore, the resemblance of its extremities to those of a turtle leads us to conjecture; its motion, however, must have been very awkward on land; its long neck must have impeded its progress through the water, presenting a striking contrast to the organisation which so admirably adapted the Ichthyosaurus to cut its swift course through the waves. “May it not, therefore, be concluded that it swam upon, or near the surface,” asks its accomplished discoverer, “arching back its long neck like a swan, and occasionally darting it down at the fish that happened to float within its reach? It may perhaps have lurked in shoal-water along the coast, concealed among the sea-weed, and, raising its nostrils to a level with the surface from a considerable depth, may have found a secure retreat from the assaults of dangerous enemies; while the length and flexibility of its neck may have compensated for the want of strength in its jaws, and its incapacity for swift motion through the water, by the suddenness[IV-34] and agility of the attack which it enabled it to make on every animal fitted for its prey which came within its reach.”[47]

[47] “Transactions of the Geological Society,” Second Series, vi. 503. 1841.

For the Secondary Island three species of the Plesiosaurus have been restored, the Plesiosaurus macrocephalus, the Plesiosaurus dolichodeirus (Gr. dolichos, long, deire, neck), and the Plesiosaurus Hawkinsii. The name “long-necked” was given to the second of these species before it was known that many other species with long and slender necks had existed in the seas of the same ancient period: the third species is named after Mr. Thomas Hawkins, F.G.S., the gentleman by whose patience, zeal, and skill, the British Museum has been enriched with so many entire skeletons of these most extraordinary extinct sea-lizards.

The remains of all these species occur in the lias at Lyme Regis, and at Street, near Glastonbury; but the Plesiosaurus Hawkinsii is the most abundant in the latter locality.

Secondary Island

[IV-35]

NEW RED SANDSTONE.

“Trias” is an arbitrary term applied in geology to the upper division of a vast series of red loams, shales, and sandstones, interposed between the lias and the coal, in the midland and western counties of England. This series is collectively called the “New Red Sandstone formation,” to distinguish it from the “Old Red Sandstone formation,” of similar or identical mineral character, which lies immediately beneath the coal.

The animals which have been restored and placed on the lowest formation of the Secondary Island, are peculiar to the “triassic,” or upper division of the “New Red Sandstone” series, which division consists, in England, of saliferous (salt-including) shales and sandstones, from 1000 to 1500 feet thick in Lancashire and Cheshire, answering to the formation called “Keuper-sandstone” by the German geologists; and of sandstone and quartzose conglomerate of 600 feet in thickness, answering to the German “Bunter-sandstone.”

The largest and most characteristic animals of the trias are reptiles of the order

Batrachia.

The name of this order is from the Greek word batrachos, signifying a frog: and the order is represented in the present animal-population of England by a few diminutive species of frogs, toads, and newts, or water-salamanders. But, at the period of the deposition of the new red sandstone, in the present counties of Warwick and Cheshire, the shores of the ancient sea, which were then formed by that sandy deposit, were trodden by reptiles, having the essential bony characters of the Batrachia, but combining these with other bony characters of crocodiles and lizards; and exhibiting both under a bulk which is made manifest by the restoration of the largest known species, (No. 16), occupying the[IV-36] extreme promontory of the Island, illustrative of the lowest and oldest deposits of the secondary series of rocks. The species in question is called the—

No. 18.—Labyrinthodon Salamandroides,

or the Salamander-like Labyrinthodon; the latter term being from the Greek, signifying the peculiar structure of the teeth, which differ from all other reptiles in the huge Batrachia in question, by reason of the complex labyrinthic interblending of the different substances composing the teeth. The skull of the Labyrinthodon is attached to the neck-bones by two joints or condyles, and the teeth are situated both on the proper jaw-bones, and on the bone of the roof of the mouth called “vomer:” both these characters are only found at the present day in the frogs and salamanders. The hind-foot of the Labyrinthodon was also, as in the toad and frog, much larger than the fore-foot; and the innermost digit in both was short and turned in, like a thumb.

No. 18. Labyrinthodon Salamandroides.

Consecutive impressions of the prints of these feet have been traced for many steps in succession (as is accurately represented in[IV-37] the new red sandstone part of the Secondary Island) in quarries of that formation in Warwickshire, Cheshire, and also in Lancashire, more especially at a quarry of a whitish quartzose sandstone at Storton Hill, a few miles from Liverpool. The foot-marks are partly concave and partly in relief; the former are seen upon the upper surface of the sandstone slabs, but those in relief are only upon the lower surfaces, being, in fact, natural casts, formed on the subjacent foot-prints as in moulds. The impressions of the hind-foot are generally eight inches in length and five inches in width: near each large footstep, and at a regular distance—about an inch and a half—before it, a smaller print of the fore-foot, four inches long and three inches wide, occurs. The footsteps follow each other in pairs, each pair in the same line, at intervals of about fourteen inches from pair to pair. The large as well as the small steps show the thumb-like toe alternately on the right and left side, each step making a print of five toes.

Foot-prints of corresponding form but of smaller size have been discovered in the quarry at Storton Hill, imprinted on five thin beds of clay, lying one upon another in the same quarry, and separated by beds of sandstone. From the lower surface of the sandstone layers, the solid casts of each impression project in high relief, and afford models of the feet, toes, and claws of the animals which trod on the clay.

Similar foot-prints were first observed in Saxony, at the village of Hessberg, near Hillburghausen, in several quarries of a gray quartzose sandstone, alternating with beds of red sandstone, and of the same geological age as the sandstones of England that had been trodden by the same strange animal. The German geologist, who first described them, proposed the name of Cheirotherium (Gr. cheir, the hand, therion, beast), for the great unknown animal that had left the foot-prints, in consequence of the resemblance, both of the fore and hind feet, to the impression of a human hand, and Dr. Kaup conjectured that the animal might be a large species of the opossum-kind. The discovery, however, of fossil skulls, jaws, teeth, and a few other bones in the sandstones exhibiting the footprints in question, has rendered it more probable that both the footprints and the fossils are evidences of the same kind of huge extinct Batrachian reptiles.

[IV-38]

An entire skull of the largest species discovered in the new red sandstones of Wurtemberg; a lower jaw of the same species found in the same formation in Warwickshire; some vertebræ, and a few fragments of bones of the limbs, have served, with the indications of size and shape of the trunk of the animal yielded by the series of consecutive foot-prints, as the basis of the restoration of the Labyrinthodon salamandroides, in the Secondary Island. It is to be understood, however, that, with the exception of the head, the form of the animal is necessarily more or less conjectural.

Nos. 19 & 20.—Labybinthodon pachygnathus.

Nos. 19 & 20. Section of Tooth of Labyrinthodon.

a Pulp-cavity: b b inflected folds of ossified capsule of tooth.

This name, signifying the Thick-jawed Labyrinthodon, was given by its discoverer to a species of these singular Batrachia, found in the new red sandstone of Warwickshire, and which bears to the largest species the proportion exhibited by the head and fore-part of the body, as emerging from the water, for which parts alone the fossils hitherto discovered justify the restoration.[48]

[48] Conybeare, Geol. Trans., i. 388.

Nos. 21 & 22.—Dicynodon.

In 1844 Mr. Andrew G. Bain, who had been employed in the construction of military roads in the colony of the Cape of Good Hope, discovered, in the tract of country extending northwards from the county of Albany, about 450 miles east of Cape Town, several nodules or lumps of a kind of sandstone, which, when broken, displayed, in most instances, evidences of fossil bones, and usually of a skull with two large projecting teeth. Accordingly, these evidences of ancient animal life in South Africa were first notified to English geologists by Mr. Bain under the name of “Bidentals;” and the specimens transmitted by him were submitted[IV-39] at his request to Professor Owen for examination. The results of the comparisons thereupon instituted went to show that there had formerly existed in South Africa, and from geological evidence, probably, in a great salt-water lake or inland sea, since converted into dry land, a race of reptilian animals presenting in the construction of their skull characters of the crocodile, the tortoise, and the lizard, coupled with the presence of a pair of huge sharp-pointed tusks, growing downwards, one from each side of the upper jaw, like the tusks of the mammalian morse or walrus. No other kind of teeth were developed in these singular animals: the lower jaw was armed, as in the tortoise, by a trenchant sheath of horn. Some bones of the back, or vertebræ, by the hollowness of the co-adapted articular surfaces, indicate these reptiles to have been good swimmers, and probably to have habitually existed in water; but the construction of the bony passages of the nostrils proves that they must have come to the surface to breathe air.

Some extinct plants allied to the Lepidodendron, with other fossils, render it probable that the sandstones containing the Dicynodont reptiles were of the same geological age as those that have revealed the remains of the Labyrinthodonts in Europe.

The generic name Dicynodon is from the Greek words signifying “two tusks or canine teeth.” Three species of this genus have been demonstrated from the fossils transmitted by Mr. Bain.

The Dicynodon lacerticeps, or Lizard-headed Dicynodon, attained the bulk of a walrus; the form of the head and tusks is correctly given in the restoration (No. 21); the trunk has been added conjecturally, to illustrate the strange combination of characters manifested in the head.

A second species, with a head so formed as to have given the animal somewhat of the physiognomy of an owl, has been partially restored at No. 22.

[IV-40]

No. 8. Dinornis.

BRADBURY AND EVANS, PRINTERS, WHITEFRYERS.


POMPEIAN COURT.

ERECTED BY M. DIGBY WYATT

PUBLISHED FOR THE CRYSTAL PALACE LIBRARY, BY BRADBURY & EVANS, 11 BOUVERIE ST

P.H. DE LA MOTT

Large plan.


THE
POMPEIAN COURT
IN THE
CRYSTAL PALACE.

DESCRIBED BY GEORGE SCHARF, Jun.,
F.S.A., F.R.S.L., &c.

Seal

CRYSTAL PALACE LIBRARY;
AND
BRADBURY AND EVANS, 11, BOUVERIE STREET, LONDON.
1854.


BRADBURY AND EVANS,
PRINTERS TO THE CRYSTAL PALACE COMPANY,
WHITEFRIARS.


[V-iii]

PREFACE.

Line

In the following account of the Pompeian Court, my chief aim has been to combine simplicity with truth; relying for success on that interest which so alluring a subject is certain to create. With much gratification I avail myself of the privilege granted to an author, in his preface, of returning my best thanks to those friends who have lent me their aid in this arduous undertaking. Mr. Digby Wyatt is entitled to the gratitude of all engaged in the works of art at the Crystal Palace for the opportunities he has afforded to each artist for the display of his particular talents, and I sincerely thank him for his kindness in accompanying me through the building and affording minute information to my numerous enquiries when he could with difficulty spare the time. I beg also cordially to thank Mr. Samuel Phillips for important suggestions respecting the conduct of my work, and for his interest and encouragement in its progress. Mr. Edward Falkener is entitled to my best acknowledgments, not only for the valuable assistance rendered in his published account of a Pompeian house, but for his kindness in looking over the proofs of these pages before they were committed to press. It is to be hoped that many of his observations may appear at greater length in the next edition of this Handbook, without prejudice to the magnificent work he is contemplating on the “Domestic Architecture of Pompeii.” I sincerely thank my friend, Mr. James Morant Lockyer for the benefit of his[V-iv] long architectural sojourn in Pompeii; regretting, at the same time, that the public has not had the advantage of his extensive knowledge and experience.

The excellent paintings produced here in the Pompeian Court, under the direction of Signor Abbate require no commendation from me; but I feel that I shall be only expressing the sentiment of others in wishing that we may at some future period see an extension of this ancient palace, or another series of apartments in which the same abilities shall afford us accurate copies of still more of the pictorial celebrities—such as the Theseus and the Minotaur, and Hercules and Telephus, found at Herculaneum; the Sacrifice of Iphigenia and the Anger of Achilles, from the House of the Tragic Poet; also the Zephyrus and Flora, and some of the picture mosaics, the Choragus one, for instance, and the far-famed Alexander and Darius at the battle of Issus.


[V-5]

THE POMPEIAN COURT.
DESCRIBED BY GEORGE SCHARF, Jun.



INTRODUCTION.

DESTRUCTION OF HERCULANEUM AND POMPEII.

“Many a calamity has befallen the world ere now, yet none like this replete with instruction and delight for remote generations.”—Goethe.

View of Naples and Mount Vesuvius.

Near the modern city of Naples, at the foot of Mount Vesuvius, once stood the ancient cities of Pompeii and Herculaneum. Whilst the former was considerably removed from the volcano, the latter was seated immediately at the base of the mountain, on a promontory projecting into the bay.

[V-6]

Vesuvius was not considered dangerous by the ancient occupants of the soil, as no eruption had ever been known to take place. Strabo noticed the igneous character of its rocks, but the whole district being covered with vines and plantations, undisturbed since the memory of man, he thence assumed the fires to be extinct for want of fuel. Even the sides of the mountain were overgrown with trees, and the summit alone continued barren and rough. The inhabitants of the neighbourhood were probably less inclined to consider the possibility of danger to themselves from the existence of two active volcanoes not far from them which seemed to serve as a vent for all subterranean commotions—the one, Mount Ætna; the other, Mount Epopeus in the island now called Ischia. Ætna, the majestic snowy mountain of Sicily, more than three times the height of Vesuvius, has been known, from the earliest times, as an active volcano; and many passages in Æschylus, Pindar, Thucydides, and Diodorus Siculus might be adduced, commemorating particular eruptions, &c. Pausanias mentions an instance of the piety of two youths who saved their parents at Catana (Book 10., ch. xxviii.) during the descent of the lava which threatened to surround them. In the year 73 B.C., Spartacus, a fugitive slave, at the head of a troop of gladiators and revolters, encamped on the summit of Vesuvius, where they were blockaded. The natural ruggedness of the place, and the density of the vines, favoured their subsequent escape. This is the earliest mention of the actual appearance of the volcano. The natural beauties of the district, then called Campania, are glorified by most writers; it was more particularly celebrated for its fertility and the luxuriant magnificence of its scenery.

The convulsions of nature have indeed changed the outline of the mountain, but the varied charms of the beautiful coast remain in undiminished attraction. Deep shades and crystal streamlets, sunny banks and refreshing groves, display the natural loveliness of a locality, favoured with the most luxuriant vegetation, and the finest climate in the world. These enable us fully to comprehend the pains and trouble bestowed by the ancient Romans in building villas and marine residences in so charming a situation. Thus, in the earliest times of the empire, the more wealthy and luxurious Romans established what we moderns should denominate watering places, for fashionable resort, on the coast, Baiæ, Dicæarchia, afterwards Puteoli, Cumæ, Neapolis, and Herculaneum, but the warm springs of the first two rendered them the most favourite resorts, and they became the Bath and Brighton of that era.

[V-7]

Lucullus, Pompey and Cæsar, had villas at Baiæ, Nero spent much time there, and Caligula contributed to the celebrity of the scene by his extraordinary bridge of boats. Hadrian died at Baiæ; and, at a later period, Alexander Severus erected many villas in the same neighbourhood. Some of the most splendid palaces were raised upon artificial foundations in the sea itself, and nothing could exceed the luxury and indolence indulged in by the visitors to these regions as depicted by some of the later poets. Horace himself speaks of the pleasant Baiæ as the most delicious place in the world.[49] And so it may have been, and all the neighbouring cities of the bay must have partaken more or less of the same glories. Pompeii was somewhat removed from these enchanting scenes, being on the other side of the bay of Naples, and the situation was not so pleasant as that of its fellow-sufferer Herculaneum. This city stood on a promontory, open, as Strabo says, to the south wind, which made it especially healthy. In fact, the art and style of everything found at Herculaneum show it to have been the resort of a superior class of people. Pompeii is supposed to have stood on the banks of the river Sarnus. The town itself was raised upon a considerable eminence so as to be protected in a great measure from the floods that at certain times of the year devastated the surrounding plain.

[49] “Nullus in orbe sinus Baiis prælucet amœnis.”—Ep. bk. i. 1, line 83.

The peace and tranquillity of these beautiful regions were first disturbed by natural convulsions in the year 63 A.D. A violent earthquake on the 16th February, threw down many parts of Pompeii, and seriously injured Herculaneum; six hundred sheep were swallowed up at once, statues were split, and many persons became insane. From this period, the Pompeians were disturbed by frequent shocks of earthquake; between the first symptoms in 63 and the dreadful catastrophe which involved their destruction, evidences still exist of the persevering endeavours of the inhabitants at restoration and repair. Many mosaics have been found, which display traces of a very different order of workmanship, in, the repair of damage caused by the earthquake, from that employed in their original construction.

In the reign of the emperor Titus, A.D. 79, the celebrated eruption of Vesuvius broke out, suddenly ejecting dense clouds of ashes and pumice-stones, beneath which Herculaneum, Pompeii, and Stabiæ were completely buried. Awful as such a phenomenon[V-8] must at all times appear, the event was still more appalling to the inhabitants as they were unable, in the confusion of the moment, to comprehend the source whence these horrors proceeded. An eye witness has fortunately left a detailed account of the event in two letters which are still preserved. We insert the greater part of them as best exhibiting the realities of the scene and the excitement of the unfortunate sufferers.

PLINY’S LETTER TO TACITUS.

“Your request that I would send you an account of my uncle’s death, in order to transmit a more exact relation of it to posterity, deserves my acknowledgments; for if this action shall be celebrated by your pen, the glory of it, I am well assured, will be rendered for ever illustrious. And notwithstanding he perished by a misfortune, which, as it involved at the same time a most beautiful country in ruins, and destroyed so many populous cities, seems to promise him an everlasting remembrance; notwithstanding he has himself composed many and lasting works, yet I am persuaded the mentioning of him in your immortal writings will greatly contribute to eternise his name. Happy I esteem those to be whom Providence has distinguished with the abilities either of doing such actions as are worthy of being related, or of relating them in a manner worthy of being read; but doubly happy are they who are blessed with both these uncommon talents. In the number of which my uncle, as his own writings and your history will evidently prove, may justly be ranked. It is with extreme willingness, therefore, I execute your commands; and should indeed have claimed the task if you had not enjoined it.

“He was at that time with the fleet under his command at Misenum. On the 24th of August, about one in the afternoon, my mother desired him to observe a cloud which appeared of a very unusual size and shape. He had just returned from taking the benefit of the sun, and after bathing himself in cold water, and taking a slight repast, was retired to his study. He immediately arose and went out up on an eminence from whence he might more distinctly view this uncommon appearance. It was not at that distance discernible from what mountain this cloud issued, but it was found afterwards to ascend from Mount Vesuvius. I cannot give you a more exact description of its figure, than by resembling it to that of a pine tree, for it shot up a great[V-9] height in the form of a trunk, which extended itself at the top into sort of branches, occasioned, I imagine, either by a sudden gust of air that impelled it, the force of which decreased as it advanced upwards, or the cloud itself being pressed back again by its own weight, expanded in this manner:—it appeared sometimes bright and sometimes dark and spotted, as it was either more or less impregnated with earth and cinder. This extraordinary phenomenon excited my uncle’s philosophical curiosity to take a nearer view of it. He ordered a light vessel to be got ready, and gave me the liberty, if I thought it proper, to attend him; I rather chose to continue my studies; for, as it happened, he had given me an employment of that kind. As he was coming out of the house he received a note from Rectina, the wife of Bassus, who was in the utmost alarm at the imminent danger which threatened her; for her villa being situated at the foot of Mount Vesuvius, there was no way to escape but by sea; she earnestly entreated him, therefore, to come to her assistance. He accordingly changed his first design, and what he began with a philosophical, he pursued with an heroical turn of mind. He ordered the galleys to put to sea, and went himself on board with an intention of assisting, not only Rectina, but several others; for the villas stand extremely thick upon that beautiful coast. When hastening to the place from whence others fled with the utmost terror, he steered his direct course to the point of danger, and with so much calmness and presence of mind, as to be able to make and dictate his observations upon the motion and figure of that dreadful scene. He was now so nigh the mountain, that the cinders, which grew thicker and hotter the nearer he approached, fell into the ships, together with pumice stones, and black pieces of burning rock. They were likewise in danger not only of being aground by the sudden retreat of the sea, but also from the vast fragments which rolled down from the mountain, and obstructed all the shore. Here he stopped to consider whether he should return back again; to which the pilot advising him, ‘Fortune,’ said he, ‘befriends the brave; carry me to Pomponianus.’ Pomponianus was then at Stabiæ, separated by a gulf, which the sea, after several insensible windings, forms upon the shore. He had already sent his baggage on board; for though he was not at that time in actual danger, yet being within the view of it, and indeed extremely near, if it should in the least increase, he was determined to put to sea as soon as the wind should change. It was favourable, however, for carrying my uncle to Pomponianus, whom he found in[V-10] the greatest consternation. He embraced him with tenderness, encouraged and exhorted him to keep up his spirits, and the more to dissipate his fears, he ordered, with an air of unconcern, the bath to be got ready; when, after having bathed, he sat down to supper with great cheerfulness, or at least, what is equally heroic, with all the appearance of it. In the meanwhile, the eruption from Mount Vesuvius flamed out in several places with much violence, which the darkness of the night contributed to render still more visible and dreadful. But my uncle, in order to soothe the apprehensions of his friend, assured him it was only the burning of the villages, which the country people had abandoned to the flames; after this he retired to rest, and it is most certain he was so little discomposed as to fall into a deep sleep, for being pretty fat, and breathing hard, those who attended without, actually heard him snore. The court which led to his apartment being now almost filled with stones and ashes, if he had continued there any time longer, it would have been impossible for him to have made his way out; it was thought proper therefore to awaken him. He got up and went to Pomponianus and the rest of his company, who were unconcerned enough to think of going to bed. They consulted together whether it would be most prudent to trust to the houses, which now shook from side to side with frequent and violent concussions, or fly to the open fields, where the calcined stones and cinders, though light indeed, yet fell in large showers, and threatened destruction. In this distress they resolved for the fields, as the less dangerous situation of the two. A resolution which, while the rest of the company were hurried into by their fears, my uncle embraced upon cool and deliberate consideration. They went out then having pillows tied upon their heads with napkins, and this was their whole defence against the storm of stones that fell round them. It was now day everywhere else, but there a deeper darkness prevailed than in the most obscure night; which, however, was in some degree dissipated by torches and other lights of various kinds. They thought proper to go down farther upon the shore, to observe if they might safely put out to sea, but they found the waves still run extremely high and boisterous. There my uncle having drank a draught or two of cold water, threw himself down upon a cloth which was spread for him, when immediately the flames, and a strong smell of sulphur, which was the forerunner of them, dispersed the rest of the company, and obliged him to arise. He raised himself up with the assistance of two of his servants, and[V-11] instantly fell down, dead, suffocated, as I conjecture, by some gross and noxious vapour, having always had weak lungs, and frequently subject to a difficulty of breathing. As soon as it was light again, which was not till the third day after this melancholy accident, his body was found entire, and without any marks of violence upon it, exactly in the same posture that he fell, and looking more like a man asleep than dead.

“During all this time my mother and I, who were at Misenum—but as this has no connection with your history, so your inquiry went no farther than concerning my uncle’s death; with that therefore I will put an end to my letter. Suffer me only to add, that I have faithfully related to you what I was either an eyewitness of myself, or received immediately after the accident happened, and before there was time to vary the truth.

“You will choose out of this narrative such circumstances as shall be most suitable to your purpose; for there is a great difference between what is proper for a letter and a history—between writing to a friend and writing to the public. Farewell.”

TO CORNELIUS TACITUS.

“The letter which, in compliance with your request, I wrote concerning the death of my uncle, has raised, it seems, your curiosity to know what terrors and dangers attended me, while I continued at Misenum; for there, I think, the account in my former broke off. Though my shocked soul recoils, my tongue shall tell. My uncle having left us, I pursued the studies which prevented my going with him, till it was time to bathe. After which I went to supper, and from thence to bed, where my sleep was greatly broken and disturbed. There had been for many days before some shocks of an earthquake, which the less surprised us as they are extremely frequent in Campania; but they were so particularly violent that night, that they not only shook every thing about us, but seemed indeed to threaten total destruction. My mother flew to my chamber, where she found me rising, in order to awaken her. We went out into a small court belonging to the house, which separated the sea from the buildings. As I was at that time but eighteen years of age, I know not whether I should call my behaviour in this dangerous juncture courage or rashness; but I took up Livy and amused myself with turning over that author, and even making extracts from him, as if all about me had been in full security. While we were in this[V-12] posture, a friend of my uncle’s who was just come from Spain to pay a visit, joined us, and observing me sitting by my mother with a book in my hand, greatly condemned her calmness, at the same time that he reproved me for my careless security; nevertheless I still went on with my author. Though it was now morning, the light was exceedingly faint and languid; the buildings all around us tottered, and though we stood upon open ground, yet as the place was narrow and confined, there was no remaining there without certain and great danger; we therefore resolved to quit the town. The people followed us in the utmost consternation, and (as to the mind distracted with terror, every suggestion seems more prudent than its own) pressed in great crowds about us in our way out. Being got at a convenient distance from the houses, we stood still, in the midst of a most dangerous and dreadful scene. The chariots which we had ordered to be drawn out, were so agitated backwards and forwards, though upon the most level ground, that we could not keep them steady, even by supporting them with large stones. The sea seemed to roll back upon itself, and to be driven from its banks by the convulsive motion of the earth; it is certain, at least, the shore was considerably enlarged, and several sea animals were left upon it. On the other side a black and dreadful cloud, bursting with an igneous serpentine vapour, darted out a long train of fire resembling flashes of lightning, but much larger. Upon this our Spanish friend, whom I mentioned above, addressing himself to my mother and me with greater warmth and earnestness, ‘If your brother and your uncle,’ said he, ‘is safe, he certainly wishes you may be so too; but if he perished, it was his desire, no doubt, that you might both survive him. Why, therefore, do you delay your escape a moment?’ ‘We could never think of our own safety,’ we said, ‘while we were uncertain of his.’ Hereupon our friend left us, and withdrew from the danger with the utmost precipitation. Soon afterwards the cloud seemed to descend and cover the whole ocean; as indeed it entirely hid the island of Caprea and the promontory of Misenum. My mother strongly conjured me to make my escape at any rate, which, as I was young, I might easily do; as for herself, she said, her age and corpulency rendered all attempts of that sort impossible; however, she should willingly meet death, if she could have the satisfaction of seeing that she was not the occasion of mine. But I absolutely refused to leave her, and taking her by the hand, I led her on: she complied with great reluctance, and not without many reproaches to herself for retarding my flight. The ashes now[V-13] begun to fall upon us, though in no great quantity; I turned my head, and observed behind us a thick smoke, which came rolling after us like a torrent. I proposed, while we had yet any light, to turn out of the high road, lest we should be pressed to death in the dark, by the crowd that followed us. We had scarce stepped out of the path, when a darkness overspread us, not like that of a cloudy night, or when there is no moon, but of a room when it is shut up, and all the lights extinct. Nothing then was to be heard but the shrieks of women, the screams of children, and the cries of men; some calling for their children, others for their parents, others for their husbands, and only distinguishing each other by their voices; one lamenting his own fate, another that of his family; some wishing to die, from the very fear of dying; some lifting up their hands to the gods; but the greater part imagining that the last and eternal night was come, which was to destroy both the gods and the world together. Among these there are some who augmented the real terrors by imaginary ones, and made the frighted multitude falsely believe that Misenum was actually in flames. At length a glimmering light appeared, which we imagined to be rather the forerunner of an approaching burst of flames (as in truth it was), than the return of day; however, the fire fell at a distance from us: then again we were immersed in thick darkness, and a heavy shower of ashes rained upon us, which we were obliged every now and then to shake off, otherwise we should have been crushed and buried in the heap; I might boast that, during all this scene of horror, not a sigh or expression of fear escaped from me; had not my support been founded in that miserable, though strong consolation, that all mankind were involved in the same calamity, and that I imagined I was perishing with the world itself. At last this dreadful darkness was dissipated by degrees, like a cloud of smoke; the real day returned, and even the sun appeared, though very faintly, and as when an eclipse is coming on. Every object that presented itself to our eyes (which were extremely weakened) seemed changed, being covered over with white ashes as with a deep snow. We returned to Misenum, where we refreshed ourselves as well as we could, and passed an anxious night between hope and fear, though, indeed, with a much larger share of the latter; for the earthquake still continued, while several enthusiastic people ran up and down, heightening their own and their friend’s calamities, by terrible predictions. However, my mother and I, notwithstanding the danger we had passed, and that which still threatened us, had[V-14] no thoughts of leaving the place till we should receive some account of my uncle.

“And now you will read this narrative without any view of inserting it in your history, of which it is by no means worthy; and indeed you must impute it to your own request, if it shall appear scarce to deserve even the trouble of a letter. Farewell.”



Shortly after the catastrophe all memorials of the devoted cities were lost; discussions on the places they had once occupied were excited only by some obscure passages in classical authors. Five successive eruptions contributed to bury them still deeper under the surface, and the sixth, which occurred in the year 1036, is the first instance of an emission of lava. Before that time the only agents of desolation were showers of sand, cinders, and scoriæ, together with loose fragments of rock. Volcanic ashes poured out in a current have been known to darken the air for hours, and even for days. Such must have been the nature of the phenomenon which the younger Pliny saw and compared to a lofty pine. Dion Cassius states that the ashes of this eruption were carried as far as Africa, and that the dust was so abundant as even to darken the air in the neighbourhood of Rome. Steam poured out in vast quantities, and uniting with the ashes that fell upon Herculaneum, formed a torrent of mud, imbedding all in solid tufa, whilst the ashes of Pompeii were not impregnated, and all lay in this city loose and unconsolidated. Stones of eight pounds weight fell on Pompeii, whilst Stabiæ was overwhelmed with fragments of about an ounce in weight, which must have drifted in immense quantities. During a later eruption fine ashes were borne by the wind as far as Constantinople. Whilst the ancient cities thus lay buried and forgotten, Neapolis, the residence and burial-place of Virgil,[50] grew into the great modern city of Naples, extending its suburban villages along the shore, and connecting itself by a chain of houses to the very roots of Vesuvius. The next town to Naples is Portici. It contains 6000 inhabitants. Immediately adjoining Portici is the still larger town of Resina, with a population of 11,000 souls. These bustling and much frequented places are built upon the lava which covers Herculaneum.

[50] See Portrait Gallery, No. 121.

[V-15]

DISCOVERY OF THE ANCIENT CITIES.

Part of the Bay of Naples, showing the relative positions of Naples, Herculaneum, Pompeii, and Stabiæ to Mount Vesuvius.

Large map.

In the year 1689, during some excavations in the plain at the foot of Vesuvius, where it was subsequently proved that Pompeii had flourished, a workman observed the regularity with which successive layers of earth and volcanic matter had been deposited. He compared them to pavements one upon the other; with remains of burnt vegetation, charcoal, and common earth beneath each volcanic deposit. Under one of these dense masses of scoria, dust, and pumice stone, he found large quantities of carbonised timber, locks, and iron work, evidently the remains of habitations, which, together with some old keys, and inscriptions giving the name of the locality, satisfied the learned of the day that they belonged to the ancient city of Pompeii. (Venuti, p. 37. Mém. de l’Académie Fran.; Mém. de Littérature, tom. xv. Des Embrasemens du Mont Vésuve, and also Bianchini, Istoria Universale, Roma, 1699, p. 246. Cochin, p. 31). The discovery created little excitement at the time; the government was indisposed to prosecute the research, and no farther excavation was carried on till the year 1749.

Meanwhile, the accidental sinking of a well in another place brought to light such treasures of art as to induce a systematic[V-16] exploration in a more profitable locality. This was in the neighbourhood of Naples, where after seventeen centuries the city of Herculaneum was once more rescued from oblivion. The circumstances which led to the discovery are briefly these. The prince D’Elbœuf, of the house of Lorraine, came to Naples in 1706 (Cochin, p. 35), and ordered the construction of a marine villa for himself at Portici, in 1711. (Venuti, p. 38. Gori, Admiranda, p. 39.) He had a Frenchman in his service, who possessed the art of making a durable stucco from pulverised marble, and as many fragments of antique marbles as possible were collected for the manufacture of his composition. One day a countryman presented himself, asserting that in sinking a well at Resina (Venuti, p. 39), he had discovered a variety of precious marbles, some of which he had brought with him as specimens. These marbles were so beautiful and rare, that the prince was induced to purchase of the man the right of further excavation, and he immediately commenced a systematic course of exploration upon that spot. The stucco prepared by the Frenchman was not only an imitation of precious marbles, but also a cement similar to that employed by the ancients. Most of the antique buildings were so plastered internally, as it was harder and more durable than marble in its natural state. The excavators, therefore, were more delighted when they found large plain slabs and shafts of columns than elaborately carved foliage and statues, because the latter afforded them a smaller quantity of actual material. Stendardo was appointed to direct the works which were carried on branching sideways from the well, just above the level of the water; (Gori, p. 40. Venuti, p. 39. Cochin, p. 37;) at the expiration of two days, they found a statue of Hercules, evidently from a Grecian chisel, and they remarked with astonishment that it had formerly been restored (Gori, p. 40). Some days after this they came upon a female statue, which was at once pronounced to be a Cleopatra (Gori, p. 40). They next extricated a large square mass of marble, and upon removing a crust of bituminous matter it was found to be the architrave of a gateway, with letters of bronze inlaid into the surface. The inscription was

APPIVS. PVLCHER. CAII. FILIVS.
VIR. EPVLONVM.
(Venuti, p. 39.)

Many columns of variegated alabaster were next discovered, and this led to the excavation of a circular temple, with twenty-four columns, and statues of Greek marble between them (Gori, p. 41). The pavement of this building was constructed of that rich yellow[V-17] marble, called Giallo antico, and many columns of the same material lay in the vicinity. Seven of the twelve figures belonging to the temple were female, executed in a superior Grecian style. Prince Elbœuf dispatched them to Vienna as a present to Prince Eugene of Savoy (Venuti, p. 39). The best of these statues were afterwards sold to the King of Poland for 60,000 scudi; they are now at Dresden, and engraved in plates 19 to 26 of Becker’s “Augusteum” (Winckelmann, Werke, vol. ii. p. 135). The prince evidently knew very little of the real value of his discoveries, and during the next five years continued disinterring pieces of mosaic alabaster slabs, and a few statues, some of which decorated his villa, and the rest were sent over to France. Upon the discovery of a beautiful statue of one of the daughters of Balbus, the state interfered, and the Neapolitan government prohibited any further excavations. For thirty years the site was almost forgotten. In 1736, the King Carlo III. (Borbone) resolved to build a palace at Portici, and the ancient well was once more resorted to. The excavations were resumed, and very important results followed.

Animated discussions were still maintained respecting the name of the ancient city, for a city the excavations had already proved it to be. A communication to the Royal Society by a Mr. Sloane, in 1740, exhibits the matter as still in a state of uncertainty. The Marquis Venuti, keeper of the Farnese library which Carlo Borbone had inherited from Rome, was appointed superintendent of the excavations at Resina. He has left minute records of his proceedings both in the “Admiranda Notizia,” 2 et. seq., of Gori, and in his own work published at Venice and London, 1750. He commenced 12th November, 1738, by carrying on a kind of tunnel laterally from the old well. In a short time (Venuti, p. 40. Gori, p. 42) two bronze equestrian statues were found, and soon after three full length marble figures, larger than life, of Roman dignitaries, dressed in the toga, with massive piers of brick between, plastered with stucco, and painted with arabesques in various colours. The excavators had now reached the interior of the theatre, which the numerous seats and steps clearly indicated. An inscription, moreover, on the architrave contained part of the word Theatre, the name of the person at whose cost the building was erected, and that of the architect. A second inscription on the corresponding architrave of the opposite side is almost a repetition:—

Text

L. ANNIVS. L. F. MAMMIANVS. RVFVS. IIVIR. QVINQ. THEATR... O....
P. NVMISIVS. ARC... TEC...

(Gori, p. 42. Venuti, p. 42.)

[V-18]

These architraves covered the side entrances to the orchestra, and both of them supported a colossal group in bronze of a chariot and two horses. The central group of the building was a quadriga, and probably represented the emperor in his chariot with four horses. All these bronze statues had been gilt. Some fine columns of rosso antico were transported to the cathedral of Naples, and others to the Royal Palace; they appear to have adorned the proscenium (Venuti, p. 71). The theatre was one of the most perfect specimens of ancient architecture. It had, from the floor, upwards of eighteen rows of seats (Gori, 44), and above these three other rows which seem to have been intended for the female part of the audience, and were covered with a portico to screen them from the rays of the sun. Statues of Drusus and Antonia, and of the nine Muses, were found in other parts of the building. A bronze colossal statue of Titus filled with lead (Gori, p. 45) was so heavy that twelve men were unable to move it. Many other bronze statues of municipal authorities and benefactors were found with their respective inscriptions.

The theatre was capable of containing 8000 persons. Nearly the whole of its surface, as well as the arched walks leading to the seats, was cased with marble. The area or pit was floored with thick squares of giallo antico, the beautiful marble of a yellowish hue. The pedestal, of white marble, which supported a chariot and four bronze horses, is still to be seen in its place; but the group itself had been crushed and broken in pieces by the immense weight of lava which fell on it. The fragments having been collected, might have been easily reunited, but they were carelessly thrown into a corner, like old iron, and part of them were stolen. The body of one horse and part of the charioteer, being deemed useless, were accordingly fused, to be converted into two large framed medallions of their Neapolitan Majesties. The remaining fragments were cast into the vaults of the royal palace; and, at last, it was resolved to make the best use of what was left; which was, to convert the four horses into one, by taking a fore leg of one of them, a hinder leg of another, the head of a third, and where the breach was irremediable, to cast a new piece. To this contrivance, the famous bronze horse now in the Museum owes its existence; and, considering its patchwork origin, still conveys a high idea of the skill of the ancient artist. A pompous inscription upon its pedestal records the circumstances of its construction (Bronzi di Ercolano, vol. ii., page 255).

On the south side of the theatre, stood a basilica or public[V-19] building which contained the celebrated equestrian statues of the Balbi—of one block of marble (Gori, p. 59),—These fine statues possess the additional value of having finally set at rest the question respecting the proper name of the city. On the front of the pedestals is inscribed—

M. NONIO. M. F.
BALBO. PR. PRO. COS.
HERCVLANENSES.

(Gerhard, Neapel. p. 22. Gori, p. 167. Venuti, p. 59.)

The certainty of this city having been the ancient Herculaneum is said to have materially increased the energy of the excavators. In the same basilica were found the famous pictures of Hercules and Telephus, Theseus and the Minotaur, and many others, together with bronze statues of Nero and Germanicus, and a Vespasian, with two sitting figures of marble, nine feet high. The streets of the city were paved with blocks of lava, they were flanked with causeways, and lined with porticos. The private buildings, which resembled those of Pompeii, were very difficult of access, from the nature of the material that overwhelmed them, and could only be examined in small portions at a time. No maps of sufficient accuracy have been laid down of the earliest excavations, and it will be better to reserve all accounts of domestic arrangements till we can illustrate them by the Pompeian remains. One large villa, however, seems to have been a very important structure. It was surrounded by a garden enclosed within a square wall and ditch. The floors were ornamented with beautiful mosaics and the halls contained a rich variety of busts and statues. One of the chambers served the purpose of a bath; another, supposed to have been a sacrarium, was painted with serpents, and within it was found a brazen tripod, containing cinders and ashes; but the most curious discovery of all, was an apartment in this villa used as a library, and fitted up with wooden presses around the walls, about six feet in height; a double row of presses stood in the middle of the room, so as to admit of a free passage on every side. The wood of which the presses had been made was burned to a cinder, and gave way at the first touch; but the volumes, composed of a much more perishable substance, the Egyptian or Syracusan papyrus, were, although completely carbonised, through the effect of the heat, still so far preserved as to admit of their removal. A number of these supposed pieces of charcoal were at first carried off, which by accidental fracture exposed the remains of[V-20] letters and proved to be so many ancient manuscripts. The Greek manuscripts consisted of rolls scarcely a foot in length, and but two or three inches in thickness. Some had a label in front, at one end of the roll, with the name of the work or the author, which was visible from its place in the library.[51]

[51] See a Pompeian painting described at p. 50, Cubiculum 3.

The sixteen centuries during which the substances had been crushed together, rendered it almost hopeless to unroll, and still less to decipher them; but Camillo Paderni devoted twelve days to the occupation underground, and succeeded in carrying away 337 manuscripts. Almost all are in Greek, very few in Latin, and some of the rolls are forty or fifty feet in length. The lines are arranged in columns across the shortest surface, as in our newspapers, each line extending only about two or three inches in length. The greater part of the works in this collection relate to Epicurean philosophy. Their decipherment has naturally occupied much of the attention of the learned, and many of the manuscripts have been published at Oxford.

The condition of Herculaneum was at the period of its discovery more interesting and much more worthy the notice of the traveller than it is at present. The object of its excavation having unfortunately been confined to the discovery of statues, paintings, and other curiosities, and not carried on with a view to lay open the city, and thus to ascertain the features of its buildings and streets, most of the latter were again filled up with rubbish as soon as they were divested of everything moveable. Even the marble was torn from the temples.

Herculaneum may therefore be said to have been overwhelmed a second time by its modern discoverers; and the appearance it previously presented can now only be ascertained from the accounts of those who beheld it in a more perfect state. The existence of the large towns of Portici and Resina overhead render it impossible for many parts of the excavations to remain open to the sky; one portion, however, was allowed to be so until the sinking of the main road, subject to incessant traffic, compelled the government to have the undercuttings filled in, and the apertures blocked up. A part of the city nearer to the mountain has been thrown open and the sun is again permitted to shine upon gardens and habitations now desolate and mouldering.

From the hard nature of the rock at Herculaneum, the city was for a long time supposed to have been buried in lava, and the[V-21] darkness and obscurity of the passages prevented the discovery of the truth. But now, since daylight has been admitted, the whole mass is found to be nothing more than hard tufa, rendered, at the lower parts, still more compact by the percolation of water, which in all cases leaves the finest possible sediment. Lava is stone that has been actually melted, and flows over the surface in the same way as molten iron issues from a furnace. The beds of real lava may be easily distinguished in the upper levels of the earth laid open in these excavations. All the timber of the houses has been completely reduced to charcoal, but every beam was found perfect as to shape and in its proper position; many of the bronzes, however, were melted. These effects seem to be the result of an intense heat diffused through the entire mass at a subsequent period; for, at the time of the first eruption, great quantities of boiling water appear to have been mixed with the fine dust and scoria, the same materials that fell dry and loose upon Pompeii.

An entrance from the road at Resina to the excavations was formed in 1750. It is still the only means of access to the most important buildings, and consists of a narrow passage cut through the solid lava. The ancient city lies at a depth of seventy feet below the modern level.

The great difficulty of excavating Herculaneum, on account of the soil above being occupied by crowded habitations, induced the government to turn their attention more particularly to Pompeii.

“Nearly seventeen centuries had rolled away when the City of Pompeii was disinterred from its silent tomb, all vivid with undimmed hues; its walls fresh as if painted yesterday, not a hue faded on the rich mosaic of its floors; in its forum the half-finished columns as left by the workman’s hands; in its gardens the sacrificial tripod; in its halls the chest of treasure; in its baths the strigil; in its theatres the counter of admission; in its saloons the furniture and the lamp; in its triclinia the fragments of the last feast; in its cubicula the perfumes and the rouge of faded beauty; and everywhere the bones and skeletons of those who once moved the springs of that minute, yet gorgeous machine of luxury and of life.

“In the house of Diomed, in the subterranean vaults, twenty skeletons (one of a babe) were discovered in one spot by the door, covered by a fine ashen dust, that had evidently been wafted slowly through the apertures, until it had filled the whole space. There were jewels and coins, candelabra for unavailing light, and wine hardened in the amphoræ for a prolongation of agonised life.[V-22] The sand, consolidated by damps, had taken the forms of the skeletons as in a cast; and the traveller may yet see the impression of a female neck and bosom of young and round proportions.

“It seems to the inquirer as if the air had been gradually changed into a sulphurous vapour; the inmates of the vaults had rushed to the door to find it closed and blocked up by the scoria without, and, in their attempts to force it, had been suffocated with the atmosphere.

“In the garden was found a skeleton with a key by its bony hand, and near it a bag of coins. This is believed to have been the master of the house, who had probably sought to escape by the garden, and been destroyed either by the vapours or some fragment of stone. Beside some silver vases lay another skeleton, probably of a slave.

“The houses of Sallust and of Pansa, the temple of Isis, with the juggling concealments behind the statues—the lurking place of its holy oracles—are now bared to the gaze of the curious. In one of the chambers of that temple was found a huge skeleton with an axe by the side of it: two walls had been pierced by the axe—the victim could penetrate no farther. In the midst of the city was found another skeleton, by the side of which was a heap of coins and many of the mystic ornaments of the fane of Isis.”[52]

[52] Bulwer’s “Last Days of Pompeii.”

Linen and fishing nets; loaves of bread with the impress of the baker’s name; even fruits, as walnuts, almonds, peach-stones, and chestnuts, were distinctly recognisable. Eggs have been found whole and empty, and a jar of oil had olives still floating in it; the oil burnt upon application of flame, but the fruit was flavourless. Very few jewels were discovered, which shows that the inhabitants had time to escape; a wooden comb was found with teeth on both sides, closer on one side than the other. Lace fabricated of pure gold, a folding parasol similar to those now in use, a case of surgeon’s instruments, balances, sculptors’ tools, chisels and compasses, writing materials, vessels of white cut and coloured glass, coals collected for fuel, and wine still remaining in jars, may all be found in the curious catalogue of articles that had braved the lapse of time. Other circumstances there are which claim our better feelings. At the city gate, the sentinel, faithful to his trust, was found in his sentry box, a skeleton, clothed in

“The very armour he had on,”

when his dreadful doom overtook him; in the barracks, near the[V-23] triangular forum, malefactors were found in the public stocks; the crumbling remains of prisoners were discovered in the dungeons near the temple of Jupiter, no one in that hour of general horror and confusion having thought of them or of their wretchedness, in being thus immured alive. The bones of the ass, that worked the baker’s mill, were found there; the skeletons of horses remained in the cribs in which they had been stabled for the last time.

The discoveries that had been made long before the arrival of Prince Elbœuf, and which were communicated to the French Academy of Science, 1689, were remembered by the Neapolitan Government, and in the beginning of the year 1749 we have the first authentic reference to the ancient city of Pompeii. “On the 18th of January, at a place called Civita,” so runs the official announcement, “not far from Torre dell’ Annunciata, where the ancient Pompeii may have been, was found an apartment decorated with sixteen charming little dancing females brightly coloured, two centaurs and figures, bands of arabesques forming panels with Cupids in the midst, and twelve fauns dancing on a rope, all upon a black ground.” (Pitture d’Ercolano, vol. i., p. 93, tavole 17 to 28, and vol. iii., tavole 28 to 35 inclusive.) They are very small figures, and have since been removed to the Museo Borbonico. About the same time a labourer, whilst ploughing in the neighbouring fields, found a statue of brass.

Among the earliest buildings excavated at Pompeii was the Amphitheatre; it was cleared in 1755, and seems to have been capable of holding ten thousand people (Pompeiana, p. 259). In the amphitheatre, games were held, gladiators fought for their lives with wild beasts, or with one another, and these savage spectacles were under the particular superintendence of an edile. We are informed by Dion Cassius, that the eruption came on whilst the populace were assembled in the theatre, but which of the theatres is meant, as there were several, remains doubtful. Thus far is certain, that sufficient time was left for escape, as no skeletons were found in either of them. From the seats of this amphitheatre may certainly be obtained the grandest view of the mountain, and if, as Bulwer’s admirable romance “the Last Days of Pompeii” depicts it, the assembly was held on this spot, the first signs of the coming destruction would have been seen by all the multitude. An announcement connected with these performances has since been discovered upon the walls of the Basilica. A placard—the playbill of those times—announced that the troops of gladiators belonging to Ampliatus would contend in the amphitheatre on the 17th[V-24] of May, and that another exhibition would take place on the 31st, exactly three months before the destruction of the city.

The Temple of Isis was accidentally discovered in 1765, by some workmen employed in making a subterraneous aqueduct to Torre dell’ Annunciata. These discoveries induced Charles III. to transfer his attention exclusively to Pompeii (Pompeiana, p. 5). The Triangular Forum, the Temple of Æsculapius, and the two great theatres were all laid open in the course of two or three successive years. These buildings are all in the same quarter of the town, but quite remote from the great forum and public buildings which were not discovered until 1816.

It is a remarkable fact that Fontana, the great architect, carried a subterraneous canal in 1592 directly under the court of the Temple of Isis. He was employed to convey the waters of the river Sarno to the town of Torre dell’ Annunziata; and it seems wonderful that the existence of this interesting city was not made known at the time.

The situation of Pompeii, as it originally stood upon an elevation surrounded by a fertile plain, is well shown in the accompanying view. The eminence marked in the woodcut by the long pale light mounds on the right between the tower of a farm-house and the base of the volcano, is the site of the city. Pompeii was never buried beneath the surface of the ground; on the contrary, many of its walls were always conspicuous, as, for instance, that at the back of the tragic theatre. The locality seems to have been known to the peasants of the vicinity by the name of civita (city). The rains of successive seasons may probably have carried away most of the stones and ashes that fell around the city, whilst the walls of the houses themselves would serve to retain all that had fallen upon them.

Other villas also were excavated at Gragnano, the ancient Stabiæ, and most of their decorations were removed to the Museo Borbonico. The baths discovered at Stabiæ, in 1827, were very interesting. They are described in “Gell’s Pompeiana,” 2nd series, vol. i. pp. 131 and 140.

Bay of
Naples.
The river
Sarnus.
  Mounds marking the extent of Pompeii.

VIEW OF VESUVIUS, FROM BETWEEN CASTELLAMARE AND GRAGNANO.

For our present purpose, the public buildings and temples of Pompeii and Herculaneum require a less detailed account; a slight enumeration of them, however, is necessary to show the extent and importance of the community, whose taste and refinement required such dwellings for their private enjoyment, and also to prove that the buildings, from which many of the designs on the walls of the Pompeian Court have been taken, do not owe their origin[V-25]
[V-26]
to the slight and flimsy taste prevailing among the frequenters of a seaside town in the modern sense of the word, but to the higher refinement and habits of those who, leaving Rome in the heat of a summer sun, sought the ease and indulgence of a life such as Campania alone afforded, and yet could not tolerate the contrast of an inferior art around them. This is proved by a comparison of the Pompeian decorations with those of the same period in the baths of Titus, at Rome. The same style and the same peculiarities of taste are evident, and they perfectly illustrate the remarks of Vitruvius, which will be considered in a future place.

When the French occupied Naples, the walls surrounding the city were entirely cleared; this was in October, 1812, and in the March following the street of tombs. Murat defrayed most of the expenses of excavation, and in a short time the Forum and Basilica, with the adjacent buildings, were laid open. At one time 3000 men were employed in the work of exploration.

The Forum (1816) is the largest and by far the grandest spot in Pompeii. It is surrounded by a Grecian Doric colonnade, the Temple of Jupiter, two triumphal arches, forming the north end, and the Temple of Venus and Basilica on the west. Facing the Temple of Jupiter were large buildings, profusely decorated with statues, called the Curiæ and Ærarium, and the remaining side of the forum was occupied by various buildings, among them the Pantheon and the Chalcidicum of Eumachia; these were excavated between 1817 and 1821. The discovery of the public baths did not take place till 1824. These contributed materially to a better comprehension of many passages in ancient authors, being more perfect examples than the vast ranges for similar purposes still existing at Rome.

Tlie general result of the Pompeian excavations up to the present time may be thus summed up; three forums, nine temples, a basilica, a chalcidicum, three piazze, an amphitheatre, two theatres, a prison, double baths, nearly one hundred houses and shops, several villas, town walls, six gates, and twelve tombs.

The impression likely to be produced on the mind of a spectator from the scene in its present condition, may be gathered from the following passages extracted from my own journal, recording my first visit to Pompeii, September 16th, 1843.

[V-27]

JOURNAL.

“By half-past ten we were at the railway station, just outside the gates of Naples, and immediately started for Pompeii. The line of rail continues along the shore of the bay; nothing can exceed the bustle, confusion, and want of system on this amusing road. There exists neither distinction of classes nor limitation of luggage, so that fruit-stalls and puppet-shows—Polichinello, by the way, is here in his native land—are heaped together in the carriages. The first station we reached was Portici, the next Resina, accompanied by the classic cry of Ercolano—signore, Porta d’Ercolano—then Torre del Greco, where heaps of lava piled one upon the other, attest the awful eruption of the last century. Torre dell’ Annunciata being the nearest station to Pompeii we alighted here, and proceeded along a dusty road, lined with cactus, poplar, stone pine, and the castor-oil tree. Festoons of the richest vines hung from tree to tree, and the black clusters peeped out beneath the broad-spread leaves, already beginning to change into the gold of the approaching Autumn. The fields were teeming with corn, hemp, and cotton. No beggars, the pest of Naples, crowded round our carratella, and the dust which rolled in dense clouds was our only annoyance. We now turned our thoughts to Pompeii. A small guard house of soldiers marked the entrance to these classic precincts, and for some distance further the road was planted with willows, producing a rich and solemn effect, and well preparing us for the street of tombs which soon broke upon our view. The road was lined with tombs for a considerable distance before we approached the city gate, called Porta d’Ercolano, on the Herculaneum side; but previously to examining the tombs, we diverged to the right to explore the villa of Diomed, where we found everything in exact accordance with the description of Sir William Gell and Mr. Malkin’s work, ‘Pompeii,’ by the Society of Entertaining Knowledge.

“The tombs are all small but minutely ornamented, the upper parts still remain, and they appear altogether much more complete than I had expected. The gate of Herculaneum, with its grooves, sentry box, and road-pavements, corresponds exactly with prints and descriptions given by numerous travellers.

“At this point of view, little is really wanting. The eye pursues a long line of ascending road, with tombs and thick trees on each side, broken only by the gate of the city, through the arch of which a long continuation of houses is clearly visible. We entered[V-28] the city; everything is on a small scale, but the walls at this entrance to the city seem high in proportion; the footway and carriage-road remain undisturbed, and still retain the track of chariot wheels. The motion and noise of inhabitants alone seem wanting—no decay is visible, and the impression produced by the scene was that of a populous city during church time. We wandered on through streets and lanes, prying into buildings both public and private, after the manner of that wonderful prince mentioned in the ‘Arabian Nights Entertainments,’ who explored a city, the inhabitants of which had been turned into stone.

“In the shops, many of the walls remain perfect, roofs alone have disappeared, but counters, doorways, and depositaries are just such as we see daily at Naples, and scarcely inferior in point of freshness.

“The mosaic strewn floors are wonderfully perfect—a little patching and inequality of level caused by the previous earthquake are here and there perceptible; the chief difficulty at first is to know the floor from the pavement, that is, to distinguish the inside of a house from the courtyard. All external walls were plastered and coloured, so that a mistake might easily arise.

“The Houses of the Quæstor, Sallust, and the Faun, are exquisite specimens of proportion and arrangement in domestic building. The beautifully painted walls, columns, and inlaid marble or mosaic floor, combine with the deep blue sky, forming so glorious a whole that the rooflessness is forgotten, and the eye reposes with delight on the assembled harmonies.

“The whole city is encompassed by enormous mounds of debris, under which it was formerly buried. These lumps are now caked together, and in their sloping sides trees have already sprung up, so that all appearance of rubbish is fortunately concealed.

“I was greatly disappointed with the scale of many objects, especially the Baths. Sir William Gell’s views are very correct, but the living figures introduced are on an utterly false scale. The Telamons, a series of terra-cotta figures, tinted red, with yellow hair and drapery, supporting the frieze, seem, in his pictures, the size of life, whereas they are only two feet high, one-third in fact of the size they are made to appear in his drawings.

“Modern roofs are extended over all parts retaining ornament, stucco, or paintings; some of the finest mosaics are carefully boarded over—the famous lion, for instance—whilst others are protected by coarse glass frames with slides such as we use for cucumber-beds in kitchen gardens. A beautiful marble pavement attracted our attention, in the house of Actæon or Sallust, but the great mosaic[V-29] of Darius is not visible, being plastered over preparatory to its removal to Naples. The borders alone remain uncovered. The Forum, with its Basilica, temples of Jupiter, Vesta, and Venus, are only realisations of my previous conception, allowing, as before, for the reduction of size. The best mosaics, paintings, statues and bronzes have been removed to Naples, but their place is frequently supplied by copies, which serve equally well to illustrate their effect.

“The tragic theatre is complete in form; the stone seats, however, have nearly all disappeared. The amphitheatre is considerably distant from the rest of the excavations; it is remarkably perfect, and the view of Vesuvius from the summit of this building is surprisingly grand. It contrasts strangely with the beautiful limestone range of mountains on the other side of the bay. Vesuvius appears more rugged and frowning in this aspect—beheld from the remains of its victim—than from the more-frequently painted scene, the Chiaja of Naples. The deep blue and gray-brown of the volcano is studded with white dots, each of which is a villa or hermitage, creeping up to the mouth of the crater, regardless of the warnings of the buried cities, and the devastation at its roots in Torre del Greco, and in Nola of the plain beyond. They seem like flies settled on the head of a sleeping monster, or, to speak in better phrase, like white sails on the calm and azure sea, which, at the moment I am writing, seems incapable of harbouring the terrors and destruction which mankind so frequently experience, and which two days ago we saw in all their sublimity.

“In the baths of Pompeii a slight refreshment was offered us, and at a little farm-house in the neighbourhood of the amphitheatre, we enjoyed a more substantial meal. The comic theatre is small, but much more perfect than the one previously visited. In all the public buildings a commencement of restoration after the earthquake was clearly visible, especially in the forum.

“Vegetation takes root, at every opportunity, between cracks of stones, or wherever mould is collected; grass there is none. The wild fig and the luxuriant fern are the most frequent intruders, but they do not spread sufficiently to afford shelter, and the walls themselves are not high enough to serve as protection against the scorching sun. As the sun neared the horizon, we were warned to depart, and, mounting our car in preference to the railway, we rattled off along the high road, well pleased with a journey that, after defraying all expenses, did not exceed the cost of 3s. 4d. So ended my first day at Pompeii, 1843.

“I could not help contrasting all this with our first visit to[V-30] Herculaneum, which is entirely underground, imbedded in hard tufa, and exposed only in small portions protruding here and there, where we threaded long caverns and galleries cut in the wet, cold, and dripping material, the bad vapours of which are very dangerous. I would compare Herculaneum to a geological fossil half worked out of the compact material which surrounds it. There is an important difference in the overwhelming of the two cities. Pompeii was covered solely with fine dust and powdered scoria, all dry but rendered compact by the great pressure of the fallen mass. Herculaneum was filled up by a dense rolling liquid, or rather paste of fine powder mixed with boiling water strongly impregnated with sulphur, and forming what has now become a perfectly hard compact stone, and only to be removed with the axe. In Pompeii all excavations are carried on with the shovel, as the dry powder easily gives way.”

The private houses of Pompeii have been variously named, sometimes from an inscription on the door post, or from the subject of some principal painting, at other times from the supposed occupation or condition of the owner, or from a peculiar object found in the dwelling; and not unfrequently the presence of some distinguished person at the time of excavation has conferred a lasting title on some particular remains. The application of these names will be seen in the houses of Pansa, of Meleager, the Quæstor, the Surgeon, the Fountain, and that of Queen Caroline. Some of the houses have had the names changed, as that of the Tragic Poet is now called the House with Homeric Paintings. All the houses seem to have been buried somewhat higher than the top of the ground floor. Upon this bed of ashes is found a layer of ashes mixed with mould, and remains of buildings to the depth of seven feet. The moisture retained in the vegetable mould had destroyed the surface of the paintings, and not unfrequently the pattern was seen on the mould to which the stucco still adhered. In this manner has the decoration of the upper apartments been destroyed, and the pressure of superincumbent masses has crumbled the woodwork. That the houses had upper ranges of chambers is evident from the remains of staircases leading to them both within and without. The first floors were nobly paved, mosaics having been found at various levels one above the other. Ceilings also were variously decorated with paintings like the walls, and sometimes composed of stucco. Mr. Falkener (pp. 66 and 67) observed a gorgeously ornamented ceiling to a tablinum. It consisted of a large circle in a square panel boldly moulded, and[V-31] enriched with stucco ornament, with ultramarine, vermilion, and purple colouring, together with a profusion of gilding. Fragments of equally elaborate ceilings were found in such a position as to lead to the conviction that they belonged to apartments of different stories, one above the other.

The visitor to Pompeii is generally struck with the intensity and crudeness of the colours on the walls. This is easily accounted for in the necessity for the exclusion of light in hot countries; for with light heat comes also, and all who have visited Italy will remember the care with which the modern sitting rooms are darkened during daytime. The strength of these colours would thus be always toned down by shade.[53] With all the variegation of colour in these Pompeian walls, one pervading principle may be observed, viz., that the strongest and darkest colours are confined to the bottom of the room. Thus if the dado, or lower part of the wall, be black, the rest will be red or yellow, and the ceiling white; and if the dado be red, the rest of the wall yellow or blue. If the dado be yellow, all the rest of the room will be white.

[53] See page 65.

ARRANGEMENT OF A POMPEIAN HOUSE.

                   
  Painted Garden.  
Peristyle.   Fauces. Ala. Cubiculum.
Tablinum. Impluvium.  

INTERIOR OF THE ATRIUM OF THE HOUSE OF THE TRAGIC POET, ACCORDING TO THE RESTORATION OF SIR WILLIAM GELL.

The principal divisions of a Roman house consist of three[V-32] square chambers, leading one into the other; the first and last of these are lighted by a square opening in the middle of the ceiling, but the central apartment is destitute of any means for the entrance of the daylight; in fact, it receives only such light as can be communicated from the rooms on either side; still as there was no actual partition between these chambers, beyond that made by curtains,[54] sufficient light must have obtained entrance, which could be modulated at pleasure. The name of this central room was the Tablinum. The first room, which is generally the largest, is called the Atrium, and has a square tank or basin in the middle of the floor to collect the water dropping from the roof, and to receive the falling rain, as the apartment is directly open to the sky. The aperture in the roof is not very large, and this arrangement for the free descent of rain affords two essential luxuries to the inhabitant of a southern climate—shade and moisture. In a country like our own it is scarcely possible to estimate their value.

[54] Sir William Gell (vol. i. p. 160 of Pompeiana, Second Series) states that the iron rods on which curtains or draperies were suspended from column to column were discovered perfect in an excavation at Herculaneum in 1828.

The further room had a larger aperture above, and the open space below was laid out with plants like a garden, bordered with columns, so that the narrow covered space left on each side formed a miniature cloister. It was called Peristyle, from the Greek words, meaning surrounded by columns. In the map of ancient Rome, made in the time of Septimius Severus, this arrangement in the private houses is distinctly visible. As in our modern houses, the proportions varied both according to the caprice of the owner, or the limitations of space. Some had a greater number of apartments, and others a double set. Not a few added an extensive series of domestic offices, dining-rooms, and bed chambers, some of them up stairs. Many houses had a second and third story of bed-rooms above the common level, but in all well constructed houses, whatever the rank of the owner, these three apartments, Atrium, Tablinum, and Peristyle, remain the essential portions. Here, as much of the life of a leading citizen was public, he received his clients and allowed the slaves to wait upon him. It was only in the inner apartment, such as the œci and triclinia, that he could indulge in privacy.

In the better class of houses, the Atrium was generally surrounded by smaller rooms, called cubicula, and the square of the Atrium was broken by the further part being widened on each side T fashion, into alæ, or wings, which correspond to the transepts of[V-33] our cathedrals. The tablinum, again, was narrowed by a partition which took off a side passage, called fauces, through which the servants passed from one end of the house to the other without disturbing those occupied in the middle chamber. The floor of this tablinum was frequently ornamented with elegant pictures, in mosaic, as that of the Tragic Poet’s House, by the choragus teaching his actors, and distributing his masks (Gell, vol. i. pl. 45). The famous large mosaic, the Battle of Issus, in the House of the Faun, has already been mentioned. In some houses, but very rarely, there was a passage on both sides of the tablinum; as in the reproduction described in these pages, the House of the Coloured Capitals, and a few others, but the majority have one only.

The reader may derive a clearer and certainly a more poetical idea of an ancient house from the following extracts from Sir Bulwer Lytton’s “Last Days of Pompeii.” The house which he describes is taken from a personal examination and the assistance of his antiquarian friend, Sir William Gell:—

“You enter then usually by a small entrance passage, called vestibulum, into a hall sometimes with—but more frequently without—the ornament of columns; around three sides of this hall are doors communicating with several bedchambers—among which is the porter’s—the best of these being usually appropriated to country visitors. At the extremity of the hall on either side to the right and left, if the house is large, there are two small recesses, rather than chambers, generally devoted to the ladies of the mansion; and in the centre of the tessellated pavement of the hall is invariably a square shallow reservoir for rain water—classically termed impluvium—which was admitted by an aperture in the roof above, the said aperture being covered at will by an awning. Near this impluvium, which had a peculiar sanctity in the eyes of the ancients, were sometimes—but at Pompeii more rarely than at Rome—placed images of the household gods. The hospitable hearth often mentioned by the Roman poets, and consecrated to the Lares, was at Pompeii almost invariably formed by a moveable brazier; while in some corner, often the most ostentatious place, was deposited a huge wooden chest, ornamented and strengthened by bands of bronze or iron, and secured by strong hooks upon a stone pedestal, so firmly as to defy the attempts of any robber to detach it from its position. It is supposed that this chest was the moneybox, or coffer, of the master of the house; though as no money has been found in any of the chests discovered at Pompeii, it is probable that it was sometimes rather designed for ornament than[V-34] use. In this hall—or atrium, to speak classically—the clients and visitors of inferior rank were usually received. In the houses of the more ‘respectable,’ an atriensis, or slave peculiarly devoted to the service of the hall, was invariably retained, and his rank among his fellow-slaves was high and important. The reservoir in the centre must have been rather a dangerous ornament; but the centre of the hall was like the grass plot of a college, and interdicted to the passers to and fro, who found ample space in the margin. Right opposite the entrance at the other side of the hall, was an apartment (tablinum), in which the pavement was usually adorned with rich mosaics, and the wall covered with elaborate paintings. Here were usually kept the records of the family or those of any public office that had been filled by the owner; on one side of this saloon, if we may so call it, was often a dining-room or triclinium; on the other side, perhaps, what we should now term a cabinet of gems, containing whatever curiosities were deemed most rare and costly; and invariably a small passage for the slaves to cross to the further parts of the house without passing the apartments thus mentioned. These rooms all opened on a square or oblong colonnade, technically termed peristyle. If the house was small its boundary ceased with this colonnade, and in that case its centre, however diminutive, was ordinarily appropriated to the purpose of a garden, and adorned with vases of flowers placed upon pedestals; while under the colonnade, to the right and left, were doors admitting to bedrooms, to a second triclinium, or eating-room—for the ancients generally appropriated two rooms at least to that purpose, one for summer and one for winter, or perhaps one for ordinary, the other for festive occasions—and if the owner affected letters, a cabinet dignified by the name of library—for a very small room was sufficient to contain the few rolls of papyrus which the ancients deemed a notable collection of books.

“At the end of the peristyle was generally the kitchen. Supposing the house was large, it did not end with the peristyle, and the centre thereof was not, in that case, a garden, but might be perhaps adorned with a fountain or basin for fish; and at its end, exactly opposite to the tablinum, was generally another eating room, on either side of which were bed rooms, and perhaps a picture saloon or pinacotheca. These apartments communicated again with a square or oblong space, usually adorned on three sides with a colonnade like the peristyle, and very much resembling the peristyle, only usually longer. This was the proper viridarium or garden, being commonly adorned with a fountain or statues, and a[V-35] profusion of gay flowers; at its extreme end was the gardener’s-house; on either side beneath the colonnade were sometimes, if the size of the family required it, additional rooms.

“At Pompeii, a second or third story was rarely of importance, being built only above a small part of the house and containing rooms for the slaves; differing in this respect from the more magnificent edifices of Rome, which generally contained the principal eating-room (or cœnaculum) on the second floor. The apartments themselves were ordinarily of small size; for in those delightful climes they received any extraordinary number of visitors in the peristyle (or portico), the hall, or in the garden; and even their banquet rooms, however elaborately adorned and carefully selected in point of aspect, were of diminutive proportions; for the intellectual ancients being fond of society, not of crowds, rarely feasted more than nine at a time, so that large dinner rooms were not so necessary with them as with us. But the suite of rooms seen at once from the entrance, must have had a very imposing effect: you beheld at once the hall richly paved and painted—the tablinum—the graceful peristyle, and if the house extended further, the opposite banquet-room, and the garden which closed the view with some gushing fount or marble statue.

“The reader will now have a tolerable notion of the Pompeian houses, which resembled in some respects the Grecian, but mostly the Roman fashion of domestic architecture. In almost every house there is some difference in detail from the rest, but the principal outline is the same in all. In all, you find the hall, the tablinum, and the peristyle, communicating with each other; in all you find the walls richly painted; and in all the evidence of a people fond of the refining elegances of life. The purity of the taste of the Pompeians in decoration is, however, questionable; they were fond of the gaudiest colours, of fantastic designs; they often painted the lower half of their columns a bright red, leaving the rest uncoloured: and where the garden was small, its wall was frequently tinted to deceive the eye as to its extent, imitating trees, birds, temples, &c., in perspective; a meretricious delusion which the graceful pedantry of Pliny himself adopted with a complacent pride in its ingenuity.”

The novelist then proceeds to describe the house known by the name of the Tragic Poet. (See plan No. 2 on page 38.)

“You enter by a long and narrow vestibule, on the floor of which is the image of a dog in mosaic, with the well-known ‘Cave canem,’ or ‘Beware the dog.’ On either side is a chamber of some[V-36] size: for the interior part of the house not being large enough to contain the two great divisions of private and public departments, these two rooms were set apart for the reception of visitors who, neither by rank nor familiarity, were entitled to admission in the penetralia of the mansion.

“Advancing up the vestibule, you enter an atrium that, when first discovered, was rich in paintings, which in point of expression would scarcely disgrace a Raphael. You may see them now transplanted to the Neapolitan Museum; they are still the admiration of connoisseurs—they depict the parting of Achilles and Briseis.

“Who does not acknowledge the force, the vigour, the beauty, employed in delineating the forms and faces of Achilles and the immortal slave?

“On one side of the atrium, a small staircase admitted to the apartments for the slaves on the second floor; there also were two or three small bedrooms, the walls of which portrayed the Rape of Europa, the battle of the Amazons, &c.

“You now enter the tablinum, across which, at either end, hung rich draperies of Tyrian purple, half withdrawn. On the walls was depicted a poet reading his verses to his friends; and in the pavement was inserted a small and most exquisite mosaic, typical of the instructions given by the director of the stage to his comedians.

“You passed through the saloon, and entered the peristyle; and here, as I have said before was usually the case with smaller houses of Pompeii, the mansion ended. From each of the seven columns that adorned this court hung festoons of garlands; the centre, supplying the place of a garden, bloomed with the rarest flowers, placed in vases of white marble, that were supported on pedestals. At the left hand of this small garden was a diminutive fane, resembling one of those small chapels placed at the sides of roads in Catholic countries, and dedicated to the Penates; before it stood a bronze tripod; to the left of the colonnade were two small cubicula or bedrooms; to the right was the triclinium, in which the guests were now assembled.

“This room is usually termed by the antiquaries of Naples, ‘The Chamber of Leda;’ and in the beautiful work of Sir William Gell, the reader will find an engraving from that most delicate and graceful painting of Leda presenting her new-born to her husband, from which the room derives its name. This charming apartment opened upon the fragrant garden. Round the table of citrean wood, highly polished and delicately wrought with silver arabesques, were[V-37] placed the three couches, which were yet more common at Pompeii than the semicircular seat that had grown lately into fashion at Rome; and on these couches of bronze, studded with richer metals, were laid thick quiltings, covered with elaborate broidery, and yielding luxuriously to the pressure.”

The following plans, pp. 38 and 39, are collected into one group to afford a more easy view of the differences in their general construction. They are not drawn to scale, and have no pretensions to detail. The principal apartments only are named upon them, and the following is a list of their chief peculiarities, together with the dates when they were excavated, and the various names by which they have been known. The first numbers correspond with those on the plans.

1. House of the Emperor Joseph II. (1767-69), was a mansion of great magnificence, of three stories. It was beautifully situated on the side towards the sea. This house had a suite of baths; and in the furnace-room the skeleton of a female was discovered. The regularity of plan is very remarkable; but, unfortunately, the excavations were filled in again, so that nothing now remains to be seen.

2. House of the Tragic Poet (1824-26) is called in the Museo Borbonico, “Casa Omerica,” the Homeric House: the same which Bulwer describes as the house of Glaucus. Remarkable for the beauty and dignified character of its paintings, most of them illustrating Homeric subjects.

A list of a few of the principal paintings and mosaics in this house will suffice to show the taste of its occupant.

Cave Canem. Mosaic at entrance.

In atrium, on right wall, next to entrance, The Marriage of Peleus and Thetis. On side wall, right hand, The Parting of Achilles and Briseis. On same wall, separated only by a door, The Departure of Chryseis. Opposite to the parting of Achilles and Briseis was represented The Fall of Icarus. In a cubiculum on this side was the small frieze of Battle of Amazons (copied in the Atrium of Pompeian Court, page 47). The tablinum was adorned with a picture of A Poet reading, and the mosaic pavement representing The Choragus and Actors. In a little chamber to the left of tablinum was a small picture of Venus fishing. At the end of ambulatory of peristyle near triclinium was the famous picture of The Sacrifice of Iphigenia, painted on the wall adjoining the oven of the Fullonica. The Deserted Ariadne (page 57) adorned a small chamber to the left of the peristyle. The opposite side of the peristyle was occupied by the kitchen, latrina, and triclinium, which latter contained the exquisite picture of Leda presenting her Infant Progeny to Tyndareus; hence this apartment is sometimes called the Chamber of Leda. Other pictures in the same room are Venus, Cupid, and Adonis, and an elaborate composition of Theseus deserting Ariadne. He is in the act of stepping on board a ship, where sailors are making ready for departure. Ariadne lies asleep on the shore; her head is surrounded with a blue circular glory, which is not uncommon in Pompeian paintings. Many of these pictures are on a comparatively large scale, and only equalled in artistic excellence by those which have been discovered in the houses of the Dioscuri and of Ceres, one of the smallest houses in Pompeii. It has only one ala (plan given in Mus. Bor., vol. ii., tav. 55, and in Gell, vol. i., pl. 35, p. 143).

[V-38]

1. House of Joseph II.

2. House of the Tragic Poet, or, House of the Homeric Paintings.

3. House of Queen Caroline.

4. House of the Meleager or Apollo, and House of Nereids, or of Isis.

5. House of Sallust, or Actæon.

6. Houses of the Mosaic Fountain, and of the Shell Fountain.

[V-39]

7. House with the Coloured Capitals, near the Pantheon.

8. House of the Dioscuri, Quæstor, or Centaur.

9. House of the Female Musician, the Flute Player or “Sonatrice.”—Excavated by Mr. Falkener.

10. From ancient Marble Map of Rome, representing Private Houses.

[V-40]

3. House of Queen Caroline (1813), now called that of Adonis, remarkable for the width of Atrium when viewed from vestibule. The kitchen has windows opening to the street. In an open court is a permanent semicircular couch of stone, the sigma of Martial, and so called from the shape that the Greek letter had at this period acquired. (See notice on the changes in the Greek alphabet, in the Catalogue of Greek Court, p. 22). In the Atrium, plants were painted on the wall, as if sprung up out of the ground. A celebrated caricature painting of the studio of a portrait painter was discovered by Mazois in this house.

4. House of the Meleager or Apollo (1830-31), called also the House of Isis, or of the Nereids. The house is very extensive, and the various apartments are arranged in a different manner from what is generally seen at Pompeii. The block plan, No. 4, will sufficiently explain the distribution of the various parts. The vestibulum is very long and narrow.

5. House of Sallust (1809). Known also as the House of Actæon. The venereum is the peculiar feature of this house. The skeleton of a young female, with four rings on one of her fingers, was discovered as if just in the act of escaping; five gold bracelets, two ear-rings, and thirty-two pieces of money were lying near her. The skeletons of three other females, probably slaves, were found near her. The doorway of the Prothyrum was very broad, and was closed with a quadrivalve door, folding back like our shutters.

6. Two houses side by side, called from the features of their peristyles, the Greater and the Smaller Fountain (1826). The small fountain itself made of shells, the greater one encrusted with mosaics. In the former house a remarkable painting of a sea-port, supposed to represent Dicæarchia, or Puteoli, was discovered. Two[V-41] staircases indicate the former existence of upper rooms. Here they found oil, in vases, with olives still swimming in it.

7. House of the Coloured Capitals (1833-34). A very large house near the so-called Pantheon.

It is a magnificent specimen of arrangement and decoration. The long range of colonnade, forming a second peristyle or decorated garden, is peculiar to this habitation. (Plan given in Mus. Bor., vol. x., tav. A & B.)

8. House of the Dioscuri (1828-29). This beautiful mansion has been known by a great variety of names—The Quaestor, the Centaur, Castor and Pollux. The latter name (Dioscuri also) is derived from the spirited figures of the sons of Leda, painted reining in their horses on the side walls of the left-hand vestibulum. A running Mercury, with purse in hand, was painted on one of the posts of the same entrance. The exterior of this house is much more carefully decorated than was usual among the Pompeians. Many of the stucco ornaments have been picked out with colour. Highly-decorated wooden chests, lined and bound externally with iron, were found in the atrium, at the entrance of the left-hand ala, which still contained a few gold and silver coins that had escaped the grasp of some one who had returned to the spot after the destruction of the city, and made excavation, evidently directed to that particular spot.

This house is one of the finest for the grandeur and taste displayed in every part of it. The celebrated paintings, Perseus and Andromeda, Medea and her Children, were found on the piers at the lower angles of the great central Peristyle. The great Exedra, or Triclinium, at its extremity, was closed with folding doors, the sockets of which still remain, and the floor was decorated with the famous circular mosaic of The Lion crowned with Garlands by young Cupids. (Engraved in Mus. Bor., vol. vii., tav. 61.) (Plan given in Gell’s Pompeiana, vol. ii., pl. 63.)

9. House of the Female Musician (1847). Known by the Italian name Della Sonatrice, called likewise House of the Triumphant Bacchus. It is a very interesting excavation, displaying much magnificence and elegance of decoration. It may be regarded as a double house of three stories. Several of the paintings of the Sydenham Court have been copied from the walls of this mansion. The name of the house is derived from a painting in one of the chambers representing a young actress in a mask playing the double flute. A picture was found near the foot of the stairs displaying writing materials, such as tablets, stylus, atramentum,[V-42] or ink-bottle, and a sealed letter, which preserves the direction on it, “To the Decurion Marcus Lucretius.” Hence, the house is not unfrequently called by his name, in the supposition that he must have been the owner. Mr. Falkener was present during the excavation of this house, and has published a very interesting account of his observations in the Museum of Classical Antiquities. The arrangement of the portion beyond the tablinum is very singular, consisting of a fountain and basin surrounded by a variety of small figures arranged in front of it. The house seems, at the period of its destruction, to have been undergoing alteration. Many of the central pictures had been taken out from the walls, preparatory to the insertion of fresh ones. The artists appear to have sometimes painted on wood for that purpose. Many years ago, the workmen came to an apartment at Stabiæ, where the pictures had been separated from a wall preparatory to removal, which the ruin of the city prevented: the paintings therefore were found leaning against the wall of the apartment. (The plan of this house is given in Mus. Bor., vol. xiv., tav. A and B.)

10. Plan of some private dwellings copied from the celebrated fragments of a map of Rome, engraved on marble about the time of Septimius Severus. (Bellorius Ichnographia, Tab. 7, page 35.)

The House of Pansa. (1811-14.) One of the largest of the superior class of mansions hitherto discovered. It has an extensive garden, and the rooms were distributed with great regularity. This house is more generally referred to in illustration of a Pompeian house, and for that reason has been made the subject of a larger and more elaborate plan than the rest. In one of the bed-rooms, five female skeletons were found, some of them with gold ear-rings. The name of the house is derived from the red letters PANSAM. ÆD. PARATVS. ROG. daubed upon the door-post. (The plan of this house is given large at the end of this book.)

The House of Ceres (1827). Called also the House of Zephyrus and Flora, from an interesting painting of the Marriage of Zephyrus and Flora; it is also known as the House of the Ship (Naviglio), which latter name is derived from a painting in one of the shops. Another name, also, is of the Bacchantes. The beautiful seated divinities, Bacchus and Ceres, between the Tablinum and Alæ of this court, were copied from this House of Ceres. A third sitting deity, Jupiter, with a round plate behind his head, like the nimbus of saints in old pictures, belonged to this series. It is remarkably dignified. (See Mus. Bor., vol. vi., tav. 52.)

The House of the Faun (1829-31). So called from the discovery[V-43] of the beautiful little Faun introduced in this court, copied in the original material, bronze. This house is celebrated for its great mosaic, representing Alexander and Darius at the Battle of Issus. The apartments were very numerous and on a grand scale.

HISTORY OF THE POMPEIAN HOUSE.

The original intention in constructing the Pompeian Court in the Crystal Palace was to appropriate it for purposes of refreshment. In furtherance of this plan, more especial attention would have been devoted to the mural decorations and the arrangements for public accommodation and convenience. The nature and extent of the gigantic structure within which this court was to be erected, determined, in a great measure, the breadth of space to be left open. A glance upwards will show the spectator how the supports of the galleries are arranged, and also the necessity that exists for incorporating these within the walls of the smaller erection. The refreshment chambers must necessarily have been much larger in extent than any of the rooms in the houses at Pompeii; the general disposition of their chambers, however well suited they might have been for the purposes of ancient life, were totally inadequate to the requirements of modern visitors; consequently this plan was abandoned, and the present Pompeian Court instituted in its stead.

The original design for this house was made by Mr. Digby Wyatt, at Naples; and, in conjunction with Mr. Owen Jones, his companion in the tour for the collection of works of art for the decoration of the Crystal Palace generally, he entered into arrangements on the spot with Signor Abbate, the official draughtsman to the King for the Pompeian excavations, to come over to England the following spring, with cartoons and tracings, from Pompeii, in order to decorate the building, then to be prepared for him, at Sydenham, with facsimiles of the different paintings at Pompeii selected by Mr. Wyatt for the decoration of the respective rooms. The King of Naples granted permission to Signor Abbate for the visit, and, accordingly, this distinguished artist arrived in England fully prepared to perform his task. Although the plan of devoting the Pompeian Court to refreshment was meanwhile given up, the measurement of the walls that had been given to Signor Abbate for the preparation of his cartoons prevented any general change of design, and the shortness of the period originally fixed for his stay in this country prevented any important alterations being[V-44] undertaken. The decorative painting of the Pompeian house was entirely under the management of Signor Abbate, Mr. Parris. Jun. acting as his deputy. They had thirty assistants, ten of whom were English. The principal figure painters were Mundici and Gow, and the names of the chief ornamentalists are Leslie, Luetyens, Wassner, Yahn, Munsch, Mœvius, and Meyer. The entire arrangement and building are due to Mr. Digby Wyatt, furthered by the zeal and energy of Mr. Thomas Hayes, his deputy.

It will be seen in the following description of the Court, that each part has been copied from some existing authority; and the few exceptions that do occur, in which originality was necessary, have been carefully noted.

Some of the leading works which contain illustrations of Pompeii, will be found enumerated in the list of books at the end of the description of the Roman Court, and others of more immediate importance have been referred to in the text when requisite.

DESCRIPTION OF THE POMPEIAN HOUSE.

The outer walls are supposed to be surrounded by the street, and the entire house forms what the Romans called an insula; that is, a detached building. The tiling, more conspicuous from the gallery, has been faithfully copied from an ancient example, from the House of the Female Musician. The roof of a house was found complete in April, 1853, with the upper part of the ridge carefully guarded by cement. The principal entrance faces the nave; it is flanked by two pilasters, the capitals of which are copied from the back entrance of a house excavated in 1834 (Mus. Bor., vol. x., tav. A, B), and from sketches taken on the spot.

The general proportions of the doorway are taken from the house of Pansa (Gell, Pompeiana, series i., pl. 34.); the grating, or lattice-work[55] over the door, is introduced upon the authority of Mr. Donaldson in his work upon doorways. The external windows are devised to throw more light into the chambers, and to afford a more ready means of looking into the inner recesses. This apparent innovation is authorised by the windows of the Tragic Poet’s house which open upon the street, although much higher up, being raised more than six feet above the level of the foot-pavement. They seem to have been closed by sliding shutters and were sometimes glazed. Glass was much used at Pompeii[V-45] both for drinking vessels and windows; sheets of glass have been found there, and a convex glass for a lamp remained in the wall, dividing two apartments in the public baths near the forum. The front part of the entrance was called Vestibulum; the remaining part of the passage, Prothyrum, which latter was bounded by a second door which closed in the Atrium. The door is quadrivalve, and the panelling is taken from the false door painted on the wall of the Chalcidicum near the statue of Eumachia (Gell, Pompeiana, 2nd series, page 21, plate 9).

[55] Called by Vitruvius Hypaetrum. Smith, s. v. Janua. p. 626. Compare a latticed window in vol. i., p. 229 of “Pitture d’Ercolano.”

The inlaid marble on the threshhold, representing a dog, is found at the entrance to the House of the Tragic Poet (Mus. Bor., vol. ii., tav. 56). A similar device was painted at the entrance of Trimalchio’s house, described by Petronius, who was alarmed at the first sight of the furious animal at the full stretch of his chain so skilfully represented in the original mosaic (Petronius, Satyricon, ch. 29). The inscription on both is the same, CAVE CANEM, which means “Beware of the dog.”

The Prothyrum[56] or Ostium, was the passage between the street door (janua), and the house door (ostium), and corresponds to our entrance hall; a small square room on one side was sometimes devoted to the door-keeper or porter (janitor or ostiarius). They were called Cellæ Ostiariæ.

[56] Rich, s. v.

The walls and ceilings of these side apartments are white, with a red dado, that is, the lower part of the wall, answering to our surbase. The decoration of these rooms is imitated from the House of the Second Fountain. The walls of the Prothyrum itself are red, with a winged Cupid in a panel on each side. They are from the House of the Dioscuri. The dado is black, the ceilings of these three apartments are white and slightly arched.

Most of the ceilings in Pompeii were of this description, and composed of segmental vaults painted in fresco, like the walls beneath, only in lighter colours or more delicate and thinner patterns on a white ground. A small stucco cornice highly enriched with colour follows the lines of the archivolt. In the Villa of Diomed are some flat ceilings, and other examples have been published in the Pitture d’Ercolano.

ATRIUM.

The view of this spacious apartment at the moment of entrance is very imposing; the only difference between this and a real Pompeian[V-46] house consists in the greater diffusion of light, and the increased scale of the apartment better suited to a palace in the capital of the Empire. For the purpose of fully displaying the beauties of the mural decorations, much more light has been admitted into this apartment than is usually found in the same division of the Pompeian houses. To this end, the central aperture, which ought to have been of the same size as the reservoir below, has been considerably widened. Windows also have been introduced in order to give the spectator a better view of the decorations within the side chambers. At a glance the eye recognises the various parts of the building previously described. In the centre below is the square basin to collect the water, called the impluvium, and the corresponding aperture above would be the compluvium. At the further end, facing the entrance, a graceful female figure is seen playing the lyre—these paintings will be described hereafter. In many houses this extremity is painted sky blue, with shrubs and trees to imitate a distant garden—this was the case in the peristyle of the Tragic Poet’s House (Gell, vol. i., p. 159), also in the Houses of the Quæstor and Actæon (Gell, pl. 20, page 175). The dark square central part forming as it were a frame to our view of the peristyle, is the tablinum, the side-passages are the fauces, and the smaller apertures round the sides of the Atrium will be recognised as conducting to the cubicula. Each of these apartments we propose to examine minutely, after having taken a general view of the Atrium. This important space in a Roman house was called also the Cavum Ædium, or Cavædium, as Pliny writes it. There were various kinds of Atria; the simplest with no support in the centre—as this—called the Atrium Tuscanicum. Where the roof was supported by four columns in the centre it was called Tetrastylum. If the columns surrounding the impluvium were numerous, it was called Corinthium, and when, as rarely has been found, no opening was left in the centre, the apartment was said to be Testudinatum. Sometimes a roof was so arranged as to throw off the water outside, and then the term displuviatum was employed.

The Atrium, as viewed from the door, is oblong, in a position reversed from that in which it is generally found in Pompeian houses: although an authority for this arrangement exists in the House of Queen Caroline. The impluvium in the centre is of marble, and the exquisite small marble statue of a faun, serving at the same time as a fountain, is copied from the house called after the grand Duke of Tuscany. The floor is an excellent[V-47] imitation of ancient mosaic work, executed by Messrs. Minton; the various patterns are taken from different Pompeian houses. Many of the floors at Pompeii exhibit some of the finest examples of mosaic work in which elaborate paintings with every variety of colour have been produced. They are composed solely of small pieces of coloured stone or glass fitted closely together and highly polished. It is the most durable of all methods of painting, and is generally set in a strong bed of cement. The modern Romans practise this art with such success, that a mosaic can scarcely be distinguished from a picture carefully painted with the brush. Every altar-piece but one, now in St. Peters’, has been made by this process. The celebrated mosaic of the Doves drinking, described by Pliny, is now in the capitol at Rome, and many descriptions of pictures executed in this mode are to be found in ancient authors. This process must be carefully distinguished from inlaying, which the ancients also practised, and may be seen here in the vestibules and some of the side chambers leading out of the peristyle.

The prevailing colour of the atrium is white. All round the doors and the windows of the Cubicula the wall is painted bright blue with red dado. The pilasters are white with the lower part yellow; their capitals white heightened by blue and red; they are from the House of the Centaur. In square compartments, on a white ground, between the capitals of pilasters, are elegant groups of female figures on marine animals, and Cupids in chariots; some of the small enriched mouldings are from the cornice of the tomb of Calventius Quietus, and the atrium frieze above tablinum is copied from a side apartment in the Tragic Poet’s House (Mus. Bor. vol. ii., tav. A). It is composed of white figures of combatants in armour on foot and in chariots; shields and dead bodies lie prostrate. The ground of this frieze is purple, but the ground of the original is described as white, and the figures are said to be clothed in blue, green, and purple draperies. The females are Amazons, distinguished by the pelta or lunated shield (see Statue No. 194 of the Greek Court.) The rest of the frieze is white, with patterns of bright-coloured lines in simple forms. Over each pilaster the frieze is broken by double figures of Victory, yellow and gold, which serve to support the beams which project to the edge of the compluvium. They were modelled by Mr. Monti, under the superintendence of Signor Abbate, from a drawing by Mr. Wyatt.

The compluvium is bordered with red standing tiles called antifixa, and the arrangement of Mazois in his restoration of[V-48] the House of Diomed has been followed. The antifixa may be seen also on the model of the Parthenon in the bas-relief gallery adjoining the Greek Court. The angle tiles, with a spout to discharge the rain water, merit attention. The sloping roof of the atrium, composed of light beams with panelling between them, has been chiefly restored from existing paintings; but few traces of woodwork remain in any part of these ancient cities without having been seriously disturbed; the atrium ceilings being of wood, were consequently destroyed; pictorial records are therefore our only authorities. Fortunately for us, the ancients seem to have delighted in depicting themselves and their ways of living, so that it is not improbable that the architectural specimens that we see on their walls are only the transcripts of the slender constructions which were in fact confined to the upper stories. This is the more probable as the background of these architectural scenes is generally sky, and where vegetation does appear among them it consists commonly of plants growing in pots, or else the tops of trees as they would appear from the upper part of a house.

CUBICULA.

We must now go into the detail of the house and pass into each room as consecutively numbered in the plan, beginning in this instance on the left hand of the principal entrance, keeping the wall of Atrium always to the left.

1. Cubiculum. This small chamber has the walls totally black with a white ceiling. It is an exact copy both in size and decoration, of a room in the House of the Bronzes at Pompeii, called la stanza nera. Facing the door is a square picture representing a “Sacrifice to Minerva” (engraved in Mus. Bor., vol. xiii., tav. 8). In the centre a round shield—the Argolic buckler—with serpent painted on it, mounted on a square pedestal; above this appears a helmet placed on the top of a square pillar; a winged Cupid seems to be adjusting the shield; in front of the pedestal is a smaller circular altar, and Psyche with butterfly wings, clothed in yellow and pink, stands on the left, as if about to cast incense upon the altar. On the other side a Cupid, with blue wings of the same peculiar curve observable in the Marlborough gem, representing the Marriage of Cupid and Psyche, brings a white lamb to the altar for sacrifice. Among the arabesques to the right and left of this picture are graceful vases. Half doors of a light wooden construction may be observed, and a curious[V-49] method of displaying pictures is shown here; they are represented upon the wall very much sloped forward and with folding shutters to them. (See Malkin’s Pompeii, vol. ii., p. 123.) The arabesques at each end of this cubiculum are especially beautiful. They have been wonderfully copied in Gruner’s specimens of Ornamental Art, the size of the originals. The effect of their rich colours upon a perfectly black ground is remarkable, contributing to increase the apparent size of the room very considerably. Few at first sight would imagine this little apartment to measure only 22 feet 9 inches by 6 feet 9 inches. The window openings to the atrium have been explained at page 44.

2. Cubiculum. The next chamber, forming one corner of the quadrangle, and lighted by a window in the outer wall, has also a white coved ceiling. The upper part of the walls is white, the dado black, and the remaining interval blue. Three graceful female figures floating in separate panels are Bacchantes; they have no wings. The picture surrounded by blue opposite the door, represents a sitting Endymion; he holds a branch in his right hand, and a staff leaning on his left shoulder; the drapery is pink; at his feet a stag,[57] with horns and blue collar, may be regarded as the emblem of Diana, whose favourite he was. (See Greek Court, No. 33). The background is composed of rocks with a square tower in the centre. The subject of Endymion was a very favourite one among the Pompeians. He was sometimes represented, as here, entranced awaiting the arrival of the goddess, at other times sleeping, and the goddess gazing upon him, with his dog starting in surprise at the visitor. Not unfrequently a Cupid is introduced leading Diana by the hand, holding a whip, as if she had just descended from her chariot of night. Whenever the goddess is present Endymion is always represented asleep. On the wall next the door facing the other picture is a square painting of Venus fishing. She sits on a rock on the right hand side, her yellow hair bound with a myrtle wreath, the lower part of her figure enveloped in green drapery; a fish has attached itself to the line of the rod which she holds in her right hand, and Cupid with blue wings, sitting on a rock across the water, expresses great joy at his mother’s success, which is evinced by his lively action. A piece of red drapery upon which he kneels adds greatly to the harmony of the picture. This[V-50] subject of Venus angling is also frequently repeated; sometimes Cupid holds the fish basket, and in other cases he angles also. (See cubiculum 15.)

[57] On a closer examination I perceive that the animal is wounded, and the picture therefore represents Cyparissus, who killed a favourite stag by accident, and was transformed into the cypress. The picture is mentioned by Mr. Falkener (page 51).

3. Cubiculum. The next room in order flanks a side entrance. It is white with a yellow dado. The wall facing the atrium has a square picture of a poet or bookseller, and a comedian. On each side of this picture are painted tall, thin, yellow columns, with yellow shields suspended between them. Medusa and Lion heads are in the centre of these shields, as they were found in the house described by Mr. Falkener (p. 46). The poet, in the picture opposite the door, sits on the left, with his legs crossed. His head is crowned with ivy, and the lower part of his figure wrapt in blue and red drapery. He holds an open scroll in his left hand, and with his right seems to be giving instructions to the player, who stands before him with his mask raised over his head, as may also be seen in the mosaic from the tablinum of the Tragic Poet’s house. (Gell, Pompeiana, pl. 45, vol. i. p. 174). The comedian is dressed in a purple tunic with sleeves, and a full yellow mantle like a pallium thrown over it. In his left hand he holds a lituus or curved stick much used by the players. It resembles the crooked staff borne by the augurs, and so often seen upon gems, Roman coins, and Etruscan paintings. It was generally carried by actors. (Wieseler, Theatergebaüde, &c. Pl. 11, No. 3, Pl. 12, Nos. 23 to 28; and Pitture d’Ercolano, vol. ii. tav. 3. p. 19). The lituus was curved more than the pedum or shepherd’s crook, which is simply a stick with a hook at the end of it.

At the foot of the sitting figure is a round box called capsa or scrinium, it has rings and cords on the outside. This box is, in fact, a library, it contains the volumes or rolls such as have been discovered in the villa at Herculaneum (see ante, p. 20), one of which the poet may be supposed to have taken out and to be holding in his hand. Many instances of these scrinia occur among the Pompeian paintings, with tickets or titles of the books hanging out at the top. (See also a statue of Sophocles, No. 322, where the scrinium is open and the rolls clearly displayed.)

Above this composition, is a landscape in an oblong frame. It contains a long villa and trees with awnings extended for shade, a yellow isolated column and a separate ædiculum. This is one of the examples of landscape painting prevalent during the time between Nero and Titus. Landscape painting did not at first become a separate branch of art but Ludius appears to have introduced the style. The ancients rarely indulged in the modern[V-51] taste for representing wild and romantic scenery; all their compositions are made of long lines of building, basilicas, villas, trees pleasantly disposed, bird’s-eye views of sea ports and artificially arranged gardens. Places in fact to go to and not in accordance with the feeling of our own times, which leads us to enjoy a grand scene, a combination of earth and sky without any desire to move from the spot upon which we have been placed. A description of the Vale of Tempe in Ælian has always been referred to as implying that the ancients had some feeling for the picturesque, and surely the back grounds to many of their figures show considerable invention and romantic appreciation, although deficient in the modern arts of aërial perspective and chiaroscuro. Above this landscape, is a female figure, the lower part draped, with an elephant’s trunk on the head, and a lion at her right side. In this manner Africa is personified on coins both of Hadrian and Septimius Severus, (Millin, Gal. Myth., Nos. 371 and 372).[58] The left foot of this figure is placed on an elephant’s head, of which the trunk and tusks only appear (compare Falkener, page 52, note). The yellow dado is ormented with white swans, holding purple ribands. On the left wall, opposite the side vestibule, is a pretty little group of a winged Cupid leading an ibex or chamois, painted on a very dark purple ground.

[58] The skin with trunk and tusks of an elephant’s head may be seen applied in a similar manner upon the coins of the Bactrian Demetrius. Compare also a small double Hermes in the Roman Gallery, No. 385.

4. Vestibulum. The side entrance, light and narrow. The ceiling consists of one flat sunk panel, white, with blue and red stars. The lower part of wall red, the dado black. The SALVE inlaid in the pavement is taken from the house of the Vestals.

5. The Ala: here, of necessity, very shallow, but in many Pompeian houses of much greater depth, has a white curved ceiling, with broad blue, red, and green lines on it. The upper part of walls white, a frieze of black below it, yellow panels with white borders, black dado.

The paintings of the Ala have been taken from a house near the Basilica. The great picture is called Cupid Condemned to Labour. The height of the mountain in the background is very remarkable.

The picture is surrounded with red, and flanked with white columns, having bright patterns spirally arranged upon them. On either side of the chief picture are two floating figures upon a yellow ground, surrounded by a chaste white patterned border, that[V-52] has been published by Zahn. To the left are two Cupids bearing a square pharetra or quiver. To the right a lovely Cupid with crimson drapery, carrying a lyre such as Apollo sometimes plays; he is assisted in the operation by a Psyche with purple butterfly wings, a purple undervest and green over it, wearing pale blue boots. These little figures are copied from a house near the forum. In the spandril is an architectural scroll-work in gay colours, with two lions leaping through it, a peculiarity to be seen in the Temple of Isis, at Pompeii, and in the Theatre of Myra, in Lycia.

6. The wall adjoining the Ala, and forming part of the Atrium, has been very gracefully decorated. It is occupied by a highly finished picture of Bacchus enthroned. The god of wine in the bloom of youth and beauty is crowned with the vine; a fawn’s skin—the nebris—is tied across his chest; in his right hand he holds the cantharus—a two-handled cup sacred to Bacchus—and with the other he grasps the thyrsus. His sandalled feet rest on a square foot-stool, and a leopard sits on the ground to the right of the throne; a drum or tympanum is placed at the opposite side. The main ground of this composition is blue, the architecture of the shrine or canopy around the figure green, yellowish-brown and red. The central group is engraved in the Mus. Bor., vol. vi., tav. 53. The dado coloured rich deep red. From the House of Ceres.

7. Next to this is the left-hand Fauces or passage to the interior, and more private parts of the house. The white ceiling is delicately covered and spangled with blue and red stars. The right side of the fauces is white at the top, with alternate divisions below of red and blue having arabesques upon them. The dado black, with green and yellow patterns upon them, published by Zahn.

8. THE TABLINUM.

This broad central space, both as regards its dimensions and decorations, is wholly copied from the Tablinum of the house of Apollo. The entire upper part is white, with delicate lines of blight colours forming elegant patterns upon it. In the centre of the ceiling, which is gently curved, is a naked Venus upon a green hippocamp or sea monster. A flying Cupid holds reins, and another flying Cupid holds a mirror with a long handle. Mus. Bor., vol. viii., tav. 10. Pitture d’Ercalano, vol. ii., p. 247. The ground of the original group, found at Herculaneum, is black. The Museo Borbonico text describes the second Cupid as holding an[V-53] umbrella, but the form is peculiarly that of a mirror, and Appuleius, Met. 4, in his account of the train attending Venus as she proceeded to the palace of Oceanus, makes especial mention of one holding a mirror. The passage is so illustrative of the ideas of the age that produced these paintings, that some part of it may be transcribed with advantage.

“The daughters of Nereus, too, were present singing in tuneful harmony; Portunus, too, rough with his azure-coloured beard; and Salacia, weighed down with her lapful of fish; with little Palaemon, their charioteer, upon a dolphin, and then troops of Tritons furrowing the main in all directions. One softly sounded his melodious shell; another with a silken canopy protected her from the sun; a third held a mirror, while others, again, swam yoked to her car.”

The spandrils formed by the architrave of the peristyle and atrium are filled with green marine animals on white ground.

9. Left Wall.—The chief central picture is Perseus showing the head of Medusa to Andromeda, reflected in the water at their feet; as the direct sight of the Gorgon’s visage turned all to stone, the conceit here adopted is very pretty. It was popular in Pompeii, and frequently repeated. When Perseus was about to encounter Medusa, Minerva gave him a polished shield, by the assistance of which he cut off her head without the peril that had attended so many others, being guided through his enterprise by the reflection in the shield. The composition of this picture is very elegant. It is surrounded by bright red. On both sides of the centre are rich architectural ranges of columns in two tiers. The coffered ceilings represented are worthy of observation. Before the columns, at the lower part, are bright blue doorways, in which lie comic masks. To the right and left of these central compartments are large yellow panels, each containing a floating female figure without wings. The one to the left holds a pedum in her right hand and a vintage basket with fruit in the left. The drapery is blue lined with purple. The female to the right, dressed in white and crimson edged with blue, has bare feet and holds a lyre and plectrum; both these females have bracelets. Between the masks, under the principal picture, is a black frieze with admirably-painted greenish marine monsters. The dado of these walls is black. The picture and Bacchantes are copied from the House with the Coloured Capitals.

10. Right Wall.—The opposite side has exactly the same decorations, with the exception of the central picture and the two side[V-54] figures. The middle picture represents Venus (Aphroditê), Euploia, borne on the back of a Triton, playing a lyre. She is attended by the Cupids Pothos, Himeros, and Eros. A female figure behind carries a jar, and the heads of Boreas and Zephyros blowing are visible through the dark blue sky. This picture is taken from the house with the coloured capitals. It has been carefully engraved in the Museo Borbonico, vol. xii., tav. 32. See also Panofka Autikenschau, Berlin, 1850.

The floating female to the left of central picture holds the tympanum or drum in the right and thyrsus in the left; her dress is pale purple with white drapery floating behind. This shows well on the yellow panel. Her left breast is covered with a nebris or fawn-skin. The female to the right holds a ewer in her right hand and a patera in her left. A thin gauze drapery is next her skin, having a crimson drapery lined with blue over it. Both these Bacchantes have bracelets and anklets. The four floating Bacchantes of tablinum have been taken from the House with the Coloured Capitals.

11. The second FAUCES is precisely like the other. The broad black line in the pavement edging the floor is characteristic of a Pompeian house. In the one described by Mr. Falkener the black margin, about nine inches broad (page 39), joined the walls. In some instances the colour was red.

12. Wall corresponding in position and decoration to No. 6. The central figure here enthroned is Ceres, the Demeter of the Greeks. The Goddess of Corn, of Earth, and Agriculture, is crowned with corn. A torch in her right hand, bearded corn on her left arm, and a basket of corn also at her feet. The spiked corn is always seen represented in ancient art both in paintings and on coins. It forms a conspicuous symbol on the coins of Metapontum, a city in the same part of Italy as Pompeii. This painting is engraved in the Mus. Bor., vol. vi., tav. 54. Also by Zahn, taf. 25. The figure of Ceres is dressed in thin gauze undergarment, with pale slate-coloured drapery covering a purple dress, which appears only above the feet. A muslin-like drapery is gathered behind her head and shoulders. The throne, torch, and flame are all of one uniform yellow colour. The basket of corn is in natural colours. From the House of Ceres.

13. Ala. The general decoration of Ala corresponds with the opposite one. The main central picture of this Ala represents the rescue of Andromeda. This painting affords an interesting comparison with the bas-relief in the Greek Court, No. 35, where the[V-55] same subject is represented. The treatment of the principal figures in the painting is much more sculpturesque than in the bas-relief. In the former the rescued lady stands attitudinizing on a rock, like a statue on a pedestal; her drapery is unruffled, and there is no sign of emotion in the figure prompted either by love, or the recollection of her recent perilous situation. In the latter there is a wild flutter about the drapery of Andromeda. She is descending from the rock with an evident confidence and dependence on her deliverer; and his firm manly pose in the sculpture is characteristic of the hero. The freedom, however, in the lines, is more pictorial in the bas-relief. The group as exhibited in our Pompeian picture, is excellently adapted for modelling in isolated statues. Compare Mus. Bor., vol. vi., tav. 50.

In this picture Perseus has yellow sandals and blue talaria. The action of the hand to conceal the Gorgon’s head is not so successful as in the sculpture; it is offensive to the spectator to see that openly which is supposed to carry so much horror with it. On the ground, at the feet of Andromeda, is a yellow casket, a white fan with red handle, and several white cockle shells, scattered on the ground, which give an appearance of petty detail. Two females are sitting on the rocks to the left, and seem to be gazing upon the vanquished monster rolling at the feet of Andromeda. The sword which Perseus bears is worth notice. It is the falx, and has a peculiar hook to it used for pruning. The falx and talaria or heel wings, are characteristic of Perseus. The graceful figures on each side of this central picture are from a house near the forum. To the left, a Cupid, with purple drapery, is supporting a pale-blue vase. Psyche, with purple butterfly wings and blue and green drapery, soars above, and seems helping to lift the vase by the handles. It forms a charming group. To the right of the chief picture are two Cupids carrying a basket with double arched handle. Both these groups are on a yellow ground.

14. Vestibulum, exactly the same as the one opposite.

15. Cubiculum or cella familiaris as next the vestibule. This chamber has white walls with yellow dado. The central picture facing Atrium represents Venus fishing; she holds the rod in the right hand, and, as usual, leans with the other hand on the seat, having the arm quite straight. A similar subject has already been described in cubiculum 2. Here the figures are larger and close together. Instead of Cupid, is a Genius,[59] with broad-spreading[V-56] green wings. He holds a green branch in his right hand; his drapery purple. Venus is crowned with a diadem, white drapery hangs behind her left arm, and the lower part of her figure is covered by crimson folds with blue lining. The arrangement of sloping shields on each side is the same as in chamber 3. Above the chief painting is a landscape, with buildings, water and a boat. Over this little picture again is a Victory in a biga or chariot, with the horses painted entirely in yellow. The figure of Victory holds the palm branch in her left, and extends the right arm, grasping a wreath. Her wings are wide spread, but very much distorted. When Cupid was banished from Olympus for his impertinence, it is said that his wings were taken from him and transferred to Victory. In early art many of the divinities were winged. Diana on the chest of Cypselus (Pausanias, book v., ch. 19,) and so also is she represented upon the celebrated Clitias vase, at Florence. Many of the large figures of the Assyrian palaces, evidently acting as priests or attendants, are provided with wings, but they are never seen using them. Hebe is represented winged upon the famous cup of Sosias at Berlin, but these all belong to the undeveloped period of art. Among the Athenians Victory was represented unwinged—Apteros. After the battle of Marathon, Minerva is fabled to have confined Victory to her favourite spot, the Acropolis, by depriving her of her wings. A celebrated wooden statue of Wingless Victory, Niké Apteros, was at Athens, and a copy of it made by Calamis was sent to Olympia by the Mantineans. At Athens was the celebrated little temple of Wingless Victory, some of the sculptures from which are described in No. 57 of Greek Court catalogue. The right hand of the great ivory statue by Phidias, in the Parthenon, held a figure of Victory, Greek Court catalogue, pp. 29 and 30. To return to the painted Victory in this apartment. The highly decorated bar which seems attached to the collars of the horses is very peculiar. The gathering of the mane into a knot on the heads of the horses, and their breast collars are exactly like those on the carved lid of the Chimæra tomb from Xanthus, now in the British Museum. The top knot of the horses may be seen in several antique sculptures from Naples and Florence, Nos. 69 and 71 of Greek Catalogue, and seems to have been originally an eastern custom. The body of the chariot is quite plain. The horses viewed in front are very clumsily foreshortened. This group has been engraved in Mus. Bor., vol. xiv., tav. 45. On the light hand wall is a little compartment of a winged Cupid, with pedum and basket, running from a sitting lion. These paintings are all from the House of the[V-57] Girl playing the Double-flute, called della Sonatrice, discovered in 1847 (H.B. p. 353).

[59] Called in Mr. Falkener’s book, p. 49, Victory.

16. Cubiculum, occupying the corresponding angle to No. 2, also lighted with a window, is blue with black dado; copied from the House of the Second Fountain. The chief picture on the wall opposite the door is the deserted Ariadne, a subject many times repeated at Pompeii, and with a great variety of treatment. Ariadne is represented sitting on the shore of Naxos just awaking, and beginning to be aware of her forlorn situation; Cupid, at her side, points to a ship far away, with full-spread sail and many oars, which is bearing off Theseus, her faithless lover. A crimson cord, for necklace, is crossed also over her naked body, a purple drapery covers her lower limbs. The scene is indicated by wild crags, and the horizon is placed remarkably high up in the picture. The wings of Cupid are green, the ship yellow with a white sail. This picture is copied from one in the House of the Tragic Poet; it has been engraved in the Mus. Bor., vol. ii., tav. 62., and Zahn, vol. i., pl. 33. Gell’s Pompeiana, vol. i., pl. 43, page 169.

On each side is a graceful floating female figure, the one to the left holding a patera in one hand, and a garland in the other; the female on the other side, has a similar action, her drapery is yellow: both figures are remarkably elegant. On the opposite wall, next the door, is a picture of a very playful character; it is a Cupid seller. On the ground is a square strongly constructed cage, such as is used for birds, with an opening at the top, through which an old man is in the act of lifting out a Cupid; other Cupids are within the bars, and show by their gestures the irksomeness of their confinement. The old man dressed in the exomis, a garment peculiar to the working classes, lifts the struggling Cupid by one wing; he holds the square trap door in his left hand; a handsome lady who has come as a purchaser stands on the other side and looks up to a Cupid flying above, holding two bright stars; her right hand seems to point to the cage from which the object of her attention may have escaped. Another Cupid has eluded the vigilance of his keeper and hides himself behind the lady’s dress. The scene takes place in a handsome portico with two Ionic columns. This has been engraved in Zahn, 2nd series, taf. 18. Another picture, found at Stabiæ, of a female Love merchant is much more pleasingly and better composed. There the woman holds up the victim by both wings, and offers it like a live chicken to a lady who is seated on the other side. Another Cupid remains[V-58] within the cage, which is elegantly made and circular. This well-known picture is engraved in the Pitt. Erc., vol. iii., tav. 7., and Mus. Bor., vol. i., tav. 3. To the left of the picture on this wall is a beautiful floating female figure, holding a tympanum or drum in the right hand, with the other raised holding a thyrsus. A nebris, or fawn-skin, passes over her right shoulder, her drapery is red lined with white, feet bare. The effect of colour upon the blue ground is very charming.

17. Cubiculum. A black chamber, corresponding to the one we first entered. This room has been copied, both in style and decoration, from the stanza nera of the House of the Bronzes. Opposite the window is a pleasing group of Cupid and Psyche, her drapery is purple and blue, and the wings purple. The picture opposite door represents three Cupids and Psyche surrounding a peacock. In this bird we recognise the favourite of Juno, and the Cupids appear to be feeding it, but the meaning of the subject is very vague. It has been engraved in the Mus. Bor., vol. xi., tav. 15. Thus we have completed the circuit of the atrium and its smaller chambers; we propose to pass into the less public parts of the house by the left hand fauces, No. 7.

PERISTYLE.

18. Ambulatory, Ambulatio, also called Porticus by the Romans, and Stoa by the Greeks, is a colonnade on four sides, very like the cloisters of our cathedrals. The view looking through the fauces is bounded by a small shrine or chapel, called the Lararium. It is a niche raised on a pedestal, flanked by pilasters, and surmounted by a pediment. Within this were kept the Lares, the sacred household gods, that accompanied the inhabitants in their flight. No figures of this sort have ever been found in such places at Pompeii, although many representations of them remain depicted on the walls. They were generally represented as young men in short girt tunics, crowned and holding the drinking horn in one hand. (See Milman’s Horace, p. 168.) Their appearance was first ascertained by an inscription over the sculpture of an altar formerly in the Villa Medici, and now at Florence; a similar altar is in the Vatican, both inscribed LARIBVS AVGVSTIS. (See Galleria di Firenze, pl. 144 of statue, &c.; Mus. Pio. Clem., vol. iv., tav. 45; and Guattani Mon. Ined, vol. ii.; Maggio, 1785). The Lares presided especially over the domestic hearth. The cornice and entablature of Lararium are taken from the funeral Triclinium[V-59] at Pompeii. The wall behind is a rich Pompeian red, with a yellow ornament, forming a panel on it, beautifully painted.

The roof of the ambulatory is panelled and decorated according to the prevailing style of the lighter coloured ceilings at Pompeii. The devices are formed of very thin lines of the brightest colours upon white. The Ionic capitals of the columns are from the Basilica. The shafts of the columns are not fluted at the lower part, the remaining unfluted surface, together with the mouldings upon the base, are painted bright red. This is a Pompeian peculiarity. Red is a prevailing colour at Pompeii, but in the House of the Surgical Instruments, the lower part of the columns was blue, a dwarf wall between them being painted red. (Gell, Pompeiana, first series, pl. 25, p. 170.)

19. Thalamus, an apartment next to the fauces, and entered by a door immediately to the left on entering the ambulatory.

It is a strictly private apartment, and the bedchamber of the master of the house. The name is taken from the Greek.

White walls and dark red dado. A charming little Cupid occupies the centre of each of the three panels, which have a peculiar border to them. The upper part of the wall dividing the Thalamus from the fauces has been thrown open for the better admission of light and air. The decorations of this room are copied from the House of the Dioscuri. On the right hand wall are two pictures of great interest and sprightliness. They are taken from the triclinium or exhedra of the house described by Mr. Falkener, and in his work (p. 64) may be seen rough outlines done from memory.[60] In the original apartment these pictures form side panels to still larger compositions. Cupids and Psyches are the only actors in these scenes; and, in the left-hand picture, a Cupid dances holding an amphora or diota on his left arm. A Cupid seated on the left of the picture plays a lyre, and other Cupids are reclining upon couches, beneath an awning. A statue of a bearded Bacchus appears behind, raised on a round pedestal; holding a thyrsus in his left hand. The corresponding picture has a Psyche dancing in similar company, who recline on a couch beneath a broad-spread[V-60] awning supported by branches of trees. The statue at the back is a Psyche holding a bow in the left hand. A Cupid playing the flute sits on the left; a reclining figure near him holds a scyphus or drinking cup. The dancing Psyche has four butterfly wings and plays the crotala or castanets; her feet are bare, but she wears bracelets. This picture is engraved in the Mus. Bor., vol. xv., tav. 18. Falkener, p. 65.

[60] The excessive illiberality of the Neapolitan government can hardly be conceived by those who live in a country where leave to copy and publish is so freely accorded. No one is allowed to draw a monument that has not already been published until after the expiration of three years, at the end of which time the paintings are so often changed by the fading of colours and the obliteration of the details as to render any attempt at copying them hopeless. Falkener, pp. 62 and 65.

The ceiling has a circular aperture, necessary for the admission of light and air, which is authorised by the example in the caldarium of the baths at Pompeii (Gell, Pompeiana, vol. i. pl. 31. Zahn, vol. ii. pl. 94.) The doorway breaking irregularly through the panel is not in accordance with modern notions of order and symmetry.

20. Œcus, so called from the Greek word signifying a house, was sometimes a very spacious chamber to accommodate guests at a more extensive banquet than could be held in the triclinium. Here it is broad but not deep. The upper part of the walls white, the dado black, and the intervening spaces red and black surmounted by a rich architecturally-painted entablature. It consists of architrave, frieze, and cornice. The architrave, or lower portion, green with white garlands; the frieze above this is purple having red panels bordered with yellow, and producing a capital effect; and yellow figures of Sirens, or winged female monsters, which uphold a bold projecting cornice. The perspective delineation of this cornice, with its supports, is very remarkable, especially that of the central projection; a similar boldness of perspective drawing may be seen in Pitt. Erc., vol. iii., p. 109, where the fullest knowledge is evinced of the distribution of light and shade.

The black and red divisions of these walls have large broad devices in green and red upon them. The central picture is a collection of silver vessels lined with gold, the variety of forms are well worthy of attention. The pavement of this apartment is inlaid from patterns well known at Pompeii. Zahn, vol. ii., pl. 87.

21. Bath, Balneum or Balineum, a small chamber appropriately fitted up. Light patterns on wall above, and middle spaces green, red, and blue in broad masses.

22. A small simply-decorated room, white with red dado.

23. The end wall of the peristyle. Its paintings are conspicuously seen from the principal entrance of the house. The general colour is white. Dado red and yellow. The three central compartments are copied from the House of the Augustals, or banqueting house commonly known by the name of the Pantheon.[V-61] Beneath, a high canopy, supported by thin and gracefully ornamented columns, stands a lovely female with one foot upon the step of a door. She is in the act of playing the lyre, holding the plectrum with her right hand, and by her song seems to invite strangers to enter the portal. Upon the architrave of this porch is a yellow group of a Winged Victory in a biga driving at full speed, engraved in Zahn, vol. i., pl. 24. The left-hand figure is a priestess with a prefericulum, or small pitcher used for sacrifices, in her right hand, and a bunch of corn and poppies in the other. Her hair is bound by a yellow circlet, and the upper garment or mantle is remarkably similar to that in the dress of the celebrated Flora of the Capitol. (See Catalogue of Greek Court, No. 41.) The lower dress is blue and partly covering her yellow shoes. The architecture, seen through the portal of the hall which the priestess seems to be leaving, is admirably painted. The companion picture on the opposite side, is a young man in purple drapery, turned towards the fair lyrist, and seeming to offer a green wreath. The first two of these figures are engraved in the Museo Bor., vol. iii., tavole 5 and 6. The second one also in Malkin’s Pompeii, vol. ii., p. 315.

In the dado, beneath the figures just described, are large square stalls or recesses. In the centre one is an elegant figure of a girl holding a lyre, she seems to be sitting on the sill or edge of the opening. This figure is engraved in the Mus. Bor., vol. ii., tav. 12., and in Raoul Rochette, Choix de Peintures, pl. 4; Zahn, vol. ii., pl. 77. Gell gives it in his second series of Pompeiana, vol. i., pl. 14, but surrounded by different groups to the original, although all are to be found within the same building. The group beyond forms a graceful heading to the view from the atrium looking through the right hand fauces, No. 11. It consists of two figures, a Victory with expanded wings holding an incense-burner in her right hand, and a patera in the left. She is crowned with laurel, the leaves of which stand like rays about the head. Behind and above her appears a goddess with a sceptre and tiara, either Venus or Juno, more probably the former; she is in the act of putting some incense into the burner held by the other figure. The patera with offerings like purple fruit on it, has been converted by Gell and Zahn into a painter’s palette and brushes; in the Mus. Bor. the Victory wears sandals; but in Zahn and Gell more correctly only ankle rings. The play of line in this group is very pleasing. This group is taken from the portico of the same building as the other figures, viz., the House of the Augustals, commonly called the[V-62] Pantheon. The ground of the original is black, here it is rich red. Engraved in Mus. Bor., vol. ii., tav. 19; Gell, vol. i., vignette heading to preface; Zahn, vol. i., pl. 2.

24. Culina. The apartment forming an angle of the peristyle was the kitchen, which is copied from the House of Sallust, excepting that the stove in this has only one arch instead of two. The painting of an altar, with eggs between two serpents, is of frequent occurrence. Serpents were cherished in ancient dwellings as creatures of good omen, and became domesticated, as quadrupeds are with us. A similar painting of serpents engraved in Pittore Ercolano, vol. iv., p. 65.

25. Side entrance into the street, immediately facing the bath.

26. Triclinium, opposite the Œcus. Large panels, blue, black, and yellow. Black dado, ceiling white, corresponding to that of the œcus opposite. The walls are also decorated in the same manner, with the exception of a frieze of boys carrying large garlands composed of fruits and flowers entwined with a pink and green ribband. The small central picture on a blue ground, represents a dish of fruit—grapes, pomegranates, green fig, dates, apricots, apple, and fircone.

Triclinium

The triclinium was the dining-room of an ancient Roman house. The guests did not sit at table, they reclined on couches arranged round three sides of a space for the table, leaving the rest open for the servants to arrange the dishes and move the trays. The word triclinium is derived from the three couches occupying the apartment which surrounded the mensa or table in the manner just described. Much importance was attached, in ancient times, to the disposal of the guests. The right hand couch was the most honourable; the person reclining upon it, with his left elbow nearest the railing, was the chief person in the assembly. The Romans were accustomed to rest with the left arm upon cushions during their meals, and after dinner to lie upon their[V-63] backs and take their repose. In some Pompeian houses, the three couches forming the triclinium, were permanently fixed. The accompanying woodcut shows the arrangement of the places for a party of nine, the favourite number for a dinner among the Romans.

The guests, preparatory to reclining on the couches, took off their shoes, and were then provided with napkins, generally fringed, and often richly embroidered. Water was poured over their hands into basins of precious metal, a process repeated many times during an entertainment, and doubtless very necessary, as the fingers were much used in the course of eating. They had knives and spoons, but forks are entirely a modern invention and their mode of eating was very similar to that practised in oriental countries, where the right hand alone is made use of. Women, when admitted to the entertainment, always sat upon the couches. The same custom may be observed on the painted vases and bas-reliefs of the Greeks down to a late time.

The dinner consisted of three courses; first, the promulsis, or gustatio, chiefly stimulants to the appetite; the second contained an immense variety of dishes; the principal dish was called cœnæ caput or pompa. Among them chief delicacies were the pheasant, thrush, liver of a capon steeped in milk, and fig-eaters dressed with pepper. Hortensius the orator first introduced the peacock. The favourite fish were the turbot and mullet: eels, also, stewed with prawns. Pork, boar’s-flesh, and venison, were the most highly esteemed meats. The carving was performed to the sound of music, by an especial servant called the scissor, or carptor. The third course was the bellaria, or dessert, which consisted of uncooked fruits, such as occupy the centre of the wall before us. In addition to the fruits of the dessert great varieties of pastry were introduced, modelled in imitation of other articles of food; showers of perfume and occasional jets d’eau contributed to the luxury of the scene, but these were extravagancies, probably confined to the most wealthy citizens of Rome. The pages of Horace, Juvenal, Petronius, Martial, Athenæus, Suetonius, Aulus Gellius, and Macrobius, afford curious detail of these entertainments, from which we may easily comprehend the enormous sums they are said to have cost. An extraordinary feast is represented, in a painting, at Pompeii, described by Mr. Donaldson. The table is set out with every requisite for a grand dinner. In the centre is a large dish containing four peacocks, their tails forming a magnificent dome. Around are lobsters, one of which holds in his claws a blue egg, a second an oyster, and another a little basket full of[V-64] grasshoppers. Four dishes of fish decorate the bottom, above which are several partridges, hares, and squirrels, each holding its head between its paws. These are surrounded by something resembling a German sausage, then a row of yolks of eggs, then a row of peaches, small melons and cherries; lastly, a row of different vegetables, and the whole seems to be covered by a green coloured sauce.

Mulsum, wine made into a syrup by the addition of honey, was handed round to the guests at the commencement of the feast. Wine was kept in large earthenware jars, called Amphoræ, stopped with a cork or wooden plug, covered with resin, or gypsum. These amphoræ were sometimes made of glass. On the outside, the jars were marked with the names of the consuls in office at the time of the vintage from which the wine was made, to indicate its age. Sometimes little tickets to this effect were suspended from the necks. They generally had two ears, and were stored up in repositories such as were found in the suburban villa (p. 19). It was customary at great feasts according to Petronius (chap. xxxiv.) for the amphoræ to be shown to the guests for them to read the labels before they were opened. Many of these vessels are represented in the paintings of Pompeii, and several originals from Rome and Alexandria are to be seen in the British Museum. Some of the glass cups and bowls filled with water are admirably represented. In one picture a decanter with the glass for drinking turned down over it, is in exact accordance with our modern custom. Elegant glass vases filled with fruit occur also among the paintings of the House of the Augustals, together with small earthen jars, having labels affixed.

In great houses it was not unusual for the guests after dinner to enjoy their wine in another room. After-dinner drinking, comissatio, or convivium, was equivalent to the symposium of the Greeks.

27. The winter Triclinium. A large square room, corresponding to the Thalamus. The walls are white, with deep red dado. Ceiling coved, and with a round aperture similar to the one in Thalamus. On the wall opposite the door are two beautiful floating Bacchantes, one with thyrsus and tympanum, the other dressed in pink and blue, holding a thyrsus in her left hand, and a floating scarf with the other. They are engraved in Mus. Bor., vol. ii., tav. 4, and in Zahn. vol. ii., pl. 13. The Bacchante next the door is the same as in cubiculum 16; her dress here is pale blue; she holds the tympanum and thyrsus; a nebris crosses her breast.

[V-65]

On the left hand wall may be seen a most charming group, exquisitely coloured, of a Faun supporting a Bacchante. The faun holds a bunch of grapes in his right hand, and with the other encircles her waist; his drapery is red, and her delicate form is surrounded by a transparent veil, apparently of gauze. The drapery enveloping the lower part of her figure is purple, heightened with white, shoes blue. The effect of the painting of this group is perfectly fascinating, and entirely realises the treatment required for cheerful subjects. The group is engraved in Mus. Bor., vol. xiii., tav. 16, where the background is described as yellow. The paintings in this room are copied from the House of the Female Flute-player and the House of the Bacchantes. The group last described is in the original of unusually large proportions for such subjects, being three-fourths of life size.

Thus, then, we have completed the gíro of the Pompeian house. The ancients, although they have provided the graceful salutation for comers on their threshold in the word SALVE, do not afford the corresponding word VALE to “speed the parting guest.” Their manes, probably gratified by the interest now manifested in these monuments of their habits, requirements, and enjoyments, desire us to linger within these fairy walls, and to indulge in the thoughts of those who would, ages ago, have found nothing strange and nothing amiss here, excepting the appearance of the thronging visitors, whose costume and manners could never have been anticipated. The house, as we see it, is really a house such as the excavations might reveal. We have already shown that every part has its prototype at Pompeii.

The style of decorative painting during the earliest times of the empire merits attention. It is here exhibited on a larger scale and in a much more extensive series than ever before attempted in England; affording, in fact, the sole method by which such decorations can be fully understood. The subjects of the small central wall panels, and a few of the grotesque devices, have been often published, and are familiar to us through the medium both of prints and coloured copies; isolated portions, however, cannot suffice to give an idea of the harmonious effect that may be produced in mural decoration, by masses of even crude colour, when conjoined in proper proportion with others equally crude.[61] The eye at Pompeii is never offended by a want of balance in[V-66] arrangement; and the system of confining the heaviest colours to the lower part of the room has been already noticed. Even copies of the same picture that come to England, on comparison, exhibit variations which destroy all feeling of confidence in their accuracy. They are for the most part so small as to conceal many important peculiarities of style, and can only serve as souvenirs. Here we see nothing on a reduced scale (except in Thalamus, No. 27), the paintings are not only of the same size as at Pompeii, but even the exactitude of the outlines is guaranteed to us by the fact of their having been traced from the originals.

[61] These colours could not appear equally crude to the ancients on account of the necessary darkness that pervaded their apartments. See ante, p. 31.

The scale and finish of the patterns have to a great extent been regulated by the size of the rooms which they adorn; and it will be seen that in the smaller rooms patterns must necessarily be more minute, and the form of the wall itself less regarded than in a larger apartment where they are viewed at a greater distance. The lightness of the architectural representations and their connection has been already mentioned. The painters seem to have delighted in representing every variety of pavilion, colonnade, balcony steps, rooms and corners, in short, all the ins and outs and ups and downs peculiar to buildings erected to form upper floors. They are, in fact, at variance with the ground stories actually remaining at Pompeii, where all columns and piers of brick and stone are comparatively massive, without any traces whatever of intermediate supports of wood or metal, such as are represented in the paintings. The arabesque devices which occupy so much of the wall space of Pompeii are replete with imagination and ingenious variety. There is, notwithstanding the censures of Vitruvius, which are inserted in page 69, such a playfulness and elegance in the combination of objects so unexpectedly brought together, that we tolerate incongruities, and regard the whole as a dreamlike succession of images, passing easily from one to the other, without any consideration of that which has gone before. The children rising out of flowers are charming; and the living lions, rushing through scroll work of the brightest hues, such as no living lions ever saw, are purely ornamental conceits. Again, the reeds for columns, with all the botanical details, of nodes and internodes, are extremely graceful; and with their rich colour and firm appearance, notwithstanding an extreme slenderness, they should be very suggestive to our metal workers as means of support. The monsters sometimes perched upon them, in perfect illustration of the words of Vitruvius, excite our surprise, and being frequently ugly in themselves, incline us to agree with the illustrious[V-67] architect in wishing them away; but at the same time, without such paintings before us, how impossible it would be to comprehend the passages in his book relating to such matters, and depending for their effect upon the eye alone. The beautiful devices of the stanza nera, cubiculum No. 1, are sufficient illustrations of the grace with which incongruities may be combined, and how in a very small apartment, where minute decorations are appropriately introduced, each portion is to be read, as it were, by itself, or, if regarded generally, to seem merely a playful arrangement of colours relieving the monotony of the wall.

Landscapes as seen in cubicula 3 and 15 are said to be peculiarly the invention of Ludius, who lived in the early period of the empire. His conceits, as described by Pliny, have something almost Chinese about them, and his chief desire seems to have been to amuse and occupy the spectators. Extensive landscape views were found in the House of the Dioscuri in the four cubicula on the extreme right, seen in plan (No. 8, on page 39). An extensive painting of a sea-port was discovered in the House of the Small Fountain (plan No. 6). Some very quaint coast scenes, with enormous gallies, are engraved as vignettes in Pitture d’Ercolano, vol. iii., pp. 7 and 13. An extensive scene of a crowded mole, adorned with statues and arches, with a distant town and crowded boats on the water, is engraved at page 47 of the same vol. At page 279 of the same, is a curious representation of various figures on a wet, slippery ground, as described by Pliny in the paintings of Ludius. An extensive scene of a port, with shipping, numerous statues raised on columns, houses, gardens, people in boats and angling on the shore, was found at Stabiæ; it is engraved in vol. ii., page 295, of Pitture d’Ercolano. Eight small circular views of land and sea, animated by numerous figures, were also found at Stabiæ. They are engraved in the same volume at pp. 277, 281, 285, and 289, and form very important illustrations of ancient life and scenery. Curious buildings may be seen in vignettes on page 105 of same volume. A remarkable painting of a creek with four large ships filled with armed soldiers, with three rows of oars, is engraved in vol i., page 243. The gallies filled with armed troops are seen also in page 239. A curious latticed window in a landscape in page 229. These landscape views are all admirably engraved, in a faithful imitation of the masses of light and shade, and with careful attention to the smallest detail. In the Museo Borbonico, on the contrary, the style of engraving fails to render any one of the peculiarities of their[V-68] execution. Many vignette landscapes are characteristically copied in vol. ii. of Gell’s Pompeiana, but they have not the completeness or richness of the Pitture d’Ercolano. Some curious illustrations of the social life of the Pompeians may be found in a series of pictures representing the ancient Forum of that city, thronged with the same variety of people that may be seen in the market places of Naples and other Italian cities, all occupied in similarly varied occupations of buying and selling, talking and idling; they supplied Bulwer with several incidents for his description, and have been engraved in vol. iii., page 213 to 231 of Pitture d’Ercolano.

Notwithstanding the frequent occurrence elsewhere of ancient paintings inscribed with the names of persons they are intended to represent, scarcely any instances have been met with in the cities overwhelmed by Vesuvius. The word DIDV is written in one picture in white characters near the head of a figure. The fragment was found at Stabiæ; it is engraved in vol. iii., page 231, of Pitture d’Ercolano. On the celebrated marble slab, monochrome drawings by Alexander of Athens; the artist has not only inscribed his own name, but those of the five females in his composition. It represents the visit of Niobe and her daughters to Latona. This picture was found at Herculaneum, May 24, 1746. A very beautiful little mosaic was inscribed with the name of Dioscorides, of Samos, as the artist; thus:

ΔΙΟΣΚΟΥΡΙΔΗΣ ΣΑΜΙΟΣ ΕΠΟΙΗΣΕ.

There is great diversity of opinion amongst antiquarians as to the meaning of some of the most important pictures discovered at Pompeii and Herculaneum, which might have been obviated had the names of the characters been written upon them, as we see upon the ancient Greek vases, and upon the paintings of Polygnotus, and the chest of Cypselus, described by Pausanias, and, to descend to later and very different times, the well-known Bayeux tapestry, illustrating the history of William the Conqueror. In default of inscription, the Pompeian pictures can only be interpreted by their similarity to the descriptions of other ancient paintings left us by Pausanias, Lucian, Ælian, and Philostratus. The following extract from Vitruvius, book vii., chap. 5, affords a most important view of what innovations took place in his time, showing also, that even before the time of Augustus, mural decorations were composed of extensive architectural fancies, as well as harbours, landscapes, and sea-pieces.

[V-69]

EXTRACT FROM VITRUVIUS.
Book vii., Chap. 5.

“In other apartments—that is, in those of Spring, Autumn, and Summer, as also in the atrium and peristylium—the ancients have established certain methods of painting. A picture is the representation of things that are, or may be, as men, buildings, ships, and other things; of which the copy, by having the exact form and outlines of the real body, assumes the likeness. The ancients, who originally instituted this manner of decoration, at first imitated the varieties and marks of marble incrustation, then cornices, disposing between them divers silacious and miniaceous coloured ornaments. They proceeded afterwards to represent edifices with columns and pediments projecting; but in spacious places, such as exedræ, on account of the amplitude of the walls, they represented the fronts of scenes in the tragic, comic, or satyric manner; and ambulatories, being of a great length, they ornamented with landscapes, expressing the appearance of particular places, painting harbours, promontories, sea coasts, rivers, fountains, canals, temples, groves, mountains, cattle, and shepherds; in some places, also, large paintings of figures, representing the gods, or fabulous histories, the Trojan war, or the wanderings of Ulysses, and other subjects of a similar kind, which are conformable to the nature of things.

“But these subjects, which our forefathers copied from nature, are now, by our depraved manners, disapproved; for monsters, rather than the resemblances of natural objects, are painted on the stucco, reeds are substituted for columns, and for the pediments, fluted harpaginetuli, with curling foliage and volutes; also candelabra supporting the forms of little buildings, their pediments rising out of roots, with numerous volutes and tender stalks, having, contrary to reason, images sitting on them; so also the flowers from stalks have half figures springing therefrom, with heads, some like those of men, some like those of beasts, which things neither are nor can be, nor ever were: and this new mode so prevails that those who are not judges disregard the arts—for how is it possible for reeds to support a roof—or candelabra buildings and the ornaments of pediments—or stalks, which are so slender and soft, sitting figures—or the flowers of stalks produce half images? Yet men, being accustomed to the sight of these absurdities, do not censure, but are pleased with them, without considering whether they be proper or not; the judgment, depraved[V-70] by habit, examines not whether they be according to propriety and the rules of decor; for pictures should not be approved unless they be conformable to truth, even although they be well executed, they ought, therefore, to be immediately condemned unless they can bear the trial of rational examination without being disapproved.

“Thus at Tralles, when Apaturius of Alabanda had excellently well painted a scene in the little theatre, which with them is called the Ecclesiasterion, and instead of columns had placed statues and centaurs, supporting the epistylium, the circular roof of the dome, and projecting corners of the pediments, and ornamented the cornice with lions’ heads, all which have reference to the roofing and eaves of edifices; above these, nevertheless, in the episcene, domes, porticos, semipediments, and all the various parts of buildings were again painted; wherefore upon the appearance of this scene, when by reason of its enrichment it was found pleasing to all, and they were ready to applaud the work, Licinius, the mathematician, then advanced and said, ‘the Alabandines are sufficiently intelligent in all civil affairs, but for a trifling impropriety are deemed injudicious; for the statues in their gymnasium are all in the attitude of pleading causes, while those in the forum are holding the discus, or in the attitude of running or playing with balls; so that the unsuitableness of the attitudes of the figures to the purposes of the places, throws a public disgrace upon the city. Let us then take care that by the scene of Apaturius we are not deemed Alabandines, or even Abderites; for who among you places upon the tiles of the roofs of your houses columns or pediments? These things are placed upon the floors, not upon the tiles. If then we approve in painting what cannot be in fact, we of this city shall be like those who, on account of the same error, are deemed illiterate.’ Apaturius dared not to reply, but took down the scene and altered it so as to be consistent to truth; after which it was approved. I, with the immortal gods, would restore Licinius to life, that he might correct this folly and fashionable disfigurement of our stucco work; but why a false overcomes a just mode it will not be foreign to the purpose to explain.

“The ancients, with labour and application, endeavoured to make their works be approved by the excellences of art; this is now supplied by the beauty of colours, and the use of those of the most costly kind; and that value which was formerly given to works by the skill of the artist, is not desired since the expense of the proprietor supplies its place. Who among the ancients is known[V-71] to have used minium otherwise than sparingly and as a medicine? But now it is everywhere laid over the whole wall; it is the same with crysocolla, ostrum, and armenium, which, when laid, although without any art, appear very brilliant to the sight, and they are so costly, that it is usually specified in the articles of agreement that they shall be purchased by the proprietor, and not by the contractor.”

Pliny, also, who perished, it must be remembered, dining the conflagration of the cities (see page 8), affords some curious testimony to the popularity of this mode of decoration, and of one particular painter, Ludius. He says, book xxxv., chapter 10—

EXTRACT FROM PLINY’S NATURAL HISTORY.

“Ludius was he who first devised to beautify the walls of a house with the pleasantest painting that is in all variety; to wit, with the resemblance of manors, farms, and houses of pleasure in the country; havens, vinets, flower-work in knots; groves, woods, forests, hills, fish-pools, conduits and drains, rivers, riverets, with their banks, and people, some walking and going to and fro on foot, others sailing and rowing up and down the stream upon the water, or else riding by land to their farms, either mounted upon then mules and asses, or else in waggons and coaches; there a man should see folk, in this place fishing and angling, in that place hawking and fowling; some hunting here, the hare, the fox, or deer, both red and sallow; others busy there, in harvest or vintage. In this manner of painting, a man should behold of his workmanship, fair houses, standing among marshes, into which all the ways that lead be ticklish and full of bogs; where you should see the paths so slippery, that women as they go are afraid to let one foot afore another; some at every step ready to slide, others bending forward with their heads, as though they carried some burdens upon their neck and shoulders, and all for fear lest, their feet sliding under them, they should catch a fall; and a thousand more devices and pretty conceits as these, full of pleasure and delight. The same Ludius devised walls without doors, and abroad in the open air, to paint cities standing by the sea-shore: all which kind of painting pleaseth the eye exceedingly well, and is besides of little or no cost. Howbeit, neither he nor any artificers of this kind—howsoever otherwise respected—grew ever to be famous and of great name; that felicity attained they only unto who used to paint in tables, and therefore in this regard,[V-72] venerable antiquity we have in greater admiration; for painters in old time loved not to garnish walls for to pleasure the master only of the house, nor yet to bedeck in houses that manner that cannot stir out of the place nor shift and save themselves when fire cometh, as painted tables may that are to be removed with ease.”

The reconstruction of an ancient house from the descriptions of ancient authors has been several times attempted.

Pirro Ligorio, a Neapolitan architect, erected the villa Pia, 1570, for Pope Pius V. It was built in imitation of the houses of the ancients, whose architecture he had particularly studied. Mazois, whose large work on Pompeii has formed, as it were, the basis of almost all Pompeian studies, wrote an elaborate essay on the palaces of the ancient Romans, under the title “Le Palais de Scaurus.” In this all the descriptions of ancient authors were supposed to be comprised. His work, however, was confined to the pen; and it is to be regretted that Mazois did not undertake an architectural reproduction, as an actual copy of one of the houses he explored whilst they were comparatively perfect, and for which he was so thoroughly qualified. Only one undertaking of this kind has preceded the Pompeian Court at Sydenham. It was prompted by the taste of a monarch, remarkable for his interest in the fine arts of all nations and all ages. The ex-king of Bavaria had a villa built at Aschaffenburg, which was the complete restoration of an ancient Roman house found at Pompeii. It was erected by the celebrated architect, Gärtner, and is an exact copy of the House of the Dioscuri.

The visitor to Pompeii is but too frequently disappointed at the crumbling condition of the disentombed city; and the majority take little trouble to trace the origin of this first and unfavourable impression. They do not reflect upon the relation between different portions of the ruins, the use or particular object originally served, the custom that produced it, or the former appearance of the details in the harmony of their original arrangement, with the groups of gaily attired inhabitants giving animation to the scene. Like the greater portion of the curious who throng the Elgin Saloon of the British Museum, for the purpose of taking a peep at the mutilated fragments of the marbles contained within its walls, such visitors to Pompeii look for excellencies that do not exist, and a harmony incompatible with the actual condition of the remains; and, discontented at finding things in opposition to their own conceptions, they depart with imperfect and even prejudiced ideas of what they really have beheld. Few arrive at Pompeii with even a general[V-73] idea of the appearance of an ancient Roman house, and are thus incapable of judging of the actual importance of the crumbling remains of the buried cities.

Repeated visits, and careful and laborious investigation, are necessary for perfect comprehension of the value of the ruins, in guiding the observer towards an accurate idea of the state of the city in its prime. To the careless and the uninitiated these few scattered fragments, snatched from the very jaws of desolation, will afford but a faint reflection of the glory and the triumphs that have for ever passed away.

Such were the persevering studies of Cockerell, Digby Wyatt, Donaldson, Falkener, Gell, Hayes, Mazois, and Zahn; and to their investigations we are indebted for all the conclusions displayed in this interesting building. We behold at a glance the result of the experience of many years, and the combined exertions of our most distinguished architects, and may safely assert that no more agreeable method than that afforded by this reconstruction could be devised for making the public acquainted with the details of a Pompeian house.


NOTE.

In the Atrium are placed two handsome marble benches, such as the clients might have sat upon whilst waiting for audience with their patron. The ends, which are elaborately carved, have been copied from an original model in the Vatican Museum, and the whole has been presented to the Crystal Palace Company by the London Marble Working Company, through their secretary, Mr. Clare.

BRADBURY AND EVANS, PRINTERS, WHITEFRIARS.


[V-74]

Large plan.

The House of Pansa. Discovered at Pompeii, 1811. (See page 42.)


Transcriber’s Notes.

Inconsistencies (including in spelling and hyphenation, also of proper and geographical names) have not been standardised, except as listed below.

The source documents contains some unusual geography (Maestricht in Germany, the Pacific Ocean near Somalia and South Africa). These have not been changed.

Some illustrations (mainly maps and plans) are available as larger images through hyperlinks (not available in all formats).

Page I-167: the number 7 is not visible in the illustration.

Page II-68, article 168: the reference to the bust of Buonaparte is blank in the source document; possibly the reference was intended to be to item 311.

Page II-106, article 255: his name was Bernard Germain Étienne de Laville-sur-Illon, comte de Lacépède.

Page III-85, ... ranges westwards to the boundaries of Abyssinia: probably an error for ... ranges eastwards to ....

Changes made

Footnotes have been moved to under the relevant paragraph, illustrations have been moved out of text paragraphs.

Minor obvious misprints and typographical and punctuation errors have been corrected silently.

Some ditto symbols („) have been replaced with the dittoed text.

page I-vii: second A.M. for Sunday trains from Charing Cross changed to P.M.

page I-xvi. Philoe Portico: page number inserted.

page I-85: footnote marker [23] inserted.

page I-98: and in many days changed to and in many ways.

page I-109: Ludwig Scwanthaler changed to Ludwig Schwanthaler.

page I-110: Das Neue Testaments changed to Das Neue Testament.

page I-167: some background hatching removed in order to show the reference numbers.

The biographical data in the Portrait Gallery guide (between square brackets) have been standardised to centred lay-out.

page II-84: Andrè le Nôtre changed to André le Nôtre.

page II-85: Andrè Félibien changed to André Félibien.

page II-105: Aunonai changed to Annonai (2x).

page II-106: sur Mon changed to sur Illon.

page II-143, article 327A: Cristoph changed to Christoph; article 327C: C. Christoph changed to Christoph.

page II-150, article 341: Gutenburg changed to Gutenberg.

page II-223: le Sœur changed to le Sueur.

page II-228: 10* changed to 410*.

page II-229: Marin-Jean-Antoine changed to Marie-Jean-Antoine.

page II-230: 94 changed to 94*.

page II-232: Gutenburg changed to Gutenberg; 95 changed to 95*.

page II-232: Gutenburg changed to Gutenberg.

page II-234: 76 changed to 76*.

page III-55: Sun’s beam and faughter father changed to Sun’s beam and faughter father cf. other examples and explanation.

page V-48, section heading CUBICULA changed to sub-section heading.

page V-52: d’Ercalano changed to d’Ercolano.






End of the Project Gutenberg EBook of The Palace and Park, by 
F. K. J. Shenton and Samuel Phillips and Edward Forbes and Richard Owen and George Scharf

*** END OF THIS PROJECT GUTENBERG EBOOK THE PALACE AND PARK ***

***** This file should be named 59843-h.htm or 59843-h.zip *****
This and all associated files of various formats will be found in:
        http://www.gutenberg.org/5/9/8/4/59843/

Produced by Chris Curnow, Harry Lamé and the Online
Distributed Proofreading Team at http://www.pgdp.net (This
file was produced from images generously made available
by The Internet Archive)


Updated editions will replace the previous one--the old editions will
be renamed.

Creating the works from print editions not protected by U.S. copyright
law means that no one owns a United States copyright in these works,
so the Foundation (and you!) can copy and distribute it in the United
States without permission and without paying copyright
royalties. Special rules, set forth in the General Terms of Use part
of this license, apply to copying and distributing Project
Gutenberg-tm electronic works to protect the PROJECT GUTENBERG-tm
concept and trademark. Project Gutenberg is a registered trademark,
and may not be used if you charge for the eBooks, unless you receive
specific permission. If you do not charge anything for copies of this
eBook, complying with the rules is very easy. You may use this eBook
for nearly any purpose such as creation of derivative works, reports,
performances and research. They may be modified and printed and given
away--you may do practically ANYTHING in the United States with eBooks
not protected by U.S. copyright law. Redistribution is subject to the
trademark license, especially commercial redistribution.

START: FULL LICENSE

THE FULL PROJECT GUTENBERG LICENSE
PLEASE READ THIS BEFORE YOU DISTRIBUTE OR USE THIS WORK

To protect the Project Gutenberg-tm mission of promoting the free
distribution of electronic works, by using or distributing this work
(or any other work associated in any way with the phrase "Project
Gutenberg"), you agree to comply with all the terms of the Full
Project Gutenberg-tm License available with this file or online at
www.gutenberg.org/license.

Section 1. General Terms of Use and Redistributing Project
Gutenberg-tm electronic works

1.A. By reading or using any part of this Project Gutenberg-tm
electronic work, you indicate that you have read, understand, agree to
and accept all the terms of this license and intellectual property
(trademark/copyright) agreement. If you do not agree to abide by all
the terms of this agreement, you must cease using and return or
destroy all copies of Project Gutenberg-tm electronic works in your
possession. If you paid a fee for obtaining a copy of or access to a
Project Gutenberg-tm electronic work and you do not agree to be bound
by the terms of this agreement, you may obtain a refund from the
person or entity to whom you paid the fee as set forth in paragraph
1.E.8.

1.B. "Project Gutenberg" is a registered trademark. It may only be
used on or associated in any way with an electronic work by people who
agree to be bound by the terms of this agreement. There are a few
things that you can do with most Project Gutenberg-tm electronic works
even without complying with the full terms of this agreement. See
paragraph 1.C below. There are a lot of things you can do with Project
Gutenberg-tm electronic works if you follow the terms of this
agreement and help preserve free future access to Project Gutenberg-tm
electronic works. See paragraph 1.E below.

1.C. The Project Gutenberg Literary Archive Foundation ("the
Foundation" or PGLAF), owns a compilation copyright in the collection
of Project Gutenberg-tm electronic works. Nearly all the individual
works in the collection are in the public domain in the United
States. If an individual work is unprotected by copyright law in the
United States and you are located in the United States, we do not
claim a right to prevent you from copying, distributing, performing,
displaying or creating derivative works based on the work as long as
all references to Project Gutenberg are removed. Of course, we hope
that you will support the Project Gutenberg-tm mission of promoting
free access to electronic works by freely sharing Project Gutenberg-tm
works in compliance with the terms of this agreement for keeping the
Project Gutenberg-tm name associated with the work. You can easily
comply with the terms of this agreement by keeping this work in the
same format with its attached full Project Gutenberg-tm License when
you share it without charge with others.

1.D. The copyright laws of the place where you are located also govern
what you can do with this work. Copyright laws in most countries are
in a constant state of change. If you are outside the United States,
check the laws of your country in addition to the terms of this
agreement before downloading, copying, displaying, performing,
distributing or creating derivative works based on this work or any
other Project Gutenberg-tm work. The Foundation makes no
representations concerning the copyright status of any work in any
country outside the United States.

1.E. Unless you have removed all references to Project Gutenberg:

1.E.1. The following sentence, with active links to, or other
immediate access to, the full Project Gutenberg-tm License must appear
prominently whenever any copy of a Project Gutenberg-tm work (any work
on which the phrase "Project Gutenberg" appears, or with which the
phrase "Project Gutenberg" is associated) is accessed, displayed,
performed, viewed, copied or distributed:

  This eBook is for the use of anyone anywhere in the United States and
  most other parts of the world at no cost and with almost no
  restrictions whatsoever. You may copy it, give it away or re-use it
  under the terms of the Project Gutenberg License included with this
  eBook or online at www.gutenberg.org. If you are not located in the
  United States, you'll have to check the laws of the country where you
  are located before using this ebook.

1.E.2. If an individual Project Gutenberg-tm electronic work is
derived from texts not protected by U.S. copyright law (does not
contain a notice indicating that it is posted with permission of the
copyright holder), the work can be copied and distributed to anyone in
the United States without paying any fees or charges. If you are
redistributing or providing access to a work with the phrase "Project
Gutenberg" associated with or appearing on the work, you must comply
either with the requirements of paragraphs 1.E.1 through 1.E.7 or
obtain permission for the use of the work and the Project Gutenberg-tm
trademark as set forth in paragraphs 1.E.8 or 1.E.9.

1.E.3. If an individual Project Gutenberg-tm electronic work is posted
with the permission of the copyright holder, your use and distribution
must comply with both paragraphs 1.E.1 through 1.E.7 and any
additional terms imposed by the copyright holder. Additional terms
will be linked to the Project Gutenberg-tm License for all works
posted with the permission of the copyright holder found at the
beginning of this work.

1.E.4. Do not unlink or detach or remove the full Project Gutenberg-tm
License terms from this work, or any files containing a part of this
work or any other work associated with Project Gutenberg-tm.

1.E.5. Do not copy, display, perform, distribute or redistribute this
electronic work, or any part of this electronic work, without
prominently displaying the sentence set forth in paragraph 1.E.1 with
active links or immediate access to the full terms of the Project
Gutenberg-tm License.

1.E.6. You may convert to and distribute this work in any binary,
compressed, marked up, nonproprietary or proprietary form, including
any word processing or hypertext form. However, if you provide access
to or distribute copies of a Project Gutenberg-tm work in a format
other than "Plain Vanilla ASCII" or other format used in the official
version posted on the official Project Gutenberg-tm web site
(www.gutenberg.org), you must, at no additional cost, fee or expense
to the user, provide a copy, a means of exporting a copy, or a means
of obtaining a copy upon request, of the work in its original "Plain
Vanilla ASCII" or other form. Any alternate format must include the
full Project Gutenberg-tm License as specified in paragraph 1.E.1.

1.E.7. Do not charge a fee for access to, viewing, displaying,
performing, copying or distributing any Project Gutenberg-tm works
unless you comply with paragraph 1.E.8 or 1.E.9.

1.E.8. You may charge a reasonable fee for copies of or providing
access to or distributing Project Gutenberg-tm electronic works
provided that

* You pay a royalty fee of 20% of the gross profits you derive from
  the use of Project Gutenberg-tm works calculated using the method
  you already use to calculate your applicable taxes. The fee is owed
  to the owner of the Project Gutenberg-tm trademark, but he has
  agreed to donate royalties under this paragraph to the Project
  Gutenberg Literary Archive Foundation. Royalty payments must be paid
  within 60 days following each date on which you prepare (or are
  legally required to prepare) your periodic tax returns. Royalty
  payments should be clearly marked as such and sent to the Project
  Gutenberg Literary Archive Foundation at the address specified in
  Section 4, "Information about donations to the Project Gutenberg
  Literary Archive Foundation."

* You provide a full refund of any money paid by a user who notifies
  you in writing (or by e-mail) within 30 days of receipt that s/he
  does not agree to the terms of the full Project Gutenberg-tm
  License. You must require such a user to return or destroy all
  copies of the works possessed in a physical medium and discontinue
  all use of and all access to other copies of Project Gutenberg-tm
  works.

* You provide, in accordance with paragraph 1.F.3, a full refund of
  any money paid for a work or a replacement copy, if a defect in the
  electronic work is discovered and reported to you within 90 days of
  receipt of the work.

* You comply with all other terms of this agreement for free
  distribution of Project Gutenberg-tm works.

1.E.9. If you wish to charge a fee or distribute a Project
Gutenberg-tm electronic work or group of works on different terms than
are set forth in this agreement, you must obtain permission in writing
from both the Project Gutenberg Literary Archive Foundation and The
Project Gutenberg Trademark LLC, the owner of the Project Gutenberg-tm
trademark. Contact the Foundation as set forth in Section 3 below.

1.F.

1.F.1. Project Gutenberg volunteers and employees expend considerable
effort to identify, do copyright research on, transcribe and proofread
works not protected by U.S. copyright law in creating the Project
Gutenberg-tm collection. Despite these efforts, Project Gutenberg-tm
electronic works, and the medium on which they may be stored, may
contain "Defects," such as, but not limited to, incomplete, inaccurate
or corrupt data, transcription errors, a copyright or other
intellectual property infringement, a defective or damaged disk or
other medium, a computer virus, or computer codes that damage or
cannot be read by your equipment.

1.F.2. LIMITED WARRANTY, DISCLAIMER OF DAMAGES - Except for the "Right
of Replacement or Refund" described in paragraph 1.F.3, the Project
Gutenberg Literary Archive Foundation, the owner of the Project
Gutenberg-tm trademark, and any other party distributing a Project
Gutenberg-tm electronic work under this agreement, disclaim all
liability to you for damages, costs and expenses, including legal
fees. YOU AGREE THAT YOU HAVE NO REMEDIES FOR NEGLIGENCE, STRICT
LIABILITY, BREACH OF WARRANTY OR BREACH OF CONTRACT EXCEPT THOSE
PROVIDED IN PARAGRAPH 1.F.3. YOU AGREE THAT THE FOUNDATION, THE
TRADEMARK OWNER, AND ANY DISTRIBUTOR UNDER THIS AGREEMENT WILL NOT BE
LIABLE TO YOU FOR ACTUAL, DIRECT, INDIRECT, CONSEQUENTIAL, PUNITIVE OR
INCIDENTAL DAMAGES EVEN IF YOU GIVE NOTICE OF THE POSSIBILITY OF SUCH
DAMAGE.

1.F.3. LIMITED RIGHT OF REPLACEMENT OR REFUND - If you discover a
defect in this electronic work within 90 days of receiving it, you can
receive a refund of the money (if any) you paid for it by sending a
written explanation to the person you received the work from. If you
received the work on a physical medium, you must return the medium
with your written explanation. The person or entity that provided you
with the defective work may elect to provide a replacement copy in
lieu of a refund. If you received the work electronically, the person
or entity providing it to you may choose to give you a second
opportunity to receive the work electronically in lieu of a refund. If
the second copy is also defective, you may demand a refund in writing
without further opportunities to fix the problem.

1.F.4. Except for the limited right of replacement or refund set forth
in paragraph 1.F.3, this work is provided to you 'AS-IS', WITH NO
OTHER WARRANTIES OF ANY KIND, EXPRESS OR IMPLIED, INCLUDING BUT NOT
LIMITED TO WARRANTIES OF MERCHANTABILITY OR FITNESS FOR ANY PURPOSE.

1.F.5. Some states do not allow disclaimers of certain implied
warranties or the exclusion or limitation of certain types of
damages. If any disclaimer or limitation set forth in this agreement
violates the law of the state applicable to this agreement, the
agreement shall be interpreted to make the maximum disclaimer or
limitation permitted by the applicable state law. The invalidity or
unenforceability of any provision of this agreement shall not void the
remaining provisions.

1.F.6. INDEMNITY - You agree to indemnify and hold the Foundation, the
trademark owner, any agent or employee of the Foundation, anyone
providing copies of Project Gutenberg-tm electronic works in
accordance with this agreement, and any volunteers associated with the
production, promotion and distribution of Project Gutenberg-tm
electronic works, harmless from all liability, costs and expenses,
including legal fees, that arise directly or indirectly from any of
the following which you do or cause to occur: (a) distribution of this
or any Project Gutenberg-tm work, (b) alteration, modification, or
additions or deletions to any Project Gutenberg-tm work, and (c) any
Defect you cause.

Section 2. Information about the Mission of Project Gutenberg-tm

Project Gutenberg-tm is synonymous with the free distribution of
electronic works in formats readable by the widest variety of
computers including obsolete, old, middle-aged and new computers. It
exists because of the efforts of hundreds of volunteers and donations
from people in all walks of life.

Volunteers and financial support to provide volunteers with the
assistance they need are critical to reaching Project Gutenberg-tm's
goals and ensuring that the Project Gutenberg-tm collection will
remain freely available for generations to come. In 2001, the Project
Gutenberg Literary Archive Foundation was created to provide a secure
and permanent future for Project Gutenberg-tm and future
generations. To learn more about the Project Gutenberg Literary
Archive Foundation and how your efforts and donations can help, see
Sections 3 and 4 and the Foundation information page at
www.gutenberg.org Section 3. Information about the Project Gutenberg
Literary Archive Foundation

The Project Gutenberg Literary Archive Foundation is a non profit
501(c)(3) educational corporation organized under the laws of the
state of Mississippi and granted tax exempt status by the Internal
Revenue Service. The Foundation's EIN or federal tax identification
number is 64-6221541. Contributions to the Project Gutenberg Literary
Archive Foundation are tax deductible to the full extent permitted by
U.S. federal laws and your state's laws.

The Foundation's principal office is in Fairbanks, Alaska, with the
mailing address: PO Box 750175, Fairbanks, AK 99775, but its
volunteers and employees are scattered throughout numerous
locations. Its business office is located at 809 North 1500 West, Salt
Lake City, UT 84116, (801) 596-1887. Email contact links and up to
date contact information can be found at the Foundation's web site and
official page at www.gutenberg.org/contact

For additional contact information:

    Dr. Gregory B. Newby
    Chief Executive and Director
    gbnewby@pglaf.org

Section 4. Information about Donations to the Project Gutenberg
Literary Archive Foundation

Project Gutenberg-tm depends upon and cannot survive without wide
spread public support and donations to carry out its mission of
increasing the number of public domain and licensed works that can be
freely distributed in machine readable form accessible by the widest
array of equipment including outdated equipment. Many small donations
($1 to $5,000) are particularly important to maintaining tax exempt
status with the IRS.

The Foundation is committed to complying with the laws regulating
charities and charitable donations in all 50 states of the United
States. Compliance requirements are not uniform and it takes a
considerable effort, much paperwork and many fees to meet and keep up
with these requirements. We do not solicit donations in locations
where we have not received written confirmation of compliance. To SEND
DONATIONS or determine the status of compliance for any particular
state visit www.gutenberg.org/donate

While we cannot and do not solicit contributions from states where we
have not met the solicitation requirements, we know of no prohibition
against accepting unsolicited donations from donors in such states who
approach us with offers to donate.

International donations are gratefully accepted, but we cannot make
any statements concerning tax treatment of donations received from
outside the United States. U.S. laws alone swamp our small staff.

Please check the Project Gutenberg Web pages for current donation
methods and addresses. Donations are accepted in a number of other
ways including checks, online payments and credit card donations. To
donate, please visit: www.gutenberg.org/donate

Section 5. General Information About Project Gutenberg-tm electronic works.

Professor Michael S. Hart was the originator of the Project
Gutenberg-tm concept of a library of electronic works that could be
freely shared with anyone. For forty years, he produced and
distributed Project Gutenberg-tm eBooks with only a loose network of
volunteer support.

Project Gutenberg-tm eBooks are often created from several printed
editions, all of which are confirmed as not protected by copyright in
the U.S. unless a copyright notice is included. Thus, we do not
necessarily keep eBooks in compliance with any particular paper
edition.

Most people start at our Web site which has the main PG search
facility: www.gutenberg.org

This Web site includes information about Project Gutenberg-tm,
including how to make donations to the Project Gutenberg Literary
Archive Foundation, how to help produce our new eBooks, and how to
subscribe to our email newsletter to hear about new eBooks.