[iii]
A COMPREHENSIVE TREATISE ON THE FORGING, MACHINING, AND HEAT-TREATMENT OF SHELLS, AND THE MANUFACTURE OF CARTRIDGE CASES AND FUSES FOR SHRAPNEL USED IN FIELD AND MOUNTAIN ARTILLERY, GIVING COMPLETE DIRECTION FOR TOOL EQUIPMENT AND METHODS OF SETTING UP MACHINES, TOGETHER WITH GOVERNMENT SPECIFICATIONS FOR THIS CLASS OF MUNITIONS
By DOUGLAS T. HAMILTON
Associate Editor of MACHINERY
Author of “Advanced Grinding Practice,”
“Automatic Screw Machine Practice,”
“Machine Forging,” Etc.
FIRST EDITION
NEW YORK
THE INDUSTRIAL PRESS
1915
[iv]
Copyright, 1915
BY
THE INDUSTRIAL PRESS
NEW YORK
[v]
The design of shrapnel and the machining of its component parts are matters which, at the present time, are of world-wide interest to manufacturers, engineers, toolmakers, and mechanics in general. Shrapnel is used in enormous quantities in the great European war, and American machine tool builders have been called upon to provide machines and tool equipment of the latest and most efficient design to meet the demands made upon the manufacturers of shrapnel. Many shops are running full force, day and night, and are months behind with their orders. The great importance of shrapnel manufacture, at the present time, is, therefore, unquestioned.
A small percentage of shrapnel shells are now made from bar stock, but most shrapnel bodies are made from forgings, formed hollow in hydraulic presses or in forging machines. The forging processes, which are of extraordinary interest, especially to those who know something of the difficulties attending them, are, however, not finishing processes. Whether made from the bar or forged hollow, all shrapnel shells must be very accurately finished by machining.
This book has been brought out to meet the demands for a treatise dealing comprehensively with the construction, forging and machining operations, and the tool equipment used for making the shell, fuse parts, and brass cases. In this book are included not only the unusually complete articles on shrapnel manufacture contained in the April, 1915, number of Machinery, of which 5000 extra copies were printed and 5000 additional reprints made, all of which have been sold, but it also includes all other material that has been published at various times in Machinery relating to shrapnel manufacture, together with a great deal of material obtained by the Editors especially for this book; and, in addition to this, it contains abstracts of the official [vi]specifications, together with line-engravings of the details of Russian, British, and American shrapnel shell bodies, fuses, and cartridge cases. Hence, it is believed that the book will prove the most valuable addition to the literature on the manufacture of munitions that has been made since the beginning of the great war.
D. T. H.
New York, October, 1915.
[vii]
| Chapter I. | |
| Shrapnel Shells | 1-19 |
| Chapter II. | |
| Forging Shrapnel Shells | 20-39 |
| Chapter III. | |
| Machining and Heat-treatment of Shrapnel Shells | 40-74 |
| Chapter IV. | |
| Machines and Tools for Shrapnel Manufacture | 75-142 |
| Chapter V. | |
| Making Fuse Parts | 143-171 |
| Chapter VI. | |
| Making Shrapnel Cartridge Cases | 172-193 |
| Chapter VII. | |
| Specifications for the Manufacture and Inspection of the Russian 3-inch Shrapnel Shell | 194-212 |
| Chapter VIII. | |
| Specifications for the Manufacture and Inspection of the Combination Fuse for Russian 3-inch Shrapnel Shells | 213-230 |
| Chapter IX. | |
| Specifications for the Manufacture and Inspection of Russian 3-inch Shrapnel and High-explosive Cartridge Cases | 231-250 |
| Chapter X. | |
| Specifications for British 18-pounder Quick-firing Shrapnel Shell | 251-259 |
|
[viii] |
|
| Chapter XI. | |
| Specifications for British Combination Time and Percussion Fuses | 260-275 |
| Chapter XII. | |
| Specifications for British 18-pounder Quick-firing Cartridge Case and Primer | 276-285 |
| Chapter XIII. | |
| Specifications for American Shrapnel Shells | 286-292 |
| Index | 293-296 |
[1]
In naval, coast defense and artillery operations, several types of explosive shells are used; the chief ones are: the armor-piercing shell, made to pierce armor-plate before exploding; shells exploded by means of a timing fuse; shells exploded by either a timing or percussion fuse; and shells exploded by percussion only. Each different shell has some definite function to fulfill, and is designed for that purpose. For field or artillery operations, the shrapnel and lyddite are the two principal types used. Of these, shrapnel is the most prominent, because of its destructive power and its interesting mechanical construction.
Early Development of Shrapnel.—The shrapnel shell was invented in 1784 by Lieut. Henry Shrapnel, and was adopted by the British Government in 1808. As is shown at A in Fig. 2, the first shell was spherical in shape, and the powder or explosive charge was mixed with the bullets. Although this type of shell was an improvement over the grape and canister previously used, its action was not altogether satisfactory, as the shell, on bursting, projected the bullets in all directions and there was also a liability of premature explosion. In order to overcome the defects mentioned, Col. Boxer separated the bullets from the bursting charge by a sheet-iron diaphragm, as shown at B in Fig. 2. This shell was called a diaphragm shell to differentiate it from the first shell of this type.
In the shell made by Col. Boxer, the lead bullets were hardened by the addition of antimony, and as the bursting charge was small, the shell was weakened by cutting four [2]grooves extending from the fuse hole to the opposite side of the shell. Shells of spherical shape were first fired out of plain-bored guns, and upon the advent of the rifled gun it was necessary to add a circular base, which was made of wood and covered with sheet iron or steel to take the rifling grooves. The first shrapnel shells were made of cast iron, but a later development was to use steel and elongate the body, reducing it in diameter. The diameter of the bullets was also reduced so that a greater number could be contained in a slightly smaller space. The improved shrapnel was also capable of being more accurately directed.
Shrapnel Shells of Present-day Design.—Shrapnel shells, as used at the present time by the different governments, vary slightly in construction and general contour as well as in the constituents entering into their different members. As shown in Fig. 1, a completed shrapnel comprises a brass case carrying a detonating primer and the explosive charge for propelling the projectile out of the bore of the gun. The projectile itself comprises a forged shell that carries the lead bullets and bursting charge. Screwed into the front end is the combination timing and percussion fuse which can be set so as to explode the shell at any desired point, and from which the flame for exploding the bursting charge is conveyed through a powder timing train and a tube filled with powder pellets down through the diaphragm to the powder pocket.
Of these members of a shrapnel, the shell and timing fuse present the most interesting features from a mechanical standpoint. The shell used by most governments is made from a forging, machined to the desired dimensions in hand and semi-automatic turret lathes as well as in ordinary engine lathes. The fuse is an extremely accurate piece of mechanism, and is largely produced from screw machine parts, some of which, however, are forged previous to machining. The brass cartridge case—the next member of importance—is drawn from a brass blank by successive operations in drawing presses, and is indented and headed. Following this, several machining operations are performed on the head and primer pocket.
[3]
Types of Shrapnel Shells.—Shrapnel shells are made in two distinct types, one of which is known as the common shell, and the other as the high-explosive. The common shell is a base-charged shrapnel, fitted with a combination fuse, whereas the high-explosive shell is fitted with a combination fuse and, in addition, with a high-explosive head, the head also bursting and flying into atoms upon impact. The high-explosive shell is not ruptured upon the explosion of the bursting charge in the base, but the head is forced out and [4]the bullets are shot out of the case with an increased velocity. In the meantime, the head continues in its flight and detonates on impact. This type of shell is not used as extensively as the common shrapnel, and, therefore, the common shrapnel shell alone will be taken up in the following.
The Explosive Charge.—Reference to Fig. 1 will show that as far as the construction of the shrapnel shell and case is concerned, there is very little difference in those employed by the various governments. Starting with the cases, it will be seen that these are almost identical, except for length and the arrangement of the head for carrying the detonating primer. There is a marked similarity in this respect between the Russian, the British, and the German, and between the American and the French. The form of the explosive charge held in the brass case differs in almost every instance, but without exception smokeless powder in some form or other is used. In the American shell, nitrocellulose powder composed of multi-perforated cylindrical grains each 0.35 inch long and 0.195 inch in diameter are used. In the Russian case, smokeless powder of crystalline structure is used. In the German, smokeless (nitrocellulose) powder in long sticks and arranged in bundles is held in the case. [5]The French use stick smokeless powder ¹⁄₂ millimeter (0.0195 inch) thick by 12.69 millimeters (¹⁄₂ inch) wide. Two lengths or rows of this powder are arranged in the case. The British use a smokeless powder of crystalline structure somewhat similar to the Russian, but in some cases cordite has also been used, although of late this type of powder has not been quite as commonly employed.
The detonating agent or primer held in the head of the case varies in almost every type of shrapnel. Practically all primers are provided with “safety heads,” so that the shrapnel can be handled without danger of premature explosion. The object, of course, of the detonating agent or primer is to detonate or cause the sudden explosion of the explosive charge in the shell for propelling the shrapnel out of the field gun.
The Shrapnel Shell.—The shell itself, as previously mentioned, is made either from a forging or from bar stock. Forgings, however, are used to a greater extent than bar stock, because the forged shell is more homogeneous in its structure than the bar-stock shell, and piping—a serious objection in the bar-stock shell—is entirely eliminated. The shells used by the British, Russian, and German governments are made almost exclusively from forgings, whereas those used by the French and American governments are made both from forgings and bar stock. When the French shell is made from bar stock, an auxiliary base is screwed into it to eliminate any danger of piping. Near the base of all shells is a groove in which a bronze or copper band is hydraulically shrunk. This is afterward machined to the desired shape and takes the rifling grooves in the gun so as to rotate the shell when it is expelled. The body of the shell itself is slightly smaller than the bore in the gun, and the rifling band, which is larger and which is compressed into the rifling grooves, rotates the projectile, thus keeping it in a straight line laterally during flight. The bursting charge, which in practically all cases is common black powder, is carried in the base of the shell and is usually enclosed in a tin cup. Located above this is the diaphragm which is used for carrying the lead bullets out of the shell when the bursting [6]charge explodes and distributes them in a fan shape. In most shells, upon exploding, the nose blows out, stripping the threads that hold the members together. It will, therefore, be seen that, in the explosion, the entire fuse, fuse base, tube, diaphragm and bullets are all ejected, the shell itself acting as a secondary cannon in the air.
The number of lead bullets carried in the 3-inch shrapnel shells ranges from 210 to 360. In all cases, the lead bullets are about ¹⁄₂ inch in diameter, weigh approximately 167 grains, and are kept from moving in the shell by resin or other smoke-producing matrix. The matrix put in with the lead bullets, in addition to keeping them from rattling, is also used as a “tracer.” It is of importance in firing shrapnel that the position of the explosion be plainly seen. With large shells this is not difficult, but with shrapnel for field guns at long range certain conditions of the atmosphere make it difficult to see when the shell actually bursts. Various mixtures are used to overcome this difficulty. In some cases, fine-grained black powder is compressed in with the bullets in order to give the desired effect. In the German shrapnel, a mixture of red amorphous phosphorus and fine-grained powder which produces a dense white cloud of smoke is used, and in the Russian, a mixture of magnesium antimony sulphide is used. The range of a 3-inch shrapnel shell is about 6500 yards, and the muzzle velocity of the quick-firing field gun ranges from 1700 on the American to 1930 feet per second on the Russian field gun. The duration of flight ranges from 21 to 25 seconds.
Development of Timing and Percussion Fuses.—The first fuses used in field ammunition were short iron or copper tubes filled with a slow-burning composition. These were screwed into a fuse hole provided in the shell, but there was no means for regulating the time of burning. Later—about the end of the seventeenth century—the fuse case was made of paper or wood so that by drilling a hole through into the composition the fuse could be made to burn for approximately the desired length of time before exploding the shell, or the fuse could be cut to the correct length to accomplish the same purpose.
[7]
For a considerable time all attempts to produce a percussion fuse were unsuccessful. Upon the discovery of fulminate of mercury in 1799, the chief requirement of a percussion fuse was obtained. About fifty years elapsed, however, before a satisfactory fuse was made. The first percussion fuse was known as the Pettman fuse, and comprised a roughened ball covered with detonating composition that was released upon the discharge of the gun. When the shell hit the desired object, the ball struck against the inner walls of the fuse, exploded the composition and powder charge, thus bursting the shell. There are at the present time three principal types of fuses in use: First, those depending on gas pressure in the gun setting the pellet of the fuse free—this is a base fuse; second, those relying on the shock of discharge or the rotation of the shell to set the pellet free—used in nose and base fuses; third, those depending on impact.
In shrapnel shells advantage is taken of two types of fuses, one of which is the combination timing and percussion fuse used on common shrapnel, and the other the combination timing and percussion fuse of the high-explosive type used on high-explosive shrapnel. These types of fuses are again sub-divided, but only in the manner of construction. The most common fuse is that known as the combination timing and percussion fuse of the double-banked type. This is used in practically all shrapnel fuses except the French. The advantage of the double ring of composition shown at A and B in Fig. 3 is to give a greater length of composition and more accurate burning. Triple-banked and quadruple-banked fuses on the same principle have been designed, but at the present time have not been introduced.
Operation of Combination Timing and Percussion Fuses.—The manner in which the combination timing and percussion fuse is regulated to discharge the bursting charge in the shrapnel shell is interesting and involves extremely difficult mathematical calculations. Before going into the method of setting the fuse, it would probably be advisable to describe briefly just how the fuse operates. As an example [8]of the double-banked fuse, Fig. 3 shows that adopted by the United States government. The following description applies to this type of fuse.
Assume, first, that the timing ring is set at zero. The propelling force given to the shrapnel shell in leaving the bore of the gun is such as to sever the wire C from plunger G. Plunger G carries a concussion primer which is discharged by hitting firing pin D. The flame passes out through vent E, igniting the powder pellet F and the upper end of train A, and then through the vent H. From here, the flame is transmitted to the lower timing ring B through vent I and the magazine J, and from there through the tube to the bursting charge in the base of the shrapnel shell.
Assume any other setting, say 12 seconds. The vent H is now changed in position with respect to vent F leading to [9]the upper timing train, and the vent I leading to the powder magazine J is also changed. The flame, therefore, now passes through vent E and burns along the upper time train A in a counterclockwise direction until the vent H is reached. It then passes down to the beginning of the lower timing train and burns back in a clockwise direction to the position of vent I, from which it is transmitted by the pellet of compressed powder in this vent to the powder magazine J. It should be understood that the annular grooves in the lower face of each timing train do not form complete circles, a solid portion being left between the grooves in the ends of each. This solid portion is used to obtain a setting at which the fuse cannot be exploded and is known as the “safety point.” As shown in Fig. 6, it is marked S on the adjustable timing ring.
[10]
The timing fuse shown in Fig. 3 is of the combination timing and percussion type, and if the wire C fails to release percussion plunger G, the shell is exploded by means of a percussion fuse which comes into use when the shell strikes. The percussive mechanism consists of a primer K held in an inverted position in the center of the fuse body by a cup located beneath the percussive primer. Percussion plunger L works in a recess in the base of the fuse body and is kept at the bottom of the recess away from contact with the primer by a light spring in plunger M. The firing pin N is mounted on a fulcrumed pin, and is normally kept in the vertical position by means of two side spring plungers. When the shell strikes, the impact causes the plunger to snap up against the primer after compressing the spring in pin M. This causes the firing of the primer K and the explosive charge passes out through a hole in the percussion plunger chamber, not shown, to the magazine J and from there down to the powder in the base of the shell
Russian Fuse.—The Russian fuse shown in Fig. 4 differs only in a few minor details from the American fuse, the chief difference being in the arrangement of the percussive mechanisms. The percussive plunger for the timing arrangement is kept up from the firing pin by means of a spring bushing E surrounding the body of the plunger. This bushing is expanded by the plunger which is forced through it due to the force of the shrapnel in leaving the bore of the gun. The spring B in the head of the fuse assists the plunger in expanding bushing E and in dropping down onto the firing pin C. The flame from the exploded primer then travels down to the powder in the shell in practically the same way that it does in the American fuse, except that the magazine chamber is located at D and explodes through the impact fuse chamber. The percussive arrangement for setting the shell off by impact is slightly different from that in the American fuse, in that the primer and firing pin are held apart by means of springs, the inertia of which is overcome when the shell strikes an object.
[11]
French Fuse.—With the exception of a few minor details, the timing fuses used in American, Russian, British, German, Japanese, etc., shrapnel shells are the same. The French timing fuse, however, as shown by the diagram Fig. 5, operates on an entirely different principle. In this fuse, the firing for the timing train is contained in a sealed tube of pure tin and is wound spirally around the head of the fuse. Inside of the head is the ignition arrangement. To set the timing part of this fuse, it is placed in a fuse-setting machine attached to the field gun and, by forcing down a handle on this device, a piercing point is thrust through the outer cap of the fuse, penetrating to the interior space of the head as shown at A. Upon the discharge of the shell from the gun, the gas pressure forces firing pin B back, hitting the percussive primer C. This causes a flame which passes out through the opening previously punched at A and ignites the “rope” powder fuse which is wound around the head of the fuse body. This type of fuse is also provided with a fuse which sets off the shell by impact should the timing fuse fail to work. The head of the fuse is covered with a cap with holes for the piercing point, and the whole cap can be shifted around for a short distance and set by the corrector scale marked on the body, as shown in Fig. 1. A projection on the cap engages a recess in the fuse-setting machine and provides for this movement.
Firing of Shrapnel.—The accuracy with which a shrapnel can be exploded in the air at any desired point is remarkable, considering the number of variable quantities [12]that enter into the construction of the timing fuse and powder train, etc. The calculations necessary for finding the correct setting on the timing ring involve, however, the use of higher mathematics and are consequently not within the scope of this treatise.
In Fig. 6, the timing ring used on the American fuse is shown. Here it will be seen that the ring is provided with twenty-one graduations corresponding to twenty-one seconds in the duration of flight of the projectile. It will also be noticed that the spacing of the graduations differs. The reason for this is found in the relation of the vents, the positions of the lower timing train, the trajectory of the flying missile, and the decrease of velocity.
Diagram Fig. 7 shows in an interesting manner just how a shrapnel is fired. The range is approximately obtained by panoramic sights or other means, and a test shell fired, the point of explosion noted, and the necessary corrections made. A table which has been worked out for different distances is then used. In Fig. 7 the diagram shown pertains to the American quick-firing field gun having a muzzle velocity of 1700 feet per second and the American shrapnel of 3-inch size. It will be noted that at 2000 yards the terminal velocity of the shrapnel is 1038 feet per second and the time of flight for the projectile 4.75 seconds. In other words, the timing train to explode the shrapnel at [13]this point would be set at A in Fig. 6. The range of a 3-inch American shrapnel is 6500 yards and at this point the terminal velocity is approximately 724 feet per second, the time of flight 21.92 seconds. The shrapnel, when exploded, shoots out the bullets at an increased velocity or from 250 to 300 feet per second, covering an area of about 250 by 30 yards, half the bullets falling on the first 50 yards of the beaten zone.
In manufacturing shrapnel shells, a test shell is taken from every 120 shells, which is actually fired out of a quick-firing gun into a bank of sand. If the contour of the shell in the neighborhood of the powder pocket is expanded during this test, the shell is discarded because of the liability of tearing out the rifling grooves in the gun
Propellants and Explosives used in Shrapnel and High-explosive Shells.—As has been previously explained, a shrapnel shell contains three principal parts, viz., the projectile that carries the destructive charge of lead bullets, the fuse that carries a detonating arrangement for exploding the charge [14]in the base of the projectile, and the cartridge case that carries the powder charge used in propelling the projectile out of the bore of the gun. A high-explosive shell also comprises three principal parts, but the projectile, instead of carrying a charge of bullets and black powder, is filled with a high-explosive material, which, when detonated, bursts the body of the projectile into small pieces that are thrown off with great velocity and destructive effect. Shrapnel is used against troops in the open field, whereas high-explosive shells, which may be either of the ordinary or of the armor-piercing type, are used against fortifications, etc
Classification of Explosives.—The explosives used in shrapnel and high-explosive shells may be divided into three general classes: 1. Progressive or propelling explosives—known as “low” explosives. 2. Detonating or disruptive explosives—known as “high” explosives. 3. Detonators—known as “fulminates.” The first of these includes black gun powder, smokeless powder, and black blasting powder. The second, dynamite, nitroglycerine, gun cotton, etc. The third includes chiefly fulminates and chlorates. In all classes of explosives, the effect of the explosion is dependent upon the quantity of gas and the heat developed per unit of weight and volume of the explosive, the rapidity of the reaction, and the character of the confinement, if any, of the explosive charge.
Low Explosives.—For certain explosives, such as smokeless powder, the explosive action does not differ in principle from the burning of a piece of wood or other combustible material. The combustion is very rapid, but is a surface action, progressing from layer to layer until the entire grain is consumed. Such materials are known as “low” explosives, although the power developed through the combustion of a unit weight may be very great. The progressive emission of gas from a low explosive, such as burning gun powder, produces a pushing effect upon a projectile without unduly straining the gun, whereas the sudden conversion of an equal weight of a high explosive, such as nitroglycerine, into gas, would develop such high pressures as to rupture the gun.
[15]
High Explosives.—In high explosives, such as nitroglycerine, gun cotton, picric acid, etc., the progress of the explosive reaction is not by burning from layer to layer, but, instead, consists of an initial breaking up of the molecules, giving rise to an explosive wave, which is transmitted with great velocity in all directions throughout the mass, and causes it to be converted almost instantly into a gas. The velocity of this explosive wave has been determined, for some materials, to be more than 20,000 feet, or approximately four miles, per second.
Detonators or Fulminates.—The action of fulminates is much more powerful than either the low or high explosives described. They can be readily detonated by slight shock or by the application of heat, and are used in primers, for setting off the propelling charge in a cartridge case, and in fuses, either of the plain percussion or of the combination time and percussion types. The most common fulminate is made by dissolving mercury in strong nitric acid and then pouring the solution into alcohol. After an apparently violent reaction, a mass of fine, gray crystals of fulminate of mercury is produced. The crystalline powder thus produced is washed with water to free it from acid and is then mixed with glass ground to a fine powder. Because of its extreme sensitiveness to heat produced by the slightest friction, it is usually kept soaked in water or alcohol until needed
Manufacture of Black Powder.—Black powder, because of its “pushing” effect when exploded, is used extensively as a base charge for shrapnel shells in expelling the bullets from the projectile. It comprises three principal elements in about the following proportions: 75 parts of saltpeter, 15 parts of charcoal, and 10 parts of sulphur. These ingredients must be absolutely free from impurities and, in manufacturing, great care is taken in refining the saltpeter and sulphur, and in burning the charcoal, to prevent the introduction of any foreign substances. After purification, the ingredients are carefully weighed in the proper proportions and mixed for about 5 minutes in a revolving drum provided with mixing arms. The mixed charge is now ground [16]for several hours, the charge being moistened occasionally with distilled water, the resulting mixture being what is called a “milk cake.” It is then reduced to fine meal in a machine having Tobin bronze or gun-metal rollers, after which it is compressed under hydraulic pressure.
The next operation comprises the granulating of the powder, which is done in a strong Tobin bronze or gun-metal framework carrying two pairs of toothed and two pairs of plain Tobin bronze or gun-metal rollers. The “cake” is cut into pieces by these rollers and falls on screens which sift it into grains of the required size. The grains are then separated from the dust in a revolving screen, and the high polish or glaze is produced by putting the powder into drums or glazing barrels, which revolve constantly for several hours. Graphite is generally used to provide the glazing effect. The powder is now dried in a stove heated by steam pipes, and is spread upon canvas trays placed on shelves
Manufacture of Smokeless Powder.—Smokeless powder, which is used in various forms in cartridge cases, was discovered in 1846 by a German chemist Schoenbein. The chief ingredient of smokeless powder is cotton. The portion of cotton used is generally the short fiber. The first attempts to produce gun cotton were unsatisfactory, and several very serious explosions occurred. Many of the difficulties in its manufacture were overcome by an Austrian, von Lenk. Still further progress was made by a Swedish engineer, Alfred Nobel, and the improved explosive was patented in 1888 under the name of “ballistite.” One of the principal smokeless powders is known as “cordite”, this name being derived from the cord-like form it assumes in manufacture. The first compositions of cordite were: 58 per cent of nitroglycerine; 37 per cent of gun cotton; and 5 per cent of mineral jelly. This composition, after considerable use, was found to have a slight deteriorating effect on the bore of the gun, and after ten years’ use was modified to the following proportions: 30 per cent of nitroglycerine; 65 per cent of gun cotton; and 5 per cent of mineral jelly.
[17]
The brand of smokeless powder used most extensively as a propelling charge in shrapnel or high-explosive shells is known as nitrocellulose, and, as is common with cordite, the base of this is cotton, as previously explained. It is manufactured as follows: After bleaching and purifying, the cotton is run through a picker which opens up the fibers and breaks up any lumps. It is then thoroughly dried and is ready for nitration. The most generally used method of nitration is to put the cotton into a large vessel filled with a mixture of nitric and sulphuric acids. The sulphuric acid absorbs the water developed in the process of nitration, which would otherwise too greatly dilute the nitric acid. After a few minutes’ immersion, the pot is rapidly rotated by power, and the acid permitted to escape. Following this, the nitrated cotton is washed for a short time and then removed from the nitrator or pot and repeatedly washed or boiled to remove all traces of free acid. As the keeping qualities of the nitrated cotton are dependent upon the thoroughness with which it is purified, the specifications for powder for the United States army and navy require that the nitrocellulose shall be given at least five boilings at this stage of the manufacture, with a change of water after each boiling, the total time of boiling being forty hours. Following this preliminary purification, the nitrocellulose is cut up into shorter lengths, by being rapidly run between cylinders carrying revolving knives. This operation—known as “pulping”—is necessary because of the difficulty experienced in removing the free acid, unless the fibers are cut up into short lengths.
After pulping, the nitrocellulose is given six more boilings, with a change of water after each, followed by ten cold water washings. The material is now known as gun cotton or pyrocellulose. Previous to adding the solvent, this must be free from water. This is generally accomplished in a circular wringer, and in addition by compressing the pyrocellulose into solid blocks. Alcohol is forced through the compressed mass. Ether is then added to the pyrocellulose already impregnated with alcohol, the relative proportions being two parts, by volume, of ether to one [18]part of alcohol. After the ether has been thoroughly incorporated in a kneading machine, the material is placed in a hydraulic press and formed into cylindrical blocks about 10 inches in diameter and 15 inches long. It is then transferred to a finishing press where it is again forced through dies and comes out in the form of long strips or rods, which are cut into pieces of the length and widths required. It is in this finishing process that the various governments differ in their methods of manufacture. The United States Government uses a short perforated circular block, whereas the French use flat sticks about 0.0195 inch thick by ¹⁄₂ inch wide. Two lengths or rows of these sticks are arranged in the cartridge case. The cut up pieces are subjected to a drying process which removes nearly all the solvent and leaves the material in a suitable condition for use. The drying process is a lengthy one, amounting to as much as four or five months for powder in large pieces. Upon completion, the powder is blended and packed in airtight boxes
Manufacture of High Explosives.—The explosive charges used in high-explosive shells are known by various trade names, such as: emmensite, lyddite, melinite, maximite, nitrobenzole, nitronaphthalene, shimose, trinitrotoluol, turpenite, etc. The base of such explosives as emmensite, maximite, lyddite, melinite, and shimose, is picric acid, which is secured from coal tar, subjected to fractional distillation. The liquid which comes off when this is raised to a temperature of 150 degrees C. is called “light” oil, and when these light oils have been again distilled, the next fraction or “middle” oil yields phenol or carbolic acid. This substance when nitrated gives off picric acid. Experiments with lyddite shells showed their behavior to be very erratic, some exploding with great effect, while others gave disappointing results. This was due to the fact that picric acid requires a powerful detonator to obtain the highest explosive effect. The use of such a detonator, however, is dangerous, and extensive experiments have brought forth a new high explosive known as trinitrotoluol—generally termed T.N.T. Although the explosive force of trinitrotoluol is slightly [19]less than that of picric acid, the pressure of the latter being 135,820 pounds per square inch as against 119,000 pounds for trinitrotoluol, its advantages more than compensate for the difference.
Trinitrotoluol is obtained by the nitration of toluene, contained in the crude benzol distilled from coal tar and washed out from coal gas. The crude benzol contains roughly:
| Per cent | |
|
Benzine Toluene Xylene Other substances |
50 36 11 3 |
Toluene to be used for the manufacture of trinitrotoluol should be a clear water-like liquid, free from suspended solid matter, and having a specific gravity of not less than 0.868, nor more than 0.870, at 15.5 degrees C. Trinitrotoluol when pure has no odor and is a yellowish crystalline powder which darkens slightly with age. It cannot be exploded by flame or strong percussion, and a rifle bullet may be fired through it without any effect. When heated to 180 degrees C., it ignites and burns with a heavy black smoke; but when detonated by a fulminate of mercury detonator, it explodes with great violence, giving off a black smoke. Shells containing this explosive, first used on the western battle front, were given such names as “coal boxes,” “Jack Johnsons,” “Black Marias,” etc., by the allies.
The Russians and Austrians use a high explosive known as ammonal in which 12 to 15 per cent of trinitrotoluol is mixed with an oxidizing compound, ammonium nitrate, a small amount of aluminum powder, and a trace of charcoal. This high explosive gives somewhat better results than plain trinitrotoluol, but has the one disadvantage of easily collecting moisture, and consequently must be made up in airtight cartridges. The British are now using an improved compound of this character, which is so prepared that trouble is not experienced with the collection of moisture.
[20]
Within the last few months, many methods have been suggested for making shrapnel forgings, but a comparatively small number have been put into use. Practically speaking, no two governments have adopted the same method. The Russian government uses double-acting horizontal hydraulic forging presses in which two operations are performed at the same time on different forgings. For instance, while the punch in one end of the machine is piercing a heated billet, the ram on the return stroke performs the hot drawing operation on another shell located at the opposite end of the machine. In this way a shell is completed at each cycle of the machine—forward and return stroke. The French government, up to a short time ago, used steam hammers for this purpose, and produced shrapnel forgings in practically the same manner as a drop-forging is made, the punch being carried in the ram of the press and the die held on the bed. This is rather a slow process and requires more than one heating to complete the forging. The German government uses a horizontal hydraulic forging press for piercing the billet and a steam driven machine for drawing the forging, which receives its motion from a rack and pinion. This method has the advantage over the hydraulic press of being more economical in the consumption of power.
The methods followed by different concerns in this country and Canada, at the present time, differ to a large extent. Some manufacturers are using a method that dates back as far as 1890, as will be described later. Others are using a more improved method developed about 1895, whereas about three concerns are using a still more improved method developed within the past year
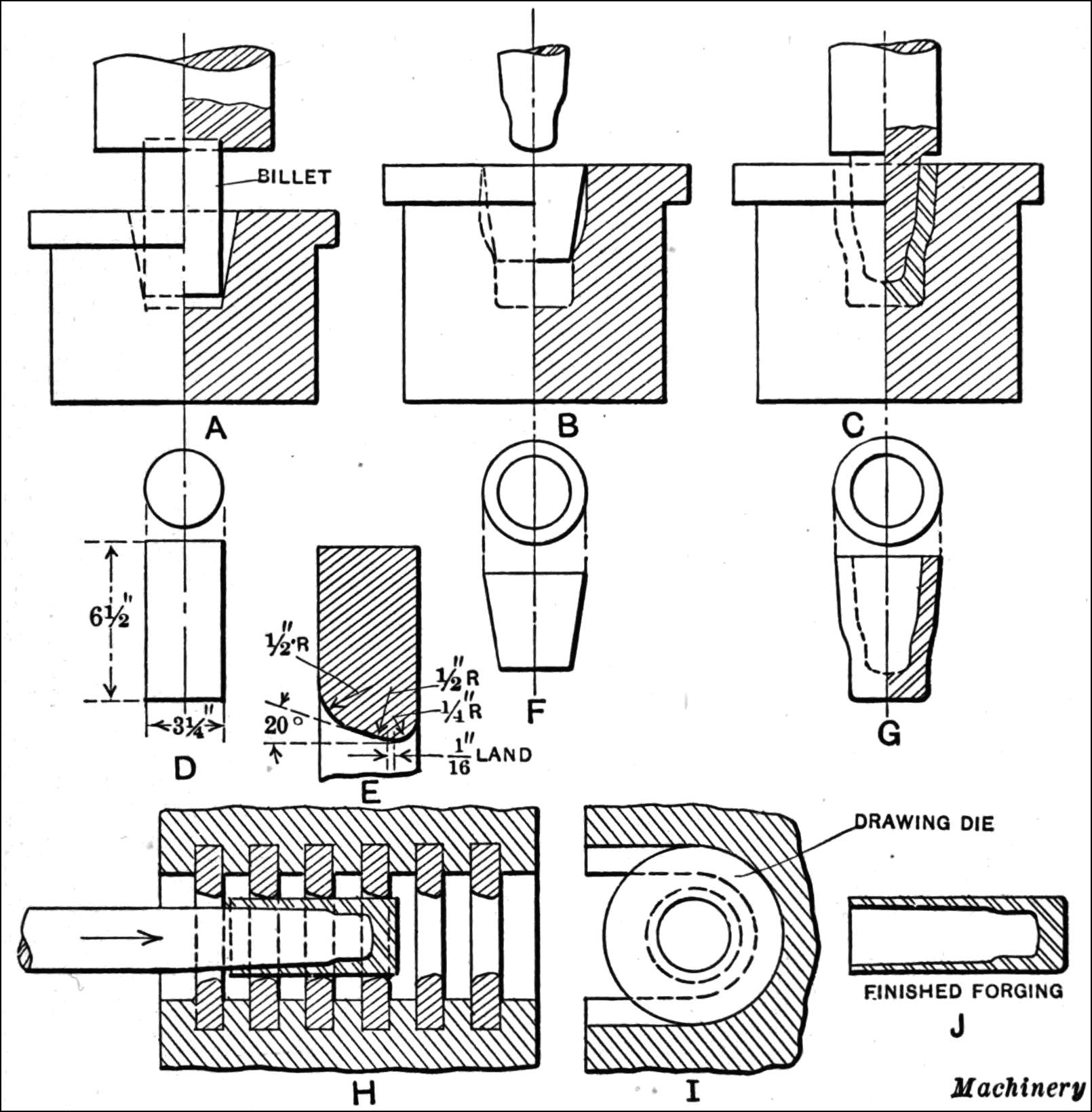
Caley Method of Making Shrapnel Forgings.—The first method (known as the Caley process) of making shrapnel forgings in this country had its inception about 1890 and [21]was used almost exclusively until 1895. This comprised a slug-forming and billet-piercing operation followed by a successive reduction and elongation of the forging through drawing dies. The order of these operations is shown diagrammatically in Fig. 1. The information given herewith pertains to the making of a forging for a 3-inch shrapnel shell. As shown at D, a billet of steel 3¹⁄₄ inches in diameter and 6¹⁄₂ inches long was cut off from a bar with a cold saw, and formed into a cone shape under a vertical hydraulic press having a capacity of 100 tons. The billet was heated in a furnace to about 1900 degrees F., dropped into the impression in the die and forced into shape by a hydraulic plunger having a depression in the lower end which centered the blank. The result of this operation is shown at F.
[22]
[23]
The next step was to anneal the billet, after which it was pierced as shown at C, and at the same time slightly elongated. This operation was handled in a hydraulic press of the type shown in Fig. 2. On a 0.70 per cent carbon steel billet the pressure on the punch in the piercing operation was 20,000 pounds per square inch, and the machine used was a vertical hydraulic forging press of the type referred to having a capacity of 100 tons. From the piercing operation the forging was taken direct without annealing to the horizontal hydraulic draw press, and, as is shown at H, was located on a punch and forced through a series of drawing dies which gradually reduced the shell to the correct diameter, 3¹⁄₈ inches, and drew it out to the required length, about 8³⁄₄ inches.
A point worthy of attention is the preparation of the cone-shaped billet. The smallest end was made slightly smaller than the smallest reduction die in the series. The reason for this was that if any drawing were done on the end of the shell the front corner would be drawn over and deformed, increasing the amount of machining required. The drawing dies in this case were six in number, as shown at H, and were reduced on a sliding scale of the following proportional reductions. First, 0.100 inch; second, 0.080 inch; third, 0.060 inch; fourth, 0.040 inch; fifth, 0.030 inch; and sixth, 0.020 inch. This gave dies of the following sizes, in inches, starting with the largest in the series: 3.355, 3.275, 3.215, 3.175, 3.145, and 3.125.
The shape given to the drawing edges of the dies is of prime importance. The mouth or entering side of the hole was beveled to an angle of 20 degrees leading to a liberal curve which terminated in a land ¹⁄₁₆ inch wide. The shape was finished off with a ¹⁄₄-inch radius. These dies were made from chilled cast iron and were held in position as shown at H, being slipped into a pocket in the frame of the machine, as shown at I. The punches for the coning, piercing and hot drawing operations were made from special hot punching steel. The first drawing die in the series lasted the longest because the metal was hotter at this point than when it was drawn completely through the dies. As [25] a rule, the last drawing die turned out 100 shells before being worn or scored. Then it was reground to a larger size and used again. The drawing punch was lubricated occasionally with graphite. After drawing, the forging is annealed to obtain the proper physical qualities. This method of making forgings for a 3-inch shrapnel shell is capable of producing 400 in ten hours.
Holinger Method of Making Shrapnel Forgings.—About 1895 the following method, known as the Holinger process of making shrapnel forgings, was devised. Instead of making the billet conical in shape before piercing, this preliminary operation was dispensed with, and to facilitate the work, as well as to reduce the friction of the flowing metal, the arrangement of the piercing punch and die was changed. This process is shown in Figs. 3 and 4, and was accomplished in a hydraulic press provided with two cylinders, one located at the bottom and the other at the top of the press.
The operation was as follows: The die a was held in a movable frame b and the piston c acted first. The first position after the billet was dropped into the die is shown at B. Here the die a and punch d remained stationary while the piston c descended, pushing the billet through the die and over the punch. When the piston reached the end of its stroke, as shown at C, the lower cylinder began to act and the frame carrying the die was raised. This frame, as shown at D, carried a stripper plate e which removed the pierced billet from the punch and located it so that it could be picked off with a pair of tongs. A subsequent operation of hot drawing as shown at E, Fig. 4, was required, which is similar to that described in the first method. The method just described was used chiefly for 6- and 8-inch shrapnel and projectile forgings, and at the present time is still used for 3- and 6-inch shell forgings. It requires much less power and turns out a better and more concentric forging than the method previously described. The production on 8-inch shells is about 180 in ten hours, and 250 on the 3-inch shell.
[26]
[27]
Later Methods of Forging Shrapnel Shells.—The increased demand for shrapnel within the last few months has been instrumental in bringing about a radical improvement in the production of forged shells. Previously, the aim was to get the internal diameter as close as possible to the finished size and to do comparatively little machining on it; in fact, this is still, in a great number of cases, one of the requirements. While at first glance this would appear to be the logical way of handling the work, on further investigation it is found that the forging of the shell to the correct size is much more expensive than to leave sufficient metal to machine all over. In the first place, a hydraulic machine of 100 tons capacity costs considerably more in initial outlay than a turret lathe, and in the second place it is more expensive to operate. The cheapest method of making a shrapnel forging is to rough-forge it to approximately the correct shape and then finish to exact shape and diameter in turret lathes or semi-automatic chucking machines. This simplifies the forging process and also decreases the production costs.
One of the later methods of making shrapnel forgings is shown diagrammatically in Fig. 5. A billet of steel 6¹⁄₂ inches long by 3⁵⁄₁₆ inches in diameter is heated to a temperature of from 1900 to 2100 degrees F., and then dropped into the impression in the die a held in a special cast-steel die-holder b. To do this, die a is drawn out from beneath the punch, punch guide c removed, and the billet dropped in. Then the guide is replaced and the die-holder slid in until it contacts with the stop d. The press is now operated, and, as shown at B, advances, piercing the billet and making the metal flow up around the walls of the punch.
The punch now retreats, carrying the centralizing guide c with it. The die-holder is now drawn out from under the punch onto a bracket projecting from the bed of the press. The high-carbon steel, hardened block e then drops out of the die, as is also the case with the finished forging. This block e, of course, is heated up to a considerable extent due to the hot metal resting on it so that several blocks of this [28]kind are provided. In the illustration, as shown at C, centralizing guide c is shown attached to the punch. In actual operation this is not the case. When the punch rises, guide c is stripped from it by stripper plate f so that the guide is gripped with tongs and laid down on the bed of the press until a fresh heated billet has been placed in the die impression ready for the next piercing. The punch is made from special hot punching steel and the die from chilled cast iron. The production of forgings by this method for a 3-inch shrapnel shell is about 600 in ten hours.
The amount of metal left for machining by this method varies from ¹⁄₈ to ³⁄₁₆ inch on the internal and external diameters. The forging after annealing is then machined [29]inside and out on turret lathes, or semi-automatic chucking machines. The accepted method is to first machine the internal diameter and then hold the shell on an expanding arbor and machine it on the external diameter.
Producing Shrapnel Forgings in Hydraulic Presses.—In the foregoing description various principles of making shrapnel forgings were described. Owing to the large number of forgings lately required, practically all types of forging presses and power forging machines have been used. Fig. 6 shows how one manufacturer is solving the problem. The machine used is an R. D. Wood Co., 750-ton hydraulic forging press; this performs both the billet piercing and drawing operations. The forgings turned out on this machine are for the British 18-pound shell, and the billet is 3¹⁄₂ inches in diameter by 4¹⁄₂ inches long. The first operation, piercing the billet, is done by the punches and dies shown in Fig. 7. The billet is heated in a furnace to a temperature of 2000 degrees F., and then quickly removed [30]and placed in the dies. The press is now operated, piercing two billets at the same time. The pierced billet is 3¹⁄₂ inches in diameter by 7¹⁄₂ inches long.
A complete batch of pierced billets is first put through, then the pierced billets are taken to the furnace again and heated to 2000 degrees F. The punches and dies in the center of the illustration Fig. 8 are used for finish-drawing the forging by drawing it out to 3¹⁄₂ inches in diameter by 11 inches long. This method is only temporary and will be replaced shortly by three R. D. Wood four-post hydraulic presses. The piercing operation will be handled on one press of 350 tons capacity, and the drawing operations on two presses of 200 tons capacity.
Making Shrapnel Forgings in Power Forging Machines.—One of the latest developments in the art of producing forgings for shrapnel shells is the adaptation of the power forging machine to this work. As has been previously mentioned, there are several methods of producing shrapnel [31]shells, and as it has been conclusively proved that the forged shell is superior to the shell made from bar stock, it is only natural that several methods for making the forgings would be developed. In the forging machine method, a bar slightly larger than the finished diameter of the forging is cut off, making a billet about 5¹⁄₂ inches long. This billet, for a 3-inch shell, weighs about 9¹⁄₄ to 9¹⁄₂ pounds.
The billet is heated to a white heat in a furnace, the temperature being about 2000 degrees F., depending on the carbon content and other constituents in the steel, and is then placed in the lower impression of the forging die. The machine used for this size of forging is a standard upsetting and forging machine provided with a special crank-shaft. Upon being operated, the lower plunger, which is larger than the diameter of the powder pocket in the shell, advances and pierces the billet. The pierced billet is then raised to the next impression, and the machine again operated. The second punch is longer than the first and smaller in diameter. The billet is forced up on this punch, which reduces it in diameter and increases its length. After the second impression the partially formed shell is then placed in the third or final die impression, where it is given two blows, being given one-half turn after the first blow to form it more perfectly. The operations just enumerated [32]are performed in one heating of the billet, and the production of a 3-inch shell ranges from 400 to 450 in ten hours.
The dies for this work are, of course, constructed upon a somewhat different principle from the ordinary forging die, because in this case it is necessary to make the metal flow up on the punches. The dies, therefore, are so constructed that they recede as the punch advances, which tends to make the metal flow up on the punch. The practicability of this method is well illustrated by the samples shown in Fig. 9. Here D is the rough forging just as it comes from the machine, with the exception that the mouth has been trimmed. C is a section of a shell made from low-carbon steel about 0.30 per cent carbon; B is a shell made from 0.50 per cent carbon, 3¹⁄₂ per cent nickel steel. This has been rough-turned, as the illustration shows. The homogeneity of the forgings is clearly indicated. A is a forging made from low-carbon steel, finish-turned.
One of the most interesting points about this method is its cost as compared with shells made from bar stock. To produce a 3-inch shell from bar stock requires about 22 pounds of material, and on metal costing 10 cents per pound, a bar shell—exclusive of machining—costs $2.20; to produce the same shell on a power forging machine requires about 9¹⁄₄ to 9¹⁄₂ pounds, and figuring on 10 cents per pound the cost for the material is only $1—a saving of $1.20 on each shell. Furthermore, the production of shells from bar stock on automatic machines is about twelve to fifteen per day. The number of forgings that can be turned out in the same time is 400 to 450, and the number that can be machined in this time varies from forty to fifty for two operations. It is therefore evident that the production of shells by forging is far superior to the bar method, and the forged shell is more satisfactory from every standpoint.
Forging Shrapnel in a Power Press.—Another interesting development in the forging line is shown diagrammatically in Fig. 10. This method comprises three operations, and is handled in a No. 80¹⁄₂ Bliss press capable of exerting a pressure of 1200 tons. A billet 3¹⁄₄ inches in diameter [33]by 3³⁄₄ inches long is heated in a furnace to 1976 degrees F. and then quickly placed in the die shown at A. The press is operated, and the punch in descending pierces the billet, being guided by the guide a, as shown at B, which [34]also acts as a stripper. The forging retains its heat to a certain extent after this operation, the temperature being about from 1380 to 1425 degrees F. This is sufficient to perform the second minor operation which, as shown at C and D, consists in forcing the heated billet into the die-block to reduce the diameter of the lower end and facilitate the succeeding operation. This reducing operation is performed with the same type of punch as is used in the succeeding operation, and the die-block is simply laid on top of a bolster while the reducing is being done.
The final forming or drawing of the forging is accomplished as shown at E and F, the same type of press, viz., a Bliss No. 80¹⁄₂ power press, being used for this purpose. The pierced billet is now heated to 1976 degrees F., and is then forced through the three drawing dies b, c and d, by the punch e. The first die is 3⁵⁄₁₆ inches in diameter and reduces the forging from 3³⁄₈ inches to this size. The second is 3⁷⁄₃₂, and the third, or last, 3¹⁄₈ inches in diameter. The forging, after being forced through the dies, is stripped from the punch by plates f, and as it still retains a temperature of 1475 degrees F.—sufficient for annealing—is thrown down on the sand to cool off. The billet piercing and drawing dies, shown in the illustration, were made from 50-point carbon steel, hardened. This gave fair results, although chilled cast-iron dies would prove even more satisfactory. The punches were made from several different materials such as chrome-vanadium, 70-point carbon steel, and unannealed malleable casting. Of the three materials, the latter gave the most satisfactory results, in that pitting was reduced to a minimum. Of course, it was necessary to grind the malleable casting to shape.
Flow of Hot Metal When Pierced.—In the manufacture of shrapnel shell forgings, the first operation is that of piercing, and to accomplish this satisfactorily, it is necessary to understand the action of a piercing punch on a semi-plastic billet of steel. There are certain fundamental laws governing the flow of metals under pressure and a study of these is of exceptional interest. An attempt has been made in Fig. 11 to illustrate diagrammatically some of [35]the principles involved, and in the following discussion it should be understood that the billet is made from 50-point carbon, 60-point manganese steel, 6¹⁄₂ by 3⁵⁄₁₆ inches in diameter.
At A a round-end tapered punch is shown in contact with the heated billet, and the lines show the possible flow of the metal, i.e., the material commences to “pack” at the end of the punch. In this case the walls of the die are straight. At B the billet is being pierced, and the resultant effect on the flow of the metal is indicated. Here it will be seen that the pressure increases as the punch descends, because of the wedging action on the metal and the friction between the surfaces of the sides of the punch and die. The pressure on the end of a punch of this shape is about 20,000 pounds per square inch.
By leaving the sides of the die of the same shape as at B, but making the end of the punch square instead of round [36]and not tapered, different action is caused. When the flat punch, as shown at C, first contacts with the metal, the pressure required is greater than at A, but as soon as the metal commences to flow as at D, the pressure decreases. For instance, suppose the pressure required at B to pierce the billet was 100 tons; on the same material at D, the required pressure would be only 70 tons—a decrease of 30 per cent. The metal, however, does not follow the sides of the punch as closely at D as at B, and this accounts in part for the reduction of power required. The action of hot flowing metal on the face of a square punch is just the reverse of what would naturally be expected. Instead of the punch wearing away at the edge, the center first shows signs of wear as indicated at e. Seams are opened up in a radial direction caused by the hot metal attacking the softest parts in the face of the punch.
Again, a different condition exists to that shown at B and D, when both the die and the punch are tapered as shown at E. Here the friction of the extruded metal on the walls of the die and sides of the punch is excessive, and it is practically impossible to produce a satisfactorily pierced billet in this manner. From a theoretical standpoint, the conditions shown at F are ideal. Here the sides of the [37]punch are straight, the end flat, and the walls of the die taper or increase in diameter toward the bottom. In this case the friction of the flowing metal is greatly reduced because of the lessening of the wedging action. Other considerations, however, make this method impracticable.
A still greater reduction in the pressure necessary to pierce a billet is shown at G. Here a square billet instead of a round one is being pierced. In the plan view it will be noticed that the friction on the walls of the die is greatly reduced, and the pressure continues low until the extruded billet contacts all around with the surface of the die. The completed product, however, is inferior to that made from a round billet. From the previous remarks, it will be seen that a punch and die that would best meet the requirements [38]is one having a rounded end as at B, straight sides as at D, and straight walls in the die. The most satisfactory punch and die for piercing shrapnel forgings when all the variable conditions are considered would be as shown at H.
Forging the Shrapnel Head.—The shrapnel head shown at A in Fig. 12, that screws into the end of the shell and into which the fuse body is screwed, is made from a forging of low-carbon steel for the French shell. One method of producing this, which is of unusual interest, is shown in Fig. 13. A power-driven forging machine equipped with a special set of tools is used for this purpose. A bar of steel of the same diameter as the hole in the finished forging, [39]in this case 1¹⁄₂ inch, is gripped in the dies as shown at A, and is upset by means of a plunger a, forming an upset on the end of the bar shown to the right. The upset bar is now placed in the second impression of the gripping dies, as shown at B. By way of explanation, it should be stated that the views of the dies shown at A, B, and C are sections taken in a horizontal plane at each stage or die impression. Upon gripping the upset forging in the second impression in the dies, the plunger b advances and forms an annular groove in the face of the forging, at the same time increasing its width as shown at c.
The forging, still integral with the bar, is now quickly removed and placed in the last impression of the dies. The diameter of the hole in these dies is larger than the bar, allowing it to slip back as the punch advances to punch the hole in the forging. When the punch moves forward it carries with it the spring-operated sleeve d, thus finishing the forging in one heat. This method of forging is very satisfactory, producing a homogeneous forging at the rate of 1500 in ten hours.
Forging the Steel Diaphragm.—The steel diaphragm shown at B in Fig. 12 is made from low-carbon steel in a special type of forging machine operated similarly to a hot-pressed nut machine. That is to say, the bar, instead of being fed in from the front, as in a regular forging machine, is fed in from the side. The manner in which this is accomplished is shown in Fig. 14. A flat bar of steel 2³⁄₈ inches wide by ³⁄₈ inch thick, heated to the proper temperature for a distance of three feet, is fed across the face of the die as at A and located by stop b. Punch c then advances and cuts out a blank of the required diameter, forcing it into the die, as shown at B. The metal is now confined between the faces of punches d and c and in die a, and is forged to the required shape. The next step is shown at C, where punch d advances and forces the formed forging out of the die. The production of this diaphragm is in the neighborhood of from 8000 to 10,000 in ten hours.
[40]
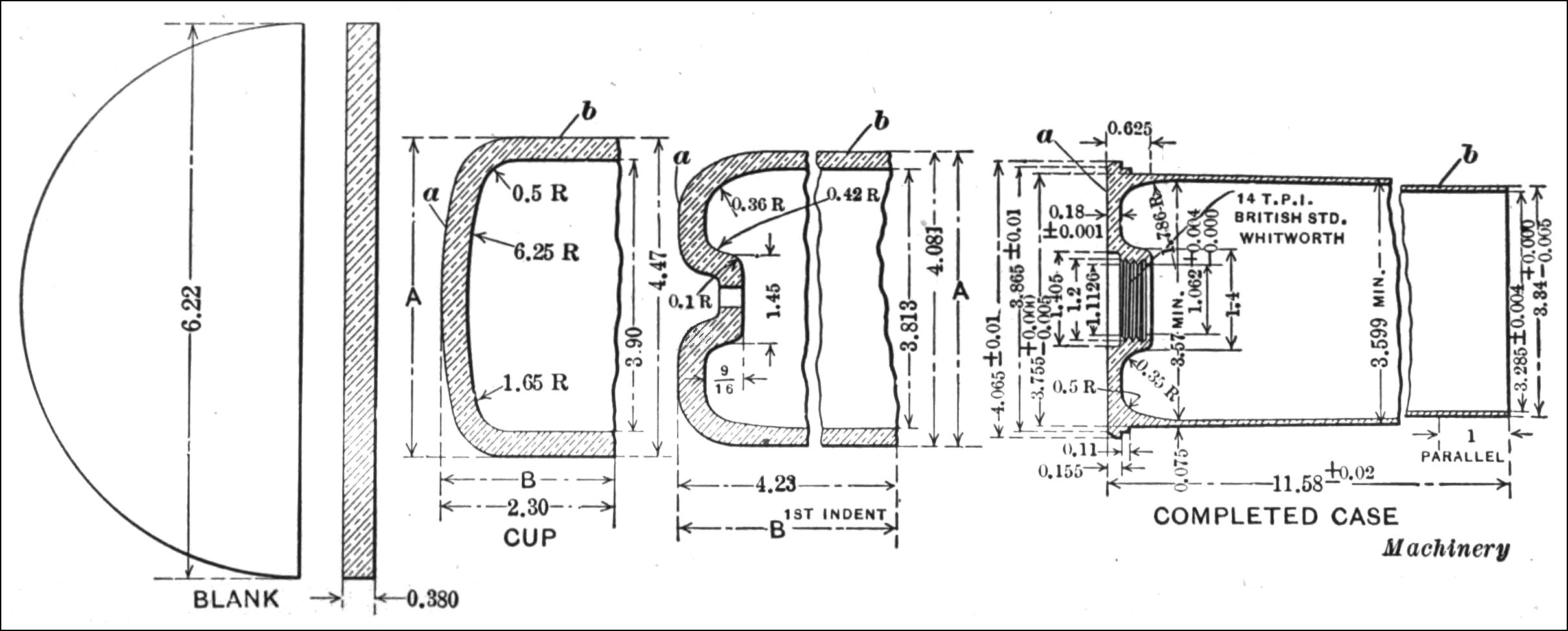
Shrapnel shells are manufactured either from bar stock or forgings. The bar-stock method, however, is not considered as satisfactory as forging because of piping, so that the greater number of shrapnel shells made at the present time are turned out from forgings. The first step, therefore, in the making of a shrapnel shell is to cut off a billet of the required length from a bar of steel of the necessary constituents. In the making of an 18-pound shrapnel shell, the billet is cut off from a bar of 46-point carbon, 60-point manganese steel in machines of different types. One way of doing this, as shown in Fig. 2, is to use a Newton cutting-off machine having an air clamp for holding the bar in place while it is being cut off. A Hunter duplex saw, as shown in the illustration, provided with high-speed steel inserted teeth, performs the cutting operation. The billet for an 18-pound shrapnel shell is 3¹⁄₂ inches in diameter [41]by 4¹⁄₂ inches long. It is then forged to shape, as has been previously explained.
Assuming that the forging has been completed, the following is a complete summary of the machining operations on the shell up to the point of assembling. In one plant where this work is being done, the shrapnel shells are put through in lots of 120, each lot being kept in three boxes, forty shells to a box. Out of every 120, one shell after heat-treatment is tested for tensile strength. The tensile strength before heat-treatment must be from 30,000 to 40,000 pounds per square inch, and from 80,000 to 90,000 pounds per square inch after heat-treatment. For facilitating transportation, trucks of various designs are used. One type of truck used for this purpose is shown in Fig. 3. This is built by the Chapman Double Ball Bearing Co. of Canada, Ltd., Toronto, Ontario, and has some interesting features, the chief of which are the ball-bearing swiveling head, ball-bearing wheels, and the means of releasing or raising the load with the handle in any position. This feature is valuable in using the truck in a crowded space.
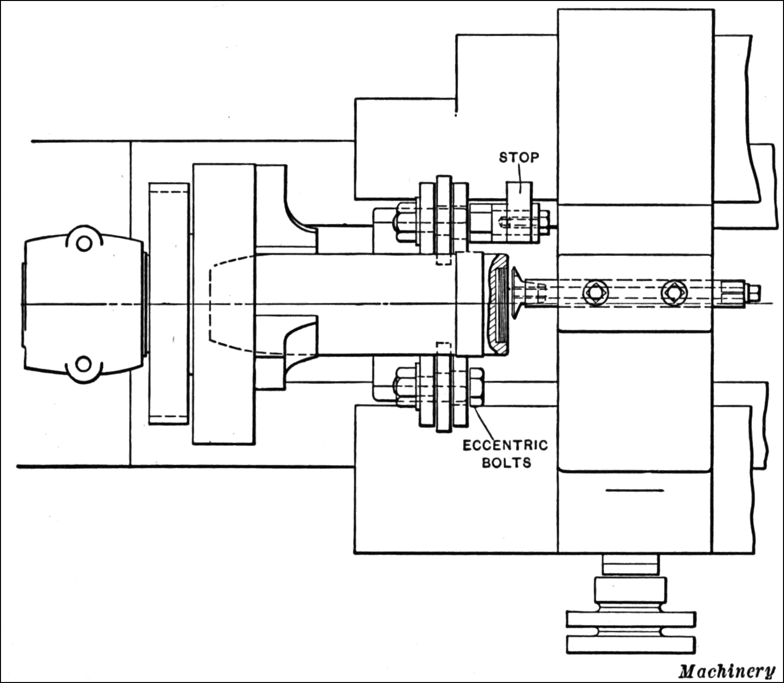
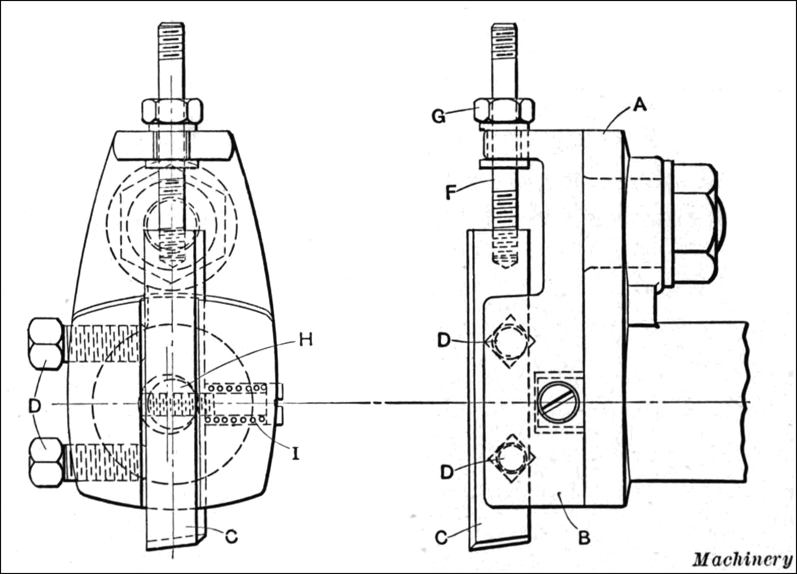
Trimming and Facing the Shell Forging.—The first machining operation on the forged shell is to cut off the ragged [42]end, which is generally from ¹⁄₂ to 1¹⁄₂ inch longer than that required for the finished shell. This operation is performed in many different ways, but one of the most common is to place it in a Hurlbut-Rogers cutting-off machine as shown in Fig. 4. For performing the cutting-off operation, two plain forged cutting-off tools made from “Sabine” extra high-speed steel are used. The forging is located in the proper position in the chuck by a plunger or stop A, sliding in a fixture B clamped to the base of the machine. This plunger locates the shell from the bottom of the hole or powder pocket and forces the shell into the chuck against the resistance of an open-wound spring. The stop is then located by a gage C that forms a member of the fixture and fitting ring D on the stop. The chuck jaws are now clamped on the work and the cutting off commences. As soon as the excess stock is cut off, the stop is drawn back and the pressure of the jaws on the work released; the spring in the chuck then ejects the forging. The production of an 18-pound shell from one machine is about 140 in eight hours.
The next roughing operation is to face off the bottom or closed end of the forging, bringing the shell to approximately [43]the correct length. There are also many ways of performing this operation. One method is to grip the forging in a chuck, as shown in Fig. 5, in an ordinary lathe and face off the end with a high-speed steel tool held in an Armstrong tool-holder. From to ¹⁄₄ to ³⁄₈ inch is faced off from the end.
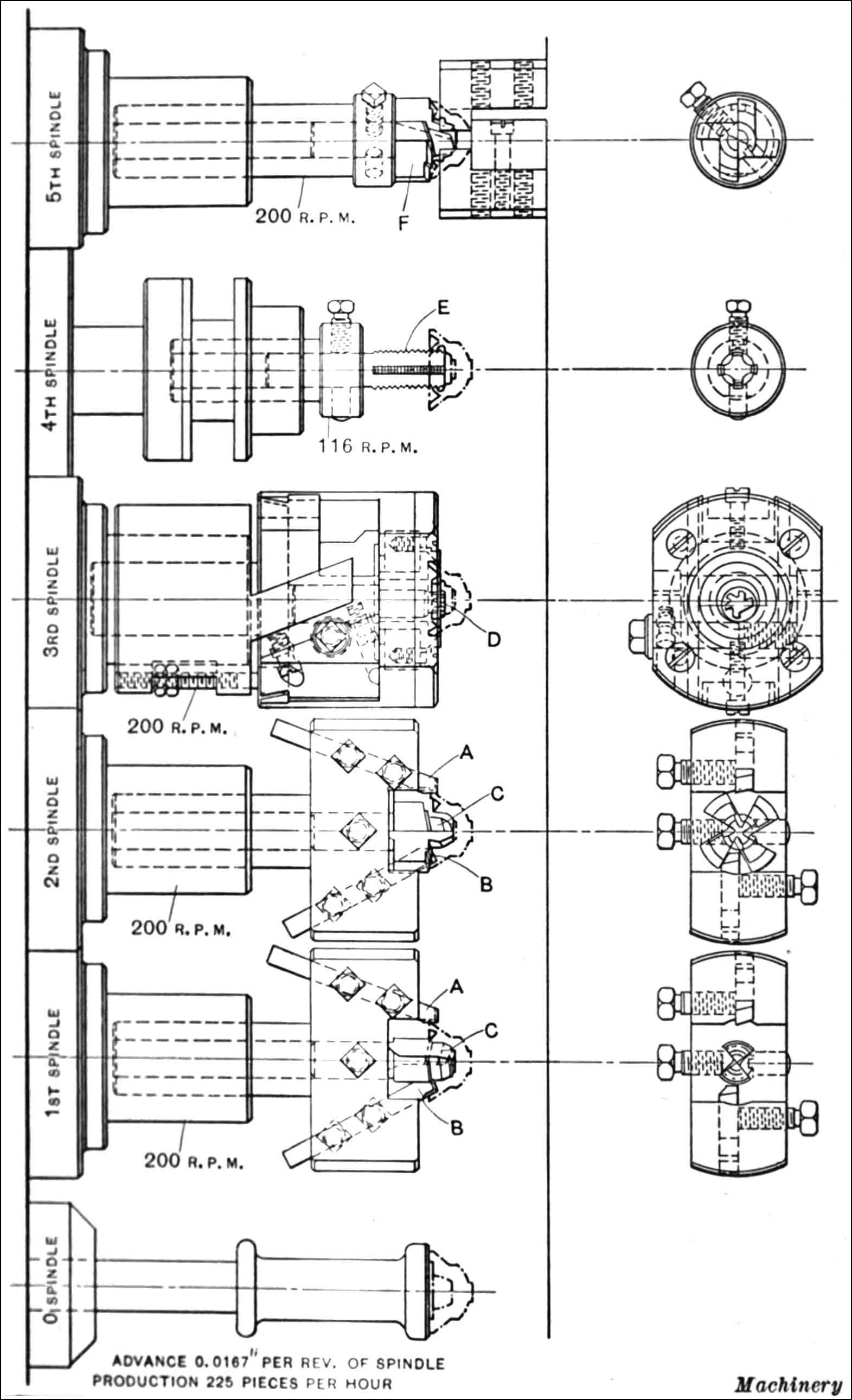
Rough-turning Operations on Shrapnel Forging.—Practically every type of engine lathe and turret lathe as well as special machines are used for turning and boring shrapnel forgings, and in the following chapter each method will be dealt with separately. Before doing this, however, [44]a complete summary of the methods of machining employed in a large plant turning out shrapnel will be described. In this plant, the first rough-turning operation is handled on a flat turret lathe, as shown in Fig. 6. For this purpose, the shell forging is held on an expanding arbor and is driven by a dog fastened to it and driven by the faceplate of the lathe. A multiple tool turner is first brought into position and takes a cut of about ¹⁄₈ inch from the diameter for practically the entire length of the shell. The next tool then faces off the end of the shell to length.
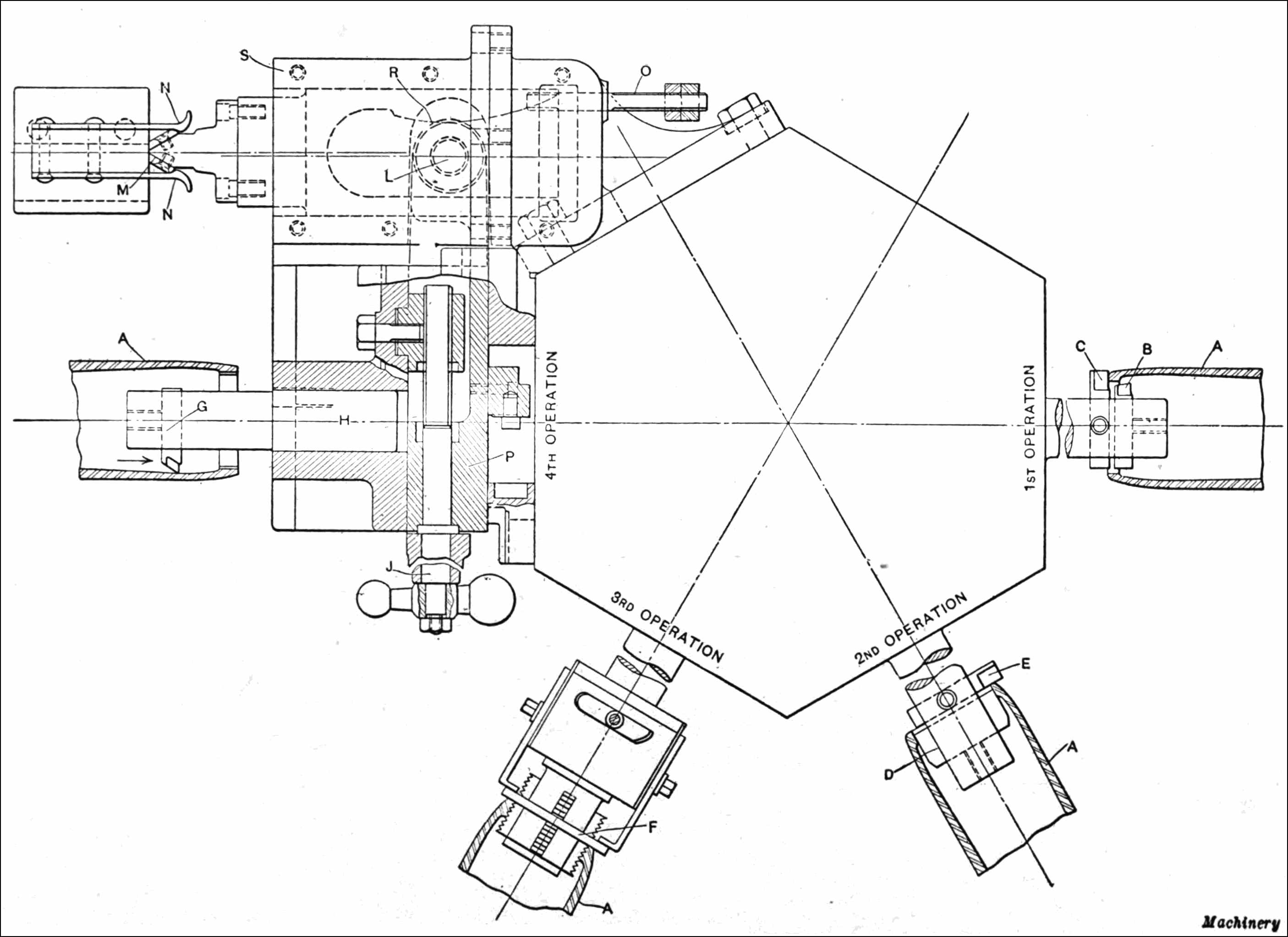
The shell forging is now ready for cutting the rifling band groove and producing the waves. This is handled in an ordinary engine lathe equipped with a special fixture, carrying grooving, waving and under-cutting tools. The shell forging, as shown in Fig. 7, is held in a chuck at one end and supported by a revolving center at the other. One part of the fixture is clamped to the bed of the lathe and the other to the carriage. The grooving and ribbing is accomplished with a tool held in holder A at the front of the lathe, whereas the two under-cutting tools are held in holders D and E at the rear of the lathe. In operation the carriage of the lathe is moved toward the chuck, carrying [45]the fixture to which are fastened cams C, F, and G. Cam C forces in the holder carrying the combination grooving and ribbing tool, whereas cams F and G force in the holders carrying the two under-cutting tools, these being presented at an angle to the work. The required oscillations to the slide carrying the grooving and ribbing tool are secured through a face-cam B clamped to a “Whiton” chuck. The face-cam operates against the tension of spring H and gives the required oscillations to the tool-slide carrying the ribbing and grooving tool, shown at A.
The third machining operation is accomplished in a flat turret lathe, as illustrated in Fig. 8. This consists in facing the open end of the shell, boring the powder pocket and facing and boring the diaphragm seat, and also turning the angular surface on the external nose of the shell. First, a roughing drill is brought in to rough out the powder pocket. The turret is then indexed and a tool for turning the angle of the nose is brought into position. The machining on the nose is then accomplished by operating the cross-sliding head. Then a roughing cutter is brought in to rough-bore the powder pocket. The turret is again indexed and a finishing tool is brought in to finish the powder pocket and face the diaphragm seat. This finishes the machining operations on the shell previous to heat-treatment.
[46]
[47]
Heat-treating Shrapnel Shells.—As was previously stated, the tensile strength of a forged shrapnel shell after heat-treatment must be from 80,000 to 90,000 pounds per square inch, and in order to obtain the desired physical qualities, it is necessary that the heat-treating operations be properly conducted. Several methods of heat-treating employing different cooling solutions are used in the manufacturing plants making shrapnel shells. One method, as shown in Fig. 9, is to heat the shell in a Hoskins electric furnace that contains a barium-chloride bath, heated to a temperature of about 1480 degrees F. The shells are left in this furnace for half an hour and are taken out and dipped in a bath of cottonseed oil heated to a temperature of 113 degrees F. The temperature to which the shell is heated varies with the different constituents of the steel and practically every different batch of 120 shells requires [48]a slightly different temperature. The proper temperature is determined by cutting out a section of a heat-treated shell and testing it for tensile strength. The next step is to draw the temper on the open end of the shell. In this operation a muffle gas furnace heated to a temperature of about 1000 degrees F., is used. The temper is drawn for about two-thirds of the length of the shrapnel shells.
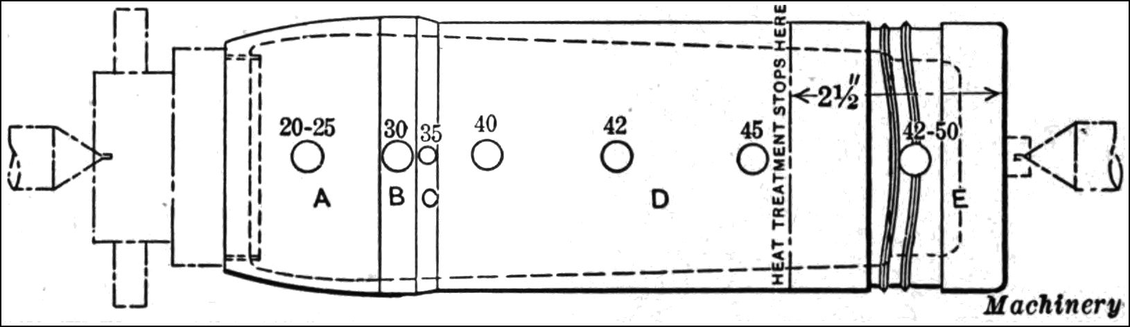
Testing for Hardness and Tensile Strength.—One shell from a batch of 120 is now cut open in the proximity of the powder pocket and the cut-out section sent to the government inspectors to test it for tensile strength. Each one of the shells in the batch, in addition, is tested for hardness by a Shore scleroscope as shown in Fig. 10. Before testing for hardness, the shell near the band groove is polished so as to get a true reading, then placed in a fixture, and the hammer of the scleroscope allowed to drop on it. The reading should be between 40 and 50, indicating an elastic limit of from 80,000 to 90,000 pounds per square inch. The shell must not be ruptured at the point tested when the charge in it is exploded or when the charge in the case is set off. Should the shell upset near the rifling band groove when it is propelled out of the gun, it would tear out the rifling in the bore of the gun.
Experience with the scleroscope has disclosed the existence of a fairly definite relation between the hardness and strength of metal. In determining the strength of metal, two stages are recognized: First, the elastic limit, determined by the load required to produce a permanent set; second, the ultimate strength, determined by the load required to cause rupture. The hardness indicated by the scleroscope is intimately related to the elastic limit. The elastic limit increases more rapidly than the hardness from 43 to 45, this being the minimum index of the strength value required. As an elongation of 8 per cent in 2 inches is also required, there must necessarily be an upper limit to the hardness. On the steel used for shrapnel, which is generally about 50-point carbon and 60-point manganese, the maximum hardness should not be over 60 on the scleroscope.
[49]
Tests relating to Heat-treatment of Shells.—In the September, 1915, number of Machinery, Mr. J. M. Wilson, who has been actively engaged in heat-treating shells since the beginning of the war, and who has had to rely entirely upon his own resources in meeting and overcoming the troubles which seemed to arise on all sides, relates the results of his experiments.
The British government shell specifications call for a yield point or elastic limit, after heat-treating, of not less than 36 tons per square inch, a breaking point or ultimate strength not less than 56 tons per square inch, and an elongation not less than 8 per cent in ⁵⁄₈ inch. Officially there is no maximum specified for either of those three physical characteristics; but as a matter of fact any unusual condition which is not in conformity with recognized metallurgical practice may cause the chief government inspector for the district in which the manufacturer is located to reject a shipment. Reference has been made to certain points in the shell which must resist the strains due to firing. The nature of these strains and condition of the steel best suited to meet them will be understood from Fig. 11, which shows a cross-section of the British 18-pound shrapnel shell. When a shell is fired from a gun, the base A is subjected to a blow, i.e., a sudden increase of pressure which almost instantly attains a maximum of from 12 to 14 tons per square inch, and imparts the initial velocity to the shell. The shell, being a body at rest, opposes [50]this velocity with its own inertia, the result being that both compressive and tensile strains are set up in the shell body. The shell body assumes the conditions of a column which has a compressive load varying from nothing at the nose to a maximum at the base. The tensile load is due to the inertia of the bullets inside the shell. These bullets are subject to an increasing compressive load from the top down, the resultant strain being a bursting effort which attains a maximum in the region of the point B, known as the “set-up point.”
When the time required for the fuse to act has elapsed, the powder charge is exploded, and the contents of the shell are blown forward in the usual manner. The contents are released either by the stripping of the thread of the brass socket, or else the walls of the shell yield at the point C, opening the threads sufficiently to free the socket. At A, (the base) the shell must be perfectly sound and free from flaws such as minute cracks, etc., which may allow the flame from the firing charge to strike through with disastrous results to the shell and gun. The metal in the base must not be too hard or it may fracture under the pressure of the explosion, and it must not be too soft or it may flatten out and spoil the rifling in the bore. At the point B there is no maximum requirement so far as tensile strength is concerned, but any abnormal strength is viewed with suspicion unless it is accompanied by a generous elongation. At B the metal is particularly liable to distension while the shell is acquiring velocity, and unless the shell is strong enough to resist the sudden bursting strain, and the amount of elongation is sufficient to cushion or absorb this strain at the instant of firing, the shell is liable to take a permanent set in the region of point B, with results mentioned above. The shell must not be too hard at the point C as it may burst, thus neutralizing the real object of a shrapnel shell which is to project the bullets forward with increased velocity at the predetermined instant, being in fact an aerial gun arranged to discharge its contents at any desired point of its flight.
[51]
Uniformity of Steel for Shrapnel.—Having these requirements firmly established in his mind, the heat-treating expert is now confronted with a double problem: How is it possible to give steel the suitable strength; and having done so, how is it possible to know that the desired result has been obtained, without actually making test pieces from each shell. The principal condition upon which successful heat-treating depends is uniformity of material. Carbon and manganese are the principal substances which influence the results. The exact composition of steel specified by the government is not given to any manufacturers other than steelmakers. It is, however, generally understood to be a 0.50 per cent carbon, 0.60 per cent manganese steel. Allowing five points variation in carbon and ten points variation in manganese, the requirements would be approximately 0.45 to 0.55 per cent carbon and 0.50 to 0.70 per cent manganese. In one carload of forgings, one firm received shells from 23 different heats or melts, with carbon varying from 0.60 to 0.47 per cent, and manganese varying from 0.63 to 0.49 per cent, with all possible combinations and proportions between these limits. The number of forgings supplied from each heat varied from one up to 1200 so that the question of determining the best temperature for each carbon content was indeed quite impracticable. Many manufacturers at the present moment may be in a similar position, and the gravity of the situation, both from a financial and a military point of view, may justify a somewhat detailed description of the method which was followed in treating shells of such varying composition.
Results of Tests.—It is generally known to manufacturers that the highest tensile strength of steel is obtained by cooling it rapidly from a temperature slightly higher than the decalescent point or critical temperature. The degree of hardness resulting from this operation can be ascertained quickly, accurately, and repeatedly by means of the scleroscope. The degree of hardness thus shown is a reliable indication of the probable strength of the material; that is to say, after making due allowance for different makes of steel and varying proportions of the principal [52]constituents, the scleroscope readings are a reliable indication of the results which may be expected when a tensile test is made of any given shell. In the opening months of the shell business, considerable reliance was placed on the accurate determination of the decalescence point. Forgings of varying analysis were received; the carbon being from 0.48 to 0.53 per cent, and the manganese from 0.54 to 0.69 per cent. All steels whose composition was within those limits showed a decalescence point of between 1390 and 1425 degrees F., and when quenched in water at 50 degrees F. above the decalescence point, such steels would have a scleroscope hardness number as high as 85; but when quenched in ordinary fish oil the hardness was only slightly over 50, the sample being 1 inch square and ¹⁄₈ inch thick. A complete shell quenched in fish oil would show a scleroscope hardness number at the set-up point of from 38 to 40. Test pieces from such a shell failed to reach the minimum breaking strength of 56 tons by the narrow margin of 0.6 ton, and this failure brought up the question of which was the best quenching medium. A series of experiments gave the results presented in Table I; all conditions were equal in each test, and the test pieces were all made from the same forging.
TABLE I.
RESULTS OF TESTS TO DETERMINE THE BEST QUENCHING MEDIUM
FOR SHRAPNEL SHELLS
|
Quenching temperature, degrees F. |
Quenching medium |
Temperature of quenching medium, degrees F. |
Scleroscope hardness No. |
|---|---|---|---|
| 1475 | Fish oil | 90 | 50 to 55 |
| 1475 | Coal oil | 90 | 65 to 70 |
| 1475 | Cottonseed oil | 90 | 70 to 75 |
| 1475 | Engine oil | 90 | 75 to 80 |
| 1475 | Oil of degras | 90 | 77 to 85 |
| 1475 | Water | 90 | 82 to 87 |
| Machinery |
From the results of the tests presented in Table I, oil of degras, commercially known as “No 2 soluble quenching oil,” was selected as the quenching medium and operations were commenced on forgings supplied from two separate heats. The results were all that could be desired until [53]forgings were received from a certain heat, which would not respond to treatment based upon the results of preliminary experiments. Investigation yielded the results presented in Table II. While water-treatment of the forgings from “Heat No. 3” gave satisfactory strengths under test, the liability of shells to crack, owing to their thin walls contracting more rapidly than the base, was a fatal objection to this method. Attention should be called to the fact that while the temperature at which quenching should be done is specified by the government at 1560 degrees F., manufacturers are not tied down to this particular temperature. What is required is that the manufacturers shall so treat the material that it will fulfill the requirements [54]already stated. If, when fulfilling these requirements, the treatment should prove detrimental to the shell in other respects, then it must be changed accordingly.
TABLE II.
RESULTS OF TESTS CONDUCTED TO SECURE GENERAL DATA
ON HEAT-TREATMENT
| Heat No. | 1 | 2 | 3 |
| Carbon, per cent | 0.45 | 0.52 | 0.50 |
| Manganese, per cent | 0.68 | 0.62 | 0.47 |
| Decalescent point, degrees F | 1400 | 1425 | 1390 |
| Quenching temperature, degrees F | 1450 | 1475 | 1450 |
| Temperature of oil, degrees F | 160 | 160 | 120 |
| Resultant hardness, scleroscope No | 65 to 75 | 65 to 75 | *39 |
| Temperature of water, degrees F | 75 | ||
| Resultant hardness, scleroscope No | 55 to 60 | ||
| Tempered until showing a scleroscope hardness of | 48 | 48 | 52 |
| Yield point, tons | 47.8 | 48.6 | 46.5 |
| Breaking point, tons | 67.9 | 65.4 | 66.2 |
| Elongation, per cent | 14.5 | 16.9 | 17.4 |
| Machinery | |||
| * Note: This shell was then reheated and quenched in water with results shown. | |||
Referring to results presented in Table II, “Heat No. 3,” it will be observed that the manganese is only 0.47 per cent with carbon 0.50 per cent. Comparing “Heat No. 3” with “Heat No. 1”, it is evident that an increase of 5 points carbon is more than offset by a reduction of 21 points in the manganese. Increase of temperature seemed to offer the greatest possibilities and sample shells were drawn every 12¹⁄₂ degrees up to 1675 degrees F. The greatest hardness was obtained at 1637¹⁄₂, scleroscope readings of from 50 to 55 being the average. This was not considered satisfactory, and the oil-circulating pump was speeded up. Scleroscope readings as high as 65 were frequently obtained at a quenching temperature of approximately 1635 degrees, and when the shell was tempered to read 48 to 52 on the scleroscope, three test pieces from one shell gave the results presented in Table III. A careful study of this data revealed the fact that, while a low-carbon, low-manganese steel hardens satisfactorily within a limited range of temperature, a medium steel has a wider range, and a high-carbon steel, a still wider range of hardening temperature.
TABLE III.
RESULTS OF TESTS ON SAMPLES TAKEN FROM A SHELL WITH A
SCLEROSCOPE HARDNESS NUMBER OF FROM 48 TO 52
|
Heat No. |
Scleroscope reading on test piece after machining |
Yield Point, tons |
Breaking point, tons |
Elongation, per cent |
|---|---|---|---|---|
| 1 |
Outside 52-53-50 Inside 55-55-55 |
55.8 | 73.3 | 14.3 |
| 2 |
Outside 52-54-50 Inside 55-57-53 |
53.8 | 72.4 | 17.4 |
| 3 |
Outside 57-57-49 Inside 60-62-51 |
52.8 | 77.3 | 12.7 |
| Machinery |
When the shipment of mixed heats previously referred to was treated, the method pursued was to take 0.50 per cent carbon and 0.50 per cent manganese as a base composition which hardened at 1600 degrees F. to show 55 to 65 [55]hardness on the scleroscope. Then: (a) If, for every point of carbon below 50, there be present 1 or more points of manganese above 50, the steel should harden satisfactorily at 1600 degrees F. (b) If, for every point of manganese below 50, there be present 2 or more points of carbon above 50, the steel should harden satisfactorily at 1600 degrees F. (c) If both carbon and manganese be below 0.50 per cent, increase the hardening temperature 12¹⁄₂ degrees F. for each point of manganese short of 50, and 6¹⁄₄ degrees F. for each point of carbon short of 50. (d) If both carbon and manganese are above 0.50 per cent, a hardness number above 55 will probably be obtained at a quenching temperature of 1600 degrees F., but the maximum hardness, [56]i.e., from 75 to 80, will be obtained at a somewhat lower temperature, the exact temperature being most easily found by starting at 1500 degrees F. and trying a couple of sample shells every 25 degrees F. until a maximum hardness is obtained. Forgings containing from 0.50 to 0.55 per cent carbon and from 0.54 to 0.62 per cent manganese in any varying proportions may be hardened at 1600 degrees F. to show a hardness number of from 55 to 75; and when tempered to give a hardness number of from 48 to 52 they will yield the following results: yield point, 45 to 50 tons; breaking point, 65 to 70 tons; and elongation, 14 to 20 per cent.
Looking back, (c) offers a basis for charting the hardening points in a fairly approximate manner, to form a guide as to where the best hardness may be obtained. Such a chart is shown in Fig. 12. By following the horizontal and vertical lines from the carbon and manganese content until they intersect, a diagonal line will be found which will indicate the temperature at or about which the maximum hardness will be obtained. This does not prevent the use of 1600 degrees F. as the average temperature for the majority of shells, provided they are strong enough when hardened at that temperature; but where shells do not harden satisfactorily at 1600 degrees F., the chart offers an alternative method subject to such variation as may arise due to the use of steel from different makers, etc. Probably the best practice is to make careful scleroscope readings of each piece before pulling. Care must be taken to have a uniform surface on both sides, all tool marks being removed with fine emery cloth. The points tested are shown at A, B, and C in Fig. 11. After the test piece is made, the value of the hardness number increases as a result of the piece being solidly supported in the scleroscope, whereas, when the reading is made on the shell, the arched form of the wall acts as a spring, and absorbs the shock to some extent. Readings thus increase from 2 to 10 points after the test piece is finished.
TABLE IV.
DATA ON THE HEAT-TREATMENT AND STRENGTH TESTS
OF SHRAPNEL SHELLS
|
Carbon, per cent |
Manganese, per cent |
Quenching temperature, degrees F. |
Tempered, scleroscope hardness No. |
Readings of scleroscope |
Yield
point, tons |
Breaking
point, tons |
Elongation, per cent |
|---|---|---|---|---|---|---|---|
| 0.50 | 0.47 | 1635 | 51 |
60-57-57 47-48-48 |
48.3 | 69.9 | 16.9 |
| Three pieces from one shell |
60-56-53 48-52-58 |
45.2 | 70.6 | 19.1 | |||
|
63-56-57 51-55-54 |
51.6 | 74.6 | 16.9 | ||||
| 0.48 | 0.65 | 1565 | 49 |
51-54-52 48-53-50 |
47.3 | 67.4 | 15.9 |
| Three pieces from one shell |
51-52-49 53-51-51 |
48.2 | 67.9 | 15.3 | |||
|
52-55-50 50-55-47 |
49.2 | 70.7 | 15.4 | ||||
| 0.50 | 0.57 | 1600 | 50 |
50-52-50 49-50-49 |
46.0 | 64.8 | 19.0 |
| 0.50 | 0.57 | 1600 | 50 |
56-60-57 54-56-54 |
55.8 | 77.8 | 14.3 |
| 0.50 | 0.57 | 1600 | 50 |
59-60-56 55-59-56 |
60.7 | 82.2 | 12.7 |
| 0.60 | 0.57 | 1600 | 50 |
60-61-55 60-62-57 |
57.8 | 80.0 | 12.6 |
| 0.60 | 0.57 | 1600 | 52 |
57-57-56 54-56-53 |
48.2 | 69.7 | 17.5 |
| 0.50 | 0.57 | 1600 | 50 |
48-52-50 49-52-49 |
44.2 | 64.3 | 17.4 |
| 0.50 | 0.57 | 1600 | 50 |
52-55-55 60-51-52 |
44.7 | 65.2 | 14.7 |
| Machinery | |||||||
A careful study of the data presented in Table IV reveals the fact that results are not always consistent. With [57]an increase of carbon, one occasionally finds an increase in elongation and vice versa; and the results due to variations in manganese content are similarly unreliable. In order to secure a degree of uniformity in hardness, which will be sufficient to insure test pieces standing up successfully, it is necessary to have the shell hard inside as well as outside, and a method of doing this is referred to later. Assuming now that the shell has been tempered, it is rough-polished [59]on a canvas buffing wheel around the outside of B, Fig. 11, for a width of at least 1 inch. Readings by the scleroscope are made on a zone ³⁄₄ inch wide, and if they are between 46 and 52 the shell may be relied upon to show good results in the tensile test. In making test pieces, it is desirable to cut the piece from a spot which reads 48 to 50; and in machining the test piece, care should be taken to remove an equal quantity of metal from either side of the wall so that the test piece is a true specimen of the average wall structure. Where a shell is carelessly quenched, and the test piece so machined that the surface on one side is practically the same as the inner side of the wall, the results would not be a true indication of the real average strength, and a lot of shells might possibly be rejected on account of a slight oversight in this respect. Reference has been made to the base A, Fig. 11. Forging defects show up here occasionally and in such cases the shell is at once condemned. These flaws take the form of small cracks, from the width of a hair up to ¹⁄₁₆ inch. They seldom can be detected until after heat-treating, and are most easily observed by polishing the base on a disk grinder. Losses in this respect vary, but might average about 0.20 per cent. The hardness of the base itself may vary from 38 to 50, which insures an ample degree of toughness and avoids all possibility of the shell cracking under fire.
Heat-treating Department.—Many methods of heating, quenching, annealing, and cleaning are in use by the different firms engaged in shell making. For rapidity of output, cleanliness of the resulting product, ease and economy of operation, and uniformity and control of results, the lead bath seems best for hardening, and the semi-muffle furnace for annealing. In one case the use of a lead bath by a skilled operator yielded excellent results both as to economy and uniformity, but, when the output exceeds 500 shells per 12 hours, a semi-continuous furnace meets the requirements to better advantage. The lay-out of a hardening room for an output of 12,000 shells per week is given in Fig. 13. The lead baths consist of a rectangular [60]pot of suitable capacity, resting on a 4¹⁄₂ inch hearth built of common firebrick and heated by either oil or gas burners below the hearth. They are built in pairs with a common wall between, which is thick enough to provide a flue to carry off products of combustion. The quenching tanks are rectangular, water-jacketed, and provided with two quenching cradles each. These cradles are arranged to swing lengthwise in the tank, and, when the carrier holding the shell is lowered into the oil, a pipe is automatically extended downward into the shell and introduces cold oil in the inside of the shell, while the operator swings the cradle back and forth in the tank, thus cooling the outside of the shell at the same time. This method of quenching made it possible to harden shells which, by reason of low carbon and manganese, defied all conventional methods of dipping and swinging back and forth with tongs. The [61]output per man with this apparatus is largely in excess of any hand method, while the uniformity and degree of hardness is all that could be desired.
The oil pump draws the oil from a depth of 6 inches below the surface and pumps it through 100 feet of 1-inch copper pipe arranged in two 50-foot coils in parallel. The cooled oil is delivered into an overhead reservoir, the overflow being connected to both tanks equally. After quenching, the shells are set on draining racks, and then washed in boiling water and sal-soda, placed on another draining rack and then brushed with wire brushes previous to tempering. The tempering furnace is of rectangular form, and consists of a long flat hearth with rails laid lengthwise on it. At each end a space is partitioned off from the body of the furnace, by means of vertical sliding doors; and a rack holding a number of shells is deposited on the rails at the front end of the hearth, the door is elevated and the rack is slid into the main chamber. After a suitable lapse of time another rack is introduced, and so on until the first rack is ejected at the rear end of the furnace. The shells are now hot enough to loosen all foreign matter on the surface, and a few seconds brushing with a wire brush cleans out the driving band groove, and leaves the shell [62]with a delicate brown oxidized finish. The shell is now spotted on three places with a canvas buff and tested for hardness. Fig. 14 shows the arrangement of the scleroscope. The shell is supported on a single narrow V-block with hardened edges, situated immediately under the set-up point. A narrow strip supports the open end of the shell, thus giving a three-point support, while a vertical stop at the back of the shell maintains it in a position tangential to the radius of the swinging arm. The usual rubber bulb was soon dispensed with as being quite unsuited for such hard service, and a small pump cylinder substituted. The piston in the cylinder is operated by a downward pressure of the heel on the pedal to give compression, and a spring inside the cylinder gives the necessary pull when the scleroscope hammer is to be raised by suction. After being tested the shells are ready for “nosing-in.”
Closing-in the End of the Shell.—On some makes of shells, particularly the British, the nose is closed in before performing the third series of machining operations. The closing-in is generally accomplished in a hydraulic or power [64]press. Fig. 15 shows the closing-in operation being performed in a vertical hydraulic press capable of exerting a pressure of 800 pounds per square inch. Before closing the open end of the shell, it is heated in the lead bath, shown to the left of the illustration, which is kept at a temperature between 1450 and 1500 degrees F. The steel diaphragm, which is larger in diameter than the nose of the shell, is first thrown in. Then the shell is placed in the press, and a cone-shaped die descends, closing-in the nose to the proper shape and diameter. The third machining operation consists in finishing the radius on the nose, both inside and outside, and cutting the thread. This is done, as shown in Fig. 16, in an ordinary engine lathe with a turret on the saddle. The boring is done with cutters held in boring-bars and the thread cut with a Geometric collapsible tap. The thread on the 18-pounder is 2.94 inches in diameter, 14-pitch, Whitworth type.
Grinding Shrapnel Shells.—The exterior surface of a shrapnel shell is straight for a portion of the length and then curved on the nose. While the limits required are not extremely close, it is necessary, where large production is required, to accomplish the finishing operations on the exterior of the shell in some way by which fairly close [65]dimensions can be secured as well as large production. Grinding has, therefore, been recommended for finishing the exterior of the shell. One method of grinding shrapnel shells, in which a wide-faced wheel is used that covers the entire ground surface, is shown in Fig. 17. This machine is built by the Ford-Smith Machine Co., Hamilton, Ont., and carries a wheel about 8¹⁄₄ inches wide by 20 inches in diameter. The grinding wheel is rotated at 1200 R. P. M., and the work at 50 R. P. M. The depth of the cut is about ¹⁄₃₂ inch, and the time to complete one shell varies between two and three minutes. For grinding, a plug is screwed into the open end of the shell. This is held on the tailstock center and a chuck holds and drives the shell from the other end.
It is necessary, of course, that the wheel be kept the correct shape, and for this purpose an interesting type of wheel-truing device, differing considerably from that shown in Fig. 17, is now used. Referring to Fig. 19, it will be seen that this comprises a combination wheel guard and bracket, the latter being used as a base for the wheel-truing device proper. The diamond A is carried in a holder B that operates in a slide in the face of the traversing wheel-truing slide C. The diamond holder carries a cam point [66]D which is kept in contact with the guide or former cam E by means of a spring F. The wheel-truing slide C is traversed by a triple pitch screw G so as to give a rapid movement to the slide in order to produce what might be termed a “rough-truing” of the wheel. For change in diameter, and also for bringing the diamond in contact with the wheel, a vertical slide H is provided that is operated by handle I. In order to observe the diamond when truing the wheel, a trap door J is provided in the wheel guard, which can be dropped down into place when the actual grinding of the shell is being done.
Pressing on the Rifling Band.—In order to rotate the shrapnel when propelling it out of the howitzer, it is necessary to put on a rifling band to take the rifling grooves of the gun bore. As a rule, these rifling bands are made from copper tubing and are simply cut off in a hand screw machine or turret lathe. The next operation is to close in the rifling band on the shrapnel shell. The ring is dropped over the shell and a fixture is used to locate it in the correct relation to the groove in the circumference of the shell. Then a slight pressure is exerted on it to align it properly in the groove. It is now placed in the banding machine shown in Fig. 18. This particular machine is provided with six dies as shown in Fig. 20, and back of each one is a hydraulic cylinder operated by water pressure. Two squeezers are necessary to close the rifling band properly into the groove, the shell being given a half turn after each squeeze.
There are several different machines on the market for performing this closing-in operation on the rifling band. Another machine, built by the West Tire Setter Co., Rochester, N. Y., is shown in Fig. 21. The principle upon which this machine operates is almost identical with that previously described, but in this case oil is used as a pressure medium. It is forced into the machine by means of a belt-driven pump shown to the left of the illustration, which drives the oil from the oil tank and carries it to the center of the base of the press. An oil head is located at this point from which the pipes are run to each of the six rams [68]or cylinders. The amount of pressure required for compressing the copper band depends largely upon the width and thickness and the amount that the band must be spread to fill the grooves, rather than upon the diameter of the shell. The machine shown in Fig. 21 is capable of exerting a pressure of 30 tons on each cylinder or a combined pressure of 180 tons on all six cylinders. It has a capacity for compressing at least two bands per minute.
Machining the Rifling Band.—One method of machining the rifling band to the correct shape is shown in Fig. 23. Here a Fox lathe is used which is provided with a chuck for holding the shell and which carries in the turret a revolving center for additionally supporting it. The machining is done by form tools which are of the correct shape. Before any other machining operations can be accomplished it is necessary to put in the tin powder cup, brass fuse tube, bullets, and resin. This cup is slipped in past the steel diaphragm, then both parts are allowed to drop to the bottom and the fuse tube is screwed into the diaphragm. The required number of lead bullets, which [70]for the British 18-pound shrapnel is about 375 per shell, is then poured in. The bullets are held in a tank and are allowed to flow out upon the opening of a stopcock. In order to pack the bullets solidly, a compressed air ramming device forms the base upon which the shell rests while the bullets are being poured in. This is operated three or four times for the filling of each shell and arranges the bullets compactly.
The resin is now poured in, as shown in the center of Fig. 22. This is carried in the tank which is heated by a gas furnace and is poured in almost level with the top of the bullets. The shell is then placed on the scale in the immediate foreground and weighed. One dram plus or minus is allowed as a variation, and in order to not exceed this, more or less resin is poured in until the correct weight is obtained. The brass fuse socket is now screwed in as shown to the left of the illustration, and upon the completion of this operation the shell is ready for the fourth and last machining operation. This last operation consists in machining the brass socket on the outside diameter to conform to the radius on the nose of the shell, and boring on the inside and threading to fit the fuse body. These operations are handled in a Fox brass working lathe. Upon the completion of the machining operations the plug is screwed in, the shell stamped, cleaned, weighed, and inspected by government inspectors. After this, the shell is given two coats of paint and a red band is painted around the nose. It is now packed in boxes holding six shells [71]and is ready for shipment. This completes the manufacture of the shrapnel shell.
Gaging Shrapnel Shells.—The machining operations on shrapnel shells are required to be held within certain limits, and government inspectors watch these closely. Some of the principal gaging operations on the shrapnel shell body [72]are shown in Fig. 24. Fig. 25 shows the 18-pound shrapnel shell in section, and gives the principal dimensions together with the limits; it will be seen from this illustration that the range allowable is in most cases large. The Wells Bros. Co., Greenfield, Mass., has made a large number of shrapnel gages, some of which are shown in the accompanying illustrations. In the three upper views of Fig. 24, the Wells Bros, standard thread gage is illustrated. This is used for all diameter measurements by substituting flat gaging pins for the V-points used when gaging thread diameters.
Gages for British Shrapnel Parts.—Fig. 26 illustrates typical gages for gaging such parts of the British shrapnel [73]as body diameters, diaphragm seat, powder pocket, fuse socket, thread diameters, and fuse parts. Fig. 27 shows the application of several different types of shrapnel shell gages. At A is the gage for the over-all length. At B is the gage used for measuring the thickness of the closed end. The outer arm of this gage can be swung away to allow the placing of the gage on the standard. At the extreme lower left-hand corner of the gaging arm is a slight shoulder on the rod and the height of this acts as the limit. C shows the application of outside diameter and thread gages. D shows three form gages for checking the shape and dimensions of the wave ribs, the diameter and shape of the undercut in the band groove, and the shape of the nose of the shell. E shows the gage used for checking the thickness of the wall of the shell at different distances from the mouth. F shows the application of a powder pocket gage, and also a gage for checking the shape of the finished rifling band.
Gages for American Shrapnel Shells.—Fig. 28 shows a miscellaneous collection of gages used in checking the dimensions of the American shrapnel shell. Gages, A, B, C, and D are for measuring the diameter of the diaphragm seat. E is for checking the distance from the diaphragm seat to the mouth end of the shell, and gage F is for the [74]outside diameter of the shell. Gage G is used for the rifling band groove. Gages H and I are for the thread in the mouth of the shell, H being a “not-go” and I a “go” gage.
The gage at J performs several gaging functions on the American shell. It consists of a standard having two upright posts across which a bar is mounted. The purpose of the bar is to gage the over-all length of the shell, and its lower surface is provided with two steps giving the limits. This gage is also used for measuring the depth of the powder pocket, rod K and block L performing this function. Two rings are cut around the rod K registering with the top surface of the bar, the purpose being to show the accuracy of the work.
Another interesting gage is shown at M. This is for gaging the concentricity of the shell and consists of an arbor mounted so that it can be swung on a pivot. The arbor carries two collars N and O that fit in the shell. Collar P is merely a sizing plug and when the gage is in use this plug is removed. A gaging finger Q rests against the shell when it is on this arbor, and a standard type of indicator R shows the variation in concentricity when the gage, collars, and shell are rotated on the arbor.
Marking Shrapnel Shells.—All shrapnel shells are marked on their circumference with five or six lines of lettering, as shown in Fig. 29. This indicates the size of the shell, the series, muzzle velocity, name of the manufacturer, date completed, etc. Two types of machines for producing the stamping, built by Noble & Westbrook, Hartford, Conn., are shown in Figs. 29 and 30. The machine shown in Fig. 29 is of the hand-operated type. The figure block A is held in a slide that is moved longitudinally by pulling down handle B, rolling the shell, and at the same time stamping it. The shell is located on the table in the two positions by gages C and D.
The “Dwight-Slate” stamping machine shown in Fig. 30 is power-driven, and the work is held on an elevating table. The stamp is held in a slide operated by an eccentric and connecting-rod. In this machine the shell is not distorted.
[75]
Reed-Prentice Co. Equipment for Machining Forged Shrapnel Shells.—In machining the 18-pound British shrapnel shell on the equipment furnished by the Reed-Prentice Co., Worcester, Mass., eight distinct operations are performed as follows: First, drilling a center hole in the closed end of the forging in a Prentice 16-inch ball-bearing sensitive drilling machine equipped with a special centering fixture; second, rough-turning the outside diameter, grooving, squaring the closed end and rounding the corners in a Reed-Prentice 14-inch heavy type automatic lathe; third, machining the powder pocket and diaphragm seat, as well as the internal and external diameters of the nose in a 14-inch Reed extra-heavy turret lathe; fourth, under-cutting band grooves and producing wave ribs in a 14-inch Reed engine lathe; fifth, boring, reaming, threading and facing the open end in a Reed 14-inch extra-heavy turret lathe; sixth, finish-turning outside diameter and radius on nose, also form-turning copper band in a Reed 14-inch heavy type automatic lathe; seventh, cutting off center projection on closed end of shell in a Reed 14-inch engine lathe; eighth, finishing brass socket to form, cleaning inside of socket and cutting off excess length of tube in a Reed 14-inch extra-heavy turning lathe.
First Operation on Rough Shell Forging.—The drilling of the center hole in the closed end of the forging is a comparatively simple operation, and is performed in an interesting fixture held on a 16-inch Prentice ball-bearing sensitive drilling machine. This fixture, which is designed for handling the work quickly, is shown in Fig. 1, and consists of the base casting A clamped to the table of the drilling machine. The entire back part of the jig swings on the trunnion B to provide a means for quickly removing the forging C from the arbor D. A locking-pin E is used for locating the fixture in its upright position for drilling. [76]Bushing G in the top plate F of the fixture guides the combination drill and countersink.
The construction of the work-holding arbor is worthy of special attention. This arbor D has a cap H on its top end that acts as a stop for the inside of the forging, which, [77]in being placed over the arbor, is located centrally and clamped by fingers N. To operate these fingers, hand lever I is depressed, and as this is fulcrumed at the point J, it causes collar K to rise on the arbor. Yoke L forms a connection between the lever and the collar with which the sleeve carrying fingers N is integral. Fingers N are fulcrumed in arbor D and are thrown outward to grip the forging when sleeve M is raised. Light springs O tend to keep the gripping fingers in a vertical position against the arbor when they are not being forced outward by the inclined surfaces on sleeve M. Handle I carries a spring pawl P that holds the sleeve M stationary while the forging is being center-drilled.
Second or Rough-turning and Facing Operations.—The second operation is performed on a Reed-Prentice 14-inch heavy type automatic lathe, as shown in Figs. 2 and 3. The forging A is held on an internal expanding arbor B, the driving part of which is supported by the head-center. At the closed end, the shell is steadied by the [78]tail-center. The bottom of the shell rests against the end of the arbor which acts as a gage. In this setting, the external diameter of the forging is rough-turned by four tools F, mounted on the carriage G. This carriage has a travel slightly less than two inches, and an automatic throw-off is provided at the end of the cut that disengages the tools, draws them back and returns the carriage. At the rear of the carriage on this machine a facing arm is mounted on a heavy bar. Turning tools are carried on this facing arm, as shown, and when the front carriage feeds longitudinally a cam bracket O, bolted to the carriage, is carried along with it. Clamped on this bracket is an adjustable cam N held in place by screws. Cam roll M on the facing arm contacts with cam N, causing the facing arm to rock forward as the carriage travels longitudinally.
Referring to the plan view in Fig. 2, tool H, held in the arm, faces the end of the forging, tool I chamfers the corner, and tool J cuts the depression for the wave ribs, leaving a projection in the center from which the ribs are formed. It should be understood that the tools on the [79]carriage and facing arm work together. One man can run two of these machines without trouble.
Third Series of Machining Operations.—The third series of operations on the shrapnel forging is performed on a 14-inch Reed heavy lathe with a specially large turret, as shown in Fig. 4. This lathe is fitted with a 12-inch three-jaw chuck, bored out to 3¹⁄₂ inches to permit the forging to extend into it. The forging A is put in the chuck as shown at B, and the jaws grip at C. The first operation is performed with a bar D carrying a blade cutter E that rough-bores the powder pocket, and tool F that rough-bores the mouth. The turret is now indexed, and a boring-bar carrying a blade G roughs out the diaphragm seat, while an auxiliary tool H faces the shell to length. At the next indexing of the turret the boring-bar I that carries the finishing tool J finishes the diaphragm seat and powder chamber.
Fourth Operation—Under-cutting and “Waving” Band Groove.—For the fourth operation, the forging is held in a 14-inch Reed engine lathe provided with an automatic attachment for under-cutting and waving the ribs for the [80]copper band. The tool equipment used is shown in Fig. 5, where A is the forging held by one end in the chuck and supported on the opposite end by the tail-center. The tools are all located in holders on the heavy base block B, and their operation is controlled from the carriage R of the lathe. The cutting of the wave ribs is done by tool C at the front, held on a slide that operates on the top of block [81]B. Spring D keeps the roll E on the lower slide of the tool-holder in contact with the cam slot in cam-plate F that is fastened to carriage R. When the carriage is traversed toward the chuck, the irregular surface of cam-plate F engages the roll and forces the tool-holder forward. Side motion to produce the wave is then effected by face-cam G, mounted on the chuck and contacting with the roll H. This roll is supported on a bracket forming an auxiliary slide S that carries the waving tool C. A stiff barrel spring keeps slide S in contact with the cam G. Thus, when the machine spindle revolves, the auxiliary slide is caused to oscillate back and forth far enough to give the desired amount of wave.
The under-cutting in the band groove is accomplished by tools I and J which are mounted on separate tool-slides K and L. These slides are fed in at an angle to the axis of the forging, against the action of coil springs M and N, by the cam surfaces of plate Q in which rolls O and P work. Plate Q is bolted to carriage R which, in advancing toward the chuck, forces in the under-cutting tools in the manner just described. The tail-center of this machine is fitted with a quick-acting mechanism so that it may be withdrawn quickly to insert a new piece.
Fifth Series of Operations.—Before performing the fifth series of operations, the forging is heated and closed in on the nose. It is then handled in the following manner: A Reed 14-inch heavy lathe, equipped with an extra large turret mounted on a special wide-bridge carriage carries tools for boring, reaming, threading and final squaring of the open end, as shown in Fig. 6. The shell forging for these operations is held in a three-jaw chuck provided with special jaws. In the first position the rough-boring of the nose and the rough-facing of the extreme end is performed with tools B and C. The turret is then indexed and tools D and E finish-ream the hole in the nose and face the end. The tap F is next brought into position, cutting the thread in the nose.
The turret is again indexed, bringing a special form boring tool into position. Here the boring tool G is carried in [83]a bar H held in a holder of the cross-sliding carriage type that is fastened to two faces of the turret. By means of cross-screw J, the boring tool H may be drawn in or out at will. This tool operates as follows: As the turret is advanced, handle J is operated to let tool G enter the nose of the shell, and, upon the continued advance of the turret, arrow head M is forced in between and gripped by the fingers N. The turret is now backed away from the chuck, and while receding acts upon slide P through the medium of roll L and cam groove R. The plate containing cam groove R is attached to the arrow head M and consequently is held stationary while the turret is being withdrawn from the work. This backward movement of the turret is continued until the tool G is withdrawn from the work and slide S comes in contact with check-nuts on rod O, withdrawing arrow head M from fingers N and allowing the turret to be indexed ready for the first operation on the next forging.
Sixth or Finish-turning Operations.—The sixth series of operations is performed on a Reed-Prentice 14-inch heavy type automatic lathe, similar to that used for the second [84]operation, and the machine is also operated in a manner similar to that previously described. The operations consist in finish-turning the outside diameter of the shell and turning the radius on the nose. In addition, the copper rifling band, put on previous to this operation, is turned to shape. Referring to Fig. 7, the shrapnel shell A is held by the tail-center at one end and is supported and driven from the other end by a plug screwed into it. This plug is held on the live center and is driven by an equalizing driver, coming in contact with pins in the special faceplate.
Two slides B and C are carried on the front of the carriage. Slide C carries three tools D; two of these start in from the rifling band and turn in toward the nose, and the other works up toward the rifling band from the closed end. Tool E, carried in slide B, turns the curve on the nose of the shell and is controlled in its action by means of a slot in cam F in which a roller held to the slide operates. At the rear of the carriage is carried a facing bar attachment, as previously described in connection with the second operation. This attachment carries three tools, as illustrated, for machining the rifling band to shape, facing the closed end and chamfering the corner.
[85]
Seventh and Eighth Operations.—After the sixth operation, the fuse tube is threaded into the diaphragm, the bullets put in, and the hot resin poured in to keep them from rattling. The brass socket is then screwed into the nose and the fuse tube soldered to it. The shell is now ready for the seventh operation which consists in cutting off the center projection. This is accomplished in a Reed 14-inch engine lathe, provided with a faceplate chuck for holding and driving the shell at the open end, and a steadyrest for supporting it close to the point where the cutting is being done. The shell is now ready for the eighth operation, which consists in machining the brass socket to shape in an extra-heavy lathe as shown in Fig. 8. The tools used for machining are retained in a special holder on the carriage. Tool A, which is used for facing off the fuse tube and the brass socket, is inverted, starts at the center and is fed out toward the circumference. The external surface of the socket is machined with a circular forming tool C held on a stud D located in block B. The inward travel of this tool is limited by stop E coming in contact with the shell.
Making Shrapnel Shells on the Cleveland Automatic.—An unusual example of automatic machine work is that of producing the shrapnel shell shown in Fig. 9. This shell [86]is made from a bar of 3¹⁄₁₆ inch chrome-nickel steel stock. The steel has a tensile strength varying from 125,000 to 135,000 pounds per square inch, and is extremely tough. The work is accomplished on a 3¹⁄₄-inch Cleveland automatic, and the tooling equipment, as shown in Figs. 10, 11, and 12, is interesting. While the general operation of the Cleveland automatic is well understood by many mechanics, [87]the production of this piece illustrates a number of points in the operation of this machine which are not so well known. Therefore, it is advisable to explain in detail just how this interesting job is handled.
The first operation, as the job was originally laid out, was to feed the stock out to the stop A, shown in Fig. 11, which is held on the cross-slide and operated by a lever on the base of the machine. This method has been improved upon since the photograph shown in Fig. 11 was taken, and the time reduced from twenty-seven and one-half minutes to twenty-five minutes (see Fig. 10 for improved method). The second operation is to rough-drill the large hole with an inserted bit B, step the hole for the taper reamer with cutter C and rough-turn the external diameter with cutter D held in a special turning attachment. This attachment envelops the shanks of all six tools in the turret in order to obtain support. The cutters in the attachment shown in Fig. 11 work in advance of the under-cutting forming tool E shown in Fig. 12, which is held on the rear cross-slide. The time required for the completion of the operations outlined is thirteen minutes.
[88]
[89]
In the third operation drill H finishes the powder pocket, and two cutters I counterbore for the tap—time required three minutes. The fourth operation consists in finishing the diaphragm seat with the counterbore J, finishing the front end with inserted cutter K and breaking the corner to facilitate tapping with inserted cutter L, the time required being forty-five seconds. In the fifth operation the thread is cut with a tap M held in the tap-holder N in forty-five seconds. Then the turret is indexed and for the sixth operation the hole is taper-reamed with reamer O, provided with four inserted “Novo” steel blades, in ninety seconds. The last and seventh operation consists in knurling the band with a knurl P (see Fig. 12) mounted on the front cross-slide, and cutting off the shell with a cut-off blade Q retained in a holder on the rear cross-slide—time six minutes. The total time required to produce this shrapnel case by the improved methods illustrated by the diagram in Fig. 10 is twenty-five minutes.
There are several points of unusual interest in the production of this shrapnel case. One is the large amount of stock to be removed to form the hole; the second is the long taper-reaming operation—difficult work to accomplish satisfactorily on an automatic screw machine—and the third is the long outside forming operation which must be held to a limit of 0.0005 inch on the diameter. In order to accomplish this last operation successfully, the external diameter of the piece is first turned with a cutter held in a separate turning attachment, leaving only 0.010 inch on the diameter to be removed by a wide under-cutting or shaving tool E held very rigidly on the rear cross-slide. Not only must the case be exact as regards diameter, but it must not vary from one end to the other nor at any point throughout its length. The large shaving tool held rigidly in the manner illustrated in Fig. 12 accomplishes this result satisfactorily.
The material from which the case is made is so tough that some difficulty was met with in selecting a tool steel that would stand up for a reasonable length of time under cut. The drills and counterbores are tipped with “Novo” [90]cutters and all the forming tools, including the cut-off tool, are also made from the same steel. The only cutting tool in the entire tooling equipment not made of this steel is the tap. The bar is rotated at sixty-four revolutions per minute, giving a surface speed for the external cutting tools of approximately fifty-one surface feet per minute.
Machining the British Forged Shell on Potter & Johnston Automatics.—In making the British forged shell on the Potter & Johnston automatic chucking and turning machine, three operations complete the work. The first operation completes the outside of the shell, except for the extreme end which is covered by the gripping mechanism of the chuck. The second operation finishes the inside of the shell and at the same time finish-turns the extreme open end. After the second operation is performed the shell is “nosed,” which consists in heating it in a lead [91]bath and then striking it under a light press to close in the end. The third operation then follows, and consists in taking light cuts from the inside diameter and threading the open end of the shell.
Method of Holding Shell for First Operation.—For the first operation, the shell is held on an expanding arbor of the type shown in Fig. 14. The arbor A is tapered on its rear end and is held in the [93]nose of the spindle of the machine. The shell is pushed onto this arbor until the end of the arbor strikes the bottom of the shell. The gripping mechanism which comprises six jaws B and a draw-in plunger C is contained inside the arbor. The external diameter of the arbor is machined to practically the same shape as the internal diameter of the shell, but is smaller. The jaws are held in slots which control their movement in every direction except radially. They are forced out radially by means of the draw-in bar C which is provided with tapered seats that engage the inward end of the jaws. The bar C is operated by a hand lever D that extends up over the top of the machine, is fulcrumed in a bracket on the rear bearing cap, and is connected to a sliding sleeve E.
In clamping the work on the arbor, lever D is lifted up, this action drawing the sliding collar E to the right along the sleeve F, which, in turn, allows the forward end of the fingers G to close in. This releases the pressure of the outer end of the fingers on the draw-in bar C. When the pressure from bar C is released by means of handle D, heavy coil springs H then come into action forcing the draw-in bar back and expanding the clamping jaws. Additional clamping means are provided by three set-screws which are brought to bear on the work after it has been clamped in position by the jaws. To release the work, the reverse action takes place, that is, lever D is forced down which slides the collar E to the left, operating the fingers G, which, in turn, overcome the pressure of the springs H, allowing the clamping jaws B to collapse.
First Machining Operation Set-up.—The order of the first series of operations in machining a forged shrapnel shell is as follows: First, rough-turn 7 inches along body of shell, face end and chamfer; second, finish-turn 2¹⁄₂ inches along shell; third, rough-groove for copper band and dovetail; fourth, turn waves in groove.
For the first operation, the work is held on the expanding arbor shown in Fig. 14, and the tool equipment, which is of an unusually interesting character, is shown in Fig. 15. The first rough-turning operation, accomplished by [94]turret tool A, which is of the relieving type to be described later, is held on the first face of the turret and roughs down the body of the shell. On the opposite side of the holder is a roller support B which supports the shell while the turning tool is in operation. The end of the shell is faced by means of a facing tool C which is really a type of facing mill. The end of the shell is then chamfered by means of a chamfering tool D that removes the sharp corner.
After these operations have been performed, the turret is indexed and the second face of the turret is brought in line with the chuck. This operation is accomplished with a relieving tool-holder E carrying a cutter e, which takes a cut 2¹⁄₂ inches along the body of the shell. An interesting feature of this tool is that on the return stroke of the turret it swivels back out of the way so that the shell is not scored by the tool dragging over it. The construction of this tool is more clearly shown in Fig. 16.
As is clearly shown in this illustration, the turret relieving turning tool comprises a shank on which is fulcrumed a tool-holding member B. This is slotted out to carry the turning tool C which is clamped in place by two set-screws D and is adjusted to turn the correct diameter by means [95]of an adjusting stud and clamping nut F and G. The method of operating this tool is as follows: The fulcrumed tool-holder B is “held up” by means of a fillister-head screw, screwed into a stud H and acted upon by a coil spring I. A hole to receive the stud is drilled in the tool-holder B, allowing about ¹⁄₁₆ inch clearance. When the tool is in action it has a reverse position to that shown in the illustration, that is, the turning tool instead of being parallel with the center line is at a slight angle with it. In action, as soon as the turret advances, the tool comes into contact with the work, and the work, turning around, forces the cutting tool down and consequently depresses the spring, at the same time bringing the “lower part” of the hole into contact with the extended plug on the holder. In this way the tool is held rigidly and in contact with the work. As soon as the turret begins to move back, however, and the cutting pressure is released, the spring comes into action and throws up the tool, bringing it out of contact with the work.
Upon the completion of the operation which is accomplished from the second turret face, the turret is again indexed and the next operation is performed from the rear cross-slide and the third turret face. The third operation consists in cutting the grooves for the rifling band, and, on account of the under-cutting necessary, involves some interesting points. In order to hold the work rigidly while the grooving tools are acting on it, a revolving support F is brought in from the turret. The wide tool G for cutting the band grooves (this tool removes the greatest amount of the stock) is held on the rear cross-slide and is of the under-cutting type; that is to say, it operates under the work or tangentially instead of radially. Held on a bracket on the third turret face are two tools H and I, the purpose of which is to dovetail the rifling band grooves. These turret tools are held in a holder working in a slide on the bracket fastened to the turret face and are operated by a block held on the rear cross-slide. The action of these three tools, therefore, is simultaneous. The wide grooving tool, however, is slightly ahead of the dovetailing tools.
[96]
[97]
The last operation is accomplished when the turret is indexed to the fourth position. Here, again, a roller support J steadies the work while the waving tool is in action on it. The two waves that are formed are for the purpose of preventing the rifling ring from turning, and they deviate about ¹⁄₁₆ inch laterally from being a true annular rib. The tool for cutting these ribs is shown at K and is of the forming type held in a dovetailed groove in the holder L. This also carries a roll M which contacts with the waved surface of the face-cam N, the curve of which gives the correct out-and-in motions to the waving tool K. The cam face is on a sleeve that is threaded onto the nose of the spindle of the machine, as is shown to the left of the illustration opposite the first turret face.
Method of Holding Shell for Second Operation.—The second series of operations on the shell is also performed on the Potter & Johnston automatic chucking and turning machine. The shell is held at the base end by a special collet of the draw-in type, as shown in Fig. 17. Fixed in the nose of the spindle is a positive stop A against which the shell is held by means of the draw-in collet B. This collet extends into the draw-in rod C, to which it is attached. The method of operating this gripping mechanism differs slightly from that shown in Fig. 14. In this case the spring collet B is drawn into a tapered sleeve to clamp it on the work. This is effected by means of lever D which is fulcrumed in a bracket extending from the rear bearing cap of the machine and operates a sliding cam sleeve E. The cam, in turn, operates fingers F, only one of which is shown, the latter acting upon the draw-in rod C to which the collet is attached. By depressing lever D, the chuck is opened by means of the coil springs G which act upon the draw-in rod C when the pressure of the fingers has been released. Lifting up handle D closes the chuck, and depressing it opens the chuck.
Second Series of Machining Operations on Shrapnel Shells.—The operations on the shrapnel shell performed in the second setting are shown in Fig. 18. The relieving tool A, held on the first face of the turret, covers that section of the [98]shell which in the former operation was held in the gripping jaws. While this cut is being taken, a turret tool B rough-bores the powder pocket and diaphragm seat. The relieving tool A is constructed and operated similarly to the relieving tool described in connection with Fig. 16. It will be noted here that the threads on the spindle nose are protected by a cast-iron cap to prevent them from being injured. Upon the completion of the operation just described, the turret is indexed, bringing the second face in line with the spindle. Here the diaphragm seat is finished with a flat cutter C, which is held in the boring tool illustrated. The turret is again indexed into the third position, where the powder pocket is finished by means of the flat cutter D.
[99]
The turret is now indexed to bring the fourth face in line with the spindle where the extreme open end of the shell is turned taper by means of a tool E that is carried on the front cross-slide and operated by the turret. By referring to this illustration, it will be noticed that the taper is turned from the spindle toward the outer end of the shell and is, therefore, a reverse turning operation. The tool is caused to move toward the turret by using a rack and pinion to reverse the movement. On this operation, as well as on the previous one, one man takes care of four machines.
Third Machining Operation on Shrapnel Shells.—Before any other machining operations are done on the shell, it is taken to a lead bath where it is heated and afterward placed under a press which closes in the nose or open end of the shell. For machining in the third operation, the shell is held practically in the same manner as for the second operation, except that it is gripped farther along the body. The machining performed in this operation is as follows: On the first turret face, rough-bore and finish-bore for a distance of 1 inch from the end of the shell; second turret face, rough-bore the inside of the shell for a distance of 1 inch back from the thread; third turret face, [100]finish-form on the inside for a distance of 1 inch back of the thread; and fourth turret face, thread with a collapsible tap. The various machining operations on the 3-inch size of shrapnel shells are performed on a standard Potter & Johnston 6A automatic chucking and turning lathe. It is recommended that these machines be run in batteries or units of seven each, four machines being set up for the first operation, two machines for the second operation, and one machine for the third operation.
Machining “Frankford” Forged Shell.—The machining of the American or “Frankford” 3-inch type of high-explosive shrapnel shell is comparatively easy, inasmuch as there is no nosing to be done, and the entire shell may be machined [101]at two settings. Fig. 20 shows the way in which the first operation is taken care of on the No. 6A Potter & Johnston automatic chucking and turning lathe. The forged shell is held on an expanding arbor of the same type as that shown in Fig. 15. In the first turret position, the operations consist in taking a straight cut across the diameter and facing off the end. The external turning tool A is of the relieving type, and B is a facing tool that works on the end. Both of these tools are supported and operated from the turret. A roll support, not shown, steadies the work while tool A is [102]working. The turret now backs out, and a forming tool, held on the cross-slide, advances, cuts the rifling band and the semicircular grooves in the end of the shell, and at the same time chamfers the corner. Knurl D, held on the rear of the cross-slide, is then advanced. This knurls the bottom of the rifling band groove.
By referring to Fig. 20, it will be seen that the grooves do not extend entirely across the face of the knurl, but instead two “knurl” ribs similar to a double thread are formed on the periphery. This construction makes it possible to sink the knurl into the work to the proper depth without exerting excessive pressure on the arbor and throwing it out of line.
Second Series of Operations on “Frankford” Forged Shrapnel Shell.—For the second series of operations, the “Frankford” shrapnel shell is held in a draw-in collet as shown in Fig. 21. As the shell has been completely machined on the outside, it is let into the collet for a considerable distance. For machining, it is shown gripped in the collet by jaws A and is backed up by positive stop B. At the first turret face, tool C rough-bores the diaphragm seat, tool D bores the thread diameter, and tool E faces and chamfers the end. The turret is now indexed, and tools F, G, and H perform similar finishing cuts. A holder held on the third turret face carries tool I that chamfers the powder pocket, and at the fourth turret face a collapsible tap threads the open end.
[103]
Making Shrapnel Shells on the Gridley Automatic Turret Lathe.—Figs. 22 to 25 show a three-inch shrapnel shell made on the 3¹⁄₄-inch Gridley single-spindle automatic turret lathe. The steel from which the shell is made is very tough. The specifications are from 125,000 to 135,000 pounds tensile strength, 110,000 pounds elastic limit, a twenty-five per cent reduction of area, and a twelve per cent elongation. It will be seen from the above specifications that the steel is, of necessity, very tough and difficult to work; in addition, a large taper reamer must be used, and the outside of the shell must be relieved throughout the central portion. It is also necessary to machine the piece to extremely accurate dimensions, all of which tends to make the work still more difficult. Fig. 22 shows a view of [104]the shrapnel shell. It is approximately three inches in diameter and eight inches long, and the limits allowed for the sizes are extremely close throughout, both inside and outside. Figs. 24 and 25 show the successive steps employed in machining the piece complete, the four views presented representing the appearance of the work and the operations performed at each indexing of the turret. Fig. 23 will enable the operation of the different parts to be more clearly understood.
[105]
While the operation of the Gridley automatic turret lathe is generally understood by mechanics, it may be well to state briefly the general principles upon which work is done in the single-spindle machine. In this type of machine, the position of the work does not change as it does in the multiple-spindle machine, but the turning is accomplished by the operation of tools mounted on tool-slides which, in turn, work on a turret that revolves about a horizontal axis, successively presenting the tools for operation upon the work. This will be readily understood by glancing [106]at the illustration Fig. 23. It will also be noticed from this illustration that the forming tools and cutting-off tools are operated from a face-cam at the lower part of the machine. The forming slide is actuated by a cam groove cut in one side of the cam-plate while the cutting-off slide receives its movement from a cam groove on the reverse side of this plate.
At the first position of the turret, a large 2¹¹⁄₃₂ inch high-speed oil drill is run into the bar to a depth of 6¹⁄₃₂ inches, and, at the same time, a knee-turner located on the tool-slide turns the outside of the stock, thereby removing the scale from the bar. Referring to Fig. 23, which shows the turret in the third position, the end of this large drill is shown at A, and, of course, when at work, it would be in the position of the reamer which is shown at F. The time elapsed at the completion of this part of the work is eleven minutes, five seconds.
At the second position of the turret, a smaller drill, 2¹⁄₁₆ inches in diameter, which is shown at B, is run in at the bottom of the hole previously drilled to a depth of ²⁹⁄₃₂ inch. At the same time a counterboring tool, which is located [107]at C and which is attached to the drill with a set-screw, is at work counterboring the end of the hole in the shell. During the time that this drilling and counterboring operation is being performed, the forming tool shown at D is being fed into the outside of the head of the shell, finishing the three grooves as shown; in addition, a sizing tool E, which is at a fixed distance from the forming tool, comes in and sizes the work to exactly the right length. The time elapsed up to the finishing of this part of the work is thirteen minutes, thirty-five seconds.
At the third position of the turret, which, by the way, is the one shown in Fig. 23, the large taper reamer F is run in, which operation removes the bulk of the stock for the taper, and a second step at the end of this reamer finishes the extreme end of the hole at the bottom of the shell. The blades of this reamer are nicked to break the chips as they are being formed. Before the reamer begins to cut, the knurling tool H is brought against the work (while it is on [108]the high speed) by the cutting-off slide, which, of course, results in a better knurled section than would result if the knurling of the piece were done at a lower speed. During the reaming operation, the cutting-off tool G is run in part way to facilitate the final severing of the piece. In addition, the relieved part of the work is turned by a tool mounted in a tool-holder on the slide of the turret. This tool is shown at I and it is operated by a templet J which has a raised projection that throws the tool into the work after it has reached the right position with relation to the length of the shell. The total time elapsed up to the finishing of this part of the work is twenty-two minutes, thirty-five seconds. At the fourth and last position of the turret, a finishing reamer sizes the outer end of the interior of the shell and is withdrawn but part way, so that, when the cutting-off slide comes in and finishes severing the piece, the shell is caught on the reamer and not allowed to drop and possibly be injured by so doing.
The average total time for making this piece complete is twenty-seven minutes. On account of the rigidity of the tool support, the tools do not require sharpening more often than once for fifty pieces, with the possible exception [109]of the cutting-off tool, which must be sharpened after about half that number of pieces have been completed.
Using Warner & Swasey Turret Lathe for Machining Forged Shrapnel Shells.—In Fig. 26 is shown a typical set-up on a Warner & Swasey No. 2A universal hollow-hexagon turret lathe for machining an 18-pound shrapnel shell forging. The arrangement of the various tools for performing the first series of operations is more clearly illustrated in Fig. 27, to which reference should now be made. The forging is located for machining on a special arbor fitted into the spindle and carrying two spring-controlled centering bushings A. These serve to locate the shell, which is then gripped by the floating jaws of the chuck on the external diameter, and a stop on the end of the arbor locates the shell from the bottom of the powder pocket.
The first operation consists in taking a cut from the external diameter with a special box-turner provided with a roll steadyrest and carrying two turning tools. The second operation is handled from the cross-slide, the shell forging meanwhile being supported by a roll steadyrest clamped to the turret. In this operation the closed end of the shell is [110]faced with tool C, the corner rounded, and the band groove formed with forming tool D. The third operation—first chucking—is performed with tool F which produces the waves in the band groove, and is operated in the following manner: Referring to the lower left-hand corner of the illustration, it will be seen that a roll G is brought in contact with the face-cam B, thus giving the desired oscillating movement to the waving cutter. The fourth and final operation consists in under-cutting the band groove with a tool clamped to the turret. This tool gages from the end of the shell by a revolving stop H, and is provided with two slides, set at the desired angle to each other and the work, carrying under-cutting tools I and J. These slides are operated by handle K.
The second chucking on this shell is handled as shown in Figs. 28 and 29 on the same type of machine. As shown in Fig. 29, the shell for this operation is gripped in an automatic chuck, and a stop A for locating it is held in the spindle. The first operation consists in roughing out the powder pocket and diaphragm seat with a cutter B, and rough-turning that portion of the shell held in the chuck [111]in the previous chucking with a tool C. This tool is held in the cross-slide toolpost, and is controlled in its movement by a special guide fastened to the regular taper-turning attachment. The second operation finishes the powder pocket and diaphragm seat with a cutter D.
After the second chucking, the shell is heated on the nose, closed in and is then brought back to the turret lathe, when the operations are performed as shown in Figs. 30 and 31. [112]Here, again, the forging is held in the automatic chuck and is located by a plug A in the spindle. The first series of operations consists in boring, facing and chamfering the nose with a counterbore B, and at the same time turning the external radius on the nose with a tool C. Tool C is held in the cross-slide square turret and is controlled in its movement by a special guide fitting on the regular taper-turning attachment.
The second operation, shown to the left of the illustration, consists in machining the radius inside the nose with a tool E, controlled in its movement by the special guide D, as previously mentioned. The third and final operation consists in cutting the thread with a collapsible tap F.
Using Warner & Swasey Turret Lathe for Machining Bar-stock Shrapnel Shells.—The method of machining shrapnel shells from bar stock differs somewhat from that used for forgings, and is handled on a No. 2A universal hollow-hexagon turret lathe. In this particular case, the shell blank, previous to machining in the turret lathe, is [113]rough-drilled in a high-powered drilling machine to the bottom of the powder pocket. Assuming that this has been accomplished, the operations for the first chucking are then carried on as illustrated in Fig. 32. Here the shell is held in an automatic chuck and is located by a stop A. The first operation consists in counterboring the mouth with the counterbore B, and rough-turning the external diameter with tool C; second, counterboring with the cutter D and turning further along the shell with a tool E; third, finishing the bottom with a cutter F and facing the end of the shell with a tool G.
In the second chucking, the operations shown in Fig. 33 are performed. Here the shell is reversed in the automatic chuck and is located, as before, by a stop A. The first operation consists in turning that portion of the body held in the chuck in the previous chucking with a roll-supporting turning tool B. Second, supporting the shell with a roller support C held on the turret, facing the end with a tool D, and chamfering the band groove and the end with a cutter E held on the cross-slide square turret. The third operation is to support the shell from the turret, knurling with a [114]knurl F from the cross-slide square turret. Fourth, taper-turn from the end to the band groove with a tool G, guided by the taper-turning attachment.
For the third chucking, the shell, as indicated in Fig. 34, is held in the same manner as for the first chucking. First, it is recessed with a tool A and brought into action by operating the special holder which has a cross-sliding movement; second, it is bored and faced with a counterbore B from the turret, and taper-turned with a tool C operated by a special guide from the taper-turning attachment. In the third operation, the thread in the nose is rough-chased with a tool D, controlled in its movement by the chasing attachment of the machine; fourth, the thread is finished with a tap and tap-holder E.
Machining Shrapnel Shell Forgings on the “Lo-swing” Lathe.—By adding a simple carriage to its “Lo-swing” lathe, the Fitchburg Machine Works, Fitchburg, Mass., has adapted this machine for machining shrapnel shells of different types. The following data and illustrations refer particularly to tooling used for machining the Russian and French shells. On the Russian shell, after centering, the [115]forging A is held on a special arbor B shown in Figs. 35 and 36. Placed over this arbor is an expanding collar C, the inside surface of which is chamfered to fit against surface D on the stem of the arbor. The section of the arbor next to the spindle is threaded and a large nut and handwheel E are turned to pull the sliding sleeve C along the arbor and thus expand it to firmly grip the inside of the shell forging. Sleeve C is connected to the nut E by a threaded collar F. After the forging is securely located on the arbor, which it should be understood extends to the bottom of the powder pocket to gage it for length, the tail-center G is run in to support it.
To those familiar with the “Lo-swing” lathe, it will be appreciated that its chief efficiency lies in its system of multiple turning tools. Thus, on this job, tools H, I, J, K, L, and M are all mounted on one slide, and in the illustration are shown in the positions they occupy after taking their respective cuts. At the beginning of the cut, turning tools K, L, and M are drawn back clear of the work to allow sufficient clearance for tools H and I to operate. With the tools drawn back and the carriage at the extreme right of the bed, tool H is the first to come in contact with the work. This tool takes a roughing cut over the body of the forging, finishing at the radius on the nose.
[116]
Tool H is controlled in its action by a former pin on the tool-slide, held in contact with the face of cam former O by a stiff spring. Former slide O takes the place of the regular taper-turning former ordinarily used on the “Lo-swing” lathe. When the former pin in the slide carrying tool H reaches point P on former O, the tool is withdrawn to conform with the shape shown at N on the forging. The tool is then fed in further toward the axis of the arbor, until the former pin reaches point Q on the slide, when the radius on the nose is completed. Tool H is the only one mounted on a taper-turning block.
Just after tool H passes point N, tool I commences to cut at the end of the forging, taking a finishing cut and ending up in the position in which it is shown in the illustration. After tool I reaches this position, the other tools J, K, L, and M are brought into action. Tools K, L, and M are so situated on the carriage that no lateral feeding is required. When these tools are in action, the roller support R takes the thrust. Tool K roughs out the band groove and is fed into the work by a handwheel. Tool L cuts the groove for attaching the brass case to the shell, and tool M, carried on the same block, faces the end. Tools K, L, M, and S are located on the same carriage and are fed in together. Tool [117]S rounds the corner of the shell. The carriage on which tools K, L, M, and S are located is now drawn back out of the way, and the entire carriage moved over so that tool J can be used to under-cut the rifling band groove. After cutting off the center projection, the first series of operations on the shell is completed.
Second Series of Operations on the Russian Shell.—The second series of operations is performed on the inside of the shell on the “Lo-swing” lathe, which is provided with a special turret for this purpose. As is shown in Figs. 37 and 38, the shell A is held in special collet jaws B that have a two-point bearing on the shell. Stop C in the spindle locates the shell in the chuck. To manipulate the chuck for tightening it on the work, handwheel D is turned, carrying with it the nut E and ring F. Ring F carries pins sliding in slots in sleeve H and driven into collet B, so that when nut E is drawn back it also carries collet B into the taper in sleeve H, closing the collet on the work. Turning handwheel D in the opposite direction releases the grip of the collet B on the work. The first operation is performed with tools I, J, K, and L. Tool I bores the powder pocket, tool J roughs the diaphragm seat, tool K rough-turns the thread diameter at the shell mouth, and tool L faces the end. The turret is now indexed, and boring-bar carrying [118]tool M is brought into operation. This tool turns the curved interior of the shell. To accomplish this, the turret locking-pin is removed, allowing the turret to float on its central axis. Fastened on the ways of the lathe at the rear of the turret by a clamp O is the cam bracket N carrying the guiding cam P. This cam, through pins Q and R in bracket S, controls the float of the turret and guides the cutting tool M. In the illustration, the tool is shown at the end of the cut. It will also be noted that one surface of the cam is curved and the other is straight; therefore, to compensate for this and also to steady the turret, pin R is backed up by a spring. Clamp O is now released and bracket N moved back to allow the turret to be indexed. Bracket N is located, when brought into the operating position, by a stop on the bed of the lathe.
[119]
In the third position, tool R finishes the powder pocket, S the diaphragm seat, and T the thread diameter, whereas U acts as an adjustable stop for the depth of the various tools. The fourth and last operation is tapping with a collapsible tap V. This completes the machining of the Russian shell on the “Lo-swing” lathe.
Machining French Shrapnel Shell on “Lo-swing” Lathe.—The machining of the French shrapnel shell is well suited to the “Lo-swing” lathe. A [120]great many of the French shells are made from solid bar stock, and when this is the case, the first operation, performed as shown in Fig. 39, consists in rough-drilling. If the shell is made from a forging, this operation, of course, is dispensed with and the first tool used carries boring and facing cutters, as shown at A, B, C, and D. These rough-bore the three diameters on the inside of the shell and face off the end to length. The next operation is accomplished with two finishing boring tools E and F, the depth of which is obtained by an adjustable collar G that comes against the produced with a collapsible tap H. The turret is then indexed two holes, bringing the special recessing tool into position. This tool is of the cross-slide type and carries a back recessing cutter I. This completes the first series of operations on the shell.
Second Series of Operations on Shell. French—The second series of operations on a French shell is accomplished as shown in Fig. 40. Here the shell is held in the same manner as described in connection with Fig. 35. The forging is placed on arbor B that has an expanding sleeve C operated by the hand-clamping wheel nut D. Eight cutting [122]tools are located on the carriage. Tool A turns the diameter at the open end of the shell, B the central part, C cuts the band groove, D chamfers the section adjacent to the band groove, E chamfers the end of the shell, and F knurls the band groove. Roll G, in connection with roll H, supports the shell while the knurling is being done, whereas tool I faces off the end of the shell. At the beginning of the cuts, tools C, D, E, and knurl F, also roll G and tool I, are withdrawn. This permits tool A to cut the front end of the shell at the beginning and finish the diameter at the open end of the shell. Tool B next comes into action and turns the central part of the shell. Tool C is then located in the correct position for the band groove and the carriage on which tools C, D, and E are located is fed straight in, cutting the band groove and chamfering. Knurl F is then brought into position to knurl the groove, with roll G backing up the work against roll H. The last operation is to cut off the center projection with tool I.
Fig. 41 shows the tool set-up on the “Lo-swing” lathe for machining the straight type of French shell, in which two tool-blocks are used for doing the straight turning. The leading tool turns the end of the shell a little larger than the main body. The procedure for grooving, knurling, and facing the shell is that previously described for the forged shell, which is shown in Fig. 35. On the French shrapnel shell the second operation follows directly after the first, whereas on the Russian forged shell a nosing-in operation comes between the two machining operations.
Using the “Libby” Turret Lathe for Machining Shrapnel Shells.—One of the many ways of machining a shrapnel shell is illustrated in Figs. 42 and 43. This shows the set-up on the “Libby” turret lathe, manufactured by the International Machine Tool Co., Indianapolis, Ind. In the first chucking, the forging, as shown at A, is held on a special solid arbor provided with a series of corrugations where it contacts with the forging. This, in addition to providing a rigid support, assists in gripping, and the shell is also gripped by a pair of chuck jaws that act as drivers. First, a gang tool-holder carrying three stellite turning tools o is [125]brought into position, and the cutting is started, continuing for a distance of one-third of the length turned. To provide additional support, a roller back-rest, carrying a facing tool, is brought in to steady the work, and, as it is fed forward, the end of the forging is faced off and chamfered.
The second operation on the first chucking is shown at B. Here the cutter a is brought in first and starts the band groove, after which the under-cutting tool b is brought in to under-cut the edges of the groove. In the meantime, roller c supports the work. Upon the completion of the groove, the holder carrying cutter d is advanced to finish-face the end of the work and chamfer.
The third operation—cutting the waves in the band groove—is of an interesting character and is accomplished as shown at C. A cam e which is free to rotate with the work is first brought in contact with it; then the cross-slide is advanced, carrying the waving tool f and the guide g. The guide g fits in the cam groove and controls the operation of the waving tool.
In the second chucking on the first operation the shell is reversed in the chuck and is held in the manner indicated at D, Fig. 43. The forging is located in the chuck by a stop-collar h, and is gripped on the external diameter by the jaws of the chuck. A stepped boring tool carrying five inserted blades is brought in to rough-bore the internal diameters and machine the shell to the proper thickness at the bottom of the powder pocket. This tool also carries a facing cutter that faces off the shell to the proper length. While the boring tool is working, a broad turning tool, held on the cross-slide, is brought in to bevel the nose preparatory to closing-in. The next step is to taper-ream the internal diameter, as shown at E. This completes the operations for the second chucking.
The nose of the shell is now heated and closed in, after which the third series of operations is performed. The first step in the third chucking is to bore for the thread and face the end of the shell with a turret tool, as shown at F. The next operation is to machine the curved contour [127]of the nose of the shell with a special turret tool as shown at G. Here a wide forming cutter i, held in a turret tool-holder, is brought in contact with the work, finishing the nose of the shell to the proper form. During this operation, the shell is supported by a roller in the holder.
The next operation is to form the inside of the nose of the shell to the proper shape, as shown at H. This is accomplished with a forming blade j, held in a holder clamped in the toolpost. Following this, a collapsible tap is brought in from the turret to thread the nose of the shell, as shown at I.
Machining Shrapnel Shells on a Heavy 22-inch Turret Lathe.—Still another method of machining shrapnel shells in a heavy turret lathe is shown in Figs. 44 and 45. The shell being machined is an 18-pound British shrapnel shell made from a forging. It is held on an expanding arbor for the first operation, as shown in Fig. 46. The arbor is of the three-point support type and is positive in its grip. Around the periphery of the nose-piece are located three pinions A capable of being rotated by a square-ended wrench. These mesh with teeth in bevel gear B which, in turn, is threaded onto arbor C. The forward end of this arbor is cone-shaped and operates the three gripping fingers in the open end of the shell, whereas another rod passing through arbor C and connected to plunger D operates, through the coil spring, the three fingers used in gripping [128]the shell by the powder pocket. This arbor holds the shell securely while the machining operations are being accomplished.
The first operation performed at the first chucking of the work is shown at C in Fig. 44. Here a turning tool-holder clamped to the turret and carrying two cutters is advanced and takes a roughing cut from the exterior diameter of the shell for practically its entire length. The shell is supported by three roller supports as illustrated. The second operation at the first chucking is performed from the cross-slide, as shown at D. Here a forming tool of the tangent type roughs out the rifling band groove, leaving sufficient metal in the center for the production of the wave ribs. The third operation is facing off the closed end of the shell from the turret as shown at E, and the fourth operation consists in machining the waved ribs as shown at F. The tool for accomplishing this operation is held on the cross-slide and is operated from a face-cam on the nose of the spindle.
In the second chucking the shell is held in a three-jaw scroll chuck. The first operation is to rough-bore the inside of the shell and powder pocket with a tool G, Fig. 45, held in the turret; directly after this a finishing tool of the [129]same shape is brought in, finishing the surfaces previously roughed out. The second operation is to face off the open end of the shell and taper-form back of the nose from the cross-slide, as shown at H, and at the same time turn that portion of the exterior surface of the shell not machined in the previous operation with a tool clamped to the turret as shown at I.
Previous to the third chucking, the nose of the shell is heated and closed in. The shell is then held in a three-jaw scroll chuck provided with special jaws. The first operation, as shown at J, consists in boring and turning the nose of the shell with a tool held in the turret. Following this, the hole is reamed with a standard reamer and tapped with a collapsible tap. Both of these tools are held in the turret, but are not shown in the illustration. This completes the machining operations on the shell.
Threading Shrapnel Shells on “Automatic” Threading Lathes.—Considerable difficulty has been experienced in cutting the square thread in the nose of the French shrapnel [130]shell. One method which accomplishes this operation satisfactorily is shown in Fig. 47, and is accomplished on a 12-inch “Automatic” threading lathe built by the Automatic Machine Co., Bridgeport, Conn., and equipped with special tools for this purpose. Referring to this illustration, it will be seen that two tools are used—a roughing tool A, and a finishing tool B. Tool A roughs out the thread to a shape similar to the Acme type of thread, whereas tool B squares it up. The roughing and finishing tools are held on the forward and rear carriages, respectively, and are operated simultaneously, being advanced throughout the length of the thread, withdrawn and returned to start a new cut. The method of operating the tools is one of the chief features of the “Automatic” threading lathe.
The base end of shrapnel shells when made from bar stock is as a rule bored out and a plug inserted to eliminate any piping effect in the bar. Fig. 48 shows the method of accomplishing this operation on a 12-inch “Automatic” threading lathe. The work is held in a three-jaw universal chuck and is supported by a roll steadyrest comprising two [131]rolls that are located beneath the work. On the extended end of the rear roller stud is fastened a swinging stop that is used for locating the base of the shell in the correct position ready for threading. The base of the shell is counterbored in another machine, previous to the threading operation. The threading is done with a circular tool held on a special internal threading tool-holder, the latter being retained in the toolpost carriage. The threading tool-holder can be moved longitudinally to bring it into the proper relation to the work. It is also held so that the cutting edge is turned upside down as this action forces the work down in contact with the roller supports. By handling the work in this manner, a steadyrest of the ordinary type is dispensed with and the operation of the attachment facilitated.
One method of making plugs for the base end of shrapnel shells when made from bar stock is shown in Fig. 49. For this work, a 12 by 4 “Automatic” threading lathe equipped with special tools designed for this purpose is used. The machine is provided with a draw-in collet chuck that holds the rough-forged blank. The order of handling the operations [132]on this machine is to use the rear tool A for turning the external diameter of the plug. This is handled at the same rate of feed as that required for threading, so that it is sometimes necessary to take more than one cut, depending on the amount of material left on the diameter. The vertical slide B is for facing only and carries a cutting tool C. This is supposed to finish the face in one cut, but as the work will spring considerably, a light finishing cut is taken when the tool is being drawn back from the center to the circumference of the work. The threading tool D is held on the front toolpost and is of single-point construction. The feed given to this tool is automatically controlled, both as to pitch and depth of cut at each traverse.
In actual operation, both the threading and turning tools are in motion all the time on the work, but the tools are independently controlled so that either one can be operated separately. A stop is provided on the back toolpost so as to turn each plug to the same diameter. The automatic throw-out for the feed of the threading tool is set from the front handle on the ratchet and pawl as regularly furnished on the “Automatic” threading lathes.
Grinding Shrapnel Shells.—An increasingly large number of shrapnel shell manufacturers are finishing the steel shell by grinding instead of finish-turning. That is, the exterior surface of the shell is rough-turned to within from 0.030 to 0.080 inch of the finished size and is then finished to the required limits and shape by grinding, as shown in Fig. 50. It is claimed by the advocates of grinding that the finishing operations are more speedily performed in this manner and that a more accurate and concentric shell is [133]produced. They also point out the fact that portions of the shell are so hard that it is extremely difficult, if not impossible, to turn it in the allowable time.
The varied heat-treatment given to the shell on the closed end and nose leaves it harder in some sections than others, as indicated in Fig. 51. The section E, 2¹⁄₂ inches from the closed end of the shell, must strike from 42 to 50 on the scleroscope, and the section A at the nose must strike between 20 and 25. The section marked D, or that part of it to the left of the line that marks the limit of the heat-treating on the closed end, has not been heat-treated at all, and partly on this account, and also because of the gradually diminishing thickness of the shell along this section, it strikes between 40 and 45, decreasing as the thickness of the wall diminishes, until at C the section strikes but 35. Section B, adjacent to the annealed nose of the shell, strikes about 30 on the scleroscope.
On the other hand, some manufacturers are not putting the shell through this heat-treating and tempering process, and omit the annealing and machining of the nose after the nosing-in operation. This leaves the nose with considerable stock to remove and in such a condition as regards hardness [134]that the grinding machine becomes a necessity. In the face of these varying degrees of hardness of the shrapnel shell, it will be seen that it is difficult to secure wheels of the right grain and grade to suit all of these conditions. With this information in mind, we can more intelligently take up the actual grinding of the shell. The Norton Grinding Co., Worcester, Mass., has been actively engaged in developing methods of grinding shrapnel shells and the following illustrations and descriptions apply to this work.
Fig. 52 shows the two-operation method of grinding the shrapnel shell. Section A at the open end of the shell is covered by a wide-faced wheel formed to shape, that finishes the radius on the nose at one in-feeding of the wheel. Sections B, C, and D are covered by a wide-faced wheel, formed to shape so as to finish these three surfaces at one in-feeding of the wheel. Section E at the closed end of the shell is finished completely by turning.
[135]
Some manufacturers use a three-operation method of grinding the shrapnel shell as illustrated in Fig. 53. In this case, the sections A and D are first ground with the same wheel, as American manufacturers deem it advisable to grind surface A rather than to finish it by turning. The second stage in this grinding is the finishing of the nose E with a formed wheel, and the third stage is the finish-grinding of the body at points B and C.
Two-operation Method of Grinding Shrapnel Shells.—The procedure followed in grinding shrapnel shells by the two-operation method is first to screw plugs into the open end of the shells, as shown in Fig. 52. The outer ends of these plugs are centered, and the projection left on the closed end of the shell with the center intact acts as a means of supporting the shell. Some of the Canadian manufacturers vary this practice by cutting off the center projection on the closed end of the shell and fitting a cap with a center hole over the closed end. Others use a ball-bearing cup center to carry the closed end. American manufacturers, however, leave the center projection on the shell until after the grinding has been finished.
In grinding the nose end of the shell, the amount of metal removed varies from 0.020 to 0.090 inch on the diameter. [136]The grinding wheel operates at from 6000 to 6250 surface feet per minute. The speed of the work is 75 revolutions per minute, or a surface speed of practically 75 feet, and the machine used is a Norton 6 by 32 plain grinder. The wheel used is generally 14 inches in diameter by 2¹⁄₄-inch face. The wheel requires truing for every five to twenty shells, depending upon the amount of metal removed and the hardness of the shell. For truing, a simple radius fixture carrying a diamond is used. Fig. 54 shows this wheel-truing device clamped on the grinding machine bed. It is applied in the same manner as the usual steadyrests used for supporting the work. The diamond is mounted in a swinging arm that is operated by a hand lever as shown. By successive cuts across the wheel, the desired shape is attained.
For grinding the body either a 10 by 24 special-purpose or 10 by 36 Norton grinding machine is employed. The amount of metal removed from the body varies from 0.030 to 0.075 inch on the diameter, and the limits vary from 0.002 to 0.010 inch, depending largely on the requirements of the plant in which the work is being done. The wheel used on the body is 20 inches in diameter and is of the ring-wheel [137]type. It will be noticed in Fig. 52 that the wheel for grinding the body is also formed to shape. The method of truing the wheel for shaping the shrapnel shell body is shown in Fig. 55. This attachment is clamped to the front of the grinding machine bed and at the top of the bracket is fitted a slide A operated by handwheel B. Upon the face of this [138]slide nearest the grinding wheel is pivoted an angular arm C that supports the diamond D at its lower end. Under the end of the upper arm is a spiral spring that keeps the diamond normally back from the wheel. A plate former E clamped to the bottom face of the bracket is shaped to agree with the form to be given the wheel. At the lower extremity of the arm and behind the diamond is mounted a roll F that bears constantly against form E. When the diamond slide is reciprocated by turning the handwheel, the diamond is made to traverse a path conforming with the cam that guides it. By moving the wheel in toward the diamond and making successive traversings of the diamond, the wheel is given the desired shape.
For grinding the body, the wheel must be trued after every ten to twenty-five shells are ground, depending upon the amount of metal removed and the hardness of the shell. In grinding shrapnel shells, the usual method is to fit a lot of the shells with the driving plugs and carry them all through to completion before removing the plugs.
Removing Center End From Shrapnel Forgings.—For performing practically all the machining operations on the shell, a center projection is left on the closed end of the shell for supporting it. This, of course, must be removed before the shell is completed. One method of doing this is to use a Besly No. 14 ring-wheel grinder equipped with a [139]special fixture. A Besly grinder fitted up for this work is shown in Fig. 56, and the fixture used for holding the shell is shown in Fig. 57. The machine, as furnished, is arranged for wet grinding, but is not so fitted up in the illustration. The fixture is fastened to the geared lever feed table and is of simple design. It is provided with a backing-up stop A, the work resting in two semi-spherical groove projections on the fixture. The operator simply holds the shrapnel shell in place by hand and then feeds it in against the wheel and traverses it past in the usual manner. The time for removing a ⁵⁄₈-inch diameter stub end projecting ³⁄₈ inch from the body of the shell is less than a minute.
Press Tools for Making Powder Cup.—In the British shrapnel shell, the powder in the base of the shell used for exploding it and ejecting the lead bullets, etc., is held in a tin-plate powder cup. This is completed in the punch press in the manner shown in Figs. 58 and 59, and comprises two parts, a base and a top. The base is made from tin plate 0.022 inch thick, whereas the top is made from 0.036 inch thick tin plate. The bottom of the cup is completed in one operation with the punch and die shown in Fig. 58, which is held in a single-action press. It is turned out from a blank 3⁷⁄₃₂ inches in diameter and is cut out and formed in one operation. The completed size is 2¹⁄₄ inches diameter by ⁷⁄₈ inch high. After cupping, the top edge is trimmed in a turret lathe. The press operations on the top, as shown in Fig. 59, are a little more complex. The first operation consists [140]in cutting out a blank 2¹⁹⁄₃₂ inches in diameter. Then the edge is turned up with another punch and die shown in the center of the illustration. The next operation is piercing the center with the punch and die at the right, and the last operation is drawing out a flange around the pierced hole. The tools for this operation are shown to the extreme right, as is also a completed powder cup. The final operation on the cup consists in soldering the top to the base.
Shrapnel Bullets.—The most deadly and effective parts of a shrapnel are the lead bullets which are held in the shell. When the timing fuse explodes the powder in the base of the shell, the nose is blown off and the bullets are thrown out in a cone shape. The range covered by these bullets in the 18-pound shrapnel shell is about 250 square yards. The lead bullets, which in most shrapnel are ¹⁄₂ inch in diameter, are made from several different compositions, but consist chiefly of 87¹⁄₂ parts lead and 12¹⁄₂ parts antimony. The number of bullets carried in shrapnel shells of the different [141]governments varies. There are 252 in the American 15-pound shell, and 235 or 236 in the British 15-pound shell. The bullets used by the U. S. government have six flattened sides, to facilitate packing, whereas those used by foreign governments are spherical.
There are several methods of making shrapnel bullets. One is to cast the bullets in iron molds, which are split in the center, so that the bullet can be removed when cast. Another is to cut off slugs from lead wire and strike these between dies in a heading machine. The bullet heading machine takes the wire from a reel, cuts it off, forms it and trims off the resultant flash automatically. In making the American bullets, a second operation follows, consisting in flattening the sides. The Waterbury Farrel Foundry & Machine Co. furnishes unit equipments for doing this work. For the flattened bullets, the unit consists of one hydraulic wire extruding press and fourteen heading machines capable of giving a production of 850 bullets per minute. For the spherical bullet, the unit equipment consists of one hydraulic extruding press and eight heading machines, giving a production of 950 bullets per minute.
The method of casting lead bullets in ordinary molds is antiquated, and another method somewhat similar to that just described has taken its place. The first step is to produce the wire from which the bullets are eventually made. This is accomplished in two ways. The first is the hot metal process and consists in pouring the molten lead into a cylinder, from which it is extruded through a die by a plunger advanced into the cylinder. By this method, it is necessary to allow the metal to settle before the press can operate. An improvement over this is utilized in presses built by a hydraulic lead press manufacturer of Brooklyn, and consists in first casting ingots of the required diameter and length and then charging the press with these instead of pouring the molten lead into the press chamber. Two presses have been designed for this process. One has a capacity of 700 tons and is charged with ingots weighing 150 pounds, whereas the other has a 900-ton capacity and is charged with 200-pound ingots. The product from these [142]two machines is 1800 pounds of lead wire from the small and 2500 pounds from the large press per hour. The wire as it is extruded from the die is wound on a reel carrying 2000 pounds of wire.
There are two principal types of swaging machines used for making these lead bullets from wire. One carries a single set of dies, whereas the other carries twelve sets of tools. The operation of the latter will be described. Referring to the diagram, Fig. 60, twelve reels of lead wire—not shown—are arranged in tandem on stands behind the press, six reels in a row. The wire is conveyed from these reels to the dies by a feeding mechanism, being guided to the individual tools by a plate A, having twelve U-shaped impressions in its top edge. The wire now passes over a spring B which serves to lift it up slightly at each stroke of the press. The tools C and D, as shown, are provided with half-spherical depressions in their adjacent faces and are set so that they come within ¹⁄₆₄ inch of meeting. The dies are guided and controlled in action by a special mechanism, and the press in which they are carried operates at 70 revolutions per minute. This gives a rated production of 840 bullets per minute. As is clearly indicated in the illustration, considerable scrap is formed in making lead bullets by this process—in fact the scrap is about 33 per cent of the reel of wire; also owing to the setting of the punches a slight fin is formed around the periphery of the bullet.
After forming, the bullets are taken to a tumbling machine where they are tumbled for one hour. No other material is put into the tumbling barrel, but the action of the bullets working on themselves satisfactorily removes all the fins. Both the swaging and tumbling operations must be carefully watched because of the necessity of having the bullets a certain weight. The allowable variation on one pound of bullets is one dram, and there are forty-one bullets to the pound. Ten pounds of lead rod make 6¹⁄₂ pounds of bullets, and the scrap resulting from the swaging operation is remelted and used over again. After tumbling, the bullets are inspected and are then ready for use.
[143]
Combination timing and percussion fuses comprise a large number of small parts made from different metals and alloys, and are produced in various ways. Some of the parts are made from brass rod or alloys of copper and aluminum, whereas others are made from hot-pressed forgings and are machined after being formed to shape. In the following, a brief description of several different methods of making the most important fuse parts will be illustrated and described, together with details regarding the forging tools used for the socket and plug.
Forging the Fuse Socket.—The fuse socket, which screws into the nose of the shrapnel shell and acts as a base for the fuse, is made from a special forgeable alloy casting containing 40 per cent copper, 58 per cent zinc, and 2 per cent lead. The first step in this process is to melt the above constituents in the usual manner and then to cast the slugs in sand molds, six to eight being gated together. These castings are made 2¹¹⁄₁₆ inches in diameter by ¹¹⁄₁₆ inch thick, as shown in Figs. 1 and 2. There are several methods in use for forging the plugs, but the general principle is the same. In this particular case, a No. 23 [144]Bliss press capable of exerting a pressure of 250 tons is used. The castings are placed in the furnace where they are allowed to “soak” at a temperature varying from 1200 to 1300 degrees F., or, in other words, until they reach a dull red color. One casting at a time is then quickly removed and placed in the impression of the die shown to the right in Fig. 1 and in detail in Fig. 2. The working parts of these dies are made from Jessop’s high-carbon tool steel and one blow of the press completes the forging, turning out about 3000 in ten hours. The tools used for this purpose are of interesting construction, as shown in Fig. 2. They comprise a lower die A machined out to the shape of the finished forging and carrying an ejector, and [145]lower former B operated by plunger C which ejects the forging if it sticks in the die. The top member or punch comprises a holder D into which the punch E is screwed. This is bored out to fit an ejector F which ejects the forging as the ram of the press ascends. Punch E and stripper or ejector F are made from high-speed steel, hardened. G shows the cast blank and H the completed forging.
Forging Brass Plugs.—The brass plug shown in Fig. 3 is used as a temporary cap for the shrapnel to protect it during transportation. It remains in the fuse socket until the shrapnel shell reaches the field of operations, when it is removed and replaced by the timing fuse. This member is made from a special forgeable alloy casting 2 inches in diameter by ⁷⁄₈ inch thick and is cast in sand molds in a similar manner to the fuse socket. It is also composed of the same constituents as the socket and is forged in the same type of press. The construction of the tools, however, varies somewhat from that of the tools used in making the socket, as will be seen upon reference to Figs. 3 and 4. The tools for the plug comprise a lower die A carrying a combined ejector and forming die B. Inserted in this lower forming die is a secondary ejector C which is operated by plunger D. The upper member of this forging tool consists of a punch-holder E carrying forming punch F which is counterbored to receive an ejector ring G. Passing down through the center of punch F is a center-punch H [146]that is made in two parts. The lower member is made of high-speed steel, hardened, whereas the upper portion is ordinary carbon steel. This center-punch is operated to eject the forging by a plunger I on the up-stroke of the press through the action of three pins J coming in contact with the flange on punch H. K shows the rough casting and L the completed forging.
Tooling for Machining Brass Socket.—The New Britain automatic chucking machine, referred to in the following, consists essentially of a multiple-chuck turret with capacity for holding five or six pieces of work, acted upon simultaneously by four or five tool-holding spindles. The sequence of operations is similar to that of a multiple-spindle screw [147]machine. A finished piece is removed and a rough blank inserted at each indexing. The machine is not idle while chucking, there being one more chuck than spindles.
The shrapnel socket which, as previously explained, is made from a brass casting and pressed into rough shape, is machined in two settings in the New Britain No. 24 chucking [148]machine. This machine has four spindles, and at the first spindle position, as shown in Fig. 5, reamer A cleans out the hole in the pressed brass blank, counterbore B cleans out the inside, and tool C faces the end. At the [149]second spindle position, reamer D finishes the central hole, counterbore E faces the bottom, and tool F chamfers the hole.
[150]
The under-cutting preparatory to threading is done at the third spindle position. The operation is performed with tool G working on the cross-cutting head H. When the pressed blank is fed in and reaches stop I, it commences to push the housing H of the cross-cutting head backward. A pair of stationary fingers J operate in oblique slots in the housing H, and as the housing presses down on these fingers, the motion gives a cross movement to the under-cutting tool G and its arbor K. In this manner, the under-cutting of the piece is performed. The fourth spindle operation is simply that of tapping the threaded interior with a tap L.
Second Operation on Shrapnel Socket.—Fig. 6 shows the order of operations performed on the shrapnel socket at the second chucking, the work being screwed on threaded arbors. At the first spindle position, pilot A engages the central hole, while tool B turns the external diameter, tool C chamfers the corner, tool D turns the thread diameter, tool E faces the shoulder, and counterbore F finish-forms the nose of the piece. At the second position, these same surfaces are machined with finishing tools of the same design as those just described.
At the third spindle position, the shoulder at the end of the threaded section is under-cut. This is done by a cross-cutting head, similar to that shown in Fig. 5 and carrying the cutter G. At the fourth spindle position, the final operation—threading—is performed with die H.
Machining Fuse Bodies.—In Fig. 7 is illustrated an interesting tooling set-up for machining a fuse body. This is done on the No. 73 seven-spindle New Britain automatic chucking machine. The operations in this set-up are performed on one end only of the fuse body. Strictly speaking, this is a seven-spindle machine, but the first four spindles carry internal spindles running at high speed that co-operate with the external spindles in machining the work, making this virtually an eleven-spindle machine. At the first spindle position, the broad face and stem are machined with cutters A of hollow-mill type, and centering tool B, carried in the inner spindle, centers the work for drilling.
[151]
In the second spindle position, tools C bevel the external diameter of the flange at the same time that drill D is producing the hole in the stem. In the third spindle position, roll D supports the work against the thrust of beveling tool E, and the small drill F held in the internal spindle deepens the hole. At the fourth spindle position, the external spindle carries a hollow-mill G that finishes the stem diameter, and a counterbore H is carried in the internal spindle to machine the central hole.
A cross-cutting head in the fifth spindle position carries a circular tool I that machines on both sides of the section subsequently to be threaded, and while this operation is being performed the pilot J steadies the work as well as the tool-holder. In the sixth spindle position, the small hole is threaded with tap K, and the exterior is threaded with a die, tap and die being of different pitches. In the seventh spindle position, a holder carries the forming tool M for [152]cutting grooves in the face of the flange, and the same spindle carries a reamer N that finishes the hole in the stem.
Machining Steel Shrapnel Heads.—Heads for shrapnel shells made from cold-drawn steel stampings are machined in two settings on a No. 24 New Britain automatic chucking machine of the four-spindle type, shown in Fig. 8. This piece, shown in Fig. 9 in its sequence of operations, is especially difficult to machine on account of the stringy nature of the metal. The work is held for the first chucking with [153]the small end out, and in the first spindle position the facing on the end is distributed between tools A and B, while counterbore C roughs out and chamfers the hole. In the second spindle position, tool D faces the end, and counterbore E finishes the hole. A cross-cutting head of a type similar to that previously described is carried in the third [154]spindle position. This retains a tool F which produces an annular groove in the nose of the head, the work being supported with pilot G. The fourth and last operation consists in threading the hole with the tap H.
[155]
Second Series of Operations on Shrapnel Heads.—The set-up for the series of operations performed at the second chucking is shown in Fig. 10, the work being held [156]on threaded arbors. In the first spindle position, tools A and B face the shoulder, and counterbore C machines a seat in the inner flange. In the second spindle position, counterbore D finishes the part roughed out by C in the previous operation, tool E faces the end, and tool F chamfers the inner edge. In the third position, a cross-cutting attachment carrying external cutting tool G is utilized for recessing the external diameter next to the shoulder. The threading on the external diameter is accomplished with the die H in the fourth spindle position.
Machining Shrapnel Fuse Noses.—The time fuse nose for a shrapnel shell, which is made from a brass forging, is machined as shown in Fig. 11 on a No 33 New Britain automatic chucking machine at one setting. In this case, an extra spindle designated as No. 0 is added to the machine for equalizing or properly locating the forging in the chuck when it is being tightened. At the first spindle position, tool A takes a cut from the external diameter, tool B cuts an annular recess in the face, and counterbore C roughs out the center portion. In the second spindle position, the same operations are performed with finishing tools. In the third spindle position, a cross-cutting head carries a recessing tool D that forms a recess back of the tapped portion. The hole is then tapped in the fourth spindle position, and in the fifth spindle position a special counterbore F takes a light finishing cut from all the surfaces previously machined. The external surfaces of the fuse nose are machined on a turret lathe.
Machining Shrapnel Fuse Parts on “Gridley” Automatics.—The machining of fuse parts for the British shrapnel shell on “Gridley” single- and multiple-spindle automatics, made by the Windsor Machine Co., Windsor, Vt., forms the basis of several interesting tooling equipments. A number of the parts are machined from hot-pressed brass forgings, so that they must be handled separately. The fuse socket, as has been previously described, is made from a brass forging and is machined complete in two operations on a 3¹⁄₄-inch “Gridley” automatic turret lathe of the single-spindle type. The manner in which the work is loaded in [158]the chuck and held for the first series of operations is shown at A in Fig. 12. The rough blank a is first placed over the spring fingers b, which are held in a holder clamped in the turret, but are free to rotate. When the work is pushed into the chuck, it forces back spring-ejecting stud c, which, as soon as the pressure of the chuck is released, ejects the work.
As the loading device operates on the first slide of the turret, the first machining operation takes place on the second slide. This is a comparatively simple operation and consists in boring the central recess with a tool d and chamfering with tool e. The turret is then indexed, bringing the internal necking tool f into position. This is held in a holder and is operated by the forward motion of the forming slide. Following this, tap g is brought into position to thread the recess in the socket. The operation of the turret is now stopped automatically until the operator loads a new piece in the chuck. The tapping is done with the spindle running in the forward direction on slow speed. After the hole has been tapped, the spindle is reversed and operated at a higher speed. The spindle continues to run backward for loading, and is still running backward, but slowed down, at the time of the second operation. It is for this reason that the boring tool d operates on the reverse side of the hole, and tool e is mounted upside down. At the third operation, the spindle is still running backward but is speeded to its highest speed while the internal necking is done with the tool on the reverse side of the hole.
Second Operation on Fuse Socket.—The method of holding the fuse socket for performing the second operation on the 3¹⁄₄-inch “Gridley” single-spindle automatic turret lathe is shown at B in Fig. 12. The socket h, which has now been threaded, is screwed onto the body of special arbor i, fitting in sleeve j that is gripped by the spring collet. On the reduced end of arbor i is a nut which serves to clamp the work up against the face of sleeve j. The method of using this arbor is as follows:
To chuck the work, sleeve j and its auxiliary members are removed from the spring collet, and the work is screwed [159]onto the nose of arbor i, the position of which is locked by means of a nut on the stem of the arbor. The entire arbor is then replaced in the collet and the machining operations performed on the work. This type of arbor is necessary because of the heavy cutting with the wide forming tool which would tighten the piece on the threaded nose to such an extent that it could not be removed when finished. With this device, it is only necessary to hold the square end of arbor i in a vise, and loosen the work by relieving the nut on the arbor. In order to facilitate the work, two arbors of this type are provided with each of the machines employed.
The operations performed in the first position consist in forming the external diameters with tool k, facing with the side tool, and drilling with drill m. The second turret face is now skipped and the third brought into position, presenting self-opening die n which threads the work. At the fourth indexing of the turret slide, the hole is reamed with reamer o and tool p chamfers the face, completing the work. The forming done at the first indexing of the turret slide is performed on slow speed; the spindle speed, however, changes to high at the third [160]position and back to slow just before the fourth position.
Machining the Fuse Body.—The fuse body is made from a hot-pressed brass blank, and is machined in two chuckings in “Gridley” multiple-spindle automatics. The first series of operations is performed in a “Gridley” 1¹⁄₄-inch multiple-spindle automatic in the order shown to the left in Fig. 13. The work is loaded in the chuck by hand. Forming tool A now advances and rough-forms the outer diameter, whereas flat drill B and trepanning tool C combine to drill the central hole and trepan the narrow channel. At the second spindle position, tool D finish-forms and necks the outer surface, while tool E counterbores the surfaces of the recess. Die F at the third spindle position now threads the body, and at the fourth spindle position forming tool G turns down the outer end of the thread while a floating trepanning tool H finishes the counterbored and trepanned surfaces. It should be mentioned here that the hot-pressing of this brass part makes it extremely difficult to machine, so that the edges of the tools dull rapidly.
Second Series of Operations on Fuse Body.—The method of holding the fuse body while the second series of operations is being performed is shown in Fig. 14. The work-spindles A of the machine are fitted with special nose-pieces B, the inner surface of which is chamfered to receive the spring collet C, which is threaded to the end of draw-back rod D. The work is not gripped directly by the spring collet, but is first screwed into a special bushing E, having thin walls as shown. This bushing is not split but springs sufficiently to permit it to be closed in on the work and released when the collet pressure is removed. A flange G attached to the end of the spindle nose serves as a stop for the work and a gaging point for the operations. The regular collet closing mechanism is used, but as may be seen in the left-hand end, the finger holders are reversed. When the clutch ring H is pushed forward by the chuck-closer gripping fingers I swivel and draw rod D backward through contact with flange J. When the clutch ring H is moved [161]backward, the gripping fingers release rod D, relieving the pressure of the collet on bushing E and the work.
Referring again to Fig. 13, the second series of operations on the fuse body is shown to the right of the illustration. At the first spindle position, forming tool I advances and forms the exterior diameters, while drill J drills the hole [162]in the end. At the second spindle position, the rear part of the work is supported by a roll back-rest, while the regular turner K takes a cut across and chamfers the shoulder. At the same time counterbore L comes in, cleans up the drilled hole and faces the bottom. At the third spindle position, the diameter M is threaded with a plain die. At the fourth spindle position, a tool N operated from the turret cuts a series of concentric grooves in the flange of the fuse body. The grooving tool is cut away to clear the forming tool O which takes a light cut over the grooved face, finishing the body as illustrated.
Machining the Stationary Timing Train Ring.—The machining operations on the stationary timing train ring are shown to the left in Fig. 15, and as can be seen are of a comparatively simple nature. This fuse part is made from a Tobin bronze bar in a 2³⁄₈-inch “Gridley” multiple-spindle automatic. At the first spindle position, a drill held on the turret drills the hole, and a forming tool on the cross-slide forms it to shape and breaks it down for the cut-off tool. At the second spindle position, the piece is reamed, and at the third position it is faced off with an under-cutting tool. In the fourth spindle position, not shown, the finished piece is cut off, and the stock is fed out.
Machining the Graduated Timing Train Ring.—The machining operations on the graduated timing train ring are almost identical with the stationary ring and are shown diagrammatically to the right in Fig. 15. This part is also made from a bar of Tobin bronze in a 2³⁄₈-inch “Gridley” multiple-spindle automatic. The only difference in the operations on this part is in the use of a combination floating counterbore, and facing tool provided with a roller pilot.
Machining the Closing Cap and Bottom Closing Screw.—The closing cap and bottom closing screw for the shrapnel timing fuse are made from brass rod with a comparatively simple tool set-up as shown in Fig. 16. The machine used is a 1³⁄₄-inch “Gridley” multiple-spindle automatic. The machining operations on the closing cap are shown to the left in the illustration, and consist in drilling, counterboring, forming, threading, and cutting off. The operations [164]on the bottom closing screw, shown to the right of this illustration, are counterboring, forming, recessing, threading, and cutting off.
Making Fuse Parts on Brown & Sharpe Automatic and Hand Screw Machines.—A brief description of two of the many interesting set-ups on Brown & Sharpe automatic and hand screw machines for making timing fuse parts [165]is given in the following. Timing fuse parts are made from several different materials. The screws and other small members as a rule are made from brass rod, whereas the parts such as the capsules, primer cups, etc., are made from sheet brass. Other members, such as the fuse body or stem, are made from different alloys and metals such as copper, copper aluminum, aluminum, etc.
Set-up for Making Fuse Hammers.—The method of making a fuse hammer on a No. 2 Model G Brown & Sharpe automatic screw machine provided with a special eight-hole turret is shown diagrammatically in Fig. 17. This part is [166]made from ⁷⁄₈-inch round brass rod and is finished complete in the screw machine. First, the stock is fed out to the stop in the turret. Second, the end is centered and faced with tools held in tool-holder A. The body is then formed with a circular tool B working from the front cross-slide; at the same time the turret is revolved, bringing tap drill C into operation. The forming tool is working at the same time as the drills. The turret is again revolved and drill D for finishing the middle hole is brought in and completes its operation. At the next index of the turret, drill E finishes the bottom hole. The turret is now indexed and a recessing tool-holder carrying tool F advances and is brought into operation to recess the work by a pusher on the cross-slide. The turret is again indexed and a reamer G is advanced to bottom and ream the holes. Upon the next index of the turret, tap H threads the work, which is finally cut off with circular tool I. The stock is rotated at 973 R. P. M. forward and backward for drilling and turning, and at 421 R. P. M. forward for threading. The stock is cut off rotating backward. The surface speed for the forming tools is 220 feet per minute and 31 feet per minute for the tap.
Tool Set-up for Making Fuse Nut.—The fuse nut on the Russian timing fuse is made from 1⁷⁄₈-inch round brass rod in a No. 6 wire-feed Brown & Sharpe hand screw machine as shown in Fig. 18. First the stock is fed out to length, being gaged by a stop in a vertical slide, which is held in the turret. The turret is then indexed and drill A drills the large hole. The turret is now revolved and the combination drill B is advanced. The turret is again revolved and counterbore C faces and counterbores the work. Upon the next index of the turret, a vertical slide tool-holder carrying recessing tool D is advanced. This tool-holder is operated by a handle attached to the holder. The turret is again indexed and tap E threads the work. After this the turret is indexed and the work is recessed with a tool-holder F carrying two cutters which balance each other in cutting. The seventh operation is performed from both the front and rear cross-slides with tools G and H. The eighth operation [167]is cutting off. This is performed with a special vertical slide tool-holder held in the turret and operated by a handle. The stock for these operations is rotated at 352 R. P. M., giving a surface speed for the forming tools of 180 feet per minute and 66 feet per minute for the tap.
Making Fuse Parts on Hand Screw Machines.—The demand for shrapnel fuse parts has been so great that time has not been taken in all cases to tool up automatic screw machines before production has been started. In order to get parts out quickly while automatic machines are being tooled up, hand screw machines have been made use of. These machines are also used to a large extent on small orders and to help out production in general. Fig. 19 shows an F. E. Wells & Son Co. hand screw machine working on shrapnel fuse parts. The capacity of this machine is for ⁷⁄₈-inch diameter rod and it will tap or drill ¹⁄₂ inch diameter. Shrapnel fuse parts are produced on this machine at the rate of from 25 to 100 pieces per hour.
Drilling Percussion Primers for Fuses.—The percussion primer, used in the American combination fuse shown in Fig. 3, Chapter I, is made in a Brown & Sharpe automatic screw machine from brass rod in two operations. Following [168]the screw machine operations, four holes about ¹⁄₃₂ inch in diameter are drilled through this bushing, employing a special “snap index” jig in a high-speed ball-bearing drilling machine made by the Leland-Gifford Co. of Worcester, Mass. (See Fig. 20.) The extremely small size of this part makes it difficult to handle, so the jig was designed with a special loading arm to facilitate rapid handling. The jig consists of a platform base bolted to the table of the drilling machine. Upon this is the index ring, which is turned by handles J and indexed for the four drilling positions by spring plunger I. The center of rotation is in the center of the four holes in the part. B is the loading [169]lever, with a nest A at the end into which the work is slipped. This lever swings on stud C. The work is located in the swinging arm B when it is in the position shown in the illustration, with the arm B resting against stop D. The arm is then swung under the drill until it reaches stop E. It is maintained in this position by spring plunger H that bears against lever F, fulcrumed on stud G. The side of this lever bears against the work and holds it firmly while the drilling is proceeding. The drill is guided by four bushings in plate L, mounted on the index ring. The operation consists in rotating the index ring to the four stations for drilling the respective holes. By means of this quick-indexing ring, and the high speed at which the Leland-Gifford drilling machine runs, it is possible to drill as many as 6000 pieces, or 24,000 holes in ten hours.
[170]
Drilling Timing Fuse Plugs.—An application of a regular No. ¹⁄₂ “Avey” drilling machine, built by the Cincinnati Pulley Machinery Co., Cincinnati, Ohio, to the drilling of brass timing fuse plugs is shown in Fig. 21. The requirements are to drill three No. 55 (0.052 inch) holes through the dome of the plug; a number of pieces are shown on the table of the machine. These three holes practically run together at the inside of the dome, making it necessary to drill one hole at a time. The fixture used for this purpose is of unique construction. The body A is made of an aluminum casting, whereas the operating mechanism is of hardened tool steel. The drill spindle is operated by a foot treadle, connection being secured through rod B, passing down through the fixture and fastened to the spindle sleeve by the L-shaped piece and yoke C. The work E is held on a special work-spindle located inside the fixture that is indexed one-third revolution through the medium of rod B upon the raising of the drill spindle sleeve. The work holding-down and ejecting mechanism is supported in aluminum bracket F. Attached to this bracket is a supporting arm for the lower crank of [171]lever G, which holds a segment gear. Bracket D carries the drill bushing.
After drilling the third hole, the operator depresses lever G, rotating the segment gear meshing in rack teeth in rod H, which lifts the latter up to eject the work and at the same time through a connection, not shown, raises the holding-down rod. The ejector, not shown, which is spring-controlled, returns to a neutral position immediately upon the ejection of the work, while the holding-down rod is still raised. The work, after being discharged, falls into a chute and is carried to the rear of the machine. The operation of this fixture is rapid, the production being from 9000 to 10,000 pieces in ten hours.
Graduating Fuse Timing Ring.—As has been previously stated, the adjustable ring on the timing fuse is graduated in seconds, starting at zero and running to twenty-one seconds. As shown in Fig. 22, the graduating of this timing ring is performed in the Dwight-Slate marking machine built by Noble & Westbrook, Hartford, Conn. The main arbor of the machine carries the stamping roll A and is turned by the handle shown. The timing ring to be graduated and marked is held at B. The two gears C prevent the stamp from “creeping” ahead or slipping on the work. The work-holding arbor, as shown, is held in a bracket and is raised to the stamp roll by pressure on the foot treadle. Two operations are required for stamping and graduating the timing ring. The first is marking the graduations and the second is putting on the figures.
[172]
The brass cartridge case that contains the powder charge for propelling the shrapnel shell from the bore of the quick-firing gun is drawn up from a blank of sheet brass. The number of operations necessary to complete the case depends on its size and the method of handling. Some shell manufacturers prefer to do more or less drawing at one operation, but in all cases the sequence of operations is practically the same. The material used for shrapnel cartridge cases generally consists of a composition of 2 parts copper and 1 part zinc. This alloy has been found to possess the best physical qualities, that is, great tensile strength and a high percentage of elongation when properly annealed. The drawing operations through which the cartridge case passes increase the hardness, and the ductility of the metal is restored by annealing. The annealing temperature in most cases is from 1150 to 1200 degrees F. On reaching this temperature, the work is either cooled off in water or allowed to cool off gradually, as the speed of cooling does not affect its physical qualities. In the following, two methods of handling the various operations will be described.
Method of Making Cartridge Cases.—Figs. 1 and 2 show the sequence of operations—blanking, cupping, re-drawing, indenting, trimming, heading, and tapering, as advocated by the Waterbury Farrel Foundry & Machine Co., Waterbury, Conn., for making cartridge cases for 18-pound shrapnel. The first operation consists in cutting out a blank from ³⁄₈-inch sheet brass 6¹⁄₄ inches in diameter. The next operation is cupping. This is handled in a short-stroke geared straight-sided press. Before re-drawing, the cup is annealed, and the third operation, which is handled in a longer stroke press, is then performed. Annealing follows this operation, and then the fourth drawing or second re-drawing operation is performed. This consists in reducing [174]the fillets slightly at the corners, decreasing the diameter of the cup to 4¹⁄₈ inches and increasing its length to 4¹⁄₂ inches. The dimensions given here are approximate.
Indenting Operations.—The fifth operation or first indenting operation, which consists in indenting the bottom, is handled in a press similar to that used for the cupping and re-drawing operations. This shortens the length of the case by ¹⁄₄ inch and forces the indentation about half way through the thickness of the stock. The second indenting is then accomplished. This again shortens the case by an additional ¹⁄₄ inch and squares up the corners. The case, without annealing, is now passed through the third re-drawing, or seventh, operation, reducing its diameter to 4 inches and increasing its length to 5¹⁄₂ inches. It is annealed after this operation, and is then drawn to a shape 8 inches in length by 3⁷⁄₈ inches in diameter, and the wall decreased in thickness to ¹⁄₁₆ inch. The case is then annealed and passes through the fifth re-drawing operation. The machine used for handling the third, fourth and fifth re-draws is a long-stroke straight-sided rack-and-pinion press. After the fifth re-drawing, or ninth, operation, the case is trimmed and about two inches cut off the end. This leaves the case in better condition for the succeeding operations. The trimming machine is of the horizontal type.
Final Re-drawing Operations.—The sixth re-drawing, or eleventh, operation is performed in a horizontal drawing press of the hydraulic type provided with automatic reversing valves. This operation increases the length of the case to 13¹⁄₄ inches and reduces its diameter to 3³⁄₄ inches. After this operation, the case is annealed and then 1¹⁄₄ inch is trimmed off the open end. The thirteenth and fourteenth operations consist in heading the case. These are practically of the same nature, and combine to form the head of the case as shown in the illustration. The heading operations each reduce the length of the case ¹⁄₄ inch, and are performed in a 1000-ton hydraulic heading press operated by a geared compound power pump and having a working pressure of 5600 pounds per square inch on the ram. After heading, the case is annealed and the fifteenth operation, [176]which consists of tapering, is performed. The first tapering, or fifteenth, operation reduces the mouth of the case to 3⁹⁄₁₆ inches in diameter and gradually tapers it for a distance of 5⁷⁄₈ inches—half the length. The case is then annealed, pickled and washed, and a second tapering operation is performed. This reduces the mouth of the case to 3³⁄₈ inches and tapers it completely to the head. The case is not annealed after the last tapering operation, but ¹⁄₄ inch is trimmed off the end.
The various operations through which a cartridge case passes in drawing and forming to the correct length having been described, attention will now be given to the type of tools used for this purpose. These tools have been designed and built by the Ferracute Machine Co., Bridgeton, N. J., and are used with its presses for making cases for 3-inch projectiles.
Cupping and First Series of Re-drawing Tools.—The cutting out of the blank is frequently omitted because the specified thickness and size can be furnished by the mill. Before cupping, the dies and blanks are well greased, as this assists in drawing. Olive oil or soapy water is used, depending on the stage at which the drawing operations have arrived. The first cupping operation is accomplished with a punch and die as shown at A in Fig. 3. This operation is accomplished in a Ferracute 100-ton ram press equipped with a dial feed. The die consists of a hardened ring of tempered steel having an interior shape similar to a truncated cone. The punch is slightly tapered on the lower end and has an air vent hole drilled up through it to facilitate the drawing and produce a cup free from wrinkles.
The second operation, or first re-drawing operation, is shown at B. Here the type of die used differs somewhat from that shown at A, in that the drawing angle is 15 instead of 45 degrees. The cup, after this operation, is reduced in diameter to 3.877 inches and is 2⁷⁄₈ inches long. After the first cupping operation, the case is annealed.
The second re-drawing operation is accomplished as shown at C. The die in this case is the same as at B, as is also the punch, except for an increase in the taper and change [177]in shape on the end. The object of this, of course, is to keep the case thick at the head but reduce the walls further up along the section. The case, after this operation, is also drawn out to a length sufficient to necessitate using a stripping [178]device for removing it from the punch. This is accomplished by six spring-operated stripper pins as shown, which slip over the top edge of the case as it is forced through the die, stripping it from the punch. The cup now passes through the third annealing operation and is ready for the third re-draw, shown at D. The press used for performing this operation is similar to that described, and the die and punch is similar in construction to that shown at C.
Final Re-drawing Operations.—For the final re-drawing operations, horizontal double-ended screw presses instead of the horizontal hydraulic presses formerly used are employed. Horizontal presses are used because the length to which the cartridge case is drawn after the third re-draw is such that it exceeds the stroke of the vertical presses. The cartridge case, after each drawing operation, is annealed; E in Fig. 3 shows the fourth re-drawing tools, which are handled in a horizontal screw press. The die used is similar in shape to that shown at D, but the holder in which it is held differs, of course, owing to the difference in the type of press used. The stripping arrangement for removing the case from the punch is also of a different type. In this case five spring-operated stripper pins are held in a holder which is free to oscillate within certain limits in the block in which it is retained. The reason for having this oscillating stripper is that it accommodates itself to the irregular shape on the end of the case and gives practically a constant pressure all around the circumference of the case, assisting in removing it from the punch. The case is now annealed and is finish-drawn as shown at F. Here the same type of die, stripper arrangement, etc., is used as that shown at E. The case in the fifth re-drawing operation is 14³⁄₈ inches long by 3.186 inches outside diameter.
Annealing and Washing Cartridge Cases.—As was previously stated, the cartridge case, after practically every re-drawing operation, is annealed, being subjected to a temperature of about 1150 to 1200 degrees F. and then allowed to cool off or dipped in water which, of course, forms a scale on the surface of the case. This must be removed before any subsequent operations can take place. Several different [179]solutions are used for this purpose, but a common one comprises the following: Sulphuric acid diluted with water to a strength of 1 to 4. This pickling solution is held in lead-lined wooden troughs and the case is allowed to remain in the bath varying from eight to fifteen minutes, according to the strength of the solution. The cases are then washed in lead-lined wooden troughs through which a stream of water is circulated to remove all traces of the acid.
Testing Hardness of Cartridge Cases.—The hardness of a cartridge case must conform to a certain standard. When too soft, a permanent set will occur from the pressure of the firing charge and the case will stick in the breech of the gun. When the hardness is too high for a given composition of brass, it is too brittle and will split, or the head may blow off. There is, therefore, a certain hardness which must be adhered to as closely as possible. Some manufacturers hold the standard to within 20 to 25 on the body walls and reject cases striking 15 as being too soft, and 30 to 35 as being too hard.
Owing to the thinness of the walls of the case, it is impossible to take a reading without rigidly supporting it, and for this purpose the Shore Instrument & Mfg. Co., [180]551-557 West 22nd St., New York City, has devised a special fixture as indicated in Fig. 4. This comprises a bracket A held in an ordinary vise, to which is fastened an anvil plug B, as indicated. In order to hold the case tightly against the anvil plug, a spring C, fastened to the bracket A, is also fastened to a yoke D surrounding the case. A rod attached to the yoke and to a foot treadle furnishes a means of drawing the yoke down to hold the case in contact with the plug. The anvil plug provides the weight or inertia to resist the impact of the drop-hammer of the scleroscope, but in order to be sure that there is proper contact of the case with the plug a rubber cushion E is provided between the pressure ring or yoke and the brass case.
Machining Shrapnel Cartridge Cases.—The Bullard Machine Tool Co., Bridgeport, Conn., has designed and built a number of special machines for performing the machining work on the head and mouth ends of brass cartridge [181]cases. This machine, as will be seen from Fig. 5, is of the hand turret machine type, designed to work on the case from both ends. In this machine the brass case is chucked in the center of an extremely large spindle, and worked on from the head end with four sets of turret tools and two sets of cross-slide tools, while the mouth end is bored and [182]trimmed with tools held on a carriage located on the back facing bar. The drive for the work chuck spindle is over a 16-inch pulley with a 3-inch belt. The pull of the belt is not taken directly on the spindle, but on a special pulley bearing 7³⁄₈ inches in diameter and 5 inches in width. The spindle itself is supported in bearings 9 inches in length and 5⁷⁄₈ inches in diameter. As previously mentioned, the spindle is hollow so that any type of shrapnel cartridge case up to 4¹⁄₄ inches in diameter and from 10 to 18 inches in length can be machined.
From the construction of the machine in Fig. 5 it will be seen that the front end of the spindle carries a large three-jaw chuck of special design. These jaws catch the cartridge case just under the head and revolve it for machining. The case is supported internally by a tubular arbor which also acts as a stop and is attached to a rod extending to the rear bracket where it is backed up by a spring. The front end of this tubular support or stop is provided with a thrust ball-bearing so that the case can be loaded in the chuck while the spindle is running. When the chuck operating lever is manipulated to close the chuck jaws on the work, it first draws back the rod mentioned [183]through the medium of a tie-rod and the rear bracket to a positive stop, and then closes the jaws on the work. The cartridge case is put in and removed from the chuck with the turret indexed between stations to give the required space.
The back boring and trimming head is held on a hollow spindle through the center of which the rod passes. This [184]spindle is provided with rack teeth on its top surface which engage with a pinion located in the extension bracket and operated by a handle. The forward position of the boring and trimming head is governed by a stop-collar.
Sequence of Machining Operations on Cartridge Case.—The sequence of machining operations performed on the [185]cartridge case in this machine is shown diagrammatically in Fig. 6, and also in Figs. 7 to 11, inclusive. Referring to Figs. 6 and 7, the first operation consists in rough-drilling and counterboring the hole in the head of the case with combination tool A. The second operation (see Fig. 6) consists in facing, trimming and chamfering the head with tools B, C, and D held on the front of the cross-slide. The third operation is to finish chamfering and facing the head of the case with tool E on the rear of the cross-slide. The fourth operation consists in under-cutting the primer seat with the tool F which works on a turret slide and is operated by lever G as shown in Fig. 8.
[186]
The following operations are now performed on the mouth or open end of the cartridge case as shown in Figs. 6 and 9, with the spindle running at the same speed—500 R. P. M.—as that used for the first series of operations. Two tools H and I are used. Tool H bores the mouth of the case for a distance of 1 inch, whereas tool I trims off the open end of the case and rounds the edges. The mouth of the case at the rear end of the spindle is supported by a hardened bushing to prevent it springing away from the action of the boring tool. The boring and trimming tools are mounted in a special head J, Fig. 9, that is operated back and forth by a handle K through the medium of a rack and pinion. The forward movement of this head, as previously explained, is controlled by means of an adjustable collar L screwed onto spindle M.
[187]
The work-spindle is now slowed down and the following operations, shown in Figs. 6, 10, and 11, are performed on the head end of the case. The sixth operation is to finish-counterbore and ream the primer pocket with tool O held in an adjustable holder, whereas the seventh operation is threading the primer pocket with collapsible tap P. The chuck lever in Fig. 5 is now manipulated, first, releasing the grip of the chuck jaws on the case and, second, advancing [188]the rod to eject the case sufficiently to enable it to be easily removed from the chuck. The spindle is changed to the highest speed after the next case is put in. In changing the work, it is not necessary to stop the spindle.
Machining Shrapnel Cartridge Cases on Potter & Johnston Automatics.—The cartridge case is made from sheet brass as previously stated. It is practically formed to shape in drawing and heading machines, but to secure the desired accuracy on the head and primer pocket these surfaces are machined. The method of holding the French 75-millimeter case on a No. 5A Potter & Johnston automatic chucking and turning machine for machining the head and primer pocket is shown in Fig. 12. Here it will be seen that the cartridge case butts up against a stop B and fits over the tapered plug C, which steadies it. It is held in place by an ordinary draw-in collet D. This is operated by means of a lever E, fulcrumed to a bracket on the rear end of the machine and operating a sliding clutch collar. The chuck [189]is operated through fingers which draw back the sliding sleeve to which it is attached. These fingers operate against a spring at the rear of the spindle which serve to open the collet.
The machining operations on the French shrapnel cartridge case are handled in the manner illustrated in Fig. 13. The first operation is to rough-drill the hole in the head. The turret is then indexed, bringing in a roughing reamer which reams the hole previously drilled, whereas the front cross-slide carries tool B that faces the head and a circular tool C that rough-forms the external diameters of the head.
Upon the next indexing of the turret, the tool D counterbores the powder pocket and the circular forming tool E finish-forms and rough-chamfers the head. The last operation consists in finishing the primer pocket with a taper reamer F.
Machining the British Shrapnel Cartridge Case.—The brass cartridge case for the British shrapnel is more difficult to machine than the French case, as reference to Figs. 14 and 15 will clearly show. The machining operations are accomplished on a No. 5A Potter & Johnston automatic chucking and turning machine having a five-sided turret. The first operation is to drill the primer pocket hole with a three-step drill A. The turret is now indexed and the surfaces previously roughed out are finished with inserted-blade counterbore B. At the same time, the head of the case is faced with a relieving tool C held on the cross-slide and rough-formed with circular tool D.
The turret, in being indexed to the third position, brings vertical recessing tool E into operation. This carries two cutters, one of which recesses the primer pocket at the point where the thread is to terminate, whereas the other removes the burr and faces the inner boss. In the fourth operation, the smallest diameter of the primer pocket is reamed and the largest diameter of the hole chamfered by tools held in bar F. The rear cross-slide is advanced at the same time, carrying the circular tool G that finish-forms the head. The final operation—threading—is performed with the “Geometric” collapsible tap H.
[190]DRAWING, HEADING AND MACHINING OPERATIONS ON “18-POUND” BRITISH CARTRIDGE CASE
| Operation |
Dimensions Inches |
Machine Used |
Scleroscope Reading |
|||
| * | A | B | ||||
| 1 | Blanking | Punch Press | 15 | |||
| 2 | (300) | Cupping | 4.45 | 2.30 | Bulldozer | a, 15; b, 50 |
| 3 | (300) | Annealing | 15 | |||
| 4 | (300) | 1st Redrawing | 4.232 | 3.45 | Bulldozer | a, 15; b, 50 |
| 5 | (300) | Annealing | 15 | |||
| 6 | (300) | 2nd Redrawing | 4.081 | 4.6 | Bulldozer | a, 40; b, 45 |
| 7 | (300) | Annealing | 15 | |||
| 8 | (300) | 1st Indenting | 4.081 | 4.23 | Bulldozer | a, 18; b, 15 |
| 9 | (300) | 3rd Redrawing | 3.952 | 6.25 | Bulldozer | a, 18; b, 45 |
| 10 | (300) | Annealing | a, 13; b, 15 | |||
| 11 | (300) | 4th Redrawing | 3.844 | 7 | Bulldozer | a, 35; b, 45 |
| 12 | (300) | Annealing | 15 | |||
| 13 | (300) | 2nd Indenting | 3.844 | 6.875 | Bulldozer | a, 18; b, 15 |
| 14 | (175) | Drill Hole in Primer Pocket | Vertical Drilling Machine | |||
| 15 | (200) | Trimming and Burring | 3.844 | 6.25 | Toledo Trimmer | |
| 16 | (180) | 5th Redrawing | 3.789 | 9.75 | Frog and Switch Planer | a, 20; b, 40 |
| 17 | (300) | Annealing | a, 20; b, 16 | |||
| 18 | (180) | 6th Redrawing | 3.738 | 13.35 | Frog and Switch Planer | a, 20; b, 45 |
| 19 | (200) | Trimming | 3.738 | 11.875 | Toledo Trimmer | |
| 20 | (100) | Heading | 3.738 | 11.750 | 350 ton, C. P. R. Hydr. Press | a, 40 to 50; b, 50 |
| 21 | (180) | Annealing Mouth | a, 40 to 50; b, 25 to 35 | |||
| 22 | (300) | 1st Tapering | 3.347 | 11.875 | Bulldozer | a, 40 to 50; b, 35 to 40 |
| 23 | (300) | 2nd Tapering | 3.328 | 11.95 | Bulldozer | a, 40 to 50; b, 35 to 45 |
| 24 | (40) | Machining Mouth and Head | Bullard Case Machine | |||
| 25 | (80) | Hand Tapping | Bench Fixture | |||
| 26 | (80) | Reaming | Bench Fixture | |||
| 27 | (80) | Inspecting | Various Gages | |||
| 28 | (80) | Stamping | ||||
| * Number in brackets indicates Production Per Hour. | ||||||
| Operations: Supplementary Information | ||
|---|---|---|
| Lubricants |
Cupping, Redrawing and Indenting Tapering Machining Mouth and Head |
Viscocity Dry Mystic |
| Annealing Process (except Mouth) |
Oil Furnace—1100 to 1140 °F Water Cooling and Acid Wash |
|
| Annealing Process (Mouth) |
Oil Burner—800 °F Cool in Air |
|
[192]
Summary of Operations on Cartridge Cases.—The accompanying table gives a summary of the cupping, drawing, annealing, indenting, trimming, heading and machining operations on a British 18-pound cartridge case of a composition of 70 parts electrolytic copper and 30 parts Bertha spelter. In the plant where this information was obtained, the cupping, indenting, and first, second, third, and fourth re-drawing operations are accomplished on bulldozers, while the fifth and sixth re-drawing operations are accomplished on a frog and switch planer from which the cross-head has been removed and a special fixture substituted in its place. The punch is held rigidly in this fixture and the die on another fixture clamped to the table of the planer. Practically the same condition prevails on bulldozers. Here the punch is held rigidly, whereas the die is held in the traveling slide. As a lubricant for drawing a compound known as “viscosity,” manufactured by the Cataract Refining Co., is used throughout, except on the fourth and fifth re-drawing operations, where ordinary commercial vaseline has been found to give the best results.
The annealing is done in a Quigley oil furnace, which is kept at a constant temperature of between 1100 and 1140 degrees F. The cups are handled in sheet-iron boxes with wire bottoms carrying 140 cups. This furnace holds seven of these boxes; it requires 35 minutes for one lot of cups to pass completely through the furnace. In other words, a box is put in and taken out every five minutes, thus giving an annealing time of thirty-five minutes on each batch. After dipping in water, the cups are immersed in a weak solution of sulphuric acid to remove all scale.
Scleroscope readings are taken before and after each drawing operation, so as to ascertain whether the metal is being properly annealed or not. The blank also is tested with a scleroscope before any work is done on it, and should strike 15. The head of the shell must strike between 40 and 50, being softer at the center than at the rim. The readings are taken on four radii on the head, and at intervals of ¹⁄₈ to ³⁄₁₆ inch apart. In heading, considerable difficulty was at first experienced in securing the correct scleroscope [193]readings. Instead of the head being harder at the rim than at the center, the reverse was the case. It was found that the metal in flowing towards the center packed up to such an extent that the case was made considerably harder at this point. A method which overcame this difficulty consisted in drilling a ¹⁄₄-inch hole down through the primer pocket previous to the heading operation. This allowed the metal to flow towards the center of the head with comparatively little resistance, and hence the correct hardness was obtained at the rim, as well as in the center of the head. The machining of the head and mouth is accomplished in Bullard special cartridge case trimming machines of the double-ended type, that is, one set of tools are located in one end for machining the mouth and another set of tools held in the turret and on the cross-slide for machining the head and primer pocket. Following this, hand-reaming and hand-tapping operations are accomplished so as to get the desired accuracy and fit in the primer pocket. Inspecting and stamping operations finish the principal operations on the cartridge case.
[194]
The following specifications relating to the 3-inch Russian shrapnel shell are abstracted from the official specifications, and contain all the essential points required to be known by the manufacturer or the inspector of shrapnel shells. The specifications deal in detail with what is known as the “test consignment” of shells, the “proof consignment” of shells, and the methods of inspecting.
Clause 1. General Conditions.—The shrapnel shell consists of the following parts: steel body with copper driving band, steel diaphragm, steel fuse tube, steel fuse base, brass socket nut, bullets, two steel fixing screws, two steel threaded plugs, and a zinc plug. The selection of the material to be used for the shell and the parts is left to the discretion of the manufacturer, but on the condition that it meets the requirements given in the following specifications. Before beginning the manufacture of an order, the manufacturer must submit a test consignment of shells.
Clause 2. Test Consignment of Shells.—The selection of shells for the test consignment is left to the discretion of the manufacturer. The trials of the test consignment are carried out in the presence of the inspector appointed by the government for which the shells are made, and of the representative of the firm whose shells are tested. The methods of manufacture of the test consignment of shells must be known to the inspector and must be done in accordance with the requirements in the following specifications. All shells forming the test consignment must be similar in material and made by the same methods of manufacture.
The submission of the test consignment is not required for those firms who have already submitted one, and after the completion of an order have received a new order for the same shells, provided the mechanical conditions for [195]manufacturing the same have not been altered. Firms are allowed to begin the manufacture of the shells before delivering the test consignment, but on the condition that in the case of unsatisfactory results of the trials of the test consignment, all shells previously manufactured by the firm must be rejected.
The test consignment consists of fifty shrapnels, out of which twenty-five are tested, by firing, with a view to ascertaining their accuracy and strength, twenty-two for strength only, and three shrapnels are left for mechanical tests by breaking the test pieces made from them in a testing machine. In the case of the last three shells it is necessary to ascertain before cutting the test pieces from them that the driving bands are pressed on correctly, by removing them. In addition to this, the strength of the shrapnels is tested by exploding them in a pit. For the pit test, those shells are used which are found undamaged after being fired. For this trial, ten shrapnels are used. Before firing the test consignment of shrapnels and before the pit test, the mechanical test must be carried out, and the two first mentioned tests may be carried out only if the metal shows results answering the conditions mentioned in Clause 3 of these specifications.
The test consignment will be considered as passed if the following results are obtained:
1. If during the mechanical tests the metal answers to the conditions laid down.
2. If during firing no shell is broken in the gun or immediately in front of the muzzle.
3. If during firing no socket is separated from the shell in the gun or immediately in front of the muzzle.
4. If on cylindrical parts of the bodies of shrapnels recovered after firing no signs of the rifling are to be found. The slight impression from rifling on the central portion of the shell cannot, however, be taken as a reason for the rejection of the shell, provided that it is noticed only on one-half of the circumference.
5. If shrapnels recovered after firing do not show any dent in their bases or shearing of the socket, or if the increase [197]in the diameter of the cylindrical part of the body does not exceed 0.010 inch.
6. If shrapnels recovered after the firing do not show in more than 15 per cent of the cases the protrusion of the upper end of the central tube from the countersink of the brass socket nut. All these shrapnels must be dismantled for the inspection of the central tubes; the central tubes must not show any considerable sign of buckling, cracks or protrusion into the powder chamber.
7. (a) If during pit test, shrapnels do not show any breaking away of the bases, if their bodies be found intact, and if the same results be found on the shrapnels picked up after firing.
(b) If out of ten shrapnels tested in the pit not more than three show broken bodies.
8. If shrapnels do not show the separation of driving bands from the shell, nor displacement of same, if loosely fixed, and the accuracy of the firing in a vertical plane be not below the requirements given in Clause 19. The signs of the rifling on the driving bands of the recovered shells should be correct and not enlarged.
If the results of the trial of the test consignment give unsatisfactory results with reference to any of the above seven first conditions, or to all of them, the firm will be allowed to submit a second test consignment. In the case of unsatisfactory results of the test consignment with reference to the eighth condition, the firm has the right to submit additionally twenty-five shrapnels for accuracy firing trials only, but these shrapnels must also answer to the other seven conditions. If the trials of the test consignment show satisfactory results, the firm may proceed with the manufacture of shrapnels, but under the condition that the material and method of manufacture will be similar to those used for the manufacture of the test consignment.
In the case of unsatisfactory results of the test of the second test consignment, the contracting government has the right to cancel the order with the firm for delivery of the shrapnels in question. All the test consignments of shrapnels must be at the contracting firm’s expense.
[198]
Clause 3. Breaking Tests of the Material used for Bodies.—These tests must be carried out at the works where shrapnels are manufactured. Three flat test pieces must be cut from the cylindrical portion of the body parallel to its axis and immediately above the driving band. The dimensions of test pieces are as follows: Width, 0.750 inch; thickness, 0.150 inch; distance between marks, 2 inches. The outline and dimension of the ends must suit the holders of the testing machine. The metal of the bodies will be considered satisfactory if it shows a breaking strength of 82.7 kilograms per square millimeter (52.5 tons per square inch) with a final elongation of not less than 8 per cent. In addition to this, the inspector must select two bodies from the test consignment before the beginning of final machining for cutting from the round test pieces with a diameter of 0.3 inch, length 2 inches between marks, three test pieces being cut from each shell. The breaking test of these test pieces must be carried out on the testing machine, and the elastic limit of the material must be ascertained on them.
Clause 4. The Proof Consignment of Shrapnels.—As mentioned, the shrapnels under order must be manufactured from similar material and by similar methods to the shrapnels of the test consignment. The acceptance of shrapnels for the service, however, can be effected only after “proof tests” of the mechanical qualities of the metal used, of the accuracy of firing, and of the strength and proper assembling, and pit tests.
The whole order is sub-divided into consignments of 5000 shrapnels each. The method of manufacture of the shrapnels must be entirely the same for the whole consignment.
In the case of the order being placed for a number of shrapnel less than 5000, the whole order will be treated as one proof consignment; in the case of the order being placed for a larger number of shrapnels, the remainder from a full proof consignment must be treated as a part of the previous consignment, when it is less than half of the proof consignment, and must form a separate proof consignment when it is more than half of same.
[199]
The choice of shrapnels for proof must be made by the inspector personally from the proof consignment submitted by the firm. The choice must be made after final inspection of the whole consignment. The works have the right to challenge the shrapnels chosen by the inspector for the proof, having the right to do it only twice. The shrapnels challenged in that manner must be destroyed, so as to prevent any further submission of same for proof. The shrapnels challenged must be replaced by the firm.
For the mechanical tests of the metal, it is recommended to select bodies which were rejected on account of their dimensions, but in the case of the absence of any bodies rejected for the dimensions, the works must provide good bodies selected by the inspector. Not less than ten bodies must be chosen from the proof consignment. The rules and requirements for the metal used for the shrapnel bodies were given in Clause 3.
In the case of satisfactory results of these mechanical tests, the firm must submit from each proof consignment fifty shrapnels for the firing trials for their strength. After firing trials, the pit tests must be carried out, for which proof recovered shrapnels which do not show any damage after firing will be used. Ten shrapnels must be used for pit tests.
All proof tests must be carried out in the presence of the inspector sent for this purpose to the works, and the mechanical tests of the metal must be carried out by the inspector himself. The projectiles used for the proof firing must not be painted but only covered with machine oil.
The consignment will be accepted if the mechanical or firing proof tests fulfill the same requirements as have been laid down in Clause 2, Conditions 1 to 8, with the exception that in Condition 6, in the case of the proof test, 20 per cent, instead of 15 per cent, as in the case of the consignment test, may show protrusion of the upper end of the central tube from the countersink of the brass socket nut.
If, during firing, breakages of the shrapnels in the gun or immediately in front of the muzzle should occur, the whole consignment must be rejected.
[200]
In the case of unsatisfactory results with reference to trials mentioned in Clause 2, Conditions 3, 4, 5, and 6 (which must not be more than one shell with reference to Conditions 3, 4, and 5), the firm has the right to submit 100 additional shrapnels chosen by the inspector for the firing for recovery proof. If during pit tests more than three shrapnel bodies are broken, an additional five shrapnels must be subjected to the same test, but for the acceptance of the consignment it is required that, in total, no more than five broken shrapnel bodies occur.
With reference to damaged or displaced driving bands, or the impression of the rifling on them not being clear, or being enlarged, it is left to the discretion of the contracting government to demand the changing of the driving bands on the whole consignment, after which rebanding they must be submitted for second proof, twenty-five shrapnels being tested for accuracy: these shrapnels must be chosen by the inspector after reviewing the whole consignment. If during the secondary firing trials which take place on account of failures with reference to any one of the above-mentioned reasons, further failures to the same effect take place, the question of the acceptance of the whole consignment must be referred to the respective military administration.
In the case of the failures of both trials, first and secondary, the permission for the further manufacture of projectiles by the firm in question will be left to the discretion of the respective military authorities.
In the case of the acceptance of the consignment after the proof, the shrapnels used for the proof in question, fifty in number, must be taken from the order. Any other shrapnels, used for proof in addition to the above-mentioned number, must be at the expense of the manufacturer.
Clause 5. The Rights and Duties of the Government Inspector.—The inspector’s duty consists not only in the acceptance of the manufactured shrapnels, but also in looking after the methods, etc., used in the manufacture. In order to do this, the inspector must be given the right of access to any work and test referring to the shrapnel manufacture.
[201]
The inspector has the right to inform the manager of the works of all defects noticed by him in manufacture of the shrapnels, as well as of those which occur in the shrapnels submitted for acceptance, and he has the right to suggest improvements to the manufacturer; it is left to the discretion of the manager of the works to make use of these suggestions, if it is found advisable, but the inspector has not the right to interfere with the orders issued in the works.
Before submitting to the inspector the shrapnels manufactured the works must pass them by their own examiners; these examiners must work to the instructions given to them by the works, and prepared to the inspector’s satisfaction. The inspector has to gage shrapnels by the gages stated in the following specifications. He also must check them with reference to their dimensions, as given on the drawings, before beginning inspection.
Clause 6. The Condition in which Shrapnel Bodies are Submitted.—Steel shrapnel bodies are submitted to the first inspection without socket, driving band, and inner parts. The outside cylindrical portion of the bodies as well as the enlarged centering portion must be machined and finished; shrapnel bodies must be submitted with grooves for driving bands and with other grooves in the base of the shell.
The rounded portion of the bodies above the enlarged centering portion must be machined only preliminarily. The inside of the bodies must be finish-machined, and the shoulder for the diaphragm as well as the cylindrical portion of the body against the diaphragm must be properly finished; the upper part of the inside surface must be provided with threads for socket. The remaining portion of the inside surface might be roughly machined. The base of the shrapnels may be left with a boss outside with center marked on it, but the remaining portion of the base must be finish-machined. This applies to the first inspection.
Clause 7. The First Inspection of Shrapnel Bodies.—The surface of the enlarged centering portion must be perfectly smooth and the cylindrical portion of the bodies must not show any tool marks, except slight ones. The [202]outer surfaces of the central portion and the enlarged centering portion must be polished. Special care must be taken in polishing the enlarged centering portion. The inside surface of the bodies must be clean and smooth. The outer and inner surfaces of shrapnels must not show any cracks, fissures, or black lines (not even the very slightest of these), nor burrs. The inner surface of the bodies may show separate dents due to slag, but these dents must be of a very slight nature. The thread in the upper end of the bodies for the socket must have at least five full turns.
Clause 8. The Checking of the Weight of Shrapnel Bodies.—Out of each one hundred bodies submitted to the inspector, at least ten bodies must be weighed. These weights will assist the inspector with reference to the dimensions of the bodies, and might draw his attention to the dimensions of those parts for measuring of which there are no gages provided. In addition to this, during the manufacture of the test consignment, the inspector must ascertain the mean weight of the shrapnel bodies in this consignment, as well as any possible variation in any direction.
Clause 9. Inspection and Test of Copper for Driving Bands.—Pure copper is used for the driving bands. It must be of the best quality, and hard drawn; ordinary copper, not drawn, must not be used for driving bands. The copper strips must be cut into pieces of the lengths required for their placing on the shrapnels. The copper strips must be submitted to the inspector for acceptance and for the following tests:
1. The strips must be bent double in cold condition until the ends meet; when the ends meet, the strip is hammered until both halves are flat; if during this test the strip does not show any cracks or breakages, the metal will be considered as accepted.
2. The strip is hammered in cold condition until its thickness is reduced one-half; after this trial it must not show any fissures or cracks.
Not more than 1 per cent of the strips submitted must be subjected to the above tests.
[203]
If it is found that any of the strips tested will not stand the tests, the whole consignment of strips is rejected, or is returned to the firm for reviewing, so as to give the firm the possibility to submit again that part of the consignment which might be considered good. During secondary test another 1 per cent of strips will be chosen, and in the case of any failures the whole consignment will be finally rejected.
In case of satisfactory results in the tests mentioned, the inspector examines the copper strips so as to ascertain that they are of proper cross-section; special notice must be taken with reference to fissures. Fissures exceeding one-tenth of the strip in length are not allowed. The inspector must examine 20 per cent of all strips, and, during this examination, if even one strip be found with fissures longer than mentioned, the whole consignment of strips will be returned to the firm for reviewing. If during secondary examination the inspector finds even one fissure exceeding the mentioned length, the whole consignment of copper will be rejected.
Clause 10. Fixing of Driving Bands.—To prevent cracks in shrapnel bodies during the fixing of the driving bands, a mandrel must be placed inside the bodies, and this mandrel must fit the inside surface of the bodies tightly. The inspection of the grooves must be carried out by means of the gages made by the firm to suit the inspector’s requirements. To facilitate the fixing of the driving bands on the shrapnel bodies, the bottom of the grooves may be provided with waved ribs. The depth of these grooves must not exceed 0.005 inch. The width of the surface with the waved ribs is left to the decision of the firm and inspector.
The method of fixing the driving bands is left to the discretion of the firm, the only requirement being that the order must be manufactured by the same methods as used for the manufacture of test consignment, provided that the firing trial of that consignment was satisfactory. The number of shrapnels supplied by the firm for this firing and for the inspection of the driving bands is mentioned in Clause 2. If the firm is proposing to alter the method of [204]the fixing of the driving bands, it must submit, at its own expense, a test consignment of 25 shrapnels for firing trials.
During the manufacture of the order for shrapnels the inspector has the right to choose, if he thinks it necessary, from each consignment submitted to him, not more than 1 per cent of the projectiles for the removal of their driving bands, in order to ascertain how close they are to the shrapnel bodies. The inspector also has the right to demand an accuracy trial with some of the above-mentioned shrapnel, but in this case he must give detailed reasons for doing so. If the results of this firing are unsatisfactory, the military authorities have the right to demand the replacement of driving bands on the whole order.
Clause 11. Secondary Inspection of Shrapnel Bodies after the Firing of Driving Bands.—The shrapnels are submitted for the secondary inspection with fixed driving bands, finished sockets, steel diaphragms in place, central tubes and socket nut, but without socket fixing screws, as well as fuse fixing screws. The central bosses on the base must be cut away in cases where the shrapnels were submitted with them for the first inspection. The powder chamber, lower portion of steel diaphragms, and inner surface of central tube must be covered with durable varnish.
During this inspection special care must be taken to ascertain the proper fixing of the driving band. The proper fixing of the driving bands is ascertained by (1) sounding them with small hammers, and (2) removal of driving bands from some shrapnels, preferably those rejected. The driving bands when being sounded with hammer must not make any jarring sound. The jarring sound is only allowed at the joint of the driving band, for not more than one-tenth of its length; the bands not answering to these conditions must be replaced by new ones. The driving bands, after being removed from the shrapnel, must have impressions of the waved grooves on the bottom of the groove; the inside surface must not show the pink color of the unused copper, but must be smooth and give a slight reflection.
[205]
When removing the driving band, special attention must be paid to the fact that the bands fit properly into the sides of the groove, and that they are close to the shrapnel bodies. In the case of copper strips being too wide, the shrapnel bodies show cracks, sometimes on account of the method of fixing and sometimes on account of too high a pressure. These cracks can be ascertained by sounding the shrapnels with a hammer; the cracked shrapnels will make a dull sound. Such shrapnels must be rejected.
During secondary inspection, the inspector must ascertain the following facts:
1. If the powder chamber, lower surface of steel diaphragms, and inner surface of the central tube are varnished; if steel diaphragms fit properly in the corresponding place of the shrapnel bodies; steel diaphragms must bear on the lower surface of the shoulder and must be in close contact with the inside surface of the shrapnel bodies. Special care must be taken with reference to the tight fitting of the steel diaphragms.
2. The base of shrapnel bodies must be absolutely smooth; attention must be paid to the presence of rough surfaces; black spots, cracks, or any damages, which are not allowed on the site of the central boss; shrapnel bodies with such defects are not allowed.
The final finishing of the driving band may be done after the shrapnels are nickel-plated, at the discretion of the inspector.
Clause 12. Inspection of Steel Diaphragms.—Diaphragms are made from steel stampings under the hammer or press. The metal, with reference to the mechanical qualities, must meet the requirements set forth for the shrapnel bodies (see Clause 3). The holes for the central tubes must be drilled; these holes must be made with a shoulder for the central tube; the outer surface of the diaphragm, as well as the shoulder of the hole for the central tube, must be accurately machined. The diaphragms must not show any cracks or other defects.
The test of the metal for the diaphragms consists of hammering them by the dropping of a weight from a certain [206]height. The number of blows which the diaphragms can stand without any cracks must be ascertained by the inspector during the manufacture of the test consignment of shrapnels. In addition to this, the quality of the metal must be ascertained by the Brinell test. During firing, the diaphragms must not show any dents; this fact must be ascertained on some shrapnels recovered after the firing.
The manufacturer must supply the inspector with ten diaphragms for the mechanical tests of material. These diaphragms will be chosen by the inspector from the total number of diaphragms for the whole consignment. For the hammering tests, not more than one per cent of the total diaphragms must be chosen, and the Brinell test must be carried out on not less than one per cent of the whole number of diaphragms. In the case of satisfactory results, the whole consignment is accepted; otherwise, additional tests on two per cent of the diaphragms must be carried out, and in the case of unsatisfactory results, even on one diaphragm, the whole consignment will be rejected. Diaphragms must be submitted for inspection in quantities not less than 200. The lower surface of the diaphragm must be varnished after inspection.
In the case of the manufacturer being allowed to make shrapnels without submission to test consignment, as per Clause 3, the inspector must test the diaphragms as usual.
Clause 13. Inspection of Central Tube.—The central tubes must be made of steel, must not show any cracks, must be properly welded, and must be of similar thickness on the whole length. For the purpose of ascertaining the mechanical qualities of the metal used for the central tubes, small cylinders ⁵⁄₈ inch in length (1¹⁄₂ times the diameter of the tube) must be cut from some of the tubes which have been previously properly measured; these cylinders must be subjected to a compression test under the press. The minimum resistance shown by these cylinders under compression, before the beginning of buckling, must be not less than 14.45 tons per square inch. The outer as well as the inner surfaces of tubes must be smooth and their ends must be cut perpendicular to their axes. The length of the [207]tube is ascertained during the assembling of the shrapnel. In the assembled shrapnel, the upper end of the central tube must be inside of the countersunk hole provided for in the socket nut.
Clause 14. Inspection of Sockets.—Sockets must be manufactured from steel. The breaking strength of steel used for sockets must be of about 60 kilograms per square millimeter (38.1 tons per square inch), with an elongation not less than 16 per cent (the distance between marks being 2 inches). Sockets are submitted for inspection in quantities of not less than 100; they must be tapped with thread on the inside as well as on the outside surfaces; the conical portion of the surface must be machined; the upper surface must be machined, but this machining may be left rough at this stage; those parts of the sockets by which they are fixed to the shrapnel bodies must be accurately machined; the sockets must be accurately cut. The sockets must be provided with two holes, one for filling with resin, and another one for the escape of gases. If sockets are stamped, the outer surface of the stem can be left without machining, but it must be very smooth. The upper surface of the sockets may be submitted to the inspector without being finish-machined. The sockets must not show any signs of cracks, fissures or any rough surface. Chipping in the thread of the hole or on the conical fuse seat may be allowed, but of a very slight nature.
To ascertain the mechanical qualities of the metal used for sockets, the inspector has the right to carry out the tests on one per cent of the sockets from each consignment. For this purpose, rings must be cut from the upper portion of the sockets, and these rings are subjected to the hammering test by a weight dropped from a certain height. In addition, the sockets must be tested with the Brinell test, and for this purpose not less than 1 per cent of the sockets must be used.
Clause 15. Inspection of Brass Socket Nuts.—The socket nuts must be cast of an alloy consisting of 2 parts of copper and 1 part of zinc, taken by weight. The socket nuts are submitted to the inspector after being finally machined, [208]threaded, with finished upper and lower surfaces, with central hole made to the drawing, and with slot for the key. Socket nuts must not show any defects.
Clause 16. Bullets and Smoke Compositions.—Bullets must be of a true spherical shape; they must be cast of an alloy consisting of 4 parts of lead and 1 part of antimony, taken by weight; sprues must be cut off, and the surface of the bullets must be smooth. The diameter of the bullets is 0.5 inch; mean weight, 0.376 ounce. Separate bullets may differ from the mean weight, but they must not be less than 0.373 ounce, and not more than 0.381 ounce. Under slight hammering the bullets must not show any cracks. The force of the blow must be decided by the inspector, the reason for this test being to ascertain if the bullets can be used in shrapnels where they are slightly compressed, as after this pressure they must not show any cracks. Shrapnel must contain from about 256 to 265 bullets.
The bullets must be placed in proper layers, and each layer must be slightly pressed in, but after this pressure bullets must not be deformed to any noticeable extent, except those in the bottom layer. Layers consist of 17 or 18 bullets, except the top layers, which have about 20 bullets each. The five bottom layers of bullets must be covered with smoke composition made of metallic antimony and magnesium in the following proportions, by weight: 55 parts of antimony and 45 parts of magnesium; 0.75 ounce of smoke composition must be put in each shrapnel. This composition must be put in after the first five layers of bullets are in place, and the shrapnel must be shaken in order to settle the powder. The smoke composition must ignite very quickly. The inspector must see that the composition is made from the magnesium and antimony as stated above. With bullets in place, and with socket in proper position, the shell must be filled with melted resin.
Clause 17. The Third Inspection of Shrapnels and Checking of Their Weight.—The shrapnels for the third inspection are submitted after being fully assembled and charged with the bullets and smoke composition, and after being filled with resin; the holes in the sockets used for [209]filling with resin and for the escape of gases must be stopped with threaded steel plugs. These plugs must be riveted over and polished flush with the surface of the socket.
During the third inspection, the shrapnel is gaged with special gages to check shape; the hole for the fuse is tested by a special screw gage; copper driving bands must be inspected and gaged. After this inspection the shrapnels are weighed. The shells which show the ends of the driving bands not completely touching each other, may be accepted if the distance between them is very small.
The outer surface of the socket must be finish-machined and must be smooth and perpendicular to the center line of the fuse socket. The socket must be fixed by means of steel screws, the outer ends of which must be cut flush with the surface of the shrapnel, and polished over.
During this inspection, the inspector must ascertain that the head portion of the shrapnels does not show any cracks due to the drilling and tapping of the holes for the screws. The head of the shrapnel must be provided with a tapped hole for the fuse securing screw. The head of this screw must be flush with the shrapnel bodies. The upper end of the central tube must fill completely the countersunk part provided for it in the socket nut, if it is in proper position. The steel gage rod dropped into the opening of the central tube must reach the base of the shrapnel.
To ascertain the proper assembling of the inner part of the shrapnels, the inspector has the right to demand dismantling of not more than 0.5 per cent of the shrapnels submitted. While inspecting the dismantled shrapnels, the inspector must ascertain the following points:
1. If the thread of fixing screws for socket and fuse, as well as the threads in holes for them, are cleanly cut, and if the length of these screws is sufficient.
2. If the socket remains steady when screwed into the shrapnel bodies, before being fixed with screws.
3. If the end of the central tube remains clean and the central tube itself is not damaged by the bullets.
4. If the bullets are covered with resin and if the shrapnels are filled with smoke composition.
[210]
5. If the number of bullets is correct, and also that they are not appreciably damaged after pressing.
6. If the steel diaphragm is in the right position in the shrapnel.
After the third inspection the shrapnels must be weighed; the normal weight of the assembled shrapnels, without zinc plugs, must be 13 pounds 7.33 ounces ± 1.053 ounce. All shrapnels passed by the inspector must be stamped on the base.
Clause 18. Nickel-plating, Varnishing and Oiling.—All the outside surfaces of the shrapnel with the exception of the copper driving bands must be nickel-plated and varnished. This nickel-plating and varnishing must be durable. The manufacturer must take steps to prevent the passage of the liquid inside of the shrapnels during nickel-plating. The shrapnels must be inspected by the manufacturer after being nickel-plated so as to ascertain that no liquid passed inside the powder chamber, and, if necessary, the chamber must be cleaned. The shrapnels must be submitted for final inspection after being nickel-plated and varnished.
The socket in the front portion of the shrapnel must be oiled and covered with the zinc plug shown in Fig. 1; the socket must be fitted with fixing screws for the fuse; the screws must be oiled with naphtha grease. The copper driving bands must be gaged during this inspection. While inspecting the shrapnels, the inspector must see to the following points:
1. That the driving bands are not damaged; shrapnels with damaged bands must be returned to the works for new bands.
2. That the nickel-plating of the shrapnels is sound and that the nickel-plated surfaces do not show any signs of rust.
3. That the fixing screw for the fuse is properly cut; the top of this screw, when screwed completely down, must slightly protrude over the surface of the shrapnel. The threads must be Whitworth, 24 threads per inch. A plug and ring gage must be provided for gaging this thread.
[211]
4. That the socket is free from rust.
5. That the powder chamber, as well as the inside of the central tube, is clean.
The zinc plug must fit properly to the upper surface of the fuse socket. The copper driving bands must be oiled with naphtha grease to prevent them from corroding. The shrapnel, before shipping from the works, must be packed in strong wooden boxes. The details of the packing is left to the discretion of the manufacturer, provided that it is approved by the inspector. While packing, care must be taken to place driving bands in guards to prevent their being damaged by knocks from the outside, or from rattling one against the other, or against the packing during transport.
The number of shrapnels packed in one box must not exceed, in weight (box included), 253 pounds.
When shipping the manufactured shrapnels from the works, two spare fuse fixing screws must be put in every box. Spare zinc plugs, 5 per cent of the total number supplied, must be delivered together with order and packed in separate wooden boxes, 50 in each box.
Clause 19. Firing Tests.—The works must deliver the required number of shrapnels to the place where they will be tested. The proof by firing will be carried out with a 3-inch quick-firing gun with a charge of smokeless powder, and with chamber pressure of 2400 atmospheres (15.75 tons per square inch).
The recovery proof must be carried out without bursting charge, but the shrapnels must be fitted with time fuses. When time fuses are not available, the proof must be carried out with steel or brass dummy fuses similar to those used for accuracy trials. These dummy fuses must be supplied at the expense of the firm. Every shrapnel must be weighed and the weights taken down.
The time fuse must be set a distance of from 1400 to 1635 yards. It must be noticed whether or not the fuse explodes. To obtain the best conditions for observation, the firing must take place with sight set up 10 divisions higher than is required by the range. Up to one-third of [212]the shrapnels proved for recovery must be fired with bursting charge, so as to ascertain that they are properly assembled. The fuse socket in the last mentioned cases must be plugged with dummy fuses.
The firing must be carried out at such a range as to enable the recovery of the shrapnels for inspection and measuring of same; all shrapnels, before firing, must be measured on their cylindrical portion and the accuracy of the base must be ascertained, in order to facilitate notice being taken with reference to the bulging of the bodies and bases of the shrapnels. The diameters of the cylindrical portion must be taken in sections two inches apart. Marks must be made on the copper driving bands and on the cylindrical part of the shrapnel bodies adjacent, to facilitate notice being taken of the displacement of the driving band, if such takes place.
For accuracy trials, shrapnels without time fuse must be used, and special steel or brass dummy fuses must be screwed in; the outline and weight of this dummy must be similar to that of the fuse, and the weight of the shrapnel with such dummy must be 14 pounds 5.33 ounces. These dummy fuses must be made by the manufacturer at his expense. The accuracy trials must be carried out by aiming the gun at a vertical target at a range of 2335 yards.
After the firing trial for recovery and for accuracy, the maximum possible number of shrapnels must be recovered and inspected, as to any marks from the rifling on the shrapnel bodies, any dents or damages on bases or heads, any displacement of the driving bands or any shrapnels with broken off bases. To ascertain the accuracy of fitting of the steel diaphragms, and the condition of the bullets, two shrapnels must be dismantled. In addition, all those shrapnels which have displaced central tubes must be dismantled. The shrapnels must be measured on their diameter in order to ascertain the deformations. A pit test must also be carried out. The shrapnels must be fully loaded for the pit test and must be fitted with ordinary zinc plugs screwed into the fuse sockets.
[213]
The following specifications contain all the essential information relating to the Russian aluminum 22-second combination or double-acting fuse for shrapnel shells used in 3-inch quick-firing field and mountain guns, as given in the official specifications. This chapter, therefore, contains a complete description of every part used in the fuse, together with complete details relating to the manufacture, inspection, and tests.
Component Parts of Fuse.—The fuse consists of over thirty separate parts, the names of each of which are specified in the table below, together with their weights.
| FUSE PART |
Weight in Ounces, Avoirdupois |
| Stem (with cloth) | 3.7166 |
| Chamber bushing with needle for percussion detonator cap (without powder) | 0.1971 |
| Bushing with needle for time detonator cap | 0.0331 |
| Plug (brass) in the flange of the stem | 0.0150 |
| Upper time ring (complete with powder; for filling in both upper and lower time ring 0.24075 ounce avoirdupois of powder (fuse) are required; for 1000 fuses, the following quantities of fuse powder are required: for pressing into the time rings, approximately 16.25 pounds avoirdupois; for powder pellets in the vents of the lower time ring, approximately 3.912 ounces avoirdupois) with powder and parchment | 1.1586 |
| Lower time ring (see note in parenthesis on upper time ring) with powder, asbestos, pins, and tin disk | 1.1496 |
| Nut | 3.6278 |
| Two set-screws for nut | 0.0361 |
| Tightening ring (split) | 0.5492 |
| Time detonator (assembled) | 0.2632 |
| Time detonator parts: | |
|
Pellet Rod Spiral brass spring Cap |
0.1429 0.1023 0.0030 0.0150 |
| Safety bushing for the time detonator (the bushing for the time detonator for mountain guns weighs 0.0677 ounce avoirdupois) | 0.1128 |
|
[214] |
|
| Percussion detonator (assembled) | 0.4514 |
| Percussion detonator parts: | |
|
Pellet Brass bushing Lead disk (washer on flange) Cap |
0.3671 0.0451 0.0226 0.0166 |
| Safety arrangement for percussion detonator: | |
| Brass safety stirrup with brass control spring | 0.0481 |
| Steel spiral spring | 0.1655 |
| Lock bushing for the safety stirrup for percussion detonator | 0.5597 |
| Base plug with counter safety lug and brass disk | 0.5718 |
| Lead disk | 0.1520 |
| Powder for the chamber bushing and transmitting duct of stem | 0.0572 |
| Mean weight of complete and ready-for-firing fuse for 3-inch field gun | 2.8628 |
| Mean weight of complete and ready-for-firing fuse for 3-inch mountain gun | 2.8177 |
| The weights of the additional parts not included in above list are: | |
| Tin protecting cover with tape | 1.0533 |
| Copper wire for removing the cover | 0.1053 |
| Shell grease for lubricating grooves of stem | 0.0196 |
Design and Construction of Stem.—The stem is to be cast of aluminum (or an alloy of aluminum and copper) and pressed. The top of the stem is to be turned on the outside into three cylindrical shoulders, the upper one being threaded for receiving the nut; on the surface of the two upper shoulders, parallel to the axis of the stem, three guiding grooves are milled. The base of the stem top serves as a turning axis for the lower time ring. The interior of the top of the stem is to be bored out to form three cylindrical chambers, the lower of which is threaded to receive the brass bushing with the conical steel needle; the latter is lacquered and inserted into the bushing from the bottom, its head being riveted. To prevent the unscrewing of the bushing, the latter is nipped in two places. A vent is drilled through the wall at the top of the stem.
The upper face of the flange of the stem has a rim on its circumference, and on a radius located in a vertical plane with the vent of the stem top, a transmitting duct is drilled, reaching from the lateral surface of the flange to the powder chamber of the fuse; the upper face of the flange communicates with this duct through an ignition hole pasted [215]onto the top with a muslin disk. The transmitting duct (covered with a neutral varnish) is filled, in the assembled fuse, with grain powder (for 100 fuses, about 3.84 pounds avoirdupois of unpolished rifle powder is required) and closed with a brass plug. On the lateral surface of the flange two annular grooves are milled out, the lower of which has four recesses for staking in the tin cover.
On the lower face of the flange (two marks shall be placed on this face, one giving the last two digits of the year of manufacture of the fuses, and the other the number of the control consignment of the same year), at the ends of a diameter, two slanting cuts are milled for the wrench which screws the fuse into the shrapnel. On the same lateral surface a conical mark is cut, colored red, for the setting of the graduations of the fuse; on the top face of the flange a cloth washer is pasted, with a hole punched in it over the ignition hole. The cloth is pasted with a special thick varnish which is also used for pasting the twilled tape to the cover. The varnish consists of white resin, shellac and turpentine soluble in alcohol. Through the lateral surface of the flange a hole is drilled, leading to the lower face of the flange and intended for fastening the copper wire for tearing off the cover.
The tail of the stem is shaped with a smooth cone on the top and a threaded cylinder at the bottom; the interior of the tail is to be bored out to form three cylindrical chambers, the upper and lower of which are threaded to receive the chamber and the base plugs, and the smooth, middle one, is intended for the percussion arrangement.
The Chamber Bushing.—The chamber bushing (brass) has four holes in its bottom for transmitting the flame into the interior of the shrapnel shell, and one central hole into which the varnished steel needle is screwed from the top. The lower face of the bottom of the bushing is recessed for locating the compressed brass counter spring of the percussion safety stirrup. The inside surface of the bushing is covered with neutral varnish, and, before filling it with powder, a muslin and wax paper disk are deposited at the bottom. The powder in the bushing is compressed slightly, [216]to prevent its scattering in handling, before screwing the bushings in their places. The screwed-in bushing is nipped in two places and its wall is drilled through the transmitting duct, before charging the latter, for exposing the powder in the bushing.
The Time Rings.—Both time rings are cast from an aluminum-copper alloy (copper from 2¹⁄₂ to 3 per cent) and stamped in a die; on the under side of each ring a groove with an intervening bridge and semicircular arch is formed by first stamping it in a die and then milling it. The grooves are coated on the inside with Ossovetski’s neutral varnish, and fuse powder pressed into them. The portions filled with powder are then turned off and a thin, parchment washer pasted on their under surface with a neutral varnish. The parchment of each time ring is punctured over the transmitting hole, to hasten the transmission of the flame in grape-shot firing.
The upper time ring is turned on the inside to form two cones connected by a circular section; the lower cone also terminates into a circular section having three protruding lugs fitting into the three slots of the stem top, thus allowing the time ring to slide vertically only along the axis of the fuse. On the upper side of the time ring an annular groove is to be turned for the reception of a soaked leather washer. From the lower cone of the time ring an oblique hole is to be bored, near one end of the bridge (left end in looking at the lower end of the time ring) communicating with the transmitting hole drilled through the composition groove. Through this oblique hole the composition is ignited from the time detonator cap of the fuse, assisted by the powder preparation pasted by means of alcohol varnish on the side wall of the hole next to the bridge. From the circular section connecting both cones of the time ring to the under side of the same, four gas escape holes are provided, facilitating the escape of the gases from the burning lower time composition.
The lower time ring is turned on the inside, providing a slight cylindrical shoulder fitting on the base of the stem top and turning freely around same. At one end of the [217]intervening bridge (opposite the one in the upper ring) a transmitting hole is drilled through the bottom of the composition groove of the time ring, transmitting the flame from the upper to the lower composition. To insure the ignition of the composition, a powder pellet with a central hole is inserted into the transmitting hole. From this transmitting hole, a gas escape hole, located on a radius of the time ring is provided, which at its base has a bursting charge of powder (varnished) pressed into it, plugged up with asbestos, and covered with a foil ring pasted with varnish. This hole facilitates the escape of gases from the burning composition of the lower time ring. The asbestos plug prevents the possibility of a premature ignition of the lower composition from the upper one, and the powder charge is intended for an immediate clearing of the plugging at the gas escape hole soon after the ignition of the lower composition through the transmitting hole. The lateral surface of the lower time ring is provided with:
1. Four pairs of pins inserted into corresponding holes for the setting of the fuse by hand.
2. Two holes for a wrench, if same should be required for setting the fuses.
3. Graduation from 10 to 130.
4. Separate graduation marked with the digit “5.”
5. One notch marked in red and one notch marked in black with letters as directed by the contracting government.
The upper side of the lower time ring is covered with a cloth washer having an opening opposite the transmitting hole.
The Brass Nut.—From the outside, the nut presents a rounded surface terminating into an umbrella. Inside the nut a thread is cut for screwing onto the top of the stem; the threaded hole opens into an oval cylindrical cavity communicating with the outside atmosphere by means of four openings in the neck of the umbrella. The edges of these four openings are milled out on a side opposite to the direction of the rotation of the shell to facilitate the escape of gases. At the bottom of the nut an arch-like annular recess [218]is milled out for the accumulation of gases from the burning compositions of the time rings, whence they escape into the above-mentioned oval cylindrical cavity through four inclined channels, and then out of the fuse through the openings in the neck of the umbrella. The nut is provided with two brass screws for securing it in place, after being screwed home on the top of the stem.
Upper Percussion Arrangement.—The upper percussion arrangement consists of a brass time pellet and safety ferrule; the time detonating cap is inserted into the pellet and is held in place by means of a brass rod and brass spiral spring wound on the head of the latter. The safety ferrule is a hollow cylinder with a side slot, resting on the shoulder between the upper and lower chambers of the stem top. In its outside appearance the time pellet represents a cylinder of two different diameters connected with a conical slope; with the latter, the pellet resting on the conical enlargement of the ferrule. The lower cylindrical part of the pellet slides into the inside of the ferrule, and the upper, together with the projecting part of the rod, is located above the top of the stem in the cavity of the nut leaning with its steel spring against the arch of the cavity. The rod is kept firmly in place, being staked in on the circumference of the joint in two places.
On the top of the stem, embracing the middle smooth cylindrical portion, the brass conical tightening ring is put on, fitting into the conical seat of the upper time ring. The ring is provided with a pin, which is guided in its movements by one of the three grooves in the top of the stem, opposite the vent. In order not to cover up the vent in the stem top, a longitudinal slot is cut in the ring opposite the former; the eight other grooves on the outside of the ring facilitate the tightening of the ring.
Lower Percussion Arrangement.—The lower percussion arrangement is located in the tail of the stem between the chamber and the base bushing and consists of a percussion pellet, lock bushing, brass safety stirrup with counter spring, steel spiral spring, and lead washer. The brass percussion pellet, turned all over, is provided with: 1. Bottom [219]shoulder resting on lead washer in base plug; the top of this shoulder is turned off and the strips of the counter safety catch hold onto it. 2. Cylindrical shoulder with lower turn of steel spiral spring embracing same and guiding the compression of the spring when the lock bushing is settling down. 3. Lead washer with rectangular opening, coated with varnish, and placed on the upper face of the shoulder. 4. Parallel faces along which are placed the leaves of the safety stirrup. On the upper part of the two opposite faces of the percussion pellet transverse cuts are milled out into which special tongues of the leaves of the safety stirrup fit. The safety stirrup with the counter spring soldered to it has four leaves, two of which (opposite ones) are bent in the middle outwardly and two of which are straight, with only a slight outward bend at their ends; the latter leaves have tongues for fitting into the cuts of the pellets, as shown in Fig. 4, Chapter I.
The lock bushing is a hollow brass cylinder, the outer upper portion of which is rounded off and made wider than the lower one; the interior is bored out cylindrically and then widened into a cone, which catches the straight leaves of the safety stirrup when the lock bushing is settling down, thus preventing the latter from moving upwards. The steel spiral spring in conjunction with the bent leaves of the stirrup hold the lock bushing over the percussion pellet. The percussion cap is kept in place by means of a brass bushing which is staked in from below in two places.
Base Plug.—The base plug, which is made of brass, has an annular groove formed at the bottom near the wall, which serves for fastening the counter safety lugs made of two strips of copper. At one end, the lugs are inserted in the groove (at the opposite ends of a diameter), and at this place the metal is jammed; with their other ends the lugs catch onto the shoulder of the bottom flange of the percussion pellet, inserted in the base plug together with the lead washer. The base plug has a flat bottom with a central opening covered with a brass disk; in order not to leave any space between this disk and its seat, the former is covered with varnish from below; two other holes at [220]the bottom of the bushing, not drilled through, serve for the insertion of a wrench.
Testing Fuses and Their Component Parts.—These tests are carried out as follows:
1. The brass safety stirrups and bushings (time and percussion) are divided into lots of 500 each. Five per cent of each lot shall be tested for bending in a hydraulic testing press. The resisting force of the percussion safety stirrups must be within the limits of 58.68 to 85.77 pounds avoirdupois, that of the brass counter springs between 2.71 to 3.16 pounds avoirdupois, and that of the time safety bushing between 72.23 to 99.31 pounds avoirdupois. (For fuses for mountain artillery, from 40.63 to 54.17 pounds avoirdupois.) All the time safety bushings shall also be subjected on the same press to a compression test of 72.23 pounds (for fuses for mountain guns, 45.14 pounds avoirdupois), and only those which have stood this test are finally considered suitable for the assembly of the fuses.
2. The steel spiral springs shall have no more than 2³⁄₄ turns, and the upper and lower one must lie in a horizontal plane and approach the nearest turn. In compressing the springs to 0.33 inch, the springs must withstand a pressure of from 20.76 to 47.08 pounds avoirdupois, and after removing the compressive load must resume the dimensions within the given limits.
3. One-quarter per cent of the completely assembled percussion arrangement must be tested for determining the correctness of the locking of the lock bushing with the safety stirrup, with the former in its settling down position.
4. The counter safety lugs with the base plugs are made up into lots of 500 each; 5 per cent of each lot, with the inserted percussion arrangement held in place by bending the lugs on the shoulder of the lower flange, are tested under load for unbending the catches of the counter safety lugs. At a load of from 3.61 to 5.42 pounds avoirdupois, the lugs must release the pellet. The percussion and time safety bushings and stirrups should be numbered with the number of the lot, in the order of their manufacture.
5. In order to secure easy turning of the lower time [221]ring by hand, in setting the fuse, the pressure on the nut in screwing it home should be determined by readings of an automatic control wrench and should be between 6.32 and 8.12 pounds avoirdupois.
6. For testing the degree of uniformity of the fuses, they are divided into lots of not more than 500 each. The testing for the full burning time of the fuse is to take place on a special apparatus and shall be determined by a stop-watch; the mean arithmetical difference from the mean time of burning shall be determined from six tested fuses and shall not exceed 0.13 second. If a greater difference is obtained, nine more fuses shall be burned and the mean difference determined from fifteen separate readings. If the result is more than 0.13 second, ten more fuses shall be burned and the mean difference determined from all the twenty-five fuses. If a lot does not fulfill the required test, all the time rings shall be rejected and the powder in same burned out.
7. In order to determine whether all the component parts of a fuse are properly assembled and kept firmly in place without moving, each fuse is shaken by hand and weighed; if the smallest weight of a fuse is not less than 12.862 ounces avoirdupois (for a mountain fuse, not less than 12.81 ounces avoirdupois) and no displacement of any of its component parts ascertained, the fuse is set on “grape-shot” and provided with a protective tin cover; otherwise the fuse shall be taken apart to determine whether all the parts are inserted in the fuse.
8. The percussion and time detonator caps shall be tested for their sensitiveness to ignition by being thrown from a height of two feet for the former, and 1.5 feet for the latter, on the same apparatus as caps for other fuses. For testing the percussion caps, the lower percussion arrangement is set, i.e., the lock bushing is set until locked with the percussion pellet by means of the leaves of the safety stirrup, and then carefully thrust onto the needle of the tail of the stem.
For testing the time detonator caps, the time pellet is first inserted into the safety bushing; this is done in order [222]to increase the weight of the pellet, as its own weight is too small and would necessitate a considerable lifting of the rod of the testing apparatus. In order to conveniently insert the time pellet within the safety bushing, the chamber in the top of the stem (the middle one) is bored out, and the percussion pellet is carefully thrust onto the needle. In testing the percussion detonator caps, the tail of the stem is screwed into the end sleeve of the rod of the testing apparatus, and in testing the time detonator caps the top of the stem is treated in the same manner; in the latter test, the time rings are first put on the flange of the stem.
For testing the caps delivered to the works manufacturing the fuses in hermetically sealed boxes (1500 percussion and 2500 time detonator caps in each lot), ¹⁄₂ per cent of the percussion caps and 1 per cent of the time caps are selected for this purpose. The caps are regarded as satisfactory if, in testing the percussion caps, there will not be more than 1 per cent of cases missing fire or failing to knock out the brass disk from the base plug; in testing the time caps the number of cases of non-ignition of the time rings shall not exceed ¹⁄₂ per cent. The ignited percussion caps must burn the muslin and paper disks placed at the bottom of the chamber bushing and ignite its powder.
9. Out of a control consignment of 25,000 fuses, 25 shall be selected for shaking tests on a testing machine during 1¹⁄₂ hour (10 fuses will be shaken in a horizontal position and 15 in a vertical), in order to determine the serviceability of the fuses under the most unfavorable conditions which can be encountered in transporting the shells.
Equipment of Fuses with Protective Covers.—The tin cap covering the fuse is pressed into both grooves on the lateral surface of the flange of the stem; opposite the holes in the lower groove the cover is staked in; for waterproofing the fuse, the grooves should be filled with grease (consisting of 58¹⁄₂ parts of beeswax, 29¹⁄₂ parts of naphtha grease, and 12 parts of white resin). To conveniently throw off the cover, a copper wire, stranded of four separate thin wires to preserve its flexibility, is inserted in the upper groove before putting on the cover. One end of the wire is slipped [223]through the opening in the flange and fastened at the bottom; the wire then runs around almost the whole circumference of the groove, is bent in a right angle in the direction of the markings on the flange to the top of the cover, where it is knotted and kept in place by a protruding button pressed out of the cover. A piece of twilled tape is fastened to the wire, which tape, in turn, is pasted to the body of the cover.
Boxing of Fuses.—Each fuse with cover, after being examined and the varnish of the tape being found perfectly dry, is carefully wrapped in wrapping paper; 15 fuses are placed in a zinc box padded at the bottom with perfectly dry felt, and the spaces between the fuses filled in with felt or cloth cuttings. The fuses are covered with felt padding and the cover is soldered to the box. A paper ticket, pasted on the top of the box, should contain the following information: The number of the box in the order of manufacture of the fuses in the current year, the year of their manufacture, the name of the fuses and the quantity per box, the number of the control consignment and of the daily output, the time of pressing in the composition, and the time of the ignition test. The dimensions of the box are: length, 12.15 to 12.20 inches, width, 7.25 to 7.30 inches, and height, 3.11 to 3.16 inches. Four zinc boxes are put into a wooden box.
The following information should be given on the tag pasted on the lower side of the wooden box cover: The number of the box in the order of their manufacture in the current year, the year of the manufacture of the fuses, the kind of fuses, and the quantity in the box. On the top of the box a stenciled inscription should be made giving the number of the box, the quantity and kind of fuses, and the year of their manufacture. On the side of the box the number of the control consignment and the year of manufacture should be marked. On boxes containing fuses with alloy time rings, the number of the box and the year of manufacture on the cover of the box, as well as the number of the lot and the year of manufacture on the side of the box, should be colored red. The weight of one zinc box containing [224]fifteen fuses should be approximately 16.7 pounds avoirdupois, and the weight of one wooden box containing four zinc boxes be approximately 90.3 pounds avoirdupois.
Instructions for Conducting Firing Tests.—The following instructions for conducting firing tests are given in the official specifications:
1. For firing tests, fifty-five fuses should be tested out of a lot of 25,000 fuses or less.
2. The fuses are to be subjected to the following firing tests, using cast-iron experimental shells: Field fuses will be fired from a 3-inch quick-firing field gun at a muzzle velocity of 1930 feet per second and mean pressure of not more than 2400 atmospheres (35,500 pounds per square inch), and a maximum pressure of not more than 2550 atmospheres (37,500 pounds per square inch). Fuses from a 3-inch quick-firing mountain gun, model 1904, are fired at a muzzle velocity of 950 feet per second and a mean pressure of about 1250 atmospheres (18,400 pounds per square inch), or from a 3-inch quick-firing gun, model 1909, at a muzzle velocity of 1250 feet per second and mean pressure of approximately 1700 atmospheres (25,000 pounds per square inch).
(a) 25 fuses should be tested by firing for percussion action at a distance of about 4900 feet.
(b) 25 fuses should be tested for firing for time action by setting the fuse at 52 (mountain guns at 66), or at any other graduation depending on the atmospheric conditions of the day, in order to obtain a mean bursting distance of 7000 feet, whereby the mean height of the bursting should amount to approximately 0.012 of the distance.
(c) 5 fuses should be tested for “grape shot” action without removing the protecting cover.
(d) Mountain fuses are also tested with 25 shots for time action from a counter-storming gun at a distance of 3500 feet and a mean pressure of approximately 1100 atmospheres (16,200 pounds per square inch).
3. A lot of fuses is considered satisfactory if:
(a) In firing for percussion action not more than 2 failures shall take place, whereby the bursting on ricocheting at [225]the second or further falls is considered as a failure.
(b) In firing with the fuse set at 52 or at any other graduation, depending on the atmospheric conditions of the day, in order to obtain a mean exploding distance of 7000 feet, not more than one failure shall result, and the probable deflection determined from not less than 20 shots will not exceed 84 feet. In case no failures should occur, it is permissible in figuring the probable deflection not to take into consideration one of the shots deflected not more than 420 feet from the mean point of explosion on the smaller side, or one deflected on the larger side.
(c) In firing “grape shot,” the mean point of explosion shall not be farther than 42 feet, and any individual explosion not farther than 140 feet.
(d) In firing for time and percussion action not a single premature explosion shall take place.
4. A lot which did not satisfy these conditions is accepted for a second test, if at the first test the following conditions prevailed:
(a) Not more than 3 failures were obtained in firing for percussion action.
(b) In firing for time action not more than two failures took place, and the probable deflection did not exceed 98 feet.
(c) In testing for “grape shot” action not more than one failure took place, the mean point of bursting being not farther than 56 feet and any individual explosion not more than 175 feet.
(d) In firing for time and percussion action not a single premature explosion took place.
5. A lot which failed in the first test, but which satisfied the requirements of Paragraph 4 shall be tested over again, according to Paragraph 3, on that point only in which the lot failed in testing.
6. In order to be accepted for service, a lot must, at the second test, give such results that the percentage of failures on time and percussion action obtained at the first and second firing shall not exceed in its entirety the percentage which was determined in Paragraph 3 for corresponding [226]tests. The probable deflections and mean distances of explosion obtained at the second test for time action, and in testing for “grape shot” action must satisfy respectively the requirements as laid down in Paragraph 3.
7. A lot which did not satisfy both tests will not be subjected to any more tests, and any further action will depend upon the military authorities.
Action of Fuses at Firing.—In setting the fuses it is necessary to bear in mind that each of the 130 graduations of the fuse corresponds to approximately 140 feet (in fuses for mountain artillery of the Russian 1904 model to 104 feet) in the change of the firing distance, the same as the graduations on the sight of the gun. In firing, the time pellet passes through the safety bushing, expanding the latter, and falling with the cap on the needle. The detonator [227]cap ignites the composition of the copper time ring through the vent in stem top and the hole in upper time ring.
When the fuse is set on “percussion”, the transmitting opening of the lower time ring and the ignition of the flange of the stem are located opposite the intervening bridges, and the burning of the upper time composition is not transmitted into the chamber of the fuse. In such a case the shrapnel continues its movement until striking an obstacle. At this instant the lower percussion arrangement, releasing itself from the grip of the lugs of the counter safety catch and compressing the counter safety spring, approaches the needle, which punctures the detonating cap; the flame from the latter together with the flame from the powder of the chamber bushing are transmitted to the bursting charge in the shrapnel shell. When the fuse is set for “grape shot,” the transmitting openings in the time rings and the ignition openings in the flange of the stem [228]are brought so close to one another that the bursting of the shrapnel must take place on the average not farther than 42 feet in front of the muzzle of the gun.
Russian Combination Time and Percussion Fuse—Vickers Type.—Since the outbreak of the present war, various fuses have been used on Russian shrapnel shells. One of the principal of these fuses is the Vickers type of combination time and percussion fuse shown assembled in Fig. 1, and in detail in Figs. 2, 3, 4, and 5. While the original Russian fuse shown in Fig. 4, Chapter I, and described in the preceding pages, has, up to the present war, been the only fuse used in this shell, it has largely been replaced by other fuses, because of the difficulties experienced in manufacturing it. The Vickers type of fuse is somewhat easier to manufacture and, therefore, has been used to some extent on Russian shrapnel shells. Another fuse that is now being adapted to the Russian shrapnel shell is the American combination time and percussion fuse, Fig. 3, Chapter I, which is also of the same type as the British fuse described in Chapter XI. The chief difference in design between the [230]standard Russian and the Vickers type of combination time and percussion fuse is in the percussion and concussion arrangements. It will be noticed in Figs. 1 to 5, inclusive, that the details of the Vickers fuse are much simpler to manufacture. There is also an absence of the numerous springs in the original Russian fuse.
[231]
The following specifications are abstracted from the official specifications for the Russian brass cartridge cases for 3-inch shrapnel and high-explosive shells, and contain all the essential information relating to the requirements in the manufacture and inspection of these cartridge cases.
Clause 1. The Rights and Duties of the Inspector.—The inspector’s duty consists not only in acceptance of the cartridge cases manufactured, but also in looking after the methods used in the manufacture of the cartridge cases, and the brass used for them. In order to do this, the inspector must have the right of access to any work and tests referring to the cartridge cases; he must have the right to enter any shop during any time of the day or night, where the manufacture of the cartridge cases ordered may take place, i.e., the casting and rolling of the brass, drawing, annealing, finishing, etc.
If the firm with whom the order for the cartridge cases is placed does not cast brass, but obtains it from other works, the inspector has the right to visit these latter works in order to ascertain the quality of the casting (and qualities of copper and zinc), method of cutting the top and bottom parts of castings, method of rolling, etc. The inspector’s expenses with reference to his journey to the brass works in such case must be borne by the firm with which the order for the cartridge cases has been placed. The minimum number of the necessary journeys must be determined before the placing of the order.
The firm, which is manufacturing the cartridge cases, must have a testing machine for the mechanical tests of the metal used for the cartridge cases; it must also possess a microphotographical laboratory for the brass (the power of the microscope must be at least 100). The firm must [232]furnish the inspector with the results of all the chemical, microscopical, thermal, mechanical and any other tests carried out on the brass used for the manufacture of cartridge cases, as well as on cartridge cases themselves. In addition to this, the inspector must be given the right to use all the firm’s testing plant for the above-mentioned tests. The inspector must carry out the specified tests mentioned in the following for the acceptance of the cartridge cases.
Independently of the above, if the inspector thinks it necessary, for the purpose of ascertaining the qualities and evenness of the material used for the cartridge cases, as well as the cartridge cases themselves, to carry out in addition some other trials, the firm must provide him with all necessary assistance.
The firm must place at the sole disposal of the inspector sufficiently large dry and heated accommodations for carrying out his inspection, provided with cupboards for his gages; scales must also be provided; the place must be lighted by electricity, and all necessary power for the inspection must be provided; gages; and a microscope of from 40 to 50 power.
All gages used for the gaging of cartridge cases must be checked by the inspector before the beginning of the inspection, as well as during the inspection. Before submitting the cartridge cases manufactured to the inspector, the [233]works must submit them to their own examiners. These examiners must work according to the rules given them by the works, and prepared in conjunction with the inspector. The firm must provide their examiners with a separate set of gages manufactured similarly to those supplied to the inspector.
The inspector has the right to inform the management of the works of all defects noticed by him in the manufacture of the cartridge cases, as well as of those defects which occur in the cartridge cases submitted for acceptance. Finally, he has the right to suggest some improvements in the manufacture of the cartridge cases; it is left to the discretion of the management of the works to make use of the above suggestions, if it is found advisable by them to do so, but the inspector has no right whatever to interfere with the orders issued by the management of the works.
Clause 2. Test Consignment.—Before beginning the manufacture of the order, the works must submit a test consignment. The cartridge cases for test consignment must be manufactured to the approved drawings, and made of brass according to these specifications. During the manufacture of the cartridge cases, it is required:
1. That the annealing of the cartridge cases shall be regulated to prevent any over-heating of the metal.
2. That after the cartridge case is properly formed, the upper half of the case shall be definitely annealed at a temperature not less than 400 degrees C.
3. That the mechanical quality of the metal in the manufactured cartridge case shall be in accordance with these specifications. The method of manufacturing the cartridge cases, as well as the regulation of the annealing before drawing, is left to the discretion of the works. The test consignment must be inspected and gaged by the inspector, and then sent for firing tests. The inspector must measure, on all cartridge cases in the test consignment, the diameter of the case near the bottom next to the flange, at a distance of ¹⁄₂ and 1¹⁄₂ inch from the flange.
After firing the first round, all cartridge cases must be inspected and measured on the same diameters on which [234]they were measured before firing. The cartridge cases showing the maximum increase of diameter are to be resized after each round, together with those that are doubtful with regard to strength, if such re-sizing is allowed by these specifications. The cartridge cases spoiled during re-sizing must be replaced by new ones from the same consignment, but these new cases must be fired the same number of rounds as the old spoilt cases.
The consignment will be accepted:
1. If all cartridge cases after firing are extracted without any difficulty.
2. If no case shows longitudinal or transverse cracks (or any other cracks).
The cartridge cases which are supplied together with shell must be checked and examined in order to ascertain whether the shells are sufficiently secured in the case.
The test consignment of cartridges must be manufactured at the expense of the works, but the tests are carried out at the expense of the government.
In the case of an unsatisfactory test of the first consignment, the works have the right to submit a second test consignment. In the case of unsatisfactory results of the tests of the second consignment, the military administration has the right to cancel the contract.
The inspector has to weigh all cartridge cases of the test consignment, ascertaining thus the mean weight. In addition, the inspector must carry out the following test on the cartridge cases of the test consignment:
1. Chemical composition of brass.
2. Mechanical and microphotographical qualities of metal in the manufactured cartridge cases.
3. The temperature of the last annealing, i.e., the temperature of annealing before last drawing, temperature before compressing, and temperature of the final annealing of the finished cartridge case.
The temperatures of annealing must be ascertained by pyrometers. For this purpose such pyrometers as Ferry may be used, in which the temperature is ascertained by the color of the object heated.
[235]
The methods of manufacture of the order of cartridge cases must be similar to those used for the manufacture of test consignment. In case of any alterations in the method of manufacture, the works must inform the inspector to that effect, and he must report the matter to the military administration with his opinion on the value of such alteration in manufacture. It is left to the discretion of the military administration to allow such alteration or to demand from the works the delivery of a new test consignment. A firm which has already manufactured cartridge cases of certain type may be released from the delivery of a test consignment, provided the methods of manufacture have not been altered.
Clause 3. The Acceptance of the Brass.—The brass used in the manufacture of cartridge cases must be of the following composition:
Copper from 67 to 72 per cent.
Zinc from 33 to 28 per cent.
The proportion of other metals must not exceed 0.5 per cent, except tin, which must not exceed 0.3 per cent.
During the manufacture of cartridge cases in the same consignment, the variation of copper in the brass must not exceed + 1 per cent, or - 0.5 per cent compared with the usual composition used by the works which composition must be given to the inspector before the manufacture of the test consignment. The method of manufacture of brass is left to the discretion of the works. The only requirements are as follows:
1. The cast ingots must be annealed before first rolling.
2. All rolling must be carried out in the same direction, thus allowing the top end of the casting always to be distinguishable.
The top or bottom portion of the castings must not be used for the manufacture of cartridge cases. They must be cut from the ingots by the works manufacturing the brass, or the blanks for the cartridge cases must be cut at a certain distance from both ends of the ingots. On receipt of the brass ingots, the works manufacturing the cartridge cases must inform the inspector to that effect, giving him [236]the chemical analysis and the composition of the casting. The consignment of the brass must be sufficient for the manufacture from it of the whole consignment of the cartridge cases. At the works which manufacture the brass, test bars must be cast from the same furnace and from material of the same quality, melted in a similar manner, and stamped with the same number as the castings. This number must be stamped at the bottom of the cartridge case.
The brass used for tests must be submitted to the inspector in bars, and the cutting of the test disks from the bars must be carried out under the inspector’s supervision. A few bars are to be used for the microscopical analysis. The bars of each consignment must be stamped with a number, which number must be stamped afterwards on the blanks during all the drawings. This number must also be stamped on the bottom of the case, as mentioned. These numbers must be put by the inspector in the report together with chemical analysis of metal, composition of casting, number of rods delivered, time of delivery, name of brass foundry by which the brass has been supplied (if the manufacturers do not manufacture brass themselves), and the number of test disks cut. For each consignment of cartridge cases manufactured from brass bearing a certain number, at least one chemical analysis must be made. The brass not answering to the requirements of the chemical analysis will be returned to the manufacturer for re-casting.
To insure that the amount cut off from the top and bottom of the rods is sufficient, the inspector must ascertain from the first consignment the number of cartridges manufactured, with defects inside as well as outside, from (1) disks cut from upper end of rod, (2) disks cut from roller end of rod, and (3) disks cut from the remaining part of rod. The percentage of cartridge cases with defects, in the above-mentioned three groups, must not differ materially from each other. The above-mentioned tests must be carried out from time to time during the manufacture of the cartridge cases.
[237]
The following methods can be used to ascertain that the ends of any rod are cut off sufficiently:
1. At the center of the rod, cut a piece from the top of the upper blank; the transverse surface of the piece must be polished and etched with a weak solution of nitric acid; if the piece cut off from the top end was not sufficient, the test piece will show, in the middle, more or less solid black lines, inside of which, under the microscope, it will be possible to see small microscopical flaws and foreign substances.
2. The transverse test piece cut in the above-mentioned manner must be broken in a testing machine; if the top portion was not sufficiently cut off, the middle of the piece will show ruptures in the metal.
Clause 4. The Arrangement of the Cartridge Cases in Lots.—The cartridge cases for delivery must be arranged in lots. It is desirable that the cartridge cases in each lot should be manufactured from one casting of brass metal. If the lots are compiled from the cartridge cases of different castings, it will be necessary to select cartridge cases for the control test from all the castings, and the cases left over from the lots already tested and accepted may be placed in the new lots without repeated tests.
The dimensions of punch and die for the last drawing must be verified from time to time. The control of the annealing must be carried out by means of a pyrometer. The cartridge cases in each lot must be inspected as follows: 1. Outside inspection. 2. Inspection of dimensions and weight. 3. Mechanical test of the metal. 4. Firing test.
Clause 5. Outside Inspection.—The cartridge cases, before submission for inspection, must be cleaned inside and outside with sawdust and sand, or with brushes. The following defects usually occur in the cases.
1. Cracks. Longitudinal cracks chiefly occur at a distance of two or three inches from the flange, and, generally speaking, form two parallel lines very slightly noticeable on the inner surface. Transversal cracks, slightly noticeable, generally occur above the flange at the bottom; they are always on the outside surface and very seldom penetrate through. Cases with such defects must be rejected.
[238]
2. Ruptures. These defects usually are on the outer or inner surface of the cases and show that something is wrong with the metal; cartridge cases with ruptures are rejected without further consideration. Slight ruptures found in the corner of the socket for the primer do not affect the strength of the case and are, therefore, allowed.
3. Flaws and Fissures. Cases submitted to the inspector after being filed and cleaned on the inner surface are rejected. Cases with flaws and fissures on the inside surface must be submitted to the inspector separately from the others and the filing of them must be carried out under the inspector’s supervision. The inspector has to determine to what extent the flaws are vital. Special attention must be paid to the flaws on the rim and on the tapered portion.
4. Scratches. These are usually due to the punch, or to dirt which may have been in the punch. Small scratches do not vitally affect the strength of the cases. Cases with deep scratches are rejected, especially if on the inner side of the case a very noticeable mark is seen, extending to the lower part of the case.
5. Scars. Small scars which make the surface of the case dull are allowed. Large scars on the surface giving the appearance of a grained surface indicate too high a temperature in annealing, and cases with such scars must be rejected.
6. Dents. Dents, if rectified, are allowed on cases if they are not important; they are not allowed on the conical portion or at the end of the case.
7. Goffering. Goffering on the inner surface of the case is usually due to the uneven drawing of the metal in the case of very rigid material; it is due to defects in the uniformity of the material. Goffering does not appreciably affect the strength of the cases, and therefore cannot generally be taken as a reason for rejection. A large amount of goffered cases shows that there are some abnormal conditions in the manufacturing of the brass or the cases themselves. In such cases the inspector must point this out to the works, and if the works will not take measures to remove these defects the goffered cases must be rejected.
[239]
8. Folds. Folds of metal are sometimes noticed inside the case at the bottom and show bad manufacture. Cases with such defects are rejected.
9. Other Small Defects. Dents at the bottom, inside, and other small defects are allowed at the discretion of the inspector.
Clause 6. Gaging.—Cases which pass satisfactory outside inspection must be gaged by means of gages for maximum and minimum allowances. The dimensions gaged are as follows:
1. All outside diameters of the cases must be gaged with ring gages or half ring gages.
2. The inner diameter of the end of the case is gaged with calipers.
3. All outside dimensions of the bottom of the case are gaged as follows:
(a) Diameters of flanges by half ring gages.
(b) Thickness of flanges with snap gages.
(c) Concentricity of the bottom of the case by ring gage.
4. The thickness of the bottom by special gage.
5. Concentricity of the hole for the primer, by special gage.
6. All dimensions of the hole for the primer must be gaged with a set of corresponding gages.
7. The flatness of the surface, the absence of cuts and hammering of the metal around the hole for the primer with a straightedge.
8. The outline and the length by a special gage.
9. The thickness of the walls is gaged by means of a snap gage with cut corresponding to the thickness of the cartridge case at the end, by a small special gage with pointer for ascertaining the thickness of the walls as well as the depth of the cleaning away in places near the end of the case, and by a special gage with pointer for ascertaining the thickness of the walls along the whole length of the case.
For the purpose of ascertaining that the outline of the cases is correct, the inspector has the right to select 0.2 per [240]cent of the cases from the lot, choosing preferably from the rejected cases; special attention must be paid to the difference in thickness of the walls at the lower end of the cases. To ascertain the similarity in weight, all cases must be weighed; the difference from mean weight must not exceed the limits fixed for each caliber of the cases.
If during the preliminary examination of the cases more than 15 per cent are found defective, as regards the metal or dimensions, the inspector has the right to stop the further examination of the cases submitted, and to ask the firm to re-submit them again. If, after re-submitting, and during the second examination of the cases, more than 5 per cent are found unsatisfactory, the whole lot will be rejected.
Clause 7. Mechanical Tests.—In the following paragraphs are given special conditions for the acceptance of cartridge cases for the guns of different calibers. As a general rule, the mechanical qualities of the metal used for cartridge cases must comply with the following conditions:
1. The rigidity of the bottom and the lower end of the cases must be sufficient to insure the proper extraction of the cases.
2. The rigidity of the end of the cartridge must insure the proper grip of the shell, and for the howitzer cases must not show any dents on the metal.
3. The rigidity of the metal along the whole length of the case must change evenly, without sudden changes.
During the manufacture of the cases, care should be taken to work the metal as near as possible to the lower limits of the rigidity of the metal, as any extra rigidity affects the strength of the case during firing and in storage.
The mechanical qualities of the cases must, as far as possible, be alike; they are tested (a) by a breaking test of the metal used for the cases; (b) by ascertaining that the shell is fixed properly in the case (a casting may be used for this purpose manufactured to the dimensions and the weight of the proper shell); (c) microscopical analysis of the metal; and (d) any other methods at the discretion of the inspector, as, for instance, by ascertaining the hardness of the metal, compression of the mouth of the case, etc.
[241]
For the tensile test the inspector selects from each lot about five cases rejected on account of the dimensions; these are cut in halves for the purpose of ascertaining the thickness of the walls. The number of cases used for mechanical tests may be increased by the inspector if it is required by the quality of the material. From each case selected for the mechanical test, three rings must be cut, one inch wide; one next to the flange, 1¹⁄₂ inch above it; one from the middle of the mouth; and one immediately under the conical portion, if such portion exists; otherwise from the middle of the case. The rings cut in the above manner must be cut longitudinally and straightened by delicate hammering with a wooden mallet or by rolling between wooden rollers. From each strip obtained in such manner two test pieces must be cut with a distance between marks of 1.97 inch (50 millimeters). The width of the test pieces must be the same. Ten division marks must be made on the test pieces, each division being 0.197 inch (5 millimeters). During the mechanical test, the following data must be ascertained: Breaking stress, total elongation, and local elongation between all division marks.
Clause 8. Firing Proof.—After the examination of the whole consignment, the inspector selects some cases for proof by firing. The inspector chooses for the firing trials those cases which he considers the least satisfactory. The works have the right to re-examine the cases selected by the inspector for firing, and remove any case selected by the inspector; but, in such an instance, all cases with similar defects are to be rejected, and the inspector replaces the cases removed by the firm. The works have not the right to remove the cases selected in the above manner more than twice for each consignment. The firing proof of the cases must be carried out at any place selected by the artillery administration, where the cases must be delivered by the works.
The firing proof must be carried out in a similar manner to the test consignment, and the submitted consignment is accepted:
1. If all cartridge cases after firing are extracted without any difficulty.
[242]
2. If no case shows longitudinal, transversal or any other cracks, or ruptures of metal.
If during the firing trials one case shows a crack or is difficult to extract, the works have the right to review the consignment and submit for the firing trials a second set chosen by the inspector. In such instances, the works have no right to remove any case selected by the inspector for secondary proof; the number of cases selected for secondary proof as well as the number of proof rounds fired may be increased. For the acceptance of the consignment, all cases must give satisfactory results in the second firing test. If the two consecutive firing proofs will give unsatisfactory results, the artillery administration has the right to cancel the contract. The firing proof is carried out at the expense of the government, and the cases normally used are counted as part of the consignment. The fired cases, after re-sizing, annealing and inspection, are submitted by the works to the inspector, and afterwards they must be packed in separate boxes.
The cases required for secondary proof must be at the expense of the manufacturer.
Clause 9. Varnishing.—In case of satisfactory results of firing proof, the works varnish the cases inside as well as outside. The varnish must be used evenly. When scratched with a wooden point or with the finger nail, the varnished surface must not show any impression; when scratched with a metallic point the varnish must not crumple, and must not show any cross cracks. The varnish on the cases must not alter its appearance if placed for twenty-four hours in water, and after removal from the water and again dry, it must adhere so firmly as not to be removable under pressure of the finger.
The specific gravity of the varnish must be from 0.9 to 0.94. Brass strips covered with the varnish must not show any oxidizing action. After the heating of the varnished strips during 24 hours in the water bath at a temperature of 167 degrees F., the varnish, when heated, must not peel off. For the purpose of ascertaining the character of the reaction of the varnish, 10 cubic centimeters (0.61 cubic [243]inches) of solvent must be distilled from 100 cubic centimeters (6.1 cubic inches) of the varnish, and the solvent obtained in this manner, when mixed with a weak solution of litmus, must not give an acid reaction.
Clause 10. Stamping.—The cases must be stamped as follows: On the top, the number of the consignment of brass; at the left, number of the consignment of the cases and the year of manufacture; on the right, the firm’s initials; at the bottom, the inspector’s stamp, which must be placed after the inspection, and the stamp which means accepted and which must be placed after the firing proof. The letters and figures must not exceed ¹⁄₈ inch in height.
Clause 11. Packing.—The cases, after being wrapped in paper, are covered with straw caps and packed in strong wooden boxes. These must be dovetailed from pine or fir wood, with rope handles and iron bands. The lids must be fixed with screws. The works have to pack the cases to the satisfaction of the inspector. To ascertain the accuracy of packing, the inspector turns over one of the boxes chosen, and after that the case must not show any dents or any noticeable damage to the varnish on the cases. Fifty cases are packed in each box.
The boxes must have the following marking:
Accepted Cases:
Caliber of Cases
Name of Works
Year of Manufacture
Number of Cases in Lot
Number of Consignment
Fired Cases:
Caliber of Cases
Name of Works
Year of Manufacture
Number of Cases in Lot Fired, but Good for Use
Number of Consignment
Condition for Acceptance of Cartridge Cases for 3-inch Field Guns.—The test consignment must consist of fifty cartridge cases. The proof must be carried out from the gun with pressure of about 15.75 tons per square inch (2400 atmospheres). Ten cases are selected from those showing the maximum increase of diameter and are used for re-charging; they must be re-annealed after each round; all doubtful cases must be added to the above-mentioned cases. Each of these cases must stand eight rounds.
[244]
The gaging must be carried out as follows:
| Dimensions in Inches | ||
| Normal | Reject | |
| 1. Diameter of the case near bottom, gaged with half ring gages | 3.294 | 3.286 |
| 2. Diameter of flange, gaged with half ring gages | 3.547 | 3.539 |
| 3. The outside diameter of the end, gaged with half ring gages, and with gage inserted in the case | 3.004 | 3.000 |
| 4. The inner diameter of the case | 2.923 | 2.927 |
| 5. The thickness of the flange | 0.142 | 0.134 |
| 6. The thickness of the bottom, gaged with special gage | 0.157 |
+ 0.030 - 0.010 |
7. The concentricity of the hole for the primer must be gaged with special gage.
8. The concentricity of the flange with reference to the body must be gaged with half ring gage, the dimensions of which must be as follows:
(a) Maximum diameter of flange.
(b) Maximum diameter of the case at bottom.
(c) Maximum thickness of the flange.
9. The outline and the length of the case must be checked by special chamber gage. The allowance for length must be ± 0.010 inch.
10. The gaging of the hole for the primer is carried out by the following gages:
(a) Screw gages, normal and reject.
(b) Normal gage which is used for the gaging of the whole diameter and the depth of the hole for the primer, normal and reject.
(c) Reject gage for the flange of the primer.
(d) Reject gage for the thread.
(e) Reject gage for the plain surface of the hole.
(f) Normal and reject gages for the thickness of the hole for the flange of the primer.
(g) Normal and reject gage for the depth of the plain portion of the hole.
(h) Gage for the ignition hole.
11. Normal and reject gage for the height of the boss for the primer.
12. Gages, compasses and special gages for the thickness of the walls and for the depth of filing of the inner as well as the outer surfaces.
13. Straightedge for gaging the bottom surface of the case.
The difference in the weight of cases from mean weight must not exceed ± 3 ounces.
The test pieces subjected to the tensile test must show the following breaking stress:
(a) At the ends, 48,000 to 57,000 pounds per square inch, with local elongation not less than 60 per cent.
(b) Next to the flange, from 64,000 to 85,000 pounds per square inch.
(c) Next to the conical portion, not less than 52,500 pounds per square inch.
[245]
Firing Trial.—For the firing trials, thirty cartridge cases must be selected. These cases must be measured and must pass a similar test to that of the test consignment, with the following exceptions.
1. Only five cases are taken for re-proving, including cases showing the maximum expansion, and those doubtful with reference to their strength.
2. The cases are to be fired five times.
During the firing of the secondary proofs, as well as during the firing of the cases selected from the lots entirely consisting of the defective cases, the number of cases as well as the number of re-tests may be increased to the number fixed for the test consignment.
Specifications for Primers.—The charge primer consists of brass body, detonator, bush, brass anvil, a charge of gun powder (not polished with graphite), a disk of saltpeter-soaked tissue paper, four powder cakes, disk of saltpeter-soaked muslin, disk of parchment, and a brass disk bored in the center and coated outside with thick shellac varnish mixed with cinnabar.
Detonator.—The detonator consists of a small copper cap containing a charge of 0.275 grain of the detonator composition, covered by a thin paper parchment disk and compressed with a pressure of 125 pounds. The thickness of the parchment is between 0.002 and 0.0025 inch. The surface of the parchment facing the composition is coated by a thin layer of fluid shellac varnish composed as follows: 15.12 gallons of 95 per cent alcohol and 20 pounds of shellac.
The detonator composition contains 50 per cent fulminate of mercury, 20 per cent chlorate of potassium and 30 per cent glass ground to dust and sifted through a sieve No. 100 (100 meshes to 1 inch). To this mixture is added 0.25 per cent of tragacanth gum and a trace of gum arabic. The composition is placed in the cap while moist. After compression the detonator is dried for ten days at a temperature of 88 degrees F., and twenty days at 111 degrees F. Then the exterior surface of the parchment disks is coated with a thick varnish composed of 0.891 gallon of 95 per cent alcohol, 2.75 pounds of shellac, and 0.5 pound of resin. The [246]varnished detonators are dried at room temperature for five or six days, and then undergo a final examination, in which the defective caps will be rejected. The caps, when ready, must have even wedges, no rents, cracks, dents or such like defects, and the parchment disks must be placed concentric with the edges of the caps.
Out of a lot representing a day’s output (about from 10,000 to 15,000) of detonators, twenty-five are set aside without selection, for testing under a drop weight of 13.65 ounces, falling from a height of 3.94 inches. These must not show a single failure. If a day’s output of detonators does not answer that condition, it undergoes, after a supplementary drying, a second test in double quantity. Any lot of detonators that does not stand this test will be rejected and burnt out.
The tissue paper and muslin disks are soaked with a 10 per cent solution of saltpeter. The powder cakes are compressed gun powder, not polished with graphite, and have a diameter of 0.748 inch, a height of about 0.120 inch, and weigh from 21.95 to 23.32 grains each.
Charging Primers.—The charging of primers is preceded by the examination of their bodies and other parts. The charging is done in the following order: The detonator is placed in the bush which is screwed onto the end into its seat and then nipped in two places in order to prevent its becoming unscrewed. The anvil is then screwed into its seat, so as to press tightly on the detonator composition, without, however, cutting the parchment disk. To inspect the proper screwing in of the anvils, 30 primers are set aside out of every 300, and from those the anvils are screwed out and the detonators examined. The parchment disks must bear clear marks of the anvils, without being cut through.
In properly fitted primers the anvils are prevented from becoming unscrewed by nipping them in two places. A charge of from 10.286 to 10.972 grains of powder is placed in the groove between the hose and the internal surface of the body of the primer. This charge must fill the groove to the brim. The powder is now covered with the disk of [247]tissue paper soaked in saltpeter. On the top of it will be placed four powder cakes, which will be covered first with a disk of saltpeter-soaked muslin, then with a parchment disk and lastly with a brass disk bored in the center, after which the upper edge of the primer is closed in, this operation being carried out in three stages. After the first pressing, a proper position is given to the disks inside the primer; after the third (final) pressing the primer is to be gaged. The upper side of the brass and parchment disks is varnished with thick shellac mixed with cinnabar.
After having been dried in the shop for 24 hours, the primers are packed in cardboard boxes. Two such boxes, (50 primers in each) are sealed hermetically in zinc boxes. The proper hermetic soldering of some boxes chosen at random will be tested. Eight zinc boxes are packed in one wooden box, which will thus contain 400 primers.
Inspection of Primers.—Bodies and other details will be manufactured of brass, the composition of which will be left to the discretion of the works, but on the express condition that the primers will comply with all requirements stipulated. The best results have been obtained when the metal contained from 67 to 74 per cent of copper, and from 33 to 26 per cent of zinc.
Before beginning the manufacture of the order, the works with which the order will be placed must deliver a test consignment consisting of 100 primers. The test consignment of primers after being charged must be subjected to a firing trial. The conditions of this trial are similar to those used for the trials of the complete order. The order must be submitted in lots of 25,000 each.
The gaging of dimensions at the works manufacturing the primers must be carried out after each separate operation of manufacture, for which approved gages and control gages must be used. All the gages must be manufactured by the works, with which the order for the primers is placed, with the exception of the gage nut used for the gaging of the outer thread and the check screw for same. The last mentioned gages must be handed over to the primer works by the proper authorities.
[248]
The primers, before being charged, will be assembled at the works which manufacture them, i.e., bushes and anvils are screwed in, and the primers are delivered to the explosive works in such condition. After the completion of the manufacture of a lot of 25,000 primers, 1000 of them, chosen at random during the manufacture, will be sent to the explosive works for inspection, for testing the rigidity of the metal, and for preliminary tests of the metal by firing.
If, during the trial for the rigidity of the metal carried out by the compression of 50 primers chosen at random, more than 5 per cent show ruptures, the complete lot of 1000 primers will be returned to the manufacturers.
In the case of satisfactory results of firing trials, the remaining 24,000 primers will be delivered to the works intrusted with the charging.
If, after partial examination of a lot (not less than 1000 primers), more than 10 per cent of primers will be rejected in accordance with the following two paragraphs, the further inspection will be stopped at the charging works, and the whole lot will be returned for resorting.
When inspecting primers, the following defects are not allowed: ruptures, blow-holes, fissures, flaws, sandy surface, dirt, oil, dust, shavings, dents on the bottom surface of the flange, dents at the bottom of the charge chamber, and considerable crumbling of threads (more than one-fourth of a thread). The examination of the bottom surface for evenness must be carried out by spinning the primers on a polished steel plate. The primers which will not spin must be rejected.
The primer chambers must be varnished. The anvils must not show any flaws and fissures at their striking edge and at the threads. The striking edge must not be sharp, to prevent the cutting through of the parchment disks of the detonator; generally speaking, the anvil and the bush must also answer all the requirements of the preceding paragraph.
Gaging.—One hundred primers complete from each lot must be gaged. Special attention must be paid to the following points:
[249]
(a) All primers to be screwed into gage without being specially loose.
(b) The thickness and the outer diameter of the primer head must not exceed the specified maximum dimensions, thus securing the proper fit of the primer flange in its seat in the cartridge case.
(c) The height of the boss inside the primer must be strictly in accordance with the allowance given.
(d) The inner thread of the boss must be strictly in accordance with the gage.
(e) The seat for the detonator and the hole in the bush must be correct and in accordance with the gage.
(f) The thickness of the bottom of primer (0.067 to 0.077 inch) must be in accordance with the gage.
The anvils and bushes must screw and unscrew easily, without being loose and must be interchangeable. After charging, all primers will be inspected with regard to their height, and gaged outside. In case of unsatisfactory results in gaging (rejected primers exceeding 3 per cent) an additional 100 primers must be chosen for the same purpose, and in case the results are the same, the whole lot will be returned to the works manufacturing the primers for resorting.
Firing Trials.—Fifty primers out of 1000 delivered from a lot of 25,000, after being charged, are tested with reference to the quality of the metal, by firing with increased charge at a pressure of 2400 atmospheres (15.75 tons per square inch). These primers, after the test, should not show any breakage (after being unscrewed) through cracks and flaws, the presence of which would mean that the gas escaped through the base of the primers. The escape of gases leaving a residue between the side surfaces of the primer flanges and their seating is allowed on not more than 30 per cent of the primers subjected to firing test from new cartridge cases; in the case of using fired cartridge cases, no attention must be paid to the presence of the above-mentioned residue.
Non-through cracks are allowed on not more than 2 per cent of tested primers; in the case of a larger percentage, [250]but not exceeding 4 per cent, the whole lot must be resorted and retested. The recurrence of 2 per cent of non-through cracks in the second test may not be taken as a reason for the rejection of the whole lot; 50 primers must be used for the second test. In the case of the absence of above-mentioned defects, only those primers will be considered satisfactory which, after firing, can be removed from the cartridge case by hand or by an ordinary spanner.
The serviceableness of the primers is determined by firing 50 primers chosen at random from the complete lot of 25,000 charged primers. The conditions just laid down hold good for this trial also. In addition to this, no complete misfire must occur; not more than two primers may misfire once each, with lock in proper order. (Before firing, the tension of the main spring and the protrusion of the firing pin must be verified.) A second test may be carried out if during the preliminary test defects occur. The second test must be carried out on double the number of primers taken at random, i.e., on 100 primers. During second test the same conditions as laid down for the first test hold good. Primers passing successfully the first or second firing tests are accepted for the service. A lot of charged rejected primers must be destroyed and the metal scrapped.
In addition to the firing tests, the following test must be carried out by the works intrusted with the charging of primers to determine the correctness of charging: 1. One per cent of a day’s output must be tested under a drop weight of five pounds falling from a height of 0.39 inch with flat firing pin 0.25 inch in diameter; during this test no primer must detonate. Primers having passed this test and not showing any noticeable mark on the base must be recharged and added to the lot. 2. When testing 0.5 per cent of each day’s output under a drop weight of five pounds, falling from a height of 5.9 inches, with firing pin of an approved pattern, no primer must fail to explode.
[251]
The following paragraphs, abstracted from the official specifications, give all the information contained in these specifications relating to the manufacture and inspection of the British 18-pounder, quick-firing shrapnel shell.
Body.—The body of the shell is made of cast or forged steel of the best quality for the purpose, turned or ground to the form and dimensions, and having the edge of the base rounded. If made of cast steel, the casting must be clean, of uniform transverse thickness, free from flaws, blow-holes, and other defects. The use of chaplets is prohibited. If made of forged steel, the body must be forged hollow, and free from forging marks and flaws. Should the shells be subjected to heat-treatment, this must be carried out in batches consisting of shells of the same cast. An undercut groove, with two projecting waved ribs, will be turned on the body. Three chisel cuts may be made across the waved ribs in the groove for the driving band, at an angle to the longitudinal axis of the projectile to allow the air in the channels between the ribs to escape when the band is being pressed on. The top is threaded to receive the socket, and a groove for the fuse cover provided. The steel body alone must weigh 6 pounds 5 ounces 12 drams, plus or minus 2 ounces.
Driving Band.—The driving band is made from a ring of drawn or electro-deposited copper, pressed into, and in contact with, the bottom and undercut of the groove in the shell all around, and accurately turned to the form required. The weight must be 4 ounces 12 drams, plus or minus 2 ounces.
Socket.—The socket is made of composition metal, known as Class “C,” threaded externally below the shoulder to fit the body, and internally to receive the fuse, the bottom being bored to receive the top of the central tube. The [252]junction of the socket and central tube is soldered to prevent the resin getting into the tube and socket. A hole is to be bored in the side, threaded and fitted with a steel fixing screw. The weight must be 8 ounces 8 drams.
Central Tube.—The central tube may be made of brass, copper, delta metal, or gun metal. The lower end is to have a shoulder to rest on, and to be threaded to enter the steel disk, the bottom being reduced in diameter to fit the neck of the cup. Weight, 2 ounces 12 drams.
Steel Disk.—A steel disk, of the form shown in Fig. 2, will rest on the shoulder in the bottom of the body, a hole [253]being bored and threaded through the center of the disk to receive the central tube. Weight, 9 ounces 8 drams.
Tin Cup.—The cup in the base of the shell to contain the bursting charge will be made of tinned plate to the form and dimensions shown in Fig. 2, the parts being soldered together. Weight, 1 ounce 12 drams.
Gages.—Contractors may send their gages at any time to the chief inspector, Woolwich Arsenal, London, England, to be checked and compared with the standard gages.
Screw Threads.—The screw threads must, unless otherwise stated, be of the British standard fine screw thread, and conform to the chief inspector’s standard gages.
Preliminary Examination of Contractor’s Work.—The bodies, after completion of machining, will be submitted at the contractor’s works, to an inspector, for preliminary examination. Bodies made of cast steel must also be submitted for a hydraulic test under a pressure of 100 pounds per square inch. Any shell which shows the slightest leak, or fails to satisfy the conditions, will be rejected.
Assembling.—The tin cup, steel disk, and central tube are to be placed in position and the shell filled with mixed metal bullets, 41 per pound (composed of seven parts of lead and one of antimony), the interstices between the bullets being filled with resin, which must be perfectly pure, and filtered when in a liquid state through a sieve having 32 meshes per inch. The socket is then screwed onto the body as tightly as possible, the threads having been previously coated with Pettman’s cement or red lead.
Marking and Plugs.—The shells are to be marked on the side, above the driving band. Plugs for the protection of the fuse holes in transit will be supplied, free of charge, on demand, by the ordnance officer to whom delivery is to be made.
Delivery.—(a). The shells will be covered with a thin coating of vaseline or other similar anti-corrosive grease, which must be of such a nature as not to interfere with the gaging, and they will then be delivered unpainted, for inspection and proof. The shells must be perfectly cleaned out, empty, complete in every respect, and dry internally. [254](b). Such marking as may be necessary to identify the steelmaker’s cast number, and, in case of heat-treatment, the batch number, must be maintained by the contractor upon every shell throughout manufacture. (c). The shell must be delivered in lots for purposes of proof. A lot for this purpose will consist, as far as possible, of shells of the same cast, and, when heat-treatment is employed, of shells of the same batch number, and must not contain more than 121 shells. (d). When the number of shells in a cast or batch is less than 100, two casts or batches may be grouped together for this purpose.
Main Examination after Delivery.—(a). Any shell of a lot which fails to pass the chief inspector’s gages, or fails to satisfy the chief inspector of its serviceability, will be rejected. (b). If at any time during the examination it is found that defects of any nature, other than errors of machining, which involve rejection of defective shells, amount to 5 per cent of the number of the shells in the lot, the “lot” will be rejected, (c). One or more shells selected from the lot will be taken to pieces, and the body broken, if necessary, to ascertain that the details of manufacture and component parts are correct, and that the material is sound. Should they be incorrect, or the material unsound, in any particular, the lot will be rejected. The driving band will be cut out, and should it appear not to have been pressed thoroughly home into the undercut and groove throughout, the lot will be rejected. (d). If, at any time during the examination of a lot, it is found that 5 per cent of the shells in the lot depart from the approved design, further examination of the lot will be suspended. The whole of the lot must be re-examined by the firm and those shells which are incorrect eliminated. Those shells in which the departure can be rectified may be brought to the approved design by the firm. The lot may then be re-submitted.
Tests.—At least 1 per cent of the shells of every cast will be subjected to tensile tests. Test pieces will be cut from the shell blank, or from the finished shell at the option of the chief inspector, and must be capable of standing the following minimum tests:
[255]
|
Tenacity, Tons per Square Inch |
Elongation in a Test Piece 2 Inches
in Length, or such Piece as can be cut from the Shell, provided that |
|
|
Yield Point |
Breaking Stress |
Length / √Area = 4 |
| 36 | 56 | 8 per cent |
If any one or more of the conditions in this clause are not complied with, the lot, or lots, of shell affected, will be rejected, and must not be re-submitted. The contractor will supply, free of charge, the necessary “Class C” metal for testing, if requested by the chief inspector to do so. The pieces should not be less than 7 inches in length, nor less than 1 inch in diameter, and will be required to stand the following test:
|
Tenacity, Tons per Square Inch |
Elongation in a Test Piece 2 Inches
long and 0.564 Inch in Diameter |
|
|
Yield Point |
Breaking Stress |
|
| 6 | 12 | 10 per cent |
Proof.—(a). A percentage of the shell will be fired for recovery from an 18-pounder Q. F. gun, with such a charge as will give a chamber pressure not less than 15 tons per square inch. Should the shell so fired set up above the high diameter of body, or break up in the gun, or should any portion of the driving band separate from the shell before first graze or impact, or should the recovered shell show that the shock of discharge had distorted the disk supporting the bullets, or cause such alteration of the internal parts as would interfere with the correct action of the shell, or should any of the components be incorrect, the lot will be rejected, provided always that the pressure did not exceed the specification proof pressure by 0.5 ton. If the pressure did exceed this limit, a second proof must be taken at the government’s expense before the lot is rejected. The pressure [257] of the round, if not taken, will be assumed to be that of the last round fired with the same charge in which pressure was taken. Further, should the shell be reported unsteady in flight, and be found on recovery to be without its driving band, or with the driving band loose or slipped in its seating, then the driving band of a similar number of shells to that taken for firing proof may be cut out to ascertain whether they have been properly pressed on; if they have not been pressed down to the satisfaction of the chief inspector, the lot will be rejected. If found correct, such shells will be rebanded by the contractor free of charge.
(b). The shells fired for proof may, after recovery, be broken to ascertain the soundness of their material. Should any of the material be unsound in any respect, the lot will be rejected.
Re-submission.—(a). A rejected lot must not be re-submitted unless the rejection is due to failure of the driving band, or to rectifiable gaging defects. (b). Shells put out at any period of inspection for remediable defects may be re-submitted for further examination after the defects have been rectified. It is to be understood that the examination of such shells at that time will be incomplete, and that they are liable to rejection after rectification. (c). If the contractor wishes to re-invoice a lot rejected for failure of driving bands, he must remove the shells and re-band them before they are again submitted, (d). Rejected shells will, if considered necessary, be marked with a small rejection mark, so that they can be readily identified if redelivered.
Replacement of Proof.—The contractor will be required to replace, free of charge, all shells expended in proof and examination, which, whether fired or otherwise tested, will be the property of the government.
Packing.—All packages are to be so marked that the goods contained therein may be readily identified with the invoice. Unless it is specified in the contract that the packing cases or other packing material are to become the property of the war department, they will remain the property of the contractor, who is responsible for their removal.
[258]
Should they not be removed within two months of the acceptance at the stores, they will be disposed of, and under such circumstances the contractor will not be entitled to make any claim for compensation. The packing cases must be marked “Returnable” or “Non-returnable.”
Inspection.—The shells may be inspected at any time during manufacture by, and after delivery will be subject to testing by, and to the final approval of, the chief inspector, Royal Arsenal, Woolwich, England, or an officer deputed by him. In cases of defects occurring in manufacture which necessitate repairs, the contractor shall bring the same to the notice of the inspecting officer, and shall obtain from him written authority to proceed with such repairs as may entail patching, burning, electric welding, or other similar processes.
WEIGHT OF 18-POUNDER SHRAPNEL SHELL PARTS
| Weights (avoirdupois) | ||||
| Part | Pounds | Ounces | Drams | |
| Steel body | 6 | 5 | 12 | ± 2 oz. |
| Driving band | 4 | 12 | ||
| Metal socket | 8 | 8 | ||
| Steel disk | 9 | 8 | ||
| Brass tube | 2 | 12 | ||
| Tin cup | 1 | 12 | ||
| Bullets, about 327 of alloyed metal, 41 per pound | 7 | 14 | 13¹⁄₂ | |
| Resin | 13 | 11 | ||
| Total weight empty (unpainted)* | 16 | 13 | 8¹⁄₂ | ± 11 drams |
| Bursting charge | 2 | 8 | ||
| Paint | 5¹⁄₂ | |||
| Fuse | 1 | 7 | 10 | |
| Total weight | 18 | 8 | ± 5 drams | |
| * To regulate weight of shell, a few buckshot may be used. | ||||
Plug for Fuse Hole.—The plug is to be made of a copper alloy, and to the form and dimensions shown on the drawing, threaded externally on the body, and a square recess, tapered, is to be formed in the top. The screw threads must, unless otherwise stated, be of the British standard fine screw thread, and conform to the standard gages of the chief inspector, Royal Arsenal, Woolwich, England. Contractors may send their screw gages to the chief inspector, to be compared with the standard gages.
[259]
Any plug of a delivery which fails to pass the inspecting officers’ gages, or shows flaws or sponginess on the surface, or fails to satisfy the chief inspector, Woolwich, as to its serviceability, will be rejected. If at any time during the examination it is found that defects of any nature, other than errors of machining, which involve rejection of the defective plugs, amount to 5 per cent of the number of plugs in the delivery, the whole order will be rejected. If at any time during the examination of a delivery it is found that 5 per cent of the plugs in the delivery will depart from the approved design, further examination of the plugs will be suspended; the whole of the delivery must be re-examined by the firm, and those plugs which are incorrect to design eliminated. Those plugs in which the departure can be rectified may be brought to the approved design by the firm. The delivery may then be re-submitted for examination. The contractor will be required to replace free of charge all plugs expended in test and examination, which will become the property of the government.
[260]
The following specifications, abstracted from the official requirements relating to British “Mark I” (No. 85) combination time and percussion fuses, give the general information required in the manufacturing and inspection of these fuses. These specifications, in conjunction with the very complete illustrations, Figs. 1 to 6, inclusive, of the design and details of the British fuse, give all the essential data required.
Components.—The fuse consists of the following parts: Body, top and bottom composition rings; cap with set-screw; base plug with screw plug; time detonator pellet in two parts; percussion pellet with sleeve and firing pin; detonators; four spiral springs; brass and steel pins; onion skin paper; unbleached muslin; felt cloth and brass washers; brass and tin-foil disks; suspending ring for time pellet; and onion skin paper patches.
Metals.—The body and composition rings are to be made of bronze or metal known as “Class B;” the time detonator pellet and percussion pellet to be of hard-rolled brass; the percussion firing pin pivot, of steel, phosphorized or blued; the time and percussion firing pins, of bronze or “Class B” metal; all other parts of the fuse, except where otherwise stated, of metal “Class C,” or hard-rolled brass. The contractor must supply the necessary metal for testing, free of charge.
Metals designated by “classes” are copper alloys, the compositions of which are left to the discretion of the makers providing the metals conform to the above tests.
Before proceeding to manufacture, the material must be submitted to the inspecting officer for mechanical test. When practicable, test pieces should not be less than 7 inches in length nor less than 1 inch in diameter, and will be required to stand the following minimum tests:
[261]
| Metal | Tenacity, Tons per Square Inch | Elongation in Per Cent in such a Test Piece as can be furnished, provided that | |
| Yield Point | Breaking Stress | Length / √Area = 4 | |
|
Bronze Class “B” Class “C” Hard-rolled Brass |
13.5 12 6 6 |
27 20 12 12 |
20 30 10 10 |
Body.—The body is to be turned all over, and threaded externally at the upper and lower ends, a bevel being formed at the junction of the stem and the flange. The stem is to be bored, and a hole drilled at the bottom of the bore to receive the time firing pin. The upper surface of the flange is to be grooved. The interior is to be bored out to form a chamber for the reception of the percussion arrangement and threaded for the base plug; a hole is to be bored and threaded at the bottom of the bore to receive the percussion detonator holder. An annular recess is to be made for the magazine. Communicating holes are to be drilled as follows:
(a) At an angle to the top surface of the flange.
(b) Vertically from the magazine recess.
(c) Horizontally at the top of the detonator recess.
(d) At an angle to join (b) and (c).
(e) At an angle from outside to bottom of recess in stem.
Holes (c) and (d) are to be closed by plugs driven in and secured by punch stabs. Two slots are to be cut in the flange as shown in Fig. 2, and an elongated hole made to receive a stop pin, which is to be secured by a small pin, driven in. A setting mark is to be cut on the edge of the flange.
Top Composition Ring.—The ring is to be turned all over, and bored to fit the stem of the body. A groove is to be formed in the under side for the composition, and a recess made as shown in Fig. 2, three holes being drilled from the upper surface into the recess. A hole is to be drilled [262]through the ring between the ends of the composition channel, and recessed. A recess is to be formed in the bore, from which a flash hole is to be drilled at an angle communicating with one end of the composition channel, a vertical escape hole being made from the top surface to the flash hole. An indicating mark is to be made on the outside of the ring. Two holes are to be bored between the ring and the stem of the body, into which pins are to be inserted to retain the ring in position. The ring is to be made 0.020 inch thicker than the dimension given on the drawing, and faced off to thickness after powder is pressed into the groove.
Bottom Composition Ring.—The ring is to be turned all [263]over and bored to fit the stem of the body, the upper surface being grooved. A groove is to be formed in the under side for the composition, and an annular recess made, three holes being drilled from the upper face into the recess. A hole is to be drilled in the ring from the under side between the ends of the composition channel. An escape hole is to be drilled, at an angle, from the end of the composition channel to the annular recess, and a recess made to receive the closing disk. A hole communicating with the groove and the escape hole is to be drilled at an angle to the top surface to receive a powder pellet. A hole is to be drilled and recessed for a setting pin, which is to be secured by a small pin driven in. The ring is to be graduated from “0” to “21.2;” each division, after the first, is to be sub-divided into five parts. A line to denote safety position is to be marked. The marking is to be blackened with japan black thinned with spirits of turpentine, except the mark denoting the safety point, which is to be colored red.
Cap with Set-screw.—The cap is to be machined all over, and recessed internally to receive the time detonator pellet. The lower part of the recess is to be threaded to screw over the stem of the body. Two slots are to be made in the cap to receive a key, and a hole is to be drilled through the side and tapped to take a brass set-screw. A groove is to be made near the top, which is to be partially closed by spinning over the edge. Four escape holes are to be drilled at an angle from the recess on the under side, into the groove.
Base Plug.—The base plug is to be threaded externally to fit the bottom of the body. Two holes are to be drilled in the under side to facilitate assembling, and a central recess formed with a seating to receive a brass washer with a muslin disk. Six holes are to be drilled at an angle from the upper surface into the lower recess, and a hole drilled and tapped in the bottom to take a screw plug. This plug is to be threaded externally to fit into the bottom of the base plug.
Time Pellet and Detonator.—The pellet is to consist of two parts, which are to be turned and bored, the parts being [264]screwed together to secure the detonator. A screwdriver slot is to be made in the top surface, and a seating formed on the outer surface for the suspension ring. The detonator is to be turned all over and recessed, four fire holes being drilled through into the recess. The recess [265]is to be coated with non-acid paint and charged with 0.45 grain of the following composition (giving parts by weight):
|
Glass Fulminate of Mercury Chlorate of Potash Sulphide of Antimony Shellac (dry) |
50 40 20 30 2.8 |
The ingredients are to be thoroughly pulverized, excepting the fulminate, mixed dry, and then covered with alcohol. The fulminate will then be added and the whole thoroughly mixed. The composition is to be covered with a brass disk secured by shellac. The recess in the plug is to be coated with a composition of shellac and rosaniline and filled with 1¹⁄₂ grain of shrapnel powder compressed with a total pressure of 60 pounds. The detonator is to be inserted in the holder, and secured in place by the screw plug, the two being locked together by a small brass pin.
Percussion Pellet.—The percussion pellet is to be machined all over, two holes being bored in the upper surface and a slot cut to receive the firing pin. Two holes are to be drilled at right angles to the slot and parallel to the flat surfaces, one to receive the pivot for the firing pin and the other for the centrifugal bolts. The sleeve is to be machined all over, and is to be a driving fit on the pellet. Two spiral springs and two small pellets, and a pivot pin for the firing pin, are to be provided. All parts, except the pivot pin, are to be tinned all over. The parts are to be assembled, and a hole drilled into the sleeve and pellet, and a small brass pin driven in.
Percussion Detonator and Holder.—The percussion detonator is to be turned and recessed on both sides, two flash holes being drilled between the two recesses. The smaller recess is to be charged with 0.45 grain of the following composition (the figures giving parts by weight):
|
Chlorate of Potash Sulphide of Antimony Sulphur Glass Shellac |
43.19 21.5 7.5 10.5 1.7 |
The ingredients are to be thoroughly pulverized and mixed dry. Alcohol will be added to dissolve the shellac. The detonator will be formed by pressing the mixture, while in a plastic state, into the recess. On the evaporation of the alcohol the composition should adhere strongly to the metal. A brass disk, 34 in Fig. 5, is to be secured over the composition with shellac. The larger recess is to be varnished with a composition of shellac and rosaniline, and 4 grains of shrapnel powder compressed into it with a pressure of 127 pounds and covered with a disk of tin foil, shellacked on. The holder is to be threaded externally to fit in the body, and recessed to receive the detonator, a central hole and two key-holes being made.
Pellets.—The powder pellets are to be made to the shapes shown in Fig. 5. Pellets 33 and 35 are to be made from compressed unglazed black powder, with clearance holes as shown; pellets 32 and 36 are to have the clearance holes filled with 0.05 and 0.02 grains, respectively, of gun cotton.
Percussion Springs.—The springs used in the percussion plunger must be made to the form and size shown in Fig. 5, and tinned. The percussion safety pin spring (21) is to be made from 0.012 inch diameter brass wire, tinned, and wound so as to give a free height of 0.150 inch ± 0.030 inch, and at such a spacing as to give 44 coils per inch. The percussion restraining spring (30) is to be made from 0.015 inch diameter brass wire, tinned, and wound so as to give a free height of 0.500 inch ± 0.050 inch, and at such a spacing as to give 36 coils per inch. This spring is to have a maximum resistance of 1.65 and a minimum of 1.5 ounce at an assembled height of 0.370 inch.
Suspending Ring.—The suspending ring for time detonator pellet is to be made of brass wire. The ring is to be of such strength that when tested with steel counterparts of the stem and pellet, the latter is forced through the ring with a deadweight load of from 69 to 77 pounds.
Cloth Washers.—The cloth washers are to be made from waterproofed felt cloth, with holes cut in them. The body and graduated time train washers 16 and 17, respectively, [269]which are shown in Fig. 5, are to be subjected to a pressure of approximately 10,000 pounds per square inch after assembling, before closing cap is screwed on and adjusted.
Lacquering and Polishing.—The exterior surfaces of the fuse are to be polished and lacquered with a lacquer consisting of 1 pound of seedlac, 8 ounces of turmeric, and 8 pounds (1 gallon) of methylated spirits. The groove in the top and bottom composition rings, the magazine recess in the body, the powder channels and groove in the base plug, and the powder chambers of time detonator and percussion detonator holder, are to be lacquered with a lacquer consisting of 10 grains of rosaniline, 1¹⁄₂ pound of powdered shellac, and 1 quart of methylated spirits.
Screw Threads.—The screw threads must, unless otherwise stated on the drawing, be of the British standard fine screw thread, and conform to the standard gages of the government inspector. For fuses not made in England, the British standard threads will not be insisted upon, except for the large thread on the body.
Time Arrangement.—The grooves on the under side of the composition rings are to be charged with 56 grains of No. 22 meal powder compressed at 68,000 pounds per square inch; the rings are then to be faced off, and the holes at the ends of the channels drilled. The onion skin paper washers are to be secured to the surfaces by shellac. Perforated pellets of black powder are to be inserted in the flash hole in the top ring, escape hole and flash hole in bottom ring, and flash hole in the body, the pellets for escape hole in bottom ring and flash hole having the perforation filled with loose gun cotton. The space at the end of the channel in the bottom ring is to be filled with loose meal powder. An onion skin paper patch is to be secured over the flash hole in top ring, and the escape hole in bottom ring closed by a brass disk secured by two center-punch holes, and coated with shellac. The cloth washers are to be secured on the upper faces of the body and the lower time ring with fish glue, and subjected to a pressure of 10,000 pounds per square inch.
[270]
[271]
Assembling and Closing.—The different parts of the fuse are to be put together as in the assembly view, Fig. 1. The cap is to be screwed down so that a turning moment of 325 ± 25 inch-ounces will just turn the ring, the cap being secured by means of a set-screw. The bench or table upon which the tensioning apparatus is fixed is to be jarred by tapping with a mallet to assist the turning of the ring. The base plug is to be screwed into the body, and the magazine filled with fine-grain powder through the filling hole. The bottom of the fuse is to be coated with shellac varnish.
Delivery.—The fuses are to be delivered in lots of 2000, an additional 40 being supplied free, for purposes of proof. In the event of further proof being required, the fuses will be taken from the lot.
Proof.—The fuses selected for proof will be tested as follows:
(a) Ten will have the percussion arrangement removed, and will be tested to determine the mean time of burning at rest. The time train will be set at the highest graduation mark. The mean time of burning, set full when corrected for barometer, will be 22.9 seconds ± 0.4 second. The constant to be used, when correcting for barometer, is 0.023 of the mean time of burning, for every inch the barometer reads above or below 30 inches, being plus when above and minus when below. The difference between the shortest and longest time of burning is not to be more than 0.5 second. If the lot fails to pass this test, a further proof will be taken; the fuse must burn within the limits specified above, otherwise the lot will be rejected. Should the detonator fail to ignite the time ring, a second proof will be taken; should a similar failure occur at second proof, or should there be more than one such failure at first proof, the lot will be rejected.
(b) Twenty fuses will be fired, at the same elevation, in any of the following guns, with full charges, and the time of burning noted. The requirements as to the result of the firing with the fuses set at different graduations are as given in detail in the following:
[272]
1. The mean difference from the mean time of burning of the 20 fuses is not to exceed:
| In 18-pounder guns |
if set full if set 16 |
0.14 0.11 |
second second |
| In 13-pounder guns |
if set full if set 14 |
0.2 0.13 |
second second |
The difference between the longest and shortest fuse is not to exceed:
| In 18-pounder guns |
if set full or omitting one fuse if set 16 or omitting one fuse |
0.75 0.6 0.6 0.5 |
second second second second |
| In 13-pounder guns |
if set full or omitting one fuse if set 14 or omitting one fuse |
0.9 0.7 0.7 0.5 |
second second second second |
2. If there is one blind fuse, a second proof will be taken. If there is a blind at second proof, or more than one such failure at first proof, the lot will be rejected.
(c) Five fuses from a lot will be tested, in shrapnel shells, by firing them set at “0” from a gun with a muzzle velocity of 1500 to 1800 feet per second. The fuses should burst the shells at from 5 to 50 yards from the muzzle of the gun. Should there be a burst in the gun, the lot will be rejected. Should any fuse fail to act within 50 yards, second proof will be taken; should a similar failure occur in the second proof, or should there be more than one such failure at first proof, the lot will be rejected.
(d) Five fuses from a lot will be tested in common shells by firing them over sand, at such an elevation that the angle of descent will not be more than 4 degrees. When one only of a set of fuses so fired fails to burst on first graze the lot will be accepted without further proof; if there be more than one failure to burst on graze in the second proof, the lot will be rejected. The fuses must burst at the point of impact. For percussion proof the time ring is to be set on the bridge.
[273]
(e) A premature explosion due to the fuse in any of the foregoing proofs will cause the rejection of the lot.
(f) Should any other gun be introduced for proof of this fuse, which differs from the above guns in either muzzle velocity or twist of rifling at muzzle, the above conditions will be subject to modification.
(g) If, in the proof of any delivery, defects are found involving the serviceability of fuses, additional proof may be taken from any other delivery not finally closed, to ascertain if the defect is general. Should the fuses fail at this further proof, the delivery will be rejected without reference to the original proof. The total proof of any delivery shall not exceed 5 per cent of the lot. The contractor will be required to replace all fuses expended in further proof or examination free of charge, which, whether fired or otherwise tested, will become the property of the government.
Inspection.—(a) The components of the fuses, during manufacture and assembling, and the completed fuses after delivery, will be subject to examination and gaging by, and [274]to the final approval of, the chief inspector or an officer deputed by him. Any component or fuse, which is not finished to the satisfaction of the chief inspector, or his representative, or which has any flaw or imperfection, will be rejected.
(b) If, at any time during examination, it is found that defects of any nature which involve rejection of the defective components, or fuses, amount to 5 per cent of the number in the lot, the lot will be rejected.
GRADUATION TABLE FOR TIME RING ON BRITISH COMBINATION TIME AND PERCUSSION FUSE
| ||
| Graduation | Angle | |
| Deg. | Min. | |
|
0 to 5 0 to 1 1 to 2 2 to 3 3 to 4 4 to 5 5 to 6 6 to 7 7 to 8 8 to 11 each 11 to 12 12 to 13 13 to 14 14 to 15 15 to 16 16 to 17 17 to 18 18 to 19 19 to 20 20 to 21 21 to 21.2 |
26 16 15 15 16 14 14 14 13 13 13 13 13 12 12 12 11 13 14 16 3 |
0 45 15 30 30 40 35 15 55 35 20 10 0 50 30 0 30 10 30 20 30 |
(c) If, at any time during examination of the lot, it is found that 5 per cent of fuses in the lot depart from the approved design, further examination will be suspended. The whole of the lot must be re-examined by the contractor and those fuses which are incorrect to design eliminated. Those fuses in which the departure can be rectified may be changed to the approved design by the contractor. The lot may then be re-submitted for examination.
[275]
Tests for Safety in Transportation.—From each lot, 20 time and 20 percussion plungers are to be tested to ascertain the correctness of their weights and static resistances. Lots of plungers not correct within the tolerence allowed will be rejected. At the commencement of manufacture, 6 time and 6 percussion plungers from each lot will be subjected to a drop test against a steel block 11.5 inches in diameter, 4.5 inches thick, resting on a concrete pier, to determine the limit in heights at which the same will arm when carried in standard dropping pieces. One of the pieces weighs 15 pounds and has the form of a 3-inch shell; the two other pieces are lighter and smaller. No concussion plunger is to begin to arm when falling in the lighter piece from a height of 4 feet 6 inches; all shall fully arm in the shell with 14 feet 8 inches drop. No percussion plunger is to begin to arm in the special piece falling with 6 feet 2 inches drop; all shall fully arm in the shell with a 17 feet 6 inches drop.
Jumbling and Jolting Test.—Ten fuses will be placed, one at a time, in a wooden box approximately 16 inches by 11 inches by 5 inches inside dimensions, revolving at thirty revolutions per minute, about one of its diagonals, for four hours. The fuses will then be placed in an adjustable fuse-holder on the end of a hinged lever 16 inches long, which, by the motion of a cam, is raised 4 inches, thirty-five times per minute, and allowed to drop on an iron anvil. The fuses are thus dropped for an hour, point downward, base downward, and side downward, respectively. The primer shields must not be marked, and the time trains, powder pellets, etc., must be intact.
[276]
The following specifications of the British 18-pounder quick-firing cartridge case and primer govern the manufacture and inspection of these cases and primers. They are abstracted from the official specifications and give the most important information required by the manufacturer and inspector.
Construction.—The cartridge may be either solid drawn brass or built up, the nature of the alloy and the thickness and distribution of the metal being left to the contractor, except that the dimensions must agree with those in Fig. 1. The maximum weight is to be 3 pounds 1 ounce. If electrolytic copper is used, it must be melted and run into ingots before use. In manufacture the number of drawings and the number of annealings must not be less than six. Should any folds or rings exist in the metal of the base, they must not be removed; any marks of cutting or turning of the metal of the inside of the base will cause the rejection of the cartridge. In the center of the base a hole is to be bored and threaded to receive the primer. The cartridges are to be marked on the base with the numeral and the contractor’s initials or recognized trade-mark.
Screw Threads.—The screw threads must, unless otherwise stated, be of the standard Whitworth thread, be cut full, and conform to the government inspector’s standard gages. Contractors may send their gages at any time to the chief inspector to be checked and compared with the standard gages.
General Conditions.—The contractor is to supply, with the first delivery, a full-sized tracing, on tracing cloth, of the cartridge he is delivering. The contractor will also supply, free of charge, samples of the metal from which the cases are to be made, if requested by the chief inspector to do so. The samples should not be less than 6 by 2 inches. [277]Cases in stock, that is, cases made before the date of the contract, must not be submitted for acceptance under a given contract.
The cartridges should be delivered in lots of not less than 400. If less than 400 are delivered, the number of rounds to be fired in proof will be the same as if the delivery were the full 400. If, on examination of twenty per cent of a lot, it is found that departures from approved design, or defects of any nature, which involve rejection of the cases, average twenty-five per cent of the number examined, the whole of the lot will rejected.
Proof.—(a) Not less than one-half per cent will be fired in proof. At least one cartridge from each 400 delivered will be fired three times, one round being with a proof charge, and the cartridge being (if necessary) reformed after each round. In each remaining cartridge, one proof and one service round will be fired.
(b) The cartridge must load and extract easily, and must not split or develop any flaw or crack on firing.
(c) The cartridge may be sectioned after firing; the section must show no cracks.
(d) The maximum pressure is not to be more than 19 tons per square inch.
(e) If, in the proof of any delivery, defects appear which involve the serviceability of the article, additional proof may be taken from any other delivery not finally closed, to ascertain if the defect is general or not. Should the cases fail at this further proof, the delivery will be rejected without reference to the original proof. The total proof of any delivery shall not exceed five per cent of the number delivered.
Replacement of Proof.—The contractor will be required to replace all cartridges expended in proof free of charge, and when the order is approaching completion, he will be informed by the inspector how many are required to complete the number on the order, exclusive of the cartridges so expended, which, whether fired or otherwise tested, will become the property of the government.
[278]
Packing.—All packages will be so marked that the goods contained therein may be readily identified with the invoice. Unless specified herein that the packing cases or other packing material will become the property of the war department, they will remain the property of the contractor, who is responsible for their removal. Should they not be removed within two months of the acceptance of the cartridge cases, they will be disposed of, and in such circumstances the contractor will not be entitled to make any claim for compensation. The packing cases must be marked “Returnable” or “Non-returnable.”
Spontaneous Cracking.—Any cartridge found to be cracked before or after filling, but before firing, is to be replaced by the contractor if such crack is discovered within six months of the date of acceptance of the cartridge in question, which date is stamped on it.
The cartridges may be inspected during manufacture by, and after delivery will be subjected to testing by, and to the [279]final approval of, the chief inspector, Royal Arsenal, Woolwich, England, or an officer deputed by him.
Primer.—The primer is to consist of the following parts (see Fig. 2): body A; closing disk B; anvil C; plug D; cap E; tin foil F; ball G; paper disk H; gun powder I; and Pettman cement. The body is to be made of composition metal known as Class “A” or “B.” All other metal parts of the primer, except where otherwise specified, are to be made of brass. The brass is not to contain more than 0.3 per cent of lead, nor to have more than one per cent of total metallic impurities. The Class “A” or “B” metal is to be in accordance with the following requirements: It must be perfectly straight, uniform in diameter, and free from cracks or flaws, and must be capable of standing the following minimum tests:
|
Tenacity, Tons per Square Inch |
Elongation in Per Cent in such a Test Piece as can be furnished, provided that | |
| Yield Point | Breaking Stress | Length / √Area = 4 |
|
Class “A”, 20 Class “B”, 12 |
Class “A”, 30 Class “B”, 20 |
Class “A”, 20 per cent Class “B”, 30 per cent |
Pieces of the metals it is proposed to use in the manufacture must be submitted free of charge by the contractor, for testing, when requested by the chief inspector.
Body.—The exterior of the body is to be turned and threaded and a flange formed. Two slots are to be cut in the head for the key. The interior is to be bored, cupped, and threaded. The exterior of the body is to be lacquered with a lacquer consisting of:
|
Seedlac Turmeric Spirit, Methylated |
1 8 8 |
pound. ounces. pounds. |
Screw, Plugs and Copper Ball.—A plug having one end turned to form an anvil, which is to be free from burrs, is [281]to be threaded to suit the body. The interior is to be turned out to receive the soft copper ball, and three fire holes bored. A plug is also to be threaded to suit the body, having an annular recess turned on the inner side, and three fire holes bored.
Cap.—The cap is to be made of copper and the interior is to be varnished with varnish composed of:
|
Finest orange shellac Spirit, Methylated |
2 pounds 2 8 |
ounces. pounds. |
The specific gravity of the varnish is to be 0.885. It is then to be charged with 1.2 grain of the following composition (figures give parts by weight):
|
Sulphide of antimony Chlorate of potash Ground glass Meal powder Sulphur |
18 12 1 1 1 |
The composition is to be pressed into the cap with a pressure of 800 pounds. A tin-foil disk, lacquered on one side, is then to be placed on the composition with the lacquered side outwards, and placed under a pressure of 400 pounds. It is then to be varnished with a varnish composed of:
|
Finest orange shellac Seedlac Turmeric Spirit, Methylated |
2 pounds 2 1 8 16 |
ounces. pound. ounces. pounds. |
The specific gravity of this varnish is to be 0.865.
The lacquer for the tin-foil disk before insertion is composed of:
|
Seedlac Turmeric Spirit, Methylated |
2 1 16 |
pounds. pound. pounds. |
The specific gravity of this lacquer is 0.85.
The cap is to be externally coated with Pettman cement before inserting in the body, and then a fillet of Pettman [282]cement is formed between the body and cap; Pettman cement is made from the following ingredients:
|
Gum shellac Spirit, Methylated Tar, Stockholm Red, Venetian |
7 pounds 8 8 5 20 pounds 12 |
ounces. pounds. pounds. ounces |
Gun Powder.—The primer is to be filled with R. F. G.2 powder, the screw plug being first screwed in and fixed by three small punch blows, and the fire holes covered by a disk of paper secured with Pettman cement.
Closing Disk.—A brass disk having a paper disk secured to it on the inner side by Pettman cement is to be placed on the top of the powder, and a ring of Pettman cement painted round the edge of the disk where the metal will be burred over onto it. After the primer is burred over, the whole of the exterior of the disk will also be coated with a thin layer of the cement.
Marking and Delivery.—The primers will be marked with the numeral, serial number, contractor’s initials or recognized trade-mark, and date of manufacture. The primers will be delivered in lots of 1000, an additional 20 being supplied for proof with each 1000, or any less number supplied. In the event of further proof being required, the primers will be taken from the lot.
Proof.—A percentage of the primers will be selected indiscriminately for proof.
(a) The primer when screwed into a steel block must fire correctly with a 1-pound weight falling 25 inches, and ignite a puff consisting of 4 drams of R. F. G.2 powder enclosed in one thickness of shalloon, in a 12-inch vent with special receiver, or when proved in any gun for which approved, it must ignite the charge without hang-fire.
(b) A miss-fire, hang-fire, pierced cap, or serious escape of gas through or around the primer will cause rejection.
(c) The falling weight is to have a point of the same shape as the service striker.
(d) Should the firing proof or examination of any delivery bring to notice any defect or defects which, in the [284]opinion of the chief inspector, affect the serviceability of the primers, the delivery in question may be rejected, or further proof taken at his discretion, not only from the particular delivery, but from any others made by the contractor which may be under inspection, to ascertain whether the defect is general. Should any primers fail at these further proofs, the delivery or deliveries will be rejected without reference to any previous proof.
If, on examination of twenty per cent of a lot, it is found that departures from approved design or defects of any nature which involve rejection of the defective primers average 25 per cent of the number examined, the whole of the lot will be rejected. The contractor will be required to replace free of charge all primers expended in proof and examination, which, whether fired or otherwise tested, will become the property of the government.
Specifications for Cartridge Clip.—The general dimensions for the cartridge clip are given in Fig. 3. The clip is made from hard-rolled sheet brass in one piece. Four projecting arms are to be formed; the ends of each are bent over as indicated. The clip is sand-blasted, and lacquered with a lacquer composed of:
|
Vegetable black Seedlac Turpentine (1 quart) Methylated spirits (6 quarts) |
1 1¹⁄₂ 2 12 |
pound. pound. pounds. pounds. |
One arm is coated with paint consisting of:
|
Vermillion, dry Shellac, dry White hard varnish Spirits, Methylated |
2 1 ³⁄₄ 1¹⁄₂ |
ounces. ounce. ounce. ounce. |
Loop.—The loop is to consist of 13 inches of “webbing, cotton, ¹⁄₂ inch,” threaded through the clip and sewed. Three yards of webbing, selected from the bulk, are to be submitted to the chief inspector before being used. The webbing submitted will be cut into lengths of 11 inches and the ends of each length securely fixed in the clamps of a [285]testing machine, the clamps being 7 inches apart. The strain will be gradually increased until the sample breaks. The breaking strain must not be less than 200 pounds.
Delivery.—The clips will be delivered in lots of 1000. If, on examination of 20 per cent of a lot, it is found that departures from approved design, or defects of any nature, which involve rejection of the clips average 25 per cent of the number examined, the whole of the lot will be rejected.
[286]
The American shrapnel shells comprise the following parts: forged shell body, copper driving band, head, washer, tubes, bullets, matrix, head filler, diaphragm, base charge, and fuse. In some cases a Semple tracer is used, and, when this is the case, the base of the shrapnel must be machined to accommodate it.
Shell.—The shell is to be made of forged alloy steel or bar stock having the properties outlined in Table I. The forgings must be annealed so that they can be machined with reasonable ease. The maximum elastic limit for the 2.95-inch and 3-inch shell forgings must not exceed 115,000 pounds per square inch, and in case of the 3.8-inch, 4.7-inch, and 6-inch must not exceed 110,000 pounds per square inch. All shrapnel shells must be subjected to an exterior hydraulic pressure of 20,000 pounds per square inch up to the rotating band, and to an interior hydraulic pressure of 1000 pounds per square inch. A certain number from each 1000 shells are also subjected to a ballistic test by firing completed shrapnels from a gun with a maximum pressure of 37,000 pounds, except for the 6-inch, which will be fired under a pressure of 22,500 pounds per square inch.
The shell is to be finished outside and inside except at points otherwise indicated, where it is to be left in the rough-forged state. The inside of the shell is to be coated with non-acid paint, except where machined, and the powder chamber is to be given a heavy coat. Great care should be taken to remove all burrs, scale, and sharp corners. The outline of the shell after the first operation, when made from bar stock, is shown by dotted lines in Fig. 1. The base of the shell is to be machined as illustrated to the right at A in Fig. 1, when a Semple tracer is used.
Copper Driving Band.—The copper driving band is to be cut from tubing of pure electrolytic copper, and machined to the dimensions shown. It is to be heated and expanded [288]to 2.985 inch inside diameter—for the 3-inch shell—and is to be shrunk into the seat, then forced into the scores by passing through a die and afterwards turned to size.
Washer and Head.—The washer—for the 3-inch shell—is to be made from steel 0.031 inch thick and formed to shape by punching. The head is to be made from cold-drawn steel, finished all over, and coated inside with a non-acid paint. The crimping wall is to be turned down over the washer after machining, and a hole drilled after the head is assembled to the shell. Five notches equally spaced are to be cut around the head, and a crimping groove cut for putting on the fuse protecting cap.
Tube.—The tube is to be made from seamless drawn brass tubing, and is to be coated inside with shellac. An additional short tube is to be inserted at the nose or mouth of this tube, next to the fuse; this latter is to be made from seamless drawn copper, and is to be forced into the tube under pressure and crimped over.
[289]
Bullets.—The bullets used in the shrapnel are to be made from 12.5 per cent antimony to 87.5 per cent lead, and are to be flattened with six faces as shown in the illustration; 252 bullets are used in the 3-inch shrapnel.
Matrix and Head Filler.—The matrix is to consist of resin and mono-nitronaphthalene, poured into the shell, as will be described in connection with loading. The head is to be filled with melted resin, poured in.
Diaphragm.—The diaphragm is to be made of forged steel to the dimension shown. It is to be drilled and counterbored, and great care should be taken to remove all burrs, sharp corners, and scale. The bottom of the diaphragm is also to be given a heavy coat of non-acid paint.
TABLE I.
PHYSICAL PROPERTIES OF STEEL FOR VARIOUS
SIZES OF SHRAPNEL SHELLS
| Caliber, Inches | Tensile Strength, Pounds Per Square Inch | Elastic Limit, Pounds Per Square Inch | Elongation in 2 inches, Per Cent | Contraction, Per Cent |
|
2.95 3.0 3.8 4.7 6.0 |
120,000 120,000 110,000 110,000 110,000 |
90,000 90,000 80,000 80,000 80,000 |
16 16 15 15 15 |
45 45 40 40 40 |
Fuse-hole Plug.—There are two types of fuse-hole plugs; one is to be made from die-cast white metal, of non-corrosive properties, and machined to dimensions given in drawing, and the other of wrought iron or bronze. The weight of the wrought-iron plug—for the 3-inch shell—is to be 0.97 pound, and the weight of the bronze plug, 1.03 pound. Either type of fuse-hole plug may be used.
Locking-Pin.—Two steel locking-pins are required which must be finished to limits of ± 0.005 inch, driven in and peened over after the head is assembled in the shell.
[290]
TABLE II.
PRINCIPAL DIMENSIONS OF AMERICAN SHRAPNEL SHELLS, HEADS
AND DIAPHRAGMS
| Caliber, Inches | Shrapnel Forging | Shrapnel Shell | Shrapnel Head | Diaphragm | ||||||||
| A | B | C | D | E | F | G | H | I | J | K | L | |
|
2.95 3.0 3.8 4.7 6.0 |
7.25 8.66 10.3 13.2 16.6 |
3.0 3.05 3.85 4.75 6.05 |
0.30 0.375 0.50 0.60 0.80 |
2.2 2.1 2.5 3.0 3.9 |
2.5 2.375 2.9 3.5 4.6 |
2.95 3.0 3.8 4.7 6.0 |
7.2 8.5 10.12 13.00 16.45 |
2.85 2.73 3.51 4.25 5.33 |
1.7 1.7 1.7 1.7 1.7 |
1.05 0.87 1.4 2.3 3.35 |
2.5 2.36 2.89 3.52 4.6 |
0.45 0.45 0.55 0.70 0.80 |
Directions for Loading American 3-inch Shrapnel Shell.—In loading, make sure that the diaphragm seats firmly on the shoulder in the shell, then pour in 0.25 ounce of powdered resin to seal the joints, and shake down well to fill all cracks. The powdered resin becomes plastic when the [291] melted resin is poured in. Next put in one layer of bullets (18) and pour in 0.4 ounce of melted resin; then put in 108 bullets and pack by a pressure of six tons. Then pour in 3.75 ounces of melted mono-nitronaphthalene; put in 126 bullets; drive down with mallet below end of tube; and pour in 4 ounces of melted resin. After the mass has thoroughly cooled, face off matrix so that the depth from the end of the shell shall be 0.27 inch to allow for screwing in head, which should bear down hard on matrix. Next place washer in head and secure it by turning down crimping wall. Then fill annular space in lower face of head with melted resin, and after this is thoroughly cooled, face off flush with lower end of head. Screw head in place and secure with pins; then insert inner tube, pour in the base charge through the tube, and insert stopper. After the shell has been loaded, the shell and head should be painted from the rotating bands to the rear edge of the groove. For waterproofing, coat with a pure raw linseed oil black paint. Coat the remainder of the head with bitumastic solution, and crimp the waterproof cover in place while the solution is plastic. In the lower end of the inner tube should be placed a stopper of dry fibrous gun cotton rolled tightly into a cylinder and [292]pressed down until it rests on the shoulder of the diaphragm and is about one inch long.
TABLE III.
WEIGHTS AND MATERIALS USED IN AMERICAN
3-INCH SHRAPNEL SHELLS
| Part | Material | Weight in Pounds |
| Shell | Steel | 5.80 |
| Driving Band | Copper | 0.15 |
| Washer | Steel | 0.02 |
| Head | Steel | 0.45 |
| Tube (including inner tube) | Brass and Copper | 0.09 |
| Bullets (252) | Lead-antimony Alloy | 6.05 |
| Matrix | Resin and Mono-nitronaphthalene | 0.52 |
| Head Filler | Resin | 0.03 |
| Diaphragm | Steel | 0.47 |
| Base Charge | Shrapnel Powder | 0.17 |
| Fuse | 1.25 | |
| Semple Tracer | 0.20 | |
| Tracer Support | 0.17 | |
| Total Weight | 15.37 ± 0.15 |
The case is to be stamped as follows with letters ¹⁄₁₆ inch high: Lot number of shrapnel shell, purchase order, date of issue of purchase order, fiscal year, and initials of manufacturer.
TABLE IV.
PRINCIPAL DIMENSIONS OF VARIOUS SIZES OF CARTRIDGE
CASES USED ON AMERICAN SHRAPNEL SHELLS
| ||||||
|
Caliber in Inches |
Dimensions in Inches | |||||
| A | B | C | D | E | F | |
|
3.0 3.8 4.7 6.0 |
3.5 4.3 5.25 6.75 |
3.2 4.05 5.00 6.50 |
0.06 0.07 0.10 0.08 |
0.04 0.04 0.05 0.04 |
3.05 3.75 4.75 6.25 |
10.8 14.4 16.8 10.0 |
Cartridge Case.—The various sizes of American cartridge cases for shrapnel shells are drawn from a blank of brass, known as “cartridge brass.” The principal dimensions of the various sizes of cases are given in Table IV.
The specifications covering the time and percussion fuse used in American shrapnel shells are the same as for the British “No. 85,” given in Chapter XI, with the one exception that the base of the fuse body is shaped to suit the American shell, and the thread is the U. S. standard, instead of Whitworth standard.
[293]
Transcriber’s Notes.
Evident typographical and punctuation errors have been corrected silently. Inconsistent spelling/hyphenation has been normalised.
The word ‘gaged’ has been inserted at page 239; “3. All outside dimensions of the bottom of the case are gaged as follows:”
A half-title page has been discarded.
Some illustrations and tables have been relocated to improve text flow.
New original cover art included with this eBook is granted to the public domain.